Ja dat lijkt er inderdaad veel op. Dank je wel!!Prins32 schreef op woensdag 28 januari 2026 @ 14:46:
[...]
Ik vind het op de Keller Bolton Saliegroen lijken, MAARRRR lichtinval/camera/AI bewerking enz doet heel veel met de kleur op zulke foto's.
Ik had wat tijd over en ben altijd wel in voor een uitdaging, wat deze situatie zeker is. Ik ben op het volgende uitgekomen, zie de sketchup link voor een 3d model: https://app.sketchup.com/...oFQEQTlEB_UhlCUEgmGRh-1xxtroncki schreef op maandag 26 januari 2026 @ 19:32:
[...]
Ik zie weinig voorbeelden van een hoge hoek kast? Je levert dan eigenlijk nog meer blad in?
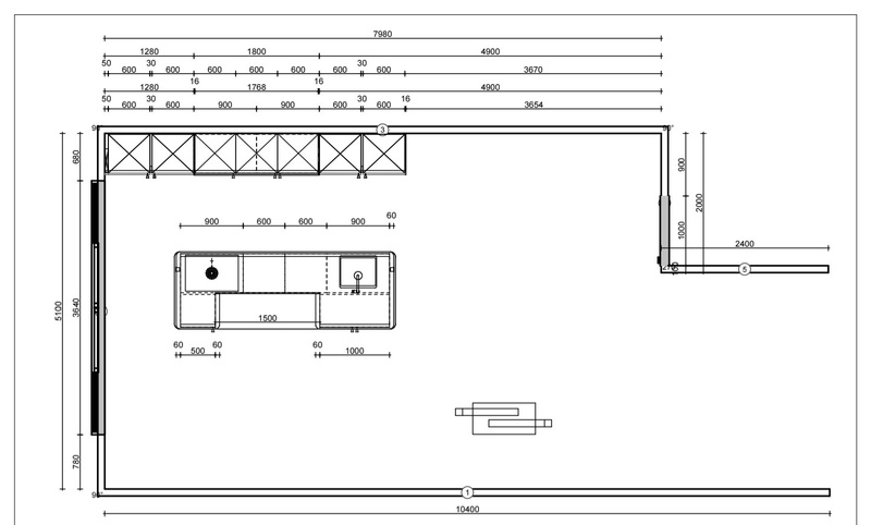
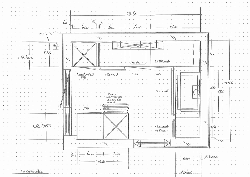
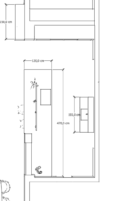
Hierbij een schets van een opstelling met de daadwerkelijk maten. Het is een open keuken waarbij het muurtje, voor zover ik weet, niet wegkan.
[Afbeelding]
:strip_exif()/f/image/ZF03GrD02jiDFitgwg1xU5bs.png?f=user_large)
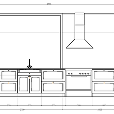
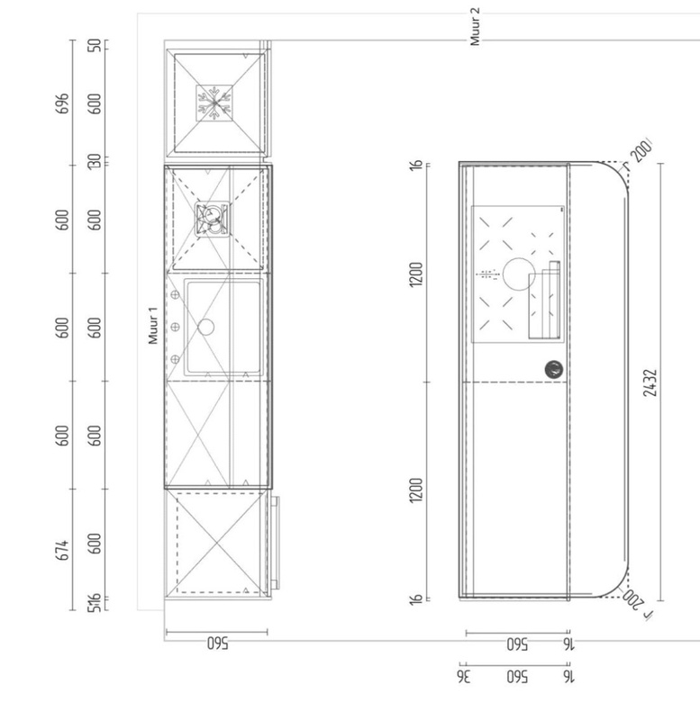
Ik weet niet of het kook schiereiland kan, maar het idee is het volgende: spoelen op een klein schiereiland met de vaatwasser tussen het raam en de spoelbak. Een hoge kastenwand er achter met een koel-vriezer, oven en apothekerskast. Een le-mans hoekkast met de kookplaat daarnaast tegen de wand, zodat je de potten en pannen uit de le-mans kast direct bij de hand hebt als je gaat koken. Verder overal bovenkasten. Je hebt een zee aan bergruimte, je kunt de apothekerskast evt. inruilen voor meer werkblad als je dat belangrijker vindt.
Alleen de doorloopruimte is wat krap, maar daar ontkom je volgens mij niet aan in zo'n compacte keuken.
[ Voor 7% gewijzigd door NuEffeNiet op 28-01-2026 18:16 ]
Ik quote even mezelf, nadat we begin 2024 voor het eerst bij Nolte Rotterdam waren binnengelopen is vorige week onze keuken in de nieuwbouw woning na bijna 2 jaar eindelijk echt geplaatst. We hebben november 2025 de sleutel gekregen en bewust het plaatsen uitgesteld tot alles gestuukt en geschilderd was en ook de egalisatie voor het PVC klaar was. De keuken is op de egalisatie geplaatst en deze week is het PVC gelegd.eelco74 schreef op donderdag 22 mei 2025 @ 10:56:
[...]
Wij waren gestart bij de bouwhof (lokaal zoetermeer, oa Nolte, Ballerina, Nobilia) en Nolte Rotterdam, die qua prijs heel dicht bij elkaar zaten.
Vervolgens op aanraden van familie naar Tieleman in Middelharnis geweest. Daar een offerte voor een Snaidero keuken, die volgens zeggen iets duurder zou zijn dan bij Next125. We zijn er overigens heel goed geholpen en dit is echt wel een fijne zaak met goede recenties. En als daar wat mis gaat dan lossen ze het ook over het algemeen goed op.
Echter was de Nolte 31K en de Snaidero in de zelfde opstelling 43K. Dat vonden we toch wel wat teveel verschil. Uiteindelijk voor Nolte Neo gekozen bij Nolte Rotterdam.
[Afbeelding]
:strip_exif()/f/image/KXbqYCLLY1SxkowzGalNORvW.jpg?f=fotoalbum_large)
De plaatsing duurde ongeveer 2 dagen, ze waren de eerste dag in de ochtend met 4 man sterk om alles uit te laden en binnen te plaatsen. De tweede dag waren ze samen en de laatste derde dag kwam er 1 monteur voor de laatste dingen. Heet fijn ook om te zien dat ze uiterst voorzichtig met het verse stuuk en schilderwerk omgingen en ook met de geleverde goederen. Overal werden stukken karton onder of achter gedaan om beschadigingen te voorkomen. Daarnaast werd en veel gezogen om zo veel mogelijk stof te vermijden,
Nogmaals even kort de beschrijving
De onderkasten zijn Nolte Softlak in de (nieuw voor 2026) kleur kasjmier
De hoge kast is Nolte Neo goudeiken
Alle lade's zijn Nolte Neo
Het werkblad is Dekker Topcore kleur Starling (een soort leisteenlook)
Het blad was eerst Evora Quartzite, maar het deel van de spoelbak is ruim 3.34 cm en dat is te lang om zonder naad te plaatsen. Topcore is in deze combinatie met greeploos echter ook wel heel fraai, met zo'n dun zwevend blad.
Hangende het PVC plaatsen komen ze later nog terug voor de plinten
En ook staan Bokmerk smeltplinten/achterwand nog in bestelling, die zijn ingemeten nu de keuken staat, zodat het mooi tussen het keukenblad en de vensterbank past.
Helaas zie je op de tekening dat er een 30cm lade onder de oven zit, met een 10cm vulstuk erboven. Dat was vanuit ons een hele bewuste keuzen. Er is echter een 40cm lade geleverd, dus nu zit de bovenste oven voor ons te hoog. Ook die wordt nageleverd, dat was ook geen enkel probleem. Over de service en de plaatsing zijn we tot nu toe zeer tevreden.
Als de verlichting en het bokmerk er inzit zal ik meer weer foto's plaatsen.
:strip_exif()/f/image/FngWNsOLaUbRANysbPq8ezTf.jpg?f=fotoalbum_large)
:strip_exif()/f/image/acjGoDusSLjdG3qKKHQQfeyL.jpg?f=fotoalbum_large)
:strip_exif()/f/image/eBwFdQaEao2TpSGtnHN80Ujj.jpg?f=fotoalbum_large)
:strip_exif()/f/image/s2idCXhXClLgUEhN3fXGOPhr.jpg?f=fotoalbum_large)
:strip_exif()/f/image/ReMnsup7QUAwGKR966EuUK0T.jpg?f=fotoalbum_large)
:strip_exif()/f/image/iH4uLFjK2EJrQYqsOMTZFRty.jpg?f=fotoalbum_large)
:strip_exif()/f/image/YbeEXGxd2ZkVX2IFU4WabFpW.jpg?f=fotoalbum_large)
:strip_exif()/f/image/ArQOizdMPyiBTrAHOMAKRmm5.jpg?f=fotoalbum_large)
:strip_exif()/f/image/vhVW1iE0dSioiuzwayJ4fQQ5.jpg?f=fotoalbum_large)
[ Voor 8% gewijzigd door eelco74 op 28-01-2026 19:57 ]
Dank voor jullie ideeën!TheInsomniac schreef op woensdag 28 januari 2026 @ 15:57:
[...]
Pfff, ik zit hier nu even naar te kijken en je zult vast geen unieke situatie hebben, maar ik vind het eindresultaat niet intuitief. Dit komt grotendeels door de vorm van het huis en de locatie van de ramen hoor, dus ik begrijp wel hoe je hierop komt uiteindelijk.
Allereerst, ik ben te lui om te schetsen, dus ik ga het met woorden proberen. Hierbij noem ik de zijde van het raam zijde 1, de onderkant van de 'U', zijde 2, en de zijde met de twee hoge kasten zijde 3.
Het grootste probleem is de hoek tussen zijde 2 en 3, die voelt op allerlei manieren onlogisch. Logischerwijs wil je 2 hoge kasten (koelkast/combioven naast elkaar) en gebrek aan werkblad, meeste zit nu in hoeken waar je nauwelijk bij kunt.
Ik zie hier voor een aantal opties/ideeen waar je wellicht iets mee kunt, die in combinaties wellicht tot een prettiger werkende keuken leiden:
- Idee 1:
Ik zou overwegen gootsteen en kookeiland beide aan zijde 1 te plaatsen, zodat zijde 2 je werkblad kan worden. En je een meer doorlopend werkoppervlak krijgt. Ik krijg de indruk dat de afzuiging al naar beneden toe is (geen afzuigkap) dat kan ook bij zijde 1.
- Idee 2:
Bovenkasten in hoek 2-3 eerder stoppen en wellicht doorzetten als planken richting de hoek, dan hoeft er ook niets open te kunnen daar en kun je de hele sluitmaat benutten (lijkt iets van 3180-900-900-600=780mm te zijn).
- Idee 3:
Wellicht de hoge kasten losknippen van de 'U' keuken en een kwartslag draaien en muurtje verlengen. (mooi chinees, dus wellicht wat slecht te volgen). Maar stel je maakt een L-keuken van zijde 1+2 conform huidig ontwerp, maar je de twee hoge kasten plaats in op zijde '4'. Dan heb je ruimte tussen zijde 2 en de hoge kasten en moet je de muur (visueel) verlengen zodat je niet tegen de achterzijde kasten aankijkt. Dit maakt wel de keuken iets minder 'open'
- Idee 4:
Ik zou bij onderkasten altijd proberen le mans kasten oid toe te passen, maar dat werkt niet echt naast een ladekast. En gezien de verspringing richting hoge kasten en sluitmaken, zie ik dat ook niet zomaar gebeuren richting de hoge kast. Wat deze hoek vrij verloren maakt.
- Idee 5:
Kun je er niet gewoon een 'L-keuken' van maken? Waarbij je inderdaad ook gootsteen en kookstel + laden op zijde 1 plaatst. Op zijde 2 heb je dan 5x 60 (+ sluitmaat 18cm) en komt dan bijvoorbeeld 1x hoek (met le mans) dan 2x laag + bovenkasten en 2x hoog. Je hebt dan een werkbladlengte van ~180cm, (120cm waar je voor kunt staan) zou voor mij voldoende zijn maar dat is een mening, wel heb je dan natuurlijk minder kastruimte .
- Idee 6:
Aanvullend op Idee 5, kun je dan op 'zijde 4'(vanuit zijde 3) dan een bar/snijblad maken van 3x 60. En wellicht op zijde 2 zelfs 3 hoge kasten. Dan snij je op de bar/werkblad op zijde 4.
- Idee 7:
Variant op 5/6. Waarbij je er wel een 'U'-keuken van maakt, maar dan over zijde 4-1-2. Zijde 1 zoals jij tekent met gootsteen. Zijde 4 sluit dan aan op zijde 1 en is dan 3x60 laag voor je snijoppervlak en je werkt richting de woonkamer (soort van eiland effect) evt. te combineren met bar en extra diep. En zijde 2 kun je dan bijvoorbeeld als volgt indelen (65 hoek)+40(le mans)+90 kookstel + 120 (2x hoog)
Binnen elke suggestie zijn nog 10 varianten te bedenken hoor. Maar wellicht geeft het wat inspiratie.
We hebben nu een L keuken. Voor ons gevoel gaan we er flink op voorruit qua werkblad. Ik begrijp wel je feedback qua werkblad rondom de kookplaat. Dit wordt overigens een kookplaat met afzuigkap.
Qua ontwerp zijn we er mi wel redelijk uit. 2 hoge kasten aan de binnenwand en boven de kookplaat 6 kasten van 45 cm breed gecentreerd. Zo houden we aan beide kanten een nis en kan de kast naast de hoge kastenwand ook nog open.
De hoge kasten losknippen is mogelijk nog een idee. Ik vraag me wel af wat dat doet met het 'open' keuken gevoel/idee.
Een schiereiland op die manier is niet mogelijk. Dat muurtje heeft aan de ene kant direct een schuifpui wat aansluit en aan de andere kant een raam. Hij zou dan maximaal tot de breedte van het muurtje ingetekend kunnen worden. Vraag me af of dat niet te krap wordt?NuEffeNiet schreef op woensdag 28 januari 2026 @ 17:43:
[...]
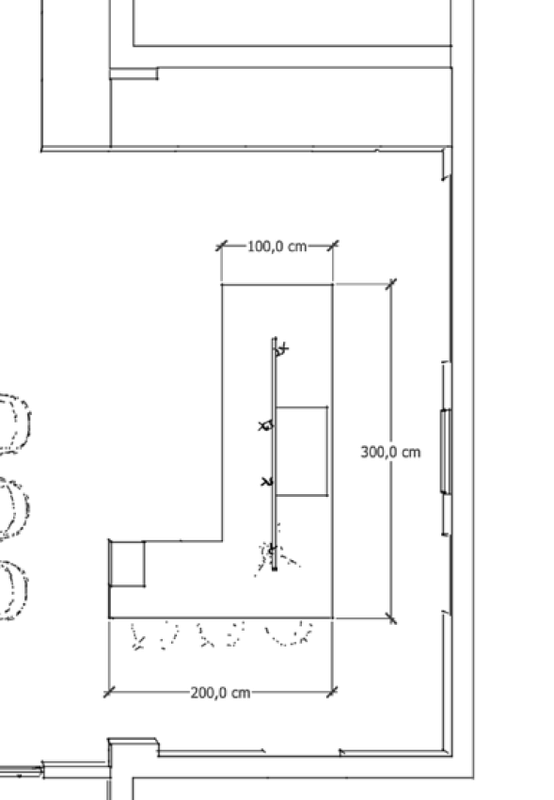
Ik had wat tijd over en ben altijd wel in voor een uitdaging, wat deze situatie zeker is. Ik ben op het volgende uitgekomen, zie de sketchup link voor een 3d model: https://app.sketchup.com/...oFQEQTlEB_UhlCUEgmGRh-1xx
[Afbeelding]
Ik weet niet of het kook schiereiland kan, maar het idee is het volgende: spoelen op een klein schiereiland met de vaatwasser tussen het raam en de spoelbak. Een hoge kastenwand er achter met een koel-vriezer, oven en apothekerskast. Een le-mans hoekkast met de kookplaat daarnaast tegen de wand, zodat je de potten en pannen uit de le-mans kast direct bij de hand hebt als je gaat koken. Verder overal bovenkasten. Je hebt een zee aan bergruimte, je kunt de apothekerskast evt. inruilen voor meer werkblad als je dat belangrijker vindt.
Alleen de doorloopruimte is wat krap, maar daar ontkom je volgens mij niet aan in zo'n compacte keuken.
Toevallig hebben buren wel een schiereiland, maar dan aan het andere muurtje. nadeel hiervan is dat bij hun de keuken ook doorloopt in de woonkamer.
Er zijn nu een aantal mensen hierboven die dit oorspronkelijke idee wat raar vinden (volledig met hele 3d Sketchup schetsen en veel goede ideeën, hulde!).troncki schreef op woensdag 28 januari 2026 @ 22:13:
[...]
Dank voor jullie ideeën!
We hebben nu een L keuken. Voor ons gevoel gaan we er flink op voorruit qua werkblad. Ik begrijp wel je feedback qua werkblad rondom de kookplaat. Dit wordt overigens een kookplaat met afzuigkap.
Qua ontwerp zijn we er mi wel redelijk uit. 2 hoge kasten aan de binnenwand en boven de kookplaat 6 kasten van 45 cm breed gecentreerd. Zo houden we aan beide kanten een nis en kan de kast naast de hoge kastenwand ook nog open.
Willen jullie je huis binnen afzienbare tijd gaan verkopen? Dan misschien toch even bedenken of het handig is bij je ontwerp te blijven? En anders, als dat ontwerp je blij maakt, ga ervoor!De hoge kasten losknippen is mogelijk nog een idee. Ik vraag me wel af wat dat doet met het 'open' keuken gevoel/idee.
[...]
Een schiereiland op die manier is niet mogelijk. Dat muurtje heeft aan de ene kant direct een schuifpui wat aansluit en aan de andere kant een raam. Hij zou dan maximaal tot de breedte van het muurtje ingetekend kunnen worden. Vraag me af of dat niet te krap wordt?
Toevallig hebben buren wel een schiereiland, maar dan aan het andere muurtje. nadeel hiervan is dat bij hun de keuken ook doorloopt in de woonkamer.
Ik vind jouw indeling helemaal zo gek niet, gezien alle beperkingen. Ik zou alleen de hoek rechtsbovenin anders aanpakken, omdat dat nu onhandig naast de hoge kast zit en niet in lijn met de kast beneden die om de hoek aansluit. Je zou daar een open kast kunnen maken (zelfde hoogte als bovenkasten) die wel de hoek omgaat. Aangezien je daar ook je koffiemachine wilt plaatsen, kun je in die open kast (of wandplanken) mooi kopjes/bekers etc kwijt. Beetje strak proberen te houden (bijv 1kleur en transparant) en dan heb je dat lelijke hoekje mooi functioneel gemaakt.troncki schreef op zondag 25 januari 2026 @ 20:59:
We hebben inmiddels 2 offertes ontvangen voor onze nieuwe keuken. Qua ontwerp zijn we er bijna uit, maar twijfelen enorm qua apparatuur.
Lokale zaak:
[Afbeelding]
Wij zijn al een tijd in gesprek met Kvik over de aanschaf van een nieuwe keuken. Voor een aantal apparaten hebben we ervoor gekozen deze zelf online aan te schaffen vanwege de grote prijsverschillen; Kvik is gelukkig bereid deze wel te monteren.
Toen we eigenlijk op het punt stonden akkoord te gaan met de offerte, viel ons oog in een andere keukenzaak op het Dekton Arga XGloss werkblad. Dit blad zat niet in het standaard assortiment van Kvik, maar zij gaven aan het wel te kunnen leveren. Hierop hebben we een aangepaste offerte ontvangen.
Ik ben benieuwd hoe jullie naar de prijsstelling van dit Dekton-werkblad kijken en wat jullie advies zou zijn. Ter vergelijking heb ik hieronder de kosten opgesplitst van:
- het oorspronkelijke werkblad via Kvik (Bianco Arabescato),
- het nieuwe werkblad via Kvik (Dekton Arga XGloss),
- en een offerte voor exact hetzelfde Dekton-blad via Natuursteenstunter.
Kvik – Bianco Arabescato
Spoelgedeelte € 1.530,95
Eiland € 1.442,00
Zijkant / zijwand € 2.003,47
Spoelbak (vlakinleg) € 743,70
Totaal werkbladen € 6.220,07
Kvik – Dekton Arga XGloss
Spoelgedeelte € 3.783,60
Eiland € 4.016,60
Zijkant / zijwand € 1.978,00
Spoelbak (vlakinleg) € 749,00
Totaal werkbladen € 11.027,15
Natuursteenstunter – Dekton Arga XGloss
Spoelgedeelte (176,3 × 74,2 cm) € 1.777,60
Eiland (264 × 59 cm) € 1.848,00
Zijkant / stolwand € 1.350,00
Verstek blad + stolwand € 150,00
Sparingen + kraangat € 460,00
Inmeten € 95,00
Montage € 500,00
Totaal werkbladen € 6.180,60
Ps Bij Kvik geldt nog een korting van 20 procent op het werkblad. Deze heb ik niet verwerkt in de opsomming hierboven.
Toen we eigenlijk op het punt stonden akkoord te gaan met de offerte, viel ons oog in een andere keukenzaak op het Dekton Arga XGloss werkblad. Dit blad zat niet in het standaard assortiment van Kvik, maar zij gaven aan het wel te kunnen leveren. Hierop hebben we een aangepaste offerte ontvangen.
Ik ben benieuwd hoe jullie naar de prijsstelling van dit Dekton-werkblad kijken en wat jullie advies zou zijn. Ter vergelijking heb ik hieronder de kosten opgesplitst van:
- het oorspronkelijke werkblad via Kvik (Bianco Arabescato),
- het nieuwe werkblad via Kvik (Dekton Arga XGloss),
- en een offerte voor exact hetzelfde Dekton-blad via Natuursteenstunter.
Kvik – Bianco Arabescato
Spoelgedeelte € 1.530,95
Eiland € 1.442,00
Zijkant / zijwand € 2.003,47
Spoelbak (vlakinleg) € 743,70
Totaal werkbladen € 6.220,07
Kvik – Dekton Arga XGloss
Spoelgedeelte € 3.783,60
Eiland € 4.016,60
Zijkant / zijwand € 1.978,00
Spoelbak (vlakinleg) € 749,00
Totaal werkbladen € 11.027,15
Natuursteenstunter – Dekton Arga XGloss
Spoelgedeelte (176,3 × 74,2 cm) € 1.777,60
Eiland (264 × 59 cm) € 1.848,00
Zijkant / stolwand € 1.350,00
Verstek blad + stolwand € 150,00
Sparingen + kraangat € 460,00
Inmeten € 95,00
Montage € 500,00
Totaal werkbladen € 6.180,60
Ps Bij Kvik geldt nog een korting van 20 procent op het werkblad. Deze heb ik niet verwerkt in de opsomming hierboven.
[ Voor 3% gewijzigd door Ernes7oo op 29-01-2026 08:18 ]
Je zou dan in plaats van een vlak eiland het muurtje verlengen in een halfhoog muurtje van +/- 120 cm hoog, dan is de rommel op het aanrecht ook nog een beetje verborgen.troncki schreef op woensdag 28 januari 2026 @ 22:13:
Een schiereiland op die manier is niet mogelijk. Dat muurtje heeft aan de ene kant direct een schuifpui wat aansluit en aan de andere kant een raam. Hij zou dan maximaal tot de breedte van het muurtje ingetekend kunnen worden. Vraag me af of dat niet te krap wordt?
Toevallig hebben buren wel een schiereiland, maar dan aan het andere muurtje. nadeel hiervan is dat bij hun de keuken ook doorloopt in de woonkamer.
Maar als je met de esthetische bezwaren van je originele oplossing kunt leven dan moet je dat vooral doen
Dit was puur om te laten zien dat er ook andere mogelijkheden zijn die die rommelige hoek voorkomen. Een meermaals geopperde variant om daar open planken door de hoek te laten lopen helpt volgens mij ook al om het rommelige van dat hoekje weg te halen, want voor de rest is het een hele praktische oplossing.
Wat wil je dat we zeggen? Volgens mij zie je zelf ook het prijsverschil tussen leverancier A en B. Het is aan jou/jullie om te bepalen of je het dat verschil waard vindt. Zo niet, daarover met Kvik in onderhandeling te gaan en kijken wat er mogelijk is. Wat ik een bijzondere opmerking van Kvik vind is dat je van het ‘standaard assortiment’ afwijkt, maar ze willen/kunnen het wel leveren voor een forse meerprijs. Dat vind ik wel bijzonder, in mijn ogen kan je iets leveren of niet. Maar hé, de hele keukenbranche is bijzonder!Ernes7oo schreef op donderdag 29 januari 2026 @ 00:19:
Wij zijn al een tijd in gesprek met Kvik over de aanschaf van een nieuwe keuken. Voor een aantal apparaten hebben we ervoor gekozen deze zelf online aan te schaffen vanwege de grote prijsverschillen; Kvik is gelukkig bereid deze wel te monteren.
Toen we eigenlijk op het punt stonden akkoord te gaan met de offerte, viel ons oog in een andere keukenzaak op het Dekton Arga XGloss werkblad. Dit blad zat niet in het standaard assortiment van Kvik, maar zij gaven aan het wel te kunnen leveren. Hierop hebben we een aangepaste offerte ontvangen.
Ik ben benieuwd hoe jullie naar de prijsstelling van dit Dekton-werkblad kijken en wat jullie advies zou zijn. Ter vergelijking heb ik hieronder de kosten opgesplitst van:
- het oorspronkelijke werkblad via Kvik (Bianco Arabescato),
- het nieuwe werkblad via Kvik (Dekton Arga XGloss),
- en een offerte voor exact hetzelfde Dekton-blad via Natuursteenstunter.
Kvik – Bianco Arabescato
Spoelgedeelte € 1.530,95
Eiland € 1.442,00
Extra blad / overig € 2.003,47
Spoelbak (vlakinleg) € 743,70
Totaal werkbladen € 6.220,07
Kvik – Dekton Arga XGloss
Spoelgedeelte € 3.783,60
Eiland € 4.016,60
Zijkant / zijwand € 1.978,00
Spoelbak (vlakinleg) € 749,00
Totaal werkbladen € 11.027,15
Natuursteenstunter – Dekton Arga XGloss
Spoelgedeelte (176,3 × 74,2 cm) € 1.777,60
Eiland (264 × 59 cm) € 1.848,00
Zijkant / stolwand € 1.350,00
Verstek blad + stolwand € 150,00
Sparingen + kraangat € 460,00
Inmeten € 95,00
Montage € 500,00
Totaal werkbladen € 6.180,60
Ps Bij Kvik geldt nog een korting van 20 procent op het werkblad. Deze heb ik niet verwerkt in de opsomming hierboven.
Dat is nu eenmaal het verdienmodel bij Kvik (en andere leveranciers die met concepten werken): ze hebben concepten met beperkte keuzes. Je koopt het concept voor een aantrekkelijke prijs, en alles wat daarbuiten valt, is wel te leveren, maar tegen een fors hogere prijs. Ik vind 5K een enorm verschil, dus ik zou het wel weten. Je moet je daar ook niet bezwaard over voelen: het is de keerzijde van hun verdienmodel. Jij wilt gewoon een mooie keuken voor een prettige prijs.bl0kkie87 schreef op donderdag 29 januari 2026 @ 07:48:
[...]
Wat wil je dat we zeggen? Volgens mij zie je zelf ook het prijsverschil tussen leverancier A en B. Het is aan jou/jullie om te bepalen of je het dat verschil waard vindt. Zo niet, daarover met Kvik in onderhandeling te gaan en kijken wat er mogelijk is. Wat ik een bijzondere opmerking van Kvik vind is dat je van het ‘standaard assortiment’ afwijkt, maar ze willen/kunnen het wel leveren voor een forse meerprijs. Dat vind ik wel bijzonder, in mijn ogen kan je iets leveren of niet. Maar hé, de hele keukenbranche is bijzonder!
Wat een mooie keuken en fijn om ook de plaatsingservaring hier te lezen. De prijs valt me enorm mee als ik zo het resultaat zie. Het maakt het topic leuker als je ook eindresultaten ziet in plaats van alleen offerte-checks, dus dank!
/f/image/1qWZXUsZ0fAF5ZQadhSNxWa9.png?f=fotoalbum_large)
/f/image/vOPToDfdCUZzDg09YU4WEKh8.png?f=fotoalbum_large)
/f/image/FhQ0PqJaQC8woDKhYzhs3Sd9.png?f=fotoalbum_large)
Voor onze keuken de eerste serieuze offerte, na een aantal weken wat gesprekken te hebben gevoerd. We hebben de ruimte, en de keuken is voor ons heel belangrijk onderdeel van onze totaalrenovatie. 60k vind ik dan wel weer fors om eerlijk te zijn maar bij meerdere DMG zaken werden onze wensen op 60-80k geschat. Deze offerte is uiteindelijk van Middelkoop in Culemborg, ontzettend prettige zaak tot nu toe overigens. En levenslange garantie t.o.v de lachwekkende 10 jaar bij Brugmans bijvoorbeeld. En achteraf betalen, niet verkeerd bij een dure renovatie.
Er is nu geen oven, omdat ik heb aangegeven zelf een Steel Genesi 60x90 aan te willen schaffen, ipv hun Siemens voorstel. Dus 55k voor Middelkoop + een Steel is een keuken van 60k ongeveer.
Hoe dan ook, los van details worstelen we vooral met de kookplaat. We betalen al ruim 4k voor de "grootste" niet-modulaire Bora, en ik vind nog steeds dat je weinig kookruimte hebt. We komen van een gasfornuis met 6 grote pitten, we koken graag en veel.
Wat ik eigenlijk wil, is de Bora Professional 3.0 en dan 3 delig. Dus:
Inductiezone - afzuiging - Tepan zone - afzuiging - Inductiezone.
Ik zie wel een aantal mensen hier de Bora Professional nemen maar nooit driedelig. Is daar ervaring mee? Middelkoop vraagt er maar liefst 12k voor, dat vind ik dan wel weer heel gestoord voor een fornuis
Is een 90cm kookplaat met een Siemens/Neff Glassdraft erachter misschien een (goedkoper) alternatief?Muldert schreef op donderdag 29 januari 2026 @ 15:16:
[Afbeelding]
[Afbeelding]
[Afbeelding]
Voor onze keuken de eerste serieuze offerte, na een aantal weken wat gesprekken te hebben gevoerd. We hebben de ruimte, en de keuken is voor ons heel belangrijk onderdeel van onze totaalrenovatie. 60k vind ik dan wel weer fors om eerlijk te zijn maar bij meerdere DMG zaken werden onze wensen op 60-80k geschat. Deze offerte is uiteindelijk van Middelkoop in Culemborg, ontzettend prettige zaak tot nu toe overigens. En levenslange garantie t.o.v de lachwekkende 10 jaar bij Brugmans bijvoorbeeld. En achteraf betalen, niet verkeerd bij een dure renovatie.
Er is nu geen oven, omdat ik heb aangegeven zelf een Steel Genesi 60x90 aan te willen schaffen, ipv hun Siemens voorstel. Dus 55k voor Middelkoop + een Steel is een keuken van 60k ongeveer.
Hoe dan ook, los van details worstelen we vooral met de kookplaat. We betalen al ruim 4k voor de "grootste" niet-modulaire Bora, en ik vind nog steeds dat je weinig kookruimte hebt. We komen van een gasfornuis met 6 grote pitten, we koken graag en veel.
Wat ik eigenlijk wil, is de Bora Professional 3.0 en dan 3 delig. Dus:
Inductiezone - afzuiging - Tepan zone - afzuiging - Inductiezone.
Ik zie wel een aantal mensen hier de Bora Professional nemen maar nooit driedelig. Is daar ervaring mee? Middelkoop vraagt er maar liefst 12k voor, dat vind ik dan wel weer heel gestoord voor een fornuisVoor dat geld koop je een professioneel fornuis incl oven en inductietop. Maar ja, dat staat niet in ons design vinden we zelf.
Mooi opzet van de keuken, ik heb nog nooit zo'n grote bar gezien :-) is het de bedoeling dat die als eettafel wordt gebruikt?
Voor welk merk keuken heb je gekozen? bij Next125 bijv kwam ik niet precies tot het plafond uit.
Voor welk merk keuken heb je gekozen? bij Next125 bijv kwam ik niet precies tot het plafond uit.
Thanks! Ja 5 meter, echt enorm. Heel mooi, maar helaas dus ook wel met een naad in het blad. Vind ik zelf echt heel zonde maar dat kan blijkbaar echt niet anders.DaYwaLkUr schreef op donderdag 29 januari 2026 @ 16:42:
Mooi opzet van de keuken, ik heb nog nooit zo'n grote bar gezien :-) is het de bedoeling dat die als eettafel wordt gebruikt?
Voor welk merk keuken heb je gekozen? bij Next125 bijv kwam ik niet precies tot het plafond uit.
Kasten van MK collectie, is dat huismerk Middelkoop? Kan er weinig over vinden namelijk.
Graag zou ik jullie ideeen willen weten mbt tot de keukenopstelling. En dan met name hoe we met een vervelende pilaar in de weg kunnen omgaan.
De woning en garage worden uitgebouwd en wordt de muur tussen beide ruimtes doorgebroken.
Helaas blijft er een kolom/pilaar van circa 80cm staan (geel gemarkeerd) over en komt deze ongelukkig uit met het keukeneiland. Het liefst heb ik de pilaar ook weg en desnoods vervangt willen zien door een stalen kolom maar volgens het bouwbedrijf kan dat niet..
Wellicht dat wij in een tunnelvisie zijn geraakt en geen oplossingen kunnen vinden.
Op de plek waar de keukenwand komt heb ik rode blokken gezet.
Geel gemarkeerde is het kolom
Groen gemarkeerde is veranderd en komt er een schuifpui van circa 200cm. Tevens wordt de gevel rechtsboven 65cm zodat de keukenblok strakker maar aan de andere kant "ingebouwd" hoeft te worden.
Is 65cm een goede afmeting voor de ombouw van een keuken incl. aanrecht?
/f/image/SV18J2PltEpXv7l7Nunh9wfT.png?f=fotoalbum_large)
De keuken hoe mijn vrouw het voor ogen heeft.
De woning en garage worden uitgebouwd en wordt de muur tussen beide ruimtes doorgebroken.
Helaas blijft er een kolom/pilaar van circa 80cm staan (geel gemarkeerd) over en komt deze ongelukkig uit met het keukeneiland. Het liefst heb ik de pilaar ook weg en desnoods vervangt willen zien door een stalen kolom maar volgens het bouwbedrijf kan dat niet..
Wellicht dat wij in een tunnelvisie zijn geraakt en geen oplossingen kunnen vinden.
Op de plek waar de keukenwand komt heb ik rode blokken gezet.
Geel gemarkeerde is het kolom
Groen gemarkeerde is veranderd en komt er een schuifpui van circa 200cm. Tevens wordt de gevel rechtsboven 65cm zodat de keukenblok strakker maar aan de andere kant "ingebouwd" hoeft te worden.
Is 65cm een goede afmeting voor de ombouw van een keuken incl. aanrecht?
/f/image/SV18J2PltEpXv7l7Nunh9wfT.png?f=fotoalbum_large)
De keuken hoe mijn vrouw het voor ogen heeft.
Ja en nu we het plaatsen hebben gezien, begrijpen we ook waarom dit best wat mag kosten. Een keuken kan qua ontwerp en materiaal nog zo mooi zijn, als de installatie zonder aandacht en precisie wordt gedaan, is het eindresultaat bijna altijd teleurstellend.Ojjorz schreef op donderdag 29 januari 2026 @ 10:16:
[...]
Wat een mooie keuken en fijn om ook de plaatsingservaring hier te lezen. De prijs valt me enorm mee als ik zo het resultaat zie. Het maakt het topic leuker als je ook eindresultaten ziet in plaats van alleen offerte-checks, dus dank!
Het voordeel van een partij met een eigen montagedienst is dat ze ook verantwoordelijk zijn voor het eindresultaat. In dit geval was het ook te merken, ze waren niet snel tevreden. Vooral de kookplaat was een beetje een "gevecht" om die mooi plaatsen. Hij is zeker een 40 minuten extra bezig geweest om het kasje aan te passen zodat de kookplaat mooi recht en vlak zat.
Zodra het bokmerk is gemonteerd, de plinten af zijn en de Paulmann Urail systeemverlichting is gemonteerd post ik nog wat fotos's.
Heel gaaf dat blad!Muldert schreef op donderdag 29 januari 2026 @ 15:16:
[Afbeelding]
[Afbeelding]
[Afbeelding]
Voor onze keuken de eerste serieuze offerte, na een aantal weken wat gesprekken te hebben gevoerd. We hebben de ruimte, en de keuken is voor ons heel belangrijk onderdeel van onze totaalrenovatie. 60k vind ik dan wel weer fors om eerlijk te zijn maar bij meerdere DMG zaken werden onze wensen op 60-80k geschat. Deze offerte is uiteindelijk van Middelkoop in Culemborg, ontzettend prettige zaak tot nu toe overigens. En levenslange garantie t.o.v de lachwekkende 10 jaar bij Brugmans bijvoorbeeld. En achteraf betalen, niet verkeerd bij een dure renovatie.
Er is nu geen oven, omdat ik heb aangegeven zelf een Steel Genesi 60x90 aan te willen schaffen, ipv hun Siemens voorstel. Dus 55k voor Middelkoop + een Steel is een keuken van 60k ongeveer.
Hoe dan ook, los van details worstelen we vooral met de kookplaat. We betalen al ruim 4k voor de "grootste" niet-modulaire Bora, en ik vind nog steeds dat je weinig kookruimte hebt. We komen van een gasfornuis met 6 grote pitten, we koken graag en veel.
Wat ik eigenlijk wil, is de Bora Professional 3.0 en dan 3 delig. Dus:
Inductiezone - afzuiging - Tepan zone - afzuiging - Inductiezone.
Ik zie wel een aantal mensen hier de Bora Professional nemen maar nooit driedelig. Is daar ervaring mee? Middelkoop vraagt er maar liefst 12k voor, dat vind ik dan wel weer heel gestoord voor een fornuisVoor dat geld koop je een professioneel fornuis incl oven en inductietop. Maar ja, dat staat niet in ons design vinden we zelf.
Je zou ook voor de Bora Classic 2.0 kunnen gaan? Vind dat zelf fijner werken dan de Pro omdat je dan van bovenaf de stand kunt aflezen ipv die knoppen aan de voorkant.
Tijdje geleden was er bij Rhijnart in Kesteren een Bora demo waar ze de Classic 2.0 hebben liggen met teppan en inductie (+ 2 XBO's
Steel zat daar ook in een keuken trouwens
Vors aan de prijs, vergelijkbare keuken qua formaat en witgoed in 2021 voor 45K. Maarja dat is stiekem natuurlijk al weer 5 jaar geleden. Was wel bij een zaak die als duurder bekend staat dan Middelkoop. Zou als ik jou was nog wel even rondshoppen. Met zo'n bedrag scheelt het snel veel.Muldert schreef op donderdag 29 januari 2026 @ 15:16:
[Afbeelding]
[Afbeelding]
[Afbeelding]
Voor onze keuken de eerste serieuze offerte, na een aantal weken wat gesprekken te hebben gevoerd. We hebben de ruimte, en de keuken is voor ons heel belangrijk onderdeel van onze totaalrenovatie. 60k vind ik dan wel weer fors om eerlijk te zijn maar bij meerdere DMG zaken werden onze wensen op 60-80k geschat. Deze offerte is uiteindelijk van Middelkoop in Culemborg, ontzettend prettige zaak tot nu toe overigens. En levenslange garantie t.o.v de lachwekkende 10 jaar bij Brugmans bijvoorbeeld. En achteraf betalen, niet verkeerd bij een dure renovatie.
Er is nu geen oven, omdat ik heb aangegeven zelf een Steel Genesi 60x90 aan te willen schaffen, ipv hun Siemens voorstel. Dus 55k voor Middelkoop + een Steel is een keuken van 60k ongeveer.
Hoe dan ook, los van details worstelen we vooral met de kookplaat. We betalen al ruim 4k voor de "grootste" niet-modulaire Bora, en ik vind nog steeds dat je weinig kookruimte hebt. We komen van een gasfornuis met 6 grote pitten, we koken graag en veel.
Wat ik eigenlijk wil, is de Bora Professional 3.0 en dan 3 delig. Dus:
Inductiezone - afzuiging - Tepan zone - afzuiging - Inductiezone.
Ik zie wel een aantal mensen hier de Bora Professional nemen maar nooit driedelig. Is daar ervaring mee? Middelkoop vraagt er maar liefst 12k voor, dat vind ik dan wel weer heel gestoord voor een fornuisVoor dat geld koop je een professioneel fornuis incl oven en inductietop. Maar ja, dat staat niet in ons design vinden we zelf.
11*310 WP (3410) op ZO (~140°) @ ~41° hoek , Growatt 3000 MTL-S
Je hebt aan ruimte in elk geval geen gebrek in je huis lijkt het. In lijn daarmee valt het me op dat de ruimte die je hebt in de keuken juist weer vrij beperkt is (eiland en wand staan dicht op elkaar). Nu klopt de schaal van je ingetekende vierkantjes ook niet, dus wellicht is er in de praktijk meer ruimte.Eskiya schreef op donderdag 29 januari 2026 @ 21:16:
Graag zou ik jullie ideeen willen weten mbt tot de keukenopstelling. En dan met name hoe we met een vervelende pilaar in de weg kunnen omgaan.
De woning en garage worden uitgebouwd en wordt de muur tussen beide ruimtes doorgebroken.
Helaas blijft er een kolom/pilaar van circa 80cm staan (geel gemarkeerd) over en komt deze ongelukkig uit met het keukeneiland. Het liefst heb ik de pilaar ook weg en desnoods vervangt willen zien door een stalen kolom maar volgens het bouwbedrijf kan dat niet..
Wellicht dat wij in een tunnelvisie zijn geraakt en geen oplossingen kunnen vinden.
Op de plek waar de keukenwand komt heb ik rode blokken gezet.
Geel gemarkeerde is het kolom
Groen gemarkeerde is veranderd en komt er een schuifpui van circa 200cm. Tevens wordt de gevel rechtsboven 65cm zodat de keukenblok strakker maar aan de andere kant "ingebouwd" hoeft te worden.
Is 65cm een goede afmeting voor de ombouw van een keuken incl. aanrecht?
[Afbeelding]
De keuken hoe mijn vrouw het voor ogen heeft.
[Afbeelding]
- 4x 60 en 4x90 = totaal 6m aan keuken en op je schets is het misschien iets meer dan 4m, 6m is tot de doorgaande wand tussen woonkamer en garage.
Suggesties:
- Allereerst zou ik zorgen dat de kolom, danwel tegen mijn eiland aan staat of erin staat.
- Het mooiste is wellicht zelfs wanneer je het eiland veel groter maakt (2 blokken diep, waarbij 1 links en 1 rechts van de kolom staat. Zo staat de kolom nooit echt in de weg van je logistiek en het minst hinderlijk.
- Je hebt nu een schuifpui van 4m in de woonkamer en 2m in de keuken. Besef je dit zou moeten willen integreren in je logistiek/layout van je huis. Hierbij als voorbeeld de schuifpui van 2m in de keuken. Voor mij zou dat betekenen dat je in bovenaanzicht over die twee meter ook geen eiland/kasten wilt. Dus in mijn beleving zou ik of een deur 10cm naast mij kastjes starten, en dan 10cm voorbij die deur begint mijn eiland. Of een schuifpui van 2m en je eiland schuift dan 1.2m door naar je woonkamer.
- Iets vergelijkbaars geldt in de andere richting, waarbij een eiland vrijwel dezelfde lengte heeft als je keuken, of minimaal centrisch staat gepositioneerd in de lengte van je keuken en dus aan weerszijden (richting buitenmuur en draagmuur dezelfde vrije ruimte heeft.
Constructief:
Optie 1: Technisch kan altijd alles, mits je maar genoeg geld en tijd hebt. Dus van de 800mm muur een stalen kolom maken moet altijd kunnen, maar is in dit geval wel complex.
Een en ander hangt af van de fundering eronder/vloer/bovenbelasting hoe complex dat wordt. Ook ik mij niet volledig duidelijk in hoeverre de doorbraak ook nieuw is of dat die bestaand is. (in dat laatste geval zou ik beter begrijpen waarom een aannemer zegt dat het niet zou kunnen, dan moet de doorbraak in feite opnieuw namelijk.)
Nu breek je in feite 4 wanden door:
- Woonkamer naar buiten
- Woonkamer - garage
- Garage naar buiten
- Uitbreiding woonkamer-uitbreiding garage
Bij het plan aannemer is dat opgelost met 4 'losse balken', wat qua fasering het eenvoudigst is. Ook omdat de vier balken niet op 1 punt samenkomen. Maar dus over de 800mm lengte van de muur die blijft staan.
Om dit wel met 1 kolom op te lossen, moet er eerst een (doorgaande) balk komen in de lengterichting van je huis (van de muur tussen garage en woning, tot nieuwe buitenmuur, die op 1 kolom staat. Waarbij er in die balk in fase 2 de beide dwarsverbindingen worden gerealiseerd. Dit is zeker complexer om te bouwen, maar is denk ik wel mogelijk.
Optie 2)
Zorg dat de kolom een minder storend element wordt. Dit kun je doen door bijvoorbeeld in de uitbreiding wel een wand de bouwen, waarbij de kolom in feite weggewerkt kan worden. De keuken blijft open over 3m lengte, maar wel andere uitstraling natuurlijk.
Dit hoeft absoluut geen doorgaande gesloten wand te zijn, want deze wand hoeft helemaal constructief niets te doen. Maar je kun bijvoorbeeld een soort raam bouwen, waarbij je bij de 'achtermuur' ook over 800mm een wand hebt en ertussen een soort eiland/bar setting. Dit kan lijken op een megagroot raam naar de keuken vanuit de woonkamer, maar door een stuk symmetrie aan te brengen wordt de kolom een stuk minder storend.
Variant hierop is dat je bijvoorbeeld een wand maakt/instand houdt over de hele lengte van je 'eiland'. Waarbij in die wand dan wel weer een 'raam'/gat kan komen om de verbinding weer te creeren tussen keuken en kamer.
Optie 3)
Zorg dat de kolom 'midden' in een kookeiland/bar/tafel eindigt. Dus een eiland die ~1.3-1.5 diep is zeg >4m lang. Dan plaats je op de kolom aan de keukenzijde planken met kruidenrekjes oid, of hang je de pannen aan (of wat hip/mooi is in keukenland) en aan de woonkamer zijde een grote klok of whatever je mooi vindt als decoratie en wordt het veel meer een onderdeel van het huis in plaats van een obstakel.
Sowieso voelt het eiland voor mij uit verhouding, je beganegrond is nu 140m2, wil het een beetje een element worden moet de grootte wel een beetje meeschalen.
Hopelijk geeft het wat ideeen... Veel ruimte heeft als nadeel dat het logisch en goed vullen van de ruimte spontaan een uitdaging wordt. Maar een luxe probleem zullen we maar zeggen.
Make it fool proof and someone will make a better fool.
Wat maakt het zo rommelig? Dat de lijnen niet doorlopen?NuEffeNiet schreef op donderdag 29 januari 2026 @ 06:39:
[...]
Je zou dan in plaats van een vlak eiland het muurtje verlengen in een halfhoog muurtje van +/- 120 cm hoog, dan is de rommel op het aanrecht ook nog een beetje verborgen.
Maar als je met de esthetische bezwaren van je originele oplossing kunt leven dan moet je dat vooral doen![]()
Dit was puur om te laten zien dat er ook andere mogelijkheden zijn die die rommelige hoek voorkomen. Een meermaals geopperde variant om daar open planken door de hoek te laten lopen helpt volgens mij ook al om het rommelige van dat hoekje weg te halen, want voor de rest is het een hele praktische oplossing.
Dat is wel het idee, maar wellicht is dat niet goed zichtbaar in de gedeelde afbeeldingen.
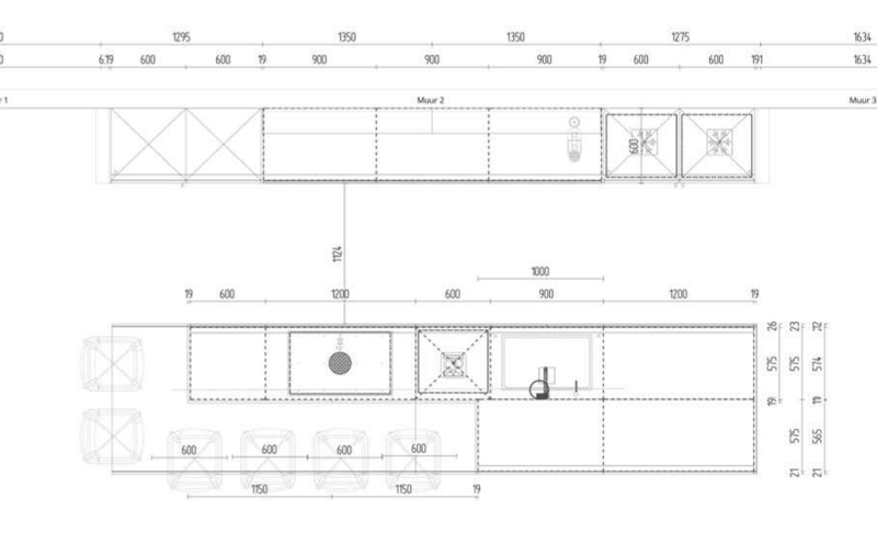
Ik heb de ontwerpen nagemaakt in een keukenplanner (gaat vooral om de indeling).
Het eerste ontwerp en het ontwerp waar we tot nu toe het meest tevreden mee zijn. Wel een twijfel over het kastje wat dus niet aansluit aan de muur met als resultaat een kleine nis. Maar de lijnen, moeten wel doorlopen met de kasten beneden.
/f/image/gA23olu15DnQEi0yY135YjmJ.png?f=fotoalbum_large)
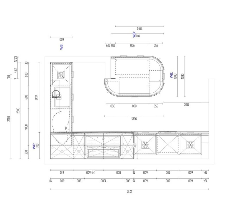
Het tweede ontwerp, te veel bovenkasten waarmee het te vol wordt wat ons betreft. Hier zit dus ook een hoekast bovenin naast de hoge kastenwand. (niet nagemaakt)
/f/image/Pu7Bz8LLEkXz3J0MUm67xPy3.png?f=fotoalbum_large)
Mogelijk alternatieven:
Wandplanken. Hierdoor mis je wel 2 bovenkasten
/f/image/4kmHHbX7BaHmzli6uMvWMHUj.png?f=fotoalbum_large)
Open kasten (moeten uiteraard aansluiten tegen de muur en qua hoogte)
Het is misschien persoonlijk, maar zo'n hoek waar een kastje half achter verborgen zit vind ik rommelig. Wat ik belangrijk vind is dat de horizontale lijnen doorlopen en dat de bovenkasten niet hoger zijn dan de hoge kasten (waarschijnlijk een beperking van de gebruikte programma's).troncki schreef op vrijdag 30 januari 2026 @ 20:37:
[...]
Wat maakt het zo rommelig? Dat de lijnen niet doorlopen?
Dat is wel het idee, maar wellicht is dat niet goed zichtbaar in de gedeelde afbeeldingen.
Ik heb de ontwerpen nagemaakt in een keukenplanner (gaat vooral om de indeling).
Het eerste ontwerp en het ontwerp waar we tot nu toe het meest tevreden mee zijn. Wel een twijfel over het kastje wat dus niet aansluit aan de muur met als resultaat een kleine nis. Maar de lijnen, moeten wel doorlopen met de kasten beneden.
[Afbeelding]
Het tweede ontwerp, te veel bovenkasten waarmee het te vol wordt wat ons betreft. Hier zit dus ook een hoekast bovenin naast de hoge kastenwand. (niet nagemaakt)
[Afbeelding]
Mogelijk alternatieven:
Wandplanken. Hierdoor mis je wel 2 bovenkasten
[Afbeelding]
Open kasten (moeten uiteraard aansluiten tegen de muur en qua hoogte)
[Afbeelding]
Misschien moet je niet proberen om uit alle macht de symmetrie van de achterwand aan te houden, want daar lijkt het een beetje op.
Je zou bijvoorbeeld de kasten wand wel aan de muur bij het raam kunnen laten beginnen, maar eerder over laten gaan in een plank of planken die in de hoek doorlopen tot aan de hoge kasten.
Maar nogmaals, als je geen problemen hebt met de bovenkast in dat hoekje dan is het een redelijk optimale oplossing.
Goedeavond. Ik ben vandaag langs de kvik gegaan en ze hebben mij een offerte gestuurd. Nu zoek ik de apparaturen op google en zie ik dat ze voor zeker 20-30%, soms wel meer, tekoop staan bij andere websites als keukenloods, mediamarkt etc. Kan ik dit bij ze aankaarten of is dit gwn the way of business?
Intekening van de keuken klopt voor geen kanten, was meer om een idee te gevenTheInsomniac schreef op vrijdag 30 januari 2026 @ 15:33:
[...]
Je hebt aan ruimte in elk geval geen gebrek in je huis lijkt het. In lijn daarmee valt het me op dat de ruimte die je hebt in de keuken juist weer vrij beperkt is (eiland en wand staan dicht op elkaar). Nu klopt de schaal van je ingetekende vierkantjes ook niet, dus wellicht is er in de praktijk meer ruimte.
- 4x 60 en 4x90 = totaal 6m aan keuken en op je schets is het misschien iets meer dan 4m, 6m is tot de doorgaande wand tussen woonkamer en garage.
Dit is hoe de keuken eruit komt te zien. Ik heb nu vanaf de wand als volgt berekend: 60 - 110 - 110 en dan blijft er 20cm over tussen eiland en pilaar.
:strip_exif()/f/image/npGLOl6weCNQiZcfCXCCMXdi.jpg?f=fotoalbum_large)
Suggesties:
We kunnen de eiland breder 120 nemen en de afstand tussen wand - eiland 115 maken?- Allereerst zou ik zorgen dat de kolom, danwel tegen mijn eiland aan staat of erin staat.
- Het mooiste is wellicht zelfs wanneer je het eiland veel groter maakt (2 blokken diep, waarbij 1 links en 1 rechts van de kolom staat. Zo staat de kolom nooit echt in de weg van je logistiek en het minst hinderlijk.
- Je hebt nu een schuifpui van 4m in de woonkamer en 2m in de keuken. Besef je dit zou moeten willen integreren in je logistiek/layout van je huis. Hierbij als voorbeeld de schuifpui van 2m in de keuken. Voor mij zou dat betekenen dat je in bovenaanzicht over die twee meter ook geen eiland/kasten wilt. Dus in mijn beleving zou ik of een deur 10cm naast mij kastjes starten, en dan 10cm voorbij die deur begint mijn eiland. Of een schuifpui van 2m en je eiland schuift dan 1.2m door naar je woonkamer.
Kan ik me (nog) niks bij voorstellen. Heb je een voorbeeld?- Iets vergelijkbaars geldt in de andere richting, waarbij een eiland vrijwel dezelfde lengte heeft als je keuken, of minimaal centrisch staat gepositioneerd in de lengte van je keuken en dus aan weerszijden (richting buitenmuur en draagmuur dezelfde vrije ruimte heeft.
Optie 2)
Dit is ook iets wat we overwegen. Kolom even lang als eiland, waardoor eiland geen eiland meer is maar tegen de muur staat.Zorg dat de kolom een minder storend element wordt. Dit kun je doen door bijvoorbeeld in de uitbreiding wel een wand de bouwen, waarbij de kolom in feite weggewerkt kan worden. De keuken blijft open over 3m lengte, maar wel andere uitstraling natuurlijk.
Dit hoeft absoluut geen doorgaande gesloten wand te zijn, want deze wand hoeft helemaal constructief niets te doen. Maar je kun bijvoorbeeld een soort raam bouwen, waarbij je bij de 'achtermuur' ook over 800mm een wand hebt en ertussen een soort eiland/bar setting. Dit kan lijken op een megagroot raam naar de keuken vanuit de woonkamer, maar door een stuk symmetrie aan te brengen wordt de kolom een stuk minder storend.
Variant hierop is dat je bijvoorbeeld een wand maakt/instand houdt over de hele lengte van je 'eiland'. Waarbij in die wand dan wel weer een 'raam'/gat kan komen om de verbinding weer te creeren tussen keuken en kamer.
Optie 3)
Zeker goede ideeen. Dank je wel! We hebben een opdracht aan een 3e partij (constructeur) gegeven die regelmatig met de (mogelijke) dakopbouwer werkt.Zorg dat de kolom 'midden' in een kookeiland/bar/tafel eindigt. Dus een eiland die ~1.3-1.5 diep is zeg >4m lang. Dan plaats je op de kolom aan de keukenzijde planken met kruidenrekjes oid, of hang je de pannen aan (of wat hip/mooi is in keukenland) en aan de woonkamer zijde een grote klok of whatever je mooi vindt als decoratie en wordt het veel meer een onderdeel van het huis in plaats van een obstakel.
Sowieso voelt het eiland voor mij uit verhouding, je beganegrond is nu 140m2, wil het een beetje een element worden moet de grootte wel een beetje meeschalen.
Hopelijk geeft het wat ideeen... Veel ruimte heeft als nadeel dat het logisch en goed vullen van de ruimte spontaan een uitdaging wordt. Maar een luxe probleem zullen we maar zeggen.
Ik heb een aantal quotes van jou verplaatst naar (Verwijderen draagmuur) mochten jullie nog meer ideeen hebben :-)
Afgelopen week is de keuken geïnstalleerd. Helaas nog niet helemaal klaar, het werkblad is nu ingemeten en wordt precies op maat gemaakt. Dat wisten we van te voren want wij wilden geen plinten op het blad.ChiLLeR schreef op donderdag 25 september 2025 @ 19:20:
[...]
Ik zie dat dit nog een oudere revisie is. We hebben toch voor gekozen om alles in het fineer te doen en een ombouw om de hoge kasten te maken. Deze lamp komt boven het kook eiland: https://www.tonone.com/nl/Bridge-180/6010
[Afbeelding] [Afbeelding]
Helaas missen we nog een Siemens oven en een Liebherr vriezer, helaas had de apparatuur leverancier de bestelling te laat gedaan en ging er vanuit dat er wel voorraad was vanuit het merk. Dat was dus niet zo, ook had de keuken leverancier nog geprobeerd ergens anders te bestellen en die had beloofd hem wel echt te hebben maar ook die kon uiteindelijk niet op tijd leveren. Het is vervelend maar niet onoverkomelijk, we zitten ca 2 weken zonder vriezer.
Erg blij met het resultaat zo ver, nog even de laatste dingen en dan verhuizen.
>> Signature?
Als de kolom niet weg kan, kun je er beter een eyecatcher van maken. Je zou kunnen overwegen om de kolom aan de zijde van de keuken van spiegelend glas te voorzien en daar tegenaan rekje/potjes met verse kruiden of glaswerk. Dat geeft diepte en een gevoel van uitzicht, waar je anders tegen dat blok kijkt.Eskiya schreef op donderdag 29 januari 2026 @ 21:16:
Graag zou ik jullie ideeen willen weten mbt tot de keukenopstelling. En dan met name hoe we met een vervelende pilaar in de weg kunnen omgaan.
Ik zou het eiland sowieso verbinden met de kolom (ertegenaan of eromheen). Als je de kolom los laat staan is het een extra sta in de weg. Hoe gaat de ruimte links van het eiland verder ingedeeld worden?
Pilaar als onderdeel van het eiland vinden we nog best lastig. Zoals het er naar uitziet moeten het accepteren dat we niet aan de kan vh eiland lades kunnen nemen vanwege het pilaar.
Links vd keuken İn de buurt van het kolom willen we een vrijstaande tv wall / haard. En de zithoek richting keuken/wall. Maar als dat niet handig is moeten we de zithoek maar omdraaien. Als er mede-tweakers zijn met een soortgelijke hinder ben ik ook geinterreseerd in foto's.
Links vd keuken İn de buurt van het kolom willen we een vrijstaande tv wall / haard. En de zithoek richting keuken/wall. Maar als dat niet handig is moeten we de zithoek maar omdraaien. Als er mede-tweakers zijn met een soortgelijke hinder ben ik ook geinterreseerd in foto's.
Wij hebben een heel andere indeling, maar ook een deel van de oude achterpui als pilaar in ons eiland. Misschien heb je er wat aan:Eskiya schreef op zaterdag 31 januari 2026 @ 09:51:
Pilaar als onderdeel van het eiland vinden we nog best lastig. Zoals het er naar uitziet moeten het accepteren dat we niet aan de kan vh eiland lades kunnen nemen vanwege het pilaar.
Links vd keuken İn de buurt van het kolom willen we een vrijstaande tv wall / haard. En de zithoek richting keuken/wall. Maar als dat niet handig is moeten we de zithoek maar omdraaien. Als er mede-tweakers zijn met een soortgelijke hinder ben ik ook geinterreseerd in foto's.
:strip_exif()/f/image/HYlIDnTEakGsQ7qcbimS3618.jpg?f=fotoalbum_large)
:strip_exif()/f/image/UGuS7FN3B3AsoN34qLwB3eYh.jpg?f=fotoalbum_large)
Ook hier graag wat input en ervaringen voor het aanschaffen van een nieuwe keuken. De eerste opzet is gemaakt met IKEA, maar wij zijn nu op advies van onze monteur ook aan het orienteren bij keukenbedrijven. Zijn er nog aanbevelingen voor bedrijven in de regio Alkmaar / Heerhugowaard waar we in ieder geval even op bezoek moeten?
Het wordt een landelijke keuken met een dubbele L indeling. In de linker 90' hoek staat op dit moment een 135' wand die gesloopt gaat worden zodat we een rechte keuken krijgen. Bij de L constructie aan de rechterzijde zit op dit moment een radiotor die verwijderd gaat worden.
Op advies er voor gekozen om de vaatwasser, die op dit moment in de bijkeuken staat, naast het spoelgedeelte onder te brengen. Hier mee kunnen we de droger boven de wasmachine plaatsen in de bijkeuken met als gevolg meer kastruimte voor opberging.
Voor apparatuur zijn we gevallen voor een gewaagde oranje SMEG inductiefornuis / afzuiging en koelkast combinatie (https://smegstoreamsterda...g-cpf9ipor-fornuis-90-cm/). Dit staat redelijk vast, maar is wel ook meteen een flinke kostenpost.
Ons budget ligt max op 20K inclusief montage. Het voorwerk incl. electra, stuccen etc laten we door een bevriende monteur doen wat kwa prijs gunstig is. Goed, genoeg getypt, dit is de indeling:
Bij Reddy keukens kwamen we inclusief apparatuur en montage op 19.5K (excl. kosten voorwerk) uit met een andere kastindeling (meer 90/100 kasten aangezien IKEA max tot 80 breed gaat). IKEA komt op een kleine 15K (excl. kosten voorwerk) met als nadeel dat alles nog in elkaar geschroefd moet worden
.
Is dit een realistische inschatting voor een keuken van dit formaat? Wij gaan uiteraard nog bij andere bedrijven kijken wat de mogelijkheden zijn maar ben ook benieuwd naar jullie input!
Het wordt een landelijke keuken met een dubbele L indeling. In de linker 90' hoek staat op dit moment een 135' wand die gesloopt gaat worden zodat we een rechte keuken krijgen. Bij de L constructie aan de rechterzijde zit op dit moment een radiotor die verwijderd gaat worden.
Op advies er voor gekozen om de vaatwasser, die op dit moment in de bijkeuken staat, naast het spoelgedeelte onder te brengen. Hier mee kunnen we de droger boven de wasmachine plaatsen in de bijkeuken met als gevolg meer kastruimte voor opberging.
Voor apparatuur zijn we gevallen voor een gewaagde oranje SMEG inductiefornuis / afzuiging en koelkast combinatie (https://smegstoreamsterda...g-cpf9ipor-fornuis-90-cm/). Dit staat redelijk vast, maar is wel ook meteen een flinke kostenpost.
Ons budget ligt max op 20K inclusief montage. Het voorwerk incl. electra, stuccen etc laten we door een bevriende monteur doen wat kwa prijs gunstig is. Goed, genoeg getypt, dit is de indeling:
![]() | ![]() | ![]() |
![]() |
Is dit een realistische inschatting voor een keuken van dit formaat? Wij gaan uiteraard nog bij andere bedrijven kijken wat de mogelijkheden zijn maar ben ook benieuwd naar jullie input!
@Speculaasje Wat gaaf om voor zo'n kleur te kiezen! ik hou ervan!
wat willen jullie verder voor kleuren? klopt het plaatje qua kleurenpalet? je zou ook nog eens bij Superkeukens kunnen kijken, die kunnen ook frontjes in de gewenste kleur spuiten als je nog meer oranje wil. En ze vragen ook niet de hoofdprijs.
qua indeling, het hoekje tegenover de wasbak, daar zou je eventueel nog een kastje kunnen plaatsen, is dat bewust leeg daar? Of een mooie oranje vuilnisbak natuurlijk!
qua indeling, het hoekje tegenover de wasbak, daar zou je eventueel nog een kastje kunnen plaatsen, is dat bewust leeg daar? Of een mooie oranje vuilnisbak natuurlijk!
[ Voor 4% gewijzigd door Frieda op 31-01-2026 10:51 ]
Wij zitten een beetje met hetzelfde te stoeien. Wij krijgen een hele mooie zijaanbouw aan onze nieuwbouw woning (6.1m x3m), waar we graag onze keuken willen plaatsen. Ook hier zit vanuit de bouw een pilaar / kolom, die niet weg kan. Daarnaast hebben wij (overal in huis) ramen t/m de grond, wat plaatsin van een kastenwand nogal moeilijk maken.Eskiya schreef op zaterdag 31 januari 2026 @ 09:51:
Pilaar als onderdeel van het eiland vinden we nog best lastig. Zoals het er naar uitziet moeten het accepteren dat we niet aan de kan vh eiland lades kunnen nemen vanwege het pilaar.
Links vd keuken İn de buurt van het kolom willen we een vrijstaande tv wall / haard. En de zithoek richting keuken/wall. Maar als dat niet handig is moeten we de zithoek maar omdraaien. Als er mede-tweakers zijn met een soortgelijke hinder ben ik ook geinterreseerd in foto's.
Wij zijn nu aan het nadenken over een 3-tal opties (let niet op de plaats van de wasbak of kookplaat, die moeten allebei in het eiland komen. Dus mocht er iemand nog ideeen hebben, graag!
1: Kookeiland van 1m breed bij 3,30m lang.
:strip_exif()/f/image/bUZxM5B2P5F5Ba4AE22ANs7a.png?f=user_large)
2: Kookeiland in een L verwerkt in de pilaar (1,20m x 3,30 + de L):
/f/image/EcYD5ZTmfgHRXnnrOBFFoHFt.png?f=fotoalbum_large)
3: Kookeiland verwerkt in de pilaar (of ertegenaan) van 1,20~1,40 x 3,30m - tekening hier is niet goed, want daar heeft de interieurarchitect er een mega schiereiland van gemaakt, maar dan moet je er helemaal omheen om bij de tafel te komen.
:strip_exif()/f/image/qCpNvk8vnoVWKFwNXIFUwHen.png?f=user_large)
Voordeel van 1: Standaard keuken. Helemaal vrijstaand, minder hokkerig gevoel voor in de woonkamer (woonkamer is 5,70m breed - vanaf de pilaar)
Nadeel van 1: Weinig snijruimte ten opzichte van nu (we hebben nu 4,80m aan blad), smalle doorloop bij de pilaar, smal eiland
Voordeel van 2: Niet standaard (L-eiland). Nuttig gebruik vak de ruimte, meer snijruimte tegenover de kastenwand (1,20m ipv 1m). Veel kastruimte
Nadeel van 2: niet standaard. Naad in het blad
Voordeel van 3: Groot aanrecht, met ook snijruimte tegenover de kastenwand.
Nadeel van 3: Veel ruimte achter het eiland (1,60m tot de muur). Bar neemt veel kastruimte in.
3D van het L-eiland.
[ Voor 5% gewijzigd door M3rcury op 31-01-2026 11:42 ]
No signature required.
Eens dat dat de mooiste oplossing zou zijn; volledig open ruimte. Maar gevel erboven én je uitbouw rusten op die pilaar, dus ik snap dat dat ingewikkeld (en erg duur) wordt.Eskiya schreef op zaterdag 31 januari 2026 @ 09:51:
Pilaar als onderdeel van het eiland vinden we nog best lastig. Zoals het er naar uitziet moeten het accepteren dat we niet aan de kan vh eiland lades kunnen nemen vanwege het pilaar.
Als je de pilaar op deze manier in het eiland opneemt kun je aan weerszijden lades maken aan die kant. Misschien wil je aan een van de kopse kanten ruimte voor barkrukken als je geen eettafel in de buurt hebt? Zie onder hoeveel ruimte je hebt als je het eiland wat meer naar de kamer schuift (ca 1.50 tussen wand en eiland), en hoeveel rustiger het geheel is als je pilaar aan eiland verbindt.
Je gaf aan dat je ook iets van een tv wand wilt. Je zou kunnen overwegen om de pilaar wat breder te maken en daar je tv tegenaan te plaatsen? Anders gaat het effect van eiland wel verloren.
ik ben ook van team "if it's ugly, make it a feature". Die pilaar leent zich ook echt om wat tegenaan te hangen, al naar gelang je smaak bijvoorbeeld wat flessen drank als in een bar (ook leuk om daar dan een drankje te doen zittend aan de bar), of een pistachecremedispenser, een bonenmaler, je lego collectie, je kan het zo gek niet bedenken!
@orf dank heb er een beter beeld bij en is eerlijk gezegd helemaal niet storend als je de pilaar een onderdeel ervan maakt, zoals de meesten al aangegeven hebben..
Misschien is dat toch het beste manier. Een dikkere voorzetwand achter de keukenwand, zodat de afstand met het eiland naar verhouding is.
Zouden dan de pilaar 90cm kunnen houden, zodat we 3x90cm lades aan beide kanten krijgen en jouw voorbeeld wordt..en aangezien er op het eiland geen kookblad, wasbak oid komt kunnen we op de pilaar een tvtje kunnen hangen.
Tv wand wat we wilden is hetzelfde als deze. Dan toch maar naar andere voorbeelden kijken.
:strip_exif()/f/image/nNsXRqEwDsR8tZxyQclyfZWF.jpg?f=fotoalbum_large)
Begin adhv jullie opmerkingen steeds minder problemen met de pilaar te krijgen. Dank dank dank :-)
Misschien is dat toch het beste manier. Een dikkere voorzetwand achter de keukenwand, zodat de afstand met het eiland naar verhouding is.
Zouden dan de pilaar 90cm kunnen houden, zodat we 3x90cm lades aan beide kanten krijgen en jouw voorbeeld wordt..en aangezien er op het eiland geen kookblad, wasbak oid komt kunnen we op de pilaar een tvtje kunnen hangen.
Tv wand wat we wilden is hetzelfde als deze. Dan toch maar naar andere voorbeelden kijken.
:strip_exif()/f/image/nNsXRqEwDsR8tZxyQclyfZWF.jpg?f=fotoalbum_large)
Begin adhv jullie opmerkingen steeds minder problemen met de pilaar te krijgen. Dank dank dank :-)
[ Voor 8% gewijzigd door Eskiya op 31-01-2026 13:01 ]
Het is ook een heel forse ruimte die je wilt indelen. Dat is best lastig vanaf een tekening. Even los van de ideeën hier misschien de suggestie om er een interieurarchitect naar te laten kijken. Die is misschien beter in staat om het als geheel te bekijken.Eskiya schreef op zaterdag 31 januari 2026 @ 12:59:
Tv wand wat we wilden is hetzelfde als deze. Dan toch maar naar andere voorbeelden kijken.
[Afbeelding]
Begin adhv jullie opmerkingen steeds minder problemen met de pilaar te krijgen. Dank dank dank :-)
Zelf vond ik nog deze optie, ook mooi als je de ruimte hebt. Je kunt er werkblad en lades achter verstoppen, al ben je dan wel het idee van het eiland kwijt.
Beste medetweakers,
na een tijdje meelezen ben ik erg benieuwd naar jullie mening(en) over mijn keuken.
Ik wil voor mijn nieuwbouwwoning een L-keuken laten plaatsen. vandaag ben ik bij de keukenleverancier van het project geweest. Leuk gesprek, mooie keuken maar ik ben (best) geschrokken van de prijs. Dit was namelijk 13.7K. Daarvoor krijg ik de volgende keuken:
:strip_exif()/f/image/F4C6F6f9znB2GVxiv59ixDFo.jpg?f=fotoalbum_large)
Pronorm Y-line, met Bosch Apparatuur (inductiekookplaat, koel/vries combinatie, vaatwasser, afzuigkap en stoomoven) en een kunststof blad. Afmetingen zijn 270x180 cm, met de 270 aan de zijde met de hoge kasten.
Nu is er op mijn offerte een 'totale' korting van 4000 euro, inclusief de waardebon van 1250 euro (het was dus 17.7K). Ik heb al twee offertes opgevraagd voor exact dezelfde apparatuur bij keukenloods en Bemmel&Kroon, die komen beide 2500 euro goedkoper uit. Ook voor een composiet werkblad kom ik op ongeveer dezelfde prijs als wat ik hier voor het kunststof werkblad zou moeten betalen. Ik twijfel dus dat ik ook de keukenkastjes, of de gehele keuken, ergens voor een lager bedrag kan krijgen.
Wat vinden jullie hiervan? En ik was opzich wel gecharmeerd van Pronorm, zijn er andere leveranciers die deze aanbieden en scherpere tarieven hanteren?
na een tijdje meelezen ben ik erg benieuwd naar jullie mening(en) over mijn keuken.
Ik wil voor mijn nieuwbouwwoning een L-keuken laten plaatsen. vandaag ben ik bij de keukenleverancier van het project geweest. Leuk gesprek, mooie keuken maar ik ben (best) geschrokken van de prijs. Dit was namelijk 13.7K. Daarvoor krijg ik de volgende keuken:
:strip_exif()/f/image/F4C6F6f9znB2GVxiv59ixDFo.jpg?f=fotoalbum_large)
Pronorm Y-line, met Bosch Apparatuur (inductiekookplaat, koel/vries combinatie, vaatwasser, afzuigkap en stoomoven) en een kunststof blad. Afmetingen zijn 270x180 cm, met de 270 aan de zijde met de hoge kasten.
Nu is er op mijn offerte een 'totale' korting van 4000 euro, inclusief de waardebon van 1250 euro (het was dus 17.7K). Ik heb al twee offertes opgevraagd voor exact dezelfde apparatuur bij keukenloods en Bemmel&Kroon, die komen beide 2500 euro goedkoper uit. Ook voor een composiet werkblad kom ik op ongeveer dezelfde prijs als wat ik hier voor het kunststof werkblad zou moeten betalen. Ik twijfel dus dat ik ook de keukenkastjes, of de gehele keuken, ergens voor een lager bedrag kan krijgen.
Wat vinden jullie hiervan? En ik was opzich wel gecharmeerd van Pronorm, zijn er andere leveranciers die deze aanbieden en scherpere tarieven hanteren?
-
Bij welke zaak heb je deze offerte ontvangen? Klinkt als veel geld. Maar ja, ook in zo’n relatief kleine keuken zitten natuurlijk alle gebruikelijke apparaten. En Pronorm is niet bepaald goedkoop.Vini-Vidi-Vici schreef op zaterdag 31 januari 2026 @ 18:32:
Beste medetweakers,
na een tijdje meelezen ben ik erg benieuwd naar jullie mening(en) over mijn keuken.
Ik wil voor mijn nieuwbouwwoning een L-keuken laten plaatsen. vandaag ben ik bij de keukenleverancier van het project geweest. Leuk gesprek, mooie keuken maar ik ben (best) geschrokken van de prijs. Dit was namelijk 13.7K. Daarvoor krijg ik de volgende keuken:
[Afbeelding]
Pronorm Y-line, met Bosch Apparatuur (inductiekookplaat, koel/vries combinatie, vaatwasser, afzuigkap en stoomoven) en een kunststof blad. Afmetingen zijn 270x180 cm, met de 270 aan de zijde met de hoge kasten.
Nu is er op mijn offerte een 'totale' korting van 4000 euro, inclusief de waardebon van 1250 euro (het was dus 17.7K). Ik heb al twee offertes opgevraagd voor exact dezelfde apparatuur bij keukenloods en Bemmel&Kroon, die komen beide 2500 euro goedkoper uit. Ook voor een composiet werkblad kom ik op ongeveer dezelfde prijs als wat ik hier voor het kunststof werkblad zou moeten betalen. Ik twijfel dus dat ik ook de keukenkastjes, of de gehele keuken, ergens voor een lager bedrag kan krijgen.
Wat vinden jullie hiervan? En ik was opzich wel gecharmeerd van Pronorm, zijn er andere leveranciers die deze aanbieden en scherpere tarieven hanteren?
Als je wil vergelijken: Keukenloods heeft ook Pronorm, dus daar zou je een offertecheck kunnen doen. Of even langsgaan en (min of meer) dezelfde keuken laten tekenen.
Je kan bij Kvik prima afspreken dat je zelf de apparatuur koopt. Wij hebben dat in verleden ook gedaan, exacte typenummers doorgegeven en ze hebben netjes uitsparing voor bijv Bora gemaakt en bij plaatsen ook alle apparatuur geplaatst.Amirk237 schreef op vrijdag 30 januari 2026 @ 22:09:
Goedeavond. Ik ben vandaag langs de kvik gegaan en ze hebben mij een offerte gestuurd. Nu zoek ik de apparaturen op google en zie ik dat ze voor zeker 20-30%, soms wel meer, tekoop staan bij andere websites als keukenloods, mediamarkt etc. Kan ik dit bij ze aankaarten of is dit gwn the way of business?
Ik vind het niet perse heel "duur". Y-Line zijn de duurste kasten van Pronorm en is gewoon goede kwaliteit. Maar zo te horen zit in het blad en apparatuur wat ruimte. Zoals gezegd Keukenloods verkoopt ook Pronorm en is qua apparatuur sowieso vaak goedkoper. En in onze Y-Line keuken bij Grando gekocht werd na enig aandringen de apparatuur ook voor dezelfde prijs als Keukenloods/123Apparatuur gedaan. Dus daar kun je ook nog langs.Frederiksen schreef op zaterdag 31 januari 2026 @ 20:39:
[...]
Bij welke zaak heb je deze offerte ontvangen? Klinkt als veel geld. Maar ja, ook in zo’n relatief kleine keuken zitten natuurlijk alle gebruikelijke apparaten. En Pronorm is niet bepaald goedkoop.
Als je wil vergelijken: Keukenloods heeft ook Pronorm, dus daar zou je een offertecheck kunnen doen. Of even langsgaan en (min of meer) dezelfde keuken laten tekenen.
HD4Life @ Full-HD
Van Manen in Barneveld. En ik heb persoonlijk ook totaal geen moeite met dat de apparatuur duur is (althans, de prijzen van Keukenloods en Bemmel en Kroon), maar ik vind voor zo'n keuken en een kunststof blad 9K wel erg gortig...Frederiksen schreef op zaterdag 31 januari 2026 @ 20:39:
[...]
Bij welke zaak heb je deze offerte ontvangen? Klinkt als veel geld. Maar ja, ook in zo’n relatief kleine keuken zitten natuurlijk alle gebruikelijke apparaten. En Pronorm is niet bepaald goedkoop.
Als je wil vergelijken: Keukenloods heeft ook Pronorm, dus daar zou je een offertecheck kunnen doen. Of even langsgaan en (min of meer) dezelfde keuken laten tekenen.
-
Hoi allemaal, al een tijdje met interesse aan het meelezen sinds ik zelf ook in de markt ben voor een nieuwe keuken.
Ben nu in de afrondende fase (ontwerpen zijn af) en ben wezen kijken bij een keukenboer in Duitsland (Ballerina) en een lokale keukenboer (Nobilia). In Duitsland 3x langsgeweest om iets te maken dat er tof uitziet. In NL ook een (voor mijn gevoel te hoge) offerte maar die laat ik nu even buiten beschouwing.
De Duitse biedt Ballerina aan en zegt dat 25k het absolute minimum is dat ze me kunnen bieden voor een keuken met:
- Ballerina Resopal met matte frontjes (wand en kookeiland)
- natuursteen(-keramisch?) blad in nis, op kookeiland/barretje en op achterwand nis (Strasser)
- verlichting bovenin nis (1 ledstrip)
- incl 2 stopcontacten (1 pop-up)
- installatie van 8 apparaten (exclusief apparaten zelf, haal ik bij B&K) zijnde 1 grote koel, 1 grote vries, oven + oven stoom, quooker, bora, 2x vaatwasser (rest allemaal Bosch), scheelde bijna 3k met prijs bij keukenboer in totaal…
Lijkt alsof ze niet verder in onderhandeling willen gaan (of ik heb de juiste knop nog niet gevonden) maar 25k lijkt mij erg veel voor alleen de “korpus”?
In Duitse zaak zijn ze ook erg voorzichtig en geven ze geen offerte/designs mee en mag je zelfs geen foto van het ontwerp maken. En schrijven ze bedragen alleen op een velletje op (dat ook bij hem blijft).
- Iemand hier ervaring mee?
- Is 25k teveel voor alleen kasten en installatie of heb ik wel een goede deal?
- Zo niet, wat is een goede richtprijs en een goede strategie om in Duitsland op dit bedrag te komen?
Omdat ik niks meekreeg hierbij mijn eigen impressie in Sketchup. Greeploos design, je moet de ovens in weerszijden van de nis er even zelf bij fantaseren. Ook zit er nog een 40cm brede glazen showkast rechts van de wand die ik even niet in kon tekenen.
:strip_exif()/f/image/I2NBXftglpDsG8wijm6PkZ4J.jpg?f=fotoalbum_large)
:strip_exif()/f/image/6TVunacDW4abiDqiRdMxb284.jpg?f=fotoalbum_large)
Ben nu in de afrondende fase (ontwerpen zijn af) en ben wezen kijken bij een keukenboer in Duitsland (Ballerina) en een lokale keukenboer (Nobilia). In Duitsland 3x langsgeweest om iets te maken dat er tof uitziet. In NL ook een (voor mijn gevoel te hoge) offerte maar die laat ik nu even buiten beschouwing.
De Duitse biedt Ballerina aan en zegt dat 25k het absolute minimum is dat ze me kunnen bieden voor een keuken met:
- Ballerina Resopal met matte frontjes (wand en kookeiland)
- natuursteen(-keramisch?) blad in nis, op kookeiland/barretje en op achterwand nis (Strasser)
- verlichting bovenin nis (1 ledstrip)
- incl 2 stopcontacten (1 pop-up)
- installatie van 8 apparaten (exclusief apparaten zelf, haal ik bij B&K) zijnde 1 grote koel, 1 grote vries, oven + oven stoom, quooker, bora, 2x vaatwasser (rest allemaal Bosch), scheelde bijna 3k met prijs bij keukenboer in totaal…
Lijkt alsof ze niet verder in onderhandeling willen gaan (of ik heb de juiste knop nog niet gevonden) maar 25k lijkt mij erg veel voor alleen de “korpus”?
In Duitse zaak zijn ze ook erg voorzichtig en geven ze geen offerte/designs mee en mag je zelfs geen foto van het ontwerp maken. En schrijven ze bedragen alleen op een velletje op (dat ook bij hem blijft).
- Iemand hier ervaring mee?
- Is 25k teveel voor alleen kasten en installatie of heb ik wel een goede deal?
- Zo niet, wat is een goede richtprijs en een goede strategie om in Duitsland op dit bedrag te komen?
Omdat ik niks meekreeg hierbij mijn eigen impressie in Sketchup. Greeploos design, je moet de ovens in weerszijden van de nis er even zelf bij fantaseren. Ook zit er nog een 40cm brede glazen showkast rechts van de wand die ik even niet in kon tekenen.
:strip_exif()/f/image/I2NBXftglpDsG8wijm6PkZ4J.jpg?f=fotoalbum_large)
:strip_exif()/f/image/6TVunacDW4abiDqiRdMxb284.jpg?f=fotoalbum_large)
Wat een overdreven panisch gedoe zeg. Echt een apart wereldje die keukenverkoopnicolaj123 schreef op zondag 1 februari 2026 @ 13:13:
In Duitse zaak zijn ze ook erg voorzichtig en geven ze geen offerte/designs mee en mag je zelfs geen foto van het ontwerp maken. En schrijven ze bedragen alleen op een velletje op (dat ook bij hem blijft).
Ik heb even hulp nodig.
Ik heb 2 NOBILIA keukens laten tekenen bij verschillende boeren, exact zelfde maat uitvoering maar met kleine verschillen. Hier hebben we gebruik gemaakt van de ZAND/MAT EASY TOUCH fronten.
Keukenboer 1:
Zie 3D SCHETS: 3D TEKENING
-De L topstelling (naar rechts) is 2.20m BREED (kozijn kant) en circa 3,50m in de totale lengte.
-Hoek is benut met een zwenklade kast en daarboven ±65CM lange planken voor als koffie corner.
-Tegenover deze opstelling zijn er 4 van deze hoge kasten van 231cm (koelkast 178cm, deepfreeze 178cm, oven magnetron kast, voorraad kast met lades)
-Volledig Siemens apparatuur in Studioline.
-Prijs was eerst rond de 29700, waar hij vervolgens heeft afgestreept tot minimum 28,000 euro!
-Kasten ±E9900,-, incl verlichting onder wandkasten.
-Apparatuur incl Quooker kraan ±E7700,-
-Montage (excl vaatwasser, quooker) ±E2000,-
-Werkblad Taj Royale ceaser stone ±E8400,-
Keukenboer 2:
:strip_exif()/f/image/AGFtIdWCWdLPziw5n0B7nKyU.jpg?f=fotoalbum_large)
:strip_exif()/f/image/hoBWh3myI5HtnHh26ne9p4Ur.jpg?f=fotoalbum_large)
Zelfde indeling, wel met wat extra's.
-Extra's/verschillen tov Keukenboer 1:
Inbouw prullenbak in de 30cm brede kast.
Planken in de hoek is ±100CM breed ipv 65cm
plintlade's van 80CM BREED 2 stuks
Alles apparatuur Siemens Studioline (gelijkwaardig), maar wel een Bora PUXU2 kookplaat.
Hoge kasten hebben bovenop nog extra kasten gekregen en is dus circa ±2,46m hoog
Dekton ARGA werkblad ipv Taj Royale inclusief werkblad verlichting.
Wandkasten zijn zwenklades/horizontaal ipv normale kasten.
In de lengte is deze keuken circa 3,63CM (dus ±10cm extra lang)
Prijs was oorspronkelijke E35,000 EURO! met een korting van 20% is deze gezet op E28,000 EURO.
Zie opbouw:
Quooker, E1745,-
Kasten, E15,671,-
Dekton werkblad, E6713
Montage excl quooker, E1250,-
Apparatuur E9620,-
Nou ben ik nog van plan om I-KOOK, SUPERKEUKENS,Keukensale en een Nolte studio te bezoeken om daar nog een vergelijking van te maken maar ik ben wel een beetje geschrokken, ik had meer richting 20-23k euro ingeschat en dat voor een Nobilia.
Heeft iemand een gelijkwaardige indeling of lengte aan keuken met a-merk apparatuur en gelijkwaardige prijsklasse werkblad? Keuken is circa 8M in lengte.
Ik heb 2 NOBILIA keukens laten tekenen bij verschillende boeren, exact zelfde maat uitvoering maar met kleine verschillen. Hier hebben we gebruik gemaakt van de ZAND/MAT EASY TOUCH fronten.
Keukenboer 1:
Zie 3D SCHETS: 3D TEKENING
-De L topstelling (naar rechts) is 2.20m BREED (kozijn kant) en circa 3,50m in de totale lengte.
-Hoek is benut met een zwenklade kast en daarboven ±65CM lange planken voor als koffie corner.
-Tegenover deze opstelling zijn er 4 van deze hoge kasten van 231cm (koelkast 178cm, deepfreeze 178cm, oven magnetron kast, voorraad kast met lades)
-Volledig Siemens apparatuur in Studioline.
-Prijs was eerst rond de 29700, waar hij vervolgens heeft afgestreept tot minimum 28,000 euro!
-Kasten ±E9900,-, incl verlichting onder wandkasten.
-Apparatuur incl Quooker kraan ±E7700,-
-Montage (excl vaatwasser, quooker) ±E2000,-
-Werkblad Taj Royale ceaser stone ±E8400,-
Keukenboer 2:
:strip_exif()/f/image/AGFtIdWCWdLPziw5n0B7nKyU.jpg?f=fotoalbum_large)
:strip_exif()/f/image/hoBWh3myI5HtnHh26ne9p4Ur.jpg?f=fotoalbum_large)
Zelfde indeling, wel met wat extra's.
-Extra's/verschillen tov Keukenboer 1:
Inbouw prullenbak in de 30cm brede kast.
Planken in de hoek is ±100CM breed ipv 65cm
plintlade's van 80CM BREED 2 stuks
Alles apparatuur Siemens Studioline (gelijkwaardig), maar wel een Bora PUXU2 kookplaat.
Hoge kasten hebben bovenop nog extra kasten gekregen en is dus circa ±2,46m hoog
Dekton ARGA werkblad ipv Taj Royale inclusief werkblad verlichting.
Wandkasten zijn zwenklades/horizontaal ipv normale kasten.
In de lengte is deze keuken circa 3,63CM (dus ±10cm extra lang)
Prijs was oorspronkelijke E35,000 EURO! met een korting van 20% is deze gezet op E28,000 EURO.
Zie opbouw:
Quooker, E1745,-
Kasten, E15,671,-
Dekton werkblad, E6713
Montage excl quooker, E1250,-
Apparatuur E9620,-
Nou ben ik nog van plan om I-KOOK, SUPERKEUKENS,Keukensale en een Nolte studio te bezoeken om daar nog een vergelijking van te maken maar ik ben wel een beetje geschrokken, ik had meer richting 20-23k euro ingeschat en dat voor een Nobilia.
Heeft iemand een gelijkwaardige indeling of lengte aan keuken met a-merk apparatuur en gelijkwaardige prijsklasse werkblad? Keuken is circa 8M in lengte.
Doet me een beetje aan een (Pronorm) keuken denken die bij de Nuva stond incl apparatuur kwamen ze in eerste instantie uit op 37k en zonder moeite gingen ze naar 33k.nicolaj123 schreef op zondag 1 februari 2026 @ 13:13:
Hoi allemaal, al een tijdje met interesse aan het meelezen sinds ik zelf ook in de markt ben voor een nieuwe keuken.
Ben nu in de afrondende fase (ontwerpen zijn af) en ben wezen kijken bij een keukenboer in Duitsland (Ballerina) en een lokale keukenboer (Nobilia). In Duitsland 3x langsgeweest om iets te maken dat er tof uitziet. In NL ook een (voor mijn gevoel te hoge) offerte maar die laat ik nu even buiten beschouwing.
De Duitse biedt Ballerina aan en zegt dat 25k het absolute minimum is dat ze me kunnen bieden voor een keuken met:
- Ballerina Resopal met matte frontjes (wand en kookeiland)
- natuursteen(-keramisch?) blad in nis, op kookeiland/barretje en op achterwand nis (Strasser)
- verlichting bovenin nis (1 ledstrip)
- incl 2 stopcontacten (1 pop-up)
- installatie van 8 apparaten (exclusief apparaten zelf, haal ik bij B&K) zijnde 1 grote koel, 1 grote vries, oven + oven stoom, quooker, bora, 2x vaatwasser (rest allemaal Bosch), scheelde bijna 3k met prijs bij keukenboer in totaal…
Lijkt alsof ze niet verder in onderhandeling willen gaan (of ik heb de juiste knop nog niet gevonden) maar 25k lijkt mij erg veel voor alleen de “korpus”?
In Duitse zaak zijn ze ook erg voorzichtig en geven ze geen offerte/designs mee en mag je zelfs geen foto van het ontwerp maken. En schrijven ze bedragen alleen op een velletje op (dat ook bij hem blijft).
- Iemand hier ervaring mee?
- Is 25k teveel voor alleen kasten en installatie of heb ik wel een goede deal?
- Zo niet, wat is een goede richtprijs en een goede strategie om in Duitsland op dit bedrag te komen?
Omdat ik niks meekreeg hierbij mijn eigen impressie in Sketchup. Greeploos design, je moet de ovens in weerszijden van de nis er even zelf bij fantaseren. Ook zit er nog een 40cm brede glazen showkast rechts van de wand die ik even niet in kon tekenen.
[Afbeelding]
[Afbeelding]
[Afbeelding]
Veel is afhankelijk wat voor werkblad enz erop zit?
Ik woon in Duitsland en heb hier al 3x een nieuwe keuken gekocht en er was er geen een bij waarbij wij de offerte niet mee mochten nemen. persoonlijk had ik afscheid van die partij genomen. Duitsers zijn trouwens niet van het afdingen, tenzij je bij Ekelhaft (Ekelhoff) in Nordhorn bent geweest. Die zijn 100% gericht op Nederlanders, incl. handjeklapnicolaj123 schreef op zondag 1 februari 2026 @ 13:13:
In Duitse zaak zijn ze ook erg voorzichtig en geven ze geen offerte/designs mee en mag je zelfs geen foto van het ontwerp maken. En schrijven ze bedragen alleen op een velletje op (dat ook bij hem blijft).
- Iemand hier ervaring mee?
- Is 25k teveel voor alleen kasten en installatie of heb ik wel een goede deal?
- Zo niet, wat is een goede richtprijs en een goede strategie om in Duitsland op dit bedrag te komen?
Ik praat over jaren geleden, maar bij Wohnwelt Pallen (nu XXL Lutz) werd de offerte voor mijn ogen doormidden geretenAnalamoebe schreef op maandag 2 februari 2026 @ 15:53:
[...]
Ik woon in Duitsland en heb hier al 3x een nieuwe keuken gekocht en er was er geen een bij waarbij wij de offerte niet mee mochten nemen. persoonlijk had ik afscheid van die partij genomen. Duitsers zijn trouwens niet van het afdingen, tenzij je bij Ekelhaft (Ekelhoff) in Nordhorn bent geweest. Die zijn 100% gericht op Nederlanders, incl. handjeklap
Natuursteen geloof ik :-)DaYwaLkUr schreef op maandag 2 februari 2026 @ 15:12:
[...]
Veel is afhankelijk wat voor werkblad enz erop zit?
Ah, dat verklaart. Komen ze dan automatisch zelf al met een eerlijke prijs denk je? Dit was Meda. Heb je zelf nog aanbevelingen waar je het best een keuken kan kopen in Duitsland waarbij je een scherpe prijs krijgt zonder het hele o derhandelingstheater?Analamoebe schreef op maandag 2 februari 2026 @ 15:53:
[...]
Ik woon in Duitsland en heb hier al 3x een nieuwe keuken gekocht en er was er geen een bij waarbij wij de offerte niet mee mochten nemen. persoonlijk had ik afscheid van die partij genomen. Duitsers zijn trouwens niet van het afdingen, tenzij je bij Ekelhaft (Ekelhoff) in Nordhorn bent geweest. Die zijn 100% gericht op Nederlanders, incl. handjeklap
Dat aanrechtblad tegen de muur vervangen door verf of tegels scheelt al een hoop. Ik vind het verder wel een mooie keuken op die eerste foto. Die oogt rustiger dan die van de 2e keukenboer met al die lijnen.HakanT schreef op zondag 1 februari 2026 @ 23:24:
Ik heb even hulp nodig.
Ik heb 2 NOBILIA keukens laten tekenen bij verschillende boeren, exact zelfde maat uitvoering maar met kleine verschillen. Hier hebben we gebruik gemaakt van de ZAND/MAT EASY TOUCH fronten.
Keukenboer 1:
Zie 3D SCHETS: 3D TEKENING
-De L topstelling (naar rechts) is 2.20m BREED (kozijn kant) en circa 3,50m in de totale lengte.
-Hoek is benut met een zwenklade kast en daarboven ±65CM lange planken voor als koffie corner.
-Tegenover deze opstelling zijn er 4 van deze hoge kasten van 231cm (koelkast 178cm, deepfreeze 178cm, oven magnetron kast, voorraad kast met lades)
-Volledig Siemens apparatuur in Studioline.
-Prijs was eerst rond de 29700, waar hij vervolgens heeft afgestreept tot minimum 28,000 euro!
-Kasten ±E9900,-, incl verlichting onder wandkasten.
-Apparatuur incl Quooker kraan ±E7700,-
-Montage (excl vaatwasser, quooker) ±E2000,-
-Werkblad Taj Royale ceaser stone ±E8400,-
Keukenboer 2:
[Afbeelding]
[Afbeelding]
Zelfde indeling, wel met wat extra's.
-Extra's/verschillen tov Keukenboer 1:
Inbouw prullenbak in de 30cm brede kast.
Planken in de hoek is ±100CM breed ipv 65cm
plintlade's van 80CM BREED 2 stuks
Alles apparatuur Siemens Studioline (gelijkwaardig), maar wel een Bora PUXU2 kookplaat.
Hoge kasten hebben bovenop nog extra kasten gekregen en is dus circa ±2,46m hoog
Dekton ARGA werkblad ipv Taj Royale inclusief werkblad verlichting.
Wandkasten zijn zwenklades/horizontaal ipv normale kasten.
In de lengte is deze keuken circa 3,63CM (dus ±10cm extra lang)
Prijs was oorspronkelijke E35,000 EURO! met een korting van 20% is deze gezet op E28,000 EURO.
Zie opbouw:
Quooker, E1745,-
Kasten, E15,671,-
Dekton werkblad, E6713
Montage excl quooker, E1250,-
Apparatuur E9620,-
Nou ben ik nog van plan om I-KOOK, SUPERKEUKENS,Keukensale en een Nolte studio te bezoeken om daar nog een vergelijking van te maken maar ik ben wel een beetje geschrokken, ik had meer richting 20-23k euro ingeschat en dat voor een Nobilia.
Heeft iemand een gelijkwaardige indeling of lengte aan keuken met a-merk apparatuur en gelijkwaardige prijsklasse werkblad? Keuken is circa 8M in lengte.
Ik heb in mijn omgeving een neef die jarenlang als keukenadviseur heeft gewerkt met verschillende fabrikanten.MikaX schreef op maandag 2 februari 2026 @ 19:41:
[...]
Dat aanrechtblad tegen de muur vervangen door verf of tegels scheelt al een hoop. Ik vind het verder wel een mooie keuken op die eerste foto. Die oogt rustiger dan die van de 2e keukenboer met al die lijnen.
Hij geeft aan dat ze een "marge systeem" hebben en dat je het werkblad+keukenkasten bij de boer kan bestellen en apparatuur zelf ivm lagere marge's.
Ik laat exact zelfde keuken even door hem tekenen kijken wat de uitkomst is.
28.000 is een beetje te veel. 23.000-24.000 is wat realistischer.
Hallo,
Ik heb ook wat advies nodig. We hebben onze keuken ook laten tekenen en zijn akkoord met de offerte.
Prima geholpen en goed meegedacht. Om zeker te zijn dat we niks over het hoofd zijn wil ik graag jullie mening over de indeling.
/f/image/mLsXGBvT8aY9N3pDDnRm0sFF.png?f=fotoalbum_large)
We hebben bewust gekozen om geen bovenkastjes te doen.
De kookplaat is 90 cm vandaar lades van 120 cm
Voor de rest zit in de kast aan de korte zijde een oven en combimagnetron.
Ik heb ook wat advies nodig. We hebben onze keuken ook laten tekenen en zijn akkoord met de offerte.
Prima geholpen en goed meegedacht. Om zeker te zijn dat we niks over het hoofd zijn wil ik graag jullie mening over de indeling.
/f/image/mLsXGBvT8aY9N3pDDnRm0sFF.png?f=fotoalbum_large)
We hebben bewust gekozen om geen bovenkastjes te doen.
De kookplaat is 90 cm vandaar lades van 120 cm
Voor de rest zit in de kast aan de korte zijde een oven en combimagnetron.
zonder bovenkastjes is misschien wel mooi en ruimtelijk, maar heb je zo wel genoeg kastruimte? zo'n plank in een hoekkast kun je ook eigenlijk niet heel goed bij. waar heb je bijvoorbeeld de vuilnisbakken staan?zeve schreef op dinsdag 3 februari 2026 @ 08:52:
Hallo,
Ik heb ook wat advies nodig. We hebben onze keuken ook laten tekenen en zijn akkoord met de offerte.
Prima geholpen en goed meegedacht. Om zeker te zijn dat we niks over het hoofd zijn wil ik graag jullie mening over de indeling.
[Afbeelding]
We hebben bewust gekozen om geen bovenkastjes te doen.
De kookplaat is 90 cm vandaar lades van 120 cm
Voor de rest zit in de kast aan de korte zijde een oven en combimagnetron.
Bedankt voor je input.Frieda schreef op dinsdag 3 februari 2026 @ 10:07:
[...]
zonder bovenkastjes is misschien wel mooi en ruimtelijk, maar heb je zo wel genoeg kastruimte? zo'n plank in een hoekkast kun je ook eigenlijk niet heel goed bij. waar heb je bijvoorbeeld de vuilnisbakken staan?
We hebben (hoop ik) goed over de kasten nagedacht. We hebben bekeken wat we hebben en dit verdeelt over de kasten. Zoals praktisch iedereen hebben we teveel spullen en kunnen we met minder doen. Dus het zal moeten kunnen. Maar idd een goed punt.
De vuilinisbak wordt een systeem in de kast onder de spoelbak.dat wordt kleiner dan nu dus vaker de vuilniszakken vervangen.
Het enige wat we nog goed moeten kijken is naar het licht.
[ Voor 4% gewijzigd door zeve op 03-02-2026 10:46 ]
Ik zit te dubben over 2 opties voor de layout van een deel van onze nieuwe keuken.
Optie 1:strip_exif()/f/image/MQCaYSIQxqwA3k8bTf3GHwc5.png?f=user_large)
Optie 2/f/image/FHT8wAdY72G99a8PuH39jSO9.png?f=fotoalbum_large)
Optie 3/f/image/7l9EVhuaFb583Opa9L8z3MuE.png?f=fotoalbum_large)
Wat denken jullie? Of ziet iemand nog een betere optie?
Optie 1
- Ideale hoogte magnetron + koffiemachine v.w.b. ergonomie.
- Logische plak voor warmhoudlade (kopjes) onder koffiemachine.
- Vaatwasser ietwat laag.
:strip_exif()/f/image/MQCaYSIQxqwA3k8bTf3GHwc5.png?f=user_large)
Optie 2
- Ideale hoogte vaatwasser.
- Magnetron wel erg laag.
- Drukker lijnenspel./li]
/f/image/FHT8wAdY72G99a8PuH39jSO9.png?f=fotoalbum_large)
Optie 3
- Een soort mix van de 2, maar magnetron en koffiemachine te hoog(?)
/f/image/7l9EVhuaFb583Opa9L8z3MuE.png?f=fotoalbum_large)
Wat denken jullie? Of ziet iemand nog een betere optie?
Ik zou voor onderstaande optie gaan.Joydashy schreef op dinsdag 3 februari 2026 @ 12:40:
Ik zit te dubben over 2 opties voor de layout van een deel van onze nieuwe keuken.
Optie 1[Afbeelding]
- Ideale hoogte magnetron + koffiemachine v.w.b. ergonomie.
- Logische plak voor warmhoudlade (kopjes) onder koffiemachine.
- Vaatwasser ietwat laag.
Optie 2[Afbeelding]
- Ideale hoogte vaatwasser.
- Magnetron wel erg laag.
- Drukker lijnenspel./li]
Optie 3[Afbeelding]
- Een soort mix van de 2, maar magnetron en koffiemachine te hoog(?)
Wat denken jullie? Of ziet iemand nog een betere optie?
De 45cm oven voor een 60cm oven vervangen zodat je lijnenspel veel rustiger wordt.
Daarnaast zorgen dat de onderste fronten mooi in lijn lopen.
Je kan dan wel je XXL vaatwasser kwijt, al is die niet op hoogte, maar volgens mij vind je het belangrijker dat je oven en koffiezetter niet te hoog zitten?
Intussen heb ik heel wat keuken ontwerpen bekeken, en de 140cm bovenkant ovens wordt eigenlijk nergens gehaald, vaak hoger. Dat is denk ik ook wel prima. Dus optie 3 lijkt eigenlijk de beste inderdaad.Maatjewerkt schreef op dinsdag 3 februari 2026 @ 15:27:
[...]
Ik zou voor onderstaande optie gaan.
De 45cm oven voor een 60cm oven vervangen zodat je lijnenspel veel rustiger wordt.
Daarnaast zorgen dat de onderste fronten mooi in lijn lopen.
Je kan dan wel je XXL vaatwasser kwijt, al is die niet op hoogte, maar volgens mij vind je het belangrijker dat je oven en koffiezetter niet te hoog zitten?
[Afbeelding]
De oven komt in een andere deel van de keuken, dit is de 2e oven, (eigenlijk een magnetron die ook als backup oven kan dienen).
Vaatwasser op hoogte vind ik dan wel net belangrijker dan het lijnenspel, dus die blijft
Dit is de enige mooie optieMaatjewerkt schreef op dinsdag 3 februari 2026 @ 15:27:
[...]
Ik zou voor onderstaande optie gaan.
De 45cm oven voor een 60cm oven vervangen zodat je lijnenspel veel rustiger wordt.
Daarnaast zorgen dat de onderste fronten mooi in lijn lopen.
Je kan dan wel je XXL vaatwasser kwijt, al is die niet op hoogte, maar volgens mij vind je het belangrijker dat je oven en koffiezetter niet te hoog zitten?
[Afbeelding]
als je er maar eentje nodig hebt dan werkt dat natuurlijk ook prima inderdaad! waar ik woon moet ik betalen voor elke zak restafval (niet op gewicht maar gewoon per keer) dus die bak is bij mij echt heel groot. Is zo een Lemans uittrekplank in die hoekkast niet iets voor jouw keuken dan? dan kun je de ruimte ook nog nuttig en gemakkelijk gebruiken?zeve schreef op dinsdag 3 februari 2026 @ 10:35:
[...]
Bedankt voor je input.
We hebben (hoop ik) goed over de kasten nagedacht. We hebben bekeken wat we hebben en dit verdeelt over de kasten. Zoals praktisch iedereen hebben we teveel spullen en kunnen we met minder doen. Dus het zal moeten kunnen. Maar idd een goed punt.
De vuilinisbak wordt een systeem in de kast onder de spoelbak.dat wordt kleiner dan nu dus vaker de vuilniszakken vervangen.
Het enige wat we nog goed moeten kijken is naar het licht.
Bijna, de linker deur zou ik ook uit 1 geheel maken.Maatjewerkt schreef op dinsdag 3 februari 2026 @ 15:27:
[...]
Ik zou voor onderstaande optie gaan.
De 45cm oven voor een 60cm oven vervangen zodat je lijnenspel veel rustiger wordt.
Daarnaast zorgen dat de onderste fronten mooi in lijn lopen.
Je kan dan wel je XXL vaatwasser kwijt, al is die niet op hoogte, maar volgens mij vind je het belangrijker dat je oven en koffiezetter niet te hoog zitten?
[Afbeelding]
Hier stond een link voor een Goldcard 1 jaar gratis + 20.000 punten.
Ook hier aan 't zoeken naar een nieuwe keuken. Eerste offerte binnen. Aardige basis.
Wel Nobilia. Mondial 945 Empoli. Wat zijn de gedachten van Nobilia vergeleken met Tulp of Ballerina keukens? Zijn erg gecharmeerd van de look van het matte blauwe. En het feit dat we de kasten in de bijkeuken kunnen doorzetten qua kleur voor de wasmachine en droger.
Twijfels zitten verder nog bij ovens en koelkast ( omdraaien?) en afstand koelkast tot koken. Vind 't beeld wel wel aardig, lades op het korte stuk, deurtjes op het lange. En jammer dat de ovens het beeld doorbreken. Maar zit anders ook niet lekker qua hoogte...
Wel Nobilia. Mondial 945 Empoli. Wat zijn de gedachten van Nobilia vergeleken met Tulp of Ballerina keukens? Zijn erg gecharmeerd van de look van het matte blauwe. En het feit dat we de kasten in de bijkeuken kunnen doorzetten qua kleur voor de wasmachine en droger.
Twijfels zitten verder nog bij ovens en koelkast ( omdraaien?) en afstand koelkast tot koken. Vind 't beeld wel wel aardig, lades op het korte stuk, deurtjes op het lange. En jammer dat de ovens het beeld doorbreken. Maar zit anders ook niet lekker qua hoogte...
[ Voor 5% gewijzigd door caspervc op 03-02-2026 19:27 ]
MY24 Volvo XC40 Recharge SMER Fjord Blue
Vooropgesteld mooi ontwerp en toffe kleurencombinatie. Ballerina is zoals ik begreep een leveltje hoger (in ieder geval in prijs 30-50%+) en geloof net iets betere afwerking en meer afwerkingsmogelijkheden.caspervc schreef op dinsdag 3 februari 2026 @ 19:26:
Ook hier aan 't zoeken naar een nieuwe keuken. Eerste offerte binnen. Aardige basis.
Wel Nobilia. Mondial 945 Empoli. Wat zijn de gedachten van Nobilia vergeleken met Tulp of Ballerina keukens? Zijn erg gecharmeerd van de look van het matte blauwe. En het feit dat we de kasten in de bijkeuken kunnen doorzetten qua kleur voor de wasmachine en droger.
Twijfels zitten verder nog bij ovens en koelkast ( omdraaien?) en afstand koelkast tot koken. Vind 't beeld wel wel aardig, lades op het korte stuk, deurtjes op het lange. En jammer dat de ovens het beeld doorbreken. Maar zit anders ook niet lekker qua hoogte...
[Afbeelding]
Zou koelkast en ovens omdraaien; blijft beetje geknoei denk ik met een over zo dicht bij de deur:
Hier hebben we nog een ouderwetse rolcontainer die we kunnen vullen met zakken. Eens in de zoveel tijd aan de straat zetten. Dus voor nu geen probleem.Frieda schreef op dinsdag 3 februari 2026 @ 18:13:
[...]
als je er maar eentje nodig hebt dan werkt dat natuurlijk ook prima inderdaad! waar ik woon moet ik betalen voor elke zak restafval (niet op gewicht maar gewoon per keer) dus die bak is bij mij echt heel groot. Is zo een Lemans uittrekplank in die hoekkast niet iets voor jouw keuken dan? dan kun je de ruimte ook nog nuttig en gemakkelijk gebruiken?
Het Lemans systeem ga ik eens verder naar kijken. Dat is wel praktisch. Bedankt voor de tip.
Planning keuken:
Omdat wij veel losse kookapparaten hebben, zit ik te denken aan 2 afzuigers. 1x in de inductiekookplaat met eigen afzuiging. Die is minder geschikt om geurtjes en damp af te voeren van Airfryer - Aircooker - Optigrill - Tefal Cooker. Want de apparaten kun je niet op de glasplaat plaatsen, en ernaast werkt denk ik niet goed genoeg. Bijvoorbeeld stoom wordt niet goed afgezogen begreep ik. Met het gevaar dat de bovenkastjes teveel vocht te verwerken krijgen.
Daarom in de U-opstelling aan de andere zijde een extra afzuiger in het bovenkastje naar buiten, waar dan deze apparaten opgesteld kunnen worden. Andere mensen zo'n opstelling en wat is de ervaring?
Omdat het een open keuken is, is het doel om geurtjes in de woonkamer te minimaliseren/vermijden bij koken met deze apparaten samen. Merk dat deze apparaten steeds meer onderdeel uitmaken van het koken, en dus niet traditioneel alleen een inbouw-oven en kookplaat en standaard afzuiging.
Omdat wij veel losse kookapparaten hebben, zit ik te denken aan 2 afzuigers. 1x in de inductiekookplaat met eigen afzuiging. Die is minder geschikt om geurtjes en damp af te voeren van Airfryer - Aircooker - Optigrill - Tefal Cooker. Want de apparaten kun je niet op de glasplaat plaatsen, en ernaast werkt denk ik niet goed genoeg. Bijvoorbeeld stoom wordt niet goed afgezogen begreep ik. Met het gevaar dat de bovenkastjes teveel vocht te verwerken krijgen.
Daarom in de U-opstelling aan de andere zijde een extra afzuiger in het bovenkastje naar buiten, waar dan deze apparaten opgesteld kunnen worden. Andere mensen zo'n opstelling en wat is de ervaring?
Omdat het een open keuken is, is het doel om geurtjes in de woonkamer te minimaliseren/vermijden bij koken met deze apparaten samen. Merk dat deze apparaten steeds meer onderdeel uitmaken van het koken, en dus niet traditioneel alleen een inbouw-oven en kookplaat en standaard afzuiging.
Heb je een eiland met spoelgedeelte tegenover deze kastenwand?Joydashy schreef op dinsdag 3 februari 2026 @ 12:40:
Ik zit te dubben over 2 opties voor de layout van een deel van onze nieuwe keuken.
Optie 1[Afbeelding]
- Ideale hoogte magnetron + koffiemachine v.w.b. ergonomie.
- Logische plak voor warmhoudlade (kopjes) onder koffiemachine.
- Vaatwasser ietwat laag.
Optie 2[Afbeelding]
- Ideale hoogte vaatwasser.
- Magnetron wel erg laag.
- Drukker lijnenspel./li]
Optie 3[Afbeelding]
- Een soort mix van de 2, maar magnetron en koffiemachine te hoog(?)
Wat denken jullie? Of ziet iemand nog een betere optie?
Ik zou de vaatwasser altijd direct naast je spoelgedeelte doen. Veel handiger met inpakken van de vaatwasser. Je spoelt toch altijd (tenminste wij wel) de vaat even een klein beetje af voor je het in de vaatwasser zet. Dan is het niet handig dat je met natte vieze vaat moet gaan lopen.
Members only:
Alleen zichtbaar voor ingelogde gebruikers.
Inloggen
Wij hebben in onze huidige keuken de oven in ons eiland in een onderkast náást de inductieplaat met afzuiging. En ondanks dat we in onze nieuwbouwwoning hier niet voor kiezen omdat het niet hoeft, is het op geen enkele manier van invloed geweest op de aanschaf van onze woning destijds als begin dertigers.Aldente schreef op woensdag 4 februari 2026 @ 08:53:
***members only***
Mensen laten echt een woning niet aan zich voorbij gaan omdat de oven van hoogstens een paar duizend euro niet heel praktisch geplaatst is. Leef alsjeblieft je eigen leven en laat je niet te veel leiden door what-ifs.
@Aldente mensen rossen er toch een nieuwe keuken en badkamer in als ze er komen wonen. Tenzij je de woning koopt om hem meteen te flippen moet je gewoon kopen wat je zelf handig en mooi vindt!
Waarom zou een oven van 60cm niet onder een bredere kookplaat kunnen? Wij hebben dit zo in onze keuken (keuken is oud, maar we hebben ooit de gaskookplaat vervangen door een grotere inductieplaat – blad kon gewoon bijgezaagd worden). Bij ons zitten er aan weerszijden van de oven twee lage, smalle apothekerskastjes. Handig voor kruiden.Aldente schreef op woensdag 4 februari 2026 @ 08:53:
***members only***
caspervc schreef op dinsdag 3 februari 2026 @ 19:26:
Twijfels zitten verder nog bij ovens en koelkast ( omdraaien?) en afstand koelkast tot koken.
Ik zou het juist zo houden als in het plaatje. De koelkast heb je echt veel vaker nodig dan de oven tijdens het koken, dus het is fijn(er) die dichtbij het aanrecht te hebben.nicolaj123 schreef op dinsdag 3 februari 2026 @ 19:35:
[...]
Zou koelkast en ovens omdraaien; blijft beetje geknoei denk ik met een over zo dicht bij de deur:
Ook is het fijn om de koelkast direct naast het aanrecht te hebben, zodat je bij het in- en uitpakken van de koelkast wat dingen weg kan zetten zonder een stap te hoeven doen.
Wij hadden precies deze opstelling in ons vorige huis (maar dan met iets korter aanrechtblad), ook met een deur in die positie; werkte prima
1. Ik kan me voorstellen dat sommige keukenboeren een kast onder de kookplaat willen die net zo breed is als die kookplaat en dan past een smalle oven niet onder een brede kookplaat. Oplossing: shop rond bij andere keukenboeren. Het kan zeker, dus het is meer een kwestie van niet willen of een te inflexibel systeem als een keukenboer zegt dat dit niet mogelijk zou zijn.Aldente schreef op woensdag 4 februari 2026 @ 08:53:
***members only***
2. Bovenkastjes: dat is zo'n typische trade-off tussen looks en functionaliteit en alleen jij kan besluiten hoe je die wilt maken. Ga je je dadelijk ergeren als je weinig ruimte hebt voor voorraad of extra schalen/pannen/servies? Kies dan voor extra bovenkastjes. Ben je bereid af en toe naar de bijkeuken/kelder/zolder/buurvrouw te lopen voor iets dat niet in je keuken past, als je dan wel een strakkere keuken hebt? Dan vooral doen.
In ons vorige huis hebben de over de hele keuken bovenkastjes laten hangen, omdat we de ruimte belangrijk vonden en geen andere opslagplekken in huis hadden om naar uit te wijken. Het was misschien niet de strakste keuken, maar werkte goed voor ons. En, oh ja, dat huis hebben we prima kunnen verkopen.
Ik zou me sowieso in beide gevallen geen zorgen maken over wat aspirant-kopers van je keuken zouden kunnen vinden. Ze zijn wsl. al lang blij dat ze een bod mogen doen op een huis met een moderne keuken. En de verwende koper vindt de kleur van je frontjes niet mooi en gooit er toch een helemaal nieuwe keuken in....
Dus kies de keuken die jij wilt.
[ Voor 47% gewijzigd door aap op 04-02-2026 17:52 ]
Om het je makkelijk te makenAldente schreef op woensdag 4 februari 2026 @ 08:53:
***members only***
@bl0kkie87 @Frieda @Anomi @aap @Toke_gt
Hartelijk dank voor jullie input allemaal! Ook een aantal creatieve opties, waar ik nog niet aan had gedacht. Even goed overwegen wat we het mooiste vinden. Ik vermoed dat we toch uit gaan komen op een oven op een locatie, maar ik ga zeker nog even navragen of er toch niet wat flexibiliteit is. De optie van een tweede, smalle oven zet me ook aan het denken!
Wat betreft de opbergruimte: @aap: hier heb je een goed punt. Ik ga eens kijken hoeveel spullen ik in mijn keuken heb die ik echt vaak gebruik, en zeker in keukenkastjes wil hebben liggen.
Hartelijk dank voor jullie input allemaal! Ook een aantal creatieve opties, waar ik nog niet aan had gedacht. Even goed overwegen wat we het mooiste vinden. Ik vermoed dat we toch uit gaan komen op een oven op een locatie, maar ik ga zeker nog even navragen of er toch niet wat flexibiliteit is. De optie van een tweede, smalle oven zet me ook aan het denken!
Wat betreft de opbergruimte: @aap: hier heb je een goed punt. Ik ga eens kijken hoeveel spullen ik in mijn keuken heb die ik echt vaak gebruik, en zeker in keukenkastjes wil hebben liggen.
@Aldente
Bij deze een oven in de onderkast anders dan fornuis. Let niet op het missende bovenplaatje. Foto tactisch genomen om de bende op het blad niet te zien
Mijn tip: koop een oven met draaiknoppen en geen touchscreen. Meer dan zelden leun je ertegen aan en veranderd de oven van functie of zet je de oven aan/uit.
Bij deze een oven in de onderkast anders dan fornuis. Let niet op het missende bovenplaatje. Foto tactisch genomen om de bende op het blad niet te zien
Mijn tip: koop een oven met draaiknoppen en geen touchscreen. Meer dan zelden leun je ertegen aan en veranderd de oven van functie of zet je de oven aan/uit.
Hallo allen!
Wij hebben een nieuw huis gekocht, en hier moet een nieuwe keuken in. Wij zijn nu zover dat we een offerte hebben van Marquardt. Ik weet dat het van DMG is, echter zijn wij tot nu toe wel blij met de service van het bedrijf, en kost elke afspraak de hele tijd veel tijd. Tijd hebben we niet veel met een klein kindje en full time werken. Mijn grootste vraag voor de kenners hier, is of dit er een beetje oke uit ziet ? Ik ben niet bekend in deze wereld en kwam er pas laat achter dat DMG dus niet echt goed bekend staat. Graag jullie eerlijke, maar als het kan aardige mening want dit is helemaal nieuw voor mij.
:strip_exif()/f/image/mHNwUdrD9CQxfp19gg8KYaSO.jpg?f=fotoalbum_large)
:strip_exif()/f/image/RCAifZp1c0TxREnRbr2r7poB.jpg?f=fotoalbum_large)
:strip_exif()/f/image/ru6XLH4bwcw8it8gRtWTDwt3.jpg?f=fotoalbum_large)
:strip_exif()/f/image/PnVbxLMfI4M2V4FbQJQvuR4P.jpg?f=fotoalbum_large)
:strip_exif()/f/image/e7Sb0qStzESeJI4BOJDthE1f.jpg?f=fotoalbum_large)
Wij hebben een nieuw huis gekocht, en hier moet een nieuwe keuken in. Wij zijn nu zover dat we een offerte hebben van Marquardt. Ik weet dat het van DMG is, echter zijn wij tot nu toe wel blij met de service van het bedrijf, en kost elke afspraak de hele tijd veel tijd. Tijd hebben we niet veel met een klein kindje en full time werken. Mijn grootste vraag voor de kenners hier, is of dit er een beetje oke uit ziet ? Ik ben niet bekend in deze wereld en kwam er pas laat achter dat DMG dus niet echt goed bekend staat. Graag jullie eerlijke, maar als het kan aardige mening want dit is helemaal nieuw voor mij.
:strip_exif()/f/image/mHNwUdrD9CQxfp19gg8KYaSO.jpg?f=fotoalbum_large)
:strip_exif()/f/image/RCAifZp1c0TxREnRbr2r7poB.jpg?f=fotoalbum_large)
:strip_exif()/f/image/ru6XLH4bwcw8it8gRtWTDwt3.jpg?f=fotoalbum_large)
:strip_exif()/f/image/PnVbxLMfI4M2V4FbQJQvuR4P.jpg?f=fotoalbum_large)
:strip_exif()/f/image/e7Sb0qStzESeJI4BOJDthE1f.jpg?f=fotoalbum_large)
Ongeveer wel. Dit is het huidige plan. Waarbij "schoon" en "vuil" nog kunnen wisselen in de praktijk, afhankelijk van wat lekkerder werkt.maussert schreef op woensdag 4 februari 2026 @ 07:42:
[...]
Heb je een eiland met spoelgedeelte tegenover deze kastenwand?
Ik zou de vaatwasser altijd direct naast je spoelgedeelte doen. Veel handiger met inpakken van de vaatwasser. Je spoelt toch altijd (tenminste wij wel) de vaat even een klein beetje af voor je het in de vaatwasser zet. Dan is het niet handig dat je met natte vieze vaat moet gaan lopen.
Goedenavond heren, bij ons had de verkoper apparatuur van Pelgrim geadviseerd, omdat wij een beperkt budget hadden. Nu is het zo dat wij toch wat meer (lees: 2 a 3k) kunnen besteden aan de keuken. En willen wij graag van Pelgrim af, omdat ik verschillende verhalen lees op het web en dat het toch een budget merk is. Omdat de vriezer een afwijkende maat had is die van liebherr en die willen wij zo houden. Nu vroeg ik mij dus af voor welk merk wij het beste kunnen gaan? Het volgende hebben wij nodig:
-Vaatwasser
-Kookplaat met afzuiging (liefst mat zwart)
-Oven met pyrolyse functie
-koelkast, mochten wij geen combi-korting kunnen krijgen met een ander merk apparatuur, dan willen wij de koelkast, net zoals de vriezen, van Liebherr.
Alvast erg bedankt voor het meedenken.
-Vaatwasser
-Kookplaat met afzuiging (liefst mat zwart)
-Oven met pyrolyse functie
-koelkast, mochten wij geen combi-korting kunnen krijgen met een ander merk apparatuur, dan willen wij de koelkast, net zoals de vriezen, van Liebherr.
Alvast erg bedankt voor het meedenken.
Ik zou kijken of je iets van AEG (goede middenklasse spullen) kan krijgen. Is een serieuze upgrade vanaf Pelgrim.
MY24 Volvo XC40 Recharge SMER Fjord Blue
Naar advies van mijn interieurbouwer:kaassouflé schreef op donderdag 5 februari 2026 @ 20:14:
Goedenavond heren, bij ons had de verkoper apparatuur van Pelgrim geadviseerd, omdat wij een beperkt budget hadden. Nu is het zo dat wij toch wat meer (lees: 2 a 3k) kunnen besteden aan de keuken. En willen wij graag van Pelgrim af, omdat ik verschillende verhalen lees op het web en dat het toch een budget merk is. Omdat de vriezer een afwijkende maat had is die van liebherr en die willen wij zo houden. Nu vroeg ik mij dus af voor welk merk wij het beste kunnen gaan? Het volgende hebben wij nodig:
-Vaatwasser
-Kookplaat met afzuiging (liefst mat zwart)
-Oven met pyrolyse functie
-koelkast, mochten wij geen combi-korting kunnen krijgen met een ander merk apparatuur, dan willen wij de koelkast, net zoals de vriezen, van Liebherr.
Alvast erg bedankt voor het meedenken.
Vaatwasser: kijk naar langste garantie termijn (apparaat dat toch vrij vaak stuk gaat, ook van A merken), bijvoorbeeld Siemens extraklasse met 5 jaar (maar andere opties ook goed). Let op geluid en pak een XXL als je een gezin hebt en m kwijt kunt in je keuken.
Oven: ik heb de goedkoopste Miele met pyrolyse, ben daar heeel erg tevreden over. Warmt zeer snel op en wordt aan de buitenkant niet meer dan hand warm. Geen gefrut met touchscreen en draaiknoppen voor de belangrijkste functies. Alleen de timer is een beetje irritant.
Kookplaat: ik heb een losse afzuigkap dus geen aanbeveling daar. Ik heb een Neff met twistpad, vind dat zelf heel fijn maar je moet er van houden.
Koelkast: heb de goedkoopste Liebherr. Prima ding.
It's time to play the music, it's time to light the lights
Wat een fijne topic!
Echter word ik een beetje overspoeld door alle informatie en ga ik op deze manier om advies vragen.
Ik en mijn vriend hebben een huis gekocht en willen de hoekkeuken compleet vervangen. Echter willen wij na een gezinsuitbreiding verhuizen naar een groter huis. Dit huis is dus voor ons tijdelijk en we willen er niet al te veel geld in stoppen, want dat willen we sparen voor een groter huis.
Echter willen we wel de keuken geheel vervangen. Maar ik lees zoveeeeel gemengde reacties. Zelf dachten we aan ikea, Bruynzeel, kuchen dump in Capelle of keukenstunter.
We willen niks geks. Strak, wit, hoekkeuken met veel opbergruimte. Niet te veel poespas, zodat als wij het verkopen ook aantrekkelijk is voor de volgende bewoners/kopers.
Budget 15.000
Wat raden jullie aan voor degelijke keukens met al niet te gekke prijzen?
Echter word ik een beetje overspoeld door alle informatie en ga ik op deze manier om advies vragen.
Ik en mijn vriend hebben een huis gekocht en willen de hoekkeuken compleet vervangen. Echter willen wij na een gezinsuitbreiding verhuizen naar een groter huis. Dit huis is dus voor ons tijdelijk en we willen er niet al te veel geld in stoppen, want dat willen we sparen voor een groter huis.
Echter willen we wel de keuken geheel vervangen. Maar ik lees zoveeeeel gemengde reacties. Zelf dachten we aan ikea, Bruynzeel, kuchen dump in Capelle of keukenstunter.
We willen niks geks. Strak, wit, hoekkeuken met veel opbergruimte. Niet te veel poespas, zodat als wij het verkopen ook aantrekkelijk is voor de volgende bewoners/kopers.
Budget 15.000
Wat raden jullie aan voor degelijke keukens met al niet te gekke prijzen?
Stomme vraag misschien, maar hoe vind ik een lokale keukenboer? Als ik google raak ik zo verloren in alle advertenties 😅Tuxie schreef op woensdag 30 oktober 2024 @ 12:20:
Na in mijn leven 3 keukens te hebben gekocht: vergeet het merk. Koop de keuken bij een kleine keukenboer die een EIGEN montagedienst heeft (dus GEEN ZZP'ers of geoutsourced naar een ander bedrijf). Dan koop je een keuken waar je lang plezier van hebt en waar ze je kennen. Als er iets is met montage en/of apparatuur kun je direct aankloppen. De meeste ellende van een keuken komt van een slecht gemonteerde keuken waar je alle kanten op gestuurd wordt.....
Kijk eens naar showroomkeukens die online worden aangeboden. Die zijn vaak (ook) in een hoekopstelling en het scheelt je veel geld.Newbie123666 schreef op donderdag 5 februari 2026 @ 21:48:
Wat een fijne topic!
Echter word ik een beetje overspoeld door alle informatie en ga ik op deze manier om advies vragen.
Ik en mijn vriend hebben een huis gekocht en willen de hoekkeuken compleet vervangen. Echter willen wij na een gezinsuitbreiding verhuizen naar een groter huis. Dit huis is dus voor ons tijdelijk en we willen er niet al te veel geld in stoppen, want dat willen we sparen voor een groter huis.
Echter willen we wel de keuken geheel vervangen. Maar ik lees zoveeeeel gemengde reacties. Zelf dachten we aan ikea, Bruynzeel, kuchen dump in Capelle of keukenstunter.
We willen niks geks. Strak, wit, hoekkeuken met veel opbergruimte. Niet te veel poespas, zodat als wij het verkopen ook aantrekkelijk is voor de volgende bewoners/kopers.
Budget 15.000
Wat raden jullie aan voor degelijke keukens met al niet te gekke prijzen?
Verder kun je kjjken naar leveranciers die standaardpakketten aanbieden. Als je daar niet van afwijkt, kun je veel geld besparen.
Ikea kan ook prima, moet je wel zelf in elkaar zetten. Vraagt handigheid en secuur werken.
Dankjewel voor je reactie! We hebben naar showroomkeukens gekeken. Echter dien je deze zelf te demonteren/vervoeren en thuis weer monteren. We hebben hier zelf niet echt verstand van en willen wel dat het goed en vakkundig wordt uitgevoerd, vandaar dat we daar maar vanaf zagen..Toke_gt schreef op donderdag 5 februari 2026 @ 22:04:
[...]
Kijk eens naar showroomkeukens die online worden aangeboden. Die zijn vaak (ook) in een hoekopstelling en het scheelt je veel geld.
Verder kun je kjjken naar leveranciers die standaardpakketten aanbieden. Als je daar niet van afwijkt, kun je veel geld besparen.
Ikea kan ook prima, moet je wel zelf in elkaar zetten. Vraagt handigheid en secuur werken.
Dat is niet overal zo hoor. Ze worden ook keurig voor je gedemonteerd en bij je geïnstalleerd (beide tegen meerprijs) en beschadigde onderdelen/apparaten vervangen door nieuwe. Verschilt een beetje per keukenleverancier. Bij sommige partijen (bijv Tulp) die met showroomkeukenkopen.nl werken kan dat, en als keuken aanpasbaar is, staat dat erbij.Newbie123666 schreef op donderdag 5 februari 2026 @ 22:29:
[...]
Dankjewel voor je reactie! We hebben naar showroomkeukens gekeken. Echter dien je deze zelf te demonteren/vervoeren en thuis weer monteren. We hebben hier zelf niet echt verstand van en willen wel dat het goed en vakkundig wordt uitgevoerd, vandaar dat we daar maar vanaf zagen..
Voor een koelkast, vriezer of wijnkoeler zou ik altijd voor Liebherr gaan als je het budget er voor hebt. Dat zijn echt de beste koelers. Ze geven niet voor niets 8 jaar garantie dus dat zegt wel iets. De Bora koelers komen trouwens ook uit de Liebherr fabriek.kaassouflé schreef op donderdag 5 februari 2026 @ 20:14:
Goedenavond heren, bij ons had de verkoper apparatuur van Pelgrim geadviseerd, omdat wij een beperkt budget hadden. Nu is het zo dat wij toch wat meer (lees: 2 a 3k) kunnen besteden aan de keuken. En willen wij graag van Pelgrim af, omdat ik verschillende verhalen lees op het web en dat het toch een budget merk is. Omdat de vriezer een afwijkende maat had is die van liebherr en die willen wij zo houden. Nu vroeg ik mij dus af voor welk merk wij het beste kunnen gaan? Het volgende hebben wij nodig:
-Vaatwasser
-Kookplaat met afzuiging (liefst mat zwart)
-Oven met pyrolyse functie
-koelkast, mochten wij geen combi-korting kunnen krijgen met een ander merk apparatuur, dan willen wij de koelkast, net zoals de vriezen, van Liebherr.
Alvast erg bedankt voor het meedenken.
Wat zijn de exacte afmetingen waar je naar op zoek bent? Misschien heb ik nog een showroomkeuken staan die precies past.Newbie123666 schreef op donderdag 5 februari 2026 @ 22:29:
[...]
Dankjewel voor je reactie! We hebben naar showroomkeukens gekeken. Echter dien je deze zelf te demonteren/vervoeren en thuis weer monteren. We hebben hier zelf niet echt verstand van en willen wel dat het goed en vakkundig wordt uitgevoerd, vandaar dat we daar maar vanaf zagen..
Daarnaast zou je ook nog even kunnen kijken op onlinekeukenveiling.nl. Zij hebben een wisselend aanbod en kunnen de keuken eventueel ook voor je bezorgen en plaatsen.
Keuken+plaatsnaam op een Maps dienst naar keuze.Newbie123666 schreef op donderdag 5 februari 2026 @ 22:01:
[...]
Stomme vraag misschien, maar hoe vind ik een lokale keukenboer? Als ik google raak ik zo verloren in alle advertenties 😅
En dan is het nog maar de vraag of je ze vindt. IMHO zijn de lokale boeren minder bezig met marketing en meer bezig met hun beroep.
En anders heb je altijd je buren netwerk nog. Niet alles hoeft online te zijn als je lokaal zoekt.
[ Voor 27% gewijzigd door CuBras op 06-02-2026 11:27 ]
Ik heb je post even verplaats naar een groter maar vooral nog actief topicNewbie123666 schreef op donderdag 5 februari 2026 @ 22:29:
[...]
Dankjewel voor je reactie! We hebben naar showroomkeukens gekeken. Echter dien je deze zelf te demonteren/vervoeren en thuis weer monteren. We hebben hier zelf niet echt verstand van en willen wel dat het goed en vakkundig wordt uitgevoerd, vandaar dat we daar maar vanaf zagen..
Iemand hier misschien ervaring met een verlijmde houten vloer (multiplank, bijv. 16mm dik) bij een nieuwbouwwoning, en wat je vervolgens met de keuken doet? Er zijn verschillende mogelijkheden:
1) De keuken eerst plaatsen op de betonnen vloer. De houten vloer vervolgens leggen, en de plinten/zijpanelen van de keuken inkorten met ± 17 mm (16 mm vloer + 1 mm lijm). De vloer laat je doorleggen tot aan de poten van de kasten. Zo lijkt het alsof de vloer doorloopt, maar bespaar je wel een aantal m2 houten vloer.
2) De keuken eerst plaatsen op ± 17-18mm dikke klosjes. Zo staat de keuken direct op dezelfde hoogte van de uiteindelijke vloer. Plinten/zijpanelen hoef je niet in te korten. De vloer leg je zodra de keuken er staat, en deze laat je doorlopen tot aan de klosjes. Hetzelfde voordeel als bij 1.
3) De vloer eerst plaatsen, ook onder de keuken. Omdat deze verlijmd is, zou dit als het goed is de keuken wel moeten dragen zonder problemen. Meest eenvoudige optie, maar ook duurder omdat je al wat m2's extra betaald voor de houten vloer.
Optie 1 werd voorgesteld door de vloerlegger, maar daar was de keukenkastenzaak minder bekend mee, die heeft weer meer ervaring met optie 2. Nu twijfel ik ook zelf wat nou handig is.
1) De keuken eerst plaatsen op de betonnen vloer. De houten vloer vervolgens leggen, en de plinten/zijpanelen van de keuken inkorten met ± 17 mm (16 mm vloer + 1 mm lijm). De vloer laat je doorleggen tot aan de poten van de kasten. Zo lijkt het alsof de vloer doorloopt, maar bespaar je wel een aantal m2 houten vloer.
2) De keuken eerst plaatsen op ± 17-18mm dikke klosjes. Zo staat de keuken direct op dezelfde hoogte van de uiteindelijke vloer. Plinten/zijpanelen hoef je niet in te korten. De vloer leg je zodra de keuken er staat, en deze laat je doorlopen tot aan de klosjes. Hetzelfde voordeel als bij 1.
3) De vloer eerst plaatsen, ook onder de keuken. Omdat deze verlijmd is, zou dit als het goed is de keuken wel moeten dragen zonder problemen. Meest eenvoudige optie, maar ook duurder omdat je al wat m2's extra betaald voor de houten vloer.
Optie 1 werd voorgesteld door de vloerlegger, maar daar was de keukenkastenzaak minder bekend mee, die heeft weer meer ervaring met optie 2. Nu twijfel ik ook zelf wat nou handig is.
Optie 1 is vrij standaard, maar dit kan in de toekomst uitdagingen geven met de vaatwasser. Als je deze later moet vervangen, kunnen de pootjes van de vaatwasser tegen de rand van de vloer aanlopen. De vaatwasser moet daarom echt "verhoogd" geplaatst worden om dit te voorkomen.Nordlys schreef op vrijdag 6 februari 2026 @ 14:59:
Iemand hier misschien ervaring met een verlijmde houten vloer (multiplank, bijv. 16mm dik) bij een nieuwbouwwoning, en wat je vervolgens met de keuken doet? Er zijn verschillende mogelijkheden:
1) De keuken eerst plaatsen op de betonnen vloer. De houten vloer vervolgens leggen, en de plinten/zijpanelen van de keuken inkorten met ± 17 mm (16 mm vloer + 1 mm lijm). De vloer laat je doorleggen tot aan de poten van de kasten. Zo lijkt het alsof de vloer doorloopt, maar bespaar je wel een aantal m2 houten vloer.
2) De keuken eerst plaatsen op ± 17-18mm dikke klosjes. Zo staat de keuken direct op dezelfde hoogte van de uiteindelijke vloer. Plinten/zijpanelen hoef je niet in te korten. De vloer leg je zodra de keuken er staat, en deze laat je doorlopen tot aan de klosjes. Hetzelfde voordeel als bij 1.
3) De vloer eerst plaatsen, ook onder de keuken. Omdat deze verlijmd is, zou dit als het goed is de keuken wel moeten dragen zonder problemen. Meest eenvoudige optie, maar ook duurder omdat je al wat m2's extra betaald voor de houten vloer.
Optie 1 werd voorgesteld door de vloerlegger, maar daar was de keukenkastenzaak minder bekend mee, die heeft weer meer ervaring met optie 2. Nu twijfel ik ook zelf wat nou handig is.
Goed punt, door alle informatie overload was ik dit helemaal vergeten, dit punt werd ook aangestipt door de keukenkastenzaak. Dan lijkt mij optie 2 in ieder geval beter. Alleen nog even kijken of ik dan 1 of 2 mm speling hanteer voor de klosjes (de vloer is 16 mm dik, met lijm al snel 17 mm, en je wilt de plank wel onder de plint / zijpanelen door kunnen leggen, en een vloer is nooit helemaal recht). Optie 3 is misschien nog beter maar wel prijziger.MarcoZoetermeer schreef op vrijdag 6 februari 2026 @ 15:15:
[...]
Optie 1 is vrij standaard, maar dit kan in de toekomst uitdagingen geven met de vaatwasser. Als je deze later moet vervangen, kunnen de pootjes van de vaatwasser tegen de rand van de vloer aanlopen. De vaatwasser moet daarom echt "verhoogd" geplaatst worden om dit te voorkomen.
Iemand die op deze ikea keuken durft te schieten?
Langs het raam, dat is niet helemaal ideaal omdat het raam +/- 20cm lager begint dan het aanrecht hoog is.
Maar zo houden we wel een goede doorloop naar de ruimte boven de getekende tafel, en kan de tafel 'overal' in de keuken gezet worden. Dus plaatsing van de tafel is meer even ter illustratie voor onszelf, dat die evt. zelfs daar naast/in de deuropening naar de andere ruimte zou kunnen.
In de hoge kast nabij het fornuis een hoge koelkast, daar tegenover een hoge kast met hoge vriezer. Wellicht zouden we die vriezer nog naar een bijkeuken verplaatsen, dan hebben we meer kastruimte in de keuken.
Dit kost ongeveer €4700 aan kastjes e.d.
Zonder blad en apparatuur.
Langs het raam, dat is niet helemaal ideaal omdat het raam +/- 20cm lager begint dan het aanrecht hoog is.
Maar zo houden we wel een goede doorloop naar de ruimte boven de getekende tafel, en kan de tafel 'overal' in de keuken gezet worden. Dus plaatsing van de tafel is meer even ter illustratie voor onszelf, dat die evt. zelfs daar naast/in de deuropening naar de andere ruimte zou kunnen.
In de hoge kast nabij het fornuis een hoge koelkast, daar tegenover een hoge kast met hoge vriezer. Wellicht zouden we die vriezer nog naar een bijkeuken verplaatsen, dan hebben we meer kastruimte in de keuken.
Dit kost ongeveer €4700 aan kastjes e.d.
Zonder blad en apparatuur.
![]() | ![]() | ![]() |
Ik denk dat alles kan, dus het hangt af van wat voor jou het beste uitkomt.Nordlys schreef op vrijdag 6 februari 2026 @ 14:59:
Iemand hier misschien ervaring met een verlijmde houten vloer (multiplank, bijv. 16mm dik) bij een nieuwbouwwoning, en wat je vervolgens met de keuken doet? Er zijn verschillende mogelijkheden:
Indien mogelijk zou ik voor 3 gaan. Als je vloer dan de keuken overleeft, dan ligt er een volledige dekkende vloer, zodat je flexibeler bent over de vorm van de nieuwe keuken.
Als je voor 1 gaat, houdt dan wel rekening met dat de hoogte van je aanrechtblad effectief lager uitvalt.
Gaat die vloer überhaupt lekker samen met je vloerverwarming/koeling die je waarschijnlijk hebt in de nieuwbouwwoning?Nordlys schreef op vrijdag 6 februari 2026 @ 14:59:
Iemand hier misschien ervaring met een verlijmde houten vloer (multiplank, bijv. 16mm dik) bij een nieuwbouwwoning, en wat je vervolgens met de keuken doet? Er zijn verschillende mogelijkheden:
1) De keuken eerst plaatsen op de betonnen vloer. De houten vloer vervolgens leggen, en de plinten/zijpanelen van de keuken inkorten met ± 17 mm (16 mm vloer + 1 mm lijm). De vloer laat je doorleggen tot aan de poten van de kasten. Zo lijkt het alsof de vloer doorloopt, maar bespaar je wel een aantal m2 houten vloer.
2) De keuken eerst plaatsen op ± 17-18mm dikke klosjes. Zo staat de keuken direct op dezelfde hoogte van de uiteindelijke vloer. Plinten/zijpanelen hoef je niet in te korten. De vloer leg je zodra de keuken er staat, en deze laat je doorlopen tot aan de klosjes. Hetzelfde voordeel als bij 1.
3) De vloer eerst plaatsen, ook onder de keuken. Omdat deze verlijmd is, zou dit als het goed is de keuken wel moeten dragen zonder problemen. Meest eenvoudige optie, maar ook duurder omdat je al wat m2's extra betaald voor de houten vloer.
Optie 1 werd voorgesteld door de vloerlegger, maar daar was de keukenkastenzaak minder bekend mee, die heeft weer meer ervaring met optie 2. Nu twijfel ik ook zelf wat nou handig is.
Jawel, daar heeft de vloerenlegger wel veel ervaring mee. Het is natuurlijk minder efficiënt dan iets als PVC of keramische tegels, en je moet de luchtvochtigheid beter in de gaten houden (grote schommelingen vooral). Maar met de 12+4mm dikte, verlijming en de legtechniek komt het wel goed.nooberke schreef op vrijdag 6 februari 2026 @ 16:59:
[...]
Gaat die vloer überhaupt lekker samen met je vloerverwarming/koeling die je waarschijnlijk hebt in de nieuwbouwwoning?
Op dit moment ben ik aan het oriënteren voor een keuken. Bij KVIK heb ik reeds een tekening en concept laten maken. De keuken is echter behoorlijk lang aan 1 zijde (3.5m). Wat zou er mogelijk zijn als ik tot max 3m aan die zijde zou gaan?
:strip_exif()/f/image/FgPiYi4QpwZbkl2dIJOxNxqL.png?f=user_large)
Hiernaast heb ik bij Bruynzeel een scan laten maken waarbij beide kanten 3m lang zijn. Hier rolde echter een offerte uit van 21k. Is dit een normale prijs tegenwoordig? Dit met Pelgrim apparatuur (begrijp dat dit niet geweldig is?) En een Taj Royale keukenblad (van 5.2m voor 4.7k, terwijl dit volgens meerdere bronnen 339 per m2 is?)
Heeft het ook nog zin om naar Duitsland te gaan om hier een offerte aan te vragen? Of zijn de prijzen hier tegenwoordig ook behoorlijk hoog?
Budget ligt rond de 14-17k, kan je hier tegenwoordig nog een U keuken van plaatsen?
:strip_exif()/f/image/FgPiYi4QpwZbkl2dIJOxNxqL.png?f=user_large)
Hiernaast heb ik bij Bruynzeel een scan laten maken waarbij beide kanten 3m lang zijn. Hier rolde echter een offerte uit van 21k. Is dit een normale prijs tegenwoordig? Dit met Pelgrim apparatuur (begrijp dat dit niet geweldig is?) En een Taj Royale keukenblad (van 5.2m voor 4.7k, terwijl dit volgens meerdere bronnen 339 per m2 is?)
Heeft het ook nog zin om naar Duitsland te gaan om hier een offerte aan te vragen? Of zijn de prijzen hier tegenwoordig ook behoorlijk hoog?
Budget ligt rond de 14-17k, kan je hier tegenwoordig nog een U keuken van plaatsen?
[ Voor 4% gewijzigd door AFK47 op 06-02-2026 21:13 ]
Ter indicatie:AFK47 schreef op vrijdag 6 februari 2026 @ 21:07:
Budget ligt rond de 14-17k, kan je hier tegenwoordig nog een U keuken van plaatsen?
Piemol in "Het Grote Keuken topic: verkopers, kwaliteit, prijs - Deel 3"
Echt goedkoper qua kastjes gaat het niet worden.
Mooi nieuw blad bij ikea of een natuursteenfabrikant halen en je kan een chique keuken maken.
Apparatuur wellicht deels 2e hands scoren?
Wij hebben zojuist met parket optie 2 gehanteerd. Optie 3 werd ons afgeraden, niet alleen voor de kosten maar ook als je ooit een lekkage hebt die je niet direct opmerkt dan gaat je vloer kapot.Nordlys schreef op vrijdag 6 februari 2026 @ 14:59:
Iemand hier misschien ervaring met een verlijmde houten vloer (multiplank, bijv. 16mm dik) bij een nieuwbouwwoning, en wat je vervolgens met de keuken doet? Er zijn verschillende mogelijkheden:
1) De keuken eerst plaatsen op de betonnen vloer. De houten vloer vervolgens leggen, en de plinten/zijpanelen van de keuken inkorten met ± 17 mm (16 mm vloer + 1 mm lijm). De vloer laat je doorleggen tot aan de poten van de kasten. Zo lijkt het alsof de vloer doorloopt, maar bespaar je wel een aantal m2 houten vloer.
2) De keuken eerst plaatsen op ± 17-18mm dikke klosjes. Zo staat de keuken direct op dezelfde hoogte van de uiteindelijke vloer. Plinten/zijpanelen hoef je niet in te korten. De vloer leg je zodra de keuken er staat, en deze laat je doorlopen tot aan de klosjes. Hetzelfde voordeel als bij 1.
3) De vloer eerst plaatsen, ook onder de keuken. Omdat deze verlijmd is, zou dit als het goed is de keuken wel moeten dragen zonder problemen. Meest eenvoudige optie, maar ook duurder omdat je al wat m2's extra betaald voor de houten vloer.
Optie 1 werd voorgesteld door de vloerlegger, maar daar was de keukenkastenzaak minder bekend mee, die heeft weer meer ervaring met optie 2. Nu twijfel ik ook zelf wat nou handig is.
Als ik dit lees dan vraag ik me altijd af wat mensen na 20 jaar (keukens gaan vaak nog langer mee) verwachten als ze de keuken weghalen. Denk je echt dat er geen enorme verkleuringen zichtbaar zijn door zonlicht en slijtage? Echt zonde van je geld om het door te leggen om deze redenaap schreef op vrijdag 6 februari 2026 @ 16:56:
[...]
Indien mogelijk zou ik voor 3 gaan. Als je vloer dan de keuken overleeft, dan ligt er een volledige dekkende vloer, zodat je flexibeler bent over de vorm van de nieuwe keuken.
Stel dat je keuken 8 meter lang is, dan gaat het om 8 x 0,6m 'extra te leggen vloer'.tjubbie schreef op vrijdag 6 februari 2026 @ 21:44:
[...]
Echt zonde van je geld om het door te leggen om deze reden
Dat is 4,8 m2 en een giga keuken.
Is toch veel makkelijker om door te leggen voor die <5m2 vloer, en je bent veel flexibeler richting de toekomst.
Misschien makkelijker om te leggen maar flexibeler? Dan lees je blijkbaar voor het gemak over het eerste deel van mijn post heenPiemol schreef op vrijdag 6 februari 2026 @ 21:47:
[...]
Stel dat je keuken 8 meter lang is, dan gaat het om 8 x 0,6m 'extra te leggen vloer'.
Dat is 4,8 m2 en een giga keuken.
Is toch veel makkelijker om door te leggen voor die <5m2 vloer, en je bent veel flexibeler richting de toekomst.
Nee hoor. Er zijn ook mensen die na 10 jaar de keuken (deels) vervangen.tjubbie schreef op vrijdag 6 februari 2026 @ 21:51:
Dan lees je blijkbaar voor het gemak over het eerste deel van mijn post heen
Of een aanbouw plaatsen en dan ook wat met de keuken doen.
Update:Vervangingsmoment: Hoewel een keuken 15-25 jaar mee kan gaan, vervangt 30% van de Nederlanders deze na 16 tot 20 jaar en 24% al na 11 tot 15 jaar.
Persoonlijk heb ik de plavuizen doorgelegd onder de keuken en ga 10 jaar later verhuizen.
Nieuwe eigenaren hebben nu wat meer mogelijkheden met de keuken. Zelf heb ik ook een aanbouw geplaatst waar ook de keuken heen had gekund, maar heb ik uiteindelijk niet gedaan.
[ Voor 22% gewijzigd door Piemol op 06-02-2026 22:08 ]
Als je nu nog niet snapt dat mijn punt kleurverschil is…Piemol schreef op vrijdag 6 februari 2026 @ 22:00:
[...]
Nee hoor. Er zijn ook mensen die na 10 jaar de keuken (deels) vervangen.
Of een aanbouw plaatsen en dan ook wat met de keuken doen.
[...]
Update:
Persoonlijk heb ik de plavuizen doorgelegd onder de keuken en ga 10 jaar later verhuizen.
Nieuwe eigenaren hebben nu wat meer mogelijkheden met de keuken. Zelf heb ik ook een aanbouw geplaatst waar ook de keuken heen had gekund, maar heb ik uiteindelijk niet gedaan.
Let op:
Dit topic kan gebruikt worden voor het volgende:
• Vragen over de keuken, denkend aan indeling, materialen, kastjes, apparatuur, etc.
• Welke kastjes, aanrechtbladen en apparatuur te kiezen
• Ervaringen met verkopers en keukenboeren
• Tips & Tricks denk hierbij aan hulp bij het zelf installeren en onderhouden van de keuken.
• Jouw indeling. Plaats gerust een foto of tekening, maar maak het niet te bont met hele buildlogs.
Voor badkamers: Het Badkamer topic: verkopers, kwaliteit, prijs - Deel 1
Showen met je keuken kan hier: Tweakers Keuken showroom! - Vestiging 1
Dit topic kan gebruikt worden voor het volgende:
• Vragen over de keuken, denkend aan indeling, materialen, kastjes, apparatuur, etc.
• Welke kastjes, aanrechtbladen en apparatuur te kiezen
• Ervaringen met verkopers en keukenboeren
• Tips & Tricks denk hierbij aan hulp bij het zelf installeren en onderhouden van de keuken.
• Jouw indeling. Plaats gerust een foto of tekening, maar maak het niet te bont met hele buildlogs.
Voor badkamers: Het Badkamer topic: verkopers, kwaliteit, prijs - Deel 1
Showen met je keuken kan hier: Tweakers Keuken showroom! - Vestiging 1
/f/image/x4oDOGx3BnuMceKXHCtNE7DI.png?f=fotoalbum_tile)
/f/image/EdOttJ179VthCCP3DZzKmvcg.png?f=fotoalbum_tile)
/f/image/qxzPJiLnwxYhAn2RG77xohEX.png?f=fotoalbum_tile)
/f/image/f4GFyqXrkxJq4ve6gd3i1dAL.png?f=fotoalbum_tile)
/f/image/Hatd2aF0Jc64D0l4DQD7JYEc.png?f=fotoalbum_tile)
/f/image/YrTyI5YnIzKMyZesQLPFipWz.png?f=fotoalbum_tile)
/f/image/33ja814s7z3VIZY7SrL4R5VI.png?f=fotoalbum_tile)