Exact wat ik ook dachtToke_gt schreef op donderdag 3 april 2025 @ 08:51:
[...]
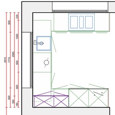
Met optie 1 gaat je hele ruimte waarschijnlijk als één grote keuken aanvoelen. Eethoek lijkt iets te krap om gezellig met familie/vrienden te zitten, de bank een meter van je kookeiland lijkt de zithoek naar buiten te duwen.
Als het gebrek aan opbergruimte je grootste bezwaar tegen de keuken op de huidige plek is, zou je daar iets mee kunnen doen in de ruimte die in optie 2 ontstaat in het midden van de kamer. Je zou kasten kunnen plaatsen waar je nu de eethoek hebt ingetekend en de eethoek in de ruimte waar nu alleen het bureau is voorzien. Dat houdt de doorloop ook ruimtelijker en dan benut je in mijn beleving beter de extra ruimte die je met de verbouwing creëert (ervan uitgaan de dat je een uitbouw maakt?).
Voor wat betreft de entree: als je toch gaat verbouwen, is het een optie om de deur naar de kamer tegenover de voordeur te plaatsen? Dat maakt de doorloop in de keuken wat rustiger voor wie in de keuken staat.
Bij elkaar ziet het er dan ongeveer zo uit:
[Afbeelding]
Wij zijn druk bezig geweest de woonkamer leeg te ruimen omdat morgen (eindelijk) onze nieuwe keuken geleverd wordt.
Zoveel mogelijk stucloper neergelegd, is het verstandig om de uitwendige hoeken nog te voorzien van bescherming ivm transportschade denken jullie?
Renderingen van de keuken;
:no_upscale():strip_icc():strip_exif()/f/image/YnRG9buGP6hqV5CtbMCJpkbm.jpg?f=user_large)
Zal volgende week de echte foto's nog even plaatsen.
Keuken is gekocht via keukenloods. Pronorm matlak donkergroene kasten/fronten en lionstone composiet airy concrete blad.
Zoveel mogelijk stucloper neergelegd, is het verstandig om de uitwendige hoeken nog te voorzien van bescherming ivm transportschade denken jullie?
Renderingen van de keuken;
:no_upscale():strip_icc():strip_exif()/f/image/YnRG9buGP6hqV5CtbMCJpkbm.jpg?f=user_large)
Zal volgende week de echte foto's nog even plaatsen.
Keuken is gekocht via keukenloods. Pronorm matlak donkergroene kasten/fronten en lionstone composiet airy concrete blad.
Ziet er keurig uit! Wij krijgen ook zo'n keukenopstelling waarschijnlijk. Wil je vertellen wat deze keuken heeft gekost?wokkelz schreef op donderdag 3 april 2025 @ 12:04:
Wij zijn druk bezig geweest de woonkamer leeg te ruimen omdat morgen (eindelijk) onze nieuwe keuken geleverd wordt.
Zoveel mogelijk stucloper neergelegd, is het verstandig om de uitwendige hoeken nog te voorzien van bescherming ivm transportschade denken jullie?
Renderingen van de keuken;
[Afbeelding]
Zal volgende week de echte foto's nog even plaatsen.
Keuken is gekocht via keukenloods. Pronorm matlak donkergroene kasten/fronten en lionstone composiet airy concrete blad.
[Afbeelding]
Ja hoor geen probleem!Prins32 schreef op donderdag 3 april 2025 @ 12:11:
[...]
Ziet er keurig uit! Wij krijgen ook zo'n keukenopstelling waarschijnlijk. Wil je vertellen wat deze keuken heeft gekost?
Al ligt het natuurlijk ook aan je apparatuur, kasten en blad je hebt gekozen, maar wij hebben;
Uitvoering: A, Pronorm Programma X-LM
Fronttype: Matlak (098)
Siemens IQ500 KI81RSDD0 (178cm koelkast)
Siemens IQ500 GI81NACE0 (178cm vriezer)
Siemens IQ700 HM776GKB1 ((67 liter combi incl pyrolytisch)
Siemens IQ300 SN63HX03AN (vaatwasser)
Quooker flex incl 3L reservoir
Quooker zeeppompje
Bora Pure kookplaat
Bladlengte (niet uit 1 stuk helaas) is over de raamkant 3,6m en rechts tegen de muur 1,8m (ex de 60cm diepte van het blad langs de raam muur)
Totale kosten incl plaatsen 24.8k
Bedankt! Dit matched met mijn eigen gevoel. Bij optie 2 hebben we genoeg ruimte onder het keukenblad, dus ik ga daar op sturen in ons huishoudenToke_gt schreef op donderdag 3 april 2025 @ 08:51:
[...]
Met optie 1 gaat je hele ruimte waarschijnlijk als één grote keuken aanvoelen. Eethoek lijkt iets te krap om gezellig met familie/vrienden te zitten, de bank een meter van je kookeiland lijkt de zithoek naar buiten te duwen.
Als het gebrek aan opbergruimte je grootste bezwaar tegen de keuken op de huidige plek is, zou je daar iets mee kunnen doen in de ruimte die in optie 2 ontstaat in het midden van de kamer. Je zou kasten kunnen plaatsen waar je nu de eethoek hebt ingetekend en de eethoek in de ruimte waar nu alleen het bureau is voorzien. Dat houdt de doorloop ook ruimtelijker en dan benut je in mijn beleving beter de extra ruimte die je met de verbouwing creëert (ervan uitgaan de dat je een uitbouw maakt?).
Voor wat betreft de entree: als je toch gaat verbouwen, is het een optie om de deur naar de kamer tegenover de voordeur te plaatsen? Dat maakt de doorloop in de keuken wat rustiger voor wie in de keuken staat.
Bij elkaar ziet het er dan ongeveer zo uit:
[Afbeelding]
Mooie ruimte voor de keuken zo. Toch een vraag; wat is de doorloopruimte tussen de kastenwand en het eiland? Het openen van de oven (zeker de onderste) zorgt wel meteen voor het fors verkleinen van deze ruimte (denk ook aan de oven deels open laten staan voor afkoelen)eelco74 schreef op maandag 31 maart 2025 @ 20:52:
[...]
[Afbeelding]
Wij gaan een blok van 270cm breed bij 160cm hoog krijgen (pas in q4 2025) en we hadden in eerste instantie de Nolte Neo goudeiken op het oog, maar die is toch vrij druk qua tekening.
We wachten met interesse de fotos van je geplaatste keuken, als je dat wilt doen.
Ik zal zeker wat foto’s posten als de keuken geleverd en/of gemonteerd is!
Zijn er al ervaringen met de matte Bora X Pure Rough?
Ik zag dat @Ucello @Tiuri @6pack15 @Arwen. deze overwogen hebben of zelfs besteld hebben.
Hoe zit het met de krasgevoeligheid en fingerprinting van het matte oppervlak?
Laatst zag ik 2 matte uitvoeringen in een keukenzaak van 2 verschillende merken. Op de ene plaat zag je echt helemaal niks en de ander zat vol met vingerafdrukken. Dus dat maakt kennelijk wel verschil.
Ik heb de Bora nog niet in het echt kunnen ontdekken.
Ik zag dat @Ucello @Tiuri @6pack15 @Arwen. deze overwogen hebben of zelfs besteld hebben.
Hoe zit het met de krasgevoeligheid en fingerprinting van het matte oppervlak?
Laatst zag ik 2 matte uitvoeringen in een keukenzaak van 2 verschillende merken. Op de ene plaat zag je echt helemaal niks en de ander zat vol met vingerafdrukken. Dus dat maakt kennelijk wel verschil.
Ik heb de Bora nog niet in het echt kunnen ontdekken.
Hier wel besteld, keuken zal eerste week mei geplaatst worden. Dan zal ik wel wat fotos neerzetten.yorroy schreef op vrijdag 4 april 2025 @ 12:29:
Zijn er al ervaringen met de matte Bora X Pure Rough?
Ik zag dat @Ucello @Tiuri @6pack15 @Arwen. deze overwogen hebben of zelfs besteld hebben.
Hoe zit het met de krasgevoeligheid en fingerprinting van het matte oppervlak?
Laatst zag ik 2 matte uitvoeringen in een keukenzaak van 2 verschillende merken. Op de ene plaat zag je echt helemaal niks en de ander zat vol met vingerafdrukken. Dus dat maakt kennelijk wel verschil.
Ik heb de Bora nog niet in het echt kunnen ontdekken.
Voornaamste reden om de rough te kiezen is dat ik nu al 10 jaar lang dagelijks de zwarte glazen kookplaten van ons gasstel schoonmaak en daar helemaal klaar mee ben. Niks is zo besmettelijk als zwart glas. En op den duur krijg je toch micro krasjes. Ik hoop dat de rough daar zich in gaat bewijzen.
Nog nooit gezien in het echt trouwens haha
Die van mij wordt pas medio 2026 geleverd en heb hem ook nog niet in het echt gezien...yorroy schreef op vrijdag 4 april 2025 @ 12:29:
Zijn er al ervaringen met de matte Bora X Pure Rough?
Ik zag dat @Ucello @Tiuri @6pack15 @Arwen. deze overwogen hebben of zelfs besteld hebben.
Hoe zit het met de krasgevoeligheid en fingerprinting van het matte oppervlak?
Laatst zag ik 2 matte uitvoeringen in een keukenzaak van 2 verschillende merken. Op de ene plaat zag je echt helemaal niks en de ander zat vol met vingerafdrukken. Dus dat maakt kennelijk wel verschil.
Ik heb de Bora nog niet in het echt kunnen ontdekken.
Helaas wel een zeer negatieve ervaring met Akzent Küchen, waar wij onze keuken gaan kopen, en zoek advies.
Die toko heeft tot 3 keer toe een incomplete technische tekening geleverd met maten die feitelijk niet klopten, met name de aansluitingen op het eiland stonden of verkeerd of incompleet ingetekend. Ik vind het bizar dat ik als keukenleek dat zelf moet aangeven en corrigeren.. Communicatie gaat extreem stroperig, gaat vaak een week overheen voordat ik reactie krijg. Telefonisch onbereikbaar, mijn keukenverkoper is altijd druk en niemand anders binnen het bedrijf kan inspringen.
Na 1.5 maand schipperen uiteindelijk via technischekeukentekening.nl last-minute een correcte tekening kunnen laten tekenen want de bouwer van de nieuwbouwwoning had deze nodig. Boze mail naar Akzent gestuurd, ze geven aan dat ze het druk hebben en dat ik de koop mag ontbinden a 25% van de offerte kosten. Apart, omdat ze me eerder hebben aangeboden de koop te mogen ontbinden als ik zo ontevreden was. Er stond ook geen woord van excuses of zelfreflectie in.
Ik ben dus zeer teleurgesteld. Iemand nog advies? Als deze toko niet eens een technische tekening kan opleveren, hoe moet ik dan vertrouwen dat ze wel fatsoenlijk een keuken kunnen plaatsen?
Dat is ook waar ik me heel erg druk om maak. Ze maken pas een technische tekening als je hebt hebt getekend. Daarna hebben ze je al binnen en hoeven ze niks meer te doen. Echt scummy praktijken.Tiuri schreef op vrijdag 4 april 2025 @ 14:13:
[...]
Die van mij wordt pas medio 2026 geleverd en heb hem ook nog niet in het echt gezien...
Helaas wel een zeer negatieve ervaring met Akzent Küchen, waar wij onze keuken gaan kopen, en zoek advies.
Die toko heeft tot 3 keer toe een incomplete technische tekening geleverd met maten die feitelijk niet klopten, met name de aansluitingen op het eiland stonden of verkeerd of incompleet ingetekend. Ik vind het bizar dat ik als keukenleek dat zelf moet aangeven en corrigeren.. Communicatie gaat extreem stroperig, gaat vaak een week overheen voordat ik reactie krijg. Telefonisch onbereikbaar, mijn keukenverkoper is altijd druk en niemand anders binnen het bedrijf kan inspringen.
Na 1.5 maand schipperen uiteindelijk via technischekeukentekening.nl last-minute een correcte tekening kunnen laten tekenen want de bouwer van de nieuwbouwwoning had deze nodig. Boze mail naar Akzent gestuurd, ze geven aan dat ze het druk hebben en dat ik de koop mag ontbinden a 25% van de offerte kosten. Apart, omdat ze me eerder hebben aangeboden de koop te mogen ontbinden als ik zo ontevreden was. Er stond ook geen woord van excuses of zelfreflectie in.
Ik ben dus zeer teleurgesteld. Iemand nog advies? Als deze toko niet eens een technische tekening kan opleveren, hoe moet ik dan vertrouwen dat ze wel fatsoenlijk een keuken kunnen plaatsen?
Nee, dat zijn geen scummy praktijken. Een technische tekening maak je pas als mensen hebben getekend voor een keuken. Tot die tijd kan er nog van alles veranderen. Waarom zouden zij dan de tekening al voor je maken? Daarmee geven ze je alle ruimte om vervolgens de keuken elders te kopen. Zo werkt het niet.UltraInstinct schreef op vrijdag 4 april 2025 @ 17:52:
[...]
Dat is ook waar ik me heel erg druk om maak. Ze maken pas een technische tekening als je hebt hebt getekend. Daarna hebben ze je al binnen en hoeven ze niks meer te doen. Echt scummy praktijken.
Al eerder gezegd: er zijn ook bureaus die voor jou zo’n tekening maken, dan heb je daarna alle tijd om een keuken uit te zoeken. Niemand verplicht jou om nu al een keuken te kopen die pas in ‘26 of ‘27 wordt geleverd.
Wat ik bedoel met 'scummy' praktijken is dat ze je als een god behandelen TOT je tekent en daarna niks meer willen doen.Toke_gt schreef op vrijdag 4 april 2025 @ 18:00:
[...]
Nee, dat zijn geen scummy praktijken. Een technische tekening maak je pas als mensen hebben getekend voor een keuken. Tot die tijd kan er nog van alles veranderen. Waarom zouden zij dan de tekening al voor je maken? Daarmee geven ze je alle ruimte om vervolgens de keuken elders te kopen. Zo werkt het niet.
Al eerder gezegd: er zijn ook bureaus die voor jou zo’n tekening maken, dan heb je daarna alle tijd om een keuken uit te zoeken. Niemand verplicht jou om nu al een keuken te kopen die pas in ‘26 of ‘27 wordt geleverd.
Hij had waarschijnlijk voor het tekenen een heel goed gevoel en hebben ze hem goed geholpen/geadviseerd daarom heeft hij ook getekend, nu ze hem binnen hebben is hij geen prioriteit meer voor ze. Is toch belachelijk dat hij nu extern iemand moet betalen om een tekening te laten maken?
We zijn geïnteresseerd in een nieuwe keuken van Bruynzeel maar als ik de reviews online mag geloven lijkt het één baggerzooi te zijn (met name bij aftersales)
Ik vroeg mij af of hier mensen zijn die hier ervaring mee hebben?
Ik vroeg mij af of hier mensen zijn die hier ervaring mee hebben?
Ik zou het vooral een teken aan de wand vinden dat het na drie keer nog niet goed genoeg is. Maar ik neem aan dat ze dat niet met opzet doen. Eerder gebrek aan goede mensen/expertise (dus onvermogen). Akzent is hier paar keer genoemd als partij met interessante prijzen. Daar kan natuurlijk makkelijk een keerzijde aan zitten.UltraInstinct schreef op vrijdag 4 april 2025 @ 18:04:
[...]
Wat ik bedoel met 'scummy' praktijken is dat ze je als een god behandelen TOT je tekent en daarna niks meer willen doen.
Hij had waarschijnlijk voor het tekenen een heel goed gevoel en hebben ze hem goed geholpen/geadviseerd daarom heeft hij ook getekend, nu ze hem binnen hebben is hij geen prioriteit meer voor ze. Is toch belachelijk dat hij nu extern iemand moet betalen om een tekening te laten maken?
Ik ben momenteel ook met Akzent in gesprek, maar heb nog niks getekend. Heb contact met de eigenaar. In januari naar de showroom geweest. Daarna een heel duidelijke en uitgebreide offerte gehad, waarop precies gespecificeerd staat wat ze allemaal doen. Er werd daar toen ook echt goed geholpen en ze waren goed voorbereid. De prijs lijkt inderdaad ook heel scherp te zijn.
Heb ze afgelopen week gemaild met een paar pagina’s aan vragen en opmerkingen. Kreeg na een paar dagen een reactie dat ze last hebben van een aantal zieke collega’s en dat het daarom langer duurt om alles te beantwoorden en dat de reactie op mijn mail een paar dagen later zou komen. Op de toegezegde dag heb ik netjes de reactie gehad. We hebben vervolgens afgesproken een afspraak te maken om alles te bespreken. Die afspraak was ook snel gemaakt en staat nu in de agenda’s.
Dat de technische tekeningen pas volgen na tekenen vind ik inderdaad ook niet zo vreemd.
Wil trouwens de ervaring van @Tiuri niet bagataliseren. Dar klinkt gewoon allemaal niet OK, maar zou dus ook een ongelukkige samenloop van omstandigheden kunnen zijn.
Heb ze afgelopen week gemaild met een paar pagina’s aan vragen en opmerkingen. Kreeg na een paar dagen een reactie dat ze last hebben van een aantal zieke collega’s en dat het daarom langer duurt om alles te beantwoorden en dat de reactie op mijn mail een paar dagen later zou komen. Op de toegezegde dag heb ik netjes de reactie gehad. We hebben vervolgens afgesproken een afspraak te maken om alles te bespreken. Die afspraak was ook snel gemaakt en staat nu in de agenda’s.
Dat de technische tekeningen pas volgen na tekenen vind ik inderdaad ook niet zo vreemd.
Wil trouwens de ervaring van @Tiuri niet bagataliseren. Dar klinkt gewoon allemaal niet OK, maar zou dus ook een ongelukkige samenloop van omstandigheden kunnen zijn.
[ Voor 8% gewijzigd door _kilian_ op 04-04-2025 18:47 ]
@UltraInstinct ik vind het vooral ontzettend onprofessioneel en heb nu geen goed gevoel meer bij Akzent. Als dit moedwillig is dan zou het wel heel triest gesteld zijn in de keukenwereld. Wel eens dat voor het tekenen van het contract ze super bereikbaar waren, en daarna niet meer (zie onder). Als ik niet zeer gedetailleerd na de eerste versie van hun tekening had gekeken had mijn eiland bijvoorbeeld 10cm verder uit de kant gestaan dan wij schriftelijk hadden besproken. Ook verkeerde maten uit de bouwtekening overgenomen bijvoorbeeld.
@_kilian_ bedankt voor deze toelichting, je hebt nu al meer gedeeld dan Akzent in 1.5 maand tijd.. Tegen mij zeggen ze gewoon 'wij hebben ook andere klanten'. Dan nog bizar dat niemand mij binnen Akzent kan helpen met een paar kleine aanpassingen/vragen. En wederom, geen een keer excuses gemaakt, alleen maar geirriteerd uitgevallen dat ik niet zo vaak moet mailen/bellen. Heel apart. Als ik je ongevraagd advies mag geven, geef die 100 euro uit bij technische keukentening.nl en teken niet direct bij Akzent.
Ter informatie, ik heb het tijdspad hier op een rijtje gezet, dan kunnen anderen ook beoordelen (je refereert hier naar de keukenverkoper):
Ik vind het een erg vervelende situatie. Veel tijd gestoken in het proces, ook tevreden met het concept van die keuken bij Akzent, maar als ze al zo amateuristisch bezig zijn met de verkoop en tekening dan maak ik mij ernstig zorgen over de plaatsing en/of after care. Na 3 versies nog steeds geen correcte tekening. En nee, op mijn eiland en de plaatsing van het eiland is in al die tijd helemaal niets veranderd, dus echt zeer opmerkelijk.
Ben benieuwd of dit een juridisch gevecht gaat worden.
@_kilian_ bedankt voor deze toelichting, je hebt nu al meer gedeeld dan Akzent in 1.5 maand tijd.. Tegen mij zeggen ze gewoon 'wij hebben ook andere klanten'. Dan nog bizar dat niemand mij binnen Akzent kan helpen met een paar kleine aanpassingen/vragen. En wederom, geen een keer excuses gemaakt, alleen maar geirriteerd uitgevallen dat ik niet zo vaak moet mailen/bellen. Heel apart. Als ik je ongevraagd advies mag geven, geef die 100 euro uit bij technische keukentening.nl en teken niet direct bij Akzent.
Ter informatie, ik heb het tijdspad hier op een rijtje gezet, dan kunnen anderen ook beoordelen (je refereert hier naar de keukenverkoper):
Members only:
Alleen zichtbaar voor ingelogde gebruikers.
Inloggen
Ik vind het een erg vervelende situatie. Veel tijd gestoken in het proces, ook tevreden met het concept van die keuken bij Akzent, maar als ze al zo amateuristisch bezig zijn met de verkoop en tekening dan maak ik mij ernstig zorgen over de plaatsing en/of after care. Na 3 versies nog steeds geen correcte tekening. En nee, op mijn eiland en de plaatsing van het eiland is in al die tijd helemaal niets veranderd, dus echt zeer opmerkelijk.
Ben benieuwd of dit een juridisch gevecht gaat worden.
@Tiuri pfff wat een verhaal zeg. In ben met nog een andere partij bezig. Dit geeft die partij dan wel weer een streepje voor als ik jou ervaring zo lees.
Ja ervaring hier. Keuken is perfect gezet hier. Ze werken volgens mij met een vast scala aan ZZP’ers (dus ervaring wisselt mogelijk). Uiteindelijk zat er nog ergens een kras en miste er een onderdeel en kosten nog moeite zijn gespaard om dat op te lossen. Al met al erg tevreden.Freshnezz schreef op vrijdag 4 april 2025 @ 18:12:
We zijn geïnteresseerd in een nieuwe keuken van Bruynzeel maar als ik de reviews online mag geloven lijkt het één baggerzooi te zijn (met name bij aftersales)![]()
Ik vroeg mij af of hier mensen zijn die hier ervaring mee hebben?
dat zou bij https://primokeukens.nl/# moeten kunnenUltraInstinct schreef op maandag 31 maart 2025 @ 16:59:
Zijn er ook keukenleveranciers waar je kan betalen na leveren + montage? Wel eng om 20.000 euro te betalen 3 dagen voor levering..
/edit toch niet, je moet het volledige bedrag betalen
alleen geen grote aanbetaling vooraf dus.ARTIKEL 14 - De factuur
1. Afnemer ontvangt voorafgaand aan de uitvoering van de overeenkomst / het werk de volledige
factuur (100% van het totale orderbedrag) van ondernemer. Dit bedrag dient door de afnemer
volledig te zijn betaald in de week van de aflevering / oplevering.
[ Voor 39% gewijzigd door FMvdH op 05-04-2025 12:48 ]
Komt op hetzelfde neer, ik wil op dag van levering of erna betalen. Niet ervoorFMvdH schreef op zaterdag 5 april 2025 @ 11:47:
[...]
dat zou bij https://primokeukens.nl/# moeten kunnen
/edit toch niet, je moet het volledige bedrag betalen
[...]
alleen geen grote aanbetaling vooraf dus.
Het klopt wel dat er in Duitsland een behoorlijke griepgolf heerst. We hadden Nolte kleurstalen besteld, die er veel langer over deden dan beloofd. Toen we daarover mailden bleek dat een groot deel van de Nolte fabriek door de griep geveld was en dat bestellingen gewoon wat langer duurden._kilian_ schreef op vrijdag 4 april 2025 @ 18:44:
Ik ben momenteel ook met Akzent in gesprek, maar heb nog niks getekend. Heb contact met de eigenaar. In januari naar de showroom geweest. Daarna een heel duidelijke en uitgebreide offerte gehad, waarop precies gespecificeerd staat wat ze allemaal doen. Er werd daar toen ook echt goed geholpen en ze waren goed voorbereid. De prijs lijkt inderdaad ook heel scherp te zijn.
Heb ze afgelopen week gemaild met een paar pagina’s aan vragen en opmerkingen. Kreeg na een paar dagen een reactie dat ze last hebben van een aantal zieke collega’s en dat het daarom langer duurt om alles te beantwoorden en dat de reactie op mijn mail een paar dagen later zou komen. Op de toegezegde dag heb ik netjes de reactie gehad. We hebben vervolgens afgesproken een afspraak te maken om alles te bespreken. Die afspraak was ook snel gemaakt en staat nu in de agenda’s.
Dat de technische tekeningen pas volgen na tekenen vind ik inderdaad ook niet zo vreemd.
Wil trouwens de ervaring van @Tiuri niet bagataliseren. Dar klinkt gewoon allemaal niet OK, maar zou dus ook een ongelukkige samenloop van omstandigheden kunnen zijn.
In eerste instantie hadden we een eiland van 190 breed (2x90 lade en dan nog de stol) en dan hadden we een doorloop van 80cm. Onze huidige doorloop is dat ook. Maar inderdaad hebben we dat uiteindelijk toch veranderd naar een 170 breed blok en daarmee is de doorloop een meter geworden.TFDev schreef op vrijdag 4 april 2025 @ 09:08:
[...]
Mooie ruimte voor de keuken zo. Toch een vraag; wat is de doorloopruimte tussen de kastenwand en het eiland? Het openen van de oven (zeker de onderste) zorgt wel meteen voor het fors verkleinen van deze ruimte (denk ook aan de oven deels open laten staan voor afkoelen)
Ik zal zeker wat foto’s posten als de keuken geleverd en/of gemonteerd is!
Wij zijn druk bezig met keuzes maken voor een keuken in ons nieuwbouw appartement. Appartement is wat anders dan normaal omdat het 3 verdiepingen heeft, 5de, 6de en 7de verdieping. Onze ‘begane’ grond 12 meter lang en 5,5 meter breed. Met daarin een kleine hal/toilet en trap naar boven. Naast de trap willen we een kasten wand incl ovens, koelkast en vriezer. Deze wand willen we de hoek om laten lopen met daarin een ‘verborgen’ deur. Hoogte van de ruimte is ongeveer 2,75 meter. Daarnaast een ruim kookeiland (er is geen andere optie dan een eiland omdat de aanvoer/afvoer etc al bepaald zijn). Kookeiland wordt 4,20 meter lang en 1,1 meter breed.
Helaas zit er nog een pilaar die niet echt handig uitkomt in de keuken maar waar we helaas aan vastzitten (voor je het je afvraagt, oorspronkelijk was er een toilet en hal naast de trap maar die hebben we weg laten halen omdat we dit heel onlogisch vonden).
De begane grond wordt voor ons 1 grote ‘woonkeuken’ dus naast de keuken komt er in de open ruimte die overblijft naast het eiland/kastenwand (ongeveer 5x5,5 meter) alleen een grote eettafel.
Vooral vanwege de kastenwand, waar nog wat handwerk bij komt kijken rondom de trap en onze aversie tegen de standaard keuken zaken zijn we uitgekomen bij een klein zaakje in Rotterdam (www.jacobconcepts.nl).
Onderstaande offerte heeft misschien nog wat tweaks nodig, bijvoorbeeld de Bora Pro kan vervangen worden door de Novy easy prestige (overigens is recirculatie enige optie in de woning). Alle kasten worden vervaardigd uit meubelpaneelplaat van 18 mm dik met geschroefde achterwanden (geen boord), door NL meubel maker, de llades zijn van het merk Blum, uit de Legrabox-collectie. Het blad van het eiland, en koffie bar, wordt op locatie gemaakt (Terrazo) omdat we het uit 1 stuk willen hebben en geen naden. Het eiland komt op een frame met poten.
Apparatuur kunnen we nog alle kanten mee op, kunnen we ook zelf bestellen en door hen laten plaatsen, alleen de kookplaat keuze is belangrijk vanwege het blad wat natuurlijk gemaakt moet worden. Alle vrijheid vanuit de keuken zaak en geen verplichting of beperking in wat we willen. Voor de apparatuur hebben we nu in totaal EUR 15.500,— in de offerte staan (grote koelkast, grote vriezer, oven, combi magnetron, vaatwasser, bora professional, Cooker (combi & cube))
De volledige offerte is nu ongeveer EUR 60k en dat vinden we nog vrij hoog, ben benieuwd wat jullie mening is over de prijs, erg hoog of logisch gezien de materiaal en product keuze?
:strip_exif()/f/image/Qgk4My9gNpQRL5fJL6aHL34v.jpg?f=fotoalbum_large)
:strip_exif()/f/image/c1m3RRTneNfznEnxOyTSA6Si.jpg?f=fotoalbum_large)
:strip_exif()/f/image/e6qdrgmfFjbDP8la2Aj7FzOr.jpg?f=fotoalbum_large)
:strip_exif()/f/image/lQFkA0tx31BC5kPTfA7JLMJg.jpg?f=fotoalbum_large)
Helaas zit er nog een pilaar die niet echt handig uitkomt in de keuken maar waar we helaas aan vastzitten (voor je het je afvraagt, oorspronkelijk was er een toilet en hal naast de trap maar die hebben we weg laten halen omdat we dit heel onlogisch vonden).
De begane grond wordt voor ons 1 grote ‘woonkeuken’ dus naast de keuken komt er in de open ruimte die overblijft naast het eiland/kastenwand (ongeveer 5x5,5 meter) alleen een grote eettafel.
Vooral vanwege de kastenwand, waar nog wat handwerk bij komt kijken rondom de trap en onze aversie tegen de standaard keuken zaken zijn we uitgekomen bij een klein zaakje in Rotterdam (www.jacobconcepts.nl).
Onderstaande offerte heeft misschien nog wat tweaks nodig, bijvoorbeeld de Bora Pro kan vervangen worden door de Novy easy prestige (overigens is recirculatie enige optie in de woning). Alle kasten worden vervaardigd uit meubelpaneelplaat van 18 mm dik met geschroefde achterwanden (geen boord), door NL meubel maker, de llades zijn van het merk Blum, uit de Legrabox-collectie. Het blad van het eiland, en koffie bar, wordt op locatie gemaakt (Terrazo) omdat we het uit 1 stuk willen hebben en geen naden. Het eiland komt op een frame met poten.
Apparatuur kunnen we nog alle kanten mee op, kunnen we ook zelf bestellen en door hen laten plaatsen, alleen de kookplaat keuze is belangrijk vanwege het blad wat natuurlijk gemaakt moet worden. Alle vrijheid vanuit de keuken zaak en geen verplichting of beperking in wat we willen. Voor de apparatuur hebben we nu in totaal EUR 15.500,— in de offerte staan (grote koelkast, grote vriezer, oven, combi magnetron, vaatwasser, bora professional, Cooker (combi & cube))
De volledige offerte is nu ongeveer EUR 60k en dat vinden we nog vrij hoog, ben benieuwd wat jullie mening is over de prijs, erg hoog of logisch gezien de materiaal en product keuze?
:strip_exif()/f/image/Qgk4My9gNpQRL5fJL6aHL34v.jpg?f=fotoalbum_large)
:strip_exif()/f/image/c1m3RRTneNfznEnxOyTSA6Si.jpg?f=fotoalbum_large)
:strip_exif()/f/image/e6qdrgmfFjbDP8la2Aj7FzOr.jpg?f=fotoalbum_large)
:strip_exif()/f/image/lQFkA0tx31BC5kPTfA7JLMJg.jpg?f=fotoalbum_large)
Leuk topic!
Wij zijn ook aan het kijken naar een keuken en zijn op basis van dit topic langs Kvik Cruquius, Superkeukens en een lokaal bedrijfje (Deviescookcompany) geweest.
We hebben van Kvik een offerte, maar vinden het enorm tegenvallen qua prijs, incl montage 35k). Superkeukens kwam op 21k uit, incl. Bora kookplaat en wasbak maar nog exclusief de rest (offerte nog niet binnen). Volgens de Ikeaplanner kwamen we uit op ongeveer 13,5k ter referentie.
Het lokale bedrijf heeft luxere merken, zoals Leicht en Neff en kan iets moois neerzetten voor 30k geeft hij aan. Ze komen alleen niet vooraf vrijblijvend met een offerte. Dat kost € 900. Het verbaast me vooral dat zij onder Kvik zitten qua prijs.
Kvik en Superkeukens werken met netto prijzen, dus dit is wel een beetje wat het is bij hen. We zijn wel benieuwd naar jullie visie over de prijs etc. We willen ook nog even naar Bemmel&Kroon voor een Next125 keuken, maar ben bang dat dat richting de 50k gaat als ik dit zo zie.
Afmetingen zijn achter 475cmx60cm en het eiland is 280cmx120cm. Ruimte is 18mx5m en 280cm hoog.
De foto met de lichtere frontjes is van Superkeukens en de donkerdere van Kvik.
/f/image/UYsfCFqRKfojQq6CfVIFIFgR.png?f=fotoalbum_large)
:strip_exif()/f/image/gJvMyjuZrAxKGhsherKYdb8f.jpg?f=fotoalbum_large)
Wij zijn ook aan het kijken naar een keuken en zijn op basis van dit topic langs Kvik Cruquius, Superkeukens en een lokaal bedrijfje (Deviescookcompany) geweest.
We hebben van Kvik een offerte, maar vinden het enorm tegenvallen qua prijs, incl montage 35k). Superkeukens kwam op 21k uit, incl. Bora kookplaat en wasbak maar nog exclusief de rest (offerte nog niet binnen). Volgens de Ikeaplanner kwamen we uit op ongeveer 13,5k ter referentie.
Het lokale bedrijf heeft luxere merken, zoals Leicht en Neff en kan iets moois neerzetten voor 30k geeft hij aan. Ze komen alleen niet vooraf vrijblijvend met een offerte. Dat kost € 900. Het verbaast me vooral dat zij onder Kvik zitten qua prijs.
Kvik en Superkeukens werken met netto prijzen, dus dit is wel een beetje wat het is bij hen. We zijn wel benieuwd naar jullie visie over de prijs etc. We willen ook nog even naar Bemmel&Kroon voor een Next125 keuken, maar ben bang dat dat richting de 50k gaat als ik dit zo zie.
Afmetingen zijn achter 475cmx60cm en het eiland is 280cmx120cm. Ruimte is 18mx5m en 280cm hoog.
De foto met de lichtere frontjes is van Superkeukens en de donkerdere van Kvik.
/f/image/UYsfCFqRKfojQq6CfVIFIFgR.png?f=fotoalbum_large)
:strip_exif()/f/image/gJvMyjuZrAxKGhsherKYdb8f.jpg?f=fotoalbum_large)
@Barendv Weet niet of je per se iets wilt wat in de omgeving van Rotterdam zit. Woon daar trouwens zelf ook. Ben zelf ook nog bezig met het uitzoeken van een keuken. Zijn bij de nodige zaken al langs geweest. Bij ons staat er nog een partij (zie A hieronder) nu op de short list met laatste twee kandidaten. We zijn ook bij ze langs geweest. Ze hebben een indrukwekkende fabriek waar ze alles zelf maken. Ze werken door heel Nederland. Qua prijs zitten ze in mijn geval op het niveau van een Duitse partij (zie B hieronder) die een Rotpunkt (standaard) keuken zou leveren. Wel met allemaal Neff apparatuur en houtfineer fronten.
Ik vind de communicatie tot nu toe altijd heel prettig. Ik zou ze eens bellen en uitleggen wat je wilt. Ik heb dat ook gedaan en gevraagd of ze een range konden aangeven waarvoor ze dachten de keuken te kunnen maken. Die had ik na een paar dagen en dag wat interessant genoeg om naar Budel af te reizen.
Ik vind de communicatie tot nu toe altijd heel prettig. Ik zou ze eens bellen en uitleggen wat je wilt. Ik heb dat ook gedaan en gevraagd of ze een range konden aangeven waarvoor ze dachten de keuken te kunnen maken. Die had ik na een paar dagen en dag wat interessant genoeg om naar Budel af te reizen.
Members only:
Alleen zichtbaar voor ingelogde gebruikers.
Inloggen
@Tiuri veel van die zaken werken met verkopers die op commissie werken. Je kunt dus een top ervaring hebben met de ene verkoper en een heel slechte ervaring met de andere. Helaas.
WP: Toshiba Estia 8kW split HWT-801H(R)W-E + HWT-1101 binnenunit met 300 liter SWW tank. PV: 3 strings, totaal 12600 Wp, 15 kWh thuisaccu
Members only: title
Alleen zichtbaar voor ingelogde gebruikers.
Inloggen
Ter verduidelijking, dit is allemaal contact met dezelfde verkoper geweest.Blihi schreef op zondag 6 april 2025 @ 14:43:
@Tiuri veel van die zaken werken met verkopers die op commissie werken. Je kunt dus een top ervaring hebben met de ene verkoper en een heel slechte ervaring met de andere. Helaas.
Members only:
Akzent wilde mij niet aan een andere verkoper koppelen voor hulp, misschien wel door wat jij hier beschrijft. Zodra er concreet wat uitkomt met Akzent rapporteer ik hier nog wel terug.
Alleen zichtbaar voor ingelogde gebruikers.
Inloggen
Heb je ook elders gekeken en daar een offerte opgevraagd voor iets soortgelijks? 60.000 is wel abnormaal veel geld imo... 3400 nog wat ook voor montageBarendv schreef op zondag 6 april 2025 @ 11:02:
Wij zijn druk bezig met keuzes maken voor een keuken in ons nieuwbouw appartement. Appartement is wat anders dan normaal omdat het 3 verdiepingen heeft, 5de, 6de en 7de verdieping. Onze ‘begane’ grond 12 meter lang en 5,5 meter breed. Met daarin een kleine hal/toilet en trap naar boven. Naast de trap willen we een kasten wand incl ovens, koelkast en vriezer. Deze wand willen we de hoek om laten lopen met daarin een ‘verborgen’ deur. Hoogte van de ruimte is ongeveer 2,75 meter. Daarnaast een ruim kookeiland (er is geen andere optie dan een eiland omdat de aanvoer/afvoer etc al bepaald zijn). Kookeiland wordt 4,20 meter lang en 1,1 meter breed.
Helaas zit er nog een pilaar die niet echt handig uitkomt in de keuken maar waar we helaas aan vastzitten (voor je het je afvraagt, oorspronkelijk was er een toilet en hal naast de trap maar die hebben we weg laten halen omdat we dit heel onlogisch vonden).
De begane grond wordt voor ons 1 grote ‘woonkeuken’ dus naast de keuken komt er in de open ruimte die overblijft naast het eiland/kastenwand (ongeveer 5x5,5 meter) alleen een grote eettafel.
Vooral vanwege de kastenwand, waar nog wat handwerk bij komt kijken rondom de trap en onze aversie tegen de standaard keuken zaken zijn we uitgekomen bij een klein zaakje in Rotterdam (www.jacobconcepts.nl).
Onderstaande offerte heeft misschien nog wat tweaks nodig, bijvoorbeeld de Bora Pro kan vervangen worden door de Novy easy prestige (overigens is recirculatie enige optie in de woning). Alle kasten worden vervaardigd uit meubelpaneelplaat van 18 mm dik met geschroefde achterwanden (geen boord), door NL meubel maker, de llades zijn van het merk Blum, uit de Legrabox-collectie. Het blad van het eiland, en koffie bar, wordt op locatie gemaakt (Terrazo) omdat we het uit 1 stuk willen hebben en geen naden. Het eiland komt op een frame met poten.
Apparatuur kunnen we nog alle kanten mee op, kunnen we ook zelf bestellen en door hen laten plaatsen, alleen de kookplaat keuze is belangrijk vanwege het blad wat natuurlijk gemaakt moet worden. Alle vrijheid vanuit de keuken zaak en geen verplichting of beperking in wat we willen. Voor de apparatuur hebben we nu in totaal EUR 15.500,— in de offerte staan (grote koelkast, grote vriezer, oven, combi magnetron, vaatwasser, bora professional, Cooker (combi & cube))
De volledige offerte is nu ongeveer EUR 60k en dat vinden we nog vrij hoog, ben benieuwd wat jullie mening is over de prijs, erg hoog of logisch gezien de materiaal en product keuze?
[Afbeelding]
[Afbeelding]
[Afbeelding]
[Afbeelding]
[Afbeelding]
Nog niet dat gaan we komende tijd doen. Zijn wel bij een paar van de ketens geweest maar daar was het vaak al gelijk een probleem om een aantal dingen op maat te laten maken bij de kastenwand. 60k is veel, heel veel. Maar een aantal zaken zoals de Bora professional en een terrazo blad van 420x110 hakt er ook wel gelijk in…UltraInstinct schreef op zondag 6 april 2025 @ 18:25:
[...]
Heb je ook elders gekeken en daar een offerte opgevraagd voor iets soortgelijks? 60.000 is wel abnormaal veel geld imo... 3400 nog wat ook voor montage
Het kastwerk is echt veel te duur. Zo duur zelfs dat ik ze zou bedanken en er geen voet meer binnen zou zetten. Het merk van de keuken is overigens MadebyDas dus je kan redelijk makkelijk een vergelijk laten opstellen.Barendv schreef op zondag 6 april 2025 @ 11:02:
Wij zijn druk bezig met keuzes maken voor een keuken in ons nieuwbouw appartement. Appartement is wat anders dan normaal omdat het 3 verdiepingen heeft, 5de, 6de en 7de verdieping. Onze ‘begane’ grond 12 meter lang en 5,5 meter breed. Met daarin een kleine hal/toilet en trap naar boven. Naast de trap willen we een kasten wand incl ovens, koelkast en vriezer. Deze wand willen we de hoek om laten lopen met daarin een ‘verborgen’ deur. Hoogte van de ruimte is ongeveer 2,75 meter. Daarnaast een ruim kookeiland (er is geen andere optie dan een eiland omdat de aanvoer/afvoer etc al bepaald zijn). Kookeiland wordt 4,20 meter lang en 1,1 meter breed.
Helaas zit er nog een pilaar die niet echt handig uitkomt in de keuken maar waar we helaas aan vastzitten (voor je het je afvraagt, oorspronkelijk was er een toilet en hal naast de trap maar die hebben we weg laten halen omdat we dit heel onlogisch vonden).
De begane grond wordt voor ons 1 grote ‘woonkeuken’ dus naast de keuken komt er in de open ruimte die overblijft naast het eiland/kastenwand (ongeveer 5x5,5 meter) alleen een grote eettafel.
Vooral vanwege de kastenwand, waar nog wat handwerk bij komt kijken rondom de trap en onze aversie tegen de standaard keuken zaken zijn we uitgekomen bij een klein zaakje in Rotterdam (www.jacobconcepts.nl).
Onderstaande offerte heeft misschien nog wat tweaks nodig, bijvoorbeeld de Bora Pro kan vervangen worden door de Novy easy prestige (overigens is recirculatie enige optie in de woning). Alle kasten worden vervaardigd uit meubelpaneelplaat van 18 mm dik met geschroefde achterwanden (geen boord), door NL meubel maker, de llades zijn van het merk Blum, uit de Legrabox-collectie. Het blad van het eiland, en koffie bar, wordt op locatie gemaakt (Terrazo) omdat we het uit 1 stuk willen hebben en geen naden. Het eiland komt op een frame met poten.
Apparatuur kunnen we nog alle kanten mee op, kunnen we ook zelf bestellen en door hen laten plaatsen, alleen de kookplaat keuze is belangrijk vanwege het blad wat natuurlijk gemaakt moet worden. Alle vrijheid vanuit de keuken zaak en geen verplichting of beperking in wat we willen. Voor de apparatuur hebben we nu in totaal EUR 15.500,— in de offerte staan (grote koelkast, grote vriezer, oven, combi magnetron, vaatwasser, bora professional, Cooker (combi & cube))
De volledige offerte is nu ongeveer EUR 60k en dat vinden we nog vrij hoog, ben benieuwd wat jullie mening is over de prijs, erg hoog of logisch gezien de materiaal en product keuze?
[Afbeelding]
[Afbeelding]
[Afbeelding]
[Afbeelding]
[Afbeelding]
Untappd: Kapitein_Merijn
Je heb duurdere smaak dan gemiddeld, meer en duurdere apparatuur en maatwerk... Dus ja, duurder is niet gek, maar 60k is wel erg veel.Barendv schreef op zondag 6 april 2025 @ 19:15:
[...]
Nog niet dat gaan we komende tijd doen. Zijn wel bij een paar van de ketens geweest maar daar was het vaak al gelijk een probleem om een aantal dingen op maat te laten maken bij de kastenwand. 60k is veel, heel veel. Maar een aantal zaken zoals de Bora professional en een terrazo blad van 420x110 hakt er ook wel gelijk in…
Ik zou eerder richting 45-50k denken.
Voor deze bedragen zou ik zeker bij een meubel maker gaan kijken. Als die aan het bouwen is, maakt standaard/maatwerk weinig uit. Los van standaard kastjes die hij kan inkopen.
Ik vermoed dat een meubelmaker dit voor minder doet, beter maatwerk levert en het nog een klasse beter kan doen.
If I agreed with you, we'd both be wrong.
Het is geen kleine keuken en je hebt aardig wat breedte, maar het is wel recht, geen rare bochten, geen koof en geen gekke hoeken. Dat maakt het makkelijk bouwen / plaatsen en amper maatwerk / passtukken.Aaron89d schreef op zondag 6 april 2025 @ 12:18:
Leuk topic!
Wij zijn ook aan het kijken naar een keuken en zijn op basis van dit topic langs Kvik Cruquius, Superkeukens en een lokaal bedrijfje (Deviescookcompany) geweest.
We hebben van Kvik een offerte, maar vinden het enorm tegenvallen qua prijs, incl montage 35k). Superkeukens kwam op 21k uit, incl. Bora kookplaat en wasbak maar nog exclusief de rest (offerte nog niet binnen). Volgens de Ikeaplanner kwamen we uit op ongeveer 13,5k ter referentie.
Het lokale bedrijf heeft luxere merken, zoals Leicht en Neff en kan iets moois neerzetten voor 30k geeft hij aan. Ze komen alleen niet vooraf vrijblijvend met een offerte. Dat kost € 900. Het verbaast me vooral dat zij onder Kvik zitten qua prijs.
Kvik en Superkeukens werken met netto prijzen, dus dit is wel een beetje wat het is bij hen. We zijn wel benieuwd naar jullie visie over de prijs etc. We willen ook nog even naar Bemmel&Kroon voor een Next125 keuken, maar ben bang dat dat richting de 50k gaat als ik dit zo zie.
Afmetingen zijn achter 475cmx60cm en het eiland is 280cmx120cm. Ruimte is 18mx5m en 280cm hoog.
De foto met de lichtere frontjes is van Superkeukens en de donkerdere van Kvik.
[Afbeelding]
[Afbeelding]
[Afbeelding]
Dan vind ik 35k aan de prijs.
AEG is goed, maar absolute top, dat maakt wat mij betreft die 35k zeker 7k te veel, misschien wel 8k of 9k minder.
If I agreed with you, we'd both be wrong.
Zijn er ook mensen die alles zelf hebben besteld en hun keuken via een zzp'er hebben laten installeren?
Ik overweeg om een technische tekening te laten maken en, zodra mijn appartement is opgeleverd, via Thuiskeukens alle kasten en onderdelen te bestellen (met advies van hun verkoper). De inbouwapparatuur en het werkblad wil ik los aanschaffen, en de volledige installatie vervolgens laten uitvoeren door een zzp'er.
Ik overweeg om een technische tekening te laten maken en, zodra mijn appartement is opgeleverd, via Thuiskeukens alle kasten en onderdelen te bestellen (met advies van hun verkoper). De inbouwapparatuur en het werkblad wil ik los aanschaffen, en de volledige installatie vervolgens laten uitvoeren door een zzp'er.
[ Voor 23% gewijzigd door UltraInstinct op 07-04-2025 10:54 ]
Ja zoek in het topic en je vind genoeg ervaringen hiermee. Heb het zelf ook gedaan en ga het weer doen. Scheelt gewoon heel veel geld.UltraInstinct schreef op maandag 7 april 2025 @ 10:53:
Zijn er ook mensen die alles zelf hebben besteld en hun keuken via een zzp'er hebben laten installeren?
Ik overweeg om een technische tekening te laten maken en, zodra mijn appartement is opgeleverd, via Thuiskeukens alle kasten en onderdelen te bestellen (met advies van hun verkoper). De inbouwapparatuur en het werkblad wil ik los aanschaffen, en de volledige installatie vervolgens laten uitvoeren door een zzp'er.
Hou wel rekening mee dat als je een keuken hebt met een hoek erin, ze het werkblad eerst willen inmeten en dan pas plaatsen, dat betekende bij ons een keuken waar het blad pas later op kwam. Bij nieuwbouw maakt dat vaak niet uit, omdat je toch niet gelijk erin gaat, maar dat is het enige echte nadeel. Verder moet je meer zelf uitzoeken, maar als je ziet hoeveel geld het scheelt is dat snel verdiend.
Goed om te horen, blijft lastig in te schatten hoe betrouwbaar reviews zijn, bij zowel goede als slechte reviews.SL65 schreef op zaterdag 5 april 2025 @ 07:59:
[...]
Ja ervaring hier. Keuken is perfect gezet hier. Ze werken volgens mij met een vast scala aan ZZP’ers (dus ervaring wisselt mogelijk). Uiteindelijk zat er nog ergens een kras en miste er een onderdeel en kosten nog moeite zijn gespaard om dat op te lossen. Al met al erg tevreden.
Meeste klachten zijn het laks zijn met zaken als verkeerde/beschadigde panelen waar het maanden kan duren tot het opgelost is (als het al opgelost wordt), maar dat is bij jou dus goed afgehandeld.
Ja de installateur gaf aan dat er nog zo’n twee weken na de installatie was om alles te melden (werd dan sowieso kosteloos opgelost). Hij had zelf ook al even gekeken of hij iets zag, maar door het vele klussen in huis zie je niet alles direct in één keer. Vanuit Bruynzeel werd ik ook gebeld binnen twee weken om de installatie en de ervaring door te spreken. Missend onderdeel was iets wat vooraf al bekend was omdat ik de inbouw verlichting anders wilde als standaard (draad weggewerkt zonder kabelgoot). Ik vond het goed geregeld.Freshnezz schreef op maandag 7 april 2025 @ 12:34:
[...]
Goed om te horen, blijft lastig in te schatten hoe betrouwbaar reviews zijn, bij zowel goede als slechte reviews.
Meeste klachten zijn het laks zijn met zaken als verkeerde/beschadigde panelen waar het maanden kan duren tot het opgelost is (als het al opgelost wordt), maar dat is bij jou dus goed afgehandeld.
[ Voor 7% gewijzigd door SL65 op 07-04-2025 16:09 ]
Zijn er mensen met ervaring met een AEG SaphirMatt kookplaat? Wij zijn dat serieus aan het overwegen, maar ook wel benieuwd naar mensen die er daadwerkelijk ervaring mee hebben.
En mochten mensen nog wat ideeën hebben voor speakers in de keuken Praktische / creatieve opties voor speakers in nieuwe keuken
En mochten mensen nog wat ideeën hebben voor speakers in de keuken Praktische / creatieve opties voor speakers in nieuwe keuken
Wij hadden jaren terug eenzelfde ervaring met de projectleverancier vanuit de nieuwbouw. Wij kregen steeds ontwijkende antwoorden (ja, dat kan wel, maar dat is heel duur), foute tekeningen, foute offertes (oh ja, dat was ik vergeten, ja, dan wordt de keuken wel duurder hoor), moesten om de haverklap terug en hebben uiteindelijk de keuken niet bij die zaak gekocht.Tiuri schreef op zondag 6 april 2025 @ 15:38:
[...]
Ter verduidelijking, dit is allemaal contact met dezelfde verkoper geweest.
***members only***
Akzent wilde mij niet aan een andere verkoper koppelen voor hulp, misschien wel door wat jij hier beschrijft. Zodra er concreet wat uitkomt met Akzent rapporteer ik hier nog wel terug.
Buren hadden alleen maar positieve ervaringen. Tekeningen klopten, offertes klopten en ze hoefden niet steeds terug. Dezelfde zaak, maar een andere verkoper.
WP: Toshiba Estia 8kW split HWT-801H(R)W-E + HWT-1101 binnenunit met 300 liter SWW tank. PV: 3 strings, totaal 12600 Wp, 15 kWh thuisaccu
Ik probeer te zoeken op 'keuken zelf plaatsen' maar dan krijg ik andere hits...el flaco schreef op maandag 7 april 2025 @ 11:04:
[...]
Ja zoek in het topic en je vind genoeg ervaringen hiermee. Heb het zelf ook gedaan en ga het weer doen. Scheelt gewoon heel veel geld.
Hou wel rekening mee dat als je een keuken hebt met een hoek erin, ze het werkblad eerst willen inmeten en dan pas plaatsen, dat betekende bij ons een keuken waar het blad pas later op kwam. Bij nieuwbouw maakt dat vaak niet uit, omdat je toch niet gelijk erin gaat, maar dat is het enige echte nadeel. Verder moet je meer zelf uitzoeken, maar als je ziet hoeveel geld het scheelt is dat snel verdiend.
Had alvast gekeken naar keukenmonteurs en gelijk een die zegt dat die de inductie vanwege 2-3 punts aansluiting niet mag plaatsen en ook het werkblad niet. Maar vraagt wel 1800 euro lol...
Zijn er 'standaard' keukenzaken die ronde eilanden aanbieden, met rond blad en eventueel ronde kastjes, danwel open of dicht? Ik vind wel veel inspiratieplaatjes met ronde eilanden, maar lijken niet standaard te worden aangeboden door keukenboeren. Of ben ik hiervoor gebonden aan een maatwerk keuken?
Een keuken plaatsen is echt niet ingewikkeld. Wat je nodig hebt is een paar goede waterpassen, lijmklemmen (liefst kleine snelklemmen, dus niet die draaidingen) en basic klusskills. Een laser-waterpas kan helpen als de vloer van de woning niet helemaal waterpas is.UltraInstinct schreef op dinsdag 8 april 2025 @ 12:49:
[...]
Ik probeer te zoeken op 'keuken zelf plaatsen' maar dan krijg ik andere hits...
Had alvast gekeken naar keukenmonteurs en gelijk een die zegt dat die de inductie vanwege 2-3 punts aansluiting niet mag plaatsen en ook het werkblad niet. Maar vraagt wel 1800 euro lol...
Maar, je moet er wel een beetje gevoel voor hebben. Als het de eerste klus is, zou ik het zeker samen met een ervaren klusser doen.
Werkblad inderdaad pas bestellen nadat de keuken staat, Je kunt tijdelijk een paar OSB platen als aanrecht gebruiken. Dat kost je de kop niet en dan weet je zeker dat alles past.
WP: Toshiba Estia 8kW split HWT-801H(R)W-E + HWT-1101 binnenunit met 300 liter SWW tank. PV: 3 strings, totaal 12600 Wp, 15 kWh thuisaccu
Ik heb hier een slechte ervaring mee in Rotterdam KL. Vervelende verkooptactieken. We gingen op een vrijdagavond. Ze hebben ons expres lang laten wachten op de tekeningen en prijs tot zelfs na sluitingstijd met de hoop dat je een schuldig / onbehagelijk gevoel krijgt om dan toch maar te tekenen. We waren nog de enige in de winkel. Toen we over de prijs begonnen was het allemaal moeilijk, moest de baas komen en kregen we discussie over de 'kwaliteit'.UltraInstinct schreef op zondag 6 april 2025 @ 14:47:
***members only***
Ik zou daar geen keuken kopen.
Ik ga nog een review online plaatsen. Heb mijn tijd voor niks zitten verspillen, hij zou me de offerte sturen. Als ik niks hoor dan zal ik dat ook beoordelen. Overigens was het gesprek met de baas zelf... wat een praktijken zeg, gaat die uit zn hoofd prijzen zitten berekenen.Artopaper schreef op dinsdag 8 april 2025 @ 14:41:
[...]
Ik heb hier een slechte ervaring mee in Rotterdam KL. Vervelende verkooptactieken. We gingen op een vrijdagavond. Ze hebben ons expres lang laten wachten op de tekeningen en prijs tot zelfs na sluitingstijd met de hoop dat je een schuldig / onbehagelijk gevoel krijgt om dan toch maar te tekenen. We waren nog de enige in de winkel. Toen we over de prijs begonnen was het allemaal moeilijk, moest de baas komen en kregen we discussie over de 'kwaliteit'.
Ik zou daar geen keuken kopen.
Daar is op zich natuurlijk niks mis mee. Jij zit daar om een globale indicatie te krijgen en hij werkt dat daarna uit in een offerte. Iemand die dagdagelijks met prijzen van kasten en werkbladen werkt, weet die heus wel uit zijn hoofd. Misschien ouderwets, maar in een computer kun je ook iets verkeerd aanklikken. En sommigen tekenen liever dan met vaste computermodellen te werken. Ik zou je aanraden daar wat minder zwaar aan te tillen en te kijken naar het resultaat. Als dat niet bevalt, ga je ergens anders heen.UltraInstinct schreef op dinsdag 8 april 2025 @ 14:51:
[...]
wat een praktijken zeg, gaat die uit zn hoofd prijzen zitten berekenen.
Nee, daar is wél wat mis mee. Er zit namelijk een duidelijke tactiek achter: zoveel mogelijk winst maken.Toke_gt schreef op dinsdag 8 april 2025 @ 15:19:
[...]
Daar is op zich natuurlijk niks mis mee. Jij zit daar om een globale indicatie te krijgen en hij werkt dat daarna uit in een offerte. Iemand die dagdagelijks met prijzen van kasten en werkbladen werkt, weet die heus wel uit zijn hoofd. Misschien ouderwets, maar in een computer kun je ook iets verkeerd aanklikken. En sommigen tekenen liever dan met vaste computermodellen te werken. Ik zou je aanraden daar wat minder zwaar aan te tillen en te kijken naar het resultaat. Als dat niet bevalt, ga je ergens anders heen.
Het maakt niet uit welk budget ik aangeef — het zou altijd nét te laag zijn. En dan ineens komen er 'speciale kortingen' als ik vandaag nog zou tekenen. Maar zodra ik zei dat ik vandaag niet teken, veranderde zijn hele houding.
Ik wil exacte bedragen, netjes uitgerekend op de computer. Niet zomaar uit z’n hoofd, waarbij er misschien duizenden euro’s verschil in zit. Als de computer bijvoorbeeld 14.000 euro aangeeft, en hij roept uit z’n hoofd 16.000 euro, en ik ga daarmee akkoord... Wat denk je dat hij dan doet? Precies — de prijs aanpassen van 14.000 naar 16.000 euro, want ik ben er toch mee akkoord gegaan.
[ Voor 14% gewijzigd door UltraInstinct op 08-04-2025 15:23 ]
Ik denk sowieso dat je nog niet helemaal door hebt hoe het spelletje werkt. Want in 9 van de 10 gevallen zal de computer duurder uitvallen dan wat hij aangaf en is het zogenaamd in jouw voordeel. Die computer bevat de door hun ingestelde prijzen. Daarnaast is dat hele softwarepakket er op gericht de klant te misleiden. "We kunnen wel extra korting regelen, maar als ik de prijs aanpas krijg ik een waarschuwing dat er ik onder de minimum marge kom, maar voor deze keer maak ik een uitzondering". Dat soort praktijken. De computer hier als heilig verklaren slaat nergens op, want die haalt hetzelfde trucje met je uit als de verkoper mondelings doet.UltraInstinct schreef op dinsdag 8 april 2025 @ 15:22:
[...]
Nee, daar is wél wat mis mee. Er zit namelijk een duidelijke tactiek achter: zoveel mogelijk winst maken.
Het maakt niet uit welk budget ik aangeef — het zou altijd nét te laag zijn. En dan ineens komen er 'speciale kortingen' als ik vandaag nog zou tekenen. Maar zodra ik zei dat ik vandaag niet teken, veranderde zijn hele houding.
Ik wil exacte bedragen, netjes uitgerekend op de computer. Niet zomaar uit z’n hoofd, waarbij er misschien duizenden euro’s verschil in zit. Als de computer bijvoorbeeld 14.000 euro aangeeft, en hij roept uit z’n hoofd 16.000 euro, en ik ga daarmee akkoord... Wat denk je dat hij dan doet? Precies — de prijs aanpassen van 14.000 naar 16.000 euro, want ik ben er toch mee akkoord gegaan.
I haven’t slept for three days, because that would be too long.
Is het tegenwoordig nog steeds zo dat je in SIMAR kunt zien hoeveel marge ze pakken dmv de code linksonder te lezen?miicker schreef op dinsdag 8 april 2025 @ 15:27:
[...]
Ik denk sowieso dat je nog niet helemaal door hebt hoe het spelletje werkt. Want in 9 van de 10 gevallen zal de computer duurder uitvallen dan wat hij aangaf en is het zogenaamd in jouw voordeel. Die computer bevat de door hun ingestelde prijzen. Daarnaast is dat hele softwarepakket er op gericht de klant te misleiden. "We kunnen wel extra korting regelen, maar als ik de prijs aanpas krijg ik een waarschuwing dat er ik onder de minimum marge kom, maar voor deze keer maak ik een uitzondering". Dat soort praktijken. De computer hier als heilig verklaren slaat nergens op, want die haalt hetzelfde trucje met je uit als de verkoper mondelings doet.
Gisteren kwam in Kopen zonder kijken een rond eiland voorbij. Zij werken altijd met een vaste sponsor, uit mijn hoofd Keukensale. Ik denk dat het bij deze formule dan niet om maatwerk gaat. Mooie ronde deuren. Volgens mij heeft Superkeukens ook een "ronde" keuken in hun assortiment. Inderdaad geheel maatwerk met ronde hoeken is ook mogelijk.bkkrdbkstn schreef op dinsdag 8 april 2025 @ 13:25:
Zijn er 'standaard' keukenzaken die ronde eilanden aanbieden, met rond blad en eventueel ronde kastjes, danwel open of dicht? Ik vind wel veel inspiratieplaatjes met ronde eilanden, maar lijken niet standaard te worden aangeboden door keukenboeren. Of ben ik hiervoor gebonden aan een maatwerk keuken?
ZH, hoekwoning, 120 m3, bouwjaar 1993, enkele Quatt, hr++ glas, radiatoren, op planning na isoleren vloer, zonnepanelen, plat dak, snel warm is huis.
Je gaat pas akkoord met de offerte die hij stuurt. Je komt op mij nogal achterdochtig over. Nu is enig wantrouwen in deze sector heel gezond, maar gezien de inhoud van jouw posts zit jij jezelf ermee in de weg. Laat mensen een offerte maken en kijk of jij ermee akkoord bent. Hoe die offerte tot stand komt, computer of handwerk, maakt niet uit, de computer heeft niet per se gelijk en rekent de korting niet mee. Dus het is maar de vraag of dat een betrouwbaarder beeld geeft.UltraInstinct schreef op dinsdag 8 april 2025 @ 15:22:
[...]
Nee, daar is wél wat mis mee. Er zit namelijk een duidelijke tactiek achter: zoveel mogelijk winst maken.
Het maakt niet uit welk budget ik aangeef — het zou altijd nét te laag zijn. En dan ineens komen er 'speciale kortingen' als ik vandaag nog zou tekenen. Maar zodra ik zei dat ik vandaag niet teken, veranderde zijn hele houding.
Ik wil exacte bedragen, netjes uitgerekend op de computer. Niet zomaar uit z’n hoofd, waarbij er misschien duizenden euro’s verschil in zit. Als de computer bijvoorbeeld 14.000 euro aangeeft, en hij roept uit z’n hoofd 16.000 euro, en ik ga daarmee akkoord... Wat denk je dat hij dan doet? Precies — de prijs aanpassen van 14.000 naar 16.000 euro, want ik ben er toch mee akkoord gegaan.
Eens met @Toke_gt. Wat maakt het uit hoeveel marge de keukenzaak heeft? Dat boeit toch niet? Je vraagt bij de Albert Heijn toch ook niet wat de marge op de producten is?
Je koopt een keuken. In het eerste gesprek bespreek je een richtprijs, zodat beiden duidelijk zijn over de verwachtingen. Als jij zegt dat je 17 a 18k verwacht en de keukenzaak weet dan al dat dat voor hem niet haalbaar is ben je snel klaar. Dan hoeft hij ook geen offerte te maken, toch? Als uiteindelijk elke keukenzaak aangeeft dat 17 a 18k niet haalbaar is, tja, dan zal het wel niet haalbaar zijn.
@UltraInstinct Uiteindelijk draait het om vertrouwen. Krijg jij voor het geld wat jij eraan uitgeeft de kwaliteit die jij verwacht? Als in het eerste gesprek al duidelijk is dat jullie qua inschatting veel te ver van elkaar af zitten, dan heeft verder praten geen zin. Waarom zou de keukenzaak dan tijd investeren in een offerte?
Je koopt een keuken. In het eerste gesprek bespreek je een richtprijs, zodat beiden duidelijk zijn over de verwachtingen. Als jij zegt dat je 17 a 18k verwacht en de keukenzaak weet dan al dat dat voor hem niet haalbaar is ben je snel klaar. Dan hoeft hij ook geen offerte te maken, toch? Als uiteindelijk elke keukenzaak aangeeft dat 17 a 18k niet haalbaar is, tja, dan zal het wel niet haalbaar zijn.
@UltraInstinct Uiteindelijk draait het om vertrouwen. Krijg jij voor het geld wat jij eraan uitgeeft de kwaliteit die jij verwacht? Als in het eerste gesprek al duidelijk is dat jullie qua inschatting veel te ver van elkaar af zitten, dan heeft verder praten geen zin. Waarom zou de keukenzaak dan tijd investeren in een offerte?
WP: Toshiba Estia 8kW split HWT-801H(R)W-E + HWT-1101 binnenunit met 300 liter SWW tank. PV: 3 strings, totaal 12600 Wp, 15 kWh thuisaccu
@Barendv 60k is heel veel geld voor zo'n keuken. Dit is geen standaardontwerp, maar 60k is idioot veel.
Een paar opmerkingen:
- Waar komt je vaatwasser? Die staat wel in je apparatuurbudget, maar ik zie geen vaatwasser in de tekening. In het eiland kan niet, want een vaatwasser kan niet op zo'n frame en in de kastenwand kan niet, want daar lopen alle panelen door tot de grond.
- Hoe ga je het leidingwerk onder het eiland uit laten komen? Daar zul je iets van een koof voor moeten maken tot de grond en vervolgens moet je alles in de kastjes bereikbaar maken. Dat is wel iets om goed over na te denken.
- Waar laat je je afval? In zo'n keuken wil je geen afvalemmers op de grond zetten, dus denk na over een ingebouwd afvalsysteem (vuilnisemmers in een la zo groot als een 60cm brede kast)
Een paar opmerkingen:
- Waar komt je vaatwasser? Die staat wel in je apparatuurbudget, maar ik zie geen vaatwasser in de tekening. In het eiland kan niet, want een vaatwasser kan niet op zo'n frame en in de kastenwand kan niet, want daar lopen alle panelen door tot de grond.
- Hoe ga je het leidingwerk onder het eiland uit laten komen? Daar zul je iets van een koof voor moeten maken tot de grond en vervolgens moet je alles in de kastjes bereikbaar maken. Dat is wel iets om goed over na te denken.
- Waar laat je je afval? In zo'n keuken wil je geen afvalemmers op de grond zetten, dus denk na over een ingebouwd afvalsysteem (vuilnisemmers in een la zo groot als een 60cm brede kast)
[ Voor 13% gewijzigd door Blihi op 09-04-2025 07:30 ]
WP: Toshiba Estia 8kW split HWT-801H(R)W-E + HWT-1101 binnenunit met 300 liter SWW tank. PV: 3 strings, totaal 12600 Wp, 15 kWh thuisaccu
Ik ging er met een goed en fijn gevoel in, na de hele circus show bij keukenzaak A vertrouw ik keukenzaken totaal niet meer. 4 keer overleggen met je manager, hoofdkantoor bellen, van 24.000 naar 15.000 euro zakken en dan nog extreem dorstig graag mij de keuken willen verkopen..Toke_gt schreef op dinsdag 8 april 2025 @ 15:36:
[...]
Je gaat pas akkoord met de offerte die hij stuurt. Je komt op mij nogal achterdochtig over. Nu is enig wantrouwen in deze sector heel gezond, maar gezien de inhoud van jouw posts zit jij jezelf ermee in de weg. Laat mensen een offerte maken en kijk of jij ermee akkoord bent. Hoe die offerte tot stand komt, computer of handwerk, maakt niet uit, de computer heeft niet per se gelijk en rekent de korting niet mee. Dus het is maar de vraag of dat een betrouwbaarder beeld geeft.
Kritische opstelling is verstandig.UltraInstinct schreef op dinsdag 8 april 2025 @ 17:19:
[...]
Ik ging er met een goed en fijn gevoel in, na de hele circus show bij keukenzaak A vertrouw ik keukenzaken totaal niet meer.
Dat is hoe zij het willen spelen. Jouw opties:4 keer overleggen met je manager, hoofdkantoor bellen, van 24.000 naar 15.000 euro zakken en dan nog extreem dorstig graag mij de keuken willen verkopen..
- keihard meespelen en laag bedrag uitonderhandelen
- niet meespelen en de hoofdprijs betalen
- een andere zaak zoeken die vaste prijzen hanteert
- geen keuken kopen
Wat jij nu doet is optie 3 verwachten bij een optie1-leverancier. Dat werkt niet. Kijk of je die 15K voor die keuken over hebt. Zie de 24K als de adviesprijs die je in folders van Mediamarkt ziet, die vervolgens ook nooit gerekend wordt.
En niemand gaat jou prijzen zonder marge vertellen of rekenen, geen enkele ondernemer in welke sector dan ook rekent met inkoopprijzen als uitgangspunt voor een offerte. Op die inkoopprijs zit ook weer een marge trouwens. Dus laat dat los, anders kom je uit frustratie op 2 of 4 uit.
[ Voor 8% gewijzigd door Toke_gt op 08-04-2025 19:24 ]
Thanks. Bij Superkeukens lijken we nu uit te komen op 24k ex montage (kunnen we prima zelf). Vind het nog steeds wel een flink bedrag. Apparatuur is AEG, maar wel met een Bora Puru inductieplaat.Loft schreef op zondag 6 april 2025 @ 22:03:
[...]
Het is geen kleine keuken en je hebt aardig wat breedte, maar het is wel recht, geen rare bochten, geen koof en geen gekke hoeken. Dat maakt het makkelijk bouwen / plaatsen en amper maatwerk / passtukken.
Dan vind ik 35k aan de prijs.
AEG is goed, maar absolute top, dat maakt wat mij betreft die 35k zeker 7k te veel, misschien wel 8k of 9k minder.
We twijfelen ook nog wel over de lokale winkel. 30k voor Leicht is misschien ook wel iets, al is het moeilijk om de kwaliteit te vergelijken. Hey is volgens de OP ieder geval wat meer het hogere segment.
Toch ook even onze ervaring delen. We komen van Next 125 af. Nu stosa. De keuken materialen zijn prima. Echter zijn de "verkopers" de eigenaren en de organisatie daarom heen is niet volwassen. Kortom, hoop verhalen, weinig keuken.Gale schreef op maandag 27 juni 2022 @ 10:43:
Hi all,
Een vraagje mbt kwaliteit/ervaring die hier misschien bekend is bij dit merk
We zijn bij een keukenzaak geweest (Abitare, italiaansekeukens.com), waar ze het merk Stosa Cucine verkopen, waarvan we erg gecharmeerd zijn qua looks.
Ik kan echter weinig informatie vinden mbt de kwaliteit van dit merk. Is er wellicht iemand op dit forum die hier meer van weet, of ervaringen heeft?
Alvast bedankt!
Ik ben happy met de materialen maar de totale levering, plaatsing en dus totaalkwaliteit is verre van hoe zij zich presenteren.
[quote]Toke_gt schreef op dinsdag 8 april 2025 @ 17:42:
[...]
Kritische opstelling is verstandig.
[...]
Dat is hoe zij het willen spelen. Jouw opties:
- keihard meespelen en laag bedrag uitonderhandelen
- niet meespelen en de hoofdprijs betalen
- een andere zaak zoeken die vaste prijzen hanteert
- geen keuken kopen
[...]
Kritische opstelling is verstandig.
[...]
Dat is hoe zij het willen spelen. Jouw opties:
- keihard meespelen en laag bedrag uitonderhandelen
- niet meespelen en de hoofdprijs betalen
- een andere zaak zoeken die vaste prijzen hanteert
- geen keuken kopen
[ Voor 76% gewijzigd door UltraInstinct op 09-04-2025 10:18 ]
Ik herken je gevoel wel, en ik kan ook niet tegen dergelijk verkoopgedrag, maar dit is wat je moet doen als je hier toch in verzeild raakt:UltraInstinct schreef op dinsdag 8 april 2025 @ 21:30:
[...]
Ik snap je maar het ging meer zo ;
- Wat is je budget?
- Dat is te laag
- Ik kan je korting geven als je nu gaat tekenen.
- Geeft geen antwoord over hoeveel mijn ontwerp echt kost.
- Is eigenlijk klaar met het gesprek en wilt me weg hebben.
Ik had hem voor het gesprek al een mail gestuurd en kreeg dit als antwoord ;
U heeft de vraag gesteld omtrent een eventuele afspraak bij Keukenloods.
Als eerste krijgt u een opgemaakt advies en ontwerp.
De offerte die gepresenteerd wordt bevat een prijsoverzicht van alle meubelen, apparaten, werkblad en (indien gewenst) montage.
U weet dus wat alles kost!
De offerte die bovendien gepresenteerd wordt is een netto scherpe prijs met daarin een actie opgenomen die wij in de week aanbieden van het maken van de offerte.
(deze week bv een gratis Bora Puru kookplaat)
De betaling kunt u via de opgemaakte factuur vooraf overmaken of kunt u bij aflevering pinnen bij onze chauffeur.
----------------
Ik heb geen offerte niks gekregen en ik kon ook niet over prijs dus onderhandelen. Waarom zou ik akkoord gaan met NU tekenen als ik niet eens weet wat voor vaatwasser en koelkast ik onder andere krijg? Hij wou alleen merk weten, modellen heb ik niet eens met hem door kunnen nemen.
Maar ik heb mijn tijd dus zitten verspillen... hij gaf alvorens het gesprek via de mail aan dat ik gewoon een offerte mee zou krijgen. Ik zou dat doornemen en met hem onderhandelen wat ik qua bedrag wil betalen.
Jij: "Ok, mooi ontwerp en wat voor prijs moet ik dan aan denken?"
Hij: "Wat is je budget?"
Jij: "noemt een bedrag van een Ikea keuken"
Hij: "Dat is natuurlijk veel te laag. Deze keukens zijn normaal veel duurder, maar ik ga overleggen en kijken of ik speciaal voor jou een uitzondering kan maken..."
Hij: "Komt terug met een bedrag, maar wel nu tekenen, want anders vervalt de korting."
Dan is het aan jou om even sterk in je schoenen te staan. Als het bedrag wat hij noemt klopt met wat jou gevoel zegt: prima, dan kun je tekenen en zijn jullie allebei blij. Als het bedrag niet klopt, of je voelt je niet zo prettig, dan zeg je: "dank voor de aanbieding, maar ik moet hier eerst even goed over nadenken. Kunnen we een vervolgafspraak maken?"
Als dat niet kan, tja, dan niet. Even goede vrienden. Maar meestal kan dat wel. Ook krijg je vaak wel iets mee, maar geen uitgewerkte offerte, maar bijvoorbeeld een kopie van de tekening, een brochure van het keukenmerk met overzicht van kastjes, een brochure van de apparatuur, enzovoorts. Als dat ook niet kan, dan zou ik gewoon omdraaien en niet meer terugkomen.
Of, en dat is de optie die ik zelf toentertijd gekozen heb, je stapt binnen bij een fatsoenlijke kleine zelfstandige keukenzaak. Zo eentje waar elke showroomkeuken gewoon een prijskaartje heeft en nergens posters hangen met kilo-knaller-kortings-weken.
Daar bespreek je je ontwerp en in het eerste gesprek heb je al een indicatie van de prijs. Niet een definitieve prijs, want dat komt later wel, maar een indicatie op basis van ervaring van de verkoper. Die indicatie helpt je om te beslissen of je verder gaat praten over de details en er komen nog heel wat details: De precieze frontjes (niet alleen de kleur, maar ook het materiaal, de randafwerking, etc.), de handgrepen, de apparatuur, verlichting, het werkblad, de wandafwerking, etc.
Uiteindelijk zit je misschien wel vijf keer aan tafel bij deze zaak, voordat je een volledige offerte (met totaalprijs) ter ondertekening mee krijgt.
WP: Toshiba Estia 8kW split HWT-801H(R)W-E + HWT-1101 binnenunit met 300 liter SWW tank. PV: 3 strings, totaal 12600 Wp, 15 kWh thuisaccu
Wij hebben nu 1,5 jaar zonder enige rand.Heisenbug schreef op woensdag 2 april 2025 @ 15:52:
Ik zie dat veel keukens tegenwoordig een kleine spatwand of geen achterwand hebben. Is dat niet behoorlijk risicovol met het oog op het bevuilen van het stucwerk?
Zelf heb ik momenteel een gewone kookplaat met een achterwand van tegeltjes, en daarop zie ik na een paar keer koken al vet/saus spetters (kan ook aan mijn beperkte kookkunsten liggen). Ik vraag me af hoe dat gaat bij keukens zonder achterwand?
Waarom? Wij vinden het strakker, mooier en het kan altijd nog.
Iedereen adviseerde ons zo’n aluminium spatwand, omdat dat dun was en het strakke effect zou behouden. Echter breekt het je muur toch op. Als het nodig is, prima. Maar zo’n and kun je altijd nog plaatsen als het nodig blijkt te zijn.
Vooral dat laatste punt was voor ons beweegreden bij plaatsing keuken niets te doen.
Gestuct, geschilderd en een 2 componenten vernis erover.
Inmiddels heeft de wand alle vet en tomatensaus vlekken wel gezien en ben ik er niet meer zo bang voor dat vlekken de reden zullen zijn een spatwand te moeten plaatsen.
Het enige gevaar is nog stoten tegen de muur. Ons aanrecht is 66cm diep. Daar ben ik wel altijd heel alert op. Stucwerk kan best wat hebben en naar mijn idee maakt de vernis het ook wel iets harder. Maar toch. Feit blijft: spatwand kan altijd nog.
Deze vernis:
/f/image/FgQLBDb6LcgL8u9rVuTghUKO.webp?f=fotoalbum_large)
De wand na 1,5 jaar:
Je komt bij een commercieel bedrijf, niet bij een liefdadigheidsinstantie. Wat had je dan verwacht?UltraInstinct schreef op dinsdag 8 april 2025 @ 15:22:
[...]
Nee, daar is wél wat mis mee. Er zit namelijk een duidelijke tactiek achter: zoveel mogelijk winst maken.
PSN: Flix20-NL
Waarom, bijvoorbeeld als je kleding koopt, ben je wel kritisch en loop je winkel in en winkel uit om maar tot het mooiste resultaat te komen (okay, vrouwen misschien iets meer dan mannenBlihi schreef op woensdag 9 april 2025 @ 07:30:
[...]
Dan is het aan jou om even sterk in je schoenen te staan.
[...]
Uiteindelijk zit je misschien wel vijf keer aan tafel bij deze zaak, voordat je een volledige offerte (met totaalprijs) ter ondertekening mee krijgt.
Besef heel goed dat een keuken, net zo als een nieuwe broek, voor de keukenverkoper business as usual is. Vanmiddag, morgen en elke andere dag van de week verkopen ze weer keukens en die klanten zijn net zo (on)belangrijk als dat jij. Het probleem voor ons kopers is dat wij maar eens in de X jaar een keuken aanschaffen, dit is voor ons een beste hap uit de financiële middelen; we zijn best wel een beetje bang om die uitgave te doen.
Echter jij bezit dat geld, niet de verkoper. Jij bent de baas over dat geld! Op moment dat er een grote korting op tafel komt, weet je eigenlijk al zeker dat je te grazen genomen wordt en kan er nog wel meer af. Een keukenverkoper maakt nooit verlies, want dan doen ze je geen offerte. Je hoeft geen medelijden te hebben en als je over een maand weer komt, komt diezelfde korting echt wel weer op tafel want zo werkt die firma blijkbaar. Een boze keukenverkoper, omdat jij niet onder druk wilt tekenen, betekent alleen maar dat hij nog meer moet zakken en zijn persoonlijke bonus ziet slinken. Veel keukenverkopers, zijn gewoon autohandelaren, niet meer niet minder. Als je dit spel weet, kun je het spelen, loop rustig weg want grote kans als je een paar dagen later nog even informeert naar een lulligheidje (waren die kastjes nu soft-open?) er vervolgens nog weer een scherper bedrag wordt genoemd. Wil je het hard spelen dan is het einde van de 3de maand van een kwartaal een ideale moment om hard-ball te spelen (bonus bepaling).
Er zijn ook goede keukenverkopers, die luistren, meedenken, bewust een budget pols doen en dan proberen een optimale keuken te leveren. Deze kosten vaak iets meer tijd, hoeven niet eens duurder te zijn, maar leveren wel jouw keuken!
Moraal van dit verhaal: kortingen zijn leuk maar jij bent nog steeds de klant, er zijn genoeg keukenboeren dus laat je nooit onder druk zetten.
Niet quoten, zorgvuldige reacties volgens de regels worden zo weggewerkt: *knip*, reactie op geknipte reactie.
Ons huis wordt gerenoveerd en we moeten op zoek naar een keuken. We willen deze week naar wat keukenzaken om dat snel rond te krijgen. Om dat een klein beetje voorbereid te doen, hebben we in de IKEA keukenplanner al een aanzetje gemaakt van een indeling die ons leuk lijkt. We willen hiermee naar verschillende zaken om ontwerpen en offertes te verkrijgen.
Ik ben benieuwd naar jullie gevoel bij onze indeling, of misschien dat jullie wel direct een heel andere indeling voor ogen hebben. Wellicht dat er zelfs een kosteninschatting vanaf kan, zodat wij deze kunnen gebruiken bij de keukenzaak.
Een aantal aandachtspunten:
- Lengte buitengevel ca 3.15m, lengte binnenmuur ca. 3.70m, lengte muur naar de serre ca 2.60m. Plafondhoogte 2.65m.
- De hoogte tot onderkant van het raamkozijn is maar 93cm. We kunnen dit laten aanpassen maar als het niet nodig is, scheelt dat natuurlijk in de kosten. Ik ben bang dat een aanrechtblad langs deze gevel daarom niet erg praktisch is.
- Het haakse muurtje naast de deur is de diepte nog niet van bekend, hier komt de ondersteuning van draagbalk.
- Lengte van het schiereiland ter indicatie. Ik weet niet wat er nog naast een barretje van 1.20m past aan kastjes of opvulstukken. Zoals nu getekend houden we nog een doorloop over van 1.10m. Deze doorloop is overigens maar 'smal', want de opening naar de serre begint al halverwege het eiland.
- We koken niet erg uitgebreid en hoeven geen apparatuur met allerlei snufjes. Wel hebben we een koffiezetapparaat dat wat ruimte nodig heeft. We dachten nu om deze in de hoek bij het raam te zetten.
Ben benieuwd naar jullie mening!
:strip_exif()/f/image/1tQ36MoGiO4vYy91iOjCcF5W.jpg?f=fotoalbum_large)
:strip_exif()/f/image/Ryxg5t2WcuSdirF2KfkUyrvU.jpg?f=fotoalbum_large)
Ik ben benieuwd naar jullie gevoel bij onze indeling, of misschien dat jullie wel direct een heel andere indeling voor ogen hebben. Wellicht dat er zelfs een kosteninschatting vanaf kan, zodat wij deze kunnen gebruiken bij de keukenzaak.
Een aantal aandachtspunten:
- Lengte buitengevel ca 3.15m, lengte binnenmuur ca. 3.70m, lengte muur naar de serre ca 2.60m. Plafondhoogte 2.65m.
- De hoogte tot onderkant van het raamkozijn is maar 93cm. We kunnen dit laten aanpassen maar als het niet nodig is, scheelt dat natuurlijk in de kosten. Ik ben bang dat een aanrechtblad langs deze gevel daarom niet erg praktisch is.
- Het haakse muurtje naast de deur is de diepte nog niet van bekend, hier komt de ondersteuning van draagbalk.
- Lengte van het schiereiland ter indicatie. Ik weet niet wat er nog naast een barretje van 1.20m past aan kastjes of opvulstukken. Zoals nu getekend houden we nog een doorloop over van 1.10m. Deze doorloop is overigens maar 'smal', want de opening naar de serre begint al halverwege het eiland.
- We koken niet erg uitgebreid en hoeven geen apparatuur met allerlei snufjes. Wel hebben we een koffiezetapparaat dat wat ruimte nodig heeft. We dachten nu om deze in de hoek bij het raam te zetten.
Ben benieuwd naar jullie mening!
:strip_exif()/f/image/1tQ36MoGiO4vYy91iOjCcF5W.jpg?f=fotoalbum_large)
:strip_exif()/f/image/Ryxg5t2WcuSdirF2KfkUyrvU.jpg?f=fotoalbum_large)
Ik heb mijn ervaring wel gepost hierover en wat ik al zei ga het weer doen. Mijn monteur vraag 45 per uur en gaat bij ons alles doen. Vroeg de vorige keer 650 voor de montage van een keuken van 9 meter. Waar vind je dat nog.UltraInstinct schreef op dinsdag 8 april 2025 @ 12:49:
[...]
Ik probeer te zoeken op 'keuken zelf plaatsen' maar dan krijg ik andere hits...
Had alvast gekeken naar keukenmonteurs en gelijk een die zegt dat die de inductie vanwege 2-3 punts aansluiting niet mag plaatsen en ook het werkblad niet. Maar vraagt wel 1800 euro lol...
Eerlijke handel net als bij de bakker op de hoek. Die maakt ook winst, maar verkoopt niet een brood voor een tientje omdat ik niet weet wat een brood kost. En dat gebeurd bij keukens wel, de klant geeft een budget van 30k en daar komt men op uit, terwijl de keuken maar 20k waard is. Daarom doe ik alles los en eigen monteur scheelt gewoon heel veel geld.Flix20 schreef op woensdag 9 april 2025 @ 08:27:
[...]
Je komt bij een commercieel bedrijf, niet bij een liefdadigheidsinstantie. Wat had je dan verwacht?
Ik zou de kookplaat niet in het midden zetten. Veel koken is een pan neerzetten, er iets in doen en dan wachten (en soms keren). M.a.w. je staat niet veel voor je kookplaat maar geeft deze wel een prominente plaats. Ik zou de kookplaat richting de muur verplaatsen, genoeg ruimte tussen muur en kookplaat om een pan weg te zetten maar that's it. Ook handig dat deze tegenover de oven staat. Je houdt dan een behoorlijk werkblad over voor hak en snij werkzaamheden. Deze activiteit neemt vaak veel meer tijd van je en een breed werkvlak is dan prettig.
Niet quoten, zorgvuldige reacties volgens de regels worden zo weggewerkt: *knip*, reactie op geknipte reactie.
Nou, dat gaat hier inmiddels heel anders hoor. Er is er maar een die naar binnen en buiten loopt en dat is de postbode...hamsteg schreef op woensdag 9 april 2025 @ 12:17:
[...]
Waarom, bijvoorbeeld als je kleding koopt, ben je wel kritisch en loop je winkel in en winkel uit om maar tot het mooiste resultaat te komen (okay, vrouwen misschien iets meer dan mannen)?
Wie zegt dat je medelijden moet hebben? De keukenverkoper probeert zoveel mogelijk te krijgen voor zijn product. Een goede verkoper probeert om jou tevreden te maken met wat je koopt tegen een prijs waar hij of zij van kan leven. Een slechte verkoper probeert jou een product te verkopen wat je eigenlijk niet wilt.En waarom laten wij ons als koper van een keuken ineens in een andere rol drukken en moeten we bijna medelijden hebben met de keuken verkoper en tekenen bij het kruisje??
Niemand zegt dat je moet tekenen bij het kruisje, maar de verwachting dat de verkoper zijn hele businessmodel gaat uitleggen en met een precieze specificatie van de marges op elk individueel product komt is een beetje vreemd. Daar vraag je ook bij de kledingzaak niet naar.
Hetzelfde geldt voor auto's en toch vraagt er niemand naar de precieze marge op een tweedehandsje. Ik kan je verklappen dat die ook echt rond de 30% zit hoor.Besef heel goed dat een keuken, net zo als een nieuwe broek, voor de keukenverkoper business as usual is. Vanmiddag, morgen en elke andere dag van de week verkopen ze weer keukens en die klanten zijn net zo (on)belangrijk als dat jij. Het probleem voor ons kopers is dat wij maar eens in de X jaar een keuken aanschaffen, dit is voor ons een beste hap uit de financiële middelen; we zijn best wel een beetje bang om die uitgave te doen.
Precies! Dat is dus precies wat ik ook zeg. Vaak zijn dat de kleine zelfstandige zaken.Echter jij bezit dat geld, niet de verkoper. Jij bent de baas over dat geld! Op moment dat er een grote korting op tafel komt, weet je eigenlijk al zeker dat je te grazen genomen wordt en kan er nog wel meer af. Een keukenverkoper maakt nooit verlies, want dan doen ze je geen offerte. Je hoeft geen medelijden te hebben en als je over een maand weer komt, komt diezelfde korting echt wel weer op tafel want zo werkt die firma blijkbaar. Een boze keukenverkoper, omdat jij niet onder druk wilt tekenen, betekent alleen maar dat hij nog meer moet zakken en zijn persoonlijke bonus ziet slinken. Veel keukenverkopers, zijn gewoon autohandelaren, niet meer niet minder. Als je dit spel weet, kun je het spelen, loop rustig weg want grote kans als je een paar dagen later nog even informeert naar een lulligheidje (waren die kastjes nu soft-open?) er vervolgens nog weer een scherper bedrag wordt genoemd. Wil je het hard spelen dan is het einde van de 3de maand van een kwartaal een ideale moment om hard-ball te spelen (bonus bepaling).
Er zijn ook goede keukenverkopers, die luistren, meedenken, bewust een budget pols doen en dan proberen een optimale keuken te leveren. Deze kosten vaak iets meer tijd, hoeven niet eens duurder te zijn, maar leveren wel jouw keuken!
Dat is voor veel mensen gemakkelijker gezegd dan gedaan. Helemaal als er net gedaan wordt alsof de handtekening maar een vrijblijvende handtekening is.Moraal van dit verhaal: kortingen zijn leuk maar jij bent nog steeds de klant, er zijn genoeg keukenboeren dus laat je nooit onder druk zetten.
WP: Toshiba Estia 8kW split HWT-801H(R)W-E + HWT-1101 binnenunit met 300 liter SWW tank. PV: 3 strings, totaal 12600 Wp, 15 kWh thuisaccu
Hallo allemaal,
We hebben van Koolschijn een offerte ontvangen voor een Siematic keuken. Echter, als ik naar de apparatuur kijk, word ik daar niet echt enthousiast van (en ook niet van de prijs)
:
/f/image/Zoz46A3F6m1Bz13Dv5lkGTwY.png?f=fotoalbum_large)
:strip_exif()/f/image/YYuk1KbTvMoywYJDkfzyjxFx.jpg?f=fotoalbum_large)
Werkblad 1:
Naast de apparatuur vinden we ook de positie van de kookplaat niet ideaal (zo dicht tegen de rand). We denken erover om voor twee zitplaatsen in plaats van vier te gaan, zodat we een dunner werkblad kunnen gebruiken (wat we mooier vinden). Hopelijk hebben we dan ook meer ruimte om de kookplaat enigszins beter te positioneren.
Zijn er, los van de prijs, nog tips of feedback over de keuken layout? Zijn er bijvoorbeeld dingen die zwaar onhandig of niet praktisch zijn? Andere punten waar we op moeten letten?
Alvast bedankt!
We hebben van Koolschijn een offerte ontvangen voor een Siematic keuken. Echter, als ik naar de apparatuur kijk, word ik daar niet echt enthousiast van (en ook niet van de prijs)
/f/image/Zoz46A3F6m1Bz13Dv5lkGTwY.png?f=fotoalbum_large)
:strip_exif()/f/image/YYuk1KbTvMoywYJDkfzyjxFx.jpg?f=fotoalbum_large)
Werkblad 1:
- ReynDesign Caesarstone composiet 20mm (1600x635)
- ReynDesign Caesarstone composiet 60mm (2993x1200)
- Kookplaat iq300
- Combi stoomoven iq700
- Vaatwasser iq300
- Koel-vriescombinatie iq100
- Standaard kraan
Naast de apparatuur vinden we ook de positie van de kookplaat niet ideaal (zo dicht tegen de rand). We denken erover om voor twee zitplaatsen in plaats van vier te gaan, zodat we een dunner werkblad kunnen gebruiken (wat we mooier vinden). Hopelijk hebben we dan ook meer ruimte om de kookplaat enigszins beter te positioneren.
Zijn er, los van de prijs, nog tips of feedback over de keuken layout? Zijn er bijvoorbeeld dingen die zwaar onhandig of niet praktisch zijn? Andere punten waar we op moeten letten?
Alvast bedankt!
Als ze doen alsof het vrijblijvend is, kan je dan niet gewoon ter plekke een handtekening bedenken? Dan doe je zelf ook gewoon lekker vrijblijvendBlihi schreef op woensdag 9 april 2025 @ 13:16:
[...]
Dat is voor veel mensen gemakkelijker gezegd dan gedaan. Helemaal als er net gedaan wordt alsof de handtekening maar een vrijblijvende handtekening is.
Dan moet je ook even een valse naam en adres verzinnen, maar ik denk dat we op dat punt een beetje afdwalen.Phoolie schreef op woensdag 9 april 2025 @ 14:24:
[...]
Als ze doen alsof het vrijblijvend is, kan je dan niet gewoon ter plekke een handtekening bedenken? Dan doe je zelf ook gewoon lekker vrijblijvend
WP: Toshiba Estia 8kW split HWT-801H(R)W-E + HWT-1101 binnenunit met 300 liter SWW tank. PV: 3 strings, totaal 12600 Wp, 15 kWh thuisaccu
Juridisch zou dat misschien vervelend kunnen worden, zeker als je de offerte wil accepteren. Dan moet je met de billen bloot. Dan zou de keukenboer kunnen afhaken vanwege gebrek aan vertrouwen..Phoolie schreef op woensdag 9 april 2025 @ 14:24:
[...]
Als ze doen alsof het vrijblijvend is, kan je dan niet gewoon ter plekke een handtekening bedenken? Dan doe je zelf ook gewoon lekker vrijblijvend
Ik zou het gewoon simpel houden, want dat is ook een goede boodschap aan die lui. Een handtekening tevoren forceren == geen business. Er zijn zat alternatieven te vinden.
Dat is natuurlijk de beste oplossing. Mijn opmerking was meer voor als ze zo door zouden drammen. Aan de andere kant moet je jezelf afvragen of je dan überhaupt zaken wil doen met die partij.curkey schreef op woensdag 9 april 2025 @ 15:54:
[...]
Juridisch zou dat misschien vervelend kunnen worden, zeker als je de offerte wil accepteren. Dan moet je met de billen bloot. Dan zou de keukenboer kunnen afhaken vanwege gebrek aan vertrouwen..
Ik zou het gewoon simpel houden, want dat is ook een goede boodschap aan die lui. Een handtekening tevoren forceren == geen business. Er zijn zat alternatieven te vinden.
dag allen, ik volg al een tijdje dit forumtopic om te lezen welke struggles jullie allen ondergaan bij het kopen van een keuken. Nu zijn wij zelf ook in de markt voor een keuken en we hebben een eerste offerte binnen, maar ik ben een beetje benieuwd naar jullie mening:
We willen een U-vormige keuken met daarbij een magnetron, oven, vaatwasser, inductie met afzuig en koelkast (vriezer hebben we al).
samenstellen via keukenkastenfabriek levert het volgende plaatje:
keukenkasten: 6661
apparatuur totaal 3300
werkblad +/- 1500
totaal: +/- 11500
zelf montage natuurlijk
zelfde keuken bij een keukenboer:
merk: nobilia
kasten + werkblad = 7219
onze eigen apparatuur: 3300 (hun eigen suggestie was 6600 qua appparatuur)
montage: 2150
totaal: 12669
vooral benieuwd wat jullie mening is qua montage kosten en de twee merken (nobilia vs keukenkastenfabriek) (overigens heb ik ook nog elders wel een vraag uitstaan voor een offerte voor een keuken, maar dit is in elk geval een begin).
We willen een U-vormige keuken met daarbij een magnetron, oven, vaatwasser, inductie met afzuig en koelkast (vriezer hebben we al).
samenstellen via keukenkastenfabriek levert het volgende plaatje:
keukenkasten: 6661
apparatuur totaal 3300
werkblad +/- 1500
totaal: +/- 11500
zelf montage natuurlijk
zelfde keuken bij een keukenboer:
merk: nobilia
kasten + werkblad = 7219
onze eigen apparatuur: 3300 (hun eigen suggestie was 6600 qua appparatuur)
montage: 2150
totaal: 12669
vooral benieuwd wat jullie mening is qua montage kosten en de twee merken (nobilia vs keukenkastenfabriek) (overigens heb ik ook nog elders wel een vraag uitstaan voor een offerte voor een keuken, maar dit is in elk geval een begin).
![]() | ![]() |
Ik heb mij de laatste tijd verdiept in keukens kopen en ik vind het echt verschrikkelijk. Ik heb geen idee of ik de juiste prijs heb of dat ik juist te veel ga betalen. Op de offerte zie ik geen prijs per apparaat, enkel een totaalprijs.
Qua apparatuur heb ik dit + een quooker.
:strip_exif()/f/image/kSPByI1WBwZdPds5jHwBT2vi.jpg?f=fotoalbum_large)
Dit komt dus neer op Pelgrim vries/koelkast combo, een bosch oven, een bora kookplaat en een atag vaatwasser.
Het betreft een kunststof Keukenblad.
Montage + timmerwerk komt neer op 2.423 bovenop de 21.189 dat de keuken kost. Voor een totaal van 23.612. Ik ben bij meerdere keukenboeren geweest maar alle prijzen komen hier ongeveer op uit. Als ik nu kijk naar de post hierboven vind ik mijn keuken niet perse 10.000 euro meer waard..
Ik ben ontzettend slecht in onderhandelen, maar ik wil het wel proberen als ik denk dat er wat uit te halen valt. Valt hier nog winst te behalen en zijn simpele keukens tegenwoordig nou echt zo duur? Ik hoor graag jullie inzicht. Hartelijk dank voor alle hulp!
Dit is bij de keukenzaak Kitchen4all.
Beeld van de betreffende keuken:
:strip_exif()/f/image/KQShJZ0uCsLzKtDaVQGrxPMs.jpg?f=fotoalbum_large)
Edit: opmaak
Qua apparatuur heb ik dit + een quooker.
:strip_exif()/f/image/kSPByI1WBwZdPds5jHwBT2vi.jpg?f=fotoalbum_large)
Dit komt dus neer op Pelgrim vries/koelkast combo, een bosch oven, een bora kookplaat en een atag vaatwasser.
Het betreft een kunststof Keukenblad.
Montage + timmerwerk komt neer op 2.423 bovenop de 21.189 dat de keuken kost. Voor een totaal van 23.612. Ik ben bij meerdere keukenboeren geweest maar alle prijzen komen hier ongeveer op uit. Als ik nu kijk naar de post hierboven vind ik mijn keuken niet perse 10.000 euro meer waard..
Ik ben ontzettend slecht in onderhandelen, maar ik wil het wel proberen als ik denk dat er wat uit te halen valt. Valt hier nog winst te behalen en zijn simpele keukens tegenwoordig nou echt zo duur? Ik hoor graag jullie inzicht. Hartelijk dank voor alle hulp!
Dit is bij de keukenzaak Kitchen4all.
Beeld van de betreffende keuken:
:strip_exif()/f/image/KQShJZ0uCsLzKtDaVQGrxPMs.jpg?f=fotoalbum_large)
Edit: opmaak
Heb je de kosten van het voorbereiden ook mee berekend? zoals muren stucen en eventuele elektra en water aanpassingen?Oksendel schreef op donderdag 10 april 2025 @ 15:35:
Het betreft een kunststof Keukenblad.
Montage + timmerwerk komt neer op 2.423 bovenop de 21.189 dat de keuken kost. Voor een totaal van 23.612. Ik ben bij meerdere keukenboeren geweest maar alle prijzen komen hier ongeveer op uit. Als ik nu kijk naar de post hierboven vind ik mijn keuken niet perse 10.000 euro meer waard..
Ik schrik van dit soort prijzen wetende dat ik afgelopen December een fully blown fully loaded IKEA U-vorm keuken(met duurste opties qua inbouw apparaten, dus equivalent van bosch/aeg) met stenen werkblad heb laten plaatsen voor krap 15K....
Grappig, ik ben bezig met eenzelfde traject en we hebben een vergelijkbare keuken. Kleuren zijn nog niet compleet (hoge kasten worden waarschijnlijk een houtmotief);Oksendel schreef op donderdag 10 april 2025 @ 15:35:
Ik heb mij de laatste tijd verdiept in keukens kopen en ik vind het echt verschrikkelijk. Ik heb geen idee of ik de juiste prijs heb of dat ik juist te veel ga betalen. Op de offerte zie ik geen prijs per apparaat, enkel een totaalprijs.
Qua apparatuur heb ik dit + een quooker.
[Afbeelding]
Dit komt dus neer op Pelgrim vries/koelkast combo, een bosch oven, een bora kookplaat en een atag vaatwasser.
Het betreft een kunststof Keukenblad.
Montage + timmerwerk komt neer op 2.423 bovenop de 21.189 dat de keuken kost. Voor een totaal van 23.612. Ik ben bij meerdere keukenboeren geweest maar alle prijzen komen hier ongeveer op uit. Als ik nu kijk naar de post hierboven vind ik mijn keuken niet perse 10.000 euro meer waard..
Ik ben ontzettend slecht in onderhandelen, maar ik wil het wel proberen als ik denk dat er wat uit te halen valt. Valt hier nog winst te behalen en zijn simpele keukens tegenwoordig nou echt zo duur? Ik hoor graag jullie inzicht. Hartelijk dank voor alle hulp!
Dit is bij de keukenzaak Kitchen4all.
Beeld van de betreffende keuken:
[Afbeelding]
Edit: opmaak
:strip_exif()/f/image/HooQPqHyQhsjOPqoHWFnEGI2.jpg?f=fotoalbum_large)
Apparatuur, stoomoven, combioven, vaatwasser, grote koelkast, quooker, 80cm inductie, novy plafondafzuiging, zit ik op totaal € 21K.
Kasten zijn van Egger en een composiet keukenblad. Apparatuur is €8k, kasten + blad dus 13 incl plaatsing.
Ik heb zelf aangegeven de Bora kookplaat te willen, dit geldt ook voor de oven van Bosch. In principe deden zij alles standaard met Pelgrim, echter hoor ik van vrienden dat dat niet perse een goed merk is. Vandaar dat ik dit specifiek bij de kookplaat en oven hiervan afwijk. Bij de vriezer/koelkast dacht ik dat er niet zoveel aan mis kon gaan met een budget merk.alki schreef op donderdag 10 april 2025 @ 15:40:
@Oksendel Waarom kies je allemaal verschillende merken apparatuur behalve de kookplaat?
Vaak krijg je veel meer korting en betere garantie als je alles van bosch,pelgrim of atag neemt.
Prijs is wel hoog voor de gekozen materialen
Het betreft een nieuwbouw woning, het keukenbedrijf levert bij mij een installatietekening aan en mijn aannemer zorgt er voor dat alles op de juiste plek zit. Zoals ik het hoor is het “werkje” in de fronten van de kastjes iets wat ongeveer op 2000 euro neerkomt voor alle kasten. Het is niet de goedkoopste apparatuur maar ik schrik er toch van. Twee andere bedrijven kwamen met iets soortgelijks uit rond de 26.000. Hierdoor heb ik het gevoel dat dit aan de lagere kant zit van de offertes, maar ik vind het nog steeds veel en vraag me af of hier in te onderhandelen valt. Bij kitchen4all zeggen ze zelf al scherp te offreren en dat ze daarom niet aan onderhandelen doen.kleijn1985 schreef op donderdag 10 april 2025 @ 15:43:
[...]
Heb je de kosten van het voorbereiden ook mee berekend? zoals muren stucen en eventuele elektra en water aanpassingen?
Ik schrik van dit soort prijzen wetende dat ik afgelopen December een fully blown fully loaded IKEA U-vorm keuken(met duurste opties qua inbouw apparaten, dus equivalent van bosch/aeg) met stenen werkblad heb laten plaatsen voor krap 15K....
Wat grappig, dat komt aardig in de buurt inderdaad. Bij ons zijn de kasten van Pronorm/proline, geen idee hoe zich dat verhoud tot Egger. Als ik een schatting moet maken komt bij mij het apparatuur ook rond de 8k uit.venneke schreef op donderdag 10 april 2025 @ 15:53:
[...]
Grappig, ik ben bezig met eenzelfde traject en we hebben een vergelijkbare keuken. Kleuren zijn nog niet compleet (hoge kasten worden waarschijnlijk een houtmotief);
[Afbeelding]
Apparatuur, stoomoven, combioven, vaatwasser, grote koelkast, quooker, 80cm inductie, novy plafondafzuiging, zit ik op totaal € 21K.
Kasten zijn van Egger en een composiet keukenblad. Apparatuur is €8k, kasten + blad dus 13 incl plaatsing.
1.000 Vriezer
1.000 koelkast
2.500 bora kookplaat
1.500 combi/Oven
1.000 vaatwasser
800 quooker.
Je zou zeggen dat een kunststof blad toch in verhouding een stuk goedkoper zou mogen zijn.
Heb dit meerdere malen gehad, ik ben gewoon naar een ander keukenleverancier geweest waar duidelijk alle prijzen stonden. Apparatuur heb ik dus kunnen berekenen, werkblad offerte gevraagd en kasten nagerekend online. Mijn keuken is een L hacker concept 120 topsoft keuken, met een 4 cm jetstone composiet werkblad + vol siemens apparatuur met een bora x pure voor 18000 euro.Oksendel schreef op donderdag 10 april 2025 @ 15:35:
Ik heb mij de laatste tijd verdiept in keukens kopen en ik vind het echt verschrikkelijk. Ik heb geen idee of ik de juiste prijs heb of dat ik juist te veel ga betalen. Op de offerte zie ik geen prijs per apparaat, enkel een totaalprijs.
Qua apparatuur heb ik dit + een quooker.
[Afbeelding]
Dit komt dus neer op Pelgrim vries/koelkast combo, een bosch oven, een bora kookplaat en een atag vaatwasser.
Het betreft een kunststof Keukenblad.
Montage + timmerwerk komt neer op 2.423 bovenop de 21.189 dat de keuken kost. Voor een totaal van 23.612. Ik ben bij meerdere keukenboeren geweest maar alle prijzen komen hier ongeveer op uit. Als ik nu kijk naar de post hierboven vind ik mijn keuken niet perse 10.000 euro meer waard..
Ik ben ontzettend slecht in onderhandelen, maar ik wil het wel proberen als ik denk dat er wat uit te halen valt. Valt hier nog winst te behalen en zijn simpele keukens tegenwoordig nou echt zo duur? Ik hoor graag jullie inzicht. Hartelijk dank voor alle hulp!
Dit is bij de keukenzaak Kitchen4all.
Beeld van de betreffende keuken:
[Afbeelding]
Edit: opmaak
De vaatwasser is inderdaad nog een issue, daar kwam de ontwerper pas mee nadat we het frame hadden ingetekend. Waarschijnlijk gaan we het frame toch laten vervallen en het eiland op de gebruikelijke manier plaatsen, ik vind een eiland op poten wel een stuk mooier maar de voorbeelden die ik altijd zag waren een stuk kleiner en daarmee alleen poten op de hoek. Bij ons zouden het ook wel erg veel poten worden. Daarmee is het leiding werk direct weggewerkt.Blihi schreef op dinsdag 8 april 2025 @ 15:55:
@Barendv
- Waar komt je vaatwasser? Die staat wel in je apparatuurbudget, maar ik zie geen vaatwasser in de tekening. In het eiland kan niet, want een vaatwasser kan niet op zo'n frame en in de kastenwand kan niet, want daar lopen alle panelen door tot de grond.
- Hoe ga je het leidingwerk onder het eiland uit laten komen? Daar zul je iets van een koof voor moeten maken tot de grond en vervolgens moet je alles in de kastjes bereikbaar maken. Dat is wel iets om goed over na te denken.
- Waar laat je je afval? In zo'n keuken wil je geen afvalemmers op de grond zetten, dus denk na over een ingebouwd afvalsysteem (vuilnisemmers in een la zo groot als een 60cm brede kast)
Goeie over het afval, die nemen we mee!
Nu eerst nog bij 2 andere partijen een offerte laten maken…
Vaatwasser zou eventueel ook in de kastenwand kunnen. Daar heb je speciale fronten voor nodig die dan knikken en je krijgt dus een extra naad. Een beetje vergelijkbaar met een vaatwasser "op hoogte". Of dat handig is, tja.Barendv schreef op vrijdag 11 april 2025 @ 08:06:
[...]
De vaatwasser is inderdaad nog een issue, daar kwam de ontwerper pas mee nadat we het frame hadden ingetekend. Waarschijnlijk gaan we het frame toch laten vervallen en het eiland op de gebruikelijke manier plaatsen, ik vind een eiland op poten wel een stuk mooier maar de voorbeelden die ik altijd zag waren een stuk kleiner en daarmee alleen poten op de hoek. Bij ons zouden het ook wel erg veel poten worden. Daarmee is het leiding werk direct weggewerkt.
Goeie over het afval, die nemen we mee!
Nu eerst nog bij 2 andere partijen een offerte laten maken…
Een frame lijkt mij echt ellende. Het betekent ook dat je alles daaronder moet blijven stofzuigen en dweilen... Maar goed, smaken verschillen gelukkig.
WP: Toshiba Estia 8kW split HWT-801H(R)W-E + HWT-1101 binnenunit met 300 liter SWW tank. PV: 3 strings, totaal 12600 Wp, 15 kWh thuisaccu
Wij hebben de X Pure Rough nu samen met de keuken laten plaatsen. Ik begreep van Bora dat we echt de eerste in Nederland zijn.yorroy schreef op vrijdag 4 april 2025 @ 12:29:
Zijn er al ervaringen met de matte Bora X Pure Rough?
Ik zag dat @Ucello @Tiuri @6pack15 @Arwen. deze overwogen hebben of zelfs besteld hebben.
Hoe zit het met de krasgevoeligheid en fingerprinting van het matte oppervlak?
Laatst zag ik 2 matte uitvoeringen in een keukenzaak van 2 verschillende merken. Op de ene plaat zag je echt helemaal niks en de ander zat vol met vingerafdrukken. Dus dat maakt kennelijk wel verschil.
Ik heb de Bora nog niet in het echt kunnen ontdekken.
Nog niet echt veel praktijkervaringen er mee. Maar mijn verwachting is wel dat er minder krassen op komen of gewoon minder zichtbaar zijn. Moet wel zeggen dat mijn vrouw hiervoor nog steeds best huiverig is en toch ook nog de matjes van Combekk heeft besteld. (https://combekk.com/product/induction-mat-set-of-3-black/)
En daarnaast het ziet er gewoon erg strak uit in een mat aanrechtblad.
Goed punt van de werkruimte, dankjewel. Ik besef me nu dat met deze indeling er weinig aansluitende werkruimte is.hamsteg schreef op woensdag 9 april 2025 @ 12:35:
[...]
Ik zou de kookplaat niet in het midden zetten. Veel koken is een pan neerzetten, er iets in doen en dan wachten (en soms keren). M.a.w. je staat niet veel voor je kookplaat maar geeft deze wel een prominente plaats. Ik zou de kookplaat richting de muur verplaatsen, genoeg ruimte tussen muur en kookplaat om een pan weg te zetten maar that's it. Ook handig dat deze tegenover de oven staat. Je houdt dan een behoorlijk werkblad over voor hak en snij werkzaamheden. Deze activiteit neemt vaak veel meer tijd van je en een breed werkvlak is dan prettig.
De kookplaat kan inderdaad naar links, maar we willen in die hoek ook een ruime koffiehoek. Minimaal een meter ruimte tussen muur en eerstvolgende item (kookplaat of spoelbak). Ik zit nu te puzzelen met koken op het eilandje, en spoelbak met vaatwasser naar de muurkant. Ik kom alleen niet lekker uit met kastjes en een hoekkast, én een beetje een prettig aanzicht. Het liefst wil ik een ruime besteklade ergens centraal. Kan dit eventueel nog onder een kookplaat met afzuiging?
Wat denken de mensen hier, koken of spoelen op mijn kleine schiereilandje..?
Keuken is inmiddels geplaats, en alles werkt naar behoren!wokkelz schreef op donderdag 3 april 2025 @ 12:04:
Wij zijn druk bezig geweest de woonkamer leeg te ruimen omdat morgen (eindelijk) onze nieuwe keuken geleverd wordt.
Zoveel mogelijk stucloper neergelegd, is het verstandig om de uitwendige hoeken nog te voorzien van bescherming ivm transportschade denken jullie?
Renderingen van de keuken;
[Afbeelding]
Zal volgende week de echte foto's nog even plaatsen.
Keuken is gekocht via keukenloods. Pronorm matlak donkergroene kasten/fronten en lionstone composiet airy concrete blad.
[Afbeelding]
:no_upscale():strip_icc():strip_exif()/f/image/Yf4HWBBPKaKMV2JopwOzFqya.jpg?f=user_large)
Toevallig was ik gisteren in de keukenzaak voor de laatste details, en heb ook de knoop doorgehakt en voor de Bora Rough gegaan. Helaas hadden ze hem nog niet staan.Ucello schreef op vrijdag 11 april 2025 @ 10:57:
[...]
Wij hebben de X Pure Rough nu samen met de keuken laten plaatsen. Ik begreep van Bora dat we echt de eerste in Nederland zijn.En dat deze plaat (samen met de glanzende) de nieuwere versie is die meer functies heeft en ook voorbereid is op de Bora app.
Nog niet echt veel praktijkervaringen er mee. Maar mijn verwachting is wel dat er minder krassen op komen of gewoon minder zichtbaar zijn. Moet wel zeggen dat mijn vrouw hiervoor nog steeds best huiverig is en toch ook nog de matjes van Combekk heeft besteld. (https://combekk.com/product/induction-mat-set-of-3-black/)
En daarnaast het ziet er gewoon erg strak uit in een mat aanrechtblad.
Hoe zit het met vingerafdrukken?
In de winkel zag ik op de matte plaat van AEG echt helemaal niks, terwijl een matte plaat van Atag vol zat met vingerafdrukken en vegen.
Heb je rechts in de hoek een le mans plateau of gewoon 'kast'?wokkelz schreef op vrijdag 11 april 2025 @ 12:44:
[...]
Keuken is inmiddels geplaats, en alles werkt naar behoren!
[Afbeelding]
[Afbeelding]
Rechts de "le mans" kast en links planken.Prins32 schreef op vrijdag 11 april 2025 @ 12:59:
[...]
Heb je rechts in de hoek een le mans plateau of gewoon 'kast'?
Wel altijd zelf testen. Want het kan ook een kwestie zijn van wel/niet goed schoonmaken. Je weet niet welke belangen de verkoper heeft om het ene merk boven het andere te adviseren en te verkopen.yorroy schreef op vrijdag 11 april 2025 @ 12:59:
[...]
In de winkel zag ik op de matte plaat van AEG echt helemaal niks, terwijl een matte plaat van Atag vol zat met vingerafdrukken en vegen.
Ik heb een stomme fout gemaakt door een groep te weinig in de keuken aan te leggen. Hierdoor kan ik er maar 1 bakoven of stoomoven in doen.
Voor de mensen hier die een van twee of beiden hebben; welke gebruiken jullie het meest en waarvoor?
Ik heb nog nooit met stoom gekookt, maar een magnetron functie heb ik ook al jaren niet gebruikt. Kan een stoomoven alleen maar stomen of toch ook goed bakken? Of zijn er apparaten in omloop die beide goed kunnen?
We hebben nu de HM936GCB1 of HS936GAB1 op het oog. Wat ik doorgaans met de oven doe; kip bakken (oven bovenwarmte + hetelucht), gratins, beef jerkey maken, etc.
Voor de mensen hier die een van twee of beiden hebben; welke gebruiken jullie het meest en waarvoor?
Ik heb nog nooit met stoom gekookt, maar een magnetron functie heb ik ook al jaren niet gebruikt. Kan een stoomoven alleen maar stomen of toch ook goed bakken? Of zijn er apparaten in omloop die beide goed kunnen?
We hebben nu de HM936GCB1 of HS936GAB1 op het oog. Wat ik doorgaans met de oven doe; kip bakken (oven bovenwarmte + hetelucht), gratins, beef jerkey maken, etc.
[ Voor 9% gewijzigd door MagniArtistique op 12-04-2025 10:09 ]
Een stoomoven kan ook bakken. In mijn oude huis had ik een combioven wat meer name de kinderen gebruik van maakten als ze voor het werk moesten eten.MagniArtistique schreef op zaterdag 12 april 2025 @ 07:48:
Ik heb een stomme fout gemaakt door een groep te weinig in de keuken aan te leggen. Hierdoor kan ik er maar 1 bakoven of stoomoven in doen.
Voor de mensen hier die een van twee of beiden hebben; welke gebruiken jullie het meest en waarvoor?
Ik heb nog nooit met stoom gekookt, maar een magnetron functie heb ik ook al jaren niet gebruikt. Kan een stoomoven alleen maar stomen of toch ook goed bakken? Of zijn er apparaten in omloop die beide goed kunnen?
We hebben nu de HM936GCB1 of HS936GAB1 op het oog.
In mijn nieuwe huis heb ik een stoomoven genomen en het bevalt prima. Regenereren met stoom duurt incl opwarmen maar 10 minuten, maar het eten blijft wel lekkerder. Pizza bakken gaat ook prima tot 250°C met een speciale ventilatiestand. Ze gaan beter dan eerst in de combi.
Ik heb de keuken net een maand overigens, dus de echte ervaring moet nog komen,
Je moet zelf vooral naar je verwachte use cases kijken. Stoom werkt goed, maar kost ook wat meer schoonmaken/drogen. Je moet dan wel dingen gaan maken die het nodig hebben. Voor puur af en toe cake of pizza bakken zou ik het niet doen.
Het werd me afgeraden een oven te nemen met drie functies, omdat niks dan echt goed werkt. Beter dan om een losse magnetron van een paar tientjes in een kast te zetten.
Als je nog nooit met stoom hebt gekookt, zou ik een bakoven nemen. Of bij een kennis de stoomoven eerst uitproberen?MagniArtistique schreef op zaterdag 12 april 2025 @ 07:48:
Ik heb een stomme fout gemaakt door een groep te weinig in de keuken aan te leggen. Hierdoor kan ik er maar 1 bakoven of stoomoven in doen.
Voor de mensen hier die een van twee of beiden hebben; welke gebruiken jullie het meest en waarvoor?
Ik heb nog nooit met stoom gekookt, maar een magnetron functie heb ik ook al jaren niet gebruikt. Kan een stoomoven alleen maar stomen of toch ook goed bakken? Of zijn er apparaten in omloop die beide goed kunnen?
We hebben nu de HM936GCB1 of HS936GAB1 op het oog. Wat ik doorgaans met de oven doe; kip bakken (oven bovenwarmte + hetelucht), gratins, beef jerkey maken, etc.
Is een groep extra laten aanleggen geen optie? Als het om nieuwbouw gaat (?): na oplevering elektricien erin en extra groep maken. Als je er wel de stopcontacten voor hebt, is die groep het probleem niet. En daarna sluit je het tweede apparaat aan.
Ik had ze beiden in het huis dat we nu verkocht hebben. In ons nieuwe huis komt bakoven en een combi met magnetron. Stoomoven gebruikten we erg weinig (eigenlijk alleen als 2e oven in geval van gratin + ovengebraad) en was door het reservoir dat er in moet kleiner qua volume.MagniArtistique schreef op zaterdag 12 april 2025 @ 07:48:
Ik heb een stomme fout gemaakt door een groep te weinig in de keuken aan te leggen. Hierdoor kan ik er maar 1 bakoven of stoomoven in doen.
Voor de mensen hier die een van twee of beiden hebben; welke gebruiken jullie het meest en waarvoor?
Ik heb nog nooit met stoom gekookt, maar een magnetron functie heb ik ook al jaren niet gebruikt. Kan een stoomoven alleen maar stomen of toch ook goed bakken? Of zijn er apparaten in omloop die beide goed kunnen?
We hebben nu de HM936GCB1 of HS936GAB1 op het oog. Wat ik doorgaans met de oven doe; kip bakken (oven bovenwarmte + hetelucht), gratins, beef jerkey maken, etc.
Die 11250 zal het totaal aan adviesprijzen van de fabrikant zijn. Daar geven ze dan 25% ‘korting’ op vanwege 25 jaar (of nieuwe locatie, of lentevoordeel, of vanwege de kleur van je ogen etc). Korting dus die iedereen krijgt. En vervolgens krijg je blijkbaar nog vriendenkorting van ruim 536 en zo kom je op dat bedrag van 6879 euro.UltraInstinct schreef op zaterdag 12 april 2025 @ 11:16:
Kan iemand mij vertellen hoe ze voor apparatuur aan 11.250,36 euro komen?
En dan 'geven' ze 25% korting omdat ze 25 jaar bestaan..
[Afbeelding]
[Afbeelding]
Zoals eerder aangegeven: vergeet al die tralala over kortingen, kijk naar het eindbedrag van 6879 en beoordeel of dat je aanspreekt.
Iemand wel eens een kunststof werkblad geplaatst bij een hoekkeuken?
Aan de onderzijde zijn gaten geboord om montage beugels te monteren die de hoek strak tegen elkaar trekt. Maar dat zit precies op plekken waar er ook een plank van de kast zit. In de hoek valt het zelfs achter de korpus en kom je er nooit bij 😅
Aan de onderzijde zijn gaten geboord om montage beugels te monteren die de hoek strak tegen elkaar trekt. Maar dat zit precies op plekken waar er ook een plank van de kast zit. In de hoek valt het zelfs achter de korpus en kom je er nooit bij 😅
Vraagje: waar in Nederland kan ik Bosch inductie kookplaten live/werkend zien? Ik ben vooral benieuwd naar het geluid bij het afzuigen (t.o.v. een Bora Puru).
Ik kreeg recent een offerte voor nieuwe keuken met de Bosch PVQ795H26E. Kan online maar weinig vinden hierover qua reviews of beoordelingen.
Ik kreeg recent een offerte voor nieuwe keuken met de Bosch PVQ795H26E. Kan online maar weinig vinden hierover qua reviews of beoordelingen.
[ Voor 3% gewijzigd door Peunage op 12-04-2025 20:41 ]
in Hoofddorp, bij het Bosch Siemens Inspiratiehuis. https://inspiratiehuis2020.nl/Peunage schreef op zaterdag 12 april 2025 @ 20:41:
Vraagje: waar in Nederland kan ik Bosch inductie kookplaten live/werkend zien? Ik ben vooral benieuwd naar het geluid bij het afzuigen (t.o.v. een Bora Puru).
Ik kreeg recent een offerte voor nieuwe keuken met de Bosch PVQ795H26E. Kan online maar weinig vinden hierover qua reviews of beoordelingen.
Vandaag toevallig geweest, zeer aan te raden! Maak een afspraak, je wordt de hele showroom rondgenomen door iemand die het ook echt allemaal snapt. Wij hadden er erg veel aan in elk geval.Frieda schreef op zaterdag 12 april 2025 @ 20:53:
[...]
in Hoofddorp, bij het Bosch Siemens Inspiratiehuis. https://inspiratiehuis2020.nl/
Graag jullie expertise. We gaan zeer waarschijnlijk voor onderstaande indeling. Een L met twee hoge kasten aan de overkant. Er komen geen bovenkastjes, wel een plank oid. De ruimte is ca 3.15x3.70 (plus de dikte van de muur). Aan de overkant van de 3.70m muur, kijken we de serre en de tuin in.
De belangrijkste afweging wordt of we gaan spoelen danwel koken op het eilandje. Met onderstaande tekeningen houd ik denk ik voldoende ruimte over voor: werkblad tussen koken en spoelen; en een ruime koffiehoek links in de hoek.
Mijn vrouw wilt graag een ronding. Met spoelen houden we daar niet veel ruimte voor over. Als we gaan koken eventueel wel.
In principe kunnen beide opstellingen volgens mij goed uit. Alleen wat is handig? Kun je koken zonder te spetteren op een eiland met bar? Is 90cm genoeg voor een koffiehoek? Is 90cm werkblad in de hoek voldoende? Zijn lades van 90cm breed, veel makkelijker dan meer 60cm lades? Wat is een praktische plek voor besteklade, voor mijn gevoel gebruiken wij die vaak? Hoe mooi is een bar die doorloopt in het 'haakse werkblad'?
De belangrijkste afweging wordt of we gaan spoelen danwel koken op het eilandje. Met onderstaande tekeningen houd ik denk ik voldoende ruimte over voor: werkblad tussen koken en spoelen; en een ruime koffiehoek links in de hoek.
Mijn vrouw wilt graag een ronding. Met spoelen houden we daar niet veel ruimte voor over. Als we gaan koken eventueel wel.
In principe kunnen beide opstellingen volgens mij goed uit. Alleen wat is handig? Kun je koken zonder te spetteren op een eiland met bar? Is 90cm genoeg voor een koffiehoek? Is 90cm werkblad in de hoek voldoende? Zijn lades van 90cm breed, veel makkelijker dan meer 60cm lades? Wat is een praktische plek voor besteklade, voor mijn gevoel gebruiken wij die vaak? Hoe mooi is een bar die doorloopt in het 'haakse werkblad'?
![]() | ![]() |
Ik denk dat allebei de opties wel kunnen.bkkrdbkstn schreef op zondag 13 april 2025 @ 12:37:
Graag jullie expertise. We gaan zeer waarschijnlijk voor onderstaande indeling. Een L met twee hoge kasten aan de overkant. Er komen geen bovenkastjes, wel een plank oid. De ruimte is ca 3.15x3.70 (plus de dikte van de muur). Aan de overkant van de 3.70m muur, kijken we de serre en de tuin in.
De belangrijkste afweging wordt of we gaan spoelen danwel koken op het eilandje. Met onderstaande tekeningen houd ik denk ik voldoende ruimte over voor: werkblad tussen koken en spoelen; en een ruime koffiehoek links in de hoek.
Mijn vrouw wilt graag een ronding. Met spoelen houden we daar niet veel ruimte voor over. Als we gaan koken eventueel wel.
In principe kunnen beide opstellingen volgens mij goed uit. Alleen wat is handig? Kun je koken zonder te spetteren op een eiland met bar? Is 90cm genoeg voor een koffiehoek? Is 90cm werkblad in de hoek voldoende? Zijn lades van 90cm breed, veel makkelijker dan meer 60cm lades? Wat is een praktische plek voor besteklade, voor mijn gevoel gebruiken wij die vaak? Hoe mooi is een bar die doorloopt in het 'haakse werkblad'?
[Afbeelding] [Afbeelding]
Kun je koken zonder spetteren. NEE, gewoon weg niet mogelijk
90cm voor koffiehoek, kan makkelijk.
90 cm in de hoek als werkblad, pas ook. (tenzij je heeeel breed bent)
Praktische plek voor besteklade is persoonlijk. In de buurt van snijden en afwassen zou ik zeggen
Je hebt de driehoek, Koelkast, snijden/wassen en koken. Die is bij beide vergelijkbaar.
Ik heb een voorkeur voor eerste model. Spoeleiland. Dit oogt rustiger, maar ik ben tegen dergelijk rondingen, tenzij je die overal in je huis hebt. Qua architectuur is strak vaak mooier. En rond heeft altijd loze ruimtes en is daardoor minder efficient.
just my2cts
If I agreed with you, we'd both be wrong.
Let op:
Dit topic kan gebruikt worden voor het volgende:
• Vragen over de keuken, denkend aan indeling, materialen, kastjes, apparatuur, etc.
• Welke kastjes, aanrechtbladen en apparatuur te kiezen
• Ervaringen met verkopers en keukenboeren
• Tips & Tricks denk hierbij aan hulp bij het zelf installeren en onderhouden van de keuken.
• Jouw indeling. Plaats gerust een foto of tekening, maar maak het niet te bont met hele buildlogs.
Voor badkamers: Het Badkamer topic: verkopers, kwaliteit, prijs - Deel 1
Showen met je keuken kan hier: Tweakers Keuken showroom! - Vestiging 1
Dit topic kan gebruikt worden voor het volgende:
• Vragen over de keuken, denkend aan indeling, materialen, kastjes, apparatuur, etc.
• Welke kastjes, aanrechtbladen en apparatuur te kiezen
• Ervaringen met verkopers en keukenboeren
• Tips & Tricks denk hierbij aan hulp bij het zelf installeren en onderhouden van de keuken.
• Jouw indeling. Plaats gerust een foto of tekening, maar maak het niet te bont met hele buildlogs.
Voor badkamers: Het Badkamer topic: verkopers, kwaliteit, prijs - Deel 1
Showen met je keuken kan hier: Tweakers Keuken showroom! - Vestiging 1
:strip_exif()/f/image/NbLv2hMaivjNLJTb0f4DccrW.jpg?f=fotoalbum_tile)
:strip_exif()/f/image/B3VMP2vSeynsiYf0X58TY3sw.jpg?f=fotoalbum_tile)
/f/image/zFetfvUKEYOEyT6aqnmgKw8h.png?f=fotoalbum_large)
/f/image/TPV2KAou0SZk2GO9vxCkjtoo.png?f=fotoalbum_large)
:strip_exif()/f/image/2Jcdytk9X8uU3YLqBytrBC7W.jpg?f=fotoalbum_tile)
:strip_exif()/f/image/SQnCkqYIp5XeQKLQjAH2n7vI.jpg?f=fotoalbum_tile)