Ja een glazen wand met deur willen we daar plaatsenSource90 schreef op vrijdag 26 januari 2024 @ 13:11:
[...]
Je moet daarvoor de plattegrond erbij pakken (paar post terug):
[Afbeelding]
@Charlot887 komt er een muur onderin de woning, om het kantoortje af te sluiten?
Waar zou jij dan de keuken plaatsen ?Orkaan schreef op vrijdag 26 januari 2024 @ 12:54:
In sommige ruimtes moet je gewoon geen kookeiland willen plaatsen. Sommige huizen lenen zich daar echt niet voor en dat lijkt mij bij dit huis ook het geval.
De andere ruimtes en woonkamers worden maar zielige sneue bedoelingen zo....zonde. Zodra de trend van een kookeiland voorbij is zit jij met een onhandig ingericht huis waar alles te krap is.... Ik zou voor advies naar allerlei keukenzaken gaan
De huidige keuken is voor ons echt te klein voorin het huis.
Wat is er concreet te klein? Wat mis je? Werkblad en -ruimte? Opslag? Bepaalde apparatuur?Charlot887 schreef op vrijdag 26 januari 2024 @ 13:36:
[...]
Waar zou jij dan de keuken plaatsen ?
De huidige keuken is voor ons echt te klein voorin het huis.
Sony A6700 - 10-18 F4 - 18-50 F2.8 - 24 F1.8 - 56 F1.4 - 70-350G
Het bij raam bij de huidige keuken is dat tot aan de grond?
Ik zou als je de keuken kwa kasten en werkblad te klein zou vinden daar dus doortrekken over de hele lengte. Heb je een mooi lang werkblad. Eetkamer tafel kan dan nog steeds ongeveer op de plek waar je hem.al.getekend.had
(Eventueel zou je indien het kozijn tot aan de grond is daar een ander kozijn kunnen plaatsen die hoger komt (meteen met HR+++ glas).
Ik zou als je de keuken kwa kasten en werkblad te klein zou vinden daar dus doortrekken over de hele lengte. Heb je een mooi lang werkblad. Eetkamer tafel kan dan nog steeds ongeveer op de plek waar je hem.al.getekend.had
(Eventueel zou je indien het kozijn tot aan de grond is daar een ander kozijn kunnen plaatsen die hoger komt (meteen met HR+++ glas).
Je zou ook een bar kunnen maken bij het raam naast de openslaande deuren met een rechte keuken langs de wand. Zoiets als dit: https://www.shelterness.c...ndowsill-breakfast-zones/
:fill(white):strip_exif()/f/image/1t5sakQtW6gZHHIDfmz5122n.png?f=user_large)
[ Voor 15% gewijzigd door ouwereus op 26-01-2024 14:51 ]
Flix20 schreef op vrijdag 26 januari 2024 @ 13:29:
[...]
En als je het eiland eens een kwartslag draait en parallel aan de pui doet?
[...]
Alleen gebeurt het bij dat laatste vooral u vraagt wij draaien.
Zijn helaas teveel verkopers die voor de snelle handel gaan i.p.v. de 'beste' oplossing.
U wilt een kookeiland, wij proppen er een kookeiland in.
:fill(white):strip_exif()/f/image/T8PmbmM0A2aYbgo1H9GSiyb6.png?f=user_large)
/f/image/kGMoQwOt5gUGVLdbH6tt7dPW.png?f=fotoalbum_large)
Parallel erop. Vind dat wel mooier . Lage kasten nu bij de tuinkant gedaan
Vind het niet mooi als alles zo tegen de muren aan is geplakt. Zonde van de ruimte.ouwereus schreef op vrijdag 26 januari 2024 @ 14:49:
Je zou ook een bar kunnen maken bij het raam naast de openslaande deuren met een rechte keuken langs de wand. Zoiets als dit: https://www.shelterness.c...ndowsill-breakfast-zones/
[Afbeelding]
Als veel mensen een inbouw combi oven / magnetron kopen van 45 of 60 cm zonder draaischijf, en dat werkt met de huidige techniek helemaal kut, hoezo is er dan geen bedrijf wat een betere magnetron module hiervoor ontwikkeld? Ik kan me gewoon niet voorstellen dat de combi magnetron/oven van nu net zo ruk is als 20 jaar geleden. Of dat een apparaat van 3000+ net zo slechte magnetron functie heeft als een ikeaFloor-is schreef op vrijdag 26 januari 2024 @ 09:38:
[...]
De modules komen voor het overgrote deel vanuit dezelfde fabriek, dus het ligt niet echt aan het merk.
Het verschil zit hem in twee dingen:
1. 60cm vs 45cm. En dat verschil is echt veel groter dan je denkt.
2. Combi: het combineren van functionaliteit zorgt er over het algemeen voor dat beiden niet optimaal zijn.
Maargoed, accepteren en doorgaan...
Die innovatie is er wel, maar heel duurgdvm schreef op vrijdag 26 januari 2024 @ 21:21:
[...]
Als veel mensen een inbouw combi oven / magnetron kopen van 45 of 60 cm zonder draaischijf, en dat werkt met de huidige techniek helemaal kut, hoezo is er dan geen bedrijf wat een betere magnetron module hiervoor ontwikkeld? Ik kan me gewoon niet voorstellen dat de combi magnetron/oven van nu net zo ruk is als 20 jaar geleden. Of dat een apparaat van 3000+ net zo slechte magnetron functie heeft als een ikea
Maargoed, accepteren en doorgaan...
https://www.miele.nl/c/revolutionary-excellence-1425.htm
Deze magnetron kan op de mm nauwkeurig de plek bepalen om te verwarmen. Dus als 80% van de magnetrons door 1 Chinese fabrikant gemaakt worden, betekent niet dat die overige 20% van de fabrikanten niet bestaan.
Uiteindelijk is eten in een magnetron altijd kut en levert het regenereren in een stoomoven een veel betere opgewarmde maaltijd op.
PSN: Flix20-NL
Sterker nog ik heb hier een heeeel oude magnetron staan die het veel beter doet dan mijn zeker 30 jaar nieuwere Miele. De opwarming gaat gewoon veel egaler in dat oude ding.gdvm schreef op vrijdag 26 januari 2024 @ 21:21:
[...]
Als veel mensen een inbouw combi oven / magnetron kopen van 45 of 60 cm zonder draaischijf, en dat werkt met de huidige techniek helemaal kut, hoezo is er dan geen bedrijf wat een betere magnetron module hiervoor ontwikkeld? Ik kan me gewoon niet voorstellen dat de combi magnetron/oven van nu net zo ruk is als 20 jaar geleden. Of dat een apparaat van 3000+ net zo slechte magnetron functie heeft als een ikea
Maargoed, accepteren en doorgaan...
Ooit heb ik ook een Siemens gehad waarmee ik dezelfde egale ervaring had. Maar met de apparatuur van tegenwoordig lijkt t allemaal basic cheapy te zijn.
Waar je het goed mee merkt is popcorn maken. In dat oude beestje krijg ik alles gepoft en nooit verbrande popcorn. In de nieuwe is de helft gepoft en de andere helft verbrand. Technisch heb ik het verschil nooit kunnen duiden.
Wat aan de Siemens destijds mooi was, was dat deze het vermogen echt kon regelen en dus niet gewoon een soort pwm signaal van max vermogen deed om de lagere vermogens te halen.
Always look on the bright side of life.
Zoals gezegd, onze Bosch 45 combi oven magnetron functie werkt al 17 jaar prima, dus denk dat de BSH dat best kan.Z___Z schreef op vrijdag 26 januari 2024 @ 09:19:
[...]
Wij hadden een 20 jaar oude 60 cm combi oven van Siemens, en daarvan was de magnetron echt waardeloos. Eten opwarmen betekende dat er allemaal hotspots waren, maar ook veel koude stukken.
Nu een Miele combi oven van 45 cm. Hier werkt de magnetron veel beter. Dus heb het idee dat BSH geen goede combimagnetron kan bouwenOverigens denk ik ook dat een stand alone 100 Euro magnetron beter werkt als magnetron dan de Miele combi oven.
Dat een 60 cm minder werkt geloof ik ook wel, alleen mag dat niet dramatisch slecht zijn, vind ik..
Die blik/plastic compact magnetrons werken altijd het beste. Net zoveel vermogen, veel compacter
Onze 45cm Siemens combi oven van 2023 heeft een prima magnetron. Geen klachten hier. Je hoort ook altijd alleen de slechte ervaringen natuurlijk.gdvm schreef op vrijdag 26 januari 2024 @ 21:21:
[...]
Als veel mensen een inbouw combi oven / magnetron kopen van 45 of 60 cm zonder draaischijf, en dat werkt met de huidige techniek helemaal kut, hoezo is er dan geen bedrijf wat een betere magnetron module hiervoor ontwikkeld? Ik kan me gewoon niet voorstellen dat de combi magnetron/oven van nu net zo ruk is als 20 jaar geleden. Of dat een apparaat van 3000+ net zo slechte magnetron functie heeft als een ikea
Maargoed, accepteren en doorgaan...
Zo'n klein ding dat alleen een magnetron functie én een draaischijf heeft werkt misschien net wat beter, maar is geen porum in een moderne keuken natuurlijk.
Zo maakt iedereen tegenwoordig wel keuzes die voor het oog beter zijn maar iets minder praktisch. Want anders hadden we allemaal wel een rvs ribbel aanrechtblad gehad
Of je “verstopt” en stand-alone magnetron achter een kastdeur.praliwi schreef op zaterdag 27 januari 2024 @ 09:38:
[...]
Onze 45cm Siemens combi oven van 2023 heeft een prima magnetron. Geen klachten hier. Je hoort ook altijd alleen de slechte ervaringen natuurlijk.
Zo'n klein ding dat alleen een magnetron functie én een draaischijf heeft werkt misschien net wat beter, maar is geen porum in een moderne keuken natuurlijk.
Zo maakt iedereen tegenwoordig wel keuzes die voor het oog beter zijn maar iets minder praktisch. Want anders hadden we allemaal wel een rvs ribbel aanrechtblad gehad
Niet in het zicht, wel goede magnetron. Zo hebben wij het ook “opgelost”.
Dan ga je ook een beetje voorbij aan het feit dat de keuken tegenwoordiig ook echt onderdeel is van het interieur en gezien mag worden als een meubelstuk. Het is al lang niet meer alleen een praktische ruimte om eten te maken. En misschien kan je zo ver gaan dat een eiland ook een bepaalde luxe uitstraalt. Kijk mij eens x m2 opofferen aan een keuken met al deze apparatuur.Z___Z schreef op vrijdag 26 januari 2024 @ 13:13:
[...]
Die trend verdwijnt pas als vrouwen weer hun traditionele rol in de maatschappij gaan innemen. Want dan blijft er buiten de eettijden voldoende tijd over om met het gezin door te brengen. Tot die tijd zijn kookeilanden en leefkeukens hier om te blijven.
https://www.rtlnieuws.nl/...uw-feminisme-doorgeslagen
En voor veel mensen is koken/een dinner party ook gewoon een hobby. Waarom zou je je afzonderen als je ook gezellig tussen je bezoek kunt staan om ze te entertainen?
En zelfs al is hij niet weggestopt in een aparte ruimte. Als je tijdens het koken naar de muur toe staat en al je gasten zitten achter je te praten geeft dat een enorm ongezellig gevoel. Een (schier)eiland is dan toch echt een van de opties om je gasten/partner niet letterlijk de rug toe te keren.Alic3 schreef op zaterdag 27 januari 2024 @ 10:50:
[...]
Dan ga je ook een beetje voorbij aan het feit dat de keuken tegenwoordiig ook echt onderdeel is van het interieur en gezien mag worden als een meubelstuk. Het is al lang niet meer alleen een praktische ruimte om eten te maken. En misschien kan je zo ver gaan dat een eiland ook een bepaalde luxe uitstraalt. Kijk mij eens x m2 opofferen aan een keuken met al deze apparatuur.
En voor veel mensen is koken/een dinner party ook gewoon een hobby. Waarom zou je je afzonderen als je ook gezellig tussen je bezoek kunt staan om ze te entertainen?
ID.3 Pro 58 kWh | Ede | 5740 Wp | PVOutput
Nog een alternatief voor je, waarbij je de trapkast vervangt door hoge kasten (in de meest linkse is de trap weggewerkt). Zo maak je de ruimte voor je eiland en de bewegingsruimte eromheen zo groot mogelijk.Charlot887 schreef op vrijdag 26 januari 2024 @ 17:21:
[...]
Parallel erop. Vind dat wel mooier . Lage kasten nu bij de tuinkant gedaan
Verder om te laten zien hoe je deze ruimte praktisch kunt indelen, zonder grote loze ruimten tussen de verschillende ruimtes te creëren. Tafel dichtbij de keuken, een rustig hoekje voor boek of telefoontje, speelhoek in de mf-ruimte. Mocht je liefhebber zijn van tv kijken, dan zou ik daar nog even goed naar kijken, want in de mf-ruimte heb je daar geen prettige afstand voor.
:no_upscale():strip_icc():fill(white):strip_exif()/f/image/liZ991W4YIiZrGgVDTRH1jtf.jpg?f=user_large)
Ik zag ook je post in een ander topic, met het oog op creëren van de doorgang naar de mf. Het lijkt me behoorlijk ingrijpend om daar alles weg te breken, terwijl je precies dat stuk alleen gebruikt voor de doorgang. Je zou ook een uitbouw kunnen maken die aan de buitenkant aansluit op de mf-ruimte. Dat geeft meteen meer ruimte in je keukengedeelte en je hebt dan ook meer contact met de mf-ruimte. Qua kosten is het mogelijk zelfs goedkoper (want minder constructie-aanpassingen nodig). Ter overweging
:no_upscale():strip_icc():fill(white):strip_exif()/f/image/Rh4jH6xtQAwu56gXe3lyPzWM.jpg?f=user_large)
Recent zijn wij ook voor een nieuwe keuken gaan kijken bij Superkeukens. Zeer fijn geholpen en tot onderstaand gekomen:
:fill(white):strip_exif()/f/image/sEAynOjOkmCdH3zLcXJgDYTz.png?f=user_large)
:fill(white):strip_exif()/f/image/MVG60SlAkirldExrAz2h6eFZ.png?f=user_large)
:strip_exif()/f/image/qef3H3V7IjgW4at8EpgB5PUW.jpg?f=fotoalbum_large)
De apparatuur zullen we zelf aanschaffen en voor het idee is op het plaatje een keramisch keukenblad erin gezet, maar dit wordt een lichtgrijs, kwartsiet blad. Het betreft dus louter de frontjes, van Nobilia, waarvoor we 4400 euro zijn aangerekend. Vanwege zeer beperkte ruimte tussen het raamkozijn en de wand, loopt de kastenwand niet volledig door.
Toch vragen we ons af of het design zo compleet is, of dat er mogelijk nog iets mist/beter kan. Eventuele suggesties horen we graag!
:fill(white):strip_exif()/f/image/sEAynOjOkmCdH3zLcXJgDYTz.png?f=user_large)
:fill(white):strip_exif()/f/image/MVG60SlAkirldExrAz2h6eFZ.png?f=user_large)
:strip_exif()/f/image/qef3H3V7IjgW4at8EpgB5PUW.jpg?f=fotoalbum_large)
De apparatuur zullen we zelf aanschaffen en voor het idee is op het plaatje een keramisch keukenblad erin gezet, maar dit wordt een lichtgrijs, kwartsiet blad. Het betreft dus louter de frontjes, van Nobilia, waarvoor we 4400 euro zijn aangerekend. Vanwege zeer beperkte ruimte tussen het raamkozijn en de wand, loopt de kastenwand niet volledig door.
Toch vragen we ons af of het design zo compleet is, of dat er mogelijk nog iets mist/beter kan. Eventuele suggesties horen we graag!
We maken eindelijk wat vorderingen.
Superkeukens was ok, helaas luisterde de verkoopster niet naar onze apparatuur wensen en bleef maar Etna pushen. Daarnaast is het ontwerp het toch ook niet helemaal op dit moment. (Weet nog nog niet of we terug gaan)
Benmel & Kroon ging al beter, alleen hier viel het wat tegen hoe behulpzaam de verkoopster was aangaande lades in indelingen van lades. Het leek dat ze geen zin had om echt uitleg over lades te geven. Tevens kregen we ineens te horen dat we een beetje op moesten schieten en we geen tijd meer hadden omdat we aan het begin van de afspraak rond gekeken hadden naar frontjes en keuken ideeën… wat hun eigen idee was notabenen.
Tevens erg duur werkblad voor mijn gevoel, geen eens keramiek of dekton maar kunststof.
Ontwerp werd wel al beter maar er gaat denk ik een streep door B&M
Vandaag bij lokale zaak in Heemstede geweest, zeer prettig geholpen, uitgebreid de tijd genomen. Uiteindelijk frontjes en een mogelijke blad kleur gekozen. Tevens een eerste design schets gemaakt. Deze wordt nu verder uit gewerkt. Al met al zeer tevreden alleen zal het prijskaartje hier ook wel naar zijn ben ik bang.
Superkeukens was ok, helaas luisterde de verkoopster niet naar onze apparatuur wensen en bleef maar Etna pushen. Daarnaast is het ontwerp het toch ook niet helemaal op dit moment. (Weet nog nog niet of we terug gaan)
Benmel & Kroon ging al beter, alleen hier viel het wat tegen hoe behulpzaam de verkoopster was aangaande lades in indelingen van lades. Het leek dat ze geen zin had om echt uitleg over lades te geven. Tevens kregen we ineens te horen dat we een beetje op moesten schieten en we geen tijd meer hadden omdat we aan het begin van de afspraak rond gekeken hadden naar frontjes en keuken ideeën… wat hun eigen idee was notabenen.
Tevens erg duur werkblad voor mijn gevoel, geen eens keramiek of dekton maar kunststof.
Ontwerp werd wel al beter maar er gaat denk ik een streep door B&M
Vandaag bij lokale zaak in Heemstede geweest, zeer prettig geholpen, uitgebreid de tijd genomen. Uiteindelijk frontjes en een mogelijke blad kleur gekozen. Tevens een eerste design schets gemaakt. Deze wordt nu verder uit gewerkt. Al met al zeer tevreden alleen zal het prijskaartje hier ook wel naar zijn ben ik bang.
Wow wat een gave ideeën! Dank hiervoor. Dat tv kijken in die ruimte wordt nog wel een dingetje inderdaad, hebben nu best een grote zithoek met 65" tv. Dat kijkt niet lekker van dichtbij. Maar zie momenteel ook geen andere optie dan daar.Toke_gt schreef op zaterdag 27 januari 2024 @ 13:05:
[...]
Nog een alternatief voor je, waarbij je de trapkast vervangt door hoge kasten (in de meest linkse is de trap weggewerkt). Zo maak je de ruimte voor je eiland en de bewegeingsruimte eromheen zo groot mogelijk.
Verder nog een schets om te laten zien hoe je deze ruimte praktisch kunt indelen, zonder grote loze ruimten tussen de verschillende ruimtes te creëren. Tafel dichtbij de keuken, een rustig hoekje voor boek of telefoontje, speelhoek in de mf-ruimte. Mocht je liefhebber zijn van tv kijken, dan zou ik daar nog even goed naar kijken, want in de mf-ruimte heb je daar geen prettige afstand voor.
[Afbeelding]
Ik zag ook je post in een ander topic, met het oog op creëren van de doorgang naar de mf. Het lijkt me behoorlijk ingrijpend om daar alles weg te breken, terwijl je precies dat stuk alleen gebruikt voor de doorgang. Je zou ook een uitbouw kunnen maken die aan de buitenkant aansluit op de mf-ruimte. Dat geeft meteen meer ruimte in je keukengedeelte en je hebt dan ook meer contact met de mf-ruimte. Qua kosten is het mogelijk zelfs goedkoper (want minder constructie-aanpassingen nodig). Ter overweging
[Afbeelding]
Hoort misschien meer in het andere topic (Woonkamer doorbraak naar voormalige garage) maar je kunt de keuken ook in de mf-ruimte plaatsen (geen eiland maar schiereiland van bijv 1.80) en de zithoek in het meest brede deel van de woonkamer. Kantoor kun je wat groter maken en afsluiten met deuren en suite, bijvoorbeeld zo:Charlot887 schreef op zaterdag 27 januari 2024 @ 17:14:
[...]
Wow wat een gave ideeën! Dank hiervoor. Dat tv kijken in die ruimte wordt nog wel een dingetje inderdaad, hebben nu best een grote zithoek met 65" tv. Dat kijkt niet lekker van dichtbij. Maar zie momenteel ook geen andere optie dan daar.
:no_upscale():strip_icc():fill(white):strip_exif()/f/image/gUvEkJ3aidCMTkH35Ea8S5v8.jpg?f=user_large)
Is een eiland een must? Zou er eerder een schiereiland van maken in deze ruimte. Creëer je direct meer werkruimte en extra kastruimte in het eiland. Zou dan de 2 bovenkastjes weglaten.hewlett168 schreef op zaterdag 27 januari 2024 @ 15:44:
Recent zijn wij ook voor een nieuwe keuken gaan kijken bij Superkeukens. Zeer fijn geholpen en tot onderstaand gekomen:
[Afbeelding]
[Afbeelding]
[Afbeelding]
De apparatuur zullen we zelf aanschaffen en voor het idee is op het plaatje een keramisch keukenblad erin gezet, maar dit wordt een lichtgrijs, kwartsiet blad. Het betreft dus louter de frontjes, van Nobilia, waarvoor we 4400 euro zijn aangerekend. Vanwege zeer beperkte ruimte tussen het raamkozijn en de wand, loopt de kastenwand niet volledig door.
Toch vragen we ons af of het design zo compleet is, of dat er mogelijk nog iets mist/beter kan. Eventuele suggesties horen we graag!
Het idee was dat een losstaand eiland toch ruimtelijker en mooier is dan een schiereiland. Bij een schiereiland zou zelfs overwogen kunnen worden om de achterwand en schiereiland te verbinden.Philonie schreef op zaterdag 27 januari 2024 @ 19:44:
[...]
Is een eiland een must? Zou er eerder een schiereiland van maken in deze ruimte. Creëer je direct meer werkruimte en extra kastruimte in het eiland. Zou dan de 2 bovenkastjes weglaten.
Het idee van de twee kastjes is dat anders de achterwand relatief leeg is.
Hoe zit het eigenlijk met keukenbladen.
Ik krijg gemengde adviezen van keukenzaken die niet altijd even goed overeenkomen met de topic start.
Keramiek is gevoelig voor punt belasting dan wel een stoot tegen de rand dit kom bij allemaal aardig overeen. De vraag is uiteraard hoe kwetsbaar is het dan echt?
Composiet zijn de meningen (die ik mee gekregen heb) verdeeld maar ook lijkt hier de consensus te zijn dat hier ook een risico op “chippen” is.
Dekton weet ik niet zo veel over.
En dan natuurlijk nog kunststof wat vooral slecht hitte bestendig is.
Wat mis ik eventueel nog want de keuze vind ik erg lastig.
Het blad moet sowieso niet poreus zijn, niet kras gevoelig, en zo min mogelijk gevoelig voor botsen / butsen.
Ik krijg gemengde adviezen van keukenzaken die niet altijd even goed overeenkomen met de topic start.
Keramiek is gevoelig voor punt belasting dan wel een stoot tegen de rand dit kom bij allemaal aardig overeen. De vraag is uiteraard hoe kwetsbaar is het dan echt?
Composiet zijn de meningen (die ik mee gekregen heb) verdeeld maar ook lijkt hier de consensus te zijn dat hier ook een risico op “chippen” is.
Dekton weet ik niet zo veel over.
En dan natuurlijk nog kunststof wat vooral slecht hitte bestendig is.
Wat mis ik eventueel nog want de keuze vind ik erg lastig.
Het blad moet sowieso niet poreus zijn, niet kras gevoelig, en zo min mogelijk gevoelig voor botsen / butsen.
Je beschrijft een keramiek blad.Dracula schreef op zaterdag 27 januari 2024 @ 21:27:
Het blad moet sowieso niet poreus zijn, niet kras gevoelig, en zo min mogelijk gevoelig voor botsen / butsen.
En dat gevoelig moet je ruim nemen. Als je een hamer erop laat vallen heb je kans dat het barst. Net als je tegels in de badkamer. Het is gewoon een hele grote badkamertegel. Dus bedenk je hoe snel een badkamertegel barst of krast en je hebt je antwoord.
Dekton is een merknaam. Ze maken keramieken bladen.Dracula schreef op zaterdag 27 januari 2024 @ 21:27:
Dekton weet ik niet zo veel over.
Maar er zijn nog meer merken. Wij hebben bijvoorbeeld een blad van Ceramistone en eentje van Marazzi.
Wij gaan verbouwen en overweeg de aanschaf van een inductieplaat van 90 cm. Mijn dilemma is echter de keuze tussen een 5-pits model met één krachtige pit van 5500 watt of een 6-pits model met 3 zones die per zone max 3700 watt leveren. Als fervent liefhebber van wokgerechten ben ik gewend aan de intense hitte van mijn huidige gasfornuis wokpit, en ik vraag me dan ook af of een 3700 watt pit voldoende is voor een goede wokervaring.
Qua looks geniet namelijk het 6-pits model de voorkeur.
6-pits model
5-pits model
Qua looks geniet namelijk het 6-pits model de voorkeur.
6-pits model
5-pits model
Als je geen licht blad wil is graniet ook nog een optie.Dracula schreef op zaterdag 27 januari 2024 @ 21:27:
Het blad moet sowieso niet poreus zijn, niet kras gevoelig, en zo min mogelijk gevoelig voor botsen / butsen.
Sony A6700 - 10-18 F4 - 18-50 F2.8 - 24 F1.8 - 56 F1.4 - 70-350G
Toch juist een composiet blad? Ivm bots/buts gevoeligheid? Denk dat wel/niet de eis voor hittebestendigheid de doorslag zal geven..t14wo schreef op zaterdag 27 januari 2024 @ 22:36:
[...]
Je beschrijft een keramiek blad.
En dat gevoelig moet je ruim nemen. Als je een hamer erop laat vallen heb je kans dat het barst. Net als je tegels in de badkamer. Het is gewoon een hele grote badkamertegel. Dus bedenk je hoe snel een badkamertegel barst of krast en je hebt je antwoord.
Dracula schreef op zaterdag 27 januari 2024 @ 21:27:
Hoe zit het eigenlijk met keukenbladen.
Ik krijg gemengde adviezen van keukenzaken die niet altijd even goed overeenkomen met de topic start.
Keramiek is gevoelig voor punt belasting dan wel een stoot tegen de rand dit kom bij allemaal aardig overeen. De vraag is uiteraard hoe kwetsbaar is het dan echt?
Composiet zijn de meningen (die ik mee gekregen heb) verdeeld maar ook lijkt hier de consensus te zijn dat hier ook een risico op “chippen” is.
Dekton weet ik niet zo veel over.
En dan natuurlijk nog kunststof wat vooral slecht hitte bestendig is.
Wat mis ik eventueel nog want de keuze vind ik erg lastig.
Het blad moet sowieso niet poreus zijn, niet kras gevoelig, en zo min mogelijk gevoelig voor botsen / butsen.
:strip_exif()/f/image/f1aFXTAtIMH8jPMf0pf6HIrT.jpg?f=fotoalbum_large)
:no_upscale():strip_icc():fill(white):strip_exif()/f/image/wyia0x008d4uFRWfX5neUqSA.jpg?f=user_large)
/f/image/mUnc65bRH4ZDsNIR9gJVqsUU.webp?f=fotoalbum_large)
:strip_exif()/f/image/Q5gekv6Z4PT11EHT9xzbZpXL.jpg?f=fotoalbum_large)
[ Voor 28% gewijzigd door SquareOne op 28-01-2024 09:38 ]
Hellup.
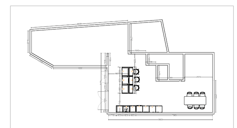
We zijn nu al een aardig tijdje bezig met het ontwerp van onze keuken voor een nieuwbouwhuis. Ik heb al veel geleerd in dit topic, maar nu we echt zelf bezig moeten met de indeling komen we er toch niet uit. Gisteren voor de 1e keer echt lang (4h!) bij een gedegen keukenleverancier gezeten. Tijdens het gesprek werden we vrij enthousiast maar na thuiskomt toch weer veel twijfel.
We hebben eigenlijk weinig echt harde eisen. We willen graag een kleine ronde tafel in de keuken om met 3-4 man te kunnen ontbijten, kunnen praten met gasten tijdens het koken zou fijn zijn (alleen met eiland...?) en genoeg kastruimte e.d.
De ruimte
/f/image/slX7CTcbhRvDl2Z2ZIZrKKJq.png?f=fotoalbum_large)
Voorlopige idee voor indeling (behalve keuken)
/f/image/kJbe7Bm9FgdbHVe6ZtLvLyYi.png?f=fotoalbum_large)
Overigens was door de architect de keuken in de hals getekend (parallel dus), maar die viel al snel af vanwege het feit dat mijn vrouw erg gehecht is aan wat rust/afzondering in de keuken (zij noemt het knus). Dan valt een keuken die ook looppad (sprint-pad voor de kids) is al af.
Hieronder een aantal globale ontwerpen, let (nog) niet teveel op exacte locatie spoelbak, koken, ovens.
Ontwerp 1
/f/image/bX1L1ZFAZoCALts3YjGzJNk2.png?f=fotoalbum_large)
Denk bij deze een barretje aan de linkerzijde in. Daar heb je dan een doodlopend pad, sowieso is de breedte van de ruimte op het smalste deel 3.1m, dus bij een schiereiland van 1.1m heb je maar 1m ruimte, te krap (vooral aan de bar zijde)?
Ontwerp 2
/f/image/JrV85HmfQojtd5udA0iukLaM.png?f=fotoalbum_large)
De achterwand kan natuurlijker strakker, symmetrie e.d., dat is in deze versie nog niet meegenomen. Aan de voorkant kan een barretje. Ook kan koken en spoelbak gewisseld worden (anders nog niet "gezellig"). Maar is sowieso het eiland niet te krap hier, wederom aan beide kanten maar 1m ruimte als het eiland bijv. ~1.4m breed is.
Ontwerp 3
/f/image/F1buzcRCYCRcECtAKRhsJK0j.png?f=fotoalbum_large)
Bij deze kan het eiland bijv. ook ~90cm breed zijn, dan heb je dus al meer ruimte er omheen en past het mogelijk wel goed. Maar hier zit weer erg weinig ruimte bij spoelbak en kookplaat...
Ontwerp 4
/f/image/v1xVQYeUiPXfgjNW6YjYWcUm.png?f=fotoalbum_large)
Dit was het resultaat van de 4 uur bij de keukenleverancier (dit is een foto van halverwege, opstelling klopt). Maar achteraf begonnen we erg te twijfelen vanwege het eiland dat dus maar 60-70cm diep is, lijkt ons erg onprettig koken, alsof de pan met een duwtje het ravijn in kan vliegen
Kom dit ook eigenlijk nergens tegen in keukenzaken, doet niemand(?)
Ontwerp 5
/f/image/oIC6ZYczHtBwMv8rD7ruNd0X.png?f=fotoalbum_large)
Onze eigen verbouwing van ontwerp 4, dikker eiland, maar dan komt het dus voor het raam uit, gaat dat enorm lelijk worden? Vraagt iedereen die binnenkomt en voor 't raam langsloopt wat wij hebben gesnoven tijdens het ontwerp? Vind het resultaat zelf erg lastig voorstellen.
Ontwerp 6
/f/image/an1TDyt302bLcM5Mc6yaEMaM.png?f=fotoalbum_large)
L + schiereiland. Bij deze komt het schier-eiland voor de linkermuur uit om voldoende ruimte tussen achterwand en schier-eiland te houden. En omdat we daar de grote eettafel gepland hebben (zie overzicht) wordt dan de looproute volgens mij te krap/onhandig.
Hierop is natuurlijk een variant mogelijk zonder bar, dit voorbeeld van Schuller past bijv. vrij perfect in onze ruimte, en vinden we ook wel erg mooi.
/f/image/Y2Xgee7HbEnSvBKS2zltRiSr.png?f=fotoalbum_large)
Maar dan moeten we afzien van een barretje, dus minder gezellig keuvelen
Bij deze laatste zou dan mogelijk wel (als enige?) een kleine ronde tafel in de keuken passen, lijkt ons erg leuk, maar tijdens koken minder gezellig dan een bar.
Wat denken jullie? Missen we nog een ontwerp, alle ideeën welkom
We zijn nu al een aardig tijdje bezig met het ontwerp van onze keuken voor een nieuwbouwhuis. Ik heb al veel geleerd in dit topic, maar nu we echt zelf bezig moeten met de indeling komen we er toch niet uit. Gisteren voor de 1e keer echt lang (4h!) bij een gedegen keukenleverancier gezeten. Tijdens het gesprek werden we vrij enthousiast maar na thuiskomt toch weer veel twijfel.
We hebben eigenlijk weinig echt harde eisen. We willen graag een kleine ronde tafel in de keuken om met 3-4 man te kunnen ontbijten, kunnen praten met gasten tijdens het koken zou fijn zijn (alleen met eiland...?) en genoeg kastruimte e.d.
De ruimte
/f/image/slX7CTcbhRvDl2Z2ZIZrKKJq.png?f=fotoalbum_large)
Voorlopige idee voor indeling (behalve keuken)
/f/image/kJbe7Bm9FgdbHVe6ZtLvLyYi.png?f=fotoalbum_large)
Overigens was door de architect de keuken in de hals getekend (parallel dus), maar die viel al snel af vanwege het feit dat mijn vrouw erg gehecht is aan wat rust/afzondering in de keuken (zij noemt het knus). Dan valt een keuken die ook looppad (sprint-pad voor de kids) is al af.
Hieronder een aantal globale ontwerpen, let (nog) niet teveel op exacte locatie spoelbak, koken, ovens.
Ontwerp 1
/f/image/bX1L1ZFAZoCALts3YjGzJNk2.png?f=fotoalbum_large)
Denk bij deze een barretje aan de linkerzijde in. Daar heb je dan een doodlopend pad, sowieso is de breedte van de ruimte op het smalste deel 3.1m, dus bij een schiereiland van 1.1m heb je maar 1m ruimte, te krap (vooral aan de bar zijde)?
Ontwerp 2
/f/image/JrV85HmfQojtd5udA0iukLaM.png?f=fotoalbum_large)
De achterwand kan natuurlijker strakker, symmetrie e.d., dat is in deze versie nog niet meegenomen. Aan de voorkant kan een barretje. Ook kan koken en spoelbak gewisseld worden (anders nog niet "gezellig"). Maar is sowieso het eiland niet te krap hier, wederom aan beide kanten maar 1m ruimte als het eiland bijv. ~1.4m breed is.
Ontwerp 3
/f/image/F1buzcRCYCRcECtAKRhsJK0j.png?f=fotoalbum_large)
Bij deze kan het eiland bijv. ook ~90cm breed zijn, dan heb je dus al meer ruimte er omheen en past het mogelijk wel goed. Maar hier zit weer erg weinig ruimte bij spoelbak en kookplaat...
Ontwerp 4
/f/image/v1xVQYeUiPXfgjNW6YjYWcUm.png?f=fotoalbum_large)
Dit was het resultaat van de 4 uur bij de keukenleverancier (dit is een foto van halverwege, opstelling klopt). Maar achteraf begonnen we erg te twijfelen vanwege het eiland dat dus maar 60-70cm diep is, lijkt ons erg onprettig koken, alsof de pan met een duwtje het ravijn in kan vliegen
Ontwerp 5
/f/image/oIC6ZYczHtBwMv8rD7ruNd0X.png?f=fotoalbum_large)
Onze eigen verbouwing van ontwerp 4, dikker eiland, maar dan komt het dus voor het raam uit, gaat dat enorm lelijk worden? Vraagt iedereen die binnenkomt en voor 't raam langsloopt wat wij hebben gesnoven tijdens het ontwerp? Vind het resultaat zelf erg lastig voorstellen.
Ontwerp 6
/f/image/an1TDyt302bLcM5Mc6yaEMaM.png?f=fotoalbum_large)
L + schiereiland. Bij deze komt het schier-eiland voor de linkermuur uit om voldoende ruimte tussen achterwand en schier-eiland te houden. En omdat we daar de grote eettafel gepland hebben (zie overzicht) wordt dan de looproute volgens mij te krap/onhandig.
Hierop is natuurlijk een variant mogelijk zonder bar, dit voorbeeld van Schuller past bijv. vrij perfect in onze ruimte, en vinden we ook wel erg mooi.
/f/image/Y2Xgee7HbEnSvBKS2zltRiSr.png?f=fotoalbum_large)
Maar dan moeten we afzien van een barretje, dus minder gezellig keuvelen

Bij deze laatste zou dan mogelijk wel (als enige?) een kleine ronde tafel in de keuken passen, lijkt ons erg leuk, maar tijdens koken minder gezellig dan een bar.
Wat denken jullie? Missen we nog een ontwerp, alle ideeën welkom
Ik lees dit forum al geruime tijd mee en het heeft mij erg geholpen om de keukenboeren en hun tactieken te doorgronden.
Mede door dit forum zijn wij bij Superkeukens langs geweest en hebben dat in een paar sessie een Schüller keuken laten ontwerpen. Ze waren niet heel opdringerig, maar alsnog hebben ze wel de standaard keukenverkoper praatjes.
We hebben nu een offerte gekregen die precies lijst wat er in de keuken zit, maar er zit alleen maar een eindprijs bij. Is dit normaal bij Superkeukens? Ik had toch meer transparantie verwacht en heb het idee dat de apparatuurprijzen wel fors zijn. Ik hoef niet de allerlaagste webshopprijs, maar had een beter aanbod verwacht onder het motto "we doen meteen een goed aanbod".
De vraag aan jullie: is het normal dat Superkeukens alleen een eindprijs geeft?
Mede door dit forum zijn wij bij Superkeukens langs geweest en hebben dat in een paar sessie een Schüller keuken laten ontwerpen. Ze waren niet heel opdringerig, maar alsnog hebben ze wel de standaard keukenverkoper praatjes.
We hebben nu een offerte gekregen die precies lijst wat er in de keuken zit, maar er zit alleen maar een eindprijs bij. Is dit normaal bij Superkeukens? Ik had toch meer transparantie verwacht en heb het idee dat de apparatuurprijzen wel fors zijn. Ik hoef niet de allerlaagste webshopprijs, maar had een beter aanbod verwacht onder het motto "we doen meteen een goed aanbod".
De vraag aan jullie: is het normal dat Superkeukens alleen een eindprijs geeft?
Als je alleen een totaalprijs heb weet je toch nu of dat in de apparatuurprijzen zit?gurbo schreef op zondag 28 januari 2024 @ 10:04:
Ik lees dit forum al geruime tijd mee en het heeft mij erg geholpen om de keukenboeren en hun tactieken te doorgronden.
Mede door dit forum zijn wij bij Superkeukens langs geweest en hebben dat in een paar sessie een Schüller keuken laten ontwerpen. Ze waren niet heel opdringerig, maar alsnog hebben ze wel de standaard keukenverkoper praatjes.
We hebben nu een offerte gekregen die precies lijst wat er in de keuken zit, maar er zit alleen maar een eindprijs bij. Is dit normaal bij Superkeukens? Ik had toch meer transparantie verwacht en heb het idee dat de apparatuurprijzen wel fors zijn. Ik hoef niet de allerlaagste webshopprijs, maar had een beter aanbod verwacht onder het motto "we doen meteen een goed aanbod".
De vraag aan jullie: is het normal dat Superkeukens alleen een eindprijs geeft?
Of heb je de prijs opgesplitst naar 1) kasten 2) apparatuur 3) werkblad?
Je kunt natuurlijk altijd vragen of ze het kunnen opsplitsen naar deze drie categorieën.
Begrijp me niet verkeerd. Ik heb er ook een hekel aan als er alleen een totaalprijs staat.
[ Voor 7% gewijzigd door SquareOne op 28-01-2024 10:45 ]
Bij Superkeukens staat op mijn offerte inderdaad alleen een totaalprijs, maar op verzoek is het per mail uitgesplitst naar onderdeel.gurbo schreef op zondag 28 januari 2024 @ 10:04:
Ik lees dit forum al geruime tijd mee en het heeft mij erg geholpen om de keukenboeren en hun tactieken te doorgronden.
Mede door dit forum zijn wij bij Superkeukens langs geweest en hebben dat in een paar sessie een Schüller keuken laten ontwerpen. Ze waren niet heel opdringerig, maar alsnog hebben ze wel de standaard keukenverkoper praatjes.
We hebben nu een offerte gekregen die precies lijst wat er in de keuken zit, maar er zit alleen maar een eindprijs bij. Is dit normaal bij Superkeukens? Ik had toch meer transparantie verwacht en heb het idee dat de apparatuurprijzen wel fors zijn. Ik hoef niet de allerlaagste webshopprijs, maar had een beter aanbod verwacht onder het motto "we doen meteen een goed aanbod".
De vraag aan jullie: is het normal dat Superkeukens alleen een eindprijs geeft?
Grappig dat superkeukens can alles zegt,hewlett168 schreef op zondag 28 januari 2024 @ 11:13:
[...]
Bij Superkeukens staat op mijn offerte inderdaad alleen een totaalprijs, maar op verzoek is het per mail uitgesplitst naar onderdeel.
Ik heb ook naar gesplitst gevraagd maar dat kon niet want alles werkte met een punten systeem zoals douwe egberts.
De Schuller opstelling en dan kleine bar ipv eiland zoals je in ontwerp 4 hebt getekend?Joydashy schreef op zondag 28 januari 2024 @ 09:42:
Hellup.
We zijn nu al een aardig tijdje bezig met het ontwerp van onze keuken voor een nieuwbouwhuis. Ik heb al veel geleerd in dit topic, maar nu we echt zelf bezig moeten met de indeling komen we er toch niet uit. Gisteren voor de 1e keer echt lang (4h!) bij een gedegen keukenleverancier gezeten. Tijdens het gesprek werden we vrij enthousiast maar na thuiskomt toch weer veel twijfel.
We hebben eigenlijk weinig echt harde eisen. We willen graag een kleine ronde tafel in de keuken om met 3-4 man te kunnen ontbijten, kunnen praten met gasten tijdens het koken zou fijn zijn (alleen met eiland...?) en genoeg kastruimte e.d.
De ruimte
[Afbeelding]
Voorlopige idee voor indeling (behalve keuken)
[Afbeelding]
Overigens was door de architect de keuken in de hals getekend (parallel dus), maar die viel al snel af vanwege het feit dat mijn vrouw erg gehecht is aan wat rust/afzondering in de keuken (zij noemt het knus). Dan valt een keuken die ook looppad (sprint-pad voor de kids) is al af.
Hieronder een aantal globale ontwerpen, let (nog) niet teveel op exacte locatie spoelbak, koken, ovens.
Ontwerp 1
[Afbeelding]
Denk bij deze een barretje aan de linkerzijde in. Daar heb je dan een doodlopend pad, sowieso is de breedte van de ruimte op het smalste deel 3.1m, dus bij een schiereiland van 1.1m heb je maar 1m ruimte, te krap (vooral aan de bar zijde)?
Ontwerp 2
[Afbeelding]
De achterwand kan natuurlijker strakker, symmetrie e.d., dat is in deze versie nog niet meegenomen. Aan de voorkant kan een barretje. Ook kan koken en spoelbak gewisseld worden (anders nog niet "gezellig"). Maar is sowieso het eiland niet te krap hier, wederom aan beide kanten maar 1m ruimte als het eiland bijv. ~1.4m breed is.
Ontwerp 3
[Afbeelding]
Bij deze kan het eiland bijv. ook ~90cm breed zijn, dan heb je dus al meer ruimte er omheen en past het mogelijk wel goed. Maar hier zit weer erg weinig ruimte bij spoelbak en kookplaat...
Ontwerp 4
[Afbeelding]
Dit was het resultaat van de 4 uur bij de keukenleverancier (dit is een foto van halverwege, opstelling klopt). Maar achteraf begonnen we erg te twijfelen vanwege het eiland dat dus maar 60-70cm diep is, lijkt ons erg onprettig koken, alsof de pan met een duwtje het ravijn in kan vliegenKom dit ook eigenlijk nergens tegen in keukenzaken, doet niemand(?)
Ontwerp 5
[Afbeelding]
Onze eigen verbouwing van ontwerp 4, dikker eiland, maar dan komt het dus voor het raam uit, gaat dat enorm lelijk worden? Vraagt iedereen die binnenkomt en voor 't raam langsloopt wat wij hebben gesnoven tijdens het ontwerp? Vind het resultaat zelf erg lastig voorstellen.
Ontwerp 6
[Afbeelding]
L + schiereiland. Bij deze komt het schier-eiland voor de linkermuur uit om voldoende ruimte tussen achterwand en schier-eiland te houden. En omdat we daar de grote eettafel gepland hebben (zie overzicht) wordt dan de looproute volgens mij te krap/onhandig.
Hierop is natuurlijk een variant mogelijk zonder bar, dit voorbeeld van Schuller past bijv. vrij perfect in onze ruimte, en vinden we ook wel erg mooi.
[Afbeelding]
Maar dan moeten we afzien van een barretje, dus minder gezellig keuvelen![]()
Bij deze laatste zou dan mogelijk wel (als enige?) een kleine ronde tafel in de keuken passen, lijkt ons erg leuk, maar tijdens koken minder gezellig dan een bar.
Wat denken jullie? Missen we nog een ontwerp, alle ideeën welkom
:no_upscale():strip_icc():fill(white):strip_exif()/f/image/U9rSupl3YAy0IcAYnbKZ7Njz.jpg?f=user_large)
Je zou dan ook nog dat Schuller idee kunnen spiegelen. Dus hoge kasten tegen kant van de hal en laag deel aan buitenmuur. Daan kun je dan het barretje op laten aansluiten
[ Voor 4% gewijzigd door SquareOne op 28-01-2024 11:57 ]
Ik vind de ruimte eigenlijk niet geschikt voor een eiland (iig niet om te koken en/of wassen). De Schuller-opstelling met een tafel vind ik dan het meest charmant. Als dat een beetje fijne stoelen zijn dan trekt iemand die naar achter en kan je ook nog meeborrelen tijdens het koken.Joydashy schreef op zondag 28 januari 2024 @ 09:42:
Hellup.
We zijn nu al een aardig tijdje bezig met het ontwerp van onze keuken voor een nieuwbouwhuis. Ik heb al veel geleerd in dit topic, maar nu we echt zelf bezig moeten met de indeling komen we er toch niet uit. Gisteren voor de 1e keer echt lang (4h!) bij een gedegen keukenleverancier gezeten. Tijdens het gesprek werden we vrij enthousiast maar na thuiskomt toch weer veel twijfel.
We hebben eigenlijk weinig echt harde eisen. We willen graag een kleine ronde tafel in de keuken om met 3-4 man te kunnen ontbijten, kunnen praten met gasten tijdens het koken zou fijn zijn (alleen met eiland...?) en genoeg kastruimte e.d.
De ruimte
[Afbeelding]
Voorlopige idee voor indeling (behalve keuken)
[Afbeelding]
Overigens was door de architect de keuken in de hals getekend (parallel dus), maar die viel al snel af vanwege het feit dat mijn vrouw erg gehecht is aan wat rust/afzondering in de keuken (zij noemt het knus). Dan valt een keuken die ook looppad (sprint-pad voor de kids) is al af.
Hieronder een aantal globale ontwerpen, let (nog) niet teveel op exacte locatie spoelbak, koken, ovens.
Wat denken jullie? Missen we nog een ontwerp, alle ideeën welkom
De omgedraaide Schuller-optie met een klein barretje, zoals @SquareOne noemt vind ik ook erg leuk als je toch dichter op het koken wilt zitten. Daar zou je dan ook nog wat snijwerk kunnen doen.
Je kunt je afvragen hoeveel er nu gekeuveld wordt in je keuken. Gaat dat niet zonder barretje? Die kleine ronde tafel is misschien wel veel leuker. Je zit sowieso prettiger op een stoel dan op een kruk en je kunt daar ook leuk naar buiten kijken als je op een mooie zondagochtend zit te ontbijten.Joydashy schreef op zondag 28 januari 2024 @ 09:42:
...
Hierop is natuurlijk een variant mogelijk zonder bar, dit voorbeeld van Schuller past bijv. vrij perfect in onze ruimte, en vinden we ook wel erg mooi.
[Afbeelding]
Maar dan moeten we afzien van een barretje, dus minder gezellig keuvelen![]()
Bij deze laatste zou dan mogelijk wel (als enige?) een kleine ronde tafel in de keuken passen, lijkt ons erg leuk, maar tijdens koken minder gezellig dan een bar.
Dat weet je nooit.t14wo schreef op vrijdag 26 januari 2024 @ 13:05:
[...]
Die trend van keukeneilanden verdwijnt echt niet meer.Het is gewoon hoe keukens nu ontworpen worden. Vroeger was een keuken weggemoffeld in de hoek, het liefst in een afgesloten ruimte. Al decenia gebeurt dat al niet meer.
Voorbeeld: vroeger rookte bijna iedereen, ook in eigen huis. Nu een hele kleine minderheid. Idem met open haarden en slecht afsluitende houtkachels.
Op dit moment komt steeds meer informatie naar buiten over de schadelijkheid van kookstoffen, bijvoorbeeld de grote hoeveelheid (ultra)fijnstof die vrijkomt bij met name bakken. Nu vinden we het heel normaal om dit midden in de woonruimte te doen en lichtjes af te zuigen met een recirculatiefilter, dat de lucht dus weer in de ruimte terugbrengt. Dat kan veranderen als er met de tijd meer inzichten komen over de schadelijkheid van deze stoffen. Het gevolg kan bijvoorbeeld zijn dat afzuiging / filtering extreem veel beter wordt, maar ook dat koken/bakken toch weer in een separate, goed geventileerde ruimte gebeurt.
Ik zeg niet dat het gaat gebeuren, maar het kan best dat nieuwe inzichten op termijn weer tot grote veranderingen leiden.
[ Voor 5% gewijzigd door Cap op 28-01-2024 13:01 ]
+1, barretjes lijken momenteel erg overrated. Het lijkt wel alsof iedereen per sé een eiland en (suf, te krap) barretje moet. Het kan leuk zijn, maar je moet er echt de ruimte voor hebben, en het ook echt gaan gebruiken. En het moet m.i. geen afbreuk doen aan het design van de keuken.Blurk62 schreef op zondag 28 januari 2024 @ 12:16:
[...]
Je kunt je afvragen hoeveel er nu gekeuveld wordt in je keuken. Gaat dat niet zonder barretje? Die kleine ronde tafel is misschien wel veel leuker. Je zit sowieso prettiger op een stoel dan op een kruk en je kunt daar ook leuk naar buiten kijken als je op een mooie zondagochtend zit te ontbijten.
Je ideeën lopen nog wat te veel uiteen om goed in 1 ruimte te vatten. Een eiland waar je met 3-4 mensen aan kunt ontbijten, past niet goed in deze ruimte als je ook voldoende werkruimte wilt. Je kunt voortborduren op het eiland dat dwars op de keukenwand staat met 2 aanlandplekken, of een klein eiland met spoelbak en dan aan de overzijde een ronde tafel. (Zie voorbeelden hieronder) Hoe dan ook zou ik spoelen en koken splitsen, want als je dat bij elkaar voegt, kom je echt ruimte tekort, maar vooral staat de kok altijd met de rug naar het gezelschap. En dat past niet bij het idee dat je partner bij een fijne (knusse) keuken heeft, vermoed ik.Joydashy schreef op zondag 28 januari 2024 @ 09:42:
We hebben eigenlijk weinig echt harde eisen. We willen graag een kleine ronde tafel in de keuken om met 3-4 man te kunnen ontbijten, kunnen praten met gasten tijdens het koken zou fijn zijn (alleen met eiland...?) en genoeg kastruimte e.d.
![]() | ![]() |
Vermogen zal het probleem niet zijn met wokken. Die 3,7 kW is meer dan genoeg. Het probleem is meer dat je wij alleen warm wordt op het platte stuk, terwijl op een grote gasbrander de wok veel meer geleidelijk warm wordt richting de randen. Dus als je afweging is voor wokken zou ik gewoon een plaat nemen die 3,7 kW levert.Thiazzz schreef op zondag 28 januari 2024 @ 07:33:
Wij gaan verbouwen en overweeg de aanschaf van een inductieplaat van 90 cm. Mijn dilemma is echter de keuze tussen een 5-pits model met één krachtige pit van 5500 watt of een 6-pits model met 3 zones die per zone max 3700 watt leveren. Als fervent liefhebber van wokgerechten ben ik gewend aan de intense hitte van mijn huidige gasfornuis wokpit, en ik vraag me dan ook af of een 3700 watt pit voldoende is voor een goede wokervaring.
Qua looks geniet namelijk het 6-pits model de voorkeur.
6-pits model
5-pits model
Heb zelf een plaat die als dual booster 7,4 kW levert, maar nog nooit gebruikt. En hiervoor altijd op gas gewokt. Inductie is gewoon ongeschikt om fatsoenlijk op te wokken. Je kan beter een “wok” kopen met een groot deel vlakke bodem. Daarmee kan je de warmte veel makkelijk kwijt in de pan.
Bij een eiland kan je ook nog steeds naar buiten afzuigen. Ik denk dat recirculatie eerder gaat verdwijnen om jouw genoemde reden dan dat het concept open keuken of kookeilanden gaan verdwijnen. Met goede afzuiging naar buiten zal je nauwelijks fijnstof toevoegen aan je woonkamer. Met recirculatie zal je ook weinig fijnstof toevoegen, maar wel ultra fijnstof. Want alles wat te klein is voor het filter komt gewoon je kamer in.Cap schreef op zondag 28 januari 2024 @ 13:00:
[...]
Dat weet je nooit.
Voorbeeld: vroeger rookte bijna iedereen, ook in eigen huis. Nu een hele kleine minderheid. Idem met open haarden en slecht afsluitende houtkachels.
Op dit moment komt steeds meer informatie naar buiten over de schadelijkheid van kookstoffen, bijvoorbeeld de grote hoeveelheid (ultra)fijnstof die vrijkomt bij met name bakken. Nu vinden we het heel normaal om dit midden in de woonruimte te doen en lichtjes af te zuigen met een recirculatiefilter, dat de lucht dus weer in de ruimte terugbrengt. Dat kan veranderen als er met de tijd meer inzichten komen over de schadelijkheid van deze stoffen. Het gevolg kan bijvoorbeeld zijn dat afzuiging / filtering extreem veel beter wordt, maar ook dat koken/bakken toch weer in een separate, goed geventileerde ruimte gebeurt.
Ik zeg niet dat het gaat gebeuren, maar het kan best dat nieuwe inzichten op termijn weer tot grote veranderingen leiden.
Als je veel wokt is geen van beide een goede oplossing, omdat je een vlakke ondergrond hebt. Dan kun je beter voor een losse wok-inductieplaat gaan zoals deze: https://www.keukenloods.nl/cs7641fl.html?gad_source=1Thiazzz schreef op zondag 28 januari 2024 @ 07:33:
Wij gaan verbouwen en overweeg de aanschaf van een inductieplaat van 90 cm. Mijn dilemma is echter de keuze tussen een 5-pits model met één krachtige pit van 5500 watt of een 6-pits model met 3 zones die per zone max 3700 watt leveren. Als fervent liefhebber van wokgerechten ben ik gewend aan de intense hitte van mijn huidige gasfornuis wokpit, en ik vraag me dan ook af of een 3700 watt pit voldoende is voor een goede wokervaring.
Qua looks geniet namelijk het 6-pits model de voorkeur.
6-pits model
5-pits model
Flink aan de prijs, maar wel de enige serieuze oplossing om op inductie fatsoenlijk een wok warm te krijgen.
Sony A6700 - 10-18 F4 - 18-50 F2.8 - 24 F1.8 - 56 F1.4 - 70-350G
Ja dat is inderdaad een groot nadeel tov gas, dan maar met een wadjan gaan “wokken”.Z___Z schreef op zondag 28 januari 2024 @ 13:34:
[...]
Vermogen zal het probleem niet zijn met wokken. Die 3,7 kW is meer dan genoeg. Het probleem is meer dat je wij alleen warm wordt op het platte stuk, terwijl op een grote gasbrander de wok veel meer geleidelijk warm wordt richting de randen. Dus als je afweging is voor wokken zou ik gewoon een plaat nemen die 3,7 kW levert.
Heb zelf een plaat die als dual booster 7,4 kW levert, maar nog nooit gebruikt. En hiervoor altijd op gas gewokt. Inductie is gewoon ongeschikt om fatsoenlijk op te wokken. Je kan beter een “wok” kopen met een groot deel vlakke bodem. Daarmee kan je de warmte veel makkelijk kwijt in de pan.
Lastig keuzes wel die 5 of 6-pits
Of als echt fervent wokker de domino zoals hierboven nemen, en een gas wok naast je inductie domino plaatsen.Thiazzz schreef op zondag 28 januari 2024 @ 14:04:
[...]
Ja dat is inderdaad een groot nadeel tov gas, dan maar met een wadjan gaan “wokken”.
Lastig keuzes wel die 5 of 6-pits
Inductie aan één zijde, gaswokbrander aan de andere.
Met gasfles in kast eronder. Ideaal is ander, maar moet wat over hebben voor een hobby
Verbruik van deze plaat is 300 gram/uur op de hoogste stand. Met een fles van 10kg kan je 30 uur wokken op hoogste stand.
Dat is dan
Miele CS 7101-1 FL + CSFG 7000 + CSDA 7001 FL + CS 7612 FL



[ Voor 53% gewijzigd door Source90 op 28-01-2024 16:06 ]
Tja het is vrij simpel: of het breekt, of het deukt. Keramiek zal breken. Composiet deuken. Kies maar wat je liever hebt.gdvm schreef op zondag 28 januari 2024 @ 09:25:
[...]
Toch juist een composiet blad? Ivm bots/buts gevoeligheid? Denk dat wel/niet de eis voor hittebestendigheid de doorslag zal geven..
Afgelopen weken ook bezig geweest met het oriënteren en opvragen van offertes voor een nieuwe keuken.
Hebben nu een offerte liggen van een Rotpunkt keuken met de volgende apparaten;
Bosch Serie 4 Vaatwasser
Bosch Serie 8 Oven
Bosch Serie 6 Vriezer
Bosch Serie 4 Koelkast
Bora PURU kookplaat
Kastenwand waarin de oven, koelkast en vriezer zit. Overige kasten in de kastenwand hebben legplanken maar idee is om deze tot circa 1 meter hoogte te voorzien van lades.
Hoekkeuken met een verhoogde vaatwasser, en alle onderkasten verder voorzien van lades.
Werkblad composiet werkblad 2 cm dik.
Offerteprijs is nu 21k.
Tips en andere ideeën hoor ik graag!
:no_upscale():strip_icc():fill(white):strip_exif()/f/image/Cz4Lsxm1FSX6FG25ebFKQB31.jpg?f=user_large)
:no_upscale():strip_icc():fill(white):strip_exif()/f/image/MKYaISBgggvZuyPm9NxgmYv9.jpg?f=user_large)
:no_upscale():strip_icc():fill(white):strip_exif()/f/image/T8kydbozMDSoBNSkr7oJyw61.jpg?f=user_large)
Hebben nu een offerte liggen van een Rotpunkt keuken met de volgende apparaten;
Bosch Serie 4 Vaatwasser
Bosch Serie 8 Oven
Bosch Serie 6 Vriezer
Bosch Serie 4 Koelkast
Bora PURU kookplaat
Kastenwand waarin de oven, koelkast en vriezer zit. Overige kasten in de kastenwand hebben legplanken maar idee is om deze tot circa 1 meter hoogte te voorzien van lades.
Hoekkeuken met een verhoogde vaatwasser, en alle onderkasten verder voorzien van lades.
Werkblad composiet werkblad 2 cm dik.
Offerteprijs is nu 21k.
Tips en andere ideeën hoor ik graag!
:no_upscale():strip_icc():fill(white):strip_exif()/f/image/Cz4Lsxm1FSX6FG25ebFKQB31.jpg?f=user_large)
:no_upscale():strip_icc():fill(white):strip_exif()/f/image/MKYaISBgggvZuyPm9NxgmYv9.jpg?f=user_large)
:no_upscale():strip_icc():fill(white):strip_exif()/f/image/T8kydbozMDSoBNSkr7oJyw61.jpg?f=user_large)
:no_upscale():strip_icc():fill(white):strip_exif()/f/image/lxwHB9piVUHrmMcMoZfi6Y2x.jpg?f=user_large)
Jammer dat dit dus gebruikelijk is bij Superkeukens.SquareOne schreef op zondag 28 januari 2024 @ 10:44:
[...]
Als je alleen een totaalprijs heb weet je toch nu of dat in de apparatuurprijzen zit?
Of heb je de prijs opgesplitst naar 1) kasten 2) apparatuur 3) werkblad?
Je kunt natuurlijk altijd vragen of ze het kunnen opsplitsen naar deze drie categorieën.
Begrijp me niet verkeerd. Ik heb er ook een hekel aan als er alleen een totaalprijs staat.
Het zou inderdaad in de apparatuur prijzen moeten zitten. prijstoename is alleen meer dan op mijn kladbriefje.
Ik ga ze per e-mail vragen of ze het willen splitsen. Zo niet, dan kon het wel eens einde verhaal zijn. Het geeft zo geen goed gevoel.
Klopt dat is ook nog een optie echter dan ben je met flessen gas aan het klooien dat is niet echt ideaal.Source90 schreef op zondag 28 januari 2024 @ 14:29:
[...]
Of als echt fervent wokker de domino zoals hierboven nemen, en een gas wok naast je inductie domino plaatsen.
Inductie aan één zijde, gaswokbrander aan de andere.
Met gasfles in kast eronder. Ideaal is ander, maar moet wat over hebben voor een hobby![]()
Verbruik van deze plaat is 300 gram/uur op de hoogste stand. Met een fles van 10kg kan je 30 uur wokken op hoogste stand.
Dat is dan
Miele CS 7101-1 FL + CSFG 7000 + CSDA 7001 FL + CS 7612 FL
[Afbeelding][Afbeelding][Afbeelding]
Ik had namelijk deze ook in overweging maar uiteindelijk toch maar geheel gasloos.
Inductie met wokbrander
Voordeel van de Miele tegenover de ATAG is dan wel dat je het gascomponent eruit kan halen als je er ooit toch af wilt en hier een inductie wokbrander in kan plaatsen (zelfde formaat). Bij de ATAG moet de gehele plaat weg.Thiazzz schreef op zondag 28 januari 2024 @ 15:25:
[...]
Klopt dat is ook nog een optie echter dan ben je met flessen gas aan het klooien dat is niet echt ideaal.
Ik had namelijk deze ook in overweging maar uiteindelijk toch maar geheel gasloos.
Inductie met wokbrander
De meeste WPB slaan maar één keer per dag aan, ze vullen dan het water aan wat gebruikt is tot 260L en verwarmen dan weer. Waarom zou het anders 260L zijn? Als hij elke keer aanslaat kan ie veel kleiner zijn....martinus83 schreef op donderdag 25 januari 2024 @ 16:41:
[...]
....Je WPB gaat ook aan slaan ahv de warm water vraag....
Maar buiten dat, is een Combi(+) gewoon veel fijner dan wachten op warm water, als dat soms meer dan een minuut duurt.
Ah kijk, dit is heel nuttig. Composiet lijkt dus toch een goeie optie te zijn.
Ze deden een beetje aan bangmakerij dat als je iets uit de vaatwasser haalde en tegen je aanrecht zou stoten er meteen een chip af zou springen.
Als het zo makkelijk stuk zou gaan, zou niemand het verkopen. In de praktijk valt dit allemaal reuze mee en zit het verschil eerder in de uitstraling die het materiaal heeft en wat je mooi, mooier, mooist vindt.Dracula schreef op zondag 28 januari 2024 @ 19:24:
[...]
Ah kijk, dit is heel nuttig. Composiet lijkt dus toch een goeie optie te zijn.
Ze deden een beetje aan bangmakerij dat als je iets uit de vaatwasser haalde en tegen je aanrecht zou stoten er meteen een chip af zou springen.
Uiteindelijk kan alles stuk, maar bij normaal gebruik blijft het echt wel heel.
Dat risico op chippen is groter bij keramiek. Niet al te druk om maken.Dracula schreef op zondag 28 januari 2024 @ 19:24:
[...]
Ah kijk, dit is heel nuttig. Composiet lijkt dus toch een goeie optie te zijn.
Ze deden een beetje aan bangmakerij dat als je iets uit de vaatwasser haalde en tegen je aanrecht zou stoten er meteen een chip af zou springen.
Als je bang bent voor chippen zou ik ook geen onderbouw spoelbak nemen.
Ik zie geen kwartsiet staan, weet iemand hoe kwartsiet zich tot de rest verhoudt?
Dit soort generieke lijstjes zeggen niet zoveel. De eerste bevat nog wat detail over de verschillende afwerkingen, maar binnen iedere soort kun je nog gigantische verschillen hebben mbt kras-, breek en vuilgevoeligheid. Het woord composiet zegt het ook al: een samenvoeging van verschillende materialen. En het maakt erg veel uit welke én op welke manier.
Dit soort lijstjes geven een redelijke indicatie maar zorg dat je bij ieder blad deze specificaties voor exact jouw keuze opvraagt. Goede keuken en bladenzaken hebben dit gewoon beschikbaar.
Sony A6700 - 10-18 F4 - 18-50 F2.8 - 24 F1.8 - 56 F1.4 - 70-350G
Eens. Maar je moet ergens beginnen natuurlijk.RobbieB schreef op maandag 29 januari 2024 @ 08:50:
[...]
Dit soort generieke lijstjes zeggen niet zoveel. De eerste bevat nog wat detail over de verschillende afwerkingen, maar binnen iedere soort kun je nog gigantische verschillen hebben mbt kras-, breek en vuilgevoeligheid. Het woord composiet zegt het ook al: een samenvoeging van verschillende materialen. En het maakt erg veel uit welke én op welke manier.
Dit soort lijstjes geven een redelijke indicatie maar zorg dat je bij ieder blad deze specificaties voor exact jouw keuze opvraagt. Goede keuken en bladenzaken hebben dit gewoon beschikbaar.
Niet zoveel zeggen is wel een diskwalificatie van een uitstekend en uitgebreid overzicht van materialen en afwerkingen.RobbieB schreef op maandag 29 januari 2024 @ 08:50:
[...]
Dit soort generieke lijstjes zeggen niet zoveel. De eerste bevat nog wat detail over de verschillende afwerkingen, maar binnen iedere soort kun je nog gigantische verschillen hebben mbt kras-, breek en vuilgevoeligheid. Het woord composiet zegt het ook al: een samenvoeging van verschillende materialen. En het maakt erg veel uit welke én op welke manier.
Dit soort lijstjes geven een redelijke indicatie maar zorg dat je bij ieder blad deze specificaties voor exact jouw keuze opvraagt. Goede keuken en bladenzaken hebben dit gewoon beschikbaar.
Dit is een príma overzicht. Of ga je dan ook zeggen dat de ene marmer slab de andere niet is? Misschien heb je net die ene met een ader erin die open staat, waardoor de koffie er meteen intrekt.
Dochterlief stootte afgelopen zomer met een glas tegen de rand van het Dekton blad (keramiek van de hardste soort). Daar kwam dus een chipje af. Gelukkig is dat de herstellen, maar goedkoop is het niet. Reken op 350 euro. Wel echt vakwerk van de man die dat kwam doen. Geheel "repairshop" met kwastjes en verf om de kleur en het patroon te matchen.Dracula schreef op zaterdag 27 januari 2024 @ 21:27:
Hoe zit het eigenlijk met keukenbladen.
Ik krijg gemengde adviezen van keukenzaken die niet altijd even goed overeenkomen met de topic start.
Keramiek is gevoelig voor punt belasting dan wel een stoot tegen de rand dit kom bij allemaal aardig overeen. De vraag is uiteraard hoe kwetsbaar is het dan echt?
Verder oppassen met inwerking van zuur, dus geen citroenzuur laten liggen met het idee: "dat ruim ik later wel op"
Composiet kan ook niet goed tegen hitte, dus oppassen met echt hete pannen. Ook bij composiet geldt dat zuur kan inwerken en dat krijg je er niet meer uit. Je blijft bepaalde vlekken gewoon altijd zien. Ook composiet kan hersteld worden.Composiet zijn de meningen (die ik mee gekregen heb) verdeeld maar ook lijkt hier de consensus te zijn dat hier ook een risico op “chippen” is.
Dekton is gewoon een merk keramiek, maar harder gebakken (hogere temperatuur).Dekton weet ik niet zo veel over.
Niet hittebestendig en het oogt wat goedkoper.En dan natuurlijk nog kunststof wat vooral slecht hitte bestendig is.
Hout: poreus.Wat mis ik eventueel nog want de keuze vind ik erg lastig.
Het blad moet sowieso niet poreus zijn, niet kras gevoelig, en zo min mogelijk gevoelig voor botsen / butsen.
Gelamineerd hout: De goedkopere oplossing van het rijtje, maar niet krasbestendig. Kan wel goed tegen botsen, zeker in combinatie met een aluminium randafwerking.
Massief RVS: Dat voldoet aan al je wensen, maar het is stervensduur en je ziet er alle vieze vingers op.
Keramiek is prijzig, helemaal als je de randen in verstek af wilt werken, zodat je niet tegen de zijkant zonder patroon/motief aan kijkt.
Chipje er uit, afgeplakt en schoon gemaakt | Vulmiddel en kleurtjes mengen | Eindresultaat vlak voor het aflakken |
![]() | ![]() | ![]() |
WP: Toshiba Estia 8kW split HWT-801H(R)W-E + HWT-1101 binnenunit met 300 liter SWW tank. PV: 4 strings, totaal 12590 Wp
Off topic, maar ik zie staan 'infrarood vloerverwarming' op de hele BG, weet je heel zeker waar je voor kiest? Dat is echt een extreme energievreter. (Laat je niet misleiden door de term 'infrarood' alsof het een soort magische manier is om heel efficiënt te verwarmen; dat is het niet.)
Wauw die reperatie is wel heel netjes gedaan zeg.Blihi schreef op maandag 29 januari 2024 @ 09:35:
[...]
Dochterlief stootte afgelopen zomer met een glas tegen de rand van het Dekton blad (keramiek van de hardste soort). Daar kwam dus een chipje af. Gelukkig is dat de herstellen, maar goedkoop is het niet. Reken op 350 euro. Wel echt vakwerk van de man die dat kwam doen. Geheel "repairshop" met kwastjes en verf om de kleur en het patroon te matchen.
Verder oppassen met inwerking van zuur, dus geen citroenzuur laten liggen met het idee: "dat ruim ik later wel op"
[...]
Composiet kan ook niet goed tegen hitte, dus oppassen met echt hete pannen. Ook bij composiet geldt dat zuur kan inwerken en dat krijg je er niet meer uit. Je blijft bepaalde vlekken gewoon altijd zien. Ook composiet kan hersteld worden.
[...]
Dekton is gewoon een merk keramiek, maar harder gebakken (hogere temperatuur).
[...]
Niet hittebestendig en het oogt wat goedkoper.
[...]
Hout: poreus.
Gelamineerd hout: De goedkopere oplossing van het rijtje, maar niet krasbestendig. Kan wel goed tegen botsen, zeker in combinatie met een aluminium randafwerking.
Massief RVS: Dat voldoet aan al je wensen, maar het is stervensduur en je ziet er alle vieze vingers op.
Keramiek is prijzig, helemaal als je de randen in verstek af wilt werken, zodat je niet tegen de zijkant zonder patroon/motief aan kijkt.
Chipje er uit, afgeplakt en schoon gemaakt
Vulmiddel en kleurtjes mengen
Eindresultaat vlak voor het aflakken
[Afbeelding] [Afbeelding] [Afbeelding]
sterker nog, het is niet toegestaan volgens het bouwbesluit om cop1 verwarming als hoofdverwarming te hebben.Anomi schreef op maandag 29 januari 2024 @ 09:36:
[...]
Off topic, maar ik zie staan 'infrarood vloerverwarming' op de hele BG, weet je heel zeker waar je voor kiest? Dat is echt een extreme energievreter. (Laat je niet misleiden door de term 'infrarood' alsof het een soort magische manier is om heel efficiënt te verwarmen; dat is het niet.)
Mijn schoonouders hebben elektrische vloerverwarming onder laminaat op de benedeverdieping. Ze hebben na 1 jaar de boel uitgezet en een airco geïnstalleerd. Het kostte ONGEKEND veel geld om te verwarmin.
Scherp opgemerkt dus. Doe. Het. Niet.
Heb je hier een bron van? Ik heb hier nog nooit van gehoord. Keramiek blad is gewoon een hele dure badkamertegel. Ik heb nog nooit gehoord dat je badkamertegels op een bepaalde manier moet behandelen. Daar gaat de meest agressieve middelen overheen.Blihi schreef op maandag 29 januari 2024 @ 09:35:
[...]
Verder oppassen met inwerking van zuur, dus geen citroenzuur laten liggen met het idee: "dat ruim ik later wel op"
Ik heb ook een keramiek blad en het is wel heerlijk. Gloeiend hete pannen zet je gewoon op het blad, ovenschalen direct uit de oven erop. Niks aan de hand.
[ Voor 13% gewijzigd door t14wo op 29-01-2024 09:44 ]
Je kunt er zeker met de meest agressieve middelen overheen, maar je moet ze niet laten intrekken. De bron is eigen ervaring. Ik heb vrij lang een afdruk van een fles van het een of andere ontkalker (= agressief zuur) op het aanrecht gehad. Dit is wel weggetrokken, maar het was maandenlang precies te zien waar die fles gestaan had.t14wo schreef op maandag 29 januari 2024 @ 09:43:
[...]
Heb je hier een bron van? Ik heb hier nog nooit van gehoord. Keramiek blad is gewoon een hele dure badkamertegel. Ik heb nog nooit gehoord dat je badkamertegels op een bepaalde manier moet behandelen. Daar gaat de meest agressieve middelen overheen.
Ik weet dat het kan, toch doen we het eigenlijk nooit. Gewoon altijd kurk of plankjes er onder.Ik heb ook een keramiek blad en het is wel heerlijk. Gloeiend hete pannen zet je gewoon op het blad, ovenschalen direct uit de oven erop. Niks aan de hand.
WP: Toshiba Estia 8kW split HWT-801H(R)W-E + HWT-1101 binnenunit met 300 liter SWW tank. PV: 4 strings, totaal 12590 Wp
Wij hebben nu composiet en hebben ook een stukje uit de rand doordat er ooit een glas uit een bovenkastje is gevallen. Ook hebben we een aantal vlekken. Dochter heeft ooit crêpe-papier op het aanrecht gelegd. En van een zelfgemaakt zeepje (afkomstig van een kinderfeestje), zat kleurstof in denk ik. Ik vind het sowieso een rotblad om schoon te maken. Je ziet elke kring en vlek en kalk rond de kraan is ook een ramp. Je moet hem echt regelmatig met een speciaal schuurmiddeltje onder handen nemen, een gewoon sopje erover haalt de gebruikersvlekken niet weg. We hebben een honed variant.
Verrassend genoeg hebben hete pannen geen effect. Nu na bijna 16 jaar, en nu hij op de nominatie staat vervangen te worden over een paar maanden, zet ik pannen er zonder pardon op, soms rechtstreeks, soms met een vaatdoekje eronder. Mijn kinderen hebben ook tot een jaar of 3 af en toe op het aanrecht gezeten
, wel lichtgewichtjes, niks aan de hand.
Verrassend genoeg hebben hete pannen geen effect. Nu na bijna 16 jaar, en nu hij op de nominatie staat vervangen te worden over een paar maanden, zet ik pannen er zonder pardon op, soms rechtstreeks, soms met een vaatdoekje eronder. Mijn kinderen hebben ook tot een jaar of 3 af en toe op het aanrecht gezeten

Wauw, dat is echt mooi gemaakt zeg.[b]Blihi in "Het Grote Keuken topic: verkopers, kwaliteit, prijs - Deel 3"
Dochterlief stootte afgelopen zomer met een glas tegen de rand van het Dekton blad (keramiek van de hardste soort). Daar kwam dus een chipje af. Gelukkig is dat de herstellen, maar goedkoop is het niet. Reken op 350 euro. Wel echt vakwerk van de man die dat kwam doen. Geheel "repairshop" met kwastjes en verf om de kleur en het patroon te matchen.
Mag ook wel voor dat geld. En dan te bedenken dat de reparateur zelf niet helemaal tevreden was. Dit Dekton blad heeft namelijk een relief en dat kan hij niet reproduceren. De reparatie is dus glad. Dus, als je onder een heel specifieke hoek kijkt, bij precies het juiste licht kun je zien waar het gerepareerd is. Maar als je het niet weet zie je het niet.Dracula schreef op maandag 29 januari 2024 @ 09:39:
[...]
Wauw die reperatie is wel heel netjes gedaan zeg.
Reparatie is overigens uitgevoerd door https://alexreparatietechniek.nl/
WP: Toshiba Estia 8kW split HWT-801H(R)W-E + HWT-1101 binnenunit met 300 liter SWW tank. PV: 4 strings, totaal 12590 Wp
Jij hebt een leather afwerking, dat is toch een open structuur. Ik heb een hoogglas, waardoor het écht een grote badkamertegel is. Enige waar ik daar last van het zijn haarkrasjes na verloop van tijd. (=prima wat mij betreft) en kalkafzetting rondom de kraan. Maar azijn doet wonderen.Blihi schreef op maandag 29 januari 2024 @ 09:48:
[...]
Je kunt er zeker met de meest agressieve middelen overheen, maar je moet ze niet laten intrekken. De bron is eigen ervaring. Ik heb vrij lang een afdruk van een fles van het een of andere ontkalker (= agressief zuur) op het aanrecht gehad. Dit is wel weggetrokken, maar het was maandenlang precies te zien waar die fles gestaan had.
[...]
Ik weet dat het kan, toch doen we het eigenlijk nooit. Gewoon altijd kurk of plankjes er onder.
Tja, hoogglans leek mij niet handig bij een aanrecht van 320x120cm. Dat is echt veel te groot voor een glanzend oppervlak (naar mijn smaak). Het is overigens deze: https://www.cosentino.com/colors/dekton/bromo/t14wo schreef op maandag 29 januari 2024 @ 10:00:
[...]
Jij hebt een leather afwerking, dat is toch een open structuur. Ik heb een hoogglas, waardoor het écht een grote badkamertegel is. Enige waar ik daar last van het zijn haarkrasjes na verloop van tijd. (=prima wat mij betreft) en kalkafzetting rondom de kraan. Maar azijn doet wonderen.
Kalk heb ik gelukkig geen last van. Een waterontharder is echt een heel goede investering
[ Voor 5% gewijzigd door Blihi op 29-01-2024 10:03 ]
WP: Toshiba Estia 8kW split HWT-801H(R)W-E + HWT-1101 binnenunit met 300 liter SWW tank. PV: 4 strings, totaal 12590 Wp
Ik vind de verhoogde vaatwasser eigenlijk een beetje je doorlopende aanrecht verstoren. Ineens zo'n blok aan het eind. Je hebt nu ook weinig werkruimte lijkt me. Je koffieapparaat en evt waterkoker (ik zie geen Quooker op de lijst) moet daar ook nog op. Verder lijnen je bovenkastjes niet echt lekker uit met je vaatwasserblok.Gouwden schreef op zondag 28 januari 2024 @ 14:47:
Afgelopen weken ook bezig geweest met het oriënteren en opvragen van offertes voor een nieuwe keuken.
Hebben nu een offerte liggen van een Rotpunkt keuken met de volgende apparaten;
Bosch Serie 4 Vaatwasser
Bosch Serie 8 Oven
Bosch Serie 6 Vriezer
Bosch Serie 4 Koelkast
Bora PURU kookplaat
Kastenwand waarin de oven, koelkast en vriezer zit. Overige kasten in de kastenwand hebben legplanken maar idee is om deze tot circa 1 meter hoogte te voorzien van lades.
Hoekkeuken met een verhoogde vaatwasser, en alle onderkasten verder voorzien van lades.
Werkblad composiet werkblad 2 cm dik.
Offerteprijs is nu 21k.
Tips en andere ideeën hoor ik graag!
Heb je overwogen om aan de overzijde ook nog iets neer te zetten? Dus tegenover de deur, links van de kastenwand. Dat is een wand die je vanuit de woonkamer niet ziet en zich wel zou lenen voor bijv een koffiehoek en extra opbergruimte. Dit kan je ook extra werkruimte geven.
Voordeel is dat je met allesreiniger en een scheutje spiritus je het schoonmaakt als een ruit. Perfect streeploos!Blihi schreef op maandag 29 januari 2024 @ 10:02:
[...]
Tja, hoogglans leek mij niet handig bij een aanrecht van 320x120cm. Dat is echt veel te groot voor een glanzend oppervlak (naar mijn smaak).
Kalk heb ik gelukkig geen last van. Een waterontharder is echt een heel goede investering
Waterontharder twijfel ik al lang over. Nu net een nieuiwe badkamer met (jawel) zwarte kranen. Misschien toch nog eens in verdiepen.
De enige waterontharder die werkt is er eentje met zout. Ga dus niet voor magneten of andere Tell-Sell rommel. Een waterontharder heeft zout nodig. En zo'n ding heeft dus ook een afvoer nodig voor het spoelwater. Dat is wat plaatsing soms wat lastig maakt, want je moet een afvoer in de buurt hebben.t14wo schreef op maandag 29 januari 2024 @ 10:03:
[...]
Voordeel is dat je met allesreiniger en een scheutje spiritus je het schoonmaakt als een ruit. Perfect streeploos!![]()
Waterontharder twijfel ik al lang over. Nu net een nieuiwe badkamer met (jawel) zwarte kranen. Misschien toch nog eens in verdiepen.
Er is trouwens een topic over: Waterontharders, wat zijn jullie ervaringen?
WP: Toshiba Estia 8kW split HWT-801H(R)W-E + HWT-1101 binnenunit met 300 liter SWW tank. PV: 4 strings, totaal 12590 Wp
Afgelopen vrijdag is onze keuken geplaatst. We zijn erg blij met het resultaat. De montage was ook 'in 1x goed'. We zijn nog geen bijzonderheden tegengekomen.
:strip_exif()/f/image/RIeaWpursJmxGL1uXg0jnZvG.jpg?f=fotoalbum_large)
:strip_exif()/f/image/jSimC2QCAJu3Rk75hjGMyrDu.jpg?f=fotoalbum_large)
:strip_exif()/f/image/EwPXtMY8OM0IJWyEIbrBQQfO.jpg?f=fotoalbum_large)
:strip_exif()/f/image/RoxQSq0V6lhUUdJYf9rdvKls.jpg?f=fotoalbum_large)
:strip_exif()/f/image/i52y1E1AoE8xmY95yYXjLbjj.jpg?f=fotoalbum_large)
Keuken: Kvik Prato Black
Werkblad: Jetstone Bianco Palazzo composiet
Kookplaat: Bora Puru
Oven: Siemens HB974GLB1
Koelkast:Siemens KI81RSDEO
Vaatwasser: Siemens SX65Z801BE
Wasbak: Franke Sirius Sid 110.50 zwart onderbouw
Koken water kraan: Doeco Triton YOLO!
Hier konden we verder online weinig over vinden dus was een beetje een gok maar de eerste indruk is prima. De kraan voelt solide aan en de boiler doet wat hij moet doen. Stroomverbruik ga ik binnenkort ook meten.
Bedankt voor de hulp en inspiratie in dit topic. Daar heb ik zeker een hoop aan gehad!
Boven het koffiezetapparaat willen we nog een eiken plank ophangen. Iemand nog tips waar je die kan halen?
:strip_exif()/f/image/RIeaWpursJmxGL1uXg0jnZvG.jpg?f=fotoalbum_large)
:strip_exif()/f/image/jSimC2QCAJu3Rk75hjGMyrDu.jpg?f=fotoalbum_large)
:strip_exif()/f/image/EwPXtMY8OM0IJWyEIbrBQQfO.jpg?f=fotoalbum_large)
:strip_exif()/f/image/RoxQSq0V6lhUUdJYf9rdvKls.jpg?f=fotoalbum_large)
:strip_exif()/f/image/i52y1E1AoE8xmY95yYXjLbjj.jpg?f=fotoalbum_large)
Keuken: Kvik Prato Black
Werkblad: Jetstone Bianco Palazzo composiet
Kookplaat: Bora Puru
Oven: Siemens HB974GLB1
Koelkast:Siemens KI81RSDEO
Vaatwasser: Siemens SX65Z801BE
Wasbak: Franke Sirius Sid 110.50 zwart onderbouw
Koken water kraan: Doeco Triton YOLO!
Members only:
Alleen zichtbaar voor ingelogde gebruikers.
Inloggen
Bedankt voor de hulp en inspiratie in dit topic. Daar heb ik zeker een hoop aan gehad!
Boven het koffiezetapparaat willen we nog een eiken plank ophangen. Iemand nog tips waar je die kan halen?
[ Voor 6% gewijzigd door Shiver23 op 29-01-2024 12:57 ]
PSN: Shiver23
In onze nieuwe keuken (nouja... 2jr oud) is in het eiland de vaatwasser afvoer op de gootsteen afvoer aangesloten (op het plaatje is het de kleinere slang die van links komt). Er komt regelmatig een flinke putlucht uit. Loodgieter weet er eigenlijk geen raad mee en wil een tweede zwanenhals direct onder de gootsteen inbouwen. Kan het zijn dat de vaatwasser afvoer de zwaan leeg drukt ofzo? Heeft iemand in dit topic dat meegemaakt?
:strip_exif()/f/image/VZP409YXVWtzjJ4bU4ji4Zzp.jpg?f=fotoalbum_large)
[ Voor 3% gewijzigd door nel!s op 29-01-2024 11:52 ]
Jammer dat de leverancier van de Amfa4000 failliet is.Blihi schreef op maandag 29 januari 2024 @ 10:18:
[...]
De enige waterontharder die werkt is er eentje met zout. Ga dus niet voor magneten of andere Tell-Sell rommel. Een waterontharder heeft zout nodig. En zo'n ding heeft dus ook een afvoer nodig voor het spoelwater. Dat is wat plaatsing soms wat lastig maakt, want je moet een afvoer in de buurt hebben.
Er is trouwens een topic over: Waterontharders, wat zijn jullie ervaringen?
Niet gewoon je afvoer vies? Ik had ook last van gootsteeklucht na 2 jaar. Nadat ik de put eraf draaide, kwam er een enorme zooi aan stinkende prut uit. Alles helemaal schoongemaakt en nu loopt én het water beter weg én het stikt niet meer.nel!s schreef op maandag 29 januari 2024 @ 11:51:
In onze nieuwe keuken (nouja... 2jr oud) is in het eiland de vaatwasser afvoer op de gootsteen afvoer aangesloten (op het plaatje is het de kleinere slang die van links komt). Er komt regelmatig een flinke putlucht uit. Loodgieter weet er eigenlijk geen raad mee en wil een tweede zwanenhals direct onder de gootsteen inbouwen. Kan het zijn dat de vaatwasser afvoer de zwaan leeg drukt ofzo? Heeft iemand in dit topic dat meegemaakt?
[Afbeelding]
@t14wo dat dacht ik ook, dus heb het schoongemaakt en dat heeft helaas niet gewerkt
Thnx voor je reactie. Ben het wel met je eens dat de bovenkastjes en de vaatwasser niet mooi ogen. De verhoogde vaatwasser staat wel hoog op het wensenlijstje...dus die willen wij toch graag plaatsen. Tips hoe dit beter ogend te krijgen is? Vaatwasserblok even hoog als bovenkastjes maken?MikaX schreef op maandag 29 januari 2024 @ 10:03:
[...]
Ik vind de verhoogde vaatwasser eigenlijk een beetje je doorlopende aanrecht verstoren. Ineens zo'n blok aan het eind. Je hebt nu ook weinig werkruimte lijkt me. Je koffieapparaat en evt waterkoker (ik zie geen Quooker op de lijst) moet daar ook nog op. Verder lijnen je bovenkastjes niet echt lekker uit met je vaatwasserblok.
Heb je overwogen om aan de overzijde ook nog iets neer te zetten? Dus tegenover de deur, links van de kastenwand. Dat is een wand die je vanuit de woonkamer niet ziet en zich wel zou lenen voor bijv een koffiehoek en extra opbergruimte. Dit kan je ook extra werkruimte geven.
Aan de overzijde nog iets plaatsen eigenlijk niet over nagedacht. Willen dit ook open houden ivm 'draai' naar de tuin. En misschien dat dit teveel een 'sluis' gaat worden richting tuin en garagedeuren.
Functie van een zwanenhals is om een waterslot aan te brengen aan je afvoer waardoor stank uit afvoer niet teruggevoerd kan worden naar afvoerputje of vaatwassers. Wordt je zwanenhals niet op de een of andere manier leeg getrokken door drukverschil (onderdruk)? Misschien helpt het als je een beluchter aanbrengt.nel!s schreef op maandag 29 januari 2024 @ 11:51:
In onze nieuwe keuken (nouja... 2jr oud) is in het eiland de vaatwasser afvoer op de gootsteen afvoer aangesloten (op het plaatje is het de kleinere slang die van links komt). Er komt regelmatig een flinke putlucht uit. Loodgieter weet er eigenlijk geen raad mee en wil een tweede zwanenhals direct onder de gootsteen inbouwen. Kan het zijn dat de vaatwasser afvoer de zwaan leeg drukt ofzo? Heeft iemand in dit topic dat meegemaakt?
[Afbeelding]
Monkey business: pay peanuts, get monkeys
Wat zit er bovenop dat T-stuk net boven de aansluiting van de vaatwasser?nel!s schreef op maandag 29 januari 2024 @ 11:51:
In onze nieuwe keuken (nouja... 2jr oud) is in het eiland de vaatwasser afvoer op de gootsteen afvoer aangesloten (op het plaatje is het de kleinere slang die van links komt). Er komt regelmatig een flinke putlucht uit. Loodgieter weet er eigenlijk geen raad mee en wil een tweede zwanenhals direct onder de gootsteen inbouwen. Kan het zijn dat de vaatwasser afvoer de zwaan leeg drukt ofzo? Heeft iemand in dit topic dat meegemaakt?
[Afbeelding]
Normaal zit daar namelijk de nood-overstort van de spoelbak aan. Dat wordt ook gebruikt als aanvoer van lucht bij afvoer van water.
De vaatwasser pompt afvalwater het riool in. Dat water vormt een soort "prop" die door de leidingen moet en dat zorgt voor een vacuum. Als het goed is, is de leiding onder de keuken van een grotere diameter en dan met name het liggende stuk. Daardoor kan dat vacuum eigenlijk nooit de zwanenhals leeg zuigen.
Als leidingen te dun zijn uitgevoerd, of over te grote afstand horizontaal, kan het zomaar kunnen dat de sifon leeg gezogen wordt. Heb je dat wel eens gecontroleerd? Dus: als het stinkt? Is de sifon dan leeg of komt de lucht ergens anders vandaan?
Een tweede sifon gaat niet helpen als er sprake is van leegzuigen van de sifon.
WP: Toshiba Estia 8kW split HWT-801H(R)W-E + HWT-1101 binnenunit met 300 liter SWW tank. PV: 4 strings, totaal 12590 Wp
Of een sifon met beluchter. Dat kan inderdaad ook. Maar ook dan moet je wel eerst zeker weten dat het probleem komt door de vaatwasser en niet dat de sifon ergens anders door leeg gezogen wordt.Monkeydancer schreef op maandag 29 januari 2024 @ 12:05:
[...]
Functie van een zwanenhals is om een waterslot aan te brengen aan je afvoer waardoor stank uit afvoer niet teruggevoerd kan worden naar afvoerputje of vaatwassers. Wordt je zwanenhals niet op de een of andere manier leeg getrokken door drukverschil (onderdruk)? Misschien helpt het als je een beluchter aanbrengt.
WP: Toshiba Estia 8kW split HWT-801H(R)W-E + HWT-1101 binnenunit met 300 liter SWW tank. PV: 4 strings, totaal 12590 Wp
@Monkeydancer Ik zie overigens ook dat de boiler aangesloten is zonder overdrukventiel. Als dat hotfill is, dan kan dat (maar dan hoort er geen kraan in te zitten), anders hoort dat niet en loop je het risico op overdruk in het warme water.
WP: Toshiba Estia 8kW split HWT-801H(R)W-E + HWT-1101 binnenunit met 300 liter SWW tank. PV: 4 strings, totaal 12590 Wp
Hoe doet men het hier met een Oven (miele) met pyrolyse optie.
Allemaal heel leuk en aardig, van dit weekend wou ik eend in de oven bereiden.
Tijdens het bereiden kwam er al flinke rook uit de oven wat niet wenselijk was (Eend was niet verbrand moest nog een paar minuten).
Maar gisteravond dacht ik even de pyrolyse te gaan gebruiken want de oven is super smerig.
gegeven moment kwam er non stop rook uit de oven, hele woning in de rook dus traanogen en hoesten.
Heb hem maar uit gedaan en alle ramen open gegooid. Wat doe ik verkeerd of is er iets mis met mijn oven??
Allemaal heel leuk en aardig, van dit weekend wou ik eend in de oven bereiden.
Tijdens het bereiden kwam er al flinke rook uit de oven wat niet wenselijk was (Eend was niet verbrand moest nog een paar minuten).
Maar gisteravond dacht ik even de pyrolyse te gaan gebruiken want de oven is super smerig.
gegeven moment kwam er non stop rook uit de oven, hele woning in de rook dus traanogen en hoesten.
Heb hem maar uit gedaan en alle ramen open gegooid. Wat doe ik verkeerd of is er iets mis met mijn oven??
Zijn het niet etensresten op de bodem of wanden die verbranden?syntesia schreef op maandag 29 januari 2024 @ 12:28:
Hoe doet men het hier met een Oven (miele) met pyrolyse optie.
Allemaal heel leuk en aardig, van dit weekend wou ik eend in de oven bereiden.
Tijdens het bereiden kwam er al flinke rook uit de oven wat niet wenselijk was (Eend was niet verbrand moest nog een paar minuten).
Maar gisteravond dacht ik even de pyrolyse te gaan gebruiken want de oven is super smerig.
gegeven moment kwam er non stop rook uit de oven, hele woning in de rook dus traanogen en hoesten.
Heb hem maar uit gedaan en alle ramen open gegooid. Wat doe ik verkeerd of is er iets mis met mijn oven??
Bij ons soms ook best wel wat rook en vooral stank bij gebruik van pyrolyse. Daarna is de oven wel schoon.
Ja oven was heel vies, vetten van de eend enzo, maar daarvoor is de pyrolyse toch om dit schoon te maken.SquareOne schreef op maandag 29 januari 2024 @ 12:40:
[...]
Zijn het niet etensresten op de bodem of wanden die verbranden?
Bij ons soms ook best wel wat rook en vooral stank bij gebruik van pyrolyse. Daarna is de oven wel schoon.
Ja, maar dat doet die door het te verbranden. En iets wat gaat verbranden gaat roken. Het apparaat blaast de lucht vervolgens uit de oven want er zit geen afzuiging in.syntesia schreef op maandag 29 januari 2024 @ 12:45:
[...]
Ja oven was heel vies, vetten van de eend enzo, maar daarvoor is de pyrolyse toch om dit schoon te maken.
Ze noemen de pyrolyse functie ook wel de crematiestand. Na afloop kan je het als "As" wegvegensyntesia schreef op maandag 29 januari 2024 @ 12:45:
[...]
Ja oven was heel vies, vetten van de eend enzo, maar daarvoor is de pyrolyse toch om dit schoon te maken.
[ Voor 6% gewijzigd door Monkeydancer op 29-01-2024 12:48 ]
Monkey business: pay peanuts, get monkeys
Ja klinkt logisch natuurlijk dat het gaat roken, maar leek alsof ons huis in brand stond zo veel rook kwam er.
dus voortaan altijd eerst nog etensresten eruit schrapen?
dus voortaan altijd eerst nog etensresten eruit schrapen?
Bij mij geeft de instructie:syntesia schreef op maandag 29 januari 2024 @ 12:51:
Ja klinkt logisch natuurlijk dat het gaat roken, maar leek alsof ons huis in brand stond zo veel rook kwam er.
dus voortaan altijd eerst nog etensresten eruit schrapen?
- verwijder roosters
- verwijder rails
- verwijder grove verontreiniging en restanten uit binnenruimte
Dus wat je eruit kunt rapen, schrapen en vegen met een sponsje zou ik wel weghalen.
Ik begrijp je punt trouwens wel... ik heb ook wel eens gedacht, "als dat ding klaar is, kan ik mijn gordijnen naar de stomerij brengen

[ Voor 12% gewijzigd door SquareOne op 29-01-2024 12:56 ]
Gebruik het daarom zelden tot niet. Ik maak liever gewoon schoon na elk gebruik. Als het echt niet meer kan omdat er resten aangekoekt erop blijft zitten, dan pas gebruik ik pyrolyse stand. Ook kost pyrolyse stand veel energie (je stookt eigenlijk bijna op max temperatuur).SquareOne schreef op maandag 29 januari 2024 @ 12:55:
[...]
Bij mij geeft de instructie:
- verwijder roosters
- verwijder rails
- verwijder grove verontreiniging en restanten uit binnenruimte
Dus wat je eruit kunt rapen, schrapen en vegen met een sponsje zou ik wel weghalen.
Ik begrijp je punt trouwens wel... ik heb ook wel eens gedacht, "als dat ding klaar is, kan ik mijn gordijnen naar de stomerij brengen"
Monkey business: pay peanuts, get monkeys
Zo we hebben een aantal ontwerpen van verschillende keukenboeren binnen en deze spreekt ons erg aan.
Er valt nog wel wat te sleutelen, zoals de half hoge overkast, die zouden we liever naar de andere kant van het blad verplaatsen en voor een hoge kast gaan.
Teven zou het kastje direct naast de kookplaat een lade kast moeten zijn ipv een kast met een deurtje.
Apparatuur zijn we nog niet helemaal over uit dus daar zijn we nog mee bezig maar voor nu is er voorzien in een koelkast en kookplaat van AEG (mijn voorkeur gaan naar Siemens en mogelijk Bora) maar dit was een eerste voorstel, we hebben de apparatuur nog niet gefinetuned.
Eerste indicatie prijs is 17 a 18k incl montage. Keukenblad voor nu Toplaminaat omdat we (zoals eerder te lezen) nog wat twijfelen over steen en hardheid ivm beschadigen.
Keuken systeem is eigenmerk van deze tent maar als ik het goed begreep is het stiekum gewoon ballerina maar dat ga ik nog checken.
:strip_exif()/f/image/cNugZLGuAx8lvg0BWOShKFE7.jpg?f=fotoalbum_large)
:strip_exif()/f/image/CWxmnVI4jEBrPjq18v00467x.jpg?f=fotoalbum_large)
:strip_exif()/f/image/l89Bj2eojrJQQK5d0IGWt6ft.jpg?f=fotoalbum_large)
.
Zijn er nog zaken waar ik niet aan denk of waar jullie van denken dat kan anders?
Er valt nog wel wat te sleutelen, zoals de half hoge overkast, die zouden we liever naar de andere kant van het blad verplaatsen en voor een hoge kast gaan.
Teven zou het kastje direct naast de kookplaat een lade kast moeten zijn ipv een kast met een deurtje.
Apparatuur zijn we nog niet helemaal over uit dus daar zijn we nog mee bezig maar voor nu is er voorzien in een koelkast en kookplaat van AEG (mijn voorkeur gaan naar Siemens en mogelijk Bora) maar dit was een eerste voorstel, we hebben de apparatuur nog niet gefinetuned.
Eerste indicatie prijs is 17 a 18k incl montage. Keukenblad voor nu Toplaminaat omdat we (zoals eerder te lezen) nog wat twijfelen over steen en hardheid ivm beschadigen.
Keuken systeem is eigenmerk van deze tent maar als ik het goed begreep is het stiekum gewoon ballerina maar dat ga ik nog checken.
:strip_exif()/f/image/cNugZLGuAx8lvg0BWOShKFE7.jpg?f=fotoalbum_large)
:strip_exif()/f/image/CWxmnVI4jEBrPjq18v00467x.jpg?f=fotoalbum_large)
:strip_exif()/f/image/l89Bj2eojrJQQK5d0IGWt6ft.jpg?f=fotoalbum_large)
:strip_exif()/f/image/NlMvyw2iwzvbFyz4dmpTsxHT.jpg?f=fotoalbum_large)
Zijn er nog zaken waar ik niet aan denk of waar jullie van denken dat kan anders?
Zou ik niet doen. Nu heb je mooi een hoekje waar je spullen neer kunt zetten waar je niet tegenaan wilt kijken, zoals het koffiezetapparaat. Ga je dat omdraaien, zit je altijd op de aanrecht te kijken.Dracula schreef op maandag 29 januari 2024 @ 13:22:
Zo we hebben een aantal ontwerpen van verschillende keukenboeren binnen en deze spreekt ons erg aan.
Er valt nog wel wat te sleutelen, zoals de half hoge overkast, die zouden we liever naar de andere kant van het blad verplaatsen en voor een hoge kast gaan.
Ik vind dit mooier ogen dan wanneer dat een ladekast zou zijn.Teven zou het kastje direct naast de kookplaat een lade kast moeten zijn ipv een kast met een deurtje.
Hier is alles van AEG en dat bevalt uitstekend. Bij Siemens betaal je vooral voor de naam (en de Internetconnectiviteit, maar dat snap ik niet). Bora neemt veel ruimte onder in de kast in.Apparatuur zijn we nog niet helemaal over uit dus daar zijn we nog mee bezig maar voor nu is er voorzien in een koelkast en kookplaat van AEG (mijn voorkeur gaan naar Siemens en mogelijk Bora) maar dit was een eerste voorstel, we hebben de apparatuur nog niet gefinetuned.
Waar laat je je afvalemmer? Die komt dus in het zicht te staan, tenzij je een afvalsysteem toepast in een van de kasten.Eerste indicatie prijs is 17 a 18k incl montage. Keukenblad voor nu Toplaminaat omdat we (zoals eerder te lezen) nog wat twijfelen over steen en hardheid ivm beschadigen.
Keuken systeem is eigenmerk van deze tent maar als ik het goed begreep is het stiekum gewoon ballerina maar dat ga ik nog checken.
[Afbeelding]
[Afbeelding]
[Afbeelding]
[Afbeelding].
Zijn er nog zaken waar ik niet aan denk of waar jullie van denken dat kan anders?
WP: Toshiba Estia 8kW split HWT-801H(R)W-E + HWT-1101 binnenunit met 300 liter SWW tank. PV: 4 strings, totaal 12590 Wp
Ik zou je in overweging willen geven om het halfhoge kastje in te ruilen voor een hoge kast extra aan de andere keukenwand. Je hebt daar nu een werkblad zonder speciale toevoegingen (koffieapparaat?) maar mijn ervaring (zowel bij mezelf als bij anderen) is dat het heel snel een verzamelplaats wordt van sleutels, post, fruitmand, broodtrommeltjes en boodschappen voor dezelfde dag. Dus ik zou het werkblad aan de andere zijde vergroten en dit opheffen. Eventueel een koffienis ervoor in de plaats.Dracula schreef op maandag 29 januari 2024 @ 13:22:
Zo we hebben een aantal ontwerpen van verschillende keukenboeren binnen en deze spreekt ons erg aan.
Er valt nog wel wat te sleutelen, zoals de half hoge overkast, die zouden we liever naar de andere kant van het blad verplaatsen en voor een hoge kast gaan.
(..)
Zijn er nog zaken waar ik niet aan denk of waar jullie van denken dat kan anders?
Is ook wat voor te zeggen, wij zagen het meer als obstakel in de kamer. Maar goed punt.Blihi schreef op maandag 29 januari 2024 @ 13:54:
[...]
Zou ik niet doen. Nu heb je mooi een hoekje waar je spullen neer kunt zetten waar je niet tegenaan wilt kijken, zoals het koffiezetapparaat. Ga je dat omdraaien, zit je altijd op de aanrecht te kijken.
In deze setup idd wel, als we de kast naar de andere kant doen maakt het minder uit denk ik.Blihi schreef op maandag 29 januari 2024 @ 13:54:
[...]
Ik vind dit mooier ogen dan wanneer dat een ladekast zou zijn.
*Update: Het blijkt toch een dubbele ladekast te zijn maar dan met een groot front om alles een geheel te laten lijken.
De reden voor geen AEG is dat vooral de koelkast combi een hele kleine vriezer combi heeft. Maar andere merken met meer vriezer ruimte is een must.Blihi schreef op maandag 29 januari 2024 @ 13:54:
[...]
Hier is alles van AEG en dat bevalt uitstekend. Bij Siemens betaal je vooral voor de naam (en de Internetconnectiviteit, maar dat snap ik niet). Bora neemt veel ruimte onder in de kast in.
Afval onder de gootsteen en eventueel een nette afvalbak aan de zijkant van het blok zonder kook deel.Blihi schreef op maandag 29 januari 2024 @ 13:54:
[...]
Waar laat je je afvalemmer? Die komt dus in het zicht te staan, tenzij je een afvalsysteem toepast in een van de kasten.
[ Voor 3% gewijzigd door Dracula op 29-01-2024 17:01 ]
Ik zie nu pas dat er nog een deur om het hoekje zit. Dan kun je daar niets plaatsen.Gouwden schreef op maandag 29 januari 2024 @ 12:05:
[...]
Thnx voor je reactie. Ben het wel met je eens dat de bovenkastjes en de vaatwasser niet mooi ogen. De verhoogde vaatwasser staat wel hoog op het wensenlijstje...dus die willen wij toch graag plaatsen. Tips hoe dit beter ogend te krijgen is? Vaatwasserblok even hoog als bovenkastjes maken?
Aan de overzijde nog iets plaatsen eigenlijk niet over nagedacht. Willen dit ook open houden ivm 'draai' naar de tuin. En misschien dat dit teveel een 'sluis' gaat worden richting tuin en garagedeuren.
Vaatwasserblok gelijk aan de bovenkastjes lijkt me mooier ja. Of de vaatwasser in de kastenwand, al wil je eigenlijk gewoon je vaatwasser bij je spoelbak in de buurt, dus heel praktisch is dat niet. Kijk ook even naar die lijn onder de vaatwasser, die loopt ook niet gelijk met de lade ernaast.
We willen juist graag extra werkblad ruimte hebben omdat we dit nu ook al vaak volledig benutten (hebben nu ook twee kanten werkblad namelijk).Toke_gt schreef op maandag 29 januari 2024 @ 14:06:
[...]
Ik zou je in overweging willen geven om het halfhoge kastje in te ruilen voor een hoge kast extra aan de andere keukenwand. Je hebt daar nu een werkblad zonder speciale toevoegingen (koffieapparaat?) maar mijn ervaring (zowel bij mezelf als bij anderen) is dat het heel snel een verzamelplaats wordt van sleutels, post, fruitmand, broodtrommeltjes en boodschappen voor dezelfde dag. Dus ik zou het werkblad aan de andere zijde vergroten en dit opheffen. Eventueel een koffienis ervoor in de plaats.
Het gaat om een zeer energiezuinig huis, grofweg Rc ≥ 7.5 m²K/W.t14wo schreef op maandag 29 januari 2024 @ 09:41:
[...]
sterker nog, het is niet toegestaan volgens het bouwbesluit om cop1 verwarming als hoofdverwarming te hebben.
Mijn schoonouders hebben elektrische vloerverwarming onder laminaat op de benedeverdieping. Ze hebben na 1 jaar de boel uitgezet en een airco geïnstalleerd. Het kostte ONGEKEND veel geld om te verwarmin.
Scherp opgemerkt dus. Doe. Het. Niet.
:fill(white):strip_exif()/f/image/R205LPz1TyDhTR7OOP68FYNv.png?f=user_large)
Dan kom ik op zo'n 2400 kWh. Maar de vloerverwarming is uberhaupt niet de hoofdverwarming, die komt uit een Lucht-lucht warmtepomp van Zehnder via de WTW.
Ik zal even een apart topic maken of elders posten, ben namelijk wel geïnteresseerd in ervaringen/ideeën op dit vlak.
Bleh. Na heel wat bezoeken aan keuken ‘handelaren’ heb ik 3 offertes liggen waar ik het nog niet heel erg warm van krijg.
Ondertussen een beetje keukenmoe heeft mogelijk een van jullie een helder idee over het volgende:
Betreft een paralel keuken:
Spoelzijde
300 cm:
2x ladekast 60 cm
1x spoelkast 60 cm
1xvaatwasser kast 60 cm
1x lage kast met plank 60 cm
Kookzijde
260 cm:
Versie A:
1x ladekast met binnenlade 40 cm
1x kookplaatkast met lades en bestek indeling 90 cm
1x ladekast 60 cm
1x ovenkast met onderlade 60 cm
Alle lades met binnenlade
Blad: composiet 6 cm opgedikt, 65 diep en achterwand 10cm hoog
Apparatuur;
Bora pure
Kraan: Franke Atlas Sensor
Spoelbak: Franke 1,5 Maris
Koelkast, oven en vaatwasser hergebruik
Versie B
1x uitreklade 30 cm
1x kookplaatlade 80 cm
1x lade met bestek indeling 80 cm
1x ovenkast met lade 60 cm
1x klepbovenkast met led 180cm
Blad composiet 6 cm en 60 diep opgedikt en achterwand 15 cm hoog
Kasten en binnenwerk hebben dezelfde kleur
Apparatuur:
Bora pura
Kraan: Franke Atlas Neo (niet de sensor ws niet goed in offerte opgenomen)
Spoelbak: Franke Largo Lax (enkel, ws foutief van ons overgenomen)
Vaatwasser, oven en koelkast hergebruik
De kasten zijn in alle gevallen kunststof houtlook met greep
A biedt twee merken
Pronorm, prijs 13k
Siematic, prijs 15k
B biedt
Rotpunkt, prijs 13,5 k hier is (nog) niet over onderhandelt
In alle gevallen heb ik het idee dat we aan de hoge kant zitten. Helemaal gezien het feit dat er vrijwel geen apparatuur in zit en de opstelling niet echt spannend is.
Ook kan ik de kwaliteit van de 3 merken niet goed matchen.
Wat ik zoek is gewoon een keuken waar ik geen spijt van ga krijgen. Harde eis is de spoelbak en kraan. Daar viel superkeukens al af omdat ze deze niet kunnen (willen) leveren en ik vraagtekens had bij de DKG uitvoering. Deze was met de kookplaat wel 500 euro goedkoper als A wat ik nogal een verschil vindt (2000 ipv 2560 en ik heb ze op dit forum al goedkoper gezien)
Heeft iemand ervaring met de bovenstaande merken in vergelijking. En kan het een nadeel zijn dat wij apparatuur willen hergebruiken?
Hoe zeer is de verkoper tegenover mij gedreven om mij een bepaald merk te verkopen.
Bij het afbreken van onze keuken kwam ik er achter dat dit een systemat geweest is en deze is na 22 jaar nog in best prima staat. Misschien dat ik nog een keer de moed bijeen moet rapen om in regio noord Limburg een hacker verkoper te vinden. Iemand nog tips?
Ondertussen een beetje keukenmoe heeft mogelijk een van jullie een helder idee over het volgende:
Betreft een paralel keuken:
Spoelzijde
300 cm:
2x ladekast 60 cm
1x spoelkast 60 cm
1xvaatwasser kast 60 cm
1x lage kast met plank 60 cm
Kookzijde
260 cm:
Versie A:
1x ladekast met binnenlade 40 cm
1x kookplaatkast met lades en bestek indeling 90 cm
1x ladekast 60 cm
1x ovenkast met onderlade 60 cm
Alle lades met binnenlade
Blad: composiet 6 cm opgedikt, 65 diep en achterwand 10cm hoog
Apparatuur;
Bora pure
Kraan: Franke Atlas Sensor
Spoelbak: Franke 1,5 Maris
Koelkast, oven en vaatwasser hergebruik
Versie B
1x uitreklade 30 cm
1x kookplaatlade 80 cm
1x lade met bestek indeling 80 cm
1x ovenkast met lade 60 cm
1x klepbovenkast met led 180cm
Blad composiet 6 cm en 60 diep opgedikt en achterwand 15 cm hoog
Kasten en binnenwerk hebben dezelfde kleur
Apparatuur:
Bora pura
Kraan: Franke Atlas Neo (niet de sensor ws niet goed in offerte opgenomen)
Spoelbak: Franke Largo Lax (enkel, ws foutief van ons overgenomen)
Vaatwasser, oven en koelkast hergebruik
De kasten zijn in alle gevallen kunststof houtlook met greep
A biedt twee merken
Pronorm, prijs 13k
Siematic, prijs 15k
B biedt
Rotpunkt, prijs 13,5 k hier is (nog) niet over onderhandelt
In alle gevallen heb ik het idee dat we aan de hoge kant zitten. Helemaal gezien het feit dat er vrijwel geen apparatuur in zit en de opstelling niet echt spannend is.
Ook kan ik de kwaliteit van de 3 merken niet goed matchen.
Wat ik zoek is gewoon een keuken waar ik geen spijt van ga krijgen. Harde eis is de spoelbak en kraan. Daar viel superkeukens al af omdat ze deze niet kunnen (willen) leveren en ik vraagtekens had bij de DKG uitvoering. Deze was met de kookplaat wel 500 euro goedkoper als A wat ik nogal een verschil vindt (2000 ipv 2560 en ik heb ze op dit forum al goedkoper gezien)
Heeft iemand ervaring met de bovenstaande merken in vergelijking. En kan het een nadeel zijn dat wij apparatuur willen hergebruiken?
Hoe zeer is de verkoper tegenover mij gedreven om mij een bepaald merk te verkopen.
Bij het afbreken van onze keuken kwam ik er achter dat dit een systemat geweest is en deze is na 22 jaar nog in best prima staat. Misschien dat ik nog een keer de moed bijeen moet rapen om in regio noord Limburg een hacker verkoper te vinden. Iemand nog tips?
[ Voor 10% gewijzigd door Swooshke op 29-01-2024 22:47 ]
Heb je ook dat je een gorgelend geluid bij het afpompen hoor?nel!s schreef op maandag 29 januari 2024 @ 11:51:
In onze nieuwe keuken (nouja... 2jr oud) is in het eiland de vaatwasser afvoer op de gootsteen afvoer aangesloten (op het plaatje is het de kleinere slang die van links komt). Er komt regelmatig een flinke putlucht uit. Loodgieter weet er eigenlijk geen raad mee en wil een tweede zwanenhals direct onder de gootsteen inbouwen. Kan het zijn dat de vaatwasser afvoer de zwaan leeg drukt ofzo? Heeft iemand in dit topic dat meegemaakt?
[Afbeelding]
In ieder geval zou ik, zoals, de anderen al aangeven, een sifon plaatsen met beluchter. Of een beluchter plaatsen op je afvoer. Zoiets: https://www.toolstation.n...=002a91696400333035313018
wij hadden ook nog last van een gorgelend geluid, dus met wat knutselen had ik de vaatwasser na de (beluchter) sifon geplaatst en een zwanenhals gemaakt van de vaatwasserslang zelf.
Geen stank meer en geen rare geluiden meer bij de wasbak.
Afgelopen week hebben wij de volgende keuken samengesteld. Kastjes zijn van Pronorm en het blad is 3cm van composiet. Keukeneiland is 1.10 bij 2.50cm. Wat vinden jullie ervan? Iemand nog ideeën voor de bovenkastjes boven de spoelbak? Ik weet niet of ik dit zelf zo mooi vind, er moet in ieder geval wel iets met licht/spotjes komen.
Offerte die ik ontvangen heb is overigens nu 33k met Siemens/Bora/Quooker apparatuur plus montage a 2k. Dit lijkt mij nog aardig aan de prijs.
Offerte die ik ontvangen heb is overigens nu 33k met Siemens/Bora/Quooker apparatuur plus montage a 2k. Dit lijkt mij nog aardig aan de prijs.
/f/image/efeSMM9PZoLqPlKJFpy3RjzB.png?f=fotoalbum_large)
Let op:
Dit topic kan gebruikt worden voor het volgende:
• Vragen over de keuken, denkend aan indeling, materialen, kastjes, apparatuur, etc.
• Welke kastjes, aanrechtbladen en apparatuur te kiezen
• Ervaringen met verkopers en keukenboeren
• Tips & Tricks denk hierbij aan hulp bij het zelf installeren en onderhouden van de keuken.
• Jouw indeling. Plaats gerust een foto of tekening, maar maak het niet te bont met hele buildlogs.
Voor badkamers: Het Badkamer topic: verkopers, kwaliteit, prijs - Deel 1
Showen met je keuken kan hier: Tweakers Keuken showroom! - Vestiging 1
Dit topic kan gebruikt worden voor het volgende:
• Vragen over de keuken, denkend aan indeling, materialen, kastjes, apparatuur, etc.
• Welke kastjes, aanrechtbladen en apparatuur te kiezen
• Ervaringen met verkopers en keukenboeren
• Tips & Tricks denk hierbij aan hulp bij het zelf installeren en onderhouden van de keuken.
• Jouw indeling. Plaats gerust een foto of tekening, maar maak het niet te bont met hele buildlogs.
Voor badkamers: Het Badkamer topic: verkopers, kwaliteit, prijs - Deel 1
Showen met je keuken kan hier: Tweakers Keuken showroom! - Vestiging 1