Dank voor je feedback! Hoe zou jij dat anders doen? Sommige deurtjes weglaten en open kastjes doen?
Aan de voorkant van je eiland zitplek realiseren. Daar kan je dan ontbijten, slok koffie nemen of gewoon even bijpraten tijdens het koken??Nickos schreef op zondag 28 augustus 2022 @ 09:30:
[...]
Dank voor je feedback! Hoe zou jij dat anders doen? Sommige deurtjes weglaten en open kastjes doen?
A Soldiers manual and a pair of boots.
Zou ik niet doen.To_Tall schreef op zondag 28 augustus 2022 @ 09:36:
[...]
Aan de voorkant van je eiland zitplek realiseren. Daar kan je dan ontbijten, slok koffie nemen of gewoon even bijpraten tijdens het koken??
Je weet hoeveel kastruimte je dan moet opgeven? Meestal is dat net een tikkeltje belangrijker dan iets wat je 2x per week gaat gebruiken (op zijn best).
Het is al geen diep eiland, dus de bestekschuif ben je ook kwijt als je een bar wilt.
Ik weet niet hoe groot je woonkamer is, maar je eiland kan ook een kwartslag draaien en dan kan je het groter maken. Nu heb je aan beide kanten maar 45cm over. Op 45cm kan je niet echt veel doen. Een gemiddelde snijplan is al 30cm.Nickos schreef op zaterdag 27 augustus 2022 @ 21:10:
Vandaag eerste renders gemaakt van de keuken. Inspiratie is de lichte houtkleur van deze keuken:
https://www.behance.net/g...ject_owner_other_projects
Specs van de opzet:
- Keuken langs wand 320cm breed en 60 cm diep
- Eiland 175cm x 90cm
- Blad dekton shell liquid
- Front eiche bordolino
- Miele combi stoomoven en combi magnetron
- Miele inductie met recirculatieafzuiging (4 pitten)
- Wel/niet Quooker, nog even optie wanneer we zien hoe hoog de offerte gaat uitvallen.
Wat vinden jullie van de opzet qua indeling? Enige zorg die ik heb is dat het houten front erg druk gaat worden met nerfen en niet zo strak wordt als het voorbeeld. Daarom ook nog donkere opzet laten maken. Die is ook best fraai, maar wel wat vlekgevoeliger voor met de kleine kindjes.
[Afbeelding]
[Afbeelding]
[Afbeelding]
[Afbeelding]
Kast ruimte kan je behouden je moet alleen het blad dan 20/30cm verlengen.bottom line schreef op zondag 28 augustus 2022 @ 09:43:
[...]
Zou ik niet doen.
Je weet hoeveel kastruimte je dan moet opgeven? Meestal is dat net een tikkeltje belangrijker dan iets wat je 2x per week gaat gebruiken (op zijn best).
Het is al geen diep eiland, dus de bestekschuif ben je ook kwijt als je een bar wilt.
A Soldiers manual and a pair of boots.
Genoeg werkruimte toch tegen de muur? Zou de keuken niet meer plek laten innemen dat het moet hebbenkx22 schreef op zondag 28 augustus 2022 @ 09:49:
[...]
Ik weet niet hoe groot je woonkamer is, maar je eiland kan ook een kwartslag draaien en dan kan je het groter maken. Nu heb je aan beide kanten maar 45cm over. Op 45cm kan je niet echt veel doen. Een gemiddelde snijplan is al 30cm.
Ok ik ga waarschijnlijk paar domme vragen stellen, maar ik doe ze maar toch.
ik heb een huis gekocht met een kueken uit 2016 van het merk Rotpunkt.
Het is een kleine keuken, dus ik wil wat uitbreiden en aanpassen (meer kasten en wat aanpassingen aan huidige opzet (te lage oven).
Helaas zijn de frontjes niet meer leverbaar, dus moet ik andere keukenfrontjes gaan kopen.
Echter zijn de zijkanten NIET van dezelfde kleur als de nieuwe frontjes. Tevens wil ik de oude composiete blad vervangen voor een modernere kleur (nu is het beige gestippeld)
*Kan je de zijkanten ook laten vervangen of ben je dan al bezig met ALLES vervangen?
ik heb een huis gekocht met een kueken uit 2016 van het merk Rotpunkt.
Het is een kleine keuken, dus ik wil wat uitbreiden en aanpassen (meer kasten en wat aanpassingen aan huidige opzet (te lage oven).
Helaas zijn de frontjes niet meer leverbaar, dus moet ik andere keukenfrontjes gaan kopen.
Echter zijn de zijkanten NIET van dezelfde kleur als de nieuwe frontjes. Tevens wil ik de oude composiete blad vervangen voor een modernere kleur (nu is het beige gestippeld)
*Kan je de zijkanten ook laten vervangen of ben je dan al bezig met ALLES vervangen?
Losse zijpanelen? Of bedoel je de buitenkant van de kast korpus?kx22 schreef op zondag 28 augustus 2022 @ 15:54:
Ok ik ga waarschijnlijk paar domme vragen stellen, maar ik doe ze maar toch.
ik heb een huis gekocht met een kueken uit 2016 van het merk Rotpunkt.
Het is een kleine keuken, dus ik wil wat uitbreiden en aanpassen (meer kasten en wat aanpassingen aan huidige opzet (te lage oven).
Helaas zijn de frontjes niet meer leverbaar, dus moet ik andere keukenfrontjes gaan kopen.
Echter zijn de zijkanten NIET van dezelfde kleur als de nieuwe frontjes. Tevens wil ik de oude composiete blad vervangen voor een modernere kleur (nu is het beige gestippeld)
*Kan je de zijkanten ook laten vervangen of ben je dan al bezig met ALLES vervangen?
In ‘t eerste geval kun je de panelen ‘gewoon’ vervangen.
Je kunt de hele kast vervangen met een andere zijkant. Dat is makkelijker dan allleen de zijkant vervangen en als je toch al nieuwe fronten wilt, is het bij elkaar niet veel duurder, schat ik in, en ben je wel in een keer klaar. Een paneel ertegenaan kan natuurlijk ook, maar dan krijg je een rand naast het frontje in de kast. Ik weet niet of je dat mooi vindt. Folie over de huidige zijkant plakken is ook nog een mogelijkheid, maar ook daarvoor geldt: wat vind je mooi en krijg je het wel in dezelfde kleur als de nieuwe fronten.kx22 schreef op zondag 28 augustus 2022 @ 15:54:
Ok ik ga waarschijnlijk paar domme vragen stellen, maar ik doe ze maar toch.
ik heb een huis gekocht met een kueken uit 2016 van het merk Rotpunkt.
Het is een kleine keuken, dus ik wil wat uitbreiden en aanpassen (meer kasten en wat aanpassingen aan huidige opzet (te lage oven).
Helaas zijn de frontjes niet meer leverbaar, dus moet ik andere keukenfrontjes gaan kopen.
Echter zijn de zijkanten NIET van dezelfde kleur als de nieuwe frontjes. Tevens wil ik de oude composiete blad vervangen voor een modernere kleur (nu is het beige gestippeld)
*Kan je de zijkanten ook laten vervangen of ben je dan al bezig met ALLES vervangen?
Bij Rotpunkt denk ik eerlijk gezegd niet dat je snel goedkoper uit bent door alles te vervangen.
Heb je overwogen om de kastenwand en het eiland in verschillende kleuren te doen? De donkere kleur op het eiland bijvoorbeeld en de lichte op de wand?Nickos schreef op zaterdag 27 augustus 2022 @ 21:10:
Vandaag eerste renders gemaakt van de keuken. Inspiratie is de lichte houtkleur van deze keuken:
https://www.behance.net/g...ject_owner_other_projects
Specs van de opzet:
- Keuken langs wand 320cm breed en 60 cm diep
- Eiland 175cm x 90cm
- Blad dekton shell liquid
- Front eiche bordolino
- Miele combi stoomoven en combi magnetron
- Miele inductie met recirculatieafzuiging (4 pitten)
- Wel/niet Quooker, nog even optie wanneer we zien hoe hoog de offerte gaat uitvallen.
Wat vinden jullie van de opzet qua indeling? Enige zorg die ik heb is dat het houten front erg druk gaat worden met nerfen en niet zo strak wordt als het voorbeeld. Daarom ook nog donkere opzet laten maken. Die is ook best fraai, maar wel wat vlekgevoeliger voor met de kleine kindjes.
[Afbeelding]
[Afbeelding]
[Afbeelding]
[Afbeelding]
Je bovenste oven lijkt erg hoog, kan die omlaag?
Heb je een schiereiland overwogen, dus je eiland tegen bv de muur, zodat hij wat breder kan?
Lades of bredere deurenNickos schreef op zondag 28 augustus 2022 @ 09:30:
[...]
Dank voor je feedback! Hoe zou jij dat anders doen? Sommige deurtjes weglaten en open kastjes doen?
Bericht hierboven
Omdat Rotpunkt bekend staat om te duur?Toke_gt schreef op zondag 28 augustus 2022 @ 17:07:
[...]
Je kunt de hele kast vervangen met een andere zijkant. Dat is makkelijker dan allleen de zijkant vervangen en als je toch al nieuwe fronten wilt, is het bij elkaar niet veel duurder, schat ik in, en ben je wel in een keer klaar. Een paneel ertegenaan kan natuurlijk ook, maar dan krijg je een rand naast het frontje in de kast. Ik weet niet of je dat mooi vindt. Folie over de huidige zijkant plakken is ook nog een mogelijkheid, maar ook daarvoor geldt: wat vind je mooi en krijg je het wel in dezelfde kleur als de nieuwe fronten.
Bij Rotpunkt denk ik eerlijk gezegd niet dat je snel goedkoper uit bent door alles te vervangen.
Of slecht in maatwerk?
Het goedkoopste wat ik nu kan doen:
Huidige keuken houden en een eiland van Ikea erbij zetten.
Vervolgens alles laten stickeren.
en een mooie composiete blad erop zetten. (zowel L als Eiland),
Denk dat ik dan klaar ben voor minder dan 8k.
Omdat Rotpunkt niet het goedkoopste merk is idd. Waarbij ik ervan uitging dat je alles zou willen vervangen, niet allleen de fronten. Optie die je nu noemt lijkt me inderdaad de goedkoopste, maar niet per se het mooiste en duurzaamste. Wat laat je dan precies stickeren? De zijkanten? Of echt alles, dus ook nieuwe Ikea-eiland?kx22 schreef op maandag 29 augustus 2022 @ 08:47:
[...]
Omdat Rotpunkt bekend staat om te duur?
Of slecht in maatwerk?
Het goedkoopste wat ik nu kan doen:
Huidige keuken houden en een eiland van Ikea erbij zetten.
Vervolgens alles laten stickeren.
en een mooie composiete blad erop zetten. (zowel L als Eiland),
Denk dat ik dan klaar ben voor minder dan 8k.
Hoeveel ruimte heb je aan weerzijden van het eiland? Als je eiland 175cm is en je wand 320, dan houd je 145cm over, is dat wel echt genoeg voor een doorloop? Wij hebben nagenoeg de exacte afmetingen (310cm) en kiezen waarschijnlijk voor een schiereiland, omdat je dan een doorloop van 110-115cm houdt.Nickos schreef op zaterdag 27 augustus 2022 @ 21:10:
Vandaag eerste renders gemaakt van de keuken. Inspiratie is de lichte houtkleur van deze keuken:
https://www.behance.net/g...ject_owner_other_projects
Specs van de opzet:
- Keuken langs wand 320cm breed en 60 cm diep
- Eiland 175cm x 90cm
- Blad dekton shell liquid
- Front eiche bordolino
- Miele combi stoomoven en combi magnetron
- Miele inductie met recirculatieafzuiging (4 pitten)
- Wel/niet Quooker, nog even optie wanneer we zien hoe hoog de offerte gaat uitvallen.
Wat vinden jullie van de opzet qua indeling? Enige zorg die ik heb is dat het houten front erg druk gaat worden met nerfen en niet zo strak wordt als het voorbeeld. Daarom ook nog donkere opzet laten maken. Die is ook best fraai, maar wel wat vlekgevoeliger voor met de kleine kindjes.
[Afbeelding]
[Afbeelding]
[Afbeelding]
[Afbeelding]
Verder zou ik inderdaad of bredere kasten nemen, of lades, is wat minder eentonig.
Ook wij zijn na 15 jaar toe aan een nieuwe keuken (in een ander huis..)
Nu zitten we in de laatste fase van een offerte en vraag ik mij toch af of we:
a. Een redelijke prijs betalen (ik was al nooit goed in afdingen en nu dus weer niet ...)
b. Qua keuze in apparatuur en indeling nog zaken over het hoofd zien.
De keuken ziet er nu als volgt uit.
:no_upscale():strip_icc():fill(white):strip_exif()/f/image/2zo8049gvWbXRJGM4gds19Cz.jpg?f=user_large)
:no_upscale():strip_icc():fill(white):strip_exif()/f/image/1yZozcpOmrNrp0kErHkVS9cC.jpg?f=user_large)
Keukenmerk is NOBILIA 945 Easytouch Zwart Ultramat
Werkblad is Keramiek 3cm dik
Spoelbak Reginox New York Jet Black 50x40
QuookerCombi+
Apparatuur:
Siemens, IQ700 Stoomoven HS858GXB6
Siemens, IQ700 Combimagnetron HM876G0B6
Siemens, IQ700 InductionAir EX877LX67E
Siemens, IQ500 Koelkast KI81RSDE0
Siemens, IQ500 Vriezer GI41NACE0
Siemens, IQ300 Vaatwasser SN63H800BE
Qua prijs ziet het er als volgt uit:
Meubelen € 10.442,07
Werkbladen € 4.280,67
Apparatuur € 8.563,08
Accessoires € 1.531,36
Transport € 375,00
Installatie € 1.900,00
Totaalprijs € 27.092,18
Verkoper heeft ons vanaf dag 1 super geholpen, denkt met ons mee, maar gaf gelijk al aan dat hij een scherpe offerte neerlegt en er weinig tot niets vanaf zou kunnen.
Om mij heen hoor ik ook steeds meer verhalen dat er weinig ruimte meer in offertes zit.
Graag jullie kennis en advies hierin
Nu zitten we in de laatste fase van een offerte en vraag ik mij toch af of we:
a. Een redelijke prijs betalen (ik was al nooit goed in afdingen en nu dus weer niet ...)
b. Qua keuze in apparatuur en indeling nog zaken over het hoofd zien.
De keuken ziet er nu als volgt uit.
:no_upscale():strip_icc():fill(white):strip_exif()/f/image/2zo8049gvWbXRJGM4gds19Cz.jpg?f=user_large)
:no_upscale():strip_icc():fill(white):strip_exif()/f/image/1yZozcpOmrNrp0kErHkVS9cC.jpg?f=user_large)
Keukenmerk is NOBILIA 945 Easytouch Zwart Ultramat
Werkblad is Keramiek 3cm dik
Spoelbak Reginox New York Jet Black 50x40
QuookerCombi+
Apparatuur:
Siemens, IQ700 Stoomoven HS858GXB6
Siemens, IQ700 Combimagnetron HM876G0B6
Siemens, IQ700 InductionAir EX877LX67E
Siemens, IQ500 Koelkast KI81RSDE0
Siemens, IQ500 Vriezer GI41NACE0
Siemens, IQ300 Vaatwasser SN63H800BE
Qua prijs ziet het er als volgt uit:
Meubelen € 10.442,07
Werkbladen € 4.280,67
Apparatuur € 8.563,08
Accessoires € 1.531,36
Transport € 375,00
Installatie € 1.900,00
Totaalprijs € 27.092,18
Verkoper heeft ons vanaf dag 1 super geholpen, denkt met ons mee, maar gaf gelijk al aan dat hij een scherpe offerte neerlegt en er weinig tot niets vanaf zou kunnen.
Om mij heen hoor ik ook steeds meer verhalen dat er weinig ruimte meer in offertes zit.
Graag jullie kennis en advies hierin
[ Voor 6% gewijzigd door rsvmark op 29-08-2022 15:20 ]
Nobilia, dus even de offerte naar Keukenloods sturen waarbij je je de prijzen weglakt en kijken waar zij mee komen. Bij mij gingen ze van ~7k superkeukens naar ~5k keukenloods (enkel meubels). En toen was er bij SK ineens wel wat mogelijk qua prijs.rsvmark schreef op maandag 29 augustus 2022 @ 15:09:
Ook wij zijn na 15 jaar toe aan een nieuwe keuken (in een ander huis..)
Nu zitten we in de laatste fase van een offerte en vraag ik mij toch af of we:
a. Een redelijke prijs betalen (ik was al nooit goed in afdingen en nu dus weer niet ...)
b. Qua keuze in apparatuur en indeling nog zaken over het hoofd zien.
De keuken ziet er nu als volgt uit.
[Afbeelding]
[Afbeelding]
Keukenmerk is NOBILIA 945 Easytouch Zwart Ultramat
Werkblad is Keramiek 3cm dik
Spoelbak Reginox New York Jet Black 50x40
QuookerCombi+
Apparatuur:
Siemens, IQ700 Stoomoven HS858GXB6
Siemens, IQ700 Combimagnetron HM876G0B6
Siemens, IQ700 InductionAir EX877LX67E
Siemens, IQ500 Koelkast KI81RSDE0
Siemens, IQ500 Vriezer GI41NACE0
Siemens, IQ300 Vaatwasser SN63H800BE
Dit alles geïnstalleerd en wel voor €27000.
Verkoper heeft ons vanaf dag 1 super geholpen, denkt met ons mee, maar gaf gelijk al aan dat hij een scherpe offerte neerlegt en er weinig tot niets vanaf zou kunnen.
Om mij heen hoor ik ook steeds meer verhalen dat er weinig ruimte meer in offertes zit.
Graag jullie kennis en advies hierin
p.s. ik zou adviseren even je apparatuur als prijs apart te noemen en hiernaast ook de montage, dat geeft een wat helderder beeld hier.
VW ID.7 Tourer Pro S | 5670 Wp JA Solar - 14x405 33° op Zuid | Twente
Goeie tip, ga ik doen!True schreef op maandag 29 augustus 2022 @ 15:14:
[...]
Nobilia, dus even de offerte naar Keukenloods sturen waarbij je je de prijzen weglakt en kijken waar zij mee komen. Bij mij gingen ze van ~7k superkeukens naar ~5k keukenloods (enkel meubels). En toen was er bij SK ineens wel wat mogelijk qua prijs.
p.s. ik zou adviseren even je apparatuur als prijs apart te noemen en hiernaast ook de montage, dat geeft een wat helderder beeld hier.
En prijzen erbij gezet
Valt je QuookerCombi+ onder apparatuur? Die wordt nog wel eens onder een andere post gezet namelijk.rsvmark schreef op maandag 29 augustus 2022 @ 15:21:
[...]
Goeie tip, ga ik doen!
En prijzen erbij gezet
VW ID.7 Tourer Pro S | 5670 Wp JA Solar - 14x405 33° op Zuid | Twente
Nee dat is de (enige) accessoire.True schreef op maandag 29 augustus 2022 @ 15:27:
[...]
Valt je QuookerCombi+ onder apparatuur? Die wordt nog wel eens onder een andere post gezet namelijk.
.
[ Voor 99% gewijzigd door FrankSpin op 15-07-2023 12:02 ]
Vandaag wat onderzoek gedaan en mijn plan voor nu (kan zijn dat ik morgen weer anders denk) isToke_gt schreef op maandag 29 augustus 2022 @ 09:53:
[...]
Omdat Rotpunkt niet het goedkoopste merk is idd. Waarbij ik ervan uitging dat je alles zou willen vervangen, niet allleen de fronten. Optie die je nu noemt lijkt me inderdaad de goedkoopste, maar niet per se het mooiste en duurzaamste. Wat laat je dan precies stickeren? De zijkanten? Of echt alles, dus ook nieuwe Ikea-eiland?
Werkeiland kasten kopen bij de ikea. (1500 euro)
Deze samen met huidige bestaande L-vorm keuken laten stickeren naar 1 kleur. (1600 euro)
Voor zowel de L-vorm als werkeiland een mooie marmeren keramieke blad a 5400 euro (ook de zijkanten) bij werkladen in Veenendaal.
Ben ik 8500 euro kwijt in totaal.
Als ik een volledige nieuwe keuken neem zonder apparatuur ben ik ook wel minstens 15k-20k kwijt.
Hoe moet je daar gaan zitten eten als je bord op de kookplaat ligt?FrankSpin schreef op maandag 29 augustus 2022 @ 15:38:
Bezig met herzien van ons keukenontwerp.
[Afbeelding]
[Afbeelding]
Qua stijl hinken we nog op twee gedachten. Of houtfineer i.c.m. shaker style. Of compleet shaker style en dan wat nu houtfineer in de render is in een donkere tint blauw.
[Afbeelding]
Wij zijn ook alweer wat stappen verder in onze keuken!
Op dit moment zijn er twee opties waarbij we niet goed weten of dit wel echt vergelijkbaar is.
Het betreft een Schüller keuken bij SuperKeukens en een MHK Selectiv (rebranded Ballerina?).
Om de offertes goed te kunnen vergelijken vraag ik mij af of dit vergelijkbare keukens zijn vwb prijs en kwaliteit.
We hebben bij de Schüller keuken een prijsgroep hoger composiet werkblad en de offerte is lager (ongeveer 2,5k). Verder qua apparatuur exact gelijk. Wat is jullie ervaring?
Op dit moment zijn er twee opties waarbij we niet goed weten of dit wel echt vergelijkbaar is.
Het betreft een Schüller keuken bij SuperKeukens en een MHK Selectiv (rebranded Ballerina?).
Om de offertes goed te kunnen vergelijken vraag ik mij af of dit vergelijkbare keukens zijn vwb prijs en kwaliteit.
We hebben bij de Schüller keuken een prijsgroep hoger composiet werkblad en de offerte is lager (ongeveer 2,5k). Verder qua apparatuur exact gelijk. Wat is jullie ervaring?
Leuk! Die houten kastjes lijken wel op de onze:Nickos schreef op zaterdag 27 augustus 2022 @ 21:10:
Vandaag eerste renders gemaakt van de keuken. Inspiratie is de lichte houtkleur van deze keuken:
https://www.behance.net/g...ject_owner_other_projects
Specs van de opzet:
- Keuken langs wand 320cm breed en 60 cm diep
- Eiland 175cm x 90cm
- Blad dekton shell liquid
- Front eiche bordolino
- Miele combi stoomoven en combi magnetron
- Miele inductie met recirculatieafzuiging (4 pitten)
- Wel/niet Quooker, nog even optie wanneer we zien hoe hoog de offerte gaat uitvallen.
Wat vinden jullie van de opzet qua indeling? Enige zorg die ik heb is dat het houten front erg druk gaat worden met nerfen en niet zo strak wordt als het voorbeeld. Daarom ook nog donkere opzet laten maken. Die is ook best fraai, maar wel wat vlekgevoeliger voor met de kleine kindjes.
[Afbeelding]
[Afbeelding]
[Afbeelding]
[Afbeelding]
:strip_exif()/f/image/x6O2mbte0Q4wqNF0XU2bXQOQ.jpg?f=fotoalbum_large)
Inmiddels de prijsopgave binnen. EUR 30k vind ik flink aan de prijs voor deze opzet.Nickos schreef op zaterdag 27 augustus 2022 @ 21:10:
Vandaag eerste renders gemaakt van de keuken. Inspiratie is de lichte houtkleur van deze keuken:
https://www.behance.net/g...ject_owner_other_projects
Specs van de opzet:
- Keuken langs wand 320cm breed en 60 cm diep
- Eiland 175cm x 90cm
- Blad dekton shell liquid
- Front eiche bordolino
- Miele combi stoomoven en combi magnetron
- Miele inductie met recirculatieafzuiging (4 pitten)
- Wel/niet Quooker, nog even optie wanneer we zien hoe hoog de offerte gaat uitvallen.
Wat vinden jullie van de opzet qua indeling? Enige zorg die ik heb is dat het houten front erg druk gaat worden met nerfen en niet zo strak wordt als het voorbeeld. Daarom ook nog donkere opzet laten maken. Die is ook best fraai, maar wel wat vlekgevoeliger voor met de kleine kindjes.
[Afbeelding]
[Afbeelding]
[Afbeelding]
[Afbeelding]
Apparatuur:
Miele Combimagnetron H 7240 BM Obsidiaanzwart EUR 1.867,00
Miele Combi-stoomoven DGC 7645 EUR 4.178,00
Miele Vaatwasser G 5265 SCVi XXL Active Plus Volledig geïntegreerd Roestvrij staal EUR1.510,00
Miele InductieKookplaat met werkbladafzuiging KMDA 7476 FL EUR 3.778,00
Miele DFKS-U Set voor plat afvoerkanaal luchtcirculatie EUR 640,00
Quooker Combi+ 7L EUR 1.945
Blad:
Dekton shell liquid EUR 6.552
All met all dus EUR 14k voor apparatuur, 6,5k voor het blad en 6,5k voor de meubels. En dan nog 3k voor transport en montage. Wij gaan denk nog even bij een paar anderen buurten ook en misschien eens ander merk apparatuur bekijken ook. Deze partij gaf aan altijd met Miele te werken. Wel fijne zaak, maar boven het budget.
Eerlijk gezegd vind ik het ook zonder nerven op de render een nogal onrustig geheel. Dat komt deels door de vele ramen en deuren (is de deur rechts in de keuken een doorgang of een kast?) en deels door patronen in vloeren in woonkamer en keuken, in combinatie met keukenfronten. Het is wat veel allemaal. Tel daarbij op dat een keuken zelden helemaal leeg is en je kunt je voorstellen hoe dat straks oogt.Nickos schreef op zaterdag 27 augustus 2022 @ 21:10:
Wat vinden jullie van de opzet qua indeling? Enige zorg die ik heb is dat het houten front erg druk gaat worden met nerfen en niet zo strak wordt als het voorbeeld.
Ik begrijp dat je nog bij andere keukenzaken gaat kijken. Neem reststukjes van je vloer uit kamer en keuken mee en kijk hoe de frontjes daarbij uitkomen. Ik denk dat een patroonloos front meer rust brengt in het geheel.
Verder zou ik tip van hierboven voor een T-opstelling eens laten uitwerken. Ik ben er zelf niet zo’n fan van, maar met die twee deuren in je keuken, zou het bij jou misschien een goede oplossing zijn. En tip die ik ook zag terugkomen: maak een zo groot mogelijk aaneengesloten werkblad, in plaats van allemaal kleine stukken. Dat ziet er wel leuk uit, kookplaat en spoelbak gecentreerd, maar het werkt voor geen meter. Bedenk maar hoe je daar samen met je kinderen koekjes gaat bakken, of zelf een wat complexe maaltijd voorbereidt.
Het commentaar op de hoogte van de oven deel ik overigens niet. De onderkant van de bovenste oven zit op 1.20 of zo. Prima te doen en juist wel fijn met kleine kinderen in huis.
Weet je dat de ovens er totaal verschillend uit zien?Nickos schreef op maandag 29 augustus 2022 @ 21:03:
[...]
Inmiddels de prijsopgave binnen. EUR 30k vind ik flink aan de prijs voor deze opzet.
Apparatuur:
Miele Combimagnetron H 7240 BM Obsidiaanzwart EUR 1.867,00
Miele Combi-stoomoven DGC 7645 EUR 4.178,00
Miele Vaatwasser G 5265 SCVi XXL Active Plus Volledig geïntegreerd Roestvrij staal EUR1.510,00
Miele InductieKookplaat met werkbladafzuiging KMDA 7476 FL EUR 3.778,00
Miele DFKS-U Set voor plat afvoerkanaal luchtcirculatie EUR 640,00
Quooker Combi+ 7L EUR 1.945
Blad:
Dekton shell liquid EUR 6.552
All met all dus EUR 14k voor apparatuur, 6,5k voor het blad en 6,5k voor de meubels. En dan nog 3k voor transport en montage. Wij gaan denk nog even bij een paar anderen buurten ook en misschien eens ander merk apparatuur bekijken ook. Deze partij gaf aan altijd met Miele te werken. Wel fijne zaak, maar boven het budget.
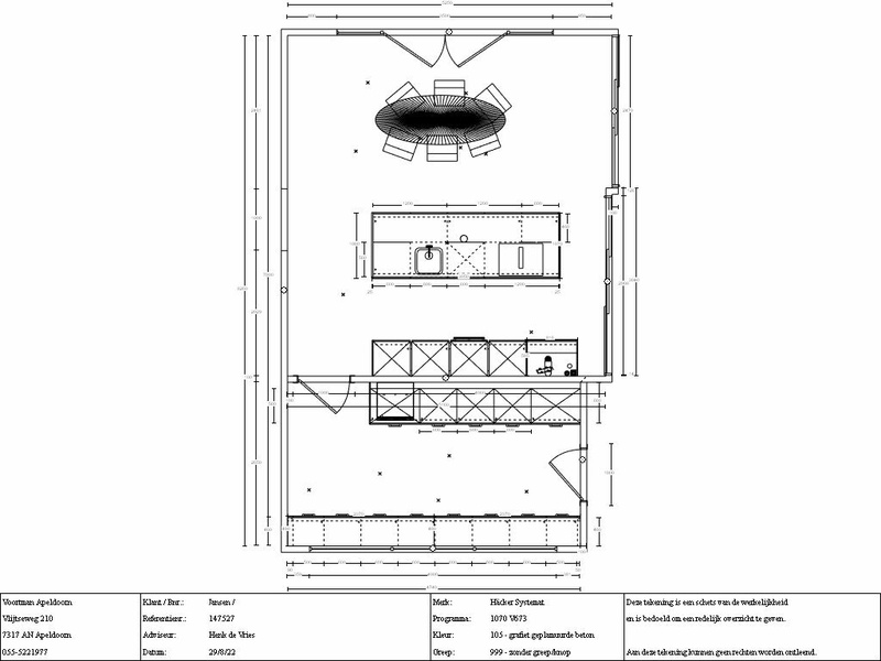
Dag allemaal,
ik ben mij aan het oriënteren naar een nieuwe keuken. Vandaag bij Voortman keukens in Apeldoorn geweest en erg goed geholpen.
Hieronder de schets en gerendeerde plaatjes:
:strip_exif()/f/image/QZxa5Wadn1DhF8JIcu2VgKNj.jpg?f=fotoalbum_large)
:strip_exif()/f/image/MdU7poXeaw9bcdqmVgsG46FV.jpg?f=fotoalbum_large)
:strip_exif()/f/image/Y5aCadxtgCp1OuHM8VLr6MY8.jpg?f=fotoalbum_large)
Wasmachine en droger (1), vriezer (2), stofzuiger/strijk (3), kapstok (4), meterkast (5)
:strip_exif()/f/image/m06LvBlPn0fnPjOJoqB6eNPy.jpg?f=fotoalbum_large)
:strip_exif()/f/image/v5oqUklIcUHhWoVsomrgnv4k.jpg?f=fotoalbum_large)
Ik hoef niets anders dan 1 combi over/magnetron
:strip_exif()/f/image/Ur3Jx4ekvegnHzYFtxzX6fPD.jpg?f=fotoalbum_large)
Iemand tips?
ik ben mij aan het oriënteren naar een nieuwe keuken. Vandaag bij Voortman keukens in Apeldoorn geweest en erg goed geholpen.
Hieronder de schets en gerendeerde plaatjes:
:strip_exif()/f/image/QZxa5Wadn1DhF8JIcu2VgKNj.jpg?f=fotoalbum_large)
:strip_exif()/f/image/MdU7poXeaw9bcdqmVgsG46FV.jpg?f=fotoalbum_large)
:strip_exif()/f/image/Y5aCadxtgCp1OuHM8VLr6MY8.jpg?f=fotoalbum_large)
Wasmachine en droger (1), vriezer (2), stofzuiger/strijk (3), kapstok (4), meterkast (5)
:strip_exif()/f/image/m06LvBlPn0fnPjOJoqB6eNPy.jpg?f=fotoalbum_large)
:strip_exif()/f/image/v5oqUklIcUHhWoVsomrgnv4k.jpg?f=fotoalbum_large)
Ik hoef niets anders dan 1 combi over/magnetron
:strip_exif()/f/image/Ur3Jx4ekvegnHzYFtxzX6fPD.jpg?f=fotoalbum_large)
- Keukenmeubel: A, Systéma AV 1070
- Bauknecht Inductiekookplaat inclusief afzuigsysteem BVH 92 2B K/1
- Bauknecht Integreerbare koelkast KSI18VF2P
- Bauknecht Integreerbare vrieskast GSI18F2PS
- Bauknecht Volledig integreerbare vaatwasmachine BCIO3C33EC
- Bauknecht Compacte multifunctionele oven met magnetronfunctie EMEK9P545PT
- Reginox RVS spoelbak Ohio 50x40 R15780
- Dekker Eenhendelkeukenmengkraan Lanesto Forte 250433
Iemand tips?
Wat een heerlijke ruimte in keuken en bijkeuken. Ga je de lage kant in de bijkeuken ook als werkblad gebruiken? Of is het daar te laag voor (kan het niet goed zien op render).tatata schreef op maandag 29 augustus 2022 @ 22:10:
ik ben mij aan het oriënteren naar een nieuwe keuken. Vandaag bij Voortman keukens in Apeldoorn geweest en erg goed geholpen.
Hieronder de schets en gerendeerde plaatjes:
(…)
Iemand tips?
Ik zou je willen adviseren goed naar de werkbladruimte te kijken. Tussen speolbak en kookplaat zit nu 80 cm (?) en dat lijkt je grootste stuk. Ik vind dat wat weinig in zo’n grote keuken. En als ik het goed zie is de afwasmachine ook op dat stukje geplaatst? Dat betekent dat je daar ook de vaat gaat parkeren. Een hoop drukte dus op die 80 cm, dat kan zeker ook anders. Met zoveel kasten in de bijkeuken heb je misschien aan twee of drie hoge kasten voldoende en kunnen spoelbak + afwasmachine naar de muurzijde.
Verder denk ik dat de achterwand beter tot zijn recht komt als je die ‘inlijst’. Daar zijn recent wat voorbeelden van voorbij gekomen, dus blader even wat pagina’s terug als je het effect wilt zien.
Begrijp ik het goed dat een combi magnetron oven van 45 cm wel qua bakken van deeg en vlees/ vis / kip niet kan als een oven van 60 cm solo met een beetje stoom bij het bakken? Er zit best wel veel verschil in de oven en magnetron apart kopen als een combi oven van 45 cm.
[ Voor 27% gewijzigd door Denizli op 30-08-2022 00:02 ]
60cm lijkt me niet afdoende hoogte voor de nisFrankSpin schreef op maandag 29 augustus 2022 @ 15:38:
Bezig met herzien van ons keukenontwerp.
[Afbeelding]
[Afbeelding]
Qua stijl hinken we nog op twee gedachten. Of houtfineer i.c.m. shaker style. Of compleet shaker style en dan wat nu houtfineer in de render is in een donkere tint blauw.
[Afbeelding]
Bericht hierboven
Het eiland is schandalig slecht aangeboden op deze manier. Is al wat over gezegd door anderentatata schreef op maandag 29 augustus 2022 @ 22:10:
Dag allemaal,
ik ben mij aan het oriënteren naar een nieuwe keuken. Vandaag bij Voortman keukens in Apeldoorn geweest en erg goed geholpen.
Hieronder de schets en gerendeerde plaatjes:
[Afbeelding]
[Afbeelding]
[Afbeelding]
Wasmachine en droger (1), vriezer (2), stofzuiger/strijk (3), kapstok (4), meterkast (5)
[Afbeelding]
[Afbeelding]
Ik hoef niets anders dan 1 combi over/magnetron
[Afbeelding]Totaal circa 30k.
- Keukenmeubel: A, Systéma AV 1070
- Bauknecht Inductiekookplaat inclusief afzuigsysteem BVH 92 2B K/1
- Bauknecht Integreerbare koelkast KSI18VF2P
- Bauknecht Integreerbare vrieskast GSI18F2PS
- Bauknecht Volledig integreerbare vaatwasmachine BCIO3C33EC
- Bauknecht Compacte multifunctionele oven met magnetronfunctie EMEK9P545PT
- Reginox RVS spoelbak Ohio 50x40 R15780
- Dekker Eenhendelkeukenmengkraan Lanesto Forte 250433
Iemand tips?
Fronten ga je denk ik op termijn spijt van krijgen en je hebt er nogal wat, vervangen wordt duur. Mijn tip is om iets tijdloos te kiezen.
Bericht hierboven
Ik heb je tekst echt meerdere keren gelezen en ik begrijp je gewoon niet.Denizli schreef op maandag 29 augustus 2022 @ 23:18:
Begrijp ik het goed dat een combi magnetron oven van 45 cm wel qua bakken van deeg en vlees/ vis / kip niet kan als een oven van 60 cm solo met een beetje stoom bij het bakken? Er zit best wel veel verschil in de oven en magnetron apart kopen als een combi oven van 45 cm.
Wel qua bakken niet kan als een stoomoven bij het bakken

[ Voor 4% gewijzigd door Floor-is op 30-08-2022 04:03 ]
Bericht hierboven
Nee in de bijkeuken kom je binnen (voordeur). De lage kasten zijn puur voor tassen, schoenen, kinderspeelgoed.Toke_gt schreef op maandag 29 augustus 2022 @ 22:36:
[...]
Wat een heerlijke ruimte in keuken en bijkeuken. Ga je de lage kant in de bijkeuken ook als werkblad gebruiken? Of is het daar te laag voor (kan het niet goed zien op render).
Ik zou je willen adviseren goed naar de werkbladruimte te kijken. Tussen speolbak en kookplaat zit nu 80 cm (?) en dat lijkt je grootste stuk. Ik vind dat wat weinig in zo’n grote keuken. En als ik het goed zie is de afwasmachine ook op dat stukje geplaatst? Dat betekent dat je daar ook de vaat gaat parkeren. Een hoop drukte dus op die 80 cm, dat kan zeker ook anders. Met zoveel kasten in de bijkeuken heb je misschien aan twee of drie hoge kasten voldoende en kunnen spoelbak + afwasmachine naar de muurzijde.
Verder denk ik dat de achterwand beter tot zijn recht komt als je die ‘inlijst’. Daar zijn recent wat voorbeelden van voorbij gekomen, dus blader even wat pagina’s terug als je het effect wilt zien.
Tussen spoelbak en kookplaat zit nu 80 cm (?) en dat lijkt je grootste stuk. Ik vind dat wat weinig in zo’n grote keuken. En als ik het goed zie is de afwasmachine ook op dat stukje geplaatst?
Goed put. Ik denk er even over na. Wilde juist aan de muurzijde eigenlijk niets hebben.
Sorry het was misschien iets te laat om goed te formuleren. Ik heb de neiging om te veel in een zin te willen zeggen.Floor-is schreef op dinsdag 30 augustus 2022 @ 04:02:
[...]
Ik heb je tekst echt meerdere keren gelezen en ik begrijp je gewoon niet.
Wel qua bakken niet kan als een stoomoven bij het bakkenNee sorry
Wat ik mij afvraag is of een 45 cm
hoge combi oven met magnetron functie dezelfde kwaliteit levert als solo 60 cm oven, waarbij een solo oven ook enig stoomfunctie kan hebben. qua kosten scheelt het namelijk wel veel. Een 45 cm combi oven met magnetronfuncie is ca 1500€. Solo oven met wat stoom (niet 100%stoom) is ca 2500€ plus nog een separate magnetron 1000€ = 3.500€ Vandaar mijn vraag. Als het wederom onduidelijk is geformuleerd hoor ik het graag. Alvast dank!
Maar dan heb je alsnog geen stoom als je enkel gaat voor de Combi?Denizli schreef op dinsdag 30 augustus 2022 @ 08:54:
[...]
Sorry het was misschien iets te laat om goed te formuleren. Ik heb de neiging om te veel in een zin te willen zeggen.
Wat ik mij afvraag is of een 45 cm
hoge combi oven met magnetron functie dezelfde kwaliteit levert als solo 60 cm oven, waarbij een solo oven ook enig stoomfunctie kan hebben. qua kosten scheelt het namelijk wel veel. Een 45 cm combi oven met magnetronfuncie is ca 1500€. Solo oven met wat stoom (niet 100%stoom) is ca 2500€ plus nog een separate magnetron 1000€ = 3.500€ Vandaar mijn vraag. Als het wederom onduidelijk is geformuleerd hoor ik het graag. Alvast dank!
Dus of Oven met stoom + magnetron, of alleen combi-oven... Dat lijkt mij geen eerlijke vergelijking
Dan zou het combi stoom met combi magnetron moeten zijn
Ja dat klopt maar een solo oven zonder überhaupt stoom beter gezegd vocht lijkt me niet van deze tijd. Volgens mij is de oven die ik voor ogen ook geen echte stoom oven maar geeft tijdens bakken wat vocht. Het gaat om Miele HP 7264BP. Een echte stoomoven gaat >4000€ kosten zie DCG 7460 en dan heb ik nog geen magnetron.Sinny schreef op dinsdag 30 augustus 2022 @ 09:29:
[...]
Maar dan heb je alsnog geen stoom als je enkel gaat voor de Combi?
Dus of Oven met stoom + magnetron, of alleen combi-oven... Dat lijkt mij geen eerlijke vergelijking
Dan zou het combi stoom met combi magnetron moeten zijn
[ Voor 11% gewijzigd door Denizli op 30-08-2022 10:03 ]
Welke stoom-oven van Miele is wel een volledige stoomoven en volledige 'gewone' oven?Denizli schreef op dinsdag 30 augustus 2022 @ 09:38:
[...]
Ja dat klopt maar een solo oven zonder überhaupt stoom lijkt me niet van deze tijd. Volgens mij is dr oven die ik voor ogen ook geen echte stoom oven. Het gaat om Miele HP 7264BP.
Wat zou dan het prijsverschil voor je zijn?
Het was voor mij ook laat hoorDenizli schreef op dinsdag 30 augustus 2022 @ 08:54:
[...]
Sorry het was misschien iets te laat om goed te formuleren. Ik heb de neiging om te veel in een zin te willen zeggen.
Ja, kan zeker.Wat ik mij afvraag is of een 45 cmhoge combi oven met magnetron functie dezelfde kwaliteit levert als solo 60 cm oven,
Een solo met een stoomoven vergelijken gaat niet echt. Een solo heeft een ander doel en een veel eenvoudiger aansturing.waarbij een solo oven ook enig stoomfunctie kan hebben.
Stel je wilt een combi 45cm magnetron en stoomoven, dan is dat relatief teveel voor het apparaat. Je zou denken dat de fabrikant dat wel aanbieden kan, maar (ik denk vanwege economische redenen vooral) het lukt ze niet.
Een combi magnetron en solo oven is goed te doen.
Een combi solo en stoomoven is eenvoudig.
Een combi stoomoven en magnetron blijkt te ingewikkeld.
Wil je dus gaan combineren, dan is bovenstaande ‘rule of thumb’ wel een goede om in je achterhoofd te houden.
Economische redenen kunnen dus een oorzaak zijn.qua kosten scheelt het namelijk wel veel. Een 45 cm combi oven met magnetronfuncie is ca 1500€. Solo oven met wat stoom (niet 100%stoom) is ca 2500€ plus nog een separate magnetron 1000€ = 3.500€ Vandaar mijn vraag. Als het wederom onduidelijk is geformuleerd hoor ik het graag. Alvast dank!
Wat als je een 45cm combi zou doen van een (solo) oven en magnetron en een 45/60 stoomoven? Die laatste kan dan ook nog volledig of juist deels stoom zijn om het lekker ingewikkeld te maken.
Bericht hierboven
Na al een maand of twee deze topics doorgestruind te hebben, wordt het toch eens tijd om knopen door te hakken.
Hiertoe een vraag: ik wil graag een staande vriezer en een staande koelkast gaan aanschaffen, met ijsblokjesmachine à la dit model. Het idee is om een daadwerkelijke "side-by-side" neer te zetten, een koelkast én een vriezer elk 60cm breed. Budget hiervoor is max €2000,-.
Nu kan ik echter geen losstaande vriezers vinden met een dergelijke ijsblokjesfunctie. Zoek ik nou gewoon niet goed, of worden deze niet echt gemaakt?
Hiertoe een vraag: ik wil graag een staande vriezer en een staande koelkast gaan aanschaffen, met ijsblokjesmachine à la dit model. Het idee is om een daadwerkelijke "side-by-side" neer te zetten, een koelkast én een vriezer elk 60cm breed. Budget hiervoor is max €2000,-.
Nu kan ik echter geen losstaande vriezers vinden met een dergelijke ijsblokjesfunctie. Zoek ik nou gewoon niet goed, of worden deze niet echt gemaakt?
IJsblokjesfunctie is echt zo'n Amerikaanse koelkast ding (of Frans maar tomato-tomato) dat ga je inderdaad niet (snel) vinden in een inbouw koelkast.Zeuter schreef op dinsdag 30 augustus 2022 @ 14:22:
Na al een maand of twee deze topics doorgestruind te hebben, wordt het toch eens tijd om knopen door te hakken.
Hiertoe een vraag: ik wil graag een staande vriezer en een staande koelkast gaan aanschaffen, met ijsblokjesmachine à la dit model. Het idee is om een daadwerkelijke "side-by-side" neer te zetten, een koelkast én een vriezer elk 60cm breed. Budget hiervoor is max €2000,-.
Nu kan ik echter geen losstaande vriezers vinden met een dergelijke ijsblokjesfunctie. Zoek ik nou gewoon niet goed, of worden deze niet echt gemaakt?
De drie op de PW zijn volgens mij ook alle drie foutief ingevuld:
https://tweakers.net/koel...YyHiWDxj0Abmd_ZtlRGTrvX8B
Maar daar verbaas ik mij helemaal niet over: Kwaliteit van productspecificaties - vriezers
Edit: ja inderdaad fout ingevuld, ze hebben alle drie wel een ijsblokjes maker in de vorm van een uitneembaar lade-deel in de vriezer. Geen echte dispenser zoals je bij die filter-opties zou verwachten.
[ Voor 27% gewijzigd door True op 30-08-2022 14:40 ]
VW ID.7 Tourer Pro S | 5670 Wp JA Solar - 14x405 33° op Zuid | Twente
Een tip voor de mensen die op zoek zijn naar een aparte leverancier voor de keukenbladen: bedrijf Steenproject (is meerdere malen benoemd).
Dezelfde offerte naar grote leveranciers (Grillo bijv.): Prijs 16,5k en bij Steenproject 8,5k
Schandalig eigenlijk..
Dezelfde offerte naar grote leveranciers (Grillo bijv.): Prijs 16,5k en bij Steenproject 8,5k
Schandalig eigenlijk..
Dat zijn dan ook koelkasten, geen vriezers - op de PW is er voor vriezers geen filter voor een ijs/waterdispenser.True schreef op dinsdag 30 augustus 2022 @ 14:35:
[...]
IJsblokjesfunctie is echt zo'n Amerikaanse koelkast ding (of Frans maar tomato-tomato) dat ga je inderdaad niet (snel) vinden in een inbouw koelkast.
De drie op de PW zijn volgens mij ook alle drie foutief ingevuld:
https://tweakers.net/koel...YyHiWDxj0Abmd_ZtlRGTrvX8B
Maar daar verbaas ik mij helemaal niet over: Kwaliteit van productspecificaties - vriezers
Edit: ja inderdaad fout ingevuld, ze hebben alle drie wel een ijsblokjes maker in de vorm van een uitneembaar lade-deel in de vriezer. Geen echte dispenser zoals je bij die filter-opties zou verwachten.
Toch dank voor de input. Denk niet dat ik nog zo'n vriezer ga vinden met dispenser, daar gaat mijn droom van een symmetrische koelkast en vriezer.
er is een inbouwvriezer van Liebherr wat een ijsmachine inside heeft. maar volgens mij was je hier niet opzoek naar inbouw.Zeuter schreef op dinsdag 30 augustus 2022 @ 15:02:
[...]
Dat zijn dan ook koelkasten, geen vriezers - op de PW is er voor vriezers geen filter voor een ijs/waterdispenser.
Toch dank voor de input. Denk niet dat ik nog zo'n vriezer ga vinden met dispenser, daar gaat mijn droom van een symmetrische koelkast en vriezer.
En wat is je bezwaar tegen de combinatie uit je voorbeeld? De breedte?Zeuter schreef op dinsdag 30 augustus 2022 @ 15:02:
[...]
Dat zijn dan ook koelkasten, geen vriezers - op de PW is er voor vriezers geen filter voor een ijs/waterdispenser.
Toch dank voor de input. Denk niet dat ik nog zo'n vriezer ga vinden met dispenser, daar gaat mijn droom van een symmetrische koelkast en vriezer.
Wat vinden jullie van de opstelling?
Keuken van het merk Ballerina
Kleuren/materiaal fronten zoals nu ingetekend (die gaan we waarschijnlijk nog veranderen)
Fronten van Smart glass (kleur Karbonmetallic 4641)
Blad van keramiek
We vonden de kleur in real life mooi, maar voor deze opstelling waarschijnlijk toch te donker.
De bar willen we waarschijnlijk iets minder breed maken, zodat de doorloop de keuken in wat groter wordt.
Apparatuur:
- Bora Puru (gaan we nog aanpassen naar PUXU)
- Quooker Pro3 (gaan we aanpassen naar Combi plus)
- Siemens iQ700 combi oven magnetron
- Siemens iQ700 combi stoomoven
- Siemens iQ500 ijskast
- Siemens iQ500 vriezer
- Siemens iQ300 vaatwasser
/f/image/TC4FcxbWKsnjx0FsqhTpiHro.png?f=fotoalbum_large)
/f/image/jvjYOLStIe6j86Pbm4OlpwLD.png?f=fotoalbum_large)
/f/image/ljLukjXVhI5jhoCznuFHLYTt.png?f=fotoalbum_large)
/f/image/t5W5JN7TsCqxEnzWk0Jp4Nfu.png?f=fotoalbum_large)
/f/image/hs7w9sMwtBMx8w196coKn3Cq.png?f=fotoalbum_large)
/f/image/TbQewARDKD4fs2TAkJOwnuR3.png?f=fotoalbum_large)
Keuken van het merk Ballerina
Kleuren/materiaal fronten zoals nu ingetekend (die gaan we waarschijnlijk nog veranderen)
Fronten van Smart glass (kleur Karbonmetallic 4641)
Blad van keramiek
We vonden de kleur in real life mooi, maar voor deze opstelling waarschijnlijk toch te donker.
De bar willen we waarschijnlijk iets minder breed maken, zodat de doorloop de keuken in wat groter wordt.
Apparatuur:
- Bora Puru (gaan we nog aanpassen naar PUXU)
- Quooker Pro3 (gaan we aanpassen naar Combi plus)
- Siemens iQ700 combi oven magnetron
- Siemens iQ700 combi stoomoven
- Siemens iQ500 ijskast
- Siemens iQ500 vriezer
- Siemens iQ300 vaatwasser
/f/image/TC4FcxbWKsnjx0FsqhTpiHro.png?f=fotoalbum_large)
/f/image/jvjYOLStIe6j86Pbm4OlpwLD.png?f=fotoalbum_large)
/f/image/ljLukjXVhI5jhoCznuFHLYTt.png?f=fotoalbum_large)
/f/image/t5W5JN7TsCqxEnzWk0Jp4Nfu.png?f=fotoalbum_large)
/f/image/hs7w9sMwtBMx8w196coKn3Cq.png?f=fotoalbum_large)
/f/image/TbQewARDKD4fs2TAkJOwnuR3.png?f=fotoalbum_large)
Members only:
Alleen zichtbaar voor ingelogde gebruikers.
Inloggen
Wat zijn de afmetingen van de bladen? Ah ik zie nu de afmetingengdvm schreef op dinsdag 30 augustus 2022 @ 16:10:
Wat vinden jullie van de opstelling?
Keuken van het merk Ballerina
Kleuren/materiaal fronten zoals nu ingetekend (die gaan we waarschijnlijk nog veranderen)
Fronten van Smart glass (kleur Karbonmetallic 4641)
Blad van keramiek
We vonden de kleur in real life mooi, maar voor deze opstelling waarschijnlijk toch te donker.
De bar willen we waarschijnlijk iets minder breed maken, zodat de doorloop de keuken in wat groter wordt.
Apparatuur:
- Bora Puru (gaan we nog aanpassen naar PUXU)
- Quooker Pro3 (gaan we aanpassen naar Combi plus)
- Siemens iQ700 combi oven magnetron
- Siemens iQ700 combi stoomoven
- Siemens iQ500 ijskast
- Siemens iQ500 vriezer
- Siemens iQ300 vaatwasser
[Afbeelding]
[Afbeelding]
[Afbeelding]
[Afbeelding]
[Afbeelding]
[Afbeelding]
***members only***
De vriezer is te klein: ik mealprep veel en heb daardoor veel ruimte nodig. Dan is in de breedte 60cm koelkast met 30cm vriezer gewoon te weinig.Toke_gt schreef op dinsdag 30 augustus 2022 @ 16:10:
[...]
En wat is je bezwaar tegen de combinatie uit je voorbeeld? De breedte?
Misschien staar je je iets te veel blind op de afmetingen. De vriezer in de Amerikaanse koelkast die je noemde heeft 226L inhoud. Deze aparte vriezer (met overigens interne ijsblokjesmaker) van 60cm heeft 242L. Scheelt dus 16 liter, = 7%. Ik wil niet beweren dat het verschil niks voorstelt, maar mogelijk had je daar een andere voorstelling bij en geeft dit toch nieuwe inzichten & mogelijkheden.Zeuter schreef op dinsdag 30 augustus 2022 @ 20:38:
[...]
De vriezer is te klein: ik mealprep veel en heb daardoor veel ruimte nodig. Dan is in de breedte 60cm koelkast met 30cm vriezer gewoon te weinig.
Pff wij zitten nog steeds over de keuken te dubben. Ja dat is te lang aan het etteren.
Ik wil heel graag mijn kookeiland in orbitaal geslepen rvs, van bijvoorbeeld ABK.
Dit spul dus:

Nu is het zo dat vrienden van mijn dame een ander RVS-blad hebben (andere keukenboer) en zij last hebben van watervlekken die echt in het blad zijn getrokken.
Weet iemand hoe goed/slecht dit gebeurt met zo'n RVS blad? De keukenboer vindt het meevallen maar die is niet per se objectief. Ik lees in de manual van ABK dat zij een reiniger aanraden met daarin een lichte oliecomponent zodat je een heel dun filmpje op je blad legt. Dat lijkt mij persoonlijk een prima oplossing.
Iemand ervaringen?
Ik wil heel graag mijn kookeiland in orbitaal geslepen rvs, van bijvoorbeeld ABK.
Dit spul dus:

Nu is het zo dat vrienden van mijn dame een ander RVS-blad hebben (andere keukenboer) en zij last hebben van watervlekken die echt in het blad zijn getrokken.
Weet iemand hoe goed/slecht dit gebeurt met zo'n RVS blad? De keukenboer vindt het meevallen maar die is niet per se objectief. Ik lees in de manual van ABK dat zij een reiniger aanraden met daarin een lichte oliecomponent zodat je een heel dun filmpje op je blad legt. Dat lijkt mij persoonlijk een prima oplossing.
Iemand ervaringen?
Erg goed punt. Een verdubbeling qua ruimte betekent dan eigenlijk maximaal 30% extra capaciteit, zie PW. En dan is de dispenser compleet intern, ook niet ideaal.Toke_gt schreef op dinsdag 30 augustus 2022 @ 21:40:
[...]
Misschien staar je je iets te veel blind op de afmetingen. De vriezer in de Amerikaanse koelkast die je noemde heeft 226L inhoud. Deze aparte vriezer (met overigens interne ijsblokjesmaker) van 60cm heeft 242L. Scheelt dus 16 liter, = 7%. Ik wil niet beweren dat het verschil niks voorstelt, maar mogelijk had je daar een andere voorstelling bij en geeft dit toch nieuwe inzichten & mogelijkheden.
Denk dat ik dan voor mijn originele voorbeeld ga, de Samsung RS68A884CB1EF vanwege de grote inhoud en zuinigheid.
Je moet beseffen dat inox gewoon krast. Je zet er borden op (onderaan een ruwe porceleinen rand), pannen in ... RVS of gietzijer, en die dingen zijn harder of even hard als RVS, dus het krast.Boudewijn schreef op dinsdag 30 augustus 2022 @ 22:17:
Pff wij zitten nog steeds over de keuken te dubben. Ja dat is te lang aan het etteren.
Ik wil heel graag mijn kookeiland in orbitaal geslepen rvs, van bijvoorbeeld ABK.
Dit spul dus:
[Afbeelding]
Nu is het zo dat vrienden van mijn dame een ander RVS-blad hebben (andere keukenboer) en zij last hebben van watervlekken die echt in het blad zijn getrokken.
Weet iemand hoe goed/slecht dit gebeurt met zo'n RVS blad? De keukenboer vindt het meevallen maar die is niet per se objectief. Ik lees in de manual van ABK dat zij een reiniger aanraden met daarin een lichte oliecomponent zodat je een heel dun filmpje op je blad legt. Dat lijkt mij persoonlijk een prima oplossing.
Iemand ervaringen?
Ga gewoon eens kijken naar een keuken met een goede Franke gootsteen in RVS. Franke gebruikt in elk geval goed staal, en dat staat direct vol fijne krassen, hoort zo.
En zelfs op RVS zijn roestvlekken niet uitgesloten. Zet er een gietijzeren pan op met een paar druppels water er tussen, laat dat een paar dagen staan, en je hebt een vlek (die je er uit kan polijsten).
Als je er tegen kan dat je werkblad na verloop van tijd "verandert" dan is dat prima. Wil je dat het niet verandert, dan kan je kiezen voor graniet, keramiek, composietsteen of zelfs laminaat/formica.
Sony A7 iv en wat recycled glas
dat rvs krast weet ik prima , dat is gewoon geaccepteerdTommie12 schreef op woensdag 31 augustus 2022 @ 09:31:
[...]
Je moet beseffen dat inox gewoon krast. Je zet er borden op (onderaan een ruwe porceleinen rand), pannen in ... RVS of gietzijer, en die dingen zijn harder of even hard als RVS, dus het krast.
Ga gewoon eens kijken naar een keuken met een goede Franke gootsteen in RVS. Franke gebruikt in elk geval goed staal, en dat staat direct vol fijne krassen, hoort zo.
En zelfs op RVS zijn roestvlekken niet uitgesloten. Zet er een gietijzeren pan op met een paar druppels water er tussen, laat dat een paar dagen staan, en je hebt een vlek (die je er uit kan polijsten).
Als je er tegen kan dat je werkblad na verloop van tijd "verandert" dan is dat prima. Wil je dat het niet verandert, dan kan je kiezen voor graniet, keramiek, composietsteen of zelfs laminaat/formica.
Roest idem, is inherent aan het materiaal.
Het gaat mij om mensen die water een dag op het blad laten liggen. Dit vormt dan een grijzige kring, zien we bij die vrienden. Geen sprake van roest of roestige spullen, ik denk eerder kalk oid.
Ik zou de bar geheel weghalen. Zie bij veel mensen dat dit niet wordt gebruikt, of dat het een verzamelplek wordt om spulletjes neer te zetten.gdvm schreef op dinsdag 30 augustus 2022 @ 16:10:
We vonden de kleur in real life mooi, maar voor deze opstelling waarschijnlijk toch te donker.
De bar willen we waarschijnlijk iets minder breed maken, zodat de doorloop de keuken in wat groter wordt.
***members only***
Je ruimte wordt mooier als je die weghaalt.
Als het kalk is kan je het gewoon met azijn weghalen. Zorg dat je een blad hebt zonder costing. Ik had het overwogen omdat het het meest praktische materiaal is als aanrecht. Het is niet voor niets wat de horeca gebruikt.Boudewijn schreef op woensdag 31 augustus 2022 @ 09:35:
[...]
dat rvs krast weet ik prima , dat is gewoon geaccepteerd
Roest idem, is inherent aan het materiaal.
Het gaat mij om mensen die water een dag op het blad laten liggen. Dit vormt dan een grijzige kring, zien we bij die vrienden. Geen sprake van roest of roestige spullen, ik denk eerder kalk oid.
Alleen Bruynzeel levert het niet en voor het bar gedeelte is het te koud.
Is dat een beetje hetzelfde als de rvs bladen van Franke? Die beweren dat echt niks erin trekt. Behalve hele zure dingen?Boudewijn schreef op dinsdag 30 augustus 2022 @ 22:17:
Pff wij zitten nog steeds over de keuken te dubben. Ja dat is te lang aan het etteren.
Ik wil heel graag mijn kookeiland in orbitaal geslepen rvs, van bijvoorbeeld ABK.
Dit spul dus:
[Afbeelding]
Nu is het zo dat vrienden van mijn dame een ander RVS-blad hebben (andere keukenboer) en zij last hebben van watervlekken die echt in het blad zijn getrokken.
Weet iemand hoe goed/slecht dit gebeurt met zo'n RVS blad? De keukenboer vindt het meevallen maar die is niet per se objectief. Ik lees in de manual van ABK dat zij een reiniger aanraden met daarin een lichte oliecomponent zodat je een heel dun filmpje op je blad legt. Dat lijkt mij persoonlijk een prima oplossing.
Iemand ervaringen?
Gisteren een bezoek gebracht aan Schaffrath in Mönchengladbach.
Grote zaak niet al te ver van Roermond of Venlo.
Ze hebben veel keukens staan in diverse stijlen.
Ook veel shorwoom keukens die voor weinig weg mogen.
alhoewel de zaak groot is, stonden er maar weinig keukens die aan de 'Nederlandse smaak' voldoen.
Tenminste, onze indruk was dat er in een niet zo'n grote zaak in Nederland er meer keukens zijn waar ons hart sneller van ging kloppen.
Zo zagen we bijvoorbeeld maar zeer weinig keukens met donkere houtsoorten.
Ook veel keukens met affdruipgedeelte.

Wel een paar goede ideeën opgedaan, maar nog geen gesprek gehad voor een tekening maken o.i.d.
Ze gaven aan dat na een gesprek en voorlopig ontwerp dat er iemand langskomt om het thuis in te meten, en dat het vanaf dat moment 16 weken duurt tot installatie.
Grote zaak niet al te ver van Roermond of Venlo.
Ze hebben veel keukens staan in diverse stijlen.
Ook veel shorwoom keukens die voor weinig weg mogen.
alhoewel de zaak groot is, stonden er maar weinig keukens die aan de 'Nederlandse smaak' voldoen.
Tenminste, onze indruk was dat er in een niet zo'n grote zaak in Nederland er meer keukens zijn waar ons hart sneller van ging kloppen.
Zo zagen we bijvoorbeeld maar zeer weinig keukens met donkere houtsoorten.
Ook veel keukens met affdruipgedeelte.

Wel een paar goede ideeën opgedaan, maar nog geen gesprek gehad voor een tekening maken o.i.d.
Ze gaven aan dat na een gesprek en voorlopig ontwerp dat er iemand langskomt om het thuis in te meten, en dat het vanaf dat moment 16 weken duurt tot installatie.

Weet iemand hoeveel verschil er zit tussen de prijzen in NL en Duitsland (bijv Ihre Küche)? loont dat de moeite?
Er staan wel wat verslagen hier dat mensen soms een lagere prijs in Duitsland kregen.
Zoek dit topic maar eens door.
Zoek dit topic maar eens door.
Ik heb het idee dat deze zaak een beetje het laag-lagere middensegment bedient. Daar is niks mis mee, maar als ik je eerder over Ekelhoff hoor is dit toch gewoon heel iets anders. Ik heb een beetje het idee (gezien de andere posts) dat je eigenlijk nog geen idee hebt wat je nou precies wil, wat jullie eisen zijn of wat het budget is, wel? Ik kan er helemaal naast zitten, maar dat idee krijg ik. Mijn goedbedoelde tip: probeer dat eerst helder te krijgen. Dan heb je een uitgangspunt. Wensen, eisen en budget kan je daarna natuurlijk aanpassen, maar je moet ergens beginnen.Rzaan schreef op woensdag 31 augustus 2022 @ 14:40:
Gisteren een bezoek gebracht aan Schaffrath in Mönchengladbach.
Grote zaak niet al te ver van Roermond of Venlo.
Ze hebben veel keukens staan in diverse stijlen.
Ook veel shorwoom keukens die voor weinig weg mogen.
alhoewel de zaak groot is, stonden er maar weinig keukens die aan de 'Nederlandse smaak' voldoen.
Tenminste, onze indruk was dat er in een niet zo'n grote zaak in Nederland er meer keukens zijn waar ons hart sneller van ging kloppen.
Zo zagen we bijvoorbeeld maar zeer weinig keukens met donkere houtsoorten.
Ook veel keukens met affdruipgedeelte.
[Afbeelding]
Wel een paar goede ideeën opgedaan, maar nog geen gesprek gehad voor een tekening maken o.i.d.
Ze gaven aan dat na een gesprek en voorlopig ontwerp dat er iemand langskomt om het thuis in te meten, en dat het vanaf dat moment 16 weken duurt tot installatie.
[Afbeelding]
In ons geval een 3 meter eiland met bora, quooker, 3cm keramiek blad, kastenwand met 4 hoge kasten en 1 lage nis met lades, 1 oven, 1 hoge koelkast, anti finger print mat zwarte fronts (pg3 geloof ik), ongeveer 5k zonder onderhandelingen. Superkeukens tot nu toe goedkoopste maar daar hebben we nog AEG apparatuur als concessie in staan (23,5k). Duitsland 19,5k met siemens apparatuur (oven iq700 studioline), zonder onderhandeling nog.Denizli schreef op woensdag 31 augustus 2022 @ 16:06:
Weet iemand hoeveel verschil er zit tussen de prijzen in NL en Duitsland (bijv Ihre Küche)? loont dat de moeite?
Ik weet niet hoe het is gesteld met de prijzen van nu. Maar halverwege/eind vorig jaar was het echt de moeite. Scheelde+/- 3k met de offertes in NL voor dezelfde Next-keuken. Bij Ihre Kuche zat er tevens een extra IQ700 combi-oven bij. Daarnaast zou ik altijd kiezen voor een keukenzaak met eigen personeel in dienst. Informeer anders even naar/bij Teun. Keuken moet begin volgend jaar nog geplaatst worden, maar tot nu toe zeer goede ervaringen mee.Rzaan schreef op woensdag 31 augustus 2022 @ 16:08:
Er staan wel wat verslagen hier dat mensen soms een lagere prijs in Duitsland kregen.
Zoek dit topic maar eens door.
Bedankt. 3K +IQ7 combi loont wel de moeite. Is Next de minimale kwaliteit? Want in NL schijnt Next 125 met onze opstelling ca 5000 duurder te zijn dan een wat goedkoper merk.Mryc schreef op woensdag 31 augustus 2022 @ 17:01:
[...]
Ik weet niet hoe het is gesteld met de prijzen van nu. Maar halverwege/eind vorig jaar was het echt de moeite. Scheelde+/- 3k met de offertes in NL voor dezelfde Next-keuken. Bij Ihre Kuche zat er tevens een extra IQ700 combi-oven bij. Daarnaast zou ik altijd kiezen voor een keukenzaak met eigen personeel in dienst. Informeer anders even naar/bij Teun. Keuken moet begin volgend jaar nog geplaatst worden, maar tot nu toe zeer goede ervaringen mee.
Ekelhof zijn we nog nooit geweest.Kurma schreef op woensdag 31 augustus 2022 @ 16:23:
[...]
Ik heb het idee dat deze zaak een beetje het laag-lagere middensegment bedient. Daar is niks mis mee, maar als ik je eerder over Ekelhoff hoor is dit toch gewoon heel iets anders. Ik heb een beetje het idee (gezien de andere posts) dat je eigenlijk nog geen idee hebt wat je nou precies wil, wat jullie eisen zijn of wat het budget is, wel? Ik kan er helemaal naast zitten, maar dat idee krijg ik. Mijn goedbedoelde tip: probeer dat eerst helder te krijgen. Dan heb je een uitgangspunt. Wensen, eisen en budget kan je daarna natuurlijk aanpassen, maar je moet ergens beginnen.
Teringeind rijden en er zit voor de rest ook niks in de buurt dat je zegt 'dan gaan we ook dat bezoeken'.
Je hebt gelijk dat we onze eisen en wensen nog niet duidelijk hebben.
Het budget ook niet. Tenminste niet: Dit is de grens.
We zijn gewoon nog redelijk aan het informeren en we veranderen nog veel.
Maar langzaam komen we tot een plan.
Voor mijn beroep ga ik ook zo te werk, en dat is de manier die bij mij past.
Verzamelen, informatie inwinnen, meningen, feiten en daar komt dan hopelijk iets moois uit.
Lijkt voor anderen misschien besluiteloos, maar dat is het niet.
[ Voor 5% gewijzigd door Rzaan op 31-08-2022 17:49 ]
Dit jaar hebben we een keuken laten plaatsen door simatic kidchen concept sint denijs westrem.
Ons in het begin ons wat laten vangen en snel getekend, onze schuld natuurlijk.
Problemen zullen er altijd zijn, het is dan ook hoe ze aangepakt worden.
Er wordt een lekkende quooker geïnstalleerd het is ons probleem. Extra dag verlof mogen nemen om quooker te laten langskomen.
Een kras in ons composiet werkblad.
Mijn anderstalige vriendin tekende af voor levering. Het is ons probleem.
Na wat klagen toch nog komen uitschuren.
Met als resultaat geen kras maar een put nu in het werkblad. Nog een extra dag verlof
De plaat waar de dampkap aan bevestigt is hangt door. Toen maar een paar mm, zou volgens hun niet erger worden in de toekomst.
Dan na weer een hele tijd klagen een technieker gestuurd.
Aja dit moet ondersteund worden 4 u werk en het was in orde.
Nog een extra dag verlof.
Quooker wordt aangesloten op de warmwater kraan waardoor de doorstromen de hele tijd aanslaan wanneer we warm water gebruiken.
We hebben het maar zo gelaten want we waren de discussies beu
Wij verwachte toch veel meer van een keuken van 25k.
Die van zogezegde topkwaliteit is. Waar ik ook mijn twijfels over heb nu ik hem in zijn geheel zie.
De volgende keuken gewoon Ikea
Ons in het begin ons wat laten vangen en snel getekend, onze schuld natuurlijk.
Problemen zullen er altijd zijn, het is dan ook hoe ze aangepakt worden.
Er wordt een lekkende quooker geïnstalleerd het is ons probleem. Extra dag verlof mogen nemen om quooker te laten langskomen.
Een kras in ons composiet werkblad.
Mijn anderstalige vriendin tekende af voor levering. Het is ons probleem.
Na wat klagen toch nog komen uitschuren.
Met als resultaat geen kras maar een put nu in het werkblad. Nog een extra dag verlof
De plaat waar de dampkap aan bevestigt is hangt door. Toen maar een paar mm, zou volgens hun niet erger worden in de toekomst.
Dan na weer een hele tijd klagen een technieker gestuurd.
Aja dit moet ondersteund worden 4 u werk en het was in orde.
Nog een extra dag verlof.
Quooker wordt aangesloten op de warmwater kraan waardoor de doorstromen de hele tijd aanslaan wanneer we warm water gebruiken.
We hebben het maar zo gelaten want we waren de discussies beu
Wij verwachte toch veel meer van een keuken van 25k.
Die van zogezegde topkwaliteit is. Waar ik ook mijn twijfels over heb nu ik hem in zijn geheel zie.
De volgende keuken gewoon Ikea
@Kurma
Zo zagen we bij Schaffrath bijvoorbeeld deze vorm om een tafel of bar laten aansluiten bij een dun aanrechtblad.
Omdat we al weten dat wij ook een dun aanrechtblad willen, was dit voor ons een nieuw methode of uitvoering.
Dat roept meteen weer gedachten op.
"Hoe zou het eruit zien als het houten blad een centimeter of 30 zou oversteken aan de kopse kant van een kookeiland?"
Zo zagen we bij Schaffrath bijvoorbeeld deze vorm om een tafel of bar laten aansluiten bij een dun aanrechtblad.
Omdat we al weten dat wij ook een dun aanrechtblad willen, was dit voor ons een nieuw methode of uitvoering.
Dat roept meteen weer gedachten op.
"Hoe zou het eruit zien als het houten blad een centimeter of 30 zou oversteken aan de kopse kant van een kookeiland?"
:strip_exif()/f/image/0OXbVJlenCxI1tsaVcEVEPof.jpg?f=fotoalbum_large)
Barmans friend erover en het is wegBoudewijn schreef op woensdag 31 augustus 2022 @ 09:35:
[...]
dat rvs krast weet ik prima , dat is gewoon geaccepteerd
Roest idem, is inherent aan het materiaal.
Het gaat mij om mensen die water een dag op het blad laten liggen. Dit vormt dan een grijzige kring, zien we bij die vrienden. Geen sprake van roest of roestige spullen, ik denk eerder kalk oid.
Bericht hierboven
exact naast Ekelhoff zit Mobël Faber..Rzaan schreef op woensdag 31 augustus 2022 @ 17:48:
[...]
Ekelhof zijn we nog nooit geweest.
Teringeind rijden en er zit voor de rest ook niks in de buurt dat je zegt 'dan gaan we ook dat bezoeken'.
Hebben jullie 100% betaald dan?Wolfgang321 schreef op woensdag 31 augustus 2022 @ 18:05:
Dit jaar hebben we een keuken laten plaatsen door simatic kidchen concept sint denijs westrem.
Ons in het begin ons wat laten vangen en snel getekend, onze schuld natuurlijk.
Problemen zullen er altijd zijn, het is dan ook hoe ze aangepakt worden.
Er wordt een lekkende quooker geïnstalleerd het is ons probleem. Extra dag verlof mogen nemen om quooker te laten langskomen.
Een kras in ons composiet werkblad.
Mijn anderstalige vriendin tekende af voor levering. Het is ons probleem.
Na wat klagen toch nog komen uitschuren.
Met als resultaat geen kras maar een put nu in het werkblad. Nog een extra dag verlof
De plaat waar de dampkap aan bevestigt is hangt door. Toen maar een paar mm, zou volgens hun niet erger worden in de toekomst.
Dan na weer een hele tijd klagen een technieker gestuurd.
Aja dit moet ondersteund worden 4 u werk en het was in orde.
Nog een extra dag verlof.
Quooker wordt aangesloten op de warmwater kraan waardoor de doorstromen de hele tijd aanslaan wanneer we warm water gebruiken.
We hebben het maar zo gelaten want we waren de discussies beu
Wij verwachte toch veel meer van een keuken van 25k.
Die van zogezegde topkwaliteit is. Waar ik ook mijn twijfels over heb nu ik hem in zijn geheel zie.
De volgende keuken gewoon Ikea
Hier 10% achter de hand, nog steeds trouwens, totdat alles geregeld is.
OK.
Handig.
Maar ik bedoelde een leuk museum of een bijzonder mooi park of het beste restaurant van Duitsland.
Mobel Faber hebben wij onze keuken ook uitgezocht, wordt over 2 weken geplaatst. Tot nu toe hele goede ervaringen. Hadden ook met afstand de beste prijs voor een Hacker Systemat keuken met Siemens IQ700 apparatuur. Direct contact met de eigenaar Uwe, reageert ook snel op vragen. Sommigen hebben andere ervaringen, ben zelf tot nu zeker tevreden.Rzaan schreef op woensdag 31 augustus 2022 @ 19:36:
[...]
OK.
Handig.
Maar ik bedoelde een leuk museum of een bijzonder mooi park of het beste restaurant van Duitsland.
Voor de bezienswaardigheden zou je de rit niet maken.
Zit wel een leuke dierentuin, maar dat is meer iets als je kleine kinderen hebt. En die ga je niet meenemen als je een keuken gaat uitzoeken
Zitten ook wel een aantal goede restaurants maar zeker niet de beste van Duitsland. Je kunt ook met een bootje over de Vecht/Vechtesee.
Er zit een dierentuin in Nordhorn ;-)Rzaan schreef op woensdag 31 augustus 2022 @ 19:36:
[...]
OK.
Handig.
Maar ik bedoelde een leuk museum of een bijzonder mooi park of het beste restaurant van Duitsland.
Daar zit ik ook aan te denken. Aan de andere kant, met zo'n open keuken is een beetje soort afscheiding van je woonkamer misschien ook wel goed.RobbieHifi schreef op woensdag 31 augustus 2022 @ 13:33:
[...]
Ik zou de bar geheel weghalen. Zie bij veel mensen dat dit niet wordt gebruikt, of dat het een verzamelplek wordt om spulletjes neer te zetten.
Je ruimte wordt mooier als je die weghaalt.
Ik vind 30cm niet genoeg als je er een zitje van wilt maken. Dan moet je eigenlijk wel naar 40cm om te voorkomen dat je met de knietjes tegen de binnenzijde zit en alsnog 10-15cm gat tussen buik en blad hebt. Eet heel ongemakkelijkRzaan schreef op woensdag 31 augustus 2022 @ 18:43:
@Kurma
Zo zagen we bij Schaffrath bijvoorbeeld deze vorm om een tafel of bar laten aansluiten bij een dun aanrechtblad.
Omdat we al weten dat wij ook een dun aanrechtblad willen, was dit voor ons een nieuw methode of uitvoering.
Dat roept meteen weer gedachten op.
"Hoe zou het eruit zien als het houten blad een centimeter of 30 zou oversteken aan de kopse kant van een kookeiland?"
[Afbeelding]
Bericht hierboven
We hebben het zelf nog niet uitgeprobeerd.Floor-is schreef op donderdag 1 september 2022 @ 10:17:
Ik vind 30cm niet genoeg als je er een zitje van wilt maken. Dan moet je eigenlijk wel naar 40cm om te voorkomen dat je met de knietjes tegen de binnenzijde zit en alsnog 10-15cm gat tussen buik en blad hebt. Eet heel ongemakkelijk
Heb even gegoogled en VT-wonen bijvoorbeeld gaf 25 à 30 cm aan.
Maar zal eens her en der gaan kijken met de duimstok in de broekzak.
Maar wat vind je het van het idee?
Ik zou het hout dan willen in dezelfde kleur als de hoge kasten (het eiland wordt wit en het blad ook)
Recent naar gekeken, en bij even proefzitten leek 30cm wel voldoende. Maar meer met het oog op een beetje barhangen met bier of wijn tijdens het koken, dan echt eten aan die bar.Floor-is schreef op donderdag 1 september 2022 @ 10:17:
[...]
Ik vind 30cm niet genoeg als je er een zitje van wilt maken. Dan moet je eigenlijk wel naar 40cm om te voorkomen dat je met de knietjes tegen de binnenzijde zit en alsnog 10-15cm gat tussen buik en blad hebt. Eet heel ongemakkelijk
30cm overhang hier (bij 94cm hoogte blad). Hay barkrukken. Gaat helemaal goed met 1.92m lengte.
Let er ook op dat hoe meer overhang, hoe minder sterk.
Let er ook op dat hoe meer overhang, hoe minder sterk.
Hoi allemaal !Dalma schreef op zondag 26 juni 2022 @ 01:56:
Ik heb een eerste opzet laten maken.
Het is een wand met 3 rijen. Ingebouwde koelkast (geen vriezer ) die zet ik in de technische ruimte.
Espresso apparaat, daaronder warmhoudlade en rechts daarvan een oven 67l en afwasmachine in het eiland. Alle genoemde apparatuur Siemens studioline of Bosch series 6 of 8. Bora pura s kookplaat en quooker flex.
Het eiland bevat ook nog een wijnkoeler en is 270cm lang en 120cm breed.
De wand kan eventueel een ombouw tot plafond hebben met links van de deur nog een rij kasten van Max 50cm diep.
Aanrechtblad composiet oid.
Budget is ongeveer 22 tot 25k.
Timeline is op Z’n vroegst eind dit jaar maar waarschijnlijk pas begin feb 2023
Ik ben ook nog aan het overwegen om een keuken interieurbouwer te vragen maar heb geen idee wat dat doet qua prijs.[Afbeelding]
[Afbeelding]
[Afbeelding]
heb nog wat vraagjes mbt mijn initiele tekening van afgelopen juli. Zie mijn gequote bericht.
Nu heb ik een aantal opties mbt de kastenwand. Waar zouden jullie voor gaan:
1. zoals op de tekening
2. kasten tot aan plafond en vervolgens een rail boven het aanrechtblad met bijv. hue spotjes
3. een koof maken en iets laten uitsteken over de volle lengte van mdf (keukenboer) en in een soortgelijke kleur als kastjes verven. vervolgen spotjes per kast erin
4. hetzelfde als punt 3, maar dan van het materiaal van de kastjes (nadeel , kan niet uit 1 stuk dus je gaat ergens een naad zien)
Bij optie 3 en 4 geen rail meer maar een mooie kookeiland lamp oid.
Ik hoor graag jullie meningen.
edit: nog even iets anders. Aanrechtblad komt ongeveer op 95cm hoogte. Het espresso apparaat en oven zitten op zo'n 74cm. Zouden jullie dit nog verhogen of zo laten ?
ander vraagje is de volgorde van de gootsteen en kookplaat. doen we de kookplaat naast de muur, dan hoef je niet om iemand heen te lopen als er gekookt wordt (terecht punt van 1 van jullie). Sowieso de 2 stoelen tegenover de gootsteen en niet de kookplaat.
Een andere optie is de wijnkoeler links, kastje rechts, en in het midden ruimte voor 2 stoelen.
[ Voor 10% gewijzigd door Dalma op 01-09-2022 11:15 ]
Wij zijn ook niet echt van het eten aan de bar.gdvm schreef op donderdag 1 september 2022 @ 11:01:
[...]
Recent naar gekeken, en bij even proefzitten leek 30cm wel voldoende. Maar meer met het oog op een beetje barhangen met bier of wijn tijdens het koken, dan echt eten aan die bar.
Ontbijt en lunch doen we eigelijk altijd beetje tussendoor, of we schuiven aan de eetkamertafel aan.
Zeker met gasten.
Meer voor het hangen inderdaad en incidenteel eens een pannenkoek eten.
Zijn er hier mensen met een FÖRDELAKTIG? Dit is een Ikea kookplaat met afzuiging, voor een prijsje wat vziz aardig competitief is. Ook is het volgens mij de enige met 60cm variant, wat voor mensen met wat minder ruimte handig is (al is het misschien wel erg krap). Kan echt 0 ervaringen erover vinden, ik geloof dat 'ie in 2019 op de markt kwam.
Humanist | Kernpower! | Determinist | Verken uw geest | Politiek dakloos
Ook naar gezocht, is weinig over te vinden. Misschien helpt dit je iets.Brent schreef op donderdag 1 september 2022 @ 11:52:
Zijn er hier mensen met een FÖRDELAKTIG? Dit is een Ikea kookplaat met afzuiging, voor een prijsje wat vziz aardig competitief is. Ook is het volgens mij de enige met 60cm variant, wat voor mensen met wat minder ruimte handig is (al is het misschien wel erg krap). Kan echt 0 ervaringen erover vinden, ik geloof dat 'ie in 2019 op de markt kwam.
YouTube: IKEA FÖRDELAKTIG vented hob review
Thanks, was inderdaad het enige dat ik ook al vondMartijnA3 schreef op donderdag 1 september 2022 @ 12:00:
[...]
Ook naar gezocht, is weinig over te vinden. Misschien helpt dit je iets.
YouTube: IKEA FÖRDELAKTIG vented hob review
Humanist | Kernpower! | Determinist | Verken uw geest | Politiek dakloos
Valt wel mee hoor, zou niet weten waarom ik meer zou betalen voor een groter schermpje in de magnetronoven om hetzelfde schermpje te krijgen als m’n combisteamer.Source90 schreef op maandag 29 augustus 2022 @ 21:36:
[...]
Weet je dat de ovens er totaal verschillend uit zien?
:strip_exif()/f/image/eWboPKbF40BXF48hx3ABfaZT.jpg?f=fotoalbum_large)
Goedemorgen allemaal,
Na lang meelezen op dit forum is voor ons nu ook de tijd gekomen om een andere keuken uit te zoeken. Dit als onderdeel van een verbouwing waarbij we geheel van het gas af willen gaan. Met dit in ons achterhoofd hebben we vrij specifieke en waarschijnlijk ook vrij dure apparatuur uitgekozen. We zijn al een aardig eind in het proces maar zoeken toch nog even tips dan wel bevestiging. Bij een lokale keukenzaak hebben we bijgaand ontwerp laten maken. Het gaat om een Rotpunkt keuken met de volgende apparatuur:
Vaatwasser: Siemens SN97T800CE
Combi oven: Siemens HS858GXB6 of Miele DGC 7665
Koelkast:Liebherr ICBB5152-20
Kookplaat: Bora Puxu
Daarnaast nog wat andere dingen die handig zijn om te weten:
De keuken is nu uitgevoerd in keukenfront Poweo SC, vierzijdig afgerond MDF met een mat gelakte softcoating, super mat oppervlak, ant-fingerprint, makkelijk schoon te maken, in hoge mate bestand tegen chemicaliën en is kras- en slijtvaster dan gewone lak. Kleur uitvoering Umbra.
Het werkblad is van het merk Arte in de uitvoering composiet White Gandalf gepolijst in een massieve dikte van 20 mm.
De kookplaat met afzuiging is aangepast naar de Bora PUXU recirculatie.:no_upscale():strip_icc():fill(white):strip_exif()/f/image/jkTOYb2kdW9pxtXrJ0iJgO2j.jpg?f=user_large)
:strip_exif()/f/image/vyU6pHQjJzb6aXYMMtrv9Eid.jpg?f=fotoalbum_large)
Voor het beeld nog even het ontwerp en het getekende plaatje. Dit alles zou +/- 25000 exclusief installatie moeten kosten. Het gaat natuurlijk om een vrij grote uitgave en we zijn toch even benieuwd of er hier nog mensen zijn die tips over het ontwerp hebben en of iets kunnen zeggen over de redelijkheid van de prijs. Ik ben benieuwd wat jullie hier van vinden.
Na lang meelezen op dit forum is voor ons nu ook de tijd gekomen om een andere keuken uit te zoeken. Dit als onderdeel van een verbouwing waarbij we geheel van het gas af willen gaan. Met dit in ons achterhoofd hebben we vrij specifieke en waarschijnlijk ook vrij dure apparatuur uitgekozen. We zijn al een aardig eind in het proces maar zoeken toch nog even tips dan wel bevestiging. Bij een lokale keukenzaak hebben we bijgaand ontwerp laten maken. Het gaat om een Rotpunkt keuken met de volgende apparatuur:
Vaatwasser: Siemens SN97T800CE
Combi oven: Siemens HS858GXB6 of Miele DGC 7665
Koelkast:Liebherr ICBB5152-20
Kookplaat: Bora Puxu
Daarnaast nog wat andere dingen die handig zijn om te weten:
De keuken is nu uitgevoerd in keukenfront Poweo SC, vierzijdig afgerond MDF met een mat gelakte softcoating, super mat oppervlak, ant-fingerprint, makkelijk schoon te maken, in hoge mate bestand tegen chemicaliën en is kras- en slijtvaster dan gewone lak. Kleur uitvoering Umbra.
Het werkblad is van het merk Arte in de uitvoering composiet White Gandalf gepolijst in een massieve dikte van 20 mm.
De kookplaat met afzuiging is aangepast naar de Bora PUXU recirculatie.
:no_upscale():strip_icc():fill(white):strip_exif()/f/image/jkTOYb2kdW9pxtXrJ0iJgO2j.jpg?f=user_large)
:strip_exif()/f/image/vyU6pHQjJzb6aXYMMtrv9Eid.jpg?f=fotoalbum_large)
Voor het beeld nog even het ontwerp en het getekende plaatje. Dit alles zou +/- 25000 exclusief installatie moeten kosten. Het gaat natuurlijk om een vrij grote uitgave en we zijn toch even benieuwd of er hier nog mensen zijn die tips over het ontwerp hebben en of iets kunnen zeggen over de redelijkheid van de prijs. Ik ben benieuwd wat jullie hier van vinden.
Vraagje wat waren jullie kwijt voor het verleggen van leidingen? We hebben nu een offerte van 3600 euro voor 8 wcd's + periflex aansluiting. Dat leek mij wel erg duur!
PV: 9360 WP WZW/ONO | Warmtepomp: Toshiba Estia 8kW 3fase | A+++ | Zappi v2.1
Materiaal 300 en 3300 uren? 80 uur of zo?Sport_Life schreef op vrijdag 2 september 2022 @ 20:26:
Vraagje wat waren jullie kwijt voor het verleggen van leidingen? We hebben nu een offerte van 3600 euro voor 8 wcd's + periflex aansluiting. Dat leek mij wel erg duur!
Lijkt me wat veel, maar moeten ze door betonnen wanden frezen en veel hak en breekwerk?Sport_Life schreef op vrijdag 2 september 2022 @ 20:26:
Vraagje wat waren jullie kwijt voor het verleggen van leidingen? We hebben nu een offerte van 3600 euro voor 8 wcd's + periflex aansluiting. Dat leek mij wel erg duur!
Hoe ver moet e.e.a. worden verlegd?
Valt best mee, indeling nieuwe keuken is bijna gelijk aan de oude , leidingen moeten hooguit 2 meter verlegd worden (in de muur frezen).SquareOne schreef op vrijdag 2 september 2022 @ 21:05:
[...]
Lijkt me wat veel, maar moeten ze door betonnen wanden frezen en veel hak en breekwerk?
Hoe ver moet e.e.a. worden verlegd?
En periflex ipv standaard stroomkabel.
Ik denk een dag werk met 2 man + materiaal?
PV: 9360 WP WZW/ONO | Warmtepomp: Toshiba Estia 8kW 3fase | A+++ | Zappi v2.1
Zelf doen met een handige harry of buurman.Sport_Life schreef op vrijdag 2 september 2022 @ 21:32:
[...]
Valt best mee, indeling nieuwe keuken is bijna gelijk aan de oude , leidingen moeten hooguit 2 meter verlegd worden (in de muur frezen).
En periflex ipv standaard stroomkabel.
Ik denk een dag werk met 2 man + materiaal?
Mafkezen!
Is periflex eenvoudig aan te leggen ? Heb nu iemand via werkspot gevonden. De andere electra werkzaamheden doet een bevriende timmerman.Rzaan schreef op vrijdag 2 september 2022 @ 21:36:
[...]
Zelf doen met een handige harry of buurman.
Mafkezen!
[ Voor 3% gewijzigd door Sport_Life op 02-09-2022 21:47 ]
PV: 9360 WP WZW/ONO | Warmtepomp: Toshiba Estia 8kW 3fase | A+++ | Zappi v2.1
Dat antwoord moet ik je schuldig blijven.Sport_Life schreef op vrijdag 2 september 2022 @ 21:46:
[...]
Is periflex eenvoudig aan te leggen ? Heb nu iemand via werkspot gevonden. De andere electra werkzaamheden doet een bevriende timmerman.
Denk dat je dat in een nieuw topic zou moeten vragen.
Dan komen er vast electra experts met antwoorden.
Dat was hier een fluitje van een cent, maar er was al wel een aansluiting (1F). Die is aangepast naar 3F.Sport_Life schreef op vrijdag 2 september 2022 @ 21:46:
[...]
Is periflex eenvoudig aan te leggen ? Heb nu iemand via werkspot gevonden. De andere electra werkzaamheden doet een bevriende timmerman.
Maar eventuele freeswerkzaamheden en bedrading aanbrengen is niet anders dan bij gewone leidingen. Gaat om aanpassen aansluitpunt en aansluiten in groepenkast.
Bij mij kostte dat inclusief het vervangen van de groepenkast 845. Daarnaast zijn hier ook wat WCD verplaatst over 1 a 2 meter. Inclusief stucen en andere werkzaamheden was dat 1200. Dus jouw offerte van 3600 lijkt me aan de hoge kant. Check eens bij een gewone elektricien?
Er is al een kookgroep op 3F. Onze timmerman heeft al wel andere leidingen aangelegd dus periflex moet hem dan ook wel lukken denk ik. Het aansluiten in de meterkast kan een elektricien dan evt doen.Toke_gt schreef op vrijdag 2 september 2022 @ 22:22:
[...]
Dat was hier een fluitje van een cent, maar er was al wel een aansluiting (1F). Die is aangepast naar 3F.
Maar eventuele freeswerkzaamheden en bedrading aanbrengen is niet anders dan bij gewone leidingen. Gaat om aanpassen aansluitpunt en aansluiten in groepenkast.
Bij mij kostte dat inclusief het vervangen van de groepenkast 845. Daarnaast zijn hier ook wat WCD verplaatst over 1 a 2 meter. Inclusief stucen en andere werkzaamheden was dat 1200. Dus jouw offerte van 3600 lijkt me aan de hoge kant. Check eens bij een gewone elektricien?
PV: 9360 WP WZW/ONO | Warmtepomp: Toshiba Estia 8kW 3fase | A+++ | Zappi v2.1
Waarom laat je die elektricien dan niet ook meteen die perilex doen? Timmerman heeft andere expertise, zo7 je denken? Als die elektricien toch komt, zou ik dat meteen laten fixen. Ook omdat je dan geen gezeik krijgt als het niet goed werkt. Alles in één hand is dan wel zo handig.Sport_Life schreef op vrijdag 2 september 2022 @ 22:26:
[...]
Er is al een kookgroep op 3F. Onze timmerman heeft al wel andere leidingen aangelegd dus periflex moet hem dan ook wel lukken denk ik. Het aansluiten in de meterkast kan een elektricien dan evt doen.
Terug naar jouw vraag: als er al een 3F is, is het veranderen een makkie.
Electricien vraagt 3600 voor de aanpassingen, dat vond ik wat aan de hoge kant.Toke_gt schreef op vrijdag 2 september 2022 @ 22:31:
[...]
Waarom laat je die elektricien dan niet ook meteen die perilex doen? Timmerman heeft andere expertise, zo7 je denken? Als die elektricien toch komt, zou ik dat meteen laten fixen. Ook omdat je dan geen gezeik krijgt als het niet goed werkt. Alles in één hand is dan wel zo handig.
Terug naar jouw vraag: als er al een 3F is, is het veranderen een makkie.
We hebben een aannamer (timmerman eigenlijk) die met name veel getimmerd (nieuwe kozijnen ed) heeft in huis maar handig genoeg is om leidingen te leggen/frezen etc. Alleen periflex heeft ie nooit gedaan (en zelf ook geen inductiekeuken), vandaar zijn angst. Op zich goed dat ie zich niet als een beunhaas gedraagt, maar als periflex echt zo eenvoudig is dan moet hem dat wel lukken.
PV: 9360 WP WZW/ONO | Warmtepomp: Toshiba Estia 8kW 3fase | A+++ | Zappi v2.1
Tja, persoonlijk zou ik niet iemand aan elektra laten werken die daar zelf geen goed gevoel bij heeft. Het is geen tijdrovende klus voor een elektricien, maar je moet wel weten wat je doet. Ik zou voor dit specifieke klusje een offerte vragen, niet voor de andere werkzaamheden.Sport_Life schreef op vrijdag 2 september 2022 @ 22:36:
[...]
Electricien vraagt 3600 voor de aanpassingen, dat vond ik wat aan de hoge kant.
We hebben een aannamer (timmerman eigenlijk) die met name veel getimmerd (nieuwe kozijnen ed) heeft in huis maar handig genoeg is om leidingen te leggen/frezen etc. Alleen periflex heeft ie nooit gedaan (en zelf ook geen inductiekeuken), vandaar zijn angst. Op zich goed dat ie zich niet als een beunhaas gedraagt, maar als periflex echt zo eenvoudig is dan moet hem dat wel lukken.
Begin deze week gesprek gehad met de elektro adviseur vanuit het nieuwbouw project:Sport_Life schreef op vrijdag 2 september 2022 @ 20:26:
Vraagje wat waren jullie kwijt voor het verleggen van leidingen? We hebben nu een offerte van 3600 euro voor 8 wcd's + periflex aansluiting. Dat leek mij wel erg duur!
5 x WCD verplaatsen à €95
2 x dubbel WCD extra (+leiding/bedrading naar meterkast) à €295
Perilex aansluiting is al voorzien en wordt bij ons meteen op de gewenste plaat gemonteerd.
Koopje. 24 jaar geleden betaalde ik 130 gulden voor een loze pijp met 2 dozen van links naar rechts in de kamer (tv speakerdraad). Dus dan is €295, inclusief wcd en draad + aansluiten + inflatie erg goedkoopBrains Bush schreef op zaterdag 3 september 2022 @ 07:48:
[...]
Begin deze week gesprek gehad met de elektro adviseur vanuit het nieuwbouw project:
5 x WCD verplaatsen à €95
2 x dubbel WCD extra (+leiding/bedrading naar meterkast) à €295
Perilex aansluiting is al voorzien en wordt bij ons meteen op de gewenste plaat gemonteerd.
We twijfelen nog over de opstelling. Vooral over wel/niet die bar aan het einde, daar hebben we hier nog wat discussie over..gdvm schreef op dinsdag 30 augustus 2022 @ 16:10:
Wat vinden jullie van de opstelling?
Keuken van het merk Ballerina
Kleuren/materiaal fronten zoals nu ingetekend (die gaan we waarschijnlijk nog veranderen)
Fronten van Smart glass (kleur Karbonmetallic 4641)
Blad van keramiek
We vonden de kleur in real life mooi, maar voor deze opstelling waarschijnlijk toch te donker.
De bar willen we waarschijnlijk iets minder breed maken, zodat de doorloop de keuken in wat groter wordt.
Apparatuur:
- Bora Puru (gaan we nog aanpassen naar PUXU)
- Quooker Pro3 (gaan we aanpassen naar Combi plus)
- Siemens iQ700 combi oven magnetron
- Siemens iQ700 combi stoomoven
- Siemens iQ500 ijskast
- Siemens iQ500 vriezer
- Siemens iQ300 vaatwasser
[Afbeelding]
[Afbeelding]
[Afbeelding]
[Afbeelding]
[Afbeelding]
[Afbeelding]
***members only***
Maar ook plaatsing van de vaatwasser: die zit nu rechts van de spoelbak, dus in de hoek als het ware.. Dat vind ik niet echt ideaal, qua spetteren en in/uitruimen, maar zie nu ook geen andere goeie optie. Wil hem wel graag dicht bij de spoelbak. De spoelbak naar links gaat niet ivm de le mans hoekkast. En ik vind die drie brede ladekasten aan de kant van de kookplaat wel mooi dus dat zou ik ook liever niet onderbreken. Iemand nog een slimme tip? Of is die vaatwasser in de hoek naar jullie idee gewoon prima?
Let op:
Dit topic kan gebruikt worden voor het volgende:
• Vragen over de keuken, denkend aan indeling, materialen, kastjes, apparatuur, etc.
• Welke kastjes, aanrechtbladen en apparatuur te kiezen
• Ervaringen met verkopers en keukenboeren
• Tips & Tricks denk hierbij aan hulp bij het zelf installeren en onderhouden van de keuken.
• Jouw indeling. Plaats gerust een foto of tekening, maar maak het niet te bont met hele buildlogs.
Voor badkamers: Het Badkamer topic: verkopers, kwaliteit, prijs - Deel 1
Showen met je keuken kan hier: Tweakers Keuken showroom! - Vestiging 1
Dit topic kan gebruikt worden voor het volgende:
• Vragen over de keuken, denkend aan indeling, materialen, kastjes, apparatuur, etc.
• Welke kastjes, aanrechtbladen en apparatuur te kiezen
• Ervaringen met verkopers en keukenboeren
• Tips & Tricks denk hierbij aan hulp bij het zelf installeren en onderhouden van de keuken.
• Jouw indeling. Plaats gerust een foto of tekening, maar maak het niet te bont met hele buildlogs.
Voor badkamers: Het Badkamer topic: verkopers, kwaliteit, prijs - Deel 1
Showen met je keuken kan hier: Tweakers Keuken showroom! - Vestiging 1