Roelaano schreef op dinsdag 1 maart 2022 @ 23:21:
8< 8<
[...]
Dat is ook de afmeting waarmee ik heen ging, een eiland van 360cm. Ik denk dat ik het laat aanpassen naar een eiland van 320cm en het blad daar dan een paar cm op. Enige nadeel daarvan is dat ik de zijkanten van de bar wel zal moeten ondersteunen met de getekende, verticaal doorlopende zijwangen.
Nog een variant hierop is een eiland van 360cm en dan een bargedeelte in hout vanaf de maximale afmeting van het composiet met 40cm overstek. Daarmee zal het eiland totaal wel +- 400cm lang worden wat misschien wat groot zal zijn. en het laatste kastje van 60cm zal daardoor "onder" het blad vallen en dus lastiger bereikbaar zijn. (wel handig voor gourmetstellen etc.

)
De meeste werkbladen van composiet en keramiek zijn 316-320cm lang. Er is echt heel weinig mis met een naad in je blad, zolang je die op een slimme plek doet (niet bij de spoelbak).
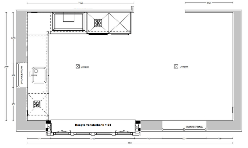
Je hebt 690cm totaal beschikbaar. Daar gaat vanaf:
60cm voor de kastenwand
115-125cm voor de doorloop (looproute mag wat meer dan 100, maar meer dan 125 is in mijn opinie wat vervelend als je naar de oven of koelkast ofzo wilt stappen)
eiland
45-50cm bar
100cm tussen bar en wand
Dan kom ik op 690 - (60+120+eiland+50+100) = 360cm voor je eiland. En da's echt een prachtig mooi groot eiland, lekker veel werkruimte, veel kastenruimte.
Even over het blad: als je composiet wilt er zijn verschillende formaten verkrijgbaar. Silestone heeft in bepaalde kleuren bladen tot 325x159cm, de standaard lengte is 306 (bij 144). Een 144 diep blad zou ik niet snel doen, maar op zich geinig te weten dat het mogelijk is

Keramiek (Dekton dan) is 320x144 standaard.
Natuursteen kan je soms langer krijgen, maar zeker niet met alle steensoorten. Graniet bijvoorbeeld is vaak maximaal 250cm. Terwijl je marmer, mits het budget het toestaat, echt in enorme lengtes kunt krijgen. Ik heb laatst platen van 4m80 gezien bijvoorbeeld..
[...]
Dit zal ik ook even bespreken in het volgende gesprek. Meer werkruimte tussen de spoelbak en de kookplaat is wel fijn!
Ik doe vrij gemakkelijk over het blad van de bar, maar je moet wel echt zeker weten dat die goed tegen water kan!
Meer werkruimte is gewoon fijn en als je de ruimte hebt (die je hebt) zou ik persoonlijk toch adviseren te overwegen om het eiland te verlengen.

[...]
Alle kasten zullen worden voorzien van lades, tenzij er een goede redenen te verzinnen is om ergens planken te nemen.
Ik bedoelde meer waar je koelkast en/of vriezer komen, maar het is helder zo

In vergelijking met planken zijn lades natuurlijk wel echt een dure oplossing. Kijk voor de gein eens
hier bijvoorbeeld.
[...]
De deur verplaatsen stond al op de planning voor mij

M'n timmermanshart kon het al niet aan dat het geen mooi doorlopende wand was. De deuren zullen zwart worden uitgevoerd, dus ik zal nog even kijken in hoeverre de keuken aan te passen is aan de hoogte van de deur (238cm)
Ja dat

Wij gaan ook aanpassen om te voorkomen dat het heel raar wordt allemaal.
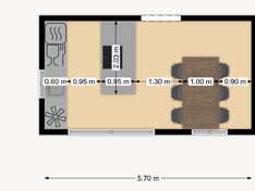
Bij ons:
Versus geen muren verplaatsen (ik had geen zin om alle ruimten in te tekenen, meubelen te plaatsen etc, daar moet je maar even overheen kijken

)
/f/image/QzyrVgqlfvbqS3vTuQHswack.png?f=fotoalbum_medium)
[...]
Goede tip, neem ik mee! Het is nu inderdaad zo'n apothekersrekje

Apothekerskastjes zijn leuk, maar als onderkast vind ik ze een beetje gek. Dat wordt pas echt prettig als je best wel wat plateaus erin maakt en bij voorkeur ook die weer draai/uitschuifbaar zodat je het goed kunt zien. Maar dan wordt dat piepkleine kastje misschien nog wel duurder dan die 90-kast ernaast.

Mocht er iemand nog een mening hebben over de prijs dan zou ik dat erg waarderen. Als ergens anders met wat onderhandelwerk nog wat te besparen valt op de 18k uit de offerte dan is dat natuurlijk het proberen waard.
Offerte:
Een lagere plint vinden we op dit moment een luxere uitstraling. Maar dan moet je de (korpus)hoogte van de kasten aanpassen en dat kan zomaar een dure worden.
Ik zie een spoelkast met deur en een onderkast met deur en legplanken, die zou je nog naar lades kunnen switchen. Is voor het aanzicht mooier en werkt gewoon prettig; dan hoef je niet te bukken enzo.
Qua prijs voor je kastenwerk kan ik weinig betekenen verder