• Floor-is
  • Registratie: Maart 2000
  • Laatst online: 28-04 23:35
Jacco91 schreef op zondag 6 maart 2022 @ 09:45:
[...]


Wat voor opstelling van de keuken zou je adviseren dan? We staan vrij veel in de keuken, dus koken met ons gezicht naar de muur willen we liever niet. Maar een eiland van 100 of 120 cm en een kastenwand van 60 laat ons met zo'n 90cm per kant over en dat is vrij weinig doorgang vanaf de hal denk ik.
Een eiland van 100 is stiekem 98. Je hebt 355, ik zou de kastenwand dan niet snel parallel aan het eiland plaatsen met die deur daar. Wordt wel beter als je een schuifdeur maakt trouwens, niet zozeer qua echte ruimte, maar wel qua ruimtegevoel.

Bericht hierboven


  • Floor-is
  • Registratie: Maart 2000
  • Laatst online: 28-04 23:35
GermanPivo schreef op zondag 6 maart 2022 @ 10:09:
[...]


Ik weet niet hoe de raamhoogte etc is, maar zoiets met dus een schiereiland? Kan je in ieder geval koken richting de eettafel/kamer.

Snap heel goed dat je de trap niet in de woonkamer wilt hebben, maar de deur naar je hal zit best wel ongelukkig zo. Je hebt een prima oppervlakte, maar gevoelsmatig krijg je anders een enorme woonkeuken en een woonkamer die een beetje weg is gepropt. Prima als dat een keuze is hoor ;) Maar @Floor-is heeft misschien een beter idee :)

[Afbeelding]
Ik wil met alle liefde een herinrichting tekenen, maar dat kost echt heel veel tijd en dan heb ik plattegronden en vooral ook beschikbaar budget nodig als uitgangspunt.
Een nieuwe trap is duur, muurtjes verplaatsen valt mee (tenzij dragend), toilet verplaatsen kan als het budget er is en kruipruimte enzo. Met de CV installatie en elektra en water rekening houden is een ding..

Ik wil het best doen, maar gezien de uren die nodig zijn doe ik dat niet meer gratis. Hier een beetje schetsen is leuk, maar dat is werk. :)

Bericht hierboven


  • Rzaan
  • Registratie: Mei 2018
  • Laatst online: 15:09

Rzaan

Altijd zoekende

Floor-is schreef op zondag 6 maart 2022 @ 10:54:

Ik wil het best doen, maar gezien de uren die nodig zijn doe ik dat niet meer gratis. Hier een beetje schetsen is leuk, maar dat is werk. :)
Jouw schetsen zijn al goud waard, want door jouw schets gaan wij waarschijnlijk ons eerdere keukenidee aanpassen.
Zaten gedachtes in waar we zelf nooit op zouden zijn gekomen.

  • Basekid
  • Registratie: Maart 2004
  • Laatst online: 14:14
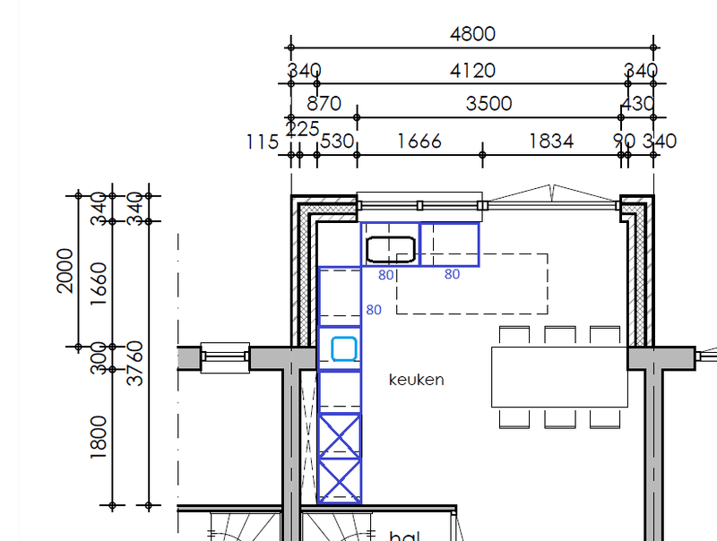
Floor-is schreef op zondag 6 maart 2022 @ 09:38:
[...]

Waar zitten ramen? Heb je een plattegrond (hele BG graag) met afmetingen?
Is die wasemkap een moetje en wat is je budget (voor de kasten en het werkblad)? Heb je al kleuren, materialen, lades, etcetera bedacht?
Natuurlijk:
Afbeeldingslocatie: https://tweakers.net/i/k4MGs5gCl_pOVmeyF12XYEkowmU=/x800/filters:strip_exif()/f/image/QPY3Gw2pxhxU7Bp8Ayqm9aaR.png?f=fotoalbum_large

Er komt dus een uitbouw aan de achterkant van het huis (op het ZO). Hier zit momenteel de oude keuken die compleet vervangen wordt.

Qua kleur en materiaal heb ik besloten voor IKEA kastjes en frontjes te gaan. Misschien dat ik over een paar jaar de frontjes vervang voor massieve varianten. Echter zal er wel een wand/schuine afzuigkap in komen ipv de hier getoonde, en komt er een inductieplaat van 810mm (dat wil ik igg graag). Lades etc wil ik zoveel mogelijk. Ik had in mijn vorige woning ongeveer het formaat van de kleinere keuken en ik vindt het best krap qua werkblad.

Hele budget is ongeveer 15k.
Volgens mn berekeningen zit ik op ongeveer:
-6300 voor IKEA keuken + installatie (https://www.ikea.com/nl/n...ergrijs-70454097/#content
-2035 voor Keramisch keukenblad (online indicatie van Natuursteenhunter)
-5500 Keukenapparatuur (Siemens/Samsung/Bosch) (nog niet besteld trouwens)

Afzuigkap: https://www.bemmelenkroon.nl/merken/siemens/lc98klp60-siem/
Kookplaat: https://www.bemmelenkroon.nl/merken/siemens/ex875lvb1e-sies/
Combimagnetron: https://www.bemmelenkroon...msung/nq50a6539bkef-sams/
Oven: https://www.bemmelenkroon...msung/nv75a6679rkef-sams/
Koelkast/vriezer: https://www.bemmelenkroon...hirlpool/whc18-t311-whir/

Aan het einde van het jaar wil ik een glazen spatwand laten plaatsen.

[ Voor 12% gewijzigd door Basekid op 06-03-2022 13:49 ]


  • mitsumark
  • Registratie: Juni 2009
  • Laatst online: 15:27
Jacco91 schreef op zaterdag 5 maart 2022 @ 20:47:
[...]


[Afbeelding]

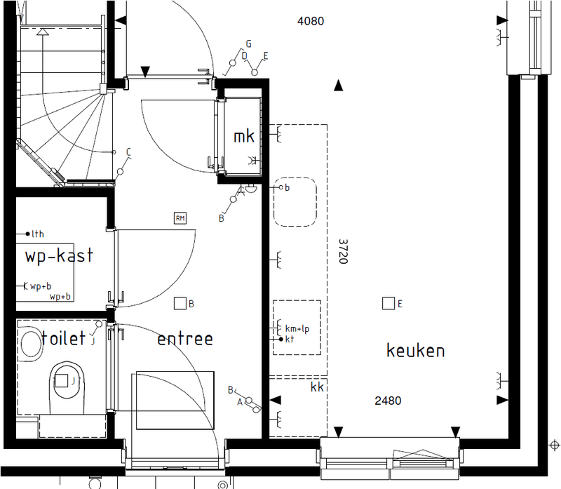
Dit is hoe de begane grond er uit komt te zien. De keuken staat op dit moment rechtsboven in de plattegrond, maar wij hadden het idee om deze te verplaatsen naar linksboven. Al twijfelen we hier nog wel over. Alle ramen aan de zuidzijde van de woning zijn tot aan de vloer.
Kun je de hal niet 30cm kleiner maken, dan heb je 3m85 breedte over en kun je daar comfortabel een keuken ontwerpen.

Eventueel dat hoekje ook nog, weet niet precies hoe dat ingevuld is.
Afbeeldingslocatie: https://tweakers.net/i/VDc_nZOb_58x907uZrDuFipwzOA=/x800/filters:strip_exif()/f/image/sumV61M76nNAAmCp59AURnaK.png?f=fotoalbum_large

[ Voor 3% gewijzigd door mitsumark op 06-03-2022 13:52 ]


  • mitsumark
  • Registratie: Juni 2009
  • Laatst online: 15:27
Basekid schreef op zondag 6 maart 2022 @ 13:44:
[...]


Natuurlijk:
[Afbeelding]

Er komt dus een uitbouw aan de achterkant van het huis (op het ZO). Hier zit momenteel de oude keuken die compleet vervangen wordt.

Qua kleur en materiaal heb ik besloten voor IKEA kastjes en frontjes te gaan. Misschien dat ik over een paar jaar de frontjes vervang voor massieve varianten. Echter zal er wel een wand/schuine afzuigkap in komen ipv de hier getoonde, en komt er een inductieplaat van 810mm (dat wil ik igg graag). Lades etc wil ik zoveel mogelijk. Ik had in mijn vorige woning ongeveer het formaat van de kleinere keuken en ik vindt het best krap qua werkblad.

Hele budget is ongeveer 15k.
Volgens mn berekeningen zit ik op ongeveer:
-6300 voor IKEA keuken + installatie (https://www.ikea.com/nl/n...ergrijs-70454097/#content
-2035 voor Keramisch keukenblad (online indicatie van Natuursteenhunter)
-5500 Keukenapparatuur (Siemens/Samsung/Bosch) (nog niet besteld trouwens)

Afzuigkap: https://www.bemmelenkroon.nl/merken/siemens/lc98klp60-siem/
Kookplaat: https://www.bemmelenkroon.nl/merken/siemens/ex875lvb1e-sies/
Combimagnetron: https://www.bemmelenkroon...msung/nq50a6539bkef-sams/
Oven: https://www.bemmelenkroon...msung/nv75a6679rkef-sams/
Koelkast/vriezer: https://www.bemmelenkroon...hirlpool/whc18-t311-whir/

Aan het einde van het jaar wil ik een glazen spatwand laten plaatsen.
Volgens mij geeft jouw eerdere ontwerp wel voldoende werk ruimte.
Afbeeldingslocatie: https://tweakers.net/i/FLJRpqIVCXcAy6aRoNMz4MGEQSo=/800x/filters:strip_exif()/f/image/d3ZPeixPQIiz4IjzDo1BkhOJ.png?f=fotoalbum_large

Een volledige U zou ik niet doen, maar eventueel alternatief?
Afbeeldingslocatie: https://tweakers.net/i/OtiD-yOyUJWcUUvlLO7JVu_L6XQ=/800x/filters:strip_exif()/f/image/5ukHL0AFl9LAnFAGWI4M7lcx.png?f=fotoalbum_large

  • Basekid
  • Registratie: Maart 2004
  • Laatst online: 14:14
mitsumark schreef op zondag 6 maart 2022 @ 13:57:
[...]

Volgens mij geeft jouw eerdere ontwerp wel voldoende werk ruimte.
[Afbeelding]

Een volledige U zou ik niet doen, maar eventueel alternatief?
[Afbeelding]
Thanks!

Volgens mij krijg ik onder het raam de 80+80cm niet gedaan, omdat de ikea hoekkastjes altijd wat uitsteken. Nu heb ik 60+60+88, en kleiner dan 88 lukt helaas niet. Of het moet iets van een lege ruimte worden..

  • GermanPivo
  • Registratie: September 2010
  • Laatst online: 15:49
Floor-is schreef op zondag 6 maart 2022 @ 10:54:
[...]

Ik wil met alle liefde een herinrichting tekenen, maar dat kost echt heel veel tijd en dan heb ik plattegronden en vooral ook beschikbaar budget nodig als uitgangspunt.
Een nieuwe trap is duur, muurtjes verplaatsen valt mee (tenzij dragend), toilet verplaatsen kan als het budget er is en kruipruimte enzo. Met de CV installatie en elektra en water rekening houden is een ding..

Ik wil het best doen, maar gezien de uren die nodig zijn doe ik dat niet meer gratis. Hier een beetje schetsen is leuk, maar dat is werk. :)
Ik bedoelde ook een schetsje van de keuken hoor, ik wil je niet opzadelen met een compleet herontwerp :9

9040 Wp | Zendure 15,4 kWh | MHI SCM60/SCM40/SRC25


  • TAA
  • Registratie: November 2000
  • Laatst online: 25-04 15:23

TAA

Liever IRC

Floor-is schreef op zondag 6 maart 2022 @ 10:07:
[...]

Die half hoge kasten zijn niet echt meer van deze tijd. Een schetsje voor je om het heel anders te doen :)

[Afbeelding]

Ik heb een 95cm schiereiland eiland ingetekend, dat had ik misschien 98,6 moeten maken, dan is het een standaard 60 diep kastje met een standaard 40 diep kastje.
Eens een heel ander idee; ik vond het verfrissend! Had al een hoop opstellingen bedacht maar deze nog niet! Eerlijkheid gebiedt me te zeggen dat ik de doorloop te smal vind worden als we er nog een barfunctie met krukken van willen maken. Is onze hoofddoorgang naar binnen/buiten; de voordeur wordt eigenlijk zelden gebruikt ;)

Hoge kasten zijn een no-go van de Baas ;) Tnx voor de input en feedback!

  • Floor-is
  • Registratie: Maart 2000
  • Laatst online: 28-04 23:35
mitsumark schreef op zondag 6 maart 2022 @ 13:52:
[...]

Kun je de hal niet 30cm kleiner maken, dan heb je 3m85 breedte over en kun je daar comfortabel een keuken ontwerpen.

Eventueel dat hoekje ook nog, weet niet precies hoe dat ingevuld is.
[Afbeelding]
Wordt krap qua trap hoor! Ik weet de hoogte niet, maar meestal kijk je toch naar minstens 230 cm, dat red je dan niet en al helemaal niet als er nog een muurtje naast moet.. je moet ook kijken hoe de ruimte boven is, het trapgat wil je niet aan moeten passen,, Anders wordt een nieuwe trap ineens een vergunning plus constructief werk en de nieuwe trap..

Bericht hierboven


  • mitsumark
  • Registratie: Juni 2009
  • Laatst online: 15:27
TAA schreef op zaterdag 5 maart 2022 @ 19:53:
Behoorlijk aan het stoeien met het ontwerp van onze nieuwe keuken. Afgelopen week naar aanleiding van een prettig gesprek bij Superkeukens in Breda (en een nette offerte) zelf nog wat aan het stoeien met de online tool van Schüller. Vooral over het stuk bar onder het schiereiland twijfel ik nog. Nu een enkel kastje rechts en wang links. Uiteraard komt er wel een blad op maar dat kreeg ik zo niet getekend. Iemand die daar iets over wil roepen? Of over het ontwerp in het algemeen?

[Afbeelding]

[Afbeelding]
Keuken links, tafel rechts?
Kastenwand kan natuurlijk ook wat korter, weet niet hoe je de zitruimte hebt ingedeeld, maar ik gok een bank tegenover de deur.. (ik was al klaar met tekenen toen ik erachter kwam dat er niet zoveel meer van je kamer over was :) )
Afbeeldingslocatie: https://tweakers.net/i/w6IdTqdJa5V1pMBsy7HnI8I3sUs=/800x/filters:strip_exif()/f/image/NuJ54TaOqZDhQbeo9V2qT30a.png?f=fotoalbum_large

[ Voor 8% gewijzigd door mitsumark op 06-03-2022 22:59 ]


  • mitsumark
  • Registratie: Juni 2009
  • Laatst online: 15:27
Floor-is schreef op zondag 6 maart 2022 @ 22:25:
[...]

Wordt krap qua trap hoor! Ik weet de hoogte niet, maar meestal kijk je toch naar minstens 230 cm, dat red je dan niet en al helemaal niet als er nog een muurtje naast moet.. je moet ook kijken hoe de ruimte boven is, het trapgat wil je niet aan moeten passen,, Anders wordt een nieuwe trap ineens een vergunning plus constructief werk en de nieuwe trap..
Daar heb ik minder inzicht in, ik dacht dat een trap van 2m wel zou kunnen.
Los daarvan heb ik het bestaande idee gehanteerd, dus ga er vanuit dat dat qua trapgat goed komt.

Misschien dat een plattegrond van de huidige situatie dan wel handig is.

  • Floor-is
  • Registratie: Maart 2000
  • Laatst online: 28-04 23:35
TAA schreef op zondag 6 maart 2022 @ 19:34:
[...]


Eens een heel ander idee; ik vond het verfrissend! Had al een hoop opstellingen bedacht maar deze nog niet! Eerlijkheid gebiedt me te zeggen dat ik de doorloop te smal vind worden als we er nog een barfunctie met krukken van willen maken. Is onze hoofddoorgang naar binnen/buiten; de voordeur wordt eigenlijk zelden gebruikt ;)

Hoge kasten zijn een no-go van de Baas ;) Tnx voor de input en feedback!
Afbeeldingslocatie: https://tweakers.net/i/lENrlbFEi12kFdLFDG37XALKdDY=/234x176/filters:strip_icc():strip_exif()/f/image/SB7bmTJdj89oXXetqRjFKBN0.jpg?f=fotoalbum_medium

Die tafel kan je draaien natuurlijk en het eiland verschuiven enzo. Je hebt zat ruimte om dingen te doen.

[ Voor 5% gewijzigd door Floor-is op 06-03-2022 23:05 ]

Bericht hierboven


  • chefswitch
  • Registratie: December 2021
  • Laatst online: 16-06-2023
Wij hebben gisteren een eerste gesprek gehad bij Nolte Rotterdam, vrijdag staat een gesprek gepland bij Smartdesign Maassluis.

Wij willen graag een eiland, maar een barretje er aan hoeft niet. Zo zijn we uitgekomen op een eiland van een kastje 95 cm diep. Aan 1 kant slechts 60 cm doorloop, maar dat is bewust omdat we er niet omheen hoeven te lopen maar er wel een schuifpui zit en we dus niet tegen de muur aan kunnen.

Hebben jullie tips?

Originele plattgrond (hier nog zonder schuifpui, verder wel kloppend qua afmetingen ed).

Afbeeldingslocatie: https://tweakers.net/i/V608_Lo_YWo6Y9tGe7Y6GTWVzH8=/800x/filters:strip_exif()/f/image/t2jq6bn9M0XUkEucx9FRwNcE.png?f=fotoalbum_large

De 3d render
Afbeeldingslocatie: https://tweakers.net/i/vIa5_Q3a-XbGbCmmHbhI6k6N-FU=/800x/filters:strip_icc():strip_exif()/f/image/6Ng06WzwWegTlbwzMSAxANYu.jpg?f=fotoalbum_large

De indeling
Afbeeldingslocatie: https://tweakers.net/i/EDHVVz661EJLTWt5dhFO1jOT04M=/x800/filters:strip_icc():strip_exif()/f/image/V4Ol0ySqof7hsRGCM45LQ1c6.jpg?f=fotoalbum_large

Qua apparatuur hebben we gekozen voor AEG:
Koel/vries combinatie SCE818F6TS
Vaatwasser FSK83827P
Oven/magnetron BPK535060B
Kookplaat met afzuiging CCE8475SCB
Quooker

Werkblad van composiet, antifingerprint laminaat frontjes en een aluminium achterwand. Aan de kookzijde ladekasten, alle andere kasten met planken. Prijs op de offerte is
Members only:
Alleen zichtbaar voor ingelogde gebruikers. Inloggen
Incl montage.

[ Voor 4% gewijzigd door chefswitch op 07-03-2022 14:05 ]


  • SquareOne
  • Registratie: Januari 2010
  • Laatst online: 12:56
chefswitch schreef op maandag 7 maart 2022 @ 09:30:
Wij hebben gisteren een eerste gesprek gehad bij Nolte Rotterdam, vrijdag staat een gesprek gepland bij Smartdesign Maassluis.

Wij willen graag een eiland, maar een barretje er aan hoeft niet. Zo zijn we uitgekomen op een eiland van een kastje 95 cm diep. Aan 1 kant slechts 60 cm doorloop, maar dat is bewust omdat we er niet omheen hoeven te lopen maar er wel een schuifpui zit en we dus niet tegen de muur aan kunnen.

Hebben jullie tips?

Originele plattgrond (hier nog zonder schuifpui, verder wel kloppend qua afmetingen ed).

[Afbeelding]

De 3d render
[Afbeelding]

De indeling
[Afbeelding]

Qua apparatuur hebben we gekozen voor AEG:
Koel/vries combinatie SCE818F6TS
Vaatwasser FSK83827P
Oven/magnetron BPK535060B
Kookplaat met afzuiging CCE8475SCB
Quooker

Werkblad van composiet, antifingerprint laminaat frontjes en een aluminium achterwand. Aan de kookzijde ladekasten, alle andere kasten met planken. Prijs op de offerte is €17.960,- Incl montage.
Indeling van fronten aan kookkant van eiland zou ik 3x80 ladekast maken. Of past die kookplaat niet in een 80cm kast? Eiland is voor mijn gevoel ook een tikkie aan de grote kant voor de ruimte.
Eventueel naar 200cm eiland. Indeling 60,80,60 (of 50, 100, 50), en aan andere 2x100 kast met deurtjes van 50cm.

  • Floor-is
  • Registratie: Maart 2000
  • Laatst online: 28-04 23:35
chefswitch schreef op maandag 7 maart 2022 @ 09:30:
Wij hebben gisteren een eerste gesprek gehad bij Nolte Rotterdam, vrijdag staat een gesprek gepland bij Smartdesign Maassluis.

Wij willen graag een eiland, maar een barretje er aan hoeft niet. Zo zijn we uitgekomen op een eiland van een kastje 95 cm diep. Aan 1 kant slechts 60 cm doorloop, maar dat is bewust omdat we er niet omheen hoeven te lopen maar er wel een schuifpui zit en we dus niet tegen de muur aan kunnen.

Hebben jullie tips?

Originele plattgrond (hier nog zonder schuifpui, verder wel kloppend qua afmetingen ed).

[Afbeelding]

De 3d render
[Afbeelding]

De indeling
[Afbeelding]

Qua apparatuur hebben we gekozen voor AEG:
Koel/vries combinatie SCE818F6TS
Vaatwasser FSK83827P
Oven/magnetron BPK535060B
Kookplaat met afzuiging CCE8475SCB
Quooker

Werkblad van composiet, antifingerprint laminaat frontjes en een aluminium achterwand. Aan de kookzijde ladekasten, alle andere kasten met planken. Prijs op de offerte is €17.960,- Incl montage.
Ik zie op de render 6 kasten in de breedte, maar op de tekening 5. Is de kwaliteit van die render ruk, ben ik deels blind of hoe zit dit?

Ook staat op de tekening de volledige breedte van het huis gebruikt, wat op zich top is hoor, maar dan moet de trap er uit 8)7

Bericht hierboven


  • chefswitch
  • Registratie: December 2021
  • Laatst online: 16-06-2023
Floor-is schreef op maandag 7 maart 2022 @ 09:47:
[...]

Ik zie op de render 6 kasten in de breedte, maar op de tekening 5. Is de kwaliteit van die render ruk, ben ik deels blind of hoe zit dit?

Ook staat op de tekening de volledige breedte van het huis gebruikt, wat op zich top is hoor, maar dan moet de trap er uit 8)7
Ik denk dat de kwaliteit van de render ruk is. Dat vond ik ook al ;-)
Dat komt vooral door de kleurkeuze van de wand. Ik zie er wel vijf kasten staan, 1 hoog, 3 laag, 1 hoog. maar het stukje ernaast lijkt ook donker en dus een kast.

En de keuken staat tegenover de trap, dus waar in de originele plattegrond ook de keuken zit. Naast de trap staat nog een eettafel, zo is het IRL nu ook. Of bedoel je iets anders?

  • Mj2sL
  • Registratie: Juli 2008
  • Laatst online: 09:21
Hier onze keuken die we al een poosje in ontwerp hebben staan. Deze week gaan we alles definitief maken. Ik ben benieuwd of we nog iets over het hoofd zien.

Apparatuur is van AEG (geswitch van Siemens ivm leveringsproblemen), Bora kookplaat en een Quooker. Spoelbak is een zwarte Caressi. Ik twijfel zelf nog over een Franke. Verkoper vond die minder goed dan Caressi, maar daar ben ik skeptisch over. Heb ze inmiddels beiden in real life gezien en ze zijn allebei mooi. Vond de Franke iets mooier, maar dat kan best tussen mijn oren zitten.

Qua indeling zit vanaf de links een hoge koelkast, rechts daarvan een vriezer van 100cm hoog. In het midden oven en magnetron, rechts daarvan alleen maar kasten.

Apparatuur:
Bora PURU
AEG KMK725880B (magnetron)
AEG BPE742220B (oven)
AEG ABE810F6NF (vrieskast)
AEG SKE818E1DS (koelkast)
AEG FSK52617P (vaatwasser)

Afbeeldingslocatie: https://tweakers.net/i/oojyLpfMnZcElzxOv_2Ms-XXsBA=/232x232/filters:strip_icc():strip_exif()/f/image/50ZDs8AHCMLnxSEQ9ntlADh5.jpg?f=fotoalbum_tileAfbeeldingslocatie: https://tweakers.net/i/fh6537-eVgax9aK6pkHI7S0NSWE=/232x232/filters:strip_icc():strip_exif()/f/image/WDxOUezaMSzn8U67v3VimybN.jpg?f=fotoalbum_tileAfbeeldingslocatie: https://tweakers.net/i/eZzUp8bUOCKGvRg3_JxPv4DboK4=/232x232/filters:strip_icc():strip_exif()/f/image/rtYg9DYA4Q0DKTsWIJmqZTxD.jpg?f=fotoalbum_tile
Afbeeldingslocatie: https://tweakers.net/i/jnHf8cJKE1cvhzyk2Ui69khwBz8=/232x232/filters:strip_icc():strip_exif()/f/image/xY9RAJ4RDHTRvLGdoQEbSDm3.jpg?f=fotoalbum_tile


Members only:
Alleen zichtbaar voor ingelogde gebruikers. Inloggen

[ Voor 3% gewijzigd door Mj2sL op 07-03-2022 12:57 . Reden: apparatuur toegevoegd ]


  • louzy82
  • Registratie: Juni 2011
  • Laatst online: 22-04 15:34
We hebben onze eerste offerte ontvangen.
Deze komt van een interieurbouwer, een goede kennis, die veel ervaring heeft met keukens maar over het algemeen meer wat grotere projecten doen zoals een winkel of bijv een hele benedenverdieping van een villa.

Het betreft een L vormige keuken waarbij het korte stuk bestaat uit 3 hoge kasten met daarin Koelkast en 2 ovens. Verder zijn er alleen lage kasten, allemaal lades (14 stuks totaal)
Het blad is 20mm Silestone coral clay suede.
De lange zijde is 70 cm diep ipv 60cm voor wat extra aflegruimte/werkblad.
Fronten zijn afgewerkt met een matte houtlook met voelbare structuur (geen echt houtfineer, melamine dan? Decolegno LR33)

Een render volgt nog maar hieronder de indeling met maten:
Afbeeldingslocatie: https://tweakers.net/i/GU1FR8GW6GqsuvnJCAz7kKLnuFk=/full-fit-in/4920x3264/filters:max_bytes(3145728):no_upscale():strip_icc():fill(white):strip_exif()/f/image/Tgbl1e9uUcCPqzgT0P8hwiEx.jpg?f=user_large

Apparatuur, alles van Siemens op de kraan na:
  • Koelkast KI81RSDE0 IQ500
  • Vaatwasser SN65Z800BE IQ500
  • Stoomoven HS836GTB6 IQ700
  • Oven HB876G5B6 IQ700
  • Kookplaat ED877FQ25E IQ500
  • Quooker combi+ Flex RVS
Totaal prijs: 25.500 euro

Qua indeling zijn wel tevreden, daar hebben we het al veelvuldig over gehad.

Ik ben vooral benieuwd naar jullie meningen over de prijs, die voor mijn gevoel behoorlijk aan de hoge kant is en de apparatuur (buiten dat het wellicht nog lastig gaat zijn om te verkrijgen)

Alvast vriendelijk bedankt wederom!

Louzy#2475


  • Source90
  • Registratie: December 2008
  • Laatst online: 14:32
Hier net een belletje van de keukenleverancier gehad dat woensdag de werkbladen en spoelbak worden geplaatst *O*

De vaatwasser is voorlopig nog niet leverbaar, dit was een Miele G 7150 SCVi. Ik heb nu een "upgrade" gehad naar de G 7255 SCVi XXL. Naast de maat zie ik niet zoveel verschil. Maar mooi dat er nu een XXL model in komt. En belangrijkste; dat er een vaatwasser is.

Alleen nog wachten op de stoomoven, maar die zal voorlopig nog niet binnen komen werd gezegd.

  • Floor-is
  • Registratie: Maart 2000
  • Laatst online: 28-04 23:35
chefswitch schreef op maandag 7 maart 2022 @ 11:48:
[...]


Ik denk dat de kwaliteit van de render ruk is. Dat vond ik ook al ;-)
Dat komt vooral door de kleurkeuze van de wand. Ik zie er wel vijf kasten staan, 1 hoog, 3 laag, 1 hoog. maar het stukje ernaast lijkt ook donker en dus een kast.

En de keuken staat tegenover de trap, dus waar in de originele plattegrond ook de keuken zit. Naast de trap staat nog een eettafel, zo is het IRL nu ook. Of bedoel je iets anders?
Je hebt 256cm en daarin moet zowel de tafel als de doorgang naar de trap. Zelfs als je een 160-tafel neerzet is dat niet ruim te noemen. :)

Bericht hierboven


  • ChUcKiE
  • Registratie: September 1999
  • Laatst online: 09:41

ChUcKiE

Dus........

Source90 schreef op maandag 7 maart 2022 @ 14:02:
Hier net een belletje van de keukenleverancier gehad dat woensdag de werkbladen en spoelbak worden geplaatst *O*

De vaatwasser is voorlopig nog niet leverbaar, dit was een Miele G 7150 SCVi. Ik heb nu een "upgrade" gehad naar de G 7255 SCVi XXL. Naast de maat zie ik niet zoveel verschil. Maar mooi dat er nu een XXL model in komt. En belangrijkste; dat er een vaatwasser is.

Alleen nog wachten op de stoomoven, maar die zal voorlopig nog niet binnen komen werd gezegd.
Ik ben benieuwd bij onze levering, eind deze maand...Ook Miele stoomoven (7665) , Miele vaatwasser (7565 SCVi XXL) en de Liebherr vriezer en koelkast. De wijnkoeler van Liebherr maakt me dan nog het minste uit nu >:) en voor de Bora kookplaat ben ik niet zo bang.

http://eu.battle.net/d3/en/profile/ChUcKiE-1330/hero/807720


  • ColeJ
  • Registratie: Juni 2019
  • Laatst online: 15:51
Goeiedag zeg, 5000 euro voor een stoomoven. Voor dat geld staat het hele jaar een delivery boy op de stoep met de gezondste maaltijden :9

  • Grrrrrene
  • Registratie: Mei 2000
  • Niet online
GermanPivo schreef op zondag 6 maart 2022 @ 10:09:
[...]


Ik weet niet hoe de raamhoogte etc is, maar zoiets met dus een schiereiland? Kan je in ieder geval koken richting de eettafel/kamer.
Toen wij onze keuken uitzochten, hadden eigenlijk ook voor een keuken aan de voorzijde van het huis moeten gaan. Ook hier een laag raam, maar als je de U in een L verandert, hoef je niet voor het raam langs. Een ander raam is ook geen rocket science, mocht je toch voor het raam langs willen, maar dat ter zijde.

We kregen wel de tip van de keukenboer dat je doorgaans meer tijd besteedt aan snijden van groenten en marineren van vlees (bijvoorbeeld), dan daadwerkelijk door je pannetje roeren. Dus tenzij je alles uit pakjes doet, zou ik aanraden de spoelbak richting de woonkamer te richten en de kookplaat lekker tegen de muur houden. Dat maakt afzuiging ook een stuk eenvoudiger te regelen.

Imitation is the sincerest form of flattery
Stressed is desserts spelled backwards


  • joostbo
  • Registratie: Juni 2021
  • Laatst online: 11-04 17:25
Source90 schreef op maandag 7 maart 2022 @ 14:02:
Hier net een belletje van de keukenleverancier gehad dat woensdag de werkbladen en spoelbak worden geplaatst *O*

De vaatwasser is voorlopig nog niet leverbaar, dit was een Miele G 7150 SCVi. Ik heb nu een "upgrade" gehad naar de G 7255 SCVi XXL. Naast de maat zie ik niet zoveel verschil. Maar mooi dat er nu een XXL model in komt. En belangrijkste; dat er een vaatwasser is.

Alleen nog wachten op de stoomoven, maar die zal voorlopig nog niet binnen komen werd gezegd.
Inderdaad fijn dat er uberhaupt en vaatwasser is. Dat is onze grootste zorg in mei dat er geen vaatwasser is. Dat werd nog spannend zei de keukenzaak. (BSH apparatuur) De oven moesten we ook al van uit gaan dat die niet komt, maar dat is te overzien, we hebben wel een compacte losse oven zodat we wel ovenschotels en broodjes kunnen bakken, en ja met de hand afwassen kan ook. Onze huidige vaatwasser is een maar weken geleden stuk gegaan.Dat met de hand afwassen, echt vreselijk :P

mijn collega sprak ik vanmorgen, die heeft alles van Miele maar alleen de kookplaat en inmiddels ook koelkast zijn geleverd. Rest nog steeds niet terwijl de keuken al in december is geplaatst :|

  • Source90
  • Registratie: December 2008
  • Laatst online: 14:32
ChUcKiE schreef op maandag 7 maart 2022 @ 14:37:
[...]


Ik ben benieuwd bij onze levering, eind deze maand...Ook Miele stoomoven (7665) , Miele vaatwasser (7565 SCVi XXL) en de Liebherr vriezer en koelkast. De wijnkoeler van Liebherr maakt me dan nog het minste uit nu >:) en voor de Bora kookplaat ben ik niet zo bang.
Kookplaat hebben wij direct binnen gekregen en pas in november besteld (was eerst Bora, in nov. past verwisseld.
Hier:

Koelkast: Liebherr IRBE 5120 (nog niet geleverd)
Vriezer: Liebherr SIGN 3556-22 (geleverd)
Warmhoudlade: Miele ESW 7010 (geleverd)
Oven: Miele H 7860 BP (geleverd)
Stoomoven: Miele DGC 7845 (nog niet geleverd)
Kookplaat: Miele DA 7476 FL (geleverd)

Vaatwasser (Miele G 7150 SCVi ) was er dus ook niet en wordt vervangen voor de G 7255 SCVi XXL

[ Voor 5% gewijzigd door Source90 op 07-03-2022 15:56 ]


  • Source90
  • Registratie: December 2008
  • Laatst online: 14:32
joostbo schreef op maandag 7 maart 2022 @ 15:49:
[...]


Inderdaad fijn dat er uberhaupt en vaatwasser is. Dat is onze grootste zorg in mei dat er geen vaatwasser is. Dat werd nog spannend zei de keukenzaak. (BSH apparatuur) De oven moesten we ook al van uit gaan dat die niet komt, maar dat is te overzien, we hebben wel een compacte losse oven zodat we wel ovenschotels en broodjes kunnen bakken, en ja met de hand afwassen kan ook. Onze huidige vaatwasser is een maar weken geleden stuk gegaan.Dat met de hand afwassen, echt vreselijk :P

mijn collega sprak ik vanmorgen, die heeft alles van Miele maar alleen de kookplaat en inmiddels ook koelkast zijn geleverd. Rest nog steeds niet terwijl de keuken al in december is geplaatst :|
Vaatwasser vond ik niet zo spannend eerlijk gezegd, kan ook wel een tijdje met de hand (of een leenmodel).
Koelkast die er nog niet is vind ik nog een puntje dat nu de verhuizing ook laat vertragen. Hebben geen haast met verhuizen, maar die koelkast zorgt er wel voor dat we nu zeggen 'we wachten nog wel even'.

  • Z___Z
  • Registratie: Maart 2002
  • Niet online
Source90 schreef op maandag 7 maart 2022 @ 15:52:
[...]

Kookplaat hebben wij direct binnen gekregen en pas in november besteld (was eerst Bora, in nov. past verwisseld.
Hier:

Koelkast: Liebherr IRBE 5120 (nog niet geleverd)
Vriezer: Liebherr SIGN 3556-22 (geleverd)
Warmhoudlade: Miele ESW 7010 (geleverd)
Oven: Miele H 7860 BP (geleverd)
Stoomoven: Miele DGC 7845 (nog niet geleverd)
Kookplaat: Miele DA 7476 FL (geleverd)

Vaatwasser (Miele G 7150 SCVi ) was er dus ook niet en wordt vervangen voor de G 7255 SCVi XXL
Wij missen ook nog de Koelkast: Liebherr: IRBE 5120, afzuigkap Novy Flatline en Vaatwasser Miele G 7150 SCVi. Weinig hoopvol dus als ik naar jou lijstje kijk dat we dit geleverd krijgen in juli....

  • Source90
  • Registratie: December 2008
  • Laatst online: 14:32
Z___Z schreef op maandag 7 maart 2022 @ 16:01:
[...]

Wij missen ook nog de Koelkast: Liebherr: IRBE 5120, afzuigkap Novy Flatline en Vaatwasser Miele G 7150 SCVi. Weinig hoopvol dus als ik naar jou lijstje kijk dat we dit geleverd krijgen in juli....
Members only:
Alleen zichtbaar voor ingelogde gebruikers. Inloggen

[ Voor 6% gewijzigd door Source90 op 07-03-2022 16:07 ]


  • joostbo
  • Registratie: Juni 2021
  • Laatst online: 11-04 17:25
Onze keukenzaak wil geen verwachte leverdata doorgeven.

Hebben ze vorig jaar veel gedaan, maar werd meestal toch niet waargemaakt waarop zij daar op werden aangekeken door toch al teleurstelde klanten. Ze spreken slechts lichte verwachtingen uit met als conclusie; de dag voor levering weten ook wij pas wat is tijdens installatie en wat niet.

Het is toch echt wel drama bij de meeste (A-)merken. Ze verwachten ook dat dit mogelijk nog het hele jaar gaat duren.

  • chefswitch
  • Registratie: December 2021
  • Laatst online: 16-06-2023
Floor-is schreef op maandag 7 maart 2022 @ 14:23:
[...]

Je hebt 256cm en daarin moet zowel de tafel als de doorgang naar de trap. Zelfs als je een 160-tafel neerzet is dat niet ruim te noemen. :)
Ah zo! Dat is nu dus ook al het geval. Wat niet duidelijk was is dat de trap een kwartdraai heeft onderin.

Maar heb je een ander idee qua keuken? Wij zitten een beetje vast op dit plaatje, na heel wat geschuif kom ik elke keer weer hier op uit.

  • chefswitch
  • Registratie: December 2021
  • Laatst online: 16-06-2023
Mj2sL schreef op maandag 7 maart 2022 @ 11:57:
Hier onze keuken die we al een poosje in ontwerp hebben staan. Deze week gaan we alles definitief maken. Ik ben benieuwd of we nog iets over het hoofd zien.

Apparatuur is van AEG (geswitch van Siemens ivm leveringsproblemen), Bora kookplaat en een Quooker. Spoelbak is een zwarte Caressi. Ik twijfel zelf nog over een Franke. Verkoper vond die minder goed dan Caressi, maar daar ben ik skeptisch over. Heb ze inmiddels beiden in real life gezien en ze zijn allebei mooi. Vond de Franke iets mooier, maar dat kan best tussen mijn oren zitten.

Qua indeling zit vanaf de links een hoge koelkast, rechts daarvan een vriezer van 100cm hoog. In het midden oven en magnetron, rechts daarvan alleen maar kasten.

***members only***
Mooie keuken, en voor een mooie prijs (vergeleken met onze offerte, verder heb ik er geen verstand van).

Waar heb je de offerte vandaan, en welk merk keuken is dit? Mag ook in een PB natuurlijk.

  • Rouske
  • Registratie: Juli 2007
  • Laatst online: 28-04 17:33
ChUcKiE schreef op maandag 7 maart 2022 @ 14:37:
[...]
Miele stoomoven (7665)
[...]

ColeJ schreef op maandag 7 maart 2022 @ 14:54:
Goeiedag zeg, 5000 euro voor een stoomoven. Voor dat geld staat het hele jaar een delivery boy op de stoep met de gezondste maaltijden :9
En de jaren daarna dan... op een houtje bijten ofzo :Y) :+

  • Floor-is
  • Registratie: Maart 2000
  • Laatst online: 28-04 23:35
Mj2sL schreef op maandag 7 maart 2022 @ 11:57:
Hier onze keuken die we al een poosje in ontwerp hebben staan. Deze week gaan we alles definitief maken. Ik ben benieuwd of we nog iets over het hoofd zien.

Apparatuur is van AEG (geswitch van Siemens ivm leveringsproblemen), Bora kookplaat en een Quooker. Spoelbak is een zwarte Caressi. Ik twijfel zelf nog over een Franke. Verkoper vond die minder goed dan Caressi, maar daar ben ik skeptisch over. Heb ze inmiddels beiden in real life gezien en ze zijn allebei mooi. Vond de Franke iets mooier, maar dat kan best tussen mijn oren zitten.

Qua indeling zit vanaf de links een hoge koelkast, rechts daarvan een vriezer van 100cm hoog. In het midden oven en magnetron, rechts daarvan alleen maar kasten.

Apparatuur:
Bora PURU
AEG KMK725880B (magnetron)
AEG BPE742220B (oven)
AEG ABE810F6NF (vrieskast)
AEG SKE818E1DS (koelkast)
AEG FSK52617P (vaatwasser)

[Afbeelding][Afbeelding][Afbeelding]
[Afbeelding]



***members only***
louzy82 schreef op maandag 7 maart 2022 @ 13:39:
We hebben onze eerste offerte ontvangen.
Deze komt van een interieurbouwer, een goede kennis, die veel ervaring heeft met keukens maar over het algemeen meer wat grotere projecten doen zoals een winkel of bijv een hele benedenverdieping van een villa.

Het betreft een L vormige keuken waarbij het korte stuk bestaat uit 3 hoge kasten met daarin Koelkast en 2 ovens. Verder zijn er alleen lage kasten, allemaal lades (14 stuks totaal)
Het blad is 20mm Silestone coral clay suede.
De lange zijde is 70 cm diep ipv 60cm voor wat extra aflegruimte/werkblad.
Fronten zijn afgewerkt met een matte houtlook met voelbare structuur (geen echt houtfineer, melamine dan? Decolegno LR33)

Een render volgt nog maar hieronder de indeling met maten:
[Afbeelding]

Apparatuur, alles van Siemens op de kraan na:
  • Koelkast KI81RSDE0 IQ500
  • Vaatwasser SN65Z800BE IQ500
  • Stoomoven HS836GTB6 IQ700
  • Oven HB876G5B6 IQ700
  • Kookplaat ED877FQ25E IQ500
  • Quooker combi+ Flex RVS
Totaal prijs: 25.500 euro

Qua indeling zijn wel tevreden, daar hebben we het al veelvuldig over gehad.

Ik ben vooral benieuwd naar jullie meningen over de prijs, die voor mijn gevoel behoorlijk aan de hoge kant is en de apparatuur (buiten dat het wellicht nog lastig gaat zijn om te verkrijgen)

Alvast vriendelijk bedankt wederom!
Bovenstaande vragen gelden ook voor jou hier :)

Hoeveel is van dat bedrag voor:
- Apparatuur
- Werkblad
- Plaatsen

Dan weet je wat het kastenwerk kost immers. Ben benieuwd!

Bericht hierboven


  • PaT
  • Registratie: April 2003
  • Niet online

PaT

Moderator Mobile

Ja, dat mod

ColeJ schreef op maandag 7 maart 2022 @ 14:54:
[...]


Goeiedag zeg, 5000 euro voor een stoomoven. Voor dat geld staat het hele jaar een delivery boy op de stoep met de gezondste maaltijden :9
Geloof mij, dat apparaat is iedere cent waard. Ik reageerde in eerste instantie hetzelfde als jij, maar nu we hem hebben ben ik er dolgelukkig mee. Wat een fantastisch apparaat is dat.

Groot genoeg voor 2 hoofdletters


  • TAA
  • Registratie: November 2000
  • Laatst online: 25-04 15:23

TAA

Liever IRC

Floor-is schreef op zondag 6 maart 2022 @ 23:04:
[...]

[Afbeelding]

Die tafel kan je draaien natuurlijk en het eiland verschuiven enzo. Je hebt zat ruimte om dingen te doen.
De utilities zijn redelijk gebonden aan de plek zoals oorspronkelijk aangegeven; het huis is voorzien van LTV en het is vrijwel onmogelijk om zonder hele grote ingreep met alle groep incl. krachtstroom, water én afvoer aan de andere kant van de kamer te komen. In de vloer frezen is geen optie.

De halfhoge kasten zijn inmiddels discussie van de dag geworden; daar kom ik zeker nog op terug!

  • twi
  • Registratie: Februari 2000
  • Laatst online: 27-03 13:15

twi

Ik heb ze wel te pakken. Naast de projectleverancier nu ook de tweede keukenzaak die geen kookplaat met inbouw wil leveren in een 60cm diep blad. "Die 5cm is wel echt nodig". Ga het bij 1 of 2 andere zaken nog maar proberen maar ben serieus aan het nadenken de indeling van de keuken wat om te gooien. Helaas is de keukenruimte niet zo breed (2885mm) en zijn we ook niet zo'n fan van (schier)eilanden.

Uitdagingen
  • Zowel links als rechts van het raam is het geen 650mm (maar "circa" 630mm)
  • Raam begint op 700mm hoogte, dus ruim onder het keukenblad
  • Moet een recirculatie afzuiging zijn
  • Persoonlijke keuzes: geen afzuigkap en liever geen onnodige koof in het plafond voor een plafondafzuiging
Afbeeldingslocatie: https://tweakers.net/i/ujBaYaDklBw5wbd4JeqyvGZauSE=/800x/filters:strip_exif()/f/image/kcqudRDAFaVuMbvH4BaGFZEw.png?f=fotoalbum_large

De "lelijke" oplossing:
Werkblad niet door laten lopen tot de voorgevel, maar 10-30cm ruimte laten. Met die ruimte kun je dan (a) niks doen / prullenbak zetten of (b) opvullen met wat open plankjes (flessen/wijn/kruidenrek van b.v. hout)

Alternatief
Schiereiland maken, met i.p.v. op onderstaande afbeelding een kookplaat in plaats van een gootsteenkastje. Denk alleen dat dat het geheel nog omslachtiger maakt om maar een afzuigkap en/of koof te voorkomen. Bovendien zie ik zelden schiereilanden waar op gekookt wordt. Meestal zit er toch een spoelbak in. Heeft dat nog een praktische reden?

Voorbeeld van het internet geplukt, positie gootsteen en kookplaat hierbij omwisselen natuurlijk
Afbeeldingslocatie: https://tweakers.net/i/NGvNiPxiBQ0q-ACSrh9KShU9gc0=/800x/filters:strip_icc():strip_exif()/f/image/gPggbcWejY1hfMdUQRvmTZ1p.jpg?f=fotoalbum_large

[ Voor 5% gewijzigd door twi op 07-03-2022 20:15 ]


  • mitsumark
  • Registratie: Juni 2009
  • Laatst online: 15:27
ColeJ schreef op maandag 7 maart 2022 @ 14:54:
[...]


Goeiedag zeg, 5000 euro voor een stoomoven. Voor dat geld staat het hele jaar een delivery boy op de stoep met de gezondste maaltijden :9
En die overige 14-19 jaar?

Edit: nieuwe pagina gemist, was al genoemd.

[ Voor 7% gewijzigd door mitsumark op 07-03-2022 21:15 ]


  • SquareOne
  • Registratie: Januari 2010
  • Laatst online: 12:56
ChUcKiE schreef op maandag 7 maart 2022 @ 14:37:
[...]


Ik ben benieuwd bij onze levering, eind deze maand...Ook Miele stoomoven (7665) , Miele vaatwasser (7565 SCVi XXL) en de Liebherr vriezer en koelkast. De wijnkoeler van Liebherr maakt me dan nog het minste uit nu >:) en voor de Bora kookplaat ben ik niet zo bang.
@Source90 die stoomoven is gewoon uit voorraad leverbaar bij Miele?

https://www.miele.nl/e/st...obsidiaanzwart-11709480-p

  • mitsumark
  • Registratie: Juni 2009
  • Laatst online: 15:27
TAA schreef op maandag 7 maart 2022 @ 19:40:
[...]


De utilities zijn redelijk gebonden aan de plek zoals oorspronkelijk aangegeven; het huis is voorzien van LTV en het is vrijwel onmogelijk om zonder hele grote ingreep met alle groep incl. krachtstroom, water én afvoer aan de andere kant van de kamer te komen. In de vloer frezen is geen optie.

De halfhoge kasten zijn inmiddels discussie van de dag geworden; daar kom ik zeker nog op terug!
Is er geen kruipruimte?
Tussen vloerverwarming door kun je gewoon een gat boren. Tegen de muur aan ook.

  • remzor
  • Registratie: Februari 2013
  • Nu online
[b]twi schreef op maandag 7 maart 2022 @ 20:10:Bovendien zie ik zelden schiereilanden waar op gekookt wordt. Meestal zit er toch een spoelbak in. Heeft dat nog een praktische reden?
Ik denk juist andersom: juist wel koken op het schiereiland, zeker met de moderne kookplaat. Al is het echt een kwestie van voorkeuren.
Een Bora oid komt toch beter tot zijn recht in een (schier)eiland dan tegen de muur vind ik. Dus koken de ruimte in, de tuin in, etc.

  • franssie
  • Registratie: Februari 2000
  • Nu online

franssie

Save the albatross

PaT schreef op maandag 7 maart 2022 @ 18:56:
[...]

Geloof mij, dat apparaat is iedere cent waard. Ik reageerde in eerste instantie hetzelfde als jij, maar nu we hem hebben ben ik er dolgelukkig mee. Wat een fantastisch apparaat is dat.
Wil je dat toelichten, waarom is dat ding fantastisch en het geld waard?
En ook, waarbij gebruik je het waar iets anders niet zou lukken?
Het is best veel extra en iedereen kookt anders, dus ik ben wel benieuwd waarom het voor jouw huishouden zo een groot verschil maakt (veel mensen met een oven gebruiken die nooit, ik heb er zelf twee omdat ik ook vaak twee ovens gebruik maar een stoomfunctie heb ik nog nooit gemist, dus oprechte interesse)

I´d rather be a hypocrite than the same person forever (Yauch)| 🎸 Niets is zo permanent als een tijdelijke oplossing | Een goed probleem komt nooit alleen | Gibson guitar Fender Guitar God Damn Guitar


  • TAA
  • Registratie: November 2000
  • Laatst online: 25-04 15:23

TAA

Liever IRC

mitsumark schreef op maandag 7 maart 2022 @ 21:30:
[...]

Is er geen kruipruimte?
Tussen vloerverwarming door kun je gewoon een gat boren. Tegen de muur aan ook.
Geen kruipruimte; langs muren kan ook niet omdat er langs alle kanten deuren en puien met kozijnen tot aan het plafond zitten... serieus naar de opties gekeken.

  • Source90
  • Registratie: December 2008
  • Laatst online: 14:32
Ik heb de 7845 :)
En Leverbaar in 6-20 werkdagen is niet voorraad in mijn boekje :Y)

Wellicht wilde je @ChUcKiE taggen?

[ Voor 4% gewijzigd door Source90 op 07-03-2022 22:12 ]


  • mevrouwKees_1
  • Registratie: December 2020
  • Laatst online: 10-04 15:44
@TAA wij koken op schiereiland en onze kookplaat is er 1 met afzuiging. De pijp gaat onder de vloer door en komt er in de garage weer uit. We hebben ook vloerverwarming.

Ik ben overal tegen. Tot ik een besluit neem, dan ben ik ervoor


  • LemonC200
  • Registratie: Januari 2009
  • Laatst online: 18-04 22:30
louzy82 schreef op maandag 7 maart 2022 @ 13:39:
We hebben onze eerste offerte ontvangen.
Deze komt van een interieurbouwer, een goede kennis, die veel ervaring heeft met keukens maar over het algemeen meer wat grotere projecten doen zoals een winkel of bijv een hele benedenverdieping van een villa.

Het betreft een L vormige keuken waarbij het korte stuk bestaat uit 3 hoge kasten met daarin Koelkast en 2 ovens. Verder zijn er alleen lage kasten, allemaal lades (14 stuks totaal)
Het blad is 20mm Silestone coral clay suede.
De lange zijde is 70 cm diep ipv 60cm voor wat extra aflegruimte/werkblad.
Fronten zijn afgewerkt met een matte houtlook met voelbare structuur (geen echt houtfineer, melamine dan? Decolegno LR33)

Een render volgt nog maar hieronder de indeling met maten:
[Afbeelding]

Apparatuur, alles van Siemens op de kraan na:
  • Koelkast KI81RSDE0 IQ500
  • Vaatwasser SN65Z800BE IQ500
  • Stoomoven HS836GTB6 IQ700
  • Oven HB876G5B6 IQ700
  • Kookplaat ED877FQ25E IQ500
  • Quooker combi+ Flex RVS
Totaal prijs: 25.500 euro

Qua indeling zijn wel tevreden, daar hebben we het al veelvuldig over gehad.

Ik ben vooral benieuwd naar jullie meningen over de prijs, die voor mijn gevoel behoorlijk aan de hoge kant is en de apparatuur (buiten dat het wellicht nog lastig gaat zijn om te verkrijgen)

Alvast vriendelijk bedankt wederom!
Het is geen lage prijs, maar ook niet extreem hoog. Bij een interieur bouwer betaal je ook voor de bijzondere mogelijkheden qua kleuren, wandbetimmering etc. Veder helpt een interieur bouwer je natuurlijk ook aan een goed advies.

Als je echt je best gaat doen ben je bij een andere zaak wel klaar met 18k. Alleen heb je dan geen hout look front, maar gewoon standaard fineer.

Daarnaast werken zulke partijen met professionals. Dus je hoeft niet zo bang te zijn dat ze een muur of vloer beschadigden.

Wel krijg je nog meer waar voor je geld als je ze vraagt een passende oplossing te maken voor de rest van de ruimte. Zoals verlichting, speelhoek, bar tafel.
Alles is vaak op maat dus je kan een kast in exacte dezelfde kleur krijgen als je keuken bijvoorbeeld.

  • Ferra
  • Registratie: Januari 2010
  • Niet online
Wij gaan binnenkort kijken voor een nieuwe keuken. Aangezien ik veel lees hier over DMG zaken en flink wat zaken in de startpost zie staan; wat is een goede zaak om te starten met kijken en een 1e offerte te krijgen waarbij je niet meteen het gevoel hebt dat er nog 50% af moet worden onderhandeld 😁?

  • pentaw1nz
  • Registratie: Mei 2013
  • Laatst online: 28-04 23:43
Hoe ziet bij jullie het gootsteenkastje er uit?

Is het normaal dat er geen achterwand wordt geplaatst ivm afvoer, wateraansluiting, elektra dat daar allemaal samenkomt?

Ik vraag dit omdat ik dit zie bij een kennis met een nieuwe keuken. Over 5 weken wordt bij ons de keuken geplaatst.

PV: 13 x LG Solar 320N1K-A5 - NeON2 / WP: Adlar Aurora II 6kw / WPB: Atlantic Explorer 200l / jaren 70 woning gasloos sinds 10-2024 / Peblar business laadpaal / 25kw plugin hybride


  • Toke_gt
  • Registratie: Juni 2021
  • Laatst online: 09:04
pentaw1nz schreef op dinsdag 8 maart 2022 @ 08:49:
Is het normaal dat er geen achterwand wordt geplaatst ivm afvoer, wateraansluiting, elektra dat daar allemaal samenkomt?
Is volgens mij vrij gebruikelijk, omdat de leidingen allemaal al zijn aangesloten en je er dus geen achterwand netjes omheen kunt plaatsen. Bovendien zou monteur dat ter plekke op maat moeten maken en dat vreet tijd.
Als het je heel erg stoort zou je een achterwandje kunnen plaatsen voor de afvoer etc. Wel zorgen dat je het ook weer kunt uitnemen voor als je bij afvoer of stopcontact vaatwasser moet zijn.

  • Griffin
  • Registratie: Maart 2003
  • Laatst online: 11:41

Griffin

Is mythical

pentaw1nz schreef op dinsdag 8 maart 2022 @ 08:49:
Hoe ziet bij jullie het gootsteenkastje er uit?

Is het normaal dat er geen achterwand wordt geplaatst ivm afvoer, wateraansluiting, elektra dat daar allemaal samenkomt?

Ik vraag dit omdat ik dit zie bij een kennis met een nieuwe keuken. Over 5 weken wordt bij ons de keuken geplaatst.
Bij ons zit er gewoon een achterplaat in en dan wat grote gaten erin voor de afvoer etc.

Hier zijn we er vandaag achter gekomen dat de overloop van de boiler niet goed aangesloten was, nu is alles helemaal nat en de kast is dus gaan werken (in 2 weken tijd). Gelukkig is de klantenservice heel makkelijk erin en is er een nieuwe kast besteld... ben benieuwd hoe ze dit gaan fixen.

  • william89
  • Registratie: September 2012
  • Laatst online: 09:16
twi schreef op maandag 7 maart 2022 @ 20:10:
Ik heb ze wel te pakken. Naast de projectleverancier nu ook de tweede keukenzaak die geen kookplaat met inbouw wil leveren in een 60cm diep blad. "Die 5cm is wel echt nodig". Ga het bij 1 of 2 andere zaken nog maar proberen maar ben serieus aan het nadenken de indeling van de keuken wat om te gooien. Helaas is de keukenruimte niet zo breed (2885mm) en zijn we ook niet zo'n fan van (schier)eilanden.

Uitdagingen
  • Zowel links als rechts van het raam is het geen 650mm (maar "circa" 630mm)
  • Raam begint op 700mm hoogte, dus ruim onder het keukenblad
  • Moet een recirculatie afzuiging zijn
  • Persoonlijke keuzes: geen afzuigkap en liever geen onnodige koof in het plafond voor een plafondafzuiging
Wat vind je van het volgende:

Tegen de gang een kastenwand van 60cm diep en netjes tegen voorgevel aan.
Tegen de buitenmuur een aanrecht van 65cm diep en dan tot 40-60 cm uit de voorgevel, zodat je daar een prullenbak plaatst of iets dergelijks?

  • william89
  • Registratie: September 2012
  • Laatst online: 09:16
..

[ Voor 99% gewijzigd door william89 op 08-03-2022 10:28 . Reden: reactie werd niet geplaatst ]


  • xminator
  • Registratie: Maart 2006
  • Laatst online: 15:35
mevrouwKees_1 schreef op maandag 7 maart 2022 @ 22:47:
@TAA wij koken op schiereiland en onze kookplaat is er 1 met afzuiging. De pijp gaat onder de vloer door en komt er in de garage weer uit. We hebben ook vloerverwarming.
Hebben jullie een oude woning? Hoe doe je dat met luchttoevoer als de afzuiging aanstaat?

  • Dj-sannieboy
  • Registratie: Augustus 2004
  • Niet online

Dj-sannieboy

Nee.... beter!

pentaw1nz schreef op dinsdag 8 maart 2022 @ 08:49:
Hoe ziet bij jullie het gootsteenkastje er uit?

Is het normaal dat er geen achterwand wordt geplaatst ivm afvoer, wateraansluiting, elektra dat daar allemaal samenkomt?

Ik vraag dit omdat ik dit zie bij een kennis met een nieuwe keuken. Over 5 weken wordt bij ons de keuken geplaatst.
Hier vroeg de monteur of we ‘m wel of niet wilde. Heb gezegd dat ik het niet nodig vind, want is wel handig om makkelijk bij de filterstopkranen e.d. te kunnen.

  • Floor-is
  • Registratie: Maart 2000
  • Laatst online: 28-04 23:35
mitsumark schreef op maandag 7 maart 2022 @ 21:30:
[...]

Is er geen kruipruimte?
Tussen vloerverwarming door kun je gewoon een gat boren. Tegen de muur aan ook.
En zelfs als je je vloerverwarming raakt: dat kan gewoon gefikst. :)

Wij moeten dadelijk ook een aantal gaten maken in een vloer waar vloerverwarming zit, 75 rond terwijl er 83mm ruimte tussen de buizen is als deze perfect zou liggen.. De kans is om en nabij 99% dat we vloerverwarming gaan raken: is niet anders, repareren dan en door. :)

Bericht hierboven


  • Floor-is
  • Registratie: Maart 2000
  • Laatst online: 28-04 23:35
TAA schreef op maandag 7 maart 2022 @ 22:01:
[...]


Geen kruipruimte; langs muren kan ook niet omdat er langs alle kanten deuren en puien met kozijnen tot aan het plafond zitten... serieus naar de opties gekeken.
Oh Jezus, geen kruipruimte is wel echt een issue. Daar hield ik weinig rekening mee inderdaad..

Bericht hierboven


  • Basekid
  • Registratie: Maart 2004
  • Laatst online: 14:14
Daar ben ik weer... bijna klaar hoor! Jullie zijn bijna van mij af ;)


Toch besloten voor de L-vorm keuken te gaan. Geeft inderdaad toch meer ruimte dan verwacht. Enige waar ik nu mee zit is hoeveel bovenkastjes. Mijn idee is nu dit:
Afbeeldingslocatie: https://tweakers.net/i/C7MfM9oJL-h-R9fh_nRLR6jBduk=/800x/filters:strip_exif()/f/image/RMWH8RZ1Ytp8AJBcIYseLmWQ.png?f=fotoalbum_large

Er komt een (schuine) wandafzuigkap van 90cm breed. In bovenstaande plaatje is een placeholder van dezelfde afmeting. Waar ik nu dus over twijfel is de hoeveelheid ruimte tussen de afzuigkap en de bovenkastjes. In bovenstaande plaatje is het 150mm. Ik zou wat kastjes kunnen weghalen om het bijv 300mm te maken, maar dan verlies ik wel opslagruimte. Voordeel is wel dat het misschien wat rustiger oogt.

Wat denken jullie?

  • twi
  • Registratie: Februari 2000
  • Laatst online: 27-03 13:15

twi

Vind ik een goed idee. Maar helaas vindt de baas dat niet zo leuk, haha. Snap het wel, het werkblad is doorgaans rommeliger na het koken en wanneer we de kanten omwisselen is dat meer in het zicht. Ik ben de optie schiereiland er al voorzichtig aan het inkneden, haha.

  • mevrouwKees_1
  • Registratie: December 2020
  • Laatst online: 10-04 15:44
xminator schreef op dinsdag 8 maart 2022 @ 10:45:
[...]

Hebben jullie een oude woning? Hoe doe je dat met luchttoevoer als de afzuiging aanstaat?
Nee. Huis uit half jaren 90. Hoezo luchttoevoer? Ding staat toch in de keuken. Die zuigt gewoon lucht uit de lucht ;) begrijp je vraag niet zo goed.

Ik ben overal tegen. Tot ik een besluit neem, dan ben ik ervoor


  • knights16
  • Registratie: Augustus 2000
  • Laatst online: 27-04 21:06
Iemand toevallig recent nog wat BSH spul uitgeleverd gekregen en zoja, wat heb je geleverd gekregen en wanneer had je je keuken besteld? Keuken besteld in juni vorig jaar, geplaatst in december en nog wachtend op twee neff ovens. De koelvriescombinatie, en vaatwasser waren er (neff spul) net zoals bora xpure.

PVoutput


  • Toke_gt
  • Registratie: Juni 2021
  • Laatst online: 09:04
Basekid schreef op dinsdag 8 maart 2022 @ 11:39:
Er komt een (schuine) wandafzuigkap van 90cm breed. In bovenstaande plaatje is een placeholder van dezelfde afmeting. Waar ik nu dus over twijfel is de hoeveelheid ruimte tussen de afzuigkap en de bovenkastjes. In bovenstaande plaatje is het 150mm. Ik zou wat kastjes kunnen weghalen om het bijv 300mm te maken, maar dan verlies ik wel opslagruimte. Voordeel is wel dat het misschien wat rustiger oogt.
Als je een schuine afzuigkap kiest, komt die wel beter tot zijn recht als er geen kastjes omheen hangen. Maar je verliest daar wel ruimte mee, die je best hard nodig hebt in je keuken. Is het een idee om een kap/systeem te kiezen dat meer in lijn is met bovenkastjes? Of eventueel een dubbele rij (diep/ondiep), met in ondiepe onderste rij de afzuiginstallatie?
Bijvoorbeeld:
Afbeeldingslocatie: https://tweakers.net/i/Ox591bEDazIPIATy-ruHTD_yya8=/full-fit-in/4920x3264/filters:max_bytes(3145728):no_upscale():strip_icc():fill(white):strip_exif()/f/image/u2lfVDPNHkIJDWGgify1xlMq.jpg?f=user_large

  • PaT
  • Registratie: April 2003
  • Niet online

PaT

Moderator Mobile

Ja, dat mod

franssie schreef op maandag 7 maart 2022 @ 21:53:
[...]

Wil je dat toelichten, waarom is dat ding fantastisch en het geld waard?
En ook, waarbij gebruik je het waar iets anders niet zou lukken?
Het is best veel extra en iedereen kookt anders, dus ik ben wel benieuwd waarom het voor jouw huishouden zo een groot verschil maakt (veel mensen met een oven gebruiken die nooit, ik heb er zelf twee omdat ik ook vaak twee ovens gebruik maar een stoomfunctie heb ik nog nooit gemist, dus oprechte interesse)
Voor de aanschaf van onze keuken en dit apparaat mistte ik ook de stoomoven niet. Na aanschaf bleek dat we hem veel vaker dan gedacht zijn gaan gebruiken. 2 a 3 keer per week bereiden wij onze groenten in die oven. Dat gaat prima en is dus een kwestie van instellen en gaan. Eerst de groenten en even later de aardappels, het apparaat geeft het keurig aan zodat er echt voor je gekookt wordt. Bij een traditionele Hollandse maaltijd kan je dus je focus volledig richten op je vlees.
Ik wil nog eens een keer rijst bereiden in de stoomoven, maar daar moet ik eerst een goede schaal voor kopen.

Ook bij bepaald gebak is de stoomfunctie heel fijn en maakt het net wat krokanter dan een traditionele oven.

Wat ik ook heel fijn vind is de opzet van de menustructuur. Die is logisch, goed doordacht en best snel.

Is het dan alleen maar gejubel? Nee. Sommige van de geautomatiseerde programma's zijn echt slecht. De oven heeft ooit een rollade verziekt door de kerntemperatuur tot 85 graden te verhogen. Die doen we dus tegenwoordig handmatig, maar bijvoorbeeld kippenpoten komen echt fantastisch uit onze DGC7865X.

Tenslotte wilden wij graag een greeploos design en dat kon destijds alleen bij Miele. En omdat we bij Tweakers zitten. Het geautomatiseerde bedieningspaneel dat omhoog komt waarachter je draadloze bratometer en waterreservoir zit (gebruik je alleen bij ontkalken) ziet er gewoon super uit.

Groot genoeg voor 2 hoofdletters


  • Basekid
  • Registratie: Maart 2004
  • Laatst online: 14:14
Toke_gt schreef op dinsdag 8 maart 2022 @ 12:52:
[...]

Als je een schuine afzuigkap kiest, komt die wel beter tot zijn recht als er geen kastjes omheen hangen. Maar je verliest daar wel ruimte mee, die je best hard nodig hebt in je keuken. Is het een idee om een kap/systeem te kiezen dat meer in lijn is met bovenkastjes? Of eventueel een dubbele rij (diep/ondiep), met in ondiepe onderste rij de afzuiginstallatie?
Bijvoorbeeld:
[Afbeelding]
Mmm goed punt, echter heb ik bij kastjes snel het idee dat het redelijk in de weg zit van mn hoofd. Ik ben niet per se erg lang (1.84m), maar merk dat met kastjes dat je vaak wel met je voorhoofd in die dingen hangt.


Met een iets andere kastjesindeling (30cm+40cm) ziet het er al wat rustiger uit:

Afbeeldingslocatie: https://tweakers.net/i/oBajImMbkGrDoZs7haJO_3sJS_M=/800x/filters:strip_exif()/f/image/T4znIAD2Yzd02hTjMZGG01sW.png?f=fotoalbum_large

[ Voor 38% gewijzigd door Basekid op 08-03-2022 13:57 ]


  • xminator
  • Registratie: Maart 2006
  • Laatst online: 15:35
mevrouwKees_1 schreef op dinsdag 8 maart 2022 @ 12:17:
[...]


Nee. Huis uit half jaren 90. Hoezo luchttoevoer? Ding staat toch in de keuken. Die zuigt gewoon lucht uit de lucht ;) begrijp je vraag niet zo goed.
Moderne woningen zijn dermate goed luchtdicht gebouwd dan wel met een balansventilatie dat als je alleen een luchtafvoer hebt je hele huis vacuum zuigt als je dat ding aanzet naar buiten toe. Dus je moet dan nog extra maatregelen nemen, was benieuwd of en zo ja wat dat is geweest.

  • louzy82
  • Registratie: Juni 2011
  • Laatst online: 22-04 15:34
Floor-is schreef op maandag 7 maart 2022 @ 18:48:
[...]
Bovenstaande vragen gelden ook voor jou hier :)

Hoeveel is van dat bedrag voor:
- Apparatuur
- Werkblad
- Plaatsen

Dan weet je wat het kastenwerk kost immers. Ben benieuwd!
De prijsopbouw is als volgt:
Apparatuur: 8.060
Werkblad: 2.940
Kastwerk: 12.500
Plaatsen: 2.000

[ Voor 67% gewijzigd door louzy82 op 08-03-2022 14:05 ]

Louzy#2475


  • Petermans
  • Registratie: September 2008
  • Laatst online: 11-03-2024
Hier ook aan het kijken voor een nieuwe keuken, bij een zaak die niet bij de grote M-groep zit. Nu gun ik iedereen z´n gezonde marge maar de apparatuur is elders 3600 euro goedkoper te krijgen. Idee is om dit dan later te laten monteren door een derde partij, maar dat voelt toch ook niet lekker op een keuken van 35k+. Keukenzaak lijkt niet te bewegen in dezen. Elders kijken kan natuurlijk ook, maar de keuken is verder qua indeling en afwerking wel precies wat wij zoeken. Wat zouden jullie doen?

  • Marttin
  • Registratie: Maart 2011
  • Laatst online: 27-04 10:25
knights16 schreef op dinsdag 8 maart 2022 @ 12:27:
Iemand toevallig recent nog wat BSH spul uitgeleverd gekregen en zoja, wat heb je geleverd gekregen en wanneer had je je keuken besteld? Keuken besteld in juni vorig jaar, geplaatst in december en nog wachtend op twee neff ovens. De koelvriescombinatie, en vaatwasser waren er (neff spul) net zoals bora xpure.
Wij hebben in mei 2020 getekend voor de keuken en in mei 2021 onze keuken besteld bij Keukensale met Siemens apparatuur. Plaatsing was half augustus '21 en toen ontbraken onze kookplaat, bakoven en espresso apparaat.

Half oktober kwamen de kookplaat en bakoven dan eindelijk. Het espresso apparaat wachten we nog steeds op maar ik kreeg vorige week een e-mail dat deze op 17 maart wordt geplaatst.

Het geduld raakt op een gegeven moment wel een beetje op :( Niet zo happy met Keukensale omdat ze van alles aan ons hebben verkocht terwijl ze wisten dat het moeilijk leverbaar zou zijn. De communicatie is na bestelling ook om te huilen. Pro-actief zijn ze hierin zeker niet.

Apparatuur:

Kookplaat met afzuiging: ED777FQ25E
Warmhoudlade: BI830CNB1
Oven: HB836GTB6
Espresso apparaat: CT836LEB6
Koel/vries combi: KI87V5SF0
Vaatwasser: SN65Z800BE

  • Dj-sannieboy
  • Registratie: Augustus 2004
  • Niet online

Dj-sannieboy

Nee.... beter!

knights16 schreef op dinsdag 8 maart 2022 @ 12:27:
Iemand toevallig recent nog wat BSH spul uitgeleverd gekregen en zoja, wat heb je geleverd gekregen en wanneer had je je keuken besteld? Keuken besteld in juni vorig jaar, geplaatst in december en nog wachtend op twee neff ovens. De koelvriescombinatie, en vaatwasser waren er (neff spul) net zoals bora xpure.
Wij wachten alleen nog op een Bosch vaatwasser, oven is vorige maand geleverd. Keuken is in december geplaatst.

Update: Inmiddels vernomen dat de vaatwasser binnen is. De keuken is dus bijna echt af.

[ Voor 7% gewijzigd door Dj-sannieboy op 12-03-2022 08:37 ]


  • Huisje1
  • Registratie: Januari 2020
  • Laatst online: 03-11-2023
Petermans schreef op dinsdag 8 maart 2022 @ 14:06:
Hier ook aan het kijken voor een nieuwe keuken, bij een zaak die niet bij de grote M-groep zit. Nu gun ik iedereen z´n gezonde marge maar de apparatuur is elders 3600 euro goedkoper te krijgen. Idee is om dit dan later te laten monteren door een derde partij, maar dat voelt toch ook niet lekker op een keuken van 35k+. Keukenzaak lijkt niet te bewegen in dezen. Elders kijken kan natuurlijk ook, maar de keuken is verder qua indeling en afwerking wel precies wat wij zoeken. Wat zouden jullie doen?
Zou je wel tevreden zijn met de totaalprijs, als je meer korting had gekregen op de apparatuur en minder op de rest? Het gaat uiteindelijk om het uiteindelijke bedrag onder de streep. Het lijkt me dat veel zaken de internet prijzen van apparatuur niet halen. Als je verder helemaal blij bent met de keuken en vertrouwen in de keukenzaak hebt dan zou ik liever alles daar aanschaffen en laten installeren, ook geen gezeur als er iets beschadigd. Maar alsnog is het wel veel geld natuurlijk….

  • william89
  • Registratie: September 2012
  • Laatst online: 09:16
twi schreef op dinsdag 8 maart 2022 @ 12:02:
[...]

Vind ik een goed idee. Maar helaas vindt de baas dat niet zo leuk, haha. Snap het wel, het werkblad is doorgaans rommeliger na het koken en wanneer we de kanten omwisselen is dat meer in het zicht. Ik ben de optie schiereiland er al voorzichtig aan het inkneden, haha.
Snap ik, en uiteindelijk bepaalt de baas altijd... >:) Nadeel van schiereiland is wel dat het optisch de ruimte blokkeert.

Eventueel mijn idee plus een room devider, met van die houten balken waar alle Interieur Insta accounts tegenwoordig vol staan? Zie: https://i.pinimg.com/564x...bb9d326e16fa6fb341c42.jpg

  • Petermans
  • Registratie: September 2008
  • Laatst online: 11-03-2024
Huisje1 schreef op dinsdag 8 maart 2022 @ 14:25:
[...]


Zou je wel tevreden zijn met de totaalprijs, als je meer korting had gekregen op de apparatuur en minder op de rest? Het gaat uiteindelijk om het uiteindelijke bedrag onder de streep. Het lijkt me dat veel zaken de internet prijzen van apparatuur niet halen. Als je verder helemaal blij bent met de keuken en vertrouwen in de keukenzaak hebt dan zou ik liever alles daar aanschaffen en laten installeren, ook geen gezeur als er iets beschadigd. Maar alsnog is het wel veel geld natuurlijk….
De offerte was gespecificeerd en daarmee ook te vergelijken met een eerdere offerte van een andere keukenboer. Dat ze niet helemaal meekunnen met internet dat snap ik wel (maar eigenlijk ook weer niet), maar dit verschil kan ik voor mezelf niet goedpraten. Er wordt voor dat geld nul waarde toegevoegd. Sterker, feitelijk ligt het risico op tijdig en op de juiste plaats krijgen van de apparaten bij mij. Daar zou ik ook best voor willen tekenen.

  • Streamz
  • Registratie: Januari 2006
  • Laatst online: 11:05
Basekid schreef op dinsdag 8 maart 2022 @ 13:12:
[...]


Mmm goed punt, echter heb ik bij kastjes snel het idee dat het redelijk in de weg zit van mn hoofd. Ik ben niet per se erg lang (1.84m), maar merk dat met kastjes dat je vaak wel met je voorhoofd in die dingen hangt.


Met een iets andere kastjesindeling (30cm+40cm) ziet het er al wat rustiger uit:

[Afbeelding]
Ik zie allerlei horizontale lijnen (greep lijsten neem ik aan), verschillende maten kastjes zowel in de breedte als in de hoogte, passtroken en een type afzuigkap waar toch echt mooiere oplossingen voor zijn.

Ik neem aan dat je dit zelf bij elkaar hebt getekend met een of andere planner?

  • Basekid
  • Registratie: Maart 2004
  • Laatst online: 14:14
Streamz schreef op dinsdag 8 maart 2022 @ 15:26:
[...]


Ik zie allerlei horizontale lijnen (greep lijsten neem ik aan), verschillende maten kastjes zowel in de breedte als in de hoogte, passtroken en een type afzuigkap waar toch echt mooiere oplossingen voor zijn.

Ik neem aan dat je dit zelf bij elkaar hebt getekend met een of andere planner?
Klopt, meeste is wel op te lossen door overal 3 lades te nemen (helaas is er een blind front nodig bij de wasbak volgens de IKEA adviseur, anders was ik voor 2 lades gegaan). Het enige wat altijd blanco blijft is de hoekkast, dat is wel erg zuur. De afzuigkap wordt inderdaad een schuine/muur variant.

Qua passtroken valt het verder wel mee toch? Er is er maar 1tje (helemaal links) en die is helaas nodig omdat ik de oven/kast niet tegen de muur kan zetten (blijkbaar).

  • Toke_gt
  • Registratie: Juni 2021
  • Laatst online: 09:04
Basekid schreef op dinsdag 8 maart 2022 @ 13:12:
[...]
Mmm goed punt, echter heb ik bij kastjes snel het idee dat het redelijk in de weg zit van mn hoofd. Ik ben niet per se erg lang (1.84m), maar merk dat met kastjes dat je vaak wel met je voorhoofd in die dingen hangt.
Daarom dus een onderste rij ondiepe kastje (ik denk 20 cm) die blijkbaar toch die genoeg zijn om een afzuiginstallatie in te verbergen. Misschien eens bij een keukenzaak binnenlopen voor je beeldvorming en dat namaken. Andere oplossing is een rechte schouw rond je afzuiging maken en die in dezelfde kleur verven als de wand. Dan kun je er rechts prima kastjes tegenaan zetten.

  • Toke_gt
  • Registratie: Juni 2021
  • Laatst online: 09:04
Basekid schreef op dinsdag 8 maart 2022 @ 15:50:
[...]
Klopt, meeste is wel op te lossen door overal 3 lades te nemen (helaas is er een blind front nodig bij de wasbak volgens de IKEA adviseur, anders was ik voor 2 lades gegaan). Het enige wat altijd blanco blijft is de hoekkast, dat is wel erg zuur. De afzuigkap wordt inderdaad een schuine/muur variant.
Is dat echt nodig, dat blinde frontje? Ik heb een ladenkast onder de wasbak: twee lades met binnenin een blende om de spoelbak af te dekken. Aan de buitenkant oogt het net als de andere ladenkasten, die twee laden en een binnenlade hebben. Ziet er strak uit en is enorm verschil met ladenkasten met drie laden die ze per ongeluk hadden geleverd. Enige wat aangepast moest worden was bovenste lade in de spoelkast. Bij bovenste la moest klein stukje uitgezaagd worden. Is netjes afgewerkt door monteur. Als je daar geen probleem in ziet, kun je dus een gewone tweeladenkast nemen en die wat aanpassen.

  • Nuevocasa
  • Registratie: November 2010
  • Laatst online: 28-04 23:15
Olga2000 schreef op zaterdag 5 maart 2022 @ 14:50:
[...]

:) Dank je! Kan je ook een foto maken van onderkant van je vaatwasser en de schuine kant van het frontje? Alvast bedankt! _/-\o_
Even bij m'n ouders bekeken en bij hun is het exact het zelfde. Keuken is 5 jaar ouder.

  • Nuevocasa
  • Registratie: November 2010
  • Laatst online: 28-04 23:15
Afbeeldingslocatie: https://tweakers.net/i/EO1QoZ-huL6ElnQPZoyRV2010hs=/x800/filters:strip_icc():strip_exif()/f/image/dTLOy0uBCIJ5r0RKbpkjFitL.jpg?f=fotoalbum_large

[ Voor 194% gewijzigd door Nuevocasa op 08-03-2022 16:03 ]


  • Basekid
  • Registratie: Maart 2004
  • Laatst online: 14:14
Nu er allemaal opmerkingen komen over de afzuigkap, wil ik het eens over een andere boeg gooien qua indeling; een Bora PURU. Echter kan ik nergens vinden of dit past in een 80cm ikea kastje (die voor recirulatie). Het lijkt alsof er een heel filtersysteem achter je keukenkastje komt? Dat lijkt me toch niet echt te passen...

De afmetingen van de plaat en motor lijken echter niet veel groter dan de inbouwafzuiging die IKEA zelf bied...

Heeft iemand hier ervaring mee?

  • SquareOne
  • Registratie: Januari 2010
  • Laatst online: 12:56
Basekid schreef op dinsdag 8 maart 2022 @ 16:34:
Nu er allemaal opmerkingen komen over de afzuigkap, wil ik het eens over een andere boeg gooien qua indeling; een Bora PURU. Echter kan ik nergens vinden of dit past in een 80cm ikea kastje (die voor recirulatie). Het lijkt alsof er een heel filtersysteem achter je keukenkastje komt? Dat lijkt me toch niet echt te passen...

De afmetingen van de plaat en motor lijken echter niet veel groter dan de inbouwafzuiging die IKEA zelf bied...

Heeft iemand hier ervaring mee?
PURU past in 80cm. Geen buizensysteem achter kastje.
PUXU past in 90cm. Geen buizensysteem achter kastje.

PURA en PUXA hebben wel buizensysteem want geen recirculatie.

@Basekid bij PUXU stond nog een typo, moet zijn 90cm ipv 80cm.

[ Voor 4% gewijzigd door SquareOne op 08-03-2022 19:08 ]


  • Floor-is
  • Registratie: Maart 2000
  • Laatst online: 28-04 23:35
louzy82 schreef op dinsdag 8 maart 2022 @ 14:04:
[...]


De prijsopbouw is als volgt:
Apparatuur: 8.060
Werkblad: 2.940
Kastwerk: 12.500
Plaatsen: 2.000
Voor een meubelmaker echt niet duur!
Je hebt 3x hoog en 7x laag zo te zien, met een ietwat lastig passtuk en misschien nog een passtuk aan de muurzijde. :)

Bericht hierboven


  • PaT
  • Registratie: April 2003
  • Niet online

PaT

Moderator Mobile

Ja, dat mod

xminator schreef op dinsdag 8 maart 2022 @ 13:56:
[...]

Moderne woningen zijn dermate goed luchtdicht gebouwd dan wel met een balansventilatie dat als je alleen een luchtafvoer hebt je hele huis vacuum zuigt als je dat ding aanzet naar buiten toe. Dus je moet dan nog extra maatregelen nemen, was benieuwd of en zo ja wat dat is geweest.
Halverwege jaren 90 zal dat nog niet aan de orde zijn geweest. Daar zal de toevoer via roosters gebeuren.

Groot genoeg voor 2 hoofdletters


  • Source90
  • Registratie: December 2008
  • Laatst online: 14:32
Z___Z schreef op maandag 7 maart 2022 @ 16:01:
[...]

Wij missen ook nog de Koelkast: Liebherr: IRBE 5120, afzuigkap Novy Flatline en Vaatwasser Miele G 7150 SCVi. Weinig hoopvol dus als ik naar jou lijstje kijk dat we dit geleverd krijgen in juli....
Members only:
Alleen zichtbaar voor ingelogde gebruikers. Inloggen

  • SquareOne
  • Registratie: Januari 2010
  • Laatst online: 12:56
Klinkt goed.

Zouden ze onderaan de streep nog wat marge over hebben :D?

Waarschijnlijk is het soms goedkoper voor ze om iemand een upgrade te geven wat in één ritje mee kan, i.p.v. nog een keer een ritje + monteur op later moment.

  • Z___Z
  • Registratie: Maart 2002
  • Niet online
Wel Nice gratis upgrades! Hoe hoger in de range je iets koopt hoe hoger de retail marge is. Dus qua kosten voor de verkoper valt het meestal mee tov de waarde voor de eindklant.

  • Source90
  • Registratie: December 2008
  • Laatst online: 14:32
SquareOne schreef op dinsdag 8 maart 2022 @ 17:29:
[...]


Klinkt goed.

Zouden ze onderaan de streep nog wat marge over hebben :D?

Waarschijnlijk is het soms goedkoper voor ze om iemand een upgrade te geven wat in één ritje mee kan, i.p.v. nog een keer een ritje + monteur op later moment.
Begin het wel af te vragen met deze apparatuur en de prijs van de keuken, in vergelijking met de prijzen die ik tegenwoordig hier langs zie komen :X

Alhoewel wij niet een hele hoge prijsgroep qua kasten hebben, daar zal wel wat marge zitten.

  • Streamz
  • Registratie: Januari 2006
  • Laatst online: 11:05
Basekid schreef op dinsdag 8 maart 2022 @ 16:34:
Nu er allemaal opmerkingen komen over de afzuigkap, wil ik het eens over een andere boeg gooien qua indeling; een Bora PURU. Echter kan ik nergens vinden of dit past in een 80cm ikea kastje (die voor recirulatie). Het lijkt alsof er een heel filtersysteem achter je keukenkastje komt? Dat lijkt me toch niet echt te passen...

De afmetingen van de plaat en motor lijken echter niet veel groter dan de inbouwafzuiging die IKEA zelf bied...

Heeft iemand hier ervaring mee?
Je kan je beter eerst afvragen waarom je Ikea zou willen. Nog even los van de beroerde kwaliteit zitten er voor jou teveel beperkingen aan om tot een mooi en goed resultaat te komen. En dan is elke prijs te hoog natuurlijk.

  • Oliesjeik1
  • Registratie: Augustus 2004
  • Laatst online: 28-04 21:40
Beste mensen,

Vraagje: ik zoek dit type greep (zie plaatje hieronder).
Enig idee:
a. Wat de naam van zo'n greep is?
b. waar deze te koop zijn?
c. als je greep in dezelfde kleur als het front wil hebben of het mogelijk is zo iets te (laten) fabriceren door een aantal frontjes te kopen en zelf te maken bijvoorbeeld?

Afbeeldingslocatie: https://tweakers.net/i/NxddgHcAceyoTcIoGZdRQEIVqyc=/x800/filters:strip_exif()/f/image/KbCvaZofk5HYpQoWjW4iPTrL.png?f=fotoalbum_large

UPDATE:
Dus eigenlijk zo'n type greep zoeken we maar dan het liefst in exact dezelfde kleur als het frontje...
Frontje is btw houtfineer walnoot...


Afbeeldingslocatie: https://tweakers.net/i/IYVObClak6PKGNNMjU04jcL2nck=/full-fit-in/4000x4000/filters:no_upscale():fill(white):strip_exif()/f/image/qlV3GyNHFEkvSP3JdXhAvXkb.png?f=user_large

[ Voor 65% gewijzigd door Oliesjeik1 op 08-03-2022 20:09 ]

d'n oliesjeik


  • Thomas19903
  • Registratie: April 2012
  • Laatst online: 07:52
Oliesjeik1 schreef op dinsdag 8 maart 2022 @ 19:49:
Beste mensen,

Vraagje: ik zoek dit type greep (zie plaatje hieronder).
Enig idee:
a. Wat de naam van zo'n greep is?
b. waar deze te koop zijn?
c. als je greep in dezelfde kleur als het front wil hebben of het mogelijk is zo iets te (laten) fabriceren door een aantal frontjes te kopen en zelf te maken bijvoorbeeld?

[Afbeelding]
Ha leuk om te zien! Mijn vriendin was helemaal fan van deze style. De style heet volgens mij Japandi (mix tussen Scandinavisch en Japans...). Wij hebben geen merk gevonden die dit heeft en zijn daarom naar een meubelmaker gedaan, uiteindelijk niet gedaan vanwege de hoge kosten. Alternatieve zoals zelf het erop zetten hebben wij niet gevonden, althans die mooi zijn. Daarnaast is de keuken iets minder praktisch als je bijv. kinderen hebt met al die uitstekende elementen.

  • ChUcKiE
  • Registratie: September 1999
  • Laatst online: 09:41

ChUcKiE

Dus........

Dat was toch een Liebherr? Als je de echt dure krijgt mag je wel een extra vaste wateraansluiting maken of aftakken van die van de stoomoven. Wie weet zit er dan de infinity spring optie op 😜.

http://eu.battle.net/d3/en/profile/ChUcKiE-1330/hero/807720


  • Oliesjeik1
  • Registratie: Augustus 2004
  • Laatst online: 28-04 21:40
Thomas19903 schreef op dinsdag 8 maart 2022 @ 20:09:
[...]


Ha leuk om te zien! Mijn vriendin was helemaal fan van deze style. De style heet volgens mij Japandi (mix tussen Scandinavisch en Japans...). Wij hebben geen merk gevonden die dit heeft en zijn daarom naar een meubelmaker gedaan, uiteindelijk niet gedaan vanwege de hoge kosten. Alternatieve zoals zelf het erop zetten hebben wij niet gevonden, althans die mooi zijn. Daarnaast is de keuken iets minder praktisch als je bijv. kinderen hebt met al die uitstekende elementen.
Haha, hebben onze vriendinnen met elkaar gesproken? :)
De stijl is inderdaad Japandi .
Jammer dat je niets gevonden hebt van de grepen. We denken zelf de verticale 'lijst' wel te kunnen realiseren maar de grepen is een ander verhaal. Vooral als we dezelfde kleur willen als het frontje..

d'n oliesjeik


  • SquareOne
  • Registratie: Januari 2010
  • Laatst online: 12:56
Oliesjeik1 schreef op dinsdag 8 maart 2022 @ 20:18:
[...]


Haha, hebben onze vriendinnen met elkaar gesproken? :)
De stijl is inderdaad Japandi .
Jammer dat je niets gevonden hebt van de grepen. We denken zelf de verticale 'lijst' wel te kunnen realiseren maar de grepen is een ander verhaal. Vooral als we dezelfde kleur willen als het frontje..
Ik denk dat de enige optie een meubelmaker is die ook de fronten maakt. Anders ga je altijd kleurverschillen zien, dat wil je niet in deze stijl.

  • Angriebirdie
  • Registratie: Januari 2022
  • Laatst online: 13-04 21:31
Iemand ervaringen met dit apparaat? Klinkt te mooi om waar te zijn dat het alle functies in 1 heeft? Oven, magnetron, stoom en pyrolyse.

Afbeeldingslocatie: https://tweakers.net/i/d2pfi1qJ_0XkqI8JWyHJek1YPDg=/x800/filters:strip_icc():strip_exif()/f/image/IZQ4N9hKafWfLXahAQ8w8v9p.jpg?f=fotoalbum_large

  • Bart0ving
  • Registratie: Juni 2011
  • Laatst online: 13-01 12:11
Angriebirdie schreef op dinsdag 8 maart 2022 @ 21:55:
Iemand ervaringen met dit apparaat? Klinkt te mooi om waar te zijn dat het alle functies in 1 heeft? Oven, magnetron, stoom en pyrolyse.

[Afbeelding]
Probeer de zoekfunctie eens in combinatie met HN878.

  • Floor-is
  • Registratie: Maart 2000
  • Laatst online: 28-04 23:35
chefswitch schreef op maandag 7 maart 2022 @ 16:58:
[...]


Ah zo! Dat is nu dus ook al het geval. Wat niet duidelijk was is dat de trap een kwartdraai heeft onderin.

Maar heb je een ander idee qua keuken? Wij zitten een beetje vast op dit plaatje, na heel wat geschuif kom ik elke keer weer hier op uit.
Persoonlijk vind ik dat je te weinig ruimte hebt voor een eiland. Dus ik zou een L doen :)

Bericht hierboven


  • Floor-is
  • Registratie: Maart 2000
  • Laatst online: 28-04 23:35
Oliesjeik1 schreef op dinsdag 8 maart 2022 @ 19:49:
Beste mensen,

Vraagje: ik zoek dit type greep (zie plaatje hieronder).
Enig idee:
a. Wat de naam van zo'n greep is?
b. waar deze te koop zijn?
c. als je greep in dezelfde kleur als het front wil hebben of het mogelijk is zo iets te (laten) fabriceren door een aantal frontjes te kopen en zelf te maken bijvoorbeeld?

[Afbeelding]

UPDATE:
Dus eigenlijk zo'n type greep zoeken we maar dan het liefst in exact dezelfde kleur als het frontje...
Frontje is btw houtfineer walnoot...


[Afbeelding]
Dit ga je niet gemakkelijk bij een fabriek vinden, is meer meubelmakers- en maatwerk. Kosten zijn serieus ook, je moet als meubelmaker op een andere manier de korpussen maken (of enorm valsspelen en tussen elke kast een stollenwand). Hierdoor zit je met je bevestiging, schroefwerk voor lades en nog meer.

Zou mij niet verbazen als je voor een standaard setup van 4x hoog en eiland van 306x120 moet rekenen vanaf €25k voor het kastenwerk, dat is misschien zelfs nog te goedkoop ingeschat zelfs.

Bericht hierboven


  • Skix_Aces
  • Registratie: Oktober 2015
  • Laatst online: 28-04 10:36
Ik ben voor mijn nieuwbouwwoning op zoek naar een keuken. Afgelopen weekend ben ik bij verschillende keukenboeren langsgeweest, waardoor ik nu een beter beeld heb van wat mogelijk is binnen de ruimte. Hieronder is een situatietekening zoals ik die van de aannemer heb gekregen.

Afbeeldingslocatie: https://tweakers.net/i/K8dpoez9J26co8wBCkwCYCuo7o0=/800x/filters:strip_exif()/f/image/raDBoS7V1VYrlydrLy3qb5eX.png?f=fotoalbum_large

Het is een mooi hoekje waar een redelijk ruime keuken te realiseren is. Het uitzicht van het keukenraam is een mooi stuk groen dus we willen zeker de keuken voor het raam plaatsen om van het uitzicht te kunnen genieten. We hebben samen met de keukenboer een keuken opgesteld in een U-vorm, waarbij het blad nog een stukje doorloopt als hij het hoekje om is. Vervolgens staan er 3 hoge kasten waar de koelkast, diepvries, en combi- oven in geplaatst zijn. Het lage kastje langs de spoelbak bied plaats voor de vaatwasser. Hieronder zijn de tekeningen die ik zelf heb gemaakt via een keukenontwerp tool. De tekening is echter wel 2cm te breed (250cm ipv 248cm) omdat ik de maat van de hoekkastjes in die tool niet 1cm kon inkorten |:(.

Afbeeldingslocatie: https://tweakers.net/i/LY_tvhfNX0riqdcw3AjxENM27Rk=/232x232/filters:strip_exif()/f/image/EL78iFZdkZFRtlmdsdKeUyim.png?f=fotoalbum_tileAfbeeldingslocatie: https://tweakers.net/i/qY64gQ5ASCX0IWkY1DJh4hATaV8=/232x232/filters:strip_exif()/f/image/sMwdQFBmQi9ilH6UePPg2RFY.png?f=fotoalbum_tileAfbeeldingslocatie: https://tweakers.net/i/aE7qudV7pgCtjneq-DYSjzAah3Y=/232x232/filters:strip_exif()/f/image/tPvNZdaRAMGugvnAR2YgTmo2.png?f=fotoalbum_tile


Omdat ik dit een logische opstelling vind is het voor mij lastig voor te stellen of het eventueel op een andere manier kan, en of het ook echt zo logisch is als we denken. We hebben er bewust voor gekozen om geen bovenkastjes te nemen omdat ze onhandig in gebruik zijn en een open design ons mooier leek. Om de keuken wat "warmer" te maken hebben we de hoge kasten een lichte houtlook gegeven om het witte een beetje op te breken. We zijn er echter nog niet over uit of we dit echt willen en hoe het er dan uit moet zien. Komend weekend gaan we weer wat keukenboeren af om meer inspiratie op te doen.

Ik vraag me af of jullie eventuele tips hebben over de indeling, en wat jullie vinden van de kleurcombinatie van de keuken. Alle input is welkom :) .

  • Source90
  • Registratie: December 2008
  • Laatst online: 14:32
Angriebirdie schreef op dinsdag 8 maart 2022 @ 21:55:
Iemand ervaringen met dit apparaat? Klinkt te mooi om waar te zijn dat het alle functies in 1 heeft? Oven, magnetron, stoom en pyrolyse.

[Afbeelding]
Dit is geen volwaardige stoomoven, maar "added-steam" of "Pulse-steam" zoals Siemens het noemt.
Hij kan kleine hoeveelheden stoom toevoegen om korsten krokant te maken, etc.

Volledige stoomoven heeft, zover ik weet, niet de mogelijkheid tot pyrolese.

  • mevrouwKees_1
  • Registratie: December 2020
  • Laatst online: 10-04 15:44
xminator schreef op dinsdag 8 maart 2022 @ 13:56:
[...]

Moderne woningen zijn dermate goed luchtdicht gebouwd dan wel met een balansventilatie dat als je alleen een luchtafvoer hebt je hele huis vacuum zuigt als je dat ding aanzet naar buiten toe. Dus je moet dan nog extra maatregelen nemen, was benieuwd of en zo ja wat dat is geweest.
Nee dat hebben wij niet idd. Wij hebben wel mechanische ventilatie overal in huis maar geen balans ventilatie etc. Daar is ons huis te oud voor. Geen vacuüm hier ;)

Ik ben overal tegen. Tot ik een besluit neem, dan ben ik ervoor


  • Source90
  • Registratie: December 2008
  • Laatst online: 14:32
Z___Z schreef op dinsdag 8 maart 2022 @ 17:31:
[...]

Wel Nice gratis upgrades! Hoe hoger in de range je iets koopt hoe hoger de retail marge is. Dus qua kosten voor de verkoper valt het meestal mee tov de waarde voor de eindklant.
What do I spy with my little eye:
Free upgrade 🥳

Afbeeldingslocatie: https://tweakers.net/i/HR71m0IP-ZO1t4RJzwNurz1hNoI=/x800/filters:strip_icc():strip_exif()/f/image/CHHGL6i0aDjCivbI3q3RrHPO.jpg?f=fotoalbum_large

  • Barry|IA
  • Registratie: Januari 2004
  • Laatst online: 23-06-2022
Thomas19903 schreef op dinsdag 8 maart 2022 @ 20:09:
[...]


Ha leuk om te zien! Mijn vriendin was helemaal fan van deze style. De style heet volgens mij Japandi (mix tussen Scandinavisch en Japans...). Wij hebben geen merk gevonden die dit heeft en zijn daarom naar een meubelmaker gedaan, uiteindelijk niet gedaan vanwege de hoge kosten. Alternatieve zoals zelf het erop zetten hebben wij niet gevonden, althans die mooi zijn. Daarnaast is de keuken iets minder praktisch als je bijv. kinderen hebt met al die uitstekende elementen.
Dan heb ik goed nieuws voor je, de grepen zijn te maken uit frontmateriaal wat bij bijna elk merk mogelijk is. Wel prijzig, want je hebt voor elke 2 grepen een los front nodig (prijstechnisch). Als de keukenfabriek het niet kan leveren, kan de keukenmonteur ze maken.

Correctie: zie nu pas hoe de greep is opgebouwd. Niet aan beginnen, dit is niet te betalen. Altijd leuk die Instagram/Pinterest keukens. Kosten een ton, men wilt het voor 20 :)

[ Voor 9% gewijzigd door Barry|IA op 09-03-2022 09:21 ]

“Nothing changed since the 70s. Nothing. Except people train not that hard”. - Tom Platz

Pagina: 1 ... 326 ... 541 Laatste

Let op:
Dit topic kan gebruikt worden voor het volgende:
• Vragen over de keuken, denkend aan indeling, materialen, kastjes, apparatuur, etc.
• Welke kastjes, aanrechtbladen en apparatuur te kiezen
• Ervaringen met verkopers en keukenboeren
• Tips & Tricks denk hierbij aan hulp bij het zelf installeren en onderhouden van de keuken.
• Jouw indeling. Plaats gerust een foto of tekening, maar maak het niet te bont met hele buildlogs.

Voor badkamers: Het Badkamer topic: verkopers, kwaliteit, prijs - Deel 1
Showen met je keuken kan hier: Tweakers Keuken showroom! - Vestiging 1