M-ThijZ schreef op vrijdag 01 mei 2015 @ 00:00:
Zijn er meer tweakers die een TV voor een raam hebben staan?
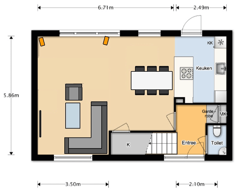
Ik ben een beetje aan het stoeien met de inrichting van onze nieuwe woning. Eerst zou ik graag de TV aan een wand hebben hangen, maar nu blijkt het plaatsen van de TV in de volgende opstellingen een aantal voordelen te hebben:
[
afbeelding]
- De woonkamer oogt zo het meest ruimtelijk. Niet gelijk de TV in het zicht.
- Logische plekken voor het plaatsen van speakers (in oranje).
- Akoestisch best haalbare.
- Er loopt al bekabeling via de kruipruimte voor de speakers! (dankzij vorige bewoners)
Nu is het rottige dat juist op de plek van de TV een raam zit. Heel vervelend, een beetje licht in de woonkamer

.
Gelukkig bevindt dit raam zich aan het noordoosten. Dus de zon zal er nooit echt op staan. Maar ik zat al te denken aan een verduisterend (elektrisch?) rolgordijn.
Is het plaatsen voor een raam echt een no-go, of valt het mee?
De TV is trouwens een 55" plasma.
Mooi huis en uitdagende situatie!
Een tv voor het raam zou ik ten alle tijden proberen te voorkomen;
- Licht achterop jouw plasma zorgt ervoor dat je dit ziet aan de andere kant van de tv. Mijn Panasonic 55VT60 had dit, met een lichtbron achter het scherm. Dit schijnt door de verschillende gaten door op het scherm. Nou was dit met een lichtbron natuurlijk, maar ik zou het er niet op gokken.
- Een raam in die hoek zou ik niet opofferen eigenlijk. Hoewel het met de boxen wel goed uitkomt natuurlijk, maar die kabels heb je zo opnieuw getrokken

. Daar zou ik mijn plaatsing nooit vanaf laten hangen in ieder geval. hoewel het wel handig is.
- Als je jouw tv daar plaatst, dan heb je direct inval van dat ene raam recht achter je. Daar moet je sowieso wat op zoeken als je tv kijkt.
- Plus dat het er gewoon niet uitziet vanaf buiten
Als je dan toch echt besluit om de tv daar te plaatsen, dan zou ik iets van een plaat maken voor het raam, met daar de tv voor. Ziet er vanaf beide kanten beter uit.
Is de volgende opstelling niks voor je?
Plus dat je met je eettafel heerlijk aan een groot raam zit.

. Ik woon nu in een tussenwoning met voor en achter ramen, maar met nog een aanbouw ertussen. Ik zou een moord doen voor een extra raam ergens om meer lichtinval te krijgen.
Daarom zou ik echt proberen om dat raam niet op te offeren.
Of je kunt de tv-hoek een kwartslag draaien. Het ruimtelijke in je huiskamer wordt er niet minder op, omdat je het raam vrij hebt. Juist doordat je het raam af gaat schermen met een joekel van een TV wordt de ruimtelijkheid minder. Maar je kan niks met je rears, dus dat is lastig.
[
Voor 8% gewijzigd door
StealthyPeanut op 01-05-2015 13:18
]