Mooie badkamer! Mag ik vragen wat de afmetingen van deze ruimte zijn? Wij zijn nog aan het oriënteren en twijfelen tussen wel/geen bad + aparte douche in de badkamer.Da_smiek schreef op dinsdag 28 januari 2020 @ 16:39:
[...]
Wij hebben de vloertegels ook laten doorlopen in de douche. Wel fijn dat er geen drempels /douchebak ligt. En vind het ook wel strakker ogen. We hebben op alle wanden verder dezelfde tegels als op de vloer, behalve siertegels in de douche.
En ook de opstelling met toilet naast bad. Hoewel het niet anders kon ben ik er achteraf wel blij mee. Goede zitplek voor als de kinderen in bad moeten 😊.
[Afbeelding]
[Afbeelding]
Wat mag zo'n badkamer verbouwing ongeveer gekost hebben?Da_smiek schreef op dinsdag 28 januari 2020 @ 16:39:
[...]
Wij hebben de vloertegels ook laten doorlopen in de douche. Wel fijn dat er geen drempels /douchebak ligt. En vind het ook wel strakker ogen. We hebben op alle wanden verder dezelfde tegels als op de vloer, behalve siertegels in de douche.
En ook de opstelling met toilet naast bad. Hoewel het niet anders kon ben ik er achteraf wel blij mee. Goede zitplek voor als de kinderen in bad moeten 😊.
[Afbeelding]
[Afbeelding]
2,80 breed bij 3,55 lang met een hap eruit voor een inbouwkast (deel bij het bad en toilet is 1,80 breed)kezzza schreef op donderdag 30 januari 2020 @ 16:29:
[...]
Mooie badkamer! Mag ik vragen wat de afmetingen van deze ruimte zijn? Wij zijn nog aan het oriënteren en twijfelen tussen wel/geen bad + aparte douche in de badkamer.
Het was een dure grap. Iets van 8k voor de materialen en 9k installatiekosten incl oude badkamer slopen. Had me iets vergist in de prijzen voor patroontegels leggen en inbouwkranen installeren. Verder ook vloerverwarming en afzuigsysteem.Robberto schreef op donderdag 30 januari 2020 @ 16:29:
[...]
Wat mag zo'n badkamer verbouwing ongeveer gekost hebben?
Niet dat ik weet. Er zijn ook zoveel verschillende keuzes qua producten dat het lastig is een richtlijn te geven. We hebben iets van 4 verschillende offertes opgevraagd en de prijzen verschillen enorm onderling voor dezelfde spullen.Piet_Piraat7 schreef op donderdag 30 januari 2020 @ 16:23:
Zijn er ook websites van badkamerboeren die een goede richtlijn geven voor de kosten van een compleet nieuwe badkamer? Ik zie soms prijzen voorbij komen die niet anders dan lokkertjes kunnen zijn, maar ik heb ook niet zo zin om offertes op te vragen. Zit nog veel meer in de oriënterende fase.
Nope.Piet_Piraat7 schreef op donderdag 30 januari 2020 @ 16:23:
Zijn er ook websites van badkamerboeren die een goede richtlijn geven voor de kosten van een compleet nieuwe badkamer? Ik zie soms prijzen voorbij komen die niet anders dan lokkertjes kunnen zijn, maar ik heb ook niet zo zin om offertes op te vragen. Zit nog veel meer in de oriënterende fase.
Is ook heel lastig. Je kunt serieus voor een paar ruggen je badkamer verbouwen. Goedkope spullen, tegels bovenop bestaande tegels en vooral geen leidingen verleggen.
Anderzijds kun je bij veel badkamerboeren spullen aanschaffen in verschillende prijs ranges. Een goedkoop ligbad kun je al vinden voor pakweg 150 euro, maar zonder problemen voor het tienvoudige. Bij dezelfde winkel. En die winkel kan ook natuurlijk totaal niet inschatten op basis van jouw verhaal hoeveel werk het gaat zijn. Daarvoor zal iemand met kennis van zaken jouw badkamer moeten bekijken en beoordelen welk werk nodig is (en vaak loop je ook dan tegen diverse mogelijkheden aan).
Wat je zou kunnen doen is bij een zaak die een webshop heeft (X2O bijvoorbeeld) een aantal meubelen, kranen, sifons etc bij elkaar klikken. Kijk ook eens bij een tegelboer in de buurt (X2O doet geen tegels) en klik daar je tegels bij elkaar. Houd rekening met 15% snijverlies van tegels.
Dan heb je een idee van hoeveel materiaalkosten je hebt. Daar komt dan eventuele sloop en installatie bij. En ja, dat is gewoon een serieus zwart gat. Wij hebben offertes gehad die uiteenliepen van 5.300,- tot 15.500,- voor dezelfde badkamer. Hoe meer je zelf kunt hoe goedkoper het wordt natuurlijk.
Tjolk is lekker. overal en altijd.
@Tjolk thanks, helder
dan wordt het toch maar eens offertes opvragen een keer
En natuurlijk is hier een Tweakerstopic over. Had ik eerder moeten weten! 
Wij zitten in de fase waarin we nog van plan zijn om alles all-in-one te láten doen. Deze week de offerte binnen gekregen...€23.000. No way dat we dat gaan doen. Gesprek was eind december, en dan zouden ze ook pas in september gaan beginnen. Ik snap dat je met zo'n volle agenda kunt vragen wat je wil, maar nee...
In het oriënterende ontwerpgesprek kregen we te horen dat de prijzen van deze zaak gemiddeld op 20k uit kwamen, voor een volledige badkamer met 'de 5 zones'. Dus wasbakcombinatie, toilet, douche, bad en verwarming. Nu hebben wij een kleine 5m32 en geen badkamer, dus de verwachting was al dat we hier onder zouden zitten. Tijdens het uitzoeken van van-alles-en-nog-wat bleven we te horen krijgen dat we geen raar dure dingen uitzochten, dus dat gaf wel een positief gevoel, maar terugkijkend hebben we het eigenlijk toen nog nergens over prijzen gehad. Dat deden ze altijd pas via de offerte (wellicht achteraf een rode vlag..)
Aangezien wij beide toch écht geen luxepaardjes zijn gaan we morgen op de bonnefooi maar eens wat zaken op Ekkersrijt binnenlopen om te kijken of we wat meer offertes kunnen laten opstellen.
En dit topic eens doorspitten op zoek naar wat diy oplossingen
Edit: 3=2, badkamer=bad
Wij zitten in de fase waarin we nog van plan zijn om alles all-in-one te láten doen. Deze week de offerte binnen gekregen...€23.000. No way dat we dat gaan doen. Gesprek was eind december, en dan zouden ze ook pas in september gaan beginnen. Ik snap dat je met zo'n volle agenda kunt vragen wat je wil, maar nee...
In het oriënterende ontwerpgesprek kregen we te horen dat de prijzen van deze zaak gemiddeld op 20k uit kwamen, voor een volledige badkamer met 'de 5 zones'. Dus wasbakcombinatie, toilet, douche, bad en verwarming. Nu hebben wij een kleine 5m32 en geen badkamer, dus de verwachting was al dat we hier onder zouden zitten. Tijdens het uitzoeken van van-alles-en-nog-wat bleven we te horen krijgen dat we geen raar dure dingen uitzochten, dus dat gaf wel een positief gevoel, maar terugkijkend hebben we het eigenlijk toen nog nergens over prijzen gehad. Dat deden ze altijd pas via de offerte (wellicht achteraf een rode vlag..)
Aangezien wij beide toch écht geen luxepaardjes zijn gaan we morgen op de bonnefooi maar eens wat zaken op Ekkersrijt binnenlopen om te kijken of we wat meer offertes kunnen laten opstellen.
En dit topic eens doorspitten op zoek naar wat diy oplossingen
Edit: 3=2, badkamer=bad
Gisteren bij de badkamerzaak voor een goede 6K aan spullen besteld, en van plan de verbouwing zelf te gaan doen, er zal nog wel een goede 1000 euro aan klein materiaal/tegellijm, koper buis etc.. bijkomen, maar afijn.
Ben er zelf best tevreden over, het 3d ontwerp ziet er goed uit en kwa spullen hebben we ook niet echt op de prijs gezeten, dus dan is ~7K plus een hoop gevloek en getier best okee voor een helemaal frisse moderne badkamer met bad en inloopdouche
Ben er zelf best tevreden over, het 3d ontwerp ziet er goed uit en kwa spullen hebben we ook niet echt op de prijs gezeten, dus dan is ~7K plus een hoop gevloek en getier best okee voor een helemaal frisse moderne badkamer met bad en inloopdouche
Master of the allen wrench Riding a mighty lawnmower for revenge In the realm of the screws he's the king And Lord of the Towel Rings
Kijk eens bij Kvik, X2O en St. Pieter in Eindhoven. Zelf uiteindelijk alles bij elkaar gezocht, maar volgende keer laten we toch alles bij zelfde bestellen. Denk dat St. Pieter hier heel eerlijk in was qua prijzen bij complete badkamer. Wij hebben hier wel het ontwerp gemaakt en gebruikt en tegels en douchewand besteld.Melkunie schreef op vrijdag 31 januari 2020 @ 11:37:
En natuurlijk is hier een Tweakerstopic over. Had ik eerder moeten weten!
Aangezien wij beide toch écht geen luxepaardjes zijn gaan we morgen op de bonnefooi maar eens wat zaken op Ekkersrijt binnenlopen om te kijken of we wat meer offertes kunnen laten opstellen.
En dit topic eens doorspitten op zoek naar wat diy oplossingen
[ Voor 5% gewijzigd door hammy87 op 31-01-2020 12:13 ]
Sure? 5m3 klinkt meer als een toilet dan een badkamer. Bedoel je geen vierkante meters?
Hij zegt ook dat ze "geen badkamer" hebben. Dus dat is wel mysterieusdowntime schreef op vrijdag 31 januari 2020 @ 13:08:
[...]
Sure? 5m3 klinkt meer als een toilet dan een badkamer. Bedoel je geen vierkante meters?
Scherp
5 vierkante meters, kuubs weet ik niet. Ook nog een stuk schuin plafond dus dat scheelt weer een paar tegels 
Bedankt! St. Pieter had ik nog niet bekeken, die heb ik ook op de lijst gezethammy87 schreef op vrijdag 31 januari 2020 @ 12:12:
[...]
Kijk eens bij Kvik, X2O en St. Pieter in Eindhoven. Zelf uiteindelijk alles bij elkaar gezocht, maar volgende keer laten we toch alles bij zelfde bestellen. Denk dat St. Pieter hier heel eerlijk in was qua prijzen bij complete badkamer. Wij hebben hier wel het ontwerp gemaakt en gebruikt en tegels en douchewand besteld.
Kranen waren dacht ik €150,- per stuk en iets van €90,- voor de mengkraan per stuk. (Grohe)mierenfokker schreef op dinsdag 28 januari 2020 @ 07:09:
[...]
Die kranen zijn niet echt duur volgens mij, evenals daar waar het water in stroomt (ben even de naam kwijt). Meubel is inderdaad wel van goede kwaliteit zo te zien. Mooi ding!!
Kommen waren iets van €190,- per stuk.
Meubel zelf heb ik laten maken door mijn keuken leverancier. Die hebben een eigen zagerij en alles. Even uit mijn hoofd €1500,- .
Douchewand (1.35m) maatwerk was €1300,- .
Overigens ook hier vloertegels op de wanden laten zetten.
[ Voor 7% gewijzigd door GeeMoney op 01-02-2020 09:44 ]
Ik ben op zoek naar een wandgemonteerde wastafel met de sifon zo ver mogelijk tegen de muur aan.
We hebben een kastje op het oog wat we als badkamer kastje willen gebruiken maar in dat kastje kunnen we geen sifon/zwanehals kwijt, dus moet het erachter.
Kranen mogen uit de wand komen. Hoeft niet in de kom zelf.
Lastig zoeken is dat. Heeft iemand een tip voor zoekterm/winkel?
edit: of we moeten maar gewoon zoeken naar een niet te hoge wastafel en daar dan een ondiepe sifon onder zetten. Dat werkt waarschijnlijk ook wel (als het kastje maar niet te hoog is)
We hebben een kastje op het oog wat we als badkamer kastje willen gebruiken maar in dat kastje kunnen we geen sifon/zwanehals kwijt, dus moet het erachter.
Kranen mogen uit de wand komen. Hoeft niet in de kom zelf.
Lastig zoeken is dat. Heeft iemand een tip voor zoekterm/winkel?
edit: of we moeten maar gewoon zoeken naar een niet te hoge wastafel en daar dan een ondiepe sifon onder zetten. Dat werkt waarschijnlijk ook wel (als het kastje maar niet te hoog is)
[ Voor 27% gewijzigd door Jelte op 03-02-2020 20:33 ]
Uiteindelijk ook de spullen besteld voor de badkamer. Wel op 3 verschillende plekken want dat was t voordeligst en konden niet overal slagen!
Uiteindelijk de tegels bij Hornbach besteld, de badkamer meubels bij x2o en de rest van de badkamer bij sanitairwinkel.nl.
Blij dat dit stuk erop zit want we hebben redelijk was winkels en opstellingen gezien. Op den duur weet je gewoon niet meer wat je moet kiezen
Uiteindelijk de tegels bij Hornbach besteld, de badkamer meubels bij x2o en de rest van de badkamer bij sanitairwinkel.nl.
Blij dat dit stuk erop zit want we hebben redelijk was winkels en opstellingen gezien. Op den duur weet je gewoon niet meer wat je moet kiezen

[ Voor 3% gewijzigd door ID-College op 15-02-2020 18:25 ]
Heeft iemand ervaring met Ton Scholten?
Ontwikkelaar van NPM library Gleamy
Wij hebben pasgeleden ook onze badkamer verbouwd. In september vorig jaar hebben we voor een kleine 4500 euro lekker ingekocht bij X2O in Zoeterwoude. Composiet douchebak 90x120 met bijbehorende douchewanden, glazen deur+wand met zwart frame, 2 zwarte toiletpotten met frames (1 set voor het toilet beneden), zwarte waskommen en de hele mikmak aan kranen in rvs. Kasten hadden we al eerder aangeschaft bij de Praxis. Het plan was om dit alles te laten monteren dus wat offertes opgevraagd. We hebben er twee ontvangen, eentje van 8500 en eentje van 11000. En dan moesten er nog tegels bij komen, een vloer, een infraroodpaneel, schakelmateriaal, een ventilator en een gordijntje. Dat plus wat we dus al uitgegeven hadden bij X2O en Praxis, dat werd dus toch wel iets te gek....
Ander plan: dan maar zelf doen. Samen met een familielid, die al de nodige ervaring had met flinke klussen, gestart op 4 januari en sinds dit weekend kunnen we wel zeggen dat het project afgerond is (op het gordijntje na, nog uitzoeken). Het was een beste klus met spannende momenten (composiet plaat van 220x120 over het platte dak door het slaapkamerraam naar binnen en dan gaten boren voor de kraan, volkledderen met kit en tegen de muur aan plakken....om maar wat te noemen) maar uiteindelijk is het gelukt. En ik kan zeggen dat ik er beretrots op ben dat ik dat met mijn eigen handen voor elkaar gekregen heb!
Een impressie van de klus staat hier: https://photos.app.goo.gl/B91akdyhbNZvkdJF6 (ik heb te weinig karma voor mijn eigen foto-album hier, dus ik hoop dat dit zo werkt cq mag)
Ander plan: dan maar zelf doen. Samen met een familielid, die al de nodige ervaring had met flinke klussen, gestart op 4 januari en sinds dit weekend kunnen we wel zeggen dat het project afgerond is (op het gordijntje na, nog uitzoeken). Het was een beste klus met spannende momenten (composiet plaat van 220x120 over het platte dak door het slaapkamerraam naar binnen en dan gaten boren voor de kraan, volkledderen met kit en tegen de muur aan plakken....om maar wat te noemen) maar uiteindelijk is het gelukt. En ik kan zeggen dat ik er beretrots op ben dat ik dat met mijn eigen handen voor elkaar gekregen heb!
Een impressie van de klus staat hier: https://photos.app.goo.gl/B91akdyhbNZvkdJF6 (ik heb te weinig karma voor mijn eigen foto-album hier, dus ik hoop dat dit zo werkt cq mag)
Kan je over 20 jaar precies opzoeken in welk jaar je de boel verbouwd hebt... zoek 'zwarte pot' en je vindt 'dat deden ze in 2020'.erdejee schreef op dinsdag 18 februari 2020 @ 20:51:
zwarte toiletpotten
Ik heb mijn badkamer hier nooit meer laten zien nadat ik hier om advies heb gevraagd. Uiteindelijk alles online besteld bij de goedkoopste aanbieders en de verbouwing zelf gedaan met hulp van mijn broer en vader. De gietvloer heb ik laten doen.
Het meest blij met de douche-wc en de fijne ruime douche. Het bad gebruik ik erg weinig.




Het meest blij met de douche-wc en de fijne ruime douche. Het bad gebruik ik erg weinig.





Qua ervaringen: wij hebben besloten om ons huidige huis deels te moderniseren (twee onder één kap, 1987) en over * jaar wellicht verhuizen als iets in de buurt zich aandient wat voldoet aan onze eisen. Met die redenen ook een beperkt budget gesteld voor keuken, badkamer en toilet.
Onze keuken wordt morgen erin gezet en daar zijn we dus ff klaar mee maar dan nog de badkamer...wij hebben een veel te kleine badkamer met ook nog 's een schuine wand (dak) dus ik had verwacht in totaal niet meer dan 8K kwijt te zijn hieraan. Little did I know. Aantal zaken afgeweest maar als ik alleen al zie dat een simpel badkamermeubel 3/4K+ moet kosten dan haak ik af..zeker in de wetenschap dat we hier als het goed is niet heel lang nog wonen (en misschien ook wel maar dan nog
).
Uiteindelijk maar de spullen bij elkaar geklikt bij Maxaro (Roosendaal) na wat bezoeken aan de winkel. Leuk spul, betaalbaar - maar meer voor de doe het zelver en dat zijn wij beiden niet. De gasten die onze keuken eruit hebben gehaald en morgen de nieuwe plaatsen hebben we verzocht om een offerte en daar komen we uit op 6400 Euro zonder materiaal (bij Maxaro hebben we voor 4000 aan spullen bij elkaar gezocht maar dat is inc. toilet/tegels voor "beneden").
Die 6400 heb ik naar 6000 kunnen brengen maar is dan ook inc. nieuw kunststof Velux dakvenster als vervanging voor ons oude dakvenster, nieuw plafond, spotjes en afzuiging. Toch vind ik het aardig geld voor een oppervlakte van pak 'm beet 5/6 m2.
Maar goed, positieve na het hele verhaal is een nieuwe keuken, nieuwe badkamer, nieuw toilet en ook verleden week kunststof kozijnen in onze slaapkamer laten plaatsen en die van onze dochter, waardoor alles weer up to date is en zolang we hier nog wonen het sowieso naar ons zin hebben.
Onze keuken wordt morgen erin gezet en daar zijn we dus ff klaar mee maar dan nog de badkamer...wij hebben een veel te kleine badkamer met ook nog 's een schuine wand (dak) dus ik had verwacht in totaal niet meer dan 8K kwijt te zijn hieraan. Little did I know. Aantal zaken afgeweest maar als ik alleen al zie dat een simpel badkamermeubel 3/4K+ moet kosten dan haak ik af..zeker in de wetenschap dat we hier als het goed is niet heel lang nog wonen (en misschien ook wel maar dan nog
Uiteindelijk maar de spullen bij elkaar geklikt bij Maxaro (Roosendaal) na wat bezoeken aan de winkel. Leuk spul, betaalbaar - maar meer voor de doe het zelver en dat zijn wij beiden niet. De gasten die onze keuken eruit hebben gehaald en morgen de nieuwe plaatsen hebben we verzocht om een offerte en daar komen we uit op 6400 Euro zonder materiaal (bij Maxaro hebben we voor 4000 aan spullen bij elkaar gezocht maar dat is inc. toilet/tegels voor "beneden").
Die 6400 heb ik naar 6000 kunnen brengen maar is dan ook inc. nieuw kunststof Velux dakvenster als vervanging voor ons oude dakvenster, nieuw plafond, spotjes en afzuiging. Toch vind ik het aardig geld voor een oppervlakte van pak 'm beet 5/6 m2.
Maar goed, positieve na het hele verhaal is een nieuwe keuken, nieuwe badkamer, nieuw toilet en ook verleden week kunststof kozijnen in onze slaapkamer laten plaatsen en die van onze dochter, waardoor alles weer up to date is en zolang we hier nog wonen het sowieso naar ons zin hebben.
Altijd makkelijk toch, die tijdsbepalende elementenJopie035 schreef op dinsdag 18 februari 2020 @ 21:10:
[...]
Kan je over 20 jaar precies opzoeken in welk jaar je de boel verbouwd hebt... zoek 'zwarte pot' en je vindt 'dat deden ze in 2020'.
Maar buiten dat het blijkbaar hip&trendy is, vonden wij zwart icm rvs ook stukken beter dan wit.
Oh, een gietvloer in de badkamer. Daar had ik nog niet aan gedacht. Hoe is dat met natte voeten op een gietvloer?orf schreef op dinsdag 18 februari 2020 @ 21:39:
Ik heb mijn badkamer hier nooit meer laten zien nadat ik hier om advies heb gevraagd. Uiteindelijk alles online besteld bij de goedkoopste aanbieders en de verbouwing zelf gedaan met hulp van mijn broer en vader. De gietvloer heb ik laten doen.
Het meest blij met de douche-wc en de fijne ruime douche. Het bad gebruik ik erg weinig.
[Afbeelding]
[Afbeelding]
[Afbeelding]
[Afbeelding]
[Afbeelding]
Ontwikkelaar van NPM library Gleamy
Ik vind het een hele fijne vloer. Voldoende stroef met natte voeten. Ik kon zelf kiezen hoe glad de vloer werd (verhouding epoxy en steentjes”). Ik ben heel blij dat ik geen voegen heb en vind het handig dat de vloer tegen de wand een stukje omhoog loopt als plint.gitaarwerk schreef op dinsdag 18 februari 2020 @ 23:05:
[...]
Oh, een gietvloer in de badkamer. Daar had ik nog niet aan gedacht. Hoe is dat met natte voeten op een gietvloer?
Klinkt goed. Ik ga het eens over denken. Wel tof idee :-).orf schreef op woensdag 19 februari 2020 @ 08:42:
[...]
Ik vind het een hele fijne vloer. Voldoende stroef met natte voeten. Ik kon zelf kiezen hoe glad de vloer werd (verhouding epoxy en steentjes”). Ik ben heel blij dat ik geen voegen heb en vind het handig dat de vloer tegen de wand een stukje omhoog loopt als plint.
Hoe bedoel je wand stukje omhoogloopt als plint? Ik zie inderdaad op je fotos een stukje zwart opstekend. Is dit een soort afwerking die gekozen kan worden? Lijkt me wel een toffe oplossing. We hebben nu een hoop slecht gevoegde stukken en lekkage is er al op meerdere plekken geweest. Had een klussende fransoos in gezeten. Letterlijk de franse slag
Ontwikkelaar van NPM library Gleamy
Inderdaad. De vloerlegger heeft het 5cm tegen de wand opgesmeerd. Die plint beschermt de gestucte wanden en het is waterdicht.gitaarwerk schreef op woensdag 19 februari 2020 @ 08:50:
[...]
Klinkt goed. Ik ga het eens over denken. Wel tof idee :-).
Hoe bedoel je wand stukje omhoogloopt als plint? Ik zie inderdaad op je fotos een stukje zwart opstekend. Is dit een soort afwerking die gekozen kan worden? Lijkt me wel een toffe oplossing. We hebben nu een hoop slecht gevoegde stukken en lekkage is er al op meerdere plekken geweest. Had een klussende fransoos in gezeten. Letterlijk de franse slag
Dit was de voorbereiding daarop:

Het stucwerk begint met een profiel 5 cm van de vloer. Daardoor is er ruimte om de vloer in de wand te smeren. Het roze is kimband. Dat is om de hoeken waterdicht te maken en te verbinden zodat de vloer met de plint 1 geheel wordt.
Nice, ziet er netjes uit hoor. Goed idee. Laatste vraag dan. Waarom heb je besloten om de muren te stuccen? Ik begreep dat het door het vocht wel eens sneller aan vervanging toe was (en wat lastiger schoon te maken).orf schreef op woensdag 19 februari 2020 @ 08:59:
[...]
Inderdaad. De vloerlegger heeft het 5cm tegen de wand opgesmeerd. Die plint beschermt de gestucte wanden en het is waterdicht.
Dit was de voorbereiding daarop:
[Afbeelding]
Het stucwerk begint met een profiel 5 cm van de vloer. Daardoor is er ruimte om de vloer in de wand te smeren. Het roze is kimband. Dat is om de hoeken waterdicht te maken en te verbinden zodat de vloer met de plint 1 geheel wordt.
Ontwikkelaar van NPM library Gleamy
Ik vind gestucte wanden veel mooier dan helemaal betegeld. Bij de douche is het natuurlijk wel helemaal getegeld. De wanden zijn allemaal geschilderd met een acrylatex voor buiten. Mijn vorige huis had een buitengevel met dezelfde verf. Plafonds zijn over het algemeen ook gestuct toch?gitaarwerk schreef op woensdag 19 februari 2020 @ 09:01:
[...]
Nice, ziet er netjes uit hoor. Goed idee. Laatste vraag dan. Waarom heb je besloten om de muren te stuccen? Ik begreep dat het door het vocht wel eens sneller aan vervanging toe was (en wat lastiger schoon te maken).
Welk model heb je gekozen? Ik zat hieraan te twijfelen maar heb vooralsnog voor een normaal model met geurafzuiging gekozen. Heb het op vakantie in Japan wel gebruikt, in het begin vond ik het leuk maar keek ik er niet echt meer naar om.orf schreef op dinsdag 18 februari 2020 @ 21:39:
Het meest blij met de douche-wc en de fijne ruime douche. Het bad gebruik ik erg weinig.
Ja, ik vind het gestucte ook heel mooi. Lekker strak.orf schreef op woensdag 19 februari 2020 @ 09:05:
[...]
Ik vind gestucte wanden veel mooier dan helemaal betegeld. Bij de douche is het natuurlijk wel helemaal getegeld. De wanden zijn allemaal geschilderd met een acrylatex voor buiten. Mijn vorige huis had een buitengevel met dezelfde verf. Plafonds zijn over het algemeen ook gestuct toch?
Mijn plafonds hebben een verlaagd plafonds... (niet heel mooi, gaat er ook uit). Ik zat zelf ook te denken om een verlaagd plafond, gestucced, met verzonken verlichting (in een soort conus vorm) en ingebouwde stort-douche. Daar heb je inderdaad wel een stuk meer vochtvorming. Good point
Ontwikkelaar van NPM library Gleamy
Ik heb een Geberit Aqua Clean, maar het model wordt blijkbaar al niet meer verkocht.Mokum80 schreef op woensdag 19 februari 2020 @ 09:06:
[...]
Welk model heb je gekozen? Ik zat hieraan te twijfelen maar heb vooralsnog voor een normaal model met geurafzuiging gekozen. Heb het op vakantie in Japan wel gebruikt, in het begin vond ik het leuk maar keek ik er niet echt meer naar om.
We twijfelen voor de douche tussen een Grohe Euphoria 260mm (27615001) en een Grohe Euphoria XXL 310mm (26075000).
De eerste heeft 3 standen voor de regendouche, waarbij de laatste maar één heeft. De laatste is wel een stukje groter qua diameter wat comfortabeler is natuurlijk. De 310mm gebruikt 14L/min, van de eerste kan ik het niet vinden.
Wie helpt ons kiezen? Ik neig naar de 310mm
De eerste heeft 3 standen voor de regendouche, waarbij de laatste maar één heeft. De laatste is wel een stukje groter qua diameter wat comfortabeler is natuurlijk. De 310mm gebruikt 14L/min, van de eerste kan ik het niet vinden.
Wie helpt ons kiezen? Ik neig naar de 310mm
[ Voor 6% gewijzigd door ThinkPad op 19-02-2020 21:18 ]
Zou je hier wat meer over kunnen delen? Had er tot nu zelf nog niet over nagedacht, maar vind het eigenlijk ook een interessante optie.orf schreef op woensdag 19 februari 2020 @ 08:42:
[...]
Ik vind het een hele fijne vloer. Voldoende stroef met natte voeten. Ik kon zelf kiezen hoe glad de vloer werd (verhouding epoxy en steentjes”). Ik ben heel blij dat ik geen voegen heb en vind het handig dat de vloer tegen de wand een stukje omhoog loopt als plint.
Beetje Googlen leert dat de prijzen erg verschillen. Hoeveel heeft het jou ongeveer gekost? Wat voor vloer is het, wie heeft het gelegd? Heb je vloerverwarming?
Ik heb het de buurman van een vriend laten doen in z'n avonduren. Ik had een offerte van €1.800 van een lokaal bedrijf, maar dat vond ik veel te duur.Smitovic schreef op donderdag 20 februari 2020 @ 03:40:
[...]
Zou je hier wat meer over kunnen delen? Had er tot nu zelf nog niet over nagedacht, maar vind het eigenlijk ook een interessante optie.
Beetje Googlen leert dat de prijzen erg verschillen. Hoeveel heeft het jou ongeveer gekost? Wat voor vloer is het, wie heeft het gelegd? Heb je vloerverwarming?
Hmm ja dat is inderdaad wel erg duur, of dat opweegt tegen geen voegen hoeven te schrobben...
Ik heb een Hans Grohe van 32cm ofzo met ook maar 1 water stand maar wel 2 douchekop standen, maximaal 9L/minuut. Houd er rekening mee als jij of je partner lang haar hebt, het uitspoelen waarschijnlijk langer duurt door die enkele stand.ThinkPadd schreef op woensdag 19 februari 2020 @ 21:11:
We twijfelen voor de douche tussen een Grohe Euphoria 260mm (27615001) en een Grohe Euphoria XXL 310mm (26075000).
De eerste heeft 3 standen voor de regendouche, waarbij de laatste maar één heeft. De laatste is wel een stukje groter qua diameter wat comfortabeler is natuurlijk. De 310mm gebruikt 14L/min, van de eerste kan ik het niet vinden.
Wie helpt ons kiezen? Ik neig naar de 310mm
Als je het zelf kan regelen kan je hem zo hard zetten als nodig is maar verbruik je natuurlijk ook fors meer.
Dat is eigenlijk het enige waar ik mijn vrouw weleens over hoor met de huidige douchekop. “Jammer dat hij niet wat harder kan”.
@GeeMoney We hebben de 310 besteld. Haren uitspoelen kan ook met harde(re) straal van de handdouche 
Duurt alleen nog wel een week of 4 voor we kunnen douchen, de levertijd van tegels bij Hornbach is nogal lang
Duurt alleen nog wel een week of 4 voor we kunnen douchen, de levertijd van tegels bij Hornbach is nogal lang
Hmm.. ik vind het toch wel kneiterduur allemaal om te plaatsen! Ik heb inmiddels de spullen maar het plaatsen vind ik zo belachelijk duur dat ik het haast zelf wil doen.
Ik denk dat het meeste wel lukt (hebben al beneden heel veel verbouwd) alleen ik zit erg met de tegelvloer en douchedrain. Het water moet natuurlijk wel de juiste kant op lopen, anders staat de douche blank..
In hoeverre is dit te doen voor een leek? Dat zou ik ervoor kunnen kiezen alleen te laten stucen en dan doe ik de rest zelf.. Zal even tijd kosten maar scheelt wel kneiter veel knaken
Ik denk dat het meeste wel lukt (hebben al beneden heel veel verbouwd) alleen ik zit erg met de tegelvloer en douchedrain. Het water moet natuurlijk wel de juiste kant op lopen, anders staat de douche blank..
In hoeverre is dit te doen voor een leek? Dat zou ik ervoor kunnen kiezen alleen te laten stucen en dan doe ik de rest zelf.. Zal even tijd kosten maar scheelt wel kneiter veel knaken
Mijn vader zit al jaren in de bouw en heeft vrijwel alles gedaan van simpel verven tot het moeilijke werk. Twee jaar geleden heeft mijn zus een huis gekocht zonder een badkamer erin, papa deed de hele huis toch dus hup ook maar de badkamer dan. De arme man is er dagen mee bezig geweest en hij zou het nooit meer doen
Onderschat het niet zou ik zeggen. Ik zag hoe hij bezig was en heb hem met mijn zwager geholpen, drie man (twee hiervan wel leken op badkamer gebied) sterk heeft het ons enorm veel moeite gekost. Ligt eraan hoe je het wilt afwerken uiteraard, Mijn vader en ik zijn beiden pietje precies, dus het is wel mooi geworden.
Waarom eigenlijk stuccen? Alleen het plafond bedoel je..
Ja het is ook idd flink werk en ben zelf ook wel precies.. denk dat het ook wel gaat tegenvallen ja.
Ik ga eens vragen of er meer afgehaald kan worden dat ik een deeltje zelf doe.. vind het forse bedragen iig.. weet nog niet of ik dat t waard vind..
@mierenfokker : er zitten al 2 lagen tegels in en er kan geen 3e op (en dat wil ik ook niet). De muur moet vlak zijn om te tegelen dus daarom moet er ook gestuct worden (wel grof maar oke)
Ik ga eens vragen of er meer afgehaald kan worden dat ik een deeltje zelf doe.. vind het forse bedragen iig.. weet nog niet of ik dat t waard vind..
@mierenfokker : er zitten al 2 lagen tegels in en er kan geen 3e op (en dat wil ik ook niet). De muur moet vlak zijn om te tegelen dus daarom moet er ook gestuct worden (wel grof maar oke)
Het is te doen, afhankelijk van hoe handig je zelf bent (danwel gaandeweg blijkt te zijn). Wij zaten met hetzelfde 'probleem', laten doen werd gewoon te duur dus toen ook maar zelf aan de slag gegaan. Ik had wel enige klus-ervaring maar niet met leidingwerk, maar gelukkig wel een familielid die wel over die ervaring beschikt en tijd genoeg had, dus die heeft het hele aan- en afvoerwerk uitgevoerd, alsmede de elektra.ID-College schreef op zondag 23 februari 2020 @ 17:10:
In hoeverre is dit te doen voor een leek? Dat zou ik ervoor kunnen kiezen alleen te laten stucen en dan doe ik de rest zelf.. Zal even tijd kosten maar scheelt wel kneiter veel knaken
Wij hebben het stucen uitbesteed, blijft toch vakwerk. Maar verder is alles eigenhandig gedaan: leeghalen, tegels van de muur, plafond eruit en vervolgens alles weer opbouwen. Al met al is het toch wel een project van een kleine 2 maanden geworden, maar het merendeel is dan ook in de avonduren gedaan.
Het voordeel van zelf doen vind ik toch wel dat je gaandeweg dingen bedenkt die je dan toch net ff anders wilt doen dan vooraf bedacht. En daarnaast natuurlijk de voldoening als je eenmaal klaar bent en het eindresultaat je verwachtingen overtreft, met het besef dat je dat gewoon zelf gedaan hebt....
Succes alvast!
Ik heb wel al veel gedaan zelf.. leidingwerk en tegelwerk ook en vond dat reuze meevallen. Scheelt ook wel dat ik alle tijd heb en neem. Tegelen is eigenlijk helemaal niet heel moeilijk. Het kost op mijn manier gewoon veel meer tijd. Anderzijds ben je voor jezelf aan het werk dus dat het wat langer duurt geeft niet.
Het vervelende is wel dat het de douche is. Het toilet kostte best lang maar dat vond ik geen probleem. Immers je hebt toch een 2e. Met een douche is dat wat vervelend. Niet zo lekker als even rustig afdouchen na het klussen
Ik neig er wel naar.. wellicht dat ik gewoon een douche huur. Bij Boels kan ik een goede frees, stofzuiger en tegelzaag huren. Goed gereedschap helpt al enorm.. denk dat ik er wel uit kom (zal hooguit een stuk langer duren) alleen het is best een projectje.. nog even goed over nadenken dus maar als ik al die prijzen zo zie dan denk ik dat er weinig alternatief is.
Stoor mij ook erg aan die ondoorzichtige offertes.. allemaal totaalprijs en heb dus geen idee hoe ie is opgezet. Heb t gevoel dat je aan alle kanten genaaid wordt..
Het vervelende is wel dat het de douche is. Het toilet kostte best lang maar dat vond ik geen probleem. Immers je hebt toch een 2e. Met een douche is dat wat vervelend. Niet zo lekker als even rustig afdouchen na het klussen
Ik neig er wel naar.. wellicht dat ik gewoon een douche huur. Bij Boels kan ik een goede frees, stofzuiger en tegelzaag huren. Goed gereedschap helpt al enorm.. denk dat ik er wel uit kom (zal hooguit een stuk langer duren) alleen het is best een projectje.. nog even goed over nadenken dus maar als ik al die prijzen zo zie dan denk ik dat er weinig alternatief is.
Stoor mij ook erg aan die ondoorzichtige offertes.. allemaal totaalprijs en heb dus geen idee hoe ie is opgezet. Heb t gevoel dat je aan alle kanten genaaid wordt..
Dat hebben wij ook gedaan, ideaal! Je moet natuurlijk wel een mogelijkheid hebben om die douchebak ergens aan te kunnen sluiten qua af- en aanvoer, maar als dat kan zou ik het zeker doen.ID-College schreef op maandag 24 februari 2020 @ 14:29:
Het vervelende is wel dat het de douche is. Het toilet kostte best lang maar dat vond ik geen probleem. Immers je hebt toch een 2e. Met een douche is dat wat vervelend. Niet zo lekker als even rustig afdouchen na het klussen
Ik neig er wel naar.. wellicht dat ik gewoon een douche huur.
Wij willen ook een nooddouche regelen. Waar hebben jullie gehuurd? Kopen via mp lijkt ook wel een optie aangezien veel mensen zo’n ding nieuw kopen voor de verbouwing en dan er weer vanaf willen. We zoeken dus een soort slet onder de douchebakken.erdejee schreef op maandag 24 februari 2020 @ 15:23:
[...]
Dat hebben wij ook gedaan, ideaal! Je moet natuurlijk wel een mogelijkheid hebben om die douchebak ergens aan te kunnen sluiten qua af- en aanvoer, maar als dat kan zou ik het zeker doen.
Windhoos Ryzen 7800x3d | rtx 5070TI gb | 32gb & Macbook Air m3 8gb
Aangezien we hier thuis nodig de badkamer moeten (en willen uiteraard) verbouwen maar eens hier een kijkje nemen voor wat advies en tips and tricks.
Het gaat om een ruim 80 jaar oud huis dat inmiddels al redelijk schuin staat (naar de straat toe). De vloer / constructie bestaat uit hout wat natuurlijk extra moeilijkheden met zich meebrengt.
We hebben al contact gehad met een bedrijf en er is al iemand wezen kijken. Die wilde de vloer recht trekken zodat deze weer waterpas loopt, hierdoor word de hoogte wel drastisch beperkt. (Wat beter nagemeten, schuinte is 37mm op een meter, dus tegen de muur leveren we iets meer als 80mm in alleen al met het waterpas maken van de vloer.)
Paar punten:
-De maten van de badkamer zijn (ongeveer), breedte: 1760mm, lengte 2220mm en hoogte 2100mm.
-Als je de badkamer inloopt loop je richting de straat, dus met de schuinte mee naar beneden.
-Er zit een lelijke schuinte in de ruimte, deze zit direct links op de vloer als je binnenkomt. Zal bij de foto's wel duidelijker worden. (hier loopt de trap onder)
-Er is een rand (buitenmuur) die 200mm naar binnenkomt tot een hoogte van 800mm.
ideeën en wensen:
-Er zit nu een bad in waar we graag vanaf willen, het idee is dus om een inloopdouche te creëren.
-Elektrische vloerverwarming.
-Regendouche.
Vragen:
1. Iemand ervaring met het creëren van een inloopdouche op een houten vloer constructie? Het bedrijf stelde voor om een doucheplaat te gebruiken.
2. Ervaringen met het in het plafond inbouwen van een regendouche? Wat is de hoogte van het plafond en hoeveel ruimte heb je boven het plafond nodig?
3. creatieve ideeën voor een indeling?
Hieronder een aantal foto's van 2 verschillende mogelijkheden. Let niet te veel op de kleuren of tegels, ik heb zomaar iets gekozen.
Idee 1; Zoals je kan zien, minimalistisch. In onderstaande situatie zit dat schuine geelde onder de wastafelset. Deze zal dan ook recht naar beneden dicht worden gemaakt zodat het schuine gedeelte weg word gewerkt. wastafelset is hier 1m breed.




Idee 2; Hierbij is het meubel verplaats naar de andere muur. Hierdoor zitten we helaas wel met dat schuine stuk. Dit hebben we nu recht getrokken om een soort 'bankje' te creëren. Tevens word de bovenkant van de wastafelset naar de muur getrokken zodat je extra ruimte heb om spullen neer te zetten. Daaronder word daardoor gelijk een vakje gecreëerd voor nog meer spullen (bijv. handdoeken).


Alvast bedankt
Het gaat om een ruim 80 jaar oud huis dat inmiddels al redelijk schuin staat (naar de straat toe). De vloer / constructie bestaat uit hout wat natuurlijk extra moeilijkheden met zich meebrengt.
We hebben al contact gehad met een bedrijf en er is al iemand wezen kijken. Die wilde de vloer recht trekken zodat deze weer waterpas loopt, hierdoor word de hoogte wel drastisch beperkt. (Wat beter nagemeten, schuinte is 37mm op een meter, dus tegen de muur leveren we iets meer als 80mm in alleen al met het waterpas maken van de vloer.)
Paar punten:
-De maten van de badkamer zijn (ongeveer), breedte: 1760mm, lengte 2220mm en hoogte 2100mm.
-Als je de badkamer inloopt loop je richting de straat, dus met de schuinte mee naar beneden.
-Er zit een lelijke schuinte in de ruimte, deze zit direct links op de vloer als je binnenkomt. Zal bij de foto's wel duidelijker worden. (hier loopt de trap onder)
-Er is een rand (buitenmuur) die 200mm naar binnenkomt tot een hoogte van 800mm.
ideeën en wensen:
-Er zit nu een bad in waar we graag vanaf willen, het idee is dus om een inloopdouche te creëren.
-Elektrische vloerverwarming.
-Regendouche.
Vragen:
1. Iemand ervaring met het creëren van een inloopdouche op een houten vloer constructie? Het bedrijf stelde voor om een doucheplaat te gebruiken.
2. Ervaringen met het in het plafond inbouwen van een regendouche? Wat is de hoogte van het plafond en hoeveel ruimte heb je boven het plafond nodig?
3. creatieve ideeën voor een indeling?
Hieronder een aantal foto's van 2 verschillende mogelijkheden. Let niet te veel op de kleuren of tegels, ik heb zomaar iets gekozen.
Idee 1; Zoals je kan zien, minimalistisch. In onderstaande situatie zit dat schuine geelde onder de wastafelset. Deze zal dan ook recht naar beneden dicht worden gemaakt zodat het schuine gedeelte weg word gewerkt. wastafelset is hier 1m breed.




Idee 2; Hierbij is het meubel verplaats naar de andere muur. Hierdoor zitten we helaas wel met dat schuine stuk. Dit hebben we nu recht getrokken om een soort 'bankje' te creëren. Tevens word de bovenkant van de wastafelset naar de muur getrokken zodat je extra ruimte heb om spullen neer te zetten. Daaronder word daardoor gelijk een vakje gecreëerd voor nog meer spullen (bijv. handdoeken).


Alvast bedankt
[ Voor 2% gewijzigd door thijsco19 op 25-02-2020 19:11 . Reden: beter nagemeten en aangepast. Hoogte ipv 2000mm nu 2100mm. Schuinte toegevoegd ]
The only thing you need; a jar of "Elbow Grease" (TM) ! Apply it liberally and it will make any job a breeze.
Wij hebben hem hier gehuurd: https://www.huureendouche.comBassieB schreef op maandag 24 februari 2020 @ 21:15:
[...]
Wij willen ook een nooddouche regelen. Waar hebben jullie gehuurd? Kopen via mp lijkt ook wel een optie aangezien veel mensen zo’n ding nieuw kopen voor de verbouwing en dan er weer vanaf willen. We zoeken dus een soort slet onder de douchebakken.
Goed geregeld, ook geen probleem als je hem wat langer nodig hebt omdat de verbouwing wat uitloopt (en welke verbouwing doet dat niet....)
Ik zou toch eens kijken of je de vloerdelen eruit kunt halen. Vervolgens de balken waterpas uitvullen en een Lewis-betonvloer erop van 5 cm. Dan heb je een stabiele, betonnen basis. Geen risico meer op scheurende of loszittende tegels of voegen.thijsco19 schreef op maandag 24 februari 2020 @ 21:32:
Aangezien we hier thuis nodig de badkamer moeten (en willen uiteraard) verbouwen maar eens hier een kijkje nemen voor wat advies en tips and tricks.
Het gaat om een ruim 80 jaar oud huis dat inmiddels al redelijk schuin staat (naar de straat toe). De vloer / constructie bestaat uit hout wat natuurlijk extra moeilijkheden met zich meebrengt.
We hebben al contact gehad met een bedrijf en er is al iemand wezen kijken. Die wilde de vloer recht trekken zodat deze weer waterpas loopt, hierdoor word de hoogte wel drastisch beperkt.
Paar punten:
-De maten van de badkamer zijn (ongeveer), breedte: 1760mm, lengte 2220mm en hoogte 2000mm.
-Als je de badkamer inloopt loop je richting de straat, dus met de schuinte mee naar beneden.
-Er zit een lelijke schuinte in de ruimte, deze zit direct links op de vloer als je binnenkomt. Zal bij de foto's wel duidelijker worden. (hier loopt de trap onder)
-Er is een rand (buitenmuur) die 200mm naar binnenkomt tot een hoogte van 800mm.
ideeën en wensen:
-Er zit nu een bad in waar we graag vanaf willen, het idee is dus om een inloopdouche te creëren.
-Elektrische vloerverwarming.
-Regendouche.
Vragen:
1. Iemand ervaring met het creëren van een inloopdouche op een houten vloer constructie? Het bedrijf stelde voor om een doucheplaat te gebruiken.
2. Ervaringen met het in het plafond inbouwen van een regendouche? Wat is de hoogte van het plafond en hoeveel ruimte heb je boven het plafond nodig?
3. creatieve ideeën voor een indeling?
Hieronder een aantal foto's van 2 verschillende mogelijkheden. Let niet te veel op de kleuren of tegels, ik heb zomaar iets gekozen.
Idee 1; Zoals je kan zien, minimalistisch. In onderstaande situatie zit dat schuine geelde onder de wastafelset. Deze zal dan ook recht naar beneden dicht worden gemaakt zodat het schuine gedeelte weg word gewerkt. wastafelset is hier 1m breed.
[Afbeelding][Afbeelding][Afbeelding][Afbeelding]
Idee 2; Hierbij is het meubel verplaats naar de andere muur. Hierdoor zitten we helaas wel met dat schuine stuk. Dit hebben we nu recht getrokken om een soort 'bankje' te creëren. Tevens word de bovenkant van de wastafelset naar de muur getrokken zodat je extra ruimte heb om spullen neer te zetten. Daaronder word daardoor gelijk een vakje gecreëerd voor nog meer spullen (bijv. handdoeken).
[Afbeelding][Afbeelding]
Alvast bedankt
@orf Zoiets zei dat bedrijf geloof ik ook, logisch want dat is ook een goede manier om een goede basis te krijgen.
Maar aangezien het huis schuin loopt leveren we dus flink in in de hoogte. Bij de douche kan dit al oplopen tot een centimeter of 10 tot 15. (Ja echt..) correctie: zelf nagemeten, schuinte bedraagt 37mm / m, dus tegen de muur zou de vloer iets meer als 80mm omhoog komen.
Met maar een hoogte van (iets meer als) 2 meter is dat dus eigenlijk geen optie. hoogte is nu 2m10
Dat is eigenlijk ook het grootste probleem, laten we de vloer zo of maken we alles waterpas?
Maar aangezien het huis schuin loopt leveren we dus flink in in de hoogte. Bij de douche kan dit al oplopen tot een centimeter of 10 tot 15. (Ja echt..) correctie: zelf nagemeten, schuinte bedraagt 37mm / m, dus tegen de muur zou de vloer iets meer als 80mm omhoog komen.
Met maar een hoogte van (iets meer als) 2 meter is dat dus eigenlijk geen optie. hoogte is nu 2m10
Dat is eigenlijk ook het grootste probleem, laten we de vloer zo of maken we alles waterpas?
[ Voor 14% gewijzigd door thijsco19 op 25-02-2020 19:13 ]
The only thing you need; a jar of "Elbow Grease" (TM) ! Apply it liberally and it will make any job a breeze.
Niet waterpas levert veel problemen op. Natuurlijk met water dat de verkeerde kan oploopt, maar ook je aansluiting van de wandtegels op de vloer. Ga je die allemaal scheef snijden en hoe ziet dat eruit? Je wastafel moet natuurlijk waterpas hangen, maar betekent het dat je dan aan de ene kant een hoogte van 80cm hebt en aan de andere kant 85cm?thijsco19 schreef op dinsdag 25 februari 2020 @ 10:00:
@orf Zoiets zei dat bedrijf geloof ik ook, logisch want dat is ook een goede manier om een goede basis te krijgen.
Maar aangezien het huis schuin loopt leveren we dus flink in in de hoogte. Bij de douche kan dit al oplopen tot een centimeter of 10 tot 15. (Ja echt..)
Met maar een hoogte van (iets meer als) 2 meter is dat dus eigenlijk geen optie.
Dat is eigenlijk ook het grootste probleem, laten we de vloer zo of maken we alles waterpas?
Ik heb wel eens gezien dat de balkenlaag opnieuw waterpas in de muur is gezet. Dan kun je 7-8cm zakken aan de ene kant en aan de andere kant omhoog komen. Hoe komt het dat je maar 2 meter hoogte hebt? Dat is sowieso al een heel benauwde ruimte. Is het plafond niet te verhogen?
@orf Het hele huis staat dus al scheef, dus alle vloeren, plafonds en meubels etc. En dat dus al jaren. Huidige badkamer zit er al iets van 25 jaar in welke mijn pa deels zelf heeft gemaakt. Geen enkel probleem tot ongeveer nu.
Mocht de vloer waterpas worden gemaakt moeten de tegels juist scheef gesneden worden. Tenzij het plafond ook recht getrokken word. (Dan nog zit je met de muren/hoeken)
Alleen geeft dat dus nog meer problemen op. Het dakkapel mag eigenlijk niet meer hoger dus zou het plafond naar beneden recht moeten worden getrokken, dat betekent dus nog minder hoogte.
Plafond is dus van het dakkapel, deze zou dus niet hoger mogen / kunnen (oid?)
beter nagemeten en aangepast in vorige berichten. Hoogte ipv 2000mm nu 2100mm. Schuinte bedraagt 37mm/m
Mocht de vloer waterpas worden gemaakt moeten de tegels juist scheef gesneden worden. Tenzij het plafond ook recht getrokken word. (Dan nog zit je met de muren/hoeken)
Alleen geeft dat dus nog meer problemen op. Het dakkapel mag eigenlijk niet meer hoger dus zou het plafond naar beneden recht moeten worden getrokken, dat betekent dus nog minder hoogte.
Plafond is dus van het dakkapel, deze zou dus niet hoger mogen / kunnen (oid?)
beter nagemeten en aangepast in vorige berichten. Hoogte ipv 2000mm nu 2100mm. Schuinte bedraagt 37mm/m
[ Voor 7% gewijzigd door thijsco19 op 25-02-2020 19:14 ]
The only thing you need; a jar of "Elbow Grease" (TM) ! Apply it liberally and it will make any job a breeze.
Is dat een wastafel van Clou Hammock ? Hoe bevalt deze?orf schreef op dinsdag 18 februari 2020 @ 21:39:
Ik heb mijn badkamer hier nooit meer laten zien nadat ik hier om advies heb gevraagd. Uiteindelijk alles online besteld bij de goedkoopste aanbieders en de verbouwing zelf gedaan met hulp van mijn broer en vader. De gietvloer heb ik laten doen.
Het meest blij met de douche-wc en de fijne ruime douche. Het bad gebruik ik erg weinig.
[Afbeelding]
[Afbeelding]
[Afbeelding]
[Afbeelding]
[Afbeelding]
Nog een tip waar ik zelf tegenaan liep. Als je eenmaal bij Maxaro bent geweest is het wijs om eens te kijken bij Sani Design in Sint Oedenrode. Exact dezelfde meubelen, maar all-in prijzen. Je koopt meubels dus inclusief wastafels etc. Viel mij direct op dat men over het algemeen veel goedkoper is dan Maxaro en die is al niet duur. Dat komt omdat Sani zelf de fabrikant is
Klopt! Supermooie wastafel vind ik. Doordat hij zo mat is, zie je er wel snel iets op. Het is ook zo weer schoon, maar het is dus wel wat gevoeliger voor vlekken dan een glanzende wastafel. Het materiaal vind ik erg mooi en chique.SchumiFAST schreef op dinsdag 3 maart 2020 @ 10:47:
[...]
Is dat een wastafel van Clou Hammock ? Hoe bevalt deze?
Bij mij lopen de de wastafels minder hard leeg dan ik gehoopt had. Ik denk dat dat komt door beperkte ontluchting/beluchting in het riool, maar dat weet ik niet helemaal zeker. Daar moet ik nog even achteraan.
Beste Tweakers,
wij hebben een eerste grove schatting gekregen voor het verbouwen van onze badkamer. Enkel de verbouwingskosten bedragen 9000 euro.
Het betreft een badkamer van 2m bij 2.7m.
De werkzaamheden zijn:
- slopen (inclusief verlaagd plafond)
- leidingen verleggen waar nodig
- stucen (muren + plafond) + tegelen
- plaatsen van bad, inloopdouche, meubel, toilet etc.
Dit is dus exclusief de spullen nog. Wij vielen achterover van de prijs. Is dit absurd hoog, of is dit normaal voor een badkamer verbouwing?
Dit is bij Brugman. Omdat we ook de gehele beneden verdieping de vloer gaan vervangen ( + vloerverwarming) en ook een nieuwe keuken willen, hebben we 'gekozen' voor Brugman. Die verzorgen de gehele verbouwing in dit geval. Maar met de badkamer gaat er de helft van het budget al aan, de beste man dacht rond de 15-17k (budget is 30k).
We gaan iig een andere badkamer boer uit de omgeving (Roermond) vragen voor een offerte ter vergelijking.
Gr, Ramon
wij hebben een eerste grove schatting gekregen voor het verbouwen van onze badkamer. Enkel de verbouwingskosten bedragen 9000 euro.
Het betreft een badkamer van 2m bij 2.7m.
De werkzaamheden zijn:
- slopen (inclusief verlaagd plafond)
- leidingen verleggen waar nodig
- stucen (muren + plafond) + tegelen
- plaatsen van bad, inloopdouche, meubel, toilet etc.
Dit is dus exclusief de spullen nog. Wij vielen achterover van de prijs. Is dit absurd hoog, of is dit normaal voor een badkamer verbouwing?
Dit is bij Brugman. Omdat we ook de gehele beneden verdieping de vloer gaan vervangen ( + vloerverwarming) en ook een nieuwe keuken willen, hebben we 'gekozen' voor Brugman. Die verzorgen de gehele verbouwing in dit geval. Maar met de badkamer gaat er de helft van het budget al aan, de beste man dacht rond de 15-17k (budget is 30k).
We gaan iig een andere badkamer boer uit de omgeving (Roermond) vragen voor een offerte ter vergelijking.
Gr, Ramon
Dit is vrij normaal.SpeciesXX schreef op maandag 9 maart 2020 @ 08:26:
Beste Tweakers,
wij hebben een eerste grove schatting gekregen voor het verbouwen van onze badkamer. Enkel de verbouwingskosten bedragen 9000 euro.
Het betreft een badkamer van 2m bij 2.7m.
De werkzaamheden zijn:
- slopen (inclusief verlaagd plafond)
- leidingen verleggen waar nodig
- stucen (muren + plafond) + tegelen
- plaatsen van bad, inloopdouche, meubel, toilet etc.
Dit is dus exclusief de spullen nog. Wij vielen achterover van de prijs. Is dit absurd hoog, of is dit normaal voor een badkamer verbouwing?
Dit is bij Brugman. Omdat we ook de gehele beneden verdieping de vloer gaan vervangen ( + vloerverwarming) en ook een nieuwe keuken willen, hebben we 'gekozen' voor Brugman. Die verzorgen de gehele verbouwing in dit geval. Maar met de badkamer gaat er de helft van het budget al aan, de beste man dacht rond de 15-17k (budget is 30k).
We gaan iig een andere badkamer boer uit de omgeving (Roermond) vragen voor een offerte ter vergelijking.
Gr, Ramon
Ik doe veel dingen zelf en nog zijn de arbeidskosten van de verbouwing voor een kleine badkamer ong 8k.
En dan moet je nog het sanitair halen. Wij komen totaal op 13k euro uit voor een badkamer van ong. 7m2.
Dit is bij een klusjesman uit de buurt en ik doe zelf de elektra en verlaagd plafond.
Kijk hier eens in Dusseldorf. Ze hebben echt veel dingen online staan en doorgaans 15-20% goedkoper dan bij nederlandse badkamerboeren.
https://www.reuter.de/
Tegels halen wij bij Tegel Outlet Tienray. Ook niet heel ver van Roermond.
Voor een iets grotere badkamer (2.45*2.75) met vergelijkbaar werk waren wij anderhalf jaar terug zo'n 7500 kwijt voor de aannemer. Maar offertes gekregen in de range van 6000 tot 15500 (ja, echt). Slopen en afval afvoeren heb ik toen zelf gedaan. Kosten voor materiaal waren ruim 4000 bij X2O en een lokale tegelboer.SpeciesXX schreef op maandag 9 maart 2020 @ 08:26:
Beste Tweakers,
wij hebben een eerste grove schatting gekregen voor het verbouwen van onze badkamer. Enkel de verbouwingskosten bedragen 9000 euro.
Het betreft een badkamer van 2m bij 2.7m.
De werkzaamheden zijn:
- slopen (inclusief verlaagd plafond)
- leidingen verleggen waar nodig
- stucen (muren + plafond) + tegelen
- plaatsen van bad, inloopdouche, meubel, toilet etc.
Dit is dus exclusief de spullen nog. Wij vielen achterover van de prijs. Is dit absurd hoog, of is dit normaal voor een badkamer verbouwing?
Dit is bij Brugman. Omdat we ook de gehele beneden verdieping de vloer gaan vervangen ( + vloerverwarming) en ook een nieuwe keuken willen, hebben we 'gekozen' voor Brugman. Die verzorgen de gehele verbouwing in dit geval. Maar met de badkamer gaat er de helft van het budget al aan, de beste man dacht rond de 15-17k (budget is 30k).
We gaan iig een andere badkamer boer uit de omgeving (Roermond) vragen voor een offerte ter vergelijking.
Gr, Ramon
Wel heb ik destijds van meerdere mensen de tip gekregen die ik jou nu ook geef: je krijgt beter resultaat als je zelf een aannemer zoekt en betaald dan dat je dat via de badkamerboer doet. Ze zijn niet allemaal hetzelfde, maar alles wat aan DMG gerelateerd is (en dat is Brugman ook), gaat simpelweg zelf de markt op met jouw klus. Degene die het laagste bod doet wordt nog net iets verder uitgeknepen en krijgt dan de klus. Zelf zet Brugman dan nog iets bovenop die prijs. Wat je dan dus hebt is een aannemer die te weinig tijd heeft voor de klus c.q. er te weinig voor betaald krijgt. De kwaliteit kan daaronder lijden. En jij betaalt alsnog teveel.
Tjolk is lekker. overal en altijd.
Thanks voor de reacties. Zijn er wellicht vlak over de grens (Duitsland) in de buurt van limburg nog bedrijven die zowel badkamer als keuken en vloer (+voerverwarming) verzorgen? Wellicht interessant om de prijs te vergelijken.
Waarom je voorkeur voor alles bij 1 leverancier? Wij zitten in soort gelijke situatie; we zijn bezig met nieuwe badkamer + uitbouw incl vloerverwarming en compleet nieuwe keuken en vind het juist prettig dat we bij verschillende badkamer, keuken en vloerbedrijven offertes kunnen opvragen en kan je echt kiezen wat je wil en wie de beste prijs heeft.SpeciesXX schreef op maandag 9 maart 2020 @ 08:26:
Beste Tweakers,
wij hebben een eerste grove schatting gekregen voor het verbouwen van onze badkamer. Enkel de verbouwingskosten bedragen 9000 euro.
Het betreft een badkamer van 2m bij 2.7m.
De werkzaamheden zijn:
- slopen (inclusief verlaagd plafond)
- leidingen verleggen waar nodig
- stucen (muren + plafond) + tegelen
- plaatsen van bad, inloopdouche, meubel, toilet etc.
Dit is dus exclusief de spullen nog. Wij vielen achterover van de prijs. Is dit absurd hoog, of is dit normaal voor een badkamer verbouwing?
Dit is bij Brugman. Omdat we ook de gehele beneden verdieping de vloer gaan vervangen ( + vloerverwarming) en ook een nieuwe keuken willen, hebben we 'gekozen' voor Brugman. Die verzorgen de gehele verbouwing in dit geval. Maar met de badkamer gaat er de helft van het budget al aan, de beste man dacht rond de 15-17k (budget is 30k).
We gaan iig een andere badkamer boer uit de omgeving (Roermond) vragen voor een offerte ter vergelijking.
Gr, Ramon
We hebben wel 1 vast klusbedrijf voor de uitbouw+vloerverwarming+badkamer (kosten 7600 euro voor onze badkamer van 2x3m. Wel excl verleggen leidingwerk want alles komt op huidige plek terug maar wel incl vernieuwen riool tbv toilet)
Ik heb zelf recent een offerte gehad van een lokaal klusbedrijf voor het verbouwen van mij badkamer en toilet.
Mijn eerste gedachte was dat het erg duur was, maar als ik het zo de verhalen van anderen lees is het denk ik gemiddeld. Het is wel een netjes gespecificeerde offerte.
Geen idee of dit reele prijzen zijn, Mijn grootste twijfel zit hem in het overtegelen van de muren in de badkamer.
Dit is wel de eerste offerte die we hebben ontvangen, we willen nog 2 offertes opvragen bij anderen om eea te kunnen vergelijken.
Mijn eerste gedachte was dat het erg duur was, maar als ik het zo de verhalen van anderen lees is het denk ik gemiddeld. Het is wel een netjes gespecificeerde offerte.
Members only:
Alleen zichtbaar voor ingelogde gebruikers.
Inloggen
Geen idee of dit reele prijzen zijn, Mijn grootste twijfel zit hem in het overtegelen van de muren in de badkamer.
Dit is wel de eerste offerte die we hebben ontvangen, we willen nog 2 offertes opvragen bij anderen om eea te kunnen vergelijken.
Volgens mij te duur. Gemiddeld kost 5m2 badkamer 5.000 euro. Dat kan best 6.000 zijn, maar geen 8.000 voor zo'n kleine ruimte.wokkelz schreef op maandag 9 maart 2020 @ 22:55:
Ik heb zelf recent een offerte gehad van een lokaal klusbedrijf voor het verbouwen van mij badkamer en toilet.
Mijn eerste gedachte was dat het erg duur was, maar als ik het zo de verhalen van anderen lees is het denk ik gemiddeld. Het is wel een netjes gespecificeerde offerte.
***members only***
Geen idee of dit reele prijzen zijn, Mijn grootste twijfel zit hem in het overtegelen van de muren in de badkamer.
Dit is wel de eerste offerte die we hebben ontvangen, we willen nog 2 offertes opvragen bij anderen om eea te kunnen vergelijken.
Gezien wat er bij ons is gedaan in 2018 is dit een prima offerte. Overtegelen is doorgaans prima te doen, je hebt eigenlijk 2 overwegingen:wokkelz schreef op maandag 9 maart 2020 @ 22:55:
Ik heb zelf recent een offerte gehad van een lokaal klusbedrijf voor het verbouwen van mij badkamer en toilet.
Mijn eerste gedachte was dat het erg duur was, maar als ik het zo de verhalen van anderen lees is het denk ik gemiddeld. Het is wel een netjes gespecificeerde offerte.
***members only***
Geen idee of dit reele prijzen zijn, Mijn grootste twijfel zit hem in het overtegelen van de muren in de badkamer.
Dit is wel de eerste offerte die we hebben ontvangen, we willen nog 2 offertes opvragen bij anderen om eea te kunnen vergelijken.
1. Het scheelt je ruimte; de boel wordt een tikkie krapper. Centimeterwerk natuurlijk.
2. Bij de deurpost ga je eventueel een afwerkrand aan de zijkant krijgen, Ligt aan de dikte en kwaliteit van de tegelzetter of dat storend is of niet.
Bij ons zaten er al 2 lagen tegels op en hebben we er vanzelfsprekend voor gekozen om ze weg te halen. Daar komt dan wel weer een laagje stuc aan te pas omdat je nooit 100% vlak bent na het weghalen van de tegels. Reken daarbij ook op een weekje droogtijd voordat de nieuwe tegels erop kunnen.
Dat slaat echt nergens op. Wel of niet voegen, wel of niet over bestaande tegels heen (en dus wel of niet slopen/glad stucen), hoeveel leidingwerk, verlaagd plafond...CryptoNL schreef op maandag 9 maart 2020 @ 23:27:
[...]
Volgens mij te duur. Gemiddeld kost 5m2 badkamer 5.000 euro. Dat kan best 6.000 zijn, maar geen 8.000 voor zo'n kleine ruimte.
Een vierkante meter prijs voor werk aan een badkamer is echt totaal uit de lucht gegrepen.
Tjolk is lekker. overal en altijd.
@Tjolk Gemiddeld is 5m2 5K. Gemiddeld he
Bel maar 5 bouwbedrijven op die zullen je waarschijnlijk hetzelfde vertellen. Ongeveer 1100 euro per m2 is de gemiddelde prijs op dit moment. Klopt ook als ik Google op; Wat kost een badkamer gemiddeld.
Ik denk dat je het dan over het materiaal hebt, want qua werk is daar niets van te zeggen. Ik heb in 2018 offertes gehad voor een badkamer 6.7 m² die uiteenliepen van 5.5k tot 15.5k. Da's omgerekend voor 5 m² dus 4100 tot 11500 euro.
Uiteindelijk is het meeste gewoon arbeid natuurlijk.
Uiteindelijk is het meeste gewoon arbeid natuurlijk.
Tjolk is lekker. overal en altijd.
Ik wil graag advies van jullie betreft grootte douchecabine. Badkamer is 2.60 x 2.40, na aftrekken breedte bad houden we 1.735 over. Hier staat standaard een inloopdouche van 90 x 90. We willen hier een douchecabine laten plaatsen van 120 x 90, dan houden we dus 53.5CM over voor openen deur cabine en inlopen. Is dit genoeg om comfortabel de deur te openen en in te lopen? De glazen deur wordt geopend naar de bad toe.
Op zich breed genoeg om doorheen te lopen, maar waarschijnlijk gaat het in de praktijk betekenen dat je vaker dan je eigenlijk wil met de deur tegen het bad bonkt. Ook al neem je je nog zo voor om voorzichtig te zijn.
Als alternatief kun je 2 halve deuren overwegen, die eventueel zelfs naar binnen toe openen. Dat kan qua diepte gemakkelijk, want dan heb je deuren van 45cm. Stapje naar achteren, deur open, klaar. Drupt er ook geen water buiten je douche op de grond.
Als alternatief kun je 2 halve deuren overwegen, die eventueel zelfs naar binnen toe openen. Dat kan qua diepte gemakkelijk, want dan heb je deuren van 45cm. Stapje naar achteren, deur open, klaar. Drupt er ook geen water buiten je douche op de grond.
Tjolk is lekker. overal en altijd.
Ik zou wel gaan voor een vlakke verticale design radiatior en die naast de deur plaatsen. Ziet er eern stuk mooier en praktischer uit.thijsco19 schreef op maandag 24 februari 2020 @ 21:32:
Aangezien we hier thuis nodig de badkamer moeten (en willen uiteraard) verbouwen maar eens hier een kijkje nemen voor wat advies en tips and tricks.
Het gaat om een ruim 80 jaar oud huis dat inmiddels al redelijk schuin staat (naar de straat toe). De vloer / constructie bestaat uit hout wat natuurlijk extra moeilijkheden met zich meebrengt.
We hebben al contact gehad met een bedrijf en er is al iemand wezen kijken. Die wilde de vloer recht trekken zodat deze weer waterpas loopt, hierdoor word de hoogte wel drastisch beperkt. (Wat beter nagemeten, schuinte is 37mm op een meter, dus tegen de muur leveren we iets meer als 80mm in alleen al met het waterpas maken van de vloer.)
Paar punten:
-De maten van de badkamer zijn (ongeveer), breedte: 1760mm, lengte 2220mm en hoogte 2100mm.
-Als je de badkamer inloopt loop je richting de straat, dus met de schuinte mee naar beneden.
-Er zit een lelijke schuinte in de ruimte, deze zit direct links op de vloer als je binnenkomt. Zal bij de foto's wel duidelijker worden. (hier loopt de trap onder)
-Er is een rand (buitenmuur) die 200mm naar binnenkomt tot een hoogte van 800mm.
ideeën en wensen:
-Er zit nu een bad in waar we graag vanaf willen, het idee is dus om een inloopdouche te creëren.
-Elektrische vloerverwarming.
-Regendouche.
Vragen:
1. Iemand ervaring met het creëren van een inloopdouche op een houten vloer constructie? Het bedrijf stelde voor om een doucheplaat te gebruiken.
2. Ervaringen met het in het plafond inbouwen van een regendouche? Wat is de hoogte van het plafond en hoeveel ruimte heb je boven het plafond nodig?
3. creatieve ideeën voor een indeling?
Hieronder een aantal foto's van 2 verschillende mogelijkheden. Let niet te veel op de kleuren of tegels, ik heb zomaar iets gekozen.
Idee 1; Zoals je kan zien, minimalistisch. In onderstaande situatie zit dat schuine geelde onder de wastafelset. Deze zal dan ook recht naar beneden dicht worden gemaakt zodat het schuine gedeelte weg word gewerkt. wastafelset is hier 1m breed.
[Afbeelding][Afbeelding][Afbeelding][Afbeelding]
Idee 2; Hierbij is het meubel verplaats naar de andere muur. Hierdoor zitten we helaas wel met dat schuine stuk. Dit hebben we nu recht getrokken om een soort 'bankje' te creëren. Tevens word de bovenkant van de wastafelset naar de muur getrokken zodat je extra ruimte heb om spullen neer te zetten. Daaronder word daardoor gelijk een vakje gecreëerd voor nog meer spullen (bijv. handdoeken).
[Afbeelding][Afbeelding]
Alvast bedankt
Kan iemand me helpen met het vinden van een bad ? lees ik zoek tips/advies.
We hebben nu een bad van 170x70 waarbij ik /we moeite hebben "onderwater" te liggen .. en de rest van het gezin heeft moeite "rechtop" te zitten .. (gebruiken tot ergenis een antislip mat)
Voor 200,- heb je al baden maar pff de keuze enzo .. en ga je naar een badwinkel(sanitairshop oid) kan je er wel in zitten maar dat is niet echt handig vergelijken.. immers niet gevuld met kleding aan.
En de verkoper zal het aan zijn sterretje roesten wat je koopt .. (lees niet echt hulpvaardig) of je moet het treffen ...
We hebben nu een bad van 170x70 waarbij ik /we moeite hebben "onderwater" te liggen .. en de rest van het gezin heeft moeite "rechtop" te zitten .. (gebruiken tot ergenis een antislip mat)
Voor 200,- heb je al baden maar pff de keuze enzo .. en ga je naar een badwinkel(sanitairshop oid) kan je er wel in zitten maar dat is niet echt handig vergelijken.. immers niet gevuld met kleding aan.
En de verkoper zal het aan zijn sterretje roesten wat je koopt .. (lees niet echt hulpvaardig) of je moet het treffen ...
[ Voor 11% gewijzigd door vso op 11-03-2020 08:27 ]
Tja vanalles
We hebben besloten voor het eerste ontwerp in mijn post. Beste manier om de schuine hoek op de vloer weg te werken en toch zo veel mogelijk ruimte te behouden.alki schreef op dinsdag 10 maart 2020 @ 14:41:
[...]
Ik zou wel gaan voor een vlakke verticale design radiatior en die naast de deur plaatsen. Ziet er eern stuk mooier en praktischer uit.
Designradiator hebben we wel overwogen.
Zeker mijn moeder vind dat minder mooi en ook minder praktisch met de handdoeken en kleding.
Zoals we het nu hebben is het vergelijkbaar met de situatie als op de plaatjes, alleen is er waar de inloop douche is een bad waardoor de radiator niet doorloopt.
De bovenste handdoekenstang loopt nu ook niet helemaal door richting de deur.
De reden om het zo te doen is dat je dan genoeg kwijt kan, niet alleen alle handdoeken maar ook kleding. En voor het drogen van de handdoeken is een radiator over de hele lengte natuurlijk ook handig.
Ik had overigens in het eerste ontwerp inderdaad een designradiator geplaatst in plaats van die handdoekstangen en radiator. Daar zijn we dus van teruggekomen.
Maandag waren we overigens langs geweest bij het bedrijf die het gaat doen. Er waren namelijk een aantal specifieke vragen over de offerte. Ook de situatie betreft de schuine vloer waterpas maken hebben we besproken en daar zijn goede opties voor genoemd zoals bijvoorbeeld de vloerbalken verlagen door een stukje vanaf te zagen (en eventueel extra balken plaatsen voor versteviging) zodat de vloer 'naar beneden' waterpas getrokken kan worden. Hierdoor maximaliseren we de hoogte bij de inloopdouche zodat er zelfs nog ruimte overblijft voor een regendouche. En er zal sowieso een douchebak komen.
Het idee is om alle muren niet te betegelen (in verband met het lijnenspel en de schuinte) maar af te werken met beton cire.
The only thing you need; a jar of "Elbow Grease" (TM) ! Apply it liberally and it will make any job a breeze.
Hoi allen,
Een jaar geleden hebben wij onze woning aangekocht en deze wordt momenteel gebouwd. De oplevering zal ergens rondom de bouwvak liggen. Nu hebben wij afgelopen week de eerste kijkdag gehad, waarbij het ons opviel dat de beluchting of een andere locatie zit als eerder aangegeven op de bouwtekeningen.
Wij moet nu helaas dus ons ontwerp van de badkamer gaan herzien en kijken naar wat wel mogelijk is. De locatie van de beluchting en betreffende buis zit op dit moment namelijk verwerkt in de ombouw van het toilet en de stenen douchewand. Bij het verplaatsen van het toilet naar onze voorkeurspositie, blijft de locatie van de beluchting natuurlijk behouden en betekend dat er een koof prominent aanwezig zal zijn en een obstakel vormt bij het toilet.
Feitelijke situatie:
/f/image/simif0CnLr1v6hf3tKFiGmnv.jpg?f=fotoalbum_large)
Schematisch overzicht zoals verkregen via de aannemer:

De badkamer wordt casco opgeleverd conform een vaste indeling van de locatie van de leidingen (zie tekening)
/f/image/BKP4lzE7d15aAZBtieJhQlTO.jpg?f=fotoalbum_large)
Graag hoor ik jullie ideeën en wellicht alternatieven. Wij hadden namelijk graag de badkamer laten inrichten conform onderstaande tekening. Maar dat zou inhouden dat de koof dan rondom je knieën zit en de vloer zou moeten worden opgehoogd om de afvoer van het toilet te verleggen.
/f/image/JUtlnrIINDrvQ59QaJBWqLmw.jpg?f=fotoalbum_large)
Alvast bedankt voor het meedenken!
Groet,
Thimo
Een jaar geleden hebben wij onze woning aangekocht en deze wordt momenteel gebouwd. De oplevering zal ergens rondom de bouwvak liggen. Nu hebben wij afgelopen week de eerste kijkdag gehad, waarbij het ons opviel dat de beluchting of een andere locatie zit als eerder aangegeven op de bouwtekeningen.
Wij moet nu helaas dus ons ontwerp van de badkamer gaan herzien en kijken naar wat wel mogelijk is. De locatie van de beluchting en betreffende buis zit op dit moment namelijk verwerkt in de ombouw van het toilet en de stenen douchewand. Bij het verplaatsen van het toilet naar onze voorkeurspositie, blijft de locatie van de beluchting natuurlijk behouden en betekend dat er een koof prominent aanwezig zal zijn en een obstakel vormt bij het toilet.
Feitelijke situatie:
/f/image/simif0CnLr1v6hf3tKFiGmnv.jpg?f=fotoalbum_large)
Schematisch overzicht zoals verkregen via de aannemer:

De badkamer wordt casco opgeleverd conform een vaste indeling van de locatie van de leidingen (zie tekening)
/f/image/BKP4lzE7d15aAZBtieJhQlTO.jpg?f=fotoalbum_large)
Graag hoor ik jullie ideeën en wellicht alternatieven. Wij hadden namelijk graag de badkamer laten inrichten conform onderstaande tekening. Maar dat zou inhouden dat de koof dan rondom je knieën zit en de vloer zou moeten worden opgehoogd om de afvoer van het toilet te verleggen.
/f/image/JUtlnrIINDrvQ59QaJBWqLmw.jpg?f=fotoalbum_large)
Alvast bedankt voor het meedenken!
Groet,
Thimo
[ Voor 27% gewijzigd door ThimoCoenderman op 12-03-2020 11:45 . Reden: aangepaste foto's ]
Linkjes werken niet.ThimoCoenderman schreef op donderdag 12 maart 2020 @ 11:38:
Hoi allen,
Een jaar geleden hebben wij onze woning aangekocht en deze wordt momenteel gebouwd. De oplevering zal ergens rondom de bouwvak liggen. Nu hebben wij afgelopen week de eerste kijkdag gehad, waarbij het ons opviel dat de beluchting of een andere locatie zit als eerder aangegeven op de bouwtekeningen.
Wij moet nu helaas dus ons ontwerp van de badkamer gaan herzien en kijken naar wat wel mogelijk is. De locatie van de beluchting en betreffende buis zit op dit moment namelijk verwerkt in de ombouw van het toilet en de stenen douchewand. Bij het verplaatsen van het toilet naar onze voorkeurspositie, blijft de locatie van de beluchting natuurlijk behouden en betekend dat er een koof prominent aanwezig zal zijn en een obstakel vormt bij het toilet.
Feitelijke situatie:
https://photos.google.com...pxBjWmm0_6P-6RhDXGEohV-DW
Schematisch overzicht zoals verkregen via de aannemer:
https://photos.google.com...-tt6738EB-b0g89c1Imixog4u
De badkamer wordt casco opgeleverd conform een vaste indeling van de locatie van de leidingen (zie tekening)
https://photos.google.com...xsh5zVAFlN5BoHBNOI9n39Ep7
Graag hoor ik jullie ideeën en wellicht alternatieven. Wij hadden namelijk graag de badkamer laten inrichten conform onderstaande tekening. Maar dat zou inhouden dat de koof dan rondom je knieën zit en de vloer zou moeten worden opgehoogd om de afvoer van het toilet te verleggen.
https://photos.google.com...tvSPabq317Y3d6OrH_O4raR0w
Alvast bedankt voor het meedenken!
Groet,
Thimo
Wellicht dat hier iemand dit herkent of weet!
Op dit moment gebruiken we een watermeter (Amphiro) om bewust om te gaan met douchen; deze is tussen de kraan en de handdouche geplaatst. Er gaat een nieuwe badkamer komen waarbij we mogelijk met een inbouwdouche gaan werken.
Ik kan echter geen oplossingen vinden die met inbouw zouden kunnen werken; ik kan mij echter bijna niet voorstellen dat dat er niet is. Any clues?
Op dit moment gebruiken we een watermeter (Amphiro) om bewust om te gaan met douchen; deze is tussen de kraan en de handdouche geplaatst. Er gaat een nieuwe badkamer komen waarbij we mogelijk met een inbouwdouche gaan werken.
Ik kan echter geen oplossingen vinden die met inbouw zouden kunnen werken; ik kan mij echter bijna niet voorstellen dat dat er niet is. Any clues?
Je kan toch ook een keer meten wat je nieuwe douchekop verbruikt in 1 minuut en dan een timer/wekkertje zetten?Korakal schreef op maandag 16 maart 2020 @ 08:47:
Wellicht dat hier iemand dit herkent of weet!
Op dit moment gebruiken we een watermeter (Amphiro) om bewust om te gaan met douchen; deze is tussen de kraan en de handdouche geplaatst. Er gaat een nieuwe badkamer komen waarbij we mogelijk met een inbouwdouche gaan werken.
Ik kan echter geen oplossingen vinden die met inbouw zouden kunnen werken; ik kan mij echter bijna niet voorstellen dat dat er niet is. Any clues?
Die zijn er zat te vinden waterdicht
Even showen..
30 maart krijgen wij de sleutel van ons nieuwe huis. Badkamer gaan we vervangen, en wordt dan zoiets:
/f/image/UzyU8lE47u7YIZ1IkBsDGh4M.png?f=fotoalbum_large)
/f/image/f4MhKsl85PkePONWOFo6x5cM.png?f=fotoalbum_large)
Best wat zitten puzzelen met de indeling, maar dit lijkt toch het efficients. Links dus de douchehoek, kasten worden op maat gemaat, en dan is er precies genoeg ruimte voor het toilet.
Probleem was onder andere dat er dus een buitenraam zit in het midden van de lange wand, dus andere indelingen waren allemaal niet erg handig..
Die onderkant van die hoge kast krijgt twee kiepdeuren waar de wasmanden dan op gezet worden, zodat die mooi mee open klappen (gebaseerd op https://www.eigenhuisentu...een/diy-uitklap-wasmanden)
30 maart krijgen wij de sleutel van ons nieuwe huis. Badkamer gaan we vervangen, en wordt dan zoiets:
/f/image/UzyU8lE47u7YIZ1IkBsDGh4M.png?f=fotoalbum_large)
/f/image/f4MhKsl85PkePONWOFo6x5cM.png?f=fotoalbum_large)
Best wat zitten puzzelen met de indeling, maar dit lijkt toch het efficients. Links dus de douchehoek, kasten worden op maat gemaat, en dan is er precies genoeg ruimte voor het toilet.
Probleem was onder andere dat er dus een buitenraam zit in het midden van de lange wand, dus andere indelingen waren allemaal niet erg handig..
Die onderkant van die hoge kast krijgt twee kiepdeuren waar de wasmanden dan op gezet worden, zodat die mooi mee open klappen (gebaseerd op https://www.eigenhuisentu...een/diy-uitklap-wasmanden)
[ Voor 25% gewijzigd door diabolofan op 18-03-2020 11:59 ]
Waarom laat je die kasten niet doorlopen in je badmeubel? Dus alles op dezelfde muur? Als het toch op maat gemaakt wordt.. Dat staat volgens mij veel mooier. Nu krijg je zo'n krap hoekje waar je wasbak staat.diabolofan schreef op woensdag 18 maart 2020 @ 11:55:
Even showen..
30 maart krijgen wij de sleutel van ons nieuwe huis. Badkamer gaan we vervangen, en wordt dan zoiets:
[Afbeelding]
[Afbeelding]
Best wat zitten puzzelen met de indeling, maar dit lijkt toch het efficients. Links dus de douchehoek, kasten worden op maat gemaat, en dan is er precies genoeg ruimte voor het toilet.
Probleem was onder andere dat er dus een buitenraam zit in het midden van de lange wand, dus andere indelingen waren allemaal niet erg handig..
Die onderkant van die hoge kast krijgt twee kiepdeuren waar de wasmanden dan op gezet worden, zodat die mooi mee open klappen (gebaseerd op https://www.eigenhuisentu...een/diy-uitklap-wasmanden)
Had ook een goede optie geweest inderdaad, maar heeft ook wat nadelen:
- Wasbak staat dus 'op' het kastje en kom dan uit op iets van 89 cm. Als je hem aan de lange muur zou doen zou dit dus boven de andere kast uitsteken, aangezien we daar zitten met het raam
- Vanaf de wc loopt er onder de wastafel een afvoerpijp in een koof van 20x20cm, deze zal daar altijd moeten zitten aangezien de afvoer niet in de vloer verwerkt kan worden (dus dat het vlak is). Daardoor houd je dan maar effectief 80 cm breedte van je wasbak over om te staan.
Nu is de ruimte tussen de wasbak (krijgt 2 kranen) en de andere kast 60 cm, dus niet heel ruim, maar opzich voldoende om daar comfortabel met 2 personen te staan (althans dat hoop ik
)
- Wasbak staat dus 'op' het kastje en kom dan uit op iets van 89 cm. Als je hem aan de lange muur zou doen zou dit dus boven de andere kast uitsteken, aangezien we daar zitten met het raam
- Vanaf de wc loopt er onder de wastafel een afvoerpijp in een koof van 20x20cm, deze zal daar altijd moeten zitten aangezien de afvoer niet in de vloer verwerkt kan worden (dus dat het vlak is). Daardoor houd je dan maar effectief 80 cm breedte van je wasbak over om te staan.
Nu is de ruimte tussen de wasbak (krijgt 2 kranen) en de andere kast 60 cm, dus niet heel ruim, maar opzich voldoende om daar comfortabel met 2 personen te staan (althans dat hoop ik
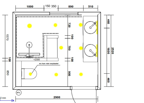
Ik moet een verbouwingsspecificatie invullen voor het meerwerk van onze nog te bouwen woning. Badkamer is 2100 * 2510. Is +/- 10.000 reëel of veel te veel? Hoeft geen topsegment, maar ook zeker geen basis.
- Toilet
- Dubbele wastafel
- Meubels
- Douche (duh)
incl materialen, installatie en tegels. Badkamer wordt casco opgeleverd door aannemer.
En nu we toch bezig zijn, wat kost een toilet doorgaans?
Ik moet dus echt ballpark een schatting hebben maar ik heb geen idee.
- Toilet
- Dubbele wastafel
- Meubels
- Douche (duh)
incl materialen, installatie en tegels. Badkamer wordt casco opgeleverd door aannemer.
En nu we toch bezig zijn, wat kost een toilet doorgaans?
Ik moet dus echt ballpark een schatting hebben maar ik heb geen idee.
If it aint fixed, it's broken.
Als je het volledig uitbesteed is 10k waarschijnlijk te weinig. Ik zou 15k aanhouden voor de badkamer en 4k voor het toilet.Tjebakka schreef op donderdag 19 maart 2020 @ 09:54:
Ik moet een verbouwingsspecificatie invullen voor het meerwerk van onze nog te bouwen woning. Badkamer is 2100 * 2510. Is +/- 10.000 reëel of veel te veel? Hoeft geen topsegment, maar ook zeker geen basis.
- Toilet
- Dubbele wastafel
- Meubels
- Douche (duh)
incl materialen, installatie en tegels. Badkamer wordt casco opgeleverd door aannemer.
En nu we toch bezig zijn, wat kost een toilet doorgaans?
Ik moet dus echt ballpark een schatting hebben maar ik heb geen idee.
Untappd: Kapitein_Merijn
15k? Voor een badkamer van 5,2m2? Dat vind ik erg fors. Er hoeft niet te worden verbouwd en de ruimte is compact.Kapitein Merijn schreef op donderdag 19 maart 2020 @ 09:59:
[...]
Als je het volledig uitbesteed is 10k waarschijnlijk te weinig. Ik zou 15k aanhouden voor de badkamer en 4k voor het toilet.
If it aint fixed, it's broken.
Lees dit topic eens door zou ik zeggen.Tjebakka schreef op donderdag 19 maart 2020 @ 10:09:
[...]
15k? Voor een badkamer van 5,2m2? Dat vind ik erg fors. Er hoeft niet te worden verbouwd en de ruimte is compact.
Untappd: Kapitein_Merijn
Reken op 15K waarbij minstens de helft arbeidsloon is. Je kunt bijna niet bezuinigen op arbeidsloon (tenzij je het zelf doet) en je moet dus voor hele goedkope materialen kiezen wil je in de buurt van 10K komen.Tjebakka schreef op donderdag 19 maart 2020 @ 10:09:
[...]
15k? Voor een badkamer van 5,2m2? Dat vind ik erg fors. Er hoeft niet te worden verbouwd en de ruimte is compact.
Thanks heren, ik had het inderdaad iets te voordelig voorgesteld!
If it aint fixed, it's broken.
Ah, is het raam daar zo laag dan? Zonde, want zou wel een stuk strakker staandiabolofan schreef op donderdag 19 maart 2020 @ 08:55:
Had ook een goede optie geweest inderdaad, maar heeft ook wat nadelen:
- Wasbak staat dus 'op' het kastje en kom dan uit op iets van 89 cm. Als je hem aan de lange muur zou doen zou dit dus boven de andere kast uitsteken, aangezien we daar zitten met het raam
- Vanaf de wc loopt er onder de wastafel een afvoerpijp in een koof van 20x20cm, deze zal daar altijd moeten zitten aangezien de afvoer niet in de vloer verwerkt kan worden (dus dat het vlak is). Daardoor houd je dan maar effectief 80 cm breedte van je wasbak over om te staan.
Nu is de ruimte tussen de wasbak (krijgt 2 kranen) en de andere kast 60 cm, dus niet heel ruim, maar opzich voldoende om daar comfortabel met 2 personen te staan (althans dat hoop ik)
Ik ben bezig met het "verlichtingsplan" voor de badkamer en zou graag wat input willen.
Er zit 1 raam in de badkamer, welke is voorzien van matglas (dus beperkter licht). De gestreepte wanden en de vloer zijn voorzien van echt donkere tegels. De overige wanden worden voorzien van betonstuc, licht grijs.
In het nisje komen 4 houten schappen, het zou mooi zijn als dit wat uitgelicht kan worden.
Ik had in onderstaande afbeeldingen verlichting getekend.

Maar dan creëer ik volgens mij schaduw ter plaatse van het badkamermeubel? En het lijkt mij erg minimaal.
alternatief

Schaduw op badkamermeubel volgens mij opgelost. De spot ter plaatse van het nisje, mogelijk een andere armatuur?
Hebben jullie nog tips? En/of manier om het nisje mooi uit te lichten?
Er zit 1 raam in de badkamer, welke is voorzien van matglas (dus beperkter licht). De gestreepte wanden en de vloer zijn voorzien van echt donkere tegels. De overige wanden worden voorzien van betonstuc, licht grijs.
In het nisje komen 4 houten schappen, het zou mooi zijn als dit wat uitgelicht kan worden.
Ik had in onderstaande afbeeldingen verlichting getekend.

Maar dan creëer ik volgens mij schaduw ter plaatse van het badkamermeubel? En het lijkt mij erg minimaal.
alternatief

Schaduw op badkamermeubel volgens mij opgelost. De spot ter plaatse van het nisje, mogelijk een andere armatuur?
Hebben jullie nog tips? En/of manier om het nisje mooi uit te lichten?
Wij zijn uiteindelijk ook wezen kijken voor nieuwe badkmaer. En al het een en ander uitgezocht. Ik las dat meerdere mensen een Hotbath Cobber kranen hebben genomen die mat-zwart zijn. Hoe is jullie ervaring met het schoonhouden hiervan?
Ik ben van plan een waterontharder op basis van hars/zoutbad te nemen. Wij hebben vrij hard water in Leiden. Ik vind het persoonlijk wel meevallen vs Dordrecht waar ik hiervoor woonde.
We willen wel schoonmaken, maar weet niet of ik zin heb om direct na iedere douche alles schoon te boenen.
Ik ben van plan een waterontharder op basis van hars/zoutbad te nemen. Wij hebben vrij hard water in Leiden. Ik vind het persoonlijk wel meevallen vs Dordrecht waar ik hiervoor woonde.
We willen wel schoonmaken, maar weet niet of ik zin heb om direct na iedere douche alles schoon te boenen.
Ontwikkelaar van NPM library Gleamy
Binnenkort begint de bouw van ons nieuwbouwhuis. Hierbij zit een standaardbadkamer en wc beneden. Deze vonden we wat karig dus we hebben bij de aannemer die ook het huis gaat bouwen wat extra opties besproken. Dit betreft:
Nu vroeg ik me af, aangezien ik geen enkele ervaring heb over onderhandelen met zulke bedragen over hoeveel onderhandelingsruimte er is. Ik heb even een vergelijking gemaakt van als ik alle spullen zelf zou kopen plus de montagekosten, kosten aanpassen elektra, en nog wat andere posten die in de offerte gespecificeerd staan. Dan kom ik uit op een prijs van 5.200 euro. Een aardig bedrag dat we graag binnen onze hypotheek in bijvoorbeeld een wat luxere keuken zouden willen stoppen.
Ik denk dat 5.200 niet haalbaar is maar sommige onderdelen zijn bijna voor de helft van de prijs online te krijgen dus dat scheelt nogal. Ik ben nu van plan om op de offerte te reageren met deze observatie en simpelweg te vragen om een ruimere korting, waarbij ik refereer naar het bedrag van 5.200 wat ik zelf gevonden heb. Enige tips hoe je dit het best in kan steken? Bij voorbaat dank!
- een luxer toilet zowel op de badkamer als het toilet beneden
- toevoegen van een ligbad
- een groter meubel
- luxere kranen
- een andere douchecabine
- grotere tegels
- een aangepaste radiator (elektrisch, want warmtepomp)
Nu vroeg ik me af, aangezien ik geen enkele ervaring heb over onderhandelen met zulke bedragen over hoeveel onderhandelingsruimte er is. Ik heb even een vergelijking gemaakt van als ik alle spullen zelf zou kopen plus de montagekosten, kosten aanpassen elektra, en nog wat andere posten die in de offerte gespecificeerd staan. Dan kom ik uit op een prijs van 5.200 euro. Een aardig bedrag dat we graag binnen onze hypotheek in bijvoorbeeld een wat luxere keuken zouden willen stoppen.
Ik denk dat 5.200 niet haalbaar is maar sommige onderdelen zijn bijna voor de helft van de prijs online te krijgen dus dat scheelt nogal. Ik ben nu van plan om op de offerte te reageren met deze observatie en simpelweg te vragen om een ruimere korting, waarbij ik refereer naar het bedrag van 5.200 wat ik zelf gevonden heb. Enige tips hoe je dit het best in kan steken? Bij voorbaat dank!
Ik denk dat de kans dat je 50% extra mag betalen groter is dan dat je meer korting krijgt. Als ik lees wat aannemers tegenwoordig voor prijzen vragen mag je in je handjes knijpen met die 7700traaymakers schreef op vrijdag 27 maart 2020 @ 23:20:
Binnenkort begint de bouw van ons nieuwbouwhuis. Hierbij zit een standaardbadkamer en wc beneden. Deze vonden we wat karig dus we hebben bij de aannemer die ook het huis gaat bouwen wat extra opties besproken. Dit betreft:Bij elkaar komt de meerprijs in de offerte op ongeveer 7.700 euro incl 5% korting en 21% B.T.W. . Er is een optie om casco op te leveren en met een andere leverancier in zee te gaan. We hebben besloten om dat in ieder geval niet te doen. We willen niet na de oplevering nog aan de bouw van een badkamer beginnen.
- een luxer toilet zowel op de badkamer als het toilet beneden
- toevoegen van een ligbad
- een groter meubel
- luxere kranen
- een andere douchecabine
- grotere tegels
- een aangepaste radiator (elektrisch, want warmtepomp)
Nu vroeg ik me af, aangezien ik geen enkele ervaring heb over onderhandelen met zulke bedragen over hoeveel onderhandelingsruimte er is. Ik heb even een vergelijking gemaakt van als ik alle spullen zelf zou kopen plus de montagekosten, kosten aanpassen elektra, en nog wat andere posten die in de offerte gespecificeerd staan. Dan kom ik uit op een prijs van 5.200 euro. Een aardig bedrag dat we graag binnen onze hypotheek in bijvoorbeeld een wat luxere keuken zouden willen stoppen.
Ik denk dat 5.200 niet haalbaar is maar sommige onderdelen zijn bijna voor de helft van de prijs online te krijgen dus dat scheelt nogal. Ik ben nu van plan om op de offerte te reageren met deze observatie en simpelweg te vragen om een ruimere korting, waarbij ik refereer naar het bedrag van 5.200 wat ik zelf gevonden heb. Enige tips hoe je dit het best in kan steken? Bij voorbaat dank!
Ik heb een betaalde 2025 WinRAR licentie (geen leugen)
Je plan is niet allen afhankelijk van waar komt t licht, maar ook wat voor een lichtbron.headhunter1985 schreef op dinsdag 24 maart 2020 @ 16:01:
Ik ben bezig met het "verlichtingsplan" voor de badkamer en zou graag wat input willen.
Er zit 1 raam in de badkamer, welke is voorzien van matglas (dus beperkter licht). De gestreepte wanden en de vloer zijn voorzien van echt donkere tegels. De overige wanden worden voorzien van betonstuc, licht grijs.
In het nisje komen 4 houten schappen, het zou mooi zijn als dit wat uitgelicht kan worden.
Ik had in onderstaande afbeeldingen verlichting getekend.
[Afbeelding]
Maar dan creëer ik volgens mij schaduw ter plaatse van het badkamermeubel? En het lijkt mij erg minimaal.
alternatief
[Afbeelding]
Schaduw op badkamermeubel volgens mij opgelost. De spot ter plaatse van het nisje, mogelijk een andere armatuur?
Hebben jullie nog tips? En/of manier om het nisje mooi uit te lichten?
Alles inbouwspot? Zijn ze dan kantelbaar? In 2 of meer richtingen? Als je goed zoekt op internet is er best wat moois te vinden in opbouw. Denk ook aan een hanglamp naast je meubel voor de sfeer.
@traaymakers
Kijk naar de zaken die je achteraf zelf makkelijk kan laten doen.
bv meubels en luxere kranen achter af zelf laten doen en die specifieke leidingen afgedopt laten.
In ons geval konden we de standaard wasbak en toebehoren laten vervallen. Van de douche- en badkraan mocht dat niet; die komen later op marktplaats.
Ik heb voor luxere tegels gekozen en die maar laten aanbrengen.
Na oplevering plaatsen we wel een mooie badmeubel met kranen en douchedeur.
Kijk naar de zaken die je achteraf zelf makkelijk kan laten doen.
bv meubels en luxere kranen achter af zelf laten doen en die specifieke leidingen afgedopt laten.
In ons geval konden we de standaard wasbak en toebehoren laten vervallen. Van de douche- en badkraan mocht dat niet; die komen later op marktplaats.
Ik heb voor luxere tegels gekozen en die maar laten aanbrengen.
Na oplevering plaatsen we wel een mooie badmeubel met kranen en douchedeur.
Haha, fair enoughleecher schreef op vrijdag 27 maart 2020 @ 23:37:
[...]
Ik denk dat de kans dat je 50% extra mag betalen groter is dan dat je meer korting krijgt. Als ik lees wat aannemers tegenwoordig voor prijzen vragen mag je in je handjes knijpen met die 7700
Bedankt, dat is wel een goed idee. Met mijn vriendin gisteren even besproken en we denken nu in ieder geval aan het meubel op een ander moment te doen. Het is niet zo essentieel en aardig aan de prijs. De kranen zijn ook een significante kostenpost en voor bijna de helft van de prijs te krijgen via webshops. Daar gaan we ook nog even over nadenkenNNCi schreef op zaterdag 28 maart 2020 @ 17:23:
@traaymakers
Kijk naar de zaken die je achteraf zelf makkelijk kan laten doen.
bv meubels en luxere kranen achter af zelf laten doen en die specifieke leidingen afgedopt laten.
In ons geval konden we de standaard wasbak en toebehoren laten vervallen. Van de douche- en badkraan mocht dat niet; die komen later op marktplaats.
Ik heb voor luxere tegels gekozen en die maar laten aanbrengen.
Na oplevering plaatsen we wel een mooie badmeubel met kranen en douchedeur.
De lichtbronnen in het plafond worden kantelbare spots. De verlichtingsstroken bij het badmeubel komen van de verlichting van de spiegelsivonb schreef op zaterdag 28 maart 2020 @ 06:37:
[...]
Je plan is niet allen afhankelijk van waar komt t licht, maar ook wat voor een lichtbron.
Alles inbouwspot? Zijn ze dan kantelbaar? In 2 of meer richtingen? Als je goed zoekt op internet is er best wat moois te vinden in opbouw. Denk ook aan een hanglamp naast je meubel voor de sfeer.
Verwijderd
Leuk voor je, wat schuift dat spammen op sites nou?
[ Voor 82% gewijzigd door Señor Sjon op 01-04-2020 12:23 ]
Er zijn dingen die je kan vervangen zonder sporen achter te laten. Bijvoorbeeld een toilet kan je gewoon omwisselen. Daar hoeft niet bij geboord te worden. Een kraan kan je ook zo vervangen zonder sporen maar bijvoorbeeld de glijslang van de douche die bevestig je bij ieder ander type op een andere hoogte.traaymakers schreef op vrijdag 27 maart 2020 @ 23:20:
Binnenkort begint de bouw van ons nieuwbouwhuis. Hierbij zit een standaardbadkamer en wc beneden. Deze vonden we wat karig dus we hebben bij de aannemer die ook het huis gaat bouwen wat extra opties besproken. Dit betreft:Bij elkaar komt de meerprijs in de offerte op ongeveer 7.700 euro incl 5% korting en 21% B.T.W. . Er is een optie om casco op te leveren en met een andere leverancier in zee te gaan. We hebben besloten om dat in ieder geval niet te doen. We willen niet na de oplevering nog aan de bouw van een badkamer beginnen.
- een luxer toilet zowel op de badkamer als het toilet beneden
- toevoegen van een ligbad
- een groter meubel
- luxere kranen
- een andere douchecabine
- grotere tegels
- een aangepaste radiator (elektrisch, want warmtepomp)
Nu vroeg ik me af, aangezien ik geen enkele ervaring heb over onderhandelen met zulke bedragen over hoeveel onderhandelingsruimte er is. Ik heb even een vergelijking gemaakt van als ik alle spullen zelf zou kopen plus de montagekosten, kosten aanpassen elektra, en nog wat andere posten die in de offerte gespecificeerd staan. Dan kom ik uit op een prijs van 5.200 euro. Een aardig bedrag dat we graag binnen onze hypotheek in bijvoorbeeld een wat luxere keuken zouden willen stoppen.
Ik denk dat 5.200 niet haalbaar is maar sommige onderdelen zijn bijna voor de helft van de prijs online te krijgen dus dat scheelt nogal. Ik ben nu van plan om op de offerte te reageren met deze observatie en simpelweg te vragen om een ruimere korting, waarbij ik refereer naar het bedrag van 5.200 wat ik zelf gevonden heb. Enige tips hoe je dit het best in kan steken? Bij voorbaat dank!
Een wastafel laat ook gaten achter. Mocht je kunnen laten opleveren zonder wastafel/spiegel kies dan daarvoor. Een vriend van mij had de standaard wastafel laten plaatsen en na oplevering een meubel opgehangen. Boven de spoelbak zaten lelijke boorgaten. Dat is zo lelijk!
@T.E , die situatie van je vriend is echt eeuwig zonde
Zelf hopen we dat met de eerste kijkdag de badkamer afgetegeld is en de posities van de afgedopte leidingen nagemeten kunnen worden. Standaard wastafel komt er bij ons nl. niet.
We hadden al een aantal ideeën voor een nieuwe badmeubel op het oog, maar door dit verhaal gaan we zeker wachten met bestellen tot de aannemer klaar is met zijn deel.

Zelf hopen we dat met de eerste kijkdag de badkamer afgetegeld is en de posities van de afgedopte leidingen nagemeten kunnen worden. Standaard wastafel komt er bij ons nl. niet.
We hadden al een aantal ideeën voor een nieuwe badmeubel op het oog, maar door dit verhaal gaan we zeker wachten met bestellen tot de aannemer klaar is met zijn deel.
Dit jaar willen wij onze 25 jaar oude badkamer (laten) verbouwen. Omdat we redelijk geldbewust zijn en het een uitdaging vinden om zoveel mogelijk 'return' voor je geld te krijgen, zoeken wij naar een manier om kosten te drukken. Dit topic daarom aardig doorgespit op tips en tricks, wat een goed beeld geeft van de mogelijkheden. In het kort kopen wij zelf de hoofdmaterialen in zoals tegels, meubels en kranen en laten de montage en kluswerkzaamheden over aan een aannemer. Slopen doen we zelf.
Het lastigste is voor ons het vinden van een goede en betrouwbare aannemer. Zeker aangezien wij onlangs een onaangename ervaring hadden met op het oog een betrouwbare klusjesman, die zijn afspraken helaas niet nakwam. In onze omgeving heb ik rondgevraagd, maar heb geen aanbevelingen kunnen krijgen. Naast de klus plaatsen op Werkspot en wat lokale aannemers bellen heb ik geen goede methode, tips of naam kunnen vinden die een betrouwbare, goede aannemer oplevert. Hoe zijn jullie omgegaan met het uitzoeken van de uitvoerende partij?
Het lastigste is voor ons het vinden van een goede en betrouwbare aannemer. Zeker aangezien wij onlangs een onaangename ervaring hadden met op het oog een betrouwbare klusjesman, die zijn afspraken helaas niet nakwam. In onze omgeving heb ik rondgevraagd, maar heb geen aanbevelingen kunnen krijgen. Naast de klus plaatsen op Werkspot en wat lokale aannemers bellen heb ik geen goede methode, tips of naam kunnen vinden die een betrouwbare, goede aannemer oplevert. Hoe zijn jullie omgegaan met het uitzoeken van de uitvoerende partij?
Via via werkt daarin het beste. Maar als het werk dan nog niet goed is, is het des te vervelender als je een bekende het werk hebt laten doen. Ik was het zoeken persoonlijk spuugzat en heb lekker alles via de keukenboer laten doen. Dan maar een €1500 meer betalen.
It's dogged that does it
Wij hebben ook recent onze badkamer laten doen, en hebben daarvoor bij verschillende bouwmarkten gevraagd met welke aannemers zij zelf samenwerken voor dat soort klussen. Ze maken naast eigen personeel namelijk ook vaak gebruik van externen die zij inhuren (en dus ook goed controleren). Van een aantal de contactgegevens gehad en die een offerte op laten stellen. Een daarvan sprong er zowel qua prijs als persoon (de 'klik' en het vertrouwen in een goede uitvoer) echt uit dus die kon voor ons aan de slag.TomG88 schreef op donderdag 16 april 2020 @ 12:38:
Hoe zijn jullie omgegaan met het uitzoeken van de uitvoerende partij?
Met een hamer past alles... - PVOutput
Beste allen,
In februari heb ik een huis gekocht met eerst het plan zo min mogelijk aan te passen en er zo snel mogelijk te wonen. Van het ene stukje schilderen naar het andere muurtje spackspuiten, nu toch ook maar gekozen om de badkamer mee te nemen.
Ik heb met niets ervaring, maar door dingen te lezen en goede hulp van familie en vrienden ben ik al aardig ver gekomen. Ook jullie hebben met 2 dingen meegedacht, waarvoor dank.
Goed, de badkamer gaat helemaal opnieuw opgezet worden:
De badkamer is 2 bij 1 meter. Kleiner kan dus bijna niet. Hierdoor kan je wel gaan voor wat duurdere tegels etc..
Eerst maar 2 foto's hoe het was voor het idee.
Ik heb nu alle blauwe tegels er al afgehaald en wasbak is ook weg. Leidingen zijn weg gewerkt in de muur, dus nu tijd voor mijn eigen tegels.
(pin me bij onderstaande niet vast aan de winkel of tegel, maar wel aan het idee wat ik wil
).
Op de vloer wil ik deze tegels doen:
https://www.tegeldepot.nl...raciet-doosinhoud-1-26-m2
Aan de wand:
https://www.tegeldepot.nl...-30x60cm-doosinhoud-1-44m
Met als speciale effect wil ik deze 'steenstrip' doen bij waar de douche komt, voor het centerparcs idee:
https://www.hornbach.nl/s...nker/5971533/artikel.html
De douche put:
https://www.hornbach.nl/s...7-cm/4664638/artikel.html
De douche deur. Hier een tijdje over zitten twijfelen. Een echte deur kan niet echt in zo'n klein hokje. een 50cm schuifdeur kan, maar ook dat wordt krap misschien. Deze leek mij ideaal:
https://www.tegeldepot.nl...00x200cm-8mm-nano-coating
Plafond. Ik wil denk ik gaan voor kunststof (of hoe het heet). Gewoon materiaal wat lang mee gaat als het eenmaal zit:
https://www.hornbach.nl/s...2-mm/7846358/artikel.html
Verlichting heb ik nog het minst over na gedacht. Misschien 4 spotjes?
https://www.hornbach.nl/s...taal/6599343/artikel.html
Wat vinden jullie van die lijstje? De douche en wasbak komt daarna wel.
Vragen die ik heb:
1. De vloer die je op de foto's ziet zit er nog in. Hoe kan ik het best een put kwijt in de douche. Boven op de bestaande vloer zetten, dan heb je minimale kans op lekkage in je huis. Of toch toch een opening maken in de bestaande vloer maken. Als het echt heel lastig wordt kies ik misschien voor de simpelste manier voor een put, maar het lijkt me gewoon mooi zo'n put
.
2. De 'steen strip' (https://www.hornbach.nl/s...nker/5971533/artikel.html)
Ik heb hier geen ervaring mee, je ziet het ook niet veel. Het lijkt me mooi om dit in (ongeveer) dezelfde kleur te hebben als de vloer tegels. het heet 'Antraciet' zie ik, maar de ene Antraciet is toch anders als de andere volgens mij.
Ik ben er ook nog niet helemaal uit wat die 'steenstrip' is. Het lijkt wat uit te steken, wat ik ook mooi vind en wil. Echt ongelijke stenen. Maar het is maar 3mm dik, dus dat maakt dat ik er aan twijfel. Ik was gisteren in de hornbach winkel, en daar zag ik dit soort tegels, met uitstekende delen (1cm zeg maar). Iemand een idee voor een alternatief?
Alle tips en trics zijn welkom. Alvast bedankt, al het meedenken wordt zeer gewaardeerd!
Fijn weekend.
In februari heb ik een huis gekocht met eerst het plan zo min mogelijk aan te passen en er zo snel mogelijk te wonen. Van het ene stukje schilderen naar het andere muurtje spackspuiten, nu toch ook maar gekozen om de badkamer mee te nemen.
Ik heb met niets ervaring, maar door dingen te lezen en goede hulp van familie en vrienden ben ik al aardig ver gekomen. Ook jullie hebben met 2 dingen meegedacht, waarvoor dank.
Goed, de badkamer gaat helemaal opnieuw opgezet worden:
De badkamer is 2 bij 1 meter. Kleiner kan dus bijna niet. Hierdoor kan je wel gaan voor wat duurdere tegels etc..
Eerst maar 2 foto's hoe het was voor het idee.
![]() | ![]() |
Ik heb nu alle blauwe tegels er al afgehaald en wasbak is ook weg. Leidingen zijn weg gewerkt in de muur, dus nu tijd voor mijn eigen tegels.
(pin me bij onderstaande niet vast aan de winkel of tegel, maar wel aan het idee wat ik wil
Op de vloer wil ik deze tegels doen:
https://www.tegeldepot.nl...raciet-doosinhoud-1-26-m2
Aan de wand:
https://www.tegeldepot.nl...-30x60cm-doosinhoud-1-44m
Met als speciale effect wil ik deze 'steenstrip' doen bij waar de douche komt, voor het centerparcs idee:
https://www.hornbach.nl/s...nker/5971533/artikel.html
De douche put:
https://www.hornbach.nl/s...7-cm/4664638/artikel.html
De douche deur. Hier een tijdje over zitten twijfelen. Een echte deur kan niet echt in zo'n klein hokje. een 50cm schuifdeur kan, maar ook dat wordt krap misschien. Deze leek mij ideaal:
https://www.tegeldepot.nl...00x200cm-8mm-nano-coating
Plafond. Ik wil denk ik gaan voor kunststof (of hoe het heet). Gewoon materiaal wat lang mee gaat als het eenmaal zit:
https://www.hornbach.nl/s...2-mm/7846358/artikel.html
Verlichting heb ik nog het minst over na gedacht. Misschien 4 spotjes?
https://www.hornbach.nl/s...taal/6599343/artikel.html
Wat vinden jullie van die lijstje? De douche en wasbak komt daarna wel.
Vragen die ik heb:
1. De vloer die je op de foto's ziet zit er nog in. Hoe kan ik het best een put kwijt in de douche. Boven op de bestaande vloer zetten, dan heb je minimale kans op lekkage in je huis. Of toch toch een opening maken in de bestaande vloer maken. Als het echt heel lastig wordt kies ik misschien voor de simpelste manier voor een put, maar het lijkt me gewoon mooi zo'n put
2. De 'steen strip' (https://www.hornbach.nl/s...nker/5971533/artikel.html)
Ik heb hier geen ervaring mee, je ziet het ook niet veel. Het lijkt me mooi om dit in (ongeveer) dezelfde kleur te hebben als de vloer tegels. het heet 'Antraciet' zie ik, maar de ene Antraciet is toch anders als de andere volgens mij.
Ik ben er ook nog niet helemaal uit wat die 'steenstrip' is. Het lijkt wat uit te steken, wat ik ook mooi vind en wil. Echt ongelijke stenen. Maar het is maar 3mm dik, dus dat maakt dat ik er aan twijfel. Ik was gisteren in de hornbach winkel, en daar zag ik dit soort tegels, met uitstekende delen (1cm zeg maar). Iemand een idee voor een alternatief?
Alle tips en trics zijn welkom. Alvast bedankt, al het meedenken wordt zeer gewaardeerd!
Fijn weekend.
Die steenstrip is een aluminium paneel wat gelamineerd is. Het is dus een plaat met een print en geen steen.
Echte steenstrips in de douche zou ik ook niet doen. Mijn broer heeft dit gehad in zijn badkamer en dat zag er al na een jaar niet meer uit omdat het niet schoon te houden is.
Echte steenstrips in de douche zou ik ook niet doen. Mijn broer heeft dit gehad in zijn badkamer en dat zag er al na een jaar niet meer uit omdat het niet schoon te houden is.
Untappd: Kapitein_Merijn