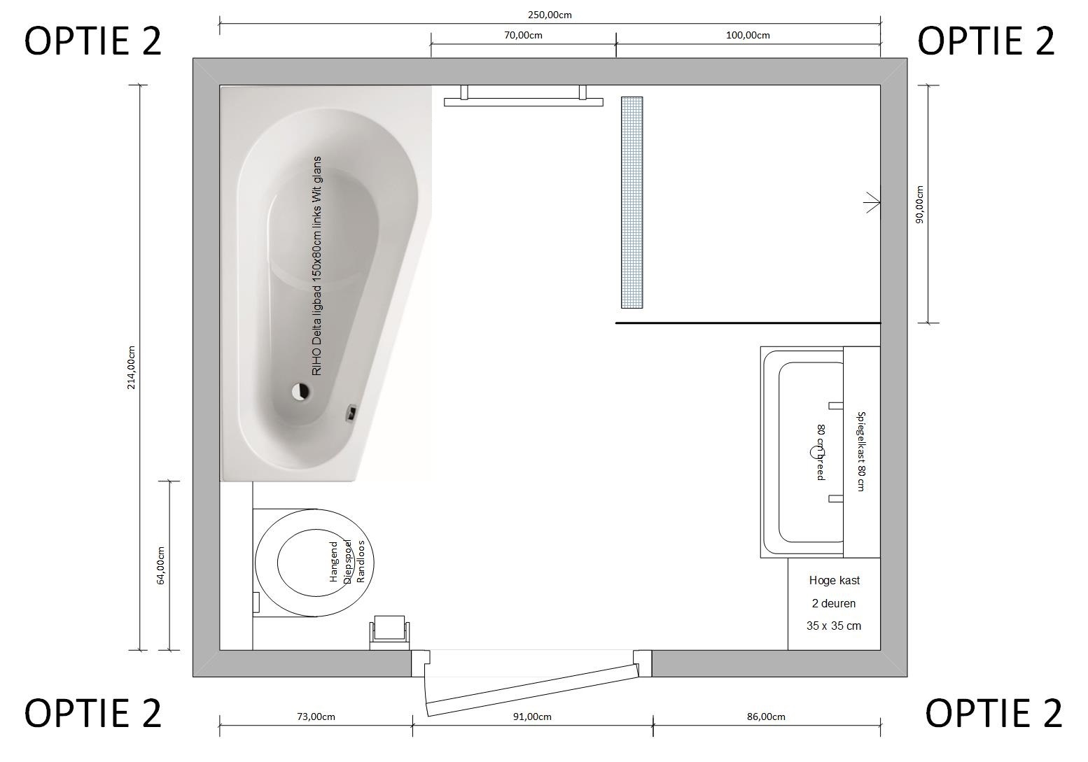
Ook bezig met het samenstellen van een badkamer voor onze nieuw te bouwen woning, projectbouw. We kunnen hiervoor de website 'uw huis, uw wensen' gebruiken. Wat me tegenstaat is dat ze spreken over een aantrekkelijke korting. Ja, er is een korting maar die is op de adviesprijs van de fabrikant en dus helemaal niet aantrekkelijk. Als ik dan de prijzen van de verschillende onderdelen op internet opzoek dan zijn ze nog minimaal een derde duurder. Soms scheelt het zelfs de helft. Dus dan toch ook dit maar weer na de bouw oppakken. Is het handig om de badkamer wel al door de bouwer te laten betegelen (standaard) en de indeling te veranderen (standaard optie)? Casco laten opleveren geeft (uiteraard) niet zoveel terug.
Ligt er maar net aan wat je met de tegels wil en wat de prijs daarin is. Bij lokale bouwshops (neelemans, Raab Karcher, etc) kun je vaak goede kwaliteitstegels kopen voor een goede prijs. Soms hebben lokale tegelzetters daar ook kortingsafspraken mee die ze dan (deels) weer doorberekenen aan jou.
Voor onze badkamer waren we een paar maanden terug voor alle tegels zo'n 800 euro kwijt (excl arbeid).
Voor onze badkamer waren we een paar maanden terug voor alle tegels zo'n 800 euro kwijt (excl arbeid).
Tjolk is lekker. overal en altijd.
Alles door de bouwer laten betegelen betekent dat je of heel veel geld betaald om alle leidingen door hen in de muren te laten frezen, of dat je leidingen over de tegels lopen. Dan hoef je alleen de kranen aan te sluiten en bespaar je in feite bijna niets.
Volledig casco levert in de praktijk het meeste geld op.
Volledig casco levert in de praktijk het meeste geld op.
Wij hebben de badkamer via de bouwer laten vervallen en dus casco oplevering;
dit hebben we niet gedaan omdat we dachten/hoopten goedkoper uit te zijn maar omdat wij bepaalde wensen hadden die door de bouwer niet gerealiseerd konden worden (bijv. wanden stucen ipv tegelen in badkamer).
Uiteindelijk hebben wij een badkamer die 100% onze wens is; gestucte wanden, vervallen van de radiotor en vv, verlaagd plafond met spotjes, inbouwkranen overal en alle producten van a-merken.
Bij de showroom die was aangesloten rekenen ze met advies prijzen; een subwat 2.0 kost daar 880€ (exc zitting) terwijl bij de winkel waar we nu zijn geweest ongeveer de helft.
dit hebben we niet gedaan omdat we dachten/hoopten goedkoper uit te zijn maar omdat wij bepaalde wensen hadden die door de bouwer niet gerealiseerd konden worden (bijv. wanden stucen ipv tegelen in badkamer).
Uiteindelijk hebben wij een badkamer die 100% onze wens is; gestucte wanden, vervallen van de radiotor en vv, verlaagd plafond met spotjes, inbouwkranen overal en alle producten van a-merken.
Bij de showroom die was aangesloten rekenen ze met advies prijzen; een subwat 2.0 kost daar 880€ (exc zitting) terwijl bij de winkel waar we nu zijn geweest ongeveer de helft.
Zijn hier mensen die ervaring hebben met die wastafels sets van IKEA? Blijft dat een paar jaar beetje mooi?
Om budget wat te temperen overweeg ik om zo'n meubel aan te schaffen.
Prijs ligt dan rond de 600. Ik begrijp dat ik niet de zelfde kwaliteit kan verwachten dan een set van de 5000.
Om budget wat te temperen overweeg ik om zo'n meubel aan te schaffen.
Prijs ligt dan rond de 600. Ik begrijp dat ik niet de zelfde kwaliteit kan verwachten dan een set van de 5000.
Heb nu 7 jaar een Godmorgon van de ikea en die is nog steeds perfect.FrankSpin schreef op vrijdag 15 februari 2019 @ 14:45:
Zijn hier mensen die ervaring hebben met die wastafels sets van IKEA? Blijft dat een paar jaar beetje mooi?
Om budget wat te temperen overweeg ik om zo'n meubel aan te schaffen.
Prijs ligt dan rond de 600. Ik begrijp dat ik niet de zelfde kwaliteit kan verwachten dan een set van de 5000.
FCG
Dank voor de reacties. Bij casco geven ze 1765 euro terug. Dat is dus volledig betegelen badkamer en standaard sanitair wat wegvalt. Ook de cementdekvloer valt weg. Ik begrijp alleen je opmerking over de leidingen over de tegels lopen niet helemaal. Ik neem toch aan dat ze alles netjes betegelen en de leidingen wegwerken en dan afdoppen. Ik zou dan in principe gewoon de betegeling en toilet behouden. De rest dan door een vakman laten doen.. Dat leek mij makkelijker om als klus uit te besteden dan de volledige badkamer inclusief betegelen. Maar als ik jullie zo lees moet dat geen probleem zijn.Den_S85 schreef op vrijdag 15 februari 2019 @ 14:43:
Alles door de bouwer laten betegelen betekent dat je of heel veel geld betaald om alle leidingen door hen in de muren te laten frezen, of dat je leidingen over de tegels lopen. Dan hoef je alleen de kranen aan te sluiten en bespaar je in feite bijna niets.
Volledig casco levert in de praktijk het meeste geld op.
Verschilt wellicht per bouwer; maar onze bouwer deed geen 'halve badkamer' ; oftewel; het was of casco; of volledig via hen. Wat jij zelf ook wilt want anders gaan ze naar elkaar wijzen in het geval van een manko.
Je weet wat ze over aannames zeggen.Vak127 schreef op vrijdag 15 februari 2019 @ 16:00:
[...]
Ik begrijp alleen je opmerking over de leidingen over de tegels lopen niet helemaal. Ik neem toch aan dat ze alles netjes betegelen en de leidingen wegwerken en dan afdoppen.
Deze week is dan eindelijk de tegelzetter begonnen in de badkamer. Ik laat ook een muurtje maken. Maar kom net van het huis, maar hij heeft de wand al helemaal betegeld. Maar is het niet eerst dat het muurtje had moeten worden geplaatst en vervolgens moeten worden betegeld? Ik zie hem maandag weer, maar lijkt mij een vreemde volgorde. Of heb ik dat verkeerd?
Wij hebben ook al heel lang een Ikea wastafel. Geen enkel probleem. Ik heb wel een voorkeur voor keramiek. Die kunststof bakken waren overal in de showrooms al gekrast. Niet alleen bij IKEA overigens...FrankSpin schreef op vrijdag 15 februari 2019 @ 14:45:
Zijn hier mensen die ervaring hebben met die wastafels sets van IKEA? Blijft dat een paar jaar beetje mooi?
Om budget wat te temperen overweeg ik om zo'n meubel aan te schaffen.
Prijs ligt dan rond de 600. Ik begrijp dat ik niet de zelfde kwaliteit kan verwachten dan een set van de 5000.
WP: Toshiba Estia 8kW split HWT-801H(R)W-E + HWT-1101 binnenunit met 300 liter SWW tank. PV: 4 strings, totaal 12590 Wp
Geslaagd voor tegels. godzijdank.
Afgelopen weekend geweest bij x2o. Sodeju wat zijn badkamermeubels duur als je iets moois wil. Valt er bij x2o nog te 'pingelen' dat jullie weten?
Afgelopen weekend geweest bij x2o. Sodeju wat zijn badkamermeubels duur als je iets moois wil. Valt er bij x2o nog te 'pingelen' dat jullie weten?
Dat heb je niet verkeerd, eerst de basis neerzetten en dan pas tegelen. Nu kun je dus een deel van de tegels weer (laten) afbikken, muurtje plaatsen en dan weer laten tegelen.Xtince schreef op vrijdag 15 februari 2019 @ 22:13:
Deze week is dan eindelijk de tegelzetter begonnen in de badkamer. Ik laat ook een muurtje maken. Maar kom net van het huis, maar hij heeft de wand al helemaal betegeld. Maar is het niet eerst dat het muurtje had moeten worden geplaatst en vervolgens moeten worden betegeld? Ik zie hem maandag weer, maar lijkt mij een vreemde volgorde. Of heb ik dat verkeerd?
Heb je de tegelzetter vantevoren verteld dat er nog een muurtje moest komen? Anders kan ik me voorstellen dat hij met de grote vlakken begint.
Tegelzetter wist idd dat er nog een muurtje moest komen (moest hij zelf metselenDen_S85 schreef op maandag 18 februari 2019 @ 15:23:
[...]
Dat heb je niet verkeerd, eerst de basis neerzetten en dan pas tegelen. Nu kun je dus een deel van de tegels weer (laten) afbikken, muurtje plaatsen en dan weer laten tegelen.
Heb je de tegelzetter vantevoren verteld dat er nog een muurtje moest komen? Anders kan ik me voorstellen dat hij met de grote vlakken begint.
De tegelzetter is van de oude generatie en neemt in ieder geval de tijd....Hij komt via de aannemer die ik voor meerdere klusjes heb ingeschakeld. Hij geeft zelf aan dat het langzaam lijkt te gaan, doordat voor het goed drogen van lijm etc. niet snel verder kan gaan (en het dus voor de dag moet laten). Komt voor mij niet heel geloofwaardig over, maar ben maar een leek. Hoe snel ging bij jullie het betegelen. Want die van mij geeft aan 14 dagen nodig te hebben voor betegelen van badkamer en 2 toiletten. Helaas komen ook de vloeren en de schilder binnen die 14 dagen. Dus beetje een puinhoop.....
14 dagen is bizar lang. In mijn vorige badkamer had ik van die lange dunne stroken bestaande uit 6 kleuren welke 1 tegelzetter volgens de officiële nummering (uitgetekend gezien op de wandXtince schreef op maandag 18 februari 2019 @ 21:29:
[...]
Tegelzetter wist idd dat er nog een muurtje moest komen (moest hij zelf metselen). Maar heb hem al gesproken en hij gaf aan dit bewust te hebben gedaan, aangezien dan de grote tegels mooi doorliepen op de wand. Het muurtje heeft hij vervolgens vastgeboord aan de wand (en daarnaast gemetseld). Hij is nu bezig met betegelen van het muurtje.
De tegelzetter is van de oude generatie en neemt in ieder geval de tijd....Hij komt via de aannemer die ik voor meerdere klusjes heb ingeschakeld. Hij geeft zelf aan dat het langzaam lijkt te gaan, doordat voor het goed drogen van lijm etc. niet snel verder kan gaan (en het dus voor de dag moet laten). Komt voor mij niet heel geloofwaardig over, maar ben maar een leek. Hoe snel ging bij jullie het betegelen. Want die van mij geeft aan 14 dagen nodig te hebben voor betegelen van badkamer en 2 toiletten. Helaas komen ook de vloeren en de schilder binnen die 14 dagen. Dus beetje een puinhoop.....
Hmm. Hij werkt wel alleen, maar tegels zijn 60x60. Badkamer is 3,60 bij 2. Dus zoveel verschil is het niet. Zal nog eens bellen met de aannemer morgen, want gaat niet zo zijn dat ik die kerel per uur ga betalen voor 14 dagen.GeeMoney schreef op maandag 18 februari 2019 @ 21:58:
[...]
14 dagen is bizar lang. In mijn vorige badkamer had ik van die lange dunne stroken bestaande uit 6 kleuren welke 1 tegelzetter volgens de officiële nummering (uitgetekend gezien op de wand) in 1 dag erop had zitten. (3,3m bij 2,65m). Een gemiddelde badkamer tegelen (mits ze door kunnen) zal 2 man niet veel langer dan een dag of 2-3 kosten, beetje afhankelijk van type tegel en keuze in gootjes/nissen natuurlijk.
Dat is best lang. Als hij alles alleen moet doen verklaard dat wellicht ook wel veel, maar alsnog blijft het veel 112uur.Xtince schreef op maandag 18 februari 2019 @ 21:29:
[...]
Tegelzetter wist idd dat er nog een muurtje moest komen (moest hij zelf metselen). Maar heb hem al gesproken en hij gaf aan dit bewust te hebben gedaan, aangezien dan de grote tegels mooi doorliepen op de wand. Het muurtje heeft hij vervolgens vastgeboord aan de wand (en daarnaast gemetseld). Hij is nu bezig met betegelen van het muurtje.
De tegelzetter is van de oude generatie en neemt in ieder geval de tijd....Hij komt via de aannemer die ik voor meerdere klusjes heb ingeschakeld. Hij geeft zelf aan dat het langzaam lijkt te gaan, doordat voor het goed drogen van lijm etc. niet snel verder kan gaan (en het dus voor de dag moet laten). Komt voor mij niet heel geloofwaardig over, maar ben maar een leek. Hoe snel ging bij jullie het betegelen. Want die van mij geeft aan 14 dagen nodig te hebben voor betegelen van badkamer en 2 toiletten. Helaas komen ook de vloeren en de schilder binnen die 14 dagen. Dus beetje een puinhoop.....
Tegelzetter bij mij is nu bijna 80uur bezig en heeft nog ongeveer 8uur werk. Ze moesten ongeveer 55m2 tegels weg plakken, deel in verstek (meer werk) deel met strips. Uren zijn grof berekend dus aankomsttijd - vertrektijd. Mijn tegelzetters betaal ik in de beun, die komen dus om de dag op te vullen, in de avonduren en op zaterdagen, plus tel uren van de stagiair (tegelt niet) mee. Een simpele badkamer zonder nissen of "vrijstaande" muren plaatsen hun in 3 dagen (2man). Had zelf 80uur begroot qua werk. De beun heeft de klus aangekomen tegen vaste prijs.
Voor m'n werk zit ik veel in de corporatiesector. Voor huurwoningen rekenen we daar altijd op 2 werkweken (10werkdagen) voor het opnieuw tegelen van een keuken, toilet en badkamer. Dan moet alles gesloopt worden en opnieuw worden opgebouwd maar natuurlijk wel heel basic.
Post de afloop wel even ik ben namelijk benieuwd.
Heeft iemand ervaring met een nieuwe badkamer aanschaffen waarbij je niet alles van je huidige badkamer nieuw hoeft? Eigenlijk zouden wij alleen tegelwerk nieuw willen en een mooie douche cabine ipv douchen in bad. Wasbakken, wc en meeste leidingwerk kan gewoon blijven liggen. Scheelt dit veel?
Ja hoor, als je het zelf doet kan dat prima. Of een aannemer inhuren die het een en ander wil doen. Je zult wel goed afspraken moeten maken over "wie doet wat" en vooral over de garantie. Kijk als je op zoek gaat naar een klusser goed of hij dit soort werk vaker gedaan heeft. Het plaatsen van een waterdichte douche zonder douchebak vereist enige ervaring en je wilt niet dat de klusser die ervaring bij jou gaat opdoen.
Wat je eigenlij wil doen is:
Verwijderen tegelwerk en douche,
openbreken vloer voor het plaatsen van een douchegoot en dan
weer plaatsen tegelwerk.
Dat hoeft niet heel lastig te zijn, maar zo'n douchegoot kan niet altijd. Zijn er afvoerleidingen die laag genoeg liggen in de vloer om een douchegoot op aan te sluiten? Of moet je nadenken over een vlakke douchebak op de vloer? Liggen de leidingen van water/verwarming etc. in de vloer in de weg voor de nieuwe douche?
Een badkamerzaak zal minder genegen zijn je te helpen. Zij verdienen immers het meest aan nieuwe spullen.
Wat je eigenlij wil doen is:
Verwijderen tegelwerk en douche,
openbreken vloer voor het plaatsen van een douchegoot en dan
weer plaatsen tegelwerk.
Dat hoeft niet heel lastig te zijn, maar zo'n douchegoot kan niet altijd. Zijn er afvoerleidingen die laag genoeg liggen in de vloer om een douchegoot op aan te sluiten? Of moet je nadenken over een vlakke douchebak op de vloer? Liggen de leidingen van water/verwarming etc. in de vloer in de weg voor de nieuwe douche?
Een badkamerzaak zal minder genegen zijn je te helpen. Zij verdienen immers het meest aan nieuwe spullen.
WP: Toshiba Estia 8kW split HWT-801H(R)W-E + HWT-1101 binnenunit met 300 liter SWW tank. PV: 4 strings, totaal 12590 Wp
Dilemma met onze installateur...
Wij hebben in onze nieuwbouwwoning de badkamer laten doen door de installateur die al het 'waterwerk' in huis doet. Wij hebben een Grohe Smartcontrol 310 uitgekozen. Deze heeft een regendouche met 2 standen en een aparte handdouche.
Alle leidingwerk is gemaakt en de inbouwdelen zijn gemonteerd. Ondertussen is de tegelzetter ook al bezig geweest en is de hele badkamer betegeld en gevoegd. Nu wil de installateur de regendouche plaatsen, maar hij komt erachter dat er maar 1 waterleiding in plaats van 2 van de inbouwdoos naar de douchekop aansluiting gelegd zijn. Hij had deze douchekop nog nooit eerder gezien.
Nu biedt de installateur aan om dit als nog voor elkaar te maken op zijn kosten (opzich netjes natuurlijk!) maar de halve douchehoek zal weer open gebroken moeten worden. Tevens zijn de tegels verbruikt en zal nooit meer een zelfde batch kunnen vinden (met kans op kleurverschil). En dan nog de vraag of het zo strak weer op de muur komt als dat het nu zit.
Wij zitten erg in dubio, wat is wijsheid? Toch die extra waterleiding laten leggen zodat wij de volledige smartcontrol (3 knoppen) kunnen gebruiken maar dat het tegelwerk misschien daar wel onder te lijden zal hebben. Of deze inruilen voor een 2 knops-smartcontrol en alles zo laten en dus geen breek en hak werk.
Verschil tussen de 2 en 3 knoppen, is dat de 3 knoppen een harde straal kan geven uit de regendouche om haren goed uit te wassen.
Smartcontrol 310: https://www.grohe.nl/nl_n...active-cube-34706000.html
Smartcontrol 2 knops: https://www.grohe.nl/nl_n...-omstelling-29151LS0.html
Wij hebben in onze nieuwbouwwoning de badkamer laten doen door de installateur die al het 'waterwerk' in huis doet. Wij hebben een Grohe Smartcontrol 310 uitgekozen. Deze heeft een regendouche met 2 standen en een aparte handdouche.
Alle leidingwerk is gemaakt en de inbouwdelen zijn gemonteerd. Ondertussen is de tegelzetter ook al bezig geweest en is de hele badkamer betegeld en gevoegd. Nu wil de installateur de regendouche plaatsen, maar hij komt erachter dat er maar 1 waterleiding in plaats van 2 van de inbouwdoos naar de douchekop aansluiting gelegd zijn. Hij had deze douchekop nog nooit eerder gezien.
Nu biedt de installateur aan om dit als nog voor elkaar te maken op zijn kosten (opzich netjes natuurlijk!) maar de halve douchehoek zal weer open gebroken moeten worden. Tevens zijn de tegels verbruikt en zal nooit meer een zelfde batch kunnen vinden (met kans op kleurverschil). En dan nog de vraag of het zo strak weer op de muur komt als dat het nu zit.
Wij zitten erg in dubio, wat is wijsheid? Toch die extra waterleiding laten leggen zodat wij de volledige smartcontrol (3 knoppen) kunnen gebruiken maar dat het tegelwerk misschien daar wel onder te lijden zal hebben. Of deze inruilen voor een 2 knops-smartcontrol en alles zo laten en dus geen breek en hak werk.
Verschil tussen de 2 en 3 knoppen, is dat de 3 knoppen een harde straal kan geven uit de regendouche om haren goed uit te wassen.
Smartcontrol 310: https://www.grohe.nl/nl_n...active-cube-34706000.html
Smartcontrol 2 knops: https://www.grohe.nl/nl_n...-omstelling-29151LS0.html
Een beetje vakman moet dit wel netjes kunnen krijgen.
Verder is het vooral persoonlijke voorkeur. Als je kan leven met het uitspoelen van haren m.b.v. de handdouche in plaats van de regendouche is de smartcontrol 2 natuurlijk prima.
Verder is het vooral persoonlijke voorkeur. Als je kan leven met het uitspoelen van haren m.b.v. de handdouche in plaats van de regendouche is de smartcontrol 2 natuurlijk prima.
Groot genoeg voor 2 hoofdletters
@Nedora dat kleurverschil zal nu nog wel meevallen mits je tegels natuurlijk niet al in juli 2018 besteld zijn.
Ook zijn ze er prima uit te halen en weer opnieuw te zetten en daar zal je later niets meer van zien. Uiteraard moet dit niet door de stagair uitgevoerd worden maar dat lijkt me duidelijk. Ik zou het laten corrigeren, het is nu een “kleine” ingreep die ook nog eens vergoed wordt itt een irritatie die je gaat hebben de komende 15 jaar. (Had ik maar...)
Ook zijn ze er prima uit te halen en weer opnieuw te zetten en daar zal je later niets meer van zien. Uiteraard moet dit niet door de stagair uitgevoerd worden maar dat lijkt me duidelijk. Ik zou het laten corrigeren, het is nu een “kleine” ingreep die ook nog eens vergoed wordt itt een irritatie die je gaat hebben de komende 15 jaar. (Had ik maar...)
Ik heb nu een aantal weken badmeubels en een wastafel van Ink (Unlimited) in huis. Momenteel nog steeds erg blij hiermee en ik heb het ook voor een prikkie kunnen regelen bij Sanisale! Bij Ink kun je gemakkelijk op hun site kijken welke combinaties en opties er mogelijk zijn zodat je ze later in het echt in een winkel kunt zien. Ik raad mensen aan om Sanisale als een soort Mediamarkt te zien; alleen heen gaan als er acties zijn en wanneer je weet wat je wilt hebben.
Heb even een spoedje 😊. Tegelzetter is eindelijk klaar en volgende week komt de loodgieter en kitter om alles af te ronden.
De tegels zijn ontzettend stoffig ook bij de voegen. Dus moet goed schoon voordat de kitter komt. Iemand had me aangeraden om met spons en lauw water aan de gang te gaan. Ben ik nu ook aan het doen. Maar zodra een schoongemaakte deel ietwat droog is komt de stof weer terug. Zie foto

Is er een of ander middel die ik nu het beste kan gebruiken, rijd ik even naar de praxis
. Hoop dat iemand een antwoord heeft.
De tegels zijn ontzettend stoffig ook bij de voegen. Dus moet goed schoon voordat de kitter komt. Iemand had me aangeraden om met spons en lauw water aan de gang te gaan. Ben ik nu ook aan het doen. Maar zodra een schoongemaakte deel ietwat droog is komt de stof weer terug. Zie foto

Is er een of ander middel die ik nu het beste kan gebruiken, rijd ik even naar de praxis
geen cementsluier?
Xtince schreef op zondag 3 maart 2019 @ 12:17:
Heb even een spoedje 😊. Tegelzetter is eindelijk klaar en volgende week komt de loodgieter en kitter om alles af te ronden.
De tegels zijn ontzettend stoffig ook bij de voegen. Dus moet goed schoon voordat de kitter komt. Iemand had me aangeraden om met spons en lauw water aan de gang te gaan. Ben ik nu ook aan het doen. Maar zodra een schoongemaakte deel ietwat droog is komt de stof weer terug. Zie foto
[Afbeelding]
Is er een of ander middel die ik nu het beste kan gebruiken, rijd ik even naar de praxis. Hoop dat iemand een antwoord heeft.
Yep, blijkbaar wel. Morgen maar eens van dat hg spul halen. Thnx
Wat filmpjes gekeken hoe met cementsluier en chemische producten (bijv. HG) om te gaan. Maar zie dat er wel wat water moet worden gebruikt. Zoals aangegeven is de kitter nog niet geweest. Is het wel verstandig om nu al met dat chemische spul te gaan schoonmaken? Wat is jullie ervaring hierin?
Hij hoeft die voegen toch niet te kitten? Ik neem aan dat de kitten alleen de hoeken doet en die zal hij vast wel uitborstelen eerst, ik zou het niet kletsnat gaan maken nu. Overigens kan je die sluier van het voegmiddel ook gewoon mechanisch verwijderen, met een schuursponsje en water en dan even goed poetsen.
Klopt. Maar hij was afgelopen vrijdag al geweest om een begin te maken met kitten, maar vond het nog te vies. Moest alles weghalen. Ben al een aantal keer met water en een spons aan de slag geweest, maar blijft terugkomen. Veel te hardnekkigASW1 schreef op zondag 3 maart 2019 @ 16:39:
Hij hoeft die voegen toch niet te kitten? Ik neem aan dat de kitten alleen de hoeken doet en die zal hij vast wel uitborstelen eerst, ik zou het niet kletsnat gaan maken nu. Overigens kan je die sluier van het voegmiddel ook gewoon mechanisch verwijderen, met een schuursponsje en water en dan even goed poetsen.
Het makkelijkste is om cementsluier verwijderaar te halen bij een goede tegelboer.Xtince schreef op zondag 3 maart 2019 @ 17:01:
[...]
Klopt. Maar hij was afgelopen vrijdag al geweest om een begin te maken met kitten, maar vond het nog te vies. Moest alles weghalen. Ben al een aantal keer met water en een spons aan de slag geweest, maar blijft terugkomen. Veel te hardnekkig)
Precies de verhouding op de fles volgen dan is er niets aan de hand en ben je er het snelste van af.
Ga dit topic ook even volgens voor tips. Op dit moment in mijn nog te bouwen huis bezig met een badkamer, maar dat begint toch een hoofdpijn verhaal te worden. Met name om de absurde hoge bedragen die badkamers vragen. En de regeltjes waar installateurs mee komen.
Offerte 1: betrapt dat de bedragen die naar mij gefactureerd zijn meer dan 100% duurder zijn dan hetzelfde artikel die een half jaar eerder gefactureerd is aan mijn zwager. Reden: ja, prijsafspraken met installateur.
Offerte 2: arbeid is duurde dan sanitair (10k vs 9k).
Offerte 3: die is er niet gekomen. Installateur had opeens geen zin meer in werk.
Offerte 4: pfffff moeten we nog een offerte opvragen.....
Waar het zo leuk was om een keuken te kiezen is het zo vervelend om een badkamer te kiezen.
Offerte 1: betrapt dat de bedragen die naar mij gefactureerd zijn meer dan 100% duurder zijn dan hetzelfde artikel die een half jaar eerder gefactureerd is aan mijn zwager. Reden: ja, prijsafspraken met installateur.
Offerte 2: arbeid is duurde dan sanitair (10k vs 9k).
Offerte 3: die is er niet gekomen. Installateur had opeens geen zin meer in werk.
Offerte 4: pfffff moeten we nog een offerte opvragen.....
Waar het zo leuk was om een keuken te kiezen is het zo vervelend om een badkamer te kiezen.
Wie kent er nog een goede maar wel betaalbare badkamer specialist omgeving Den Haag / Rotterdam? Wij laten in ons nieuwbouwhuis de badkamers ook casco opleveren, maar zoeken nog een betrouwbare zaak om 2 badkamers en 3 toiletten te realiseren.
https://www.qasa.nl/ervaringen/badkamers-zuid-holland-g9p10Sikkek schreef op zondag 3 maart 2019 @ 20:53:
Wie kent er nog een goede maar wel betaalbare badkamer specialist omgeving Den Haag / Rotterdam? Wij laten in ons nieuwbouwhuis de badkamers ook casco opleveren, maar zoeken nog een betrouwbare zaak om 2 badkamers en 3 toiletten te realiseren.
Ja, die had ik zelf ook al gevonden. Ik zoek ervaringen van mensen hier, niet een cijfertje op een beoordelings site.
Op die site vind je ook reviews. Kennis van mij heeft ook een review erop gezet, maar Qasa belt de persoon daarna nog op ook om de review te bevestigen. Maar ervaringen zijn vaak toch persoonlijk, want voor ons huis zijn we via die kennis bij een bedrijf gekomen waar je heel goed geholpen wordt. Achteraf zelf niet gekocht, omdat wij vonden dat ze weinig verstand van zaken hadden.Sikkek schreef op zondag 3 maart 2019 @ 20:57:
[...]
Ja, die had ik zelf ook al gevonden. Ik zoek ervaringen van mensen hier, niet een cijfertje op een beoordelings site.
Zou persoonlijk z'n site eerder vertrouwen dan een tweakers die ergens een goede ervaring bij heeft
Welkom op GoT. Aangezien je je blijkbaar geregistreerd hebt om een rant tegen een winkel af te steken, heb ik deze verwijderd.
[ Voor 88% gewijzigd door Señor Sjon op 04-03-2019 14:02 ]
.
[ Voor 145% gewijzigd door Deleon78 op 26-07-2021 17:52 ]
Wij zijn afgelopen zaterdag even naar Jasken geweest, net over de grens achter Emmen. Ze verkopen alleen tegels, sanitair en andere badkamerzaken. Ze hebben een 'vaste' lijst met klussenbureau's (3) die je zelf kan benaderen voor de realisatie. Heeft iemand hier ervaring mee? Heb een beetje bedenkingen bij klussers die zowel moeten installeren, timmeren (voorzetwandje), tegelen, vloerverwarming aanleggen etc.
Prijzen lijken wel aardig okee en we zijn daar prima geholpen. Tegelen is al een vak apart lijkt me.
Prijzen lijken wel aardig okee en we zijn daar prima geholpen. Tegelen is al een vak apart lijkt me.
[ Voor 0% gewijzigd door klungeltweaker op 05-03-2019 11:55 . Reden: typo ]
Zo heb ik mijn installateur ook gevonden. Via zo'n lijstje bij een badkamerzaak. Vaak hebben deze installateurs weer connecties voor de overige werkzaamheden, dus het kan prima.klungeltweaker schreef op dinsdag 5 maart 2019 @ 11:54:
Wij zijn afgelopen zaterdag even naar Jasken geweest, net over de grens achter Emmen. Ze verkopen alleen tegels, sanitair en andere badkamerzaken. Ze hebben een 'vaste' lijst met klussenbureau's (3) die je zelf kan benaderen voor de realisatie. Heeft iemand hier ervaring mee? Heb een beetje bedenkingen bij klussers die zowel moeten installeren, timmeren (voorzetwandje), tegelen, vloerverwarming aanleggen etc.
Prijzen lijken wel aardig okee en we zijn daar prima geholpen. Tegelen is al een vak apart lijkt me.
Werkspot? Qasa? Google heeft beoordelingen.
Is dat niet wat?
Ik vind persoonlijk die lijstjes van die badkamerzaken beperkt en zijn niet altijd de beste en/of de voordeligste.
Is dat niet wat?
Ik vind persoonlijk die lijstjes van die badkamerzaken beperkt en zijn niet altijd de beste en/of de voordeligste.
It is better to be roughly right, than precisely wrong.
Hangt van badkamertoko af denk ik. Ik kon destijds "kiezen" uit meer dan 10 in elk geval (waarvan 4 al meteen te druk waren)... Je kan ze ook gewoon door Google halen natuurlijk om reviews te zoeken.Tripl3 D schreef op dinsdag 5 maart 2019 @ 13:02:
Werkspot? Qasa? Google heeft beoordelingen.
Is dat niet wat?
Ik vind persoonlijk die lijstjes van die badkamerzaken beperkt en zijn niet altijd de beste en/of de voordeligste.
Ik heb reeds de eerste 15 pagina's doorgespit van dit interessante forum. De rest zal ik nog gaan doen, maar tot nu toe ben ik al veel goede tips tegengekomen, waarvoor dank.
Ook wij staan op het punt om (voor de eerste keer) de badkamer te laten verbouwen. We zijn van plan om het sanitair zelf te bestellen (via Hornbach?). Het aanpassen van leidingwerk en het plaatsen van de badkamer zal door een klusbedrijf gebeuren. Het stucwerk door een bevriende stukadoor. Het sloopwerk doen we zoveel mogelijk zelf (kratje bier en je hebt vrienden).
We zitten er aan te denken om tegel op tegel toe te passen. Voor de wanden kijken we ook naar de optie om deze waterdicht te laten stucen. Er is dan alleen sloopwerk van tegels nodig daar waar leidingwerk moet worden weggewerkt. Dit scheelt een hoop tijd, geld en stof. De huidige tegels zitten goed vast op de muren en vloer.
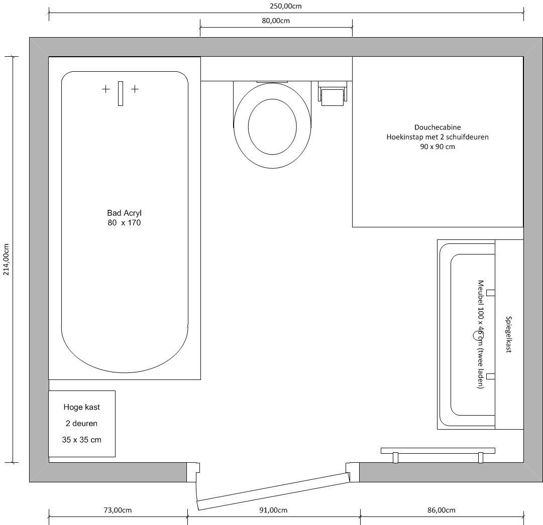
Inrichting: Bad (80x170), toilet (rimloos?); douche (90x90, hoekinstap, 2 schuifdeuren); wasbak (100 cm, 2 kranen); spiegelkast (100 cm, ing. verlichting); hoge kast (35x35x170); designradiator (60 x 160).
Zie ook de eerste opzetjes in Visio en via Grando:



Het oogt wellicht wat vol, maar mijn vrouw (en 2 kinderen) wil perse een bad en ik wil perse een douche.
Met z'n viertjes is het ook wel handig om een bredere wasbak met 2 kranen te hebben (we komen van 60 cm breed en 1 kraan). Op zich past het prima en blijft het ook redelijk praktisch dacht ik.
We zijn inmiddels bij Q1Sanitair geweest in Den Haag en ik moet zeggen dat vooral de meubels mij erg meevallen qua prijs en uitstraling. Bij Brugman viel het aanbod tegen en we hadden er ook geen goed gevoel bij (opdringerige verkopers). We gaan nog naar enkele ander zaken (Sanidump, Saverne, Bouwhof).
Ikea zou ook een optie kunnen zijn voor de meubels.
We weten nog niet precies welke merken voor het Sanitair. De prijsverschillen zijn soms enorm. Je weet niet altijd waar je goed aan doet en reviews zijn er ook niet veel...
Voor tegels moeten we ook nog goed kijken, maar een donkere vloer en lichte wanden heeft onze voorkeur. Ook hier is het lastig te bepalen of de kwaliteit nou goed is of niet.
We hopen eind deze zomer een nieuwe badkamer te hebben. Gelukkig hebben we goede buren en vrienden wonen in de buurt waar we kunnen douchen. Zelf zou ik ook op m'n werk kunnen douchen.
Het budget valt nog even te bezien. Zelf zat ik ergens rond de 10K te denken voor alles (materialen en arbeid). Is dat redelijk?
Ook wij staan op het punt om (voor de eerste keer) de badkamer te laten verbouwen. We zijn van plan om het sanitair zelf te bestellen (via Hornbach?). Het aanpassen van leidingwerk en het plaatsen van de badkamer zal door een klusbedrijf gebeuren. Het stucwerk door een bevriende stukadoor. Het sloopwerk doen we zoveel mogelijk zelf (kratje bier en je hebt vrienden).
We zitten er aan te denken om tegel op tegel toe te passen. Voor de wanden kijken we ook naar de optie om deze waterdicht te laten stucen. Er is dan alleen sloopwerk van tegels nodig daar waar leidingwerk moet worden weggewerkt. Dit scheelt een hoop tijd, geld en stof. De huidige tegels zitten goed vast op de muren en vloer.
Inrichting: Bad (80x170), toilet (rimloos?); douche (90x90, hoekinstap, 2 schuifdeuren); wasbak (100 cm, 2 kranen); spiegelkast (100 cm, ing. verlichting); hoge kast (35x35x170); designradiator (60 x 160).
Zie ook de eerste opzetjes in Visio en via Grando:



Het oogt wellicht wat vol, maar mijn vrouw (en 2 kinderen) wil perse een bad en ik wil perse een douche.
Met z'n viertjes is het ook wel handig om een bredere wasbak met 2 kranen te hebben (we komen van 60 cm breed en 1 kraan). Op zich past het prima en blijft het ook redelijk praktisch dacht ik.
We zijn inmiddels bij Q1Sanitair geweest in Den Haag en ik moet zeggen dat vooral de meubels mij erg meevallen qua prijs en uitstraling. Bij Brugman viel het aanbod tegen en we hadden er ook geen goed gevoel bij (opdringerige verkopers). We gaan nog naar enkele ander zaken (Sanidump, Saverne, Bouwhof).
Ikea zou ook een optie kunnen zijn voor de meubels.
We weten nog niet precies welke merken voor het Sanitair. De prijsverschillen zijn soms enorm. Je weet niet altijd waar je goed aan doet en reviews zijn er ook niet veel...
Voor tegels moeten we ook nog goed kijken, maar een donkere vloer en lichte wanden heeft onze voorkeur. Ook hier is het lastig te bepalen of de kwaliteit nou goed is of niet.
We hopen eind deze zomer een nieuwe badkamer te hebben. Gelukkig hebben we goede buren en vrienden wonen in de buurt waar we kunnen douchen. Zelf zou ik ook op m'n werk kunnen douchen.
Het budget valt nog even te bezien. Zelf zat ik ergens rond de 10K te denken voor alles (materialen en arbeid). Is dat redelijk?
Hoe denk jij de douche in en uit te gaan met die toiletpot er recht voor? Dit is echt geen praktische opstelling naar mijn mening. Vooral het gedeelte waar je het bad of de douche uitstapt (waar dus nu de toiletpot staat) wil je een badmat neerleggen zodat je (en vooral je kids) niet op je snufferd gaat als je nog natte voeten hebt.Lassy schreef op vrijdag 8 maart 2019 @ 15:29:
Het oogt wellicht wat vol, maar mijn vrouw (en 2 kinderen) wil perse een bad en ik wil perse een douche.
Met z'n viertjes is het ook wel handig om een bredere wasbak met 2 kranen te hebben (we komen van 60 cm breed en 1 kraan). Op zich past het prima en blijft het ook redelijk praktisch dacht ik.
Al eens een baddouche combi of hoekbad overwogen?
Of zoiets:

[ Voor 9% gewijzigd door FREAKJAM op 08-03-2019 16:17 ]
is everything cool?
De douche zal een hoek-instap worden met 2 schuifdeuren. Daar zal in- en uitstappen geen probleem moeten worden verwacht ik. Voor het bad denk ik dat er volgens mij ruimte genoeg is om in en uit het bad te stappen, maar we zullen daar zeker goed naar kijken in ieder geval.FREAKJAM schreef op vrijdag 8 maart 2019 @ 16:07:
[...]
Hoe denk jij de douche in en uit te gaan met die toiletpot er recht voor? Dit is echt geen praktische opstelling naar mijn mening. Vooral het gedeelte waar je het bad of de douche uitstapt (waar dus nu de toiletpot staat) wil je een badmat neerleggen zodat je (en vooral je kids) niet op je snufferd gaat als je nog natte voeten hebt.
Al eens een baddouche combi of hoekbad overwogen?
Of zoiets:
[Afbeelding]
Een baddouche combi is erg prijzig heb ik gezien. Een redelijk formaat hoekbad neemt volgens mij even veel ruimte in beslag.
Bedankt voor het meedenken!
[ Voor 6% gewijzigd door Lassy op 08-03-2019 17:07 ]
Wat @FREAKJAM zegt; dit wordt heel onpraktisch.
Even vlotjes geschetst alternatief:

Edit:
waarschijnlijk beter bad en toilet omwisselen omwille van de loopruimte. En eventueel -als dat nodig is- plaats je een verwarming boven het halfhoge muurtje met je reservoir en leidingen voor je bad.
Even vlotjes geschetst alternatief:

Edit:
waarschijnlijk beter bad en toilet omwisselen omwille van de loopruimte. En eventueel -als dat nodig is- plaats je een verwarming boven het halfhoge muurtje met je reservoir en leidingen voor je bad.
[ Voor 38% gewijzigd door Tjolk op 08-03-2019 16:56 ]
Tjolk is lekker. overal en altijd.
Bedankt voor de input! Echter zal hier geen 100 cm wasbak en een 90x90 douche in gaan passen. Ook zullen CV leidingen moeten worden omgelegd en in de vloer moeten worden verwerkt.Tjolk schreef op vrijdag 8 maart 2019 @ 16:54:
Wat @FREAKJAM zegt; dit wordt heel onpraktisch.
Even vlotjes geschetst alternatief:
[Afbeelding]
Edit:
waarschijnlijk beter bad en toilet omwisselen omwille van de loopruimte. En eventueel -als dat nodig is- plaats je een verwarming boven het halfhoge muurtje met je reservoir en leidingen voor je bad.
@Lassy naar mijn idee heb je echt te weinig ruimte voor beiden (douche en bad).
Of je toilet eruit, of een kleinere wastafel nemen of je bad en douche samenvoegen.
Of je toilet eruit, of een kleinere wastafel nemen of je bad en douche samenvoegen.
Thanks! Toilet eruit is echt een no go met twee kinderen. Bad eruit is wat mij betreft prima, maar ja, daar is 3/4 het niet mee eens thuis. Een kleinere wastafel zal niet heel veel opleveren, maar ik zal het meenemen in het volgende ontwerp. 80 cm vind ik wel het minimale met z'n 4tjes.GeeMoney schreef op vrijdag 8 maart 2019 @ 17:15:
@Lassy naar mijn idee heb je echt te weinig ruimte voor beiden (douche en bad).
Of je toilet eruit, of een kleinere wastafel nemen of je bad en douche samenvoegen.
In een bad douchen vind ik zelf weer niks (doen we nu al en dat is echt irritant). Een baddouche-combi is erg prijzig en ik vind het ook niet echt mooi...
Tijd voor een goede discussie thuis dus
[ Voor 10% gewijzigd door Lassy op 08-03-2019 17:34 ]
De toilet kan niet apart ergens op die verdieping komen? (Desnoods iets van een slaapkamer af peuteren?)Lassy schreef op vrijdag 8 maart 2019 @ 17:32:
[...]
Thanks! Toilet eruit is echt een no go met twee kinderen. Bad eruit is wat mij betreft prima, maar ja, daar is 3/4 het niet mee eens thuis. Een kleinere wastafel zal niet heel veel opleveren, maar ik zal het meenemen in het volgende ontwerp. 80 cm vind ik wel het minimale met z'n 4tjes.
In een bad douchen vind ik zelf weer niks (doen we nu al en dat is echt irritant). Een baddouche-combi is erg prijzig en ik vind het ook niet echt mooi...
Tijd voor een goede discussie thuis dus
Nee, helaas, de ruimtes zijn al aan de kleine kant boven. Verhuizen is natuurlijk ook nog een optieGeeMoney schreef op vrijdag 8 maart 2019 @ 17:35:
[...]
De toilet kan niet apart ergens op die verdieping komen? (Desnoods iets van een slaapkamer af peuteren?)
Verwijderd
Snap dat de ruimte beperkt is, maar ik word al claustrofobisch van de tekening @Lassy
Is er echt niks anders mogelijk? Dit lijkt me zwaar irritant voor dagelijks gebruik.
Is er echt niks anders mogelijk? Dit lijkt me zwaar irritant voor dagelijks gebruik.
Dat hoge kastje eruit en toilet naar dezelfde positie aan exact de overkant.Lassy schreef op vrijdag 8 maart 2019 @ 19:11:
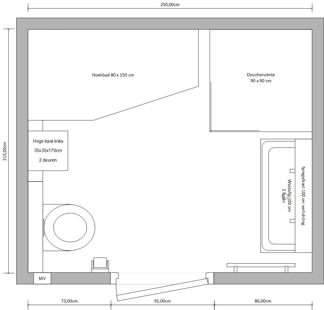
Ik heb een andere opstelling gemaakt met een kleiner bad:
[Afbeelding]
Het toilet zou ook direct naast het bad kunnen, dan hoeft er geen koof met toiletafvoer naar waar het gat in de vloer zit (links achter, in de hoek van het bad)
Dan de wastafel op de plek waar nu de WC zit.
En achter spiegel een kastje nemen voor de tandenborstels etc. En minimaal 2 grote lades onder je wastafel of gewoon tot aan de grand kasten eronder zodat je dat hoge kastje bijna niet gat missen.
Al zou mijn advies blijven om het bad eruit te laten of douche/bad combi te nemen.
Toilet naar de andere kant gaat niet lukken i.v.m. de afvoer. Spiegelkast en 2 lades had ik al ingepland. Ik wil echter nog voldoende ruimte om de handdoeken op te bergen.GeeMoney schreef op vrijdag 8 maart 2019 @ 19:29:
[...]
Dat hoge kastje eruit en toilet naar dezelfde positie aan exact de overkant.
Dan de wastafel op de plek waar nu de WC zit.
En achter spiegel een lastje nemen voor de tandenborstels etc. En minimaal 2 grote lades onder je wastafel of gewoon tot aan de grand kasten eronder zodat je dat hoge lastje bijna niet gat missen.
Al zou mijn advies blijven om het bad eruit te laten of douche/bad combi te nemen.
Andere optie:

Allemaal mooi en aardig maar een toilet heeft een 110 mm standleiding. Die wil je zelfs in de badkamer niet op andere wanden gaan monteren tenzij je de leiding onder de vloer kan verleggen. Een hele badkamer vol met koofjes om die leiding uit het zicht te halen is A niet mooi en B vragen om ellende.GeeMoney schreef op vrijdag 8 maart 2019 @ 17:35:
[...]
De toilet kan niet apart ergens op die verdieping komen? (Desnoods iets van een slaapkamer af peuteren?)
Probeer de standleiding dáár te houden waar deze de badkamer in komt of in ieder geval aan die wand. Stukje links of rechts is geen probleem maar anders......
Een quote is een gebrek aan originaliteit
Inderdaad, ik dacht even teveel in nieuwbouw ipv bestaande situatieFreubel schreef op vrijdag 8 maart 2019 @ 19:48:
[...]
Allemaal mooi en aardig maar een toilet heeft een 110 mm standleiding. Die wil je zelfs in de badkamer niet op andere wanden gaan monteren tenzij je de leiding onder de vloer kan verleggen. Een hele badkamer vol met koofjes om die leiding uit het zicht te halen is A niet mooi en B vragen om ellende.
Probeer de standleiding dáár te houden waar deze de badkamer in komt of in ieder geval aan die wand. Stukje links of rechts is geen probleem maar anders......
Je moet toch gaan polderen en een compromis zoeken, wij hebben vrijwel hetzelfde gehad...Lassy schreef op vrijdag 8 maart 2019 @ 19:38:
[...]
Toilet naar de andere kant gaat niet lukken i.v.m. de afvoer. Spiegelkast en 2 lades had ik al ingepland. Ik wil echter nog voldoende ruimte om de handdoeken op te bergen.
Andere optie:
[Afbeelding]
Deze opstelling hebben wij min of meer in ons huidige huis, maar dan met hoekbad 140x140 (comfortabel tot circa 1m75). Wij hebben gekozen voor wasbak versmallen en kolomkast ernaast. Voor foto's kan je kijken op Funda, geeft wellicht een goed beeld.(Batavengaarde 18, Alphen ad Rijn)
geen spam, huis is al verkocht
Ik denk dat de opstelling die @Lassy wil prima kan.Freubel schreef op vrijdag 8 maart 2019 @ 19:48:
[...]
Allemaal mooi en aardig maar een toilet heeft een 110 mm standleiding. Die wil je zelfs in de badkamer niet op andere wanden gaan monteren tenzij je de leiding onder de vloer kan verleggen. Een hele badkamer vol met koofjes om die leiding uit het zicht te halen is A niet mooi en B vragen om ellende.
Probeer de standleiding dáár te houden waar deze de badkamer in komt of in ieder geval aan die wand. Stukje links of rechts is geen probleem maar anders......
Je kan de riolering onder het bad verslepen naar het toilet.
Als je het inbouwframe omtimmert en sluit netjes aan tegen het bad kan dat prima, heb je geen rare koofjes.
Blijft een vrij lastige badkamer met een bad en een douche gezien de ruimte.
Gelukkig heb je zelf al besloten dat je niet wil douchen in bad, dat is echt waardeloos.
Please state the nature of the technical emergency
Dat zou betekenen dat ik een stuk van onze slaapkamer moet gaan inleveren. Dat gaat hem ook niet worden ben ik bang. En het wordt er niet echt heel veel praktischer op dan mijn originele ontwerp.
I know, en dat probeer ik ook aan mijn (Britse) vrouw haar verstand te brengen, maar die ziet het probleem niet. In mijn optiek moet een nieuwe badkamer aan de moderne eisen en wensen voldoen. Douchen in een bad is echt passé. Ik kan het bad echter niet uit haar hoofd praten, ook al maakt ze er maar een paar keer per jaar gebruik van. De kinderen vinden het nu misschien leuk, maar die worden ook ouder. Straks missen ze het ook niet meer. Het is voor de fun, maar meer ook niet.edsandje schreef op vrijdag 8 maart 2019 @ 21:22:
[...]
Ik denk dat de opstelling die @Lassy wil prima kan.
Je kan de riolering onder het bad verslepen naar het toilet.
Als je het inbouwframe omtimmert en sluit netjes aan tegen het bad kan dat prima, heb je geen rare koofjes.
Blijft een vrij lastige badkamer met een bad en een douche gezien de ruimte.
Gelukkig heb je zelf al besloten dat je niet wil douchen in bad, dat is echt waardeloos.
@DaWayneDaWayne schreef op vrijdag 8 maart 2019 @ 20:46:
[...]
Je moet toch gaan polderen en een compromis zoeken, wij hebben vrijwel hetzelfde gehad...
Deze opstelling hebben wij min of meer in ons huidige huis, maar dan met hoekbad 140x140 (comfortabel tot circa 1m75). Wij hebben gekozen voor wasbak versmallen en kolomkast ernaast. Voor foto's kan je kijken op Funda, geeft wellicht een goed beeld.(Batavengaarde 18, Alphen ad Rijn)
geen spam, huis is al verkocht
Bedankt! Zijn de afmetingen inderdaad 206 x 263 cm, zoals op de plattegrond aangegeven?
[ Voor 24% gewijzigd door Lassy op 09-03-2019 07:10 ]
De makelaar heeft het gemeten, dus de vraag is in hoeverre je die gelooft😉 (heb het allemaal aangemeten, maat voering klopt)[b]Lassy in "Het Badkamer topic: verkopers, kwaliteit, prijs - Deel 1"Lassy schreef op vrijdag 8 maart
@DaWayne
Bedankt! Zijn de afmetingen inderdaad 206 x 263 cm, zoals op de plattegrond aangegeven?
Consequenties van onze indeling. Prima ruimte toilet, hele fijne ruime inloopdouche, relatief klein bad (met 195cm een no-go), 1 wasbak (dan maar een stapje achteruit als iemand tijdens het tandenpoetsen erbij wil), kolomkast waar voor 4 personen handdoeken in passen.
@Lassy Succes met je verbouwing.
Wij hebben net de offerte getekend voor een nieuwe badkamer. We zijn bij Juffers in Elspeet uitgekomen (via mijn broer). In eerste instantie bij Sanidump in Zwolle alles uitgezocht. Ik ben daar echt heel goed geholpen door de bedrijfsleider (Marcel dacht ik). Ik kreeg drie prijzen van ze, te weten een prijs bij direct tekenen, een prijs bij tekenen onder voorbehoud van een betaalbare installateur voor een bepaalde datum en een prijs na een bepaalde datum. Uiteindelijk kon ik geen installateur vinden die het voor een redelijke prijs kon doen en ben ik met alle uitgezochte materialen bij Juffers terecht gekomen. Die kon alles ook leveren, maar wilde niet alleen het werk doen. Sanidump het verhaal uitgelegd en na wat belletjes heen en weer niet met Sanidump in zee gegaan. Nogmaals: erg goed geholpen daar.
Uiteindelijk uitgezocht: bad met bubbels, wastafel en -meubel, radiator, grote, glazen draaideur, twee nieuwe douchewandjes betegeld, tegels, drain, regendouche en badthermostaat van Damixa (Pine), afgewerkt met mooie hoeksierstrippen, verlaagd plafond geheel afgewerkt met 5 led spots, verplaatsing van de afzuiging, ook qua schilderwerk de boel afgewerkt.
Ik moet zelf de vloertegels verwijderen, afvoer van de douche vrij maken, bestaande bad en ombouw verwijderen en de verwarmingsbuis en afvoer van de wastafel in de muur frezen.
Het hele project wordt gedaan voor €13k.
Ik ben tevreden.
Wij hebben net de offerte getekend voor een nieuwe badkamer. We zijn bij Juffers in Elspeet uitgekomen (via mijn broer). In eerste instantie bij Sanidump in Zwolle alles uitgezocht. Ik ben daar echt heel goed geholpen door de bedrijfsleider (Marcel dacht ik). Ik kreeg drie prijzen van ze, te weten een prijs bij direct tekenen, een prijs bij tekenen onder voorbehoud van een betaalbare installateur voor een bepaalde datum en een prijs na een bepaalde datum. Uiteindelijk kon ik geen installateur vinden die het voor een redelijke prijs kon doen en ben ik met alle uitgezochte materialen bij Juffers terecht gekomen. Die kon alles ook leveren, maar wilde niet alleen het werk doen. Sanidump het verhaal uitgelegd en na wat belletjes heen en weer niet met Sanidump in zee gegaan. Nogmaals: erg goed geholpen daar.
Uiteindelijk uitgezocht: bad met bubbels, wastafel en -meubel, radiator, grote, glazen draaideur, twee nieuwe douchewandjes betegeld, tegels, drain, regendouche en badthermostaat van Damixa (Pine), afgewerkt met mooie hoeksierstrippen, verlaagd plafond geheel afgewerkt met 5 led spots, verplaatsing van de afzuiging, ook qua schilderwerk de boel afgewerkt.
Ik moet zelf de vloertegels verwijderen, afvoer van de douche vrij maken, bestaande bad en ombouw verwijderen en de verwarmingsbuis en afvoer van de wastafel in de muur frezen.
Het hele project wordt gedaan voor €13k.
Ik ben tevreden.
[ Voor 29% gewijzigd door BvZwolle op 09-03-2019 09:54 ]
Een vraag: momenteel wordt onze badkamer vernieuwd. De vloertegels zijn gelegd vanaf de achterwand naar de deur toe. De uitvoerend aannemer had gerekend dat, inclusief voegen, de vloer met hele tegels en het profiel precies onder de deur moest uitkomen. Dat is uiteindelijk, min of meer, ook zo. Hij steekt 9-10 mm buiten het kozijn uit. Het lijkt erop dat de overgang desondanks nog onder de (standaard) Svedex dekdeur valt. Toch wringt het... bij het toilet heeft dezelfde aannemer wel een mooi strak resultaat gekregen. Bijkomend feit is dat onze PVC-vloer nu iets is afgesneden om ruimte te creëren. De tegels alsnog afsnijden of zagen, mits dat wel zo strak kan, betekent dat er dus een lege strook in de vloer zit.
Wat zouden jullie doen, accepteren of toch laten inkorten tot gelijke hoogte met het kozijn? Maar dan zit je dus met de vloer. Of is er een andere oplossing?
Wat zouden jullie doen, accepteren of toch laten inkorten tot gelijke hoogte met het kozijn? Maar dan zit je dus met de vloer. Of is er een andere oplossing?

Heeft er iemand hier wel eens zaken gedaan met Q1Sanitair? Ze verwijzen naar algemene voorwaarden in de offerte, maar wanneer ik er om vraag (en naar de voorwaarden van de 5 jarige fabrieksgarantie van Bellanti) krijg ik nul op het rekest...
Zojuist heb ik een reactie ontvangen van de klantenservice.
Ze verwijzen naar een tekst hun de website welke als algemene voorwaarden zouden moeten gelden:
https://www.q1sanitair.nl...L/Informatie/garantie.awp
Wat de fabrieksgarantie betreft kreeg ik de volgende reactie:
Zojuist heb ik een reactie ontvangen van de klantenservice.
Ze verwijzen naar een tekst hun de website welke als algemene voorwaarden zouden moeten gelden:
https://www.q1sanitair.nl...L/Informatie/garantie.awp
Wat de fabrieksgarantie betreft kreeg ik de volgende reactie:
Ervaringen van andere gebruikers is welkom.Wij geven 5 jaar garantie op artikelen van Bellanti bij juist gebruik en installatie.
Het meubel dient droog te hangen en de ruimte dient voldoende geventileerd te worden en dient nagedroogd te worden na gebruik.
De juiste manier van installatie is dat u de wastafel op de onderkast monteert en dan aan de onderkant en zijkant afkit zodat daar geen vocht naar toe kan.
De fronten zijn gelamineerd multiplex en de zijkanten zijn van watervaste spaanplaat gemaakt.
[ Voor 71% gewijzigd door Lassy op 14-03-2019 17:05 ]
Ik heb nog 2 andere opties uitgewerkt met inloopdouche en het verplaatsen van de radiator na overleg met de aannemer:




Nadelen van optie 1 zijn de iets smallere doucheruimte, de smallere doorloop en het moeten aanpassen van elektra t.b.v. spiegelkastverlichting. Ik weet ook niet zeker of het toilet tegenover de douche wel goed kan.
Nadelen van optie 2 zijn de krappe toiletruimte, de smallere wastafel (80 ipv 100) en het kleinere bad. Ook is de ruimte links de wastafel beperkter.




Nadelen van optie 1 zijn de iets smallere doucheruimte, de smallere doorloop en het moeten aanpassen van elektra t.b.v. spiegelkastverlichting. Ik weet ook niet zeker of het toilet tegenover de douche wel goed kan.
Nadelen van optie 2 zijn de krappe toiletruimte, de smallere wastafel (80 ipv 100) en het kleinere bad. Ook is de ruimte links de wastafel beperkter.
@Lassy kan je nu die hoge kast er niet gewoon uitwerken, dan kan je of een groter wastafelmeubel nemen of de boel opschuiven. Je moet gewoon consessies doen, linksom of rechtsom. Met grotere onderkasten kan je ook wat meer kwijt daarin of je vult het gewoon wat vaker bij vanuit een kast in 1 van de slaapkamers?
Ik weet niet of dat handig is. Ik moet ergens m'n handdoeken kwijt. Voor welke opstelling zou jij kiezen met of zonder hoge kast?GeeMoney schreef op zaterdag 16 maart 2019 @ 13:45:
@Lassy kan je nu die hoge kast er niet gewoon uitwerken, dan kan je of een groter wastafelmeubel nemen of de boel opschuiven. Je moet gewoon consessies doen, linksom of rechtsom. Met grotere onderkasten kan je ook wat meer kwijt daarin of je vult het gewoon wat vaker bij vanuit een kast in 1 van de slaapkamers?
Handdoeken kunnen toch onder in de kasten van het wastafelmeubel? Dan vul je die gewoon wat vaker bij. Je ruimte is gewoon beperkt maar je hebt de eisen van een balzaalLassy schreef op zaterdag 16 maart 2019 @ 13:53:
[...]
Ik weet niet of dat handig is. Ik moet ergens m'n handdoeken kwijt. Voor welke opstelling zou jij kiezen met of zonder hoge kast?
Het houd allemaal niet echt over maar ik neig naar optie 2 en dan die hoge kast eruit en je meubel iets opschuiven en misschien 10 a 15cm breder?
Ik dacht ook dat het verplaatsen van je toilet ivm stamleiding niet mogelijk was?
Ik denk dat ik de bergruimte echt nodig ga hebben met 3 dames, zeker als de kinderen straks ouder zijn...GeeMoney schreef op zaterdag 16 maart 2019 @ 13:56:
[...]
Handdoeken kunnen toch onder in de kasten van het wastafelmeubel? Dan vul je die gewoon wat vaker bij. Je ruimte is gewoon beperkt maar je hebt de eisen van een balzaal.
Het houd allemaal niet echt over maar ik neig naar optie 2 en dan die hoge kast eruit en je meubel iets opschuiven en misschien 10 a 15cm breder?
Ik dacht ook dat het verplaatsen van je toilet ivm stamleiding niet mogelijk was?
Het verplaatsen van het toilet is wel mogelijk, alleen is de afvoer dan lastig weg te werken. Met een bad er naast kan deze er onder/achter. Het toilet naar rechts naast de deur bijvoorbeeld zou betekenen dat je een koof hebt langs de rechter en de achterste muur en dat wil ik voorkomen.
Vind je de toiletruimte niet te krap bij optie 2? Deze is maar 64 cm breed.
[ Voor 4% gewijzigd door Lassy op 16-03-2019 14:55 ]
Je hele ruimte is te krap maar daar trek je je ook weinig van aanLassy schreef op zaterdag 16 maart 2019 @ 14:55:
[...]
Ik denk dat ik de bergruimte echt nodig ga hebben met 3 dames, zeker als de kinderen straks ouder zijn...
Het verplaatsen van het toilet is wel mogelijk, alleen is de afvoer dan lastig weg te werken. Met een bad er naast kan deze er onder/achter. Het toilet naar rechts naast de deur bijvoorbeeld zou betekenen dat je een koof hebt langs de rechter en de achterste muur en dat wil ik voorkomen.
Vind je de toiletruimte niet te krap bij optie 2? Deze is maar 64 cm breed.
Een ombouw van 64 is er volgens mij niet eens, minimaal is dacht ik 75 en dat is al bijzonder.
En die kastruimte is niet persé nodig in de badkamer lijkt mij, dan pakken de dames van tevoren hun spullen toch uit hun eigen kamer/kast? Zij willen een bad dus dan is de consessie kast ruimte, simpel.
Op de handdoeken en tandenborstels na, die kan je gewoon in je spiegelkast en onderkasten kwijt lijkt me.
En je bad is ook gigantisch, je kan ook naar een 180cm variant gaan. En als je een bad wilt voor hele kleine kinderen kan je ook naar van die opzet badjes kijken voor in een normale douche. Die zet je zo op en kids tot een jaar of 4-5 passen daar nog in.
Dan kan die hele kolos verdwijnen.
[ Voor 8% gewijzigd door GeeMoney op 16-03-2019 15:17 ]
Je hebt midden achterin zat plek voor een kast of schapjes als je die radiator verplaatst naar links boven het bad. Is dat nog een idee?
Dan past er makkelijk een breder wastafelmeubel.
Dan past er makkelijk een breder wastafelmeubel.
Ombouw voor het toilet bedoel je? Die kan je toch zo smal/breed maken, zolang er maar een inbouwreservoir (50 cm) in past, toch? In optie 1 is het bad 160 x 70 en in optie 2 is deze 150 x 80, lijkt mij niet groot, eerder klein. De kinderen zijn 7 en 11, dus die passen niet meer in een opzetbadjeGeeMoney schreef op zaterdag 16 maart 2019 @ 15:13:
[...]
Je hele ruimte is te krap maar daar trek je je ook weinig van aan.
Een ombouw van 64 is er volgens mij niet eens, minimaal is dacht ik 75 en dat is al bijzonder.
En die kastruimte is niet persé nodig in de badkamer lijkt mij, dan pakken de dames van tevoren hun spullen toch uit hun eigen kamer/kast? Zij willen een bad dus dan is de consessie kast ruimte, simpel.
Op de handdoeken en tandenborstels na, die kan je gewoon in je spiegelkast en onderkasten kwijt lijkt me.
En je bad is ook gigantisch, je kan ook naar een 180cm variant gaan. En als je een bad wilt voor hele kleine kinderen kan je ook naar van die opzet badjes kijken voor in een normale douche. Die zet je zo op en kids tot een jaar of 4-5 passen daar nog in.
Dan kan die hele kolos verdwijnen.
Ik snap dat de ruimte krap is voor alle wensen, maar ik ben op zoek naar de beste indeling, waarbij de minste concessies gedaan hoeven te worden. Bedankt voor de tips!
Je hebt het over optie 2 neem ik aan? Daar had ik nog niet over nagedacht. Ik ben altijd uitgegaan van een 160-180 cm hoge radiator. Dit hoeft echter niet voor deze ruimte qua vermogen. Schappen voor de handdoeken is zeker een optie! Thanks!Reinier schreef op zaterdag 16 maart 2019 @ 15:15:
Je hebt midden achterin zat plek voor een kast of schapjes als je die radiator verplaatst naar links boven het bad. Is dat nog een idee?
Dan past er makkelijk een breder wastafelmeubel.
Hoe denk jij over de ruimte naast het toilet bij optie 2?
[ Voor 5% gewijzigd door Lassy op 16-03-2019 15:29 ]
Ja, sorry, ik bedoelde optie 2.
Ruimte bij het toilet zou ik persoonlijk onvoldoende vinden. Bij mij is het 73cm en dat houdt al niet over.
Maar je ligbad kan nauwelijks kleiner denk ik.
Ruimte bij het toilet zou ik persoonlijk onvoldoende vinden. Bij mij is het 73cm en dat houdt al niet over.
Maar je ligbad kan nauwelijks kleiner denk ik.
Er zijn baden van 140 cm lang, maar ik vraag me dan wel af wat dan het nut nog is van het hebben van een badReinier schreef op zaterdag 16 maart 2019 @ 16:10:
Ja, sorry, ik bedoelde optie 2.
Ruimte bij het toilet zou ik persoonlijk onvoldoende vinden. Bij mij is het 73cm en dat houdt al niet over.
Maar je ligbad kan nauwelijks kleiner denk ik.
Is het bij jou 73 cm van muur tot muur, of heb je aan 1 kant ook een bad o.i.d. (dus ruimte voor je bovenlichaam)?
Dat moet je je uberhaupt al afvragen met de ruimte die je hebt en een bad <180cm....Lassy schreef op zaterdag 16 maart 2019 @ 16:59:
[...]
Er zijn baden van 140 cm lang, maar ik vraag me dan wel af wat dan het nut nog is van het hebben van een bad
Een buitenmaat van 180 heeft veelal een bodem van +-130 dacht ik. Je kan dus al niet eens languit liggen als je pak hem beet 1.70m bent.
[ Voor 17% gewijzigd door GeeMoney op 16-03-2019 17:37 ]
Van muur tot bad inderdaadLassy schreef op zaterdag 16 maart 2019 @ 16:59:
[...]
Er zijn baden van 140 cm lang, maar ik vraag me dan wel af wat dan het nut nog is van het hebben van een bad![]()
Is het bij jou 73 cm van muur tot muur, of heb je aan 1 kant ook een bad o.i.d. (dus ruimte voor je bovenlichaam)?
Ik zou trouwens in badkamerzaken eens gaan proefliggen in een paar vrij compacte baden. Misschien valt het mee. Of juist heel erg tegen
Zelf hebben we dat niet genoeg gedaan en toen bleek ons bad achteraf juist oncomfortabel groot (maar we zijn nu verhuisd en ons huidige bad is juist weer te klein).
@Reinier Mijn vouw heeft diverse baden geprobeerd en die van 150 was prima voor haar. 140 wordt te klein ben ik bang en we zijn die ook nog niet tegengekomen in de verschillende zaken waar we tot nu toe geweest zijn.
Hallo wat fijn dat er hier een topic over is. Ben bezig met spullen uitkiezen voor een badkamer en zie door de bomen het bos niet meer. Na een aantal vruchteloze bezoeken aan fysieke winkels met opdringerige dan wel haastige of zelf ongeinteresseerde verkopers wil ik het online eens proberen. Alleen kun je daar zo slecht voelen aan de producten. Met name kranen zijn voor mij wel een ding. Ik heb echt een hekel aan verchroomd kunststof. Ik vind het echt een no-go dat je in een regendoucheset van honderden euro's onderdelen vind die "tok tok" zeggen als je er tegenaan tikt ipv "ting ting". "De productspecificaties zijn hier ook ondoorzichtig over.
Maar bijna alle (opbouw) regendouchesets in mijn budget (tot 750 euro) hebben bijna wel een deel van kunststof dus ik zal er mee moeten leren leven. Dus ik settle voor ten minste messing knoppen, want daar zit je nou eenmaal het meest aan. Welke Grohe GrohTherm kranen zijn nu standaard met messing knoppen uitgerust? 1000, 2000 of 3000?
Ik was ook wel gecharmeerd van de HotBath SDS1. Veel messing behalve de bovenkant van de stortdouche en de losse handdouche. De Cobber nog mooier maar over 1195 en in allemaal mooie metalen te koop. Kan dat ergens goedkoper?
Of is er nog een ander goed merk dat ook geen of weinig kunststof gebruikt?
Maar bijna alle (opbouw) regendouchesets in mijn budget (tot 750 euro) hebben bijna wel een deel van kunststof dus ik zal er mee moeten leren leven. Dus ik settle voor ten minste messing knoppen, want daar zit je nou eenmaal het meest aan. Welke Grohe GrohTherm kranen zijn nu standaard met messing knoppen uitgerust? 1000, 2000 of 3000?
Ik was ook wel gecharmeerd van de HotBath SDS1. Veel messing behalve de bovenkant van de stortdouche en de losse handdouche. De Cobber nog mooier maar over 1195 en in allemaal mooie metalen te koop. Kan dat ergens goedkoper?
Of is er nog een ander goed merk dat ook geen of weinig kunststof gebruikt?
Exact dat vonden wij dus ook (dit weekend toevallig daar voor het eerst binnengestapt).Hetisookwat schreef op maandag 18 februari 2019 @ 15:09:
Geslaagd voor tegels. godzijdank.
Afgelopen weekend geweest bij x2o. Sodeju wat zijn badkamermeubels duur als je iets moois wil. Valt er bij x2o nog te 'pingelen' dat jullie weten?
Overigens was het een aangenaam bezoek. Niet opdringerig, werd volop meegedacht en geadviseerd. We gaan hier zeer waarschijnlijk wel mee in zee.
Het lijkt erop dat de meeste spulletjes wel concurrerend geprijst zijn, met de huidige kortingsactie tot eind maart. Zonder die korting is het onwaarschijnlijk duur, ik denk dat er dus altijd wel een of andere actie is, anders koopt er geen hond.
Nu zijn de prijzen vergelijkbaar met de webshops, met als voordeel dat je op vrijwel alles 8 jaar garantie krijgt, op zich niet verkeerd.
Ik heb het idee dat de winst zit in de lastig te vergelijken artikelen, meubeltjes dus. Om een indruk te geven: onze offerte was ca. EUR 5000,-. Daarvan is EUR 3000,- voor bad, inloopdouche, toilet, kranen en allerlei accessoires en klein spul zoals aansluitsetjes, beugeltjes, e.d. De andere EUR 2000,- is voor 2 kastjes: 1 onder de wastafel, de andere is een kolomkastje. Het ziet er absoluut beter uit dan een IKEA-kastje, maar het prijsverschil is enorm. Ik zie niet in waarom een paar geplastificeerde plankjes zo ontzettend veel moeten kosten.
Afdingen: ik zie het niet gebeuren, maar wie niet waagt...
Heeft iemand ervaring met het plaatsen van een douchewand en deur onder een schuine wand? Het dak van onze nieuwe woning loopt erg steil af en op 90 cm uit de rechte wand is de hoogte nog maar 160cm.
Ik denk dat alleen maatwerk een oplossing is. Heeft iemand misschien tips?
Ik denk dat alleen maatwerk een oplossing is. Heeft iemand misschien tips?
Www.glasconcept.nlArCadE schreef op maandag 18 maart 2019 @ 12:05:
Heeft iemand ervaring met het plaatsen van een douchewand en deur onder een schuine wand? Het dak van onze nieuwe woning loopt erg steil af en op 90 cm uit de rechte wand is de hoogte nog maar 160cm.
Ik denk dat alleen maatwerk een oplossing is. Heeft iemand misschien tips?
Ik heb dat webadres via een tip op dit forum gekregen en ga daar mijn douchewand bestellen. Die kunnen alles op maat maken voor je. Ze reageren vlot op emails en met een beetje doorvragen denken ze goed met je mee.
Groot genoeg voor 2 hoofdletters
Dat is precies mijn visie...Joepla schreef op maandag 18 maart 2019 @ 11:39:
[...]
. Ik zie niet in waarom een paar geplastificeerde plankjes zo ontzettend veel moeten kosten.
...
en met die gedachte heb ik nu uiteindelijk een stuk maatwerk laten maken, precies wat ik mooi vind. Kost nog minder ook
Thnx, ik zal eens gaan kijken.PaT schreef op maandag 18 maart 2019 @ 12:45:
[...]
Www.glasconcept.nl
Ik heb dat webadres via een tip op dit forum gekregen en ga daar mijn douchewand bestellen. Die kunnen alles op maat maken voor je. Ze reageren vlot op emails en met een beetje doorvragen denken ze goed met je mee.
Wat en waar heb je dat maatwerk laten uitvoeren? Wij schrikken ook van de prijzen voor een leuk meubel en willen het liefst natuurlijk eiken ipv geplastificeerd spaanplaat.Hetisookwat schreef op maandag 18 maart 2019 @ 15:47:
[...]
Dat is precies mijn visie...
en met die gedachte heb ik nu uiteindelijk een stuk maatwerk laten maken, precies wat ik mooi vind. Kost nog minder ook
Ik heb mijn badkamer meubel maatwerk eiken besteld bij www.eikentafels.nl. Andere maten of uitvoeringen zijn mogelijk. Je krijgt n tekening en prijzen zijn prima. (Lager dan de geplastificeerde meubels)
Wij hebben gekozen voor een steigerhouten meubel, ik wil niet onbedoeld reclame maken, dus ik stuur je even de link in een PM!wantsome schreef op maandag 18 maart 2019 @ 21:18:
[...]
Wat en waar heb je dat maatwerk laten uitvoeren? Wij schrikken ook van de prijzen voor een leuk meubel en willen het liefst natuurlijk eiken ipv geplastificeerd spaanplaat.
Wij zijn van plan de badkamer aan te pakken. Het idee is om twee aparte waterbesparende douchekoppen en een regendouche te installeren.
Deze moeten bij voorkeur alle apart regelbaar zijn, en de twee losse douchekoppen moet genoeg power hebben.
Heeft iemand enig idee hoe te testen dat er voldoende warmwatercapaciteit is? en wat er bij de installatie komt kijken. De Nefit Trendline 30/CW5 II levert 16 liter warmwater per minuut om te douchen maar de theorie is toch vaak anders.
Dit is het idee:
Deze moeten bij voorkeur alle apart regelbaar zijn, en de twee losse douchekoppen moet genoeg power hebben.
Heeft iemand enig idee hoe te testen dat er voldoende warmwatercapaciteit is? en wat er bij de installatie komt kijken. De Nefit Trendline 30/CW5 II levert 16 liter warmwater per minuut om te douchen maar de theorie is toch vaak anders.
Dit is het idee:

@cky ik gok dat je toch naar een CW6 zal moeten wil je uit alle koppen een beetje voldoende kracht halen.
Een "zuinige" 30cm regendouche van Hans Grohe die ik heb gekozen in mijn toekomstige badkamer doet 9L/minuut. Die krengen zijn duur, de goedkopere pompen er zo 16L/minuut doorheen (soms zelfs nog meer).
En je wilt ten minste 2 koppen tegelijk kunnen gebruiken lijkt me, anders heeft de hele opstelling natuurlijk geen enkele meerwaarde. (op het oog na dan).
Een "zuinige" 30cm regendouche van Hans Grohe die ik heb gekozen in mijn toekomstige badkamer doet 9L/minuut. Die krengen zijn duur, de goedkopere pompen er zo 16L/minuut doorheen (soms zelfs nog meer).
En je wilt ten minste 2 koppen tegelijk kunnen gebruiken lijkt me, anders heeft de hele opstelling natuurlijk geen enkele meerwaarde. (op het oog na dan).
Het is wel voldoende om de twee normale douchekoppen tegelijk te kunnen gebruiken. De regendouche is dan wanneer er alleen gedoucht wordt. En naar cw6 gaat hem niet worden. De ketel hangt net 5 maandenGeeMoney schreef op dinsdag 19 maart 2019 @ 14:22:
@cky ik gok dat je toch naar een CW6 zal moeten wil je uit alle koppen een beetje voldoende kracht halen.
Een "zuinige" 30cm regendouche van Hans Grohe die ik heb gekozen in mijn toekomstige badkamer doet 9L/minuut. Die krengen zijn duur, de goedkopere pompen er zo 16L/minuut doorheen (soms zelfs nog meer).
En je wilt ten minste 2 koppen tegelijk kunnen gebruiken lijkt me, anders heeft de hele opstelling natuurlijk geen enkele meerwaarde. (op het oog na dan).
Wij zijn aan het ontwerpen geslagen voor ons renovatie project.
Het liefst wil ik geen tegels (voegen) in de badkamer en heb wat voorbeelden gezien van glad gestucte wanden in badkamers. Ik lees hier en daar wat over Beton-Cire en epoxy / spuit wanden.
Lastig om in de topic hier ervaringen over te vinden. Zijn die er?
Het liefst wil ik geen tegels (voegen) in de badkamer en heb wat voorbeelden gezien van glad gestucte wanden in badkamers. Ik lees hier en daar wat over Beton-Cire en epoxy / spuit wanden.
Lastig om in de topic hier ervaringen over te vinden. Zijn die er?
Besten
Misschien een rare vraag voor dit topic maar ik ben gisteren bij X²O en bij Alsan Smeulders geweest, voordien nog bij Desco welke ik vrij duur vond. X²O vind ik net wat te goedkoop. Beetje riskant. Alsan Smeulders kwam mooi in het midden uit maar daar kreeg ik een rare opmerking te horen. Toen ik liet vallen dat ik misschien mijn kraanwerk in Duitsland wou bestellen kreeg ik te horen dat sommige bedrijven (in dit geval Gröhe) goedkopere versies van producten met minderwaardige materialen onder dezelfde naam en nummer aan groothandels zouden verkopen. Het klinkt heel bizar maar het doet me toch twijfelen om een deel bij megabad te kopen voor de helf vd prijs...iemand ervaringen? Ik kijk nu bijvoorbeeld naar de Hansgröhe croma select S 180 die in België 850 kost en in Duitsland 450 en de ideal standard ultra flat S 120x90 die in België 740 kost en in Duitsland 380...
Misschien een rare vraag voor dit topic maar ik ben gisteren bij X²O en bij Alsan Smeulders geweest, voordien nog bij Desco welke ik vrij duur vond. X²O vind ik net wat te goedkoop. Beetje riskant. Alsan Smeulders kwam mooi in het midden uit maar daar kreeg ik een rare opmerking te horen. Toen ik liet vallen dat ik misschien mijn kraanwerk in Duitsland wou bestellen kreeg ik te horen dat sommige bedrijven (in dit geval Gröhe) goedkopere versies van producten met minderwaardige materialen onder dezelfde naam en nummer aan groothandels zouden verkopen. Het klinkt heel bizar maar het doet me toch twijfelen om een deel bij megabad te kopen voor de helf vd prijs...iemand ervaringen? Ik kijk nu bijvoorbeeld naar de Hansgröhe croma select S 180 die in België 850 kost en in Duitsland 450 en de ideal standard ultra flat S 120x90 die in België 740 kost en in Duitsland 380...
Dat is gewoon bangmakerij. Een product met hetzelfde productnummer is gewoon hetzelfde product. Hij wil jou niet kwijt als klant en hoopt dat je hier in trapt. Hij koopt zijn spullen ook in bij dezelfde groothandel...
Wel leveren dit soort fabrikanten soms ongeveer dezelfde producten met net iets andere componenten onder andere namen/nummers aan groothandels. Maar verder echt niet.
Denk bijvoorbeeld aan het merk "Ben" van de Sanidirect. Dat is gewoon hetzelfde als "Wavedesign" van Wisa, maar dan met een andere sticker. (bijvoorbeeld Ben Bobo = Wavedesign Dore).
Het komt allemaal uit dezelfde fabriek met gebruik van dezelfde mallen.
Wel leveren dit soort fabrikanten soms ongeveer dezelfde producten met net iets andere componenten onder andere namen/nummers aan groothandels. Maar verder echt niet.
Denk bijvoorbeeld aan het merk "Ben" van de Sanidirect. Dat is gewoon hetzelfde als "Wavedesign" van Wisa, maar dan met een andere sticker. (bijvoorbeeld Ben Bobo = Wavedesign Dore).
Het komt allemaal uit dezelfde fabriek met gebruik van dezelfde mallen.
[ Voor 7% gewijzigd door Blihi op 22-03-2019 12:20 ]
WP: Toshiba Estia 8kW split HWT-801H(R)W-E + HWT-1101 binnenunit met 300 liter SWW tank. PV: 4 strings, totaal 12590 Wp
Heeft iemand wel eens meegemaakt dat het hout van een badmeubel uitzet? Nu na 2 jaar in nieuwbouw zet het zijpaneel van bijna bruynzeel uit.
Bijna Bruynzeel 
Is het massief hout? Dan is het best mogelijk, al hadden ze daar bij het ontwerp rekening mee moeten houden. Bij spaanplaat o.i.d. verwacht je het eigenlijk niet.
Is het achterlijk vochtig in je badkamer?
Is het massief hout? Dan is het best mogelijk, al hadden ze daar bij het ontwerp rekening mee moeten houden. Bij spaanplaat o.i.d. verwacht je het eigenlijk niet.
Is het achterlijk vochtig in je badkamer?
Daar verwacht ik het juist eerder bijReinier schreef op maandag 25 maart 2019 @ 18:54:
Bij spaanplaat o.i.d. verwacht je het eigenlijk niet.
Ik heb een betaalde 2025 WinRAR licentie (geen leugen)
Mja ik dacht dat spaanplaat evenredig uitzet en krimpt (dus aan alle kanten) zodat het effect meevalt. In tegenstelling tot massief hout dat met name in de breedte uitzet waardoor je spanningen/scheuren/kieren kunt krijgen.
Plaatmaterialen zouden redelijk stabiel moeten blijven in een badkamer.
Folie of kantband dat loslaat waardoor er vocht binnendringt?
Plaatmaterialen zouden redelijk stabiel moeten blijven in een badkamer.
Folie of kantband dat loslaat waardoor er vocht binnendringt?