Goedemorgen keukenguru's,
Wij zijn gisteren bij Keukenloods langsgeweest en hebben daar een heel prettig gesprek gehad; prijs was zelfs ook nog scherp en de kortingen ook nog zeer allemaal redelijk. Echter zijn we toch té verliefd geworden op de kastjes van de Keukenkastenfabriek(KKF) uit Dordrecht. Prijs bij beide opties is gelijk, echter kunnen we bij de KKF wél korpuskleuren kiezen en is er een zwarte greeplijst leverbaar.
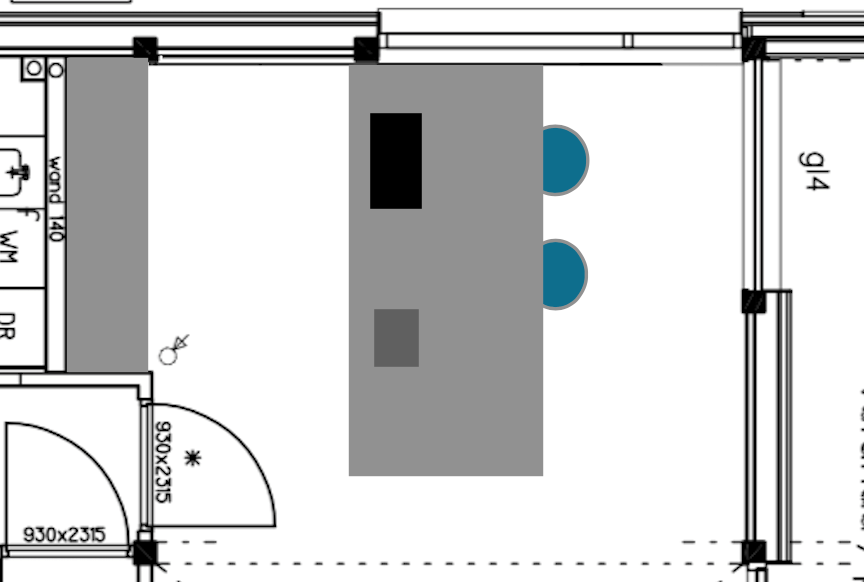
Nu zijn we gisteren toch zelf weer tot een iets andere indeling gekomen door de uitbouw iets kleiner te maken (1,70 diep ipv 2,00 diep) dan we hebben laten uittekenen bij Keukenloods, maar dit is dus voor 90% zeker wat het moet gaan worden:

Frontjes van lage meubels in het matzwart, hoge kastenwand (+ tussenliggende ladekast) in olijfgroen. Blad composiet met een marmerlook. Overal zwarte greeplijsten óp de deur gemonteerd.
Even specifiek per onderdeel
1: Vaatwasser, spoelbak en dan 2 kastjes met 3 binnenlades. Breedte; 2,40 meter.
2: Hoge koelkast rechts, ladekast met blad erboven voor koffiezetapparaat en dan vriezer met stoomoven erboven links.
3: Voorzijde schiereiland; 2x ladekast van 1,20m. Hier komt ook de BORA Puru die we op 't oog hebben.
4: Achterzijde schiereiland; 4x ondiepe plankenkast van 30cm diep.
Kosten voor dit gehele pakket? +- € 14.000,-
Mijn vraag voor hier is; ziet iemand hier hele gekke dingen in of dingen die ik misschien gemist heb?
Edit: Ik weet dat de greeplijsten verkeerd zijn getekend op bovenstaande tekening, maar ik heb even geen zin om dat aan te passen
[
Voor 4% gewijzigd door
Genos op 16-06-2019 09:16
]