Game PC 
 2 Post or Not 2 Post What's the question ? 
 "If it ain't broken, you didn't try hard enough"
[ Voor 9% gewijzigd door RUFFNECK op 11-12-2018 23:02 ]
Niet van toepassing bij recirculatiekappen. Ik heb bovenop m'n 90cm Bosch kap zo'n ding zitten;Saven schreef op dinsdag 11 december 2018 @ 20:51:
[...]
Het gaat vooral om of er een goede motor inzit, hoeveel m3 lucht deze af kan zuigen. De fysieke grootte is niet zo boeiend. Daarnaast is het ook belangrijk - en dat vergeten wonderbaarlijk genoeg veel mensen - dat je ramen open zet zodat de lucht uberhaupt kan worden afgezogen. Een dicht huis met een afzuigkap die draait heeft natuurlijk geen enkel nut.
Maar dan natuurlijk niet een raam naast de luchtafvoer
https://www.siemens-home..../productoverzicht/LZ56100
Maar het klopt wel wat je zegt. Er zijn ook nog steeds hordes mensen die de mechanische ventilatie op 3 zetten als ze gaan douchen maar alle roosters dichtzetten.
Niet reageren is ook een optie
[ Voor 88% gewijzigd door janvanduschoten op 12-12-2018 11:18 ]
Verwijderd
Maak dan een topic report aan ipv zelf reageren.
[ Voor 79% gewijzigd door janvanduschoten op 12-12-2018 11:19 ]
Iets meer details of een tekening kan het makkelijker maken om te zeggen of de prijs goed is of niet. Ik heb met de bovenstaande info niet echt een beeld van hoe je keuken eruit zietwrstylo schreef op dinsdag 11 december 2018 @ 16:09:
Hallo allen,
Wij hebben hier een offerte liggen van Tulp keukens en zijn erg benieuwd wat jullie hier van vinden:
- Graniet werkblad (70 cm diep en 365 cm lang), daarnaast hebben we het werkblad doorgetrokken tot een hoogte van 60 cm over de gehele lengte).
- Quooker met PRO3 boiler
Apparaten van Neff:
- Koel/vries KI6863F30
- Stoomoven B47FS26N0
- Combi magnetron/oven C17MS22H0
- Afzuigkap D95IHM1S0 (inclusief luchtafvoer naar buiten)
- Inductie 1T59TS51N0
- Vaatwasser S513P60X2E
Kasten:
2 laden/kasten van 120 cm breed
3 kasten van 60 cm breed
2 volwaardige servieskasten van 208 hoog
Is de prijs van €15320 inclusief montage reëel?
Alvast bedank!
Hoe dik is je granieten blad? Is je wasbak van graniet of RVS? Wat voor fronten heb je?
Hoeder van het Noord-Meierijse dialect
Nope.
Dus (los van dat ik niet *nog* een keer het gezeur van de vorige keer over me heen wil), geen reden om een update te plaatsen.
Ná Scaoll. - Don’t Panic.
Helder, maar verder zelf nog iets ondernomen richting IKEA of die keukenpartij? Een brief gestuurd en daarin een termijn genoemd wanneer je de problemen opgelost wil zien, of zit je te wachten tot ze vanzelf een keer langskomen? Even voor de helderheid; waar schort het nu op, waar zit je nog op te wachten, welke onderdelen missen er?unezra schreef op woensdag 12 december 2018 @ 10:40:
[...]
Nope.
Dus (los van dat ik niet *nog* een keer het gezeur van de vorige keer over me heen wil), geen reden om een update te plaatsen.
Hoeder van het Noord-Meierijse dialect
Nee, we wachten op dit moment af. Ik denk dat ik ze (RIS of Ikea) vandaag of morgen nog een keer ga bellen.Harrie_ schreef op woensdag 12 december 2018 @ 10:42:
[...]
Helder, maar verder zelf nog iets ondernomen richting IKEA of die keukenpartij? Een brief gestuurd en daarin een termijn genoemd wanneer je de problemen opgelost wil zien, of zit je te wachten tot ze vanzelf een keer langskomen? Even voor de helderheid; waar schort het nu op, waar zit je nog op te wachten, welke onderdelen missen er?
Er ontbreken nog steeds dezelfde kastdeuren, de folie zit er aan de zijkanten nog op, folie is beschadigd, laden lopen tegen elkaar aan. Kortom, nog steeds exact hetzelfde als de vorige keer.
Ik heb echt géén idee meer hoe ik nu een doorbraak moet forceren.
(Of idd eens met mijn RBV bellen. Die worden blij van me. Da's de 3e case dit jaar.)
Ná Scaoll. - Don’t Panic.
Zelf heb ik ook ruim vier maanden moeten wachten voordat een probleem met ons werkblad werd opgelost door IKEA. Vier maanden en de 'oplossing' was dat een ZZP'er (lees halve beunhaas) met schuurpapier aan de slag ging.
Heb ik me daar 1 minuut boos over gemaakt? Nee. Zinloos. Ik had een nieuw werkblad kunnen eisen, maar zo groot was het euvel ook niet.
Wellicht dat mijn werk bij een callcenter er mee te maken heeft. Het besef dat er valt weinig te forceren met juridische dreigementen.
Veel grote bedrijven, zoals de IKEA, hebben een juridische afdeling en bijbehorend protocol voor callcentermedewerkers; verwijs bij claims direct door naar de juridische afdeling. Die hebben duurdere specialisten en veel diepere zakken. Effectief help je daarmee je eigen case om zeep. Geen medewerking meer en een ellenlange zaak...
Gewoon rustig blijven ademen en concrete afspraken maken; "Wanneer komen jullie wat doen".
De 3D tekening


De daadwerkelijke keuken:


Er moet nog een spatplint geplaatst worden, maar die moest nog opgemeten worden. Verder mist er een greeprand, dus die wordt nog nageleverd. Maar al met al dik tevreden
ZO SE - 5,76kWp - Shade: Low - PVoutput | NOZW APS QS1 - 3,84kWp - Shade: High - PVoutput | Volvo XC40 Pure Electric Ultimate | Volvo EX30 Plus SMSR
Verademing om weer eens een keuken te zien met véél werkbladruimte en zónder kookeiland
Hoeder van het Noord-Meierijse dialect
Moet zeggen dat ik wel twijfel of ik niet toch gewoon ARAG ga bellen, die hebben me tot nu toe prima diensten bewezen.Fornoo schreef op woensdag 12 december 2018 @ 22:02:
Ik begrijp je frustratie.
Zelf heb ik ook ruim vier maanden moeten wachten voordat een probleem met ons werkblad werd opgelost door IKEA. Vier maanden en de 'oplossing' was dat een ZZP'er (lees halve beunhaas) met schuurpapier aan de slag ging.
Heb ik me daar 1 minuut boos over gemaakt? Nee. Zinloos. Ik had een nieuw werkblad kunnen eisen, maar zo groot was het euvel ook niet.
Wellicht dat mijn werk bij een callcenter er mee te maken heeft. Het besef dat er valt weinig te forceren met juridische dreigementen.
Veel grote bedrijven, zoals de IKEA, hebben een juridische afdeling en bijbehorend protocol voor callcentermedewerkers; verwijs bij claims direct door naar de juridische afdeling. Die hebben duurdere specialisten en veel diepere zakken. Effectief help je daarmee je eigen case om zeep. Geen medewerking meer en een ellenlange zaak...
Gewoon rustig blijven ademen en concrete afspraken maken; "Wanneer komen jullie wat doen".
Wat ik vooral heel raar vind, is dat IKEA zegt niets tegen RIS te kunnen doen, terwijl, kom op, als Ingvar 1x niest is RIS failliet. Dus tuurlijk kunnen ze wel wat tegen zo'n onderaannemer doen, ze willen het alleen niet.
Scheelt dat het vooral lelijk is, de keuken is prima bruikbaar.
Wat ik wél fout heb gedaan en achteraf ongelooflijk van baal, is dat ik de montage betaald heb voordat er fatsoenlijke nacontrole is geweest. Dat is een heel dure fout. Ik had gewoon moeten weigeren te betalen. Ze hadden die keuken toch niet meer weggehaald. Die stond toen al.
Ná Scaoll. - Don’t Panic.
Mooie keuken, lekker veel werkblad inderdaad.Ophidian schreef op woensdag 12 december 2018 @ 22:37:
Al eerder hier geweest met een offerte voor onze nieuwe keuken. Vandaag is ie geplaatsten wat ben ik er blij meeDe koof hebben we uiteindelijk zelf gemaakt en glad laten stucen. De spotjes zijn Hue, dus kleur is gelijk te zetten aan de afzuigkap.
Waarmee heb je de koof gemaakt? Ziet er strak uit namelijk. multiplex? of toch simpele gipsplaatjes?
Dank! Expres zo gedaan dat we lekker veel blad hebben. En door het koffiezet aparaat hoeft er ook eigenlijk niks standaard op het blad te staan, dus lekker leeg.Harrie_ schreef op woensdag 12 december 2018 @ 23:03:
Mooie keuken @Ophidian!
Verademing om weer eens een keuken te zien met véél werkbladruimte en zónder kookeiland
Koof bestaat uit een houten frame met stucplaten ertegenaan. Bij de afzuigkap zitten nog twee aluminium hoekproffielen aan de binnenkant zodat die daar in hangt en niet aan de stucplaten. Als ik het liet doen kostte het 1500 euro. Nu denk ik 250 euro aan materiaal en wat uren van mezelf.masterslave schreef op donderdag 13 december 2018 @ 08:07:
[...]
Mooie keuken, lekker veel werkblad inderdaad.
Waarmee heb je de koof gemaakt? Ziet er strak uit namelijk. multiplex? of toch simpele gipsplaatjes?
ZO SE - 5,76kWp - Shade: Low - PVoutput | NOZW APS QS1 - 3,84kWp - Shade: High - PVoutput | Volvo XC40 Pure Electric Ultimate | Volvo EX30 Plus SMSR
Koofjes maken is redelijk simpel werk waar sommige zaken belachelijk veel geld voor vragen. Of wat te denken van 6 spotjes, gewoon recht toe, recht aan wit licht, voor 500 euro!!! Die koop je voor 20 euro bij de Lidl als het moet.
Groot genoeg voor 2 hoofdletters
Lekker veel werkruimte, ontzettend veel licht met al die ramen en mooi kleurstelling
Zo ziet de render er uit:

Hoe het er nu uitziet (blauw is folie offcourse).



                                                [ Voor 14% gewijzigd door BertP op 13-12-2018 10:22 ]
Ja, bedankt! Nog gevraagd of het materiaal om de kasten te koppelen wordt bij geleverd?BertP schreef op dinsdag 11 december 2018 @ 10:14:
[...]
Kan je hier wat mee?
[Afbeelding]
[Afbeelding]
[Afbeelding]
[Afbeelding]
We zijn krap een jaar verder en weer is een groot deel van de letters verdwenen. De tekst staat onder de knoppen dus deze raak je met het gebruik niet eens aan. Waarom ze dan toch zo snel verdwijnenKaasplank schreef op maandag 2 oktober 2017 @ 09:56:
woensdag komt er een monteur van siemens bij ons. De letters op het rvs gedeelte van de vaatwasser bij de knoppen laten op sommige plekken los.
Euh meestal koppelen ze de kasten door ze aan elkaar te schroeven.My-life schreef op donderdag 13 december 2018 @ 11:14:
[...]
Ja, bedankt! Nog gevraagd of het materiaal om de kasten te koppelen wordt bij geleverd?
Game PC 
 2 Post or Not 2 Post What's the question ? 
 "If it ain't broken, you didn't try hard enough"
To be honest, daar hebben we niet goed genoeg over nagedacht. Het is opzich geen probleem want we zijn beide geen koffiedrinkers (dus geen machine...) maar het aantal en de plaatsing van de WCD had beter/fraaier gekund. Nu hebben we in ons huurappartement 2 x 2 wcd's waarvan we er 1 in gebruik hebben voor de waterkoker. Die hebben we straks ook niet meer nodig omdat we nu een quooker hebben. Is eigenlijk het enige puntje die ik, achteraf gezien, anders had gedaan.Harrie_ schreef op donderdag 13 december 2018 @ 11:11:
@BertP Ziet er strak uit!
Bewust gekozen voor slechts 2 WCD's?
Ja gevraagd, maar geen antwoord op gehad. Als ik hem vrijdag spreek zal ik het nog een keer proberen voor je.My-life schreef op donderdag 13 december 2018 @ 11:14:
[...]
Ja, bedankt! Nog gevraagd of het materiaal om de kasten te koppelen wordt bij geleverd?
[ Voor 20% gewijzigd door BertP op 13-12-2018 11:40 ]
Het viel me op want 2 wcd's is natuurlijk wel erg weinig. Andere kant van het verhaal is dat je soms in keukens 10 wcd's tegenkomt waarvan 8 of 9 ongebruikt en dat is dan ook weer niet fraai. Hoe dan ook, het ziet er in ieder geval strak uit zo!BertP schreef op donderdag 13 december 2018 @ 11:39:
[...]
To be honest, daar hebben we niet goed genoeg over nagedacht. Het is opzich geen probleem want we zijn beide geen koffiedrinkers (dus geen machine...) maar het aantal en de plaatsing van de WCD had beter/fraaier gekund. Nu hebben we in ons huurappartement 2 x 2 wcd's waarvan we er 1 in gebruik hebben voor de waterkoker. Die hebben we straks ook niet meer nodig omdat we nu een quooker hebben. Is eigenlijk het enige puntje die ik, achteraf gezien, anders had gedaan.
Hoeder van het Noord-Meierijse dialect
Ja, en in de kast zijn die soms zichtbaar. Het is daarom wel fraai als er mooie schroeven worden bijgeleverd.Shunt schreef op donderdag 13 december 2018 @ 11:37:
[...]
Euh meestal koppelen ze de kasten door ze aan elkaar te schroeven.
Achter het scharnier of achter de planken hoeft dat niet zichtbaar te zijn.My-life schreef op donderdag 13 december 2018 @ 11:47:
[...]
Ja, en in de kast zijn die soms zichtbaar. Het is daarom wel fraai als er mooie schroeven worden bijgeleverd.
M.b.t. de stopcontacten; wij krijgen er uiteindelijk een stuk of vijf. Hier wil ik ook een tweetal USB WCD's in plaatsen. Daar zouden we dus wel voldoende aan moeten hebben
U vraagt, wij draaienPaT schreef op donderdag 13 december 2018 @ 08:21:
@Ophidian mooie keuken hoor. Eigenlijk moet je nog eens foto's maken bij een zonnige dag om een echt vergelijk met de renders te maken

                    ZO SE - 5,76kWp - Shade: Low - PVoutput | NOZW APS QS1 - 3,84kWp - Shade: High - PVoutput | Volvo XC40 Pure Electric Ultimate | Volvo EX30 Plus SMSR
Druk? Er staan welgeteld twee dingen op heel wat metersGluten Parody schreef op donderdag 13 december 2018 @ 18:16:
Mooi hoor! Wel een beetje druk op het aanrecht zo, met die zeep en messenset.
Goeie smaak, ook qua vloer!Ophidian schreef op donderdag 13 december 2018 @ 18:14:
[...]
U vraagt, wij draaien![]()
[Afbeelding]
[Afbeelding]
                    Het leven is te kort om geduld te hebben!
Verwijderd
Siemens heeft tot 31 december 2018 een cashback actie op InductionAir systemen...BertP schreef op donderdag 13 december 2018 @ 10:20:
Deze week is onze keuken geplaatst, vaatwasser komt nog (verkeerde geleverd), en uiteindelijk toch voor een andere afzuigkap/manier gekozen. Erg blij mee voor zover
https://www.siemens-home....ties/cashbackinductionair
Wow, thanx voor die tip! Er zit €500 cashback op ons model!Verwijderd schreef op donderdag 13 december 2018 @ 20:23:
[...]
Siemens heeft tot 31 december 2018 een cashback actie op InductionAir systemen...![]()
https://www.siemens-home....ties/cashbackinductionair
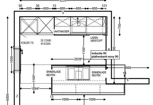
Van werkblad afzuiging naar novy compact met koof, dit scheelt een besteklade
Gaat om een next nx501 in kristal wit hoogglans
Denk dat de totaal prijs nu rond de €20.000 ligt. wel een bak geld..
klikken voor groter
[ Voor 8% gewijzigd door Tito129 op 13-12-2018 21:17 ]
Ik denk dat je sarcasmometer kapot isMikeyMan schreef op donderdag 13 december 2018 @ 18:57:
[...]
Druk? Er staan welgeteld twee dingen op heel wat meters
Ik zou even een lijstje met apparatuur posten, want zo kan je niet zeggen of het duur of goedkoop is.Tito129 schreef op donderdag 13 december 2018 @ 21:16:
Vandaag de nieuwe render van onze keuken gekregen, weer kleine aanpassingen laten uitwerken.
Van werkblad afzuiging naar novy compact met koof, dit scheelt een besteklade
Gaat om een next nx501 in kristal wit hoogglans
Denk dat de totaal prijs nu rond de €20.000 ligt. wel een bak geld..
[Afbeelding: plat2]
[Afbeelding: zij]
[Afbeelding: aan]
klikken voor groter
ZO SE - 5,76kWp - Shade: Low - PVoutput | NOZW APS QS1 - 3,84kWp - Shade: High - PVoutput | Volvo XC40 Pure Electric Ultimate | Volvo EX30 Plus SMSR
Mooi hoor. Wat voor vloer heb je?BertP schreef op donderdag 13 december 2018 @ 10:20:
Deze week is onze keuken geplaatst, vaatwasser komt nog (verkeerde geleverd), en uiteindelijk toch voor een andere afzuigkap/manier gekozen. Erg blij mee voor zover
Zo ziet de render er uit:
[Afbeelding: keuken]
Hoe het er nu uitziet (blauw is folie offcourse).
[Afbeelding]
[Afbeelding]
[Afbeelding]
[Afbeelding]
PVC, gehaald bij lab21 in Amersfoort (basic honing eiken).
Ik denk als je het aanrechtblad zo leeg mogelijk probeert te houden, 2 WCD meer dan genoeg zijn. Koffiezetapparaat, soms de blender en wellicht je telefoon opladen. Verder niet veel meer toch.Harrie_ schreef op donderdag 13 december 2018 @ 11:42:
[...]
Het viel me op want 2 wcd's is natuurlijk wel erg weinig. Andere kant van het verhaal is dat je soms in keukens 10 wcd's tegenkomt waarvan 8 of 9 ongebruikt en dat is dan ook weer niet fraai. Hoe dan ook, het ziet er in ieder geval strak uit zo!
Ja dat is natuurlijk per persoon verschillend.Mokum80 schreef op vrijdag 14 december 2018 @ 09:26:
[...]
Ik denk als je het aanrechtblad zo leeg mogelijk probeert te houden, 2 WCD meer dan genoeg zijn. Koffiezetapparaat, soms de blender en wellicht je telefoon opladen. Verder niet veel meer toch.
Als je een koffiezetapparaat gebruikt heb je er standaard 1 in gebruik, als je een waterkoker gebruikt ook. Dat zijn er al 2. En dan heb je inderdaad ook nog een blender, mixer, keukenmachine, tosti-apparaat/panini-maker maar dat zijn allemaal apparaten die niet iedereen gebruikt.
In onze nieuwe keuken ben ik voor 5 WCD's gegaan. Ik heb een blad van iets meer dan 4m lang en een los blokje naast de muur van 1,20m. Op het losse blokje heb ik 2 WCD's gemaakt omdat dat ding gaat dienen als 'de koffiecorner', daar zal dus standaard het koffiezetapparaat staan en zit er een extra voor telefoonlader of ander incidenteel gebruik. Langs het lange blad zit er helemaal links 1 (bij de kookplaat) en helemaal rechts 2 voor wanneer mijn vrouw weer taarten en gebak gaat maken en de behoefte heeft om een aantal apparaten aan te sluiten...
Hoeder van het Noord-Meierijse dialect
-stoomapparaat voor de babyhapjesMokum80 schreef op vrijdag 14 december 2018 @ 09:26:
[...]
Ik denk als je het aanrechtblad zo leeg mogelijk probeert te houden, 2 WCD meer dan genoeg zijn. Koffiezetapparaat, soms de blender en wellicht je telefoon opladen. Verder niet veel meer toch.
-koffiebonenmaler
-flessenwarmer
-sinasappelpers
-keukenmachine....
Sommigen hebben niet genoeg aan 2 wcd.... :-)
Belangrijker dan het aantal WCD's is, vind ik, dat ze op de juiste plek zitten. Bijvoorbeeld naast je kookplaat voor een staafmixer. Enz.
Te weinig is echter wel echt verschrikkelijk irritant (ik heb er zes).
Het is ook alleen maar om te laten zien dat we niet allemaal met 2 wcd's uit de voeten kunnen
Dit is natuurlijk eigenlijk niet de plek voor discussie over het aantal WCD's in een keuken maar ik moet toch nog even melden dat ik denk dat 2 WCD's in de keuken voor de meeste mensen te weinig is, ergo deze post van mij waar dit hele verhaal mee begon...
Hoeder van het Noord-Meierijse dialect
Waar ik echter benieuwd naar ben is hoe je eventueel extra WCD's in de keuken geplaatst krijgt? Ben je hiervan niet afhankelijk van wat de bouwer oplevert? Of kan je hierin na de oplevering nog extra keuzes maken en deze laten uitvoeren door een (ik neem aan) electricien?
Ik heb een keuken + apparatuur uitgezocht met kookeiland voor een prijs van 12.500 euro.
Omdat het bijna sluitingstijd was konden de details niet uitgewerkt worden op papier.
Ik heb met vertrouwen (ja ik weet het mooi dom) een handtekening gezet op een koopcontract.
Inmiddels heb ik de voorlopige order bevestiging ontvangen met het ontwerp plus uitwerking.
Nu komt het probleem. Hoewel het ontwerp geheel naar wens is getekend, staat er ineens een type keuken (naam) op die ik niet heb besteld. De keuken die ik besteld heb is veel luxer uitgevoerd en heeft een andere naam. Dus alleen qua ontwerp is de keuken nu hetzelfde.
De naam van de keuken die er nu op staat is van een veel goedkopere keuken. Deze voorlopige order bevestiging moet opnieuw ondertekend worden maar dat ga ik niet doen. Ik ben met dit verhaal nog niet bij de keukenboer geweest, maar voel de bui al hangen. Wat kan ik als consument doen als het zijn woord tegen de mijne wordt? Ik had die middag geen legitimatie bij me, dus staat het rijbewijs nummer van mijn vriendin onder mijn gegevens.
“bet your technical analysis didn’t see this sh*t coming”
Nog even terug over de WCD's. Wij hebben er maar 2 op ons kookeiland, in het midden. Ik heb nog geen enkele keer gehad dat ik tekort kwam. Overigens drinken wij zelf geen koffie en hebben een kokendwaterkraan, dus ik gebruik hem alleen voor keukenmachine, staafmixer, sinaasappelpers, sous vide apparaat of frituur. En koffiezetapparaat als er bezoek is
Stond het juiste type keuken helemaal niet genoemd op je getekende koopcontract?
[ Voor 13% gewijzigd door PaT op 14-12-2018 13:54 ]
Groot genoeg voor 2 hoofdletters
Mandemakers inderdaad.Dennis schreef op vrijdag 14 december 2018 @ 13:50:
@zwembroek Mandemakers? Ja, je handtekening staat eronder. Maar als er iets niet op dat contract stond (zoals type) en dat is er later bijgekrabbeld, dan kun je overwegen om te 'dreigen' met aangifte wegens fraude.
Ik ga er vanavond sowieso nog even langs na mijn werk. Ik ontdekte het nu toevallig omdat ik een front niet kon plaatsen. Waar ik bang voor ben is dat ze het contract aanpassen naar de juiste naam, en alsnog dezelfde goedkopere keuken laten maken. Mijn vertrouwen is meteen weg. Het onderhandelen ging vrij stug en ik heb de prijs die ik in mijn hoofd had niet los gelaten. Het lijkt erop dat ik daar nu voor aangepakt wordt. Nee het was gewoon een los voorblad wat ik getekend heb. Er stond alleen mijn naam plus adres en ID van mijn vriendin op en het afgesproken bedrag. Ik vroeg nog aan de verkoper, ik heb hier alleen een getekend voorblad, geef me ook even een kopie van jou blad mee waar ook de apparaten en je aantekingen op staan. Dit kon volgens hem niet omdat dit papier met mijn onderhandelde prijs niet naar buiten mocht lekken. Mijn vriendin is zelfs de volgende dag naar de zaak toegegaan om een kopie te eisen.PaT schreef op vrijdag 14 december 2018 @ 13:52:
@zwembroek In plaats van hier alle doemscenario's over je heen te krijgen, zou ik gewoon naar de zaak gaan / bellen / mailen en het probleem voorleggen. Wie weet zijn ze heel coulant of laten ze je order vervallen vanwege verkeerde communicatie / voorlichting?
Stond het juiste type keuken helemaal niet genoemd op je getekende koopcontract?
Ze zeiden alleen we werken het uit maar je kan deze niet meekrijgen. Het blijft echter wel hier op de zaak inzichtbaar.
“bet your technical analysis didn’t see this sh*t coming”
Ik zou dit beschouwen als fraude en dreigen met aangifte. Dit kan toch niet zeg, man man man.
Oh en trouwens, hopelijk ben jij nu ook genezen en realiseer je je dat je dus nooit meer naar die vreselijke keukenboer moet gaan.
[ Voor 73% gewijzigd door Dennis op 14-12-2018 14:36 ]
Dus feitelijk heb je getekend voor 'een' keuken? Raar verhaal...Maar inderdaad, dit soort dingen verwacht je van Mandemakers.zwembroek schreef op vrijdag 14 december 2018 @ 14:24:
[...]
Mandemakers inderdaad.
[...]
Ik ga er vanavond sowieso nog even langs na mijn werk. Ik ontdekte het nu toevallig omdat ik een front niet kon plaatsen. Waar ik bang voor ben is dat ze het contract aanpassen naar de juiste naam, en alsnog dezelfde goedkopere keuken laten maken. Mijn vertrouwen is meteen weg. Het onderhandelen ging vrij stug en ik heb de prijs die ik in mijn hoofd had niet los gelaten. Het lijkt erop dat ik daar nu voor aangepakt wordt. Nee het was gewoon een los voorblad wat ik getekend heb. Er stond alleen mijn naam plus adres en ID van mijn vriendin op en het afgesproken bedrag. Ik vroeg nog aan de verkoper, ik heb hier alleen een getekend voorblad, geef me ook even een kopie van jou blad mee waar ook de apparaten en je aantekingen op staan. Dit kon volgens hem niet omdat dit papier met mijn onderhandelde prijs niet naar buiten mocht lekken. Mijn vriendin is zelfs de volgende dag naar de zaak toegegaan om een kopie te eisen.
Ze zeiden alleen we werken het uit maar je kan deze niet meekrijgen. Het blijft echter wel hier op de zaak inzichtbaar.
Veel succes vanavond, hopelijk hebben ze een greintje eergevoel in hun donder en lossen ze het netjes op. zo niet, dan direct hard reageren.
Groot genoeg voor 2 hoofdletters
We hebben nu het volgende bedacht:
Wasemkap NOVY 6841Plafondunit €1,102.00
Vaatwasser SIEMENS SN678X36TE €787.56
Kraan Quooker Fusion Round Chroom Combi2.2 €1,345.50
Kraan QUOOKER CUBE Quooker €980.40
Kookplaat SIEMENS EH801KU12E €3,000.00
Koelkast SIEMENS KI87SAF30 €724.59
Oven SIEMENS HB632GBS1 €465.60
Stoomoven SIEMENS CD634GBS1 €714.89
Op een online website komt dit neer op €9,120.54, maar dit is eigenlijk (ver) boven budget. Ik heb echter nog geen offerte opgevraagd, dus kan het zo maar lager liggen (verwacht ik wel na hier eea gelezen te hebben).
Qua wasemkap willen we eigenlijk de 6811 Pure'line Compact (heeft inbouwdiepte van maar 20cm) maar die verkopen de meeste keukenzaken niet (of op bestelling).
De kookplaat lijkt een nieuw model, er is nergens een prijs van beschikbaar. Dit is wel wat we graag willen, 1 grote kookzone voor grote pannen (wok etc).
De verdere zaken zijn allemaal snel gekozen, vooral omdat het niet gemakkelijk is om uit tientallen Siemens koelkasten nu net een voor- of nadeel te kunnen benoemen. Bij de vaatwasser heb ik alleen naar het geluid gekeken.
Hebben jullie eventueel input? Zal ik de Novy erbuiten laten, of levert elk product erbij (binnen 1 offerte) meer voordeel op?
Ik hoop dat je rechtsbijstand hebt. Dit ga je nodig hebben.zwembroek schreef op vrijdag 14 december 2018 @ 13:47:
Mensen ik zit met het volgende probleem.
Ik heb een keuken + apparatuur uitgezocht met kookeiland voor een prijs van 12.500 euro.
Omdat het bijna sluitingstijd was konden de details niet uitgewerkt worden op papier.
Ik heb met vertrouwen (ja ik weet het mooi dom) een handtekening gezet op een koopcontract.
Inmiddels heb ik de voorlopige order bevestiging ontvangen met het ontwerp plus uitwerking.
Nu komt het probleem. Hoewel het ontwerp geheel naar wens is getekend, staat er ineens een type keuken (naam) op die ik niet heb besteld. De keuken die ik besteld heb is veel luxer uitgevoerd en heeft een andere naam. Dus alleen qua ontwerp is de keuken nu hetzelfde.
De naam van de keuken die er nu op staat is van een veel goedkopere keuken. Deze voorlopige order bevestiging moet opnieuw ondertekend worden maar dat ga ik niet doen. Ik ben met dit verhaal nog niet bij de keukenboer geweest, maar voel de bui al hangen. Wat kan ik als consument doen als het zijn woord tegen de mijne wordt? Ik had die middag geen legitimatie bij me, dus staat het rijbewijs nummer van mijn vriendin onder mijn gegevens.
Ik heb inderdaad niet meer dan een voorblad getekend. Maar we hebben uren bij de juiste keuken gestaan om de kleur, blad, greepjes etc uit te zoeken.PaT schreef op vrijdag 14 december 2018 @ 14:46:
[...]
Dus feitelijk heb je getekend voor 'een' keuken? Raar verhaal...Maar inderdaad, dit soort dingen verwacht je van Mandemakers.
Veel succes vanavond, hopelijk hebben ze een greintje eergevoel in hun donder en lossen ze het netjes op. zo niet, dan direct hard reageren.
Ik ben bij Mandmakers uitgekomen omdat ik eerder een goed vrijblijvend gesprek met de manager heb gehad. Nu ben ik geholpen door een verkoper, maar de manager was ook in de zaak.
Ik heb geen rechtsbijstand helaas.
Word in ieder geval vervolgd...
“bet your technical analysis didn’t see this sh*t coming”
Er zijn eea uitbreidingen, zie ook:DC Vogelaar schreef op vrijdag 14 december 2018 @ 12:58:
Ik vind de discussie over de WCD erg interessant, naar mijn mening heb je er ook voldoende nodig en op de juiste plekken zoals eerder al aangehaald.
Waar ik echter benieuwd naar ben is hoe je eventueel extra WCD's in de keuken geplaatst krijgt? Ben je hiervan niet afhankelijk van wat de bouwer oplevert? Of kan je hierin na de oplevering nog extra keuzes maken en deze laten uitvoeren door een (ik neem aan) electricien?
https://www.doeco.nl/asso...ctdozen/_404_w_3487__NL_1
Die kunnen ook in een bestaande keuken redelijk makkelijk ingebouwd worden. Uiteraard verdient inbouwen bij vernieuwing de voorkeur
Maandag en dinsdag is er een keukenmonteur 2 dagen bezig geweest en zit er helemaal strak in.
Ging niet vlekkeloos want 1) de tekening klopte niet waardoor de keuken opeens 10cm meer de woonkamer in kwam (de hoge kasten) en 2) de kookplaat verkeerd was aangesloten waardoor de L1 op de N zat. Gelukkig zat er een beveiliging in de plaat (foutmelding op het display) en nadat ik het zelf gecorigeerd had werkt ie perfect.
Even een voor (eerste week) / na plaatje van de woonkamer waar nu de keuken staat:

En nog een foto van wat dichterbij:

De vloer is beton wat nog niet is uitgehard (stucloop is er vandaag af gegaan) dus die lijkt wat raar op de foto.
As you may already have guessed, following the instructions may break your system and you are on your own to fix it again.
Wat is ver boven budget. € 9.000,- aan apparatuur is nogal wat natuurlijk. Ik kan het daarom ook niet zo goed rijmen; ik wil graag een Porsche 911 Carrera RS, maar die is ook (ver) boven budgetGustavSan schreef op vrijdag 14 december 2018 @ 14:51:
Argh. Ik kom er niet uit qua keuken.
We hebben nu het volgende bedacht:
[...]
Op een online website komt dit neer op €9,120.54, maar dit is eigenlijk (ver) boven budget. Ik heb echter nog geen offerte opgevraagd, dus kan het zo maar lager liggen (verwacht ik wel na hier eea gelezen te hebben).
Hebben jullie eventueel input? Zal ik de Novy erbuiten laten, of levert elk product erbij (binnen 1 offerte) meer voordeel op?
Heb je je apparatuur ook op keukenloods opgezocht (voor zover daar beschikbaar)? De prijzen die ze daar bieden, daar ga je het niet (veel) lager voor krijgen. Dit klinkt verder een beetje alsof je 'vrij van beperkingen' hebt uitgezocht wat je wilt, maar ik zou het eerder omdraaien: ga vanuit je budget apparatuur samenstellen. Dan loop je vanzelf tegen je plafondbedrag aan en zul je dus ergens consessies moeten doen... € 3.000,- voor een kookplaat
En om maar weer terug te komen op de WCD's in de keuken. Ik vind het vooral bijzonder om te zien dat mensen géén standaard koffiezetapparaat hebben staan maar kennelijk is het anno 2018 wel volkomen normaal dat je 2 ovens in de keuken hebt...
Hoeder van het Noord-Meierijse dialect
As you may already have guessed, following the instructions may break your system and you are on your own to fix it again.
De verkoper zei ook nog dat ik een eventuele annulering boete in de toekomst wel in mindering mocht brengen op de aanschaf van een keuken bij hun. Dan durf je wel...
Ik baal echt als een stekker. Niet alleen om dit gedoe maar ook omdat ik echt een schitterende keuken had samengesteld die helemaal naar wens was.
Ik heb mijn les weer geleerd.
“bet your technical analysis didn’t see this sh*t coming”
Ik ben momenteel bezig met het uitkiezen van een Next keuken. Het kan waarschijnlijk ook bij andere fabrikanten, maar in de kastenwand laat ik achter een deur een uittrekbare 'plank' maken. Er komt verlichting boven en zit een WCD achterin. Handig voor apparaten die je af en toe gebruikt, bv koffiezetapparaat of blender. Heb er helaas geen foto van, maar dit komt in de buurt.En om maar weer terug te komen op de WCD's in de keuken. Ik vind het vooral bijzonder om te zien dat mensen géén standaard koffiezetapparaat hebben staan maar kennelijk is het anno 2018 wel volkomen normaal dat je 2 ovens in de keuken hebt...
.
                    Schandalige manier van werken. Zou echt aanraden om bij een lokale zaak te gaan kijken, qua prijs niveau vaak gelijk aan de grotere zaken maar je word wel eerlijk behandeld en krijgt openheid van zaken.zwembroek schreef op vrijdag 14 december 2018 @ 23:32:
Nou ik ben verhaal gaan halen bij de keukenboer. Nadat ik mijn verhaal had gedaan zag ik dat de verkoper wat ongemakkelijk werd. Heel kort probeerde de verkoper het verhaal recht te praten door te zeggen dat mijn gekozen front niet te bestellen was voor de gekozen keuken. Hij wilde de offerte ook wel aanpassen naar de juiste keuken naam. Toen ik echter aangaf dat ik op de hoogte was van de verschillende fabrikanten en ik wel op de offerte wilde hebben dat het een hacker systemat zou worden stuurde hij meteen aan op annulering. Ik heb hier dan ook meteen voor gekozen. Echter voordat ik het pand had verlaten werd mij nog medegedeeld dat hij de annulering via de juridische afdeling moest laten lopen en er mogelijk nog een bepaald bedrag moet worden betaald. Hij zei erbij dat hij ging vragen naar een coulance regeling. Ik ben benieuwd waar ze mee aan komen zetten. Mijn schoonvader heeft al aangegeven een advocaat er op te zetten als ze met een hoge annulering vergoeding aan komen zetten.
De verkoper zei ook nog dat ik een eventuele annulering boete in de toekomst wel in mindering mocht brengen op de aanschaf van een keuken bij hun. Dan durf je wel...
Ik baal echt als een stekker. Niet alleen om dit gedoe maar ook omdat ik echt een schitterende keuken had samengesteld die helemaal naar wens was.
Ik heb mijn les weer geleerd.
Heb je al eens gevraagd naar de prijs van die slide in deuren? Je gaat schrikken vrees ikMokum80 schreef op zaterdag 15 december 2018 @ 09:25:
[...]
Ik ben momenteel bezig met het uitkiezen van een Next keuken. Het kan waarschijnlijk ook bij andere fabrikanten, maar in de kastenwand laat ik achter een deur een uittrekbare 'plank' maken. Er komt verlichting boven en zit een WCD achterin. Handig voor apparaten die je af en toe gebruikt, bv koffiezetapparaat of blender. Heb er helaas geen foto van, maar dit komt in de buurt. [Afbeelding].
Daarnaast, hoe vaak doe je ze dicht. Ziet er leuk uit, maar ik denk dat ze in de praktijk altijd open staan.
Dat inderdaad...MikeyMan schreef op zaterdag 15 december 2018 @ 09:40:
[...]
Heb je al eens gevraagd naar de prijs van die slide in deuren? Je gaat schrikken vrees ik
Daarnaast, hoe vaak doe je ze dicht. Ziet er leuk uit, maar ik denk dat ze in de praktijk altijd open staan.
Leuk in de showroom, niet praktisch in de praktijk.
Groot genoeg voor 2 hoofdletters
Je had moeten vragen of fraude ook wordt gepromoot door hun juridische afdeling. Dat die hele club nog steeds bestaat is mij een raadsel. Ik ben een keer in een van die winkels geweest een jaar of wat geleden voor ik de verhalen had gelezen. Na krap een half uur wilde ik de 3 verkopers die zich ermee bemoeiden met hun snuffert over de pvc vloer schuiven, vooral toen er een zo slim was om voor de uitgang te gaan staan...zwembroek schreef op vrijdag 14 december 2018 @ 23:32:
Echter voordat ik het pand had verlaten werd mij nog medegedeeld dat hij de annulering via de juridische afdeling moest laten lopen en er mogelijk nog een bepaald bedrag moet worden betaald.
Anyhow, wij hebben ruim 8 winkels bezocht (in NL en D) voor we onze keuken hebben aangeschaft en ik hoop nooit meer iets met keukenverkopers te maken te hebben. Zodra je krabbel staat ben je een aftersales klant.
As you may already have guessed, following the instructions may break your system and you are on your own to fix it again.
Gelukkig een 'wat duurdere' keuken en een erg goed montagebedrijf gehad, geen klachten of problemen gehad.
Het leven is te kort om geduld te hebben!
En als je de offerte niet meekrijgt dan maak je toch een foto met je mobiel.sanvv78 schreef op zaterdag 15 december 2018 @ 13:50:
Ik begrijp in het hele verhaal hierboven met die DMG keuken niet dat mensen tekenen en alleen een voorblad meekrijgen en dan akkoord gaan! Ik bedoel je moet toch exact kunnen zien waarvoor je tekent, welke apparatuur, welk merk keuken, welk materiaal etc? Dat dit later wellicht nog aan te passen is is ook handig in de overeenkomst, wel dat je dan minimaal de getekende prijs afneemt. Mensen teken aub niet zomaar iets!!! Een auto teken je toch ook helemaal met alle opties er op etc, waarom niet met een keuken van 12K? Een goede keukenzaak geeft een een offerte mee met prijs en in grote lijnen wat je ervoor krijgt, met iig merk keuken, front, type apparatuur en type blad en afmeting keuken. De keukenzaken hebben super mooie computersystemen dat alles zo uit te rekenen en uit te draaien is, laat je niet met een kluitje het riet in sturen, of teken niet.
Jammer dat een DMG zo kan blijven werken. Blijkbaar trappen er iedere keer weer genoeg mensen in. Niet alleen keukenkopers. Ook de ZZP-ende keuken en badkamerbouwers worden volledig uitgeknepen en mogen de shit oplossen.
Vorige week waren we bij vrienden. Bleek dat de badkamer monteur (door DMG ingehuurd) een hele andere orderbon had dan de klant. De vloerverwarming was DMG voor het gemak even vergeten op de bon. De monteur weigerde deze vervolgens ook aan te leggen want zijn prijs was gebaseerd op de prijs zonder vloerverwarming en hij gaf al aan de discussie met DMG niet te voeren want hij trok als monteur toch aan het kortste eind.
Dan kom je nu waarschijnlijk nog wel goed weg, in het verleden werd je ook bij het annuleren een dikke poot uitgedraaid: https://www.izaa.nl/keuken-annuleren-nieuwe-voorwaarden/zwembroek schreef op vrijdag 14 december 2018 @ 23:32:
Echter voordat ik het pand had verlaten werd mij nog medegedeeld dat hij de annulering via de juridische afdeling moest laten lopen en er mogelijk nog een bepaald bedrag moet worden betaald. Hij zei erbij dat hij ging vragen naar een coulance regeling. Ik ben benieuwd waar ze mee aan komen zetten.
Ja, daar schrok ik wel vanMikeyMan schreef op zaterdag 15 december 2018 @ 09:40:
[...]
Heb je al eens gevraagd naar de prijs van die slide in deuren? Je gaat schrikken vrees ik
[ Voor 3% gewijzigd door Mokum80 op 15-12-2018 16:50 ]
En ik moet nog maar afwachten he waar ze straks mee aan komen zetten. Maar ik betaal niet zonder meer een bedrag voor oplichtingspraktijken. Dan ga ik het bedrag aanvechten. Ik mocht ook niet een foto maken van de offerte omdat anders mijn aanbieding zou uitlekken. En hier kwam hij mee direct nadat ik de handtekening had gezet en om een kopie van de offerte had gevraagd. Omdat het mij niet lekker zat is mijn vriendin de volgende dag er heen gegaan om dus alsnog een kopie te halen. Maar de verkoper gaf aan dat hij absoluut niet die handgeschreven offerte mee mocht geven. Anders zou hij zijn baan verliezen. Hij zou het direct uitwerken en mailen. Verder vond hij dat we niet bijster veel vertrouwen in hem hadden. En achteraf kwam mijn gevoel helaas uit. Naast een keuken moeten wij ook nog een nieuwe badkamer. Maar wie kan je nog vertrouwen? Geen Mandemakers in ieder geval.
“bet your technical analysis didn’t see this sh*t coming”
Gewoon weigeren te betalen. Ze kunnen je weinig maken en stappen heus niet naar de rechter (wat uiteindelijk hun enige middel is om je tot betaling te dwingen). Daar zijn de verhalen over de werkwijze van deze winkel ook wel bekend neem ik aan.
Kort en bondig nee blijven zeggen als ze claimen iets van je te krijgen.
[ Voor 16% gewijzigd door Fornoo op 15-12-2018 17:28 ]
Geloof maar dat je het nooit gaat winnen van de DMG groep. Mandemakers heeft een team van goede advocaten waar je het gegarandeerd tegen aflegt.Fornoo schreef op zaterdag 15 december 2018 @ 17:26:
Nou ja ingeluisd, de praktijken zijn inmiddels wel bekend.
Gewoon weigeren te betalen. Ze kunnen je weinig maken en stappen heus niet naar de rechter (wat uiteindelijk hun enige middel is om je tot betaling te dwingen). Daar zijn de verhalen over de werkwijze van deze winkel ook wel bekend neem ik aan.
Kort en bondig nee blijven zeggen als ze claimen iets van je te krijgen.
Ik ben benieuwd hoe het contract van @zwembroek eruit ziet. Het klinkt een beetje als de intentieverklaring die DMG ook gebruikt (heeft) op beurzen. Je tekent simpelweg om een keuken ter waarde van x.xxx af te nemen
Klinkt idioot maar hier kom je niet onderuit. Je kan blij zijn dat ze de annuleringskosten hebben aangepast anders had je fijn 30% af mogen tikken.
Untappd: Kapitein_Merijn
Lokale zaken met goede recensies? Bedrijven met hun eigen achternaam op de gevel gooien deze vaak niet zomaar te grabbel.zwembroek schreef op zaterdag 15 december 2018 @ 17:04:
Maar wie kan je nog vertrouwen?
Zo'n plank heb ik ook in een kast (Rotpunkt), zeer handig idd!Mokum80 schreef op zaterdag 15 december 2018 @ 09:25:
[...]
Ik ben momenteel bezig met het uitkiezen van een Next keuken. Het kan waarschijnlijk ook bij andere fabrikanten, maar in de kastenwand laat ik achter een deur een uittrekbare 'plank' maken. Er komt verlichting boven en zit een WCD achterin. Handig voor apparaten die je af en toe gebruikt, bv koffiezetapparaat of blender. Heb er helaas geen foto van, maar dit komt in de buurt. [Afbeelding].
Vaak is daarbij een belangrijk woord. Onlangs bij mijn schoonouders gezien hoe dat ook faliekant mis kan gaan. Niet zozeer oplichtingspraktijken, maar wel belabberde service.kever678 schreef op zaterdag 15 december 2018 @ 20:16:
[...]
Lokale zaken met goede recensies? Bedrijven met hun eigen achternaam op de gevel gooien deze vaak niet zomaar te grabbel.
Het is gewoon erg moeilijk om het kaf van het koren te scheiden met zaken die je 1x in de tien jaar koopt.
Zelfde als de nieuwe tv van dit jaar, vorige heeft het ook 8 jaar volgehouden en is vervangen omdat die echt niet meer kon.
Het leven is te kort om geduld te hebben!
Nou nee dat klinkt helemaal niet als een intentie verklaring. Als ik naar de autogarage ga en zoek een Audi A5 uit. We bespreken alle gewenste opties en de prijs daarvoor af. Ik teken ervoor en de offerte wordt later nagestuurd. Dan ontvang je de offerte met een VW polo in je mail. Dan ben je toch belazerd of niet? Je zegt toch niet van ik zoek een auto van 12.500 euro en ik wil dat hij deze opties aan boord heeft. Om vervolgens de garage een auto met gewenste opties naar keuze voor dat bedrag ta laten samenstellen?Kapitein Merijn schreef op zaterdag 15 december 2018 @ 19:50:
[...]
Ik ben benieuwd hoe het contract van @zwembroek eruit ziet. Het klinkt een beetje als de intentieverklaring die DMG ook gebruikt (heeft) op beurzen. Je tekent simpelweg om een keuken ter waarde van x.xxx af te nemen
Klinkt idioot maar hier kom je niet onderuit. Je kan blij zijn dat ze de annuleringskosten hebben aangepast anders had je fijn 30% af mogen tikken.
Nee ik had getekend voor exact die keuken, met die naam, van dat merk, met dat front, greepjes, etc. En dan zetten ze een heel andere keuken op de offerte met andere naam en ander merk. Als hij niet kon leveren voor dat bedrag, had hij moeten zeggen sorry maar ik kan niet lager met de prijs.
[ Voor 12% gewijzigd door zwembroek op 16-12-2018 12:37 ]
“bet your technical analysis didn’t see this sh*t coming”
Heel erg fijne zaak en goed geholpen. We krijgen de offerte nog thuisgestuurd al ben ik bang dat ze niet heel goedkoop zijn.
Volgende week in duitsland kijken.
Je hebt een punt. Ik had even 'snel' een lijstje samengesteld met toffe apparaten en adhv de input hier ging ik ervan uit dat daar dan nog een (flinke) korting op kwam. Het budget staat op zich niet vast, daarbij, we willen goed en functioneel spul. Niet perse het beste van het beste, ook niet het duurste van het duurste. Die kookplaat leek me wel wat qua specs, maar is feitelijk te duur.Harrie_ schreef op vrijdag 14 december 2018 @ 18:45:
[...]
Wat is ver boven budget. € 9.000,- aan apparatuur is nogal wat natuurlijk. Ik kan het daarom ook niet zo goed rijmen; ik wil graag een Porsche 911 Carrera RS, maar die is ook (ver) boven budget
Heb je je apparatuur ook op keukenloods opgezocht (voor zover daar beschikbaar)? De prijzen die ze daar bieden, daar ga je het niet (veel) lager voor krijgen. Dit klinkt verder een beetje alsof je 'vrij van beperkingen' hebt uitgezocht wat je wilt, maar ik zou het eerder omdraaien: ga vanuit je budget apparatuur samenstellen. Dan loop je vanzelf tegen je plafondbedrag aan en zul je dus ergens consessies moeten doen... € 3.000,- voor een kookplaat![]()
En om maar weer terug te komen op de WCD's in de keuken. Ik vind het vooral bijzonder om te zien dat mensen géén standaard koffiezetapparaat hebben staan maar kennelijk is het anno 2018 wel volkomen normaal dat je 2 ovens in de keuken hebt...
Wat betreft de ovens. Die gebruiken we vaak. We hebben nu een los stoomapparaat en de oven staat hier dagelijks aan. Ik ben verder happy met mijn Jura en was niet van plan een machine in te laten bouwen.
Maargoed. Dat brengt mij bij het punt waar ik het maken van een keuze het moeilijkst vindt, de kookplaat.
Siemens heeft er tig in 90cm. We gaan voor het gemak voor de iq700 serie. Op de website blijven er dan 13 modellen over, waar de twee duurste afvallen (dat zijn die ik eerder noemde met adviesprijs van €5k).
Een aantal zijn 'oud' en een aantal 'nieuw' of 'binnenkort leverbaar' kijkende naar de Siemens website. Al deze modellen hebben geen zichtbare prijs bij webshops als Keukenloods of Bemmel & Kroon.
Nu zijn ze grofweg allemaal hetzelfde. 11kw aansluitwaarde, afmetingen etc.
Het enige echte verschil is opbouw of vlakke inbouw. Mijn keukenboer gaf aan dat opbouw beter is, maar is dat ook echt zo?
Verder hebben de ouderen geen app connectie, maar daar geef ik eerlijk gezegd ook niet veel om.
Het gaat om de volgende modellen:
Ouder model:
EX907LXC1E
EX975LXC1E
Nieuw model:
EX907LXV5E
EX977KXX5E
EX977LVV5E
EX977LXV5E
Heeft iemand toevallig zo'n kookplaat? Hoe bevalt deze?
Wij hebben de EX977KXX1E maar die is inmiddels van vorig jaar en zo te zien op Google hetzelfde. Heerlijke kookplaat en de flex zones zijn onwijs prettig. Met de snelkook functie heb je geen quooker nodig (die hebben wij expres ook niet genomen). Pan water kookt binnen een minuut of 2. Nadeel aan inductie blijft dat je je dood poetst en de plaat nooit meer streep of vlek loos krijgt. Ook door de ribbeltjes van de flexzones blijft er snel vuil achter.GustavSan schreef op zondag 16 december 2018 @ 15:49:
[...]
Je hebt een punt. Ik had even 'snel' een lijstje samengesteld met toffe apparaten en adhv de input hier ging ik ervan uit dat daar dan nog een (flinke) korting op kwam. Het budget staat op zich niet vast, daarbij, we willen goed en functioneel spul. Niet perse het beste van het beste, ook niet het duurste van het duurste. Die kookplaat leek me wel wat qua specs, maar is feitelijk te duur.
Wat betreft de ovens. Die gebruiken we vaak. We hebben nu een los stoomapparaat en de oven staat hier dagelijks aan. Ik ben verder happy met mijn Jura en was niet van plan een machine in te laten bouwen.
Maargoed. Dat brengt mij bij het punt waar ik het maken van een keuze het moeilijkst vindt, de kookplaat.
Siemens heeft er tig in 90cm. We gaan voor het gemak voor de iq700 serie. Op de website blijven er dan 13 modellen over, waar de twee duurste afvallen (dat zijn die ik eerder noemde met adviesprijs van €5k).
Een aantal zijn 'oud' en een aantal 'nieuw' of 'binnenkort leverbaar' kijkende naar de Siemens website. Al deze modellen hebben geen zichtbare prijs bij webshops als Keukenloods of Bemmel & Kroon.
Nu zijn ze grofweg allemaal hetzelfde. 11kw aansluitwaarde, afmetingen etc.
Het enige echte verschil is opbouw of vlakke inbouw. Mijn keukenboer gaf aan dat opbouw beter is, maar is dat ook echt zo?
Verder hebben de ouderen geen app connectie, maar daar geef ik eerlijk gezegd ook niet veel om.
Het gaat om de volgende modellen:
Ouder model:
EX907LXC1E
EX975LXC1E
Nieuw model:
EX907LXV5E
EX977KXX5E
EX977LVV5E
EX977LXV5E
Heeft iemand toevallig zo'n kookplaat? Hoe bevalt deze?
Ik gebruik al die functies als wifi en kookprogramma's nooit dus daar kan ik niks over zeggen.
Touchscreen werkt soepel alleen de timer functie touch deel hapert soms wat. Al bij al dikke aanrader
Heb je een concrete uitspraak van een rechter over een case tussen een klant en de DMG-groep?Kapitein Merijn schreef op zaterdag 15 december 2018 @ 19:50:
[...]
Geloof maar dat je het nooit gaat winnen van de DMG groep. Mandemakers heeft een team van goede advocaten waar je het gegarandeerd tegen aflegt.
Ik ben benieuwd hoe het contract van @zwembroek eruit ziet. Het klinkt een beetje als de intentieverklaring die DMG ook gebruikt (heeft) op beurzen. Je tekent simpelweg om een keuken ter waarde van x.xxx af te nemen
Klinkt idioot maar hier kom je niet onderuit. Je kan blij zijn dat ze de annuleringskosten hebben aangepast anders had je fijn 30% af mogen tikken.
Ik kan me namelijk niet voorstellen dat een bedrijf een lang leven bescheiden is, als ze EN zulke verkooptactieken gebruiken EN klanten naar de rechtbank slepen.
Ik vermoed echter dat een groot van de klanten al ruim voor die gebeurtenis de handdoek in de ring heeft gegooid.
Door of de annuleringskosten te betalen of toch maar de keuken te kopen.
Ok, maar dan is er ook totaal geen discussie of er wel of geen annuleringskosten betaald gaan worden? Die gaan er dan toch niet betaald worden omdat er getekend is voor de zeg Audi A5 en niet voor de VW polo in dit verhaal. Ik zou teruggaan naar die verkoper en per direct eisen zwart op wit een bevestiging dat de getekende overeenkomst nietig is gezien er niet geleverd kan gaan worden wat afgesproken is.zwembroek schreef op zondag 16 december 2018 @ 12:32:
[...]
Nou nee dat klinkt helemaal niet als een intentie verklaring. Als ik naar de autogarage ga en zoek een Audi A5 uit. We bespreken alle gewenste opties en de prijs daarvoor af. Ik teken ervoor en de offerte wordt later nagestuurd. Dan ontvang je de offerte met een VW polo in je mail. Dan ben je toch belazerd of niet? Je zegt toch niet van ik zoek een auto van 12.500 euro en ik wil dat hij deze opties aan boord heeft. Om vervolgens de garage een auto met gewenste opties naar keuze voor dat bedrag ta laten samenstellen?
Nee ik had getekend voor exact die keuken, met die naam, van dat merk, met dat front, greepjes, etc. En dan zetten ze een heel andere keuken op de offerte met andere naam en ander merk. Als hij niet kon leveren voor dat bedrag, had hij moeten zeggen sorry maar ik kan niet lager met de prijs.
Is dat zo? @zwembroek heeft zo te lezen een blanko (bij wijze van) overeenkomst getekend. Verkoper kan dus stellen dat er al de hele tijd over de Polo is gesproken en zwembroek moet dan maar hard maken dat het een Audi zou zijn. Verkoper heeft er verder ook geen belang bij om de relatie te redden, want zwembroek komt er toch nooit meer terug. Dan kan verkoper beter gewoon inzetten om die annuleringskosten te kunnen vangen.sanvv78 schreef op zondag 16 december 2018 @ 22:48:
gezien er niet geleverd kan gaan worden wat afgesproken is.
Ik word ondertussen steeds blijer dat ik nooit bij 'n DMG zaak om de tafel ben gegaan. Elke normale verkoper met enig fatsoen in z'n donder zou in die situatie de offerte later hebben uitgewerkt, deze toegestuurd en pas daarna om een handtekening hebben gevraagd...
waar komen de plankjes vandaan met het onderlicht?
Wij hebben een offerte gehad van EUR 14.250 van Keukensale voor onderstaande.
Wij hebben in ons nieuw op te leveren huis gekozen voor een parallelopstelling.
De keuken is +\- 360 cm aan beide kanten.
Ik vermoed dat de prijs als volgt is opgebouwd maar dat is niet gespecificeerd.
KANT 1:
-Granieten blad 360 cm, 3 cm dik inc spatrand, uitsparing (+\- 2750)
-quooker flex dekker flex (1300)
-greeplijstverlichting (500)
-Inductieplaat 80 cm AEG HK854401FB (750)
Schuine wandschouw AEG black DVB5960HB (675)
-vaatwasser xxl FSE83600P AEG met led verlichting en vloerprojectie (950)
- prullenbak geintegreerd en ladeindelingen hout (250)
-spoelbak groot (??)
KANT 2:
4 hoge voorraadkasten en 1 lade van 1 meter welke dient als bankje. In de kasten iwordt het volgende ingebouwd:
AEG Inbouw koel/vries SCB51821LS (750)
AEG blackline combioven compact (1000)KSE792220B
AEG blackline combi stoomoven compact (1200) KME761000B
al met al zit ik dus met accessoires apparatuur (internetprijzen) en blad op plusminus 10.000 en met montage op 11000.
Ik denk dan dus dat de keukenmeubelen ongeveer E 3000 zijn.
hebben jullie verder nog suggesties of tips?
https://www.dropbox.com/s...N6gDLZuHj-xvk3hZneEa?dl=0
[ Voor 5% gewijzigd door bennieb86 op 17-12-2018 00:40 ]
Groot genoeg voor 2 hoofdletters
Dat maakt de kasten+montage zo'n 4500,-.
Dan is 6000 toch niet heel gek?
(edit) oh wacht, er werd 3000 gezegd. Dat lijkt me dan krap.
[ Voor 8% gewijzigd door Hsb-3 op 17-12-2018 07:56 ]
Vanuit de keukenbouwer (AV keukens, te putten).bennieb86 schreef op maandag 17 december 2018 @ 00:16:
@BertP
waar komen de plankjes vandaan met het onderlicht?
Keukensale levert alleen Nobilia. Deze prijs is alleen redelijk wanneer het een model Lux is (volledig. Mdf gelakt. Keukensale zal hem een andere naam hebben gegeven).bennieb86 schreef op maandag 17 december 2018 @ 00:32:
Graag jullie mening over het volgende:
Wij hebben een offerte gehad van EUR 14.250 van Keukensale voor onderstaande.
Wij hebben in ons nieuw op te leveren huis gekozen voor een parallelopstelling.
De keuken is +\- 360 cm aan beide kanten.
Ik vermoed dat de prijs als volgt is opgebouwd maar dat is niet gespecificeerd.
KANT 1:
-Granieten blad 360 cm, 3 cm dik inc spatrand, uitsparing (+\- 2750)
-quooker flex dekker flex (1300)
-greeplijstverlichting (500)
-Inductieplaat 80 cm AEG HK854401FB (750)
Schuine wandschouw AEG black DVB5960HB (675)
-vaatwasser xxl FSE83600P AEG met led verlichting en vloerprojectie (950)
- prullenbak geintegreerd en ladeindelingen hout (250)
-spoelbak groot (??)
KANT 2:
4 hoge voorraadkasten en 1 lade van 1 meter welke dient als bankje. In de kasten iwordt het volgende ingebouwd:
AEG Inbouw koel/vries SCB51821LS (750)
AEG blackline combioven compact (1000)KSE792220B
AEG blackline combi stoomoven compact (1200) KME761000B
al met al zit ik dus met accessoires apparatuur (internetprijzen) en blad op plusminus 10.000 en met montage op 11000.
Ik denk dan dus dat de keukenmeubelen ongeveer E 3000 zijn.
hebben jullie verder nog suggesties of tips?
https://www.dropbox.com/s...N6gDLZuHj-xvk3hZneEa?dl=0
Werkblad kan niet uit 1 deel normaal gesproken.
Wanneer heb je de keuken nodig? Aeg levert vanaf februari deze combi ook met de Shuttle knop als bediening, incl kleurenscherm
ok dank voor de info. er staat 470 op de offerte achter de kleur en ben even gaan googlen en kom niet uit op LUX maar op FOCUS. enig idee wat het verschil is? op de offerte staat wel MDF lakfront alpine wit hoogglans
Ook wij zijn druk bezig om een keuken uit te zoeken en ik ben eigenlijk benieuwd of de offerte van 19.000 Euro die wij hebben gekregen redelijk is. Nu hebben wij gekozen voor een L-vorm keuken met daarbij 4 hoge kasten. De offerte is als volgt opgebouwd:
Apparatuur: ongeveer 7500 Euro
- Combi magnetron/oven HM636GNS1
 - Combi stoom/oven HS636GDS1
 - Koelkast KI86VVF30
 - VaatwasserSN836D01PE
 - Quooker Fusion
 - Miele inductie met afzuig: KMDA7774FLSW
 - Miele ombouwset luchtcirculatiesysteem DUU1000
 - Subline 500-U spoelbak
 
Silestone composiet werkblad: 2500
Arbeid: 1200
https://ibb.co/sWdm0ZS
Nu ben ik benieuwd of dit een redelijke prijs is of denk je dat het ergens anders beter/goedkoper kan? Na wat onderhandelen heb ik er dik 3000 Euro vanaf gekregen maar meer is niet meer mogelijk.
lux is een mdf deur met meerdere laklagen, focus is een kunststof folie deur met 1 laklaagbennieb86 schreef op maandag 17 december 2018 @ 21:49:
@Ice82
ok dank voor de info. er staat 470 op de offerte achter de kleur en ben even gaan googlen en kom niet uit op LUX maar op FOCUS. enig idee wat het verschil is? op de offerte staat wel MDF lakfront alpine wit hoogglans
Verwijderd
Persoonlijk gun ik het een lokale zelfstandige ook meer. Als je respectvol en binnen de grenzen van het redelijke blijft is bij deze adressen ook prima te onderhandelen. Gewoon een beetje voorwerk doen en offertes eerlijk vergelijken. Appels, peren, etc.kever678 schreef op zaterdag 15 december 2018 @ 20:16:
[...]
Lokale zaken met goede recensies? Bedrijven met hun eigen achternaam op de gevel gooien deze vaak niet zomaar te grabbel.
thanks hiervoor. ik ga dan even om een upgrade vragen. ben al bang voor de meerprijs.
neem aan dat je het verschil hier zeker aan afziet?
Natuurlijk heel moeilijk te zeggen maar zo te zien is je keuken redelijk doorsnee en hoeft er niks op maat gemaakt te worden. Maar je zegt dat je slechts €3000 eraf hebt onderhandeld, dat lijkt mij vrij weinig. Waar ben je geweest?Artifax schreef op maandag 17 december 2018 @ 23:03:
Hallo allemaal,
Ook wij zijn druk bezig om een keuken uit te zoeken en ik ben eigenlijk benieuwd of de offerte van 19.000 Euro die wij hebben gekregen redelijk is. Nu hebben wij gekozen voor een L-vorm keuken met daarbij 4 hoge kasten. De offerte is als volgt opgebouwd:
Apparatuur: ongeveer 7500 EuroSiematic SC45 greeploze kasten (allemaal lades in de L-vorm): 8000 Euro
- Combi magnetron/oven HM636GNS1
 - Combi stoom/oven HS636GDS1
 - Koelkast KI86VVF30
 - VaatwasserSN836D01PE
 - Quooker Fusion
 - Miele inductie met afzuig: KMDA7774FLSW
 - Miele ombouwset luchtcirculatiesysteem DUU1000
 - Subline 500-U spoelbak
 
Silestone composiet werkblad: 2500
Arbeid: 1200
https://ibb.co/sWdm0ZS
Nu ben ik benieuwd of dit een redelijke prijs is of denk je dat het ergens anders beter/goedkoper kan? Na wat onderhandelen heb ik er dik 3000 Euro vanaf gekregen maar meer is niet meer mogelijk.
[ Voor 25% gewijzigd door Biatch op 19-12-2018 13:16 . Reden: Bij nader inzien was mijn verhaal nutteloos ]
Nadeel van inbouw is dat als het ding ooit vervangen zou moeten worden vanwege eens storing je een precies passende moet aanschaffen. Verder "steunt" de kookplaat natuurlijk op een iets dunner randje dan bij opbouw, dus het zal ook van de dikte van het blad afhangen of een en ander past.GustavSan schreef op zondag 16 december 2018 @ 15:49:
[.........]
Het enige echte verschil is opbouw of vlakke inbouw. Mijn keukenboer gaf aan dat opbouw beter is, maar is dat ook echt zo?
[.........]
WP: Toshiba Estia 8kW split HWT-801H(R)W-E + HWT-1101 binnenunit met 300 liter SWW tank. PV: 4 strings, totaal 12590 Wp
Heb je ook op papier welk merk keuken je krijgt? Dus niet alleen de Mandemakers keuken naam.Biatch schreef op dinsdag 18 december 2018 @ 09:54:
[...]
Eerste offerte was €25k nog voor dat bekend was dat alles op maat moest en we hebben nog wat apperatuur veranderd. Dit was bij mandemakers in Kaatsheuvel. Zo lang je gewoon zielig blijft doen dat je het niet kan betalen en die jongen inmiddels wat uren aan je besteed heeft zakken ze wel in prijs. En anders gewoon bedanken en de winkel uit lopen, ze komen vanzelf achter je aan
“bet your technical analysis didn’t see this sh*t coming”
Waarom vind ik dit soort verhalen om te huilen!?Biatch schreef op dinsdag 18 december 2018 @ 09:54:
[...]
Natuurlijk heel moeilijk te zeggen maar zo te zien is je keuken redelijk doorsnee en hoeft er niks op maat gemaakt te worden. Maar je zegt dat je slechts €3000 eraf hebt onderhandeld, dat lijkt mij vrij weinig. Waar ben je geweest? Om een kleine impressie te geven van onze keuken:
Op maat gemaakte 4 cm dik composiet blad (keuken staat in een hoek van 101graden) in totaal ruim 4.5 meter blad.
Alles van Siemens. Aparte magnetron grootste inbouw oven, energiezuinige vaatwasser 90 cm inductie kookplaat met flexzones, afzuig, koelkast en vriezer. Spoelbak kraan. Diverse kastjes 4 grote lades.
3 op maat gemaakte kasten gezien de rare hoeken in de keuken.
Frontjes zijn van de barletti lijn (fineer ipv lak)
Inclusief montage. €15.000
Eerste offerte was €25k nog voor dat bekend was dat alles op maat moest en we hebben nog wat apperatuur veranderd. Dit was bij mandemakers in Kaatsheuvel. Zo lang je gewoon zielig blijft doen dat je het niet kan betalen en die jongen inmiddels wat uren aan je besteed heeft zakken ze wel in prijs. En anders gewoon bedanken en de winkel uit lopen, ze komen vanzelf achter je aan
Maar goed het gaat erom dat jullie blij zijn met jullie aankoop, maar iemand afvallen omdat er maar 3K vanaf is, dan heb je het topic nooit helemaal gelezen ben ik bang.
En Siemens apparatuur zegt niet zoveel zonder productnummers. Met nummers heeft men er hier een beter beeld bij of die 15K scherp is.
Dit topic kan gebruikt worden voor het volgende:
• Vragen over de keuken, denkend aan indeling, materialen, kastjes, apparatuur, etc.
• Welke kastjes, aanrechtbladen en apparatuur te kiezen
• Ervaringen met verkopers en keukenboeren
• Tips & Tricks denk hierbij aan hulp bij het zelf installeren en onderhouden van de keuken.
• Jouw indeling. Plaats gerust een foto of tekening, maar maak het niet te bont met hele buildlogs.
Voor badkamers: Het Badkamer topic: verkopers, kwaliteit, prijs - Deel 1
Showen met je keuken kan hier: Tweakers Keuken showroom! - Vestiging 1