Zit in lijn met onze L keuken die er op het oog zo'n beetje dezelfde afmeting had.cs-tweak schreef op zondag 20 juli 2025 @ 17:35:
Is EUR14.700 een beetje een nette prijs voor deze keuken incl montage? Ik vind het ontwerp mooi maar schrok toch wat van de prijs wetende dat het werkblad en achterwand de (denk ik goedkoopste) optie is die ze aanbieden. (werkblad Greengridz Easy 32mm toplaminaat, achterwand MDF). Ook qua apparatuur hebben wij geen dure wensen aangegeven. De kasten zijn verder van Häcker Concept 130.
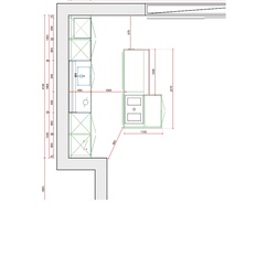
De aansluitpunten zijn verder allemaal al op de goede plek en er is geen bestaande keuken of iets dergelijks dus geen demontage etc.
ApparatuurHeb wel een bijlage met meer details (geen prijzen per los onderdeel), dus als die nog relevant zijn...
- Oven: Electrolux KOFFP46BK
- Koelvries: Electrolux LNS5LE18S
- Kookplaat met afzuiging: Electrolux KCC83480I
- Vaatwasser: Electrolux KEAF7200L/
- Quooker Pro 3 (Fusion Round, RVS)
- Mira stopcontactdriehoek
[Afbeelding]
[Afbeelding]
Keukens waren al duur en zijn de laatste jaren er niet goedkoper op geworden.
blup
:strip_exif()/f/image/L5xaDYkYq19SfEnEmI8UcV7F.jpg?f=fotoalbum_large)
:strip_exif()/f/image/88zddkNoVhsmf8Kt4sNvrHeq.jpg?f=fotoalbum_large)
:strip_exif()/f/image/aTAbw26WHltz0iPAa5KyjkdX.jpg?f=fotoalbum_large)
/f/image/jKp8vasrMuXgXEa86uouI2cY.png?f=fotoalbum_large)
:strip_exif()/f/image/9YuPsIJjkgirOdtODFnseVHr.jpg?f=fotoalbum_tile)
:strip_exif()/f/image/2Umn2ZbJhworP8tGvXXzyILh.jpg?f=fotoalbum_tile)
:strip_exif()/f/image/vDu26NWruPPQWXzOGpzuURQu.jpg?f=fotoalbum_large)
:strip_exif()/f/image/Yj4of8rZ0tz7Uj5Psfi0WAFF.png?f=user_large)
:strip_exif()/f/image/fngry7bZzPpRDNKTGEkZJ3Ri.jpg?f=fotoalbum_large)
/f/image/Q8No2vmuPTNuC2Py11g5Hyq4.png?f=fotoalbum_large)
/f/image/xF7jvr8SMXhDughilECGqoEZ.png?f=fotoalbum_large)
:strip_exif()/f/image/dhrWdVcn7T9fIUvUqdmfsZ3S.jpg?f=fotoalbum_tile)
:strip_exif()/f/image/tLbwa91lRKVGcXuxDGLw53IS.jpg?f=fotoalbum_tile)
:strip_exif()/f/image/fLtfFW7dH5zxbAQ61k1jmtJE.jpg?f=fotoalbum_tile)
:strip_exif()/f/image/drqSN243Xc5gdxoyq2pIaiWE.jpg?f=fotoalbum_tile)
:strip_exif()/f/image/nsA1vAetYo7pI31KNgdPB8Bs.jpg?f=fotoalbum_tile)
:strip_exif()/f/image/BRtLuweKVKZj68SbeYg4s3st.jpg?f=fotoalbum_tile)
:strip_exif()/f/image/mwXerdNayh3frKMTJTs9PVqe.jpg?f=fotoalbum_tile)
:strip_exif()/f/image/A2yhSgtT5MoymAueD7CT97S1.jpg?f=fotoalbum_tile)
:strip_exif()/f/image/CuhwquBjqW84TIW5aAcB3i3U.jpg?f=fotoalbum_tile)
:strip_exif()/f/image/XZwIuys6XDxb1kBX5TnZtsHU.jpg?f=fotoalbum_tile)
:strip_exif()/f/image/0ZQFTpZ8Er2nBWHs9fd2R1Hp.jpg?f=fotoalbum_tile)
:strip_exif()/f/image/ALtdJTpAgqJ9Ht6lsGkFvCdQ.jpg?f=fotoalbum_large)
:strip_exif()/f/image/wktvXf95j5U1G12XiWaAMlbw.jpg?f=fotoalbum_large)
/f/image/py0HMzO6TaUCzhBEXAijZs2q.png?f=fotoalbum_large)
:no_upscale():strip_icc():strip_exif()/f/image/jQShj1YGc637UOUas7zLGyxG.jpg?f=user_large)
:strip_exif()/f/image/olZ8FfOlxRURXjXZQOAOmIke.jpg?f=fotoalbum_large)
:strip_exif()/f/image/xV4qjwoR9HF5JGfcs2DV2TXU.jpg?f=fotoalbum_large)
:strip_exif()/f/image/WLrmWIMtSsTdR0fQ2kNr5azu.png?f=user_large)
:strip_exif()/f/image/38DTUt907ZG9FPSRr7aZOJir.jpg?f=fotoalbum_large)
/f/image/RMgqptVrUuKirvlBWXQsn5NN.png?f=fotoalbum_large)
/f/image/dbLxMF1GBQ9IwnyUAv0dLqiE.png?f=fotoalbum_large)