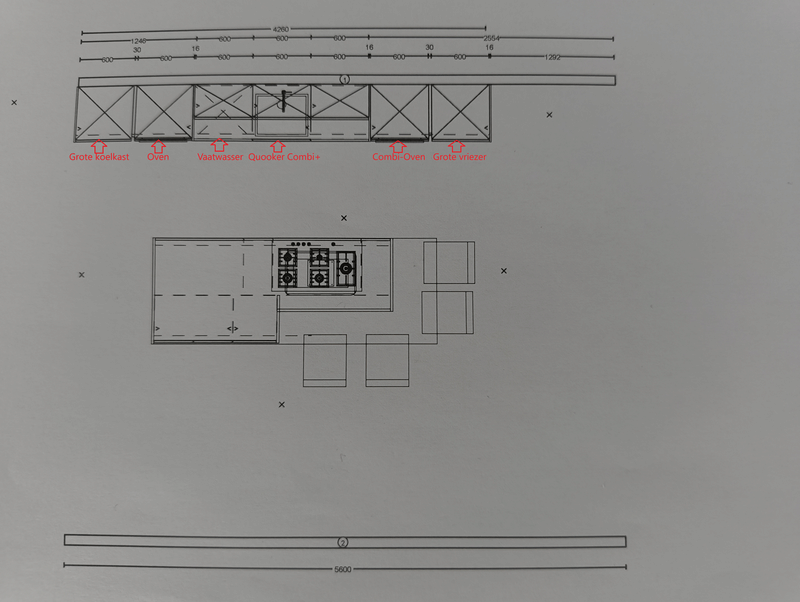
Ik had het ook liever anders gezien, maar het is werken met wat we hebben qua ruimte, de keuken komt vanuit de bouw gewoon erg smal. De opzet vanuit de bouw was 1 lange keuken van 3m60, maar daarin vonden wij niet wat we graag wilde, o.a een aparte vriezer en koelkast, de 2 in 1 units zijn voor ons te klein. We kregen het niet passend. Ons idee is de keukenkastjes van keuken kasten fabriek, en de rest ook los.mitsumark schreef op maandag 3 maart 2025 @ 22:51:
[...]
Had je dat in de winkel/thuis ook getest met hoge kasten erbij? 2x laag op 90cm is wat anders dan 1x hoog en 1x laag op dezelfde afstand.
En wat voor apparaten komen ertussen waarbij de deurtjes de doorgang belemmeren?, vaatwasser, koelkast, oven...?
Heb je het ontwerp/plattegrond, misschien kunnen we meedenken?
Ik weet niet zeker of de muur of kastjes zelf moeten ademen ivm vochtregulatie.
Een muur is ook zelden perfect recht, dus daar zul je ook wat marge voor moeten hebben.
Ik zou die 2cm ruimte gewoon aanhouden, 90 of 92cm loopruimte maakt het verschil ook niet meer, al zou ik zelf bij 1 kant hoog liever minstens 100cm aanhouden. Maarja, wat niet gaat, dat gaat niet.
Ik heb het in de Ikea planner gegoten om zo een beeld te krijgen.
Een advies dat we kregen is om dan het kookdeel aan 1 zijde te doen, en spoel aan de andere, en geen bovenkastjes. Zo loop je elkaar niet heel snel in de weg als de een aan het koken is, en de ander de handen moet wassen oid.
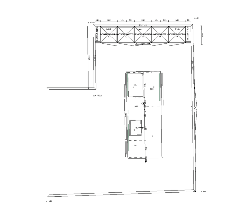
1 van de opstelling bij Keukenloods was met 90CM tussen hoge kasten en een kookeiland, hier hebben we erg lang gestaan om scenario's uit te werken
:strip_exif()/f/image/tzU9a3lenDdU2acBUZWbRuEQ.jpg?f=fotoalbum_large)
:strip_exif()/f/image/63QRdAOBRwANzxwv2YR3baTi.jpg?f=fotoalbum_large)
:strip_exif()/f/image/kBB3DY4kITypthHJnUJlzssJ.jpg?f=fotoalbum_large)
:strip_exif()/f/image/QXq9SsnSvP2HNwjmfk2T6NgD.jpg?f=fotoalbum_large)
:strip_exif()/f/image/9tpQfZt2rpXZd5WtIp7KcNA2.jpg?f=fotoalbum_large)
:strip_exif()/f/image/pu3jH9YPIQH63bzGfNbUdRcX.jpg?f=fotoalbum_large)
:strip_exif()/f/image/6gYw8YfhhKuMi7PzNQIumqcx.jpg?f=fotoalbum_large)
:strip_exif()/f/image/SnMkEm0W04eZp9a3CSo50O1p.jpg?f=fotoalbum_large)
:strip_exif()/f/image/igTy4IgzK4SfuIUcfCVW5Hwg.jpg?f=fotoalbum_large)
:strip_exif()/f/image/FEeZARQBpGIEhSVErOs10WSC.jpg?f=fotoalbum_large)
:strip_exif()/f/image/B1mcifQAzvl9eG7pacE1LmjB.jpg?f=fotoalbum_large)
:strip_exif()/f/image/xSs2hP0XU6SDWib6qcnSOnpp.jpg?f=fotoalbum_large)
:strip_exif()/f/image/690XrkrvHXnnr5MJFuJNcScO.jpg?f=fotoalbum_large)
:strip_exif()/f/image/ADXmEEeVXKfAOHS70TzeBErw.jpg?f=fotoalbum_large)
:strip_exif()/f/image/6pxhx35v73IJcEk8dsnez6nw.jpg?f=fotoalbum_large)
:no_upscale():strip_icc():strip_exif()/f/image/FvaNRQ43Ctg7G6iKCa6b7fCw.jpg?f=user_large)
:no_upscale():strip_icc():strip_exif()/f/image/otZD36UtHM16LIBaT2Txqdt1.jpg?f=user_large)
:strip_exif()/f/image/jF9gQkIQQ1GxPFJPnqsnPAzW.jpg?f=fotoalbum_large)
:no_upscale():strip_icc():strip_exif()/f/image/aUzomRAc9zlKHPeM2l2y7N7u.jpg?f=user_large)
:strip_exif()/f/image/HXUvBkaEo04DPTlxS3BQHVsK.jpg?f=fotoalbum_large)
:strip_exif()/f/image/xWFhoZbQLIwPUt4j2JNDFXQt.jpg?f=fotoalbum_large)
/f/image/xY0hmpng5jA9aMVN2QWpgKxi.png?f=fotoalbum_large)
/f/image/T48DJxKy72tgjhBnZi9oN0ao.png?f=fotoalbum_large)
/f/image/q8Fz0b8tzL5gYmYZzFK6DCqD.png?f=fotoalbum_large)
?
:strip_exif()/f/image/ZnrgWL8frMamSniOshF6LRX2.webp?f=fotoalbum_tile)
:strip_exif()/f/image/TIdd2TO2LXt7P2IDMaAbfuMh.webp?f=fotoalbum_tile)
:strip_exif()/f/image/8iigiLK9SklRok21uY6P6nVW.jpg?f=fotoalbum_tile)
:strip_exif()/f/image/UfkAHTwttHMGzVFiwNL9YbYE.jpg?f=fotoalbum_large)
:strip_exif()/f/image/CIvjmF0RaJagQc36YVBa6S5p.jpg?f=fotoalbum_large)
:strip_exif()/f/image/sdCVvgpodesuxC6vyyhWAPXr.jpg?f=fotoalbum_large)
:strip_exif()/f/image/IDpnENOk04EDFFH3o37j55FK.jpg?f=fotoalbum_large)
/f/image/tzdQvI93ZKdLRVwQJnV4YJhR.png?f=fotoalbum_large)
:strip_exif()/f/image/inxIWZp0Pt9H9vH62CGlUZEO.jpg?f=fotoalbum_large)