Wij hebben ook akkoord gegeven op onze nieuwe keuken. Het ‘moest’ een Nolte keuken worden aangezien mijn vrouw en ik daar zeer content mee waren in onze vorige woning.
We zijn behoorlijk afgeknapt op de ‘verkopers/ verkooptactieken’ van zowel Nolte Kuchen in Apeldoorn en Enschede. Wat een ballententen. Zeer duidelijk aangegeven dat allergisch ben voor spelletjes rondom de hele keukenverkoop werd er 1 groot toneelspel van gemaakt. Ik zal jullie niet vermoeien met de details, maar blijf er gewoon weg is ons advies…
We zijn uiteindelijk geslaagd bij een een (1 mans?) zaak vlak bij ons welke alleen maar Nolte verkoopt.
Na het akkoord wel wat zaken aan laten passen en we nemen een aantal apparaten mee uit onze oude keuken, en de verkoopster vond het geen probleem als we zelf elders wat aanvullende apparatuur kochten.
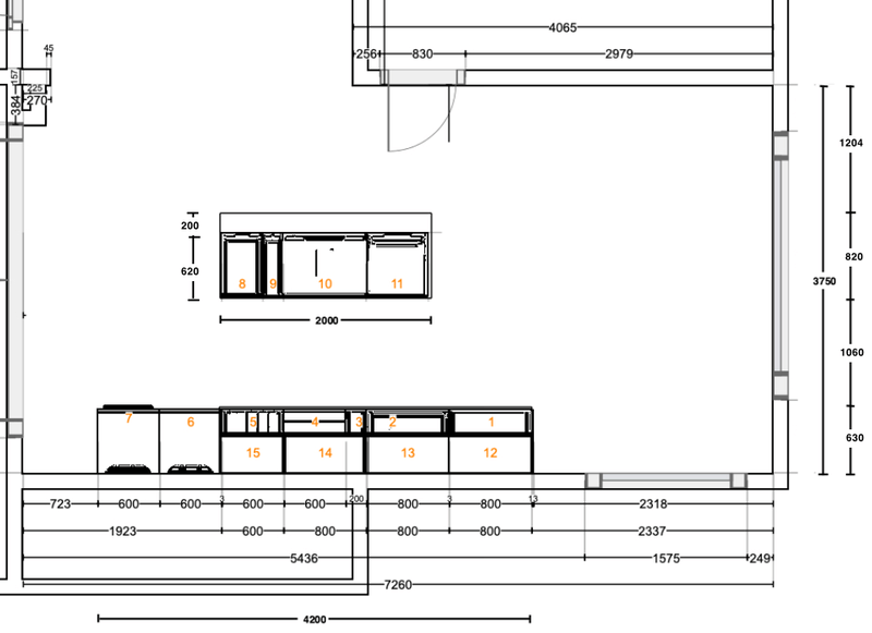
Ik heb geen recente afbeelding maar op een aantal kleine wijzigingen na is dit de opzet:
(Ruimte niet goed ingetekend op de foto, rechts naast de kastenwand zit nog een deur en een stukje muur dus de ruimte is wat breder dan het zo lijkt)
:strip_exif()/f/image/0Eg4wGiajOes7ICH9UQrZJaD.jpg?f=fotoalbum_large)
:strip_exif()/f/image/UzXvXTXR6HHNPCLGNWvhrAjy.jpg?f=fotoalbum_large)
Nolte Feel Sahara (laag + eiland) en natuureik edelmat (hoge kasten). Korpushoogte 90cm met 6cm plint.
De keuken opstelling bestaat uit:
L deel 325x300:
Greeploze afwerking (niet op foto)
60cm legplanken
60cm vaatwasser
90cm spoelkast deuren (2x45cm)
110 lemans (45cm deur)
60cm ladekast (4laden achter enkele deur)
Hoge kasten 225cm hoog (op de foto nog oude invulling, ovens komen op 90cm naast elkaar)
88cm vriezer + stoom/bak oven + legplanken
3 laden achter enkele deur + magnetron/oven + legplanken
178 koelkast + opbergruimte
Eiland, rondom greeploos afgewerkt 190x110:
richting kastenwand:
90cm 3 laden
90cm 2 laden (inductie met recirculatie afzuiging)
zichtzijde (50cm diep):
60cm legplanken
120cm (2x60cm) legplanken
Greeplijsten (onder werkblad + verticaal) met sfeerverlichting
Werkblad: 2.4cm Kemie Ceramistone Diamond Cream. Met 6.3cm plint langs aanrecht.
Apparatuur:
Meenemen (Siemens)
Vriezer
Koelkast
Stoomoven (mogelijk toch vervangen)
Combi magnetron oven (mogelijk toch vervangen)
Keukenleverancier:
Quooker Flex Combi Plus
Keukenloods:
Vaatwasser: SX97T801BE
Inductie: EX877NX68E
Ik ben nog in dubio om toch ook de ovens te vervangen door recente 45cm hoog modellen van Siemens, dus dat komt er dan mogelijk nog bovenop…
We zijn behoorlijk afgeknapt op de ‘verkopers/ verkooptactieken’ van zowel Nolte Kuchen in Apeldoorn en Enschede. Wat een ballententen. Zeer duidelijk aangegeven dat allergisch ben voor spelletjes rondom de hele keukenverkoop werd er 1 groot toneelspel van gemaakt. Ik zal jullie niet vermoeien met de details, maar blijf er gewoon weg is ons advies…
We zijn uiteindelijk geslaagd bij een een (1 mans?) zaak vlak bij ons welke alleen maar Nolte verkoopt.
Na het akkoord wel wat zaken aan laten passen en we nemen een aantal apparaten mee uit onze oude keuken, en de verkoopster vond het geen probleem als we zelf elders wat aanvullende apparatuur kochten.
Ik heb geen recente afbeelding maar op een aantal kleine wijzigingen na is dit de opzet:
(Ruimte niet goed ingetekend op de foto, rechts naast de kastenwand zit nog een deur en een stukje muur dus de ruimte is wat breder dan het zo lijkt)
:strip_exif()/f/image/0Eg4wGiajOes7ICH9UQrZJaD.jpg?f=fotoalbum_large)
:strip_exif()/f/image/UzXvXTXR6HHNPCLGNWvhrAjy.jpg?f=fotoalbum_large)
Nolte Feel Sahara (laag + eiland) en natuureik edelmat (hoge kasten). Korpushoogte 90cm met 6cm plint.
De keuken opstelling bestaat uit:
L deel 325x300:
Greeploze afwerking (niet op foto)
60cm legplanken
60cm vaatwasser
90cm spoelkast deuren (2x45cm)
110 lemans (45cm deur)
60cm ladekast (4laden achter enkele deur)
Hoge kasten 225cm hoog (op de foto nog oude invulling, ovens komen op 90cm naast elkaar)
88cm vriezer + stoom/bak oven + legplanken
3 laden achter enkele deur + magnetron/oven + legplanken
178 koelkast + opbergruimte
Eiland, rondom greeploos afgewerkt 190x110:
richting kastenwand:
90cm 3 laden
90cm 2 laden (inductie met recirculatie afzuiging)
zichtzijde (50cm diep):
60cm legplanken
120cm (2x60cm) legplanken
Greeplijsten (onder werkblad + verticaal) met sfeerverlichting
Werkblad: 2.4cm Kemie Ceramistone Diamond Cream. Met 6.3cm plint langs aanrecht.
Apparatuur:
Meenemen (Siemens)
Vriezer
Koelkast
Stoomoven (mogelijk toch vervangen)
Combi magnetron oven (mogelijk toch vervangen)
Keukenleverancier:
Quooker Flex Combi Plus
Keukenloods:
Vaatwasser: SX97T801BE
Inductie: EX877NX68E
Members only: prijsinfo
Alleen zichtbaar voor ingelogde gebruikers.
Inloggen
Ik ben nog in dubio om toch ook de ovens te vervangen door recente 45cm hoog modellen van Siemens, dus dat komt er dan mogelijk nog bovenop…
[ Voor 9% gewijzigd door TFDev op 02-02-2025 22:16 ]
/f/image/OPskSjtAAt1kTfZ2myxT32Km.png?f=fotoalbum_large)
/f/image/njvuRF5eXTIfxDDy93OwsguA.png?f=fotoalbum_large)
:strip_exif()/f/image/gtxkC9sZcXAsXWQaVFQw3Rzj.jpg?f=fotoalbum_large)
/f/image/xZuJKUxzyhBP6hliNICyyS9n.png?f=fotoalbum_large)
/f/image/oc7QAlX9ZjQUC5YyJa2DiI3n.png?f=fotoalbum_large)
:no_upscale():strip_icc():strip_exif()/f/image/Kw4qCbeX21XtOiB8gjlHNZzP.jpg?f=user_large)
:no_upscale():strip_icc():strip_exif()/f/image/34JDKGkfvmi7izh4GIZCQJJh.jpg?f=user_large)
/f/image/xgN4fpXmovpU33SZtM5AAvIA.png?f=fotoalbum_tile)
/f/image/41pPKdiR6GhMuV5JKF1Ro2Sw.png?f=fotoalbum_tile)
/f/image/JXl8N1zKwzpNI9jHrOC2GRcB.png?f=fotoalbum_tile)
/f/image/UKqJ9KVCLfuwOveaQY9CaQuA.png?f=fotoalbum_tile)
/f/image/kwSGjesRVHImNmpfPFHuyLtB.png?f=fotoalbum_tile)
:strip_exif()/f/image/TwZn2PfpL4HYZOWx1dbebp4i.jpg?f=fotoalbum_large)
:strip_exif()/f/image/M9FtdAMxMX0h9PFu6ZTYsW5J.jpg?f=fotoalbum_large)
:strip_exif()/f/image/1bnysZos4CHh9Paw3Ei8rKBK.jpg?f=fotoalbum_large)
:no_upscale():strip_icc():strip_exif()/f/image/KGbVwkClXLltI1N7y3yoKBe6.jpg?f=user_large)
:strip_exif()/f/image/L8L4bg514OLiTl0YE6lLl9XN.jpg?f=fotoalbum_large)
/f/image/6DhIp2pbnELYRDaCeEdo8uco.png?f=fotoalbum_large)
/f/image/q9iORcMa5wThec9CLb54dYBI.png?f=fotoalbum_large)
:strip_exif()/f/image/vTMusmcUQHlNcZPUadKhxe5b.jpg?f=fotoalbum_large)
:strip_exif()/f/image/mBBFEDftGqG5gbi60Txxcrk7.jpg?f=fotoalbum_large)
:strip_exif()/f/image/VqbXoZSWfR8eZdPmBXgpoIdn.jpg?f=fotoalbum_large)
/f/image/BLaYVtmw7m3Yed646Yc4sHGe.png?f=fotoalbum_large)
:strip_exif()/f/image/4CHmtimlhtAKqGKofdTyGGYX.jpg?f=fotoalbum_large)
:strip_exif()/f/image/TZYM3t1INmtF4Vvbymur4cnQ.jpg?f=fotoalbum_large)
:strip_exif()/f/image/WFjd1ZWrAEtItKEHSrZZsERj.jpg?f=fotoalbum_large)
:strip_exif()/f/image/39KIdbMgg4B07PBQQlxno0T4.jpg?f=fotoalbum_large)
:strip_exif()/f/image/BDR1eJwpucvOlxiRoFnGgm9H.jpg?f=fotoalbum_large)
:no_upscale():strip_icc():strip_exif()/f/image/dBegeXhdVEQmF41uXDgU6Q6v.jpg?f=user_large)