Je komt al veel beter uit als je er een U van maakt. Dan kan de spoelbak voor het raam en de kookplaat langs de lange kant en heb je veel gunstiger werkruimte. Ik zou een enkele hoge kast en een losse koelkast niet naast elkaar zetten, dat wordt erg rommelig._dizzy_ schreef op maandag 16 december 2024 @ 18:01:
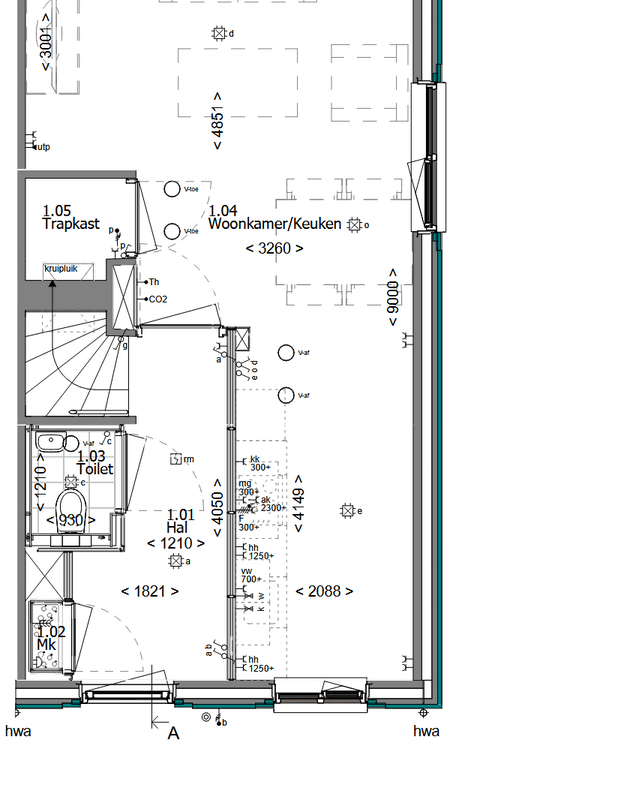
De doorloop aan het einde wordt daarmee 1 meter, is dat genoeg? Het zal krap blijven, daar zijn we ons van bewust, maar is het te doen, is het realistisch?
1 m voelt ook best krap aan, het betekent dat je bijv niet vaatwasser en een kastje ertegenover tegelijk kunt openen. Of bedoel je dat het bij de koelkast 1m is, omdat die verder naar voren komt dan de kastjes ernaast?
Heb je een plattegrondje met afmetingen voor ons? Ook van de ruimte aan de andere kant van de keukenwand? Soms kun je een deel van die ruimte gebruiken door een soort nis te maken.
/f/image/iPZOZVP9V6l9ApWvD9hwfuaV.png?f=fotoalbum_large)
:strip_exif()/f/image/J0lEJxJuFWI3HgtN4NLIc821.png?f=user_large)
/f/image/SwwOOKQUj5EW77njzYtpnmdi.png?f=fotoalbum_large)
:strip_exif()/f/image/yO1k6MmwufjSiX0LgmgQtSXy.jpg?f=fotoalbum_large)
:strip_exif()/f/image/ShQoJB6OKdUCMAybsfLOKROp.jpg?f=fotoalbum_large)
/f/image/xzrdMECowXoh5B1oAloURRb3.png?f=fotoalbum_large)
/f/image/vGXfYjGO1AxMCSirhAggJVOJ.webp?f=fotoalbum_large)
/f/image/G2Me1iXdJLfVjqwEPckALug1.png?f=fotoalbum_large)
:strip_exif()/f/image/5t6Zp45O3qls4LB2IKwslGB1.jpg?f=fotoalbum_large)
/f/image/NugPTO4W0929P2HgKRC3lXrJ.png?f=fotoalbum_large)
/f/image/OA89grS2Anp07rce889xNCKC.png?f=fotoalbum_large)
:strip_exif()/f/image/fVowBsLAPmGJ3QdLqcxmWkkT.jpg?f=fotoalbum_large)
:strip_exif()/f/image/xmkDDUCsTktWfvvm186Or3CL.jpg?f=fotoalbum_large)
:strip_exif()/f/image/aUNWkDAV42rvq7zVvdoCEXGm.jpg?f=fotoalbum_large)
:strip_exif()/f/image/JIX7NqyYppnlbHHTX1kIY1AV.jpg?f=fotoalbum_large)
:strip_exif()/f/image/ytVDJ8atrOi5dZlodJ4l06Ed.jpg?f=fotoalbum_large)
:strip_exif()/f/image/he3CbPrxRLkeEcaqInKPFvXm.jpg?f=fotoalbum_large)
:strip_exif()/f/image/6gTpzWc28chCbs84HsCIXcpN.jpg?f=fotoalbum_large)
:strip_exif()/f/image/LRuJolORXpdREwsXxdLsfH8d.jpg?f=fotoalbum_large)
:strip_exif()/f/image/NoqZCrKZy469Wph7RT2Qavr2.jpg?f=fotoalbum_large)
:strip_exif()/f/image/5yHI4IEVHi4ycdBcVbx0mFSV.jpg?f=fotoalbum_large)
:strip_exif()/f/image/w9cPzMMReS7EQzdX6nP1o19T.jpg?f=fotoalbum_large)
:strip_exif()/f/image/JFeKPEQnQqhgMHGFpGbupy0V.jpg?f=fotoalbum_large)
:strip_exif()/f/image/7v3NUnTGZmaBYUHrkzdrfuUf.jpg?f=fotoalbum_large)
:strip_exif()/f/image/f1Rm3w81baRZ9gNGatAMgT4z.jpg?f=fotoalbum_large)
:strip_exif()/f/image/anYyNQFbizgZQnaltVjty5bx.jpg?f=fotoalbum_large)
:strip_exif()/f/image/70M5c2gp10nIafUMmXvPefPa.jpg?f=fotoalbum_large)
:strip_exif()/f/image/3OTcES1sxleT9T6VwpLJeiM3.jpg?f=fotoalbum_large)
:strip_exif()/f/image/F2zVlMdJLYcCW1tTr8oZKBK8.jpg?f=fotoalbum_large)