Hoi,
Ik ben nieuw hier, maar ben al even dit topic aan het meevolgen. Al veel geleerd over keukens in ieder geval.
Nu ben ik zelf aan het kijken naar hoe mijn nieuwe keuken in te richten, en ik zou ook wel wat advies kunnen gebruiken.
Hierbij een simpele plattegrond van de ruimte. Grote beperking is de steunpaal die daar op een vrij ongemakkelijke plaats staat.
/f/image/6hxbdJ1KFoVcsXUJve7aRM4m.png?f=fotoalbum_large)
De ruimte is dus om en bij de 30m2, maar dit zou wel een gedeelde keuken, eetkamer, en washok moeten zijn.
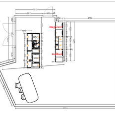
Een tijdje geleden ben ik bij XXXLutz geweest in Aken, en daar hebben ze me ongeveer dit uitgetekend:
/f/image/7N5TF9YiMGbqI7re0vyg6x6M.png?f=fotoalbum_large)
Waarom ongeveer? Ik heb namelijk niks meegekregen. Enkel de prijs, die rond de 14k lag. Wat ik daarvoor krijg, geen idee, want daar konden ze niet echt op antwoorden, buiten dat het goeie kwaliteit nobilia was.
Dus daar een keuken kopen zal het niet worden. Maar het idee van in te richten vond ik nog niet zo slecht. Ik heb deze dus even nagebouwd in de ikea planner om een idee te hebben. Maar: de kast in de rechterhoek is eigenlijk dus het washok, met wasmachine en droogkast. In de ruimte kan voor de rest zo ongeveer alles gepland worden zoals ik het wil, maar die wasmachine en droogkast gaan wel echt daar moeten komen. De deur linksboven is de deur naar de living, die aan de rechterkant is de schuifdeur naar de tuin toe.
Deze opstelling leek me inderdaad wel ok, omdat het vrij moeilijk is (door die paal) om de tafel ook nog ergens kwijt te geraken.
Wat denken jullie hiervan? Zien jullie hier een betere manier van inrichten?
Bedankt!