Hierbij even ons eerste opzet van de keuken in ons nieuwe huis. Plattegrond van de keuken:

Aan de rechterkant komt de 8 persoons eettafel te staan. De ruimte loopt nog 5,5 meter door naar beneden, maar is er verder niet ingetekend.
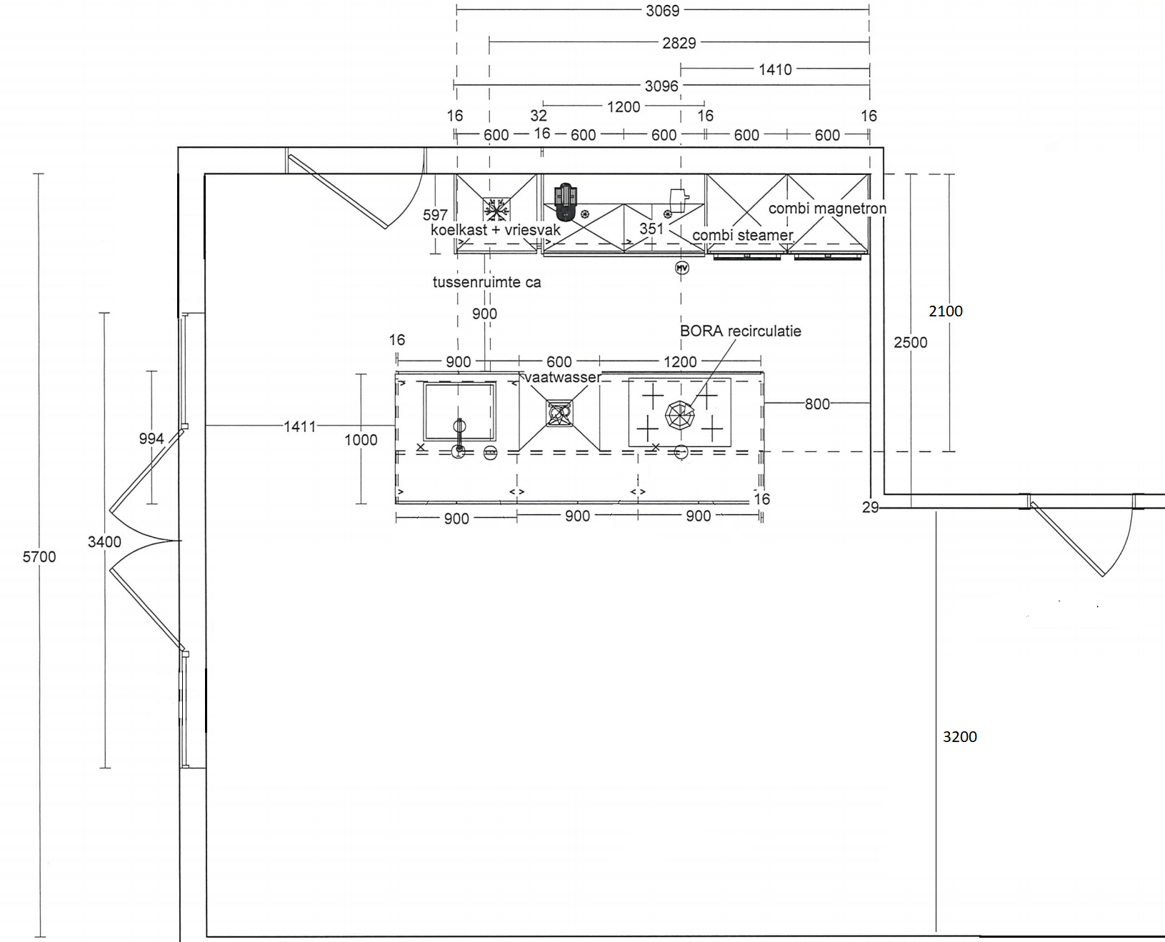
Wij hebben gekozen voor een grote kastenwand met een nis (voor nespresso en wat extra werkruimte voor b.v. keukenmachine). De kastenwand is als volgt ingedeeld, als je er voor staat van links naar rechts:
- Grote servieskast
- Combi oven met daarboven een kastje
- Combi Magnetron met daaronder een kastje
- Nis van 90cm met daaronder twee diepe laden (waarvan 1 met besteklade) en daarboven twee kastjes
- Grote vriezer (177cm hoog)
- Apothekerskast
- Grote koelkast (177cm hoog)
Alle kasten zijn van Hacker Systemat. De zilveren strip die bij de handgrepen zitten tussen de verschillende kasten worden nog dezelfde kleur als de kasten zelf.

Het kookeiland is 260cmx100cm en heeft een inductiekookplaat (met daaronder twee diepe laden 1 met ingebouwde bestekla), afzuigkap met plasma filter, spoelbak (met daaronder twee diepe laden) en vaatwasser. Het werkblad is van Beton Ciré. Aan de andere kant zitten nog 5 kasten waarvan we er misschien 2 (tegenover de spoelbak) opofferen om twee barkrukken neer te zetten.

Tussen het kookeiland en de openslaande deuren zit ongeveer 115cm.

Apparatuur is allemaal van AEG, muv spoelbak, plasmafilter en Quooker.
Oven -> BCK742220M
Combi Oven -> KMK761000M
Vriezer -> ABE81816NC
Koelkast -> SKE81826ZC
Inductie Kookplaat -> HK8542H1XB
Afzuigkap -> DCE3960HM
Vaatwasser -> FSB52610Z
Spoelbak -> 1270352615
Quooker -> 3FSRVS
De offerte, zonder onderhandelen komt op dit moment uit iet meer dan 18,5k. Opbouw:
Kasten: 7900
Apparatuur:7500
Werkblad: 2200
Montage: 1000
Prijzen van apparatuur op internet op gezocht. Het ene apparaat is wat duurder, de andere wat goedkoper maar overal kom ik op dezelfde prijs uit.
Waar we nog over twijfelen:
- Andere vaatwasser, dit is echt het budgetmodel
- Andere afzuigkap. Dit is energielabel C met halogeen, ik wil energielabel A met led.
Feedback en opmerkingen uiteraard welkom.