Kan ik doen, maar voelt niet lekker.SquareOne schreef op maandag 15 augustus 2022 @ 15:52:
[...]
Kleurenwaaier meenemen naar de showroom?
Wel kijken en meten en doen, maar niet kopen.
Ben ik misschien toch iets te schijterig voor.
Kan ik doen, maar voelt niet lekker.SquareOne schreef op maandag 15 augustus 2022 @ 15:52:
[...]
Kleurenwaaier meenemen naar de showroom?
Wellicht ging ik kort door de bocht.Flix20 schreef op maandag 15 augustus 2022 @ 15:51:
[...]
Ik zou wel voorzichtig zijn met zulke 'harde' uitspraken zonder hier met juridische onderbouwing inc. bronvermelding mee te komen.
Ja wat je zegt over garantie klopt in beginsel. Er is tussen jou, consument en de verkoper, Keukenloods in deze, een overeenkomst. Daar is de verkope verantwoordelijk voor de garantie.
Maar dat geeft enkel aan wie je aanspreekpunt is op gebied van garantie. Bij wie je dit zou kunnen verhalen.
Hier zitten, vanzelfsprekend, voorwaarden aan waar jij als klant aan moet voldoen.
In hoeverre zij deze voorwaarden kunnen stellen is dus de vraag.
Garantie is een bepaling dat indien normaal gebruik er een bepaald levensduur/prestatie verwacht mag worden. Echter wordt hier dus de gesteld dat het inbouwen door een gecertificeerde Novy monteur, onderdeel is van dat normaal gebruik.
Rzaan schreef op maandag 15 augustus 2022 @ 16:08:
Natuurlijk als jij als klant iets kapot maakt, ben je zelf verantwoordelijk.
Dit is 6 maanden, niet 1 jaar.Rzaan schreef op maandag 15 augustus 2022 @ 16:08:
Het 1ste jaar sowieso.
Na het 1ste jaar moet de consument bewijzen dat hij niks verkeerds heeft gedaan of het apparaat verkeerd heeft gebruikt.
[ Voor 15% gewijzigd door True op 15-08-2022 18:51 ]
VW ID.7 Tourer Pro S | 5670 Wp JA Solar - 14x405 33° op Zuid | Twente | Proton $20 referral
Is het een Fenix deur/afwerking? Dan kan je bij Fenix op de site de kleur wel vinden.Rzaan schreef op maandag 15 augustus 2022 @ 14:15:
Wij waren bij een Next125 keuken gaan kijken en die was uitgevoerd in de kleur Kristalwit.
Zag er wel mooi uit, maar we vonden niet alles aan die keuken mooi.
De kleur dus wel.
Nu neem ik aan dat Kristalwit gewoon een naam is die zij eraan gegeven hebben.
Dus niet dat er een Ral nummer aan vast zit.
toch?
:strip_exif()/f/image/YBT6qJ682OM5GmUgcnyYNXMG.jpg?f=fotoalbum_large)
/f/image/sbRyvVQsshxZzf2Vqls9Thck.png?f=fotoalbum_large)
:strip_exif()/f/image/ZP1H4LPEbVk80Al46UUspFwS.jpg?f=fotoalbum_large)
:strip_exif()/f/image/FYC1hpCCwl6MQwAP7bECw1GS.jpg?f=fotoalbum_large)
Het is nitpicking, maar jij maakt de hamer dan niet kapot; die gaat kapot omdat de hamer niet in orde was.True schreef op maandag 15 augustus 2022 @ 18:50:
Nee dat is niet waar. Als jij een klauwhamer koopt bij een bouwmarkt en je slaat daar een doosje spijkers mee in je tuinhuisje en de kop vliegt van je hamer ben jij niet verantwoordelijk voor het stuk maken van je hamer. Je hebt een bepaalde verwachting bij een product en het product moet naar redelijkheid die levensduur waarmaken.
Nee, het is sinds 27 april van dit jaar veranderd naar 12 maanden.True schreef op maandag 15 augustus 2022 @ 18:50:
Dit is 6 maanden, niet 1 jaar.
Zie bijv: https://www.juridisch-adv...on-conformiteit/gevolgen/
Inmiddels hebben we de keuken besteld, op het blad na, na een boel keukenzaken te hebben bezocht. Uiteindelijk is alles besteld bij KL. De prijs is hoger uitgevallen, maar we weten nu tenminste zeker dat het alles bevat qua kleur/fronten en apparatuur hoe wij het willen.Shwan schreef op maandag 25 april 2022 @ 22:50:
Zojuist weer een offerte laten opstellen voor onze keuken. Ik vraag mij af wat jullie vinden van de opstelling , merk van keukenkasten en de prijs.
[Afbeelding]
[Afbeelding]***members only***
- Siemens KI81RADE0 (IQ500) 177cm koelkast
- Siemens GI81NSCE0 (IQ500) 177cm vriezer
- Siemens HS836GTB6 (IQ700) Bakoven met stoom
- Siemens CM616GBS1 (IQ700) combi/magnetron compact
- Siemens BI630CNS1 (IQ700) serviesverwarmer
- Siemens SX87Y801BE (IQ700) Vaatwasser XXL
- Siemens KU21WAHG0 (IQ500) Wijnklimaatkast
- Quooker 22+FSBLK Kraan
- Quooker ZPNBLK Zeeppomp
- Bora PUXU Kookplaat
Renders van de keuken heb ik zelf gemaakt
:strip_exif()/f/image/rLdGtV74Zkdy1Hzw7XXvJFHD.jpg?f=fotoalbum_large)
:strip_exif()/f/image/M8Up3kuiEBfuGcjEfuCX1q7j.jpg?f=fotoalbum_large)
Dank voor de tip. Maar voor die paar tientjes bestel ik liever bij de grotere jongens. En qua voorradigheid is alles snel leverbaar behalve die stoomoven, daar kan ik gerust 9 maanden op wachten.True schreef op maandag 15 augustus 2022 @ 14:09:
[...]
Ik heb zelf erg goede ervaring met: https://www.me-electronics.nl/ ook voor Siemens apparatuur. Je zou ze kunnen mailen en vragen wat het bij hen kost en wat ze op hiervan op voorraad hebben. Zij waren bij mij vergelijkbaar qua totaal prijs (tientjes werk) én konden binnen twee dagen leveren.
Ben je bewust dat jet stoomoven en je combi-magnetron niet matchen?Shwan schreef op maandag 15 augustus 2022 @ 22:49:
[...]
Moet de renders nog wat finetunen, maar het is als volgt:
- Liebherr IRBd5150 177cm koelkast
- Liebherr SIFNei 5188-20 Peak vriezer
- Siemens HS836GTB6 (IQ700) Bakoven met stoom
- Siemens CM616GBS1 (IQ700) combi/magnetron compact
- Siemens BI630CNB1 (IQ700) serviesverwarmer
- Siemens SN87Y801BE (IQ700) Vaatwasser
- Liebherr UWTgb 1682 Vinidor Wijnklimaatkast
- Quooker 22+FSBLK Kraan
- Quooker ZPNBLK Zeeppomp
- Bora PUXU Kookplaat
Betaal je bijna adviesprijzen voor je apparatuur? O_oShwan schreef op maandag 15 augustus 2022 @ 22:49:
[...]
Inmiddels hebben we de keuken besteld, op het blad na, na een boel keukenzaken te hebben bezocht. Uiteindelijk is alles besteld bij KL. De prijs is hoger uitgevallen, maar we weten nu tenminste zeker dat het alles bevat qua kleur/fronten en apparatuur hoe wij het willen.
[Afbeelding]
[Afbeelding]
Moet de renders nog wat finetunen, maar het is als volgt:***members only***
- Liebherr IRBd5150 177cm koelkast
- Liebherr SIFNei 5188-20 Peak vriezer
- Siemens HS836GTB6 (IQ700) Bakoven met stoom
- Siemens CM616GBS1 (IQ700) combi/magnetron compact
- Siemens BI630CNB1 (IQ700) serviesverwarmer
- Siemens SN87Y801BE (IQ700) Vaatwasser
- Liebherr UWTgb 1682 Vinidor Wijnklimaatkast
- Quooker 22+FSBLK Kraan
- Quooker ZPNBLK Zeeppomp
- Bora PUXU Kookplaat
Apparatuurwand: REGINA eikenveneer via BEDA Keukens
***members only***
Eiland: Pronorm Ultramat Steengrijs (3232) Y-Line.
***members only***
Het blad zal nog worden uitgezocht via steenleverancier, momenteel is op de render de New Saint Laurent (marmer) ingetekend. Het blad is voor nu ingesteld op max 320cm gezien dit ong. de maximale maat is voor dit blad. We hebben liever geen naad.
***members only***
Leuk ontwerp & herkenbare indeling (zie ook Dentheman in "Het Grote Keuken topic: verkopers, kwaliteit, prijs - Deel 3")The Evil Brain schreef op maandag 15 augustus 2022 @ 20:53:
Beste keuken-Tweakers,
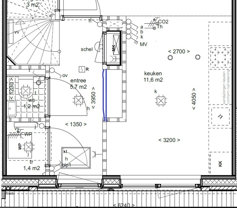
Ook wij zijn bezig met ontwerp van onze nieuwe keuken, ter vervanging van de bestaande keuken (zo'n 12-15 jaar oud schat ik, zat er al in toen we het huis kochten). Het is een kleine keuken, dus we moeten efficiënt omgaan met de ruimte:
[Afbeelding]
De wand waar nu het fornuis staat is 177cm dus helaas net te smal voor 3x 60cm kast.
Schiereiland is nu ±130cm hoog en bevat de koelkast en een apothekerskast.
We zijn bij 2 zaken geweest die met verschillende ideeën kwamen:
1: koken op schiereiland, vaatwasser en oven onder het raam, doorlopend aanrecht en 2x hoge kast.
Merk Leicht, prijsofferte (alleen kasten, Fenix frontjes) €15k.
[Afbeelding]
2: koken op schiereiland, oven in de hoge kastenwand met ±10cm overlap over aanrecht.
Merk Tristar, prijsofferte (alleen kasten, wit acryl kastjes, fineer voor hoge kastenwand) ook €15k.
[Afbeelding]
Voor de oven zouden we dan een Neff oven met slide & hide deur kiezen. Wat zijn jullie ervaringen daarmee?
Andere opties die we hebben overwogen maar die al zijn afgevallen:Ik ben erg benieuwd naar jullie inzichten en of er nog andere ideeën zijn om de ruimte efficiënt te gebruiken
- Weghalen muurtje - gaat constructief niet en vinden we niet mooi.
- Oven onder kookplaat op schiereiland - kan alleen als kookplaat geen ingebouwde afzuiging heeft, en ik wil geen afzuigkap erboven; een lamp met ingebouwde afzuigkap vind ik te massief.
- Spoelbak op schiereiland, dus kookplaat onder raam - beide zaken raden dit af
Zie ondertitel
Bevatten je bakoven en combi/magnetron niet ook gewoon een functie voor serviesverwarmer? Ik zie bij de HS836GTB6 in ieder geval in de gebruikershandleiding wel die optie staan. Dus waarom geen 60x60 combi/magnetron nemen die ook een serviesverwarmer optie heeft en je hoeft die niet apart te kopen (+ je kunt meteen de kleuren wel matchen zoals @goodfella al benoemde)Shwan schreef op maandag 15 augustus 2022 @ 22:49:
[...]
- Liebherr IRBd5150 177cm koelkast
- Liebherr SIFNei 5188-20 Peak vriezer
- Siemens HS836GTB6 (IQ700) Bakoven met stoom
- Siemens CM616GBS1 (IQ700) combi/magnetron compact
- Siemens BI630CNB1 (IQ700) serviesverwarmer
- Siemens SN87Y801BE (IQ700) Vaatwasser
- Liebherr UWTgb 1682 Vinidor Wijnklimaatkast
- Quooker 22+FSBLK Kraan
- Quooker ZPNBLK Zeeppomp
- Bora PUXU Kookplaat
/f/image/xjDcLYrJHWg4kAn5zUvjT0Re.png?f=fotoalbum_large)
/f/image/QoyQn4EOX3sjdVqxoBCc5B9G.png?f=fotoalbum_large)
/f/image/YocpV7BxEsLAb10InXL5Pahn.png?f=fotoalbum_large)
/f/image/Z5FCVXwVe1e7nWZNFBMsYnoZ.png?f=fotoalbum_large)
Die servieswarmer is met name voor het verschil 45cm-60cm van kleine en grote oven op te vangen.TRD07 schreef op dinsdag 16 augustus 2022 @ 10:16:
[...]
Bevatten je bakoven en combi/magnetron niet ook gewoon een functie voor serviesverwarmer? Ik zie bij de HS836GTB6 in ieder geval in de gebruikershandleiding wel die optie staan. Dus waarom geen 60x60 combi/magnetron nemen die ook een serviesverwarmer optie heeft en je hoeft die niet apart te kopen (+ je kunt meteen de kleuren wel matchen zoals @goodfella al benoemde)
Mooi hoor!iasix schreef op dinsdag 16 augustus 2022 @ 12:04:
Na MAANDEN zoeken is het dan zover, we gaan tekenen. Voor ons is het Ihre geworden.
Als dit de prijs is die je wilt betalen en jullie tevreden zijn, kan je altijd een mailtje sturen met wat kleine accessoires zoals de bestekbak met de tekst "als de bestekbak nog erbij kan heb je vanmiddag mijn handtekening retour ". Dat is voor hun tientjeswerk qua inkoop.iasix schreef op dinsdag 16 augustus 2022 @ 12:04:
Na MAANDEN zoeken is het dan zover, we gaan tekenen. Voor ons is het Ihre geworden.
[Afbeelding]
[Afbeelding]
[Afbeelding]
[Afbeelding]
Wat je ziet:
NEXT125 keuken met corpus van 81.25 cm en plint van 7.5 cm met daarin:
2 x 3 lades onder de oven, besteklade onder Bora + grote lader eronder, besteklade onder koffiehoek, 2 lades onder koffiehoek, 2 x apothekerskasten.
Apparatuur etc:
- SX75Z801BE IQ500 XXL vaatwasser
- GI81NACF0 IQ500 Inbouwvriezer
- KI81RADE0 IQ500 inbouw koelkast
- HB836GVB6 IQ700 oven blackline
- HM836GPB6 IQ700 combi-oven backline
- Bora PURU
- Quooker Flex zwart groot combi
- 2 x Twist stopcontact
- Blanco granieten bak
We doen calacatta gold 2 cm werkblad voor zowel koffie- als keukenblok. Zwevend effect rondom. Spoelbak vlakbouw en kookplaat opbouw.
Hebben er veel vertrouwen in.
***members only***
Het is niet breed maar wel veel breder dan op de foto.Rzaan schreef op dinsdag 16 augustus 2022 @ 12:13:
[...]
Mooi hoor!
Chique
Wellicht is het zo op de render, maar de ruimte tussen het eiland en de hoge kasten lijkt me redelijk smal.
En die tussen het eiland en de muur helemaal.
Is dit in werkelijkheid ook zo?
Dan vertekend de render inderdaad flink.iasix schreef op dinsdag 16 augustus 2022 @ 12:14:
[...]
Het is niet breed maar wel veel breder dan op de foto.
Ruimte tussen eiland en meubelwand = 95 cm, ruimte tussen muur en eiland = 110cm.
Ziet er goed uit bij wie is dit? Want ik kan geen next vinden voor die prijs?iasix schreef op dinsdag 16 augustus 2022 @ 12:04:
Na MAANDEN zoeken is het dan zover, we gaan tekenen. Voor ons is het Ihre geworden.
[Afbeelding]
[Afbeelding]
[Afbeelding]
[Afbeelding]
Wat je ziet:
NEXT125 keuken met corpus van 81.25 cm en plint van 7.5 cm met daarin:
2 x 3 lades onder de oven, besteklade onder Bora + grote lader eronder, besteklade onder koffiehoek, 2 lades onder koffiehoek, 2 x apothekerskasten.
Apparatuur etc:
- SX75Z801BE IQ500 XXL vaatwasser
- GI81NACF0 IQ500 Inbouwvriezer
- KI81RADE0 IQ500 inbouw koelkast
- HB836GVB6 IQ700 oven blackline
- HM836GPB6 IQ700 combi-oven backline
- Bora PURU
- Quooker Flex zwart groot combi
- 2 x Twist stopcontact
- Blanco granieten bak
We doen calacatta gold 2 cm werkblad voor zowel koffie- als keukenblok. Zwevend effect rondom. Spoelbak vlakbouw en kookplaat opbouw.
Hebben er veel vertrouwen in.
***members only***
De eerste? keuken met nieuwe korpus, gaaf! Prijs lijkt me prima gezien de kwaliteit en hoeveelheid keuken die je ervoor krijgt.iasix schreef op dinsdag 16 augustus 2022 @ 12:04:
Na MAANDEN zoeken is het dan zover, we gaan tekenen. Voor ons is het Ihre geworden.
[Afbeelding]
[Afbeelding]
[Afbeelding]
[Afbeelding]
Wat je ziet:
NEXT125 keuken met corpus van 81.25 cm en plint van 7.5 cm met daarin:
2 x 3 lades onder de oven, besteklade onder Bora + grote lader eronder, besteklade onder koffiehoek, 2 lades onder koffiehoek, 2 x apothekerskasten.
Apparatuur etc:
- SX75Z801BE IQ500 XXL vaatwasser
- GI81NACF0 IQ500 Inbouwvriezer
- KI81RADE0 IQ500 inbouw koelkast
- HB836GVB6 IQ700 oven blackline
- HM836GPB6 IQ700 combi-oven backline
- Bora PURU
- Quooker Flex zwart groot combi
- 2 x Twist stopcontact
- Blanco granieten bak
We doen calacatta gold 2 cm werkblad voor zowel koffie- als keukenblok. Zwevend effect rondom. Spoelbak vlakbouw en kookplaat opbouw.
Hebben er veel vertrouwen in.
***members only***
Inderdaad onze eerste keuken. Nieuwe korpus zijn we ook ERG blij mee want we willen 90 cm als werkhoogte (vrouw is 160cm). Korpus 81.25 + 2 cm blad + plint van 7.5 cm waar ze dan ter plekke 0.75 cm afzagen.Vendetta_X schreef op dinsdag 16 augustus 2022 @ 12:27:
[...]
De eerste? keuken met nieuwe korpus, gaaf! Prijs lijkt me prima gezien de kwaliteit en hoeveelheid keuken die je ervoor krijgt.
[ Voor 3% gewijzigd door iasix op 16-08-2022 12:48 ]
Als ze hem afzagen, let dan goed op dat ze hem ook afdichten. Anders gaat het wellicht mis als er eens water blijft liggen. Of zorg er in ieder geval voor dat de zaagkant naar boven gericht is.iasix schreef op dinsdag 16 augustus 2022 @ 12:48:
[...]
Inderdaad onze eerste keuken. Nieuwe korpus zijn we ook ERG blij mee want we willen 90 cm als werkhoogte (vrouw is 160cm). Korpus 81.25 + 2 cm blad + plint van 7.5 cm waar ze dan ter plekke 0.75 cm afzagen.
Hoop dat dat mooi wordt met dat zagen maar goed, gaan het zien.
Zijn over de prijs ook erg tevreden.
Ik vind van niet, vrouw vindt van wel.Rzaan schreef op dinsdag 16 augustus 2022 @ 12:58:
[...]
Als ze hem afzagen, let dan goed op dat ze hem ook afdichten. Anders gaat het wellicht mis als er eens water blijft liggen. Of zorg er in ieder geval voor dat de zaagkant naar boven gericht is.
Maar 7,5 mm, is dat echt de moeite waard om af te zagen?
Fraai, maar ook erg donker. Heb je genoeg natuurlijk licht in de keuken? Eind van de middag/in de avond zal de hele keuken erg donker aanvoelen met zo'n zwarte kleur front.iasix schreef op dinsdag 16 augustus 2022 @ 12:04:
Na MAANDEN zoeken is het dan zover, we gaan tekenen. Voor ons is het Ihre geworden.
[Afbeelding]
[Afbeelding]
[Afbeelding]
[Afbeelding]
Wat je ziet:
NEXT125 keuken met corpus van 81.25 cm en plint van 7.5 cm met daarin:
2 x 3 lades onder de oven, besteklade onder Bora + grote lader eronder, besteklade onder koffiehoek, 2 lades onder koffiehoek, 2 x apothekerskasten.
Apparatuur etc:
- SX75Z801BE IQ500 XXL vaatwasser
- GI81NACF0 IQ500 Inbouwvriezer
- KI81RADE0 IQ500 inbouw koelkast
- HB836GVB6 IQ700 oven blackline
- HM836GPB6 IQ700 combi-oven backline
- Bora PURU
- Quooker Flex zwart groot combi
- 2 x Twist stopcontact
- Blanco granieten bak
We doen calacatta gold 2 cm werkblad voor zowel koffie- als keukenblok. Zwevend effect rondom. Spoelbak vlakbouw en kookplaat opbouw.
Hebben er veel vertrouwen in.
***members only***
We doen een houten vloer, dat hout op de wand worden Woodupp panelen, en de woning heeft veel ramen.TRD07 schreef op dinsdag 16 augustus 2022 @ 13:06:
[...]
Fraai, maar ook erg donker. Heb je genoeg natuurlijk licht in de keuken? Eind van de middag/in de avond zal de hele keuken erg donker aanvoelen met zo'n zwarte kleur front.
[ Voor 5% gewijzigd door iasix op 16-08-2022 13:10 ]
iasix schreef op dinsdag 16 augustus 2022 @ 13:03:
[...]
Ik vind van niet, vrouw vindt van wel.
90,75 cm is echt te hoog, 90 cm vindt ze dan wel weer gaan![]()
Had ook het liefst vlakbouw kookplaat gewild maar vond ze ook niet handig.
Ze kookt meer dan ik dus ze heeft ook meer te zeggen in deze.
:strip_exif()/f/image/6VrmkHGCi3nE5TQZJ79SqpYK.jpg?f=fotoalbum_large)
/f/image/OLAOCT67WVnhsEqk8ihQqBKo.png?f=fotoalbum_large)
[ Voor 1% gewijzigd door caspertje19 op 16-08-2022 21:32 . Reden: kookeiland gewijzigd naar schier eiland ]
Er wordt in dit topic al snel gezegd dat een kookeiland niet past, ik vind vaak van wel. Als je aan weerszijden 90 cm hebt dan kan het 'net', vind ik.caspertje19 schreef op dinsdag 16 augustus 2022 @ 20:53:
Goedendag,
ik lees al een tijdje mee omdat ik zelf ook op zoek ben naar een nieuwe keuken. Nu zit ik met een lastige keuze: hoek keuken of wand + eiland.
Met de hoek keuken maken we meer ruimte in de woning. Nadeel is dat er wat minder in kwijt kan en wij een losse kast moeten plaatsen voor opslag/servies.
Kookeiland hebben we voldoende opslag in de keuken en de kant van het eiland bij de eettafel kunnen we gebruiken voor opslag (ipv een losse kast). Dit worden dan wel ondiepe kasten.
Nog een nadeel van het kookeiland: de doorgang naar de keuken toe wordt maar 80 cm breed. De beweegruimte tussen het eiland en de wand wordt ongeveer 1.10 cm. Grote nadeel is dat wij altijd door de keuken moeten om naar buiten te gaan, dus je loopt er best vaak langs.Het eiland heb ik nu op ongeveer 2.33m bij 1.00m. Het wordt 80/60/80 plus een klein passtukje. Hierdoor is er ook maar een klein beetje werkruimte van ongeveer 80 cm tussen spoelbak en kookplaat. Wij zijn hier geen uitgebreide kokers.
Tevens zit ik nog met de achterdeur. Deze kan niet verplaatst worden omdat de bijkeuken een deel oversteekt op de grens van de buren. Hierdoor heb ik een klein rot hoekje wat 33 cm diep is. Ik kan de wand niet te ver door laten lopen omdat anders de doorgang te smal wordt.
Wat denken jullie qua ruimte: is een kookeiland te krap voor in onze woning of kan het prima?
Zien jullie nog andere optie? (het eiland kan ook 60/60/80 worden maar dan is de symmetrie weg en de werkruimte wordt dan maar 60 cm). De wand vervangen door 2 hoge kasten met nog een stukje werkblad kan ook, maar dat vind ik persoonlijk niet zo mooi en er gaat een hoop opbergruimte verloren omdat er dan 2 andere hoge kasten weg gaan.
Op zich zijn we al gewend aan een krappe keuken: op dit moment staat er op de plek waar het eiland zou komen nog een draagmuur met een deurkozijn. We zijn al gewend aan 1.10 werkruimte en een doorloop van 0.80 cm.
Graag hoor ik wat meningen![]()
[Afbeelding]
[Afbeelding]
[Afbeelding]
Ik heb afgelopen week bij Lunenburg een offerte op laten maken (en tevens bij Keukenloods) voor in totaal 5 siemens apparaten. Met Keukenloods scheelde dit in totaal zo'n 500 EURO (in voordeel van Lunenburg). Tevens hebben ze een fysieke winkel in Nuland waar we heel goed zijn geholpen met advies.goodfella schreef op maandag 15 augustus 2022 @ 13:48:
Wij gaan voor Siemens apparatuur in een Ikea keuken . Wij zijn aan het 'shoppen' bij 123apparatuur en Keukenloods.
Zit ik met deze bedragen aan de goede kant?
[Afbeelding]
Hier zijn de 'kortingspercentages'
[Afbeelding]
Alvast bedankt!
[ Voor 4% gewijzigd door Oliesjeik1 op 16-08-2022 22:51 ]
d'n oliesjeik
Ik vind van wel. Je hebt een voor jullie passend ontwerp gekozen met een mooi passende koffie hoek en een gaaf blad. Tevens ook de apotherkasten daar ga je echt wel plezier van hebben.iasix schreef op dinsdag 16 augustus 2022 @ 12:04:
Na MAANDEN zoeken is het dan zover, we gaan tekenen. Voor ons is het Ihre geworden.
[Afbeelding]
[Afbeelding]
[Afbeelding]
[Afbeelding]
Wat je ziet:
NEXT125 keuken met corpus van 81.25 cm en plint van 7.5 cm met daarin:
2 x 3 lades onder de oven, besteklade onder Bora + grote lader eronder, besteklade onder koffiehoek, 2 lades onder koffiehoek, 2 x apothekerskasten.
Apparatuur etc:
- SX75Z801BE IQ500 XXL vaatwasser
- GI81NACF0 IQ500 Inbouwvriezer
- KI81RADE0 IQ500 inbouw koelkast
- HB836GVB6 IQ700 oven blackline
- HM836GPB6 IQ700 combi-oven backline
- Bora PURU
- Quooker Flex zwart groot combi
- 2 x Twist stopcontact
- Blanco granieten bak
We doen calacatta gold 2 cm werkblad voor zowel koffie- als keukenblok. Zwevend effect rondom. Spoelbak vlakbouw en kookplaat opbouw.
Hebben er veel vertrouwen in.
***members only***
Lijkt erg op de afmetingen van onze keuken, zie mijn post van paar dagen geleden: The Evil Brain in "Het Grote Keuken topic: verkopers, kwaliteit, prijs - Deel 3"caspertje19 schreef op dinsdag 16 augustus 2022 @ 20:53:
Goedendag,
ik lees al een tijdje mee omdat ik zelf ook op zoek ben naar een nieuwe keuken. Nu zit ik met een lastige keuze: hoek keuken of wand + schier eiland.
Met de hoek keuken maken we meer ruimte in de woning. Nadeel is dat er wat minder in kwijt kan en wij een losse kast moeten plaatsen voor opslag/servies.
(schier)Kookeiland hebben we voldoende opslag in de keuken en de kant van het schier eiland bij de eettafel kunnen we gebruiken voor opslag (ipv een losse kast). Dit worden dan wel ondiepe kasten.
Nog een nadeel van het schier kookeiland: de doorgang naar de keuken toe wordt maar 80 cm breed. De beweegruimte tussen het schier eiland en de wand wordt ongeveer 1.10 cm. Grote nadeel is dat wij altijd door de keuken moeten om naar buiten te gaan, dus je loopt er best vaak langs.Het schier eiland heb ik nu op ongeveer 2.33m bij 1.00m. Het wordt 80/60/80 plus een klein passtukje. Hierdoor is er ook maar een klein beetje werkruimte van ongeveer 80 cm tussen spoelbak en kookplaat. Wij zijn hier geen uitgebreide kokers.
Tevens zit ik nog met de achterdeur. Deze kan niet verplaatst worden omdat de bijkeuken een deel oversteekt op de grens van de buren. Hierdoor heb ik een klein rot hoekje wat 33 cm diep is. Ik kan de wand niet te ver door laten lopen omdat anders de doorgang te smal wordt.
Wat denken jullie qua ruimte: is een schier kookeiland te krap voor in onze woning of kan het prima?
Zien jullie nog andere optie? (het schier eiland kan ook 60/60/80 worden maar dan is de symmetrie weg en de werkruimte wordt dan maar 60 cm). De wand vervangen door 2 hoge kasten met nog een stukje werkblad kan ook, maar dat vind ik persoonlijk niet zo mooi en er gaat een hoop opbergruimte verloren omdat er dan 2 andere hoge kasten weg gaan.
Op zich zijn we al gewend aan een krappe keuken: op dit moment staat er op de plek waar het schier eiland zou komen nog een draagmuur met een deurkozijn. We zijn al gewend aan 1.10 werkruimte en een doorloop van 0.80 cm.
Graag hoor ik wat meningen![]()
[Afbeelding]
[Afbeelding]
[Afbeelding]
Erg mooie keuken! Maar ik woonde in een woning met zo'n plattegrond en indeling. Die keuken is echt een paar maten te groot hoor. Je zit straks met je bank in de keuken tv te kijkeniasix schreef op dinsdag 16 augustus 2022 @ 13:09:
[...]
We doen een houten vloer, dat hout op de wand worden Woodupp panelen, en de woning heeft veel ramen.
Achterzijde is ook 1 grote schuifpui met 2 zijramen (klopt niet op deze tekening).
[Afbeelding]
Adviesprijs van de Quooker is €1645 trouwensgoodfella schreef op maandag 15 augustus 2022 @ 13:48:
Wij gaan voor Siemens apparatuur in een Ikea keuken . Wij zijn aan het 'shoppen' bij 123apparatuur en Keukenloods.
Zit ik met deze bedragen aan de goede kant?
[Afbeelding]
Hier zijn de 'kortingspercentages'
[Afbeelding]
Alvast bedankt!
Bericht hierboven
Dan vraag je een sample van het front. Ga je naar een autospuiterij of een verfwinkel om de kleur te laten bepalen?Rzaan schreef op maandag 15 augustus 2022 @ 15:58:
[...]
Kan ik doen, maar voelt niet lekker.
Wel kijken en meten en doen, maar niet kopen.
Ben ik misschien toch iets te schijterig voor.
Bericht hierboven
Dat denk ik niet want zijn woonkamer is boven zoals hij eerder eens in dit topic heeft gemeld.Olympialooping schreef op woensdag 17 augustus 2022 @ 10:06:
[...]
Erg mooie keuken! Maar ik woonde in een woning met zo'n plattegrond en indeling. Die keuken is echt een paar maten te groot hoor. Je zit straks met je bank in de keuken tv te kijken
It's a work in progress, zoals de Duitsers zeggen.Floor-is schreef op woensdag 17 augustus 2022 @ 10:40:
Je opstelling weet je niet, materiaal niet, kleur niet.. Wat wel![]()
[ Voor 36% gewijzigd door Rzaan op 17-08-2022 15:56 ]
Lijkt mij dat het een white label is van een groter merk. Misschien dat je kan achterhalen aan de hand van de hoogte/frontkleur/corpus welke fabrikant er achter zit?kx22 schreef op woensdag 17 augustus 2022 @ 15:51:
Ik hen een huis gekocht met een keuken van het merk Salvani Zera,
Nu wil ik wat uitbouwen en een kookeiland erbij, maar de keukenboer die het heeft geleverd, is van merk overgestapt. Echter kan ik online helemaal niks vinden van dit merk. Zelfs niet eens of het nog bestaat.
In dit hele topic is het ook maar 1x benoemd.
Iemand weet of dit een goed merk is? Zo niet dan ga ik over nadenken om het helemaal eruit te laten halen om alles te vervangen.
SlayaStone schreef op woensdag 17 augustus 2022 @ 15:56:
[...]
Lijkt mij dat het een white label is van een groter merk. Misschien dat je kan achterhalen aan de hand van de hoogte/frontkleur/corpus welke fabrikant er achter zit?
/f/image/hcxt3SE5yAmBqQMzFWDlWMQO.png?f=fotoalbum_large)
Hebben jullie een werkblad van 4cm? zo ja dan denk ik dat het Rotpunkt is.kx22 schreef op woensdag 17 augustus 2022 @ 16:09:
[...]
[Afbeelding]
Dit is het enige wat ik heb qua informatie.
Stoomoven NEFF C17FS22G0 wordt morgen bij ons geleverd, besteld in april bij KLSquareOne schreef op maandag 8 augustus 2022 @ 14:21:
Iemand hier recent nog eens een (stoom)oven van NEFF ontvangen?
Medio augustus 2021 getekend voor onze keuken. In mei is de keuken geplaatst maar helaas missen onze ovens nog.
Dat er apparatuur mist is/was op zich geen verassing maar merk dat ik na een aantal maanden toch de oven wel behoorlijk mis..![]()
Overweeg om tijdelijk maar iets van marktplaats te halen. Na ruim een jaar leveringsproblemen zou je verwachten dat de supply chain een keer weer op orde is.
Edit:
Gaat om typenummers:
B47FS22G0
C27MS22G0
[ Voor 12% gewijzigd door Sport_Life op 17-08-2022 16:45 ]
PV: 9360 WP WZW/ONO | Warmtepomp: Toshiba Estia 8kW 3fase | A+++ | 2x Zappi v2.1
Goed om te horen dat er e.e.a. wordt uitgeleverd. 4 maanden sinds bestelling van me reuze mee.Sport_Life schreef op woensdag 17 augustus 2022 @ 16:34:
[...]
Stoomoven NEFF C17FS22G0 wordt morgen bij ons geleverd, besteld in april bij KL.
Rest vd apparatuur inmiddels ook ontvangen, op moment dat het in het magazijn was heb ik het meteen laten uitleveren .
Al met al dus bij KL alles in ruim 4 maanden ontvangen.
Keukenkasten + blad komt trouwens ergens anders vandaan.
Het is inderdaad een dikke composiet/graniet werkblad van ongeveer 4cm. Online zie ik iemand posten op Radar dat het een Rotpunkt kloon is.SlayaStone schreef op woensdag 17 augustus 2022 @ 16:17:
[...]
Hebben jullie een werkblad van 4cm? zo ja dan denk ik dat het Rotpunkt is.
Lijkt me niet. Een kloon, kan prima puur een commercieel ding zijn.kx22 schreef op woensdag 17 augustus 2022 @ 18:14:
[...]
Het is inderdaad een dikke composiet/graniet werkblad van ongeveer 4cm. Online zie ik iemand posten op Radar dat het een Rotpunkt kloon is.
Mag ik dan vanuit gaan dat het een slechte keuken is? Want een kloon van iets zal vaak niet beter zijn.
Dit is zoals hierboven gezegd wordt niet een kloon, maar gewoon rotpunkt onder een andere naam. Gebeurd heel vaak in Nederland.kx22 schreef op woensdag 17 augustus 2022 @ 18:14:
[...]
Het is inderdaad een dikke composiet/graniet werkblad van ongeveer 4cm. Online zie ik iemand posten op Radar dat het een Rotpunkt kloon is.
Mag ik dan vanuit gaan dat het een slechte keuken is? Want een kloon van iets zal vaak niet beter zijn.
Welke leverancier heb je gevonden die wel de keuken maar niet de apparatuur doet?:-)Sport_Life schreef op woensdag 17 augustus 2022 @ 16:34:
[...]
Stoomoven NEFF C17FS22G0 wordt morgen bij ons geleverd, besteld in april bij KL.
Rest vd apparatuur inmiddels ook ontvangen, op moment dat het in het magazijn was heb ik het meteen laten uitleveren .
Al met al dus bij KL alles in ruim 4 maanden ontvangen.
Keukenkasten + blad komt trouwens ergens anders vandaan.
Je kan hem altijd onderedvanes schreef op woensdag 17 augustus 2022 @ 19:28:
Is er hier iemand die kritisch door de offerte zou willen gaan? Puur even voor mijn gemoedsrust dat m'n ouders niet als makkelijke upsell worden gebruikt door de meubelzaak? Ik kan de offerte hier niet makkelijk delen maar dat zou wel via dm kunnen.
Dank!
[ Voor 3% gewijzigd door Fedde op 17-08-2022 19:32 ]
Geen koelkast /vriezer? Geen vaatwasser? Quooker is ook wel fijn als moeders een thee liefhebber is.edvanes schreef op woensdag 17 augustus 2022 @ 19:46:
Dank!
Eens even kijken hoe of dit werk samen met wat geknip en geplak via SnagIt!
***members only***
Werkt de members only tag nou goed? Sorry, 100% kluns met tags...
[ Voor 14% gewijzigd door Source90 op 17-08-2022 20:05 ]
[ Voor 31% gewijzigd door Source90 op 17-08-2022 20:12 ]
Als het goed is kan je de geanonimiseerde offerte onder de member only tag vinden?SquareOne schreef op woensdag 17 augustus 2022 @ 20:46:
Korting zegt natuurlijk niks als je niet weet wat er op de offerte staat...
@edvanes je kunt toch adresgegevens en naam van de zaak even eraf knippen en dan hier plaatsen
Los van de offerte ook handig een plattegrond / aanzichten te plaatsen
:strip_exif()/f/image/c6hlSFObZtjSyf1ExUqw42na.jpg?f=fotoalbum_large)
:strip_exif()/f/image/C40uSOWY85BUYyyqqheMIQx5.jpg?f=fotoalbum_large)
:strip_exif()/f/image/JP8nKM8KRrCIno6J9VWZNbvF.jpg?f=fotoalbum_large)
Euhm, bijna adviesprijzen is bijna €21k, dit is €14,4k O_o?Source90 schreef op maandag 15 augustus 2022 @ 23:19:
[...]
Betaal je bijna adviesprijzen voor je apparatuur? O_o
Wij hebben afgesproken dat we gewoon de huidige nieuwste ovens nemen en het prijsverschil met de nieuwste tegen de tijd van installatie dan gewoon betalen.lebbe02 schreef op donderdag 18 augustus 2022 @ 07:55:
Ik weet niet of dit al eerder gedeeld is, maar na contact met het inspiratiehuis (Siemens) kreeg ik het volgende terug:
"De introductie op de Europese markt staat gepland op begin september maar de beschikbaarheid en de ombouw showroom staat gepland op begin 2023."
Wij krijgen onze nieuwe keuken waarschijnlijk in februari 2023, dus wellicht willen wij wachten op de nieuwe ovens.
Ik neem aan dat je dan ook iets vastgelegd hebt over het kortingspercentage?iasix schreef op donderdag 18 augustus 2022 @ 09:27:
[...]
Wij hebben afgesproken dat we gewoon de huidige nieuwste ovens nemen en het prijsverschil met de nieuwste tegen de tijd van installatie dan gewoon betalen.
Nee. Hebben afgesproken dat we het redelijke verschil betalen, heb vertrouwen in mijn keukenzaak. Alles verloopt eerlijk en redelijk daar.SquareOne schreef op donderdag 18 augustus 2022 @ 09:46:
[...]
Ik neem aan dat je dan ook iets vastgelegd hebt over het kortingspercentage?
Tja, ik kan het ook niet helpen...:Floor-is schreef op maandag 15 augustus 2022 @ 05:11:
[...]
Nismaat is normaliter zonder plint. Anders heb je nu een apparaat dat maar in één merk keuken zal passen, althans.. Ik ken er maar één waar je 87,5cm korpus hebt

Zal wel aan mij liggen, maar ik zie dit vaak voorbij komen. Een oven en een combi magnetron. In totaal 2600 euro, poeh...edvanes schreef op woensdag 17 augustus 2022 @ 19:46:
Dank!
Eens even kijken hoe of dit werk samen met wat geknip en geplak via SnagIt!
***members only***
Werkt de members only tag nou goed? Sorry, 100% kluns met tags...
Ik zou voor de duurste vaatwasser gaan van Ikea, die worden gemaakt door siemens. We hebben nu het goedkopere model omdat de dure DOA was en 64 a 6 weken niet leverbaar. Maar wat een slecht apparaat. Droogt slecht maakt matig schoon en de onderste la valt voor over als je de borden aan de voorkant heb staan.3dav0d3 schreef op donderdag 18 augustus 2022 @ 13:51:
***members only***
Mis ik de Bora nu in je lijst? Why?3dav0d3 schreef op donderdag 18 augustus 2022 @ 13:51:
***members only***
Dat is interessant. De verkoper vertelde mij dat zowel de DISKAD, PROFFSIG als HYGIENISK gemaakt worden door Bosch. Wij wilden gaan voor de PROFFSIG, want meerprijs DISKAD voor niet open om af te koelen is het ons niet waard. En PROFFSIG boven HYGIENISK vanwege de fysieke knoppen van de PROFFSIG.Harmvdw schreef op donderdag 18 augustus 2022 @ 13:57:
[...]
Ik zou voor de duurste vaatwasser gaan van Ikea, die worden gemaakt door siemens. We hebben nu het goedkopere model omdat de dure DOA was en 64 a 6 weken niet leverbaar. Maar wat een slecht apparaat. Droogt slecht maakt matig schoon en de onderste la valt voor over als je de borden aan de voorkant heb staan.
Ik vrees dat de Bora niet onder de 2000 euro gaat blijven. Ik heb in dit topic prijzen van ca. 2200 euro gezien, maar dat is in een offerte van gehele keuken. Denk dat wij die prijs niet gaan krijgen als we enkel en alleen een inductiekookplaat willen bestellen.MartijnA3 schreef op donderdag 18 augustus 2022 @ 13:58:
[...]
Mis ik de Bora nu in je lijst? Why?
Is de onderkast van Ikea geschikt voor andere inductieplaten met kookveldafzuiging?
En ik weet niet wie m gaat installeren? Geen idee of Ikea dat doet als je aangeeft andere apparatuur te gebruiken.
Die oven heeft geen pyrolyse , neem je dat erbij is de prijs iets hoger.MartijnA3 schreef op donderdag 18 augustus 2022 @ 11:49:
[...]
Zal wel aan mij liggen, maar ik zie dit vaak voorbij komen. Een oven en een combi magnetron. In totaal 2600 euro, poeh...
Ik heb een 60cm hoge combi magnetron voor 1150.
Misschien iets voor je ouders?
PV: 9360 WP WZW/ONO | Warmtepomp: Toshiba Estia 8kW 3fase | A+++ | 2x Zappi v2.1
Wij hebben nu de TALLBODA, maar die is echt slecht, maar bosch maakt ook de siemens dus dat klopt dan wel.Dat is interessant. De verkoper vertelde mij dat zowel de DISKAD, PROFFSIG als HYGIENISK gemaakt worden door Bosch. Wij wilden gaan voor de PROFFSIG, want meerprijs DISKAD voor niet open om af te koelen is het ons niet waard. En PROFFSIG boven HYGIENISK vanwege de fysieke knoppen van de PROFFSIG.
Nooit gehad dus ga ik niet missen. Ik ga er even vanuit dat de ouders van Edvanes dat ook niet zullen missen.Sport_Life schreef op donderdag 18 augustus 2022 @ 14:12:
[...]
Die oven heeft geen pyrolyse , neem je dat erbij is de prijs iets hoger.
Dat is inderdaad een heel sterk argumentMartijnA3 schreef op donderdag 18 augustus 2022 @ 14:18:
[...]
Nooit gehad dus ga ik niet missen. Ik ga er even vanuit dat de ouders van Edvanes dat ook niet zullen missen.
PV: 9360 WP WZW/ONO | Warmtepomp: Toshiba Estia 8kW 3fase | A+++ | 2x Zappi v2.1
Om hier nog even op terug te komen, vanuit Superkeukens ook bevestiging gehad dat het inderdaad mogelijk is bij het door ons gekozen front.MarcoZoetermeer schreef op zondag 14 augustus 2022 @ 13:58:
[...]
Het is mogelijk om een 79cm kast met twee fronten te bestellen. Staat niet in het verkoopboek, maar is wel zo te bestellen. Kan alleen niet bij alle fronten, dat is wel iets om rekening mee te houden.
Nog een aanvullende vraag: zit er kwaliteitsverschil tussen Leicht en TriStar? Of is het vergelijkbaar qua niveau?The Evil Brain schreef op maandag 15 augustus 2022 @ 20:53:
Beste keuken-Tweakers,
Ook wij zijn bezig met ontwerp van onze nieuwe keuken, ter vervanging van de bestaande keuken (zo'n 12-15 jaar oud schat ik, zat er al in toen we het huis kochten). Het is een kleine keuken, dus we moeten efficiënt omgaan met de ruimte:
[Afbeelding]
De wand waar nu het fornuis staat is 177cm dus helaas net te smal voor 3x 60cm kast.
Schiereiland is nu ±130cm hoog en bevat de koelkast en een apothekerskast.
We zijn bij 2 zaken geweest die met verschillende ideeën kwamen:
1: koken op schiereiland, vaatwasser en oven onder het raam, doorlopend aanrecht en 2x hoge kast.
Merk Leicht, prijsofferte (alleen kasten, Fenix frontjes) €15k.
[Afbeelding]
2: koken op schiereiland, oven in de hoge kastenwand met ±10cm overlap over aanrecht.
Merk Tristar, prijsofferte (alleen kasten, wit acryl kastjes, fineer voor hoge kastenwand) ook €15k.
[Afbeelding]
Voor de oven zouden we dan een Neff oven met slide & hide deur kiezen. Wat zijn jullie ervaringen daarmee?
Andere opties die we hebben overwogen maar die al zijn afgevallen:Ik ben erg benieuwd naar jullie inzichten en of er nog andere ideeën zijn om de ruimte efficiënt te gebruiken
- Weghalen muurtje - gaat constructief niet en vinden we niet mooi.
- Oven onder kookplaat op schiereiland - kan alleen als kookplaat geen ingebouwde afzuiging heeft, en ik wil geen afzuigkap erboven; een lamp met ingebouwde afzuigkap vind ik te massief.
- Spoelbak op schiereiland, dus kookplaat onder raam - beide zaken raden dit af
Over het algemeen doet de keukenboer zoiets niet (uitzonderingen daargelaten natuurlijk).iasix schreef op donderdag 18 augustus 2022 @ 22:34:
Jongens hoe doen jullie het eigenlijk qua ombouw? Laten jullie dat ook door de keukenboer doen of zelf iemand aangesteld? Heb hier nog helemaal niet over nagedacht besef ik nu.
Eigen keus. Je kan het laten doen door keukenboer, of zelf doen. Wij hadden een eigen stukadoor, dus lieten wij hem het timmerwerk doen. Hij moest het timmerwerk toch al stuken.iasix schreef op donderdag 18 augustus 2022 @ 22:34:
Jongens hoe doen jullie het eigenlijk qua ombouw? Laten jullie dat ook door de keukenboer doen of zelf iemand aangesteld? Heb hier nog helemaal niet over nagedacht besef ik nu.
Monkey business: pay peanuts, get monkeys
WP: ME PUHZ-SW75YAA + ERST30D-VM2ED | Solar: 17x TSM-340-DE06M.08 (5780Wp ~6200kWh), Azimuth 179°, Hellingshoek: 34° | PC specs
[ Voor 4% gewijzigd door LupinIII op 18-08-2022 23:55 ]
Iets specifieker? In totaal? Ja makkelijk. Wij hebben een besteklade en daaronder een behoorlijke pannen lade.LupinIII schreef op donderdag 18 augustus 2022 @ 23:55:
Weet iemand de afmeting van een besteklade (hoogte)?
Passen er 2 besteklades onder een Bora PURU/PUXU?
Twee besteklades past niet. Dit zou een oplossing kunnen zijn. Bovenste is een vast paneelSource90 schreef op vrijdag 19 augustus 2022 @ 00:28:
[...]
Iets specifieker? In totaal? Ja makkelijk. Wij hebben een besteklade en daaronder een behoorlijke pannen lade.
Als je twee bestek boven een pannenlade bedoelt; gaat niet passen bij reguliere korpus hoogte.
Exact wat ik zei. Je kan in de onderste lade ook bestek doen als je dat wilt. Handig is anders.SquareOne schreef op vrijdag 19 augustus 2022 @ 08:47:
[...]
Twee besteklades past niet. Dit zou een oplossing kunnen zijn. Bovenste is een vast paneel
[Afbeelding]
100mm (opgedikt)LupinIII schreef op vrijdag 19 augustus 2022 @ 09:17:
@Source90 @SquareOne thnx - precies wat ik wilde weten
Mooi blad! Hoe dik is dat?
[ Voor 10% gewijzigd door SquareOne op 19-08-2022 09:51 ]
Ik denk dat Tristar het wel kan.Sen schreef op vrijdag 19 augustus 2022 @ 09:51:
Nou gisteren bij superkeukens langs geweest voor onze keuken. Redelijk mijn idee kunnen doen een paar problemen waar ik tegen aan loop dat ze niet kunnen. Mijn grootste ergernis is het witte onder de oven en boven de horizontale greeplijst. Waarom kan de oven niet direct na de greeplijst beginnen?
***members only***
Toevallig toen ik apparatuur zat te bekijken kwam ik dit tegen dus het moet er wel zijn maar bij welke merken kan ik dit zien?
[Afbeelding]
Ik heb het zelf gedaan (ben geen klusser). Ik heb het met metalstud en gipsplaat gedaan. Volgens de specs van de keukenboer moest ik 2mm kier laten, dus je hebt vrij weinig speling over een wand van iets meer dan 3m. Ik heb speciaal daarvoor een nauwkeuriger rolmaat gekocht en heel veel gemeten. Uiteindelijk ook een paslat gemaakt voor de hoogte zodat je dat makkelijker kunt checken.iasix schreef op donderdag 18 augustus 2022 @ 22:34:
Jongens hoe doen jullie het eigenlijk qua ombouw? Laten jullie dat ook door de keukenboer doen of zelf iemand aangesteld? Heb hier nog helemaal niet over nagedacht besef ik nu.
Kenmerk van een meubelboulevard massaproduct Ofwel (bijna?) alle Duitse laag-middensegment keukens.Sen schreef op vrijdag 19 augustus 2022 @ 09:51:
Nou gisteren bij superkeukens langs geweest voor onze keuken. Redelijk mijn idee kunnen doen een paar problemen waar ik tegen aan loop dat ze niet kunnen. Mijn grootste ergernis is het witte onder de oven en boven de horizontale greeplijst. Waarom kan de oven niet direct na de greeplijst beginnen?
***members only***
Toevallig toen ik apparatuur zat te bekijken kwam ik dit tegen dus het moet er wel zijn maar bij welke merken kan ik dit zien?
[Afbeelding]
[ Voor 28% gewijzigd door Streamz op 19-08-2022 11:29 ]
:strip_exif()/f/image/whi8S55XyRKc39jj4nFTSt1N.jpg?f=fotoalbum_large)
"Some people eat to live, others live to eat"
Misschien voor future reference leuk om ook je keukenmerk, werkblad en frontjes te noemen. Mocht iemand het topic op foto's doorzoeken en jouw post tegenkomen geeft dat net wat meer informatieFJ Cruiser schreef op vrijdag 19 augustus 2022 @ 11:41:
De keuken is geplaatst. Prima (Duitse) vakmensen begonnen om 9.00 en om 14.30 stond alles netjes en aangesloten. We zijn erg blij met:
1. De ruimte om het kookeiland heen. 110cm is ruim voldoende met 2 personen.
2. De Bora afzuiging. Heeft geen enkel probleem om stoom en luchtjes op te nemen.
3. Het hoge werkblad, geen pijnlijke rug meer na snijden of afwassen.
4. De enorme lades
5. De kwaliteit en kleur van de kasten
Iets minder:
- vingerafdrukken op de kastjes. Deze moet je iedere dag even afnemen om het mooi schoon te houden
- de enorme enkele vierkante wasbak. Lastig schoonhouden in de hoekjes en soms mis ik mijn oude dubbele wasbak :-)
- Oven en magnetron op nalevering. Ook nog geen zicht op leveringstermijn. (Wel tijdelijke combi oven gekregen)
[Afbeelding]
[Afbeelding]
VW ID.7 Tourer Pro S | 5670 Wp JA Solar - 14x405 33° op Zuid | Twente | Proton $20 referral
Wij hebben alle apparatuur juist niet bij IKEA besteld, maar bij een locale witgoedboer.3dav0d3 schreef op donderdag 18 augustus 2022 @ 13:51:
***members only***
| Me = M'n of Mijn | Is = Eens | Hun = Zij | Waar om doen men sen al die on nodig e spa ties over al tus sen ? | Hè = Heh? | Hé = Hey!
Wat is het dan als ik vragen mag? Tja de Superkeukens is het inderdaad net niet en als ik hier offertes zie van next 125 bij de duitse jongens dan denk ik dat ik daar maar naar toe moet. Of die het wel kunnen is mij wel weer een raadsel. Ander probleem was dat de hoge kasten eigenlijk net iets te hoog zijn voor mijn gevoel. Dit was een 209 hoge kast en ik wil liever 10 cm lager.Streamz schreef op vrijdag 19 augustus 2022 @ 11:21:
[...]
Kenmerk van een meubelboulevard massaproduct Ofwel (bijna?) alle Duitse laag-middensegment keukens.
In dit topic is al eens gepost dat dit een "blendle" heet. Ik ben er allergisch voor, net als die onnodig grote kieren tussen fronten.
Dus dat was ook een eis in mijn keuken.
Edit: even kijken in dit topic bij de pins: Het Grote Keuken topic: verkopers, kwaliteit, prijs - Deel 3
Dan kom je er aardig wat tegen waar geen blendles nodig zijn. Keukenmerk staat erbij, dus daar kun je naar zoeken.
De mijne: https://tweakers.net/i/tX...rEJmvtZy.jpg?f=user_large maar die ga ik je niet adviseren als je Superkeukens niveau wil qua pecunia.
[ Voor 5% gewijzigd door Sen op 19-08-2022 12:23 ]
Onze laatste keuken was helemaal op maat door een interieur bouwer maar dat wil ik nu eigenlijk niet. Maar welk merk keuken was dat van dat plaatje?Streamz schreef op vrijdag 19 augustus 2022 @ 12:25:
Als je even door de pins scrolt, kom je volgens mij iig Next en Rotpunkt tegen. En hogere segment. En interieurbouwers.
Wat was je beweegreden daarvoor? Twijfel aan de kwaliteit van IKEA?CeesKees schreef op vrijdag 19 augustus 2022 @ 12:04:
[...]
Wij hebben alle apparatuur juist niet bij IKEA besteld, maar bij een locale witgoedboer.
Dit is erg goed bevallen.
De plaatser die via IKEA de keuken kwam plaatsen, kon dit gewoon meenemen in het meerwerk en heeft alles keurig werkend opgeleverd.
Dank allemaal voor meelezen en de input. Op basis van het gegeven dat het een pronorm keuken is idd een offerte bij Bemmel en Kroon opgevraagd waarbij de bedragen zwart waren gemaakt (verkopen ook pronorm op basis van de info uit de OP). Verschil is echt heel groot; Bemmel en Kroon biedt de keuken aan voor 16,5K onder dezelfde voorwaarde.Fedde schreef op woensdag 17 augustus 2022 @ 19:31:
[...]
Je kan hem altijd onder
***members only***
delen. Wat ook kan is de offerte naar Keukenloods en/of Bemmel en Kroon sturen voor een second opinion. Even je bedragen zwart maken en je ontvangt een tegenvoorstel. De korting lijkt me erg mager overigens.
Grando is dan ook gewoon duur in mijn beleving. Service en meedenken tijdens het verkoopproces vond ik ook niet noemenswaardig. Onze keuken hebben wij uiteindelijk 26,5k voor betaald met toplijn Miele waar we bij Grando minimaal 30k kwijt waren met Siemens en geen Quooker.edvanes schreef op vrijdag 19 augustus 2022 @ 13:55:
[...]
Dank allemaal voor meelezen en de input. Op basis van het gegeven dat het een pronorm keuken is idd een offerte bij Bemmel en Kroon opgevraagd waarbij de bedragen zwart waren gemaakt (verkopen ook pronorm op basis van de info uit de OP). Verschil is echt heel groot; Bemmel en Kroon biedt de keuken aan voor 16,5K onder dezelfde voorwaarde.
![]() | ![]() | ![]() |
![]() | ![]() |
Persoonlijk vind ik Leicht iets luxer, net wat beter afgewerkt, net iets dikker laminaat, net even een tikkie beter. Maar het prijsverschil kan heftig zijnThe Evil Brain schreef op donderdag 18 augustus 2022 @ 19:29:
[...]
Nog een aanvullende vraag: zit er kwaliteitsverschil tussen Leicht en TriStar? Of is het vergelijkbaar qua niveau?
Bericht hierboven
Blende of passtuk. En ja, verschrikkelijk lelijk.Streamz schreef op vrijdag 19 augustus 2022 @ 11:21:
[...]
Kenmerk van een meubelboulevard massaproduct Ofwel (bijna?) alle Duitse laag-middensegment keukens.
In dit topic is al eens gepost dat dit een "blendle" heet. Ik ben er allergisch voor, net als die onnodig grote kieren tussen fronten.
Dus dat was ook een eis in mijn keuken.
Bericht hierboven
Apple iPhone 17 LG OLED evo G5 Google Pixel 10 Samsung Galaxy S25 Star Wars: Outlaws Nintendo Switch 2 Apple AirPods Pro (2e generatie) Sony PlayStation 5 Pro
Tweakers is onderdeel van
DPG Media B.V.
Alle rechten voorbehouden - Auteursrecht © 1998 - 2026
•
Hosting door TrueFullstaq