Als het goed is onder de kastjes, zodat het via de plinten weg kan vloeien.insp.gadget schreef op maandag 23 mei 2022 @ 20:28:
[...]
Komt de uitstroom rechtstreeks in een kastje, of wordt het op de grond geblazen?
Kan me niet echt voorstelling maken van de ruimte, het oogt voor mij wat rommelig maar misschien is het prima in de ruimte.TRD07 schreef op dinsdag 24 mei 2022 @ 09:39:
[...]
@Floor-is @Barry|IA @SquareOne @Source90 @Toke_gt (e.a. uiteraard) Jullie hebben meestal wel een frisse blik op de keukenindelingen. Jullie nog aanmerkingen/suggesties?
Tevens, ik zie hier wel eens de Siemens HS836GTB6 iQ700 voorbij komen, maar ook de Siemens HS836GVB6 iQ700. Is de eerste (HS836GTB6) specifieke voor de Nederlandse markt en de tweede (HS836GVB6) voor de Belgische markt? Aangezien ik ze niet beide op de Nederlandse Siemens site zie. Dat geldt ook voor de HM876G0B6 (NL) en HM876G2B6 (BE).
Ik neem aan dat je de tafel links gaat zetten? Hoe zit het daar met de ramen enzo?TRD07 schreef op zondag 22 mei 2022 @ 20:01:
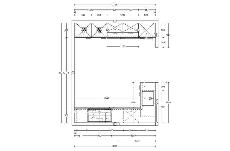
Hier ook inmiddels wat stappen verder in het proces naar een keuken voor een nieuwbouwwoning. De technische tekening is inmiddels gemaakt, maar denken nog na over wat praktisch is en daar kunnen we wel wat input voor gebruiken:***members only***
- Vaatwasser links naast de spoelbak zorgt voor een blokkade in de doorgang naar zowel de spoelbak als de inductieplaat. Daarentegen is aan de rechterkant meteen een muur, dus heb je met een vaatwasser rechts van de spoelbak weer last van spetters op de muur.
- Spoelbak in een 120cm kast? Is dit logisch als dit een ~50cm brede spoelbak wordt?
- Aan de hoge wand (onderin de afbeelding) komen de (178cm) vriezer en (178cm) koelkast. Om makkelijker boodschappen weg te ruimen zou de koelkast vanaf onder gezien toch het meest praktisch zijn om links te plaatsen (dus helemaal rechts tegen de wand als je er voor staat)? Je kan dan je boodschappen op het eiland zetten.
Ik kan wel snel-snel wat voor je tekenen, ik heb wat tijd vanmiddag.
Aangaande het lijstje, alles uiteraard IMO etc
- De vaatwasser daar links lijkt mij ook onhandig voor de doorgang. Eventueel kan je die rechts naast de spoelbak, schrobbare verf op de muur of desnoods een (gehard) glasplaat als het echt te bont wordt.
- Spoelbak in een brede kast is geen issue, je hoeft de spoelbak ook niet te centreren natuurlijk. Eventueel kan je overwegen die in een 60-kast te steken en dan 2x60 rechts ervan. Heb je gelijk de vaatwasser niet in de hoek. (Mocht je een Quooker of andersoortig kokendwaterkraan overwegen verlies je ook veel minder ruimte als je voor lades gaat)
- Koelkast sowieso links anders moet je om de deur heen bewegen als je iets pakken wilt.
Bericht hierboven
Dit is de originele keuken vanuit de bouw. De eettafel zal in een andere ruimte worden geplaatst, vandaar ook de bar (als ontbijtplek wss) aan het eiland.ocrammarco schreef op dinsdag 24 mei 2022 @ 10:48:
[...]
Kan me niet echt voorstelling maken van de ruimte, het oogt voor mij wat rommelig maar misschien is het prima in de ruimte.
Members only:
Alleen zichtbaar voor ingelogde gebruikers.
Inloggen
De eettafel zal in een andere ruimte op een aantal meter van de keuken worden neergezet. Daar is meer ruimte en zo hoeven we niet alles in de keuken te proppen. De keuken zal dus, op het barretje na, ook echt als keuken gebruikt worden.Floor-is schreef op dinsdag 24 mei 2022 @ 12:02:
[...]
Ik neem aan dat je de tafel links gaat zetten? Hoe zit het daar met de ramen enzo?
Ik kan wel snel-snel wat voor je tekenen, ik heb wat tijd vanmiddag.
Aangaande het lijstje, alles uiteraard IMO etc
- De vaatwasser daar links lijkt mij ook onhandig voor de doorgang. Eventueel kan je die rechts naast de spoelbak, schrobbare verf op de muur of desnoods een (gehard) glasplaat als het echt te bont wordt.
- Spoelbak in een brede kast is geen issue, je hoeft de spoelbak ook niet te centreren natuurlijk. Eventueel kan je overwegen die in een 60-kast te steken en dan 2x60 rechts ervan. Heb je gelijk de vaatwasser niet in de hoek. (Mocht je een Quooker of andersoortig kokendwaterkraan overwegen verlies je ook veel minder ruimte als je voor lades gaat)
- Koelkast sowieso links anders moet je om de deur heen bewegen als je iets pakken wilt.
De spoelbak zou in een 60-kast kunnen, zou je die spoelbak dan op de 3e of 4e van links zetten (met de 4e of 5e 60-kast dus als VW)? De spoelbak (met Quooker) juist niet centreren tegenover de Bora zou toch juist qua doorgang weer beter zijn?
Deze begrijp ik niet helemaal. Dus 2x60 er van maken waarvan 1 met een Quooker (wat ik van plan ben te kopen) zou voor meer ruimte geven als je voor lades gaat?(Mocht je een Quooker of andersoortig kokendwaterkraan overwegen verlies je ook veel minder ruimte als je voor lades gaat)
Voor de duidelijkheid. Degene het dichtst bij het raam (de plant) en dus niet bij de trap?Koelkast sowieso links anders moet je om de deur heen bewegen als je iets pakken wilt.
Ja doe desnoods maar een tekening in DM, want dit is net te weinig voor meTRD07 schreef op dinsdag 24 mei 2022 @ 13:34:
[...]
Dit is de originele keuken vanuit de bouw. De eettafel zal in een andere ruimte worden geplaatst, vandaar ook de bar (als ontbijtplek wss) aan het eiland.
***members only***
De reden dat ik een plattegrond zoek is de enorme hoeveelheid loze ruimte die lijkt te ontstaan[...]
De eettafel zal in een andere ruimte op een aantal meter van de keuken worden neergezet. Daar is meer ruimte en zo hoeven we niet alles in de keuken te proppen. De keuken zal dus, op het barretje na, ook echt als keuken gebruikt worden.
Ik zou de spoelbak ver naar links schuiven, één kastje tussen de muur en de spoelbak. Is ook fijner voor de doorloop. Maar stiekem hoop ik dat met een betere plattegrond en de toezegging dat die ruimte daar links beschikbaar is.. Er een andere indeling kan komen waar je nog gelukkiger van wordtDe spoelbak zou in een 60-kast kunnen, zou je die spoelbak dan op de 3e of 4e van links zetten (met de 4e of 5e 60-kast dus als VW)? De spoelbak (met Quooker) juist niet centreren tegenover de Bora zou toch juist qua doorgang weer beter zijn?
Beetje gaar verwoord van mijn kant. Als je in een 120-kast lades doet en je Quooker, dan lever je enorm ruimte in door die quooker én je spoelbak. Omdat je met grote lades werken zou, merk je dat meer omdat de lades grote delen 'missen' zal ik maar zeggen.[...]
Deze begrijp ik niet helemaal. Dus 2x60 er van maken waarvan 1 met een Quooker (wat ik van plan ben te kopen) zou voor meer ruimte geven als je voor lades gaat?
Als je een spoelkast van 60 zou kiezen, dan is het deel onder de spoelbak zo'n beetje vergeven aan je sifon, de Quooker en heb je nog beperkt ruimte voor bijvoorbeeld een afvalsysteem. Maar de kast ernaast heeft volle lades.
Hoop dat dat duidelijker is
Sorry, ja: met je neus naar de kastenwand toe.[...]
Voor de duidelijkheid. Degene het dichtst bij het raam (de plant) en dus niet bij de trap?
[ Voor 8% gewijzigd door Floor-is op 24-05-2022 14:51 ]
Bericht hierboven
Ik denk graag met je mee, maar snap de ruimte niet helemaal. Wat zit er aan de linkerkant van de keuken? Geen raam, geen deur?
En wat is het gestreepte deel? Een trap?
Als het echt allemaal voor de keuken is bedoeld, zou ik de indeling anders maken, dus hoor graag
Het is een beetje verneukeratieve tekening, links is de doorgang naar de woonkamer. Die strepen is een trap, er tegenover het gangblok. Daar zijn geen ramen, wel deuren.Toke_gt schreef op woensdag 25 mei 2022 @ 00:04:
[...]
Ik denk graag met je mee, maar snap de ruimte niet helemaal. Wat zit er aan de linkerkant van de keuken? Geen raam, geen deur?
En wat is het gestreepte deel? Een trap?
Als het echt allemaal voor de keuken is bedoeld, zou ik de indeling anders maken, dus hoor graag
Ik had ook al een plan om dat deel links op de tekening anders in te delen, maar dat gaat eigenlijk niet. Wat er nu staat is voor de ruimte wel zo ongeveer ideaal IMO. Ik heb een voorstel gedaan om het schiereiland een stukje de hoek om door te laten lopen en daar een (lade)kast neer op de kopse kant te zetten voor opslag van dingen waar je eigenlijk niet zo vaak bij moet.
Bron: Ik heb een betere tekening in DM gehad
Hier is onder de dubbele deur naar de tuin
[ Voor 15% gewijzigd door Floor-is op 25-05-2022 10:55 ]
Bericht hierboven
Is het niet heel onhandig om óm het (schier)eiland heen te moeten lopen van de kookplaat naar de koelkast? Wellicht de koelkast omruilen met de kast waar nu oven/servies in is getekend?Floor-is schreef op woensdag 25 mei 2022 @ 10:53:
[...]
Het is een beetje verneukeratieve tekening, links is de doorgang naar de woonkamer. Die strepen is een trap, er tegenover het gangblok. Daar zijn geen ramen, wel deuren.
Ik had ook al een plan om dat deel links op de tekening anders in te delen, maar dat gaat eigenlijk niet. Wat er nu staat is voor de ruimte wel zo ongeveer ideaal IMO. Ik heb een voorstel gedaan om het schiereiland een stukje de hoek om door te laten lopen en daar een (lade)kast neer op de kopse kant te zetten voor opslag van dingen waar je eigenlijk niet zo vaak bij moet.
Bron: Ik heb een betere tekening in DM gehad
Hier is onder de dubbele deur naar de tuin
[Afbeelding]
Dit dus...Kurma schreef op woensdag 25 mei 2022 @ 11:12:
[...]
Is het niet heel onhandig om óm het (schier)eiland heen te moeten lopen van de kookplaat naar de koelkast? Wellicht de koelkast omruilen met de kast waar nu oven/servies in is getekend?
Ik zou het eiland altijd horizontaal voorzien op die tekening. Dan heb je nog een soort van verbinding tussen links en rechts ipv een hindernis.
Sony A7 iv en wat recycled glas
Zo, hypotheek is rond, huis is verkocht. Zodoende kunnen wij ons nu volledig richting op de toekomst; nieuwe keuken!
Wij hebben al aardig een beeld wat wij willen:
:strip_exif()/f/image/DasJ2o8kzz3RPlGZibtc0i0b.jpg?f=fotoalbum_large)
Enige wat je in deze render mist is, dankzij @Source90 , een 30 cm lade in het eiland tbv kruiden ed maar voor de rest:
Hacker Systemat, greeploos PG 3.
Eiland (250 cm):
30 (apotheeklade) + 100 (inductie) + 60 (vaatwas) + 60 (spoelbak)
60 + 60 kast met lades aan de andere kant
Wand (360 cm):
3 x hoge kasten:
- koelvries combi
- onderkant lades + oven + bovenkant planken
- onderkant lades + combi magn. + bovenkant planken
2 x 90 onderkasten met lades
2 x 90 bovenkasten met planken
Wij zitten zelf nog een beetje met de afmeting van het eiland icm de doorgang/looppad..
@Floor-is Had jij nog iets kunnen fabriceren zoals je eerder aangaf?
Dit is overigens het plattegrond:
Wij hebben al aardig een beeld wat wij willen:
:strip_exif()/f/image/DasJ2o8kzz3RPlGZibtc0i0b.jpg?f=fotoalbum_large)
Enige wat je in deze render mist is, dankzij @Source90 , een 30 cm lade in het eiland tbv kruiden ed maar voor de rest:
Hacker Systemat, greeploos PG 3.
Eiland (250 cm):
30 (apotheeklade) + 100 (inductie) + 60 (vaatwas) + 60 (spoelbak)
60 + 60 kast met lades aan de andere kant
Wand (360 cm):
3 x hoge kasten:
- koelvries combi
- onderkant lades + oven + bovenkant planken
- onderkant lades + combi magn. + bovenkant planken
2 x 90 onderkasten met lades
2 x 90 bovenkasten met planken
Wij zitten zelf nog een beetje met de afmeting van het eiland icm de doorgang/looppad..
@Floor-is Had jij nog iets kunnen fabriceren zoals je eerder aangaf?
Dit is overigens het plattegrond:
Kurma schreef op woensdag 25 mei 2022 @ 11:12:
[...]
Is het niet heel onhandig om óm het (schier)eiland heen te moeten lopen van de kookplaat naar de koelkast? Wellicht de koelkast omruilen met de kast waar nu oven/servies in is getekend?
Eiland horizontaal plaatsen met een kastenwand en spoelzijde is in deze ruimte geen optie. Dan gaat het ten kostte van of de kastenwand óf de spoelzijde.Tommie12 schreef op woensdag 25 mei 2022 @ 11:40:
[...]
Dit dus...
Ik zou het eiland altijd horizontaal voorzien op die tekening. Dan heb je nog een soort van verbinding tussen links en rechts ipv een hindernis.
In eerste instantie vond ik de plaatsing van de koelkast ook onhandig, omdat je voor de kookplaat en de spoelbak eerst om het eiland heen moet. Maar met koken pak ik toch alles van te voren en leg het klaar en met inruimen zet je eerst je boodschappen op het eiland om het daarna te verdelen over de opbergruimtes (koelkast bijv.). Ik denk dat je zo wel het beste gebruikt maakt van de ruimte als keuken. Het zal alleen even wennen de koelkast op die plek en anders zal je 3 meter moeten lopen
Hoge en lage kasten omwisselen? 1 of 2 hoge kasten aan de spoelkant? Er lijken mij echt betere opties (inclusief het gevreesde "dan maar geen keukeneiland") mogelijk dan dit. Er is echt een reden dat men een koelkast dichtbij werkblad/kookplaat plaatst. Kan je wel zeggen dat dat niet voor jou geldt, maar ik denk dat je er spijt van gaat krijgen.TRD07 schreef op woensdag 25 mei 2022 @ 14:17:
[...]
[...]
Eiland horizontaal plaatsen met een kastenwand en spoelzijde is in deze ruimte geen optie. Dan gaat het ten kostte van of de kastenwand óf de spoelzijde.
In eerste instantie vond ik de plaatsing van de koelkast ook onhandig, omdat je voor de kookplaat en de spoelbak eerst om het eiland heen moet. Maar met koken pak ik toch alles van te voren en leg het klaar en met inruimen zet je eerst je boodschappen op het eiland om het daarna te verdelen over de opbergruimtes (koelkast bijv.). Ik denk dat je zo wel het beste gebruikt maakt van de ruimte als keuken. Het zal alleen even wennen de koelkast op die plek en anders zal je 3 meter moeten lopen
Om het schiereiland heen:Kurma schreef op woensdag 25 mei 2022 @ 11:12:
[...]
Is het niet heel onhandig om óm het (schier)eiland heen te moeten lopen van de kookplaat naar de koelkast? Wellicht de koelkast omruilen met de kast waar nu oven/servies in is getekend?
Ja natuurlijk is dat niet het handigste, maar dat was al ingetekend en eigenlijk helemaal geen slechte opzet.
Je wilt ook de koelkast en vriezer naast elkaar, dus in de ruimte achter het schiereiland wordt dan eigenlijk te krap. Dan ben je al 120cm van de ±300cm kwijt immers. In de overgebleven 180cm moet dan de spoelbak, vaatwasser en je snijruimte. 60cm ben je 'kwijt' aan de vaatwasser, dus 120 over. Twee opties:
- vaatwasser links, spoelbak midden, 60-kast rechts
- vaatwasser links, 120 spoelkast met spoelbak uit het midden.
Optie 2 geeft je meer flexibiliteit, maar dan moet je met een 120cm spoelkast werken. Als je daar lades doet (wat volgens mij het idee was) dan zit de Quooker enorm in de weg voor twee lades (want 47cm hoog) waardoor je lades minder stabiel worden en/of ondiep. Dat kost veel bergruimte.
Je zou de koelkast en vriezer uit elkaar kunnen trekken, tegen de wens van TRD07 in. Beargumenteren dat je de koelkast wel veel gebruikt en de vriezer minder. Dan heb je niet 2x60 hoog, maar 1x 60 hoog in die 303cm. Heb je dus ook 240cm over voor je werkplek, scheelt al heel veel.
Je zou de oven in een 60-kast kunnen plaatsen achter het schiereiland, desnoods met de vaatwasser eronder. Dan krijg je weliswaar lekker werkruimte, kan je symmetrie krijgen in de lengte van het schiereiland en het aanrecht ook. Maar je koelkast/vriezer zitten nog steeds verder weg.
De koelkast naar de hoek van de kastenwand: ja kan. Maar dan gaan je koelkast/vriezer rug aan rug open met de deuren. Is geen optie.
Je zou de vriezer op de hoek kunnen zetten, koelkast ernaast en dan de oven weer eentje verder. Is inderdaad ook een optie, die had ik niet voorgesteld omdat ik denk dat het fijner is om sneller bij de oven te zijn als je eenmaal aan het koken bent, maar dat is maar één mening.
Ik begrijp niet wat je wilt zeggenTommie12 schreef op woensdag 25 mei 2022 @ 11:40:
[...]
Dit dus...
Ik zou het eiland altijd horizontaal voorzien op die tekening. Dan heb je nog een soort van verbinding tussen links en rechts ipv een hindernis.
Ik ga weer even aan het werk hoor
Bericht hierboven
Ik begrijp wat je zegt, maar als het mijn keuken was, zou de conclusie zijn "op deze manier werkt het dus niet, back to the drawing board".. Eiland naar boven verschuiven, hoge kasten tegen de wand waar nu "150cm" staat. Of een U-vorm. Of het eiland 90 graden draaien (om maar eens wat opties te noemen). Voor mij zou het in elk geval niet acceptabel zijn om dit soort concessies te doen in een nieuw ontworpen keuken.Floor-is schreef op woensdag 25 mei 2022 @ 15:01:
[...]
Om het schiereiland heen:
Ja natuurlijk is dat niet het handigste, maar dat was al ingetekend en eigenlijk helemaal geen slechte opzet.
Je wilt ook de koelkast en vriezer naast elkaar, dus in de ruimte achter het schiereiland wordt dan eigenlijk te krap. Dan ben je al 120cm van de ±300cm kwijt immers. In de overgebleven 180cm moet dan de spoelbak, vaatwasser en je snijruimte. 60cm ben je 'kwijt' aan de vaatwasser, dus 120 over. Twee opties:Optie 1 is weinig flexibel. Werkruimte links en rechts naast de spoelbak, beide tegen een wand/kast aan waardoor je effectief ook ruimte inlevert en in mijn ogen altijd verlegen zult zitten om ruimte. Je krijgt een krap gevoel zo.
- vaatwasser links, spoelbak midden, 60-kast rechts
- vaatwasser links, 120 spoelkast met spoelbak uit het midden.
Optie 2 geeft je meer flexibiliteit, maar dan moet je met een 120cm spoelkast werken. Als je daar lades doet (wat volgens mij het idee was) dan zit de Quooker enorm in de weg voor twee lades (want 47cm hoog) waardoor je lades minder stabiel worden en/of ondiep. Dat kost veel bergruimte.
Je zou de koelkast en vriezer uit elkaar kunnen trekken, tegen de wens van TRD07 in. Beargumenteren dat je de koelkast wel veel gebruikt en de vriezer minder. Dan heb je niet 2x60 hoog, maar 1x 60 hoog in die 303cm. Heb je dus ook 240cm over voor je werkplek, scheelt al heel veel.
Je zou de oven in een 60-kast kunnen plaatsen achter het schiereiland, desnoods met de vaatwasser eronder. Dan krijg je weliswaar lekker werkruimte, kan je symmetrie krijgen in de lengte van het schiereiland en het aanrecht ook. Maar je koelkast/vriezer zitten nog steeds verder weg.
De koelkast naar de hoek van de kastenwand: ja kan. Maar dan gaan je koelkast/vriezer rug aan rug open met de deuren. Is geen optie.
Je zou de vriezer op de hoek kunnen zetten, koelkast ernaast en dan de oven weer eentje verder. Is inderdaad ook een optie, die had ik niet voorgesteld omdat ik denk dat het fijner is om sneller bij de oven te zijn als je eenmaal aan het koken bent, maar dat is maar één mening.
...
Kan iemand ons helpen een keuze te maken. We willen graag zaterdag ergens langs voor om nog een offerte te laten maken. Nu zit ik echter een beetje in dubio wat handig is. Onze andere offerte is Pronorm bij Bemmel & Kroon voor 14.300 ex montage.
Wat is nu wijsheid, langsgaan bij een toko die ook Pronorm verkoopt, om zo de offerte goed te kunnen vergelijken, of ergens langsgaan om een offerte te krijgen van een ander merk. Mijn vrouw wilde graag langs keukensale, maar als ik hier de ervaringen / meningen wat betreft Nobilia lees word ik er nou niet heel enthousiast van.
Over het ontwerp waren we toen prima tevreden, alleen de prijs vinden we wat te hoog. Keuzes, keuzes...
Wat is nu wijsheid, langsgaan bij een toko die ook Pronorm verkoopt, om zo de offerte goed te kunnen vergelijken, of ergens langsgaan om een offerte te krijgen van een ander merk. Mijn vrouw wilde graag langs keukensale, maar als ik hier de ervaringen / meningen wat betreft Nobilia lees word ik er nou niet heel enthousiast van.
Over het ontwerp waren we toen prima tevreden, alleen de prijs vinden we wat te hoog. Keuzes, keuzes...
C2D E6600 - 2048MB Kingston - Sapphire HD2900XT - 200Gb Samsung - Asus P5B-E
Schiereiland naar boven betekent dat deze tegen het blok van de gang komt, (schuin) tegenover de trap. Dat maakt die doorgang in ieder geval optisch echt smal wordt. Met de beschikbare diepte is dat denk ik geen aanraderKurma schreef op woensdag 25 mei 2022 @ 15:12:
[...]
Ik begrijp wat je zegt, maar als het mijn keuken was, zou de conclusie zijn "op deze manier werkt het dus niet, back to the drawing board".. Eiland naar boven verschuiven, hoge kasten tegen de wand waar nu "150cm" staat. Of een U-vorm. Of het eiland 90 graden draaien (om maar eens wat opties te noemen). Voor mij zou het in elk geval niet acceptabel zijn om dit soort concessies te doen in een nieuw ontworpen keuken.
Ik heb nog even zitten vogelen met een dwars geplaatst eiland: geen goed idee
Een L of U-vormige keuken zou kunnen, dan win je vooral werkruimte namelijk, maar kost effectief bergruimte.
Heb nagedacht over de koelkast achter het schiereiland, maar de wens was koelkast+vriezer naast elkaar.
Bericht hierboven
Update: besteld in December 2021, Mei 2022 op voorraad en klaar om uitgeleverd te worden. Dit valt me 100% meeSupermario16 schreef op vrijdag 22 april 2022 @ 21:14:
Ik heb in December 2021 voor bijna 5000 euro aan Bosch apparatuur besteld bij Bemmel & Kroon. Onze nieuwbouwwoning wordt naar verwachting in september opgeleverd en dan gaat de meubelmaker aan de slag met de keuken. Bemmel & Kroon kan op dit moment echter nog steeds geen enkele indicatie van een levertijd geven. Ik heb een nieuwe offerte aangevraagd bij Keukenloods maar dan kom ik waarschijnlijk weer onder aan de lijst te staan. Ik heb het topic doorzocht maar kon geen laatste nieuws hierover vinden. Zitten we nog steeds op een gemiddelde levertijd van ~ 9 maanden? Dan gaat het dus krap worden...
Mooie combi! Volgens mij had je ‘m al eerder getoond, maar ik ben te lui om terug te zoeken of er toen is gewezen op de werkruimte op het eiland. Je hebt nu 60 cm tussen spoelbak en kookplaat, en daar staat dan ook de vaatwasser. Ik zou je willen aanraden om spoelbak en vaatwasser in/bij de nis te plaatsen, zodat je meer werkruimte (en rust) op het eiland hebt. Dit wordt heel snel heel rommelig en dat doet echt afbreuk aan het mooie ontwerp. Ook kun je daar de vaat parkeren en je reduceert de kans op gespetter op de vloer bij het eiland.beyazz06 schreef op woensdag 25 mei 2022 @ 11:56:
Zo, hypotheek is rond, huis is verkocht. Zodoende kunnen wij ons nu volledig richting op de toekomst; nieuwe keuken!
Wij hebben al aardig een beeld wat wij willen:
[Afbeelding]
Maar mogelijk heb je hier allang op gereageerd, dan sla je deze reactie snel over
Dat van de ruimte is inderdaad eerder geopperd, is ook iets wat wij lastig vinden om mee om te gaan. Vandaar ook mijn note van "Wij zitten zelf nog een beetje met de afmeting van het eiland icm de doorgang/looppad.. "Toke_gt schreef op woensdag 25 mei 2022 @ 19:00:
[...]
Mooie combi! Volgens mij had je ‘m al eerder getoond, maar ik ben te lui om terug te zoeken of er toen is gewezen op de werkruimte op het eiland. Je hebt nu 60 cm tussen spoelbak en kookplaat, en daar staat dan ook de vaatwasser. Ik zou je willen aanraden om spoelbak en vaatwasser in/bij de nis te plaatsen, zodat je meer werkruimte (en rust) op het eiland hebt. Dit wordt heel snel heel rommelig en dat doet echt afbreuk aan het mooie ontwerp. Ook kun je daar de vaat parkeren en je reduceert de kans op gespetter op de vloer bij het eiland.
Maar mogelijk heb je hier allang op gereageerd, dan sla je deze reactie snel over
Wanneer je een groter eiland neemt, moeten we de afstand tussen de wandkasten en eiland vergroten wil je de doorgang/looppad voldoende houden. Wel ga je met je eiland meer richting het midden van de ruimte, dat willen we weer niet.
Of we zouden idd zoals jij voorstelt spoelbak in de nis kunnen plaatsen, alsook de vaatwas waardoor de eiland qua grootte gelijk kan blijven. Alleen uitdaging hier is, het is een bestaande woning met vloerverwarming waarbij de spoelbak en vaat momenteel in de eiland zitten.. İn dit geval moet je dan dus waterleidingen en afvoer verplaatsen en de vraag is hoe de vrouw hier over nadenkt..
Een derde optie is wellicht de kookplaat in de nis plaatsen, maar dan verlies je mi het meerwaarde van de eiland en sta je met je rug naar iedereen toe te koken.. en maakt hiermee deze scenario tot het minst aantrekkelijke scenario, maar wel het meest makkelijke te realiseren 😅 Aansluiting van inductie zit nu namelijk aan de kant van de wand...
Keuzes, keuzes..
Deze render heb ik -dacht ik- niet eerder gepost, wel vergelijkbaar dus het kan heel goed kloppen dat het je bekend voorkomt 😊
Zo vreselijk ingewikkeld is het niet om dat te verplaatsen. Ik zou me er in ieder geval niet door laten beperken. Misschien eens hier en daar informeren wat dat kost? Is er een kruipruimte? Wat zit er aan de kant of de zijkant van de keuken? (En de vrouw houdt vast niet van rotzooi in het zicht en een vaatwasser die de boel blokkeert tijdens het. koken)beyazz06 schreef op woensdag 25 mei 2022 @ 21:18:
[...]
Of we zouden idd zoals jij voorstelt spoelbak in de nis kunnen plaatsen, alsook de vaatwas waardoor de eiland qua grootte gelijk kan blijven. Alleen uitdaging hier is, het is een bestaande woning met vloerverwarming waarbij de spoelbak en vaat momenteel in de eiland zitten.. İn dit geval moet je dan dus waterleidingen en afvoer verplaatsen en de vraag is hoe de vrouw hierover denkt.
Dat zou idd mijn voorkeur ook niet zijn. Mis je de gezelligheid en heb je de rotzooi+vaat alsnog op het eiland. Een inductieaanslutiing naar het eiland halen is nog minder complex dan een waterleiding naar de wand.Een derde optie is wellicht de kookplaat in de nis plaatsen, maar dan verlies je mi het meerwaarde van de eiland en sta je met je rug naar iedereen toe te koken.. en maakt hiermee deze scenario tot het minst aantrekkelijke scenario, maar wel het meest makkelijke te realiseren 😅 Aansluiting van inductie zit nu namelijk aan de kant van de wand...
Edit: toch maar even teruggebladerd en dit was een vraag die je al had beantwoord ergens
Edit2: ff terug naar je eerdere post (deze nieuwe uitvoering nog mooier, dat wel)
beyazz06 schreef op zondag 24 april 2022 @ 22:13:
Vandaag weer langs een keukenboer geweest waar wij heel goed geholpen zijn. Zo goed dat wij nu een iets andere opstelling hebben, ben benieuwd wat jullie ervan vinden.
[Afbeelding]
[ Voor 19% gewijzigd door Toke_gt op 25-05-2022 21:57 ]
Ik had nog een wild idea om de keuken naar de woonkamer te verplaatsen, maar na wat uitprobeersels werd al snel duidelijk dat dat geen optie is 😅Toke_gt schreef op woensdag 25 mei 2022 @ 21:48:
[...]
Zo vreselijk ingewikkeld is het niet om dat te verplaatsen. Ik zou me er in ieder geval niet door laten beperken. Misschien eens hier en daar informeren wat dat kost? Is er een kruipruimte? Wat zit er aan de kant of de zijkant van de keuken? (En de vrouw houdt vast niet van rotzooi in het zicht en een vaatwasser die de boel blokkeert tijdens het. koken)
[...]
Vrouwlief wil overigens toch echt alles op het eiland houden.. Uitdaging!
Ik snap niet waarom de koelkast en de vriezer naast elkaar moeten?Floor-is schreef op woensdag 25 mei 2022 @ 15:33:
[...]
Schiereiland naar boven betekent dat deze tegen het blok van de gang komt, (schuin) tegenover de trap. Dat maakt die doorgang in ieder geval optisch echt smal wordt. Met de beschikbare diepte is dat denk ik geen aanrader
Ik heb nog even zitten vogelen met een dwars geplaatst eiland: geen goed idee
Een L of U-vormige keuken zou kunnen, dan win je vooral werkruimte namelijk, maar kost effectief bergruimte.
Heb nagedacht over de koelkast achter het schiereiland, maar de wens was koelkast+vriezer naast elkaar.
De koelkast en vriezer zitten ook niet naast elkaar. Het is koelkast - stoomoven - combi - vriezer. Dus 4 hoge kasten naast elkaar. Koelkast en vriezer kan ik nog omdraaien.thejoker80 schreef op donderdag 26 mei 2022 @ 06:04:
[...]
Ik snap niet waarom de koelkast en de vriezer naast elkaar moeten?
Laat haar een avondje koken op max 60 cm werkblad.beyazz06 schreef op donderdag 26 mei 2022 @ 00:43:
[...]
Ik had nog een wild idea om de keuken naar de woonkamer te verplaatsen, maar na wat uitprobeersels werd al snel duidelijk dat dat geen optie is 😅
Vrouwlief wil overigens toch echt alles op het eiland houden.. Uitdaging!
Aanvullend:
Feitelijk heb je dan namelijk een keuken van 250 breed. Ik weet wel, er zit nog een nis met werkruimte achter, maar als daar geen functionaliteit is aangebracht, heeft dat het effect van een tafel in de buurt waar je ook een ui in stukjes kunt snijden. Dat werkt niet prettig. Bovendien sta je daar dan met je rug naar alles toe, en ook nog met kastjes boven je hoofd etc.
Kijk dus goed hoe je zoveel mogelijk werkruimte op het eiland creëert, anders gaat het effect ervan helemaal verloren.
[ Voor 38% gewijzigd door Toke_gt op 26-05-2022 12:09 . Reden: Argumenten verrijkt ]
Kun je een real-life simulatie doen voor haar? In huidige keuken (of op keukentafel) de ruimte afbakenen en aangeven dat alles binnen die ruimte moet gebeuren?beyazz06 schreef op donderdag 26 mei 2022 @ 00:43:
[...]
Ik had nog een wild idea om de keuken naar de woonkamer te verplaatsen, maar na wat uitprobeersels werd al snel duidelijk dat dat geen optie is 😅
Vrouwlief wil overigens toch echt alles op het eiland houden.. Uitdaging!
Wij hebben veel af kunnen schrijven aan opties en mogelijkheden door met dozen te schuiven die de keuken moesten voorstellen. Zo krijg je een goed gevoel voor ruimte, diepte en doorloop.
In overleg met de architect alvast de apparatuur voor de keuken besteld. Hij designt de keuken er wel omheen zegt ie
onze wens is een kookeiland met kookplaat, wasbak+kraan en een wand met hoge kasten voor de rest. Vaatwasser in eiland of in wand iets hoger ivm makkerlijker in- uitladen maar daar zijn we nog niet over uit.
We hebben dit besteld en hopen alles voor Feb 2023 binnen te hebben:
Siemens iQ700 HB876G5B6 Oven 60x60cm
Siemens iQ700 CM876G0B6 Combimagnetron 60x45cm
Siemens iQ700 BI830CNB1 Serviesverwarmer 60x14cm
Siemens iQ500 KI86SHDD0 inbouw koelkast met vriezer 177.2x55.8cm
Siemens iQ700 SX97T800CE Volledig geintegreerde vaatwasser 60cm
Siemens iQ700 EZ977KZY1E Inductie kookplaat, flexzone 90cm
Siemens iQ500 LR97CAQ20 Plafond afzuigkap Wit 90cm
Siemens iQ500 LZ21JCC26 Plafond afzuigkap recirculatieunit
Leverancier is zeer flexibel, ik kan kijk zelf zien of een apparaat bij ze binnen is gekomen in hun magazijn en dan het apparaat alvast laten bezorgen zonder extra kosten. Zo grijp ik niet mis.
We hebben dit besteld en hopen alles voor Feb 2023 binnen te hebben:
Siemens iQ700 HB876G5B6 Oven 60x60cm
Siemens iQ700 CM876G0B6 Combimagnetron 60x45cm
Siemens iQ700 BI830CNB1 Serviesverwarmer 60x14cm
Siemens iQ500 KI86SHDD0 inbouw koelkast met vriezer 177.2x55.8cm
Siemens iQ700 SX97T800CE Volledig geintegreerde vaatwasser 60cm
Siemens iQ700 EZ977KZY1E Inductie kookplaat, flexzone 90cm
Siemens iQ500 LR97CAQ20 Plafond afzuigkap Wit 90cm
Siemens iQ500 LZ21JCC26 Plafond afzuigkap recirculatieunit
Members only:
Alleen zichtbaar voor ingelogde gebruikers.
Inloggen
Leverancier is zeer flexibel, ik kan kijk zelf zien of een apparaat bij ze binnen is gekomen in hun magazijn en dan het apparaat alvast laten bezorgen zonder extra kosten. Zo grijp ik niet mis.
Ik zit zelf altijd een beetje met maten te klooien.
(Is hier genoeg loopruimte, kan mijn stoel nog naar achteren geschoven worden, etc.)
Nu zag ik bij het TV-programma Binnenstebuiten 2 architecten die een klein appartementje in Amsterdam hadden.
Ze hadden het over hun bijbeltje 'De Menselijke Maat".
Ik heb op internet een PDF ervan gevonden
Alleen, hoe voeg ik een PDF toe?
(Is hier genoeg loopruimte, kan mijn stoel nog naar achteren geschoven worden, etc.)
Nu zag ik bij het TV-programma Binnenstebuiten 2 architecten die een klein appartementje in Amsterdam hadden.
Ze hadden het over hun bijbeltje 'De Menselijke Maat".
Ik heb op internet een PDF ervan gevonden
Alleen, hoe voeg ik een PDF toe?
[ Voor 8% gewijzigd door Rzaan op 26-05-2022 14:46 ]
Okay, bij elkaar niet naast elkaarTRD07 schreef op donderdag 26 mei 2022 @ 08:50:
[...]
De koelkast en vriezer zitten ook niet naast elkaar. Het is koelkast - stoomoven - combi - vriezer. Dus 4 hoge kasten naast elkaar. Koelkast en vriezer kan ik nog omdraaien.
Voor gebruik moet je IMO kijken naar welke je het meest gebruikt: de koelkast. En bij openen van die deur wil je niet om de deur heen moeten stappen voordat je deze gebruikt. Dat betekent echter wel dat ze nog verder van de keuken zal zijn.
Bericht hierboven
Niet, je kunt een link delen als je het bestand ergens hebt staan. Maar hier op Tweakers is er geen mogelijkheid bestanden te delen voor zover ik weetRzaan schreef op donderdag 26 mei 2022 @ 14:29:
Ik zit zelf altijd een beetje met maten te klooien.
(Is hier genoeg loopruimte, kan mijn stoel nog naar achteren geschoven worden, etc.)
Nu zag ik bij het TV-programma Binnenstebuiten 2 architecten die een klein appartementje in Amsterdam hadden.
Ze hadden het over hun bijbeltje 'De Menselijke Maat".
Ik heb op internet een PDF ervan gevonden
Alleen, hoe voeg ik een PDF toe?
Bericht hierboven
Als je op Google "De Menselijke Maat PDF" intikt, staat het (bij mij tenminste) meteen bovenaan.
Ik kreeg deze week een telefoontje dat onze huidige SX vaatwasser helaas niet paste in onze nieuwe greeploze keuken (iets met de greeplijst). Het SN model wel. Had ik even niet voorzien aangezien de nishoogte identiek aan onze huidige keuken isPetje72 schreef op donderdag 26 mei 2022 @ 13:28:
IHij designt de keuken er wel omheen zegt ie![]()
Siemens iQ700 SX97T800CE Volledig geintegreerde vaatwasser 60cm
Gelukkig kán de levering van apparatuur wél snel; gisteravond besteld via bol.com en vandaag om 09:30 uur stond keurig het SN model binnen
Hmm, ik reageerde toch op Floor-is, die zelf zei dat dat een eis was?TRD07 schreef op donderdag 26 mei 2022 @ 08:50:
[...]
De koelkast en vriezer zitten ook niet naast elkaar. Het is koelkast - stoomoven - combi - vriezer. Dus 4 hoge kasten naast elkaar. Koelkast en vriezer kan ik nog omdraaien.
Vind een L opstelling niet eens zo gek als je kijkt naar verkeer in de keuken. Maar mist wel wat opberg inderdaad. Zit achter tablet dus kan even niet schetsen op het moment.Floor-is schreef op woensdag 25 mei 2022 @ 15:33:
[...]
Schiereiland naar boven betekent dat deze tegen het blok van de gang komt, (schuin) tegenover de trap. Dat maakt die doorgang in ieder geval optisch echt smal wordt. Met de beschikbare diepte is dat denk ik geen aanrader
Ik heb nog even zitten vogelen met een dwars geplaatst eiland: geen goed idee
Een L of U-vormige keuken zou kunnen, dan win je vooral werkruimte namelijk, maar kost effectief bergruimte.
Heb nagedacht over de koelkast achter het schiereiland, maar de wens was koelkast+vriezer naast elkaar.
*knip*
Het ontwerp dat je hebt is okay, ik zou laag/hoog schuiven, koken van de wand af halen en het water erheen. Je eiland is véél te klein om het te combineren.
Ik heb wat alternatieven getekend, die vind je hieronder. Ben moe dus verwacht geen topwerk
Andere kant:
:strip_exif()/f/image/nFul1Fk5mYJrvrhLK2icJiC8.jpg?f=fotoalbum_medium)
Schiereiland 1
:strip_exif()/f/image/IIZKdjg1xbTBavy0ONc6hUIh.jpg?f=fotoalbum_medium)
Schiereiland 2
:strip_exif()/f/image/LPZyYVeEqdVKNYf6mPO9nEaF.jpg?f=fotoalbum_medium)
Een U werkt niet echt, een L dus ook niet..
[ Voor 16% gewijzigd door tweakduke op 29-05-2022 13:51 ]
Bericht hierboven
Ik vond je indeling zo gek nog niet, maar heb toch gekeken hoe je beter gebruik kunt maken van de vrije ruimte. Ik denk dat drie blokken parallel aan elkaar de ruimte van 4,5 m nogal vol laten overkomen. Als je daar tussenin wilt werken of aan de bar wilt zitten, voelt dat niet prettig (denk ik). Hier hebben zowel de kok als de barzitters meer ruimte en meer uitzicht (tuin/woonkamer). Je hebt de werkruimte nu ook aaneengesloten en dat is prettig als je de barfunctie gaat gebruiken; je staat dan niet met je rug naar de barzitters.TRD07 schreef op dinsdag 24 mei 2022 @ 09:39:
[...]
@Toke_gt (e.a. uiteraard) Jullie hebben meestal wel een frisse blik op de keukenindelingen. Jullie nog aanmerkingen/suggesties?
Aan de barkant heb ik een kastje van 60x60 diep getekend (kast links van spoelbak is dan 40 cm diep, evt voor Quooker), en een (laden)kast van 90x40, moet je wel nog checken of dat beschikbaar is bij je keukenleverancier.
Ook heb ik gekeken hoe je de koelkast ‘rechtstreeks’ kunt bereiken, zonder tijdens het koken om het eiland heen te moeten lopen. Het vw-probleem heb ik niet kunnen oplossen, maar schrobverf, glazen plaat en/of zorgvuldig inruimen doen veel.
De koelvriescombi, ovens en eventueel een koffiecorner (fijn als de woon/eetkamer stukje verderop is) heb ik in een koof getekend met daarnaast een lage bank. Lekkere plek bij open deuren als je toch ook een oogje op de pannen wilt houden. Boodschappen stallen op eiland en koelkast inruimen is zo ook een logische flow; idem ovenschotel van oven naar werkeiland verplaatsen.
Ik las dat je al wel een technische tekening hebt. Volgens mij is alleen de inductieaansluiting een punt van aandacht, de rest is allemaal ongeveer op dezelfde plek of in ieder geval makkelijk verplaatsbaar.
Doe er je voordeel mee
We zijn vandaag bij keukenloods geweest voor een second opinion nav de offerte bij bemmel en kroon. Het betreft een systemat keuken, welke we mooier vonden qua front als de pronorm.
Ook een stuk beter geholpen bij keukenloods tov B&K. Veel meer tips en adviezen. Totale prijs was 13.3K. (Wat niet op de offerte staat is de klok die m'n vrouw uit de showroom heeft mee onderhandeld
)
Verder ervoor gekozen om de lemans kast weg te doen, en 1 van de kasten naast de koelkast uit te voeren als apothekerskast.
:strip_exif()/f/image/s352S7mjkMaWmMXrvmS0GDsD.jpg?f=fotoalbum_large)
:strip_exif()/f/image/MSS5yudKvN2VSnrO1SJx7fhV.jpg?f=fotoalbum_large)
Ook een stuk beter geholpen bij keukenloods tov B&K. Veel meer tips en adviezen. Totale prijs was 13.3K. (Wat niet op de offerte staat is de klok die m'n vrouw uit de showroom heeft mee onderhandeld
Verder ervoor gekozen om de lemans kast weg te doen, en 1 van de kasten naast de koelkast uit te voeren als apothekerskast.
:strip_exif()/f/image/s352S7mjkMaWmMXrvmS0GDsD.jpg?f=fotoalbum_large)
:strip_exif()/f/image/MSS5yudKvN2VSnrO1SJx7fhV.jpg?f=fotoalbum_large)
C2D E6600 - 2048MB Kingston - Sapphire HD2900XT - 200Gb Samsung - Asus P5B-E
Gratis tip: als je een lamp boven het kookeiland hebt bedacht. Plaats deze dan voor het opleveren van de keuken. Nu een steiger over het eiland heen gebouw me omdat ik niet op het werkblad durf te staan…
Ah dat is wel een goed punt zeg, wij willen ook nog spotjes in het plafond maken, maar dat kan pas nadat de keuken af is. En we hebben een vrij dun composiet blad, ik betwijfel of je daarop kunt staan zonder er doorheen te zakken.SquareOne schreef op zaterdag 28 mei 2022 @ 23:57:
Gratis tip: als je een lamp boven het kookeiland hebt bedacht. Plaats deze dan voor het opleveren van de keuken. Nu een steiger over het eiland heen gebouw me omdat ik niet op het werkblad durf te staan…
C2D E6600 - 2048MB Kingston - Sapphire HD2900XT - 200Gb Samsung - Asus P5B-E
Ff een doek met een plank erop, geen probleem.
Nou dat zou ik toch wel spannend vinden, ik bedenk tzt wel hoe ik het ga doenmitsumark schreef op zondag 29 mei 2022 @ 00:02:
Ff een doek met een plank erop, geen probleem.
C2D E6600 - 2048MB Kingston - Sapphire HD2900XT - 200Gb Samsung - Asus P5B-E
Waarom is dat spannend?Erkel schreef op zondag 29 mei 2022 @ 00:06:
[...]
Nou dat zou ik toch wel spannend vinden, ik bedenk tzt wel hoe ik het ga doen
Anders zo'n vouwladder, is voor meerdere dingen handig.
Wel 1 met 4x4 treden, 4x3 kom je hoogte tekort.
Bv: https://aldorr.nl/product...met-platform-aldorr-home/
Daar zit je probleem, niet in je werkblad. Ik heb al op glazen werkbladen gestaan van 2cm dik. Geen centje pijn.SquareOne schreef op zaterdag 28 mei 2022 @ 23:57:
Gratis tip: als je een lamp boven het kookeiland hebt bedacht. Plaats deze dan voor het opleveren van de keuken. Nu een steiger over het eiland heen gebouw me omdat ik niet op het werkblad durf te staan…
Groot genoeg voor 2 hoofdletters
Maar is 12mm keramiek niet zwakker dan 20mmm glas?PaT schreef op zondag 29 mei 2022 @ 07:10:
[...]
Daar zit je probleem, niet in je werkblad. Ik heb al op glazen werkbladen gestaan van 2cm dik. Geen centje pijn.
Het is gebeurd!
Wij zijn naar de grote nemesis van dit forum geweest, Mandemakers;)
Prijs wachten we nog op, maar behoudens een ontzettend dominante verkoper, best nog wel wat tips en trucs gekregen.
Ons idee is nu als volgt:
/f/image/LRpheJXyX2rFutsExjZygfYs.png?f=fotoalbum_large)
:fill(white):strip_exif()/f/image/kY3zLFLMPzoSp14Tbf9nFRy3.png?f=user_large)
Waarbij de keukenkasten onder het kookeiland en de terugvallende keukenkasten in de kastenwand walnoot zijn en de overige kasten grijzig (mist heet het geloof ik
)
Blad zijn we nog niet helemaal over uit, of Abu Dhabi White (gejat hire van het forum) of Dekton Laurant.
Bora Pure kookplaat en Quooker Combi, verder:
AEG - Oven, stoomoven, vaatwasser, koelkast en vriezer 140 hoog
meubels wrs Barletti, dus van Mandemakers zelf; iemand ervaringen mee?
Mijn zorg is nog wel, hebben we genoeg werkruimte over tussen kookplaat en spoelbak? Het oogt mij wat krap. Ik ben bereid het barretje aan de kopse kant te laten vervallen, maar dat was volgens de verkoper een absolute must
Hier nog de plattegrond:
:fill(white):strip_exif()/f/image/hBFcFEtAiTxNuD9BA7GIzVV2.png?f=user_large)
Alle tips en opmerkingen zijn welkom en worden zeer gewaardeerd!
Wij zijn naar de grote nemesis van dit forum geweest, Mandemakers;)
Prijs wachten we nog op, maar behoudens een ontzettend dominante verkoper, best nog wel wat tips en trucs gekregen.
Ons idee is nu als volgt:
/f/image/LRpheJXyX2rFutsExjZygfYs.png?f=fotoalbum_large)
:fill(white):strip_exif()/f/image/kY3zLFLMPzoSp14Tbf9nFRy3.png?f=user_large)
Waarbij de keukenkasten onder het kookeiland en de terugvallende keukenkasten in de kastenwand walnoot zijn en de overige kasten grijzig (mist heet het geloof ik
Blad zijn we nog niet helemaal over uit, of Abu Dhabi White (gejat hire van het forum) of Dekton Laurant.
Bora Pure kookplaat en Quooker Combi, verder:
AEG - Oven, stoomoven, vaatwasser, koelkast en vriezer 140 hoog
meubels wrs Barletti, dus van Mandemakers zelf; iemand ervaringen mee?
Mijn zorg is nog wel, hebben we genoeg werkruimte over tussen kookplaat en spoelbak? Het oogt mij wat krap. Ik ben bereid het barretje aan de kopse kant te laten vervallen, maar dat was volgens de verkoper een absolute must
Hier nog de plattegrond:
:fill(white):strip_exif()/f/image/hBFcFEtAiTxNuD9BA7GIzVV2.png?f=user_large)
Alle tips en opmerkingen zijn welkom en worden zeer gewaardeerd!
[ Voor 3% gewijzigd door Jurge87 op 29-05-2022 10:18 . Reden: tekstuele aanpassing ]
Meerdere malen is hier positief gesproken over protech 2.0 lades van Pronorm. Er staat Hettich op de lades, dus ik verwacht dat het lades uit de "Avantech you" serie komen.
De website van Avantech you meldt vooral de design voordelen en niets over duurzaamheid, soepelheid en geluid e.d.
Deze laatste factoren zijn voor mij belangrijk.
Een prijsverhoging van 400 euro voor 12 lades waard? (3*2*90cm lades +3*2*60cm lades)
Dank
De website van Avantech you meldt vooral de design voordelen en niets over duurzaamheid, soepelheid en geluid e.d.
Deze laatste factoren zijn voor mij belangrijk.
Een prijsverhoging van 400 euro voor 12 lades waard? (3*2*90cm lades +3*2*60cm lades)
Dank
[ Voor 4% gewijzigd door Pseudoc op 29-05-2022 10:32 ]
Is er een oplossing voor Hacker Systemat die werkblad / verlichting in de greeplijst aanbied? Hacker zelf heeft het volgens mij niet zoiets in het assortiment zitten.
C2D E6600 - 2048MB Kingston - Sapphire HD2900XT - 200Gb Samsung - Asus P5B-E
Goedenavond allemaal,
Ik heb bij Clear Kitchen Rotterdam een ontwerp laten maken en een offerte ontvangen voor een Nolte keuken. Nu wil een een heel specifiek keukenblad van kwartsiet bij een ander bedrijf bestellen, maar daar werd nogal moeilijk over gedaan. Uiteindelijk willen ze wel leveren, maar overal waar het blad komt willen ze de apparatuur niet plaatsen ivm garantie. De Bora en Quooker worden sowieso door het andere bedrijf geplaatst,
maar de vaatwasser en wijnklimaatkast willen ze dus ook niet inbouwen. Wel rekenen ze €2000 montage kosten. Ik weet niet zo goed wat ik hiermee moet. Heeft iemand hier ervaring mee?
Ik heb bij Clear Kitchen Rotterdam een ontwerp laten maken en een offerte ontvangen voor een Nolte keuken. Nu wil een een heel specifiek keukenblad van kwartsiet bij een ander bedrijf bestellen, maar daar werd nogal moeilijk over gedaan. Uiteindelijk willen ze wel leveren, maar overal waar het blad komt willen ze de apparatuur niet plaatsen ivm garantie. De Bora en Quooker worden sowieso door het andere bedrijf geplaatst,
maar de vaatwasser en wijnklimaatkast willen ze dus ook niet inbouwen. Wel rekenen ze €2000 montage kosten. Ik weet niet zo goed wat ik hiermee moet. Heeft iemand hier ervaring mee?
[ Voor 23% gewijzigd door Ariana2022 op 30-05-2022 01:27 ]
Zorg voor een tweede offerte, en geef ze dan de keuze.Ariana2022 schreef op maandag 30 mei 2022 @ 01:25:
Goedenavond allemaal,
Ik heb bij Clear Kitchen Rotterdam een ontwerp laten maken en een offerte ontvangen voor een Nolte keuken. Nu wil een een heel specifiek keukenblad van kwartsiet bij een ander bedrijf bestellen, maar daar werd nogal moeilijk over gedaan. Uiteindelijk willen ze wel leveren, maar overal waar het blad komt willen ze de apparatuur niet plaatsen ivm garantie. De Bora en Quooker worden sowieso door het andere bedrijf geplaatst,
maar de vaatwasser en wijnklimaatkast willen ze dus ook niet inbouwen. Wel rekenen ze €2000 montage kosten. Ik weet niet zo goed wat ik hiermee moet. Heeft iemand hier ervaring mee?[Afbeelding]
Ofwel werken ze mee en hebben ze een keuken verkocht, ofwel ... ga je elders.
Sony A7 iv en wat recycled glas
Wat is de reden dat je bijna al je apparatuur elders koopt?Ariana2022 schreef op maandag 30 mei 2022 @ 01:25:
Goedenavond allemaal,
Ik heb bij Clear Kitchen Rotterdam een ontwerp laten maken en een offerte ontvangen voor een Nolte keuken. Nu wil een een heel specifiek keukenblad van kwartsiet bij een ander bedrijf bestellen, maar daar werd nogal moeilijk over gedaan. Uiteindelijk willen ze wel leveren, maar overal waar het blad komt willen ze de apparatuur niet plaatsen ivm garantie. De Bora en Quooker worden sowieso door het andere bedrijf geplaatst,
maar de vaatwasser en wijnklimaatkast willen ze dus ook niet inbouwen. Wel rekenen ze €2000 montage kosten. Ik weet niet zo goed wat ik hiermee moet. Heeft iemand hier ervaring mee?[Afbeelding]
dubbel
[ Voor 98% gewijzigd door Rzaan op 30-05-2022 09:42 ]
Ik heb geen antwoord op je vraag, maar zou je een tip willen geven over de indeling. Ik vind de balans een beetje zoek tussen kastenwand, eiland en spoelzone. Misschien vind je het een optie om de kasten zonder ovens rechts van de twee smalle ramen te plaatsen en de spoelzone tussen de twee kastenwanden in. Dan is je kastenwand minder massief, staat je eiland parallel aan de spoelzone en is die spoelzone minder weggestopt.Ariana2022 schreef op maandag 30 mei 2022 @ 01:25:
Ik heb bij Clear Kitchen Rotterdam een ontwerp laten maken en een offerte ontvangen voor een Nolte keuken. [Afbeelding]
Eventueel kun je ook een groter eiland overwgen, het komt nu wat iel over.
Een kookplaat en kraan is "bijna al de apparatuur"?Rzaan schreef op maandag 30 mei 2022 @ 09:19:
[...]
Wat is de reden dat je bijna al je apparatuur elders koopt?
Kans is dat dit gekocht wordt bij degene die het blad levert, zij doen gelijk de uitsparingen op maat maken.
Ook zou ik de wijnkast elders plaatsen. Lijkt nu wel beetje last minute maar ergens tussen gefrot te zijn op een , in mijn ogen, vrij onlogische plek bij het spoelgedeelte.Toke_gt schreef op maandag 30 mei 2022 @ 10:02:
[...]
Ik heb geen antwoord op je vraag, maar zou je een tip willen geven over de indeling. Ik vind de balans een beetje zoek tussen kastenwand, eiland en spoelzone. Misschien vind je het een optie om de kasten zonder ovens rechts van de twee smalle ramen te plaatsen en de spoelzone tussen de twee kastenwanden in. Dan is je kastenwand minder massief, staat je eiland parallel aan de spoelzone en is die spoelzone minder weggestopt.
Eventueel kun je ook een groter eiland overwgen, het komt nu wat iel over.
PSN: Flix20-NL
Ik las het zo dat de wijnkast en de vaatwasser ook van elders kwamen.Source90 schreef op maandag 30 mei 2022 @ 10:41:
[...]
Een kookplaat en kraan is "bijna al de apparatuur"?
Kans is dat dit gekocht wordt bij degene die het blad levert, zij doen gelijk de uitsparingen op maat maken.
Maar waarschijnlijk bedoelt hij dat de vaatwasser en de wijnkast wel van de keukenzaak komen, maar dat ze ze niet willen plaatsen omdat er andermans blad op komt.
Zoiets?
Vandaag komt eindelijk onze eigen koelkast. Een Siemens KI81RSDE0.
Tijdens de montage van de vriezer al zitten polsen hoe ingewikkeld het is om zo'n type deur zelf te plaatsen omdat we anders op hem moeten wachten* met het monteren van de koelkast deur.
In het vorige huis heb ik de keuken inclusief apparatuur zelf geplaatst.
Is dit ook een klusje wat je prima zelf kan doen?
:no_upscale():strip_icc():fill(white):strip_exif()/f/image/rqehfqVQkmf7z2tzMSSWjisS.jpg?f=user_large)
* Voor ons zijn er geen aanvullende kosten om hem langs te laten komen, er is voor hem dan ook, afgezien van de 4 uur reistijd, weinig voordeel alleen die deur te plaatsen
Tijdens de montage van de vriezer al zitten polsen hoe ingewikkeld het is om zo'n type deur zelf te plaatsen omdat we anders op hem moeten wachten* met het monteren van de koelkast deur.
In het vorige huis heb ik de keuken inclusief apparatuur zelf geplaatst.
Is dit ook een klusje wat je prima zelf kan doen?
:no_upscale():strip_icc():fill(white):strip_exif()/f/image/rqehfqVQkmf7z2tzMSSWjisS.jpg?f=user_large)
* Voor ons zijn er geen aanvullende kosten om hem langs te laten komen, er is voor hem dan ook, afgezien van de 4 uur reistijd, weinig voordeel alleen die deur te plaatsen
Donstil: Je moet kopen wat je wilt hebben. Niet wat je nodig hebt!
Zelf een vergelijkbare vriezer van bosch geplaatst in de bijkeuken van Ikea. Klein uurtje werk! Zitten gelukkig veel stel mogelijkheden bij. Wel goed de gebruiksaanwijzing volgen! Heb hem om te plaatsen helemaal leeg gemaakt en de deur gedemonteerd aangezien hij volledig +/- 40 a 50kilo is.Toppe schreef op dinsdag 31 mei 2022 @ 07:51:
Vandaag komt eindelijk onze eigen koelkast. Een Siemens KI81RSDE0.
Tijdens de montage van de vriezer al zitten polsen hoe ingewikkeld het is om zo'n type deur zelf te plaatsen omdat we anders op hem moeten wachten* met het monteren van de koelkast deur.
In het vorige huis heb ik de keuken inclusief apparatuur zelf geplaatst.
Is dit ook een klusje wat je prima zelf kan doen?
[Afbeelding]
* Voor ons zijn er geen aanvullende kosten om hem langs te laten komen, er is voor hem dan ook, afgezien van de 4 uur reistijd, weinig voordeel alleen die deur te plaatsen
Hij zit er in, inderdaad klein uurtje werk. Ze hebben ook de besteklade meegeleverd maar die blijkt de kuip van de vaatwasser krom te zijn. Gvd!Dizeerik schreef op dinsdag 31 mei 2022 @ 08:11:
[...]
Zelf een vergelijkbare vriezer van bosch geplaatst in de bijkeuken van Ikea. Klein uurtje werk! Zitten gelukkig veel stel mogelijkheden bij. Wel goed de gebruiksaanwijzing volgen! Heb hem om te plaatsen helemaal leeg gemaakt en de deur gedemonteerd aangezien hij volledig +/- 40 a 50kilo is.
Donstil: Je moet kopen wat je wilt hebben. Niet wat je nodig hebt!
In onze nieuwe keuken komt wellicht een Liebherr koelkast met wateraansluiting. Is er dan een aparte vaste wateraansluiting nodig? De spoelbak zit ca. 1,20m verderop (kast met lades en vw zitten er nog tussen in).
De keukenzaak denkt helaas (nog) niet echt mee.
De keukenzaak denkt helaas (nog) niet echt mee.
Even een vraagje met betrekking tot stopcontacten op een aparte groep in de keuken. Bij ons nieuwbouwhuis wordt het volgende geadviseerd:
Kookplaat: perilex
Quooker: aparte groep
Vaatwasser: aparte groep
Oven: aparte groep
Combi oven: aparte groep
Koelkast: aparte groep
Is dit echt nodig? Ze vragen 350 euro per aparte groep dus het tikt nogal aan. Kunnen vaatwasser en quoocker op 1 groep?
De andere kant van de keuken bestaat uit de 2 ovens en koelkast. Zijn daar echt 3 groepen voor nodig?
Kookplaat: perilex
Quooker: aparte groep
Vaatwasser: aparte groep
Oven: aparte groep
Combi oven: aparte groep
Koelkast: aparte groep
Is dit echt nodig? Ze vragen 350 euro per aparte groep dus het tikt nogal aan. Kunnen vaatwasser en quoocker op 1 groep?
De andere kant van de keuken bestaat uit de 2 ovens en koelkast. Zijn daar echt 3 groepen voor nodig?
Bij ons zit idd alles op een aparte groep. Dit was niet nieuwbouw, maar verbouw voor een nieuwe keuken.ColeJ schreef op dinsdag 31 mei 2022 @ 16:24:
Even een vraagje met betrekking tot stopcontacten op een aparte groep in de keuken. Bij ons nieuwbouwhuis wordt het volgende geadviseerd:
Kookplaat: perilex
Quooker: aparte groep
Vaatwasser: aparte groep
Oven: aparte groep
Combi oven: aparte groep
Koelkast: aparte groep
Is dit echt nodig? Ze vragen 350 euro per aparte groep dus het tikt nogal aan. Kunnen vaatwasser en quoocker op 1 groep?
De andere kant van de keuken bestaat uit de 2 ovens en koelkast. Zijn daar echt 3 groepen voor nodig?
hi Allemaal!
ik heb uren lopen lezen hier en al heel veel kennis opgedaan bedankt daarvoor! we zijn geintereseerd in een systemat (mede door de goede feedback) en dan de hoogte van de kasten 845mm gezien onze lengte (beide +1.80) dan een lakdeur 6000 serie.
devolgende apparatuur;
Vriezer Siemens GI81NSCE0
Koelkast Siemens KI81RSDE0
Inductiekookplaat AEG IKE9547SFB
Afzuigkap AEG DVE5971HB
Combioven Siemens HM836GNB6
Vaatwasser Siemens Iq300
Quooker Flex Round RVS Combi
en een 4mm composiet blad + 8mm plint (96.5 werkhoogte)
Aan de raamkant vaatwasser en kopse kant spoelen. ivm lastig vallende ruimte in het midden van 2 lade (90CM laden) koken en aan de andere kant grote koelkast en vriezer + Combi oven en een 120CM koffiecorner. de reden voor een dubbele opstelling omdat links nog een deur komt te zitten in het midden van de doorloop dus een U niet mogelijk is..
Graag feedback of dit een logische keuze is en of er iemand wat anders zou nemen of adviseren en evt of het een redelijke prijs is..
Prijs die we nu hebben gekregen inclusief installatie = 17.000 zonder apparatuur. de apparaten willen we los aankopen en komen nu op 7.500 ongeveer. Blad komt ongeveer op 4700 euro.
:strip_exif()/f/image/jQdsTbI9QYZNxhuHleUA07Fd.jpg?f=fotoalbum_large)
:strip_exif()/f/image/iBF4FFANNtvFI2Pa881gov6d.jpg?f=fotoalbum_large)
ik heb uren lopen lezen hier en al heel veel kennis opgedaan bedankt daarvoor! we zijn geintereseerd in een systemat (mede door de goede feedback) en dan de hoogte van de kasten 845mm gezien onze lengte (beide +1.80) dan een lakdeur 6000 serie.
devolgende apparatuur;
Vriezer Siemens GI81NSCE0
Koelkast Siemens KI81RSDE0
Inductiekookplaat AEG IKE9547SFB
Afzuigkap AEG DVE5971HB
Combioven Siemens HM836GNB6
Vaatwasser Siemens Iq300
Quooker Flex Round RVS Combi
en een 4mm composiet blad + 8mm plint (96.5 werkhoogte)
Aan de raamkant vaatwasser en kopse kant spoelen. ivm lastig vallende ruimte in het midden van 2 lade (90CM laden) koken en aan de andere kant grote koelkast en vriezer + Combi oven en een 120CM koffiecorner. de reden voor een dubbele opstelling omdat links nog een deur komt te zitten in het midden van de doorloop dus een U niet mogelijk is..
Graag feedback of dit een logische keuze is en of er iemand wat anders zou nemen of adviseren en evt of het een redelijke prijs is..
Prijs die we nu hebben gekregen inclusief installatie = 17.000 zonder apparatuur. de apparaten willen we los aankopen en komen nu op 7.500 ongeveer. Blad komt ongeveer op 4700 euro.
:strip_exif()/f/image/jQdsTbI9QYZNxhuHleUA07Fd.jpg?f=fotoalbum_large)
:strip_exif()/f/image/iBF4FFANNtvFI2Pa881gov6d.jpg?f=fotoalbum_large)
[ Voor 45% gewijzigd door Oetker op 31-05-2022 19:18 ]
Strikt genomen moet apparatuur met ik meen een aansluitwaarde van >2kw een eigen groep hebben. Maar Quooker biedt een speciaal verlengsnoer aan waarmee je deze kan combineren met bijvoorbeeld een vaatwasser. Dat kost dan zo’n 90 euro. De Quooker verwarmt dan niet als de vaatwasser loopt maar je kan deze verder wel gewoon gebruiken.
Mogelijk dat je daarnaast de koelkast-groep nog kan combineren met andere stopcontacten, even afhankelijk van dus de aansluitwaarde. Een koelkast is normaliter niet iets wat op een aparte groep moet.
Wij hebben recent ook onze keuken besteld en nu is het wachten totdat er geplaatst gaat worden (oktober 2022), erg veel zin in.
Alleen nu is er een vraag bij ons opgekomen hoe het zit met de mechanische ventilatie. Momenteel zitten er 2 ventielen in een koof die is aangelegd voor onze huidige keuken. In deze koof zitten o.a. spotjes, de 2 genoemde ventielen en er hangt een afzuigkap aan.
Voor de nieuwe keuken gaat deze koof weg. Nu hebben wij een L-vormige keuken maar dit gaat een wand + kookeiland worden. Voor de afzuigkap komt een inductie met afzuiging (Bosch) in de plaats.
Alleen nu is de vraag, waar laten we die ventielen van de mechanische ventilatie? Kunnen die een nieuwe plek krijgen in de kanaalplaten? Of kan je ze weglaten? (dit laatste lijkt me dan eigenlijk niet, omdat je dan helemaal geen ventiel meer in de woonkamer/keuken hebt...)
Aangezien wij totaal geen verstand hebben van die mechanische ventilatie, en ik eigenlijk ook niet begrijp waarom een keukenverkoper hier niet op attendeert of vragen over stelt, zij hebben hier neem ik aan vaker mee te maken...
Ik ben benieuwd of jullie ons van adviezen kunnen voorzien. De nieuwe keuken duurt gelukkig nog een tijdje zodat ik iemand in kan schakelen om e.e.a. te regelen mocht dit nodig zijn.
Alleen nu is er een vraag bij ons opgekomen hoe het zit met de mechanische ventilatie. Momenteel zitten er 2 ventielen in een koof die is aangelegd voor onze huidige keuken. In deze koof zitten o.a. spotjes, de 2 genoemde ventielen en er hangt een afzuigkap aan.
Voor de nieuwe keuken gaat deze koof weg. Nu hebben wij een L-vormige keuken maar dit gaat een wand + kookeiland worden. Voor de afzuigkap komt een inductie met afzuiging (Bosch) in de plaats.
Alleen nu is de vraag, waar laten we die ventielen van de mechanische ventilatie? Kunnen die een nieuwe plek krijgen in de kanaalplaten? Of kan je ze weglaten? (dit laatste lijkt me dan eigenlijk niet, omdat je dan helemaal geen ventiel meer in de woonkamer/keuken hebt...)
Aangezien wij totaal geen verstand hebben van die mechanische ventilatie, en ik eigenlijk ook niet begrijp waarom een keukenverkoper hier niet op attendeert of vragen over stelt, zij hebben hier neem ik aan vaker mee te maken...
Ik ben benieuwd of jullie ons van adviezen kunnen voorzien. De nieuwe keuken duurt gelukkig nog een tijdje zodat ik iemand in kan schakelen om e.e.a. te regelen mocht dit nodig zijn.
[ Voor 19% gewijzigd door martin484 op 31-05-2022 17:07 ]
Systeem : I7-12700K, 32GB, RTX 3080
Dan kan je vrij simpel een T-stuk plaatsen bij de wasbak en vandaar een aftakking maken.Safaci schreef op dinsdag 31 mei 2022 @ 09:59:
In onze nieuwe keuken komt wellicht een Liebherr koelkast met wateraansluiting. Is er dan een aparte vaste wateraansluiting nodig? De spoelbak zit ca. 1,20m verderop (kast met lades en vw zitten er nog tussen in).
De keukenzaak denkt helaas (nog) niet echt mee.
Er vanuit gaande dat:
- Die 120cm op dezelfde muur zit
- Die 120cm onafgebroken keukenblok is
- Die 120cm een plint heeft
Hoe handig ben je?ColeJ schreef op dinsdag 31 mei 2022 @ 16:24:
Even een vraagje met betrekking tot stopcontacten op een aparte groep in de keuken. Bij ons nieuwbouwhuis wordt het volgende geadviseerd:
Kookplaat: perilex
Quooker: aparte groep
Vaatwasser: aparte groep
Oven: aparte groep
Combi oven: aparte groep
Koelkast: aparte groep
Is dit echt nodig? Ze vragen 350 euro per aparte groep dus het tikt nogal aan. Kunnen vaatwasser en quoocker op 1 groep?
De andere kant van de keuken bestaat uit de 2 ovens en koelkast. Zijn daar echt 3 groepen voor nodig?
Je zou er ook voor kunnen kiezen om loze leidingen te doen voor:
- Oven
- Vaatwasser
- Combi
- Quooker
Meestal betaal je daar (ook grof geld) 90-110 euro voor per loze leiding.
Dan koop je:
- Goede trekveer (30~ euro van 20-30 meter)
- 3 dozen draad (geel/groen, blauw en bruin) van 100 meter (circa 20-30 per doos)¹
- 4x een groep van het merk van jouw groepenkast (circa 15-20 euro per stuk)
- 1x (verwacht ik) aardlekschakelaar van het merk van jouw groep (circa 50-70 euro)*
*Eventueel kan je er voor kiezen om de aardlekschakelaar door de bouw te laten plaatsen (zal iets van 200euro zijn), mocht je dit zelf geen zeker gevoel geven als je het zelf doet. Een groep bijplaatsen is echt peanuts.
¹ Hier heb je waarschijnlijk nog 60+ meter van over, voor andere loze leidingen.
Tel uit je winst.
--
Koelkast hoeft niet op een aparte groep. Of je moet bij voorbaat weten dat je reguliere keukengroep geregeld uit staat.
[ Voor 12% gewijzigd door Source90 op 31-05-2022 18:02 ]
Hoi,
Heb een vraag, heb hem ooit eerder gesteld maar geen antwoord gehad. Bij Ekelhof willen ze fikse aanbetalingen, voordat het geleverd wordt uiteindelijk 95%. Is dit normaal?
Heb een vraag, heb hem ooit eerder gesteld maar geen antwoord gehad. Bij Ekelhof willen ze fikse aanbetalingen, voordat het geleverd wordt uiteindelijk 95%. Is dit normaal?
Was bij Mobel Faber ook (al was het 90-10).insp.gadget schreef op dinsdag 31 mei 2022 @ 20:40:
Hoi,
Heb een vraag, heb hem ooit eerder gesteld maar geen antwoord gehad. Bij Ekelhof willen ze fikse aanbetalingen, voordat het geleverd wordt uiteindelijk 95%. Is dit normaal?
In Duitsland normaler dan hier, heb je al gevraagd naar andere percentages?
Bij mij was het trouwens betalen een dag voor levering. Ik hoefde niet bij tekenen al te betalen.
Ja. Ze zeggen het echt nodig te hebben, en voor 100 euro een bankgarantie te kunnen leveren. Het voelt eigenlijk niet zo goed en twijfel deze keuken niet door te laten gaan. Ik zelf ken Ekelhof niet zo goedSource90 schreef op dinsdag 31 mei 2022 @ 20:45:
[...]
Was bij Mobel Faber ook (al was het 90-10).
In Duitsland normaler dan hier, heb je al gevraagd naar andere percentages?
Bij mij was het trouwens betalen een dag voor levering. Ik hoefde niet bij tekenen al te betalen.
Tienduizenden euro's betalen bij tekenen "omdat ze het nodig hebben" lijkt mij ook niet zuiver/nodig. Dit terwijl Ekelhoff een enorm grote speler is aan de Nederlandse grens.insp.gadget schreef op dinsdag 31 mei 2022 @ 20:46:
[...]
Ja. Ze zeggen het echt nodig te hebben, en voor 100 euro een bankgarantie te kunnen leveren. Het voelt eigenlijk niet zo goed en twijfel deze keuken niet door te laten gaan. Ik zelf ken Ekelhof niet zo goed
Als dit net voor leveren is, lijkt het mij niet meer dan normaal.
Ja idd, echter, als het een grote speler is, dan vind ik het al minder erg mbt tot het niet nakomen van afspraken of failliet raken.. pff deze keuzes zijn zo lastigSource90 schreef op dinsdag 31 mei 2022 @ 21:04:
[...]
Tienduizenden euro's betalen bij tekenen "omdat ze het nodig hebben" lijkt mij ook niet zuiver/nodig. Dit terwijl Ekelhoff een enorm grote speler is aan de Nederlandse grens.
Als dit net voor leveren is, lijkt het mij niet meer dan normaal.
https://www.consuwijzer.n...iet%20akkoord%20te%20gaan.
Grijs gebied dus, afhankelijk van de verhouding tussen arbeid en materiaal in die aanbetaling.
Grijs gebied dus, afhankelijk van de verhouding tussen arbeid en materiaal in die aanbetaling.
Duitsers hebben niet zoveel te maken met Nederlands consumentenrecht..ShitHappens schreef op dinsdag 31 mei 2022 @ 21:20:
https://www.consuwijzer.n...iet%20akkoord%20te%20gaan.
Grijs gebied dus, afhankelijk van de verhouding tussen arbeid en materiaal in die aanbetaling.
Maar; is het nou bij tekenen; begrijp ik dat goed?insp.gadget schreef op dinsdag 31 mei 2022 @ 21:06:
[...]
Ja idd, echter, als het een grote speler is, dan vind ik het al minder erg mbt tot het niet nakomen van afspraken of failliet raken.. pff deze keuzes zijn zo lastig
Of 95% voor leveren betalen?
Nogal een verschil of je nu 95% moet betalen (bij handtekening) of 95% moet betalen over anderhalf jaar, dag voor leveren van je keuken.
Ja sorry klonkt iets dramatischer dan het is. dit staat in de offerte:Source90 schreef op dinsdag 31 mei 2022 @ 21:39:
[...]
Maar; is het nou bij tekenen; begrijp ik dat goed?
Of 95% voor leveren betalen?
Nogal een verschil of je nu 95% moet betalen (bij handtekening) of 95% moet betalen over anderhalf jaar, dag voor leveren van je keuken.
Zahlungsvereinbarungen:
Anzahlung 5850,00 € 30% aanbetaling
Restzahlung 13650,00 € 65% voor levering, 5% bij montage.
maar toch bijna alles betaald voordat de keuken staat
[ Voor 4% gewijzigd door insp.gadget op 31-05-2022 21:57 ]
edit: dubbel
[ Voor 93% gewijzigd door insp.gadget op 31-05-2022 21:56 ]
Ik zou de vraag bij ze neerleggen dat je 95% wilt betalen voor leveren en 5% na montage.insp.gadget schreef op dinsdag 31 mei 2022 @ 21:52:
[...]
Ja sorry klonkt iets dramatischer dan het is. dit staat in de offerte:
Zahlungsvereinbarungen:
Anzahlung 5850,00 € 30% aanbetaling
Restzahlung 13650,00 € 65% voor levering, 5% bij montage
Of 10% (1950) als aanbetaling, 80% voor leveren en 10% na montage.
Naar eigen gelang. Maar al bijna 6k neerleggen voor iets wat je waarschijnlijk niet volgende maand binnen hebt, is wel hoog in mijn ogen. Wanneer is de leverdatum?
Bij montage vind ik ook raar. Als je apparatuur niet geleverd krijgt heb je geen enkel pressiemiddel meer (want; al het geld is al binnen).
Ik heb hier nog circa 3000 achter de hand voor een enkele plint die mist en een tweede rondje kit. Hoor al een tijdje niets, maar wat mij betreft een prima deal. Hoor het wel wanneer ze die 3k willen ontvangen
Zou wat anders zijn als je een halve keuken mist qua apparatuur en je niets meer achter de hand hebt.
[ Voor 8% gewijzigd door Source90 op 31-05-2022 22:01 ]
Bedankt voor het advies. wordt ergens november.Source90 schreef op dinsdag 31 mei 2022 @ 22:00:
[...]
Ik zou de vraag bij ze neerleggen dat je 95% wilt betalen voor leveren en 5% na montage.
Of 10% (1950) als aanbetaling, 80% voor leveren en 10% na montage.
Naar eigen gelang. Maar al bijna 6k neerleggen voor iets wat je waarschijnlijk niet volgende maand binnen hebt, is wel hoog in mijn ogen. Wanneer is de leverdatum?
Bij montage vind ik ook raar. Als je apparatuur niet geleverd krijgt heb je geen enkel pressiemiddel meer (want; al het geld is al binnen).
Ik heb hier nog circa 3000 achter de hand voor een enkele plint die mist en een tweede rondje kit. Hoor al een tijdje niets, maar wat mij betreft een prima deal. Hoor het wel wanneer ze die 3k willen ontvangen![]()
Zou wat anders zijn als je een halve keuken mist qua apparatuur en je niets meer achter de hand hebt.
Ik zal het inderdaad voorstellen want de laatste 5 tijdens montage vind ik een dealbreaker
Foei, het nederlandse consumentenrecht is gewoon de implementatie van het EU recht. Dat is een Duitsland niet wezenlijk anders.Source90 schreef op dinsdag 31 mei 2022 @ 21:38:
[...]
Duitsers hebben niet zoveel te maken met Nederlands consumentenrecht..
95% aanbetalen - die 65% zijn immers ook voor de feitelijke prestatie - hoef je dus niet te accepteren. Persoonlijk zou ik dat niet doen.
Mijn huis is slimmer dan ik...
Wij hebben zelf momenteel een koelkast met een water aansluiting, die zit op dezelfde leiding als kraan bij de wasbak. Ik heb er zelf wel een kraantje tussen gezet zodat je de koelkast ook kan afsluiten van het water.Safaci schreef op dinsdag 31 mei 2022 @ 09:59:
In onze nieuwe keuken komt wellicht een Liebherr koelkast met wateraansluiting. Is er dan een aparte vaste wateraansluiting nodig? De spoelbak zit ca. 1,20m verderop (kast met lades en vw zitten er nog tussen in).
De keukenzaak denkt helaas (nog) niet echt mee.
C2D E6600 - 2048MB Kingston - Sapphire HD2900XT - 200Gb Samsung - Asus P5B-E
Heb ook een Liebherr met wateraansluiting besteld en heb dat ook opgelost met een T-stuk op een waterleiding die in de buurt van de koelkast uit komt. Dat er nog een kast met lades tussen zit moet geen probleem zijn, als je de leiding er niet achter door krijgt (in de muur wegwerken) dan via de ruimte tussen de vloer en de onderkant van de kastjes.Safaci schreef op dinsdag 31 mei 2022 @ 09:59:
In onze nieuwe keuken komt wellicht een Liebherr koelkast met wateraansluiting. Is er dan een aparte vaste wateraansluiting nodig? De spoelbak zit ca. 1,20m verderop (kast met lades en vw zitten er nog tussen in).
De keukenzaak denkt helaas (nog) niet echt mee.
Mijn vriendin en ik zijn zelf ook verliefd geworden op die houten kastjes van Kvik, maar wij vonden ze uiteindelijk toch te duur. We zijn uiteindelijk geland op mooie fineerkasten van Keller ("huismerk" bij de lokale keukenboer), die waren toch wat goedkoper en nog steeds extreem prachtig.Jurge87 schreef op vrijdag 20 mei 2022 @ 20:03:
Hallo allen,
Wij zijn ook weer een stapje verder in het ontwerp
Hier een render:
[Afbeelding]
Dus 4 hoge kasten en 3 lage kasten met bovenkasten vormen de kastenwand en het kookeiland is 300cm bij 120cm.
Alle apparatuur nu van AEG, incl kookplaat met afzuiging. de 2 achterste kasten zijn koelkast en vriezer, vaatwasser onder de nis schuin onder de gootsteen. Ten slot nog een quooker.
De render vertekend wat, maar we combineren donker eiken/walnoot keukenfrontjes en kemie abu dhabi white blad.
Kosten: een offerte 27k en de keuken zoals op de render 34!:o
Wat vinden jullie van het ontwerp en de kosten?
Wij gaan het ook niet doorzetten, hoor! Uiteindelijk ben je rond de 750,- kwijt voor een simpele kast met deur van 60cm breed en dan moet je ook nog eens montagekosten betalen zodat zij de kast inelkaar zetten. Daarboven komt de daadwerkelijke montage van de keuken, uiteindelijk dus bijna 1000,- per kastamboly schreef op donderdag 2 juni 2022 @ 16:11:
[...]
Mijn vriendin en ik zijn zelf ook verliefd geworden op die houten kastjes van Kvik, maar wij vonden ze uiteindelijk toch te duur. We zijn uiteindelijk geland op mooie fineerkasten van Keller ("huismerk" bij de lokale keukenboer), die waren toch wat goedkoper en nog steeds extreem prachtig.
Even een vraagje:
Onze keuken zou in de eerste week van juli gemonteerd worden (in onze huidige woning). We hebben daar dus alle werkzaamheden netjes voor gepland om niet al te lang zonder keuken te zitten (3 weken).
We hebben de laatste weken meerdere keren gevraagd om een definitieve installatiedatum en er werd steeds gezegd dat dit nog niet bekend is maar wel dat dit een week na levering van de keuken zou zijn (en die stond nog steeds op de laatste week van juni).
Nu krijgen we ineens bericht dat de keuken pas 20 juli gemonteerd kan worden, omdat de keuken toch later geleverd wordt ivm coronaperikelen (kan dit argument nog??)....
Ik vermoed dat dit een smoes is en dat er gewoon geen monteurs beschikbaar zijn, maar goed dat kan ik niet hard maken.
Moet ik dit zomaar accepteren of kan ik om een korting vragen oid? We moeten toch weer 2 weken langer kant en klaar voedsel eten....
Onze keuken zou in de eerste week van juli gemonteerd worden (in onze huidige woning). We hebben daar dus alle werkzaamheden netjes voor gepland om niet al te lang zonder keuken te zitten (3 weken).
We hebben de laatste weken meerdere keren gevraagd om een definitieve installatiedatum en er werd steeds gezegd dat dit nog niet bekend is maar wel dat dit een week na levering van de keuken zou zijn (en die stond nog steeds op de laatste week van juni).
Nu krijgen we ineens bericht dat de keuken pas 20 juli gemonteerd kan worden, omdat de keuken toch later geleverd wordt ivm coronaperikelen (kan dit argument nog??)....
Ik vermoed dat dit een smoes is en dat er gewoon geen monteurs beschikbaar zijn, maar goed dat kan ik niet hard maken.
Moet ik dit zomaar accepteren of kan ik om een korting vragen oid? We moeten toch weer 2 weken langer kant en klaar voedsel eten....
Heb je een boetebeding in je contract?BeeJee78 schreef op vrijdag 3 juni 2022 @ 13:43:
Even een vraagje:
Onze keuken zou in de eerste week van juli gemonteerd worden (in onze huidige woning). We hebben daar dus alle werkzaamheden netjes voor gepland om niet al te lang zonder keuken te zitten (3 weken).
We hebben de laatste weken meerdere keren gevraagd om een definitieve installatiedatum en er werd steeds gezegd dat dit nog niet bekend is maar wel dat dit een week na levering van de keuken zou zijn (en die stond nog steeds op de laatste week van juni).
Nu krijgen we ineens bericht dat de keuken pas 20 juli gemonteerd kan worden, omdat de keuken toch later geleverd wordt ivm coronaperikelen (kan dit argument nog??)....
Ik vermoed dat dit een smoes is en dat er gewoon geen monteurs beschikbaar zijn, maar goed dat kan ik niet hard maken.
Moet ik dit zomaar accepteren of kan ik om een korting vragen oid? We moeten toch weer 2 weken langer kant en klaar voedsel eten....
Sony A7 iv en wat recycled glas
Voor de bora kenners/gebruikers: hebben jullie de afzuiging ook op 15cm buizen? of braaf alles via ecutube?
ik kan alleen afzuiging naar buiten krijgen als het via 15cm buizen kan.
Trouwens, trillen de buizen erg?, want het komt mogelijk op 1 plekje tegen gipsplaat aan. ook staat het kookeiland op een houtenvloer die iets trilt/beweegt wanneer er iemand langs loopt. zal dit problemen/lekage opleveren op het punt waar de afvoer vast op de muur zit?
ik kan alleen afzuiging naar buiten krijgen als het via 15cm buizen kan.
Trouwens, trillen de buizen erg?, want het komt mogelijk op 1 plekje tegen gipsplaat aan. ook staat het kookeiland op een houtenvloer die iets trilt/beweegt wanneer er iemand langs loopt. zal dit problemen/lekage opleveren op het punt waar de afvoer vast op de muur zit?
[ Voor 70% gewijzigd door insp.gadget op 03-06-2022 16:06 ]
Ik heb braaf ecotubes. En ook het muurrooster van Bora.insp.gadget schreef op vrijdag 3 juni 2022 @ 14:58:
Voor de bora kenners/gebruikers: hebben jullie de afzuiging ook op 15cm buizen? of braaf alles via ecutube?
Viel het jullie ook op dat inbouwkoelkasten (koelvriescombi's) eigenlijk zo weinig ruimte hebben? Ik heb mijne nooit in het echt gezien (alleen op papier uitgekozen) maar er staat bij dat de inhoud 194 liter is. De grootste die beschikbaar is 207 liter, maar heb even bij andere mensen thuis gechecked en die hebben 240 liter en 250+ liter, maar dat zijn dan losse koelkasten, dus geen ingebouwde. bij inbouw lijkt de keuze beperkt tot kleinere stuks.
Vond het wel apart, want je kan bijvoorbeeld niet eens een pak melk of een flesje bier rechtop zetten in de koelkast (alleen in de deur) of je moet een extra lade verwijderen wat je ook weer ruimte kost.
edit: dit is van ATAG overigens. Weet niet hoe het bij andere merken is.
Vond het wel apart, want je kan bijvoorbeeld niet eens een pak melk of een flesje bier rechtop zetten in de koelkast (alleen in de deur) of je moet een extra lade verwijderen wat je ook weer ruimte kost.
edit: dit is van ATAG overigens. Weet niet hoe het bij andere merken is.
[ Voor 9% gewijzigd door Il 2 op 03-06-2022 17:59 ]
Vandaag is eindelijk ons composieten blad geplaatst, maar hoe wordt dat normaal gesproken gekit?
De monteur heeft alles met transparante sanitair kit gedaan (persoonlijk vind ik het niet zo mooi gedaan) en de naden tusen twee blad delen zijn echt nog voelbaar. Hoort dit niet egaal glad te lopen met het blad?
:strip_exif()/f/image/CvSpU3xNT2aq0EmerIUnQuFj.jpg?f=fotoalbum_large)
:strip_exif()/f/image/BHuEwxkhbxzOvGkMCm2IQMXH.jpg?f=fotoalbum_large)
De monteur heeft alles met transparante sanitair kit gedaan (persoonlijk vind ik het niet zo mooi gedaan) en de naden tusen twee blad delen zijn echt nog voelbaar. Hoort dit niet egaal glad te lopen met het blad?
:strip_exif()/f/image/CvSpU3xNT2aq0EmerIUnQuFj.jpg?f=fotoalbum_large)
:strip_exif()/f/image/BHuEwxkhbxzOvGkMCm2IQMXH.jpg?f=fotoalbum_large)
Het recht op zetten van bierflesjes kan meestal wel de planken zijn verstelbaar. De ruimte is inderdaad beperkt van een combinatie daarom zelf gekozen voor een losse koelkast en een losse vriezer. Weet niet hoe groot je gezin is maar 2x158 of 2x178 is een stuk fijner en niet eens heel duur.Il 2 schreef op vrijdag 3 juni 2022 @ 17:55:
Viel het jullie ook op dat inbouwkoelkasten (koelvriescombi's) eigenlijk zo weinig ruimte hebben? Ik heb mijne nooit in het echt gezien (alleen op papier uitgekozen) maar er staat bij dat de inhoud 194 liter is. De grootste die beschikbaar is 207 liter, maar heb even bij andere mensen thuis gechecked en die hebben 240 liter en 250+ liter, maar dat zijn dan losse koelkasten, dus geen ingebouwde. bij inbouw lijkt de keuze beperkt tot kleinere stuks.
Vond het wel apart, want je kan bijvoorbeeld niet eens een pak melk of een flesje bier rechtop zetten in de koelkast (alleen in de deur) of je moet een extra lade verwijderen wat je ook weer ruimte kost.
edit: dit is van ATAG overigens. Weet niet hoe het bij andere merken is.
@BeeJee78 Nog steeds is er overal waar materiaal voor nodig is flinke uitloop mogelijk.
Ook veel bedrijven kampen met personeel te kort.
Dus ja dat is helaas nog steeds mogelijk.
Ook veel bedrijven kampen met personeel te kort.
Dus ja dat is helaas nog steeds mogelijk.
Ik denk dat het geen smoes is, maar bikkelharde realiteit. Keukenleveranciers hebben te maken met enorme vertraging op apparatuur, vertraging die het gevolg is van nasleep corona en daarnaast is er in allerlei sectoren een krapte op de arbeidsmarkt.BeeJee78 schreef op vrijdag 3 juni 2022 @ 13:43:
Nu krijgen we ineens bericht dat de keuken pas 20 juli gemonteerd kan worden, omdat de keuken toch later geleverd wordt ivm coronaperikelen (kan dit argument nog??)....
Ik vermoed dat dit een smoes is en dat er gewoon geen monteurs beschikbaar zijn, maar goed dat kan ik niet hard maken.
Moet ik dit zomaar accepteren of kan ik om een korting vragen oid? We moeten toch weer 2 weken langer kant en klaar voedsel eten....
Je hebt ook weinig te protesteren, tenzij er inderdaad iets in het contract staat. Maar ik vermoed dat daar staat dat het onder voorbehoud van vanallesennogwat is.
Dus ja, dat wordt een paar weken langer kamperen in de achtertuin, met bbq en lekkere salades. Afwassen in de badkamer of bij de tuinslang. Of je huurt een mobiele keuken voor een paar weken.
Bedenk maar dat er ook mensen zijn die drie, vier maanden op koelkast-oven-afwasmachine moeten wachten.
(En dat er mensen zijn die grof geld betalen om ditzelfde te doen, maar dan op een paar vierkante meters gehuurd droog gras op een overvolle camping in Spanje of Frankrijk).
[ Voor 6% gewijzigd door Toke_gt op 04-06-2022 09:52 ]
Zo'n naad krijg je volgens mij nooit weggewerkt.DrNizeGuy schreef op vrijdag 3 juni 2022 @ 20:46:
Vandaag is eindelijk ons composieten blad geplaatst, maar hoe wordt dat normaal gesproken gekit?
De monteur heeft alles met transparante sanitair kit gedaan (persoonlijk vind ik het niet zo mooi gedaan) en de naden tusen twee blad delen zijn echt nog voelbaar. Hoort dit niet egaal glad te lopen met het blad?
Ik heb al veel keukens gezien met een naad, en nog nooit ergens dat het nauwelijks zichtbaar was.
Afkitten kun je wellicht beter door een afkitbedrijf laten doen.
Klinkt misschien een beetje overdreven.
Is wel weer extra werk en kosten, maar ik heb ooit bij mij een badkamer laten doen, en zag er fantastisch uit en bleef jaren en jaren goed.
Effe een kitter laten komen. Die kit zo over die transparante kit heen, lijkt mij mooier. Hoe die bladen mooi aangesloten kunnen worden weet ik niet. Als je een kit kunt vinden die vrijwel dezelfde kleur heeft als je blad kun je de gleuf misschien wat verstoppen. Maar je zult dan altijd voelen dat er een verhoging zit.DrNizeGuy schreef op vrijdag 3 juni 2022 @ 20:46:
Vandaag is eindelijk ons composieten blad geplaatst, maar hoe wordt dat normaal gesproken gekit?
De monteur heeft alles met transparante sanitair kit gedaan (persoonlijk vind ik het niet zo mooi gedaan) en de naden tusen twee blad delen zijn echt nog voelbaar. Hoort dit niet egaal glad te lopen met het blad?
[Afbeelding]
[Afbeelding]
[Afbeelding]
Het kan aan de foto liggen, maar het lijkt net alsof de verticale rand van het blad ook nog in een facet is geslepen in plaats van recht. Dat helpt denk ik ook niet mee met het strak laten aansluiten van de bladen. Heb in mijn vorige keuken ook 2 bladen gehad die op elkaar moesten aansluiten, maar daar zat amper een voelbare naad in.DrNizeGuy schreef op vrijdag 3 juni 2022 @ 20:46:
Vandaag is eindelijk ons composieten blad geplaatst, maar hoe wordt dat normaal gesproken gekit?
De monteur heeft alles met transparante sanitair kit gedaan (persoonlijk vind ik het niet zo mooi gedaan) en de naden tusen twee blad delen zijn echt nog voelbaar. Hoort dit niet egaal glad te lopen met het blad?
[Afbeelding]
[Afbeelding]
[Afbeelding]
Dat meende ik ook te zien, ook bij de horizontale rand links. Volgens mij zijn de bladen niet strak genoeg tegen elkaar aan geplaatst, maar met kit ertussen. Dan krijg je een brede rand kit. Ik zou het idd opnieuw laten kitten.Rostares schreef op zaterdag 4 juni 2022 @ 12:40:
[...]
Het kan aan de foto liggen, maar het lijkt net alsof de verticale rand van het blad ook nog in een facet is geslepen in plaats van recht. Dat helpt denk ik ook niet mee met het strak laten aansluiten van de bladen. Heb in mijn vorige keuken ook 2 bladen gehad die op elkaar moesten aansluiten, maar daar zat amper een voelbare naad in.
Goedemiddag
Wij zijn gestart aan een nieuwbouwproject.
En hebben onze keuken uitgetekend in de ruimte. We komen tot volgende opstelling (suggesties zijn welkom):
Overzicht foto (het eiland is zoals op de renders te zien in het echt eigenlijk een eiland met lage tafel):
:strip_exif()/f/image/qWX3jRW1MAwVMzy0UgOMuA4a.jpg?f=fotoalbum_large)
:strip_exif()/f/image/K69t9mfcmM47OLdFYp3gt1vp.jpg?f=fotoalbum_large)
:strip_exif()/f/image/YBYFiyKbvqjMsH2D6hkYEDYr.jpg?f=fotoalbum_large)
:strip_exif()/f/image/flxtwUHC3u5SMKsk44dK4G7M.jpg?f=fotoalbum_large)
:strip_exif()/f/image/NvWH2tWOpECiDKnYpEqaThHq.jpg?f=fotoalbum_large)
We wensen vooral voldoende opbergruimte. En een plaats om met ons gezin snel iets te eten en niet steeds de grote eettafel te gebruiken.
Als apparatuur denken we aan een bora kookplaat, siemens stoomoven,micro en warmhoudla, quoocker messing inclusief bruiswater, miele vaatwas.
Er wordt een grote koelkast en diepvries ingebouwd (178cm). Als werkblad denken we aan dekton laurent. Kastjes waarschijnlijk laminaat eiken houtlook.
We zijn nog naar geen keukenzaak geweest. De aannemer werkt samen met raab karcher en pelma keukens. Iemand ervaring met deze zaken en hun keukenlijnen?
Wat is een goede richtprijs voor deze keuken?
Op de foto is te zien dat de kasten tot het plafond zijn afgewerkt (265cm)...is dit effectief ook mogelijk bij de meeste keukenzaken? Een ombouwnis is waarschijnlijk niet mogelijk daar we aan het uiteinde langs de hoge kasten maar 5cm extra hebben om de ombouw te plaatsen. Als iemand hiervoor een oplossing weet hoor ik het graag.
Alvast bedankt
Wij zijn gestart aan een nieuwbouwproject.
En hebben onze keuken uitgetekend in de ruimte. We komen tot volgende opstelling (suggesties zijn welkom):
Overzicht foto (het eiland is zoals op de renders te zien in het echt eigenlijk een eiland met lage tafel):
:strip_exif()/f/image/qWX3jRW1MAwVMzy0UgOMuA4a.jpg?f=fotoalbum_large)
:strip_exif()/f/image/K69t9mfcmM47OLdFYp3gt1vp.jpg?f=fotoalbum_large)
:strip_exif()/f/image/YBYFiyKbvqjMsH2D6hkYEDYr.jpg?f=fotoalbum_large)
:strip_exif()/f/image/flxtwUHC3u5SMKsk44dK4G7M.jpg?f=fotoalbum_large)
:strip_exif()/f/image/NvWH2tWOpECiDKnYpEqaThHq.jpg?f=fotoalbum_large)
We wensen vooral voldoende opbergruimte. En een plaats om met ons gezin snel iets te eten en niet steeds de grote eettafel te gebruiken.
Als apparatuur denken we aan een bora kookplaat, siemens stoomoven,micro en warmhoudla, quoocker messing inclusief bruiswater, miele vaatwas.
Er wordt een grote koelkast en diepvries ingebouwd (178cm). Als werkblad denken we aan dekton laurent. Kastjes waarschijnlijk laminaat eiken houtlook.
We zijn nog naar geen keukenzaak geweest. De aannemer werkt samen met raab karcher en pelma keukens. Iemand ervaring met deze zaken en hun keukenlijnen?
Wat is een goede richtprijs voor deze keuken?
Op de foto is te zien dat de kasten tot het plafond zijn afgewerkt (265cm)...is dit effectief ook mogelijk bij de meeste keukenzaken? Een ombouwnis is waarschijnlijk niet mogelijk daar we aan het uiteinde langs de hoge kasten maar 5cm extra hebben om de ombouw te plaatsen. Als iemand hiervoor een oplossing weet hoor ik het graag.
Alvast bedankt
[ Voor 99% gewijzigd door Svdb op 04-06-2022 21:11 ]
Dit is inderdaad het geval. De bladen liggen strak tegen elkaar en er ligt een dun kitrandje in, maar er blijft nu al van alles tussen zitten, vanwege die geslepen rand. De monteur heeft wel echt zijn best gedaan, maar ik ga dus maar opzoek naar een goede kitter.Rostares schreef op zaterdag 4 juni 2022 @ 12:40:
[...]
Het kan aan de foto liggen, maar het lijkt net alsof de verticale rand van het blad ook nog in een facet is geslepen in plaats van recht. Dat helpt denk ik ook niet mee met het strak laten aansluiten van de bladen. Heb in mijn vorige keuken ook 2 bladen gehad die op elkaar moesten aansluiten, maar daar zat amper een voelbare naad in.
Daarom hebben wij gekozen voor een laminaat blad. Ik kon geen ander naadloos blad vinden van 335 cm lang. Blad was maar 1500 dus mocht het niet bevallen is het ook zo vervangen.DrNizeGuy schreef op zaterdag 4 juni 2022 @ 18:36:
[...]
Dit is inderdaad het geval. De bladen liggen strak tegen elkaar en er ligt een dun kitrandje in, maar er blijft nu al van alles tussen zitten, vanwege die geslepen rand. De monteur heeft wel echt zijn best gedaan, maar ik ga dus maar opzoek naar een goede kitter.
Enige alternatief wat ik overwogen had was RVS, maar dat leek me wat koud voor bij de bar.
Let op:
Dit topic kan gebruikt worden voor het volgende:
• Vragen over de keuken, denkend aan indeling, materialen, kastjes, apparatuur, etc.
• Welke kastjes, aanrechtbladen en apparatuur te kiezen
• Ervaringen met verkopers en keukenboeren
• Tips & Tricks denk hierbij aan hulp bij het zelf installeren en onderhouden van de keuken.
• Jouw indeling. Plaats gerust een foto of tekening, maar maak het niet te bont met hele buildlogs.
Voor badkamers: Het Badkamer topic: verkopers, kwaliteit, prijs - Deel 1
Showen met je keuken kan hier: Tweakers Keuken showroom! - Vestiging 1
Dit topic kan gebruikt worden voor het volgende:
• Vragen over de keuken, denkend aan indeling, materialen, kastjes, apparatuur, etc.
• Welke kastjes, aanrechtbladen en apparatuur te kiezen
• Ervaringen met verkopers en keukenboeren
• Tips & Tricks denk hierbij aan hulp bij het zelf installeren en onderhouden van de keuken.
• Jouw indeling. Plaats gerust een foto of tekening, maar maak het niet te bont met hele buildlogs.
Voor badkamers: Het Badkamer topic: verkopers, kwaliteit, prijs - Deel 1
Showen met je keuken kan hier: Tweakers Keuken showroom! - Vestiging 1