Acties:
  • +8 Henk 'm!

  • SquareOne
  • Registratie: Januari 2010
  • Laatst online: 21:56
Hier druk bezig met plaatsen 🙌. Morgen als het goed is het eindresultaat.
Members only:
Alleen zichtbaar voor ingelogde gebruikers. Inloggen


Kleurstelling was nog wel spannend omdat we de combinatie nergens in het groot hadden gezien. Maar erg blij met de kleurstelling.

Acties:
  • +2 Henk 'm!

  • Atomius
  • Registratie: Februari 2004
  • Laatst online: 22:17
Source90 schreef op dinsdag 17 mei 2022 @ 13:36:
[...]

Volgens mij ben je in de war met de belijning wat -naar mijn idee- niet bij de keuken hoort. Wellicht de alternatieve/gedraaide opstelling?

[Afbeelding]

Blijft nog iets van 4 meter over naast de keuken. Tafel zou naast de keuken geplaatst kunnen worden waardoor je nog 7x3,60 aan woonruimte hebt.

@Atomius , wat is dat andere "holle" vierkant wat haakt op het eiland getekend is op jouw eigen afbeelding?
De lichtstraat in de uitbouw. Misschien dat die wat verwarring veroorzaakt?

Het idee is dus 110cm van rechtermuur tot eiland + 120cm eiland = 230cm. Dan heb je dus 586 - 230 = 356cm over voor tafel + doorloop.

We dachten 100cm links van de tafel, 100cm tafel, 156cm ruimte over voor doorloop tussen tafel en eiland.

Leek ons wel voldoende.

Acties:
  • +2 Henk 'm!

  • Streamz
  • Registratie: Januari 2006
  • Laatst online: 14:21
Atomius schreef op dinsdag 17 mei 2022 @ 13:22:
[...]

Is vertekend, zie plattegrond.


[...]

We waren uitgekomen op 96cm, dat is met mijn 190cm wel prettig.


[...]

Dat vroeg ik de verkoopster ook, maar die zei dat ze het zelf ook zo had en dat het prima kon?


[...]

Ja? Hoeveel ruimte zou je overlaten tussen de rand en de kookplaat?

[...]

Wat is er mis met welke lades? En dat ondiepe bovenkastje was haar idee en vond ik wel geinig. Heb je andere ideeën?


[...]

Welke appels met welke peren? Ik snap niet waar je op doelt.


[...]

Vooral een goede, handige, logische indeling, gebruiksgemak, prijs en dan design. Vrienden doen het er maar mee.


[...]

Maar, wat is er dan zo mis mee volgens jou? Ik niet snap nie.


[...]

Goedkoper vooral, maar wel meer een steen feel dan kunststof.
Dan is die verkoopster een, eh, verkoopster. Bereken even hoe hoog het rooster van die bovenste oven van de grond zit. Pak een keukentrap, vul een ovenschaal met heet water en zet m op dezelfde hoogte. En bedenk dan of je die ovenschaal graag van die hoogte uit een loeihete oven wil pakken.


Vwb kookplaat: zo'n ding is glad. Er gaat wel eens wat overkoken. En ben je rechts of linkshandig? Indien rechts, dan wil je rechts op zn minst ruimte hebben om spaan, pollepel maar ook een pannedeksel neer te leggen. Op zn minst, want eigenlijk wil je rechts van je kookplaat prepareren.

De "achterzijde" van je kookeiland is puur voor opslag. De kant waar je spoelbak en kookplaat zit is de "actieve kant" die moet je goed indelen. En dat zal best goed zo, maar je hebt twee kastjes, dan 2 lades en dan drie niet gelijke lades. Oogt niet echt mooi. Vandaar "smaak" Idem voor dat ene bovenkastje. Is niet fout, smaak. Niet mijn smaak.

Appels en peren, ik bedoel eigenlijk dat niet eens duidelijk is wat je vergelijkt. Keukenloods heeft meerdere merken en niveaus, DB /Artic idem. En dan nog Tulp en KVIK, dus wat vergelijk je dan met elkaar?

Acties:
  • +1 Henk 'm!

  • Tehh
  • Registratie: Maart 2013
  • Niet online
Royal-Tweety schreef op dinsdag 17 mei 2022 @ 12:42:
Dag allen!

Wij zijn een nieuwe keuken aan het plannen. Ik heb al erg veel informatie uit deze topics gehaald, het maakt de zoektocht een stuk makkelijker. We hebben inmiddels een tweetal offertes en ontwerpen laten maken en zijn wel uit over de basis indeling en apparatuur. Er zijn nog een paar twijfelpunten, daar wilde ik graag jullie mening over vragen.

Ten eerste het werkblad. We hebben een offerte met Dekton en één met Composiet. We krijgen een eiland van ongeveer 120x185 en blad langs de wand van 62.5x300.
  • Offerte 1: Composiet 20 mm, Kleur Delciato Crema Velvet, randafwerking 2P = €2.913 (exclusief €352 tegelplinten langs de muur)
  • Offerte 2: Dekton PG1 28 mm (opgedikt), kleur Danae = €5.059
Ik hoor van veel mensen die voor keramiek / Dekton kiezen, maar heb in mijn omgeving ook al gezien dat dit snel splintert. De composiet heeft nu de voorkeur, maar de hittebestendigheid is natuurlijk minder. Een belangrijke factor in deze wordt de prijs. Mijn vraag hierover: zijn dit reele prijzen voor deze afmetingen? Ik lees namelijk ook over woekerprijzen voor Dekton en die 5000 euro viel mij wat tegen.

Dan nog twee vragen die alleen uit ervaring kunnen worden beantwoord, ik hoop dat iemand dit kan:
  • We nemen een Miele stoomoven. De verkopers adviseren om een hoogte van 45 cm te nemen. Ik heb zelf alleen ervaring met 60 cm ovens. Voor mijn gevoel is een binnenruimte van 24-25 cm krap (bij 45 cm ovens). Er gaat ook nog een paar cm vanaf door het grilelement en door de ruimte tussen onderkant en onderste rooster. Tegelijkertijd kan ik mij weinig “use-cases” bedenken waarbij de hoogte een probleem wordt, behalve een kip braden (wat ik wel wil kunnen). Zijn hier mensen die ervaring hebben met 45/60 cm? Iemand spijt van 45 cm?
  • Tenslotte nog een vraag over de kookplaat. Aanvankelijk wilden we voor de Bora X Pure gaan i.v.m. de flexzones. Bij nader inzien hebben we nu niet eens een pan die daar gebruik van hoeft te maken, dus zijn we gedowngrade naar de Pure. Ik zie echter dat de breedte van de Pure (76 cm) kleiner is dan de X Pure (82 cm). Voor mijn gevoel is dat nog steeds breed genoeg, maar ook hier vroeg ik mij af of iemand hier ervaring mee heeft en dit als een probleem ervaart.
Wij hebben keramiek (geen idee of dat Dekton is of niet) en vinden het heerlijk. Ovenschaal snel uit de oven *hop* zo op het aanrechtblad zonder zorgen. Wat betreft 'splintering' herken ik dit niet. Keramiek is bijzonder sterk, eigenlijk het enige zwakke van keramiek is de puntbelasting (bijv. een hamer van hoogte laten vallen), dan kan keramiek barsten. Tjah, of je dat de forse prijs van keramiek waard vind laat ik aan jou.

Acties:
  • 0 Henk 'm!

  • Rzaan
  • Registratie: Mei 2018
  • Laatst online: 20:13

Rzaan

Altijd zoekende

Streamz schreef op dinsdag 17 mei 2022 @ 14:42:
Vwb kookplaat: zo'n ding is glad. Er gaat wel eens wat overkoken. En ben je rechts of linkshandig? Indien rechts, dan wil je rechts op zn minst ruimte hebben om spaan, pollepel maar ook een pannedeksel neer te leggen. Op zn minst, want eigenlijk wil je rechts van je kookplaat prepareren.
Stel, je bent rechtshandig en je hebt aan de rechterkant ruimte genoeg zoals jij adviseert...
Hoeveel ruimte links tot bijvoorbeeld de rand van het kookeiland adviseer je dan?

Acties:
  • 0 Henk 'm!

  • Aurum
  • Registratie: December 2017
  • Laatst online: 22:27
Weet iemand of heeft iemand een inbouwvriezer met een ijsblokjes functie? Liebherr heeft in de luxe series deze functie wel maar heb het nog niet gezien bij een ander merk?

Acties:
  • +2 Henk 'm!

  • Streamz
  • Registratie: Januari 2006
  • Laatst online: 14:21
Rzaan schreef op dinsdag 17 mei 2022 @ 14:55:
[...]


Stel, je bent rechtshandig en je hebt aan de rechterkant ruimte genoeg zoals jij adviseert...
Hoeveel ruimte links tot bijvoorbeeld de rand van het kookeiland adviseer je dan?
60cm minimaal. Want je gebruikt je hele kookplaat. Dus als er links een pan staat, wil je links van je kookplaat een deksel kunnen neerleggen. Maar ook ander kookgerei, ingredienten etc.

Maar....

Een keuken moet in de eeste plaats praktisch en veilig zijn.En wat praktisch is, is voor iedereen anders. Ik zag eens in een woonblad een keukenblok van 240cm lang, geen bovenkastjes met combioven en onderbouw koelkast. ook een kleine 4 pits Bora meen ik. Appartement in centrum Utrecht meen ik. Bewoner: "ik kook nauwelijks, er moet een fles champagne koud kunnen liggen en that's it."

Prima.

Maar als je 3 keer per week een rijsttafel maakt, heb je een wat andere keuken nodig.


Hangt er dus helemaal van af hoe je je keuken wil gebruiken.

Acties:
  • 0 Henk 'm!

  • Facerafter
  • Registratie: December 2012
  • Laatst online: 23-10 00:36
Wij hebben een mooie keuken laten intekenen bij Superkeukens voor een erg mooie prijs (denk ik)
Betreft een greeploze Schuller keuken, alleen kreeg ik hierbij de opmerking dat ze de greeplijst op de vaatwasser niet willen laten doorlopen. Toen ik vroeg waarom kreeg ik het volgende:
De reden dat wij de vaatwasser niet laten doorlopen:

1. Een doorlopend front bestaat uit 2 deuren op elkaar.
a. Dit heeft als gevolg dat de vaatwasser-deur 2x zo zwaar is.
2. Wanneer de vaatwasser klaar is met zijn programma opent de deur altijd automatisch.
3. Uit ervaring gaat in der loop der tijd het scharnier achteruit dat ervoor zorgt dat de vaatwasser niet op de grond klapt wanneer de deur automatisch open gaat.
a. Met als gevolg dat de deur van de vaatwasser op de grond gaat vallen. Dit is de reden dat wij dit niet doen.
Herkennen jullie dit? Vind daarnaast punt 1 ook een beetje raar want het enigste wat er bij komt is een extra greeplijst ? Of het nou 1 groot front is of 2 kleinere zou voor gewicht praktisch niks uit moeten maken?

Acties:
  • 0 Henk 'm!

  • buiter
  • Registratie: December 2001
  • Laatst online: 08:05
Facerafter schreef op dinsdag 17 mei 2022 @ 15:39:
Wij hebben een mooie keuken laten intekenen bij Superkeukens voor een erg mooie prijs (denk ik)
Betreft een greeploze Schuller keuken, alleen kreeg ik hierbij de opmerking dat ze de greeplijst op de vaatwasser niet willen laten doorlopen. Toen ik vroeg waarom kreeg ik het volgende:

[...]


Herkennen jullie dit? Vind daarnaast punt 1 ook een beetje raar want het enigste wat er bij komt is een extra greeplijst ? Of het nou 1 groot front is of 2 kleinere zou voor gewicht praktisch niks uit moeten maken?
Het gaat erom dat er 2 fronten achter elkaar geplaatst worden om vervolgens een greep in de achterste front te zetten.
Er is een keukenmerk (weet de naam effe niet) die daar een aluminium frame voor heeft ontwikkeld.
Dus ja, dit verhaal hoor je vaker.

Acties:
  • 0 Henk 'm!

  • Huisje1
  • Registratie: Januari 2020
  • Laatst online: 03-11-2023
[quote]Royal-Tweety schreef op dinsdag 17 mei 2022 @ 12:42:
Dag allen!

Wij zijn een nieuwe keuken aan het plannen. Ik heb al erg veel informatie uit deze topics gehaald, het maakt de zoektocht een stuk makkelijker. We hebben inmiddels een tweetal offertes en ontwerpen laten maken en zijn wel uit over de basis indeling en apparatuur. Er zijn nog een paar twijfelpunten, daar wilde ik graag jullie mening over vragen.

Ten eerste het werkblad. We hebben een offerte met Dekton en één met Composiet. We krijgen een eiland van ongeveer 120x185 en blad langs de wand van 62.5x300.
  • Offerte 1: Composiet 20 mm, Kleur Delciato Crema Velvet, randafwerking 2P = €2.913 (exclusief €352 tegelplinten langs de muur)
  • Offerte 2: Dekton PG1 28 mm (opgedikt), kleur Danae = €5.059
Ik hoor van veel mensen die voor keramiek / Dekton kiezen, maar heb in mijn omgeving ook al gezien dat dit snel splintert. De composiet heeft nu de voorkeur, maar de hittebestendigheid is natuurlijk minder. Een belangrijke factor in deze wordt de prijs. Mijn vraag hierover: zijn dit reele prijzen voor deze afmetingen? Ik lees namelijk ook over woekerprijzen voor Dekton en die 5000 euro viel mij wat tegen.

Dan nog twee vragen die alleen uit ervaring kunnen worden beantwoord, ik hoop dat iemand dit kan:
  • We nemen een Miele stoomoven. De verkopers adviseren om een hoogte van 45 cm te nemen. Ik heb zelf alleen ervaring met 60 cm ovens. Voor mijn gevoel is een binnenruimte van 24-25 cm krap (bij 45 cm ovens). Er gaat ook nog een paar cm vanaf door het grilelement en door de ruimte tussen onderkant en onderste rooster. Tegelijkertijd kan ik mij weinig “use-cases” bedenken waarbij de hoogte een probleem wordt, behalve een kip braden (wat ik wel wil kunnen). Zijn hier mensen die ervaring hebben met 45/60 cm? Iemand spijt van 45 cm?
[list]

Wij hadden een 45 combi stoom oven en hebben daar nu weer voor gekozen. Nog nooit een probleem ondervonden. We hebben er nog wel een normale oven naast.

Acties:
  • 0 Henk 'm!

  • Royal-Tweety
  • Registratie: December 2000
  • Laatst online: 22-10 15:04
Source90 schreef op dinsdag 17 mei 2022 @ 13:15:
[...]

Welke Miele stoomoven ga je nemen? En ga je enkel een stoomoven (of combi bak-stoom) nemen, of komt er nog een bakoven naast?
[...]
Dank voor de foto's, ik had de binnenmaat van een Miele 60 cm oven nog niet gezien. Het is dus 25 vs 40 cm. Hieronder de (concept) lijst met apparatuur:
  • Stoomoven: Miele DGC7665
  • Combioven: Miele H7640 BM
  • Vaatwasser: Miele G7278 SCVi XXL Excellence
  • Koelkast: Liebherr IRBd 5150 Prime
  • Inductie: Bora Pure (recirculatie)
  • Quooker: Quooker Flex RVS Combi+
  • Warmhoudlade geen
We hebben nu dus gekozen voor de 60 cm stoomoven en de 7665 (€4999) ipv de 7865 (€5499) omdat de laatste volgens mij alleen een draadloze thermometer heeft a 500 euro meerprijs.
Daarnaast een 45 cm combimagnetron, waarbij we de H7640 (€2539) hebben gekozen. De H7240 (€1729) was onze eerdere keus, alleen die heeft geen boven/onder warmte en laag temperatuur koken / bordenwarmen. Dat vonden we wel een meerwaarde waarna we de warmhoudlade hebben geschrapt.

Wat betreft de hogere efficientie van verwarmen; zou het dan verstandiger zijn om een 60 cm combimagnetron te nemen?(volgens mij heeft Miele die niet eens). Ik heb de logica genomen: de stoomoven wordt het meest gebruikt, dus die krijgt de upgrade naar 60 cm.

@BMW_Gizzmo: Grappig dat je noemt dat je je gerecht niet kan zien, daar had ik zelf niet eens aan gedacht en ik denk dat dat precies is waardoor de oven voor mij te klein voelt. Volgens mij heeft bovenstaande combimagnetron geen camera.
Chaoss schreef op dinsdag 17 mei 2022 @ 12:54:
Wij hadden op onze vorige keuken composiet en daar hebben we nooit problemen mee gehad qua warmte bestendigheid. Uiteraard zet ik niet pannen die vanaf de kook plaat komen zo op het werkplek. Na 8 jaar gebruik zag het composiet er nog net zo uit, ook geen beschadigingen aan de randen.
Wij hebben in ons nieuwe huis (oude keuken) nu ook composiet; ik was een half jaar in de veronderstelling dat je daar hete pannen op kon zetten, dus dat heb ik (sporadisch) wel gedaan; maar ik zie geen enkele hitte beschadiging. Het is wel een zwart blad dat camoufleert misschien.
Source90 schreef op dinsdag 17 mei 2022 @ 13:24:
[...]
Hier een Miele kookplaat, stond eerst een Bora Pure op mijn offerte. Ben er tot heden erg tevreden mee. Ook filter zou langer mee gaan (en is te regeneren). Dat laatste komt van de verkoper, geen onderzoek naar gedaan.
Wij zitten vooral bij Bora omdat beide zaken het adviseerden en ik hoor ook wel goede verhalen van kennissen, vooral over de recirculatie. Zij waren ook allemaal tevreden over de breedte, maar ik vindt het altijd lastig om af te schalen in luxe; omdat je dan opeens zaken inlevert, zoals de kookplaat breedte (waar ik aanvankelijk helemaal niet op had geselecteerd). :)

Carpe Noctem


Acties:
  • 0 Henk 'm!

  • Facerafter
  • Registratie: December 2012
  • Laatst online: 23-10 00:36
buiter schreef op dinsdag 17 mei 2022 @ 15:50:
[...]


Het gaat erom dat er 2 fronten achter elkaar geplaatst worden om vervolgens een greep in de achterste front te zetten.
Er is een keukenmerk (weet de naam effe niet) die daar een aluminium frame voor heeft ontwikkeld.
Dus ja, dit verhaal hoor je vaker.
Dan klinkt het verhaal iets logischer maar is het ook echt iets wat een probleem kan vormen? Of zijn er vaatwassers die geschikt zijn voor een zwaardere deur?

Acties:
  • +1 Henk 'm!

  • Source90
  • Registratie: December 2008
  • Laatst online: 20:14
Royal-Tweety schreef op dinsdag 17 mei 2022 @ 16:06:
[...]


Dank voor de foto's, ik had de binnenmaat van een Miele 60 cm oven nog niet gezien. Het is dus 25 vs 40 cm. Hieronder de (concept) lijst met apparatuur:
  • Stoomoven: Miele DGC7665
  • Combioven: Miele H7640 BM
  • Vaatwasser: Miele G7278 SCVi XXL Excellence
  • Koelkast: Liebherr IRBd 5150 Prime
  • Inductie: Bora Pure (recirculatie)
  • Quooker: Quooker Flex RVS Combi+
  • Warmhoudlade geen
We hebben nu dus gekozen voor de 60 cm stoomoven en de 7665 (€4999) ipv de 7865 (€5499) omdat de laatste volgens mij alleen een draadloze thermometer heeft a 500 euro meerprijs.
Daarnaast een 45 cm combimagnetron, waarbij we de H7640 (€2539) hebben gekozen. De H7240 (€1729) was onze eerdere keus, alleen die heeft geen boven/onder warmte en laag temperatuur koken / bordenwarmen. Dat vonden we wel een meerwaarde waarna we de warmhoudlade hebben geschrapt.

Wat betreft de hogere efficientie van verwarmen; zou het dan verstandiger zijn om een 60 cm combimagnetron te nemen?(volgens mij heeft Miele die niet eens). Ik heb de logica genomen: de stoomoven wordt het meest gebruikt, dus die krijgt de upgrade naar 60 cm.

@BMW_Gizzmo: Grappig dat je noemt dat je je gerecht niet kan zien, daar had ik zelf niet eens aan gedacht en ik denk dat dat precies is waardoor de oven voor mij te klein voelt. Volgens mij heeft bovenstaande combimagnetron geen camera.


[...]


Wij hebben in ons nieuwe huis (oude keuken) nu ook composiet; ik was een half jaar in de veronderstelling dat je daar hete pannen op kon zetten, dus dat heb ik (sporadisch) wel gedaan; maar ik zie geen enkele hitte beschadiging. Het is wel een zwart blad dat camoufleert misschien.


[...]

Wij zitten vooral bij Bora omdat beide zaken het adviseerden en ik hoor ook wel goede verhalen van kennissen, vooral over de recirculatie. Zij waren ook allemaal tevreden over de breedte, maar ik vindt het altijd lastig om af te schalen in luxe; omdat je dan opeens zaken inlevert, zoals de kookplaat breedte (waar ik aanvankelijk helemaal niet op had geselecteerd). :)
Heb je ook een impressie/plattegrond van de keuken?

Het grootste verschil tussen de 78xx en 76xx is het grotere scherm. Heb je ze al eens naast elkaar gezien in de showroom? Zit in mijn ogen een behoorlijk verschil in beleving tussen de twee. Grote vond ik zelf makkelijker te bedienen en overzichtelijker, vandaar dat hij hier ook staat (H 7860 en DGC 7845)

Wij hebben een 45cm combi-stoomoven en 60cm bakoven (geen magnetron). Had het hier boven aangegeven; voor stoom is een kleinere ruimte juist wel interessant. Zeker als je er een 60cm oven naast hebt. Mijn advies: neem de 45cm stoomoven en upgrade naar het grote scherm. Qua kosten ontloopt dat elkaar niet zoveel, met de 60cm die je nu hebt.


Eventueel kan je nog kijken naar:
- Warmhoudlade voor lijnenspel en gelijk 4 apparaten = 5 jaar garantie (indien naast elkaar).
- Koelkast van Miele. Dit is een Liebherr met een ander merkje erop. Intern hetzelfde op enkele accessoires na. Ook hier weer; 5 jaar garantie op alle apparaten. Nadeel is dat de Liebherr 7 jaar heeft op zichzelf.


Voor Miele codes (ovens):
7xxx staat voor de 7-serie
x6xx / x8xx staat voor de afmeting van het scherm en opties
xx4x / xx6x staat voor grootte (60 of 45cm)
xxx0 / xxx5 staat voor vaste wateraansluiting (bij stoomovens)

Hoofdletter X achter het type staat voor greeploos.
---

Ben je al eens in Vianen geweest, Miele Experience center?

Deze foto nog teruggevonden van de twee schermen (76xx en 78xx) naast elkaar:
Afbeeldingslocatie: https://tweakers.net/i/kuyRX_BQzQdt32d4l_sguaaBQx4=/800x/filters:strip_icc():strip_exif()/f/image/dHF5PoadRMfiB2stcCeObcwM.jpg?f=fotoalbum_large

[ Voor 8% gewijzigd door Source90 op 17-05-2022 16:47 ]


Acties:
  • 0 Henk 'm!

  • Source90
  • Registratie: December 2008
  • Laatst online: 20:14
Lees nu dat je een combi-magnetron ernaast wilt. Hadden wij ook ingetekend.
Vraag is: Waarvoor gebruik je de magnetron? Nagenoeg alles kan ook in de stoomoven, duurt alleen wat langer.
Wij hebben hier een Bosch stand-alone magnetron van 100€ in een kastje staan. Wordt amper gebruikt, maar is voorhanden indien nodig. Zodoende uitgekomen op een volwaardige oven (60cm) en combi-stoomoven (45cm). Onder de stoomoven hebben wij een warmhoudlade. Hierin ontdooien wij brood. In paar minuten is dat gedaan.

Dit is de opstelling bij ons:
Members only:
Alleen zichtbaar voor ingelogde gebruikers. Inloggen


Bosch solo-magnetron
Miele DGC 7845
Miele ESW 7010

Miele H 7860 BP


Mogelijk verdwijnt de magnetron nog wat verder in de vergetelheid zodra we helemaal klaar zijn met (ver)bouwen en gesettled zijn. Eigenlijk zelden gebruik van gemaakt in de afgelopen maanden. :9


--------

Is dit trouwens voor een nieuwbouw of bestaande bouw? Vergeet niet dat je een afvoer en koudwateraansluiting moet hebben bij je oven (voor de 7xx5).

[ Voor 97% gewijzigd door Source90 op 17-05-2022 17:05 ]


Acties:
  • +1 Henk 'm!

  • Huisje1
  • Registratie: Januari 2020
  • Laatst online: 03-11-2023
SquareOne schreef op dinsdag 17 mei 2022 @ 13:39:
Hier druk bezig met plaatsen 🙌. Morgen als het goed is het eindresultaat.

***members only***


Kleurstelling was nog wel spannend omdat we de combinatie nergens in het groot hadden gezien. Maar erg blij met de kleurstelling.
Ziet er goed uit! Mooie combinatie van kleuren.
Hier zijn de monteurs ook druk bezig, vrijdag klaar als t goed is.

Acties:
  • +1 Henk 'm!

  • mevrouwKees_1
  • Registratie: December 2020
  • Laatst online: 10-08 17:24
@Source90 die ervaring hebben wij ook qua magnetron en stoomoven.. Ik gebruik die stoomoven echt zo vaak.. Het opwarmen van eten is zoveel lekkerder dan uit de magnetron. Die hebben we verbannen naar de bijkeuken en gebruiken we dus ook zelden, de stoom oven daarentegen minimaal 2 x per week. Als ik hem ooit moet vervangen dan door een Miele met vaste water aansluiting ;-). Vonden we nu te duur, maar het is best irritant dat je soms water tussendoor moet bijvullen.. Gelukkig kan ik het via de app zien dus geen punt maar die vaste water aansluiting lijkt me dan wel handig.

Ik ben overal tegen. Tot ik een besluit neem, dan ben ik ervoor


Acties:
  • 0 Henk 'm!

  • Rzaan
  • Registratie: Mei 2018
  • Laatst online: 20:13

Rzaan

Altijd zoekende

mevrouwKees_1 schreef op dinsdag 17 mei 2022 @ 17:33:
@Source90 die ervaring hebben wij ook qua magnetron en stoomoven.. Ik gebruik die stoomoven echt zo vaak.. Het opwarmen van eten is zoveel lekkerder dan uit de magnetron. Die hebben we verbannen naar de bijkeuken en gebruiken we dus ook zelden, de stoom oven daarentegen minimaal 2 x per week. Als ik hem ooit moet vervangen dan door een Miele met vaste water aansluiting ;-). Vonden we nu te duur, maar het is best irritant dat je soms water tussendoor moet bijvullen.. Gelukkig kan ik het via de app zien dus geen punt maar die vaste water aansluiting lijkt me dan wel handig.
Als je hem 2 x per week gebruikt, hoe vaak moet je dan bijvullen gemiddeld?

Acties:
  • +1 Henk 'm!

  • mevrouwKees_1
  • Registratie: December 2020
  • Laatst online: 10-08 17:24
Rzaan schreef op dinsdag 17 mei 2022 @ 17:45:
[...]


Als je hem 2 x per week gebruikt, hoe vaak moet je dan bijvullen gemiddeld?
Sowieso gebruik je bij ieder gebruik vers water, na gebruik pompt ie namelijk alles weg etc. Dus bij starten programma vul je de tank. En afhankelijk van gerecht, temperatuur en duur van programma moet ik hem 1 x bijvullen tijdens het programma. Het is niet veel werk hoor, en via de app krijg ik een melding dus mis je het niet dat het moet. Na gebruik gooi je de tank leeg. Maar een vaste water aansluiting is wel luxe denk ik ;)

Ik ben overal tegen. Tot ik een besluit neem, dan ben ik ervoor


Acties:
  • 0 Henk 'm!

  • synorluna
  • Registratie: Oktober 2017
  • Laatst online: 31-08 08:21
mevrouwKees_1 schreef op dinsdag 17 mei 2022 @ 18:02:
[...]


Sowieso gebruik je bij ieder gebruik vers water, na gebruik pompt ie namelijk alles weg etc. Dus bij starten programma vul je de tank. En afhankelijk van gerecht, temperatuur en duur van programma moet ik hem 1 x bijvullen tijdens het programma. Het is niet veel werk hoor, en via de app krijg ik een melding dus mis je het niet dat het moet. Na gebruik gooi je de tank leeg. Maar een vaste water aansluiting is wel luxe denk ik ;)
Is dat opwarmen van gerechten enigszins praktisch met de stoomoven? Lijkt me best wat gedoe om elke keer de oven na te drogen etc. Ben benieuwd naar jouw ervaringen daarin.

Acties:
  • +2 Henk 'm!

  • Toke_gt
  • Registratie: Juni 2021
  • Laatst online: 22:35
Streamz schreef op dinsdag 17 mei 2022 @ 14:42:
[...] En ben je rechts of linkshandig? Indien rechts, dan wil je rechts op zn minst ruimte hebben om spaan, pollepel maar ook een pannedeksel neer te leggen. Op zn minst, want eigenlijk wil je rechts van je kookplaat prepareren.
Ik zou dit toch niet zo stellig adviseren. Ik ben rechtshandig, maar werk altijd links van de kookplaat, ook als er rechts veel ruimte is. Nu heb ik aan de rechterkant maar 20 cm en daarna een koffiecorner, maar meer dan een garde of pannenlap leg ik daar niet neer.
Uit de ervaringen hier weet ik dat het gewoon heel persoonlijk is, die flow van links naar rechts, of van rechts naar links. Belangrijkste is volgens mij dat die flow logisch is. Handig om dat te achterhalen is in een showroomkeuken met veel ruimte doen alsof je in die keuken werkt en dan kijken wat natuurlijk voelt en wat erg ongemakkelijk. En maakt het niet uit, ook goed, dan kun je lekker alle kanten op :)

Acties:
  • 0 Henk 'm!

  • insp.gadget
  • Registratie: Februari 2019
  • Laatst online: 19-09 13:30
Wat zijn jullie ervaringen/meningen?:
Bora pure
of siemens kookplaat met 2 flexzones en afzuiging? ( EX875LX67E Siemens ) ?
Ik hoorde dat het wel irritant kan zijn om steeds de kookzonde te selecteren om de intensiteit aan te passen, dat is met siemens anders omdat die meer sliders heeft

Acties:
  • +2 Henk 'm!

  • mevrouwKees_1
  • Registratie: December 2020
  • Laatst online: 10-08 17:24
synorluna schreef op dinsdag 17 mei 2022 @ 19:03:
[...]


Is dat opwarmen van gerechten enigszins praktisch met de stoomoven? Lijkt me best wat gedoe om elke keer de oven na te drogen etc. Ben benieuwd naar jouw ervaringen daarin.
Het is prima te doen. En schoonmaken is echt doekje erdoor. Hij heeft een droogprogramma die laat je lopen (10 minuten ) en dan even doekje erdoor. 5 minuten werk.

Ook de stoom blikken die je gebruikt zijn snel schoon. Als het zo onhandig zou zijn dan zou ik hem niet gebruiken. Ik gebruik hem ook voor deeg rijzen. Vlees bereiden. Gewoon groenten enzo. Asperges zijn er zo lekker uit. Kortom. Fijn ding (ik heb een Neff )

Ik ben overal tegen. Tot ik een besluit neem, dan ben ik ervoor


Acties:
  • 0 Henk 'm!

  • Frankvbr
  • Registratie: November 2004
  • Laatst online: 26-10 12:52
Streamz schreef op dinsdag 17 mei 2022 @ 10:31:
Die oven of combi oven zit veel te hoog. Gewoonweg onveilig.
Kookplaat teveel op de hoek. Die lades en dat ondiepe bovenkastje houden we maar even op "smaak."
Ik ben op zoek naar mensen met een mening. Die heb jij duidelijk.
Nog feedback op mijn post? Hier (was een beetje ondergesneeuwd door een ruzietje)

Acties:
  • +2 Henk 'm!

  • Source90
  • Registratie: December 2008
  • Laatst online: 20:14
mevrouwKees_1 schreef op dinsdag 17 mei 2022 @ 20:22:
[...]


Het is prima te doen. En schoonmaken is echt doekje erdoor. Hij heeft een droogprogramma die laat je lopen (10 minuten ) en dan even doekje erdoor. 5 minuten werk.

Ook de stoom blikken die je gebruikt zijn snel schoon. Als het zo onhandig zou zijn dan zou ik hem niet gebruiken. Ik gebruik hem ook voor deeg rijzen. Vlees bereiden. Gewoon groenten enzo. Asperges zijn er zo lekker uit. Kortom. Fijn ding (ik heb een Neff )
Oh man man man vrouw vrouw vrouw, die asperges uit een stoomoven. <3
En zoveel gezonder ook.

Acties:
  • 0 Henk 'm!

  • Z___Z
  • Registratie: Maart 2002
  • Niet online
synorluna schreef op dinsdag 17 mei 2022 @ 19:03:
[...]


Is dat opwarmen van gerechten enigszins praktisch met de stoomoven? Lijkt me best wat gedoe om elke keer de oven na te drogen etc. Ben benieuwd naar jouw ervaringen daarin.
Daarom vaste water aansluiting en afvoer. Scheelt niet alleen bij het vullen, maar ook bij het schoonmaken. Is een betere investering dan een groter schermpje, maar goed @Source90 heeft allebei :9~

Acties:
  • +2 Henk 'm!

  • Toke_gt
  • Registratie: Juni 2021
  • Laatst online: 22:35
Frankvbr schreef op dinsdag 17 mei 2022 @ 20:54:
[...]
Ik ben op zoek naar mensen met een mening. Die heb jij duidelijk.
Nog feedback op mijn post? Hier
Hi, ik heb een ideetje voor een indeling met wat meer werkruimte en toch ook ruimte voor vier hoge kasten. De werkplek is er nu ‘aangeplakt’ als een soort schiereiland, maar zou ook aan de andere kant van het muurtje kunnen. Ik weet uiteraard niet hoe je van plan bent de ruimte verder in te richten, maar in mijn beleving beperkte je de mogelijkheden te veel door het eiland. Door het wat meer open te maken verlies je minder ruimte. Vaatwasser rechts naast spoelbak, kookplaat tegen de muur, ipv de twee hoge kasten. Kastje dat in de hoek zit, zou je nog toegankelijk kunnen maken vanaf de andere kant.
Doe er je voordeel mee :)
Afbeeldingslocatie: https://tweakers.net/i/a4zSog2OSRl5Hp0Z0Ub-Zo-4390=/full-fit-in/4920x3264/filters:max_bytes(3145728):no_upscale():strip_icc():fill(white):strip_exif()/f/image/RZjqe1iDnwaGTc1ZKgCxRwKl.jpg?f=user_large

Acties:
  • 0 Henk 'm!

  • Toke_gt
  • Registratie: Juni 2021
  • Laatst online: 22:35
Dubbel

[ Voor 99% gewijzigd door Toke_gt op 17-05-2022 22:46 ]


Acties:
  • 0 Henk 'm!

  • ocrammarco
  • Registratie: December 2017
  • Laatst online: 20-10 13:21
Facerafter schreef op dinsdag 17 mei 2022 @ 16:10:
[...]

Dan klinkt het verhaal iets logischer maar is het ook echt iets wat een probleem kan vormen? Of zijn er vaatwassers die geschikt zijn voor een zwaardere deur?
Je kan per vaatwasser opzoeken wat max gewicht is wat hij kan hebben maar lijkt me dat keukenzaken dat wel weten. Ik hen vanwege andere reden dubbele dikte deur maar alleen de randen zijn dubbel dus scheelt weer gewicht.

Acties:
  • 0 Henk 'm!

  • Frankvbr
  • Registratie: November 2004
  • Laatst online: 26-10 12:52
Toke_gt schreef op dinsdag 17 mei 2022 @ 22:32:
[...]

Hi, ik heb een ideetje voor een indeling met wat meer werkruimte en toch ook ruimte voor vier hoge kasten. De werkplek is er nu ‘aangeplakt’ als een soort schiereiland, maar zou ook aan de andere kant van het muurtje kunnen. Ik weet uiteraard niet hoe je van plan bent de ruimte verder in te richten, maar in mijn beleving beperkte je de mogelijkheden te veel door het eiland. Door het wat meer open te maken verlies je minder ruimte. Vaatwasser rechts naast spoelbak, kookplaat tegen de muur, ipv de twee hoge kasten. Kastje dat in de hoek zit, zou je nog toegankelijk kunnen maken vanaf de andere kant.
Doe er je voordeel mee :)
[Afbeelding]
Bedankt.

Dit moet ik even op me in laten werken. Had de andere lay-out al helemaal in mijn hoofd zitten.

Paar vragen/opmerkingen:
KV > Koelkast?
HK > Hoge kast?
Denk niet dat de extra werkplek eronder dan nog nodig is en maakt de werkplek krapper.
Twijfel of het mooi is om tegen de hoge oven kasten aan te kijken vanuit de woonkamer

Ik denk dat ik dit in 3d maar eens ga uitproberen in een tool. Weet nog niet wat ik van het muurtje idee vindt.

Acties:
  • 0 Henk 'm!

  • Floor-is
  • Registratie: Maart 2000
  • Laatst online: 13-10 18:55
Barry|IA schreef op maandag 16 mei 2022 @ 00:22:
[...]


Hahah, bij Next125 pocket deuren nemen... trek de knip maar. Onnodig ingewikkeld duur complex systeem.
Enorme takkeklus om te maken, kost relatief veel materiaal en je hebt speciale scharnieren met afwijkende maten. Waar je dus ook aangepaste apparatuur voor moet aanschaffen. Als iemand het per se wil kan het natuurlijk, maar je moet er rekening mee houden dat het een dure grap wordt :)

Bericht hierboven


Acties:
  • 0 Henk 'm!

  • Source90
  • Registratie: December 2008
  • Laatst online: 20:14
Frankvbr schreef op dinsdag 17 mei 2022 @ 23:13:
[...]


Bedankt.

Dit moet ik even op me in laten werken. Had de andere lay-out al helemaal in mijn hoofd zitten.

Paar vragen/opmerkingen:
KV > Koelkast?
HK > Hoge kast?
Denk niet dat de extra werkplek eronder dan nog nodig is en maakt de werkplek krapper.
Twijfel of het mooi is om tegen de hoge oven kasten aan te kijken vanuit de woonkamer

Ik denk dat ik dit in 3d maar eens ga uitproberen in een tool. Weet nog niet wat ik van het muurtje idee vindt.
KV is gok ik koelkast/vriezer.

Betreft het muurtje; deze had je ook al in jouw eigen tekening, niet? Alleen dan een kwartslag gedraaid.
Op de plattegrond stond al "Wand 1500+ vloer".

Je zou ook een hoog muurtje van 60cm kunnen plaatsen naast de ovens, zodat deze semi-inbouw zitten.

Acties:
  • 0 Henk 'm!

  • Frankvbr
  • Registratie: November 2004
  • Laatst online: 26-10 12:52
Source90 schreef op dinsdag 17 mei 2022 @ 23:22:
[...]

KV is gok ik koelkast/vriezer.

Betreft het muurtje; deze had je ook al in jouw eigen tekening, niet? Alleen dan een kwartslag gedraaid.
Op de plattegrond stond al "Wand 1500+ vloer".

Je zou ook een hoog muurtje van 60cm kunnen plaatsen naast de ovens, zodat deze semi-inbouw zitten.
Ja op plattegrond wel. In praktijk is dat een muur tot plafond, maar die muur gaat er sowieso uit.

Acties:
  • 0 Henk 'm!

  • Source90
  • Registratie: December 2008
  • Laatst online: 20:14
Frankvbr schreef op dinsdag 17 mei 2022 @ 23:30:
[...]


Ja op plattegrond wel. In praktijk is dat een muur tot plafond, maar die muur gaat er sowieso uit.
Wellicht dan een idee om het muurtje tot 60cm af te breken. Klein muurtje waar de ovens achter "schuilen" zodat je hier niet tegenaan kijkt vanuit de woonkamer. Aan een muurtje hang je toch wat makkelijker deco dan aan een keuken zijkant.

Acties:
  • +2 Henk 'm!

  • Toke_gt
  • Registratie: Juni 2021
  • Laatst online: 22:35
Frankvbr schreef op dinsdag 17 mei 2022 @ 23:13:
[...]
Paar vragen/opmerkingen:
KV > Koelkast?
HK > Hoge kast?
KV is koelvries
Denk niet dat de extra werkplek eronder dan nog nodig is en maakt de werkplek krapper.
Ah, je had werkplek als werkruimte. Ik las daarin een thuiswerkplek. Als je die niet nodig hebt en geen barretje wilt; meteen skippen.
Twijfel of het mooi is om tegen de hoge oven kasten aan te kijken vanuit de woonkamer
Hangt er een beetje vanaf hoe je je kamer indeelt, maar vooral materiaalkeuze bepaalt of het storend is of niet. Dus als je dit in 3d maakt, kies dan materiaal dat je ook als kast in de woonkamer zou kunnen gebruiken. Als je de kasten met ovens en KV ruilt, heb je volledige dichte kasten op die plek, dan is het misschien minder storend aanwezig?
Ik denk dat ik dit in 3d maar eens ga uitproberen in een tool. Weet nog niet wat ik van het muurtje idee vindt.
Je kunt in plaats van dat muurtje ook ondiepe kasten plaatsen. Heb je toch een soort eiland. Ik vermoedde dat je daar ook ergens een eettafel of zo wilt plaatsen, dus heb die ruimte daar niet benut.
3D of render bij keukenzaak kan je wel helpen het te visualiseren. Ik wilde je gewoon laten zien dat je er ook op een heel andere manier naar kunt kijken. Succes!

Acties:
  • 0 Henk 'm!

  • Atomius
  • Registratie: Februari 2004
  • Laatst online: 22:17
SquareOne schreef op dinsdag 17 mei 2022 @ 13:39:
Hier druk bezig met plaatsen 🙌. Morgen als het goed is het eindresultaat.

***members only***


Kleurstelling was nog wel spannend omdat we de combinatie nergens in het groot hadden gezien. Maar erg blij met de kleurstelling.
Mooi! Wat voor type blad is dit?

Acties:
  • +2 Henk 'm!

  • SquareOne
  • Registratie: Januari 2010
  • Laatst online: 21:56
Atomius schreef op woensdag 18 mei 2022 @ 08:32:
[...]

Mooi! Wat voor type blad is dit?
Keramiek 12mm.
Fontana gepolijst van Arte Keramiek

Spoeldeel opgedikt naar 20mm
Eiland opgedikt naar 100mm

Het wordt verkocht bij Arte als ‘huismerk’. Na wat research (ja, ik ben eigenwijs en wil graag weten wat ik koop) kwam ik er achter dat het keramiek is van Ariostea in de kleur Pietra Grey Active.

Acties:
  • 0 Henk 'm!

  • Streamz
  • Registratie: Januari 2006
  • Laatst online: 14:21
Frankvbr schreef op dinsdag 17 mei 2022 @ 20:54:
[...]


Ik ben op zoek naar mensen met een mening. Die heb jij duidelijk.
Nog feedback op mijn post? Hier (was een beetje ondergesneeuwd door een ruzietje)
Loop met dit lijstje een Superkeukens binnen. Als je daar met je budget niet uitkomt, moet je verdere concessies doen.
Je zit met je budget voor een dergelike keuken, en ook voor het hoekalternatief aan de onderkant van de markt. Vergeet fancy oplossingen, passen geen van allen in je budget.

Dus let goed op welke keuzes je maakt. Met name de keuze van het blad zal een grote invloed op de totaalprijs hebben. Neem een neutraal, simpel en goedkoop blad.Heb je die keuze gemaakt, dan de fronten die bijpassend zijn.
Nog even over dat budget, in dit ontwerp heb je 13 of 14 kasten met front.Ik heb je apparatenlijstje niet opgezocht, maar vermoed zo'n 6k netto? Hou je van je 15- 20k max budget dus 9- 14k over. Even heel krap budgetteren:
Installatie 1,5k, blad 3k, kleinmateriaal en ladeindeling 500 euro, kraan en spoelbak 1k, heb je 4-9k voor je 14 kasten. Da's 285 - 642 euro per kast gemiddeld. Zit je echt in de lagere prijsgroepen.

Dus vermijd opties die duur zijn. En vermijd al helemaal opties die duur om goed te laten werken. Bijv brede lades.


Voor dit budget zou ik het heel anders aanpakken. Ik zou MP aanslingeren voor een keukenblad. in de juiste afmeting.
Vervolgens bouwpakket keukenkasten configureren bijv hier https://www.meubelinterieur.nl/keukenkasten inclusief fronten en zelf een keuken opbouwen. Apparatuur kijken wat voorradig is en zelf via internetshop bestellen. Maatwerkkasten tot op de mm, dus vrijheid om kasten over die lengte van 270cm uit te smeren.

Maar goed,moet je wel kunnen en willen.

Acties:
  • 0 Henk 'm!

  • mevrouwKees_1
  • Registratie: December 2020
  • Laatst online: 10-08 17:24
Z___Z schreef op dinsdag 17 mei 2022 @ 21:30:
[...]

Daarom vaste water aansluiting en afvoer. Scheelt niet alleen bij het vullen, maar ook bij het schoonmaken. Is een betere investering dan een groter schermpje, maar goed @Source90 heeft allebei :9~
ik weet niet hoe het is met schoonmaken bij de Miele... maar het is niet dat hier een enorme plas water in die oven ligt.. Na gebruik doet hij zijn programma (afpompen van water en soort reiniging) en daarna haal ik er een doekje door.. en als er al wat meer ligt, dan is het kwestie van wat keukenrol erin , even laten opnemen en klaar..

Ik vond het prijsverschil echt te hoog en we vonden toen we er waren de bediening niet fijn (maar dat is persoonlijk) en al met al kwamen we met miele apparatuur echt boven budget uit.

Ik ben overal tegen. Tot ik een besluit neem, dan ben ik ervoor


Acties:
  • 0 Henk 'm!

  • Z___Z
  • Registratie: Maart 2002
  • Niet online
mevrouwKees_1 schreef op woensdag 18 mei 2022 @ 09:57:
[...]


ik weet niet hoe het is met schoonmaken bij de Miele... maar het is niet dat hier een enorme plas water in die oven ligt.. Na gebruik doet hij zijn programma (afpompen van water en soort reiniging) en daarna haal ik er een doekje door.. en als er al wat meer ligt, dan is het kwestie van wat keukenrol erin , even laten opnemen en klaar..

Ik vond het prijsverschil echt te hoog en we vonden toen we er waren de bediening niet fijn (maar dat is persoonlijk) en al met al kwamen we met miele apparatuur echt boven budget uit.
Ik ook nog niet, maar mezelf kennende met ervaring van lek bakje van de Jura schoonmaken, zou ik vaak het afvoer bakje van de stoomoven vergeten te legen. Lijkt me wat erger dan het aanvoer bakje te vergeten.

Maar goed elk gemak heeft z’n prijs. Wij hebben ook niet de duurste Miele genomen, maar de goedkoopste met vaste water aansluiting. We stomen nu met een stoom pan op een gaskookplaat, dus het is dan snel beter 😋

Acties:
  • 0 Henk 'm!

  • Source90
  • Registratie: December 2008
  • Laatst online: 20:14
Z___Z schreef op woensdag 18 mei 2022 @ 10:51:
[...]

Ik ook nog niet, maar mezelf kennende met ervaring van lek bakje van de Jura schoonmaken, zou ik vaak het afvoer bakje van de stoomoven vergeten te legen. Lijkt me wat erger dan het aanvoer bakje te vergeten.

Maar goed elk gemak heeft z’n prijs. Wij hebben ook niet de duurste Miele genomen, maar de goedkoopste met vaste water aansluiting. We stomen nu met een stoom pan op een gaskookplaat, dus het is dan snel beter 😋
Heb hem hier ook voor de prijsverhoging gekozen, zie ik nu. Had een Excel gemaakt met kosten per product en kortingspercentages. Zie dat de ovens nu gemiddeld 500€ duurder zijn dan toen ik bestelde.

Heb jij de DGC 7645, of 100% stoom?

Acties:
  • 0 Henk 'm!

  • mevrouwKees_1
  • Registratie: December 2020
  • Laatst online: 10-08 17:24
Z___Z schreef op woensdag 18 mei 2022 @ 10:51:
[...]

Ik ook nog niet, maar mezelf kennende met ervaring van lek bakje van de Jura schoonmaken, zou ik vaak het afvoer bakje van de stoomoven vergeten te legen. Lijkt me wat erger dan het aanvoer bakje te vergeten.

Maar goed elk gemak heeft z’n prijs. Wij hebben ook niet de duurste Miele genomen, maar de goedkoopste met vaste water aansluiting. We stomen nu met een stoom pan op een gaskookplaat, dus het is dan snel beter 😋
Het is geen apart bakje hoor.. Ik heb het idee dat het afgepompte water terug in de tank gaat oid.. Maar je krijgt sowieso een melding " vul watertank" als je gaat stomen .

Ik ben overal tegen. Tot ik een besluit neem, dan ben ik ervoor


Acties:
  • 0 Henk 'm!

  • Z___Z
  • Registratie: Maart 2002
  • Niet online
Source90 schreef op woensdag 18 mei 2022 @ 11:10:
[...]

Heb hem hier ook voor de prijsverhoging gekozen, zie ik nu. Had een Excel gemaakt met kosten per product en kortingspercentages. Zie dat de ovens nu gemiddeld 500€ duurder zijn dan toen ik bestelde.

Heb jij de DGC 7645, of 100% stoom?
Yes, DGC 7645 voor 2785 + 1000 euro voor het loodgieterswerk (nieuwbouw).

Acties:
  • 0 Henk 'm!

  • Z___Z
  • Registratie: Maart 2002
  • Niet online
mevrouwKees_1 schreef op woensdag 18 mei 2022 @ 11:25:
[...]


Het is geen apart bakje hoor.. Ik heb het idee dat het afgepompte water terug in de tank gaat oid.. Maar je krijgt sowieso een melding " vul watertank" als je gaat stomen .
Bij Miele is er zonder afvoer geloof ik een apart bakje voor afvoer.

Acties:
  • 0 Henk 'm!

  • Source90
  • Registratie: December 2008
  • Laatst online: 20:14
Z___Z schreef op woensdag 18 mei 2022 @ 11:48:
[...]

Yes, DGC 7645 voor 2785 + 1000 euro voor het loodgieterswerk (nieuwbouw).
Afbeeldingslocatie: https://c.tenor.com/9PoIZUx13ogAAAAC/steven-he-what-the-hell.gif

Nette prijs voor de Miele (staat nu voor 3870 op de site). Maar wat een belachelijke prijs voor een afvoer-buisje en koudwater. 8)7

[ Voor 4% gewijzigd door Source90 op 18-05-2022 11:53 ]


Acties:
  • 0 Henk 'm!

  • FrankSpin
  • Registratie: Oktober 2010
  • Niet online
Cagdas schreef op zaterdag 5 februari 2022 @ 00:35:
Ik was vandaag voor Metod bovenkasten bij de Ikea. Ik wil graag een tv-meubel maken met de bovenkasten en was op zoek naar een plaat waarmee ook de bovenkant van de kast afwerken.

De medewerker kwam met een kar vol staaltjes aanrijden die net binnen waren gekomen. Het ging om keramiek vertelde ze. Met enige verbazing zag ik dat het ging om onder andere Dekton van Cosentino. Toen ik de merknaam Cosentino liet vallen, bevestigde de medewerker dat het keramiek van Cosentino is en en dat het uit Spanje komt.

Al met al met heb ik meegekregen dat vanaf 7 maart Ikea keramiekbladen (Dekton) van Cosentino gaat verkopen. Interessante ontwikkeling,

Ik heb voor de fun ons keukenblad laten narekenen. Dekton Kelya van het formaat 306x40 (2cm massief) voor het tv meubel kwam op 600 euro en 600 euro voor inmeten en andere dingen (totaal 1200 euro).
Is Ikea weer gestopt met het aanbieden van keramische werkbladen?

https://www.ikea.com/nl/nl/cat/keramische-werkbladen-46460/

Acties:
  • 0 Henk 'm!

  • mevrouwKees_1
  • Registratie: December 2020
  • Laatst online: 10-08 17:24
Source90 schreef op woensdag 18 mei 2022 @ 11:52:
[...]

[Afbeelding]

Nette prijs voor de Miele (staat nu voor 3870 op de site). Maar wat een belachelijke prijs voor een afvoer-buisje en koudwater. 8)7
Prijzen stijgen overal als een malle.. Ach dan loop ik wel keertje extra om de tank te vullen/legen

Ik ben overal tegen. Tot ik een besluit neem, dan ben ik ervoor


Acties:
  • +2 Henk 'm!

  • BlowFish
  • Registratie: Maart 2004
  • Laatst online: 21-10 23:04
mevrouwKees_1 schreef op woensdag 18 mei 2022 @ 12:30:
[...]


Prijzen stijgen overal als een malle.. Ach dan loop ik wel keertje extra om de tank te vullen/legen
Hier voor de Miele 7845x gegaan. Kost wat maar dan heb je er geen omkijken meer naar. Liever wat meer betalen dan jarenlang bij iedere extra/onnodige handeling denken .. had ik maar wat meer uitgegeven 😅.. ach zo heeft ieder zijn eigen beweeg redenen.

Acties:
  • 0 Henk 'm!

  • mevrouwKees_1
  • Registratie: December 2020
  • Laatst online: 10-08 17:24
BlowFish schreef op woensdag 18 mei 2022 @ 12:36:
[...]


Hier voor de Miele 7845x gegaan. Kost wat maar dan heb je er geen omkijken meer naar. Liever wat meer betalen dan jarenlang bij iedere extra/onnodige handeling denken .. had ik maar wat meer uitgegeven 😅.. ach zo heeft ieder zijn eigen beweeg redenen.
Zo erg is het allemaal niet ;). Het was prijs en ik vond hem qua bediening niet fijn (maar dat is persoonlijk ) En ik denk dus echt niet “had ik maar “. Ik zit meestal in de keuken als ik kook dus hoor het geluidje van tank leek direct en mijn app meldt het ;).

Ik ben overal tegen. Tot ik een besluit neem, dan ben ik ervoor


Acties:
  • 0 Henk 'm!

  • Batilan
  • Registratie: December 2009
  • Nu online
mevrouwKees_1 schreef op woensdag 18 mei 2022 @ 12:53:
[...]


Zo erg is het allemaal niet ;). Het was prijs en ik vond hem qua bediening niet fijn (maar dat is persoonlijk ) En ik denk dus echt niet “had ik maar “. Ik zit meestal in de keuken als ik kook dus hoor het geluidje van tank leek direct en mijn app meldt het ;).
Precies, en dat watertankje vullen en plaatsen valt toch in het niet in verhouding tot alle acties die een gemiddelde, laat staan uitgebreide kook-sessie met zich meebrengt :)

Acties:
  • 0 Henk 'm!

  • Source90
  • Registratie: December 2008
  • Laatst online: 20:14
BlowFish schreef op woensdag 18 mei 2022 @ 12:36:
[...]


Hier voor de Miele 7845x gegaan. Kost wat maar dan heb je er geen omkijken meer naar. Liever wat meer betalen dan jarenlang bij iedere extra/onnodige handeling denken .. had ik maar wat meer uitgegeven 😅.. ach zo heeft ieder zijn eigen beweeg redenen.
Nice! Heb je ook een bakoven er naast?
Hier de H7860 en die heeft ook een waterslang (kwam ik later pas achter 8)7 ) om een soort "added steam" (Siemens) uit te voeren in de Pro-functies.

Heb zelf nog niet gespeeld met de Pro-functies, hoop dat dit aan bod komt in de kook-demo die er bij zat in Vianen (juli pas).

Acties:
  • 0 Henk 'm!

  • sawtomyer
  • Registratie: Februari 2012
  • Laatst online: 17:24
twi schreef op zaterdag 14 mei 2022 @ 17:20:
[...]

Nouja, hou ons op de hoogte, maar ik raad aan om je even vast te houden.

***members only***

Soms heb ik nog wel eens het idee dat keukenzaken onderlinge lijntjes hebben dat wanneer er offertes gedeeld worden, ze elkaar bellen en vragen om een uitzonderlijke offertebedrag te noemen in ruil voor een kleine vergoeding. "Joh, Ekelhoff, we hebben een offerte ontvangen van ... We willen ze best wel laten komen, voor 250 euro rekenen we ze even een keuken voor die veel duurder is dan die van jullie."
Inmiddels heb ik de offerte ontvangen inclusief plaatsen voor het volgende:
Schueller keuken, 5 kastenwand hoog aan de ene zijde, 2 kastenwand hoog aan de andere zijde met een aanrechtblad met beneden 3x 60cm kasten. In het midden een eiland met onder ruimte voor 2x 1.20 lade, 30 cm apothekerskast, 90 cm lade aan de warme zijde en aan de koude zijde van het eiland 4x60 bij 35 cm diep. Zowel eiland als aanrechtblad is van keramiek.

In de offerte:
- Keramisch blad van Jetstone Keramik 20/6mm type Venatino mat
- Vuilnis system onder aanrechtblad
- Siemens HM676G0S1 combi oven/magnetron
- Siemens HB674GBS1 oven
- Siemens BI630ENS1 pannenlade onder oven
- Siemens CT636LES6 inbouw koffiemachine met zelfontkalking
- Bora puru
- Quooker PRO3 met Quooker Nordic zeeppomp
- Franke 1270375271 spoelbak
- In Sink Erator 56 voedselrestenvermaler
- Siemens SX65Z801BE vaatwasser
- Siemens KI86NNFF0 178cm koelvries

In de offerte ontbreekt wel de Siemens 178cm koelkast.

Afbeeldingslocatie: https://tweakers.net/i/yHFBf5KUf7v0fLMgdhshUan3EhY=/800x/filters:strip_icc():strip_exif()/f/image/aPTBnY6It0rRjmyoruPhlCUH.jpg?f=fotoalbum_large

Afbeeldingslocatie: https://tweakers.net/i/oDXtCB1_pTv7wCkyrQQociA1630=/800x/filters:strip_icc():strip_exif()/f/image/3xlY8okmF0h38Ue4EUH3Kuz0.jpg?f=fotoalbum_large

Acties:
  • 0 Henk 'm!

  • mevrouwKees_1
  • Registratie: December 2020
  • Laatst online: 10-08 17:24
Batilan schreef op woensdag 18 mei 2022 @ 13:03:
[...]


Precies, en dat watertankje vullen en plaatsen valt toch in het niet in verhouding tot alle acties die een gemiddelde, laat staan uitgebreide kook-sessie met zich meebrengt :)
exact ik sta dan toch al in de keuken en ben bezig met de overige voor(bereidingen).. Ik kook zelden "makkelijk" en dan is het tankje 1 van de vele handelingen ;)

Ik ben overal tegen. Tot ik een besluit neem, dan ben ik ervoor


Acties:
  • 0 Henk 'm!

  • Floor-is
  • Registratie: Maart 2000
  • Laatst online: 13-10 18:55
sawtomyer schreef op woensdag 18 mei 2022 @ 13:23:
[...]


Inmiddels heb ik de offerte ontvangen inclusief plaatsen voor het volgende:
Schueller keuken, 5 kastenwand hoog aan de ene zijde, 2 kastenwand hoog aan de andere zijde met een aanrechtblad met beneden 3x 60cm kasten. In het midden een eiland met onder ruimte voor 2x 1.20 lade, 30 cm apothekerskast, 90 cm lade aan de warme zijde en aan de koude zijde van het eiland 4x60 bij 35 cm diep. Zowel eiland als aanrechtblad is van keramiek.

In de offerte:
- Keramisch blad van Jetstone Keramik 20/6mm type Venatino mat
- Vuilnis system onder aanrechtblad
- Siemens HM676G0S1 combi oven/magnetron
- Siemens HB674GBS1 oven
- Siemens BI630ENS1 pannenlade onder oven
- Siemens CT636LES6 inbouw koffiemachine met zelfontkalking
- Bora puru
- Quooker PRO3 met Quooker Nordic zeeppomp
- Franke 1270375271 spoelbak
- In Sink Erator 56 voedselrestenvermaler
- Siemens SX65Z801BE vaatwasser
- Siemens KI86NNFF0 178cm koelvries

In de offerte ontbreekt wel de Siemens 178cm koelkast.

[Afbeelding]

[Afbeelding]
Voedselvermaler, die kom je in Europa niet vaak tegen :)

Bericht hierboven


Acties:
  • +2 Henk 'm!

  • Z___Z
  • Registratie: Maart 2002
  • Niet online
Floor-is schreef op woensdag 18 mei 2022 @ 14:22:
[...]

Voedselvermaler, die kom je in Europa niet vaak tegen :)
Is ook verboden in Nederland
https://www.infomil.nl/on...voedingsmiddelen/gebruik/

Valt imho in dezelfde categorie als restafval in de GFT container gooien of frituurvet door de wc spoelen.

Acties:
  • 0 Henk 'm!

  • Z___Z
  • Registratie: Maart 2002
  • Niet online
BlowFish schreef op woensdag 18 mei 2022 @ 12:36:
[...]


Hier voor de Miele 7845x gegaan. Kost wat maar dan heb je er geen omkijken meer naar. Liever wat meer betalen dan jarenlang bij iedere extra/onnodige handeling denken .. had ik maar wat meer uitgegeven 😅.. ach zo heeft ieder zijn eigen beweeg redenen.
Probleem van deze denkwijze is dat je dan bijna altijd bij de top of the line producten uitkomt. Ik kijk welke features ik minimaal wil hebben en dan zoek ik het goedkoopste product wat aan die eisen voldoet. Maar goed, mooie apparatuur die top lijn van Miele.

Als ik de prijs van de ovens ga delen over het aantal keer dat ik hem verwacht gebruiken in zijn levensduur, kan ik beter het eten laten bezorgen 😂

Acties:
  • 0 Henk 'm!

  • Source90
  • Registratie: December 2008
  • Laatst online: 20:14
Z___Z schreef op woensdag 18 mei 2022 @ 14:42:
[...]

Probleem van deze denkwijze is dat je dan bijna altijd bij de top of the line producten uitkomt. Ik kijk welke features ik minimaal wil hebben en dan zoek ik het goedkoopste product wat aan die eisen voldoet. Maar goed, mooie apparatuur die top lijn van Miele.

Als ik de prijs van de ovens ga delen over het aantal keer dat ik hem verwacht gebruiken in zijn levensduur, kan ik beter het eten laten bezorgen 😂
Hier juist uit oogpunt van duurzaamheid gekozen voor het duurste model.
Bij Siemens (@ Inspiratiehuis 20|20) vond ik de stoomoven reservoir alles behalve rigide ogen. Leek erop alsof dat plastic nokje waar je hem mee vast klikt elk moment kon afbreken.
Dan zal je zien dat wij het geluk hebben dat dit net na 61 maanden gebeurt (zoals altijd, net buiten de garantie).

Dat was de voornaamste reden van een vaste aansluiting (op een enkele keer per jaar ontkalken), nimmer een reservoir o.i.d. eruit hoeven te halen.
Uiteraard kan er nog genoeg kapot gaan. Heb het in onze oude keuken gezien met plastic nokjes/grijpertjes; breekt altijd af waardoor het nét niet meer goed aansluit.


Ondanks de gratis upgrade van de vaatwasser (7155 naar 7255 XXL), toch wel spijt dat wij niet de Miele@home modellen hebben gekozen. Met Superview op de oven kan je alle apparaten die aan staan zien qua status/looptijd etc.
Zo hoeft de vaatwasser niet open om te zien hoe lang hij nog moet. Ook handig om in één oogopslag op het display van de oven te zien wat de timer op alle apparaten is.
< Vroegâh altijd de vaatwasser in de nacht aan. Met ruim 8KWh aan PV op het dak, gaat hij nu juist overdag aan.

Acties:
  • 0 Henk 'm!

  • sawtomyer
  • Registratie: Februari 2012
  • Laatst online: 17:24
sawtomyer schreef op woensdag 18 mei 2022 @ 13:23:
[...]


Inmiddels heb ik de offerte ontvangen inclusief plaatsen voor het volgende:
Schueller keuken, 5 kastenwand hoog aan de ene zijde, 2 kastenwand hoog aan de andere zijde met een aanrechtblad met beneden 3x 60cm kasten. In het midden een eiland met onder ruimte voor 2x 1.20 lade, 30 cm apothekerskast, 90 cm lade aan de warme zijde en aan de koude zijde van het eiland 4x60 bij 35 cm diep. Zowel eiland als aanrechtblad is van keramiek.

In de offerte:
- Keramisch blad van Jetstone Keramik 20/6mm type Venatino mat
- Vuilnis system onder aanrechtblad
- Siemens HM676G0S1 combi oven/magnetron
- Siemens HB674GBS1 oven
- Siemens BI630ENS1 pannenlade onder oven
- Siemens CT636LES6 inbouw koffiemachine met zelfontkalking
- Bora puru
- Quooker PRO3 met Quooker Nordic zeeppomp
- Franke 1270375271 spoelbak
- In Sink Erator 56 voedselrestenvermaler
- Siemens SX65Z801BE vaatwasser
- Siemens KI86NNFF0 178cm koelvries

In de offerte ontbreekt wel de Siemens 178cm koelkast.

[Afbeelding]

[Afbeelding]
Na de offerte van 30.8k te hebben ontvangen heb ik zojuist stevig onderhandeld met de verkoper en de emoties liep "hoog" op. Uiteindelijk heb ik een finaal bod neergelegd van 27k onder de voorwaarde dat ik de helft van dit bedrag binnen 8 dagen zal betalen.
Aanvankelijk ging ik uit van 26k max voor deze keuken inclusief montage, maar ik vind de extra 1.000 euro voor mijzelf te verantwoorden omdat de apparatuur in totaal daadwerkelijk 11k kost als ik deze online los zou kopen hetgeen 1.000 hoger uitvalt dan mijn eerdere schatting voor de apparatuur. De verkoper gaat het voorleggen aan zijn manager en hij zal mij spoedig hierover berichten. Zijn reactie zal ik hier delen.

Acties:
  • 0 Henk 'm!

  • mevrouwKees_1
  • Registratie: December 2020
  • Laatst online: 10-08 17:24
Source90 schreef op woensdag 18 mei 2022 @ 15:22:
[...]

Hier juist uit oogpunt van duurzaamheid gekozen voor het duurste model.
Bij Siemens (@ Inspiratiehuis 20|20) vond ik de stoomoven reservoir alles behalve rigide ogen. Leek erop alsof dat plastic nokje waar je hem mee vast klikt elk moment kon afbreken.
Dan zal je zien dat wij het geluk hebben dat dit net na 61 maanden gebeurt (zoals altijd, net buiten de garantie).

Ik heb geen nokje, ik schuif de tank erin en nergens vastklikken, schuiven en klaar.. Tank is best zwaar moet ik zeggen

Ik ben overal tegen. Tot ik een besluit neem, dan ben ik ervoor


Acties:
  • 0 Henk 'm!

  • Source90
  • Registratie: December 2008
  • Laatst online: 20:14
mevrouwKees_1 schreef op woensdag 18 mei 2022 @ 15:59:
Ik heb geen nokje, ik schuif de tank erin en nergens vastklikken, schuiven en klaar.. Tank is best zwaar moet ik zeggen
Mogelijk bij NEFF beter geregeld. Bij Siemens zag hij er zo uit (afbeelding opgezocht):
Afbeeldingslocatie: https://tweakers.net/i/qtMNqww7PJa07hBig7eN2XPbfuI=/800x/filters:strip_exif()/f/image/TM5vB7t67NHhANwhmdnJK8It.png?f=fotoalbum_large

Mogelijk valt het in de praktijk wel mee, in de showroom vond ik dat nokje aan de onderkant en het "tuutje" voor het reservoir niet solide ogen.
Wellicht zal je een nieuw reservoir (80€) kunnen kopen bij defect. Heb alleen mindere ervaring met het kopen van EOL onderdelen bij ander merk, waardoor ik wat huiverig ben met mogelijk fragiele delen die ik dan wellicht niet meer kan krijgen na 5-10 jaar.

Hoop toch wel dat die oven van 5K zo lang mee gaat. :+

[ Voor 5% gewijzigd door Source90 op 18-05-2022 16:15 ]


Acties:
  • 0 Henk 'm!

  • mevrouwKees_1
  • Registratie: December 2020
  • Laatst online: 10-08 17:24
Source90 schreef op woensdag 18 mei 2022 @ 16:13:
[...]

Mogelijk bij NEFF beter geregeld. Bij Siemens zag hij er zo uit (afbeelding opgezocht):
[Afbeelding]

Mogelijk valt het in de praktijk wel mee, in de showroom vond ik dat nokje aan de onderkant en het "tuutje" voor het reservoir niet solide ogen.
Wellicht zal je een nieuw reservoir (80€) kunnen kopen bij defect. Heb alleen mindere ervaring met het kopen van EOL onderdelen bij ander merk, waardoor ik wat huiverig ben met mogelijk fragiele delen die ik dan wellicht niet meer kan krijgen na 5-10 jaar.

Hoop toch wel dat die oven van 5K zo lang mee gaat. :+
nee die heb ik niet idd. Ik heb een heel ander ding. Mijn oven kost bruto iets van 3200 meen ik.. Netto net iets meer dan de helft voor betaald.. scheelt nogal met die Miele ..

Ik ben overal tegen. Tot ik een besluit neem, dan ben ik ervoor


Acties:
  • 0 Henk 'm!

  • Source90
  • Registratie: December 2008
  • Laatst online: 20:14
mevrouwKees_1 schreef op woensdag 18 mei 2022 @ 16:15:
[...]


nee die heb ik niet idd. Ik heb een heel ander ding. Mijn oven kost bruto iets van 3200 meen ik.. Netto net iets meer dan de helft voor betaald.. scheelt nogal met die Miele ..
(Voor Bosch en Siemens):
Als dit al standaard in het assortiment zit, heb ik al mijn twijfels haha :o
https://www.europart.nl/n...2-oven-magnetron-90511050

"REPARATIESET AFDICHTING WATERTANK STOOMOVEN BSH"

[ Voor 4% gewijzigd door Source90 op 18-05-2022 16:19 ]


Acties:
  • 0 Henk 'm!

  • Source90
  • Registratie: December 2008
  • Laatst online: 20:14
sawtomyer schreef op woensdag 18 mei 2022 @ 15:57:
[...]


Na de offerte van 30.8k te hebben ontvangen heb ik zojuist stevig onderhandeld met de verkoper en de emoties liep "hoog" op. Uiteindelijk heb ik een finaal bod neergelegd van 27k onder de voorwaarde dat ik de helft van dit bedrag binnen 8 dagen zal betalen.
Aanvankelijk ging ik uit van 26k max voor deze keuken inclusief montage, maar ik vind de extra 1.000 euro voor mijzelf te verantwoorden omdat de apparatuur in totaal daadwerkelijk 11k kost als ik deze online los zou kopen hetgeen 1.000 hoger uitvalt dan mijn eerdere schatting voor de apparatuur. De verkoper gaat het voorleggen aan zijn manager en hij zal mij spoedig hierover berichten. Zijn reactie zal ik hier delen.
Terug ontopic:
Flinke keuken voor dat geld. Ben benieuwd.

Acties:
  • +12 Henk 'm!

  • SquareOne
  • Registratie: Januari 2010
  • Laatst online: 21:56
SquareOne schreef op dinsdag 17 mei 2022 @ 13:39:
Hier druk bezig met plaatsen 🙌. Morgen als het goed is het eindresultaat.

***members only***


Kleurstelling was nog wel spannend omdat we de combinatie nergens in het groot hadden gezien. Maar erg blij met de kleurstelling.
Members only:
Alleen zichtbaar voor ingelogde gebruikers. Inloggen

[ Voor 34% gewijzigd door SquareOne op 18-05-2022 17:20 ]


Acties:
  • +1 Henk 'm!

  • BlowFish
  • Registratie: Maart 2004
  • Laatst online: 21-10 23:04
Source90 schreef op woensdag 18 mei 2022 @ 13:11:
[...]

Nice! Heb je ook een bakoven er naast?
Hier de H7860 en die heeft ook een waterslang (kwam ik later pas achter 8)7 ) om een soort "added steam" (Siemens) uit te voeren in de Pro-functies.

Heb zelf nog niet gespeeld met de Pro-functies, hoop dat dit aan bod komt in de kook-demo die er bij zat in Vianen (juli pas).
Afbeeldingslocatie: https://tweakers.net/i/BPm16XLX0i6gvEotqLkLM5Nzxkg=/800x/filters:strip_icc():strip_exif()/f/image/5123TuiODNc7QmlxepaZCrU7.jpg?f=fotoalbum_large

Uiteraard :*)

Acties:
  • 0 Henk 'm!

  • Huisje1
  • Registratie: Januari 2020
  • Laatst online: 03-11-2023
Mooi geworden! Wel jammer dat je pech hebt met de bora en je nog even op de apparatuur moet wachten, maar ja dat had je misschien al wel verwacht.

Acties:
  • 0 Henk 'm!

  • Source90
  • Registratie: December 2008
  • Laatst online: 20:14
Gaaf! Inbouw koffie durfde ik niet aan vanwege recensies online, hoe bevalt die?
Hier nu een Siemens EQ9 ernaast :7

Nog paar puntjes:
- Gebruiken jullie Miele@Home? Zie de knopjes uit staan bij jullie (telefoon-icon).
Hier gaat de telefoon (oranje lampje / bedienen op afstand) uit na elk gebruik. Een bug volgens Miele. Jullie daar ook last van? Wat betreft mobiele connectiviteit lopen ze nog wel een beetje achter op BSH (nog nooit verbinding verloren met de Siemens koffiemachine, bij Miele moet ik nu elke keer op het knopje drukken. Vergeet je het, kan je de oven niet voorverwarmen op afstand :-( ).

- Die bakoven (kan type niet zien) heeft ook het "water rietje" toch? Hebben jullie die al eens gebruikt / ofwel de "Functie Professional"? Hier nog aan het experimenteren :Y)
Afbeeldingslocatie: https://media.miele.com/images/2000015/200001576/20000157656.png?policy=boxed&imwidth=320
quote: Miele
Functie Professional
Optimale resultaten met de functie Professional.
Zo realiseer je moeiteloos de beste resultaten: door toevoer van vocht wordt vlees vanbinnen mals met aan de buitenkant een smakelijk korstje, brood en broodjes worden luchtig en tegelijkertijd optimaal gebruind. Voor nog meer comfort kun je de stoominjecties op het juiste tijdstip programmeren. Ook in verschillende automatische programma's wordt de functie Professional gebruikt.
- Die vingerafdrukken zijn hier ook alom aanwezig. Hele dag met een doekje in de weer :')

Acties:
  • 0 Henk 'm!

  • besteller2019
  • Registratie: Oktober 2019
  • Laatst online: 14-10 14:36
Hoi allen,

Een paar weken geleden is onze keuken geleverd. We hebben een vrij dik (8cm) werkblad van beton light.

Helaas waren er bij oplevering toch een aantal gebreken: er zit een kleine kras in het werkblad, er is een forse beschadiging aan een hoek en de uitsparing voor het stopcontact is rechthoekig in plaats van ovaal. Dit zijn allemaal aspecten die volgens de leverancier van het blad gerepareerd kunnen worden. Dat wil ik op zich best geloven.

Er is daarnaast een iets significantere bevinding, namelijk: het werkblad is een beetje krom. De monteur van dienst heeft dit als bevinding opgenomen. Volgens de leverancier trekt dit met het verstrijken van de tijd recht. Dit vind ik iets moeilijker om te geloven.

Zijn hier mensen met een betonnen werkblad en hebben jullie ervaring met het fixen van beschadigingen dan wel een ietswat krom werkblad? Of wellicht mensen die in de keuken branche werken en die hier verstand van hebben? Hoor graag jullie visie hierop (ook van niet-experts).

Afbeeldingslocatie: https://tweakers.net/i/qpF4_mMJh8-mv8P6rMl3I7YsGoo=/x800/filters:strip_icc():strip_exif()/f/image/PwwvZ1OmaEBo2oQd4Q0cpodc.jpg?f=fotoalbum_large

Afbeeldingslocatie: https://tweakers.net/i/w0qz1bXY1ffLkdsRj1QFQOSvAuc=/800x/filters:strip_icc():strip_exif()/f/image/btlNE6cn4KRNJAWbwlqALDpG.jpg?f=fotoalbum_large

We zitten midden in een verhuizing dus let niet op de rommel AUB :P

Acties:
  • 0 Henk 'm!

  • Royal-Tweety
  • Registratie: December 2000
  • Laatst online: 22-10 15:04
Source90 schreef op dinsdag 17 mei 2022 @ 16:21:
[...]
Het grootste verschil tussen de 78xx en 76xx is het grotere scherm. Heb je ze al eens naast elkaar gezien in de showroom? Zit in mijn ogen een behoorlijk verschil in beleving tussen de twee. Grote vond ik zelf makkelijker te bedienen en overzichtelijker, vandaar dat hij hier ook staat (H 7860 en DGC 7845)
Thanks voor de foto, ik had de bredere display in mijn zoektocht nog niet opgemerkt. Ik twijfel nu ook welke display ik in de winkels heb gezien. (Ben nog nooit in het experience center geweest).

We hebben zoals gezegd een stoomoven van 60 en een combimagnetron van 45 cm ingepland; in de gedachte: de stoomoven is een beter apparaat, die gebruik je veel meer en daar kies je de beste variant van. Maar ik vind het idee van een 45 cm stoomoven (voor groente) en een 60 cm oven voor de braadstukken / bakken etc. ook geen gek idee.

Zit er veel verschil in oven-kwaliteit tussen de ovens en de combimagnetron? Ik ben in de veronderstelling dat een wat duurdere combimagnetron (H7640) niet onderdoet voor een standalone oven / stoomoven met bakfunctie, maar op basis van jouw verhaal lijkt dit niet te kloppen.
Ik weet ook niet of we de magnetron functie wel kunnen missen. We gebruiken hem nog behoorlijk vaak voor opwarmen van melk in de ochtend of chocolademelk en het opwarmen van "prakjes" van de kinderen, als wij zelf iets uitgebreider eten (al is dat over een paar jaar waarschijnlijk veel minder). Opwarmen van eten kan weliswaar in een stoomoven / warmhoudlade, maar dat vergt iets meer planning. Liever heb ik alle functies van de apparaten, maar als ik daarmee een grote consessie toe t.a.v. de oven, is het een andere overweging en kan er een b.v. een standalone magnetron in de bijkeuken.

@mevrouwKees_1: Leuk om die positieve stoom-verhalen te lezen! Ik krijg ook zin in asperges :P Die stoomoven met wateraansluiting komt er sowieso, alleen nog even type en maat beslissen.
Source90 schreef op dinsdag 17 mei 2022 @ 16:21:
[...]
Heb je ook een impressie/plattegrond van de keuken?
Het wordt een nieuwe keuken in bestaande (2000) bouw. Hieronder een impressie en plattegrond, nog niet helemaal zoals we het willen (de bar zien we vanaf). De indeling wordt beperkt doordat we een deur naar de bijkeuken hebben en dus niet tegen de ondermuur kunnen aanbouwen. Hierdoor is er slechts ruimte voor 2 hoge kasten (met 3 kasten wordt het blad bij de kookplaat heel beperkt doordat je ruimte voor de 3e kast moet uitsparen. Koelkast komt in de linker kast (vriezer in de bijkeuken) en de ovens onder elkaar in de rechter kast. Symmetrie (60 / 45+15) is dus geen issue.

De stoomoven komt op de plaats van de huidige spoelbak, dus daar zit een afvoer- en wateraansluiting.

Afbeeldingslocatie: https://tweakers.net/i/i1clgkjFxy1QlAhf-UkgPOtID3A=/800x/filters:strip_icc():strip_exif()/f/image/2UalU4VwkBEdL9F8d3zOlSOn.jpg?f=fotoalbum_large

Afbeeldingslocatie: https://tweakers.net/i/oxcbgH0-Pit9hUs1vx8mwpqPq9Q=/800x/filters:strip_exif()/f/image/b4KVILEanVeSv3J0eUG5Flmo.png?f=fotoalbum_large

Ik zal binnenkort hier nog eens polsen wat jullie van de prijzen vinden, want ik vindt dat heel erg moeilijk inschatten. De foto hierboven was met composiet blad en Punto Zera FM kasten 28k exclusief montage (en zonder enige korting). Wat volgens mij aardig aan de prijs is.

Carpe Noctem


Acties:
  • +1 Henk 'm!

  • Treepata
  • Registratie: Juni 2007
  • Laatst online: 25-10 08:15
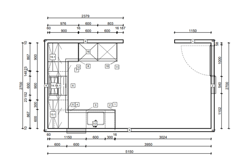
Atomius schreef op dinsdag 17 mei 2022 @ 09:26:
Dag allemaal,

Wij gaan een nieuwe laten plaatsen i.h.k.v. een renovatie van een bestaande woning.

Dit is de plattegrond:

[Afbeelding]

Zoals je ziet willen we graag een groot eiland. Afmetingen: 300x120cm. Aan de rechterkant willen we 110cm doorloopruimte hebben, aan de onderkant idem dito. Bovenin zal het dan 90cm zijn.

Daarnaast 4 hoge kasten onder het eiland. Dat muurtje is 240cm dus het zullen 3 kasten van 60cm worden en 1 van 40-50cm. Rechts koelkast, dan combi en oven, dan vriezer onderin en daarboven een koffienis en dan nog een kast van 40-50cm.

Het liefst hebben we greeploos en een composiet blad. Een koffienis vinden we dus leuk staan. We willen een grote dedicated koelkast, een aparte vriezer met 3-4 vakken, een 60cm oven en een 45cm combi, een Bora of vergelijkbaar, een Quooker.

Qua stijl is ons oog gevallen op een combinatie van Scandinavisch en landelijk:

[Afbeelding]

KVIK heeft al mooie plaatjes gemaakt (wel met grepen):

[Afbeelding]

[Afbeelding]

[Afbeelding]

Nu ben ik reeds naar verschillende keukenzaken geweest.

- KVIK gaf een offerte van rond de 24k - helemaal uitgewerkt. Kasten + inrichting 9,6K. Werkblad 5,3K. Apparatuur 7,5K (actie nu -1500). Helaas dus niet greeploos. Verder alle apparatuur van Siemens (behalve de Quooker). iQ500 kookplaat, iQ700 oven, iQ700 combi, iQ500 koelkast, iQ500 vriezer, iQ300 afwasmachine. Ze zeiden dat korting uitgesloten was.

- Artic keukens in Utrecht 25-29k - niet helemaal uitgewerkt, wel een inschatting waar 3 uur over nagedacht is.

- Tulp kwam aanzetten met het illustere bedrag van 30k - ruwe inschatting.

- Een hele ruwe inschatting van de Keukenloods kwam uit op "20-22k".

Het liefst blijven wij toch wel onder de 20k als het even kan. Wat vinden jullie ervan? Is dit onrealistisch? Keukenzaken die jullie aanraden? Andere opmerkingen?

KVIK zelf gaf aan dat je kan besparen op je blad -> dus kunststof i.p.v. composiet, niet-houten frontjes.
Kleine suggestie - toen wij met Kvik spraken, zeiden ze dat we ook eigen apparatuur konden kopen en die erin laten plaatsen. Dan heb je dus opties om voor bijvoorbeeld goedkope aanbieders, 2e kans of 2e hands e.d. te gaan. Misschien vragen of dat ook bij die Kvik kan?

Modern technology owes nature an apology.


Acties:
  • 0 Henk 'm!

  • Caroline02
  • Registratie: September 2018
  • Laatst online: 07-10 17:45
BeeJee78 schreef op vrijdag 13 mei 2022 @ 00:08:
Beste mensen,
Onze keuken komt in juli en nu heb ik een offerte opgevraagd voor het verleggen van leidingen en aanleggen extra groepen e.d. en ik schrik nogal van de prijs. Ligt het aan mij of is dit duur?

Werkzaamheden:
- Aanleggen kookgroep tbv inductie en aanleggen perilex stopcontact
- Nog een extra groep voor quooker maken (beide gaan via de kruipruimte naar de keuken, ongeveer 5 meter).
- Aanleggen en infrezen van een aantal stopcontacten tbv apparaten
- 3x mat zwarte stopcontacten aanleggen
- Gas afsluiten in de keuken
- waterleiding verleggen (ong 1m verplaatsen)
- op 2 plekken kabels leggen voor verlichting aan de muur

Dit alles voor 1610,- incl btw.
Is dit normaal?
Hi! Nu ik dit zo zie, begin ik ook wel ernstig te twijfelen aan de offerte die ik heb gekregen voor slopen, afvoeren, stucwerk, schilderen, leidingen verplaatsen etc.

Projectbegeleiding 1022
Slopen en afvoeren 1089
Stucwerk 1308
Schilderwerk plafond en muren 922
Verplaatsen leidingen 1850

Totaal dus rond 6200 incl btw :/

Het gaat om een ruimte van 5x2,70m. Keuken is/wordt 2,70x 2,20. Spoelgedeelte gaat van rechts naar links, koken blijft in het midden (van gas naar inductie). Offerte nog excl aanpassen meterkast.

Offerte via een aannemer omdat ik ook een lekkage heb (standleiding) die opgelost moet worden, maar dat loopt via VVE. Dus wel een beetje beperkt in de keuze en minder goede onderhandelingspositie. Anders moet de keukenvloer 2x open (lang en lastig verhaal, geen kruipruimte ed)

Afbeeldingslocatie: https://tweakers.net/i/J0ciNBm6BpJBYuBCugbwW_-QXtI=/800x/filters:strip_exif()/f/image/Q9MYRgZ2uzKLwT3oDh7jKF2O.png?f=fotoalbum_large

Acties:
  • 0 Henk 'm!

  • Erkel
  • Registratie: Mei 2006
  • Laatst online: 26-10 17:14
BeeJee78 schreef op vrijdag 13 mei 2022 @ 00:08:
Beste mensen,
Onze keuken komt in juli en nu heb ik een offerte opgevraagd voor het verleggen van leidingen en aanleggen extra groepen e.d. en ik schrik nogal van de prijs. Ligt het aan mij of is dit duur?

Werkzaamheden:
- Aanleggen kookgroep tbv inductie en aanleggen perilex stopcontact
- Nog een extra groep voor quooker maken (beide gaan via de kruipruimte naar de keuken, ongeveer 5 meter).
- Aanleggen en infrezen van een aantal stopcontacten tbv apparaten
- 3x mat zwarte stopcontacten aanleggen
- Gas afsluiten in de keuken
- waterleiding verleggen (ong 1m verplaatsen)
- op 2 plekken kabels leggen voor verlichting aan de muur

Dit alles voor 1610,- incl btw.
Is dit normaal?
Lijkt me geen hele slechte prijs toch. Wij hebben vorig jaar een perilex aansluiting laten plaatsen, waren inc het vervangen van de groepenkast bijna 2k kwijt. Maar er hoefde dan geen dingen ingefreesd te worden.

C2D E6600 - 2048MB Kingston - Sapphire HD2900XT - 200Gb Samsung - Asus P5B-E


Acties:
  • 0 Henk 'm!

  • Frankvbr
  • Registratie: November 2004
  • Laatst online: 26-10 12:52
Streamz schreef op woensdag 18 mei 2022 @ 09:28:
[...]

Loop met dit lijstje een Superkeukens binnen. Als je daar met je budget niet uitkomt, moet je verdere concessies doen.
Je zit met je budget voor een dergelike keuken, en ook voor het hoekalternatief aan de onderkant van de markt. Vergeet fancy oplossingen, passen geen van allen in je budget.
Superkeukens hebben we 6 jaar geleden ook gedaan. Keuken van +-9k. AEG apparatuur, Keramisch werkblad, Iets kleiner maar scheelt niet veel, alleen geen gelakte frontjes.
Gewenst upgrades keuken in de nieuwe woning:
- Gelakte deuren (betere kwaliteit)
- Fatsoenlijk merk vaatwasser (en als prijsverschil niet significant is, rest van apparatuur kleine upgrade)
Had zelf het idee dat met een prijsverdubbeling we aardig ver moeten komen.
Dus let goed op welke keuzes je maakt. Met name de keuze van het blad zal een grote invloed op de totaalprijs hebben. Neem een neutraal, simpel en goedkoop blad.Heb je die keuze gemaakt, dan de fronten die bijpassend zijn.
Eigenlijk interesseert merk/soort kast aan de achterzijde me helemaal niets. Als ik maar goed werkblad heb en degelijke frontjes. Het is me alleen niet duidelijk hoeveel duurder zo'n keuken wordt van gelakte frontjes en of mat de prijsstelling veel hoger maakt.
Nog even over dat budget, in dit ontwerp heb je 13 of 14 kasten met front.Ik heb je apparatenlijstje niet opgezocht, maar vermoed zo'n 6k netto? Hou je van je 15- 20k max budget dus 9- 14k over. Even heel krap budgetteren:
Installatie 1,5k, blad 3k, kleinmateriaal en ladeindeling 500 euro, kraan en spoelbak 1k, heb je 4-9k voor je 14 kasten. Da's 285 - 642 euro per kast gemiddeld. Zit je echt in de lagere prijsgroepen.
Apparatuur:
Koelkast 1,0 Vaatwasser 0,75 Oven 0,75. Iets van een inductieplaat met afzuiging ontkom ik waarschijnlijk niet aan qua opstelling bij een eiland. Dus totaal 4 tot 6k afhankelijk van een 'bora'.
Met eiland kom ik op 7 lage kasten, 4 hoge.
Wat is je schatting qua kosten voor kasten dan in normaal segment? (
Dus vermijd opties die duur zijn. En vermijd al helemaal opties die duur om goed te laten werken. Bijv brede lades.


Voor dit budget zou ik het heel anders aanpakken. Ik zou MP aanslingeren voor een keukenblad. in de juiste afmeting.
Vervolgens bouwpakket keukenkasten configureren bijv hier https://www.meubelinterieur.nl/keukenkasten inclusief fronten en zelf een keuken opbouwen. Apparatuur kijken wat voorradig is en zelf via internetshop bestellen. Maatwerkkasten tot op de mm, dus vrijheid om kasten over die lengte van 270cm uit te smeren.

Maar goed,moet je wel kunnen en willen.
Het hoeft niet super fancy te zijn. Het moet gewoon degelijk, functioneel zijn en er ook beetje leuk uit zien.
Zelf doen ga ik bij keuken niet doen. Daar kan ik zelf niet goed genoeg voor afwerken en krijg je spijt van.

Zijn diepere keukenkasten (70cm) of hoge kasten +- 240cm ook afwijkend en daarmee duurder of wordt dat al gezien als regulier assortiment?

Voordeel van superkeukens is dat je wat makkelijker zaken weg kan strepen en toe kan voegen. Bij andere keukenzaken is het meer onderhandelen en vervangen van een wasbak door een andere doe je dan minder snel.

Acties:
  • 0 Henk 'm!

  • Floor-is
  • Registratie: Maart 2000
  • Laatst online: 13-10 18:55
Source90 schreef op woensdag 18 mei 2022 @ 15:22:
[...]

Hier juist uit oogpunt van duurzaamheid gekozen voor het duurste model.
Bij Siemens (@ Inspiratiehuis 20|20) vond ik de stoomoven reservoir alles behalve rigide ogen. Leek erop alsof dat plastic nokje waar je hem mee vast klikt elk moment kon afbreken.
Dan zal je zien dat wij het geluk hebben dat dit net na 61 maanden gebeurt (zoals altijd, net buiten de garantie).

Dat was de voornaamste reden van een vaste aansluiting (op een enkele keer per jaar ontkalken), nimmer een reservoir o.i.d. eruit hoeven te halen.
Uiteraard kan er nog genoeg kapot gaan. Heb het in onze oude keuken gezien met plastic nokjes/grijpertjes; breekt altijd af waardoor het nét niet meer goed aansluit.
Ik zou heel graag een vaste aansluiting willen, maar nog liever hebben we de slide&hide deur.. Het is echt jammer dan BSH niet echt met de vaste aansluiting mee lijkt te doen in het productaanbod. Ben niet wild van de looks van de Miele, vind hun greeploze oplossing ook echt net een beetje dom. Dan zou ik voor de BORA gaan, maar die heeft ook een levertijd van eind oktober op het moment. :(
Ondanks de gratis upgrade van de vaatwasser (7155 naar 7255 XXL), toch wel spijt dat wij niet de Miele@home modellen hebben gekozen. Met Superview op de oven kan je alle apparaten die aan staan zien qua status/looptijd etc.
Zo hoeft de vaatwasser niet open om te zien hoe lang hij nog moet. Ook handig om in één oogopslag op het display van de oven te zien wat de timer op alle apparaten is.
< Vroegâh altijd de vaatwasser in de nacht aan. Met ruim 8KWh aan PV op het dak, gaat hij nu juist overdag aan.
Hier ook PV, nu nog 3.4kWp, dat wordt 13.6kWp van de zomer. Erg wennen aan het ‘juist overdag’ principe na heel m’n leven rekening te hebben gehouden met nachttarief :) Nu gaat een groot deel gebruikt worden door de warmtepomp, maar ook de Quooker (400-500kWh schijnt?), onze oude koelkast en vriezer en m’n werkplaats zijn grote verbruikers.

Bericht hierboven


Acties:
  • 0 Henk 'm!

  • Streamz
  • Registratie: Januari 2006
  • Laatst online: 14:21
Frankvbr schreef op donderdag 19 mei 2022 @ 00:09:
[...]

Superkeukens hebben we 6 jaar geleden ook gedaan. Keuken van +-9k. AEG apparatuur, Keramisch werkblad, Iets kleiner maar scheelt niet veel, alleen geen gelakte frontjes.
Gewenst upgrades keuken in de nieuwe woning:
- Gelakte deuren (betere kwaliteit)
- Fatsoenlijk merk vaatwasser (en als prijsverschil niet significant is, rest van apparatuur kleine upgrade)
Had zelf het idee dat met een prijsverdubbeling we aardig ver moeten komen.


[...]

Eigenlijk interesseert merk/soort kast aan de achterzijde me helemaal niets. Als ik maar goed werkblad heb en degelijke frontjes. Het is me alleen niet duidelijk hoeveel duurder zo'n keuken wordt van gelakte frontjes en of mat de prijsstelling veel hoger maakt.


[...]

Apparatuur:
Koelkast 1,0 Vaatwasser 0,75 Oven 0,75. Iets van een inductieplaat met afzuiging ontkom ik waarschijnlijk niet aan qua opstelling bij een eiland. Dus totaal 4 tot 6k afhankelijk van een 'bora'.
Met eiland kom ik op 7 lage kasten, 4 hoge.
Wat is je schatting qua kosten voor kasten dan in normaal segment? (


[...]

Het hoeft niet super fancy te zijn. Het moet gewoon degelijk, functioneel zijn en er ook beetje leuk uit zien.
Zelf doen ga ik bij keuken niet doen. Daar kan ik zelf niet goed genoeg voor afwerken en krijg je spijt van.

Zijn diepere keukenkasten (70cm) of hoge kasten +- 240cm ook afwijkend en daarmee duurder of wordt dat al gezien als regulier assortiment?

Voordeel van superkeukens is dat je wat makkelijker zaken weg kan strepen en toe kan voegen. Bij andere keukenzaken is het meer onderhandelen en vervangen van een wasbak door een andere doe je dan minder snel.
Ik kan je niet verder helpen hiermee. In mn zoektocht ben ik wezen kijken bij allerlei merken en prijsklassen, en besloten weg te blijven bij het budgetsegment. In dit topic zie je genoeg voobeeld van Superkeukens en co. en de merken die in dit segment beschikbaar zijn.

Enige tip die ik heb is eens verder te kijken dan de standaard Duitse kiloknaller merken. Er is best meer te vinden.

Acties:
  • 0 Henk 'm!

  • beyazz06
  • Registratie: December 2009
  • Niet online
Streamz schreef op donderdag 19 mei 2022 @ 09:12:
[...]


Ik kan je niet verder helpen hiermee. In mn zoektocht ben ik wezen kijken bij allerlei merken en prijsklassen, en besloten weg te blijven bij het budgetsegment. In dit topic zie je genoeg voobeeld van Superkeukens en co. en de merken die in dit segment beschikbaar zijn.

Enige tip die ik heb is eens verder te kijken dan de standaard Duitse kiloknaller merken. Er is best meer te vinden.
Zoals? 😬

Als consument koop je eenmaal niet elke dag een keuken, zodoende is het best lastig om een goed beeld hebben wat er allemaal mogelijk is.

Zo heb ik 8 jaar terug een Hacker Systemat keuken gekocht en wil puur vanuit die ervaring weer voor een Hacker gaan omdat ik geen idee heb wat ik bij een ander merk kan verwachten c.q. wat een vergelijkbaar merk/alternatief is..

Acties:
  • 0 Henk 'm!

  • sawtomyer
  • Registratie: Februari 2012
  • Laatst online: 17:24
Source90 schreef op woensdag 18 mei 2022 @ 16:20:
[...]

Terug ontopic:
Flinke keuken voor dat geld. Ben benieuwd.
Hi All,

Ik heb onderstaande reactie ontvangen van de verkoper:

Helaas zal het niet mogelijk zijn om het gewenste bedrag (red: 27k) te realiseren.


Hierbij komen wij tot een te betalen bedrag van 29950 euro, meer is niet mogelijk.

Dit is een bedrag dat niets met rekenen te maken heeft, normaal zou er meer dan 32.000 euro moeten zijn,

maar ik heb mijn baas verteld dat jij en de hele familie al keukens van ons hebben gekregen

en hij zou een mooi bedrag moeten opschrijven. 50% aanbetaling bij het plaatsen van de bestelling en saldo na montage binnen 8 dagen. Het zou jammer zijn als het niet zou passen, maar we kunnen er ook geen geld op zetten.


Voor een sanity check heb ik een offerte gevraagd bij Mobel Faber. In parallel ben ik benieuwd wat jij van dit voorstel vindt. Ik hink op twee gedachten, enerzijds wil ik het voorstel affikken, maar aan de andere kant is het misschien wel een courante prijs en is het moment nu daar dat ik wellicht concessies van mijn kant moet doen door optimalisaties aan te brengen in de offerte. Zelf zit ik te denken aan bijvoorbeeld de 4 opberg kasten onder het eiland (koude zijde) te veranderen naar twee brede kasten van elk 1.20m met 2x twee openslaande deuren. Volgens mij is daardoor automatisch sprake van meteen twee kasten minder hetgeen automatisch resulteert in een verlaging van het bedrag. Ook heb ik gezien dat de vaatwasser als optie heeft om de resttijd op de vloer te projecteren, Siemens adviesprijs 1600 euro. Een vaatwasser zonder deze functie zou niet het einde van de wereld zijn. Ik zie op de website van Siemens door de bomen het bos niet meer, weet jij misschien een goed alternatief van Siemens? De vaatwasmachine heeft ook Zeolith drogingstechniek, maakt dit echt een verschil?

Acties:
  • +1 Henk 'm!

  • LemonC200
  • Registratie: Januari 2009
  • Laatst online: 19:52
sawtomyer schreef op donderdag 19 mei 2022 @ 10:28:
[...]


Hi All,

Ik heb onderstaande reactie ontvangen van de verkoper:

Helaas zal het niet mogelijk zijn om het gewenste bedrag (red: 27k) te realiseren.


Hierbij komen wij tot een te betalen bedrag van 29950 euro, meer is niet mogelijk.

Dit is een bedrag dat niets met rekenen te maken heeft, normaal zou er meer dan 32.000 euro moeten zijn,

maar ik heb mijn baas verteld dat jij en de hele familie al keukens van ons hebben gekregen

en hij zou een mooi bedrag moeten opschrijven. 50% aanbetaling bij het plaatsen van de bestelling en saldo na montage binnen 8 dagen. Het zou jammer zijn als het niet zou passen, maar we kunnen er ook geen geld op zetten.


Voor een sanity check heb ik een offerte gevraagd bij Mobel Faber. In parallel ben ik benieuwd wat jij van dit voorstel vindt. Ik hink op twee gedachten, enerzijds wil ik het voorstel affikken, maar aan de andere kant is het misschien wel een courante prijs en is het moment nu daar dat ik wellicht concessies van mijn kant moet doen door optimalisaties aan te brengen in de offerte. Zelf zit ik te denken aan bijvoorbeeld de 4 opberg kasten onder het eiland (koude zijde) te veranderen naar twee brede kasten van elk 1.20m met 2x twee openslaande deuren. Volgens mij is daardoor automatisch sprake van meteen twee kasten minder hetgeen automatisch resulteert in een verlaging van het bedrag. Ook heb ik gezien dat de vaatwasser als optie heeft om de resttijd op de vloer te projecteren, Siemens adviesprijs 1600 euro. Een vaatwasser zonder deze functie zou niet het einde van de wereld zijn. Ik zie op de website van Siemens door de bomen het bos niet meer, weet jij misschien een goed alternatief van Siemens? De vaatwasmachine heeft ook Zeolith drogingstechniek, maakt dit echt een verschil?
Ik vind dit geen gek bedrag hoor je hebt 5 hoge kasten dat is best veel en verder ook echt een mooi blad er bij.

Wat betreft de vaatwasser ik had een Bosch home connect met zeoliet vaatwasser met projectie etc. Nu heb ik een simpler model van Airo design wel goede kwaliteit met alle basis opties. Eigenlijk mis ik niets enige waar ik naar zou kijken zou zijn, goede verstelbare korven, grote en geluid.

Energielabel maakt niets uit de vorige Bosch vaatwasser was erg zuinig op papier, maar de eco stand gebruikte ik altijd alleen bij licht bevuilde vaat. Er bleef toch altijd een geur achter. Deze Airo design doet los van alle modi altijd een korte periode op 65 graden en mijn vaat ruikt altijd schoon. Bijkomend voordeel ik hoef ook niet meer de hygiene optie te activeren. :+

Acties:
  • +1 Henk 'm!

  • Streamz
  • Registratie: Januari 2006
  • Laatst online: 14:21
beyazz06 schreef op donderdag 19 mei 2022 @ 10:23:
[...]


Zoals? 😬

Als consument koop je eenmaal niet elke dag een keuken, zodoende is het best lastig om een goed beeld hebben wat er allemaal mogelijk is.

Zo heb ik 8 jaar terug een Hacker Systemat keuken gekocht en wil puur vanuit die ervaring weer voor een Hacker gaan omdat ik geen idee heb wat ik bij een ander merk kan verwachten c.q. wat een vergelijkbaar merk/alternatief is..
In de openingspost staat al een lijstje.

Maar er is nog meer te vinden hoor, Wellicht dat dit bij de openingspost erbij kan.

Bijv Linea Quattro, Comprex, SpagnolCucine, Santos en Schmidt. Allemaal in Nederland te verkrijgen.

Acties:
  • 0 Henk 'm!

  • sawtomyer
  • Registratie: Februari 2012
  • Laatst online: 17:24
LemonC200 schreef op donderdag 19 mei 2022 @ 10:53:
[...]


Ik vind dit geen gek bedrag hoor je hebt 5 hoge kasten dat is best veel en verder ook echt een mooi blad er bij.

Wat betreft de vaatwasser ik had een Bosch home connect met zeoliet vaatwasser met projectie etc. Nu heb ik een simpler model van Airo design wel goede kwaliteit met alle basis opties. Eigenlijk mis ik niets enige waar ik naar zou kijken zou zijn, goede verstelbare korven, grote en geluid.

Energielabel maakt niets uit de vorige Bosch vaatwasser was erg zuinig op papier, maar de eco stand gebruikte ik altijd alleen bij licht bevuilde vaat. Er bleef toch altijd een geur achter. Deze Airo design doet los van alle modi altijd een korte periode op 65 graden en mijn vaat ruikt altijd schoon. Bijkomend voordeel ik hoef ook niet meer de hygiene optie te activeren. :+
Hi LemonC200,

Dank voor je bijdrage. De keuken heeft 7 hoge kasten 5 links en 2 rechts.
Voor de rest een aanrechtblad van +- 1.80 naast de 2 hoge kasten en een eiland van 2.40 bij 1.20.

Ik neem je tips mee in mijn zoektocht. Ik heb besloten om concessies voor te stellen op het vlak van de apparatuur en quick wins zoals hierboven al aangegeven door de kasten samen te voegen. Hiermee zou ik geld kunnen besparen.

Gegroet,

Kay

Acties:
  • 0 Henk 'm!

  • Rzaan
  • Registratie: Mei 2018
  • Laatst online: 20:13

Rzaan

Altijd zoekende

sawtomyer schreef op donderdag 19 mei 2022 @ 10:28:
Ook heb ik gezien dat de vaatwasser als optie heeft om de resttijd op de vloer te projecteren, Siemens adviesprijs 1600 euro. Een vaatwasser zonder deze functie zou niet het einde van de wereld zijn.
Als je wil bezuinigen zijn dit soort zaken toch het eerste dat je eruit mietert?
Snufjes zijn leuk, maar je zet dat ding aan en je merkt wel wanneer het klaar is.

Acties:
  • 0 Henk 'm!

  • TRD07
  • Registratie: Juli 2009
  • Laatst online: 21:29
sawtomyer schreef op donderdag 19 mei 2022 @ 10:28:
[...]

Ook heb ik gezien dat de vaatwasser als optie heeft om de resttijd op de vloer te projecteren, Siemens adviesprijs 1600 euro. Een vaatwasser zonder deze functie zou niet het einde van de wereld zijn. Ik zie op de website van Siemens door de bomen het bos niet meer, weet jij misschien een goed alternatief van Siemens? De vaatwasmachine heeft ook Zeolith drogingstechniek, maakt dit echt een verschil?
Resttijd op de vloer is niet iets wat je gaat missen. We hebben het momenteel ook, maar omdat we 's nachts de vaatwasser draaien heb je er eigenlijk niks aan. Daarnaast krijg je bij het instellen van je programma al te zien hoe lang het duurt en wanneer je vaatwasser klaar is. Je zou dat kunnen onthouden als dat nodig is ;)

Zeolith vind ik dan wel weer echt top werken (ook bij plastic, maar dan moet er soms nog wel een doek over).

Acties:
  • 0 Henk 'm!

  • Floor-is
  • Registratie: Maart 2000
  • Laatst online: 13-10 18:55
sawtomyer schreef op donderdag 19 mei 2022 @ 10:28:
[...]


Hi All,

Ik heb onderstaande reactie ontvangen van de verkoper:

Helaas zal het niet mogelijk zijn om het gewenste bedrag (red: 27k) te realiseren.


Hierbij komen wij tot een te betalen bedrag van 29950 euro, meer is niet mogelijk.

Dit is een bedrag dat niets met rekenen te maken heeft, normaal zou er meer dan 32.000 euro moeten zijn,

maar ik heb mijn baas verteld dat jij en de hele familie al keukens van ons hebben gekregen

en hij zou een mooi bedrag moeten opschrijven. 50% aanbetaling bij het plaatsen van de bestelling en saldo na montage binnen 8 dagen. Het zou jammer zijn als het niet zou passen, maar we kunnen er ook geen geld op zetten.


Voor een sanity check heb ik een offerte gevraagd bij Mobel Faber. In parallel ben ik benieuwd wat jij van dit voorstel vindt. Ik hink op twee gedachten, enerzijds wil ik het voorstel affikken, maar aan de andere kant is het misschien wel een courante prijs en is het moment nu daar dat ik wellicht concessies van mijn kant moet doen door optimalisaties aan te brengen in de offerte. Zelf zit ik te denken aan bijvoorbeeld de 4 opberg kasten onder het eiland (koude zijde) te veranderen naar twee brede kasten van elk 1.20m met 2x twee openslaande deuren. Volgens mij is daardoor automatisch sprake van meteen twee kasten minder hetgeen automatisch resulteert in een verlaging van het bedrag. Ook heb ik gezien dat de vaatwasser als optie heeft om de resttijd op de vloer te projecteren, Siemens adviesprijs 1600 euro. Een vaatwasser zonder deze functie zou niet het einde van de wereld zijn. Ik zie op de website van Siemens door de bomen het bos niet meer, weet jij misschien een goed alternatief van Siemens? De vaatwasmachine heeft ook Zeolith drogingstechniek, maakt dit echt een verschil?
Ik weet niet hoe de fabriekskeukens qua prijzen zitten voor een dergelijke oplossing, maar veel zal het niet schelen verwacht ik.

Een 120-kast is weer een heel eind duurder dan 2 60 kasten. In materiaal scheelt het misschien €30 voor het plaatwerk en de kantenband. Je hebt twee handelingen minder in het kantenbanden, maar dat is allemaal machinaal dus scheelt je in de besteedde uren nagenoeg niks.

Dan gaat het om hoeveel minder werk een 120-kast is versus twee 60 kasten. Dat is ook niet echt veel, ik verwacht dat je geen honderden €€ gaat besparen door 4 60-ers voor 2 120-ers in te ruilen :)

Besparen gaat hard door lades in te ruilen voor deuren. Of door een goedkoper werkblad te nemen, door in te leveren op de apparatuur bovendien. Ja of je moet een ander frontje kiezen uit een lagere prijsgroep bijvoorbeeld. :)

Tijdsprojectie op de vloer is een fijne extra, maar of jij het de moeite vinden zult.. Zeolith zijn een aantal hier echt fan van en volgens mij is dat wel terecht. :)
Maar als je wilt besparen zijn beide op zich prima over te slaan natuurlijk.

Onze eigen keuken is geheel greeploos, ook geen greeplijsten. Dan moet je ook een vaatwasser die dat doet en omdat wij een Miele willen.. Zit je dan gelijk in het hoge segment. Nu zouden we letterlijk €650 op alleen dat apparaat al kunnen besparen door hier wel een greep toe te passen, maar dat doet nogal afbreuk aan het geheel hè ;)

[ Voor 9% gewijzigd door Floor-is op 19-05-2022 13:02 ]

Bericht hierboven


Acties:
  • +1 Henk 'm!

  • sawtomyer
  • Registratie: Februari 2012
  • Laatst online: 17:24
Rzaan schreef op donderdag 19 mei 2022 @ 11:36:
[...]


Als je wil bezuinigen zijn dit soort zaken toch het eerste dat je eruit mietert?
Snufjes zijn leuk, maar je zet dat ding aan en je merkt wel wanneer het klaar is.
Uiteraard. Mijn strategie is in dit geval geweest om de offerte zonder aanpassing/concessie maximaal omlaag te brengen. Het moment is aangebroken om de offerte te verlagen door dit soort dingen eruit te halen.

Acties:
  • 0 Henk 'm!

  • sawtomyer
  • Registratie: Februari 2012
  • Laatst online: 17:24
TRD07 schreef op donderdag 19 mei 2022 @ 12:25:
[...]


Resttijd op de vloer is niet iets wat je gaat missen. We hebben het momenteel ook, maar omdat we 's nachts de vaatwasser draaien heb je er eigenlijk niks aan. Daarnaast krijg je bij het instellen van je programma al te zien hoe lang het duurt en wanneer je vaatwasser klaar is. Je zou dat kunnen onthouden als dat nodig is ;)

Zeolith vind ik dan wel weer echt top werken (ook bij plastic, maar dan moet er soms nog wel een doek over).
Precies mijn gedachte wat betreft de resttijd. Ik zal voorstellen om een goedkoper model voor te stellen, Zeolith lijkt voor mij wel waarde toe te voegen omdat het energiezuiniger is t.o.v. conventionele droging.

Acties:
  • 0 Henk 'm!

  • marvel27
  • Registratie: December 2012
  • Laatst online: 21:28
Treepata schreef op zaterdag 14 mei 2022 @ 21:10:
[...]
Hoe dan ook, probeer nog twee andere offertes te krijgen, ook voor jouw eigen sanity. En die 5% korting vonden wij juist wel interessant.
ben ik inderdaad van plan. Al even met Bemmel en Kroon overlegd, en zij schatten dat ze een vergelijkbare keuken kunnen leveren voor 22 of 23.000 euro. Zou ik ook zeggen natuurlijk ;) maar wel goede ervaringen met hun wat onze vorige keuken betreft, dus toch even luisteren.
Floor-is schreef op zondag 15 mei 2022 @ 10:12:
[...]

Ik vind de installatie (€3160) heftig, of is dat met het maken van de koof en nissen?

En die plinten vat ik niet. Je hebt 78cm hoge kasten, met 9.6cm plint en een blad van 20mm wat naar 40mm wordt opgedikt. Wordt je werkblad echt 91,6cm hoog? Dat is erg laag voor Nederlandse begrippen namelijk.

De spoelbak is echt veel te duur en de Quooker is het duurste model, maar alsnog erg aan de prijs. €1650-1700 is voor dit model echt prima te vinden.
De verlichting is heftig marge pakken voor de winkel, hoewel daar wellicht ook het frezen en aanpassen bij zit. (Hoewel dat misschien in die €3k zit)

Dan vraag ik me nog wat af :)
Het blad staat in de offerte als 183x85, ga je écht 85cm diep met je aanrecht?
Ja klopt, dat is inclusief het maken van de koof om de hoge kasten links, en een nis in de koof met een aantal planken in. Ze gebruiken 22mm gegrond MDF, schilderen moeten we zelf nog doen.
De plinten: de hoogte van het werkblad is een foutje, dat wordt 20mm. Even checken met de adviseur of we de totale hoogte moeten aanpassen. Maar mijn vrouw en ik zijn niet erg groot, dus even kijken wat handig is ;)

We zijn inderdaad van plan om 85cm diep te gaan aan de rechterkant van de keuken. Ongeveer halverwege zit een inspringing, en we willen dat het blad links en rechts van de inspringing even ver naar voor komt. Dat betekent rechts van de inspringing 85cm diep. Wel diep inderdaad, en misschien ongebruikelijk. Langs de andere ant wel lekker veel ruimte. Maar hoe kijk jij ernaar?

[ Voor 60% gewijzigd door marvel27 op 19-05-2022 14:20 ]


Acties:
  • 0 Henk 'm!

  • beyazz06
  • Registratie: December 2009
  • Niet online
sawtomyer schreef op donderdag 19 mei 2022 @ 10:28:
[...]


Hi All,

Ik heb onderstaande reactie ontvangen van de verkoper:

Helaas zal het niet mogelijk zijn om het gewenste bedrag (red: 27k) te realiseren.


Hierbij komen wij tot een te betalen bedrag van 29950 euro, meer is niet mogelijk.

Dit is een bedrag dat niets met rekenen te maken heeft, normaal zou er meer dan 32.000 euro moeten zijn,

maar ik heb mijn baas verteld dat jij en de hele familie al keukens van ons hebben gekregen

en hij zou een mooi bedrag moeten opschrijven. 50% aanbetaling bij het plaatsen van de bestelling en saldo na montage binnen 8 dagen. Het zou jammer zijn als het niet zou passen, maar we kunnen er ook geen geld op zetten.


Voor een sanity check heb ik een offerte gevraagd bij Mobel Faber. In parallel ben ik benieuwd wat jij van dit voorstel vindt. Ik hink op twee gedachten, enerzijds wil ik het voorstel affikken, maar aan de andere kant is het misschien wel een courante prijs en is het moment nu daar dat ik wellicht concessies van mijn kant moet doen door optimalisaties aan te brengen in de offerte. Zelf zit ik te denken aan bijvoorbeeld de 4 opberg kasten onder het eiland (koude zijde) te veranderen naar twee brede kasten van elk 1.20m met 2x twee openslaande deuren. Volgens mij is daardoor automatisch sprake van meteen twee kasten minder hetgeen automatisch resulteert in een verlaging van het bedrag. Ook heb ik gezien dat de vaatwasser als optie heeft om de resttijd op de vloer te projecteren, Siemens adviesprijs 1600 euro. Een vaatwasser zonder deze functie zou niet het einde van de wereld zijn. Ik zie op de website van Siemens door de bomen het bos niet meer, weet jij misschien een goed alternatief van Siemens? De vaatwasmachine heeft ook Zeolith drogingstechniek, maakt dit echt een verschil?
Andere apparatuur gaat je m.i. geen duizenden euro's besparen, of je moet bepaalde apparatuur van je lijst verwijderen (bijv. koffiemachine) anderzijds zijn de verschillen m.i. minimaal c.q. zal het wellicht in totaal 1k schelen.

Wat mij opviel via thuiskeukens.nl is dat voornamelijk het frontje prijsbepalend is. Zo begint een kastje met pg 0 vanaf 400 en kan het oplopen tot 2000 in de hoogste prijs categorie. Je hebt dan nog steeds dezelfde kastje, enkel een ander frontje. Ook zijn lades prijzig.

Uiteraard, alle beetjes helpen uiteindelijk maar het oog/mens wil ook wat =] Dus je zou naar het totaal plaatje moeten kijken, voor jezelf bepalen wat je wil en dan gaan snijden of bijleggen :+
Streamz schreef op donderdag 19 mei 2022 @ 11:03:
[...]


In de openingspost staat al een lijstje.

Maar er is nog meer te vinden hoor, Wellicht dat dit bij de openingspost erbij kan.

Bijv Linea Quattro, Comprex, SpagnolCucine, Santos en Schmidt. Allemaal in Nederland te verkrijgen.
Die heb ik inderdaad gezien. Het ging mij meer om de ervaring c.q. vergelijking.
Hoe weerhoudt bijv. bovenstaand lijstje tov Hacker, vergelijkbaar minder/beter? Het is gewoon lastig.

Zo werd ik bij wooning behoorlijk gepushed naar Hacker Classic, die schijnt nu net nieuw te zijn en geen verschil te hebben tov de Systemat maar is wel goedkoper.. Dan denk ik uuh oke, goedkoper maar zelfde? Dat klopt natuurlijk niet, ergens lever je in.. maar waar? Ga je dat merken?

Acties:
  • 0 Henk 'm!

  • Frankvbr
  • Registratie: November 2004
  • Laatst online: 26-10 12:52
beyazz06 schreef op donderdag 19 mei 2022 @ 15:00:
[...]


Die heb ik inderdaad gezien. Het ging mij meer om de ervaring c.q. vergelijking.
Hoe weerhoudt bijv. bovenstaand lijstje tov Hacker, vergelijkbaar minder/beter? Het is gewoon lastig.

Zo werd ik bij wooning behoorlijk gepushed naar Hacker Classic, die schijnt nu net nieuw te zijn en geen verschil te hebben tov de Systemat maar is wel goedkoper.. Dan denk ik uuh oke, goedkoper maar zelfde? Dat klopt natuurlijk niet, ergens lever je in.. maar waar? Ga je dat merken?
Eens.
Ik ben ook zoekende naar transparantie (wat natuurlijk complex is aangezien keukenboeren juist baat hebben bij tegenovergestelde).

Het maakt het stuk makkelijker om een keuze te maken als je weet wat kast X kost t.o.v. Y en wat je er voor terug krijgt. Ook al betaal je per kast iets meer kan je door fatsoenlijke keuzes alsnog wat goedkoper uitkomen.

Ik ga dit wel proberen bij superkeukens en thuiskeukens. Bij die eerste waren ze bij de vorige keuken al stuk transparanter over alles wat geen kast/front was. Dat zou er nu dus bij moeten.

[ Voor 9% gewijzigd door Frankvbr op 19-05-2022 15:23 ]


Acties:
  • +1 Henk 'm!

  • knights16
  • Registratie: Augustus 2000
  • Laatst online: 18-10 13:30
sawtomyer schreef op donderdag 19 mei 2022 @ 10:28:
[...]


Hi All,

Ik heb onderstaande reactie ontvangen van de verkoper:

Helaas zal het niet mogelijk zijn om het gewenste bedrag (red: 27k) te realiseren.


Hierbij komen wij tot een te betalen bedrag van 29950 euro, meer is niet mogelijk.

Dit is een bedrag dat niets met rekenen te maken heeft, normaal zou er meer dan 32.000 euro moeten zijn,

maar ik heb mijn baas verteld dat jij en de hele familie al keukens van ons hebben gekregen

en hij zou een mooi bedrag moeten opschrijven. 50% aanbetaling bij het plaatsen van de bestelling en saldo na montage binnen 8 dagen. Het zou jammer zijn als het niet zou passen, maar we kunnen er ook geen geld op zetten.


Voor een sanity check heb ik een offerte gevraagd bij Mobel Faber. In parallel ben ik benieuwd wat jij van dit voorstel vindt. Ik hink op twee gedachten, enerzijds wil ik het voorstel affikken, maar aan de andere kant is het misschien wel een courante prijs en is het moment nu daar dat ik wellicht concessies van mijn kant moet doen door optimalisaties aan te brengen in de offerte. Zelf zit ik te denken aan bijvoorbeeld de 4 opberg kasten onder het eiland (koude zijde) te veranderen naar twee brede kasten van elk 1.20m met 2x twee openslaande deuren. Volgens mij is daardoor automatisch sprake van meteen twee kasten minder hetgeen automatisch resulteert in een verlaging van het bedrag. Ook heb ik gezien dat de vaatwasser als optie heeft om de resttijd op de vloer te projecteren, Siemens adviesprijs 1600 euro. Een vaatwasser zonder deze functie zou niet het einde van de wereld zijn. Ik zie op de website van Siemens door de bomen het bos niet meer, weet jij misschien een goed alternatief van Siemens? De vaatwasmachine heeft ook Zeolith drogingstechniek, maakt dit echt een verschil?
Ik heb ook een tweede offerte opgevraagd bij mobel faber door een Excel te sturen met alle componenten die ik wilde. Zij kwamen toen met een richtprijs van 22k voor de keuken. Ik vond het niet netjes om de offerte van keukenzaak #1 mee te sturen, en wilde ook niet dat zij wisten wat ik initieel voor aanbod had liggen.

Uiteindelijk toen besloten dat het de moeite was om naar Nordhorn te rijden. We kregen we een prijs van 24 voorgeschoteld omdat we het duurste type blad kozen en nog een paar opties namen. Ik had het werkblad en de opties niet uitgewerkt in mijn Excelletje. Dus houd dat een beetje in de achterhoofd. Ze zullen de ruimte zoeken voor interpretatie van wat je wilt. Had ik zelf ook gedaan, het is immers een concurrerende markt.

Prima geholpen door onze Nederlands sprekende vriend. Zit al wel 6 maanden na plaatsing keuken of NEFF spul te wachten. Maar daar kunnen zij weinig aan doen. Zou iedereen adviseren om de apparatuur ook daadwerkelijk vast te laten bestellen en eventueel ook te betalen als dat helpt.

Vraag mij af of Mobel Faber direct alle apparatuur heeft besteld toen wij juni 2021 de keuken bestelden.

Maar ben tevreden met het resultaat en de service.

PVoutput


Acties:
  • +1 Henk 'm!

  • BlowFish
  • Registratie: Maart 2004
  • Laatst online: 21-10 23:04
Source90 schreef op woensdag 18 mei 2022 @ 20:50:
[...]

Gaaf! Inbouw koffie durfde ik niet aan vanwege recensies online, hoe bevalt die?
Hier nu een Siemens EQ9 ernaast :7
Helemaal prima. Capuchinos zijn heerlijk lekker veel schuim. Apparaat maak zich zelf schoon vult zelf water bij wat wil je nog meer :)
Nog paar puntjes:
- Gebruiken jullie Miele@Home? Zie de knopjes uit staan bij jullie (telefoon-icon).
Hier gaat de telefoon (oranje lampje / bedienen op afstand) uit na elk gebruik. Een bug volgens Miele. Jullie daar ook last van? Wat betreft mobiele connectiviteit lopen ze nog wel een beetje achter op BSH (nog nooit verbinding verloren met de Siemens koffiemachine, bij Miele moet ik nu elke keer op het knopje drukken. Vergeet je het, kan je de oven niet voorverwarmen op afstand :-( ).
Vaatwasser is voorgeprogrammeerd met de app en een schema zodat iedere avond automatisch om om 23h het vaat programma start en omdat we de Disc’s gebruiken hier ook verder geen omkijken naar. Als de vaat klaar is gaat de deur vanzelf open en is er vrijwel geen vocht. Verder is het een leuke gimmick kan zien hoe mijn pizza eruit ziet (camera) .. Ik hoop/wacht eigenlijk op een Google assistant update die mogelijk gaat komen. ..
- Die bakoven (kan type niet zien) heeft ook het "water rietje" toch? Hebben jullie die al eens gebruikt / ofwel de "Functie Professional"? Hier nog aan het experimenteren :Y)
[Afbeelding]
Ja dat is wel top om wat vocht toe te voegen. Bijvoorbeeld bij het maken van een aardappelgratin. Eerst aardappels in stoomoven daarna nog in de oven met ‘pro’ functie. Heb eerder nooit voor elkaar gekregen om de gratins zo perfect te krijgen (vaak de aardappel te hard of verbrand…)

Acties:
  • 0 Henk 'm!

  • sawtomyer
  • Registratie: Februari 2012
  • Laatst online: 17:24
beyazz06 schreef op donderdag 19 mei 2022 @ 15:00:
[...]


Andere apparatuur gaat je m.i. geen duizenden euro's besparen, of je moet bepaalde apparatuur van je lijst verwijderen (bijv. koffiemachine) anderzijds zijn de verschillen m.i. minimaal c.q. zal het wellicht in totaal 1k schelen.

Wat mij opviel via thuiskeukens.nl is dat voornamelijk het frontje prijsbepalend is. Zo begint een kastje met pg 0 vanaf 400 en kan het oplopen tot 2000 in de hoogste prijs categorie. Je hebt dan nog steeds dezelfde kastje, enkel een ander frontje. Ook zijn lades prijzig.

Uiteraard, alle beetjes helpen uiteindelijk maar het oog/mens wil ook wat =] Dus je zou naar het totaal plaatje moeten kijken, voor jezelf bepalen wat je wil en dan gaan snijden of bijleggen :+


[...]


Die heb ik inderdaad gezien. Het ging mij meer om de ervaring c.q. vergelijking.
Hoe weerhoudt bijv. bovenstaand lijstje tov Hacker, vergelijkbaar minder/beter? Het is gewoon lastig.

Zo werd ik bij wooning behoorlijk gepushed naar Hacker Classic, die schijnt nu net nieuw te zijn en geen verschil te hebben tov de Systemat maar is wel goedkoper.. Dan denk ik uuh oke, goedkoper maar zelfde? Dat klopt natuurlijk niet, ergens lever je in.. maar waar? Ga je dat merken?
Ik heb precies 1 jaar geleden een offerte gekregen van deze zaak en dat was toen 23.5k (voor het ontwerp zie mijn post hier van een jaar geleden) maar dat wel zonder:
  • Vaatwasser,
  • Koelkast,
  • Oven combi
  • allen Siemens, ik zou deze apparaten van mijn huidige keuken mee overnemen. Ik ben hier van afgestapt,
  • Siemens inbouw koffiemachine
  • voedselvermaler
Wat wel zat in de vorige offerte en in de laatste offerte ontbreekt:
Apothekerkast 2 meter hoog, is nu een lage apothekerskast geworden
Quooker was met 7 liter boiler is nu 3 liter geworden

In deze offerte zat dan weer wel hetgeen niet meer terugkomt:
Wijnkoeler AVU23TXA

Een ander verschil is dat in de laatste offerte de fronten van het eiland gelamineerd hout was tov hoogglans laminaat. Ik weet even niet of dat heel veel verschil uitmaakt, de verkoper zei van wel. Het gaat om 5 fronten.

Ik ga eens alles goed op een rijtje zetten vanavond om te kijken hoe ik het zal gaan aanvliegen..

[ Voor 7% gewijzigd door sawtomyer op 19-05-2022 15:55 ]


Acties:
  • 0 Henk 'm!

  • Floor-is
  • Registratie: Maart 2000
  • Laatst online: 13-10 18:55
marvel27 schreef op donderdag 19 mei 2022 @ 14:13:
8<8<

We zijn inderdaad van plan om 85cm diep te gaan aan de rechterkant van de keuken. Ongeveer halverwege zit een inspringing, en we willen dat het blad links en rechts van de inspringing even ver naar voor komt. Dat betekent rechts van de inspringing 85cm diep. Wel diep inderdaad, en misschien ongebruikelijk. Langs de andere kant wel lekker veel ruimte. Maar hoe kijk jij ernaar?
85 is echt heel diep, de achterste 20-30cm zal je nauwelijks gebruiken anders dan voor het stallen van zaken denk ik. Maar ik snap je heel goed als je zegt dat je op deze manier een rechte keuken krijgt :)

Bericht hierboven


Acties:
  • 0 Henk 'm!

  • 0180jelle
  • Registratie: Mei 2022
  • Laatst online: 05-11-2022
Goedenavond allen,

Allereerst; morgen gaan wij naar Superkeukens voor onze tweede offerte (eerste is van Tulp Keukens). Wij hebben wat korte vragen/tips (veel al gelezen). Plattegrond:

Afbeeldingslocatie: https://tweakers.net/i/oQtVZhf0VDO50t5CgW15VKiKU-U=/x800/filters:strip_icc():strip_exif()/f/image/XU0JnwMHWFbQWa1hF34hu8De.jpg?f=fotoalbum_large

Apparatuur/specificaties:
- ATAG Matrix D Koffiemachine (45cm)
- 2x ATAG Matrix D 45cm met magnetronfunctie
- ATAG Koel-vriescombi 178 cm
- ATAG Vaatwasser 60cm
- Bora BORA inductiekookplaat 76cm recirculatie
- Multiplex werkblad chromix silver
- Vierkante spoelbak RVS
- 3-in-1 kraan PRO3 boiler
- Startprijs EUR 28.757 (incl. montage), uiteindelijke offerte prijs (veel te duur?!) EUR 22.403

Goed geholpen, niet opdringerig (tot het einde). ATAG werd ons aangeraden ivm levertijden en wensen.

Vragen:
- We twijfelen over het werkblad. Wensen zijn witte (matte) frontjes met grijs blad. Composiet blad top?
- We twijfelen over 2x oven-combi ipv 1 grotere (60cm) oven
- We twijfelen over het inbouwkoffiezetapparaat - we hebben nu een (oudere) losse Siemens EQ 7 Plus

Afmetingen:
- Wandzijde 340cm
- Wandzijde kookplaat 260cm
- "Open zijde" 240cm

We horen graag!

-Jelle

Acties:
  • +1 Henk 'm!

  • Safaci
  • Registratie: Maart 2010
  • Laatst online: 19:58
Voor wie geïnteresseerd is: de nieuwe frontjes van Next125 zijn terug te zien in hun nieuwe magazine. Vooral de nx670 (houtfront met verticale groeven) ziet er tof uit, maaruh prijsgroep 11. :'( :+

Acties:
  • 0 Henk 'm!

  • Lize167
  • Registratie: Januari 2020
  • Laatst online: 26-06 06:25
Heeft iemand ervaring met krassen in gelakte fronten van het merk Tristar? We zijn heel voorzichtig met onze keuken maar er verschijnen steeds meer hele lichte krassen in de lak. De lak voelt nog helemaal glad, het lijkt er echt op te zitten. Contact met de leverancier van de keuken gehad, zij geven tips om het schoon te maken maar helaas zonder resultaat. Tristar geeft aan de telefoon aan dat ze niet kunnen zeggen of dit vaker gebeurt, maar dat dat niet wil zeggen dat het nooit is gebeurd.
Afbeeldingslocatie: https://tweakers.net/i/TXdS0hoorrXD2bCP5bVgO1xBJUc=/800x/filters:strip_icc():strip_exif()/f/image/DC3HnQAByRnXMzC7dHmr8D6P.jpg?f=fotoalbum_large

[ Voor 3% gewijzigd door Lize167 op 19-05-2022 22:44 ]


Acties:
  • 0 Henk 'm!

  • ocrammarco
  • Registratie: December 2017
  • Laatst online: 20-10 13:21
Lize167 schreef op donderdag 19 mei 2022 @ 22:44:
Heeft iemand ervaring met krassen in gelakte fronten van het merk Tristar? We zijn heel voorzichtig met onze keuken maar er verschijnen steeds meer hele lichte krassen in de lak. De lak voelt nog helemaal glad, het lijkt er echt op te zitten. Contact met de leverancier van de keuken gehad, zij geven tips om het schoon te maken maar helaas zonder resultaat. Tristar geeft aan de telefoon aan dat ze niet kunnen zeggen of dit vaker gebeurt, maar dat dat niet wil zeggen dat het nooit is gebeurd.
[Afbeelding]
Ziet er beetje uit als rubber strepen. Ik heb dit op mijn trapboom van kabel van mijn stofzuiger als ik mijn trap zuig. Je zou kunnen proberen met een whiteboard wisser (wel even een schone gebruiken en op onopvallend plekje).

Is het op alle deurtjes of specifieke plek?

Acties:
  • 0 Henk 'm!

  • Frankvbr
  • Registratie: November 2004
  • Laatst online: 26-10 12:52
Toke_gt schreef op dinsdag 17 mei 2022 @ 23:43:
[...]

KV is koelvries

[...]

Ah, je had werkplek als werkruimte. Ik las daarin een thuiswerkplek. Als je die niet nodig hebt en geen barretje wilt; meteen skippen.

[...]

Hangt er een beetje vanaf hoe je je kamer indeelt, maar vooral materiaalkeuze bepaalt of het storend is of niet. Dus als je dit in 3d maakt, kies dan materiaal dat je ook als kast in de woonkamer zou kunnen gebruiken. Als je de kasten met ovens en KV ruilt, heb je volledige dichte kasten op die plek, dan is het misschien minder storend aanwezig?

[...]

Je kunt in plaats van dat muurtje ook ondiepe kasten plaatsen. Heb je toch een soort eiland. Ik vermoedde dat je daar ook ergens een eettafel of zo wilt plaatsen, dus heb die ruimte daar niet benut.
3D of render bij keukenzaak kan je wel helpen het te visualiseren. Ik wilde je gewoon laten zien dat je er ook op een heel andere manier naar kunt kijken. Succes!
Je indeling is interessant. Met wat tweaks zit ik nu hier aan te denken (niet op details letten, gaat om de ruwe indeling)

Voordelen:
- Meer werkplek.
- Er loopt daar afvoer voor afzuigkap. Dus kan besparen op een bora + geen recirculatie nodig
- De werkblad richting eettafel is fijn als je boterhammen smeert/kookt voor de kinderen die aan tafel zitten

Zou alleen liever geen muurtje doen. Open lijkt me mooier, vandaar ook werkblad tegen de hoge muur. Daar stal je eerder je zooi/apparatuur, maar dan is het beter om werkblad aan tafel zijde 80 breed te maken o.i.d.
Misschien het laatste kastje weglaten. Kan er alsnog een kruk/barstoel onder evt.

Nog ideen/opmerkingen?

Afbeeldingslocatie: https://tweakers.net/i/U59EgsnIZs--0jDOg79zTOy0nW4=/800x/filters:strip_icc():strip_exif()/f/image/EMSdqZCfnLwD60PAvMntoe2n.jpg?f=fotoalbum_large

Afbeeldingslocatie: https://tweakers.net/i/M2AytiTBgEIF641RihZFmFhmldo=/800x/filters:strip_icc():strip_exif()/f/image/tzFDCTuEZZwwZfx4wiIFmy55.jpg?f=fotoalbum_large

Afbeeldingslocatie: https://tweakers.net/i/4DLKW82iEXQ4sra9orQFlcj5WJI=/800x/filters:strip_icc():strip_exif()/f/image/S3hpmwgN4bdiSkTzjM3xtNwU.jpg?f=fotoalbum_large

Acties:
  • 0 Henk 'm!

  • Aurum
  • Registratie: December 2017
  • Laatst online: 22:27
@Lize167

Ik heb zelf ook dit soort krassen gehad op mn tristar lak keuken, was van de rits van mijn vest als je dicht tegen de kastjes aan staat wat krast. Alleen ik heb het er af kunnen poetsen met een sponsje en afwasmiddel.

Acties:
  • 0 Henk 'm!

  • PaT
  • Registratie: April 2003
  • Niet online

PaT

Moderator Mobile

Ja, dat mod

Lize167 schreef op donderdag 19 mei 2022 @ 22:44:
Heeft iemand ervaring met krassen in gelakte fronten van het merk Tristar? We zijn heel voorzichtig met onze keuken maar er verschijnen steeds meer hele lichte krassen in de lak. De lak voelt nog helemaal glad, het lijkt er echt op te zitten. Contact met de leverancier van de keuken gehad, zij geven tips om het schoon te maken maar helaas zonder resultaat. Tristar geeft aan de telefoon aan dat ze niet kunnen zeggen of dit vaker gebeurt, maar dat dat niet wil zeggen dat het nooit is gebeurd.
[Afbeelding]
Ik heb ooit eens voor een babycommode de tip gekregen om met waspoeder (en dan ook echt ouderwets poeder) dit soort strepen eraf te krijgen. Daar sta je ook steeds met je riem/rits/knoop tegen het meubel aangeleund en krijg je ook dit soort vegen.

Ik vond het een vreemd verhaal, maar het werkt echt. Lichtvochtig doekje zodat het poeder blijft plakken en dan licht wrijven.
Uiteraard eerst uittesten op een onopvallende plek of het geen ongewenste bijeffecten heeft.

Groot genoeg voor 2 hoofdletters


Acties:
  • 0 Henk 'm!

  • BasvanS
  • Registratie: Juli 2001
  • Laatst online: 22:15
Lize167 schreef op donderdag 19 mei 2022 @ 22:44:
Heeft iemand ervaring met krassen in gelakte fronten van het merk Tristar? We zijn heel voorzichtig met onze keuken maar er verschijnen steeds meer hele lichte krassen in de lak. De lak voelt nog helemaal glad, het lijkt er echt op te zitten. Contact met de leverancier van de keuken gehad, zij geven tips om het schoon te maken maar helaas zonder resultaat. Tristar geeft aan de telefoon aan dat ze niet kunnen zeggen of dit vaker gebeurt, maar dat dat niet wil zeggen dat het nooit is gebeurd.
[Afbeelding]
Kijk eens naar de Bette Sanitair Gum, die is hier speciaal voor, dat werkt iig als je met metaal fijne grasje maakt op tegens in de badkamer.

Acties:
  • 0 Henk 'm!

  • Huisje1
  • Registratie: Januari 2020
  • Laatst online: 03-11-2023
Lize167 schreef op donderdag 19 mei 2022 @ 22:44:
Heeft iemand ervaring met krassen in gelakte fronten van het merk Tristar? We zijn heel voorzichtig met onze keuken maar er verschijnen steeds meer hele lichte krassen in de lak. De lak voelt nog helemaal glad, het lijkt er echt op te zitten. Contact met de leverancier van de keuken gehad, zij geven tips om het schoon te maken maar helaas zonder resultaat. Tristar geeft aan de telefoon aan dat ze niet kunnen zeggen of dit vaker gebeurt, maar dat dat niet wil zeggen dat het nooit is gebeurd.
[Afbeelding]
Dat is van TriStar wel een antwoord waar je eigenlijk helemaal niks aan hebt, ik zou ze toch nogmaals vragen om een advies/oplossing. Hoe goed bedoeld ook, als je een middeltje probeert wat een ander heeft geholpen maar bij jou misgaat, dan heb je straks wellicht het gezeur van …dat had u nooit moeten doen…
Pagina: 1 ... 343 ... 528 Laatste

Let op:
Dit topic kan gebruikt worden voor het volgende:
• Vragen over de keuken, denkend aan indeling, materialen, kastjes, apparatuur, etc.
• Welke kastjes, aanrechtbladen en apparatuur te kiezen
• Ervaringen met verkopers en keukenboeren
• Tips & Tricks denk hierbij aan hulp bij het zelf installeren en onderhouden van de keuken.
• Jouw indeling. Plaats gerust een foto of tekening, maar maak het niet te bont met hele buildlogs.

Voor badkamers: Het Badkamer topic: verkopers, kwaliteit, prijs - Deel 1
Showen met je keuken kan hier: Tweakers Keuken showroom! - Vestiging 1