• iasix
  • Registratie: September 2005
  • Laatst online: 30-01 15:57
Ik zit even te rekenen, breedte is 5,16 meter. Kookeiland eraf = 2,16 meter over. Aan een kant kasten van 60 cm diep = 1,56 meter over dus als ik het symmetrisch zou willen doen hou je < 80 cm per kant over.

Casco kan maar moet al blok en aansluitingen doorgeven ivm de vloerverwarming :/

  • Z___Z
  • Registratie: Maart 2002
  • Niet online
SquareOne schreef op maandag 25 april 2022 @ 16:38:
[...]


Sprak de uitvoerder van onze aannemer afgelopen week bij oplevering. Hij gaf aan dat nieuwe woningen een meter smaller worden omdat ze anders niet meer te betalen zijn... Ons type woning zou dan van 5.70m naar 4.70m gaan. Maar er staan ook woningen die maar 5.10 zijn, die naar 4.10 gaan. Dat is echt niet te doen 7(8)7
Is wel offtopic, maar dit komt omdat we op de grond willen wonen, maar toch veel huizen in 1 straat kwijt willen. Je kan met oog op de vergrijzing beter appartementen bouwen van 10x15, dan "herenhuizen" van 4x40m2.

@iasix Als de woonkamer op een andere verdieping komt, dan zeker weten de keuken in het brede gedeelte zetten. Ik zou daar dan niet eens over twijfelen. Dan heb je echt een hele mooie ruimte voor een woonkeuken.

  • Toke_gt
  • Registratie: Juni 2021
  • Laatst online: 08:46
iasix schreef op maandag 25 april 2022 @ 16:28:
Heb de aannemer gevraagd of we het mogen omdraaien. Echt belachelijk dat ik nog zo'n 2.5 week heb
Zeker als je een kruipruimte hebt, is geen probleem om na oplevering een keuken te plaatsen waar je hem hebben wilt. Laat je vooral niet beperken door een projectontwikkelaar die alleen maar kijkt naar tijd/kosten.

Verder, kijkend naar de hele verdieping en de wens voor een (schier)eiland, zou ik die in het brede deel plaatsen, maar zorg wel dat je voldoende werkruimte overhoudt. (Dat gaat vaak mis als je op eiland zowel spoelbak als kookplaat plaatst). Voorkom verder het blokkeren van de looproute naar de achterkant (tuin?). Het gaat echt irriteren als je steeds ergens omheen moet lopen.

Ik heb een schetsje gemaakt met een groot schiereiland dat doorloopt in een lage kastenwand. Rechts een hoge kastenwand voor alle apparatuur. Zo heb je heel veel berg- en werkruimte, maar ook een fijne plek voor ontbijt, kookgezelschap of huiswerkmakende kinders. Als je inderdaad een tuin hebt aan die zijde zou ik koelkast en spoelbak daar binnen handbereik willen hebben.
Aan voorzijde lekker grote loungetafel.

Afbeeldingslocatie: https://tweakers.net/i/eyBHr_TOFCthAuBJj3Y0vd05eM8=/full-fit-in/4920x3264/filters:max_bytes(3145728):no_upscale():strip_icc():fill(white):strip_exif()/f/image/iN8ioMkeYotu6x1OHQziKiJi.jpg?f=user_large

EDIT: en toen ik het had getekend en geplaatst las ik dat vrouwlief per se een eiland wil en geen schiereiland. Enig idee waarom? Een eiland beperkt echt je mogelijkheden (kijk naar je rekensom) en verdraagt zich niet goed met haar wens voor veel werkruimte. Dus vanwaar de sterke voorkeur en ten koste van wat mag dat gaan?

EDIT 2: lekker groot eiland ingetekend, met kleine doorloop aan raamkant. En een ingekorte trapkast.
Afbeeldingslocatie: https://tweakers.net/i/r9Mw-3WTCC299kElwBXijyAA_eQ=/full-fit-in/4920x3264/filters:max_bytes(3145728):no_upscale():strip_icc():fill(white):strip_exif()/f/image/FBlqyDWFyeHYYcPI2dvkgHEV.jpg?f=user_large

[ Voor 18% gewijzigd door Toke_gt op 25-04-2022 18:47 ]


  • Floor-is
  • Registratie: Maart 2000
  • Laatst online: 03-04 13:59
beyazz06 schreef op zondag 24 april 2022 @ 22:13:
Vandaag weer langs een keukenboer geweest waar wij heel goed geholpen zijn. Zo goed dat wij nu een iets andere opstelling hebben, ben benieuwd wat jullie ervan vinden.

Oorspronkelijk:
[Afbeelding]

Gewijzigd naar:
[Afbeelding]

Een hoge kast heeft plaatsgemaakt voor een bredere nis. Deze was 120 cm en is nu 180 cm geworden met 2 x 90 cm ladekasten onder.

Ook is de eiland iets aangepast, niet te zien op de foto. Waarbij de onderkast van de spoelbak van 60 cm naar 80 cm is gegaan. Dit was volgens de keukenboer nodig voor de spoelbak (min 15 cm van de rand voor de uitsparing?). Deze is dus in totaliteit van 220 cm naar 240 cm gegaan.
Grote nis is fijn, maar je hebt nu de ovens parallel aan de kookplaat toch? Dat vind ik zelf wat onhandig :)

Bericht hierboven


  • Floor-is
  • Registratie: Maart 2000
  • Laatst online: 03-04 13:59
Toke_gt schreef op maandag 25 april 2022 @ 18:26:
[...]

Zeker als je een kruipruimte hebt, is geen probleem om na oplevering een keuken te plaatsen waar je hem hebben wilt. Laat je vooral niet beperken door een projectontwikkelaar die alleen maar kijkt naar tijd/kosten.

Verder, kijkend naar de hele verdieping en de wens voor een (schier)eiland, zou ik die in het brede deel plaatsen, maar zorg wel dat je voldoende werkruimte overhoudt. (Dat gaat vaak mis als je op eiland zowel spoelbak als kookplaat plaatst). Voorkom verder het blokkeren van de looproute naar de achterkant (tuin?). Het gaat echt irriteren als je steeds ergens omheen moet lopen.

Ik heb een schetsje gemaakt met een groot schiereiland dat doorloopt in een lage kastenwand. Rechts een hoge kastenwand voor alle apparatuur. Zo heb je heel veel berg- en werkruimte, maar ook een fijne plek voor ontbijt, kookgezelschap of huiswerkmakende kinders. Als je inderdaad een tuin hebt aan die zijde zou ik koelkast en spoelbak daar binnen handbereik willen hebben.
Aan voorzijde lekker grote loungetafel.

[Afbeelding]

EDIT: en toen ik het had getekend en geplaatst las ik dat vrouwlief per se een eiland wil en geen schiereiland. Enig idee waarom? Een eiland beperkt echt je mogelijkheden (kijk naar je rekensom) en verdraagt zich niet goed met haar wens voor veel werkruimte. Dus vanwaar de sterke voorkeur en ten koste van wat mag dat gaan?

EDIT 2: lekker groot eiland ingetekend, met kleine doorloop aan raamkant. En een ingekorte trapkast.
[Afbeelding]
Beukmaat 5m15 toch?

Links wand 60 diep. 100 doorloop. 110 eiland. 100(+) doorloop. 60 kasten. Kom ik op 430, dus nog ~80 over.

Volgens mij kan je daar achterin mooie dingen met een eiland in de lengte.
In de breedte kan trouwens ook een mooi schiereiland, rechts tegen de muur en links kastenwand? 300 (schiereiland) + 150 doorloop lijkt dan mogelijk.

De trapkast ietsje inkorten lijkt me wel een mooi plan trouwens!

Bericht hierboven


  • Shwan
  • Registratie: September 2011
  • Laatst online: 28-03 23:52
Zojuist weer een offerte laten opstellen voor onze keuken. Ik vraag mij af wat jullie vinden van de opstelling , merk van keukenkasten en de prijs.

Afbeeldingslocatie: https://tweakers.net/i/yy9J3BpIu-6JGa5jl9jgB0Y2GWA=/800x/filters:strip_icc():strip_exif()/f/image/L2wS6fniB2E1swgKURuxXXxG.jpg?f=fotoalbum_large

Afbeeldingslocatie: https://tweakers.net/i/cxdYNvZ6rDyj_s6BGsDfFGxQzxY=/800x/filters:strip_icc():strip_exif()/f/image/D4AX8KUhZTtCoDZ25q1SaEJo.jpg?f=fotoalbum_large
  • Siemens KI81RADE0 (IQ500) 177cm koelkast
  • Siemens GI81NSCE0 (IQ500) 177cm vriezer
  • Siemens HS836GTB6 (IQ700) Bakoven met stoom
  • Siemens CM616GBS1 (IQ700) combi/magnetron compact
  • Siemens BI630CNS1 (IQ700) serviesverwarmer
  • Siemens SX87Y801BE (IQ700) Vaatwasser XXL
  • Siemens KU21WAHG0 (IQ500) Wijnklimaatkast
  • Quooker 22+FSBLK Kraan
  • Quooker ZPNBLK Zeeppomp
  • Bora PUXU Kookplaat
Members only:
Alleen zichtbaar voor ingelogde gebruikers. Inloggen


Renders van de keuken heb ik zelf gemaakt

  • JackBol
  • Registratie: Maart 2000
  • Niet online

JackBol

Security is not an option!

Shwan schreef op maandag 25 april 2022 @ 22:50:
Zojuist weer een offerte laten opstellen voor onze keuken. Ik vraag mij af wat jullie vinden van de opstelling , merk van keukenkasten en de prijs.

[Afbeelding]

[Afbeelding]
  • Siemens KI81RADE0 (IQ500) 177cm koelkast
  • Siemens GI81NSCE0 (IQ500) 177cm vriezer
  • Siemens HS836GTB6 (IQ700) Bakoven met stoom
  • Siemens CM616GBS1 (IQ700) combi/magnetron compact
  • Siemens BI630CNS1 (IQ700) serviesverwarmer
  • Siemens SX87Y801BE (IQ700) Vaatwasser XXL
  • Siemens KU21WAHG0 (IQ500) Wijnklimaatkast
  • Quooker 22+FSBLK Kraan
  • Quooker ZPNBLK Zeeppomp
  • Bora PUXU Kookplaat
***members only***


Renders van de keuken heb ik zelf gemaakt
Mooi blad! Toen zag ik de prijs en dacht ik ‘oh ja natuurlijk’.

En wat zijn verder de actuele lever tijden van Siemens? Is dat al weer enigszins genormaliseerd?

[ Voor 3% gewijzigd door JackBol op 26-04-2022 07:48 ]

Opbrengst van mijn Tibber Homevolt met externe kWh meter. | Opbrengst van mijn Tibber Homevolt volgens de Tibber Data API.


  • Wanne-B88
  • Registratie: Februari 2015
  • Laatst online: 03-04 11:18
MartijnA3 schreef op maandag 25 april 2022 @ 16:20:
[...]


Done. ;)
(Serieus, lijkt me niet een handige ruimte voor een eiland.)

[Afbeelding]
Zo is het bij ons ook geworden.. Wij hebben dus een identieke woning - op de uitbouw na. De keuken aan de voorkant van de woning zou ik écht niet doen. Eventueel halverwege die woning waarbij dit koof in de keuken geïntegreerd wordt. Afbeeldingslocatie: https://tweakers.net/i/YPFxKhy3FLHRLIgNyPhOcSP8T2k=/x800/filters:strip_icc():strip_exif()/f/image/bNrpNLh9ZrboDNDk5usi7TvA.jpg?f=fotoalbum_large

Aanvulling: bij een achtergevel zoals in jouw afbeelding staat zou ik persoonlijk het eiland tegen het stukje muur tussen beide raamdelen plaatsen. Net wat strakker (maar ook smaak en geen eiland natuurlijk ;))

[ Voor 15% gewijzigd door Wanne-B88 op 26-04-2022 08:08 ]


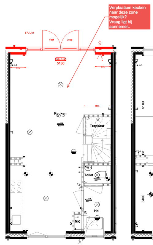
  • iasix
  • Registratie: September 2005
  • Laatst online: 30-01 15:57
Heb n.a.v. jullie opmerkingen gevraagd of we de keuken konden omdraaien en ook gevraagd of we achtergevel konden aanpassen qua maten (lees: kozijnen).

Denk dat dit veel werkbaarder is zo toch?
Afbeeldingslocatie: https://tweakers.net/i/2Npyk1BgBB_nz1c4IiOZhzLY4Uo=/x800/filters:strip_exif()/f/image/mezwkjiTqH2n1pzxM7waZ95s.png?f=fotoalbum_large

  • MartijnA3
  • Registratie: Mei 2002
  • Laatst online: 04-04 15:32
Ik weet niet wat voor project dit is, maar ze gaat toch niet zomaar een achtergevel aanpassen?

iRacing Profiel


  • Aurum
  • Registratie: December 2017
  • Laatst online: 04-04 16:16
Bij ons is gisteren ook de vaatwasser geplaatst en zijn de laatste puntjes geregeld dus hij is bruikbaar! :D
Afbeeldingslocatie: https://tweakers.net/i/akCH2g5ZaxrxapaddCuIqywHOAo=/x800/filters:strip_icc():strip_exif()/f/image/vujGRPhMKykWXGHDBxILApno.jpg?f=fotoalbum_large

Specs:
Aurum schreef op zaterdag 8 mei 2021 @ 20:31:
We hebben vandaag getekend voor onze nieuwe keuken in ons nieuwbouwhuis :)

We zijn bij drie keukenzaken geweest om een Next125, Siematic en een Tristar keuken te bekijken. Erg leerzaam om met meerdere verkopers te zitten die allemaal zo hun eigen ideeën hebben. We hebben uiteindelijk voor de Tristar keuken gekozen omdat hier echt alles mogelijk was. Maar we hebben van zowel ons bezoek aan Next125 en Siematic 2 ideeen meegenomen naar het uiteindelijke ontwerp.

Bij Next125 zagen we een combi van greeplijst en tip-on voor de onderste lades van het eiland, erg strak zonder extra greeplijst.
Bij de Siematic dealer waren we helemaal weg van de kleur Sterling Grey, wat soms bijna wit zit, maar net even sjieker overkomt naar ons idee. Het mooie van Tristar is dat we alle kleuren van welke kleurenwaaier dan ook konden kiezen. Ik heb ondertussen een hele studie gehad aan type kleuren/kleurenwaaiers/pantone etc etc van wat nou bij elkaar te matchen. Meerdere stalen van werkbladen aangevraagd bij Arte om te kijken wat bij elkaar matchte en uiteindelijk dus uitgekomen op 2 sikkens kleuren, eentje evenaart de sterling grey van siematic en de andere is een grijze kleur. (op de renders lijkt het grijze wat donkerder dan hij is, hij komt per toeval overeen met de blum lades orion grey)


Dit is het uiteindelijk geworden: 5x60 (242 cm hoog) hoge kasten en 3x 100cm eiland met nog 2 kasten aan de achterzeide en een bargedeelte in het midden. en een 8cm plint, net genoeg om niet met je voeten tegen de kasten te trappen ;)

[Afbeelding]
[Afbeelding]

dan de apparatuur en werkblad.
Apparatuur:
Bora Puxu
Miele H7660 BP vitro zwart oven
Siemens SX 85E800BE met openassist vaatwasser
Liebherr IRBe5120 koelkast
Quooker Fusion rond rvs met 7L boiler.

Werkblad:
Composiet Silestone et Calacatta gold

En nog 2 bora stopcontacten aan de zijkant naast de kookplaat.

Totaalprijs incl. montage en BTW kwam uit op: 25.350

Al met al zijn wij erg tevreden en blij dat we nu na maanden eindelijk de knoop hebben doorgehakt hoe de keuken moet worden :)

[ Voor 72% gewijzigd door Aurum op 26-04-2022 09:59 ]


  • iasix
  • Registratie: September 2005
  • Laatst online: 30-01 15:57
MartijnA3 schreef op dinsdag 26 april 2022 @ 08:31:
Ik weet niet wat voor project dit is, maar ze gaat toch niet zomaar een achtergevel aanpassen?
Het is een reeds bestaande optie om grotere deuren/ramen te nemen. De kozijnen veranderen dan ook en de afstand tot de muren wordt dan aan weerszijden zo'n 80 cm :)

  • MartijnA3
  • Registratie: Mei 2002
  • Laatst online: 04-04 15:32
iasix schreef op dinsdag 26 april 2022 @ 08:35:
[...]

Het is een reeds bestaande optie om grotere deuren/ramen te nemen. De kozijnen veranderen dan ook en de afstand tot de muren wordt dan aan weerszijden zo'n 80 cm :)
Ah ok.

Omdat de wand zo lang is zou ik de techniekwand niet in de hoek laten beginnen, dus het voordeel van de 80cm muren zie ik niet zo.

Je eiland komt ter hoogte van het muurtje dus dat is ook niet zo erg.

Voor de lange wand zou je ook ziets kunnen doen vanuit de hoek:
Afbeeldingslocatie: https://i.imgur.com/lNhnYa7.png

En wat dan in de originele tekening de tuindeur is met een raam ernaast, daar zou ik een dubbele openslaande deur van maken.

Maar goed, smaken verschillen. :) Wij hebben ook een woonkeuken beneden (ook woonkamer op de 1ste) en zijn in de hele straat de enige die dubbele openslaande deuren hebben. Dat was echt één van de beste keuzes die we hebben gemaakt.

iRacing Profiel


  • Z___Z
  • Registratie: Maart 2002
  • Niet online
MartijnA3 schreef op dinsdag 26 april 2022 @ 08:50:
[...]


Ah ok.

Omdat de wand zo lang is zou ik de techniekwand niet in de hoek laten beginnen, dus het voordeel van de 80cm muren zie ik niet zo.

Je eiland komt ter hoogte van het muurtje dus dat is ook niet zo erg.

Voor de lange wand zou je ook ziets kunnen doen vanuit de hoek:
[Afbeelding]

En wat dan in de originele tekening de tuindeur is met een raam ernaast, daar zou ik een dubbele openslaande deur van maken.

Maar goed, smaken verschillen. :) Wij hebben ook een woonkeuken beneden (ook woonkamer op de 1ste) en zijn in de hele straat de enige die dubbele openslaande deuren hebben. Dat was echt één van de beste keuzes die we hebben gemaakt.
Het is tegenwoordig populair om een koof om de kasten heen te bouwen, maar IMHO is dat zonde van de ruimte. Je maakt de kamer onnodig kleiner door loze koven te timmeren. Als je een enorme ruimte hebt is er wellicht wat voor te zeggen, maar in een ruimte van 40-50m2 zou ik het niet doen.

  • bibabart
  • Registratie: September 2010
  • Laatst online: 27-06-2023
Naar aanleiding van veel positieve ervaringen zijn we in Maart op bezoek geweest bij Mobel Faber in Nordhorn. We zijn daar enorm prettig geholpen door Uwe Faber zelf en hij kwam met een hele goede prijs die bijna de helft scheelde met een offerte van Marquardt uit Nederland. Ekelhoff zat er ongeveer tussenin.

Nu wilden we dus graag verder met Faber met wat kleine aanpassingen in de opstelling en apparatuur. Maar ze reageren niet op mails en de telefoon wordt ook nauwelijks opgenomen. Vorige week eindelijk Uwe weer aan de telefoon gehad met de belofte de aanpassingen de volgende dag te mailen ... en toen bleef het weer stil.

Eerlijk gezegd ben ik er wel klaar mee. Het geeft geen vertrouwen en ben bang dat mocht er later iets mis zijn dat je ze niet kunt bereiken. De laatste berichten in dit topic geven eenzelfde beeld.

Iemand hier een tip voor een keukenzaak in Duitsland met goede prijzen en service? Ik zag bijvoorbeeld Ihre Kuche voorbij komen en Hans te Wildt. Zijn dat aanraders? Merken waar we van gecharmeerd zijn: Hacker Systemat of Next125.

  • SquareOne
  • Registratie: Januari 2010
  • Laatst online: 10:06
Shwan schreef op maandag 25 april 2022 @ 22:50:
Zojuist weer een offerte laten opstellen voor onze keuken. Ik vraag mij af wat jullie vinden van de opstelling , merk van keukenkasten en de prijs.

[Afbeelding]

[Afbeelding]
  • Siemens KI81RADE0 (IQ500) 177cm koelkast
  • Siemens GI81NSCE0 (IQ500) 177cm vriezer
  • Siemens HS836GTB6 (IQ700) Bakoven met stoom
  • Siemens CM616GBS1 (IQ700) combi/magnetron compact
  • Siemens BI630CNS1 (IQ700) serviesverwarmer
  • Siemens SX87Y801BE (IQ700) Vaatwasser XXL
  • Siemens KU21WAHG0 (IQ500) Wijnklimaatkast
  • Quooker 22+FSBLK Kraan
  • Quooker ZPNBLK Zeeppomp
  • Bora PUXU Kookplaat
***members only***


Renders van de keuken heb ik zelf gemaakt
Erg fraaie renders! Complimenten :). Welke software heb je gebruikt?
Lijnenspel is wat moeilijk te zien in kastenwand.

Heb je wellicht ook nog aanzichten van de keukenzaak? Dan kunnen we wellicht wat makkelijker feedback geven op het lijnenspel.

  • SquareOne
  • Registratie: Januari 2010
  • Laatst online: 10:06
Aurum schreef op dinsdag 26 april 2022 @ 08:34:
Bij ons is gisteren ook de vaatwasser geplaatst en zijn de laatste puntjes geregeld dus hij is bruikbaar! :D
[Afbeelding]
Mooi keuken!
Wellicht je originele post met specs even in je bericht zetten.

Aurum in "Het Grote Keuken topic: verkopers, kwaliteit, prijs - Deel 3"

  • lizard87
  • Registratie: Oktober 2019
  • Laatst online: 08:39
bibabart schreef op dinsdag 26 april 2022 @ 09:32:
Naar aanleiding van veel positieve ervaringen zijn we in Maart op bezoek geweest bij Mobel Faber in Nordhorn. We zijn daar enorm prettig geholpen door Uwe Faber zelf en hij kwam met een hele goede prijs die bijna de helft scheelde met een offerte van Marquardt uit Nederland. Ekelhoff zat er ongeveer tussenin.

Nu wilden we dus graag verder met Faber met wat kleine aanpassingen in de opstelling en apparatuur. Maar ze reageren niet op mails en de telefoon wordt ook nauwelijks opgenomen. Vorige week eindelijk Uwe weer aan de telefoon gehad met de belofte de aanpassingen de volgende dag te mailen ... en toen bleef het weer stil.

Eerlijk gezegd ben ik er wel klaar mee. Het geeft geen vertrouwen en ben bang dat mocht er later iets mis zijn dat je ze niet kunt bereiken. De laatste berichten in dit topic geven eenzelfde beeld.

Iemand hier een tip voor een keukenzaak in Duitsland met goede prijzen en service? Ik zag bijvoorbeeld Ihre Kuche voorbij komen en Hans te Wildt. Zijn dat aanraders? Merken waar we van gecharmeerd zijn: Hacker Systemat of Next125.
Dat is inderdaad helaas de huidige situatie bij Faber - in principe een top zaak, maar ze komen om in het werk en kunnen het niet aan, dus service, communicatie en after-sales schieten er bij in. Mijn keuken komt er ook vandaan, maar kan ze inmiddels niet meer aanraden. Geen ervaring met de zaken die je noemt, maar idd wel goede dingen over gehoord - maar daar kunnen andere Tweakers je hopelijk meer over vertellen.

  • SquareOne
  • Registratie: Januari 2010
  • Laatst online: 10:06
Z___Z schreef op dinsdag 26 april 2022 @ 09:13:
[...]

Het is tegenwoordig populair om een koof om de kasten heen te bouwen, maar IMHO is dat zonde van de ruimte. Je maakt de kamer onnodig kleiner door loze koven te timmeren. Als je een enorme ruimte hebt is er wellicht wat voor te zeggen, maar in een ruimte van 40-50m2 zou ik het niet doen.
Niet mee eens. Met een ombouw kun je de keuken ook mooi aansluiten op het plafond en er spotjes in weg werken. De keuken gaat zo meer op in de ruimte en wordt meer een 'meubel' dan een losse keuken.

  • Sinny
  • Registratie: Augustus 2007
  • Laatst online: 04-04 03:49
bibabart schreef op dinsdag 26 april 2022 @ 09:32:
Naar aanleiding van veel positieve ervaringen zijn we in Maart op bezoek geweest bij Mobel Faber in Nordhorn. We zijn daar enorm prettig geholpen door Uwe Faber zelf en hij kwam met een hele goede prijs die bijna de helft scheelde met een offerte van Marquardt uit Nederland. Ekelhoff zat er ongeveer tussenin.

Nu wilden we dus graag verder met Faber met wat kleine aanpassingen in de opstelling en apparatuur. Maar ze reageren niet op mails en de telefoon wordt ook nauwelijks opgenomen. Vorige week eindelijk Uwe weer aan de telefoon gehad met de belofte de aanpassingen de volgende dag te mailen ... en toen bleef het weer stil.

Eerlijk gezegd ben ik er wel klaar mee. Het geeft geen vertrouwen en ben bang dat mocht er later iets mis zijn dat je ze niet kunt bereiken. De laatste berichten in dit topic geven eenzelfde beeld.

Iemand hier een tip voor een keukenzaak in Duitsland met goede prijzen en service? Ik zag bijvoorbeeld Ihre Kuche voorbij komen en Hans te Wildt. Zijn dat aanraders? Merken waar we van gecharmeerd zijn: Hacker Systemat of Next125.
Bij Ihre Kuche leveren ze Next125 en daar zijn wij en anderen hier echt goed geholpen :)

  • jichem
  • Registratie: Augustus 2016
  • Laatst online: 04-04 12:13
bibabart schreef op dinsdag 26 april 2022 @ 09:32:
Naar aanleiding van veel positieve ervaringen zijn we in Maart op bezoek geweest bij Mobel Faber in Nordhorn. We zijn daar enorm prettig geholpen door Uwe Faber zelf en hij kwam met een hele goede prijs die bijna de helft scheelde met een offerte van Marquardt uit Nederland. Ekelhoff zat er ongeveer tussenin.

Nu wilden we dus graag verder met Faber met wat kleine aanpassingen in de opstelling en apparatuur. Maar ze reageren niet op mails en de telefoon wordt ook nauwelijks opgenomen. Vorige week eindelijk Uwe weer aan de telefoon gehad met de belofte de aanpassingen de volgende dag te mailen ... en toen bleef het weer stil.

Eerlijk gezegd ben ik er wel klaar mee. Het geeft geen vertrouwen en ben bang dat mocht er later iets mis zijn dat je ze niet kunt bereiken. De laatste berichten in dit topic geven eenzelfde beeld.

Iemand hier een tip voor een keukenzaak in Duitsland met goede prijzen en service? Ik zag bijvoorbeeld Ihre Kuche voorbij komen en Hans te Wildt. Zijn dat aanraders? Merken waar we van gecharmeerd zijn: Hacker Systemat of Next125.
Wij zijn echt supertevreden tot nu toe over https://kuechen-woesten.de/nl/. Hebben niet de genoemde merken maar mogelijk dat je met Rational ook een mooie keuken kan vinden? (wij hebben hem alleen nog maar gekocht, dus over de rest kan ik nog geen uitspraken doen)

  • Shwan
  • Registratie: September 2011
  • Laatst online: 28-03 23:52
SquareOne schreef op dinsdag 26 april 2022 @ 09:39:
[...]


Erg fraaie renders! Complimenten :). Welke software heb je gebruikt?
Lijnenspel is wat moeilijk te zien in kastenwand.

Heb je wellicht ook nog aanzichten van de keukenzaak? Dan kunnen we wellicht wat makkelijker feedback geven op het lijnenspel.
Lumion! Heel makkelijk importeren van een Sketchup bestand. Moet het altijd voor mijzelf goed visualiseren.

Ik heb de technische keukeninstallatie voor meer info:

Afbeeldingslocatie: https://tweakers.net/i/fRY9KlWkBZ43AwmtioJVJcmK0lE=/x800/filters:strip_icc():strip_exif()/f/image/AyPj8D1zSHYl0i4eFiTMxQ5A.jpg?f=fotoalbum_large

  • Z___Z
  • Registratie: Maart 2002
  • Niet online
Shwan schreef op dinsdag 26 april 2022 @ 13:32:
[...]


Lumion! Heel makkelijk importeren van een Sketchup bestand. Moet het altijd voor mijzelf goed visualiseren.

Ik heb de technische keukeninstallatie voor meer info:

[Afbeelding]
Hoe wordt jouw werkblad bij het bargedeelte ondersteund? En de lengte van het blad betekent dat er 2 delen zijn, hoe ziet de naad eruit in het blad wat je gekozen hebt?

  • SquareOne
  • Registratie: Januari 2010
  • Laatst online: 10:06
Shwan schreef op dinsdag 26 april 2022 @ 13:32:
[...]


Lumion! Heel makkelijk importeren van een Sketchup bestand. Moet het altijd voor mijzelf goed visualiseren.

Ik heb de technische keukeninstallatie voor meer info:

[Afbeelding]
Ik mis zijpanelen bij de hoge kasten, of wordt de korpus in frontkleur gemaakt?

  • Shwan
  • Registratie: September 2011
  • Laatst online: 28-03 23:52
Z___Z schreef op dinsdag 26 april 2022 @ 13:47:
[...]

Hoe wordt jouw werkblad bij het bargedeelte ondersteund? En de lengte van het blad betekent dat er 2 delen zijn, hoe ziet de naad eruit in het blad wat je gekozen hebt?
Je ziet het niet echt op deze keukentekening, maar er zal een ondersteuning komen. Zie foto
Afbeeldingslocatie: https://tweakers.net/i/yEwpIF3rByuSfQ7Ziltdx89e1Oo=/x800/filters:strip_icc():strip_exif()/f/image/ySV5SPKCJzxJWLZ4Xf11zpSR.jpg?f=fotoalbum_large

We gaan het blad uitzoeken op locatie, dus dat betekent dat we bij Kemie langs moeten gaan. En dan is het daar kijken wat voor blad we kunnen uitzoeken zodat de naad niet teveel opvalt.
SquareOne schreef op dinsdag 26 april 2022 @ 13:52:
[...]


Ik mis zijpanelen bij de hoge kasten, of wordt de korpus in frontkleur gemaakt?
Klopt, er komen zijpanelen en die zullen rusten op het werkblad in de nis.

  • Source90
  • Registratie: December 2008
  • Laatst online: 09:00
bibabart schreef op dinsdag 26 april 2022 @ 09:32:
Naar aanleiding van veel positieve ervaringen zijn we in Maart op bezoek geweest bij Mobel Faber in Nordhorn. We zijn daar enorm prettig geholpen door Uwe Faber zelf en hij kwam met een hele goede prijs die bijna de helft scheelde met een offerte van Marquardt uit Nederland. Ekelhoff zat er ongeveer tussenin.

Nu wilden we dus graag verder met Faber met wat kleine aanpassingen in de opstelling en apparatuur. Maar ze reageren niet op mails en de telefoon wordt ook nauwelijks opgenomen. Vorige week eindelijk Uwe weer aan de telefoon gehad met de belofte de aanpassingen de volgende dag te mailen ... en toen bleef het weer stil.

Eerlijk gezegd ben ik er wel klaar mee. Het geeft geen vertrouwen en ben bang dat mocht er later iets mis zijn dat je ze niet kunt bereiken. De laatste berichten in dit topic geven eenzelfde beeld.

Iemand hier een tip voor een keukenzaak in Duitsland met goede prijzen en service? Ik zag bijvoorbeeld Ihre Kuche voorbij komen en Hans te Wildt. Zijn dat aanraders? Merken waar we van gecharmeerd zijn: Hacker Systemat of Next125.
Ik deel deze ervaring deels.
Communicatie is echt een verbeterpunt bij Mobel Faber.

Voor de rest prima prijs gekregen, drie apparaten gratis een upgrade op gehad (kookplaat van Bora naar duurste Miele, vaatwasser hoger model en koelkast upgrade) vanwege leverproblemen.

Uiteindelijk als communicatie gebeld en bericht achterlaten bij Christina (of mailen naar haar) heeft wel geholpen om vrij snel reacties te krijgen.

  • DaVe9091
  • Registratie: Maart 2022
  • Laatst online: 27-01-2024
bibabart schreef op dinsdag 26 april 2022 @ 09:32:
Naar aanleiding van veel positieve ervaringen zijn we in Maart op bezoek geweest bij Mobel Faber in Nordhorn. We zijn daar enorm prettig geholpen door Uwe Faber zelf en hij kwam met een hele goede prijs die bijna de helft scheelde met een offerte van Marquardt uit Nederland. Ekelhoff zat er ongeveer tussenin.

Nu wilden we dus graag verder met Faber met wat kleine aanpassingen in de opstelling en apparatuur. Maar ze reageren niet op mails en de telefoon wordt ook nauwelijks opgenomen. Vorige week eindelijk Uwe weer aan de telefoon gehad met de belofte de aanpassingen de volgende dag te mailen ... en toen bleef het weer stil.

Eerlijk gezegd ben ik er wel klaar mee. Het geeft geen vertrouwen en ben bang dat mocht er later iets mis zijn dat je ze niet kunt bereiken. De laatste berichten in dit topic geven eenzelfde beeld.

Iemand hier een tip voor een keukenzaak in Duitsland met goede prijzen en service? Ik zag bijvoorbeeld Ihre Kuche voorbij komen en Hans te Wildt. Zijn dat aanraders? Merken waar we van gecharmeerd zijn: Hacker Systemat of Next125.
Hier dezelfde ervaring. In maart op bezoek geweest bij MF en prima geholpen door Jens bij het samenstellen van een Systemat (ze verkopen geen schuller). Prijs lag lager dan een DMG offerte, maar na pogingen om eea via de email aan te laten passen zijn we het vertrouwen verloren.

Toen een bezoek gebracht aan Ihre Kuche en gesproken met Fransesco, prima geholpen. Nu geswitcht naar een schuller keuken. Ze verkopen zowel schuller als Next keukens met voornamelijk siemens apparatuur. Volgens mij geen Systemat.

Na ons bezoek bij Ihre Kuche via de email wat vragen gesteld en die werden vrij snel netjes beantwoord. De prijs lag naar ons mening nog steeds te hoog. Uiteindelijk vorige week gekozen voor een schuller keuken bij Superkeukens.

  • Source90
  • Registratie: December 2008
  • Laatst online: 09:00
DaVe9091 schreef op dinsdag 26 april 2022 @ 15:04:
[...]


Hier dezelfde ervaring. In maart op bezoek geweest bij MF en prima geholpen door Jens bij het samenstellen van een Systemat (ze verkopen geen schuller). Prijs lag lager dan een DMG offerte, maar na pogingen om eea via de email aan te laten passen zijn we het vertrouwen verloren.

Toen een bezoek gebracht aan Ihre Kuche en gesproken met Fransesco, prima geholpen. Nu geswitcht naar een schuller keuken. Ze verkopen zowel schuller als Next keukens met voornamelijk siemens apparatuur. Volgens mij geen Systemat.

Na ons bezoek bij Ihre Kuche via de email wat vragen gesteld en die werden vrij snel netjes beantwoord. De prijs lag naar ons mening nog steeds te hoog. Uiteindelijk vorige week gekozen voor een schuller keuken bij Superkeukens.
Ihre Kuche lag bij mij inderdaad ook 4k hoger met Schüller dan ik uiteindelijk betaald heb voor Systemat bij MF.

  • bibabart
  • Registratie: September 2010
  • Laatst online: 27-06-2023
DaVe9091 schreef op dinsdag 26 april 2022 @ 15:04:
[...]

Toen een bezoek gebracht aan Ihre Kuche en gesproken met Fransesco, prima geholpen. Nu geswitcht naar een schuller keuken. Ze verkopen zowel schuller als Next keukens met voornamelijk siemens apparatuur. Volgens mij geen Systemat.
We zitten niet vast op Systemat, maar de keuken was mooi en de prijs echt goed. Vraag me af of een verschil van een paar 1000 de moeite waard is om nog een keer voor naar DE te rijden. Misschien toch nog maar eens proberen bij MF, het is @Source90 ook uiteindelijk gelukt zo te lezen :)

  • iasix
  • Registratie: September 2005
  • Laatst online: 30-01 15:57
Oké. Zijn vandaag langs Grando geweest om een impressie te krijgen van wat de experts nou denken etc. qua indeling.

We zijn erover uit dat we de keuken aan de voorzijde gaan doen en dat we de deur dan een schuifdeur maken zodat we wel ruimte hebben eromheen te lopen en we van de 'eetkamer' alsnog een woonkamer maken.

Ik ga het nog uittekenen in photoshop, maar we komen uit op de volgende renders. Echt het typische 'nu of nooit' gevoel was er weer, veel druk om een handtekening te zetten. Irritant.
Dus wandkasten + kookeiland 100 * 300 + nog een stukje aanrecht ook naast de pui (daar komt dan mijn koffiehoekje).

We hebben niet verder onderhandeld toen we de prijs hoorden en gaan zaterdag terug voor een tweede gesprek. Ga daar ook geen uren zitten: bodembedrag noemen en dan take it or leave it wat mij betreft.
In de bijlage een overzicht van de kosten. Wat denken jullie dat een redelijke prijs zou zijn voor deze Hacker Systematic keuken? We wilden eigenlijk Miele apparatuur maar denk niet dat dat binnen budget gaat passen (25-30k max).
Afbeeldingslocatie: https://tweakers.net/i/JPC0EMPUD8SjA5iLlbQxNgp0z3w=/800x/filters:strip_icc():strip_exif()/f/image/92RBXBA68msAG5kbWq1OpKVG.jpg?f=fotoalbum_large

Afbeeldingslocatie: https://tweakers.net/i/AJKbIVYtFDuJbZ0JTqS0Dnm6kZ4=/800x/filters:strip_icc():strip_exif()/f/image/Nbks3RxIWcbeZtq0usac83uy.jpg?f=fotoalbum_large

Afbeeldingslocatie: https://tweakers.net/i/QYM-R4F22PY5fYzyUEl4atFZINM=/800x/filters:strip_icc():strip_exif()/f/image/hMbaBLTNU62GNn8WpcmBAgKi.jpg?f=fotoalbum_large

Afbeeldingslocatie: https://tweakers.net/i/0xuDs7I0_9rDwysGAzjwc0urXg8=/800x/filters:strip_icc():strip_exif()/f/image/VIBPmXApX466cyU5eoFJLsO0.jpg?f=fotoalbum_largeAfbeeldingslocatie: https://tweakers.net/i/R5jRvJw2FR3_2rDPIuzu7KXKk1A=/full-fit-in/4000x4000/filters:no_upscale():fill(white):strip_exif()/f/image/GgA13oRQ9jvhUCQrsSS6uHmA.png?f=user_large

[ Voor 6% gewijzigd door iasix op 26-04-2022 19:59 ]


  • GeeMoney
  • Registratie: April 2002
  • Laatst online: 10:06
nevermind :).

[ Voor 90% gewijzigd door GeeMoney op 26-04-2022 19:52 ]


  • Toke_gt
  • Registratie: Juni 2021
  • Laatst online: 08:46
iasix schreef op dinsdag 26 april 2022 @ 19:44:
Dus wandkasten + kookeiland 100 * 300 + nog een stukje aanrecht ook naast de pui (daar komt dan mijn koffiehoekje).

We hebben niet verder onderhandeld toen we de prijs hoorden en gaan zaterdag terug voor een tweede gesprek. Ga daar ook geen uren zitten: bodembedrag noemen en dan take it or leave it wat mij betreft.
In de bijlage een overzicht van de kosten. Wat denken jullie dat een redelijke prijs zou zijn voor deze Hacker Systematic keuken? We wilden eigenlijk Miele apparatuur maar denk niet dat dat binnen budget gaat passen (25-30k max).
[
De prijs lijkt me nu in ieder geval veel te hoog, vergeleken met wat sommige anderen hier voor een vergelijkbare of riantere opstelling betalen.
Verder schat ik in dat je het graag laat zoals het nu is, maar toch een tip: plaats de vaatwasser ergens in de wand (onder de oven bijv) want hij is nu ingetekend op de plek waar de kok staat, tussen spoel en koken in. Dat kan heel irritant zijn.
Vraagje nog: maak je op de 1e verdieping een pantry? Zonee, overweeg dan om de koffiecorner op de 1e te maken, met koelkast en spoelbak.

  • beyazz06
  • Registratie: December 2009
  • Niet online
iasix schreef op dinsdag 26 april 2022 @ 19:44:
Oké. Zijn vandaag langs Grando geweest om een impressie te krijgen van wat de experts nou denken etc. qua indeling.

We zijn erover uit dat we de keuken aan de voorzijde gaan doen en dat we de deur dan een schuifdeur maken zodat we wel ruimte hebben eromheen te lopen en we van de 'eetkamer' alsnog een woonkamer maken.

Ik ga het nog uittekenen in photoshop, maar we komen uit op de volgende renders. Echt het typische 'nu of nooit' gevoel was er weer, veel druk om een handtekening te zetten. Irritant.
Dus wandkasten + kookeiland 100 * 300 + nog een stukje aanrecht ook naast de pui (daar komt dan mijn koffiehoekje).

We hebben niet verder onderhandeld toen we de prijs hoorden en gaan zaterdag terug voor een tweede gesprek. Ga daar ook geen uren zitten: bodembedrag noemen en dan take it or leave it wat mij betreft.
In de bijlage een overzicht van de kosten. Wat denken jullie dat een redelijke prijs zou zijn voor deze Hacker Systematic keuken? We wilden eigenlijk Miele apparatuur maar denk niet dat dat binnen budget gaat passen (25-30k max).
[Afbeelding]

[Afbeelding]

[Afbeelding]

[Afbeelding][Afbeelding]
Blad en apparatuur lijken gelijk aan andere aanbieders wanneer je deze als geheel afneemt. Koop je het blad zelf separaat dan zou je ongeveer op de helft zitten.

Waar Grando wel de hoofdprijs voor rekent zijn de keukenmeubelen, 22k is way too much! Dat zou in mijn ogen makkelijk naar 15k kunnen, wellicht nog minder.. Om zelf goed een beeld te krijgen zou je ook via thuiskeukens de boel bijelkaar kunnen klikken, weet je meteen wat realistisch is..

Als het lukt, ga dan eens naar keukenloods. Daar heb ik het meest "reële" eerste bedrag ontvangen zonder te onderhandelen..

  • Source90
  • Registratie: December 2008
  • Laatst online: 09:00
Vraag voor de apparatuur eens een offerte op bij Keukenloods of 123apparaten.
Grando kan dat niet matchen, desalniettemin kan je het onder hun neus duwen bij onderhandelingen.

Vind de korting op Siemens erg mager bij jou.

  • iasix
  • Registratie: September 2005
  • Laatst online: 30-01 15:57
Toke_gt schreef op dinsdag 26 april 2022 @ 20:33:
[...]

De prijs lijkt me nu in ieder geval veel te hoog, vergeleken met wat sommige anderen hier voor een vergelijkbare of riantere opstelling betalen.
Verder schat ik in dat je het graag laat zoals het nu is, maar toch een tip: plaats de vaatwasser ergens in de wand (onder de oven bijv) want hij is nu ingetekend op de plek waar de kok staat, tussen spoel en koken in. Dat kan heel irritant zijn.
Vraagje nog: maak je op de 1e verdieping een pantry? Zonee, overweeg dan om de koffiecorner op de 1e te maken, met koelkast en spoelbak.
Heb zelf geen rigide gedachten hoor over de keuken, kan allemaal gewijzigd worden wat mij betreft maar vrouw wilt het graag zo. Wellicht inderdaad goed de vaatwasser te verplaatsen, zal kijken wat ze ervan vindt.

Boven hebben we ook een pantry waar we dan onze volautomaat machine zullen plaatsen.
Koffiehoek beneden wordt een baristahoekje met wat meer professionele gear :)

Qua korting hebben we nog 0.0 onderhandeld, duurde allemaal erg lang en ik moest echt weg dus toen hij de prijs noemde stond ik al met 1 been buiten zeg maar.
Vroeg me meer af hoe gestrekt mijn been moet zijn als ik wel ga onderhandelen zaterdag.

Denk ook goed om eens langs anderen te gaan, maar erg lastig met mijn baan. Heb bergen moeten verzetten om vandaag vrij te krijgen.

  • Toke_gt
  • Registratie: Juni 2021
  • Laatst online: 08:46
iasix schreef op dinsdag 26 april 2022 @ 22:12:
[...]

Boven hebben we ook een pantry waar we dan onze volautomaat machine zullen plaatsen.
Koffiehoek beneden wordt een baristahoekje met wat meer professionele gear :)
Ah leuk! Wordt vast een mooi huis.
Qua korting hebben we nog 0.0 onderhandeld, duurde allemaal erg lang en ik moest echt weg dus toen hij de prijs noemde stond ik al met 1 been buiten zeg maar.
Vroeg me meer af hoe gestrekt mijn been moet zijn als ik wel ga onderhandelen zaterdag.
Maar laat je toch niet zo gek maken! Je hebt zeeën van tijd. Nu je weet dat dit het wordt kun je een technische tekening laten maken. En vervolgens neem je de tijd voor het uitkiezen van een keuken. Is sowieso wel slim want het duurt nog even voor je huis klaar is en in die tijd kan er een hoop veranderen op keukengebied. Mocht de markt wat kalmeren, kun je daar financieel ook nog wel voordeel uit halen. Nu heeft verkoper vast door dat jij haast hebt, en gaat je niet veel korting geven.

  • knights16
  • Registratie: Augustus 2000
  • Laatst online: 02-04 21:27
iasix schreef op dinsdag 26 april 2022 @ 19:44:
Oké. Zijn vandaag langs Grando geweest om een impressie te krijgen van wat de experts nou denken etc. qua indeling.

We zijn erover uit dat we de keuken aan de voorzijde gaan doen en dat we de deur dan een schuifdeur maken zodat we wel ruimte hebben eromheen te lopen en we van de 'eetkamer' alsnog een woonkamer maken.

Ik ga het nog uittekenen in photoshop, maar we komen uit op de volgende renders. Echt het typische 'nu of nooit' gevoel was er weer, veel druk om een handtekening te zetten. Irritant.
Dus wandkasten + kookeiland 100 * 300 + nog een stukje aanrecht ook naast de pui (daar komt dan mijn koffiehoekje).

We hebben niet verder onderhandeld toen we de prijs hoorden en gaan zaterdag terug voor een tweede gesprek. Ga daar ook geen uren zitten: bodembedrag noemen en dan take it or leave it wat mij betreft.
In de bijlage een overzicht van de kosten. Wat denken jullie dat een redelijke prijs zou zijn voor deze Hacker Systematic keuken? We wilden eigenlijk Miele apparatuur maar denk niet dat dat binnen budget gaat passen (25-30k max).
[Afbeelding]

[Afbeelding]

[Afbeelding]

[Afbeelding][Afbeelding]
Grando, netto prijzen, dacht het niet. Zoals hierboven al staat beschreven. Wees scherp op de prijs. Wij kregen een offerte van 38k terwijl dit bij Mobel Faber uiteindelijk 24k was.

PVoutput


  • Djie
  • Registratie: April 2007
  • Laatst online: 17-03 20:11
We zijn onze keuken aan het tekenen en hebben al een goed beeld bij de indeling, formaten, apparaten, kleuren. Dit mede door de orienterende gesprekken bij een paar keukenboeren. Echter zitten we te twijfelen over een granieten blad en ben daarbij benieuwd naar de ervaringen/overwegingen van medetweakers.

De bladen lijken voornamelijk (wss DMG) bij LionStone vandaan te komen en hebben ons ook laten vallen op de Graniet - Bianco Cristal 507. Graniet komt in 3 verschillende varianten, gepolijst, gezoet en gebrand(antiek).

Deze laatste vinden we het beste staan, echter onze angst is dat gebrand/antiek de meest open en dus het meeste vlekken achterlaat. Zeker met kids wil je niet er continue achteraan om meteen vlekken, sappen, etensresten snel op te moeten ruimen. Maw, functionaliteit tov looks vraag wellicht :)

Zijn er mede tweakers die een bewuste keuze voor gepolijst ipv gebrand of vica versa zijn gegaan? Ik benieuwd naar jullie overwegingen.

  • MartijnA3
  • Registratie: Mei 2002
  • Laatst online: 04-04 15:32
Aangezien de meeste zaken in NL vandaag dicht zijn, welke Dutise keukenzaken dicht bij Arnhem/Nijmegen zouden jullie me aanbevelen voor een standaard keuken zonder poespas? Budget is niet al te groot en bij Hello Kitchen kwam ik op 13k uit. Inductieplaat is dan een Bora.

Afbeeldingslocatie: https://i.imgur.com/8UUEkLu.jpg?1

Stijl van de frontjes is lichte betonlook greeploos. Oh en barretje ga ik laten vervallen.

Ik heb nu alleen Ihre Kuche in Kranenburg op mijn lijstje staan.

[ Voor 10% gewijzigd door MartijnA3 op 27-04-2022 10:06 ]

iRacing Profiel


  • beyazz06
  • Registratie: December 2009
  • Niet online
beyazz06 schreef op zondag 24 april 2022 @ 22:13:
Vandaag weer langs een keukenboer geweest waar wij heel goed geholpen zijn. Zo goed dat wij nu een iets andere opstelling hebben, ben benieuwd wat jullie ervan vinden.

Oorspronkelijk:
[Afbeelding]

Gewijzigd naar:
[Afbeelding]

Een hoge kast heeft plaatsgemaakt voor een bredere nis. Deze was 120 cm en is nu 180 cm geworden met 2 x 90 cm ladekasten onder.

Ook is de eiland iets aangepast, niet te zien op de foto. Waarbij de onderkast van de spoelbak van 60 cm naar 80 cm is gegaan. Dit was volgens de keukenboer nodig voor de spoelbak (min 15 cm van de rand voor de uitsparing?). Deze is dus in totaliteit van 220 cm naar 240 cm gegaan.
Vandaag een offerte van Faber mogen ontvangen voor deze opstelling; waar de keukenboeren in NL nog niet onder 30k hebben geoffreerd kwam Faber met een offerte van 23k incl. montage. Niet verkeerd denk ik zo. Ga zelf nog langs keukenloods voor een 2e gesprek alsook nog wachtend op een reactie van wooning.

Het is echter fijn om een offerte hebben waar je mee kunt vergelijken!

Heeft er iemand trouwens wel eens geprobeerd met een offerte van Faber/Duitse keukenboer in NL te shoppen c.q. te laten matchen?

[ Voor 3% gewijzigd door beyazz06 op 27-04-2022 23:03 ]


  • Source90
  • Registratie: December 2008
  • Laatst online: 09:00
beyazz06 schreef op woensdag 27 april 2022 @ 23:02:
[...]


Vandaag een offerte van Faber mogen ontvangen voor deze opstelling; waar de keukenboeren in NL nog niet onder 30k hebben geoffreerd kwam Faber met een offerte van 23k incl. montage. Niet verkeerd denk ik zo. Ga zelf nog langs keukenloods voor een 2e gesprek alsook nog wachtend op een reactie van wooning.

Het is echter fijn om een offerte hebben waar je mee kunt vergelijken!

Heeft er iemand trouwens wel eens geprobeerd met een offerte van Faber/Duitse keukenboer in NL te shoppen c.q. te laten matchen?
Ik heb hem (okt-2021) opgestuurd naar Keukenloods. Werd terug gebeld dat ze dit niet konden matchen en dat het hun sterk leek dat het voor deze prijs geleverd werd. >:)

Enige nadeel bij Möbel Faber vind/vond ik dat ze niet transparant zijn met de prijzen. Je krijgt een totaalprijs en weet niet hoeveel de kasten/blad/apparatuur kost.
Onderaan de streep veel goedkoper dan de Nederlandse offertes die ik kreeg (Grando kwam met 32K aan en Siemens IQ500 apparatuur, hij is inmiddels geplaatst voor 26,5K met de hoogste lijn van Miele).

[ Voor 18% gewijzigd door Source90 op 27-04-2022 23:37 ]


  • CurlyMo
  • Registratie: Februari 2011
  • Nu online
Ik ben aan het kijken naar een EX977KXX5E inductiekookplaat van Siemens. Enige wat ik me afvraag is of deze ook als 2-fase aan te sluiten is of alleen 3-fase of 1-fase?

Sinds de 2 dagen regel reageer ik hier niet meer


  • Source90
  • Registratie: December 2008
  • Laatst online: 09:00
CurlyMo schreef op woensdag 27 april 2022 @ 23:39:
Ik ben aan het kijken naar een EX977KXX5E inductiekookplaat van Siemens. Enige wat ik me afvraag is of deze ook als 2-fase aan te sluiten is of alleen 3-fase of 1-fase?
In reguliere groepenkasten bestaat er geen 2 fase.
Je hebt een 1 fase (meestal 40A) groepenkast ofwel een 3 fase (meestal 3x25A) groepenkast.

Aansluiten kan via een kookgroep (2 groepen, idealiter verdeeld over 2 fases d.m.v. een 3-fase aardlekschakelaar), of via een krachtgroep (automaat) (idealiter via een 3 fase aardlekautomaat).

Als je een 3 fase aansluiting hebt, zou ik een 3 fase aardlekautomaat nemen.
Bij een 1 fase huisaansluiting kan je wegkomen met een kookgroep.

  • CurlyMo
  • Registratie: Februari 2011
  • Nu online
Source90 schreef op woensdag 27 april 2022 @ 23:58:
[...]
Bij een 1 fase huisaansluiting kan je wegkomen met een kookgroep.
Kookgroep bedoel ik inderdaad. In de handleiding zie ik alleen de 2N aansluiting niet genoemd staan.

Sinds de 2 dagen regel reageer ik hier niet meer


  • beyazz06
  • Registratie: December 2009
  • Niet online
Source90 schreef op woensdag 27 april 2022 @ 23:34:
[...]

Ik heb hem (okt-2021) opgestuurd naar Keukenloods. Werd terug gebeld dat ze dit niet konden matchen en dat het hun sterk leek dat het voor deze prijs geleverd werd. >:)

Enige nadeel bij Möbel Faber vind/vond ik dat ze niet transparant zijn met de prijzen. Je krijgt een totaalprijs en weet niet hoeveel de kasten/blad/apparatuur kost.
Onderaan de streep veel goedkoper dan de Nederlandse offertes die ik kreeg (Grando kwam met 32K aan en Siemens IQ500 apparatuur, hij is inmiddels geplaatst voor 26,5K met de hoogste lijn van Miele).
Kon het zo 123 niet terugvinden in de topic; je hebt dus uiteindelijk bij Faber de keuken aangeschaft? Is hij geplaatst? Hoe ging dat? Lees dat ze soms nogal lastig te bereiken zijn.

Hier ook eerst langs Grando geweest, was echt een lachertje.. Die vent was meer zichzelf aan het promoten dan proberen een keuken te verkopen. Vervolgens keukenloods, die kwam nog enigzins met een normale eerste offerte. Wooning spande de kroon door als eerste een offerte te geven met enkel de adviesprijzen: 42k :+ Uiteindelijk werd het 32k en nu zit ik nog op een telefoontje te wachten wat ze kunnen doen..

Ben zelf overigens nog niet bij Faber zelf geweest, dit was op basis van hun website voor een prijs vergelijking.

  • Source90
  • Registratie: December 2008
  • Laatst online: 09:00
beyazz06 schreef op donderdag 28 april 2022 @ 00:41:
[...]


Kon het zo 123 niet terugvinden in de topic; je hebt dus uiteindelijk bij Faber de keuken aangeschaft? Is hij geplaatst? Hoe ging dat? Lees dat ze soms nogal lastig te bereiken zijn.

Hier ook eerst langs Grando geweest, was echt een lachertje.. Die vent was meer zichzelf aan het promoten dan proberen een keuken te verkopen. Vervolgens keukenloods, die kwam nog enigzins met een normale eerste offerte. Wooning spande de kroon door als eerste een offerte te geven met enkel de adviesprijzen: 42k :+ Uiteindelijk werd het 32k en nu zit ik nog op een telefoontje te wachten wat ze kunnen doen..

Ben zelf overigens nog niet bij Faber zelf geweest, dit was op basis van hun website voor een prijs vergelijking.
Zie letterlijk bovenaan deze pagina :+
Source90 schreef op dinsdag 26 april 2022 @ 14:15:
[...]
Ik deel deze ervaring deels.
Communicatie is echt een verbeterpunt bij Mobel Faber.

Voor de rest prima prijs gekregen, drie apparaten gratis een upgrade op gehad (kookplaat van Bora naar duurste Miele, vaatwasser hoger model en koelkast upgrade) vanwege leverproblemen.

Uiteindelijk als communicatie gebeld en bericht achterlaten bij Christina (of mailen naar haar) heeft wel geholpen om vrij snel reacties te krijgen.
En zie hier voor de keuken: Source90 in "Het Grote Keuken topic: verkopers, kwaliteit, prijs - Deel 3"

[ Voor 52% gewijzigd door Source90 op 28-04-2022 01:09 ]


  • beyazz06
  • Registratie: December 2009
  • Niet online
Toen je aangaf 21-okt-2021 naar keukenloods te hebben verstuurd, ben ik rond die datum gaan zoeken :+ maar thnx!

  • mauricedb
  • Registratie: Maart 2007
  • Laatst online: 03-04 08:13
Ik lees al eventjes mee in dit topic en ben ook bezig met een nieuwe keuken. Nu ligt de hoofdindeling in principe vast (naar onze wens), maar zie nog graag een paar aanpassingen en ben benieuwd hoe jullie daar over denken. Onze woonkeuken is 503 cm breed en 464 cm diep (tot aan het glas in de glazen pui) met een draagmuurtje aan de linkerkant. Aan de voorkant (onderkant van de plattegrond) zit de woonkamer met op dit moment twee openslaande deuren. Deze willen we vervangen voor schuifdeuren (die verwerkt zit tussen de bestaande muur en een nieuw muurtje in de keuken (die hiermee ~13 cm minder diep wordt).

In de huidige opstelling vanuit de keukenboer staat een kookeiland van 260 cm x 100 cm. Hiermee heb je dus in de diepte 60 cm + 40 cm kasten met openslaande deurtjes aan de achterkant. Aangezien ik nogal fan ben van lades, zie ik liever een diepte van 120 cm voor het kookeiland zodat we aan die kant volledig lades kunnen doen (met genoeg ruimte in de diepte). Dit heb ik nu in mijn ontwerp in SketchUp verwerkt en ben benieuwd naar jullie mening.

De afmetingen volgens onderstaande plattegrond van rechts naar links:

60 cm kastenwand - 100 cm werk/looppad - 120 cm kookeiland - ~91 cm looppad - 130 cm eettafel met eetbanken. De eettafel is in principe van ondergeschikt belang ten opzichte van het kookeiland. Daar maken we niet heel veel gebruik van, maar moet wel ruimte hebben voor vier personen. De eettafel draaien lijkt mij niet handig om meerdere redenen.

De afstand van schuifdeuren naar kookeiland is 98 cm en van kookeiland naar glazen pui met openslaande deuren naar de tuin is 93 cm.

Rechtsboven is de deur naar de garage.

Afbeeldingslocatie: https://tweakers.net/i/AwE00-99I0kVXRBq3c1OiNH_5L4=/800x/filters:strip_exif()/f/image/eHtz0IFM17WblXq576VeTYmZ.png?f=fotoalbum_large

Qua indeling van de keuken zit de koelkast/vriezer combinatie aan de linkerkant van de kastenwand, met daarnaast een combi-oven. Onderkant zijn allemaal lades met aan de rechterkant een hoge voorraadkast. In het kookeiland zit zoals te zien een Bora PURU met daaronder lades, in het midden een vaatwasser en daarnaast spoelbak met openslaande deuren (oftewel de volgende afmetingen: 100 cm x 60 cm x 100 cm). De werkruimte tussen kookplaat en spoelbak is iets meer dan 90 cm. Op dit moment doen we het in principe met 60 cm (boven de huidige vaatwasser met daarnaast een spoelbak), dus wat dat betreft gaan we er sowieso op vooruit, al snap ik dat 90 cm voor velen aan de krappe kant is. Achterkant van het kookeiland dus volledig lades (in plaats van kasten met openslaande deuren van 40 cm diep). Ik denk dat de aanpassing van de diepte van het kookeiland nog net kan (en ook gewoon prima te doen is), maar ben benieuwd hoe jullie daar over denken.

Afbeeldingslocatie: https://tweakers.net/i/0Bc5H3CaAvyrLZviLiQeV410FXw=/800x/filters:strip_exif()/f/image/qY6YYea9Da2rpLCiRr424uPv.png?f=fotoalbum_large

[ Voor 4% gewijzigd door mauricedb op 28-04-2022 09:19 ]


  • Streamz
  • Registratie: Januari 2006
  • Laatst online: 27-03 09:14
iasix schreef op dinsdag 26 april 2022 @ 19:44:
Oké. Zijn vandaag langs Grando geweest om een impressie te krijgen van wat de experts nou denken etc. qua indeling.

We zijn erover uit dat we de keuken aan de voorzijde gaan doen en dat we de deur dan een schuifdeur maken zodat we wel ruimte hebben eromheen te lopen en we van de 'eetkamer' alsnog een woonkamer maken.

Ik ga het nog uittekenen in photoshop, maar we komen uit op de volgende renders. Echt het typische 'nu of nooit' gevoel was er weer, veel druk om een handtekening te zetten. Irritant.
Dus wandkasten + kookeiland 100 * 300 + nog een stukje aanrecht ook naast de pui (daar komt dan mijn koffiehoekje).

We hebben niet verder onderhandeld toen we de prijs hoorden en gaan zaterdag terug voor een tweede gesprek. Ga daar ook geen uren zitten: bodembedrag noemen en dan take it or leave it wat mij betreft.
In de bijlage een overzicht van de kosten. Wat denken jullie dat een redelijke prijs zou zijn voor deze Hacker Systematic keuken? We wilden eigenlijk Miele apparatuur maar denk niet dat dat binnen budget gaat passen (25-30k max).
[Afbeelding]

[Afbeelding]

[Afbeelding]

[Afbeelding][Afbeelding]
Ik zou even volledig opnieuw beginnen. Die doorloop bij de meterkast is veel te krap en gaat niet alleen irriteren, maar haalt elk gevoel dat je een passende keuken hebt volledig weg. Die kastenwand ziet er ook niet uit met zn mix van breedtes en 3 verticale greeplijsten. Verder heb je weinig snijruimte. Schijnt mode te zijn, maar slaat nergens op in een gebruiksvoorwerp als een keuken.

De rest heb ik niet eens naar gekeken, maar zo'n ontwerp in die ruimte moet je niet willen. En dan is elke prijs te hoog.

  • jeehaa
  • Registratie: Juli 2002
  • Laatst online: 04-04 20:58
CurlyMo schreef op donderdag 28 april 2022 @ 00:00:
[...]

Kookgroep bedoel ik inderdaad. In de handleiding zie ik alleen de 2N aansluiting niet genoemd staan.
De aansluitwaarde van deze kookplaat is 11.1kW dus als je een 3-fase hoofdaansluiting hebt dan heb je een 3-fase krachtgroep nodig voor de kookplaat.

                           


  • CurlyMo
  • Registratie: Februari 2011
  • Nu online
jeehaa schreef op donderdag 28 april 2022 @ 10:51:
[...]


De aansluitwaarde van deze kookplaat is 11.1kW dus als je een 3-fase hoofdaansluiting hebt dan heb je een 3-fase krachtgroep nodig voor de kookplaat.
Punt is dus dat wanneer je een kookgroep hebt deze plaat niet aan te sluiten is? Ik zag in de handleiding dat hij ook aan te sluiten is op 1 groep, maar dat vind ik niet werkbaar. Dan is het dus 3-fase of 1 groep, en geen kookgroep.

Sinds de 2 dagen regel reageer ik hier niet meer


  • Paprika
  • Registratie: September 2007
  • Laatst online: 23:36
Afbeeldingslocatie: https://tweakers.net/i/wHHBwmVYWBIYCgmRMD1KvX4432o=/800x/filters:strip_icc():strip_exif()/f/image/uMlsrVlKfxD1HF2MOgZvYrV1.jpg?f=fotoalbum_large

Afbeeldingslocatie: https://tweakers.net/i/pRjkFC_taR6-jYUv-j5Y8R_5KkA=/800x/filters:strip_icc():strip_exif()/f/image/1R8rHxPKZuOLziT714xEH6qD.jpg?f=fotoalbum_large

Afbeeldingslocatie: https://tweakers.net/i/-zkXJjehBGklG7AMFQKmUg1dxHw=/800x/filters:strip_icc():strip_exif()/f/image/W8PwMHsjR4deq8H9tdtivyER.jpg?f=fotoalbum_large

Na weer wat leveranciers gesproken te hebben, lijkt dit voor alsnog de opstelling te worden, maar misschien hebben mensen hier nog leuke ideeën of adviezen.

De hoek waar de hoge kasten komen is 2.180mm bij 2.215mm. De gehele breedte van de muur naast het eiland tot de muur in de hoek is 5.750mm, terwijl de ruimte van wand naar wand aan weerszijden van het eiland 3.570mm betreft.

Het eiland heeft een werkblad van 3.060mm bij 1.120mm en daarmee heb je aan weerszijde van het eiland een ruime 120cm loopruimte. Met een tafel van 1 meter breed blijft er bij het stoelen gedeelte net geen 130 cm aan weerszijde over.

Het betreft een (surprise surprise met deze kleuren) NX510 keuken in het kobaltgroen.

De apparatuur:
  • Bora Pure X
  • Quooker PRO3-VAQ Fusionflex black
  • Miele H7640BMOBSW Combi-oven magnetron
  • Miele DGC7640OBSW Combi-stoomoven
  • Miele KWT 6422 iG wijnklimaatkast
  • Siemens KI81RADE0 koelkast
  • Siemens GI81NACF0 vriezer
  • Siemens SX73H800BE vaatwasser
  • Blanco Subline 500-U spoelbak
Offerte voor alsnog: kleine 32.000

De Quooker wil ik laten vervangen met een Combi+ exemplaar, Quooker zeeppomp moet er nog bij en de vaatwasser zal eerder een IQ700 model worden.

Tips, ideeën en adviezen zijn welkom!

  • ColeJ
  • Registratie: Juni 2019
  • Nu online
iasix schreef op dinsdag 26 april 2022 @ 19:44:
Oké. Zijn vandaag langs Grando geweest om een impressie te krijgen van wat de experts nou denken etc. qua indeling.

We zijn erover uit dat we de keuken aan de voorzijde gaan doen en dat we de deur dan een schuifdeur maken zodat we wel ruimte hebben eromheen te lopen en we van de 'eetkamer' alsnog een woonkamer maken.

Ik ga het nog uittekenen in photoshop, maar we komen uit op de volgende renders. Echt het typische 'nu of nooit' gevoel was er weer, veel druk om een handtekening te zetten. Irritant.
Dus wandkasten + kookeiland 100 * 300 + nog een stukje aanrecht ook naast de pui (daar komt dan mijn koffiehoekje).

We hebben niet verder onderhandeld toen we de prijs hoorden en gaan zaterdag terug voor een tweede gesprek. Ga daar ook geen uren zitten: bodembedrag noemen en dan take it or leave it wat mij betreft.
In de bijlage een overzicht van de kosten. Wat denken jullie dat een redelijke prijs zou zijn voor deze Hacker Systematic keuken? We wilden eigenlijk Miele apparatuur maar denk niet dat dat binnen budget gaat passen (25-30k max).
[Afbeelding]

[Afbeelding]

[Afbeelding]

[Afbeelding][Afbeelding]
Had niet anders verwacht van Grando. Een keer voor een badkamer geweest en lachend de tent uitgelopen. Maarja, blijkbaar zijn er mensen die het accepteren anders bestonden ze niet.

  • Rouske
  • Registratie: Juli 2007
  • Laatst online: 04-04 18:49
Een vraag over PTO (Push To Open) en dan op de onderste lades in een kookeiland (100-100 en 50-100-50).
De lades zijn uitgevoerd in Protech2.0 uitvoering.
Volgens de verkoper zou ons dat €400 per lade gaan kosten (totaal dus €2k!), terwijl PTO (of heet dat dan Tip-ON?) op een opzetkast maar iets van €20 zou zijn.
Heeft hij zich een nul verkeken of is dat PTO op lades echt zo schrikbarend duur?

[ Voor 3% gewijzigd door Rouske op 28-04-2022 18:02 ]


  • Vendetta_X
  • Registratie: Maart 2009
  • Niet online
Rouske schreef op donderdag 28 april 2022 @ 17:41:
Een vraag over PTO (Push To Open) en dan op de onderste lades in een kookeiland (100-100 en 50-100-50).
De lades zijn uitgevoerd in Protech2.0 uitvoering.
Volgens de verkoper zou ons dat €400 per lade gaan kosten (totaal dus €2k!), terwijl PTO (of heet dat dan Tip-ON?) op een opzetkast maar iets van €20 zou zijn.
Heeft hij zich een nul verkeken of is dat PTO op lades echt zo schrikbarend duur?
Niet met elkaar te vergelijken, alleen de naam. PTO op een kast is een eenvoudig systeem in een lade zit dat vrij technisch in elkaar. Of het echt 400 is geen idee, maar dichter bij 400 dan 20. PTO op een kast vind ik persoonlijk ook een onhandige optie. Vaak een afweging tussen uiterlijk en praktisch.

  • twi
  • Registratie: Februari 2000
  • Laatst online: 27-03 13:15

twi

Ik snap PTO ook niet. We hebben het serieus overwogen maar met elke uitvoering die ik in een keukenzaak tegen ben gekomen heb ik ruzie gekregen. Vooral met het dicht doen. Je zal er op den duur ongetwijfeld aan wennen en voor het uitzicht is het prachtig. Maar behalve in het naar de kamer gerichte deel van een kookeiland zou ik het zelf nooit laten zetten. Maar gelukkig hebben we geen kookeiland.

  • Paprika
  • Registratie: September 2007
  • Laatst online: 23:36
twi schreef op vrijdag 29 april 2022 @ 08:20:
Vooral met het dicht doen. Je zal er op den duur ongetwijfeld aan wennen en voor het uitzicht is het prachtig.
Het voelt sowieso altijd als een trage handeling, maar bij het dicht doen heb je vaak een minimale kracht nodig, dus je kunt niet even lui met je been (denk aan volle handen) rustig een kast of lade sluiten. Ook ik heb bij iedere leverancier voorbeelden gezien en iedere keer was de conclusie dat je ze met een haast romantische zwaai/duw beweging moet sluiten, maar juist die beweging is er eentje die je nergens anders dan in de keuken gebruikt en ik kan er niet aan wennen.

[ Voor 4% gewijzigd door Paprika op 29-04-2022 09:13 ]


  • orf
  • Registratie: Augustus 2005
  • Laatst online: 09:54

orf

Bij een Blum Legrabox lade scheelt het volgens mij zo’n €40 - €50 tussen een gewone soft close en een tip-on (PTO).

De Legraboxen vind ik heel mooi openen en sluiten. Openen doe ik meestal met m’n knie of voet en soms ook door gewoon in te drukken. Sluiten gaat helemaal makkelijk door de soft close. Het maakt niet uit hoe hard je ze een duw geeft, de laatste 5cm wordt langzaam dichtgetrokken.

Dat is heel anders dan een PTO lade die ik heb in een dressoir. Daar moet je ‘m echt indrukken voor het sluiten. Anders stuitert de la weer open. Push to open op deuren vind ik ook niet ideaal. Ik heb het op twee deurtjes, maar ook die moet je altijd weer dichtdrukken. Terwijl alle andere deuren en lades softclose zijn en mooi dichtvallen.

  • Bart0ving
  • Registratie: Juni 2011
  • Laatst online: 13-01 12:11
Push to open lades kun je gewoon dicht ‘gooien’ zo lang er gewicht in de lades zit.

  • Batata007
  • Registratie: Juni 2007
  • Laatst online: 31-03 20:48
Ook wij zijn bezig met een keuken voor onze nieuwbouwwoning. Inmiddels bij 3 keukenboeren geweest, en met 1 keukenboer via de mail contact gehad. Op aanraden van de tips hier ook een vergelijkende offerte bij Mobel Faber opgevraagd, maar daar nog geen reactie op gehad.

De indeling die wij willen:

Afbeeldingslocatie: https://tweakers.net/i/YSS2UnclqjZzpx73PpWamY5fj34=/full-fit-in/4920x3264/filters:max_bytes(3145728):no_upscale():strip_icc():fill(white):strip_exif()/f/image/bgRwNUo7gwfKBmNDn7DeGGCs.jpg?f=user_large

Afbeeldingslocatie: https://tweakers.net/i/tEFmgz7-6R-AVwfpo1OnC2_gBLs=/800x/filters:strip_icc():strip_exif()/f/image/6k0Qo6FKhuIpprVsGvCDorSn.jpg?f=fotoalbum_large

Afbeeldingslocatie: https://tweakers.net/i/t9KOowlC3hI91DNZwMavC_9-LHw=/800x/filters:strip_icc():strip_exif()/f/image/OllL8yrRzuyQcIKWETGRHNpn.jpg?f=fotoalbum_large

Afbeeldingslocatie: https://tweakers.net/i/XdGjGo7Z-iKdj6sAzxnYbBeen3s=/800x/filters:strip_icc():strip_exif()/f/image/6MMZWRuU0i1il3JElBoXPLIR.jpg?f=fotoalbum_large

Gaat dus om een U keuken. Qua kleur willen we zandkleurige frontjes. Nobilia zag er prima uit, willen graag greeploos + Bora Pure Puru kookplaat. Verder qua apparatuur:

Koelkast: Siemens IQ500
Vriezer: Siemens IQ500
Vaatwasser: Siemens iQ300
Oven: Siemens iQ700
Magnetron: Siemens iQ300

Qua werkblad hebben we nog niet helemaal gevonden wat we mooi vinden. Daarvoor willen we nog een paar werkbladen leveranciers afgaan.

O.b.v bovenstaande heb ik 2 offertes gekregen (Keukenloods en keukendepot/superkeukens) die niet erg ver van elkaar zitten:

Keukenloods:

Koelkast Siemens IQ500 (KI81RADE0) 913,5
Vriezer Siemens IQ500 (GI81NAEF0) 1049
Vaatwasser Siemens iQ300 (SE63HX52AE) 699
Kookplaat Bora Pure Puru 2199
Oven Siemens iQ700 HB835GTB1 899
Magnetron Siemens iQ300 BF550LMR0 300
Kabel Perilex 20
Keukenblok Nobilia 10450
Werkblad Evora Quartz Helix gepolijst 5.604,36
Kraan 121,00
Wasbak 219,45
Montage 1975
Korting -3724,31
Totaal 20725

Superkeukens/keukendepot zit er rond 200 euro onder. Daarvoor moet ik de apparatuur wel elders afnemen. Ze leveren geen Siemens. Wat vinden jullie hiervan? Zijn dit realistische prijzen of valt hier nog wat aan af te dingen?

[ Voor 3% gewijzigd door Batata007 op 29-04-2022 21:28 ]


  • 34Miles
  • Registratie: November 2010
  • Laatst online: 04-04 08:37
Hallo,

Vanaf september / oktober krijg ik de sleutels van een bestaande woning (2017) nu zit daar een maatwerk keuken in en voor de komende jaren vind ik het design en de indeling van de keuken ook meer dan prima :) .

Alleen hebben de huidige bewoners een houten aanrechtblad, ze geven ook aan dat dit enorm kwetsbaar is en veel onderhoud nodig heeft om netjes te houden. Dat is allemaal niet zo mijn ding, dus ik wil graag het aanrechtblad laten vervangen voor iets van een composiet, heeft iemand nog tips waar ik hiervoor langs kan gaan?

Kan iemand ook wat roepen over de kosten? Wat ik nu een beetje kan vinden is rond de €200,- de meter. En dan nog een nieuwe spoelbak, inductieplaat kan hopelijk wel opnieuw ingezet worden _/-\o_ .

Plaatje van de huidige keuken:
Afbeeldingslocatie: https://tweakers.net/i/_iFXiMP11A_TRAXD0DXZRk4MmSk=/800x/filters:strip_exif()/f/image/snWDDFE39Z1hBmbanuE52nv8.webp?f=fotoalbum_large

[ Voor 4% gewijzigd door 34Miles op 29-04-2022 21:29 ]


  • ppatrick
  • Registratie: Maart 2010
  • Laatst online: 04-04 21:10
34Miles schreef op vrijdag 29 april 2022 @ 21:28:
Hallo,

Vanaf september / oktober krijg ik de sleutels van een bestaande woning (2017) nu zit daar een maatwerk keuken in en voor de komende jaren vind ik het design en de indeling van de keuken ook meer dan prima :) .

Alleen hebben de huidige bewoners een houten aanrechtblad, ze geven ook aan dat dit enorm kwetsbaar is en veel onderhoud nodig heeft om netjes te houden. Dat is allemaal niet zo mijn ding, dus ik wil graag het aanrechtblad laten vervangen voor iets van een composiet, heeft iemand nog tips waar ik hiervoor langs kan gaan?

Kan iemand ook wat roepen over de kosten? Wat ik nu een beetje kan vinden is rond de €200,- de meter. En dan nog een nieuwe spoelbak, inductieplaat kan hopelijk wel opnieuw ingezet worden _/-\o_ .

Plaatje van de huidige keuken:
[Afbeelding]
Al eens op https://www.123werkbladen.nl/ gekeken?

  • IngamerX
  • Registratie: Januari 2010
  • Laatst online: 02-04 08:19
Bij de koop van een nieuwbouwwoning als voorwaarde de keuken overgenomen van de vorige bewoner. Vorige bewoner had de keuken gekocht bij Keukenkampioen.

Tijdens koop van de woning het filiaal bereid gevonden om de keuken aan te passen naar mijn wensen.

Standaard (overgenomen keuken) a 11,4k:
- Laklaminaat hoogglans wit front
- Werkblad composiet Molino Greige
- Whirlpool apparatuur (oven + magnetron + koelkast + vaatwasser)
- Bora puru recirculatie
- Quooker pro3 flex
- Job spoelbak
- Schiereiland met bar
- Geen installatie

Aanpassingen/upgrades:
Afbeeldingslocatie: https://tweakers.net/i/neMwfkcXBh44j1V8uikC9DzdAVM=/full-fit-in/4000x4000/filters:no_upscale():fill(white):strip_exif()/f/image/H2FVCIhdDq1JKszcGdsy7SFA.png?f=user_large

Totaal dus uitgekomen op 19,4k

Lang verhaal kort; mijn ervaring met Keukenkampioen is gemixt. Bij levering van de keuken bleek deze niet juist en heeft de verkoper van het filiaal getracht mij op te laten draaien voor de gevolgen. Derhalve een slechte ervaring met de verkoper en een shit bucket aan stress, gevoel van onrecht en boosheid.
Daarentegen was een collega van de verkoper (doch een meer junior medewerker) veel meer service gericht. Mede dankzij die collega en de klantenservice heb ik uiteindelijk een keuken naar mijn wens.

Hence de gemixte gevoelens. Uiteindelijk is de aftersales service mijns inziens doorslaggevend en die was heel goed. Daar staat tegenover dat ik niet weet of dit prijstechnisch gezien een acceptabele keuken is daar ik geen keuze had. Het is Keuken Kampioen uiteraard mogelijk te verwijten wat voor verkoper er in een filiaal staat. Daar staat tegenover dat ik uit ervaring weet dat je als bedrijf niet altijd weet wat jouw verkopers doen. Vandaar fijn om te weten hoe goed de support vanuit customer service is.

Bovenstaande maakt dat ik absoluut niet uitsluit de volgende keer weer een keuken bij Keukenkampioen te kopen; goede service. Ik noem niet uitstekend omdat klantenservice nog wel lastig telefonisch te bereiken is. Maar eens in contact, dan wel uitstekend. Prijstechnisch durf ik dus niet te zeggen; oordeel zelf :).

Resultaat;

Afbeeldingslocatie: https://tweakers.net/i/RXpeI1U3jT5glFeFBvi9azjnYmk=/800x/filters:strip_icc():strip_exif()/f/image/NgZeMfL9wkhloX3JNGeY4TNq.jpg?f=fotoalbum_large

  • Arnoud72
  • Registratie: Juni 2010
  • Laatst online: 25-03 16:01
Na alle positieve verhalen over Ekelhoff zijn wij voor de keuken in onze nieuw te bouwen woning vorige week naar Nordhorn geweest. We zijn erg netjes geholpen en er werd goed meegedacht.

De plattegrond van onze woning is als volgt (let niet op hoe de keuken hier is getekend, dat had de aannemer zo bedacht):

Afbeeldingslocatie: https://tweakers.net/i/sfXgHR3eYM6GOCQEoV67OSfpBjQ=/x800/filters:strip_icc():strip_exif()/f/image/LQrLZeFr9g0Xb8Ig3B2wgE5X.jpg?f=fotoalbum_large

De tekening waar we uiteindelijk op uit zijn gekomen is deze:

Afbeeldingslocatie: https://tweakers.net/i/sPY3euo_I0IupuKAhkByjwss3M4=/800x/filters:strip_icc():strip_exif()/f/image/MVjBgL8gWTFAfVKJTeCnPzkg.jpg?f=fotoalbum_large

Afbeeldingslocatie: https://tweakers.net/i/MEr7aW02VsAX7GQjPt7rfCKudZg=/800x/filters:strip_icc():strip_exif()/f/image/07d6hqCRFXBUikGh6BMoIzw8.jpg?f=fotoalbum_large

Afbeeldingslocatie: https://tweakers.net/i/cjBvqEiHLPtQb6lKnzH0GNXQN00=/800x/filters:strip_icc():strip_exif()/f/image/q1YwKlDVNGtxbbfrCQj0UnbH.jpg?f=fotoalbum_large

De ruimte tussen het eiland en de kastenwand is 95 cm. Het eiland zelf is 97 cm breed, en tussen het eiland en het muurtje met de deur naar de bijkeuken en openslaande deuren zit ook 95 cm. De kastenwand en het eiland zijn 3.150cm lang.

Het betreft een Contur Concept 13 keuken met een composit Silestone Eternal Serena glanzend blad van 2 cm dik (is lichtgrijs en niet wit zoals op de tekening) met de volgende apparatuur:

Miele G5265SCVIXXL vaatwasser
Siemens HM836GPB6 Combimagnetron
Siemens HB835GVB1 Oven
Siemens KX41FADE0 Koelkast en vriezer
Bora X Pure inductiekookplaat
Quooker PRO3, inclusief Flex

Boven in de koffiehoek hangen twee Lista 30 LED planken.

Offerteprijs was EUR 28.500 en we zijn na wat onderhandelen op EUR 25.700,- uitgekomen.
De prijs lijkt ons wel redelijk, we twijfelen eigenlijk nog over een koof rondom de hoge kastenwand. Nadeel is dat de warmte van de ovens, koelkast en vriezer dan niet goed weg kan en er van die lelijke roosters in de koof moeten komen. Wat denken jullie van het totaalplaatje zo en de koof?

  • 34Miles
  • Registratie: November 2010
  • Laatst online: 04-04 08:37
Ben altijd een beetje bang voor opdringerige verkoop / veel spam bij het invullen en achterlaten van mijn gegevens. Maar als het een goede partij is kan ik het wel overwegen, bedankt in ieder geval! 😄

  • Trussardi99
  • Registratie: Juli 2021
  • Laatst online: 05-03 09:19
Arnoud72 schreef op vrijdag 29 april 2022 @ 22:29:
Na alle positieve verhalen over Ekelhoff zijn wij voor de keuken in onze nieuw te bouwen woning vorige week naar Nordhorn geweest. We zijn erg netjes geholpen en er werd goed meegedacht.

De plattegrond van onze woning is als volgt (let niet op hoe de keuken hier is getekend, dat had de aannemer zo bedacht):

[Afbeelding]

De tekening waar we uiteindelijk op uit zijn gekomen is deze:

[Afbeelding]

[Afbeelding]

[Afbeelding]

De ruimte tussen het eiland en de kastenwand is 95 cm. Het eiland zelf is 97 cm breed, en tussen het eiland en het muurtje met de deur naar de bijkeuken en openslaande deuren zit ook 95 cm. De kastenwand en het eiland zijn 3.150cm lang.

Het betreft een Contur Concept 13 keuken met een composit Silestone Eternal Serena glanzend blad van 2 cm dik (is lichtgrijs en niet wit zoals op de tekening) met de volgende apparatuur:

Miele G5265SCVIXXL vaatwasser
Siemens HM836GPB6 Combimagnetron
Siemens HB835GVB1 Oven
Siemens KX41FADE0 Koelkast en vriezer
Bora X Pure inductiekookplaat
Quooker PRO3, inclusief Flex

Boven in de koffiehoek hangen twee Lista 30 LED planken.

Offerteprijs was EUR 28.500 en we zijn na wat onderhandelen op EUR 25.700,- uitgekomen.
De prijs lijkt ons wel redelijk, we twijfelen eigenlijk nog over een koof rondom de hoge kastenwand. Nadeel is dat de warmte van de ovens, koelkast en vriezer dan niet goed weg kan en er van die lelijke roosters in de koof moeten komen. Wat denken jullie van het totaalplaatje zo en de koof?
In het begin van mijn keukenzoektocht is Eternal Serena van Silestone ook bij mij voorbij gekomen.
Heb je het blad in het echt gezien? of alleen een staal?

Eternal Serena wordt verkocht als grijs maar schijnt erg blauw op wanneer je het als compleet blad ziet.
Ik zou het niet aanraden vanaf een staal te kopen....ik denk dat ie je tegenvalt..

Ceasarstone heeft mooie grijze bladen, bijvoorbeeld Cloudburst Concrete, kijk maar eens op de site van Ceasarstone.
Ekelhof verkoopt echter geen Ceasarstone, ze doen veel met Silestone.

  • Rzaan
  • Registratie: Mei 2018
  • Laatst online: 04-04 17:59

Rzaan

Altijd zoekende

34Miles schreef op vrijdag 29 april 2022 @ 22:33:
Ben altijd een beetje bang voor opdringerige verkoop / veel spam bij het invullen en achterlaten van mijn gegevens. Maar als het een goede partij is kan ik het wel overwegen, bedankt in ieder geval! 😄


[...]
Ik heb voor dit doel speciaal een internet-adres aangemaakt.

  • Blackgold
  • Registratie: September 2021
  • Laatst online: 29-05-2023
Arnoud72 schreef op vrijdag 29 april 2022 @ 22:29:
Na alle positieve verhalen over Ekelhoff zijn wij
De prijs lijkt ons wel redelijk, we twijfelen eigenlijk nog over een koof rondom de hoge kastenwand. Nadeel is dat de warmte van de ovens, koelkast en vriezer dan niet goed weg kan en er van die lelijke roosters in de koof moeten komen. Wat denken jullie van het totaalplaatje zo en de koof?
Heb tot nu toe altijd wandkasten (met ovens en koelkast) gezien in dichte koof zonder roosters. Wist helemaal niet dat je ook rekening moest houden met warmte dat niet goed weg kan, hoor dit nu voor het eerst. Is dat echt per se nodig zo’n rooster?

  • twi
  • Registratie: Februari 2000
  • Laatst online: 27-03 13:15

twi

Arnoud72 schreef op vrijdag 29 april 2022 @ 22:29:
Na alle positieve verhalen over Ekelhoff zijn wij voor de keuken in onze nieuw te bouwen woning vorige week naar Nordhorn geweest. We zijn erg netjes geholpen en er werd goed meegedacht.

De plattegrond van onze woning is als volgt (let niet op hoe de keuken hier is getekend, dat had de aannemer zo bedacht):

[Afbeelding]

De tekening waar we uiteindelijk op uit zijn gekomen is deze:

[Afbeelding]

[Afbeelding]

[Afbeelding]

De ruimte tussen het eiland en de kastenwand is 95 cm. Het eiland zelf is 97 cm breed, en tussen het eiland en het muurtje met de deur naar de bijkeuken en openslaande deuren zit ook 95 cm. De kastenwand en het eiland zijn 3.150cm lang.

Het betreft een Contur Concept 13 keuken met een composit Silestone Eternal Serena glanzend blad van 2 cm dik (is lichtgrijs en niet wit zoals op de tekening) met de volgende apparatuur:

Miele G5265SCVIXXL vaatwasser
Siemens HM836GPB6 Combimagnetron
Siemens HB835GVB1 Oven
Siemens KX41FADE0 Koelkast en vriezer
Bora X Pure inductiekookplaat
Quooker PRO3, inclusief Flex

Boven in de koffiehoek hangen twee Lista 30 LED planken.

Offerteprijs was EUR 28.500 en we zijn na wat onderhandelen op EUR 25.700,- uitgekomen.
De prijs lijkt ons wel redelijk, we twijfelen eigenlijk nog over een koof rondom de hoge kastenwand. Nadeel is dat de warmte van de ovens, koelkast en vriezer dan niet goed weg kan en er van die lelijke roosters in de koof moeten komen. Wat denken jullie van het totaalplaatje zo en de koof?
Members only:
Alleen zichtbaar voor ingelogde gebruikers. Inloggen

  • Vendetta_X
  • Registratie: Maart 2009
  • Niet online
Blackgold schreef op zaterdag 30 april 2022 @ 10:07:
[...]


Heb tot nu toe altijd wandkasten (met ovens en koelkast) gezien in dichte koof zonder roosters. Wist helemaal niet dat je ook rekening moest houden met warmte dat niet goed weg kan, hoor dit nu voor het eerst. Is dat echt per se nodig zo’n rooster?
Een rooster niet, ruimte om de warmte kwijt te kunnen zeker. Meestal sluit de koof niet aa n op de kasten (ca 2cm oid ertussen) waardoor de warmte toch weg kan.

  • SaraNostra
  • Registratie: Januari 2018
  • Laatst online: 10-03 15:31
Zeer slechte ervaringen bij KeukenConcurrent. Kreeg een offerte van 48.000 Euro, maaaaaar eenmalig mocht ik 50% korting krijgen. Belachelijk.

Bruynzeel was beter, maar wel prijzig (28.000 Euro). Gaat om een Pallas Laser keuken. Geen idee of dat goed is of niet. Nu rest nog Keukenmaxx.. en ander ben ik out of options voor de wat 'high end' - 'mid end' keukens. Betreft een eiland van 3 meter en 5 hoge kasten.

Iemand nog andere tips? Ik lees veel over Keukenloods en dan de apparaten daar kopen ipv bij Bruynzeel, bijvoorbeeld. Is dat ook jullie aanrader?

Overigens denk ik op dit moment aan Bora Puru en de rest Bosch apparaten.

Trouwens, ben benieuwd of ik voor dit bedrag niet een Next keuken kan krijgen? Geen idee waar ik moet beginnen qua merken...

Twee extra vragen:

Welke winkel zou ik sowieso nog moeten bezoeken? Ik lees over Reddy, Keukensale en Superkeukens. Is dat het waard?

En met mijn budget (25000+), welke merk zou ik voor moeten aimen?

[ Voor 47% gewijzigd door SaraNostra op 30-04-2022 14:16 ]


  • mitsumark
  • Registratie: Juni 2009
  • Laatst online: 09:50
SaraNostra schreef op zaterdag 30 april 2022 @ 13:22:
Zeer slechte ervaringen bij KeukenConcurrent. Kreeg een offerte van 48.000 Euro, maaaaaar eenmalig mocht ik 50% korting krijgen. Belachelijk.
Dus je hebt een zeer slechte ervaring, omdat de keuken die bij een ander 28k kost, hier maar 24k kost? Belachelijk inderdaad :?

  • SaraNostra
  • Registratie: Januari 2018
  • Laatst online: 10-03 15:31
mitsumark schreef op zaterdag 30 april 2022 @ 14:33:
[...]

Dus je hebt een zeer slechte ervaring, omdat de keuken die bij een ander 28k kost, hier maar 24k kost? Belachelijk inderdaad :?
Nee. Slechte ervaring doordat ik ineens 50% korting krijg en er werd gepusht om te kopen.

  • mitsumark
  • Registratie: Juni 2009
  • Laatst online: 09:50
SaraNostra schreef op zaterdag 30 april 2022 @ 14:34:
[...]


Nee. Slechte ervaring doordat ik ineens 50% korting krijg en er werd gepusht om te kopen.
Percentage korting zegt niks, het gaat om de uiteindelijke prijs.
Dat er gepusht wordt om te kopen kan vervelend overkomen, maar daar moet je je maar overheen zetten, zal waarschijnlijk bij het grootste deel van de goedkope shops zo zijn.

Weet je toevallig ook welk merk die Pallas (laser) is? Wellicht gewoon Next125?
Was bij KeukenConcurrent een Systemat denk ik?

Hier nog een overzichtje van merken vs winkels, al is het niet compleet.
https://docs.google.com/s...VmRAdmBQm2bZWA/edit#gid=0
Kun je niet tegen "30-40-50% korting als je vandaag koopt", dan DMG sowieso overslaan.

[ Voor 22% gewijzigd door mitsumark op 30-04-2022 14:56 ]


  • Arnoud72
  • Registratie: Juni 2010
  • Laatst online: 25-03 16:01
Trussardi99 schreef op zaterdag 30 april 2022 @ 08:39:
[...]


In het begin van mijn keukenzoektocht is Eternal Serena van Silestone ook bij mij voorbij gekomen.
Heb je het blad in het echt gezien? of alleen een staal?

Eternal Serena wordt verkocht als grijs maar schijnt erg blauw op wanneer je het als compleet blad ziet.
Ik zou het niet aanraden vanaf een staal te kopen....ik denk dat ie je tegenvalt..

Ceasarstone heeft mooie grijze bladen, bijvoorbeeld Cloudburst Concrete, kijk maar eens op de site van Ceasarstone.
Ekelhof verkoopt echter geen Ceasarstone, ze doen veel met Silestone.
We hebben het idd op een staal gezien, maar zijn er mee naar buiten gelopen om het in daglicht te kunnen zien. Dit blijft denk ik altijd wel een gok. Heb jij dit blad in het groot in het echt gezien of heb je het van horen en zeggen?

Dank voor de tip, ik zal nog eens bij Ceasarstone kijken.

  • Trussardi99
  • Registratie: Juli 2021
  • Laatst online: 05-03 09:19
Arnoud72 schreef op zaterdag 30 april 2022 @ 15:42:
[...]


We hebben het idd op een staal gezien, maar zijn er mee naar buiten gelopen om het in daglicht te kunnen zien. Dit blijft denk ik altijd wel een gok. Heb jij dit blad in het groot in het echt gezien of heb je het van horen en zeggen?

Dank voor de tip, ik zal nog eens bij Ceasarstone kijken.
Ik werd hierdoor getriggerd.... even doorscrollen naar de comments.

https://www.houzz.com/dis...-with-eternal-serena#n=56

Silestone heeft een showroom in Adam aan de Van Baerlestraat, daar heb ik een groter sample kunnen zien.
Maar hij is imo blauwgrijs, iets wat je pas ziet wanneer je een echt grijs blad ernaast ziet

  • Trussardi99
  • Registratie: Juli 2021
  • Laatst online: 05-03 09:19
Arnoud72 schreef op zaterdag 30 april 2022 @ 15:42:
[...]


We hebben het idd op een staal gezien, maar zijn er mee naar buiten gelopen om het in daglicht te kunnen zien. Dit blijft denk ik altijd wel een gok. Heb jij dit blad in het groot in het echt gezien of heb je het van horen en zeggen?

Dank voor de tip, ik zal nog eens bij Ceasarstone kijken.
Ik werd hierdoor getriggerd..

https://www.houzz.com/dis...-with-eternal-serena#n=56

Even doorscrollen naar de comments.

Silestone heeft aan de Van Baerlestraat in ADam een showroom waar je grotere stalen kan bekijken

  • Mryc
  • Registratie: April 2018
  • Laatst online: 30-03 08:33
SaraNostra schreef op zaterdag 30 april 2022 @ 13:22:

Trouwens, ben benieuwd of ik voor dit bedrag niet een Next keuken kan krijgen? Geen idee waar ik moet beginnen qua merken...

Twee extra vragen:

Welke winkel zou ik sowieso nog moeten bezoeken? Ik lees over Reddy, Keukensale en Superkeukens. Is dat het waard?

En met mijn budget (25000+), welke merk zou ik voor moeten aimen?
Een Next125-keuken voor dat bedrag moet zeker lukken. Hiervoor zou je naar Ihre Küche kunnen gaan. Vlak over de grens bij Nijmegen, in Kranenburg.

Je zou ook eens naar Leicht kunnen kijken.

[ Voor 3% gewijzigd door Mryc op 30-04-2022 17:11 ]


  • Haitek1
  • Registratie: November 2020
  • Laatst online: 07-03-2024
Wij hebben onlangs een casco-appartement gekocht met een keuze tussen 2 keukenbouwers. Zojuist hebben wij een offerte gekregen van een van de keukenbouwers (Augustijns) van de keuken dat we graag zouden willen. We vonden de prijs wat aan de hoge kant voor wat het is. Wat is jullie mening hierover? Is dit een gangbare prijs?

Afbeeldingslocatie: https://tweakers.net/i/2F4xoF8zrW_S7KdknD7as2msKhg=/800x/filters:strip_exif()/f/image/t2Rr1evIyNXK5SkjoU7pTwrQ.png?f=fotoalbum_large

*De lamp zit niet mee in de prijs

Toestellen zijn:
Koelkast: AEG SFB51221DS (122cm)
Vaatwas: AEG FSB31600Z
Kookplaat: AEG IKB84401FB
Microgolfoven combi: AEG MKM565000M
Dampkamp: Novy 692 + recirculatiebox
In totaal kost dit +- 3100 euro aan toestellen zonder btw. (21% btw)

Het werkblad is een composiet van Caesarstone: rugged concrete van 30mm en komt neer op een 5240 euro exlc. btw.

De witte kastjes zijn Mykene softline en de houte look is van laminaat. De hoogte van de keuken is 2m60.

Afbeeldingslocatie: https://tweakers.net/i/Oulfueex0Gj7Jhhry34OL-aTp0o=/full-fit-in/4000x4000/filters:no_upscale():fill(white):strip_exif()/f/image/eEvKIV6pzYIrzaJ20g1gVjaf.png?f=user_large

  • SquareOne
  • Registratie: Januari 2010
  • Laatst online: 10:06
Haitek1 schreef op zaterdag 30 april 2022 @ 18:03:
Wij hebben onlangs een casco-appartement gekocht met een keuze tussen 2 keukenbouwers. Zojuist hebben wij een offerte gekregen van een van de keukenbouwers (Augustijns) van de keuken dat we graag zouden willen. We vonden de prijs wat aan de hoge kant voor wat het is. Wat is jullie mening hierover? Is dit een gangbare prijs?

[Afbeelding]

*De lamp zit niet mee in de prijs

Toestellen zijn:
Koelkast: AEG SFB51221DS (122cm)
Vaatwas: AEG FSB31600Z
Kookplaat: AEG IKB84401FB
Microgolfoven combi: AEG MKM565000M
Dampkamp: Novy 692 + recirculatiebox
In totaal kost dit +- 3100 euro aan toestellen zonder btw. (21% btw)

Het werkblad is een composiet van Caesarstone: rugged concrete van 30mm en komt neer op een 5240 euro exlc. btw.

De witte kastjes zijn Mykene softline en de houte look is van laminaat. De hoogte van de keuken is 2m60.

[Afbeelding]
Heb je al eens andere keukens en prijzen in het topic bekeken. Wat vind je dan zelf van deze prijs?

Onder de ‘gepinde’ posts, kun je een behoorlijk aantal keukens zien inclusief de prijzen.

  • Mollos_
  • Registratie: Juli 2004
  • Laatst online: 08:04
Haitek1 schreef op zaterdag 30 april 2022 @ 18:03:
Wij hebben onlangs een casco-appartement gekocht met een keuze tussen 2 keukenbouwers. Zojuist hebben wij een offerte gekregen van een van de keukenbouwers (Augustijns) van de keuken dat we graag zouden willen. We vonden de prijs wat aan de hoge kant voor wat het is. Wat is jullie mening hierover? Is dit een gangbare prijs?

[Afbeelding]

*De lamp zit niet mee in de prijs

Toestellen zijn:
Koelkast: AEG SFB51221DS (122cm)
Vaatwas: AEG FSB31600Z
Kookplaat: AEG IKB84401FB
Microgolfoven combi: AEG MKM565000M
Dampkamp: Novy 692 + recirculatiebox
In totaal kost dit +- 3100 euro aan toestellen zonder btw. (21% btw)

Het werkblad is een composiet van Caesarstone: rugged concrete van 30mm en komt neer op een 5240 euro exlc. btw.

De witte kastjes zijn Mykene softline en de houte look is van laminaat. De hoogte van de keuken is 2m60.

[Afbeelding]
Aangezien ik voor 23k een grote kastenwand heb, schiereiland van 2,5 meter, dekton blad, koelkast, vriezer, combi oven (iq700), stoomoven (iq700), warmhoudlade (iq700) , inductie met afzuiging (iq700) en een quooker heb kunnen aanschaffen. Dan vind ik dit erg duur voor een keuken van dit formaat.

Bewust + Bourgondisch - Hier schrijf ik ik over koken en eten


  • Mollos_
  • Registratie: Juli 2004
  • Laatst online: 08:04
Klopt het dat de muur zo dicht naast het eiland zit? Dan denk ik namelijk dat een eiland echt niet de beste optie is in deze keuken.

Bewust + Bourgondisch - Hier schrijf ik ik over koken en eten


  • iasix
  • Registratie: September 2005
  • Laatst online: 30-01 15:57
Ben bij LIV geweest om de keukens te checken. Ben het keukenboeren bezoeken inmiddels wel een beetje zat. Grando hebben we afgezegd, toen ze vroegen waarom zei ik dat het vanwege de verkooptechniek was en als ze een toelichting willen dat de verkoper die we hadden gesproken even moet bellen zodat we het toe zullen lichten. Niks gehoord natuurlijk.

Hoe 'vergelijken' jullie de prijzen bij de keukenboeren?
Elke keer langsgaan en een uur de wensen bespreken en dan de opties en dan een offerte schiet niet op merk ik. Ben 3 uur kwijt terwijl ik al weet wat voor keuken ik wil, alleen wil ook weten wat het dan zou kosten zonder de hele mikmak weer te doorlopen.

Heb Faber een pdf gemaild maar vraag me af of er betere manieren zijn. We krijgen via de aannemer zo'n 5k terug en deze keuken komt dan op 31k neer en als we gelamineerde ipv rondom gekleurde kastjes nemen is het zo'n 4k goedkoper ook nog.

Het gaat dus om:

Hacker concept 130 porto zwart
- Hoge kast voor koelkast
- Hoge kast voor vriezer
- Hoge kast voor stoomoven
- Hoge kast voor combi overen
- Hoge kast met binnenlades
- Onderkasten met 2 uittrekbladen en 1 binnenlade
- Zijwandpanelen
- 2 wandplanken
- Spoelkast met deuren
- Onderkast met deuren en 2 legplanken van 100 cm
- Onderkast met deuren en 2 legplanken van 60 cm
- Onderkast met deuren en 2 legplanken van 120 cm

Apparatuur
- Quooker Flex Combi+
- Quooker zeeppomp
- Spoelbak
- 2 stopcontacten
- Siemens Gl81NSCE0 IQ500 vrieskast
- Siemens Kl81RSDE0 IQ500 koelkast
- Siemens SN65Z800BE IQ500 vaatwasser
- Siemens HM836GNB6 IQ700 bakoven-magnetron combi
- Siemens HS836GTB6 IQ700 bakoven-stoomoven combi

Blad (bijkeukentje)
Jetstone composiet 20mm met schuine randafwerking (2P6)
- 1 x 290 * 100
- 1 x 125 * 60

Tips iemand?

Hebben deze offerte gekregen (PDF):
https://www.dropbox.com/s...fw/Offerte%20LIV.pdf?dl=0
Komen op 35.450 uit en zouden dan nog ongeveer 5k terugkrijgen als we bij LIV de keuken kopen (gaat via aannemer) en als we dat niet doen krijgen we zo'n 2.5 terug geloof ik.

[ Voor 6% gewijzigd door iasix op 30-04-2022 18:29 ]


  • Haitek1
  • Registratie: November 2020
  • Laatst online: 07-03-2024
SquareOne schreef op zaterdag 30 april 2022 @ 18:12:
[...]


Heb je al eens andere keukens en prijzen in het topic bekeken. Wat vind je dan zelf van deze prijs?

Onder de ‘gepinde’ posts, kun je een behoorlijk aantal keukens zien inclusief de prijzen.
Andere keukens wel, maar niet zo heel veel aangezien er 1300pages zijn, Ik wist niet dat je op pins kon filteren. Bedankt voor de tip. Na het bekijken van de pins lijkt deze keuken toch wel heel duur te zijn.
Mollos_ schreef op zaterdag 30 april 2022 @ 18:19:
Klopt het dat de muur zo dicht naast het eiland zit? Dan denk ik namelijk dat een eiland echt niet de beste optie is in deze keuken.
Om de prijs te drukken zouden we achteraf zelf een wijnrek willen plaatsen, maar aangezien de prijs nu al zo hoog ligt, kan het zijn dat de plannen drastisch gaan veranderen..

  • Mollos_
  • Registratie: Juli 2004
  • Laatst online: 08:04
Haitek1 schreef op zaterdag 30 april 2022 @ 18:39:
[...]

Andere keukens wel, maar niet zo heel veel aangezien er 1300pages zijn, Ik wist niet dat je op pins kon filteren. Bedankt voor de tip. Na het bekijken van de pins lijkt deze keuken toch wel heel duur te zijn.


[...]

Om de prijs te drukken zouden we achteraf zelf een wijnrek willen plaatsen, maar aangezien de prijs nu al zo hoog ligt, kan het zijn dat de plannen drastisch gaan veranderen..
Ik zou zeker ergens anders gaan shoppen. Het komt wel vaak voor dat keukenzaken die aan een project gekoppeld zitten absurde prijzen berekenen. Dan is het nog interessanter om de 'boete' voor lief te nemen en een eigen keukenzaak uit te kiezen. Voor dat geld van die offerte kan je een prachtige keuken met betere apparatuur en een wijnklimaatkast aanschaffen.

Kijk alleen al op de vorige pagina wat voor keuken er voor 30k neergezet kan worden met mooie Miele apparatuur.

Bewust + Bourgondisch - Hier schrijf ik ik over koken en eten


  • Arnoud72
  • Registratie: Juni 2010
  • Laatst online: 25-03 16:01
Trussardi99 schreef op zaterdag 30 april 2022 @ 16:30:
[...]


Ik werd hierdoor getriggerd..

https://www.houzz.com/dis...-with-eternal-serena#n=56

Even doorscrollen naar de comments.

Silestone heeft aan de Van Baerlestraat in ADam een showroom waar je grotere stalen kan bekijken
Dit is top, dank je wel. We gaan komende week gelijk even kijken _/-\o_

  • Muts21
  • Registratie: September 2021
  • Laatst online: 24-02-2024
Afbeeldingslocatie: https://tweakers.net/i/hMCu0zfEy29punv2NswgM432iCY=/800x/filters:strip_icc():strip_exif()/f/image/WJuE3lyzP4k3iEUmsUIqGFeE.jpg?f=fotoalbum_large

Ik hou graag een zwarte keuken willen, liefst met zoveel mogelijk opbergruimte ;)

Hoe zouden jullie deze keuken herindelen?
Alle tips zijn welkom!

Links zit een muur met deur, daar waar ik sta, staat ongeveer de eettafel..

  • Z___Z
  • Registratie: Maart 2002
  • Niet online
Mryc schreef op donderdag 14 april 2022 @ 20:27:
Voor de mensen die op zoek zijn naar een Next125 keuken: over anderhalve week komt de nieuwe collectie.
Al iets bekend over de nieuwe kleuren?

  • Huisje1
  • Registratie: Januari 2020
  • Laatst online: 03-11-2023
beyazz06 schreef op dinsdag 12 april 2022 @ 15:00:
[...]


Dat 'gewoon kunnen doen' bedoel je dat ze de vloer gaan openbreken? If so, ben ik zeer benieuwd! Keep us posted :D Bedoel, leuk dat je leidingen kunt opsporen, maar vloerverwarming wordt in lussen gelegd.. O-)
Ik zou nog even laten weten hoe het bij ons is gegaan met het verleggen van de leidingen….dit is totaal zonder problemen verlopen, de electricien heeft heel voorzichtig de cementdekvloer een stukje weg gebikt en zag toen de leiding liggen. Gaf ook aan dat de leidingen ook simpel met een warmtecamera kunnen opsporen. Geen zorgen dus. Volgende week stukadoor, dan de vloer schuren/oliën en dan op 16 mei de start van de keukenmontage 🥳

  • Mryc
  • Registratie: April 2018
  • Laatst online: 30-03 08:33
Z___Z schreef op zaterdag 30 april 2022 @ 19:41:
[...]

Al iets bekend over de nieuwe kleuren?
Waarschijnlijk wel bij de keukenwinkels zelf. De brochure laat nog op zich wachten. Over twee weken hebben we een vervolgafspraak bij de keukenwinkel. Dan kom ik erop terug.

  • 737freak
  • Registratie: November 2011
  • Nu online
Weet iemand sinds wanneer de ATAG 3-in-1 ovens met stoomfunctie (45cm) beschikbaar zijn? De Csx46121D bijvoorbeeld.

https://www.atag.nl/colle...n/000000000000734512_0001

Ergens gedurende 2021 voor zover ik kan vinden, maar heeft iemand toevallig een datum oid?

Alvast bedankt!

  • Petje72
  • Registratie: November 2008
  • Laatst online: 03-04 16:23
Wij gaan binnenkort het ouderlijk huis van mijn schoonouder kopen, huis uit 1927, gaan we helemaal verduurzamen en grote verbouwing. Verbouwing zal starten in januari/februari 2023, dus ik dacht gezien de levertijden van keukenapparatuur, ik ga vast bestellen/prijzen opvragen. Dit willen we (alvast) aanschaffen:

Siemens
HB876G5B6 Oven
CM876G0B6 Combimagnetron
BI830CNB1 Serviesverwarmer

KI51FSDD0 inbouw koelkast
SX97T800CE Volledig geintegreerde vaatwasser
EZ977KZY1E Inductie kookplaat

LR97CAQ20 Plafond afzuigkap (is recirculatie toch?)

Keuken is nog niet ontworpen maar zal een wand + eiland worden, op maat gemaakt. Qua afmetingen zal het wel goed komen, de ontwerper van de keuken kan natuurlijk rekening houden met de afmetingen van de apparatuur.

Ik heb een offerte bij keukenloods opvraagd, daar kan je blijkbaar een jaar van te voren al bestellen. Iemand ervaring daarmee? garantie zal denk ik toch pas ingaan bij levering? en is het verstandig garantie bij te kopen, b.v. tot 5 jaar?

Een eigen ontwerpje, over de kleur zijn we nog niet uit...
De wandkast is wat groot, kan wel een kast minder denk ik.
Afbeeldingslocatie: https://tweakers.net/i/e6ekuhs0b1BObZMKDRIHp-5TU6w=/800x/filters:strip_exif()/f/image/VrolNtLCyWz4zshV4kgxJyK2.png?f=fotoalbum_large

[ Voor 18% gewijzigd door Petje72 op 01-05-2022 13:27 ]


  • Source90
  • Registratie: December 2008
  • Laatst online: 09:00
Petje72 schreef op zondag 1 mei 2022 @ 13:20:
Wij gaan binnenkort het ouderlijk huis van mijn schoonouder kopen, huis uit 1927, gaan we helemaal verduurzamen en grote verbouwing. Verbouwing zal starten in januari/februari 2023, dus ik dacht gezien de levertijden van keukenapparatuur, ik ga vast bestellen/prijzen opvragen. Dit willen we (alvast) aanschaffen:

Siemens
HB876G5B6 Oven
CM876G0B6 Combimagnetron
BI830CNB1 Serviesverwarmer

KI51FSDD0 inbouw koelkast
SX97T800CE Volledig geintegreerde vaatwasser
EZ977KZY1E Inductie kookplaat

LR97CAQ20 Plafond afzuigkap (is recirculatie toch?)

Keuken is nog niet ontworpen maar zal een wand + eiland worden, op maat gemaakt. Qua afmetingen zal het wel goed komen, de ontwerper van de keuken kan natuurlijk rekening houden met de afmetingen van de apparatuur.

Ik heb een offerte bij keukenloods opvraagd, daar kan je blijkbaar een jaar van te voren al bestellen. Iemand ervaring daarmee? garantie zal denk ik toch pas ingaan bij levering? en is het verstandig garantie bij te kopen, b.v. tot 5 jaar?

Een eigen ontwerpje, over de kleur zijn we nog niet uit...
De wandkast is wat groot, kan wel een kast minder denk ik.
[Afbeelding]
Als je vijf apparaten hebt van eenzelfde merk, heb je al uitgebreide garantie.
Waarom trouwens geen inductie met afzuiging in het blad? Gelijk van zo'n (in mijn ogen) lelijke afzuigkap af.

Daarnaast moet de lucht circa en meter of anderhalf omhoog afgezogen worden, vet is veel zwaarder en zal dan ook overal behalve in je plafond unit terecht komen.

(Ter vergelijking; een schuine kap hangt een stuk lager dan een gemiddeld plafond).

  • Petje72
  • Registratie: November 2008
  • Laatst online: 03-04 16:23
Source90 schreef op zondag 1 mei 2022 @ 13:34:
[...]

Als je vijf apparaten hebt van eenzelfde merk, heb je al uitgebreide garantie.
Waarom trouwens geen inductie met afzuiging in het blad? Gelijk van zo'n (in mijn ogen) lelijke afzuigkap af.

Daarnaast moet de lucht circa en meter of anderhalf omhoog afgezogen worden, vet is veel zwaarder en zal dan ook overal behalve in je plafond unit terecht komen.

(Ter vergelijking; een schuine kap hangt een stuk lager dan een gemiddeld plafond).
Bedankt voor je feedback. Afzuiging in inductiekookplaat hebben we ook naar gekeken maar wat als je knoeit? stel een pan kookt even wat over, dan loopt al die zooi in je afzuiging... kan je alles poetsen. Of zie ik dat verkeerd? Ik ben benieuwd naar ervaringen van mensen die koken met afzuiging in de kookplaat en wel eens knoeien :9

Plafond is nu ontzettend hoog, 3,75m ! dus dat wordt zowiezo nog aangepast en wellicht een koof boven het eiland.. maar dat moet de architect nog ontwerpen. Ik snap dat je plafondafzuiging niet heel ver boven je kookplaat moet hebben hangen.

  • mevrouwKees_1
  • Registratie: December 2020
  • Laatst online: 20-03 09:43
@Petje72 ik kook op inductie met afsluiting en doe dit vol enthousiasme;). Dingen koken over. Dingen raken naast de pan. Opvangbak is groot genoeg en maakt makkelijk schoon. Het bevalt mij prima.

Ik ben overal tegen. Tot ik een besluit neem, dan ben ik ervoor


  • Petje72
  • Registratie: November 2008
  • Laatst online: 03-04 16:23
mevrouwKees_1 schreef op zondag 1 mei 2022 @ 14:14:
@Petje72 ik kook op inductie met afsluiting en doe dit vol enthousiasme;). Dingen koken over. Dingen raken naast de pan. Opvangbak is groot genoeg en maakt makkelijk schoon. Het bevalt mij prima.
Dank je ! dan gaan we eens kijken naar zo'n inductie met afzuiging. Ik ben een enthousiaste kok dus tijdens het roeren in de pan wil ik wel eens knoeien. haha. Gaat dus goed komen.

We gaan over 2 weken naar Inspiratiehuis 20|20 in Hoofdorp, daar kunnen we alles in de praktijk zien en uitproberen.

  • Source90
  • Registratie: December 2008
  • Laatst online: 09:00
Petje72 schreef op zondag 1 mei 2022 @ 14:28:
[...]


Dank je ! dan gaan we eens kijken naar zo'n inductie met afzuiging. Ik ben een enthousiaste kok dus tijdens het roeren in de pan wil ik wel eens knoeien. haha. Gaat dus goed komen.

We gaan over 2 weken naar Inspiratiehuis 20|20 in Hoofdorp, daar kunnen we alles in de praktijk zien en uitproberen.
Haal daar gelijk even het filter eruit, kan je zien hoe het werkt / in elkaar zit.
Aardige grote opvangbak zoals is genoemd en ervaar je hoe makkelijk je hem schoonmaakt en terug plaatst.

  • macfocus
  • Registratie: December 2015
  • Laatst online: 03-04 13:28
Check van te voren voor de grap ook eens wat een vervangend filter kost en hoe vaak je dat moet vervangen….
Plafondunit mag iets van 160 cm boven je kookplaat volgens de fabrikant (in ons geval Novy). Kwestie van creatief mee omgaan en aangezien je denkelijk recirculatie geen probleem vindt, geeft een plafondunit architectonisch juist heel veel leuke mogelijkheden. Om het nog maar niet te hebben over de keuze voor een inductieplaat met meer als 4 pitten….

  • Nuevocasa
  • Registratie: November 2010
  • Laatst online: 02-04 21:48
macfocus schreef op zondag 1 mei 2022 @ 22:00:
Check van te voren voor de grap ook eens wat een vervangend filter kost en hoe vaak je dat moet vervangen….
Plafondunit mag iets van 160 cm boven je kookplaat volgens de fabrikant (in ons geval Novy). Kwestie van creatief mee omgaan en aangezien je denkelijk recirculatie geen probleem vindt, geeft een plafondunit architectonisch juist heel veel leuke mogelijkheden. Om het nog maar niet te hebben over de keuze voor een inductieplaat met meer als 4 pitten….
Ieders zo z'n ding.... Mijn vrouw en ik vinden de (plafond)afzuigkap toch echt het lelijkste ding van de keuken. Maakt ons niet uit welke vorm of kleur het ding heeft. In onze nieuwe keuken komt deze er zeker niet meer in :+

Onze huidige afzuigkap is trouwens bij het schoonmaken wel behoorlijk vettig, dus het afzuigen naar boven van vet doet een 'gewone' afzuigkap imho gewoon prima.

  • Sport_Life
  • Registratie: Mei 2002
  • Nu online

Sport_Life

Solvitur ambulando

Nuevocasa schreef op zondag 1 mei 2022 @ 22:20:
[...]

Ieders zo z'n ding.... Mijn vrouw en ik vinden de (plafond)afzuigkap toch echt het lelijkste ding van de keuken. Maakt ons niet uit welke vorm of kleur het ding heeft. In onze nieuwe keuken komt deze er zeker niet meer in :+

Onze huidige afzuigkap is trouwens bij het schoonmaken wel behoorlijk vettig, dus het afzuigen naar boven van vet doet een 'gewone' afzuigkap imho gewoon prima.
Vind onze afzuigkap anders best ok en kan ook 'praten' met de kookplaat. :P
Afbeeldingslocatie: https://media3.bsh-group.com/Product_Shots/1600x900/16585717_D96IMW1G1_PGA3_def.png
https://www.neff-home.com...appen-diagonaal/D96IMW1G1

Reden voor ons was de 5 pitten 90cm brede kookplaat die we al gewend zijn en niet terug willen naar minder (note: 3 kinderen).

Maargoed gelukkig willen we niet allemaal dezelfde afzuigkap, anders krijg je weer leveringsproblemen ;) :+

[ Voor 8% gewijzigd door Sport_Life op 01-05-2022 22:50 ]

PV: 9360 WP WZW/ONO | Warmtepomp: Toshiba Estia 8kW 3fase | A+++ | 2x Zappi v2.1

Pagina: 1 ... 338 ... 539 Laatste

Let op:
Dit topic kan gebruikt worden voor het volgende:
• Vragen over de keuken, denkend aan indeling, materialen, kastjes, apparatuur, etc.
• Welke kastjes, aanrechtbladen en apparatuur te kiezen
• Ervaringen met verkopers en keukenboeren
• Tips & Tricks denk hierbij aan hulp bij het zelf installeren en onderhouden van de keuken.
• Jouw indeling. Plaats gerust een foto of tekening, maar maak het niet te bont met hele buildlogs.

Voor badkamers: Het Badkamer topic: verkopers, kwaliteit, prijs - Deel 1
Showen met je keuken kan hier: Tweakers Keuken showroom! - Vestiging 1