Ik heb een IKEA keuken incl apparatuur. Wat ik merk dat ik ontzettend tevreden ben over het duurdere segment van hun apparatuur (ik heb daarvan inductie plaat en koel/vrieskast) en minder tevreden ben over de middeldure/goedkope apparatuur (oven na 5 jaar net buiten garantie kapot. Vaatwasser (rengora) de matjes/spikes waar de glazen op rusten breken af en bestekbak kapot). Meest irritant is overigens dat ie tot 5 keer toe 3 piepjes geeft als ie klaar is (wij wonen in klein appartement en als je dan op bed ligt duurt t heel lang voordat ie gewoon uit gaan) ding blijft maar piepen. Familie heeft de hygienisk en is daar wel heel tevreden over. Ik zou voor een volgende keer wel gaan voor de duurdere versie vd vaatwasser iig.rockerpoet schreef op woensdag 6 april 2022 @ 09:44:
Nu sta ik op het punt een IKEA keuken te bestellen met onder andere het volgende witgoed:
IKEA Rengora vaatwasser
IKEA Tinad koelkast
Snap dat het een discutabele vraag is maar iemand die iets zeggen kan over de kwaliteit van deze apparaten? Met name over de vaatwasser (die van Electrolux is)
Dat bedieningspaneel van de vaatwasser ziet er uit als een Whirlpool, geen Electrolux/AEG.rockerpoet schreef op woensdag 6 april 2022 @ 09:44:
Nu sta ik op het punt een IKEA keuken te bestellen met onder andere het volgende witgoed:
IKEA Rengora vaatwasser
IKEA Tinad koelkast
Snap dat het een discutabele vraag is maar iemand die iets zeggen kan over de kwaliteit van deze apparaten? Met name over de vaatwasser (die van Electrolux is) lees ik wisselende verhalen.
Zie bijvoorbeeld hier:
Source
12x SunPower X21-350-BLK @ Solar Edge SE3680H (4200Wp) | Dell Inspiron 15 7559 | OnePlus 9 Pro Stellar Black 12/256GB | Xbox Series X | LPG powered
Mag ik vragen welke barkrukken dat zijn?
Nee! Voor zover ik weet is enkel de DISKAD vaatwasser nog van Bosch. De rest is van B of C merken.Source90 schreef op woensdag 6 april 2022 @ 10:39:
[...]
Is dat tegenwoordig geen Bosch meer? Ik dacht dat alle Ikea rebranded Bosch was.
Dankjewel! Wij hebben een 60cm blad, dus de bedachte 25cm zou wel eens goed kunnen passen. Hoeveel spots heb je per meter gedaan?GovertNL schreef op dinsdag 5 april 2022 @ 22:27:
[...]
Bij keukengedeelte tegen de muur hangen ze op 30 cm van de muur, zoals je ziet in één van de foto’s. Blad is trouwens 65 diep.
En wat betreft slagschaduw. In de foto van de zijkant kookeiland zie je dat je dat railspot niet in hart van de Bora plaat zit maar echt midden van eiland. Echt prima koken op deze manier.
Na een jaar hier rondgeneusd te hebben in dit topic zijn we 'soort van' klaar met onze verbouwing incl. keuken. Het wachten nog is op onze twee NEFF ovens, verlichting boven de eettafel en dat onze wandplank (iep hout, 280 breed x 25 cm diep x 3 cm dik met ingebouwde LED) boven het spoelgedeelte wordt geplaatst. Ik zal later nog een foto toevoegen aan deze post met het resultaat daarvan.
Het is altijd maar de vraag hoe hetgeen je hebt bedacht uitpakt. De kleur en de afmetingen waren vooral het spannend. Zeker omdat er hier wel geluiden zijn dat je minimaal 5,50 breed nodig hebt voor een spoeldeel+eiland+eet-gedeelte. Wij hebben een stuk minder. Ik zou zeggen dat je met 5.15m goed uit kunt, maar dit allemaal is natuurlijk heel persoonlijk. Wij zijn in ieder geval blij met onze keuken(indeling). De (jonge) kinderen ontbijten elke ochtend aan het eiland terwijl wij aan de andere kant staan de boel te organiseren : )
Merk: Hacker Systemat
Kleur: RAL6020 (oxidegroen)
Blad: Jetstone Calacutta Nuvo (moet ik nog ff verifiëren..)
Apparatuur: NEFF N90 spulleboel (koelvriescombi, stoomoven (60 cm), combi-oven (45 cm), NEFF vaatwasser) & Bora X-Pure afvoer naar buiten
Afmetingen: kookeiland 240 x 95 & spoeldeel 282 x 60
Afmetingen: doorloop eiland - spoel 95 cm & eiland eetkamerstoelen 120 cm (meer dan genoeg!)
Afmetingen: totale breedte (woon)keuken 5.15 cm
Kookeiland:
2x 120 cm lades kook-zijde
2x 50 cm kastdeuren voorzijde
Spoeldeel:
1x 100 cm lades
3 x 60 cm kastdeuren (spoeldeelkast/vaatwasser/geinteregreerde Hacker container unit
)
Gekocht: Mobel Faber Duitsland
Niet opgeruimde toestand btw
:
:strip_exif()/f/image/ZMsjdtU8V38pTqwvbrhfboUF.jpg?f=fotoalbum_large)
:strip_exif()/f/image/lLWjhrfTUIRf3T5CleCOIktn.jpg?f=fotoalbum_large)
:strip_exif()/f/image/ZtLBVCV6lSmNavHvE824Acwe.jpg?f=fotoalbum_large)
:strip_exif()/f/image/DGfOOm8HjU2PUvMtE5xBZpza.jpg?f=fotoalbum_large)
:strip_exif()/f/image/Ndh5amRC54iULVOxKod2Ids3.jpg?f=fotoalbum_large)
Last notes:
We hebben bewust gekozen voor 1 merk keuken zodat we de twee offertes goed konden vergelijken. Pronorm overwogen maar daar konden we toen geen geschikte kleur vinden. Siematic leek ons boven ons budget uitkomen (niet onderzocht, overigens). Het enige jammere aan Hacker Systemat (greeploos) vind ik dat er geen ruimtere kastjes te krijgen zijn. Bij de non-greeploze variant kan dat wel, waardoor je 1) een kleinere plint hebt en 2) meer opbergruimte. Ik hoop dat Hacker dit ook (snel) krijgt voor de greeploze variant.
Laat je adviseren omtrent verlichting en maak je licht- en schakelplan. Verlichting is echt wel een vak en maakt je ruimte zoveel mooier/sfeervoller.
Allen dank voor jullie onderlinge discussies die mij weer verder hebben geholpen en leuk om te zien dat er meer groene keukens lijken te komen
Het is altijd maar de vraag hoe hetgeen je hebt bedacht uitpakt. De kleur en de afmetingen waren vooral het spannend. Zeker omdat er hier wel geluiden zijn dat je minimaal 5,50 breed nodig hebt voor een spoeldeel+eiland+eet-gedeelte. Wij hebben een stuk minder. Ik zou zeggen dat je met 5.15m goed uit kunt, maar dit allemaal is natuurlijk heel persoonlijk. Wij zijn in ieder geval blij met onze keuken(indeling). De (jonge) kinderen ontbijten elke ochtend aan het eiland terwijl wij aan de andere kant staan de boel te organiseren : )
Merk: Hacker Systemat
Kleur: RAL6020 (oxidegroen)
Blad: Jetstone Calacutta Nuvo (moet ik nog ff verifiëren..)
Apparatuur: NEFF N90 spulleboel (koelvriescombi, stoomoven (60 cm), combi-oven (45 cm), NEFF vaatwasser) & Bora X-Pure afvoer naar buiten
Afmetingen: kookeiland 240 x 95 & spoeldeel 282 x 60
Afmetingen: doorloop eiland - spoel 95 cm & eiland eetkamerstoelen 120 cm (meer dan genoeg!)
Afmetingen: totale breedte (woon)keuken 5.15 cm
Kookeiland:
2x 120 cm lades kook-zijde
2x 50 cm kastdeuren voorzijde
Spoeldeel:
1x 100 cm lades
3 x 60 cm kastdeuren (spoeldeelkast/vaatwasser/geinteregreerde Hacker container unit
Gekocht: Mobel Faber Duitsland
Members only:
Alleen zichtbaar voor ingelogde gebruikers.
Inloggen
Niet opgeruimde toestand btw
:strip_exif()/f/image/ZMsjdtU8V38pTqwvbrhfboUF.jpg?f=fotoalbum_large)
:strip_exif()/f/image/lLWjhrfTUIRf3T5CleCOIktn.jpg?f=fotoalbum_large)
:strip_exif()/f/image/ZtLBVCV6lSmNavHvE824Acwe.jpg?f=fotoalbum_large)
:strip_exif()/f/image/DGfOOm8HjU2PUvMtE5xBZpza.jpg?f=fotoalbum_large)
:strip_exif()/f/image/Ndh5amRC54iULVOxKod2Ids3.jpg?f=fotoalbum_large)
Last notes:
We hebben bewust gekozen voor 1 merk keuken zodat we de twee offertes goed konden vergelijken. Pronorm overwogen maar daar konden we toen geen geschikte kleur vinden. Siematic leek ons boven ons budget uitkomen (niet onderzocht, overigens). Het enige jammere aan Hacker Systemat (greeploos) vind ik dat er geen ruimtere kastjes te krijgen zijn. Bij de non-greeploze variant kan dat wel, waardoor je 1) een kleinere plint hebt en 2) meer opbergruimte. Ik hoop dat Hacker dit ook (snel) krijgt voor de greeploze variant.
Laat je adviseren omtrent verlichting en maak je licht- en schakelplan. Verlichting is echt wel een vak en maakt je ruimte zoveel mooier/sfeervoller.
Allen dank voor jullie onderlinge discussies die mij weer verder hebben geholpen en leuk om te zien dat er meer groene keukens lijken te komen
[ Voor 15% gewijzigd door knights16 op 06-04-2022 13:12 ]
Hi Knights16,
Mooie keuken! Wij gaan voor een soortgelijke opstelling. Paar vragen:
- Wat zijn de afmetingen van de ruimte waarin de keuken staat?
- Wat is de totaalprijs van de keuken + apparatuur, incl. montage?
Thanks alvast!
Mooie keuken! Wij gaan voor een soortgelijke opstelling. Paar vragen:
- Wat zijn de afmetingen van de ruimte waarin de keuken staat?
- Wat is de totaalprijs van de keuken + apparatuur, incl. montage?
Thanks alvast!
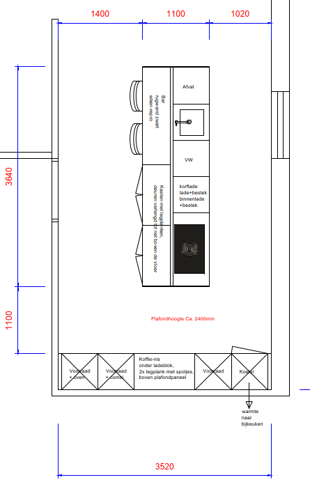
Zie mijn eerdere post. Plattegrond toegevoegd. Prijs stond er al.MvanL schreef op woensdag 6 april 2022 @ 13:08:
Hi Knights16,
Mooie keuken! Wij gaan voor een soortgelijke opstelling. Paar vragen:
- Wat zijn de afmetingen van de ruimte waarin de keuken staat?
- Wat is de totaalprijs van de keuken + apparatuur, incl. montage?
Thanks alvast!
Thanks, dan haal ik de vaatwasser uit de bestelling en koop ik een ander merk elders.Tjdgr schreef op woensdag 6 april 2022 @ 11:13:
[...]
Ik heb een IKEA keuken incl apparatuur. Wat ik merk dat ik ontzettend tevreden ben over het duurdere segment van hun apparatuur (ik heb daarvan inductie plaat en koel/vrieskast) en minder tevreden ben over de middeldure/goedkope apparatuur (oven na 5 jaar net buiten garantie kapot. Vaatwasser (rengora) de matjes/spikes waar de glazen op rusten breken af en bestekbak kapot)....
Ik zou voor een volgende keer wel gaan voor de duurdere versie vd vaatwasser iig.
Heb je toevalig de TINAD koelkast?
Volgens mij de Isande (no frost en bovenaan kan je temperatuur instellen voor vriezer en koelkast).rockerpoet schreef op woensdag 6 april 2022 @ 13:24:
[...]
Thanks, dan haal ik de vaatwasser uit de bestelling en koop ik een ander merk elders.
Heb je toevalig de TINAD koelkast?
Overigens moet je volgens mij wel altijd letten bij andere merken vaatwassers of ze op de ikeadeur passen. Net weer een ander systeem, bij de rest van de apparatuur maakt het niet uit.
[ Voor 21% gewijzigd door Tjdgr op 06-04-2022 13:46 ]
Zeer mooie kleur! Zou ik ook wel willen hebben!
Verder een vraag, wat is het merk/model van je barkrukken?
Opbrengst van mijn Tibber Homevolt met externe kWh meter. | Opbrengst van mijn Tibber Homevolt volgens de Tibber Data API.
Bedankt voor delen. Met een best wel vergelijkbaar ontwerp bezig (iets minder kast), met ook nagenoeg dezelfde apparatuur. N90 van NEFF, en ook de stoomoven, best een gaaf ding.knights16 schreef op woensdag 6 april 2022 @ 12:47:
Na een jaar hier rondgeneusd te hebben in dit topic zijn we 'soort van' klaar met onze verbouwing incl. keuken. Het wachten nog is op onze twee NEFF ovens, verlichting boven de eettafel en dat onze wandplank (iep hout, 280 breed x 25 cm diep x 3 cm dik met ingebouwde LED) boven het spoelgedeelte wordt geplaatst. Ik zal later nog een foto toevoegen aan deze post met het resultaat daarvan.
Het is altijd maar de vraag hoe hetgeen je hebt bedacht uitpakt. De kleur en de afmetingen waren vooral het spannend. Zeker omdat er hier wel geluiden zijn dat je minimaal 5,50 breed nodig hebt voor een spoeldeel+eiland+eet-gedeelte. Wij hebben een stuk minder. Ik zou zeggen dat je met 5.15m goed uit kunt, maar dit allemaal is natuurlijk heel persoonlijk. Wij zijn in ieder geval blij met onze keuken(indeling). De (jonge) kinderen ontbijten elke ochtend aan het eiland terwijl wij aan de andere kant staan de boel te organiseren : )
Merk: Hacker Systemat
Kleur: RAL6020 (oxidegroen)
Blad: Jetstone Calacutta Nuvo (moet ik nog ff verifiëren..)
Apparatuur: NEFF N90 spulleboel (koelvriescombi, stoomoven (60 cm), combi-oven (45 cm), NEFF vaatwasser) & Bora X-Pure afvoer naar buiten
Afmetingen: kookeiland 240 x 95 & spoeldeel 282 x 60
Afmetingen: doorloop eiland - spoel 95 cm & eiland eetkamerstoelen 120 cm (meer dan genoeg!)
Afmetingen: totale breedte (woon)keuken 5.15 cm
Kookeiland:
2x 120 cm lades kook-zijde
2x 50 cm kastdeuren voorzijde
Spoeldeel:
1x 100 cm lades
3 x 60 cm kastdeuren (spoeldeelkast/vaatwasser/geinteregreerde Hacker container unit)
Gekocht: Mobel Faber Duitsland
***members only***
Niet opgeruimde toestand btw:
[Afbeelding]
[Afbeelding]
[Afbeelding]
[Afbeelding]
[Afbeelding]
Last notes:
We hebben bewust gekozen voor 1 merk keuken zodat we de twee offertes goed konden vergelijken. Pronorm overwogen maar daar konden we toen geen geschikte kleur vinden. Siematic leek ons boven ons budget uitkomen (niet onderzocht, overigens). Het enige jammere aan Hacker Systemat (greeploos) vind ik dat er geen ruimtere kastjes te krijgen zijn. Bij de non-greeploze variant kan dat wel, waardoor je 1) een kleinere plint hebt en 2) meer opbergruimte. Ik hoop dat Hacker dit ook (snel) krijgt voor de greeploze variant.
Laat je adviseren omtrent verlichting en maak je licht- en schakelplan. Verlichting is echt wel een vak en maakt je ruimte zoveel mooier/sfeervoller.
Allen dank voor jullie onderlinge discussies die mij weer verder hebben geholpen en leuk om te zien dat er meer groene keukens lijken te komen
Hoe ervaar je de NEFF vaatwasser, en koelvries, qua geluid? Beetje stil?
Mitsubishi SUZ-SWM60 VA warmtepomp / PV Zuid: 3805WP / Noord: 830WP / Orcon MaxComfort-500 WTW
Isande en Tinad lijken mij hetzelfde merk is gezien het gelijke flessenrek.Tjdgr schreef op woensdag 6 april 2022 @ 13:44:
[...]
Volgens mij de Isande (no frost en bovenaan kan je temperatuur instellen voor vriezer en koelkast).
Overigens moet je volgens mij wel altijd letten bij andere merken vaatwassers of ze op de ikeadeur passen. Net weer een ander systeem, bij de rest van de apparatuur maakt het niet uit.
Goede tip vwb de vaatwassers. Zo te zien alleen volledig integreerbaar geschikt voor 80cm front.
Grappig dat je het vraagt. Ik vond de combi relatief veel lawaai maken. Dit is ook nadrukkelijker aanwezig omdat er nog twee ovens naast moeten. Vraag het mij over 1 week nog eens. Reden is: gisteren de volledige keukenfronts (waaronder die van de koelvriescombi) verwijderd zodat deze geschilderd konden worden. Front op keuken opnieuw geplaatst waardoor ik het vermoeden heb dat de koelkast deur nu beter sluit. Het viel mij namelijk sinds gisteravond op dat hij vrijwel geen lawaai maakt (alsof hij uitstaan) en voorheen hoorde ik hem bijna continurubenos schreef op woensdag 6 april 2022 @ 14:30:
[...]
Bedankt voor delen. Met een best wel vergelijkbaar ontwerp bezig (iets minder kast), met ook nagenoeg dezelfde apparatuur. N90 van NEFF, en ook de stoomoven, best een gaaf ding.![]()
Hoe ervaar je de NEFF vaatwasser, en koelvries, qua geluid? Beetje stil?
Vaatwasser is top. Een deel van het programma hoor je hem wel, in een stil huis. We komen van een oude Miele van 15-20 jaar oud. Merk dat ons maandelijkse stroomverbruik gedaald is met de nieuwe apparatuur (terwijl we wel inductie zijn gaan koken). Op het eco-programma komt alles kurkdroog uit de vaatwasser, plastic kommetjes zijn ook goed droog.
Vind het jammer dat ik de kinderbeveiliging niet kan activeren in combinatie met automatisch openen van vaatwasser voor efficienter drogen van de vaat. Vaatwasser is push to open (die was het zuinigst) maar als je er tegenaan staat gaat die bij het minste al open. Dat kun je uitzetten (kinderbeveiling aanzetten) maar dan werkt het automatisch openen bij drogen niet (omdat dit een gevaar zou zijn voor kinder(handjes). Aldus NEFF klantenservice
[ Voor 29% gewijzigd door knights16 op 06-04-2022 14:59 ]
OK, ben benieuwd inderdaad. Ik kan nu nog van apparatuur veranderen namelijk haha. Ook benieuwd naar de vaatwasser, want onze huidige ATAG is echt een drama, die gorgelt en bromt de hele avond volknights16 schreef op woensdag 6 april 2022 @ 14:51:
[...]
Grappig dat je het vraagt. Ik vond de combi relatief veel lawaai maken. Dit is ook nadrukkelijker aanwezig omdat er nog twee ovens naast moeten. Vraag het mij over 1 week nog eens. Reden is: gisteren de volledige keukenfronts (waaronder die van de koelvriescombi) verwijderd zodat deze geschilderd konden worden. Front op keuken opnieuw geplaatst waardoor ik het vermoeden heb dat de koelkast deur nu beter sluit. Het viel mij namelijk sinds gisteravond op dat hij vrijwel geen lawaai maakt (alsof hij uitstaan) en voorheen hoorde ik hem bijna continu
Mitsubishi SUZ-SWM60 VA warmtepomp / PV Zuid: 3805WP / Noord: 830WP / Orcon MaxComfort-500 WTW
ZIe mijn ge-edite post hierboven voor ervaring vaatwasser. NEFF gorgelt en bromt niet de hele avond. Zeker niet.rubenos schreef op woensdag 6 april 2022 @ 14:56:
[...]
OK, ben benieuwd inderdaad. Ik kan nu nog van apparatuur veranderen namelijk haha. Ook benieuwd naar de vaatwasser, want onze huidige ATAG is echt een drama, die gorgelt en bromt de hele avond vol
Klinkt goed. We hebben nog de optie te upgraden naar de stilste Neff versie. Die zou max 41db moeten zijn tov 44db. Maar is wel een aardig prijsverschil.knights16 schreef op woensdag 6 april 2022 @ 15:00:
[...]
ZIe mijn ge-edite post hierboven voor ervaring vaatwasser. NEFF gorgelt en bromt niet de hele avond. Zeker niet.
Mitsubishi SUZ-SWM60 VA warmtepomp / PV Zuid: 3805WP / Noord: 830WP / Orcon MaxComfort-500 WTW
Prachtige keuken knights16. Waar komt je eet tafel en wandbank vandaan? Zien er geweldig uit.knights16 schreef op woensdag 6 april 2022 @ 12:47:
Na een jaar hier rondgeneusd te hebben in dit topic zijn we 'soort van' klaar met onze verbouwing incl. keuken. Het wachten nog is op onze twee NEFF ovens, verlichting boven de eettafel en dat onze wandplank (iep hout, 280 breed x 25 cm diep x 3 cm dik met ingebouwde LED) boven het spoelgedeelte wordt geplaatst. Ik zal later nog een foto toevoegen aan deze post met het resultaat daarvan.
Het is altijd maar de vraag hoe hetgeen je hebt bedacht uitpakt. De kleur en de afmetingen waren vooral het spannend. Zeker omdat er hier wel geluiden zijn dat je minimaal 5,50 breed nodig hebt voor een spoeldeel+eiland+eet-gedeelte. Wij hebben een stuk minder. Ik zou zeggen dat je met 5.15m goed uit kunt, maar dit allemaal is natuurlijk heel persoonlijk. Wij zijn in ieder geval blij met onze keuken(indeling). De (jonge) kinderen ontbijten elke ochtend aan het eiland terwijl wij aan de andere kant staan de boel te organiseren : )
Merk: Hacker Systemat
Kleur: RAL6020 (oxidegroen)
Blad: Jetstone Calacutta Nuvo (moet ik nog ff verifiëren..)
Apparatuur: NEFF N90 spulleboel (koelvriescombi, stoomoven (60 cm), combi-oven (45 cm), NEFF vaatwasser) & Bora X-Pure afvoer naar buiten
Afmetingen: kookeiland 240 x 95 & spoeldeel 282 x 60
Afmetingen: doorloop eiland - spoel 95 cm & eiland eetkamerstoelen 120 cm (meer dan genoeg!)
Afmetingen: totale breedte (woon)keuken 5.15 cm
Kookeiland:
2x 120 cm lades kook-zijde
2x 50 cm kastdeuren voorzijde
Spoeldeel:
1x 100 cm lades
3 x 60 cm kastdeuren (spoeldeelkast/vaatwasser/geinteregreerde Hacker container unit)
Gekocht: Mobel Faber Duitsland
***members only***
Niet opgeruimde toestand btw:
[Afbeelding]
[Afbeelding]
[Afbeelding]
[Afbeelding]
[Afbeelding]
Last notes:
We hebben bewust gekozen voor 1 merk keuken zodat we de twee offertes goed konden vergelijken. Pronorm overwogen maar daar konden we toen geen geschikte kleur vinden. Siematic leek ons boven ons budget uitkomen (niet onderzocht, overigens). Het enige jammere aan Hacker Systemat (greeploos) vind ik dat er geen ruimtere kastjes te krijgen zijn. Bij de non-greeploze variant kan dat wel, waardoor je 1) een kleinere plint hebt en 2) meer opbergruimte. Ik hoop dat Hacker dit ook (snel) krijgt voor de greeploze variant.
Laat je adviseren omtrent verlichting en maak je licht- en schakelplan. Verlichting is echt wel een vak en maakt je ruimte zoveel mooier/sfeervoller.
Allen dank voor jullie onderlinge discussies die mij weer verder hebben geholpen en leuk om te zien dat er meer groene keukens lijken te komen
Sorry voor t reposten, maar zoek met name naar iemand met een tip over de afzuigkap. Heeft iemand een goede stille vervanging voor de atag die wij op t oog hadden?tvdo schreef op dinsdag 5 april 2022 @ 21:37:
Hallo!
Wij zijn een nieuwe keuken aan t uitzoeken en voorlopig hebben we onderstaand voorstel binnen:
Afmeting: L-vorm 4,5m bij 2m
Indeling: 2 hoge kasten aan korte zijde, 4,5m lang blad met onderkasten, 3 bovenkasten 90x50x35cm en afzuigkap.
Merk: Leicht, gelakte fronten pk4 van 8
Apparatuur: Atag
koelkast kd26178A 1,8m
inductiekookplaat Hi8271s 80cm
Oven zx6611d
vaatwasser Va7114srt
Afzuigkap ws90211em
Quooker combi+
[Afbeelding]
Apparatuur Atag vanwege garantie 8 jaar en levertijden die nog ok zijn (itt siemens bosch neff)
Nu heb ik een paar kleine vragen:
- afzuigkap: hoeveel Db is acceptabel bij normaal gebruik? Deze heeft 52db in stand 1 (300m3), maar dat lijkt erg luid ivglm siemens/bosch of novy?
- kwaliteit Atag apparatuur: vorige keer is dit goed bevallen maar wat zijn jullie ervaringen? Zijn er bepaalde afraders?
- iemand tips over deze indeling? andere optie voor indeling was 2 hoge kasten wisselen met kookplaat. Naast hoge kasten is nu een muur van 1,5m, opening naar kamer is midden tegenover werkblad.
Ja die had ik toentertijd ook overwogen. Gekozen voor een zuinigere dan een stillere.rubenos schreef op woensdag 6 april 2022 @ 15:05:
[...]
Klinkt goed. We hebben nog de optie te upgraden naar de stilste Neff versie. Die zou max 41db moeten zijn tov 44db. Maar is wel een aardig prijsverschil.
Zie nu ook dat er nieuwe modellen zijn met een energielabel A (maar wel ook db van 43).
Bij ons draait ELKE dag de vaatwasser, dus hier viel winst te behalen voor ons. Onze oude Miele deed 25 liter per beurt en 1,5-2kwh en de nieuwe doet 10 liter en 0,7 kwh. Dat is snel weer 250 Kwh besparing ten opzichte van de oude vaatwasser. Alleen jammer dat onze geen display op de vloer heeft.
Zou dan nu : https://www.neff-home.com...ls/Togglebox=accessories/ kiezen, energielabel A en display op de grond.
[ Voor 15% gewijzigd door knights16 op 06-04-2022 16:00 ]
Maatwerk. Mocht je interesse hebben stuur mij even een PM.TheMoonMan schreef op woensdag 6 april 2022 @ 15:10:
[...]
Prachtige keuken knights16. Waar komt je eet tafel en wandbank vandaan? Zien er geweldig uit.
Barkruk Hugo Velvet Zwart (verstelbaar) - Giga Meubel. Ben niet super tevreden over de kwaliteit. Maar kan misschien ook niet veel verwachten voor dat geld. Ze zijn in hoogte verstelbaar en dat is met kinderen erg fijn, die willen zoveel mogelijk omhoog. En een ronde voet is wat prettiger ivm de doorloopt.JackBol schreef op woensdag 6 april 2022 @ 13:56:
[...]
Zeer mooie kleur! Zou ik ook wel willen hebben!
Verder een vraag, wat is het merk/model van je barkrukken?
Even vraagje tussendoor: welk formaat vriezer geeft jullie voorkeur? Eentje van 178cm is het mooiste naast de hoge koelkast, maar die verbruikt veel meer energie vergeleken met een 122cm model, verbruik is 40% hoger en ik denk dat we ook geen grote nodig hebben (ondanks groot gezin 5 leden). Hoe zien jullie dit?
PV: 9360 WP WZW/ONO | Warmtepomp: Toshiba Estia 8kW 3fase | A+++ | 2x Zappi v2.1
Ligt er ook aan welk merk je kijktSport_Life schreef op woensdag 6 april 2022 @ 17:09:
Even vraagje tussendoor: welk formaat vriezer geeft jullie voorkeur? Eentje van 178cm is het mooiste naast de hoge koelkast, maar die verbruikt veel meer energie vergeleken met een 122cm model, verbruik is 40% hoger en ik denk dat we ook geen grote nodig hebben (ondanks groot gezin 5 leden). Hoe zien jullie dit?
Wij wilde voor Liebherr gaan (of omgedoopte Miele)en hebben ook naar een kleiner model gekeken.
Liebherr heeft helaas geen 122cm model en kom je uit bij 140cm.
Die kleine verbruikt meer dan de 178cm.. Keuze wat dat betreft snel gemaakt
https://www.koelen.nl/inb...vrieskasten/sign-3556-22/
https://www.koelen.nl/inb...vrieskasten/sign-2756-21/
[ Voor 6% gewijzigd door Source90 op 06-04-2022 17:28 ]
Alle apparatuur is van NeffSource90 schreef op woensdag 6 april 2022 @ 17:27:
[...]
Ligt er ook aan welk merk je kijkt
Wij wilde voor Liebherr gaan (of omgedoopte Miele)en hebben ook naar een kleiner model gekeken.
Liebherr heeft helaas geen 122cm model en kom je uit bij 140cm.
Die kleine verbruikt meer dan de 178cm.. Keuze wat dat betreft snel gemaakt![]()
https://www.koelen.nl/inb...vrieskasten/sign-3556-22/
https://www.koelen.nl/inb...vrieskasten/sign-2756-21/
Keukenleverancier adviseert 178cm omdat dat er mooier uitziet .
PV: 9360 WP WZW/ONO | Warmtepomp: Toshiba Estia 8kW 3fase | A+++ | 2x Zappi v2.1
Na veel gluren en turen hier ook de stap naar een nieuwe keuken. We hebben nu een L-keuken met een bijkeuken waar een losse vriezer staat. In de nieuwe situatie willen we de bijkeuken gebruiken voor meer opslagruimte van spullen die nu in de garage staan. De gourmetstellen enzo..
Bij Superkeukens en Boxtel keukens geweest. Laatste is een kleiner bedrijf die servicegericht overkomen en waar ons beste gevoel bij zit.
We hebben alleen een niet te scherpe afbeelding op papier zonder maten helaas.
:strip_exif()/f/image/fBzHTtxtim8rTVl6yPDqTyHc.jpg?f=fotoalbum_large)
Het betreft een Keller, Bolmton keuken met een Ceramistone werkblad. (362cm ongeveer).
Opstelling bijkeuken: twee kasten met planken, vriezer, combimagnetron en kast met plank.
We hebben hier met twee dieptematen moeten werken in verband met een (te grote) lichtkoepel die niet gunstig uitkomt.
Opstelling keuken van links naar rechts: Kraan met twee lades eronder, vaatwasser, kookplaat met twee lades eronder, uitschuifbare hoekkast. Lage apothekerskast/smalle lades, oven met daaronder twee lades en erboven kast met plank. In de hoek tenslotte de koelkast en een kast met plank.
Rechtsonderaan de afbeelding zit een muur naast de koelkast die 1m80 doorloopt. Deze zie je niet op de tekening terug. Vanuit de woonkamer zie je de koelkast en oven dus niet.
Apparatuur lijst:
- Vriezer, NEFF GI1212SE0
- Combimagnetron, Pelgrim MAC113GLS
- Vaatwasser, NEFF S455HVX15E
- Bakoven, NEFF B57CR22G0
- Koelkast, Liebherr IRBd 4120 Plus
- Kookplaat, ATAG HI9271SVC
- Afzuigkap, NEFF D95IMM1G0
Voor mijn gevoel is het een hoop geld, maar kan ik niet inschatten of er voor de kastjes of werkblad bijvoorbeeld nog 3k marge zit.
In een vorig ontwerp hadden we een hoge apothekerskast naast de koelkast, maar daarmee creëerde je een dode hoek waar nu koffiezetapparaat staat. Met de lage opstelling daar kom je er nog goed bij schatten wij in.
Bij Superkeukens en Boxtel keukens geweest. Laatste is een kleiner bedrijf die servicegericht overkomen en waar ons beste gevoel bij zit.
We hebben alleen een niet te scherpe afbeelding op papier zonder maten helaas.
:strip_exif()/f/image/fBzHTtxtim8rTVl6yPDqTyHc.jpg?f=fotoalbum_large)
Het betreft een Keller, Bolmton keuken met een Ceramistone werkblad. (362cm ongeveer).
Opstelling bijkeuken: twee kasten met planken, vriezer, combimagnetron en kast met plank.
We hebben hier met twee dieptematen moeten werken in verband met een (te grote) lichtkoepel die niet gunstig uitkomt.
Opstelling keuken van links naar rechts: Kraan met twee lades eronder, vaatwasser, kookplaat met twee lades eronder, uitschuifbare hoekkast. Lage apothekerskast/smalle lades, oven met daaronder twee lades en erboven kast met plank. In de hoek tenslotte de koelkast en een kast met plank.
Rechtsonderaan de afbeelding zit een muur naast de koelkast die 1m80 doorloopt. Deze zie je niet op de tekening terug. Vanuit de woonkamer zie je de koelkast en oven dus niet.
Apparatuur lijst:
- Vriezer, NEFF GI1212SE0
- Combimagnetron, Pelgrim MAC113GLS
- Vaatwasser, NEFF S455HVX15E
- Bakoven, NEFF B57CR22G0
- Koelkast, Liebherr IRBd 4120 Plus
- Kookplaat, ATAG HI9271SVC
- Afzuigkap, NEFF D95IMM1G0
Members only:
Alleen zichtbaar voor ingelogde gebruikers.
Inloggen
Voor mijn gevoel is het een hoop geld, maar kan ik niet inschatten of er voor de kastjes of werkblad bijvoorbeeld nog 3k marge zit.
In een vorig ontwerp hadden we een hoge apothekerskast naast de koelkast, maar daarmee creëerde je een dode hoek waar nu koffiezetapparaat staat. Met de lage opstelling daar kom je er nog goed bij schatten wij in.
Op blad van 310 hebben we er 4 stuks boven hangen!jichem schreef op woensdag 6 april 2022 @ 11:49:
[...]
Dankjewel! Wij hebben een 60cm blad, dus de bedachte 25cm zou wel eens goed kunnen passen. Hoeveel spots heb je per meter gedaan?
Natuurlijk. Moest even wachten totdat vriendin thuis was haha.
https://www.livin24.com/s...1Q9go8EAQYBCABEgJBnvD_BwE
Nice. Groene keukens ftw! Nu maar hopen dat ze niet het zelfde lot krijgen als de groene badkamer tegels uit de jaren 60.knights16 schreef op woensdag 6 april 2022 @ 12:47:
Na een jaar hier rondgeneusd te hebben in dit topic zijn we 'soort van' klaar met onze verbouwing incl. keuken. Het wachten nog is op onze twee NEFF ovens, verlichting boven de eettafel en dat onze wandplank (iep hout, 280 breed x 25 cm diep x 3 cm dik met ingebouwde LED) boven het spoelgedeelte wordt geplaatst. Ik zal later nog een foto toevoegen aan deze post met het resultaat daarvan.
Het is altijd maar de vraag hoe hetgeen je hebt bedacht uitpakt. De kleur en de afmetingen waren vooral het spannend. Zeker omdat er hier wel geluiden zijn dat je minimaal 5,50 breed nodig hebt voor een spoeldeel+eiland+eet-gedeelte. Wij hebben een stuk minder. Ik zou zeggen dat je met 5.15m goed uit kunt, maar dit allemaal is natuurlijk heel persoonlijk. Wij zijn in ieder geval blij met onze keuken(indeling). De (jonge) kinderen ontbijten elke ochtend aan het eiland terwijl wij aan de andere kant staan de boel te organiseren : )
Merk: Hacker Systemat
Kleur: RAL6020 (oxidegroen)
Blad: Jetstone Calacutta Nuvo (moet ik nog ff verifiëren..)
Apparatuur: NEFF N90 spulleboel (koelvriescombi, stoomoven (60 cm), combi-oven (45 cm), NEFF vaatwasser) & Bora X-Pure afvoer naar buiten
Afmetingen: kookeiland 240 x 95 & spoeldeel 282 x 60
Afmetingen: doorloop eiland - spoel 95 cm & eiland eetkamerstoelen 120 cm (meer dan genoeg!)
Afmetingen: totale breedte (woon)keuken 5.15 cm
Kookeiland:
2x 120 cm lades kook-zijde
2x 50 cm kastdeuren voorzijde
Spoeldeel:
1x 100 cm lades
3 x 60 cm kastdeuren (spoeldeelkast/vaatwasser/geinteregreerde Hacker container unit)
Gekocht: Mobel Faber Duitsland
***members only***
Niet opgeruimde toestand btw:
[Afbeelding]
[Afbeelding]
[Afbeelding]
[Afbeelding]
[Afbeelding]
Last notes:
We hebben bewust gekozen voor 1 merk keuken zodat we de twee offertes goed konden vergelijken. Pronorm overwogen maar daar konden we toen geen geschikte kleur vinden. Siematic leek ons boven ons budget uitkomen (niet onderzocht, overigens). Het enige jammere aan Hacker Systemat (greeploos) vind ik dat er geen ruimtere kastjes te krijgen zijn. Bij de non-greeploze variant kan dat wel, waardoor je 1) een kleinere plint hebt en 2) meer opbergruimte. Ik hoop dat Hacker dit ook (snel) krijgt voor de greeploze variant.
Laat je adviseren omtrent verlichting en maak je licht- en schakelplan. Verlichting is echt wel een vak en maakt je ruimte zoveel mooier/sfeervoller.
Allen dank voor jullie onderlinge discussies die mij weer verder hebben geholpen en leuk om te zien dat er meer groene keukens lijken te komen
Imac 27" i5 + Dell XPS Laptop
Zou zeker voor een grote gaan. Wij merken dat het wat makkelijker inkoopt. vind het zelf wel fijn om een voorraad bosvruchten, vlees, vis, groenten, snacks en brood te hebben. En als je dan 1 la per soort pakt, dan zit je aan een 180 model.Sport_Life schreef op woensdag 6 april 2022 @ 17:09:
Even vraagje tussendoor: welk formaat vriezer geeft jullie voorkeur? Eentje van 178cm is het mooiste naast de hoge koelkast, maar die verbruikt veel meer energie vergeleken met een 122cm model, verbruik is 40% hoger en ik denk dat we ook geen grote nodig hebben (ondanks groot gezin 5 leden). Hoe zien jullie dit?
Dag allen!
Ik ben ook bezig met een nieuwe keuken uitzoeken voor een nieuwbouwwoning en zit nu in het laatste stadium. De apparatuur. Momenteel zit dit erin:
Vaatwasser: Pelgrim GVW220L; https://www.pelgrim.nl/ap...alle-vaatwassers/gvw220l/
Oven: AEG BPK742380B
Koelkast: Pelgrim PCS24178L Low frost: https://www.pelgrim.nl/ap...iescombinaties/pcs24178l/
Inductieplaat: AEG IPE7454SFB
Afzuigkap: AEG DVE5971HB
En dan nog een Quooker PRO3.
Zoals velen hier in het topic, twijfel ik over de Pelgrim apparatuur. Ik hoef niet alles van een high-end merk, maar wil ook niet vaat die niet goed droog wordt. Ik neig nu naar onderkant segment Siemens vaatwassers als alternatief voor de Pelgrim. Voor de koelkast wellicht een onderkant Liebherr. Zou dit de moeite zijn om dit door te voeren? Of wordt dat lood om oud ijzer. Ik zou er max 300€ extra voor over hebben om beide Pelgrims te upgraden naar iets beters. Iemand suggesties? No-frost koelkast zou top zijn, maar is denk ik prijstechnisch niet haalbaar.
En voor het topic: een paar kiekjes van de keuken:
Edit: je ziet nu twee verschillende greepjes op de onderstaande foto’s, daar ben ik nog niet over uit welke ik wil.
.
:strip_exif()/f/image/oiiU3LtpnqvAqLpDc9TGlIxH.jpg?f=fotoalbum_large)
:strip_exif()/f/image/rLi8rq3tta7kf1V1UMHhwxUs.jpg?f=fotoalbum_large)
Ik ben ook bezig met een nieuwe keuken uitzoeken voor een nieuwbouwwoning en zit nu in het laatste stadium. De apparatuur. Momenteel zit dit erin:
Vaatwasser: Pelgrim GVW220L; https://www.pelgrim.nl/ap...alle-vaatwassers/gvw220l/
Oven: AEG BPK742380B
Koelkast: Pelgrim PCS24178L Low frost: https://www.pelgrim.nl/ap...iescombinaties/pcs24178l/
Inductieplaat: AEG IPE7454SFB
Afzuigkap: AEG DVE5971HB
En dan nog een Quooker PRO3.
Zoals velen hier in het topic, twijfel ik over de Pelgrim apparatuur. Ik hoef niet alles van een high-end merk, maar wil ook niet vaat die niet goed droog wordt. Ik neig nu naar onderkant segment Siemens vaatwassers als alternatief voor de Pelgrim. Voor de koelkast wellicht een onderkant Liebherr. Zou dit de moeite zijn om dit door te voeren? Of wordt dat lood om oud ijzer. Ik zou er max 300€ extra voor over hebben om beide Pelgrims te upgraden naar iets beters. Iemand suggesties? No-frost koelkast zou top zijn, maar is denk ik prijstechnisch niet haalbaar.
En voor het topic: een paar kiekjes van de keuken:
Edit: je ziet nu twee verschillende greepjes op de onderstaande foto’s, daar ben ik nog niet over uit welke ik wil.
:strip_exif()/f/image/oiiU3LtpnqvAqLpDc9TGlIxH.jpg?f=fotoalbum_large)
:strip_exif()/f/image/rLi8rq3tta7kf1V1UMHhwxUs.jpg?f=fotoalbum_large)
[ Voor 15% gewijzigd door Crescendo op 06-04-2022 21:09 ]
Ik zou het lekker zo laten en over >5 jaar eens kijken voor beter spul of wellicht ga je dan verhuizen naar iets andersCrescendo schreef op woensdag 6 april 2022 @ 20:56:
Dag allen!
Ik ben ook bezig met een nieuwe keuken uitzoeken voor een nieuwbouwwoning en zit nu in het laatste stadium. De apparatuur. Momenteel zit dit erin:
Vaatwasser: Pelgrim GVW220L; https://www.pelgrim.nl/ap...alle-vaatwassers/gvw220l/
Oven: AEG BPK742380B
Koelkast: Pelgrim PCS24178L Low frost: https://www.pelgrim.nl/ap...iescombinaties/pcs24178l/
Inductieplaat: AEG IPE7454SFB
Afzuigkap: AEG DVE5971HB
En dan nog een Quooker PRO3.
Zoals velen hier in het topic, twijfel ik over de Pelgrim apparatuur. Ik hoef niet alles van een high-end merk, maar wil ook niet vaat die niet goed droog wordt. Ik neig nu naar onderkant segment Siemens vaatwassers als alternatief voor de Pelgrim. Voor de koelkast wellicht een onderkant Liebherr. Zou dit de moeite zijn om dit door te voeren? Of wordt dat lood om oud ijzer. Ik zou er max 300€ extra voor over hebben om beide Pelgrims te upgraden naar iets beters. Iemand suggesties? No-frost koelkast zou top zijn, maar is denk ik prijstechnisch niet haalbaar.
En voor het topic: een paar kiekjes van de keuken:
Edit: je ziet nu twee verschillende greepjes op de onderstaande foto’s, daar ben ik nog niet over uit welke ik wil..
[Afbeelding]
[Afbeelding]
[Afbeelding]
Bij nieuwbouw betaal je vaak de hoofdprijs voor een wijziging..
PV: 9360 WP WZW/ONO | Warmtepomp: Toshiba Estia 8kW 3fase | A+++ | 2x Zappi v2.1
Ik drukte me wat onhandig uit of ik begrijp je nu niet helemaal @Sport_Life. De woning moet nog worden gebouwd en de keuken die hierboven staat is wat ik nu zelf heb samengesteld met een keukenzaak uit Zwolle. Ik kwam van een volledige AEG-set (vanuit een eerste idee van een keukenzaak) en toen heeft deze keukenzaak dit er van gemaakt. En nu dub ik een beetje of ik de Pelgrim zo laat of niet.
Prijs is 14.200€ inclusief alles overigens. Momenteel. Heb zelf altijd gezegd dat ik max rond die 14.000€ wil zitten. Maar ik kan niet zo goed inschatten of ik nu met 300€ extra een veel betere vaatwasser/koelkast heb of niet en of dat de extra investering nu waard is.
Want wat je zegt, ik ga er waarschijnlijk een jaar of vijf, hooguit zeven wonen en niet tien.
Prijs is 14.200€ inclusief alles overigens. Momenteel. Heb zelf altijd gezegd dat ik max rond die 14.000€ wil zitten. Maar ik kan niet zo goed inschatten of ik nu met 300€ extra een veel betere vaatwasser/koelkast heb of niet en of dat de extra investering nu waard is.
Want wat je zegt, ik ga er waarschijnlijk een jaar of vijf, hooguit zeven wonen en niet tien.
[ Voor 10% gewijzigd door Crescendo op 06-04-2022 22:55 ]
Ah ik dacht dat het ging om een standaard project keuken.Crescendo schreef op woensdag 6 april 2022 @ 22:50:
Ik drukte me wat onhandig uit of ik begrijp je nu niet helemaal @Sport_Life. De woning moet nog worden gebouwd en de keuken die hierboven staat is wat ik nu zelf heb samengesteld met een keukenzaak uit Zwolle. Ik kwam van een volledige AEG-set (vanuit een eerste idee van een keukenzaak) en toen heeft deze keukenzaak dit er van gemaakt. En nu dub ik een beetje of ik de Pelgrim zo laat of niet.
Prijs is 14.200€ inclusief alles overigens. Momenteel. Heb zelf altijd gezegd dat ik max rond die 14.000€ wil zitten. Maar ik kan niet zo goed inschatten of ik nu met 300€ extra een veel betere vaatwasser/koelkast heb of niet en of dat de extra investering nu waard is.
Want wat je zegt, ik ga er waarschijnlijk een jaar of vijf, hooguit zeven wonen en niet tien.
PV: 9360 WP WZW/ONO | Warmtepomp: Toshiba Estia 8kW 3fase | A+++ | 2x Zappi v2.1
Ik had gehoopt dat mijn eigen ontwerp iets meer allure had dan dat.Sport_Life schreef op woensdag 6 april 2022 @ 23:11:
[...]
Ah ik dacht dat het ging om een standaard project keuken.
Maar goed dan blijft dus de vraag open, laat ik de twee Pelgrim units erin zitten of ik besteed ik iets meer, maar wat zijn dan de alternatieven. Ik sta open voor jullie suggesties, dank alvast!
Heb je al eens een Pelgrim koelkast in hamden gehad?
Doe daarna bv even een AEG. Eenwereld van verschil. De Pelgrim is een rammelbak met plastic laatjes die echt rammelen en goedkoop aanvoelen. Die AEG niet.
Het hoeft niet persé een duur merk (siemens/Liebherr) te zijn om gewoon goed spul te zijn.
Kijk even wat je 1 segmentje hoger dan Pelgrim kunt krijgen.
En bij Satink (want daar be je geweest zo te zien), is AEG voorraad spul.
Doe daarna bv even een AEG. Eenwereld van verschil. De Pelgrim is een rammelbak met plastic laatjes die echt rammelen en goedkoop aanvoelen. Die AEG niet.
Het hoeft niet persé een duur merk (siemens/Liebherr) te zijn om gewoon goed spul te zijn.
Kijk even wat je 1 segmentje hoger dan Pelgrim kunt krijgen.
En bij Satink (want daar be je geweest zo te zien), is AEG voorraad spul.
Dat hangt toch echt een beetje welke klasse Pelgrim je vast pakt. Want ook Pelgrim heeft gewoon midden segment spullen en die voelen gewoon net zo goed als een AEG in het midden segment. (ik zeg niets over kwaliteit of duurzaamheid) Het zelfde dat je bij ATAG ook in het budget van Pelgrim spullen hebt maar ook in het budget van de midden / hoger segment van Bosch / Siemens.macfocus schreef op donderdag 7 april 2022 @ 07:52:
Heb je al eens een Pelgrim koelkast in hamden gehad?
Doe daarna bv even een AEG. Eenwereld van verschil. De Pelgrim is een rammelbak met plastic laatjes die echt rammelen en goedkoop aanvoelen. Die AEG niet.
Het hoeft niet persé een duur merk (siemens/Liebherr) te zijn om gewoon goed spul te zijn.
Kijk even wat je 1 segmentje hoger dan Pelgrim kunt krijgen.
En bij Satink (want daar be je geweest zo te zien), is AEG voorraad spul.
Game PC
2 Post or Not 2 Post What's the question ?
"If it ain't broken, you didn't try hard enough"
Klopt de eigenaar is Satink. De zaak heet net anders: Keukenheren. Volgens mij is de Satink winkel inmiddels in andere handen. Neemt niet weg dat wat jij beschrijft ook een beetje mijn twijfel is. Ik zal in eerste instantie de bal eens bij ze terugleggen. Misschien toch maar de volledige AEG set erin stoppen.macfocus schreef op donderdag 7 april 2022 @ 07:52:
Heb je al eens een Pelgrim koelkast in hamden gehad?
Doe daarna bv even een AEG. Eenwereld van verschil. De Pelgrim is een rammelbak met plastic laatjes die echt rammelen en goedkoop aanvoelen. Die AEG niet.
Het hoeft niet persé een duur merk (siemens/Liebherr) te zijn om gewoon goed spul te zijn.
Kijk even wat je 1 segmentje hoger dan Pelgrim kunt krijgen.
En bij Satink (want daar be je geweest zo te zien), is AEG voorraad spul.
En ik ga even kijken of ik een Pelgrim koelkast/vaatwasser ergens kan aanschouwen.
[ Voor 4% gewijzigd door Crescendo op 07-04-2022 09:27 ]
Zou ze inderdaad bekijken. Wij hebben pelgrim gehad en nu AEG en merk zelf weinig verschil. Ligt dus ook echt aan welke serie je hebt. We hadden in ons vorige (nieuwbouwhuis) een duurdere pelgrim waar we gewoon een positieve ervaring mee hadden. Zelfde wbt de oven. Later tijdelijk in een huurhuis gezeten met nieuw pelgrim apparatuur wat weer niet goed beviel.Crescendo schreef op donderdag 7 april 2022 @ 09:14:
[...]
Klopt de eigenaar is Satink. De zaak heet net anders: Keukenheren. Volgens mij is de Satink winkel inmiddels in andere handen. Neemt niet weg dat wat jij beschrijft ook een beetje mijn twijfel is. Ik zal in eerste instantie de bal eens bij ze terugleggen. Misschien toch maar de volledige AEG set erin stoppen.
En ik ga even kijken of ik een Pelgrim koelkast/vaatwasser ergens kan aanschouwen.
Klinkt als superlogisch. Kinderslot is niet openen; dan werkt auto-open dus ook niet.knights16 schreef op woensdag 6 april 2022 @ 14:51:
[...]
8<8<
Vind het jammer dat ik de kinderbeveiliging niet kan activeren in combinatie met automatisch openen van vaatwasser voor efficienter drogen van de vaat. Vaatwasser is push to open (die was het zuinigst) maar als je er tegenaan staat gaat die bij het minste al open. Dat kun je uitzetten (kinderbeveiling aanzetten) maar dan werkt het automatisch openen bij drogen niet (omdat dit een gevaar zou zijn voor kinder(handjes). Aldus NEFF klantenservice
Weet niet waarom jij die logica niet inziet, maar om dan de 'schuld' bij NEFF neer te leggen
Bericht hierboven
Dat is een halvering in geluidsdruk, dat is een enorme stap.rubenos schreef op woensdag 6 april 2022 @ 15:05:
[...]
Klinkt goed. We hebben nog de optie te upgraden naar de stilste Neff versie. Die zou max 41db moeten zijn tov 44db. Maar is wel een aardig prijsverschil.
Bericht hierboven
Groter is beter. Wij hebben nu een manshoge (niet-inbouw) en in de tijdelijke keuken zit een onderbouwmodel, dat is echt te klein. We nemen de vriezer vooralsnog mee en als de nieuwe keuken komt wordt deze binnen de familie verschoven. In de nieuwe keuken willen we zowel een manshoge koelkast als vriezer.Sport_Life schreef op woensdag 6 april 2022 @ 17:09:
Even vraagje tussendoor: welk formaat vriezer geeft jullie voorkeur? Eentje van 178cm is het mooiste naast de hoge koelkast, maar die verbruikt veel meer energie vergeleken met een 122cm model, verbruik is 40% hoger en ik denk dat we ook geen grote nodig hebben (ondanks groot gezin 5 leden). Hoe zien jullie dit?
Wij zijn maar met 3 thuis, dus het lijkt enorm overdreven allemaal ;-)
Maar de vriezer is ook voor langdurig opslag van wat spullen en de manier om spijkerbroeken schoon te krijgen.. Dus hij is redelijk gevuld
Bericht hierboven
Wat een shitverkoperSport_Life schreef op woensdag 6 april 2022 @ 17:51:
[...]
Alle apparatuur is van Neff.
Keukenleverancier adviseert 178cm omdat dat er mooier uitziet .
Als jij 122 of 140cm wilt, dan doe je dat. Het is aan hem/haar/het om dan je keuken alsnog prachtig te maken. En dat kan hij/zij/die doen door fronten te matchen. Ook als het achterliggende apparaat niet dezelfde hoogte heeft is dit absoluut mogelijk natuurlijk.
Bericht hierboven
Nee joh! Niet doen
Dat is deze en die heeft zowel geen standaard maat als ziet er buitengewoon cheap uit. Dat doet IMO echt onwijs afbreuk aan je keuken.
Ja een ander is duurder, maar ook groter en mooier. Je moet hier 10-15-20 jaar tegenaan kijken en als je hem ooit vervangt zit je met een incourante maat.
Bericht hierboven
Volledig off-topic, maaruh, wat??Floor-is schreef op donderdag 7 april 2022 @ 10:01:
[...]
Maar de vriezer is ook voor langdurig opslag van wat spullen en de manier om spijkerbroeken schoon te krijgen.. Dus hij is redelijk gevuld
Wij zijn ook maar met 3 en genoeg vriescapaciteit in de keuken. Hoe zet ik die in voor schone spijkerbroeken???? 🤔
Tussenstand van gisteren. Ongeveer 40% af.
:strip_exif()/f/image/nboJamVRKBVCmraIOLvbN4a2.jpg?f=fotoalbum_large)
Maar nu het slechte nieuws. Ik heb express niet een nieuwe vaatwasser en oven aangeschaft omdat die vrij nieuw waren (4-5 jaar oud) en destijds heb ik top of the line gekocht. De vaatwasser die ik al in beheer heb is een Bosch SBE68TX06E, geweldig apparaat en geen klachten. Maar in het ontwikkelen van de keuken heeft ASWA de verkeerde meting gebruikt. Resultaat: Huidige vaatwasser is te groot voor de ruimte. Echt echt balen.
ASWA heeft nog geen contact met me opgenomen. In het koop process heb ik niet veel onderhandeld, dus ik hoop als silver lining dat ze een heftige korting gaan geven op een vaatwasser die ze in voorraad hebben.
:strip_exif()/f/image/nboJamVRKBVCmraIOLvbN4a2.jpg?f=fotoalbum_large)
Maar nu het slechte nieuws. Ik heb express niet een nieuwe vaatwasser en oven aangeschaft omdat die vrij nieuw waren (4-5 jaar oud) en destijds heb ik top of the line gekocht. De vaatwasser die ik al in beheer heb is een Bosch SBE68TX06E, geweldig apparaat en geen klachten. Maar in het ontwikkelen van de keuken heeft ASWA de verkeerde meting gebruikt. Resultaat: Huidige vaatwasser is te groot voor de ruimte. Echt echt balen.
ASWA heeft nog geen contact met me opgenomen. In het koop process heb ik niet veel onderhandeld, dus ik hoop als silver lining dat ze een heftige korting gaan geven op een vaatwasser die ze in voorraad hebben.
1. Waarom de Pro3 Quooker?Crescendo schreef op woensdag 6 april 2022 @ 20:56:
Dag allen!
Ik ben ook bezig met een nieuwe keuken uitzoeken voor een nieuwbouwwoning en zit nu in het laatste stadium. De apparatuur. Momenteel zit dit erin:
Vaatwasser: Pelgrim GVW220L; https://www.pelgrim.nl/ap...alle-vaatwassers/gvw220l/
Oven: AEG BPK742380B
Koelkast: Pelgrim PCS24178L Low frost: https://www.pelgrim.nl/ap...iescombinaties/pcs24178l/
Inductieplaat: AEG IPE7454SFB
Afzuigkap: AEG DVE5971HB
En dan nog een Quooker PRO3.
Zoals velen hier in het topic, twijfel ik over de Pelgrim apparatuur. Ik hoef niet alles van een high-end merk, maar wil ook niet vaat die niet goed droog wordt. Ik neig nu naar onderkant segment Siemens vaatwassers als alternatief voor de Pelgrim. Voor de koelkast wellicht een onderkant Liebherr. Zou dit de moeite zijn om dit door te voeren? Of wordt dat lood om oud ijzer. Ik zou er max 300€ extra voor over hebben om beide Pelgrims te upgraden naar iets beters. Iemand suggesties? No-frost koelkast zou top zijn, maar is denk ik prijstechnisch niet haalbaar.
En voor het topic: een paar kiekjes van de keuken:
Edit: je ziet nu twee verschillende greepjes op de onderstaande foto’s, daar ben ik nog niet over uit welke ik wil..
[Afbeelding]
[Afbeelding]
[Afbeelding]
2. Als je meer richting premium wilt schuiven met je apparatuur: nooit het goedkoopste van een merk nemen. Op de een of andere manier -uitzonderingen daargelaten- zijn die altijd net niet.
3. Opstelling: heb je ruimte om je spoelbak in een 80 of 90 brede kast te plaatsen zonder de andere onderkasten te moeten wijzigen? Dan kan je die namelijk helemaal links plaatsen, aan de rechterkant van het kastje. Geeft je heel veel meer werkruimte
4. Wat zijn die kasten tegenover het werkblad, wat zit daar in? En zitten die ook in de offerte?
Bericht hierboven
J1981 schreef op donderdag 7 april 2022 @ 10:10:
[...]
Volledig off-topic, maaruh, wat??
Wij zijn ook maar met 3 en genoeg vriescapaciteit in de keuken. Hoe zet ik die in voor schone spijkerbroeken???? 🤔
offtopic:
Spijkerbroeken slijten onwijs in de was. Je hoeft ze helemaal niet (zo vaak) te wassen als iedereen denkt. Ik ken toevallig een paar jeans specialisten en mijn vrouw zit ook in de mode, allen zweren erbij dat als je je jeans lang goed wilt houden, je ze zo min mogelijk in de wasmachine stopt (en al helemaal niet in de droger!). Een snelle google levert oa de volgende hits FashionChick RTL ELLE jojo jeans op. Let wel: het doodt niet alle bacteriën, dus je moet af en toe wel wassen, maar echt veel minder vaak dan je nu waarschijnlijk doet.
Spijkerbroeken slijten onwijs in de was. Je hoeft ze helemaal niet (zo vaak) te wassen als iedereen denkt. Ik ken toevallig een paar jeans specialisten en mijn vrouw zit ook in de mode, allen zweren erbij dat als je je jeans lang goed wilt houden, je ze zo min mogelijk in de wasmachine stopt (en al helemaal niet in de droger!). Een snelle google levert oa de volgende hits FashionChick RTL ELLE jojo jeans op. Let wel: het doodt niet alle bacteriën, dus je moet af en toe wel wassen, maar echt veel minder vaak dan je nu waarschijnlijk doet.
Bericht hierboven
Members only:
Alleen zichtbaar voor ingelogde gebruikers.
Inloggen
Gave keuken hoor, wij hebben ongeveer dezelfde apparatuur gekozen en wilden ook totaal geen consessies daaraan doen. je gaat er vanaf dag 1 direct voordeel van hebben in het gebruik en comfort.millerman_sf schreef op donderdag 7 april 2022 @ 10:22:
***members only***
Meest uitgebreide modellen van koelkast en vriezer (Liebherr), wijnkoeler, goede Miele vaatwasser en stoomoven. We moesten wel voor 3 water toevoeren en 1 water afvoer laten zorgen. Dat ging bij ons helaas niet helemaal foutloos omdat het niet goed stond in de technische tekening die gemaakt was. De keukenleverancier had nog niet zo vaak met dit soort topmodellen gewerkt en was zich er niet helemaal van bewust dat hier aparte aansluitingen voor nodig waren.
We missen helaas alleen de koelkast nog, die wordt over een paar weken nageleverd en dan is de keuken echt af. Ik zal dan wat eindplaatjes hier neer zetten!
[ Voor 22% gewijzigd door ChUcKiE op 07-04-2022 12:09 ]
1. Uh omdat ik de andere kokendheet waterkranen net niet vond. Ik heb een warmtepomp op de 1e verdieping dus de quooker hoeft alleen voor kokend heet water te zorgen. Dat was mijn gedachte.Floor-is schreef op donderdag 7 april 2022 @ 10:13:
[...]
1. Waarom de Pro3 Quooker?
2. Als je meer richting premium wilt schuiven met je apparatuur: nooit het goedkoopste van een merk nemen. Op de een of andere manier -uitzonderingen daargelaten- zijn die altijd net niet.
3. Opstelling: heb je ruimte om je spoelbak in een 80 of 90 brede kast te plaatsen zonder de andere onderkasten te moeten wijzigen? Dan kan je die namelijk helemaal links plaatsen, aan de rechterkant van het kastje. Geeft je heel veel meer werkruimte
4. Wat zijn die kasten tegenover het werkblad, wat zit daar in? En zitten die ook in de offerte?
2. Oké dat is een goede tip. Dus dan zou ik gelijk wel wat meer kwijt zijn aan een goed alternatief van een beter merk, bedoel je dat?
3. Initieel wel, maar dan wordt mijn besteklade weer kleiner. Het is nu 60-60-60-1.00 meter. Nu zit de vaatwasser helemaal links en dat vind ik qua in en uitruimen wel ideaal.
4. Ja die zitten zeker in de offerte. Dat zijn 2 40/60 kasten. Waarvan eentje onderin nog lades heeft.
Ik geloof dat Superkeukens Zwolle zowel Pelgrim als AEG heeft. Dan ga ik daar wel even langs.Nuevocasa schreef op donderdag 7 april 2022 @ 09:32:
[...]
Zou ze inderdaad bekijken. Wij hebben pelgrim gehad en nu AEG en merk zelf weinig verschil. Ligt dus ook echt aan welke serie je hebt. We hadden in ons vorige (nieuwbouwhuis) een duurdere pelgrim waar we gewoon een positieve ervaring mee hadden. Zelfde wbt de oven. Later tijdelijk in een huurhuis gezeten met nieuw pelgrim apparatuur wat weer niet goed beviel.
Volgens mij zijn de Pelgrims die er nu inzitten niet de allerduurste. Koelkast is adviesprijs 1.089 en vaatwasser 989 op website Pelgrim. Als ik kijk in hun assortiment zit daar maar 1 niveau onder.
Ik vind een koelkast misschien nog wel te overzien, zolang het maar niet een rammelbak is. Vaatwasser is in mijn ogen iets waar best veel aan stuk kan gaan toch?
Ik snap NEFF wel alleen vind het jammer dat de functie beperkt is. Het is prima als het je er om gaat dat je bang bent voor vingers tussen de deur. Maar in mijn situatie: als je in de keuken staat ga je vaak automatisch tegen het aanrecht leunen en ook ietwat tegen de deur van de vaatwasser. Dan gaat die open en moeilijk doen. Ik had graag de mogelijkheid gehad om en kinderslot te activeren (tegen het onnodig openen van de vaatwasser) maar wel de drogingsfunctie. Ze hadden prima met een notificatie kunnen werken of je zeker weet dat je kinderslot wilt icm auto-open. Desnoods via de Home Connect.Floor-is schreef op donderdag 7 april 2022 @ 09:55:
[...]
Klinkt als superlogisch. Kinderslot is niet openen; dan werkt auto-open dus ook niet.
Weet niet waarom jij die logica niet inziet, maar om dan de 'schuld' bij NEFF neer te leggen
Ik wil dus eigenlijk geen kinderslot, ik wil een sta-tegen-de-vaatwasser-aan-slot.
Mag ik vragen om een opdeling in kosten?millerman_sf schreef op donderdag 7 april 2022 @ 10:22:
***members only***
Bericht hierboven
Zolang je beseft dat het 3 liter maximaal is en niet ook voor warm water zorgt is het prima!Crescendo schreef op donderdag 7 april 2022 @ 10:39:
[...]
1. Uh omdat ik de andere kokendheet waterkranen net niet vond. Ik heb een warmtepomp op de 1e verdieping dus de quooker hoeft alleen voor kokend heet water te zorgen. Dat was mijn gedachte.
Ik heb relatief weinig verstand van de specifieke merken en apparatuur. (Al zegt mijn karma-badge anders2. Oké dat is een goede tip. Dus dan zou ik gelijk wel wat meer kwijt zijn aan een goed alternatief van een beter merk, bedoel je dat?
Maar de hoge kasten zitten in een groot dik frame, dat kan minder dik wellicht? Als die dunner kunnen en je wint zeg 20cm, dan hoef je die andere kastjes niet aan te passen.3. Initieel wel, maar dan wordt mijn besteklade weer kleiner. Het is nu 60-60-60-1.00 meter. Nu zit de vaatwasser helemaal links en dat vind ik qua in en uitruimen wel ideaal.
Lades maken het duur, als je die niet verwacht veel te gebruiken kan je die eventueel schrappen. Dat bovenkastje met de klep boven de koelkast kan je eventueel ook één front van maken, scheelt ook weer iets.4. Ja die zitten zeker in de offerte. Dat zijn 2 40/60 kasten. Waarvan eentje onderin nog lades heeft.
Ben persoonlijk geen fan van wasemkappen, maar kostentechnisch denk ik wel de betere oplossing.
Bericht hierboven
Kijk, die vat ik! Eigenlijk zou je een soort 'double push' systeem willen: twee keer drukken om te openen ipv één keer. Dan gaat hij niet open als je er tegenaan staat/stootknights16 schreef op donderdag 7 april 2022 @ 10:45:
[...]
Ik snap NEFF wel alleen vind het jammer dat de functie beperkt is. Het is prima als het je er om gaat dat je bang bent voor vingers tussen de deur. Maar in mijn situatie: als je in de keuken staat ga je vaak automatisch tegen het aanrecht leunen en ook ietwat tegen de deur van de vaatwasser. Dan gaat die open en moeilijk doen. Ik had graag de mogelijkheid gehad om en kinderslot te activeren (tegen het onnodig openen van de vaatwasser) maar wel de drogingsfunctie. Ze hadden prima met een notificatie kunnen werken of je zeker weet dat je kinderslot wilt icm auto-open. Desnoods via de Home Connect.
Ik wil dus eigenlijk geen kinderslot, ik wil een sta-tegen-de-vaatwasser-aan-slot.
Bericht hierboven
Zeker, ik heb het er bij gezet om het centraal te houden!
Dank!millerman_sf schreef op donderdag 7 april 2022 @ 11:53:
[...]
Zeker, ik heb het er bij gezet om het centraal te houden!
Je laat het blad niet ‘waterval’ plaatsen toch? En wat doe je in het barretje? Dat ziet er uit als ander materiaal namelijk.
Heftig veel kosten voor de apparatuur, maar dat wisten we.
Als Interieurbouwer zou ik de kasten ook voor dat geld willen bouwen hoor! Poeh, lekkere opdracht
Bericht hierboven
Ja hoor dat besef is er. Warm water komt uit de boiler op de 1e verdieping.Floor-is schreef op donderdag 7 april 2022 @ 11:25:
[...]
Zolang je beseft dat het 3 liter maximaal is en niet ook voor warm water zorgt is het prima!
[...]
Ik heb relatief weinig verstand van de specifieke merken en apparatuur. (Al zegt mijn karma-badge anders) Maar zoals ik er naar kijk: goedkopere merken hebben in hun top best goede producten. Duurdere merken hebben in hun lagere segment ook prima producten, hoe meer je uitgeeft hoe meer foefjes en meer je kunt. Het goedkoopste van een duurder merk is niet per se beter dan het duurdere van een goedkoop merk. Maar als je kijkt naar een duurder merk, dan moet je niet helemaal onderaan in de rij beginnen.
[...]
Maar de hoge kasten zitten in een groot dik frame, dat kan minder dik wellicht? Als die dunner kunnen en je wint zeg 20cm, dan hoef je die andere kastjes niet aan te passen.
[...]
Lades maken het duur, als je die niet verwacht veel te gebruiken kan je die eventueel schrappen. Dat bovenkastje met de klep boven de koelkast kan je eventueel ook één front van maken, scheelt ook weer iets.
Ben persoonlijk geen fan van wasemkappen, maar kostentechnisch denk ik wel de betere oplossing.
Oké, dat is helder. Ik ga eerst zelf even op onderzoek uit, ga de SK winkel in Zwolle bezoeken en wie weet is die offerte wel dusdanig concurrerend dat er nog wat mogelijk is met een upgrade van de Pelgrim apparatuur.
Dat grote dikke frame kan helaas niet echt anders. Die eerste balk, direct rechts van de kookplaat is standaard in de woning en daar komt het leidingwerk in te zitten voor de 1e. verdieping. Omdat ik dat jammer vond van de ruimte in de keuken, heb ik besloten tot een soort passe partout, waarbij ik de oven en koelkast daar in bouw.
Ik snap de afweging met de lades, maar ik ben zelf tegen de twee meter. Ik maak anders echt geen gebruik van de kastjes onder aanrechthoogte. Lades is wat dat betreft ideaal. Sowieso vind ik lades veel overzichtelijker qua opruimen dan legplanken. Die prijs is het mij wel waard. Ja afzuigkappen denkt iedereen anders over. Ik vond de keuken anders te leeg ogen en het breekt een beetje de ruimte. Bovendien vind ik de modellen van AEG erg fraai.
Dank voor je tips/adviezen overigens!
[ Voor 4% gewijzigd door Crescendo op 07-04-2022 12:15 ]
Nee, blad alleen bovenop. Onder het bargedeelte komen waarschijnlijk tegeltjes die we ook in een kleine strook op de achterwand doen. Nog niet uitgezocht, maar waarschijnlijk zelliges.Floor-is schreef op donderdag 7 april 2022 @ 12:09:
[...]
Dank!
Je laat het blad niet ‘waterval’ plaatsen toch? En wat doe je in het barretje? Dat ziet er uit als ander materiaal namelijk.
Heftig veel kosten voor de apparatuur, maar dat wisten we.
Als Interieurbouwer zou ik de kasten ook voor dat geld willen bouwen hoor! Poeh, lekkere opdracht
Aan het schiereiland van mijn keuken staan ook 4 krukjes, vergelijkbaar met jouw ontwerp.millerman_sf schreef op donderdag 7 april 2022 @ 10:22:
***members only***
We maken daar ook heel veel gebruik van.
Bij mij is het eiland 110cm breed en de lengte aan de lange kant is 135cm.
Voor 4 krukjes moet het m.i. echt niet veel minder zijn.
@Luuk97 Ik zie dat de tekening nog 100cm zegt, maar dat wordt inderdaad ook 110cm!
@millerman_sf Zet je de kookplaat er ook gelijk bij
Miele?
Mooie keuken, je eerdere post stond ook al een tijdje bij mn favorieten.
Ik heb eenzelfde budget voor de keuken, maar dan incl erker en nieuwe vloer + verwarming
Mooie keuken, je eerdere post stond ook al een tijdje bij mn favorieten.
Ik heb eenzelfde budget voor de keuken, maar dan incl erker en nieuwe vloer + verwarming
Geen halvering voor het menselijke oor.Floor-is schreef op donderdag 7 april 2022 @ 09:56:
[...]
Dat is een halvering in geluidsdruk, dat is een enorme stap.
Ah, dat wist ik niet. Hoeveel scheelt het voor het menselijk oor?bottom line schreef op donderdag 7 april 2022 @ 14:56:
[...]
Geen halvering voor het menselijke oor.
Check, Bora Puxu!mitsumark schreef op donderdag 7 april 2022 @ 14:40:
@millerman_sf Zet je de kookplaat er ook gelijk bijMiele?
Mooie keuken, je eerdere post stond ook al een tijdje bij mn favorieten.
Ik heb eenzelfde budget voor de keuken, maar dan incl erker en nieuwe vloer + verwarming
3dB verschil is inderdaad een verdubbeling / halvering van de geluidsdruk, maar qua om voor het waargenomen volume een verdubbeling / halvering te bewerkstelligen wordt meestal rond de 10dB gerekend.knights16 schreef op donderdag 7 april 2022 @ 15:13:
[...]
Ah, dat wist ik niet. Hoeveel scheelt het voor het menselijk oor?
Dus 3dB zal merkbaar zijn maar geen zeker geen halvering.
Wat die lades betreft: ik wilde aangeven dat daar wellicht nog een heel klein beetje ruimte ligt.Crescendo schreef op donderdag 7 april 2022 @ 12:10:
[...]
Ja hoor dat besef is er. Warm water komt uit de boiler op de 1e verdieping.
Oké, dat is helder. Ik ga eerst zelf even op onderzoek uit, ga de SK winkel in Zwolle bezoeken en wie weet is die offerte wel dusdanig concurrerend dat er nog wat mogelijk is met een upgrade van de Pelgrim apparatuur.
Dat grote dikke frame kan helaas niet echt anders. Die eerste balk, direct rechts van de kookplaat is standaard in de woning en daar komt het leidingwerk in te zitten voor de 1e. verdieping. Omdat ik dat jammer vond van de ruimte in de keuken, heb ik besloten tot een soort passe partout, waarbij ik de oven en koelkast daar in bouw.
Ik snap de afweging met de lades, maar ik ben zelf tegen de twee meter. Ik maak anders echt geen gebruik van de kastjes onder aanrechthoogte. Lades is wat dat betreft ideaal. Sowieso vind ik lades veel overzichtelijker qua opruimen dan legplanken. Die prijs is het mij wel waard. Ja afzuigkappen denkt iedereen anders over. Ik vond de keuken anders te leeg ogen en het breekt een beetje de ruimte. Bovendien vind ik de modellen van AEG erg fraai.
Dank voor je tips/adviezen overigens!
En graag gedaan man!
Bericht hierboven
Dan is dat blad wel aan de prijs. Kijk even op 123werkbladen of Steenproject en tel een percentage op bij de prijzen die ze daar (voor alleen het blad en de afwerking) rekenen.millerman_sf schreef op donderdag 7 april 2022 @ 13:35:
[...]
Nee, blad alleen bovenop. Onder het bargedeelte komen waarschijnlijk tegeltjes die we ook in een kleine strook op de achterwand doen. Nog niet uitgezocht, maar waarschijnlijk zelliges.
Wij gaan voor een eiland van 360x110 met waterval én bookmatch, in verstek. Met daarbij nog een 120x60 deel en zijn goedkoper uit. Mind you: die kopse kanten zijn >€800 per kant en het bookmatchen+verstek is ook €1400-ish. Plaatsen zit er in mijn kosten ook bij..
Tegeltjes in de bar, ik weet niet of ik dat zou doen. Misschien wel de kleur van de fronten laten terugkomen (die contrasterende) in de bar zelf.
Hoe snel gaan ze leveren?
Bericht hierboven
Wij gaan er 3 doen op nèt geen 180cm..Luuk97 schreef op donderdag 7 april 2022 @ 13:55:
[...]
Aan het schiereiland van mijn keuken staan ook 4 krukjes, vergelijkbaar met jouw ontwerp.
We maken daar ook heel veel gebruik van.
Bij mij is het eiland 110cm breed en de lengte aan de lange kant is 135cm.
Voor 4 krukjes moet het m.i. echt niet veel minder zijn.
Bericht hierboven
Ik heb dat niet echt goed onthouden uit mijn natuurkundeles zie ik. Net even nagezocht en 3dB is weliswaar hoorbaar, maar niet echt goed. 5dB is goed waarneembaar.Mj2sL schreef op donderdag 7 april 2022 @ 15:43:
[...]
3dB verschil is inderdaad een verdubbeling / halvering van de geluidsdruk, maar qua om voor het waargenomen volume een verdubbeling / halvering te bewerkstelligen wordt meestal rond de 10dB gerekend.
Dus 3dB zal merkbaar zijn maar geen zeker geen halvering.
Thanks voor de aanvulling (ook jij @bottom line)
Bericht hierboven
Wij wilden een keukeneiland van 100cm breed, maar op de offerte stond 120cm breed. Geen probleem, zei de verkoper, dit wordt aangepast na het inmeten en dan valt de prijs zelfs goedkoper uit (want werkblad wordt zo natuurlijk een kleiner formaat).
Eilandformaat is inmiddels aangepast, maar het valt dus blijkbaar NIET goedkoper uit. Verklaring: dit is een Dekton-blad Dekker-blad en zij leveren standaard 120 breed. Wil je kleiner dan 120, dan kost het juist meer moeite en dus is het sowieso niet goedkoper.
Ik vind het maar raar hoor. Weten jullie hier misschien meer over, klopt dat over Dekton Dekton?
(En zo zijn er nog 2 andere factoren die aangepast moeten worden naar kleiner formaat of zelfs weggelaten moeten worden. En ook daar wordt de totaalprijs niet lager door.)
Eilandformaat is inmiddels aangepast, maar het valt dus blijkbaar NIET goedkoper uit. Verklaring: dit is een Dekton-blad Dekker-blad en zij leveren standaard 120 breed. Wil je kleiner dan 120, dan kost het juist meer moeite en dus is het sowieso niet goedkoper.
Ik vind het maar raar hoor. Weten jullie hier misschien meer over, klopt dat over Dekton Dekton?
(En zo zijn er nog 2 andere factoren die aangepast moeten worden naar kleiner formaat of zelfs weggelaten moeten worden. En ook daar wordt de totaalprijs niet lager door.)
Uhmmm, ik vind het een raar verhaal. Uit Dekton FAQBlackgold schreef op donderdag 7 april 2022 @ 16:54:
Wij wilden een keukeneiland van 100cm breed, maar op de offerte stond 120cm breed. Geen probleem, zei de verkoper, dit wordt aangepast na het inmeten en dan valt de prijs zelfs goedkoper uit (want werkblad wordt zo natuurlijk een kleiner formaat).
Eilandformaat is inmiddels aangepast, maar het valt dus blijkbaar NIET goedkoper uit. Verklaring: dit is een Dekton-blad en zij leveren standaard 120 breed. Wil je kleiner dan 120, dan kost het juist meer moeite en dus is het sowieso niet goedkoper.
Ik vind het maar raar hoor. Weten jullie hier misschien meer over, klopt dat over Dekton?
(En zo zijn er nog 2 andere factoren die aangepast moeten worden naar kleiner formaat of zelfs weggelaten moeten worden. En ook daar wordt de totaalprijs niet lager door.)
Zo'n plaat moet dus gewoon bewerkt worden en randafwerking krijgen.Dekton wordt aangeboden in platen van 320 x 144cm ....
Vaak werkt de prijs van bladen als volgt
1) prijs per strekkende meter, uitgaande van 60cm diep
2) meerprijs voor extra diepte per X aantal CM (soms per CM soms in bandbreedtes)
3) Dikte blad
4) randafwerking
Heb ook wel eens prijs per m2 voorbij zien komen.
Onze keuken is een paar weken geleden geplaatst.
We hebben een mooi keramisch blad, en van hetzelfde materiaal ook de vensterbank en randje rond / achter het werkblad. gisteren is dat allemaal geplaatst, maar... De vensterbank was er helemaal uit genomen, en de ondergrond wat ruw/oneven (nieuwe kozijnen geplaatst, oude vensterbank er uit en zo laag mogelijk uitgekapt). Aangezien ze alles gewoon zouden vastplakken met kit, ging dat hem dus niet worden.
Uiteindelijk besloten om hem maar waterpas te stellen met vulplaatjes en alles op te vullen / plakken met PUR (van van de kozijnen, een variant die nauwelijks extra uitzet). Helaas is die wel wata uitgezet en heeft alles een milimeter omhoog getrokken, kitrandje weer los
Gelukkig moeten ze nog een keer terugkomen om de Neff ovens te plaatsen.
Keuken gekocht begin september. Plaatsing midden februari. Momenteel is het alweer april en de keukenzaak en zijn contacten bij Neff zelf hebben werkelijk geen idee wanneer iets geleverd gaat worden. 7 maanden en nog geen idee van levertijd
Gelukkig hebben we een combimagnetron uit de oude keuken bewaard cq nu ingebouwd, maar die haalt het toch niet bij gewoon een fatsoenlijke (stoom) hetelucht oven...
We hebben een mooi keramisch blad, en van hetzelfde materiaal ook de vensterbank en randje rond / achter het werkblad. gisteren is dat allemaal geplaatst, maar... De vensterbank was er helemaal uit genomen, en de ondergrond wat ruw/oneven (nieuwe kozijnen geplaatst, oude vensterbank er uit en zo laag mogelijk uitgekapt). Aangezien ze alles gewoon zouden vastplakken met kit, ging dat hem dus niet worden.
Uiteindelijk besloten om hem maar waterpas te stellen met vulplaatjes en alles op te vullen / plakken met PUR (van van de kozijnen, een variant die nauwelijks extra uitzet). Helaas is die wel wata uitgezet en heeft alles een milimeter omhoog getrokken, kitrandje weer los
Gelukkig moeten ze nog een keer terugkomen om de Neff ovens te plaatsen.
Keuken gekocht begin september. Plaatsing midden februari. Momenteel is het alweer april en de keukenzaak en zijn contacten bij Neff zelf hebben werkelijk geen idee wanneer iets geleverd gaat worden. 7 maanden en nog geen idee van levertijd
Gelukkig hebben we een combimagnetron uit de oude keuken bewaard cq nu ingebouwd, maar die haalt het toch niet bij gewoon een fatsoenlijke (stoom) hetelucht oven...
BThGvNeOA
Bond Tegen het Gebruik van Nutteloze en Onbekende Afkortingen!
Gewoon uitschrijven wat je bedoelt is zo moeilijk niet... PR (persoonlijk record?), ICE/M/A (verbrandingsmotor?), kdv (kinderdagverblijf), DA (dierenarts?)etc...,
Ik heb me versproken, het is Dekker ipv Dekton.SquareOne schreef op donderdag 7 april 2022 @ 17:05:
[...]
Uhmmm, ik vind het een raar verhaal. Uit Dekton FAQ
[...]
Zo'n plaat moet dus gewoon bewerkt worden en randafwerking krijgen.
Vaak werkt de prijs van bladen als volgt
1) prijs per strekkende meter, uitgaande van 60cm diep
2) meerprijs voor extra diepte per X aantal CM (soms per CM soms in bandbreedtes)
3) Dikte blad
4) randafwerking
Heb ook wel eens prijs per m2 voorbij zien komen.
Een 'dekker' werkblad bestaat niet. Zij zijn een leverancier van werkbladen.Blackgold schreef op donderdag 7 april 2022 @ 17:21:
[...]
Ik heb me versproken, het is Dekker ipv Dekton.
Wat voor type blad heb je?
https://www.dekkerzevenhuizen.nl/keuken/keukenbladen
Ik zie bij beide sites niet de juiste kleur, dus geen idee in welke prijsgroep het valt. Het zal ongetwijfeld wel iets voordeliger kunnen, maar we hebben wel veel vertrouwen in deze partij en wat ze opleveren. Dat vind ik prima wat waard.Floor-is schreef op donderdag 7 april 2022 @ 15:53:
[...]
Dan is dat blad wel aan de prijs. Kijk even op 123werkbladen of Steenproject en tel een percentage op bij de prijzen die ze daar (voor alleen het blad en de afwerking) rekenen.
Wij gaan voor een eiland van 360x110 met waterval én bookmatch, in verstek. Met daarbij nog een 120x60 deel en zijn goedkoper uit. Mind you: die kopse kanten zijn >€800 per kant en het bookmatchen+verstek is ook €1400-ish. Plaatsen zit er in mijn kosten ook bij..
Tegeltjes in de bar, ik weet niet of ik dat zou doen. Misschien wel de kleur van de fronten laten terugkomen (die contrasterende) in de bar zelf.
Hoe snel gaan ze leveren?
Nog meer hout erbij wordt denk ik teveel massief hout. Zeker aan de voorzijde waar we kastjes hebben ipv lades. Door dezelfde tegeltjes te doen als de achterwand, verbinden we die juist weer en breekt het net weer een beetje. Het mag wel spannend zijn, zonder dat het over de top gaat. Maar dat is smaakgevoelig denk ik.
Hopelijk over een maand de sleutels van het huis, dan nog een hoop laten klussen en wat marge. We verwachten de keuken in september.
Pff ben echt een noob. Deze heb ik: https://www.dekkerzevenhu...oir-polished-_z1.312-noirSquareOne schreef op donderdag 7 april 2022 @ 18:13:
[...]
Een 'dekker' werkblad bestaat niet. Zij zijn een leverancier van werkbladen.
Wat voor type blad heb je?
https://www.dekkerzevenhuizen.nl/keuken/keukenbladen
Wat betreft 3 en 4. Ik kreeg te horen dikker = goedkoper.SquareOne in "Het Grote Keuken topic: verkopers, kwaliteit, prijs - Deel 3"
Zo'n plaat moet dus gewoon bewerkt worden en randafwerking krijgen.
Vaak werkt de prijs van bladen als volgt
1) prijs per strekkende meter, uitgaande van 60cm diep
2) meerprijs voor extra diepte per X aantal CM (soms per CM soms in bandbreedtes)
3) Dikte blad
4) randafwerking
Heb ook wel eens prijs per m2 voorbij zien komen.
4 Heb geen randafwerking (=facet) gekozen voor 2 cm. Verkoper gaf aan dat verstek niet handig was bij keramiek. Heb je bij 2 cm altijd zonder randafwerking?
Even een update. Nooit iets van ASWA gehoord vandaag. Vanavond nog een mail gestuurd met de algemene directeur in de CC naar de “nieuwe” verkoper want het blijkt dat mijn verkoopster niet meer in dienst is.TheMoonMan schreef op donderdag 7 april 2022 @ 10:10:
Tussenstand van gisteren. Ongeveer 40% af.
[Afbeelding]
Maar nu het slechte nieuws. Ik heb express niet een nieuwe vaatwasser en oven aangeschaft omdat die vrij nieuw waren (4-5 jaar oud) en destijds heb ik top of the line gekocht. De vaatwasser die ik al in beheer heb is een Bosch SBE68TX06E, geweldig apparaat en geen klachten. Maar in het ontwikkelen van de keuken heeft ASWA de verkeerde meting gebruikt. Resultaat: Huidige vaatwasser is te groot voor de ruimte. Echt echt balen.
ASWA heeft nog geen contact met me opgenomen. In het koop process heb ik niet veel onderhandeld, dus ik hoop als silver lining dat ze een heftige korting gaan geven op een vaatwasser die ze in voorraad hebben.
Ik ben niet onder de indruk van de service van ASWA op dit moment. Zeker na €32.500 aan uitgave waar er weinig onderhandeld is.
Ik ben ongeveer een half jaar mee aan het lezen op dit forum en ben nu aangekomen op het punt dat ik offertes aan het opvragen ben bij verschillende keukenzaken.
Zo zijn we bij Kitchen Concepts in Breda terecht gekomen, goed geholpen en een prettige beleving t.o.v. een DMG keukenzaak.
Wij hebben een opstelling laten uitwerken en ben benieuwd wat jullie er van denken qua indeling, tips zijn welkom.
Tegen de wand hebben we een hoge kastenwand (maatwerk) de frontjes zijn (zwart hout-look) merk en type weet ik niet.
Het eiland is van mat-zwart Fenix met een kwarts-composiet blad.
Apparatuur is Quooker, Bora en Bosch.
:fill(white):strip_exif()/f/image/KKzrsINWQH3nfX2AcOvbFHRR.png?f=user_large)
Zo zijn we bij Kitchen Concepts in Breda terecht gekomen, goed geholpen en een prettige beleving t.o.v. een DMG keukenzaak.
Wij hebben een opstelling laten uitwerken en ben benieuwd wat jullie er van denken qua indeling, tips zijn welkom.
Tegen de wand hebben we een hoge kastenwand (maatwerk) de frontjes zijn (zwart hout-look) merk en type weet ik niet.
Het eiland is van mat-zwart Fenix met een kwarts-composiet blad.
Apparatuur is Quooker, Bora en Bosch.
:fill(white):strip_exif()/f/image/KKzrsINWQH3nfX2AcOvbFHRR.png?f=user_large)
Members only:
Alleen zichtbaar voor ingelogde gebruikers.
Inloggen
[ Voor 5% gewijzigd door Fnkdlx op 08-04-2022 14:44 ]
Vandaag ben ik langsgeweest bij ASWA keukens. Prettig gesprek gehad met de verkoper en een mooie opstelling voor de keuken. Werd meteen aangegeven dat als we alle apparatuur van Siemens zouden pakken we 40% korting zouden krijgen op de apparatuur. Verkoper gaf hierbij aan dat dit ook meteen direct de laagst mogelijke prijs was.
Wat is jullie ervaring met ASWA? Is er nog ruimte om te onderhandelen? Huidige keukenopstelling komt uit op €18.500 met o.a.:
Wat is jullie ervaring met ASWA? Is er nog ruimte om te onderhandelen? Huidige keukenopstelling komt uit op €18.500 met o.a.:
- Quooker
- Inductie met ingebouwde afzuiging
- Combi-oven
- Koelkast
- Vaatwasser
- Composiet werkblad
- Silverline kastjes
Vager dan dit kan bijna niet.Pascal1994 schreef op vrijdag 8 april 2022 @ 17:05:
Vandaag ben ik langsgeweest bij ASWA keukens. Prettig gesprek gehad met de verkoper en een mooie opstelling voor de keuken. Werd meteen aangegeven dat als we alle apparatuur van Siemens zouden pakken we 40% korting zouden krijgen op de apparatuur. Verkoper gaf hierbij aan dat dit ook meteen direct de laagst mogelijke prijs was.
Wat is jullie ervaring met ASWA? Is er nog ruimte om te onderhandelen? Huidige keukenopstelling komt uit op €18.500 met o.a.:We hebben volgende week nog een afspraak staan bij NUVA.
- Quooker
- Inductie met ingebouwde afzuiging
- Combi-oven
- Koelkast
- Vaatwasser
- Composiet werkblad
- Silverline kastjes
Welke lijn van Siemens? Er zit een paar duizend verschil in IQ100-300 en IQ700
• Inductie met ingebouwde afzuiging
• Combi-oven
• Koelkast
• Vaatwasser
Welke prijsgroep?
• Composiet werkblad
• Silverline kastjes
Ging me ook meer om de algemene ervaring met onderhandelen bij ASWA, maar ik snap je punt.Source90 schreef op vrijdag 8 april 2022 @ 17:54:
[...]
Vager dan dit kan bijna niet.
Welke lijn van Siemens? Er zit een paar duizend verschil in IQ100-300 en IQ700
• Inductie met ingebouwde afzuiging
• Combi-oven
• Koelkast
• Vaatwasser
Welke prijsgroep?
• Composiet werkblad
• Silverline kastjes
Gaat volgens mij om de hoogste prijsgroep voor werkblad (Bianco Arabecasto 5141 Caesarstone).
Combi-oven is IQ700, overige apparatuur IQ500.
Geen idee wat de prijsgroep is van de keukenkastjes. Zie alleen X-MP en A staan. Gaat om kunststof greeploze kastjes.
Kijk even naar de reacties van @TheMoonMan (letterlijk een paar posts boven jouwe staat er nog 1).Pascal1994 schreef op vrijdag 8 april 2022 @ 17:05:
Vandaag ben ik langsgeweest bij ASWA keukens. Prettig gesprek gehad met de verkoper en een mooie opstelling voor de keuken. Werd meteen aangegeven dat als we alle apparatuur van Siemens zouden pakken we 40% korting zouden krijgen op de apparatuur. Verkoper gaf hierbij aan dat dit ook meteen direct de laagst mogelijke prijs was.
Wat is jullie ervaring met ASWA? Is er nog ruimte om te onderhandelen? Huidige keukenopstelling komt uit op €18.500 met o.a.:We hebben volgende week nog een afspraak staan bij NUVA.
- Quooker
- Inductie met ingebouwde afzuiging
- Combi-oven
- Koelkast
- Vaatwasser
- Composiet werkblad
- Silverline kastjes
Maar n=1, dus zoek ook gewoon even op ASWA in dit topic...
Siemens aanraden in deze tijden is sowieso raar, die zijn simpelweg niet leverbaar.
Je kan er donder op zeggen dat ze dan straks zeggen dat het niet leverbaar is, en een alternatief voorstellen tegen een (forse) meerprijs. Kies maar.
Nuva is volgens mij DMG, rekening mee houden wat betreft taktiek.
Als je op de eerste dag gelijk overgehaald wordt om te tekenen met 20-30% korting weet je genoeg, dan is er meer korting mogelijk
[ Voor 4% gewijzigd door mitsumark op 08-04-2022 18:17 ]
Thanks! Had inderdaad al op ASWA gezocht binnen dit topic, maar echt concrete voorbeelden van onderhandelruimte waren toch alweer een aantal jaar geleden. Met de lastige leverbaarheid van apparatuur en grondstoffen kan ik me voorstellen dat dit nu bijvoorbeeld heel anders is dan een paar jaar/maanden geleden.mitsumark schreef op vrijdag 8 april 2022 @ 18:13:
[...]
Kijk even naar de reacties van @TheMoonMan (letterlijk een paar posts boven jouwe staat er nog 1).
Maar n=1, dus zoek ook gewoon even op ASWA in dit topic...
Siemens aanraden in deze tijden is sowieso raar, die zijn simpelweg niet leverbaar.
Je kan er donder op zeggen dat ze dan straks zeggen dat het niet leverbaar is, en een alternatief voorstellen tegen een (forse) meerprijs. Kies maar.
Nuva is volgens mij DMG, rekening mee houden wat betreft taktiek.
Als je op de eerste dag gelijk overgehaald wordt om te tekenen met 20-30% korting weet je genoeg, dan is er meer korting mogelijk
Mijn werkgever werkt voor BSH Group, waardoor we met persooneelskorting kunnen inkopen. Scheelt al flink op de consumentenprijzen, maar prijzen van ASWA zaten daar toch nog wat onder. Viel me inderdaad wel op dat inderdaad vrijwel niets leverbaar was.
Thanks voor het advies wat betreft Nuva. Hoorde al van meerdere hoeken dat daar in ieder geval wel het een en ander mogelijk is qua onderhandelen. Direct tekenen ben ik sowieso niet van. Slaap liever een nachtje over een uitgave van bijna 20k.
[ Voor 8% gewijzigd door Pascal1994 op 08-04-2022 18:34 ]
Prachtige keuken @knights16 en een hele mooie kleur!knights16 schreef op woensdag 6 april 2022 @ 12:47:
Na een jaar hier rondgeneusd te hebben in dit topic zijn we 'soort van' klaar met onze verbouwing incl. keuken.
Als ik het plafond zie, neem ik aan dat de ombouw van de hoge kasten al gerealiseerd was. Hoe heb je dat gemaakt en hoe zorg je voor de juiste maatvoering?
Mijn huis is slimmer dan ik...
Wellicht een stomme vraag, maar onderhandelen bij Nolte en Bruynzeel, zijn dat zaken waar je dat "moet" doen om een goede prijs te krijgen of zijn het al meer netto zaken?
Ik heb zelf een afzuigkap van Novy en kwam van een Bosch kap (type weet ik niet meer, zal geen heel dure geweest zijn). Dat was een wereld van verschil.tvdo schreef op woensdag 6 april 2022 @ 15:13:
[...]
Sorry voor t reposten, maar zoek met name naar iemand met een tip over de afzuigkap. Heeft iemand een goede stille vervanging voor de atag die wij op t oog hadden?
Die Bosch ging nooit verder dan stand 1 vanwege de herrie (en ik ben serieus slechthorend) en de Novy maakt nog niet eens zoveel herrie in standje orkaan. Als je op zoek bent naar een goede, stille en makkelijk te onderhouden afzuigkap, dan zijn de kappen van Novy echt een aanrader.
Novy is/was ook van Itho, een gerenomeerd merk in ventilatietechniek.
Groot genoeg voor 2 hoofdletters
Hm, wij hebben net een Bosch besteld...PaT schreef op zaterdag 9 april 2022 @ 08:38:
[...]
Ik heb zelf een afzuigkap van Novy en kwam van een Bosch kap (type weet ik niet meer, zal geen heel dure geweest zijn). Dat was een wereld van verschil.
Die Bosch ging nooit verder dan stand 1 vanwege de herrie (en ik ben serieus slechthorend) en de Novy maakt nog niet eens zoveel herrie in standje orkaan. Als je op zoek bent naar een goede, stille en makkelijk te onderhouden afzuigkap, dan zijn de kappen van Novy echt een aanrader.
Novy is/was ook van Itho, een gerenomeerd merk in ventilatietechniek.
Eens kijken of ik deze nog kan switchen...
Alhoewel, ik heb een kookplaat met afzuiging, niet een afzuigkap.
Iemand ervaring met de kookplaten met afzuiging van Bosch en het geluid?
[ Voor 9% gewijzigd door louzy82 op 09-04-2022 09:47 ]
Louzy#2475
Laat je niet gek maken door mijn reactie. Ik vergelijk dan ook een Bosch uit de lagere lijn uit 2009 met een bijna top of the line Novy uit 2019. Er zal vast veel verbeterd zijn in die jaren.louzy82 schreef op zaterdag 9 april 2022 @ 09:46:
[...]
Hm, wij hebben net een Bosch besteld...
Eens kijken of ik deze nog kan switchen...
Alhoewel, ik heb een kookplaat met afzuiging, niet een afzuigkap.
Iemand ervaring met de kookplaten met afzuiging van Bosch en het geluid?
Los daarvan heeft mijn moeder een Miele met veldafzuiging uit 2020 en die vind ik wel echt te lawaaiig voor het geld wat je er voor betaalt.
Groot genoeg voor 2 hoofdletters
Van de keuken zaak de exacte maatvoering gekregen en de aannemer gevraagd dat te realiseren. Wat ze bij ons deden was een houten plank maken op exact die diameter zodat de stucadoor continu kan checken of die goed zit. Hoe het precies gemaakt is weet ik niet meer. In ieder geval met 18mm multiplex, gipsplaten en stuc.Conrado schreef op vrijdag 8 april 2022 @ 21:17:
[...]
Prachtige keuken @knights16 en een hele mooie kleur!
Als ik het plafond zie, neem ik aan dat de ombouw van de hoge kasten al gerealiseerd was. Hoe heb je dat gemaakt en hoe zorg je voor de juiste maatvoering?
Ik quote wederom mijzelf even. Iemand al ervaring met prijsstijgingen? En hoe gaan jullie leveranciers hier mee om?JWWhisky schreef op woensdag 23 februari 2022 @ 19:43:
[...]
Ik quote mijzelf even. Naar aanleiding van jullie feedback zijn we verder gegaan en hebben we gekeken bij een andere leverancier. Opstelling nagenoeg hetzelfde.
Grote verschillen: van AEG naar Siemens apparatuur, extra oven, van houtfineer naar kunstof, toevoeging apothekerskast, eiland 1.20 (in plaatsvan 1.00) en voor ons heel belangrijk een plint van 10cm (bij de andere was dit 16,5cm). Ook is het lijnenspel strakker naar ons idee.
Keukenmeubels:
Merk: Keller
Kleur: Espresso eiken Verticaal
Korpus: Grafiet
Voornamelijk greeploos. Hoge kasten push-to-open
Apparatuur:
Koelkast: Siemens IQ500 KI31RSDF0
Vriezer: Siemens IQ500 GI11VADE0
Oven met stoom: Siemens IQ700 CS856GNB7
Oven met magnetron: Siemens IQ700 CM836GNB6
Vaatwasser: Siemens IQ300 SX73H800BE
Kookplaat: BORA PURE
Kraan: Quooker PRO3 messing patina
Werkblad:
Jetstone werkblad composiet 12 mm Cloudburst Concrete Satin (4011 Caesarstone)
***members only***
Al met al 3.3K duurder. Voor het gevoel wel 'meer' keuken. Wat vinden jullie van dit aangepaste ontwerp en de prijs?
Plaatjes:
[Afbeelding]
[Afbeelding]
[Afbeelding]
Wij zitten in de afrondende fase voor het zetten van de handtekening voor onze keuken. Maar kregen te horen dat we nog niet konden tekenen. Ze gaan de prijzen met XX% verhogen om zich in te dekken tegen de prijsstijgingen. Hoeveel de verhoging exact wordt horen wij binnenkort. Wij kijken naar levering Q3/Q4 2023.
Balen
Puurschotland.nl - Alles over Schotland en whisky
Wat is jullie mening als ik zou moeten kiezen tussen een Schüller en een Pronorm?
Met name kwaliteit
Met name kwaliteit
Voor iedereen die het eerder heeft gevraagd, ik heb de proef op de som genomen over onderhandelen bij netto zaken.
Bij Bruynzeel is het niet onmogelijk, maar wel erg lastig. Ze boden eerst een pannenset t.w.v. 300 euro aan, maar uiteindelijk hebben ze 300 euro korting gegeven om de verkoop rond te maken. Dat was zo'n 2.5% korting (keuken van 12-13k). Ik heb hier wel lang over moeten onderhandelen. Laten weten dat je toch wel erg twijfelt en vervolgens 2 dagen hun telefoontjes ontwijken helpt
Bij Superkeukens gaat het ietsje makkelijker. Ze kwamen daar meteen met een leuke afronding van de prijs (zo'n 400 euro omlaag), al moet ik zeggen dat ze daarmee uitkwamen op een vergelijkbare prijs als Bruynzeel vóór korting. Uiteindelijk niet verder onderhandeld hier (we vonden de keuken bij Bruynzeel net iets leuker), maar ik denk dat we er nog wel 200-300 euro vanaf hadden kunnen krijgen. Toch denk ik dat je ook bij Superkeukens niet meer dan 5% korting krijgt op het bedrag wat ze initieel noemen, als je in het midden of laagsegment zit.
Bij beiden kreeg ik de Quooker er niet bijgeluld. Ik denk echter dat dit wel moet kunnen als je een keuken van 25k+ koopt, maar helaas niet in onze prijscategorie. Al met al zijn de prijzen behoorlijk netto bij beide zaken, maar kun je nog wel een paar honderd euro schrapen.
Dit in scherp contrast met de zaken van de Mandemakers groep. Hier minder prettigere ervaringen mee, er wordt daar eerst over het budget gesproken en vervolgens zoeken ze daar een keuken bij. Volgens de verkoper was er geen betere apparatuur te vinden dan Whirlpool. Het eerste bod wat ze doen voor de kwaliteit is belachelijk. Er wordt direct 25% korting geboden en bij de eerste moeilijke blik nog eens 15% (uiteraard alleen die dag nog geldig). Ik denk dat je daar met gemak 50% korting kan krijgen van de eerste prijs, maar zelfs dan nog zou ik mijn vingers natellen na het handen schudden. Ga daar niet heen als een beetje meegaand bent of er niet al te veel verstand van hebt.
Bij Bruynzeel is het niet onmogelijk, maar wel erg lastig. Ze boden eerst een pannenset t.w.v. 300 euro aan, maar uiteindelijk hebben ze 300 euro korting gegeven om de verkoop rond te maken. Dat was zo'n 2.5% korting (keuken van 12-13k). Ik heb hier wel lang over moeten onderhandelen. Laten weten dat je toch wel erg twijfelt en vervolgens 2 dagen hun telefoontjes ontwijken helpt
Bij Superkeukens gaat het ietsje makkelijker. Ze kwamen daar meteen met een leuke afronding van de prijs (zo'n 400 euro omlaag), al moet ik zeggen dat ze daarmee uitkwamen op een vergelijkbare prijs als Bruynzeel vóór korting. Uiteindelijk niet verder onderhandeld hier (we vonden de keuken bij Bruynzeel net iets leuker), maar ik denk dat we er nog wel 200-300 euro vanaf hadden kunnen krijgen. Toch denk ik dat je ook bij Superkeukens niet meer dan 5% korting krijgt op het bedrag wat ze initieel noemen, als je in het midden of laagsegment zit.
Bij beiden kreeg ik de Quooker er niet bijgeluld. Ik denk echter dat dit wel moet kunnen als je een keuken van 25k+ koopt, maar helaas niet in onze prijscategorie. Al met al zijn de prijzen behoorlijk netto bij beide zaken, maar kun je nog wel een paar honderd euro schrapen.
Dit in scherp contrast met de zaken van de Mandemakers groep. Hier minder prettigere ervaringen mee, er wordt daar eerst over het budget gesproken en vervolgens zoeken ze daar een keuken bij. Volgens de verkoper was er geen betere apparatuur te vinden dan Whirlpool. Het eerste bod wat ze doen voor de kwaliteit is belachelijk. Er wordt direct 25% korting geboden en bij de eerste moeilijke blik nog eens 15% (uiteraard alleen die dag nog geldig). Ik denk dat je daar met gemak 50% korting kan krijgen van de eerste prijs, maar zelfs dan nog zou ik mijn vingers natellen na het handen schudden. Ga daar niet heen als een beetje meegaand bent of er niet al te veel verstand van hebt.
Bruynzeel vertelde mij dat er vorige week 6% bij de kastprijzen is gekomen, maar wij konden nog de 'oude prijs' krijgen. Geen idee of het waar was, kan ook een onderhandelingsstrategie zijn geweest. Levering van onze keuken is augustus/september.JWWhisky schreef op zaterdag 9 april 2022 @ 16:43:
[...]
Ik quote wederom mijzelf even. Iemand al ervaring met prijsstijgingen? En hoe gaan jullie leveranciers hier mee om?
Wij zitten in de afrondende fase voor het zetten van de handtekening voor onze keuken. Maar kregen te horen dat we nog niet konden tekenen. Ze gaan de prijzen met XX% verhogen om zich in te dekken tegen de prijsstijgingen. Hoeveel de verhoging exact wordt horen wij binnenkort. Wij kijken naar levering Q3/Q4 2023.
Balen
Ik zou er zeker niet akkoord mee gaan als ze kort na een offerte de prijs verhogen. Prijsfluctuaties gedurende de levertijd van de keuken vind ik dat voor hun rekening moet komen, dat is nou eenmaal ondernemersrisico. Als ze dat risico niet willen dragen moeten ze maar versproducten gaan verkopen.
Mijn Hacker keuken is donderdag geplaatst in mijn nieuwbouwhuis, waar ik nu nog druk bezig ben met de laatste punten. Heel erg blij met de uitkomst. Ik mis alleen nog een oven/magnetron, maar als ik het zo lees hier en daar dan heb ik wel veel geluk. Voor de rest was alles compleet. Wat een opbergruimte ook, niet normaal.
Beauty is in the eye of the beerholder
Mooi!
Mag ik vragen hoe groot je eiland is, hoe breed je kookplaat, en hoeveel ruimte je hebt naast je kookplaat (beide kanten)?
Mag ik vragen hoe groot je eiland is, hoe breed je kookplaat, en hoeveel ruimte je hebt naast je kookplaat (beide kanten)?
Hij is 3 meter lang en 1.20 diep. De kookplaat is een bora puru. Zal het morgen even opmeten.macfocus schreef op zaterdag 9 april 2022 @ 21:26:
Mooi!
Mag ik vragen hoe groot je eiland is, hoe breed je kookplaat, en hoeveel ruimte je het naast je kookplaat (beide kanten)?
Beauty is in the eye of the beerholder
Ik kwam bij Superkeukens uit op een afrondingskorting van net geen € 1.000. Mogelijk hebben ze het elders wel teruggepaktFelixForte schreef op zaterdag 9 april 2022 @ 19:08:
Voor iedereen die het eerder heeft gevraagd, ik heb de proef op de som genomen over onderhandelen bij netto zaken.
Bij Bruynzeel is het niet onmogelijk, maar wel erg lastig. Ze boden eerst een pannenset t.w.v. 300 euro aan, maar uiteindelijk hebben ze 300 euro korting gegeven om de verkoop rond te maken. Dat was zo'n 2.5% korting (keuken van 12-13k). Ik heb hier wel lang over moeten onderhandelen. Laten weten dat je toch wel erg twijfelt en vervolgens 2 dagen hun telefoontjes ontwijken helpt![]()
Bij Superkeukens gaat het ietsje makkelijker. Ze kwamen daar meteen met een leuke afronding van de prijs (zo'n 400 euro omlaag), al moet ik zeggen dat ze daarmee uitkwamen op een vergelijkbare prijs als Bruynzeel vóór korting. Uiteindelijk niet verder onderhandeld hier (we vonden de keuken bij Bruynzeel net iets leuker), maar ik denk dat we er nog wel 200-300 euro vanaf hadden kunnen krijgen. Toch denk ik dat je ook bij Superkeukens niet meer dan 5% korting krijgt op het bedrag wat ze initieel noemen, als je in het midden of laagsegment zit.
Bij beiden kreeg ik de Quooker er niet bijgeluld. Ik denk echter dat dit wel moet kunnen als je een keuken van 25k+ koopt, maar helaas niet in onze prijscategorie. Al met al zijn de prijzen behoorlijk netto bij beide zaken, maar kun je nog wel een paar honderd euro schrapen.
Dit in scherp contrast met de zaken van de Mandemakers groep. Hier minder prettigere ervaringen mee, er wordt daar eerst over het budget gesproken en vervolgens zoeken ze daar een keuken bij. Volgens de verkoper was er geen betere apparatuur te vinden dan Whirlpool. Het eerste bod wat ze doen voor de kwaliteit is belachelijk. Er wordt direct 25% korting geboden en bij de eerste moeilijke blik nog eens 15% (uiteraard alleen die dag nog geldig). Ik denk dat je daar met gemak 50% korting kan krijgen van de eerste prijs, maar zelfs dan nog zou ik mijn vingers natellen na het handen schudden. Ga daar niet heen als een beetje meegaand bent of er niet al te veel verstand van hebt.
Members only:
Alleen zichtbaar voor ingelogde gebruikers.
Inloggen
[ Voor 15% gewijzigd door Uchiha1911 op 10-04-2022 16:50 ]
Let op:
Dit topic kan gebruikt worden voor het volgende:
• Vragen over de keuken, denkend aan indeling, materialen, kastjes, apparatuur, etc.
• Welke kastjes, aanrechtbladen en apparatuur te kiezen
• Ervaringen met verkopers en keukenboeren
• Tips & Tricks denk hierbij aan hulp bij het zelf installeren en onderhouden van de keuken.
• Jouw indeling. Plaats gerust een foto of tekening, maar maak het niet te bont met hele buildlogs.
Voor badkamers: Het Badkamer topic: verkopers, kwaliteit, prijs - Deel 1
Showen met je keuken kan hier: Tweakers Keuken showroom! - Vestiging 1
Dit topic kan gebruikt worden voor het volgende:
• Vragen over de keuken, denkend aan indeling, materialen, kastjes, apparatuur, etc.
• Welke kastjes, aanrechtbladen en apparatuur te kiezen
• Ervaringen met verkopers en keukenboeren
• Tips & Tricks denk hierbij aan hulp bij het zelf installeren en onderhouden van de keuken.
• Jouw indeling. Plaats gerust een foto of tekening, maar maak het niet te bont met hele buildlogs.
Voor badkamers: Het Badkamer topic: verkopers, kwaliteit, prijs - Deel 1
Showen met je keuken kan hier: Tweakers Keuken showroom! - Vestiging 1