Bericht hierboven
Bedankt! Is een Highland Oak Cream pvc vloer van Tarkett.Rzaan schreef op maandag 24 januari 2022 @ 09:55:
@Dj-sannieboy
Wat ligt er bij jullie op de vloer in de keuken?
Ziet er mooi uit.
@jeehaa Zie het pvc vloeren topic voor een foto.
[ Voor 10% gewijzigd door Dj-sannieboy op 24-01-2022 13:51 ]
Is die geschikt voor de keuken?Dj-sannieboy schreef op maandag 24 januari 2022 @ 11:41:
Bedankt! Is een Highland Oak pvc vloer van Tarkett.
(In de zin van 'zie je slijtage vlak bij de gootsteen?')
/f/image/G0KfF7MDZ4kdMHkW12EKzGNg.png?f=fotoalbum_large)
Ik ben benieuwd wat jullie van alle afmetingen vinden. Persoonlijk lijkt mij 1 meter tussen eiland en wand prima, al weet ik dat de meesten 1.10m zullen adviseren. 80 cm tussen tafel en muur kan net aan voor mij.. we hebben op dit moment 73cm en dat is prima om te zitten, maar niet om er iemand achter langs te laten gaan.
Grootste twijfelpunten; eiland misschien naar 100cm doen ipv 110cm?
Wandopstelling inkorten naar 483cm ipv 511, zodat alle kastjes standaard 60cm kunnen zijn en we een ruimte van 28 cm houden in de hoek voor een gordijn.. Als we de volledige 511cm benutten weet ik niet hoe de raamdecoratie geplaatst zou moeten worden. Want ik twijfel of ik het gordijn in het kozijn zou plaatsen.
Vloer ligt er pas een paar maanden in, dus kan ik weinig over zeggen!Rzaan schreef op maandag 24 januari 2022 @ 12:00:
[...]
Is die geschikt voor de keuken?
(In de zin van 'zie je slijtage vlak bij de gootsteen?')
Ik zou inderdaad voor een eiland van 100cm gaan. Geeft net iets meer ruimte rondom de tafel.Angriebirdie schreef op maandag 24 januari 2022 @ 12:44:
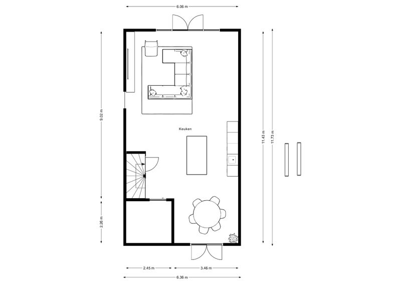
Dit is ons plan voor de indeling van de keuken:
[Afbeelding]
Ik ben benieuwd wat jullie van alle afmetingen vinden. Persoonlijk lijkt mij 1 meter tussen eiland en wand prima, al weet ik dat de meesten 1.10m zullen adviseren. 80 cm tussen tafel en muur kan net aan voor mij.. we hebben op dit moment 73cm en dat is prima om te zitten, maar niet om er iemand achter langs te laten gaan.
Grootste twijfelpunten; eiland misschien naar 100cm doen ipv 110cm?
Wandopstelling inkorten naar 483cm ipv 511, zodat alle kastjes standaard 60cm kunnen zijn en we een ruimte van 28 cm houden in de hoek voor een gordijn.. Als we de volledige 511cm benutten weet ik niet hoe de raamdecoratie geplaatst zou moeten worden. Want ik twijfel of ik het gordijn in het kozijn zou plaatsen.
Welke kleur is dit? En heb je een foto vanuit een andere hoek van de keuken waarbij er iets meer van de vloer te zien is? Hebben dezelfde vloer in bestelling (verlijmd Cream)Dj-sannieboy schreef op maandag 24 januari 2022 @ 12:47:
[...]
Vloer ligt er pas een paar maanden in, dus kan ik weinig over zeggen!
Een PVC vloer kan "overal" tegen, in ieder geval veel beter geschikt dan elke echte houten vloer.Rzaan schreef op maandag 24 januari 2022 @ 12:00:
[...]
Is die geschikt voor de keuken?
(In de zin van 'zie je slijtage vlak bij de gootsteen?')
De verlaagde la nemen we voor lief, we gaan er denk ik alleen wat kookgerei in plaatsen, bestek etc. zal in de la er naast geplaatst worden.macfocus schreef op woensdag 19 januari 2022 @ 12:58:
[...]
Eiland of plafond kap nemen ipv de Bora.
Dat is om diverse redenen nu ook ons idee.
De "verlaagde" la bij een Bora is Ruk
Nee nee, dat doen we zeker niet. Dit is een proces dat al vrij lang gaande is, moet wel zeggen dat we er nu wel een beetje klaar mee zijn.Floor-is schreef op woensdag 19 januari 2022 @ 17:12:
[...]
Je gaat niet over één nacht ijs, laat zaken op je inwerken. Als je de mogelijkheid hebt: renders maken!
[...]
Die indeling is maar een opzet natuurlijk, helemaal links een 30 apothekerskastje levert bijna dezelfde werkruimte op en geeft inderdaad ruimte voor kruiden, olie en dat soort spul
Vaatwasser helemaal rechts omdat rechts van spoelbak en je dan de rest helemaal in lades kunt uitvoeren.
Volgens mij heb ik de kastenwand per ongeluk gespiegeld, die moet je even zien om te denken, sorry!
Met zoveel kastenwand heb je waarschijnlijk weinig behoefte aan bovenkastjes, wel zou ik overwegen boven het aanrecht iets te doen om de ruimte te breken.
Een mooie keuken! Maar, we hebben besloten om niet voor een bar te gaan omdat de eettafel er te dicht op zal moeten zitten i.v.m. ruimtegebrek. Ter illustratie:mitsumark schreef op woensdag 19 januari 2022 @ 21:31:
@emreupdates Ook deze keuken gezien bij de pins? Lijkt me een prima alternatief.
Deodaat in "Het Grote Keuken topic: verkopers, kwaliteit, prijs - Deel 3"
/f/image/5dqVoUDrmHfuSgzyBTtIXKVm.png?f=fotoalbum_large)
Floor-is schreef op zaterdag 22 januari 2022 @ 10:10:
[...]
Heb je hetzelfde huis als @emreupdates gekocht? Volgens mij wel namelijk. Okay, je keuken is 30cm breder, maar jullie hebben zelfs hetzelfde luik voor de vloerverwarming..
Daar tekende ik dit in: Floor-is in "Het Grote Keuken topic: verkopers, kwaliteit, prijs - Deel 3"
Hoi toekomstige buurman!koelkast schreef op zondag 23 januari 2022 @ 12:11:
Deze week bij een filiaal van DB keukens geweest, mooie l-vormige opstelling laten tekenen met schiereiland.
DB doet aan vaste prijzen, en staat bekend om hun service en 'afspraak-is-afspraak'-slogan.
Ze deden het voorstel voor Excellentic meubels, veel ladekasten, een wandopstelling met 3 hoge kasten voor o.a. solo-oven en koelvries combi. Zoiets dus (tekening + renders krijg ik nog).
[Afbeelding]
***members only***
Hoi toekomstige buurman! Ziet er goed uit!Thomas19903 schreef op zondag 23 januari 2022 @ 21:15:
We zijn bijna in de laatste fase voor het beslissen van onze keuken in nieuwbouw woning (oplevering Q3-2023). De volledige begane grond is keuken, dus we hadden veel keuze waar we de keuken gingen plaatsen maar na veel wikken en wegen hebben we ons insziens de beste plek gevonden :-) - aan de voorkant van het huis.
[Afbeelding]
Dit zijn de renders van de keuken. De hoge kasten zijn hoogglans, komt niet echt tot zijn recht op de foto maar in het echt zien het er mooi uit.
[Afbeelding] [Afbeelding] [Afbeelding]
We hebben de volgende specificaties voor de keuken:
Keukenmeubelen:
Schmidt Evolution kunststof greeploos
Apparatuur:
- Bora PUXU
- Miele Stoomoven 60x60 (DGC7460XOBSW)
- Liebherr integreerbare koelkast met biofresh
- Liebherr integreerbare vriezer
- Siemens vaatwasmachine IQ300 (SN63H800UE)
- Quooker combi+
Werkblad:
Arte keramiek - castelli
Totaal Keukenmeubelen : € 8.495,00 +
Totaal Apparatuur/Accessoires: € 12.989,00 +
Totaal Werkblad(en) : € 9.776,00 +
Subtotaal: € 31.260,00 +
Totale korting op uw keuken: € 3.255,00 -
Subtotaal: € 28.005,00
Montage: € 2660,00
Totaal: € 30.665
Flink bedrag! We willen het liefste rond de 25K uitkomen. We gaan daarom voorstellen om composiet blad te nemen ipv keramiek (scheelt al gauw 2-3k). Daarnaast is de Miele stoomoven ook een ovenkill ons insziens. Dit wordt dan een stoomoven van Siemens, of zelfs alleen een normale Siemens oven van 60x60. Door dit te veranderen hopen we rond de 25K uit te komen. Hebben jullie nog andere suggesties om op te besparen dan bovenstaande?
---
De laatste stand van zaken, een offerte gekregen van 24k voor een Rotpunk X13 keuken met
Apparatuur:
Bora pure
Quooker Flex met Combi+ boiler
Vaatwasser Siemens iQ300 SN63H800BE
Koelkast Siemens iQ500 KI81RSDE0
Vriezer Siemens iQ500 GI81NACF0
Oven/magnetron combi Siemens iQ700 HM836GPB6
Oven/stoom combi Siemens iQ700 HS836GVB6
Warmhoudlade Siemens iQ700 BI630CNS1
Koffieautomaat Siemens iQ700 CT836LEB6
Werkblad:
FasaStone 2cm composiet
Nog in dubio over:
Liebherr koelkast/vriezer
Composiet blad op de wand
Bovenkasten
Kleuren
:strip_exif()/f/image/edzXmJmAT6CaxawYhAeNwV0T.jpg?f=fotoalbum_large)
:strip_exif()/f/image/9wFGIjWTQt7LYzrVDMuso0Kt.jpg?f=fotoalbum_large)
Wat zou de meerprijs voor Liebherr zijn? Als het in budget past (/passend te maken is), zou ik het zeker doen. Niet voor niets dat Miele beide bij Liebherr afneemt. Die dingen gaan echt bizar lang mee.emreupdates schreef op maandag 24 januari 2022 @ 15:11:
[...]
De verlaagde la nemen we voor lief, we gaan er denk ik alleen wat kookgerei in plaatsen, bestek etc. zal in de la er naast geplaatst worden.
[...]
Nee nee, dat doen we zeker niet. Dit is een proces dat al vrij lang gaande is, moet wel zeggen dat we er nu wel een beetje klaar mee zijn.De bovenkast discussie ga ik niet winnen vrees ik, snap sowieso niet wat we met zoveel kasten moeten.
![]()
[...]
Een mooie keuken! Maar, we hebben besloten om niet voor een bar te gaan omdat de eettafel er te dicht op zal moeten zitten i.v.m. ruimtegebrek. Ter illustratie:
[Afbeelding]
[...]
[...]
Hoi toekomstige buurman!
[...]
Hoi toekomstige buurman! Ziet er goed uit!
---
De laatste stand van zaken, een offerte gekregen van 24k voor een Rotpunk X13 keuken met
Apparatuur:
Bora pure
Quooker Flex met Combi+ boiler
Vaatwasser Siemens iQ300 SN63H800BE
Koelkast Siemens iQ500 KI81RSDE0
Vriezer Siemens iQ500 GI81NACF0
Oven/magnetron combi Siemens iQ700 HM836GPB6
Oven/stoom combi Siemens iQ700 HS836GVB6
Warmhoudlade Siemens iQ700 BI630CNS1
Koffieautomaat Siemens iQ700 CT836LEB6
Werkblad:
FasaStone 2cm composiet
Nog in dubio over:
Liebherr koelkast/vriezer
Composiet blad op de wand
Bovenkasten
Kleuren
[Afbeelding]
[Afbeelding]
[Afbeelding]
Die Siemens inbouw lees ik ook wisselende recenties over. Volgens mij is de consensus dat een vrijstaande gebruiksvriendelijker, service-vriendelijker en vaak ook lekkerder qua smaak is.
[ Voor 3% gewijzigd door Source90 op 24-01-2022 15:39 ]
Goede prijs als je kijkt naar je lijst met apparatuur!emreupdates schreef op maandag 24 januari 2022 @ 15:11:
[...]
De verlaagde la nemen we voor lief, we gaan er denk ik alleen wat kookgerei in plaatsen, bestek etc. zal in de la er naast geplaatst worden.
[...]
Nee nee, dat doen we zeker niet. Dit is een proces dat al vrij lang gaande is, moet wel zeggen dat we er nu wel een beetje klaar mee zijn.De bovenkast discussie ga ik niet winnen vrees ik, snap sowieso niet wat we met zoveel kasten moeten.
![]()
[...]
Een mooie keuken! Maar, we hebben besloten om niet voor een bar te gaan omdat de eettafel er te dicht op zal moeten zitten i.v.m. ruimtegebrek. Ter illustratie:
[Afbeelding]
[...]
[...]
Hoi toekomstige buurman!
[...]
Hoi toekomstige buurman! Ziet er goed uit!
---
De laatste stand van zaken, een offerte gekregen van 24k voor een Rotpunk X13 keuken met
Apparatuur:
Bora pure
Quooker Flex met Combi+ boiler
Vaatwasser Siemens iQ300 SN63H800BE
Koelkast Siemens iQ500 KI81RSDE0
Vriezer Siemens iQ500 GI81NACF0
Oven/magnetron combi Siemens iQ700 HM836GPB6
Oven/stoom combi Siemens iQ700 HS836GVB6
Warmhoudlade Siemens iQ700 BI630CNS1
Koffieautomaat Siemens iQ700 CT836LEB6
Werkblad:
FasaStone 2cm composiet
Nog in dubio over:
Liebherr koelkast/vriezer
Composiet blad op de wand
Bovenkasten
Kleuren
[Afbeelding]
[Afbeelding]
[Afbeelding]
Een houten vloer hadden wij in de keuken.mitsumark schreef op maandag 24 januari 2022 @ 13:51:
[...]
Een PVC vloer kan "overal" tegen, in ieder geval veel beter geschikt dan elke echte houten vloer.
Die werd helemaal grijs bij het aanrecht.
Ook moest je niet te veel spatten - en het in ieder geval direct afnemen - want anders zag je de kringetjes.
Ik lees toch wel veel op Tweakers dat PVC toch veel minder krasbestendig is als de verkopers je willen doen geloven.
Ik had in mijn vorige huis een wat gewolkte/gevlekte zwarte PVC-vloer. Wat een hel, elk jaar was ie weer een paar dagen mooi nadat ik er van dat onderhoudsspul overheen gedweild had om de rest van het jaar in elk streepje licht weer tegen witte krassen aan te kijken.Rzaan schreef op maandag 24 januari 2022 @ 15:40:
[...]
Ik lees toch wel veel op Tweakers dat PVC toch veel minder krasbestendig is als de verkopers je willen doen geloven.
Was voor ons de reden om in dit huis niet eens meer PVC te overwegen.
Je komt in dezelfde wijk als @koelkast en @emreupdates?Thomas19903 schreef op zondag 23 januari 2022 @ 21:15:
We zijn bijna in de laatste fase voor het beslissen van onze keuken in nieuwbouw woning (oplevering Q3-2023). De volledige begane grond is keuken, dus we hadden veel keuze waar we de keuken gingen plaatsen maar na veel wikken en wegen hebben we ons insziens de beste plek gevonden :-) - aan de voorkant van het huis.
[Afbeelding]
Dit zijn de renders van de keuken. De hoge kasten zijn hoogglans, komt niet echt tot zijn recht op de foto maar in het echt zien het er mooi uit.
[Afbeelding] [Afbeelding] [Afbeelding]
We hebben de volgende specificaties voor de keuken:
Keukenmeubelen:
Schmidt Evolution kunststof greeploos
Apparatuur:
- Bora PUXU
- Miele Stoomoven 60x60 (DGC7460XOBSW)
- Liebherr integreerbare koelkast met biofresh
- Liebherr integreerbare vriezer
- Siemens vaatwasmachine IQ300 (SN63H800UE)
- Quooker combi+
Werkblad:
Arte keramiek - castelli
Totaal Keukenmeubelen : € 8.495,00 +
Totaal Apparatuur/Accessoires: € 12.989,00 +
Totaal Werkblad(en) : € 9.776,00 +
Subtotaal: € 31.260,00 +
Totale korting op uw keuken: € 3.255,00 -
Subtotaal: € 28.005,00
Montage: € 2660,00
Totaal: € 30.665
Flink bedrag! We willen het liefste rond de 25K uitkomen. We gaan daarom voorstellen om composiet blad te nemen ipv keramiek (scheelt al gauw 2-3k). Daarnaast is de Miele stoomoven ook een ovenkill ons insziens. Dit wordt dan een stoomoven van Siemens, of zelfs alleen een normale Siemens oven van 60x60. Door dit te veranderen hopen we rond de 25K uit te komen. Hebben jullie nog andere suggesties om op te besparen dan bovenstaande?
Bericht hierboven
Ik heb gelezen dat ze best krasgevoelig zijn, bijvoorbeeld als je honden hebt dat ze die met hun nagels bekrassen.mitsumark schreef op maandag 24 januari 2022 @ 13:51:
[...]
Een PVC vloer kan "overal" tegen, in ieder geval veel beter geschikt dan elke echte houten vloer.
En ook als je er iets zwaars langdurig op plaatst dat het een afdruk achterlaat.
En hoe valt dat in de gehele plattegrond?interior schreef op zondag 23 januari 2022 @ 22:04:
[...]
Een handgetekende en deze:
***members only***
2m10 naar boven en 2m23 naar beneden.. Wat zit daar aan beide zijden en wat wil je er plaatsen?
Bericht hierboven
En wat ga je dan in dat stuk van ~240x345 doen?interior schreef op zondag 23 januari 2022 @ 22:25:
[...]
De ruimte ziet er zo uit, met de keuken en uitbouw door mij op amateuristische wijze even in getekend.
***members only***
Sorry dat ik het zeg, maar dit is zonde van je tijd geweest.
Bericht hierboven
Eens! En de lengte van de wand iets inkorten voor de gordijnenSquareOne schreef op maandag 24 januari 2022 @ 12:48:
[...]
Ik zou inderdaad voor een eiland van 100cm gaan. Geeft net iets meer ruimte rondom de tafel.
Bericht hierboven
Hoe zit het eigenlijk met eventuele gezondheidsissues? Dit door gebruik van weekmakers. Werd mij verteld in een vloerenzaak en ja die verkocht naast hout ook PVC.Stalensnuitje schreef op maandag 24 januari 2022 @ 15:53:
[...]
Ik had in mijn vorige huis een wat gewolkte/gevlekte zwarte PVC-vloer. Wat een hel, elk jaar was ie weer een paar dagen mooi nadat ik er van dat onderhoudsspul overheen gedweild had om de rest van het jaar in elk streepje licht weer tegen witte krassen aan te kijken.
Was voor ons de reden om in dit huis niet eens meer PVC te overwegen.
Klopt. Deventer is goed vertegenwoordigd op tweakersFloor-is schreef op maandag 24 januari 2022 @ 16:14:
[...]
Je komt in dezelfde wijk als @koelkast en @emreupdates?
Dit is het plan:Floor-is schreef op maandag 24 januari 2022 @ 16:19:
[...]
En hoe valt dat in de gehele plattegrond?
2m10 naar boven en 2m23 naar beneden.. Wat zit daar aan beide zijden en wat wil je er plaatsen?
:strip_exif()/f/image/CTNrGMwvOvtFgzWZAVWcNDrt.jpg?f=fotoalbum_large)
Maar twijfelen nu over de grootte van de keukenachterwand. Hebben nu dus een van 3 meter in ons hoofd.
KL gaf daarvoor deze prijzen:
Keukenmeubelen:
Pronorm X-OS kunststof greeploos (2 hoge kasten (2.6m) de rest lage kasten)
2 eiken planken met inbouwspots (2x 1.80)
Apparatuur:
- Bora PUXU (€ 3199 maar deze is i.v.m actieperiode gratis)
- Siemens multifunctionele oven met stoom en magnetronfunctie 60x60 (HN878G4B6, €2299)
- AEG Koelkast (SCE819E5TS, €1189)
- Spoelbak Caressi Composiet zwart (CAGRPP50BK-TU, € 265,77)
- AEG Vaatwasmachine (FSE63307P, €899)
- Quooker combi flex mat zwart (€ 1313,25)
Werkblad:
Composiet Evora quartz
Totaal Keukenmeubelen : € 13.455 +
Totaal Apparatuur/Accessoires: € 5.966,02 +
Totaal Werkblad(en) : € 4.071,86 +
Subtotaal: € 23.492,88 +
Montage: € 1678,55
Totaal: € 25.171,53
PVC is geen hout.Rzaan schreef op maandag 24 januari 2022 @ 15:40:
[...]
Een houten vloer hadden wij in de keuken.
Die werd helemaal grijs bij het aanrecht.
Ook moest je niet te veel spatten - en het in ieder geval direct afnemen - want anders zag je de kringetjes.
Ik lees toch wel veel op Tweakers dat PVC toch veel minder krasbestendig is als de verkopers je willen doen geloven.
Mijn (eiken look) PVC vloer ligt er nu 7,5 jaar in.
Natuurlijk, waar de eettafel stoelen staan zie je wat krasjes van het schuiven (stoelen moet je ook optillen), maar verder lijkt ie nog als nieuw.
Dat "jaarlijkse" onderhoud doen we eens in de 3 jaar...
Wellicht dat je op een zwarte vloer meer ziet, maar dat komt dan meer door de kleur, niet door het materiaal.Stalensnuitje schreef op maandag 24 januari 2022 @ 15:53:
[...]
Ik had in mijn vorige huis een wat gewolkte/gevlekte zwarte PVC-vloer. Wat een hel, elk jaar was ie weer een paar dagen mooi nadat ik er van dat onderhoudsspul overheen gedweild had om de rest van het jaar in elk streepje licht weer tegen witte krassen aan te kijken.
Was voor ons de reden om in dit huis niet eens meer PVC te overwegen.
Misschien dat je nog verschillende kwaliteiten hebt, die van ons was niet heel goedkoop.
Dit klinkt - in vergelijking tot de offerte die ik van KL gehad heb - echt een stuk beter. Wij hebben een stuk minder kastjes etc wel dikker blad maar ook stuk minder apparatuur. Mag ik vragen bij welke zaak dit is geweest?emreupdates schreef op maandag 24 januari 2022 @ 15:11:
De laatste stand van zaken, een offerte gekregen van 24k voor een Rotpunk X13 keuken met
Apparatuur:
Bora pure
Quooker Flex met Combi+ boiler
Vaatwasser Siemens iQ300 SN63H800BE
Koelkast Siemens iQ500 KI81RSDE0
Vriezer Siemens iQ500 GI81NACF0
Oven/magnetron combi Siemens iQ700 HM836GPB6
Oven/stoom combi Siemens iQ700 HS836GVB6
Warmhoudlade Siemens iQ700 BI630CNS1
Koffieautomaat Siemens iQ700 CT836LEB6
Werkblad:
FasaStone 2cm composiet
macfocus schreef op zondag 23 januari 2022 @ 18:48:
Beiden doe eens een foto? Dan kunnen we creatief meedenken
:strip_exif()/f/image/aKUaG86UAVl0SDAlu6c5usUJ.jpg?f=fotoalbum_medium)
Omdat het blad wit is, met een vage marmering, zit ik denk ik wel vast aan een heel lichte kleur.
edit: dat scheve deurtje is de vaatwasser niet niet dicht stond
[ Voor 8% gewijzigd door franssie op 24-01-2022 18:16 ]
I´d rather be a hypocrite than the same person forever (Yauch)| 🎸 Niets is zo permanent als een tijdelijke oplossing | Een goed probleem komt nooit alleen | Gibson guitar Fender Guitar God Damn Guitar
Jazeker! akzent Küchen in Nordhorn, Duitsland.interior schreef op maandag 24 januari 2022 @ 18:12:
[...]
Dit klinkt - in vergelijking tot de offerte die ik van KL gehad heb - echt een stuk beter. Wij hebben een stuk minder kastjes etc wel dikker blad maar ook stuk minder apparatuur. Mag ik vragen bij welke zaak dit is geweest?
Vraagje, hoe bevallen de Kvik keukenkasten jou? Deze heb ik ook in het oog (maar dan donkerbruin). Hoe is o.a. de bouwkwaliteit? Want dit is de duurdere lijn van Kvik en je komt snel op prijzen die richting de betere Duitse merken gaat (Maar ik vind de design leuk met de horizontale strepen op de lades)franssie schreef op maandag 24 januari 2022 @ 18:15:
[...]
[Afbeelding]
Omdat het blad wit is, met een vage marmering, zit ik denk ik wel vast aan een heel lichte kleur.
edit: dat scheve deurtje is de vaatwasser niet niet dicht stondmaar de lui om een nieuwe foto te maken
Mij bevallen ze nu goed, keuken staat er nu denk ik een half jaar. Het voelt allemaal degelijk aan maar het is geen Bulthaup.Chillmeister schreef op maandag 24 januari 2022 @ 19:04:
[...]
Vraagje, hoe bevallen de Kvik keukenkasten jou? Deze heb ik ook in het oog (maar dan donkerbruin). Hoe is o.a. de bouwkwaliteit? Want dit is de duurdere lijn van Kvik en je komt snel op prijzen die richting de betere Duitse merken gaat (Maar ik vind de design leuk met de horizontale strepen op de lades)
Ik woon in een woonark (en dat is uiteindelijk houtbouw) dus ik merk dat de keuken zich nog moest zetten maar dat lijkt nu wel over. De kasten bleven strak maar het aanrecht is iets gezakt, maar dat was bij elke keuken gebeurd denk ik.
Het is wel hout, eigen, dus als je er lomp mee omgaat (zoals mijn vriendin soms doet door kastjes dicht te rammen zonder te kijken of er iets tussen zit) dan kan het wel iets deuken.
Maar wij gingen ook voor de horizontale strepen - breekt echt heel mooi, anders heb je alleen van die platen en dat vind ik suf, maar ieder zijn eigen smaak.
Het design met de horizontale latten hebben ze echter alleen voor de lage kasten omdat het te xwaar zou worden voor hoge kasten, wellicht dat dat iets over de kwaliteit zegt?
Maar de kasten en lades gedragen zich goed, en ik heb best veel zwaar kookspul in mijn keuken.
I´d rather be a hypocrite than the same person forever (Yauch)| 🎸 Niets is zo permanent als een tijdelijke oplossing | Een goed probleem komt nooit alleen | Gibson guitar Fender Guitar God Damn Guitar
Ok, maar wat is "kwetsbaar" dan? Breuken, krassen, chipjes, scheuren etc?Floor-is schreef op maandag 24 januari 2022 @ 09:27:
[...]
Of de tussenvorm: mensen die je kent en zelf gezien
En was het Arpa Fenix of een andere AFP materiaal? Was het Fenix door en door, of een laagje op MDF?
Juist niet. Gewoon een beetje durven. Contrast is wat een huis leuk maakt, anders krijg je zo’n ton-sur-ton huis. Mooi, maar wellicht wat karakterloos.franssie schreef op maandag 24 januari 2022 @ 18:15:
[...]
[Afbeelding]
Omdat het blad wit is, met een vage marmering, zit ik denk ik wel vast aan een heel lichte kleur.
Ik zou daar rustig een donkere wand achterzetten. (Nou hebben we al 22 jaar zwarte tegeltjes,dus….)
Ik haat zwart en donkere kleuren in interieurs (als er witte inductieplaten zouden zijn die betaalbaar waren dan had ik die).macfocus schreef op maandag 24 januari 2022 @ 19:42:
[...]
Juist niet. Gewoon een beetje durven. Contrast is wat een huis leuk maakt, anders krijg je zo’n ton-sur-ton huis. Mooi, maar wellicht wat karakterloos.
Ik zou daar rustig een donkere wand achterzetten. (Nou hebben we al 22 jaar zwarte tegeltjes,dus….)
Ik heb dus ook een Samsung Frame TV, geen zwart vlak in mijn woonkamer.
Maar dat soort dingen zijn vrij persoonlijk uiteindelijk. maar in een wit/eiken keuken zie ik het echt niet werken.
I´d rather be a hypocrite than the same person forever (Yauch)| 🎸 Niets is zo permanent als een tijdelijke oplossing | Een goed probleem komt nooit alleen | Gibson guitar Fender Guitar God Damn Guitar
Is het gebruikelijk dat je geen prijs onderbouwing ontvangt? Ik zou toch graag willen weten waar het hem nu in zit... waar ik moet en kan bezuinigen? Want als ze rekenen met de prijzen die je bij de leveranciers (Siemems, Miele, Quooker... etc) ziet dan kan ik ook een keuken van 50k samenstellen. Laat het nu zo zijn dat alles bij verschillende webshops al voor minstens de helft te verkrijgen is. Ik zou graag zien waar m'n geld wordt uitgegeven.
Jullie ervaring?
https://www.bol.com/nl/nl...okplaat/9200000053688160/franssie schreef op maandag 24 januari 2022 @ 19:50:
[...]
Ik haat zwart en donkere kleuren in interieurs (als er witte inductieplaten zouden zijn die betaalbaar waren dan had ik die).
Ik heb dus ook een Samsung Frame TV, geen zwart vlak in mijn woonkamer.
Maar dat soort dingen zijn vrij persoonlijk uiteindelijk. maar in een wit/eiken keuken zie ik het echt niet werken.
Fuck.
Misschien dat er met deze markt met tekorten in de mijne nog kan verkopen.
edit: en dan nog een 80cm versie met interne afzuiging vinden, ik ga eens op google zoeken. De zwarte ovens die ik heb kan ik wel accepteren maar dat zwart op de witte kookplaat is echt heel lelijk.
[ Voor 23% gewijzigd door franssie op 24-01-2022 20:03 ]
I´d rather be a hypocrite than the same person forever (Yauch)| 🎸 Niets is zo permanent als een tijdelijke oplossing | Een goed probleem komt nooit alleen | Gibson guitar Fender Guitar God Damn Guitar
Check wel eerst of de nieuwe wel op voorraad isfranssie schreef op maandag 24 januari 2022 @ 20:00:
[...]
Fuck.
Misschien dat er met deze markt met tekorten in de mijne nog kan verkopen.
Oh, en in de comments staat dat ie een lichtblauwe kleur heeft wat erg afsteekt op een wit blad!
[ Voor 16% gewijzigd door LaTiNo156 op 24-01-2022 20:04 ]
Ik las dat ook over die blauwe kleur, weet ik gelijk welke kleur achterwand ...LaTiNo156 schreef op maandag 24 januari 2022 @ 20:03:
[...]
Check wel eerst of de nieuwe wel op voorraad is
Oh, en in de comments staat dat ie een lichtblauwe kleur heeft wat erg afsteekt op een wit blad!
I´d rather be a hypocrite than the same person forever (Yauch)| 🎸 Niets is zo permanent als een tijdelijke oplossing | Een goed probleem komt nooit alleen | Gibson guitar Fender Guitar God Damn Guitar
Wat een enorme keuken voor een relatief niet zo heel groot huis…emreupdates schreef op maandag 24 januari 2022 @ 15:11:
[...]
De verlaagde la nemen we voor lief, we gaan er denk ik alleen wat kookgerei in plaatsen, bestek etc. zal in de la er naast geplaatst worden.
[...]
Nee nee, dat doen we zeker niet. Dit is een proces dat al vrij lang gaande is, moet wel zeggen dat we er nu wel een beetje klaar mee zijn.De bovenkast discussie ga ik niet winnen vrees ik, snap sowieso niet wat we met zoveel kasten moeten.
![]()
[...]
Een mooie keuken! Maar, we hebben besloten om niet voor een bar te gaan omdat de eettafel er te dicht op zal moeten zitten i.v.m. ruimtegebrek. Ter illustratie:
[Afbeelding]
[...]
[...]
Hoi toekomstige buurman!
[...]
Hoi toekomstige buurman! Ziet er goed uit!
---
De laatste stand van zaken, een offerte gekregen van 24k voor een Rotpunk X13 keuken met
Apparatuur:
Bora pure
Quooker Flex met Combi+ boiler
Vaatwasser Siemens iQ300 SN63H800BE
Koelkast Siemens iQ500 KI81RSDE0
Vriezer Siemens iQ500 GI81NACF0
Oven/magnetron combi Siemens iQ700 HM836GPB6
Oven/stoom combi Siemens iQ700 HS836GVB6
Warmhoudlade Siemens iQ700 BI630CNS1
Koffieautomaat Siemens iQ700 CT836LEB6
Werkblad:
FasaStone 2cm composiet
Nog in dubio over:
Liebherr koelkast/vriezer
Composiet blad op de wand
Bovenkasten
Kleuren
[Afbeelding]
[Afbeelding]
[Afbeelding]
Ik zie dat je in totaal rond de 35 vierkante meter woonruimte hebt, dat is prima te doen maar zeker niet overbemeten.
De kastenwand inclusief ombouw gaat richting de 4 meter, net als je keukenblok ertegenover.
Je houd nu een ruimte van 23 vierkante meter over om je eethoek en zithoek te creëren, en dat is echt (te) klein.
Wanneer je de kastenwand halveert heb je ruimte om een niet al te grote eetkamertafel (gedeeltelijk) in het keukendeel te plaatsen en hou je nog een beetje een bruikbare woonkamer over….
Overigens, je plattegrond geeft dat ook al aan middels de ingetekende meubelen.
Ik zou nog eens nadenken of je echt zoveel kasten nodig bent, de grootte van je keuken gaat nu ten koste van je overige leefruimte.
Yes. Dat noemen ze een kook- of fornuisgroep en zijn 2 groepen die geschakeld zijn mer een brug over de schakelaar. Het is dan inderdaad maar 1 fase.Jazzy schreef op maandag 24 januari 2022 @ 19:46:
Even een sanity check: als mensen het over een 2-fase aansluiting hebben, bedoelen ze toch gewoon twee groepen? Want als je geen 3-fasen aansluiting hebt is er maar 1 fase in de meterkast.
Je ziet nog wel eens dat in een 3-fase meterkast toch een kookgroep gebruikt wordt. Dat is dan fout, want daarmee belast je 1 fase te zwaar. In de praktijk gaat dit meestal wel goed vanwege de traagheid van de hoofdzekering, maar dan is een krachtgroep de juiste oplossing.
hmmm. https://www.keukenloods.nl/kmi85000wr.htmlfranssie schreef op maandag 24 januari 2022 @ 20:06:
[...]
Ik las dat ook over die blauwe kleur, weet ik gelijk welke kleur achterwand ...
eens kijken of dit past.
Een witte kookplaat in een wit blad is toch wel gaaf.
I´d rather be a hypocrite than the same person forever (Yauch)| 🎸 Niets is zo permanent als een tijdelijke oplossing | Een goed probleem komt nooit alleen | Gibson guitar Fender Guitar God Damn Guitar
Mijn huis is slimmer dan ik...
Goed punt, we moeten inderdaad door de grote keuken, de keukentafel in z'n geheel de woonkamer in plaatsen. Voor de volledigheid, wat op die plattegrond niet te zien is, is de uitbouw van 1.8 meter, lengte van de keukenmuur is 4325cm, werkblok is 3600 en een beetje en de hoge kasten komt nog wat bij voor de koof. Maar jou punt blijft staan. De reden dat we hiervoor gekozen hebben is momenteel uitpuilende kasten en daarnaast hebben we kunnen kijken bij een huis met soortgelijke afmetingen, het ziet er in persoon een stuk minder op elkaar gedrukt uit.Trussardi99 schreef op maandag 24 januari 2022 @ 20:38:
[...]
Wat een enorme keuken voor een relatief niet zo heel groot huis…
Ik zie dat je in totaal rond de 35 vierkante meter woonruimte hebt, dat is prima te doen maar zeker niet overbemeten.
De kastenwand inclusief ombouw gaat richting de 4 meter, net als je keukenblok ertegenover.
Je houd nu een ruimte van 23 vierkante meter over om je eethoek en zithoek te creëren, en dat is echt (te) klein.
Wanneer je de kastenwand halveert heb je ruimte om een niet al te grote eetkamertafel (gedeeltelijk) in het keukendeel te plaatsen en hou je nog een beetje een bruikbare woonkamer over….
Overigens, je plattegrond geeft dat ook al aan middels de ingetekende meubelen.
Ik zou nog eens nadenken of je echt zoveel kasten nodig bent, de grootte van je keuken gaat nu ten koste van je overige leefruimte.
De hoge kasten bevatten momenteel het volgende:
1. Vriezer
2. Oven/magnetron combi
3. Koffiezetapparaat
4. Oven/stoom combi
5. Koelkast
6. Servieskast
Een optie die we hebben overwogen is:
1. Vriezer
2. Oven/magnetron combi en oven/stoom combi
3. Koffiezetapparaat
4. Koelkast
We hebben volgende week ons derde en voorlopig hopelijk laatste gesprek bij de keukenleverancier en gaan het hebben over o.a..de inhoud van de kasten, de laatste punten waar we nog over twijfelen. We zullen daarbij nogmaals goed nadenken of we al die kasten (m'n vrouw is er al 💯 over uit
[ Voor 4% gewijzigd door emreupdates op 25-01-2022 00:17 ]
We kozen voor een kwarts/composiet hoogglans werkblad grijs/zwart gespikkeld.
Kleur vd frontjes afgestemd op het werkblad. Wandtegels besteld. Vloer uitgezocht en besteld.
Op advies van IKEA een tijdelijk zelfbouw werkblad geïnstalleerd, zodat we na plaatsing keuken zelf het kwarts werkblad goed konden inmeten.
Dus ik neem gisteren per mail contact op om aan te geven dat wij zover zijn, of ze de maatschets willen opsturen, zodat ik deze kan controleren. Bellen ze vandaag op dat composiet/kwarts werkbladen per direct niet meer leverbaar zijn.
Maar gelukkig gaan ze in de toekomst overstappen op keramisch. Dat kan ik alleen nog nergens zien of bestellen bij IKEA. De prijs is ongeveer hetzelfde, maar of een vergelijkbare kleur leverbaar is, konden ze niet zeggen. Het werkblad is wel een stuk dunner. En inmeten door de leverancier is verplicht, en dit kost 700,- extra. (!!!)
Het is natuurlijk niet het einde van de wereld, maar ergens vind ik deze werkwijze niet kunnen. Er wordt geen enkele toenadering gedaan, of vergelijkbare oplossing geboden. Er worden ook geen excuses gemaakt voor het niet vooraf informeren. En het alternatief is niet gelijkwaardig, duurder en nog niet leverbaar.
Meer mensen met deze ervaring?
Dan kun je der werkbladorder ook annuleren toch?Prop-er schreef op dinsdag 25 januari 2022 @ 12:50:
Wij hebben afgelopen weken zelf een IKEA hoekkeuken opgebouwd, als vervanger voor de IKEA keuken die we 16 jaar geleden hadden neergezet.
We kozen voor een kwarts/composiet hoogglans werkblad grijs/zwart gespikkeld.
Kleur vd frontjes afgestemd op het werkblad. Wandtegels besteld. Vloer uitgezocht en besteld.
Op advies van IKEA een tijdelijk zelfbouw werkblad geïnstalleerd, zodat we na plaatsing keuken zelf het kwarts werkblad goed konden inmeten.
Dus ik neem gisteren per mail contact op om aan te geven dat wij zover zijn, of ze de maatschets willen opsturen, zodat ik deze kan controleren. Bellen ze vandaag op dat composiet/kwarts werkbladen per direct niet meer leverbaar zijn.
Maar gelukkig gaan ze in de toekomst overstappen op keramisch. Dat kan ik alleen nog nergens zien of bestellen bij IKEA. De prijs is ongeveer hetzelfde, maar of een vergelijkbare kleur leverbaar is, konden ze niet zeggen. Het werkblad is wel een stuk dunner. En inmeten door de leverancier is verplicht, en dit kost 700,- extra. (!!!)
Het is natuurlijk niet het einde van de wereld, maar ergens vind ik deze werkwijze niet kunnen. Er wordt geen enkele toenadering gedaan, of vergelijkbare oplossing geboden. Er worden ook geen excuses gemaakt voor het niet vooraf informeren. En het alternatief is niet gelijkwaardig, duurder en nog niet leverbaar.
Meer mensen met deze ervaring?
Een werkblad heb je volgens mij zo gefixt bij een aantal online werkbladen verkopers. Denk niet dat die duurder zijn dan Ikea.
Voelt alsof je veel ruimte opgeeft, heb je zo iets als dit overwogen?interior schreef op maandag 24 januari 2022 @ 17:30:
[...]
Dit is het plan:
[Afbeelding]
Maar twijfelen nu over de grootte van de keukenachterwand. Hebben nu dus een van 3 meter in ons hoofd.
KL gaf daarvoor deze prijzen:
Keukenmeubelen:
Pronorm X-OS kunststof greeploos (2 hoge kasten (2.6m) de rest lage kasten)
2 eiken planken met inbouwspots (2x 1.80)
Apparatuur:
- Bora PUXU (€ 3199 maar deze is i.v.m actieperiode gratis)
- Siemens multifunctionele oven met stoom en magnetronfunctie 60x60 (HN878G4B6, €2299)
- AEG Koelkast (SCE819E5TS, €1189)
- Spoelbak Caressi Composiet zwart (CAGRPP50BK-TU, € 265,77)
- AEG Vaatwasmachine (FSE63307P, €899)
- Quooker combi flex mat zwart (€ 1313,25)
Werkblad:
Composiet Evora quartz
Totaal Keukenmeubelen : € 13.455 +
Totaal Apparatuur/Accessoires: € 5.966,02 +
Totaal Werkblad(en) : € 4.071,86 +
Subtotaal: € 23.492,88 +
Montage: € 1678,55
Totaal: € 25.171,53
:no_upscale():strip_icc():fill(white):strip_exif()/f/image/pajjwHmK6EynFCmyzYgcyc6k.jpg?f=user_large)
Een eiland is niet ideaal hier IMO
Bericht hierboven
Diepe(re) krassen vooral. Deukjes ook wel, maar dat is meer user-error vind ik, net als een beschadiging op een rand.Streamz schreef op maandag 24 januari 2022 @ 19:22:
[...]
Ok, maar wat is "kwetsbaar" dan? Breuken, krassen, chipjes, scheuren etc?
En was het Arpa Fenix of een andere AFP materiaal? Was het Fenix door en door, of een laagje op MDF?
Fenix ken ik niet anders dan als fineer, op MDF of multiplex voornamelijk. Dat zal hier ook geweest zijn
Bericht hierboven
Maar als je diepe krassen en zelfs deuken krijgt, dan is geen enkel materiaal veilig voor ze. Ik heb wat foto's geplaatst van mijn blad na een jaar gebruik,en je ziet geen enkele kras. En al helemaal geen deuk.
Met veel interesse dit keuken topic aan het doornemen. Er komen veel goede tips voorbij.
Wij hebben zelf een nieuwbouw huis gekocht wat ergens Q1 2023 opgeleverd gaat worden. Inmiddels ook bezig met de indeling van de keuken.
We hebben de optie gekozen om het huis uit te bouwen om zo meer ruimte te creëren in de keuken. Daarnaast laten we de muur tussen de zij-aanbouw en keuken doorbreken (is ook een optie) zodat we flexibeler zijn om de ruimte in te delen; temeer omdat we in de zij-aanbouw een speelruimte en bijkeuken willen creëren die allebei via een aparte schuifdeur te bereiken zijn vanuit de keuken.
In sketchup heb ik een aantal ontwerpen gemaakt en met 1 van de ontwerpen naar een keukenbedrijf geweest voor een eerste gesprek en de opstelling verder te bepalen. Hieronder een aantal screenshots van sketchup en de plattegrond.
Specifiek heb ik de volgende vragen:
1. Opstelling: Wat is jullie indruk van deze opstelling? Valt er nog iets te verbeteren in jullie optiek?
2. Vaatwasser en afvalbak locatie: de vaatwasser wilde we eerst bij spoelbak aan de rechterkant plaatsen en de afvalbak aan de linkerkant. Op die manier heb je er niet zoveel last van als de vaatwasser openstaat en je nog iets wilt pakken in bijvoorbeeld de koelkast. Echter, met het uitruimen van de vaatwasser moet je weer verder lopen om spullen weer in de kastjes te zetten... Wat vinden jullie?
3. Ruimte tussen tafel en kookeiland: Ruimte is nu iets van 70 a 85 cm met een tafel van 1 meter breed. Nu tekent men over het algemeen de stoelen onder te tafel maar ja, dat is niet de praktijk als er mensen aan tafel zitten. Oftewel, is ruimte die nu getekend is voldoende om er geen last van te hebben?
d'n oliesjeik
Nee, zo heb ik er nog niet naar gekeken...maar dit ziet er ook echt goed uit! Vind het sowieso lastig om in te schatten wat handig is om de ruimte goed te benutten. Dank je wel, zal hier eens mee puzzelen om te kijken hoe het eruit ziet in floorplanner.Floor-is schreef op dinsdag 25 januari 2022 @ 15:36:
[...]
Voelt alsof je veel ruimte opgeeft, heb je zo iets als dit overwogen?
[Afbeelding]
Een eiland is niet ideaal hier IMO
Mooi gemaakt met Sketchup! Heel leuk om daar je hele woning mee in elkaar te klussen.Oliesjeik1 schreef op dinsdag 25 januari 2022 @ 17:38:
Hoi allemaal,
Met veel interesse dit keuken topic aan het doornemen. Er komen veel goede tips voorbij.
Wij hebben zelf een nieuwbouw huis gekocht wat ergens Q1 2023 opgeleverd gaat worden. Inmiddels ook bezig met de indeling van de keuken.
We hebben de optie gekozen om het huis uit te bouwen om zo meer ruimte te creëren in de keuken. Daarnaast laten we de muur tussen de zijaanbouw en keuken doorbreken (is ook een optie) zodat we flexibeler zijn om de ruimte in te delen; temeer omdat we in de zijaanbouw een speelruimte en bijkeuken willen creëren die allebei via een aparte schuifdeur te bereiken zijn vanuit de keuken.
In sketchup heb ik een aantal ontwerpen gemaakt en met 1 van de ontwerpen naar een keukenbedrijf geweest voor een eerste gesprek en de opstelling verder te bepalen. Hieronder een aantal screenshots van sketchup en de plattegrond.
Specifiek heb ik de volgende vragen:
1. Opstelling: Wat is jullie indruk van deze opstelling is er nog iets te verbeteren in jullie optiek?
2. Vaatwasser en afvalbak locatie: de vaatwasser wilde we eerst bij spoelbak aan de rechterkant plaatsen en de afvalbak aan de linkerkant. Op die manier heb je er niet zoveel last van als de vaatwasser openstaat en je nog iets wilt pakken in bijvoorbeeld de koelkast. Echter, met het uitruimen van de vaatwasser moet je weer verder lopen om spullen weer in de kastjes te zetten... Wat vinden jullie?
3. Ruimte tussen tafel en kookeiland: Ruimte is nu iets van 70 a 85 cm met een tafel van 1 meter breed. Nu tekent men over het algemeen de stoelen onder te tafel maar ja, dat is niet de praktijk als er mensen aan tafel zitten. Oftewel, is ruimte die nu getekend is voldoende om er geen last van te hebben?
1. Mooie opstelling, je eerste opstelling heeft mijn voorkeur. Persoonlijk niet zo'n fan van deurtjes die niet matchen qua afmeting. Volgens mij combineer je aan de spoelkant kastjes van 50cm en kastjes van 60cm. Ik denk dat je ook wel uit komt qua ruimte als je 1x 50cm laat vervallen en de andere van 50cm vervangt door 60cm. Sowieso even afvragen of je niet liever lades neemt aan die kant.
2. In de voorgestelde oplossing zou ik de vaatwasser rechts doen.
3. Doordat die muur is doorgebroken naar bijkeuken/speelkamer kun je een beetje smokkelijk en vrij makkelijk 10cm winnen om de keuken iets naar achteren te plaatsen.
Helaas welRzaan schreef op dinsdag 25 januari 2022 @ 19:02:
Heb je al die tekeningen van je huis / keuken zelf getekend met Sketchup, @Oliesjeik1
Heb wel een DWG file van de bouwer gekregen, vervolgens omgezet in sketchup file en daarna overtekenen. Maar dan nog, een hoop werk. Maar nu wel redelijk handig met sketchup geworden. Heb inmiddels het hele huis erin gezet
Gaat ons wel helpen met keuzes denk ik en tevens heeft het huis een dwarskap met daaraan een langskap; wilde even weten hoe dat er straks uit komt te zien op de zolder.
Overigens, de meubels zoals de tafel en stoelen kun je uit het 3d warehouse halen. Heb wel de 2017 versie (offline versie) en deze kan niet de nieuwe modellen kan inladen. Dat moet ik dus met een omweg doen (openen in sketchup web versie, download als 2017 versie en vervolgens inladen in m'n offline 2017 versie van sketchup..)
1. Ja, eerste doel was om zoveel mogelijk ruimte te creëren maar wellicht kunnen we er inderdaad 1 laten vallen. Wat betreft lades, dat is ook wat we willen doen (heb ik ook zo getekend toch ?)SquareOne schreef op dinsdag 25 januari 2022 @ 19:13:
[...]
Mooi gemaakt met Sketchup! Heel leuk om daar je hele woning mee in elkaar te klussen.
1. Mooie opstelling, je eerste opstelling heeft mijn voorkeur. Persoonlijk niet zo'n fan van deurtjes die niet matchen qua afmeting. Volgens mij combineer je aan de spoelkant kastjes van 50cm en kastjes van 60cm. Ik denk dat je ook wel uit komt qua ruimte als je 1x 50cm laat vervallen en de andere van 50cm vervangt door 60cm. Sowieso even afvragen of je niet liever lades neemt aan die kant.
2. In de voorgestelde oplossing zou ik de vaatwasser rechts doen.
3. Doordat die muur is doorgebroken naar bijkeuken/speelkamer kun je een beetje smokkelijk en vrij makkelijk 10cm winnen om de keuken iets naar achteren te plaatsen.
2. ok, ook reden waarom?
3. Dat is ook mijn redenatie maar moet nog wel met de bouwer kijken of dat kan. Immers loopt daar de fundering onderdoor lijkt me dus weet niet in hoeverre je het leidingwerk verder die kant op kan halen.
[ Voor 7% gewijzigd door Oliesjeik1 op 26-01-2022 08:00 ]
d'n oliesjeik
:strip_exif()/f/image/CUflvqFGFOneoClv6oEhOibC.jpg?f=fotoalbum_large)
We dachten eerst aan een U-keuken, maar bij een keukenzaak kregen we het advies om een parallelopstelling te nemen met 2 hoge kasten aan de raamkant voor een ruimtelijk effect. Daar werden we wel enthousiast van, maar na de maten nog eens goed te bekijken lijkt dat niet te kunnen.
/f/image/VG1hcz6vRY3KvEbuw6SQ5tSx.png?f=fotoalbum_large)
De hoge kast links op de foto's hieronder komt net voor het raam te staan. De afstand tussen de muur en het raam is 56,8cm aan die kant. Aan de rechterkant past wel een hoge kast. De makkelijkste optie is om dan 2 kasten naast elkaar te plaatsen aan de rechterkant, maar daar zit ook een raam in de zijmuur, dus dat gaat ook niet.
/f/image/naO9rKcf4yIy0GnOL1B2uYUm.png?f=fotoalbum_large)
/f/image/LjtO2akh0K7yDQd3pmyqnPE0.png?f=fotoalbum_large)
/f/image/V6kbkdXFh3Blp0pUmP5qZSvX.png?f=fotoalbum_large)
De parallelle opstelling vind ik wel erg mooi. Eventueel kunnen we de hoge kasten ook aan het eind van de keuken plaatsen richting de kamer, maar dan benemen die kasten het zicht en dan lijkt de kamer een stuk kleiner.
Ik ben heel benieuwd naar jullie ideeën voor een alternatieve opstelling.
plaatjes afbeeldingenAEG FSB53927Z
AEG KMK761080B
AEG SCB618F3LS
Composiet werkblad
Bora Pure met plasma filter
Qooker 3 in 1
Stopcontact
Weet echt niet of dit een goede prijs is, jullie een advies?
Hoor het ook graag als jullie andere tips hebben
[ Voor 18% gewijzigd door KoudeAardbei op 25-01-2022 19:43 ]
t.a.v. punt 1. Je hebt gelijk, ik zat niet op te letten.Oliesjeik1 schreef op dinsdag 25 januari 2022 @ 19:29:
[...]
Helaas wel![]()
Heb wel een DWG file van de bouwer gekregen, vervolgens omgezet in sketchup file en daarna overtekenen. Maar dan nog, een hoop werk. Maar nu wel redelijk handig met sketchup geworden. Heb inmiddels het hele huis erin gezet![]()
Gaat ons wel helpen met keuzes denk ik en tevens heeft het huis een dwarskap met daaraan een langskap; wilde even weten hoe dat er straks uit komt te zien op de zolder.
[...]
1. Ja, eerste doel was om zoveel mogelijk ruimte te creëren maar wellicht kunnen we er inderdaad 1 laten vallen. Wat betreft lades, dat is ook wat we willen doen (heb ik ook zo getekend toch ?)
2. ok, ook reden waarom?
3. Dat is ook mijn redenatie maar moet nog wel met de bouwer kijken of dat kan. Immers loopt daar de fundering onderdoor lijkt me dus weet niet in hoeverre je het leidingwerk verder die kant op kan halen.
t.a.v. punt 2. Als de vaatwasser rechts zit zit die wat minder in de primaire looproute.
Zit nog even naar de opstelling te kijken, maar de doorgangen naar de speelkamer en berging lijken wel smal te worden. Dus zou die spoelkant sowieso iets verkleinen.
Ik moet hierbij een beetje denken aan de opstelling van @Jannick1
Jannick1 in "Het Grote Keuken topic: verkopers, kwaliteit, prijs - Deel 3"
Net als bij ons snap ik soms die keuzen van architecten niet... je weet toch dat een standaard keukenkast 60cm is; waarom wordt daar geen rekening mee gehouden en plaatsen ze het raam 10 cm verder naar binnen... de meeste mensen gaan toch daar een keuken plaatsen lijkt me zo..Zandah schreef op dinsdag 25 januari 2022 @ 19:30:
De hoge kast links op de foto's hieronder komt net voor het raam te staan. De afstand tussen de muur en het raam is 56,8cm aan die kant. Aan de rechterkant past wel een hoge kast. De makkelijkste optie is om dan 2 kasten naast elkaar te plaatsen aan de rechterkant, maar daar zit ook een raam in de zijmuur, dus dat gaat ook niet.
Bij ons hetzelfde met waar de apparaten staan; die wand is meen ik 280cm, waardoor je net niet lekker 5 kasten naast elkaar kan plaatsen zonder weer iets te moeten trucken... En dat terwijl volgens de oorspronkelijke tekening men daar ook de keuken heeft getekend...
Anyway, helpt je nu niets verder ben ik bang. Kwam tot dezelfde ideeën als die je zelf al opgooid met de daarbij behorende bezwaren.
d'n oliesjeik
Precies. Dit is helemaal niet praktisch en ik snap ook niet goed waarom ze het raam niet een beetje opgeschoven hebben.Oliesjeik1 schreef op dinsdag 25 januari 2022 @ 19:43:
[...]
Net als bij ons snap ik soms die keuzen van architecten niet... je weet toch dat een standaard keukenkast 60cm is; waarom wordt daar geen rekening mee gehouden en plaatsen ze het raam 10 cm verder naar binnen... de meeste mensen gaan toch daar een keuken plaatsen lijkt me zo..
Ik zou een U keuken plaatsen. Dan heb je het probleem met hoge kast voor het raam niet. Is dit serieus zo getekend door een keukenzaak?Zandah schreef op dinsdag 25 januari 2022 @ 19:30:
Ook wij hebben een nieuwbouwwoning gekocht. Deze wordt opgeleverd in 2023 Q2. Hieronder zie je de indeling van de begane grond.
[Afbeelding]
We dachten eerst aan een U-keuken, maar bij een keukenzaak kregen we het advies om een parallelopstelling te nemen met 2 hoge kasten aan de raamkant voor een ruimtelijk effect. Daar werden we wel enthousiast van, maar na de maten nog eens goed te bekijken lijkt dat niet te kunnen.
[Afbeelding]
De hoge kast links op de foto's hieronder komt net voor het raam te staan. De afstand tussen de muur en het raam is 56,8cm aan die kant. Aan de rechterkant past wel een hoge kast. De makkelijkste optie is om dan 2 kasten naast elkaar te plaatsen aan de rechterkant, maar daar zit ook een raam in de zijmuur, dus dat gaat ook niet.
[Afbeelding]
[Afbeelding]
[Afbeelding]
De parallelle opstelling vind ik wel erg mooi. Eventueel kunnen we de hoge kasten ook aan het eind van de keuken plaatsen richting de kamer, maar dan benemen die kasten het zicht en dan lijkt de kamer een stuk kleiner.
Ik ben heel benieuwd naar jullie ideeën voor een alternatieve opstelling.
Maar vraagje over je plattegrond. Heb je nu een raam in je keuken dat kijkt naar de keuken van je buren?
De tekening heb ik zelf in Floorplanner gemaakt. De keukenzaak zou het idee nog verder uitwerken, maar in de tussentijd ben ik zelf ook aan de slag gegaan.Z___Z schreef op dinsdag 25 januari 2022 @ 20:12:
[...]
Ik zou een U keuken plaatsen. Dan heb je het probleem met hoge kast voor het raam niet. Is dit serieus zo getekend door een keukenzaak?
Maar vraagje over je plattegrond. Heb je nu een raam in je keuken dat kijkt naar de keuken van je buren?
Wat betreft de plattegrond, de eerste klopt niet helemaal. Dat was de tekening waar de opties op stonden, maar die komt het meest overeen met onze indeling. Hier stond het raam in de zijmuur niet op, maar die zit er wel, dus die heb ik er in geshopt voor de duidelijkheid. Verder kloppen alle maten wel. Onze buren zitten aan de andere kant. Via het raam aan de zijkant kijken we dus gelukkig niet bij de buren naar binnen
1) 15 cm plint, 75 cm korpus en 2 cm blad. Totaal 92 cm. Zit iets onder de ideale hoogte (ik begrijp nog niet helemaal waarom een 16 cm plint niet kan volgens de verkoper).
2) 5 cm plint, 87,5 cm korpus en 2 cm blad. Totaal 94.5 cm. Hoger dan onze gewenste werkblaadhoogte, maar wel optimaal gebruik van de kasten.
Wat zouden jullie aanbevelen in ons geval?
Bij Systemat zit je vast op 78 cm. En bij Pronorm zouden we volgens mij met xline/yline nog naar 83.2 kunnen of 76.8 proline.
Bij Next125 kun je toch ook 87,5cm korpus nemen icm een 12mm blad en 5cm plint. Totale hoogte van 93,7cmkbnwsm schreef op dinsdag 25 januari 2022 @ 21:49:
We zitten met een dilemma betreft hoogte indeling van de keuken kasten. Onze ideale werkbladhoogte is 93.0 cm, gezien mijn partner 1.65 m is. Het merk wat ons het meest aanspreekt is Next125, kijken verder ook nog naar Systemat en Pronorm. De opties bij een 2 cm blad zijn in dat geval bij Next125 beperkt:
1) 15 cm plint, 75 cm korpus en 2 cm blad. Totaal 92 cm. Zit iets onder de ideale hoogte (ik begrijp nog niet helemaal waarom een 16 cm plint niet kan volgens de verkoper).
2) 5 cm plint, 87,5 cm korpus en 2 cm blad. Totaal 94.5 cm. Hoger dan onze gewenste werkblaadhoogte, maar wel optimaal gebruik van de kasten.
Wat zouden jullie aanbevelen in ons geval?
Bij Systemat zit je vast op 78 cm. En bij Pronorm zouden we volgens mij met xline/yline nog naar 83.2 kunnen of 76.8 proline.
Als je flexibel wilt zijn met betrekking tot plint en korpushoogte kan ik ook Tristar aanbevelen. Vanwege onze wens om niet standaard plinthoogtes en kasthoogtes toe te passen zijn wij bij Tristar uit gekomen. Prijstechnisch maakt dat t.o.v. Next125 niet uit en ook kwalitatief ontloopt het elkaar niet echt.
Welke fronten hebben jullie op het oog?
[ Voor 14% gewijzigd door SquareOne op 25-01-2022 21:56 ]
1,2 cm granieten blad (Nero Assoluto) was geen optie gezien we een bargedeelte inbouwen in het kookeiland met 40 cm overhanging, die dus al ondersteund moet worden.SquareOne schreef op dinsdag 25 januari 2022 @ 21:54:
[...]
Bij Next125 kun je toch ook 87,5cm korpus nemen icm een 12mm blad en 5cm plint. Totale hoogte van 93,7cm
Welke fronten hebben jullie op het oog?
We hebben nu NX505 fronten icm NX620 op het oog.
Zal eens kijken naar Tristar, wel interessant als je daar hoogtes kan aanpassen van kasten
Beetje spelen is wel noodzakelijk, 70cm is eigenlijk niet genoeg namelijkinterior schreef op dinsdag 25 januari 2022 @ 17:51:
[...]
Nee, zo heb ik er nog niet naar gekeken...maar dit ziet er ook echt goed uit! Vind het sowieso lastig om in te schatten wat handig is om de ruimte goed te benutten. Dank je wel, zal hier eens mee puzzelen om te kijken hoe het eruit ziet in floorplanner.
@Oliesjeik1
1. De ruimte tussen aanrecht en eiland kan je minder maken, 100-110 is vaak ruim zat, win je 10-20cm bij de tafel
2. Aanrecht is 280. Je kunt eventueel 100-100-60 doen en zo 20cm inkorten, geeft je meer ruimte in de doorgang. Spoelen in een van de 100-kasten, 60 voor de vaatwasser.
3. Eerste opzet heeft ook mijn voorkeur trouwens
[ Voor 31% gewijzigd door Floor-is op 26-01-2022 00:45 ]
Bericht hierboven
Zandah schreef op dinsdag 25 januari 2022 @ 19:30:
Ook wij hebben een nieuwbouwwoning gekocht. Deze wordt opgeleverd in 2023 Q2. Hieronder zie je de indeling van de begane grond.
[Afbeelding]
We dachten eerst aan een U-keuken, maar bij een keukenzaak kregen we het advies om een parallelopstelling te nemen met 2 hoge kasten aan de raamkant voor een ruimtelijk effect. Daar werden we wel enthousiast van, maar na de maten nog eens goed te bekijken lijkt dat niet te kunnen.
[Afbeelding]
De hoge kast links op de foto's hieronder komt net voor het raam te staan. De afstand tussen de muur en het raam is 56,8cm aan die kant. Aan de rechterkant past wel een hoge kast. De makkelijkste optie is om dan 2 kasten naast elkaar te plaatsen aan de rechterkant, maar daar zit ook een raam in de zijmuur, dus dat gaat ook niet.
[Afbeelding]
[Afbeelding]
[Afbeelding]
De parallelle opstelling vind ik wel erg mooi. Eventueel kunnen we de hoge kasten ook aan het eind van de keuken plaatsen richting de kamer, maar dan benemen die kasten het zicht en dan lijkt de kamer een stuk kleiner.
Ik ben heel benieuwd naar jullie ideeën voor een alternatieve opstelling.
:no_upscale():strip_icc():fill(white):strip_exif()/f/image/L7qLz6Qqxe9ibmbpRbww2uqM.jpg?f=user_large)
Beetje lullige 13cm aan de onderkant nu, lastig met de stofzuiger. Maar plek voor de gordijnen, heb ik vandaag opgepikt
Eventueel kan je de wand laten aansluiten, de nis iets vergroten.
Edit: @loeberce geeft wel een mooie oplossing, holy smackers dat ik daar niet aan dacht.. Ik ga nog een keertje tekenen
Bericht hierboven
Er komt maar één beeld mee, kan dat?KoudeAardbei schreef op dinsdag 25 januari 2022 @ 19:39:
Wij zijn bij KeukenKampioen geweest vandaag en hebben het volgende ontvangen:
[Afbeelding]plaatjes afbeeldingen
AEG FSB53927Z
AEG KMK761080B
AEG SCB618F3LS
Composiet werkblad
Bora Pure met plasma filter
Qooker 3 in 1
Stopcontact
***members only***
Weet echt niet of dit een goede prijs is, jullie een advies?
Hoor het ook graag als jullie andere tips hebben
Wat voor composiet werkblad? Wat voor frontjes? Wat is de fabrikant, welke lijn? Hoeveel lades, wat voor grepen, hoe hoog is de plint, welke Quooker? Welk plasmafilter? Wat voor spoelbak? Hoeveel stopcontacten en waar?
Bora met plasmafilter is geen garantie bij Bora schijnt.. Gek dat ze dat adviseren.
Hoe groot wordt dat eiland? Ongeveer 270 denk ik?
Qua opstelling: pfft, waar te beginnen?
- Spoelen tegen de wand aan is shit. Je kunt niet afleggen op deze manier, de muur zit enorm in de weg en gaat vies worden.
- Koken op de rand is niet te adviseren, als je kinderen hebt of iemand die ook maar een beetje onhandig is.. Dan gaan er pannen op de vloer eindigen. Ook hier heb je afstand tot de kopse kant/wang/rand nodig.
- Je hebt weinig ruimte tussen koken en spoelen, maar een zee van ruimte in de kastenwand..
- Die oven zo hoog, WTF!?
Heb dit in een minuut of 10 voor je getekend:
:no_upscale():strip_icc():fill(white):strip_exif()/f/image/VDQYOBfPdUvCDE8Fnrn2Iz3z.jpg?f=user_large)
Ik zou 2x50cm legkasten doen dan, want tegen de muur heb je weinig ruimte voor ellebogen.
Je kunt eventueel ook het eiland aan werkzijde, op mijn schetsje van links naar rechts, als volgt doen: 120 koken, 60 lades, 80 of 90 lades. Dan krijg je 20-30cm meer eiland.
Eventueel kan je ook de nis voor spoelen natuurlijk weer naar 180 trekken, staat nu op 120 waarbij ik spoelen zou centreren. Niet alle fabrikanten kunnen breder dan 60 voor een bovenkastje, dus 2x80 kan niet zomaar bijvoorbeeld.
Een extra hoge kast biedt onwijs veel mogelijkheden: koelen en vriezen lostrekken, servieskast.. Symmetrisch lijkt leuk, maar juist die symmetrie er uit trekken maakt de keuken een beetje speels
[ Voor 18% gewijzigd door Floor-is op 26-01-2022 00:40 ]
Bericht hierboven
Weet je zeker dat de maten goed zijn overgenomen in jouw tekening? Op de bouwtekening lijkt het muurtje namelijk precies de diepte van de keukenkasten te hebben. Aangezien er nog niet gebouwd is, lijkt het alsof de maten in jouw tekening (links en rechts van het grote raam) gespiegeld zijn?Zandah schreef op dinsdag 25 januari 2022 @ 20:25:
[...]
Wat betreft de plattegrond, de eerste klopt niet helemaal. Dat was de tekening waar de opties op stonden, maar die komt het meest overeen met onze indeling.
(…)
Verder kloppen alle maten wel.
[ Voor 3% gewijzigd door Toke_gt op 26-01-2022 08:04 ]
t.a.v. punt 2: dat leek mij ook het beste kwa looproute. Enkel wel het nadeel dat je eventueel iets verder moet lopen met schone vaat.SquareOne schreef op dinsdag 25 januari 2022 @ 19:39:
[...]
t.a.v. punt 1. Je hebt gelijk, ik zat niet op te letten.
t.a.v. punt 2. Als de vaatwasser rechts zit zit die wat minder in de primaire looproute.
Zit nog even naar de opstelling te kijken, maar de doorgangen naar de speelkamer en berging lijken wel smal te worden. Dus zou die spoelkant sowieso iets verkleinen.
Ik moet hierbij een beetje denken aan de opstelling van @Jannick1
Jannick1 in "Het Grote Keuken topic: verkopers, kwaliteit, prijs - Deel 3"
Wat betreft doorgang naar speelkamer en bijkeuken: daar gaan we nog eens naar kijken. Opzich is de opening 90cm wat volgens mij ook standaard deur opening is maar we moeten niet vergeten dat je ook nog wat additionele ruimte verliest vanwege de schuifdeur zelf --> deze kun je natuurlijk niet de volle 90cm openen.
Bedankt voor de tip naar de keuken van Jannick1 --> dat lijkt inderdaad veel op onze opstelling.
d'n oliesjeik
Bedankt voor je reactie.Floor-is schreef op dinsdag 25 januari 2022 @ 23:07:
[...]
@Oliesjeik1
1. De ruimte tussen aanrecht en eiland kan je minder maken, 100-110 is vaak ruim zat, win je 10-20cm bij de tafel
2. Aanrecht is 280. Je kunt eventueel 100-100-60 doen en zo 20cm inkorten, geeft je meer ruimte in de doorgang. Spoelen in een van de 100-kasten, 60 voor de vaatwasser.(Of 90-90-60, want je doorloop is wel erg krap!)
3. Eerste opzet heeft ook mijn voorkeur trouwens
1. We hebben in de keukenzaak gekeken en vinden 100 wel aan de krappe kant. Mijn ouders hebben 120 en dat werkt wat fijner in ons optiek; vooral als je er met z'n tweeën staat. Andere optie om nog wat ruimte te winnen is om de spoelkant 5 cm in te korten (in de diepte) --> deze is nu 65 cm en dit zou 60cm kunnen worden.
2. We gaan er nog eens naar kijken. Wat betreft 100-100-60 --> is dat optisch niet raar als je het zo doet? Omdat het dan niet symmetrisch is? En twijfel dan een beetje over de ruimte die je verliest onder de spoelbak...
3. Thanks
[ Voor 6% gewijzigd door Oliesjeik1 op 26-01-2022 08:44 ]
d'n oliesjeik
Kort door de bocht: mijn advies zou vooral zijn om een ontwerp te laten maken bij een zaak die niet is aangesloten bij DMG.KoudeAardbei schreef op dinsdag 25 januari 2022 @ 19:39:
Wij zijn bij KeukenKampioen geweest vandaag en hebben het volgende ontvangen:
[Afbeelding]plaatjes afbeeldingen
AEG FSB53927Z
AEG KMK761080B
AEG SCB618F3LS
Composiet werkblad
Bora Pure met plasma filter
Qooker 3 in 1
Stopcontact
***members only***
Weet echt niet of dit een goede prijs is, jullie een advies?
Hoor het ook graag als jullie andere tips hebben
9040 Wp | Zendure 15,4 kWh | MHI SCM60/SCM40/SRC25
Bij ons hebben ze het probleem met de maatvoering rond het raam als volgt opgelost. Koffienis met iets kleinere diepte in de hoek bij het raam. En dan de rest van de wand met hoge kasten die wat uitsteken. Overkant een lang laag aanrecht van 70 cm diep.Zandah schreef op dinsdag 25 januari 2022 @ 19:30:
Ook wij hebben een nieuwbouwwoning gekocht. Deze wordt opgeleverd in 2023 Q2. Hieronder zie je de indeling van de begane grond.
[Afbeelding]
We dachten eerst aan een U-keuken, maar bij een keukenzaak kregen we het advies om een parallelopstelling te nemen met 2 hoge kasten aan de raamkant voor een ruimtelijk effect. Daar werden we wel enthousiast van, maar na de maten nog eens goed te bekijken lijkt dat niet te kunnen.
[Afbeelding]
De hoge kast links op de foto's hieronder komt net voor het raam te staan. De afstand tussen de muur en het raam is 56,8cm aan die kant. Aan de rechterkant past wel een hoge kast. De makkelijkste optie is om dan 2 kasten naast elkaar te plaatsen aan de rechterkant, maar daar zit ook een raam in de zijmuur, dus dat gaat ook niet.
[Afbeelding]
[Afbeelding]
[Afbeelding]
De parallelle opstelling vind ik wel erg mooi. Eventueel kunnen we de hoge kasten ook aan het eind van de keuken plaatsen richting de kamer, maar dan benemen die kasten het zicht en dan lijkt de kamer een stuk kleiner.
Ik ben heel benieuwd naar jullie ideeën voor een alternatieve opstelling.
:strip_exif()/f/image/bUdNFFDOKUbtY40P3tfCPRXR.jpg?f=fotoalbum_large)
Lijkt me sterk, DMG is vrijwel altijd het goedkoopst.GermanPivo schreef op woensdag 26 januari 2022 @ 08:20:
[...]
Kort door de bocht: mijn advies zou vooral zijn om een ontwerp te laten maken bij een zaak die niet is aangesloten bij DMG.Dan heb je dezelfde keuken voor een lagere prijs of een betere keuken voor dezelfde prijs.
Als ik de prijzen zo hoor, zeker het 'openingsbod' (alsof je op een veilig staat) is gewoon heel erg duur. Uitzonderingen daargelaten. Het is aan je onderhandelings skills wat je er uiteindelijk van maakt. Dat kan eindigen in 'best prima prijs' tot nog steeds fors aan de prijs.mitsumark schreef op woensdag 26 januari 2022 @ 09:13:
[...]
Lijkt me sterk, DMG is vrijwel altijd het goedkoopst.
Wij zijn in ieder geval (iets) goedkoper uit bij een niet-keten keukenzaak dan de DMG zaak, zelfs nadat de nu beslissen korting en nog 1x kijken o er nog iets vanaf kan, er al vanaf was. Misschien als ik het spelletje hard had gespeeld dat ik er nog wel goedkoper uit was geweest, geen idee. maar ik hou daar niet van. (en was sowieso niet van plan daar te komen, kwamen aanvankelijk alleen om ideeën op te doen)
Maar per definitie zeggen dat DMG zaken de goedkoopste zijn is helaas niet zo
[ Voor 5% gewijzigd door joostbo op 26-01-2022 09:26 ]
Dat is in ieder geval niet mijn ervaring - maar je moet ook maar zin hebben in het potje handjeklap om het onderste uit te kan te halen. De manier van werken staat me sowieso niet aan en is voor mij persoonlijk (!) al reden genoeg om alles wat met DMG te maken heeft te vermijden.mitsumark schreef op woensdag 26 januari 2022 @ 09:13:
[...]
Lijkt me sterk, DMG is vrijwel altijd het goedkoopst.
Wat @joostbo ook zegt.
Neemt niet weg dat het sowieso geen kwaad kan om bij een andere partij een ontwerp te laten maken.
[ Voor 4% gewijzigd door GermanPivo op 26-01-2022 09:26 ]
9040 Wp | Zendure 15,4 kWh | MHI SCM60/SCM40/SRC25
Oliesjeik1 schreef op dinsdag 25 januari 2022 @ 17:38:
Hoi allemaal,
Met veel interesse dit keuken topic aan het doornemen. Er komen veel goede tips voorbij.
Wij hebben zelf een nieuwbouw huis gekocht wat ergens Q1 2023 opgeleverd gaat worden. Inmiddels ook bezig met de indeling van de keuken.
We hebben de optie gekozen om het huis uit te bouwen om zo meer ruimte te creëren in de keuken. Daarnaast laten we de muur tussen de zij-aanbouw en keuken doorbreken (is ook een optie) zodat we flexibeler zijn om de ruimte in te delen; temeer omdat we in de zij-aanbouw een speelruimte en bijkeuken willen creëren die allebei via een aparte schuifdeur te bereiken zijn vanuit de keuken.
In sketchup heb ik een aantal ontwerpen gemaakt en met 1 van de ontwerpen naar een keukenbedrijf geweest voor een eerste gesprek en de opstelling verder te bepalen. Hieronder een aantal screenshots van sketchup en de plattegrond.
Specifiek heb ik de volgende vragen:
1. Opstelling: Wat is jullie indruk van deze opstelling? Valt er nog iets te verbeteren in jullie optiek?
2. Vaatwasser en afvalbak locatie: de vaatwasser wilde we eerst bij spoelbak aan de rechterkant plaatsen en de afvalbak aan de linkerkant. Op die manier heb je er niet zoveel last van als de vaatwasser openstaat en je nog iets wilt pakken in bijvoorbeeld de koelkast. Echter, met het uitruimen van de vaatwasser moet je weer verder lopen om spullen weer in de kastjes te zetten... Wat vinden jullie?
3. Ruimte tussen tafel en kookeiland: Ruimte is nu iets van 70 a 85 cm met een tafel van 1 meter breed. Nu tekent men over het algemeen de stoelen onder te tafel maar ja, dat is niet de praktijk als er mensen aan tafel zitten. Oftewel, is ruimte die nu getekend is voldoende om er geen last van te hebben?
Goed, plaatjes zeggen meer dus bij dezen:
ps. vloer keuze en wanden nog niet bekend.
Materialen (nog niet definitief)
[Afbeelding]

Mijn vriendin is helemaal weg van deze kleur inclusief dit reliëf. Ik begin mij dan weer sterk af te vragen of dit reliëf wel zo praktisch is, vroeg of laat gaat er toch wel wat vuil tussen die ribbels komen. Dan is het niet meer snel met een doekje erover heen
BlaBlaBla
Wij zijn ook aan het kijken voor een nieuwe keuken en kwamen dit front ook tegen.Strider schreef op woensdag 26 januari 2022 @ 09:29:
[...]
[Afbeelding]
Mijn vriendin is helemaal weg van deze kleur inclusief dit reliëf. Ik begin mij dan weer sterk af te vragen of dit reliëf wel zo praktisch is, vroeg of laat gaat er toch wel wat vuil tussen die ribbels komen. Dan is het niet meer snel met een doekje erover heen
Is Pronorm denk ik?
De door jou genoemde argumenten + hoe kijk je er over 5 jaar naar zijn voor ons de reden om hier niet voor te kiezen.
1. Is natuurlijk persoonlijke voorkeur, wij vinden 95cm nog ruim genoeg voor ons. Rondom de tafel wil je zowel optisch als praktisch veel ruimte, dat is lekkerder aanzitten en opstaan, maar levert vooral een prettige doorloopOliesjeik1 schreef op woensdag 26 januari 2022 @ 08:13:
[...]
Bedankt voor je reactie.
1. We hebben in de keukenzaak gekeken en vinden 100 wel aan de krappe kant. Mijn ouders hebben 120 en dat werkt wat fijner in ons optiek; vooral als je er met z'n tweeën staat. Andere optie om nog wat ruimte te winnen is om de spoelkant 5 cm in te korten (in de diepte) --> deze is nu 65 cm en dit zou 60cm kunnen worden.
2. We gaan er nog eens naar kijken. Wat betreft 100-100-60 --> is dat optisch niet raar als je het zo doet? Omdat het dan niet symmetrisch is? En twijfel dan een beetje over de ruimte die je verliest onder de spoelbak...
3. Thanks
2. Als je lades doet met een greeplijst boven en push-to-open onder valt het best mee. En anders is 3x90 of 4x60 wellicht een optie voor je
In je tekening laat je die schuifdeur tot de muur lopen en hoewel een mooi idee is dat op zichzelf pittig: de schuifdeur moet ergens op aansluiten, ergens in vallen. Dat ga je dan in de (buiten)muur laten frezen? Veilig zou zijn als je rekening houdt met een kozijn waar de deur invalt, waardoor je 4-5cm meer ruimte per deur nodig hebt.
Van de 5m30 heb je dan al in gebruik: 30cm bij kastenwand + 2x93cm dagmaat + 2x5cm kozijn = 2m26 waardoor je inderdaad net iets meer dan 3m over hebt. Maximaal te gebruiken zou wat mij betreft 2m90 zijn.
3x90 is effectief 2m74, dan heb je iets van 28cm 'speelruimte' om de deuren een wat natuurlijker plek te geven.
Ik zou ook kijken wat er gebeurt als je het eiland aan de bijkeuken-zijde uitlijnt met het aanrecht en dan het eiland vergroot naar zeg 2m40 (2m44 effectief ongeveer dus).
3. Op de een of andere manier vind ik dit ook wel een geslaagde basis trouwens. Ik zou dan de bovenkastjes niet laten verspringen, dat wandje tussen aanrecht en tafel weghalen en dat aanrecht dieper maken.
De zwevende kasten geven mooi gevoel van ruimte, de donker houten kastenwand ook, ik heb het gevoel dat dit qua maatgeving van de wand en het aanrecht/smalle eiland prettig is bovendien.
Je kunt zelf meer dan prima tekenen, dus als je het niet erg vind doe ik dat niet
Edit: Waarom oh waarom gare forumsoftware maak je op eigen initiatief van een url-tag een img-tag?
Bericht hierboven
Gaat niet helemaal op, maar ik ben het wel met je eens dat deze verkoper nou niet echt het beste uit de ruimte heeft gehaald zeg.GermanPivo schreef op woensdag 26 januari 2022 @ 08:20:
[...]
Kort door de bocht: mijn advies zou vooral zijn om een ontwerp te laten maken bij een zaak die niet is aangesloten bij DMG.Dan heb je dezelfde keuken voor een lagere prijs of een betere keuken voor dezelfde prijs.
Bericht hierboven
Betreft keuken met 7 kasten (220 hoog 60 breed)en kookeiland 330 bij 120.
De navolgende apparatuur:
KD63194D ATAG koelvriescombinatie nis 194 cm wit (2x)
CSX4692D ATAG Matrix D Mulifunctionele nis 45 cm Grafiet
CM4692D ATAG Matrix D volautomatische koffiemachine nis 45 cm grafiet
VA5114MT ATAG Volledige geïntegreerde vaatwasser 60 cm zwart
Bora puru recirculatie
Quooker Flex 3in 1 kraan met PRO3 boiler RVS
afvalemmer en 2 stopcontacten.
Het betreft een standaard DMG groep keuken
kunststof fronten
werkblad multiplex met ABS rand in kleur
totaal 1e prijs met korting zonder onderhandeling 22.666 euro
montage 2675,= (betreft appartement op 1e etage.)
totaal 25;000,=
de kortingen die zijn berekend zijn:
30% op apparatuur en 10% op de overige onderdelen.
Is dit een reële prijs of moet de prijs verder kunnen zakken?
Zou iemand kunnen zeggen of de kortingen een reëel voorstel zijn?
Wat zou de maximale korting kunnen zijn bij DMG groep?
En heeft het zin om naar een andere DMG vestiging of andere winkel te gaan om een prijs op te vragen voor dezelfde opstelling?
Ik zie graag een reactie tegemoet.
:strip_exif()/f/image/5YiDwiREkaHfVhhzxFNB6tdG.jpg?f=fotoalbum_large)
[ Voor 24% gewijzigd door sompie500 op 26-01-2022 10:11 ]
Strider schreef op woensdag 26 januari 2022 @ 09:29:
[...]
[Afbeelding]
Mijn vriendin is helemaal weg van deze kleur inclusief dit reliëf. Ik begin mij dan weer sterk af te vragen of dit reliëf wel zo praktisch is, vroeg of laat gaat er toch wel wat vuil tussen die ribbels komen. Dan is het niet meer snel met een doekje erover heen
Skeuomorf schreef op woensdag 26 januari 2022 @ 09:40:
[...]
Wij zijn ook aan het kijken voor een nieuwe keuken en kwamen dit front ook tegen.
Is Pronorm denk ik?
De door jou genoemde argumenten + hoe kijk je er over 5 jaar naar zijn voor ons de reden om hier niet voor te kiezen.
d'n oliesjeik
Ik zag die trend inderdaad een tijd geleden al bij Leicht (Bossa lijn meen ik) voorbij komen. Alleen was dat toen al helemaal buiten ons budgetStrider schreef op woensdag 26 januari 2022 @ 09:29:
[...]
[Afbeelding]
Mijn vriendin is helemaal weg van deze kleur inclusief dit reliëf. Ik begin mij dan weer sterk af te vragen of dit reliëf wel zo praktisch is, vroeg of laat gaat er toch wel wat vuil tussen die ribbels komen. Dan is het niet meer snel met een doekje erover heen
Nu zijn we gelukkig helemaal blij met ons Bordeaux eiken van Ballerina. Al met veel plezier van de keuken gebruik gemaakt tot nu toe.
Bewust + Bourgondisch - Hier schrijf ik ik over koken en eten
Uhm nee .. DMG is helemaal niet goedkoopst.mitsumark schreef op woensdag 26 januari 2022 @ 09:13:
[...]
Lijkt me sterk, DMG is vrijwel altijd het goedkoopst.
Ik ben overal tegen. Tot ik een besluit neem, dan ben ik ervoor
@Zandah dan krijg je zo iets:loeberce schreef op woensdag 26 januari 2022 @ 08:59:
[...]
Bij ons hebben ze het probleem met de maatvoering rond het raam als volgt opgelost. Koffienis met iets kleinere diepte in de hoek bij het raam. En dan de rest van de wand met hoge kasten die wat uitsteken. Overkant een lang laag aanrecht van 70 cm diep.[Afbeelding]
[Afbeelding]
:no_upscale():strip_icc():fill(white):strip_exif()/f/image/NNcoEUOjzW0DZf0HzdySAn7L.jpg?f=user_large)
Ik zou het muurtje aan de woonkamerzijde van het aanrecht wel plaatsen, maar lager. Niet tot het plafond.
Boven het aanrecht, tegenover de koffienis, daar een kastje wellicht?
En verder boven het aanrecht opbreken met een plank of de Shelf van Jansen en de Bont bijvoorbeeld.
Bericht hierboven
Ja dat is ook zo. Gisteren tafel zo neer gezet als op de tekening en dan blijkt dat tafel te dicht tegen de muur getekend staat zoals deze nu getekend is, dat is niet fijn met opstaan. Vervolgens 10 cm daar bij geplust waardoor doorloop tussen eiland en achterkant van uitgeschoven stoel iets van 80 cm is. Dat voelde opzich nog ok toen we dat uitprobeerde, ook omdat het kookeiland niet hoog is (het is geen wand zeg maar) dus voelt het iets minder krap. Maar goed, we zijn pas net begonnen dus hebben nog even om te perfectioneren.1. Is natuurlijk persoonlijke voorkeur, wij vinden 95cm nog ruim genoeg voor ons. Rondom de tafel wil je zowel optisch als praktisch veel ruimte, dat is lekkerder aanzitten en opstaan, maar levert vooral een prettige doorloop
ah, pocketschuifdeuren heten ze --> weer wat geleerd.2. Als je lades doet met een greeplijst boven en push-to-open onder valt het best mee. En anders is 3x90 of 4x60 wellicht een optie voor jeWat ik als probleem zie is de doorgangen naar de twee ruimten er achter, zo'n doorgang wil je eigenlijk uitvoeren met gelijke dagmaat als je andere deuren en die zullen waarschijnlijk 93cm zijn. Mag ik aannemen dat het pocketschuifdeuren worden? Want anders heb je ook de kozijnen waar je rekening mee moet houden en dat is vaak minimaal 8cm (vaker meer): kom je op 101cm per deur minimaal.
In je tekening laat je die schuifdeur tot de muur lopen en hoewel een mooi idee is dat op zichzelf pittig: de schuifdeur moet ergens op aansluiten, ergens in vallen. Dat ga je dan in de (buiten)muur laten frezen? Veilig zou zijn als je rekening houdt met een kozijn waar de deur invalt, waardoor je 4-5cm meer ruimte per deur nodig hebt.
Van de 5m30 heb je dan al in gebruik: 30cm bij kastenwand + 2x93cm dagmaat + 2x5cm kozijn = 2m26 waardoor je inderdaad net iets meer dan 3m over hebt. Maximaal te gebruiken zou wat mij betreft 2m90 zijn.![]()
3x90 is effectief 2m74, dan heb je iets van 28cm 'speelruimte' om de deuren een wat natuurlijker plek te geven.
Ik zou ook kijken wat er gebeurt als je het eiland aan de bijkeuken-zijde uitlijnt met het aanrecht en dan het eiland vergroot naar zeg 2m40 (2m44 effectief ongeveer dus).
Opzich zijn we nog niet zover, we wilden gewoon schuifdeuren maar inderdaad zonder kozijn. Wat betreft invallen op de muur, ik heb iets van een kozijn getekend waarin de deur zou moeten vallen (is misschien niet heel duidelijk maar heb daar iets van 10cm 'kozijn' uit de muur laten komen
Wat betreft uitlijnen van keukeneiland. Weten we nog niet of we dat willen en of dat dat mooi gaat zijn; wat je dan krijgt is zegmaar 3 rechthoeken achter elkaar (spoelkant, eiland en de tafel). Nu verspringt het iets.
Maar ik zal het eens tekenen.
/f/image/u00zywd1qssZcAKRL3WwEmEK.png?f=fotoalbum_large)
Thanks3. Op de een of andere manier vind ik dit ook wel een geslaagde basis trouwens. Ik zou dan de bovenkastjes niet laten verspringen, dat wandje tussen aanrecht en tafel weghalen en dat aanrecht dieper maken.
De zwevende kasten geven mooi gevoel van ruimte, de donker houten kastenwand ook, ik heb het gevoel dat dit qua maatgeving van de wand en het aanrecht/smalle eiland prettig is bovendien.
Je kunt zelf meer dan prima tekenen, dus als je het niet erg vind doe ik dat niet
[ Voor 4% gewijzigd door Oliesjeik1 op 26-01-2022 10:54 ]
d'n oliesjeik
https://www.nu.nl/nu-wone...waliteit-soms-slecht.html
Het heeft altijd zin om ergens anders te kijken en daarvoor hoef je niet naar het buitenlandsompie500 schreef op woensdag 26 januari 2022 @ 10:10:
Ik wil graag een keuken kopen. Tekening is hierbij weergegeven.
Betreft keuken met 7 kasten (220 hoog 60 breed)en kookeiland 330 bij 120.
De navolgende apparatuur:
KD63194D ATAG koelvriescombinatie nis 194 cm wit (2x)
CSX4692D ATAG Matrix D Mulifunctionele nis 45 cm Grafiet
CM4692D ATAG Matrix D volautomatische koffiemachine nis 45 cm grafiet
VA5114MT ATAG Volledige geïntegreerde vaatwasser 60 cm zwart
Bora puru recirculatie
Quooker Flex 3in 1 kraan met PRO3 boiler RVS
afvalemmer en 2 stopcontacten.
Het betreft een standaard DMG groep keuken
kunststof fronten
werkblad multiplex met ABS rand in kleur
totaal 1e prijs met korting zonder onderhandeling 22.666 euro
montage 2675,= (betreft appartement op 1e etage.)
totaal 25;000,=
de kortingen die zijn berekend zijn:
30% op apparatuur en 10% op de overige onderdelen.
Is dit een reële prijs of moet de prijs verder kunnen zakken?
Zou iemand kunnen zeggen of de kortingen een reëel voorstel zijn?
Wat zou de maximale korting kunnen zijn bij DMG groep?
En heeft het zin om naar een andere DMG vestiging of andere winkel te gaan om een prijs op te vragen voor dezelfde opstelling?
Ik zie graag een reactie tegemoet.[Afbeelding]
[Afbeelding]
In dit topic wordt veelvuldig gesproken over DB keukens, Veldkamp en ASWA. Ook zou je eens kunnen kijken bij een meer lokale speler, die kunnen je best verassen met een mooie opstelling en ditto prijs
Bericht hierboven
De drie bedrijven die je noemt staan nu niet bekend om een 'scherpe' prijs t.o.v. DMG.Floor-is schreef op woensdag 26 januari 2022 @ 10:56:
[...]
Het heeft altijd zin om ergens anders te kijken en daarvoor hoef je niet naar het buitenland
In dit topic wordt veelvuldig gesproken over DB keukens, Veldkamp en ASWA. Ook zou je eens kunnen kijken bij een meer lokale speler, die kunnen je best verassen met een mooie opstelling en ditto prijs
Als je bij DMG wilt kopen, is Keukenloods denk ik de partij met de 'scherpste' prijs.
Eens met het punt dat kleine lokale spelers wel eens verassend uit de hoek kunnen komen
Uiteindelijk wordt het met de tafel toch altijd net anders dan je tevoren dacht. Dan is het mijns inziens verstandig om de ruimte te hebben hier nog een beetje te schuiven. Als je rekening houdt met een tafel van 100 diep, kan je in theorie ook nog naar een 90-diep als je echt te krap uitkomt bijvoorbeeld.Oliesjeik1 schreef op woensdag 26 januari 2022 @ 10:48:
[...]
[...]
Ja dat is ook zo. Gisteren tafel zo neer gezet als op de tekening en dan blijkt dat tafel te dicht tegen de muur getekend staat zoals deze nu getekend is, dat is niet fijn met opstaan. Vervolgens 10 cm daar bij geplust waardoor doorloop tussen eiland en achterkant van uitgeschoven stoel iets van 80 cm is. Dat voelde opzich nog ok toen we dat uitprobeerde, ook omdat het kookeiland niet hoog is (het is geen wand zeg maar) dus voelt het iets minder krap. Maar goed, we zijn pas net begonnen dus hebben nog even om te perfectioneren.
Ruimte om op de stoelen te gaan zitten of op te staan is echt een ding. Ik roep het vaker hier, maar je zou er eigenlijk ook rekening mee moeten houden dat je ouders er fijn kunnen gaan zitten, of iemand anders die al wat meer op leeftijd is
Het hebben van tijd is een fijne luxe, helaas is het nu wel zo dat apparatuur enorme levertijden heeft, dus de basis hebben bedacht en de mogelijkheid om sneller te tekenen zou je ruimte moeten bieden om leveringsproblemen te voorkomen.
Ah nee dat had ik niet gespot en ja die naam heb ik ook gaandeweg geleerd hoor[...]
ah, pocketschuifdeuren heten ze --> weer wat geleerd.![]()
Opzich zijn we nog niet zover, we wilden gewoon schuifdeuren maar inderdaad zonder kozijn. Wat betreft invallen op de muur, ik heb iets van een kozijn getekend waarin de deur zou moeten vallen (is misschien niet heel duidelijk maar heb daar iets van 10cm 'kozijn' uit de muur laten komen
Het fijne voor mij is dat ik kan zeggen 'hey teken het eens uit' inderdaad, je kunt zelf prima een inzicht maken en krijgen als de boel toch al in je 3D tekeningen zitWat betreft uitlijnen van keukeneiland. Weten we nog niet of we dat willen en of dat dat mooi gaat zijn; wat je dan krijgt is zegmaar 3 rechthoeken achter elkaar (spoelkant, eiland en de tafel). Nu verspringt het iets.
Maar ik zal het eens tekenen.
Verduidelijking! En welcome
Bericht hierboven
Hmmjah, prijsstelling is iets waar ik me gemiddeld minder mee bemoei. (Want ik weet de prijzen gewoon niet van de andere merken, kan wel wat zeggen over apparatuur, werkblad en het plaatsen, maar wat voor prijsstelling Pronorm heeft versus Rotpunkt of Nobilia.. Dat weet ik niet hoorSquareOne schreef op woensdag 26 januari 2022 @ 11:17:
[...]
De drie bedrijven die je noemt staan nu niet bekend om een 'scherpe' prijs t.o.v. DMG.
Als je bij DMG wilt kopen, is Keukenloods denk ik de partij met de 'scherpste' prijs.
Eens met het punt dat kleine lokale spelers wel eens verassend uit de hoek kunnen komen.
Ik heb zelf op het moment vooral frustratie van KL, dus die adviseer ik even niet actief.
[ Voor 23% gewijzigd door Floor-is op 26-01-2022 11:40 ]
Bericht hierboven
Volgens Barry is Keukenloods niet echt helemaal DMGSquareOne schreef op woensdag 26 januari 2022 @ 11:17:
[...]
De drie bedrijven die je noemt staan nu niet bekend om een 'scherpe' prijs t.o.v. DMG.
Als je bij DMG wilt kopen, is Keukenloods denk ik de partij met de 'scherpste' prijs.
Eens met het punt dat kleine lokale spelers wel eens verassend uit de hoek kunnen komen.
Barry|IA in "Het Grote Keuken topic: verkopers, kwaliteit, prijs - Deel 3"
9040 Wp | Zendure 15,4 kWh | MHI SCM60/SCM40/SRC25
Thanks voor de tips! We gaan toch naar een niet MDG keukenboer; dit is echt waardeloos als ik er nu op terug krijg.Floor-is schreef op woensdag 26 januari 2022 @ 00:27:
[...]
Er komt maar één beeld mee, kan dat?
Wat voor composiet werkblad? Wat voor frontjes? Wat is de fabrikant, welke lijn? Hoeveel lades, wat voor grepen, hoe hoog is de plint, welke Quooker? Welk plasmafilter? Wat voor spoelbak? Hoeveel stopcontacten en waar?
Bora met plasmafilter is geen garantie bij Bora schijnt.. Gek dat ze dat adviseren.
Hoe groot wordt dat eiland? Ongeveer 270 denk ik?
Qua opstelling: pfft, waar te beginnen?Het spijt me, maar sjongejongejonge, een heleboel klassieke fouten bij elkaar hoor.
- Spoelen tegen de wand aan is shit. Je kunt niet afleggen op deze manier, de muur zit enorm in de weg en gaat vies worden.
- Koken op de rand is niet te adviseren, als je kinderen hebt of iemand die ook maar een beetje onhandig is.. Dan gaan er pannen op de vloer eindigen. Ook hier heb je afstand tot de kopse kant/wang/rand nodig.
- Je hebt weinig ruimte tussen koken en spoelen, maar een zee van ruimte in de kastenwand..
- Die oven zo hoog, WTF!?
Heb dit in een minuut of 10 voor je getekend:
[Afbeelding]
Ik zou 2x50cm legkasten doen dan, want tegen de muur heb je weinig ruimte voor ellebogen.
Je kunt eventueel ook het eiland aan werkzijde, op mijn schetsje van links naar rechts, als volgt doen: 120 koken, 60 lades, 80 of 90 lades. Dan krijg je 20-30cm meer eiland.
Eventueel kan je ook de nis voor spoelen natuurlijk weer naar 180 trekken, staat nu op 120 waarbij ik spoelen zou centreren. Niet alle fabrikanten kunnen breder dan 60 voor een bovenkastje, dus 2x80 kan niet zomaar bijvoorbeeld.
Een extra hoge kast biedt onwijs veel mogelijkheden: koelen en vriezen lostrekken, servieskast.. Symmetrisch lijkt leuk, maar juist die symmetrie er uit trekken maakt de keuken een beetje speels
Neemt niet weg dat ze (lees: een groot deel van de verkopers) dezelfde DMG tactieken hanteren bij verkoop:GermanPivo schreef op woensdag 26 januari 2022 @ 11:42:
[...]
Volgens Barry is Keukenloods niet echt helemaal DMG![]()
Barry|IA in "Het Grote Keuken topic: verkopers, kwaliteit, prijs - Deel 3"
- hoge bruto prijs
- stooien met kortingen en acties (alleen nu geldig!!)
- kortingen worden niet transparant toegepast
- druk zetten op kopers om te tekenen
- offerte is niet transparant (niet duidelijk inzichtelijk wat een ladekast kost t.o.v. een kast met deurtjes. Index prijsgroepen niet duidelijk etc).
Bovenstaande punten zijn overigens ook van toepassing bij een deel van de keukenzaken die géén onderdeel zijn van DMG.
M.i. hebben kopers (zoals ik) die transparantie nodig om de juiste keuzes te maken binnen een bepaald budget. Probleem is dat zaken waarbij zaken wel transparant zijn, dat vervolgens vaak ten koste gaat van de prijs
[ Voor 4% gewijzigd door SquareOne op 26-01-2022 11:52 ]
Daarbij heb ik ook altijd het idee dat de kwaliteit van de keukens hier vrij laag is. Handgrepen die bewegen, simpele plastic bestekbakken, grote pasplinten en lamineerlagen die na enkele jaren gebruik loslaten is niks nieuws.
[ Voor 9% gewijzigd door Ruudje88 op 26-01-2022 12:19 ]
Druk zetten om vooral snel te kopen is zo cheap. 'Snel bestellen hoor, de prijzen gaan stijgen/de korting geldt alleen dit weekend nog/ik heb m'n target voor het kwartaal nog niet en ben nu dus desparaat'.SquareOne schreef op woensdag 26 januari 2022 @ 11:50:
[...]
Neemt niet weg dat ze (lees: een groot deel van de verkopers) dezelfde DMG tactieken hanteren bij verkoop:
- hoge bruto prijs
- stooien met kortingen en acties (alleen nu geldig!!)
- kortingen worden niet transparant toegepast
- druk zetten op kopers om te tekenen
- offerte is niet transparant (niet duidelijk inzichtelijk wat een ladekast kost t.o.v. een kast met deurtjes. Index prijsgroepen niet duidelijk etc).
Bovenstaande punten zijn overigens ook van toepassing bij een deel van de keukenzaken die géén onderdeel zijn van DMG.
Ga weg gek, als ik maandag kom dan krijg ik echt dezelfde prijs nog wel, over twee of drie weken ook.
Meters maken, marge pakken, klanten voorzien van keukens die 'wel ongeveer voldoen'.
Ik begrijp wel dat het niet transparant gemaakt wordt, want marge maken is dan moeilijker. Maar het zou het proces voor veel mensen wel gemakkelijker maken zeg.M.i. hebben kopers (zoals ik) die transparantie nodig om de juiste keuzes te maken binnen een bepaald budget. Probleem is dat zaken waarbij zaken wel transparant zijn, dat vervolgens vaak ten koste gaat van de prijsMaar goed, ik ben vaak genoeg voor gek verklaard dat ik behoefte heb aan die transparantie
Bericht hierboven
De naam KeukenLoods is zo ongelukkig.Ruudje88 schreef op woensdag 26 januari 2022 @ 12:18:
Ik krijg altijd een beetje het seats & sofa's gevoel bij de Keukenconcurrent/Kampioen winkels en reclames (keukenkopers opgelet, gegarandeerd de laagste prijs)
Daar heb je -in mijn opinie- (bijna) geen gelijkDaarbij heb ik ook altijd het idee dat de kwaliteit van de keukens hier vrij laag is. Handgrepen die bewegen, simpele plastic bestekbakken, grote pasplinten en lamineerlagen die na enkele jaren gebruik loslaten is niks nieuws.
Het ontwerp moet beter, dat is meer de schuld van een verkoper die bochten afsnijdt en een klant die het accepteert dan iets anders. Bijna alle keukenwinkels leveren keukens van een prima kwaliteit; lamineer dat loslaat zou inmiddels echt uitzonderingswerk moeten zijn.
En wat betreft besparen op accessoires: dat is juist waar nog marge zit voor de verkopende partij. Die heeft er echt meer aan om jou dure shit aan te smeren. Een afvalsysteem van €300 dat hetzelfde is als wat je bij IKEA voor €100 koopt, een stopcontact van €240 dat je online ook voor de helft vind, bestekbakken etc Daar kan je je marge nog een beetje goedmaken
Bericht hierboven
Geen advies, sorry, maar wel een andere vraag n.a.v. jouw plaatjes: Ik moet mijn nieuwste renders nog krijgen, maar tijdens mijn gesprek afgelopen weekend kwamen we op de plaatsing van de oven + VW. Ik ging in eerste instantie uit van "gewoon" de vw op de grond met de oven daar strak boven, maar de verkoopster liet me nog wel een alternatieve optie zien van een lade eronder, dán de VW en daarboven weer de oven. Lekker de VW op hoogte lijkt me ook wel handig.
Maar toch nog wat twijfel:
- Hoe oogt het IRL qua lijn omdat de VW dan boven het blad uitsteekt?
- Komt een 60cm oven dan niet te hoog te hangen?
- Wat doe je met die lade en kast boven de oven? De koelkast staat ernaast met een verticale greeplijst, maar dat oogt bij deze dan misschien wat vreemd/kan niet eens?
Dit waren de voorbeelden, waarbij de blauwe lijn dan in ons geval het blad zou zijn:
![]() | ![]() |
Zijn die frontjes echt veel duurder dan andere frontjes van Pronorm?Oliesjeik1 schreef op woensdag 26 januari 2022 @ 10:33:
[...]
[...]
Dit is inderdaad pronorm (7040 uit m'n hoofd). Mijn vriendin liep in de keukenzaak meteen naar dit frontje toe; helaas was het ook gelijk de duurste van alle frontjes van pronorm![]()
Wat betreft schoonmaken --> dat is inderdaad een goed punt en voor ons een reden om het niet overal toe te passen (plus prijs uiteraard); wij willen dit frontje enkel in de kastjes in de koffiecorner (kastjes die iets minder diep zijn), zie hieronder.
[Afbeelding]
BlaBlaBla
Ik ben geen bouwkundige dus misschien zeg ik iets lachwekkends.. maar is het geen optie om het raam iets te laten verplaatsen of verkleinen (waarschijnlijk voor een meerprijs)? Dan kan je het maken zoals je wilt en niet zoals het kan.Zandah schreef op dinsdag 25 januari 2022 @ 19:30:
Ook wij hebben een nieuwbouwwoning gekocht. Deze wordt opgeleverd in 2023 Q2. Hieronder zie je de indeling van de begane grond.
We dachten eerst aan een U-keuken, maar bij een keukenzaak kregen we het advies om een parallelopstelling te nemen met 2 hoge kasten aan de raamkant voor een ruimtelijk effect. Daar werden we wel enthousiast van, maar na de maten nog eens goed te bekijken lijkt dat niet te kunnen.
De hoge kast links op de foto's hieronder komt net voor het raam te staan. De afstand tussen de muur en het raam is 56,8cm aan die kant. Aan de rechterkant past wel een hoge kast. De makkelijkste optie is om dan 2 kasten naast elkaar te plaatsen aan de rechterkant, maar daar zit ook een raam in de zijmuur, dus dat gaat ook niet.
De parallelle opstelling vind ik wel erg mooi. Eventueel kunnen we de hoge kasten ook aan het eind van de keuken plaatsen richting de kamer, maar dan benemen die kasten het zicht en dan lijkt de kamer een stuk kleiner.
Ik ben heel benieuwd naar jullie ideeën voor een alternatieve opstelling.
In de prijsklasse van 1 tot 10 zit dit frontje in prijsklasse 10.Strider schreef op woensdag 26 januari 2022 @ 12:55:
[...]
Zijn die frontjes echt veel duurder dan andere frontjes van Pronorm?
Wat precies het prijsverschil is tussen klasse 1 en 10 weet ik niet.
Zie ook de link hieronder voor productboek van proline wat ik online gevonden heb (pdf).
Ff zoeken op 7040 (staat er twee keer in), 1x zonder groef (=prijsklasse 6) en 1x met groef (=prijsklasse 10).
https://www.pronorm.de/wp...Y-line-X-line_09-2021.pdf
d'n oliesjeik
Dit topic kan gebruikt worden voor het volgende:
• Vragen over de keuken, denkend aan indeling, materialen, kastjes, apparatuur, etc.
• Welke kastjes, aanrechtbladen en apparatuur te kiezen
• Ervaringen met verkopers en keukenboeren
• Tips & Tricks denk hierbij aan hulp bij het zelf installeren en onderhouden van de keuken.
• Jouw indeling. Plaats gerust een foto of tekening, maar maak het niet te bont met hele buildlogs.
Voor badkamers: Het Badkamer topic: verkopers, kwaliteit, prijs - Deel 1
Showen met je keuken kan hier: Tweakers Keuken showroom! - Vestiging 1
/f/image/VjZuGvi7dtUCnOp1XuVvz2bS.png?f=fotoalbum_tile)
/f/image/AocjNQaXIQS2KODcNkXYyzvD.png?f=fotoalbum_tile)
/f/image/nYKVHcGQnRNQgpKtH2Iaraz2.png?f=fotoalbum_tile)
/f/image/8uVrUvCItri3jZ1jPuhHUGH8.png?f=fotoalbum_tile)
:strip_exif()/f/image/RRsMXA0DedgJOmPiKeUGa4Op.jpg?f=fotoalbum_tile)
:strip_exif()/f/image/ak7h4asSE5wmbL41esrWZimU.jpg?f=fotoalbum_tile)