• beOnt
  • Registratie: September 2001
  • Laatst online: 18-12 20:05
SquareOne schreef op woensdag 19 januari 2022 @ 13:22:
[...]


Ik weet niet of je met een extra lade bedoelt dat je dan een ladekast hebt met 3 lades?
Bij een ladekast met 2 lades is het zonde om een bestekbak in de bovenste lade te plaatsen. Je maakt dat niet echt efficient gebruik van de ruimte.
Ik bedoel een keukeneiland met 3 aparte lades. (afbeelding hieronder, besteklade rechtsvanboven)
Afbeeldingslocatie: https://tweakers.net/i/3li3JtV5miPYa8oNxxLcPGlCB6U=/800x/filters:strip_exif()/f/image/LnOuO75k1PFGPkD2si0O5vzn.png?f=fotoalbum_large

  • macfocus
  • Registratie: December 2015
  • Laatst online: 12:33
beOnt schreef op woensdag 19 januari 2022 @ 13:52:
[...]


Ik bedoel een keukeneiland met 3 aparte lades. (afbeelding hieronder, besteklade rechtsvanboven)
[Afbeelding]
Bij ons is de vaatwasser tussen de de 2 lades gepland dus daar gaat niet tenzij we smallere lades nemen
Plan: 120-60-120
Optie: 90-60-60-90 maar 1 lade van 6 is bij lange na niet genoeg voor het bestek en kookspul. Hebben nu 90 en dat past eigenlijk al niet.

  • rik86
  • Registratie: Januari 2006
  • Laatst online: 19-12 23:08
SquareOne schreef op woensdag 19 januari 2022 @ 13:40:
[...]


Maak even een schets van de ruimte, dat leest/kijkt een stuk makkelijker :).
8 hoge kasten is serieus veel en oogt wellicht wat massaal. Om het te breden wellicht een nis erin?
Ja, dat is eigenlijk toch wel zo aardig inderdaad ;)

Ik denk dat het ruimtelijk wat vreemd oogt als de kastenwand korter is dan 't eiland. Al kan ik dan, op de afbeelding onderaan, natuurlijk wel een kast weg laten.

In ons huidige huis hebben we een losse koelkast en losse vriezer in de bijkeuken. Hier is geen bijkeuken, dus de vriezer 'kost' ons een kast.
Al houden we dan nog wel redelijk wat kastruimte over ja ;)

Afbeeldingslocatie: https://tweakers.net/i/E6Gjb4pXFSWP58ahZpp7xBRSTxs=/full-fit-in/4000x4000/filters:no_upscale():fill(white):strip_exif()/f/image/KhswBVdEc8ktACAbZC3C43hl.png?f=user_large

  • besteller2019
  • Registratie: Oktober 2019
  • Laatst online: 14-10 14:36
rik86 schreef op woensdag 19 januari 2022 @ 13:31:

Kastenwand is 60 diep, dan 1.20 loop, eiland 1.20, dus dan nog 3.80 tussen eiland en muur voor het eetgedeelte, dat lijkt me ruim zat toch zonder dat het hokkerig voelt?
3.80 tussen eiland en muur. Moet hier een tafel met stoelen tussen?
Als je een rechthoekige tafel neemt van 1m diep heb je 1,40 over aan beiden zijden. Je hebt ongeveer een meter nodig als zitruimte. Je kan eventuele spelen met de ruimte door een ovale (of ronde) tafel te nemen. Een situatieschets zou hierbij handig zijn.

  • besteller2019
  • Registratie: Oktober 2019
  • Laatst online: 14-10 14:36
rik86 schreef op woensdag 19 januari 2022 @ 14:04:
[...]


Ja, dat is eigenlijk toch wel zo aardig inderdaad ;)

Ik denk dat het ruimtelijk wat vreemd oogt als de kastenwand korter is dan 't eiland. Al kan ik dan, op de afbeelding onderaan, natuurlijk wel een kast weg laten.

In ons huidige huis hebben we een losse koelkast en losse vriezer in de bijkeuken. Hier is geen bijkeuken, dus de vriezer 'kost' ons een kast.
Al houden we dan nog wel redelijk wat kastruimte over ja ;)

[Afbeelding]
Dit oogt zeker niet "hokkerig". Lijkt me een prima indeling.

  • Floor-is
  • Registratie: Maart 2000
  • Laatst online: 03-12 11:08
beOnt schreef op woensdag 19 januari 2022 @ 13:17:
[...]


Wij waren hierover ook aan het twijfelen. uiteindelijk hebben we een extra lade voorzien rechts van de bora. (zonder binnenlade, gewoon een extra lade voorzien hiervoor)
Ik snap de logica van binnenlades niet echt (buiten het uitzicht dan)
Ik wil liever minder ladefronten en meer binnenlades; je hebt ook binnenlades die automatisch meekomen trouwens.

Ik heb voor elke (bovenste) lade waar het kan een binnenlade ingetekend. Kost meer, maar zo houden we zoveel mogelijk uit zicht. Elke lade heeft haar eigen rol, waaronder een lekker grote rommellade voor EHBO spulletjes, allerhande shit die je weinig gebruikt etc. :)

Bericht hierboven


  • macfocus
  • Registratie: December 2015
  • Laatst online: 12:33
FF kijken:

Teams:
Mandje - lade
Binnenlades - geen binnenlades
Downdraft - ik hang wel een soort kap op
inductie - gas
Stoomoven ja - nee

Mis ik er nog een paar? :)

  • Floor-is
  • Registratie: Maart 2000
  • Laatst online: 03-12 11:08
rik86 schreef op woensdag 19 januari 2022 @ 13:31:
Zoals ik al een paar pagina's eerder heb gepost, hier ook de keukenjacht gestart. Uiteraard al flink aan 't nadenken over hoe en wat. Woonkamer/keuken/eetkamer is 6.80 bij 9.80.

Woonkamerdeel wordt ongeveer de ene, kleinere, helft, dus ca. 6.80 bij 4.50 en keuken/eetkamer deel andere helft, dus ca. 6.80 bij 5.30.

Idee is een kastenwand, van 8 kasten + een open kast aan 't einde/ de overgang naar de woonkamer met voor de keuken een eiland van ik denk 4.20 bij 1.20. Tussen muur en ene kant eiland een kleine doorgang zodat die optisch vrijstaat, ca. 60 cm, en dan uitgelijnd op de laatste 'normale' kast van de kastenwand.
Ten eerste: wat een weelde aan ruimte!
Ten tweede: 4m20 eiland? Whoa, heftig!
Ten derde: plaatjes?
Op dat eiland moet dan kook en was gedeelte komen. In de kastenwand oven/ combi-magnetron, vriezer, koelkast en m'n vrouw heeft ook 't liefste een hogere vaatwasser, dus die zou dan ook in de kastenwand moeten.
Niet gek hoor een hoge vaatwasser, enige puntje om mee te geven is dan wel op enig afstand van het eiland waar de spulletjes staan en deels opgeborgen moeten worden. (Oh en dat eventuele lichtjes voor timers e.d. het dan niet zullen doen omdat dat licht in de kastenwand valt)
Kastenwand is 60 diep, dan 1.20 loop, eiland 1.20, dus dan nog 3.80 tussen eiland en muur voor het eetgedeelte, dat lijkt me ruim zat toch zonder dat het hokkerig voelt?
Is lekker ruim, ga je geen spijt van krijgen!
Staan hier hele rare dingen in? En ervaringen van mensen met een vaatwasser op hoogte?
Je vertelt de basics en die lijken prima. De details maken echter het verschil ;)
Voordeel is dat de vloer en muren ook volledig onder handen worden genomen, dus leidingwerk goed aanleggen geen problemen zal opleveren normaliter.
Als je het doet, dan gelijk goed!

Bericht hierboven


  • TheWhiskyFriend
  • Registratie: Januari 2022
  • Laatst online: 25-11-2022
Hi allemaal,
We gaan voor het eerst in ons leven een nieuwe keuken kopen en zijn nog niet zeker van onze zaak.
Ik heb al behoorlijk wat informatie kunnen vinden, maar ben toch benieuwd naar jullie mening over onze huidige offerte, en onze keuzes tot zover.

Merk: Rotpunkt NL // Zerox HPL XT
Frontafwerking kastenwand + eiland: HPL extra mat
Front 3 wandkastjes: hout fineer

Bovenaanzicht:
Afbeeldingslocatie: https://tweakers.net/i/859f9zVaxZSuT-DPqoa8vWQ0XnU=/full-fit-in/4920x3264/filters:max_bytes(3145728):no_upscale():strip_icc():fill(white):strip_exif()/f/image/IKdZKSyghjMocmovbSaXY7U6.jpg?f=user_large

Maten
De ruimte is 5,60 m breed
Afstand tussen kastenwand en eiland is 1m
Afstand tussen eiland en tafel +/- 1,30m
Tafel 90cm
Afstand tafel muur +/- 80cm

Kastenwand + Nis van links naar rechts
- Hoge kast 6 tbv Diepvries
- Hoge kast tbv Koelkast
- Hoge servieskast / afvalsysteem onderste deel
- Onderkast 90 cm met 2 voorraadladen (voor borden)
- Onderkast 90 cm met 2 voorraadladen (voorraad)
- 3 Wandkastjes 60 cm
- Legplank hout met spotjes
- Hoge kast met 45 cm Combi oven (onderste kastje met 2 binnenladen voor kruiden etc)
- Hoge kast met 45 cm Stoom oven
- Hoge kast / voorraad.

Eiland 3m x 1m
A
- Onderkast 120 cm met 2 voorraadladen (bovenste voor bestek)
- Vaatwasser 60 cm
- Spoelonderkast 120 cm met 2 voorraadladen
B
- 3 60cm kastjes 40cm diep
- 2x 60 cm ruimte voor 2 krukken

Werkbladen:
- 180 x 60 cm (nis)
- 307 cm x 97,5 cm (eiland)
- Keramiek // Jetstone

Apparatuur:
- AEG Diepvries ABE818F6NC
- AEG Koelkast SKE818E1DC
- AEG Compact stoomoven KSK792280T
- AEG compact Combioven KMK761080T
- AEG Inductie kookplaat met afzuiging CDE8475SCB (afzuiging naar buiten)
- AEG Vaatwasser FSK73727P
- Quooker combi+ zwart
- Spoelbak Franke / zwart


Offerte: €25000 incl montage.


Zaken waar we over twijfelen:

Kostenverlagen door:
- Selsiuz kraan ipv quooker (leek een goede optie, maar twijfel nu behoorlijk)
- Geen afvalsysteem
- Geen binnenlade in onderste deel hoge kasten (tbv kruiden etc)
- Composiet werkbladen ipv Keramiek

Algemeen:
Rotpunkt + AEG: betrouwbaar?
Wel of geen bar aan eiland

Prijs:
We hebben 3 offertes gekregen tussen 25 / 26000 (verschillende keukens: Systemat / Stosa en Rotpunkt met apparatuur van Siemens of AEG)

Is dit een eerlijke prijs, of moeten we beter onderhandelen?


Ik hoor graag van jullie!

  • Alic3
  • Registratie: Juli 2020
  • Laatst online: 05-07-2024
@TheWhiskyFriend Ik denk dat die Selsiuz in het kader 'kostenverlaging' verkeerde zuinigheid is. Doorzoek dit topic maar eens op Selsiuz.

De bar zit nu bij de kookplaat, lijkt me niet ideaal om te zitten als daar gekookt wordt. Omwisselen met de spoelbak misschien?

  • twu
  • Registratie: Mei 2020
  • Laatst online: 10:10

twu

@TheWhiskyFriend Mooie indeling, wij gaan voor ongeveer dezelfde! Alleen betwijfel ik of je bij je eiland nog twee krukjes kwijt kan. Je afstand tussen eiland en tafel (1,30m) is goed voor een comfortabele zit plek aan tafel. Het ziet er naar mijn gevoel nog vrij krapjes uit.

Om iets te zeggen of het een eerlijke prijs is hebben we denk meer informatie nodig hoe de kosten zijn onderverdeeld tussen kasten/blad en apparatuur. Mag ik tevens vragen waar je langs bent geweest voor de offertes?

  • Floor-is
  • Registratie: Maart 2000
  • Laatst online: 03-12 11:08
emreupdates schreef op woensdag 19 januari 2022 @ 12:50:
[...]


Bedankt voor de feedback @Trussardi99. 80 cm werkbladdiepte is net te, ook gezien onze armlengte (we zijn beiden niet langer dan 1.70).
@Floor-is heeft exact uitgewerkt wat je hebt beschreven met de kasten en we gaan het overnemen!
Bovenkasten is nog in discussie :+
Je gaat niet over één nacht ijs, laat zaken op je inwerken. Als je de mogelijkheid hebt: renders maken!
[...]


Dank voor de uitwerking @Floor-is, een 6de grote kast nemen we mee! Wel zouden we de vriezer en servieskast omwisselen zodat de servieskast tegenover de vaatwasser staat.
Waar ik nog wel mee zit zijn de kruiden voor het koken, we zijn in de grote kast van de kookplaat ruimte kwijt aan de bovenzijde i.v.m. afzuiging, als je deze dus groter maakt heb je nog meer ruimte die niet zou kunnen benutten.
Ik denk dat we blijven bij het apothekerskastje van 30cm helemaal links, wel nemen we het idee van 1 groter werkblad en vaatwasser naar helemaal rechts mee en krijgen dan; 30, 90, 120, 60, 60.
Die indeling is maar een opzet natuurlijk, helemaal links een 30 apothekerskastje levert bijna dezelfde werkruimte op en geeft inderdaad ruimte voor kruiden, olie en dat soort spul :)

Vaatwasser helemaal rechts omdat rechts van spoelbak en je dan de rest helemaal in lades kunt uitvoeren.
Volgens mij heb ik de kastenwand per ongeluk gespiegeld, die moet je even zien om te denken, sorry!

Met zoveel kastenwand heb je waarschijnlijk weinig behoefte aan bovenkastjes, wel zou ik overwegen boven het aanrecht iets te doen om de ruimte te breken.

Bericht hierboven


Verwijderd

Dekton eigenaren, hebben jullie inmiddels al een beetje vertrouwen in jullie werkblad?

Bij ons is de keuken nu een week geplaatst, met een 12mm dekton opgedikt naar 50mm werkblad. Met composiete balkjes als onderlijming.

Als je er op tikt op de stukken waar geen onderlijming zit klinkt het net als een glazen plaat. Wat dus een beetje eng voelt, alsof je er absoluut heel voorzichtig mee moet omgaan.

Ervaringen? :)

  • Paulie72
  • Registratie: Juli 2003
  • Laatst online: 09-04 17:37
Blackgold schreef op dinsdag 18 januari 2022 @ 23:32:
Hi allen,

ik lees een tijdje mee en heb al een en ander kunnen opsteken van dit topic (vooral op het gebied van de Bora: ik was team "Maar Wat Als Je Soep Overkookt", maar ben nu wel overtuigd dat het Bora systeem daar voldoende rekening mee houdt).

Wij hebben vorige week een eerste gesprek gehad bij een keukenboer en gaan komend weekend op gesprek bij een andere partij. Ik bedenk me (nu pas) dat het heel fijn zou zijn als we op dit forum wat feedback kunnen krijgen op onze opstelling/indeling voordat we naar de tweede keukenboer gaan. De eerste keukenboer heeft de tekening nog niet uitgewerkt, dus die kan ik helaas nu niet sturen. Daarom heb ik zelf de situatie geschetst in het meest professionele keukentekenprogramma: Google Presentaties.

Woonkamer in geheel:
[Afbeelding]

Kastenwand vooraanzicht:
[Afbeelding]

Eiland bovenaanzicht:
[Afbeelding]

Aanvullende informatie:
1. Er moet en zal een kookeiland komen. Ik kan er niks aan doen dat ik al tien jaar droom van een keukeneiland (en nu kan het eindelijk!).
2. Een kookeiland met parallel kastenwand erachter vind ik het mooist. Van deze opstelling ga ik nu uit.
3. Kastenwand moet een nis hebben, voor extra werkbladruimte.
4. Een back-up opstelling is: kookeiland met kastenwand als T-vorm. In dit geval zou de kastenwand dus tegen de muur met het raam komen. Groot nadeel (los dat het niet mijn ideale opstelling is): 1 van de ovens kan hierdoor niet meer op armhoogte.
- Links van het raam is 35 cm wandruimte, dus dat wordt een dunne kast aan de linkerzijde.
- Rechts van het raam is 90 cm wandruimte. Alleen genoeg voor een koelvriescombinatie.
5. We hebben bewust voor de loopruimtes van 90 en 80 cm gekozen.
- Een vriendin heeft exact deze loopruimtes bij haar eiland en heb in de praktijk ondervonden hoe dat is. Voor ons is het heel goed werkbaar.
- Gekozen om 90 cm aan te houden bij het stuk tussen eiland en kastenwand en iets minder (dus 80 cm) tussen eiland en lege wand.

Schiet u maar!
Ik zou in jou opzet voor een 80cm diep kookeiland gaan en geen krukjes dan kan het prima dan heb je 100cm tussen de kastenwand en je eiland en de andere kant 90cm dat kan het echt net aan.

Mini PC I5-10400 dual monitor, HP Microserver Freenas


  • macfocus
  • Registratie: December 2015
  • Laatst online: 12:33
Vast wat voorbereidend werk doen voor het eerste bezoek aan de 2e keukenzaak.

Idee is een eiland van 300 x 120 met erachter een wand met nis.
In het eiland spoelen/ vaatwasser/ koken.

Is die vaatwasser daar tussen nou een goed idee?
Ja, als je afspoelt kan het meteen de vw in, maar zit die vaatwasser dan niet in de weg met koken?

Iemand praktijk ervaring?

We gaan sowieso die keukenzaak zelf lekker fris laten beginnen zonder al te voorgekookt idee.

  • TheWhiskyFriend
  • Registratie: Januari 2022
  • Laatst online: 25-11-2022
twu schreef op woensdag 19 januari 2022 @ 16:39:
@TheWhiskyFriend Mooie indeling, wij gaan voor ongeveer dezelfde! Alleen betwijfel ik of je bij je eiland nog twee krukjes kwijt kan. Je afstand tussen eiland en tafel (1,30m) is goed voor een comfortabele zit plek aan tafel. Het ziet er naar mijn gevoel nog vrij krapjes uit.

Om iets te zeggen of het een eerlijke prijs is hebben we denk meer informatie nodig hoe de kosten zijn onderverdeeld tussen kasten/blad en apparatuur. Mag ik tevens vragen waar je langs bent geweest voor de offertes?
Thx voor jullie reacties.

De offertes die we hebben gekregen laten alleen een totaalprijs zien. Niet heel erg transparant. We zijn bij verschillende zaken in z-limburg geweest.

@Alic3 Heb de reacties in dit topic gelezen mbt Selsiuz. Niet erg positief…. Wat betreft krukjes leek het ons leuker aan tuinkant. Ik hoop dus dat 40 cm ruimte tot aan kookplaat net genoeg is.

  • Scuderia110
  • Registratie: September 2017
  • Niet online
Korte vraag tussendoor, we hebben een Bora PUXA besteld, ze gaan een PUXU leveren, die kunnen ze dan aanpassen naar afvoer naar buiten. Kan er niet zoveel over vinden, iemand hier ervaring mee dat het zo gebeurt?

  • mitsumark
  • Registratie: Juni 2009
  • Laatst online: 11:17
@emreupdates Ook deze keuken gezien bij de pins? Lijkt me een prima alternatief.
Deodaat in "Het Grote Keuken topic: verkopers, kwaliteit, prijs - Deel 3"

  • Floor-is
  • Registratie: Maart 2000
  • Laatst online: 03-12 11:08
Scuderia110 schreef op woensdag 19 januari 2022 @ 21:22:
Korte vraag tussendoor, we hebben een Bora PUXA besteld, ze gaan een PUXU leveren, die kunnen ze dan aanpassen naar afvoer naar buiten. Kan er niet zoveel over vinden, iemand hier ervaring mee dat het zo gebeurt?
Er zit dezelfde motor in schijnt, dus dat mag geen issue zijn :)

Bericht hierboven


  • Floor-is
  • Registratie: Maart 2000
  • Laatst online: 03-12 11:08
macfocus schreef op woensdag 19 januari 2022 @ 14:47:
FF kijken:

Teams:
Mandje - lade
Binnenlades - geen binnenlades
Downdraft - ik hang wel een soort kap op
inductie - gas
Stoomoven ja - nee

Mis ik er nog een paar? :)
Hier wat meer teams:
  • Lade vs legplanken
  • Binnenlades vs niet
  • Downdraft vs enig ander vorm van afzuiging
  • Inductie vs keramisch of gas
  • Stoomoven (of stoom-injectie) vs bakoven
  • Geen magnetron versus wel
  • Eiland vs schiereiland, parallel, L, U of *brrr* I-vormig
  • Composiet vs Dekton, natuursteen, beton, RVS, hout, melanine. HiMacs (wel vet hoor, HiMacs)
  • Greeplijst vs grepen, push-to-open
  • Hanglamp boven eiland versus spotjes
  • Wandlamp boven keus voor spotjes bij aanrecht
  • Geen bovenkastjes vs wel bovenkastjes boven aanrecht
  • Minimaal 8cm plinten vs alles dat lager is dan dat
  • Onderbouw spoelbak vs vlakbouw of *brrr* opbouw
  • Vlakbouw kookplaat vs opbouw
  • Quooker vs Selciuszusns of Grohe of nog ander merk
  • Bubbels koop je in een fles vs Quooker Cube
  • Hout(fineer) én Arpa Fenix fronten vs plastics, gespoten, gewrapt of whatever je bedenken kunt
  • Hout of PVC als vloer vs plavuizen, gietvloer, zeil, tegels, cementbeton of God verbiede tapijt in de keuken
  • Enkele (grote) spoelbak vs anderhalve spoelbak
  • Vierkant vs ronde spoelbak
  • Koken in de hoek vs spoelbak in de hoek
  • Heusnie LeManskast vs echwel!
  • Geen zeepompje vs wel
  • Stopcontacten verstopt vs stopcontact in je werkblad of de kopse kanten ergens
  • RVS kraan vs chrome, patina, goud, zwart of wit
  • Rechte werkbladafwerking voor bladen tot 6-7 cm vs rond of papagaaibek
  • Gefrijnsde werkbladafwerking voor bladen >6cm vs recht, rond, papagaaibek
  • Geen waterkering voor je werkblad vs wel
  • Rechte werkbladopdikking versus doublure en doublure terugliggend
  • Achterwand van nis in contrasterende kleur vs werkblad of gelijktrekken aan frontje/anders
  • Welke kant je vaatwasser van de spoelbak komt maakt niet uit vs wel
En tevens:
Elke keuken is anders, moet aansluiten bij jouw eisen en wensen.
  • Heb jij liever plankjes? Cool
  • Heb je liever grepen? Ook cool
  • Wil je wel bergen bovenkastjes: fine by me!
  • Geil je je kapot op een melanineblad in betonlook: who am I to judge, heb ik zelf ook!
  • Geen Quooker, helemaal geen kokendwaterkraan? Hey you be you!
  • Wil je per se een wasemkap: sure thing!
  • 23cm hoge plinten? Ga wel vragen stellen hoe je dat wilt doen, maar als dat echt is wat jij wilt dan moet je dat lekker doen!
Toevoeging: Ik moet ergens een grens trekken..
Stalen keuken? Nope
Shaker-deurtjes (ook wel traditionele deurtjes)? Nope
Frame kasten (Amerikaanse stijl)? HELL NO
Weinig tot geen contrast tussen vloer en keukenkasten? Nah
Zelfde materiaal op de vloer als je werkblad? Haha, nee niet doen



@Ladypurple jij had toch ook contact met of al een lamp van Jansen & de Bont? Ik krijg telkens mail na 22:00 van ze, erg gewaardeerd hoor, maar da's wel stevig laat :D

Ik wil een pendant van 330cm, die bieden ze niet standaard aan. Jammergenoeg zijn er ook weinig foto's te vinden van mensen die er eentje hebben hangen :/

[ Voor 17% gewijzigd door Floor-is op 19-01-2022 22:32 ]

Bericht hierboven


  • Lize167
  • Registratie: Januari 2020
  • Laatst online: 26-06 06:25
Scuderia110 schreef op woensdag 19 januari 2022 @ 21:22:
Korte vraag tussendoor, we hebben een Bora PUXA besteld, ze gaan een PUXU leveren, die kunnen ze dan aanpassen naar afvoer naar buiten. Kan er niet zoveel over vinden, iemand hier ervaring mee dat het zo gebeurt?
Bij ons is de puru omgebouwd tot pura. had onze monteur in 13 jaar nog nooit gedaan maar is gelukt. Monteur van vrienden kon dat niet, daar hebben ze zelf de boel om moeten bouwen.

  • macfocus
  • Registratie: December 2015
  • Laatst online: 12:33
Floor-is schreef op woensdag 19 januari 2022 @ 22:19:
[...]

Hier wat meer teams:
  • Lade vs legplanken
  • Binnenlades vs niet
  • Downdraft vs enig ander vorm van afzuiging
  • Inductie vs keramisch of gas
  • Stoomoven (of stoom-injectie) vs bakoven
  • Geen magnetron versus wel
  • Eiland vs schiereiland, parallel, L, U of *brrr* I-vormig
  • Composiet vs Dekton, natuursteen, beton, RVS, hout, melanine. HiMacs (wel vet hoor, HiMacs)
  • Greeplijst vs grepen, push-to-open
  • Hanglamp boven eiland versus spotjes
  • Wandlamp boven keus voor spotjes bij aanrecht
  • Geen bovenkastjes vs wel bovenkastjes boven aanrecht
  • Minimaal 8cm plinten vs alles dat lager is dan dat
  • Onderbouw spoelbak vs vlakbouw of *brrr* opbouw
  • Vlakbouw kookplaat vs opbouw
  • Quooker vs Selciuszusns of Grohe of nog ander merk
  • Bubbels koop je in een fles vs Quooker Cube
  • Hout(fineer) én Arpa Fenix fronten vs plastics, gespoten, gewrapt of whatever je bedenken kunt
  • Hout of PVC als vloer vs plavuizen, gietvloer, zeil, tegels, cementbeton of God verbiede tapijt in de keuken
  • Enkele (grote) spoelbak vs anderhalve spoelbak
  • Vierkant vs ronde spoelbak
  • Koken in de hoek vs spoelbak in de hoek
  • Heusnie LeManskast vs echwel!
  • Geen zeepompje vs wel
  • Stopcontacten verstopt vs stopcontact in je werkblad of de kopse kanten ergens
  • RVS kraan vs chrome, patina, goud, zwart of wit
  • Rechte werkbladafwerking voor bladen tot 6-7 cm vs rond of papagaaibek
  • Gefrijnsde werkbladafwerking voor bladen >6cm vs recht, rond, papagaaibek
  • Geen waterkering voor je werkblad vs wel
  • Rechte werkbladopdikking versus doublure en doublure terugliggend
  • Achterwand van nis in contrasterende kleur vs werkblad of gelijktrekken aan frontje/anders
  • Welke kant je vaatwasser van de spoelbak komt maakt niet uit vs wel
En tevens:
Elke keuken is anders, moet aansluiten bij jouw eisen en wensen.
  • Heb jij liever plankjes? Cool
  • Heb je liever grepen? Ook cool
  • Wil je wel bergen bovenkastjes: fine by me!
  • Geil je je kapot op een melanineblad in betonlook: who am I to judge, heb ik zelf ook!
  • Geen Quooker, helemaal geen kokendwaterkraan? Hey you be you!
  • Wil je per se een wasemkap: sure thing!
  • 23cm hoge plinten? Ga wel vragen stellen hoe je dat wilt doen, maar als dat echt is wat jij wilt dan moet je dat lekker doen!
Een paar termn moest ik even opzoeken. Weer wat geleerd….
Bubbels koop je overigens in de fles en dan maar meteen in een kleurtje , met schuim en alcohol _/-\o_

  • Ladypurple
  • Registratie: Maart 2021
  • Laatst online: 19-12 16:00
@Floor-is
Lamp, nee dat ben ik niet...

  • Source90
  • Registratie: December 2008
  • Laatst online: 11:20
Floor-is schreef op woensdag 19 januari 2022 @ 22:19:
[...]

Ik wil een pendant van 330cm, die bieden ze niet standaard aan. Jammergenoeg zijn er ook weinig foto's te vinden van mensen die er eentje hebben hangen :/
Ik heb een lamp van 330cm aangevraagd. Met 50/50 bediening. Bedoel ik mee dat je links en rechts apart aan kon zetten.

Members only:
Alleen zichtbaar voor ingelogde gebruikers. Inloggen


Echter niet mee door gegaan. Ik wilde 230-100 bediening (eiland-tafel) echter was dit geen optie.

  • mevrouwKees_1
  • Registratie: December 2020
  • Laatst online: 18-12 22:33
Ik heb er 1 besteld en ik krijg ook op rare tijden / dagen reactie ;)

Ik ben overal tegen. Tot ik een besluit neem, dan ben ik ervoor


  • Strider
  • Registratie: November 2001
  • Laatst online: 19-12 22:32
Wat vinden jullie van de onderstaande indeling?
Vriendin wil het liefst een eiland, geen schiereiland, zodat we altijd een andere route kunnen nemen als er visite aan tafel zit.
Voorheen dachten we aan een eiland van 2.4m, nu denk ik dat een groter eiland toch wel fijner is. Een eiland van 2.8m past in de onderstaande tekening, maar 1 doorgang wordt dan wel maar 75cm. Opzich nog steeds voldoende om langs af te lopen.
Helaas gaat het dan wel spaak met de belijning van de koffienis (rechtsonder, is nu 1m). Maargoed, ik denk dat ik daar wel mee kan leven.

Afbeeldingslocatie: https://i.imgur.com/oBZQGaM.png

BlaBlaBla


  • GeeMoney
  • Registratie: April 2002
  • Laatst online: 11:44
@Strider Die 75cm doorloop had beter aan de kant kunnen zitten waar je niet verwacht vaak door te moeten lopen.
Hij zit bij jou nu echter aan de kant waar je ook vanaf de kamer komt en dat zal vermoedelijk je hoofd doorgang worden.
Ik heb ook een doorgang van 70cm aan 1 kant maar dat is alleen een optionele looproute in mijn geval en daar gaat hooguit iemand 1x per maand langs hier en dan is het prima.
Als vaste doorloop is het wat mij betreft te klein.

Members only:
Alleen zichtbaar voor ingelogde gebruikers. Inloggen

De 70cm zit bij mij dus aan paarse muur kant.
De zijde vanwaar de foto genomen is heeft 1.40m. Het eiland zelf is 4.60m

[ Voor 36% gewijzigd door GeeMoney op 26-02-2022 01:20 ]


  • Toke_gt
  • Registratie: Juni 2021
  • Laatst online: 10:35
Strider schreef op donderdag 20 januari 2022 @ 00:25:
Wat vinden jullie van de onderstaande indeling?

Helaas gaat het dan wel spaak met de belijning van de koffienis (rechtsonder, is nu 1m). Maargoed, ik denk dat ik daar wel mee kan leven.
Ik zou de doorgang bij nis op 1m maken en de andere doorgang op 87. Dan heb je goede doorgang aan beide kanten en lijnt het ook nog met je koffienis. Vooral omdat de nis aan die kant zit, ga je die doorgang het meest gebruiken. Eventueel maak je je eiland 2.70 (3x90?) dan heb je 1m en 97cm doorloop.

  • boomr
  • Registratie: Oktober 2002
  • Laatst online: 18-12 10:27
Strider schreef op donderdag 20 januari 2022 @ 00:25:
Wat vinden jullie van de onderstaande indeling?
Vriendin wil het liefst een eiland, geen schiereiland, zodat we altijd een andere route kunnen nemen als er visite aan tafel zit.
Voorheen dachten we aan een eiland van 2.4m, nu denk ik dat een groter eiland toch wel fijner is. Een eiland van 2.8m past in de onderstaande tekening, maar 1 doorgang wordt dan wel maar 75cm. Opzich nog steeds voldoende om langs af te lopen.
Helaas gaat het dan wel spaak met de belijning van de koffienis (rechtsonder, is nu 1m). Maargoed, ik denk dat ik daar wel mee kan leven.

[Afbeelding]
Wij hebben situatie die lijkt op je tekening. WIj hebben ervoor gekozen om aan een kant van de eettafel een bankje te hebben die tegen de muur aan staan. Dat gaat natuurlijk wel moeilijker met een ovale tafel:(
Probeer eens een stoel naar achteren te schuiven en uit te stappen als je ongeveer een meter de ruimte hebt. Dat is weinig. In je huidige situatie heb je minder.

https://eu.diablo3.com/en/profile/admrobo-1762/hero/79407822 - Xbox gamertag: control1983


  • Perseus
  • Registratie: April 2010
  • Laatst online: 18-12 19:00
Perseus schreef op zondag 16 januari 2022 @ 22:20:
Vaker actief in andere topics, maar nu ook toe aan een nieuwe keuken, dus wend me richting jullie :) . Eerste keer dat we een keuken kopen (nieuwbouw), dus alle advies is welkom. Wij zijn fan van Ikea en vinden toevallig ook de Sinarp-lijn een erg mooie kleurstelling. Vandaag een schets laten maken, welke we naar een technisch tekenaar moeten sturen om een installatietekening te laten maken voor de bouwer (https://technischekeukentekening.nl/, ik las hier goede ervaringen mee). Apparatuur halen we wel los, nu staat voornamelijk een combinatie van Bosch/Miele + Quooker apparatuur op het lijstje.

Het idee is een kookeiland met een kastenwand, waarin een nis zit voor zaken zoals een koffiezetapparaat, blender en eventueel andere spullen die dan niet op het kookeiland hoeven. In deze nis komen ook stroomaansluitingen. Verder koelkast en vriezer in de twee hoge deuren aan de linkerkant van de kastenwand. Omdat we wat ruimte willen houden voor de tafel, staat het eiland niet helemaal in het midden, maar zou misschien nog wat kunnen opschuiven naar rechts / richting te eetkamertalel voor meer symmetrie. Wat zouden jullie eventueel anders doen? Dank!

[Afbeelding]
Vraag 1001 over afmetingen van een eiland; Wij zijn inmiddels bij een andere keukenzaak geweest die een iets gewijzigde opstelling heeft. Hij raadde ons aan om toch voor een eiland van 3 meter te gaan, waardoor we aan beide kanten 90 cm doorloop overhouden. Onze oorspronkelijke opzet was een eiland van 2,80 met aan 1 kant 1,30 en aan de andere kant 80 cm (zie afbeelding quote). Bij een voorbeeld in de keukenzaak met 90cm zag ik niet direct problemen, maar weet niet of jullie zoeits afraden. Ik begin toch weer te twijfelen. Een eerdere post sprak ook over minimaal 1,20m en wil ook niet dat alles propperig aan gaat voelen.

Renders met 90cm.

Afbeeldingslocatie: https://tweakers.net/i/Yg09jWRpUlPGg8t_SBgchnYdLBc=/full-fit-in/4920x3264/filters:max_bytes(3145728):no_upscale():strip_icc():fill(white):strip_exif()/f/image/ROWwEod1B8XAIlyRUmt9yZ4l.jpg?f=user_large

Afbeeldingslocatie: https://tweakers.net/i/mOzDwUcclpfMj7_IQB1DT2zk29A=/full-fit-in/4920x3264/filters:max_bytes(3145728):no_upscale():strip_icc():fill(white):strip_exif()/f/image/UG00zDdWxcC23VxjPOdfHVtE.jpg?f=user_large

  • Perseus
  • Registratie: April 2010
  • Laatst online: 18-12 19:00
Strider schreef op donderdag 20 januari 2022 @ 00:25:
Wat vinden jullie van de onderstaande indeling?
Vriendin wil het liefst een eiland, geen schiereiland, zodat we altijd een andere route kunnen nemen als er visite aan tafel zit.
Voorheen dachten we aan een eiland van 2.4m, nu denk ik dat een groter eiland toch wel fijner is. Een eiland van 2.8m past in de onderstaande tekening, maar 1 doorgang wordt dan wel maar 75cm. Opzich nog steeds voldoende om langs af te lopen.
Helaas gaat het dan wel spaak met de belijning van de koffienis (rechtsonder, is nu 1m). Maargoed, ik denk dat ik daar wel mee kan leven.

[Afbeelding]
Die ruimte van 1.12m zou ik aanhouden of juist wat groter maken gevoelmatig, zeker omdat daar 2 deuren zitten en het loopgebied is. Als je daar met wat zwaars binnen komt lopen tegen de hoek van de blad loopt baal je wel. Ik zou persoonlijk toch voor 2.60m gaan en die kant van 0.75m groter maken, die 1.12m kant niet kleiner. Wat bij mij ook meespeelt (zie mijn vraag hierboven) is of we de ruimte niet willen volproppen met keuken. Juist wat minder groot keukenblok kan de ruimte juist was ruimtelijker doen aanvoelen. Zeker omdat je ook werkruimte aan de andere kant tegen de muur hebt is die extra 20cm niet noodzakelijk denk ik.

  • Ladypurple
  • Registratie: Maart 2021
  • Laatst online: 19-12 16:00
Perseus schreef op donderdag 20 januari 2022 @ 09:20:
[...]


Vraag 1001 over afmetingen van een eiland; Wij zijn inmiddels bij een andere keukenzaak geweest die een iets gewijzigde opstelling heeft. Hij raadde ons aan om toch voor een eiland van 3 meter te gaan, waardoor we aan beide kanten 90 cm doorloop overhouden. Onze oorspronkelijke opzet was een eiland van 2,80 met aan 1 kant 1,30 en aan de andere kant 80 cm (zie afbeelding quote). Bij een voorbeeld in de keukenzaak met 90cm zag ik niet direct problemen, maar weet niet of jullie zoeits afraden. Een eerdere post sprak over minimaal 1,20m.

Renders met 90cm.

[Afbeelding]

[Afbeelding]
Je bedoelt de ruimte tussen eiland en kastenwand?
Ik denk dat het een groot verschil maakt of je due 90 cm parallel aan elkaar hebt of zoals in dit voorbeeld.

  • Alic3
  • Registratie: Juli 2020
  • Laatst online: 05-07-2024
@Perseus Mooie keuken, maar die afzuigkap doet echt afbreuk aan het geheel :X

  • Ladypurple
  • Registratie: Maart 2021
  • Laatst online: 19-12 16:00
GeeMoney schreef op donderdag 20 januari 2022 @ 07:33:
@Strider Die 75cm doorloop had beter aan de kant kunnen zitten waar je niet verwacht vaak door te moeten lopen.
Hij zit bij jou nu echter aan de kant waar je ook vanaf de kamer komt en dat zal vermoedelijk je hoofd doorgang worden.
Ik heb ook een doorgang van 70cm aan 1 kant maar dat is alleen een optionele looproute in mijn geval en daar gaat hooguit iemand 1x per maand langs hier en dan is het prima.
Als vaste doorloop is het wat mij betreft te klein.


***members only***

De 70cm zit bij mij dus aan de muur kant.
Dit vind ik een voorbeeld voor @blackgold, kan je aangeven hoe breed de ruimte is?

  • Perseus
  • Registratie: April 2010
  • Laatst online: 18-12 19:00
Ladypurple schreef op donderdag 20 januari 2022 @ 09:29:
[...]

Je bedoelt de ruimte tussen eiland en kastenwand?
Ik denk dat het een groot verschil maakt of je due 90 cm parallel aan elkaar hebt of zoals in dit voorbeeld.
Wellicht niet duidelijk, maar de ruimte tussen de muur (met schilderijen) en het eiland (dus waar je staat te koken) is ca. 1.35m, dat is ruimte zat. Ik doel hier specifiek de ruimte tussen de het uiteinden en de kastenwand en muur aan de andere kant.

  • Perseus
  • Registratie: April 2010
  • Laatst online: 18-12 19:00
Alic3 schreef op donderdag 20 januari 2022 @ 09:30:
@Perseus Mooie keuken, maar die afzuigkap doet echt afbreuk aan het geheel :X
Ha, hierover een paar pagina's terug al discussie gehad (en ook van jou een reactie geloof ik ;)) . Een geintegreerde afzuiging is voor ons gewoon niet geschikt. Functie boven vorm hier in huis. We zijn wel aan het kijken naar een designkap, zoals een Wave of Novy.

[ Voor 4% gewijzigd door Perseus op 20-01-2022 09:36 ]


  • Alic3
  • Registratie: Juli 2020
  • Laatst online: 05-07-2024
Perseus schreef op donderdag 20 januari 2022 @ 09:35:
[...]


Ha, hierover een paar pagina's terug al discussie gehad ;) . Een geintegreerde afzuiging is voor ons gewoon niet geschikt. Functie boven vorm hier in huis. We zijn wel aan het kijken naar een designkap, zoals een Wave of Novy.
Alles beter dan dit model ;)

  • Ladypurple
  • Registratie: Maart 2021
  • Laatst online: 19-12 16:00
Perseus schreef op donderdag 20 januari 2022 @ 09:33:
[...]


Wellicht niet duidelijk, maar de ruimte tussen de muur (met schilderen) en het eiland (dus waar je staat te koken) is ca. 1.35m, dat is ruimte zat. Ik doel hier specifiek de ruimte tussen de het uiteinden en de kastenwand en muur aan de andere kant.
Dat is geen ruimte waar je staat te werken, er moet alleen genoeg ruimte zijn om goed in de laden te kunnen en door te lopen.

  • Rzaan
  • Registratie: Mei 2018
  • Laatst online: 11:31

Rzaan

Altijd zoekende

[b]Perseus schreef op donderdag 20 januari 2022 @ 09:20:
Hij raadde ons aan om toch voor een eiland van 3 meter te gaan, waardoor we aan beide kanten 90 cm doorloop overhouden.
= 4.80
[b]Perseus schreef op donderdag 20 januari 2022 @ 09:20:
Onze oorspronkelijke opzet was een eiland van 2,80 met aan 1 kant 1,30 en aan de andere kant 80 cm
= 4.90

Waar zijn die 10 cm gebleven? :)

  • Perseus
  • Registratie: April 2010
  • Laatst online: 18-12 19:00
Rzaan schreef op donderdag 20 januari 2022 @ 09:49:
[...]

= 4.80


[...]

= 4.90

Waar zijn die 10 cm gebleven? :)
Haha, iets te snel getypt, koffie nog niet ingewerkt 8)7 . Het was 1.20m om 80cm.

  • Ladypurple
  • Registratie: Maart 2021
  • Laatst online: 19-12 16:00
Perseus schreef op donderdag 20 januari 2022 @ 09:20:
[...]


Vraag 1001 over afmetingen van een eiland; Wij zijn inmiddels bij een andere keukenzaak geweest die een iets gewijzigde opstelling heeft. Hij raadde ons aan om toch voor een eiland van 3 meter te gaan, waardoor we aan beide kanten 90 cm doorloop overhouden. Onze oorspronkelijke opzet was een eiland van 2,80 met aan 1 kant 1,30 en aan de andere kant 80 cm (zie afbeelding quote). Bij een voorbeeld in de keukenzaak met 90cm zag ik niet direct problemen, maar weet niet of jullie zoeits afraden. Ik begin toch weer te twijfelen. Een eerdere post sprak ook over minimaal 1,20m en wil ook niet dat alles propperig aan gaat voelen.

Renders met 90cm.

[Afbeelding]

[Afbeelding]
Je wil ws een eiland en in deze ruimte tov van de tafel kan het, maar als je het vergelijkt met een saaiere opstelling win je aan de noodzakelijke werkruimte en heb je ruimere mogelijkheid voor het plaatsen van de tafel ivm looproute. Daarnaast een makkelijker keuze voor afzuiging.Afbeeldingslocatie: https://tweakers.net/i/VI2M23y1MyzLM8LtqHygyHLkL2I=/800x/filters:strip_icc():strip_exif()/f/image/daAfeRXN9SXnWsUJWNShrkuM.jpg?f=fotoalbum_large

  • Z___Z
  • Registratie: Maart 2002
  • Niet online
Perseus schreef op donderdag 20 januari 2022 @ 09:20:
[...]


Vraag 1001 over afmetingen van een eiland; Wij zijn inmiddels bij een andere keukenzaak geweest die een iets gewijzigde opstelling heeft. Hij raadde ons aan om toch voor een eiland van 3 meter te gaan, waardoor we aan beide kanten 90 cm doorloop overhouden. Onze oorspronkelijke opzet was een eiland van 2,80 met aan 1 kant 1,30 en aan de andere kant 80 cm (zie afbeelding quote). Bij een voorbeeld in de keukenzaak met 90cm zag ik niet direct problemen, maar weet niet of jullie zoeits afraden. Ik begin toch weer te twijfelen. Een eerdere post sprak ook over minimaal 1,20m en wil ook niet dat alles propperig aan gaat voelen.

Renders met 90cm.

[Afbeelding]

[Afbeelding]
Ik zou 100 en 80 doen.

Ik zou ook de kookplaat en wasbak omwisselen. De normale kuekenflow is koelkast->wasbak->kookplaat. Ook gebruik je de wasbak veel vaker dan de kookplaat. Dus je wil eigenlijk minder meters maken naar de wasbak. Je kinderen kunnen bijvoorbeeld makkelijker hun handen wassen als je aan het koken bent, zonder om het eiland heen te lopen. Bonus voordeel, je afzuigkap hangt niet voor het raam.

[ Voor 5% gewijzigd door Z___Z op 20-01-2022 10:16 ]


  • GeeMoney
  • Registratie: April 2002
  • Laatst online: 11:44
Ladypurple schreef op donderdag 20 januari 2022 @ 09:31:
[...]

Dit vind ik een voorbeeld voor @blackgold, kan je aangeven hoe breed de ruimte is?
Totale ruimte is 5,20 x 6,50 .

  • Stalensnuitje
  • Registratie: December 2006
  • Laatst online: 19-12 21:32
Floor-is schreef op woensdag 19 januari 2022 @ 22:19:
[...] een lamp van Jansen & de Bont?
Damn it, nu moet ik weer een rooitje extra reserveren voor een lamp! :+ Wat een onwijs gaaf ding zeg (als pendant)!

Nu alleen nog de vraag wat je dan onder de bovenkastjes doet qua verlichting dat erbij past. De JB Wall doe je in zo'n geval natuurlijk voor de helft teniet :/
Z___Z schreef op donderdag 20 januari 2022 @ 10:14:
[...]

Ik zou 100 en 80 doen.

Ik zou ook de kookplaat en wasbak omwisselen. De normale kuekenflow is koelkast->wasbak->kookplaat. Ook gebruik je de wasbak veel vaker dan de kookplaat. Dus je wil eigenlijk minder meters maken naar de wasbak. Je kinderen kunnen bijvoorbeeld makkelijker hun handen wassen als je aan het koken bent, zonder om het eiland heen te lopen. Bonus voordeel, je afzuigkap hangt niet voor het raam.
Dit is volgens mij ook nog zo'n "team-verdeling" ;) Bij de zaken waar ik tot nu toe geweest ben kreeg ik ook geen eenduidig antwoord over of je nou vaker wast of kookt (en waar je dus de spoelbak en kookplaat in ons geval zou plaatsen) :?

  • Floor-is
  • Registratie: Maart 2000
  • Laatst online: 03-12 11:08
Source90 schreef op woensdag 19 januari 2022 @ 23:04:
[...]

Ik heb een lamp van 330cm aangevraagd. Met 50/50 bediening. Bedoel ik mee dat je links en rechts apart aan kon zetten.


***members only***


Echter niet mee door gegaan. Ik wilde 230-100 bediening (eiland-tafel) echter was dit geen optie.
Hmm

Members only:
Alleen zichtbaar voor ingelogde gebruikers. Inloggen


@mevrouwKees_1 heb je al een levertijd en welk model (en lengte) wordt het?
Ik ben zo benieuwd naar meer foto's van geïnstalleerde modellen. :)

Bericht hierboven


  • Floor-is
  • Registratie: Maart 2000
  • Laatst online: 03-12 11:08
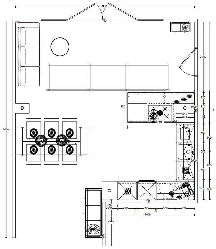
TheWhiskyFriend schreef op woensdag 19 januari 2022 @ 16:26:
8< 8<

Bovenaanzicht:
[Afbeelding]

Maten
De ruimte is 5,60 m breed
Afstand tussen kastenwand en eiland is 1m
Afstand tussen eiland en tafel +/- 1,30m
Tafel 90cm
Afstand tafel muur +/- 80cm
Denk dat je in de werkelijkheid die tafel gaat verschuiven, dus minder ruimte tussen tafel en eiland. Maar daar heb je ruimte voor, dus dat moet kunnen. :)
Kastenwand + Nis van links naar rechts
- Hoge kast tbv Diepvries
- Hoge kast tbv Koelkast
- Hoge servieskast / afvalsysteem onderste deel
- Onderkast 90 cm met 2 voorraadladen (voor borden)
- Onderkast 90 cm met 2 voorraadladen (voorraad)
- 3 Wandkastjes 60 cm
- Legplank hout met spotjes
- Hoge kast met 45 cm Combi oven (onderste kastje met 2 binnenladen voor kruiden etc)
- Hoge kast met 45 cm Stoom oven
- Hoge kast / voorraad.
3x hoog, 2x laag, 2x hoog 45, 1x hoog 60
Wandkastjes = bovenkastjes die ondieper zijn zo te zien?
Eiland 3m x 1m
A
- Onderkast 120 cm met 2 voorraadladen (bovenste voor bestek)
- Vaatwasser 60 cm
- Spoelonderkast 120 cm met 2 voorraadladen
B
- 3 60cm kastjes 40cm diep
- 2x 60 cm ruimte voor 2 krukken
In die 120-ers komt spoelen en koken right?
En in de nis van je kastenwand komt dan koffie en wat nog meer?

Dit zeg ik omdat je in die nis goed je spoelen kwijt zou kunnen, waardoor je werkruimte naar het eiland verplaatst. In de nis ga je niet staan snijden en doen met je rug naar de kamer als je plek op het eiland hebt, maar die plek is nu beperkt omdat je spoelen en koken daar hebt geplaatst. Door spoelen naar de nis te verplaatsen maak je ook een plek voor de bar waar je niet tegenover koken of spoelen zitten moet en da's prettig :)
Werkbladen:
- 180 x 60 cm (nis)
- 307 cm x 97,5 cm (eiland)
- Keramiek // Jetstone
Welke kleur?
Apparatuur:
- AEG Diepvries ABE818F6NC
- AEG Koelkast SKE818E1DC
- AEG Compact stoomoven KSK792280T
- AEG compact Combioven KMK761080T
- AEG Inductie kookplaat met afzuiging CDE8475SCB (afzuiging naar buiten)
- AEG Vaatwasser FSK73727P
- Quooker combi+ zwart
- Spoelbak Franke / zwart
Welke spoelbak? Een RVS met coating of een fragraniet composiet (Kubus 2)?
AEG heb ik geen onderbouwde mening over, hoewel ik van hen geen vaatwasser zou kopen. :)
Offerte: €25000 incl montage.


Zaken waar we over twijfelen:

Kostenverlagen door:
- Selsiuz kraan ipv quooker (leek een goede optie, maar twijfel nu behoorlijk)
- Geen afvalsysteem
- Geen binnenlade in onderste deel hoge kasten (tbv kruiden etc)
- Composiet werkbladen ipv Keramiek
  • Selsiuz is genoeg over gezegd :)
  • Wel doen
  • Kan, je hebt zoveel ruimte dat het op zich niet per se nodig is. De meerprijs is schat ik zo'n €350-450 afhankelijk van de marge die ze aanhouden.
  • Hangt ook af van of wat je mooi vind in beide leverbaar is natuurlijk. Bovendien is de dikte wellicht een factor: met keramiek kan je 8/12/16mm doen en bij composiet heb je iets minder keuze :) Wij zijn hier ook lang over aan het twijfelen geweest.
Algemeen:
Rotpunkt + AEG: betrouwbaar?
Wel of geen bar aan eiland
1. Kan ik niks over zeggen
2. Je hebt de ruimte, maar ik zou minstens overwegen om dan het spoelen te verplaatsen
Prijs:
We hebben 3 offertes gekregen tussen 25 / 26000 (verschillende keukens: Systemat / Stosa en Rotpunkt met apparatuur van Siemens of AEG)

Is dit een eerlijke prijs, of moeten we beter onderhandelen?

Ik hoor graag van jullie!
Eerst de apparatuur geheel gelijktrekken, vervolgens het blad. Dan houd je de kasten over en de installatiekosten. En dan kan je zien welke leverancier, met welke fabrikant, het beste bij je past. Dat mag niet alleen over geld gaan, er zit daadwerkelijk verschil in de bouwkwaliteit, details etc.

Prijs kan ik, gezien de variabelen en gemis aan kennis van details en de specifieke leveranciers niet echt iets over zeggen. Gezien de hoeveelheid kasten en apparatuur lijkt het me echt een prima deal, maar nogmaals: ik weet het niet :)

Bericht hierboven


  • Floor-is
  • Registratie: Maart 2000
  • Laatst online: 03-12 11:08
Perseus schreef op donderdag 20 januari 2022 @ 09:20:
[...]


Vraag 1001 over afmetingen van een eiland; Wij zijn inmiddels bij een andere keukenzaak geweest die een iets gewijzigde opstelling heeft. Hij raadde ons aan om toch voor een eiland van 3 meter te gaan, waardoor we aan beide kanten 90 cm doorloop overhouden. Onze oorspronkelijke opzet was een eiland van 2,80 met aan 1 kant 1,30 en aan de andere kant 80 cm (zie afbeelding quote). Bij een voorbeeld in de keukenzaak met 90cm zag ik niet direct problemen, maar weet niet of jullie zoeits afraden. Ik begin toch weer te twijfelen. Een eerdere post sprak ook over minimaal 1,20m en wil ook niet dat alles propperig aan gaat voelen.

Renders met 90cm.

[Afbeelding]

[Afbeelding]
Het ding is dat je koken bij de kastenwand hebt, want dichtbij koelkast, ovens etc. En daardoor is spoelen aan de andere zijde. Nu wil je graag een vlotte route naar het spoelen, dus je hebt daar ruim doorgang nodig, maar je wilt ook doorgang bij de kookzijde.

Als je contra-intuïtief het koken naar de andere zijde zou zetten, dan kan het spoelen bij de kastenwand. Kan je ook de doorgang bij de kastenwand groter maken (110 ofzo?) en dus minder breed bij het koken. Die bij het koken ga je relatief weinig gebruiken dus dat kan op zich prima.
Nadeel is wel dat je verder van de kastenwand staat als je eenmaal aan het koken bent..

Bericht hierboven


  • Floor-is
  • Registratie: Maart 2000
  • Laatst online: 03-12 11:08
Stalensnuitje schreef op donderdag 20 januari 2022 @ 10:21:
[...]

Damn it, nu moet ik weer een rooitje extra reserveren voor een lamp! :+ Wat een onwijs gaaf ding zeg (als pendant)!

Nu alleen nog de vraag wat je dan onder de bovenkastjes doet qua verlichting dat erbij past. De JB Wall doe je in zo'n geval natuurlijk voor de helft teniet :/
De JDB wall is vet, maar gericht op losse plaatsing, dus zonder bovenkastjes lijkt mij. Ik denk dat een 'relatief normale' LEDstrip aan de onderzijde van bovenkastjes (wel laten infrezen) echt zat en mooi genoeg is :)

Sorry voor de GGO-factor hier trouwens, dat was ook de bedoeling weer niet.
[...]

Dit is volgens mij ook nog zo'n "team-verdeling" ;) Bij de zaken waar ik tot nu toe geweest ben kreeg ik ook geen eenduidig antwoord over of je nou vaker wast of kookt (en waar je dus de spoelbak en kookplaat in ons geval zou plaatsen) :?
Je wast véél vaker dan je kookt. Water pakken of limo maken, handen wassen, groenten wassen, snel dingetje afwassen, water pakken om te koken, water voor koffie/thee en zo nog veel meer doe je bij de spoelbak immers. :)

Bericht hierboven


  • Blackgold
  • Registratie: September 2021
  • Laatst online: 29-05-2023
GeeMoney schreef op donderdag 20 januari 2022 @ 10:15:
[...]


Totale ruimte is 5,20 x 6,50 .
@Ladypurple ik kijk mee, maar ik snap niet helemaal waarom dit een voorbeeld voor mij is. Mijn ruimte is heel anders (kleiner :(). Maar sowieso zou -zelfs- ik nooit een loopruimte van 70cm hanteren hoor!

  • Strider
  • Registratie: November 2001
  • Laatst online: 19-12 22:32
Toke_gt schreef op donderdag 20 januari 2022 @ 08:25:
[...]

Ik zou de doorgang bij nis op 1m maken en de andere doorgang op 87. Dan heb je goede doorgang aan beide kanten en lijnt het ook nog met je koffienis. Vooral omdat de nis aan die kant zit, ga je die doorgang het meest gebruiken. Eventueel maak je je eiland 2.70 (3x90?) dan heb je 1m en 97cm doorloop.
Ik heb geen idee welke doorgang ik het meeste ga gebruiken. Ik heb toevallig thuis in mijn huidige keuken een doorgang van 78cm en nooit echt gestoord aan het feit dat het niet heel breed is (ik ben ook niets anders gewend). Wordt wel een ander verhaal als je tijdelijk met krukken of iets dergelijks moet rondlopen.

270cm heb ik ook over nagedacht. Maar hoe ga je dan eigenlijk met de kasten uitkomen?:
90cm Bora
90cm Wasbak
60cm Vaatwasser
30cm ???
boomr schreef op donderdag 20 januari 2022 @ 09:10:
[...]


Wij hebben situatie die lijkt op je tekening. WIj hebben ervoor gekozen om aan een kant van de eettafel een bankje te hebben die tegen de muur aan staan. Dat gaat natuurlijk wel moeilijker met een ovale tafel:(
Probeer eens een stoel naar achteren te schuiven en uit te stappen als je ongeveer een meter de ruimte hebt. Dat is weinig. In je huidige situatie heb je minder.
Goed punt. Hoeveel ruimte hebben jullie gereserveerd voor de afstand tussen de muur en de tafel voor het bankje? Toevallig een foto? :)
Een oplossing zou misschien ook het gebruik van draaistoelen zijn, die hoef je niet perse zover naar achteren te schuiven. Ziet er denk ik wel iets minder mooi uit.
Perseus schreef op donderdag 20 januari 2022 @ 09:25:
[...]


Die ruimte van 1.12m zou ik aanhouden of juist wat groter maken gevoelmatig, zeker omdat daar 2 deuren zitten en het loopgebied is. Als je daar met wat zwaars binnen komt lopen tegen de hoek van de blad loopt baal je wel. Ik zou persoonlijk toch voor 2.60m gaan en die kant van 0.75m groter maken, die 1.12m kant niet kleiner. Wat bij mij ook meespeelt (zie mijn vraag hierboven) is of we de ruimte niet willen volproppen met keuken. Juist wat minder groot keukenblok kan de ruimte juist was ruimtelijker doen aanvoelen. Zeker omdat je ook werkruimte aan de andere kant tegen de muur hebt is die extra 20cm niet noodzakelijk denk ik.
Die werkruimte aan de andere kant is eigenlijk niet echt werkruimte, meer voor de keuken apparatuur. Ik denk niet dat we daar ooit eten gaan bereiden. Ik denk dat gevoelsmatig die 1.12m al wat kleiner gaat aanvoelen door de gordijnen.

BlaBlaBla


  • Ladypurple
  • Registratie: Maart 2021
  • Laatst online: 19-12 16:00
Blackgold schreef op donderdag 20 januari 2022 @ 12:48:
[...]

@Ladypurple ik kijk mee, maar ik snap niet helemaal waarom dit een voorbeeld voor mij is. Mijn ruimte is heel anders (kleiner :(). Maar sowieso zou -zelfs- ik nooit een loopruimte van 70cm hanteren hoor!
Om een ruimtelijker beeld te krijgen hoeveel ruimte er weerszijden van een eiland is bij bepaalde afmetingen.

  • Zeeuw
  • Registratie: Maart 2000
  • Laatst online: 05:33

Zeeuw

5.6

Als je graag de afzuigkap naar buiten laat blazen, wat zou dan jullie voorkeur hebben?
Horizontaal door de muur? Ik zie bij de huidige afzuigkap (de nieuwe komt in de nieuwe uitbouw) wel wat druipers van vet op de buitenmuur...
Verticaal door het platdak. Ik ben bang dat je dan kookluchtjes krijgt in de kamers op de eerste verdieping die grenzen aan de uitbouw.
Door de huidige afvoer, dan moet ik wel een nieuw gat maken in een spouwmuur (de oude buitenmuur waar de uitbouw tegenaan staat) maar het vet zit daar toch al tegen de muur.
Anders, bijvoorbeeld toch een Bora met afzuiging onderin naar buiten of overtuig me van de 'schone' lucht de keuken inblazen.

Read the badge, Bitch!


  • mevrouwKees_1
  • Registratie: December 2020
  • Laatst online: 18-12 22:33
@Floor-is Wij hebben hem in 2.10 besteld en hij komt als goed is volgende week binnen. Zat niet zoveel levertijd op

Deze https://www.jansendebont.nl/pendant/

Ik ben overal tegen. Tot ik een besluit neem, dan ben ik ervoor


  • Ladypurple
  • Registratie: Maart 2021
  • Laatst online: 19-12 16:00
Zeeuw schreef op donderdag 20 januari 2022 @ 13:56:
Als je graag de afzuigkap naar buiten laat blazen, wat zou dan jullie voorkeur hebben?
Horizontaal door de muur? Ik zie bij de huidige afzuigkap (de nieuwe komt in de nieuwe uitbouw) wel wat druipers van vet op de buitenmuur...
Verticaal door het platdak. Ik ben bang dat je dan kookluchtjes krijgt in de kamers op de eerste verdieping die grenzen aan de uitbouw.
Door de huidige afvoer, dan moet ik wel een nieuw gat maken in een spouwmuur (de oude buitenmuur waar de uitbouw tegenaan staat) maar het vet zit daar toch al tegen de muur.
Anders, bijvoorbeeld toch een Bora met afzuiging onderin naar buiten of overtuig me van de 'schone' lucht de keuken inblazen.
Het lijkt me niet de bedoeling dat er zoveel vet uitgeblazen wordt dat je het ziet, dan schort er vgm wat aan de vetfilters. Belangrijk is de diameter , afstand en aantal bochten.

  • Stalensnuitje
  • Registratie: December 2006
  • Laatst online: 19-12 21:32
Floor-is schreef op donderdag 20 januari 2022 @ 12:33:

Je wast véél vaker dan je kookt. Water pakken of limo maken, handen wassen, groenten wassen, snel dingetje afwassen, water pakken om te koken, water voor koffie/thee en zo nog veel meer doe je bij de spoelbak immers. :)
Nu ga ik toch weer twijfelen of ik dan niet de kookplaat en spoelbak moet omdraaien, inclusief de gevolgen voor de bovenkastjes, plaatsing vw, afzuiging al dan niet naar buiten etc.etc. :X
Afbeeldingslocatie: https://tweakers.net/i/OTCN88yhucE6xiisy2bFnEHbCHs=/x800/filters:strip_icc():strip_exif()/f/image/izSPWGA3RsMjLVginmjAA5Z2.jpg?f=fotoalbum_large

  • Floor-is
  • Registratie: Maart 2000
  • Laatst online: 03-12 11:08
Zeeuw schreef op donderdag 20 januari 2022 @ 13:56:
Als je graag de afzuigkap naar buiten laat blazen, wat zou dan jullie voorkeur hebben?
Horizontaal door de muur? Ik zie bij de huidige afzuigkap (de nieuwe komt in de nieuwe uitbouw) wel wat druipers van vet op de buitenmuur...
Verticaal door het platdak. Ik ben bang dat je dan kookluchtjes krijgt in de kamers op de eerste verdieping die grenzen aan de uitbouw.
Door de huidige afvoer, dan moet ik wel een nieuw gat maken in een spouwmuur (de oude buitenmuur waar de uitbouw tegenaan staat) maar het vet zit daar toch al tegen de muur.
Op de plek waar je er de minste last van zult hebben buiten. :)
Anders, bijvoorbeeld toch een Bora met afzuiging onderin naar buiten of overtuig me van de 'schone' lucht de keuken inblazen.
Als dit een overweging is, probeer iemand te vinden met zo’n ding in je vrienden/familie of kennissenkring en maak het mee.
Persoonlijk ben ik groot voorstander, maar dat hoef jij niet te zijn :)

Bericht hierboven


  • Floor-is
  • Registratie: Maart 2000
  • Laatst online: 03-12 11:08
mevrouwKees_1 schreef op donderdag 20 januari 2022 @ 14:04:
@Floor-is Wij hebben hem in 2.10 besteld en hij komt als goed is volgende week binnen. Zat niet zoveel levertijd op

Deze https://www.jansendebont.nl/pendant/
Nice, ben benieuwd :)

De pendant hier ook, lijkt me een mooi apparaat :)

Bericht hierboven


  • Floor-is
  • Registratie: Maart 2000
  • Laatst online: 03-12 11:08
Stalensnuitje schreef op donderdag 20 januari 2022 @ 14:14:
[...]

Nu ga ik toch weer twijfelen of ik dan niet de kookplaat en spoelbak moet omdraaien, inclusief de gevolgen voor de bovenkastjes, plaatsing vw, afzuiging al dan niet naar buiten etc.etc. :X
[Afbeelding]
Het zitten doe je in het deel dat niet op de plattegrond staat?

Want nu heb je een prachtige uitbouw, maar daar maak je helemaal niet zo goed gebruik van.

Hoe vast zit je al aan je ontwerp? Wil je dat ik iets (heel heel anders) schets? Heb ik wel behoefte aan een complete plattegrond en wat je waar in gedachten hebt om te doen. (En waar leidingen al zitten mocht dat het geval zijn, kan ik daar proberen rekening mee te houden)

576x582cm zo lijkt het. Daarin de gehele keuken en de tafel? (In mijn ogen kan je denk ik ook nog een klein zitje kwijt)

[ Voor 15% gewijzigd door Floor-is op 20-01-2022 15:38 ]

Bericht hierboven


  • Toke_gt
  • Registratie: Juni 2021
  • Laatst online: 10:35
Stalensnuitje schreef op donderdag 20 januari 2022 @ 14:14:
[...]

Nu ga ik toch weer twijfelen of ik dan niet de kookplaat en spoelbak moet omdraaien, inclusief de gevolgen voor de bovenkastjes, plaatsing vw, afzuiging al dan niet naar buiten etc.etc. :X
[Afbeelding]
Ik zou het niet omdraaien. Weliswaar gebruik je de spoelbak vaker, maar dan ben je ook wel altijd iets aan het doen waar je je aandacht bij houdt. Als je staat te koken is het veel makkelijker om met mensen aan de bar of aan tafel te kletsen, terwijl je wacht tot pasta gaar is of de olie verhit. In jouw geval sta je met je rug naar mensen toe tijdens het koken.

  • macfocus
  • Registratie: December 2015
  • Laatst online: 12:33
Zeeuw schreef op donderdag 20 januari 2022 @ 13:56:
Als je graag de afzuigkap naar buiten laat blazen, wat zou dan jullie voorkeur hebben?
Horizontaal door de muur? Ik zie bij de huidige afzuigkap (de nieuwe komt in de nieuwe uitbouw) wel wat druipers van vet op de buitenmuur...
Verticaal door het platdak. Ik ben bang dat je dan kookluchtjes krijgt in de kamers op de eerste verdieping die grenzen aan de uitbouw.
Door de huidige afvoer, dan moet ik wel een nieuw gat maken in een spouwmuur (de oude buitenmuur waar de uitbouw tegenaan staat) maar het vet zit daar toch al tegen de muur.
Anders, bijvoorbeeld toch een Bora met afzuiging onderin naar buiten of overtuig me van de 'schone' lucht de keuken inblazen.
Ideaal is door het dak naar een punt hoger dan de hoogste ramen. Dan heb je ook geen last van kookluchtjes op je slaapkamers. Je kunt je overigens afvragen of af en toe een kooklucht erg is. Zolang je spruitjes niet jaren 50 gaar kookt, valt dat allemaal wel mee. Frituren daargelaten.


Over afstand en bochten. Leveranciers doen daar heel moeilijk over want anders stel je ze aansprakelijk voor minder goed functionerende installaties.
Ik had dat 25 jaar geleden met een dure eilandkap. Die kon 650m3/u afzuigen en met 10 meter buis en 3 haakse bocht n was dat een probleem.
Ik wilde het toch en na veel aandringen en vragen wat het verlies dan ongeveer was kwam er uit dat ze dat eigenlijk niet wisten. Ik heb ervoor getekend dat het geen probleem zou worden.

De kap kan tot negen, maar staat altijd op 3, heel soms op 4, dus is een puur theoretisch verhaal.

Bora/downdraft; voor ons waarschijnlijk niet vanwege meerdere redenen (afzuiging naar buiten niet mogelijk in ons geval, ruimte inname onder kookplaat, kosten als je kookplaat stukgaat)

  • Perseus
  • Registratie: April 2010
  • Laatst online: 18-12 19:00
Alic3 schreef op donderdag 20 januari 2022 @ 09:36:
[...]

Alles beter dan dit model ;)
Je hebt je zin gekregen ;). Zojuist met de keukenzaak gebeld en we hebben de keuken besteld! Maar wel met een Novy Island mounted Mood 7552 (zwart) (https://www.novy.com/prod...island-mounted/mood/7552/). Ding was €3k |:( , maar hebben nog wat kunnen onderhandelen, waardoor de keuken uiteindelijk voor €25k is gekocht. Verder hebben we het eiland toch naar 2,80m laten verkleinen en daardoor nu aan beide kanten 1 meter ruimte. Alsnog werkruimte zat en voelt allemaal toch wat ruimtelijke aan. Dank allen voor de adviezen :). Voor anderen ter vergelijking:

- Hacker Systemat
- AV 1099 panelen
- Geheel AEG apparatuur
- Novy Mood afzuigkap
- Quooker Combi+
- Composiet blad gepolijsd belgisch leisteen look
- Hoog model Koel- en Vrieskast
- €25k

[ Voor 14% gewijzigd door Perseus op 20-01-2022 15:29 ]


  • Floor-is
  • Registratie: Maart 2000
  • Laatst online: 03-12 11:08
Perseus schreef op donderdag 20 januari 2022 @ 15:25:
[...]


Je hebt je zin gekregen ;). Zojuist met de keukenzaak gebeld en we hebben de keuken besteld! Maar wel met een Novy Island mounted Mood 7552 (zwart) (https://www.novy.com/prod...island-mounted/mood/7552/). Ding was €3k |:( , maar hebben nog wat kunnen onderhandelen, waardoor de keuken uiteindelijk voor €25k is gekocht. Verder hebben we het eiland toch naar 2,80m laten verkleinen en daardoor nu aan beide kanten 1 meter ruimte. Alsnog werkruimte zat en voelt allemaal toch wat ruimtelijke aan. Dank allen voor de adviezen :). Voor anderen ter vergelijking:

- Hacker Systemat
- AV 1099 panelen
- Geheel AEG apparatuur
- Novy Mood afzuigkap
- Quooker Combi+
- Composiet blad gepolijsd belgisch leisteen look
- Hoog model Koel- en Vrieskast
- €25k
Nou gefeliciteerd!

Bericht hierboven


  • Flatisa
  • Registratie: November 2017
  • Laatst online: 08:52
Ik lees hier soms mee en zie dat de afzuigkap best een discussiepunt is. Ik kwam laatst dit wetenschappelijk onderbouwd artikel tegen: https://adoc.pub/wtcb-een...2c956c9ea31ff9131789.html

Staat veel in over de effecten van bochten, buitenkleppen, flexibel/star etc. De conclusie is eigenlijk dat het buizenstelsel en de kleppen veel en veel meer invloed heeft dan de kwaliteit van de afzuigkap. Ik heb de Weibel muurkast gehaald voor € 450. Werkt allemaal prima tegen tocht, geluid en natuurlijk voor de afzuiging. Volledig luchtdicht. Enige wat ik wel merk is dat in een WTW huis er in de badkamer flinke rioollucht te ruiken is als de afzuigkap op stand 2 of 3 (normaal gebruik ik 1), heeft waarschijnlijk iets met onderdruk te maken. Verdwijnt als je de kraan even aanzet na gebruik afzuigkap. Ook moet de woonkamer deur open zodat er tenminste wat lucht uit de rest van het huis komt om af te zuigen.

Volgende keer zou ik daarom toch de koppeling met de WTW wagen. Nog stiller en geen last van onderdruk de hele tijd.

  • Alic3
  • Registratie: Juli 2020
  • Laatst online: 05-07-2024
Perseus schreef op donderdag 20 januari 2022 @ 15:25:
[...]


Je hebt je zin gekregen ;). Zojuist met de keukenzaak gebeld en we hebben de keuken besteld! Maar wel met een Novy Island mounted Mood 7552 (zwart) (https://www.novy.com/prod...island-mounted/mood/7552/). Ding was €3k |:( , maar hebben nog wat kunnen onderhandelen, waardoor de keuken uiteindelijk voor €25k is gekocht. Verder hebben we het eiland toch naar 2,80m laten verkleinen en daardoor nu aan beide kanten 1 meter ruimte. Alsnog werkruimte zat en voelt allemaal toch wat ruimtelijke aan. Dank allen voor de adviezen :). Voor anderen ter vergelijking:

- Hacker Systemat
- AV 1099 panelen
- Geheel AEG apparatuur
- Novy Mood afzuigkap
- Quooker Combi+
- Composiet blad gepolijsd belgisch leisteen look
- Hoog model Koel- en Vrieskast
- €25k
Haha het is jouw keuken ;) , ik heb mijn oog al op een Bora laten vallen. Maar goede keus de Novy!

  • koelkast
  • Registratie: Juni 1999
  • Niet online
Wij zijn in de running voor het uitzoeken van een keuken. De projectleverancier komt met een paar voorstellen, die ik later hier wel even toe zal lichten. Eerst alvast wat vragen:

- Ze komen met Bauknecht apparatuur, waaronder een kookplaat met afzuiging. Nu schijnt Bora daar heer en meester in te zijn. Klopt dat? Hoe staan andere merken daarin? En dan vooral de afzuigcapaciteit van recirculatie?

- Het voorstel qua budget is een kunststof/spaanplaat werkblad voor een eiland (95x240) en 180x60 voor in de nis aan de wand. Dat heb ik nu ook bij mijn IKEA keuken, maar daar zitten na 10 jaar toch wel wat krassen en vlekken op. Maar composiet of keramisch is weer zo duur. Toch wil ik gaan onderzoeken of er budget-technisch iets mogelijk is.
Ik zie hier veel composiet en graniet, en weet de voor- en nadelen. Maar een kunststof werkblad, wat is jullie ervaring hiermee?

  • edegroot1973
  • Registratie: April 2016
  • Laatst online: 19-12 12:34
koelkast schreef op donderdag 20 januari 2022 @ 16:24:

- Het voorstel qua budget is een kunststof/spaanplaat werkblad voor een eiland (95x240) en 180x60 voor in de nis aan de wand. Dat heb ik nu ook bij mijn IKEA keuken, maar daar zitten na 10 jaar toch wel wat krassen en vlekken op. Maar composiet of keramisch is weer zo duur. Toch wil ik gaan onderzoeken of er budget-technisch iets mogelijk is.
Ik zie hier veel composiet en graniet, en weet de voor- en nadelen. Maar een kunststof werkblad, wat is jullie ervaring hiermee?
Wij hebben 13 jaar 'geleefd' met/in een keuken met composietblad. Zat na 13 jaar nog geen krasje op, geen kleurverschil te zien. Half jaar geleden is de woning verkocht en kregen we van meerdere kijkers het commentaar:"Wat jammer dat je je huis verkoopt terwijl je een nog redelijke nieuwe keuken hebt."

We zijn voor het nieuwe huis weer een keuken aan het uitzoeken (volgende week laatste gesprek), weer een composietblad. Eigenlijk niet naar iets anders gekeken.

  • Source90
  • Registratie: December 2008
  • Laatst online: 11:20
" De Shelf is verkrijgbaar met Gesture Control (GC) Premium bediening. Over de gehele lengte bevinden zich slimme sensoren waardoor je, naast alle eigenschappen van de standaard Gesture Control (GC), de mogelijkheid hebt om de breedte en positie van de lichtbundel aan te passen. Wil je het licht niet over de gehele lengte van de lamp laten branden maar alleen daar waar je een wijntje aan het drinken, aan het werk of je de krant aan het lezen bent? Met je hand sleep je simpelweg de lichtbundel naar de gewenste plaats.

Vind het jammer (meermaals gevraagd, ook tegen extra betaling aangeboden..) dat dit niet naar de pendant wordt geïntroduceerd. Ookal zou hij iets dikker worden, zou exact zijn wat wij zoeken.

[ Voor 7% gewijzigd door Source90 op 20-01-2022 17:42 ]


  • Ambianz
  • Registratie: December 2009
  • Laatst online: 18-12 17:45
Na eerder advies gehad te hebben in dit topic wat betreft apparatuur zit ik nog even met een kwestie.

Het gaat vooral even om de vaatwasser, het advies is om te kiezen voor bosch/siemens/miele over het algemeen. Echter als ik ga zoeken op bosch/siemens in dit topic lees ik overal dat er hier mensen zijn geweest die de helft van het apparatuur niet geleverd hebben gekregen met levertijd onbekend.

Mijn keukenzaak geeft aan dat ze dan ook geen bosch/siemens leveren, miele is buiten budget. Ga ik een "slechte koop" doen met een AEG vaatwasser? Keuken zit qua prijs rond de 16k. Keukenzaak geeft aan ook prima mee te werken als ik zelf een vaatwasser bestel, dit gaat me een hoop gedoe opleveren uiteraard (levering, + moet de sleutel van de woning nog ontvangen, dus allemaal gewoon niet ideaal)

Zelfde geldt voor een oven maar in iets mindere mate. Daarbij zijn we sowieso al wel prima om te settelen voor een wat goedkoper merk (en die dus wel leverbaar zijn) aangezien we geen gekke dingen doen. Een keer een ovenschaal of broodjes afbakken dan heb je het wel gehad.

Wat hebben andere zoal gedaan die wellicht in dezelfde soort situatie zaten?

  • mevrouwKees_1
  • Registratie: December 2020
  • Laatst online: 18-12 22:33
koelkast schreef op donderdag 20 januari 2022 @ 16:24:
Wij zijn in de running voor het uitzoeken van een keuken. De projectleverancier komt met een paar voorstellen, die ik later hier wel even toe zal lichten. Eerst alvast wat vragen:

- Ze komen met Bauknecht apparatuur, waaronder een kookplaat met afzuiging. Nu schijnt Bora daar heer en meester in te zijn. Klopt dat? Hoe staan andere merken daarin? En dan vooral de afzuigcapaciteit van recirculatie?

- Het voorstel qua budget is een kunststof/spaanplaat werkblad voor een eiland (95x240) en 180x60 voor in de nis aan de wand. Dat heb ik nu ook bij mijn IKEA keuken, maar daar zitten na 10 jaar toch wel wat krassen en vlekken op. Maar composiet of keramisch is weer zo duur. Toch wil ik gaan onderzoeken of er budget-technisch iets mogelijk is.
Ik zie hier veel composiet en graniet, en weet de voor- en nadelen. Maar een kunststof werkblad, wat is jullie ervaring hiermee?
Over apparatuur en Bora is veel geschreven. Even zoeken in dit forum en je bent op de hoogte. Bauknecht is budget merk iig.

Kunststof werkblad kan prima maar vind ik er persoonlijk goedkoop uitzien ik zweer bij composiet.

Ik ben overal tegen. Tot ik een besluit neem, dan ben ik ervoor


  • Source90
  • Registratie: December 2008
  • Laatst online: 11:20
mevrouwKees_1 schreef op donderdag 20 januari 2022 @ 19:01:
[...]


Over apparatuur en Bora is veel geschreven. Even zoeken in dit forum en je bent op de hoogte. Bauknecht is budget merk iig.
Bij vaatwassers lees ik dat je beter een Bauknecht (=Whirlpool) kan hebben dan AEG. Met ovens van 2 tot 3k is het ook niet het goedkoopste merk.
High end is het niet, ik zou het echter niet onder Candy en dergelijke schalen. In mijn ogen is dat echt budget.

  • Barry|IA
  • Registratie: Januari 2004
  • Laatst online: 23-06-2022
Wat voor de een budget is, is voor de ander high end.

Bauknecht is een prima merk, maar neem geen oven met touch screen, want dan erger je je al bij het instellen van de tijd :)

“Nothing changed since the 70s. Nothing. Except people train not that hard”. - Tom Platz


  • Stalensnuitje
  • Registratie: December 2006
  • Laatst online: 19-12 21:32
edegroot1973 schreef op donderdag 20 januari 2022 @ 17:14:
[...]


Wij hebben 13 jaar 'geleefd' met/in een keuken met composietblad. Zat na 13 jaar nog geen krasje op, geen kleurverschil te zien. Half jaar geleden is de woning verkocht en kregen we van meerdere kijkers het commentaar:"Wat jammer dat je je huis verkoopt terwijl je een nog redelijke nieuwe keuken hebt."

We zijn voor het nieuwe huis weer een keuken aan het uitzoeken (volgende week laatste gesprek), weer een composietblad. Eigenlijk niet naar iets anders gekeken.
Vervang bij mij die 13 door een 9, maar verder sluit ik me hier volledig bij aan. Het wordt bij ons nu ook zeker weer composiet.
Floor-is schreef op donderdag 20 januari 2022 @ 15:12:
[...]

Het zitten doe je in het deel dat niet op de plattegrond staat?

Want nu heb je een prachtige uitbouw, maar daar maak je helemaal niet zo goed gebruik van.

Hoe vast zit je al aan je ontwerp? Wil je dat ik iets (heel heel anders) schets? Heb ik wel behoefte aan een complete plattegrond en wat je waar in gedachten hebt om te doen. (En waar leidingen al zitten mocht dat het geval zijn, kan ik daar proberen rekening mee te houden)

576x582cm zo lijkt het. Daarin de gehele keuken en de tafel? (In mijn ogen kan je denk ik ook nog een klein zitje kwijt)
Het ontwerp van de indeling beneden is net klaar (en de meubels besteld) ;) We hebben de afgelopen twee jaar al het een en ander geschoven en geprobeerd en dit is een blijvertje :*) In de uitbouw is deel kinderspeelplek en we hebben ivm de lichtinval daar een extra bankje met bijzettafel gezet. Niet op de tekening is inderdaad de "echte" zithoek incl. de tv.

Ik ben wel nieuwsgierig wat jij zou doen (beschrijven mag ook hoor ipv tekenen). En positie van leidingen en aansluitingen vind ik niet zo spannend, die kan ik of zelf verleggen of ik heb er vrienden voor ;)

  • mevrouwKees_1
  • Registratie: December 2020
  • Laatst online: 18-12 22:33
Source90 schreef op donderdag 20 januari 2022 @ 19:29:
[...]

Bij vaatwassers lees ik dat je beter een Bauknecht (=Whirlpool) kan hebben dan AEG. Met ovens van 2 tot 3k is het ook niet het goedkoopste merk.
High end is het niet, ik zou het echter niet onder Candy en dergelijke schalen. In mijn ogen is dat echt budget.
Ik heb zelf ervaring met bauknecht (zat in keuken ouders ). Maar wat een bagger spul zeg. Het is beter dan Candy maar ik vind het minder dan whirlpool.

Ik ben overal tegen. Tot ik een besluit neem, dan ben ik ervoor


  • mitsumark
  • Registratie: Juni 2009
  • Laatst online: 11:17
koelkast schreef op donderdag 20 januari 2022 @ 16:24:
- Het voorstel qua budget is een kunststof/spaanplaat werkblad voor een eiland (95x240) en 180x60 voor in de nis aan de wand. Dat heb ik nu ook bij mijn IKEA keuken, maar daar zitten na 10 jaar toch wel wat krassen en vlekken op. Maar composiet of keramisch is weer zo duur. Toch wil ik gaan onderzoeken of er budget-technisch iets mogelijk is.
Ik zie hier veel composiet en graniet, en weet de voor- en nadelen. Maar een kunststof werkblad, wat is jullie ervaring hiermee?
Wij hebben een kunststof marmerlook blad.
Nu na 7,5 jaar inderdaad wat kleine krasjes als je onder de juiste hoek kijkt (niet storend), die zullen wel komen door het schuiven van terracotta potjes met zand eronder.
Daarnaast geen kleurverschillen naar mijn weten.
Schoonmaken doen we "zelden".

[ Voor 6% gewijzigd door mitsumark op 20-01-2022 22:23 ]


  • Source90
  • Registratie: December 2008
  • Laatst online: 11:20
mevrouwKees_1 schreef op donderdag 20 januari 2022 @ 21:43:
[...]


Ik heb zelf ervaring met bauknecht (zat in keuken ouders ). Maar wat een bagger spul zeg. Het is beter dan Candy maar ik vind het minder dan whirlpool.
Wij hebben nu 2 ovens van Bauknecht, zaten in de showroom keuken die wij hebben gekocht voor onze tijdelijke woning.
Betreft de BIK9MP8TS3PT en EMPK99645PT.

Ervaar ze totaal niet als bagger. Oké, dit waren ovens met adviesprijzen van ruim 2000€/stuk, maar wat een verbetering tegenover de Siemens die wij daarvoor hadden.
Service is ruk, dat wel (schermpje van de grote oven resette zichzelf op random momenten, met demo-functie en al, kom je thuis. staat je oven in demo-toeters en bellen 8)7 Heeft wat voeten in de aarde gehad om dat opgelost te krijgen.)

Warmt tot 200°c op in een minuut of 10, zeker die kleine is ver onder de 10minuten klaar. Pyrolese werkt ook top. Zit 6th-sense op, wat zelf meet of het eten warm is aan de binnenkant (met regeneren) en dit werkt nog redelijk goed ook. Daarnaast nog wat automatische programma's voor brood en ovengerechten die wij niet veel gebruikt hebben. Zit ook een spit bij met een thermometer voor een hele kalkoen, was wel leuk met kerst o<:)


Wij hebben de showroom keuken uiteindelijk gekocht voor 4k met Siemens koelkast/inductie/vaatwasser, Famec afzuiger en bovenstaande ovens. Qua aankoop kon je er geen beult aan vallen.
Nieuwprijs had ik er niet voor betaald (2k/stuk bedoel ik dan), maar als bagger wegzetten vind ik onzin.

[ Voor 11% gewijzigd door Source90 op 21-01-2022 00:07 ]


  • Barry|IA
  • Registratie: Januari 2004
  • Laatst online: 23-06-2022
mevrouwKees_1 schreef op donderdag 20 januari 2022 @ 21:43:
[...]


Ik heb zelf ervaring met bauknecht (zat in keuken ouders ). Maar wat een bagger spul zeg. Het is beter dan Candy maar ik vind het minder dan whirlpool.
Zo zie je maar weer dat een enkele persoonlijke ervaring niks zegt :)

De ladder loopt zo: Ignis/Indesit, Whirlpool, Bauknecht, KitchenAid (waarbij KitchenAid gelijk is aan Bauknecht).

Whirlpool is in Amerika gelijk aan Bauknecht, maar Whirlpool is daar dan ook écht groot. Wat hier Siemens is, is daar Whirlpool.

Leuke toevoeging vind ik wel de Crisp functie bij de WP en BK combi’s. Er zijn mensen die niet meer buiten die functie kunnen.

[ Voor 27% gewijzigd door Barry|IA op 20-01-2022 23:13 ]

“Nothing changed since the 70s. Nothing. Except people train not that hard”. - Tom Platz


  • Rzaan
  • Registratie: Mei 2018
  • Laatst online: 11:31

Rzaan

Altijd zoekende

Barry|IA schreef op donderdag 20 januari 2022 @ 23:03:


De ladder loopt zo: Ignis/Indesit, Whirlpool, Bauknecht, KitchenAid (waarbij KitchenAid gelijk is aan Bauknecht).
Maar loopt de ladder nog door naar boven?

  • Barry|IA
  • Registratie: Januari 2004
  • Laatst online: 23-06-2022
Rzaan schreef op donderdag 20 januari 2022 @ 23:31:
[...]

Maar loopt de ladder nog door naar boven?
Wat bedoel je precies, want ik begrijp de vraagstelling niet helemaal. Nog verder door na KitchenAid?

“Nothing changed since the 70s. Nothing. Except people train not that hard”. - Tom Platz


  • mitsumark
  • Registratie: Juni 2009
  • Laatst online: 11:17
Niet in de Whirlpool groep (https://www.whirlpoolcorp.com/brands-we-love/), maar er zijn natuurlijk andere merken die nog wel hoger in de ladder gaan.

Niet perfect/compleet lijstje, maar het geeft een aardig beeld.
Ruudje88 in "Het Grote Keuken topic: verkopers, kwaliteit, prijs - Deel 3"

De meeste merken opereren in meerdere segmenten, dus het hangt echt af van het exacte type/model.

[ Voor 80% gewijzigd door mitsumark op 21-01-2022 07:34 ]


  • joostbo
  • Registratie: Juni 2021
  • Laatst online: 01-12-2024
Ambianz schreef op donderdag 20 januari 2022 @ 17:56:
Na eerder advies gehad te hebben in dit topic wat betreft apparatuur zit ik nog even met een kwestie.

Het gaat vooral even om de vaatwasser, het advies is om te kiezen voor bosch/siemens/miele over het algemeen. Echter als ik ga zoeken op bosch/siemens in dit topic lees ik overal dat er hier mensen zijn geweest die de helft van het apparatuur niet geleverd hebben gekregen met levertijd onbekend.

Mijn keukenzaak geeft aan dat ze dan ook geen bosch/siemens leveren, miele is buiten budget. Ga ik een "slechte koop" doen met een AEG vaatwasser? Keuken zit qua prijs rond de 16k. Keukenzaak geeft aan ook prima mee te werken als ik zelf een vaatwasser bestel, dit gaat me een hoop gedoe opleveren uiteraard (levering, + moet de sleutel van de woning nog ontvangen, dus allemaal gewoon niet ideaal)

Zelfde geldt voor een oven maar in iets mindere mate. Daarbij zijn we sowieso al wel prima om te settelen voor een wat goedkoper merk (en die dus wel leverbaar zijn) aangezien we geen gekke dingen doen. Een keer een ovenschaal of broodjes afbakken dan heb je het wel gehad.

Wat hebben andere zoal gedaan die wellicht in dezelfde soort situatie zaten?
Een collega wacht ook al lang nadat de keuken al is geleverd op een miele vaatwasser. Dus het is echt niet alleen siemens/bosch.

Het schijnt dat het ook sterk model/type afhankelijk is, hoe duurder, met meer 'gadgets' zoals wifi connectie, des de lastiger het te leveren is. Onze keukenzaak gaf aan dat de goedkopere lijnen van siemens iq300 vooralsnog niet tot grote leverproblemen opleveren. In onze keuken zitten wij gebonden aan een iq500 of iq700 door touch to open bediening en moeten wij wél helaas lang wachten. Anders was ik wel gewoon voor een iq300 siemens gegaan. Maar de keukenzaak gaf aan dat wij waarschijnlijk alles wel op tijd geleverd krijgen op basis van vergelijkbare apparatuur van andere mensen wat op dit moment word uitgeleverd. BSH geeft inderdaad levertijd onbekend. Maar beetje model afhankelijk zit het vaak rond de 6 maand, aldus de keukenzaak. (uiteraard zonder garanties)

Ik vermoed dat dat ook de reden is waarom een AEG/pelgrim, etc. beter kunnen leveren. Die hebben doorgaans wat minder fancy spulletjes er op zitten. Ik zou daar overigens ook de levertijden eens opvragen, want ook daar hoor je steeds meer oplopende lange(re) levertijden omdat men meer naar die merken grijpt op dit moment.

Zelfde geld een beetje voor de ovens.

Begrijp wel dat de keukenzaak liever wil dat je wat anders kiest, hoorde al dat het voor hen heel veel gedoe opleverd omdat veel klanten inderdaad heel ontevreden zijn met half geleverde keukens, leen apparatuur kun je ook niet onbeperkt uitgeven, ze kunnen niets garanderen en ze zijn compleet afhankelijk van de leverancier, maar zij krijgen ze ontevreden klanten met veel vragen en 'gedoe'. Die spelen liever op zeker door iets te kiezen wat waarschijnlijk wel leverbaar gaat zijn.

[ Voor 15% gewijzigd door joostbo op 21-01-2022 08:11 ]


  • Floor-is
  • Registratie: Maart 2000
  • Laatst online: 03-12 11:08
Source90 schreef op donderdag 20 januari 2022 @ 17:40:
[...]

" De Shelf is verkrijgbaar met Gesture Control (GC) Premium bediening. Over de gehele lengte bevinden zich slimme sensoren waardoor je, naast alle eigenschappen van de standaard Gesture Control (GC), de mogelijkheid hebt om de breedte en positie van de lichtbundel aan te passen. Wil je het licht niet over de gehele lengte van de lamp laten branden maar alleen daar waar je een wijntje aan het drinken, aan het werk of je de krant aan het lezen bent? Met je hand sleep je simpelweg de lichtbundel naar de gewenste plaats.

Vind het jammer (meermaals gevraagd, ook tegen extra betaling aangeboden..) dat dit niet naar de pendant wordt geïntroduceerd. Ookal zou hij iets dikker worden, zou exact zijn wat wij zoeken.

[Video: Demonstratie Gesture Control Premium]
ik snap je helemaal, heb ook een aantal keer tegen mijzelf gezegd gewoon dat wand+ding, maar dan hangend, dat zou pas vet zijn, maar helaas..

Bericht hierboven


  • Floor-is
  • Registratie: Maart 2000
  • Laatst online: 03-12 11:08
Stalensnuitje schreef op donderdag 20 januari 2022 @ 20:25:
8<8<

[...]

Het ontwerp van de indeling beneden is net klaar (en de meubels besteld) ;) We hebben de afgelopen twee jaar al het een en ander geschoven en geprobeerd en dit is een blijvertje :*) In de uitbouw is deel kinderspeelplek en we hebben ivm de lichtinval daar een extra bankje met bijzettafel gezet. Niet op de tekening is inderdaad de "echte" zithoek incl. de tv.

Ik ben wel nieuwsgierig wat jij zou doen (beschrijven mag ook hoor ipv tekenen). En positie van leidingen en aansluitingen vind ik niet zo spannend, die kan ik of zelf verleggen of ik heb er vrienden voor ;)
Sorry nee dan heeft het weinig zin, een tekening moet ik effort in stoppen en die kan ik dan beter ergens anders voor gebruiken :)

Bericht hierboven


  • mevrouwKees_1
  • Registratie: December 2020
  • Laatst online: 18-12 22:33
@Source90 ik vond het bagger. Was jaar of 10 geleden. Weet niet of het toen al whirlpool was. Maar wat zij hadden was echt niet best. Kan pech zijn geweest ? Zelf had ik whirlpool in mijn keuken en dat werkte prima. En dat spul hield het 11 jaar uit.

Ik ben overal tegen. Tot ik een besluit neem, dan ben ik ervoor


  • Rzaan
  • Registratie: Mei 2018
  • Laatst online: 11:31

Rzaan

Altijd zoekende

Barry|IA schreef op donderdag 20 januari 2022 @ 23:35:
[...]


Wat bedoel je precies, want ik begrijp de vraagstelling niet helemaal. Nog verder door na KitchenAid?
Ja, als ik de ladder naar boven volg, welke merken kom ik dan tegen? En welke merken staan op de bovenste sporten?

  • nomar109
  • Registratie: Januari 2014
  • Laatst online: 19-12 11:12
In de keuken die we aan het ontwerpen zijn maken we in een hoge kast plaats voor een stoom-oven combi en en een magnetron-oven.
We blijven een beetje hangen bij de keuze van de grootte. Wanneer kies je voor 45cm en wanneer voor 60cm? Waar hangt de keuze van af en wat zijn voors en tegens?

  • Source90
  • Registratie: December 2008
  • Laatst online: 11:20
nomar109 schreef op vrijdag 21 januari 2022 @ 09:38:
In de keuken die we aan het ontwerpen zijn maken we in een hoge kast plaats voor een stoom-oven combi en en een magnetron-oven.
We blijven een beetje hangen bij de keuze van de grootte. Wanneer kies je voor 45cm en wanneer voor 60cm? Waar hangt de keuze van af en wat zijn voors en tegens?
Hoe groot is jullie huishouden en bakken / koken jullie vaak meerdere gerechten tegelijk?
Kleinere oven, ook bij stoom en zeker bij magnetron, zijn efficiënter omdat er een kleiner oppervlakte gevuld/verwarmd moet worden.
Bij een kleiner huishouden zou ik in ieder geval de kleine stoomoven nemen.

Bij de grote stoomoven moet de oven bijna het dubbele (ongeveer) met stoom van 100c vullen.

[ Voor 9% gewijzigd door Source90 op 21-01-2022 11:26 ]


  • joostbo
  • Registratie: Juni 2021
  • Laatst online: 01-12-2024
nomar109 schreef op vrijdag 21 januari 2022 @ 09:38:
In de keuken die we aan het ontwerpen zijn maken we in een hoge kast plaats voor een stoom-oven combi en en een magnetron-oven.
We blijven een beetje hangen bij de keuze van de grootte. Wanneer kies je voor 45cm en wanneer voor 60cm? Waar hangt de keuze van af en wat zijn voors en tegens?
60 kies je al je de ruimte nodig hebt :P Met 1 oven zou ik wel voor 60 gaan omdat we toch veel gebruik maken van de oven en met een gezin van 5 zijn.

Wij wilden eerst voor 60cm gaan. Maar wij hebben met onze nieuwe keuken ook een magnetron/oven en stoom/oven. Onze magnetronoven was niet in 60 te krijgen maar zou je voor het geheel naast elkaar weer optisch kunnen opvullen met een warmhoudlade onder de magnetron/oven.

Uiteindelijk gaf de keukenzaak ons te denken of wij echt die grote oven wel nodig hadden Wil je 4 pizza's tegelijk maken kun je ook beide ovens gebruiken. De warmhoudfunctie zit ook in beide ovens dus die warmhoudlade ga je ook niet snel missen bedachten wij. En optisch als je ze naast elkaar zet zijn 45cm ovens toch fraaier om te zien dan 2x60 naast elkaar (in ons design keuken). Mijn ouders hebben ook 45cm ovens en daar kun je 2 pizza's per oven kwijt. groter stuk vlees past prima (nee een giga kalkoen niet). en hebben wij dus voor 2x 45 cm gekozen ipv een 60 oven (die we nu hebben). Met 2x45 hou je ook nog iets kastruimte weer over, maar dat was meer een bijkomstigheid.

heb je dus 2 ovens dan kun je je afvragen of je 60 echt nodig hebt
ligt dus ook aan het design van de keuken en wat je mooi vind. Heb je ook een inbouw koffieapparaat dan kan 60 optisch weer net wat fraaier uitpakken

[ Voor 15% gewijzigd door joostbo op 21-01-2022 10:01 ]


  • Blik1984
  • Registratie: Juli 2008
  • Laatst online: 19-12 22:04
nomar109 schreef op vrijdag 21 januari 2022 @ 09:38:
In de keuken die we aan het ontwerpen zijn maken we in een hoge kast plaats voor een stoom-oven combi en en een magnetron-oven.
We blijven een beetje hangen bij de keuze van de grootte. Wanneer kies je voor 45cm en wanneer voor 60cm? Waar hangt de keuze van af en wat zijn voors en tegens?
De binnenruimte van een oven van 45 cm is uiteindelijk <30 cm van onder naar boven. We vinden het hebben van de mogelijkheid om bijvoorbeeld >2 pizza's tegellijk te maken wel fijn. En als je een keer een groot stuk vlees gaat klaarmaken gaat dat beter in een oven die wat groter is en een betere luchtcirculatie heeft. We zijn een gezin van 5 (3 jongens :X ), dus de oven zit al snel voller dan bij een kleiner gezin.

[ Voor 6% gewijzigd door Blik1984 op 21-01-2022 11:00 ]


  • nomar109
  • Registratie: Januari 2014
  • Laatst online: 19-12 11:12
Tja, gemiddeld eten we met 3-4 personen, maar het varieert per dag tussen 2 en 6 personen ((jong)volwassenen). Onze kinderen vliegen in de komende jaren wel een keertje uit en dan zal ons huishouden kleiner worden.
Ik heb mensen horen zeggen dat een stoomoven niet groot genoeg kunt hebben omdat je dan meerdere gerechten tegelijk kunt klaarmaken en zo optimaal kunt profiteren van de voordelen van eten bereiden met stoom. En dat een magnetron juist beter kleiner kan zijn omdat je potje dan sneller opgewarmd is (zoals hierboven ook gezegd).
Om esthetische redenen kies ik het liefst voor 45cm, maar 60 is op zich ook prima mogelijk. Maar dan moeten ze wel allebei 60 zijn, anders ziet het er niet uit. Een warmhoudlade om ruimte op te vullen... ik denk niet dat ik die lade veel zal gebruiken.

  • Rzaan
  • Registratie: Mei 2018
  • Laatst online: 11:31

Rzaan

Altijd zoekende

Ik ken veel mensen die een stoomoven hebben.
Ik ken maar weinig mensen die een stoomoven gebruiken.

  • joostbo
  • Registratie: Juni 2021
  • Laatst online: 01-12-2024
nomar109 schreef op vrijdag 21 januari 2022 @ 10:35:
Tja, gemiddeld eten we met 3-4 personen, maar het varieert per dag tussen 2 en 6 personen ((jong)volwassenen). Onze kinderen vliegen in de komende jaren wel een keertje uit en dan zal ons huishouden kleiner worden.
Ik heb mensen horen zeggen dat een stoomoven niet groot genoeg kunt hebben omdat je dan meerdere gerechten tegelijk kunt klaarmaken en zo optimaal kunt profiteren van de voordelen van eten bereiden met stoom. En dat een magnetron juist beter kleiner kan zijn omdat je potje dan sneller opgewarmd is (zoals hierboven ook gezegd).
Om esthetische redenen kies ik het liefst voor 45cm, maar 60 is op zich ook prima mogelijk. Maar dan moeten ze wel allebei 60 zijn, anders ziet het er niet uit. Een warmhoudlade om ruimte op te vullen... ik denk niet dat ik die lade veel zal gebruiken.
Wij gebruiken de stoomoven zeker 2x per week. Je moet er er even toe zetten om dingen in te willen koken en een beetje te proberen. Als je dan de smaak te pakken hebt (letterlijk) dan ga je het vanzelf meer gebruiken. Restjes uit de vriezer verwarmen, groente bereiden maar ook wel andere zaken gebruiken we de stoomfunctie wel voor. Daarom dat we voor de nieuwe keuken dit ook weer wilde hebben.

vrienden van mij hebben ook een stoomoven, maar gebruiken de stoomfunctie nooit. Die oven word volgens mij louter gebruik voor wat diepvries pizza's :P

Nu hebben wij een 60cm stoomoven. maar voor wat wij gebruiken voldoet een 45cm stoomoven ook prima. Maar ligt geheel aan wat je er allemaal mee wil doen.

  • Blik1984
  • Registratie: Juli 2008
  • Laatst online: 19-12 22:04
Ik denk dat je voor gebruik van een stoomoven ook je eetgewoontes aan moet passen. Je bent het namelijk niet gewend, en aanpassen vinden veel mensen toch moeilijk

  • Z___Z
  • Registratie: Maart 2002
  • Niet online
Ligt eraan met welke mindset je een stoomoven koopt. Als je voordat je er een hebt met een stoompan werkt, weet je zeker dat je hem gaat gebruiken, want een stoomoven is veel minder omslachtig. Als je daarvoor nooit hebt gestoomd is het inderdaad een aanpassing in je dieet.

Ik denk dat het ook een beetje een mode ding is en dat daarom veel mensen hem kopen en vervolgens niet gebruiken.

  • Diepie
  • Registratie: Januari 2002
  • Laatst online: 10-12 09:34
Wij gebruiken al jaren meerdere keren per week een los stoomapparaat en in onze nieuwe keuken krijgen we eindelijk een vaste stoomoven. Voor veel mensen is het inderdaad een mode-dingetje maar ik weet zeker dat wij hem veel gaan gebruiken.

Stoom maar eens een broccoli en kook er daarnaast één in water en proef het verschil, dan ben je om :*)

[ Voor 18% gewijzigd door Diepie op 21-01-2022 11:24 ]

Cabauw/Lopik; 26 x 370 Wp (12 x O/ZO, 14 x W/ZW) 9,6 kWp


  • Source90
  • Registratie: December 2008
  • Laatst online: 11:20
Diepie schreef op vrijdag 21 januari 2022 @ 11:23:
Wij gebruiken al jaren meerdere keren per week een los stoomapparaat en in onze nieuwe keuken krijgen we eindelijk een vaste stoomoven. Voor veel mensen is het inderdaad een mode-dingetje maar ik weet zeker dat wij hem veel gaan gebruiken.

Stoom maar eens een broccoli en kook er daarnaast één in water en proef het verschil, dan ben je om :*)
Asperges (zeker de wat betere kwaliteit, direct van het land) zijn ook een mooi voorbeeld. Enkele minuten in de stoomoven vs koken in de pan. Man man man, wereld van verschil.

  • nomar109
  • Registratie: Januari 2014
  • Laatst online: 19-12 11:12
Rzaan schreef op vrijdag 21 januari 2022 @ 10:39:
Ik ken veel mensen die een stoomoven hebben.
Ik ken maar weinig mensen die een stoomoven gebruiken.
Daar maak ik mij niet zo'n zorgen over. Ik stoom groente zoveel mogelijk, maar dan in de pan (zeef boven kokend water). Met de stoomoven gaat dat veel makkelijker en bovendien hou ik dan ruimte over op de kookplaat. Of het echt een ander dieet is weet ik niet, het is vooral veel lekkerder.

  • koelkast
  • Registratie: Juni 1999
  • Niet online
Members only:
Alleen zichtbaar voor ingelogde gebruikers. Inloggen


Wat vinden jullie van deze opstelling / materiaal en prijs?

  • Diepie
  • Registratie: Januari 2002
  • Laatst online: 10-12 09:34
We hebben onze keuken laten ontwerpen door een lokale interieurbouwer. Maart 2022 gaat de eerste paal in de grond en in de tweede helft van 2022 ergens zal de keuken geplaatst gaan worden. We twijfelen nog heel erg over de afwerking van de keuken. We hebben nu gekozen voor triple-eiken maar we neigen ook een beetje naar het echte robuuste barnwood.

Voorbeeld barnwood :

Afbeeldingslocatie: https://tweakers.net/i/dmesbLfkfOjptzXkpTCv7F6QWDo=/x800/filters:strip_icc():strip_exif()/f/image/KIQ34uwJ29f6ik6Ht8BIYwJc.jpg?f=fotoalbum_large

Ons huidige ontwerp ziet er ongeveer zo uit :

Afbeeldingslocatie: https://tweakers.net/i/2Ah1NQBV-UmDuGgvVYMnGFrNMh8=/800x/filters:strip_icc():strip_exif()/f/image/iNNl2sV29mLzJ5ryo9T5wUEL.jpg?f=fotoalbum_large

Afbeeldingslocatie: https://tweakers.net/i/JEPycSGa8XdoWrp0mbJNAZKiAqI=/x800/filters:strip_icc():strip_exif()/f/image/px2sRV9HnxIitq3kUuaFCk3N.jpg?f=fotoalbum_large

De twijfel voor triple eiken is dat het wellicht te saai wordt en barnwoord is misschien iets teveel een mode dingetje op dit moment en na 10 jaar volledig gedateerd.

Werkblad is 80 mm Belgian Blue Velvet composiet met gefrijnde rand en veegstrook 100mm.
Bar is een geborsteld eiken blad.

Verder komt de volgende apparatuur er in :
- Siemens stoomoven HS636GDS2
- Siemens vaatwasser SX73H800BE
- Novi afzuigunit 820
- Liebherr koelkast ICd 5123 plus
- Steel fornuis X9F5FINF
- Quooker

Prijs voor dit alles €28500 incl BTW. Aantal andere keukenboeren zaten ruim 10k boven deze prijs voor hetzelfde ontwerp.

Cabauw/Lopik; 26 x 370 Wp (12 x O/ZO, 14 x W/ZW) 9,6 kWp


  • Diepie
  • Registratie: Januari 2002
  • Laatst online: 10-12 09:34
koelkast schreef op vrijdag 21 januari 2022 @ 12:11:
***members only***


Wat vinden jullie van deze opstelling / materiaal en prijs?
Het lijkt mij wat prijs betreft vrij hoog inderdaad, zeker als ik het vergelijk met ons ontwerp. Wij hebben een composiet werkblad, die komt op 4400 inclusief gefrijnde randen en veegstrook dus zit wel in een wat hogere prijsklasse dan kunststof. Geen idee hoe het gevoel zich verhoudt tot kunststof, dat heb ik nog nooit ervaren.

Cabauw/Lopik; 26 x 370 Wp (12 x O/ZO, 14 x W/ZW) 9,6 kWp


  • beOnt
  • Registratie: September 2001
  • Laatst online: 18-12 20:05
Ik had een oven en microgolf nodig binnen 10 maand, en met alle leveringsproblematiek heb ik dan maar beslist om direct iets te kopen en nog even de stockeren. Uiteindelijk heb ik het volgende gekocht:
- Bosch 8 serie microgolf CFA634GS1 (684 euro)
- Bosch 8 serie oven met Wifi en interne thermometer HBG676EB6 (971 euro -via bosch benefits)

De microgolf besteld bij Loeters in België (op voorraad), en de oven bij Bosch zelf (stond op voorraad)
Alles geleverd in 2 dagen tijd.

We zijn nu 2 weken later, en ik zie dezelfde oven op de site staan bij bosch wat duurder. ik ben wel blij dat mijn beslissing om ze nu al te kopen, zelfs al betekent dit minder garantie.

[ Voor 53% gewijzigd door beOnt op 21-01-2022 12:46 ]

Pagina: 1 ... 305 ... 531 Laatste

Let op:
Dit topic kan gebruikt worden voor het volgende:
• Vragen over de keuken, denkend aan indeling, materialen, kastjes, apparatuur, etc.
• Welke kastjes, aanrechtbladen en apparatuur te kiezen
• Ervaringen met verkopers en keukenboeren
• Tips & Tricks denk hierbij aan hulp bij het zelf installeren en onderhouden van de keuken.
• Jouw indeling. Plaats gerust een foto of tekening, maar maak het niet te bont met hele buildlogs.

Voor badkamers: Het Badkamer topic: verkopers, kwaliteit, prijs - Deel 1
Showen met je keuken kan hier: Tweakers Keuken showroom! - Vestiging 1