“Nothing changed since the 70s. Nothing. Except people train not that hard”. - Tom Platz
Na weken intensief lurken in dit topic en zoveel goede tips & tricks te lezen toch maar besloten in te stappen. We krijgen eind januari de sleutel van ons nieuwe huis en kijken ook naar vervanging van de keuken. En long story short dat is toch veel lastiger dan gedacht. We zijn bij meerdere zaken geweest en overal toch niet weer andere inzichten, opzetjes en inrichtingen. En nog steeds niet naar 100% tevredenheid. De prijzen liegen er ook niet om; meeste zaken geven aan dit 30-35k gaat kosten tot zelfs 40-65k bij ons in het dorp.
Mag ik jullie uitnodigen eens creatief mee te denken voor een mooie, maar ook praktische opzet. Voor de fronten denken we in wengé of zwart met een houtnerf eventueel met een eiland in wit. Blad ook wit met marmer-look (6 cm); keramiek/ dekton. Qua koken hebben we nog een haast religieuse discussie of we gas of inductie nemen. Rest apparatuur Miele, Liebherr, of bovenkant Siemens. Gaggenau vinden we qua looks top, maar we zijn te weinig hobby-kok voor een 3-5k oven. Verder moet er in de keuken een eetgelegenheid zijn voor ons 5-persoons gezin.
Anyway ik heb wat zitten rommelen in de IKEA-planner en zou zeggen shoot .... Dank vast.
/f/image/vDbcd6CU5HzYL598cHdbhNnH.png?f=fotoalbum_large)
:strip_exif()/f/image/tkEy878keRgt319PVTyXOIIO.jpg?f=fotoalbum_large)
:strip_exif()/f/image/NoOyQ8HdnOJ9h6U6SxPdBETi.jpg?f=fotoalbum_large)
:strip_exif()/f/image/H8bMdsAqmJdXyZeG2pRov6Ip.jpg?f=fotoalbum_large)
:strip_exif()/f/image/uCw9pHV3Nbow19S25qnaawH4.jpg?f=fotoalbum_large)
De prijs van Steenproject is in mijn ogen wel echt aan de onderkant van wat je verwachten kunt. Hier haal je al 1-2 marge makende partijen tussenuit ook.miele-21 schreef op dinsdag 4 januari 2022 @ 19:07:
[...]
Excuus, ik was een beetje onduidelijk. Ik doelde op de offerte van Steenproject voor slechts het blad. Lijkt me best scherp. Maar als ik het goed begrijp wacht je ook een totaalprijs van een keukenleverancier (incl. blad) af?
Ik wacht op een totaalprijs van een leverancier inderdaad, die mag absoluut een blad meenemen in de offerte, maar momenteel zijn ze vooral met dat blad echt buitensporig duur. Denk aan een derde van het totaal.
We hebben een forse keuken in gedachten waarbij echt wel serieus luxe apparatuur wordt ingezet, dus dat is nogal een ding.
Bericht hierboven
Het absolute verschil valt nog best mee, afgerond zitten wij 1000 hoger op de keuken zelf zonder (de-)montage. Ik ken Keller niet ten opzichte van Rotpunkt kwa prijs en kwaliteitsrange.Patox schreef op dinsdag 4 januari 2022 @ 19:04:
[...]
Je maakt me wel nieuwsgierig, zit je er ver boven of juist ver onder?
Maar zonder koel- en vrieskast bijvoorbeeld, die hebben we nog niet zo lang en houden we.
Dus dat zou je nog op kunnen tellen bij het verschil.
[ Voor 7% gewijzigd door WaterFire op 04-01-2022 22:50 ]
Komt deze verzameling toevallig t.z.t. ook online beschikbaar als portfolio of iets soortgelijks?
Lijkt mij bijzonder leuk om te zien na al jouw zeer waardevolle reacties, tips & inzichten in deze topics de afgelopen jaren.
Hopelijk verloopt je herstel voorspoedig!
[ Voor 27% gewijzigd door tweakduke op 24-01-2022 14:04 . Reden: Quote aangepast ]
Thanks! Herstel gaat zeer goed. Ik wilde inderdaad vragen of er high-res foto’s online mogen op m’n website737freak schreef op dinsdag 4 januari 2022 @ 23:04:
[...]
Komt deze verzameling toevallig t.z.t. ook online beschikbaar als portfolio of iets soortgelijks?
Lijkt mij bijzonder leuk om te zien na al jouw zeer waardevolle reacties, tips & inzichten in deze topics de afgelopen jaren.
Hopelijk verloopt je herstel voorspoedig!
“Nothing changed since the 70s. Nothing. Except people train not that hard”. - Tom Platz
De ontwerpen kunnen natuurlijk allemaal. Mooie ruimteBorioli schreef op dinsdag 4 januari 2022 @ 22:05:
Hi allemaal,
Na weken intensief lurken in dit topic en zoveel goede tips & tricks te lezen toch maar besloten in te stappen. We krijgen eind januari de sleutel van ons nieuwe huis en kijken ook naar vervanging van de keuken. En long story short dat is toch veel lastiger dan gedacht. We zijn bij meerdere zaken geweest en overal toch niet weer andere inzichten, opzetjes en inrichtingen. En nog steeds niet naar 100% tevredenheid. De prijzen liegen er ook niet om; meeste zaken geven aan dit 30-35k gaat kosten tot zelfs 40-65k bij ons in het dorp.
Mag ik jullie uitnodigen eens creatief mee te denken voor een mooie, maar ook praktische opzet. Voor de fronten denken we in wengé of zwart met een houtnerf eventueel met een eiland in wit. Blad ook wit met marmer-look (6 cm); keramiek/ dekton. Qua koken hebben we nog een haast religieuse discussie of we gas of inductie nemen. Rest apparatuur Miele, Liebherr, of bovenkant Siemens. Gaggenau vinden we qua looks top, maar we zijn te weinig hobby-kok voor een 3-5k oven. Verder moet er in de keuken een eetgelegenheid zijn voor ons 5-persoons gezin.
Anyway ik heb wat zitten rommelen in de IKEA-planner en zou zeggen shoot .... Dank vast.
[Afbeelding]
[Afbeelding]
[Afbeelding]
[Afbeelding]
[Afbeelding]
[Afbeelding]
Ik mis in jouw verhaal wat jouw wensen zijn. Elk ontwerp is in basis wel goed, maar wat vind je er zelf van? Welke zou jouw voorkeur hebben? Dan kun je daar op verder borduren.
“Nothing changed since the 70s. Nothing. Except people train not that hard”. - Tom Platz
Terug switchen qua apparatuur, je gaat van een Audi naar een Fiat.Pingu007 schreef op dinsdag 4 januari 2022 @ 20:48:
[...]
KL nu op 18.7 met AEG ipv Neff (en de wijnklimaatkast Hanano ipv Neff)
En keramiek blad ipv Topcore
Plaatselijke keukenboer komt op 19.3 met Atag apparatuur die vrij duur is, keukenmeubelen daar weer de helft van KL en DB.
Duidelijk te zien dat verschillende leveranciers op verschillende onderdelen hun marge pakken.
Nog even op Superkeukens wachten, finetunen en knoop doorhakken.
Huidige plan is nu zo:
[Afbeelding]
Waarbij het eiland waarschijnlijk mat wit wordt en waarschijnlijk klein zitje en 2 kastjes van 50cm.
Kleur blad ook nog niet uit.
Bericht hierboven
Verwijderd
Hoe doen mensen dat die geen half jaar op een keuken kunnen/willen wachten?
Koelkast en kookplaat lenen van leverancier of goedkoop op Marktplaats scoren. Of apparatuur uit oude keuken handhaven.Verwijderd schreef op woensdag 5 januari 2022 @ 08:41:
Woensdag 28 juli is onze apparatuur besteld, volgende week komt de keuken. De koelkast(NEFF) en Bora Puxu zijn nog niet binnenDe bora verwachten ze in week 4.
Hoe doen mensen dat die geen half jaar op een keuken kunnen/willen wachten?
"Totaal openingsbod ~€25k"
Ik ben hier echt niet de persoon voor. alsof je op een veilig staat. Die gene met de minste onderhandeling skills komen altijd 'bedrogen' uit (en misschien de mensen die er goed in zijn mogelijk ook)
Ben blij dat onze keukenzaak hier zelf ook niet van houd en gewoon gelijk een goede prijs geeft met een transparante offerte. op elk onderdeeltje kon je precies zien wat het kost. De korting kon je ook gelijk zien. (heb wel even vergeleken met andere keukenzaak en was idd gewoon scherp) . en kan de focus gewoon verder liggen op de keuken zelf en alle andere randzaken. Uiteindelijk afvalsysteem nog 'kado' gekregen, kwamen ze zelf mee omdat we het nogal prijzig vonden en aanvankelijk wilde schrappen. Uiteraard word er dan nog verdiend, maar dat mag ook. Ik werk ook niet voor niets.
Je zegt dat 30% korting normaal is bij Tristar. maar wie weet is er al forse korting gegeven op de meubels? Je weet het niet en daarom is er ook weinig zinnigs over te zeggen. maar nog 5.000 er af klinkt ambitieus.
[ Voor 11% gewijzigd door joostbo op 05-01-2022 09:38 ]
Je ziet wel wat het kost, maar je weet de korting niet op de meubelsmarcieking schreef op woensdag 5 januari 2022 @ 09:45:
Ik kan ook per component zien wat het kost, maar inderdaad heb je zonder vergelijken geen idee of dat scherpe prijzen zijn. Dat is wat ik nu probeer te bekijken. Wellicht ziet iemand mijn lijstje/plattegrond en zegt "Nee, daar kan niet veel meer vanaf", en dan heb ik ook een antwoord.
Keukenapparatuur is makkelijker inschatten met typenummers om een idee te krijgen
Elke keuken is anders, juist bij de meubels is het lastig in te schatten omdat er zoveel mogelijk is (zelfs binnen 1 merk) aan grepen, frontjes van goedkoop tot heel duur, schanieren, lades dat er vrijwel nooit een identieke keuken is van het zelfde merk om goed te vergelijken. Ene frontjes zijn een heel stuk prijziger dan de andere binnen 1 e het zelfde merk. lades zijn een stuk duurder dan een kast. Met deze info is er haast niets over te zeggen. Maar 11K aan meubelen klinkt niet alsof er nog een paar duizend af kan met deze configuratie.
[ Voor 14% gewijzigd door joostbo op 05-01-2022 09:56 ]
Welke Quooker is dit? Als dit de standaard (zonder Cube) is, is dat eigenlijk het enige wat ik vrij fors vind. Hier bijna de helft betaald (1300) voor de Combi+ Square.marcieking schreef op woensdag 5 januari 2022 @ 08:57:
***members only***
Paar vragen / opmerkingen:marcieking schreef op woensdag 5 januari 2022 @ 08:57:
***members only***
- Welke prijsgroep zitten de fronten?
- Het lijkt alsof je de onbouw onder de spoelzijde laad doorlopen. Goed opletten of dit met de vaatwasser lukt.
- Ik kan niet goed zien welke kasten lades zijn, die beinvloeden de prijs nogal. Edit: kookzijde eiland lijken 3 lades te zijn, achterkant eiland 2 kasten van 120cm met deurtjes? Aan de spoelkant meest linker en meest rechter kastje, zijn dat lades of deurtjes?
- Zit er nog lades in de hoge kasten of zijn het alleen maar planken?
- Je kunt per component zien wat het kost, bedoel je daarmee dat je ook inzicht hebt in de prijzen van de kasten?
- Je lijkt behoorlijke hoge plinten te gebruiken, terwijl je juist bij Tristar de optie hebt om de korpushoogte aan te passen?
- Je quooker kost 2k, welke is het?
- Welk blad is het?
[ Voor 9% gewijzigd door SquareOne op 05-01-2022 10:17 ]
Ik zou beginnen bij de opstelling. Je hebt 2.50 tussen eiland en muur om een tafel met stoelen te plaatsen? Hoe groot gaat die tafel worden? Rechtsonder is deur vanuit de ingang huis?, waar is dus de looproute.marcieking schreef op woensdag 5 januari 2022 @ 08:57:
***members only***
[ Voor 14% gewijzigd door marcieking op 05-01-2022 10:27 ]

En je betaalt meer dan de adviesprijs dus..
Blijkt ook de spoelbak in te zitten.Source90 schreef op woensdag 5 januari 2022 @ 10:25:
Quooker heeft zowaar een prijslijst online gezet:
[Afbeelding]
En je betaalt meer dan de adviesprijs dus..
Ah, bij het plaatsen van de afbeelding zijn/haar reactie nog niet gezien ^_^
Vind €650 trouwens ook fors voor een spoelbak..
[ Voor 9% gewijzigd door Source90 op 05-01-2022 10:29 ]
Je bent me net voor, dit viel mij ook op. Wij houden 3.25m tussen schiereiland en wand aan voor een tafel met stoelen en vonden dit al krap (met aan één kant de doorloop). Zou net kunnen maar overwegen serieus een eettafel bankje voor iets meer ruimte.Ladypurple schreef op woensdag 5 januari 2022 @ 10:20:
[...]
Ik zou beginnen bij de opstelling. Je hebt 2.50 tussen eiland en muur om een tafel met stoelen te plaatsen? Hoe groot gaat die tafel worden? Rechtsonder is deur vanuit de ingang huis?, waar is dus de looproute.
Die 250cm lijkt me niet te doen @marcieking met losse stoelen. Zéker niet als het ook een doorloop is, je stoelen met armleuningen wilt en de tafel standaard 100cm breed is.
marcieking schreef op woensdag 5 januari 2022 @ 10:22:
***members only***
- Prijsgroep staat er meestal niet specifiek op. Maar het gaat om de typenummers van de fronten. Meestal op pagina 1 van de offerte.
- Wat is de prijs van een 60cm ladekast? En heb je er toevallig ook een met binnenlade. Ik kan op mijn eigen offerte wel even checken hoe die prijzen zich verhouden.
- Ventilatie is vooral een punt aan de bovenkant volgens mij, daar is ruimte zat. Dus lagere plint zou geen probleem moeten zijn volgens mij. Maar bespreek even goed met jullie zaak.
- Welke spoelbak is toegepast?
- Tristar heeft een korpus van 78cm en 91cm. Als je bijvoorbeeld 85cm korpus wilt. Betaal je voor een 91cm korpus, maar kunnen ze deze 'gratis' verlagen naar 85cm. Let op: daarmee wordt het geheel nu eerder duurder dan goedkoper.
- Ik neem aan dat die ombouw onder en boven de keuken niet is inbegrepen bij de prijs?
[ Voor 7% gewijzigd door SquareOne op 05-01-2022 10:39 ]
Dat valt toch wel mee als je van Neff naar Atag/AEG gaat? (Hanano uiteraaard wel stuk minder)Floor-is schreef op woensdag 5 januari 2022 @ 01:56:
[...]
Terug switchen qua apparatuur, je gaat van een Audi naar een Fiat.
https://www.clicktobuy.nl/blogs/news/american-express-welkomstbonus
1 x prima prijs
1 x denk aan garantiepakketten als je meerdere apparaten van één merk koopt
Iemand anders misschien nog feedback?
Een 60CM kast met lades kost €708
Ventilatie lijkt me dan een issue bij de kookplaat, als er recirculatie is, en dan wil je denk ik consistent dezelfde plinthoogte hebben tussen eiland en muur?
Ik zie inderdaad een corpus van 78CM. Ik zal het eens navragen, wellicht dat er in ieder geval 10CM plint af kan
En over de opstelling, daar zullen we inderdaad nog een keer naar kijken. We hebben het idee dat het wel moet kunnen maar ruim is inderdaad anders.
1. Wij gebruiken de booster op onze huidige Siemens-plaat vaak, omdat je hiermee simpelweg heel snel water kookt. Voor al het andere kookwerk is het te hard.XQ! schreef op dinsdag 4 januari 2022 @ 21:28:
Hoe vaak gebruiken jullie de boosterfunctie van een Bora Pure X? Dit naar aanleiding van een werktekening die we van de keukenleverancier hebben gekregen waarbij de Bora is aangesloten op een 2-fase perilex wcd. Wij hebben een 3x25A elektra aansluiting. Op de vraag of het op een 3-fasen aansluiting kon (mede door de vele posts hier), kregen we het volgende als antwoord:
[...]
Volgens mij hebben wij toch een standaard 3-fasen aansluiting met 3x25A en kan dit zonder meerwerkkosten worden aangesloten? Indien niet, is het dan waard om de extra kosten te betalen voor een 3-fasen aansluiting?
2. Als je meterkast een 3-fase aansluiting heeft, is een 2-fase aansluiting op je kookplaat zelden de juiste oplossing. Maar keukenboeren snappen elektra niet en elektriciens boeit het vaak ook te weinig om echt goed te doen. Is al heel veel meer over geschreven in meerdere topics. Zoek op 'kookgroep'.
Even plat en als feedback Jazzy:Jazzy schreef op woensdag 5 januari 2022 @ 10:48:
Heb twee reacties gekregen op mijn vraag in Jazzy in "Het Grote Keuken topic: verkopers, kwaliteit, prijs - Deel 3", waarvoor dank!
1 x prima prijs
1 x denk aan garantiepakketten als je meerdere apparaten van één merk koopt
Iemand anders misschien nog feedback?
Ik heb niet gereageerd omdat er geen plattegrond(je) bijzit, je niet hebt verduidelijkt wat aangrenzende ruimtes zijn, waar je de tafel kwijt wilt, wat de afwegingen zijn geweest die zijn gemaakt en dus stond er een wat inspiratieloze witte L-vormige keuken in het topic met de vraag of dit okay is en of we feedback hebben.
Doe een plattegrondje, vertel eens over die wasemkap, de locatie van de kookplaat, de reden voor twee ovens/combi, welk blad (van Dekker) en waarom, de keuze voor grepen, de keuze voor al die legkasten en de lemans, dat hoge 30 kastje op de hoek. Waar komt je koffiemachine en waarom; is dat een handige plek ook? En waarom geen vriezer, waar is die dan?
Vertel ons het verhaal, de idee en de uitwerking. Neem ons mee!
Nu kan ik zeggen ‘goh die ovens zitten ver van het koken’ of ‘heb je genoeg ruimte tussen koken en spoelen zo’ (antwoord is absoluut nee hier trouwens), maar echt verder kom ik niet.
[ Voor 5% gewijzigd door Floor-is op 05-01-2022 11:01 ]
Bericht hierboven
Maar je kunt wel heel mooi die derde fase gebruiken voor je quooker of vaatwasser of algemene groep in de keuken. Een YMVK 5x4 naar de keuken, lasdoos in en daar splitsen is iets dat echt te weinig wordt gedaan omdat mensen niet (willen) nadenkenmillerman_sf schreef op woensdag 5 januari 2022 @ 10:53:
[...]
1. Wij gebruiken de booster op onze huidige Siemens-plaat vaak, omdat je hiermee simpelweg heel snel water kookt. Voor al het andere kookwerk is het te hard.
2. Als je meterkast een 3-fase aansluiting heeft, is een 2-fase aansluiting op je kookplaat zelden de juiste oplossing. Maar keukenboeren snappen elektra niet en elektriciens boeit het vaak ook te weinig om echt goed te doen. Is al heel veel meer over geschreven in meerdere topics. Zoek op 'kookgroep'.
Bij nader inzien en zoals @pietje63 aangeeft.. Beter niet doen wat ik schreef.
Dat gezegd hebbende: 3fase ipv kookgroep mag geen issue zijn
[ Voor 8% gewijzigd door Floor-is op 05-01-2022 12:36 ]
Bericht hierboven
Mijn reactie is er dan puur een op smaak gebaseerd, en die is niet zo nuttig waarschijnlijkJazzy schreef op woensdag 5 januari 2022 @ 10:48:
Heb twee reacties gekregen op mijn vraag in Jazzy in "Het Grote Keuken topic: verkopers, kwaliteit, prijs - Deel 3", waarvoor dank!
1 x prima prijs
1 x denk aan garantiepakketten als je meerdere apparaten van één merk koopt
Iemand anders misschien nog feedback?
Ik vind de keuken vrij onrustig door verschillende maten (hoogte/breedte), lades, deurtjes, greepjes, ovens boven elkaar, enz. Gewoon niet mijn stijl. Doet mij een beetje oubollig en goedkoop aan? Al blijft dat lastig met zo’n render en geen verdere tekeningen/foto’s.
Maar nogmaals: veel hiervan is smaak
Ah, en @Floor-is geeft ook aan wat er een beetje mist in je vorige post en hier kan ik mij in vinden.
[ Voor 6% gewijzigd door remzor op 05-01-2022 11:08 ]
Ik blijf erbij dat je een schiereiland neer zou moeten zettenStrider schreef op maandag 3 januari 2022 @ 13:52:
[...]
In de opstelling die het waarschijnlijk gaat worden niet. Ik zou de kast onder de combi oven kunnen opgeven, maar aangezien we ook geen kelder hebben, is er wel ruimte nodig om het eten etc. kwijt te kunnen.
De vrouw wilde geen schiereiland, dus ik kan het blad daar ook niet langer voor maken.
[Afbeelding]
*Wat vinden jullie overigens van deze opstelling? Er is rondom ruimte van 1 meter. Ook tussen de stoelen en het eiland, vandaar dat ik dacht dat het praktischer was om geen schiereiland te nemen. Want dan kun je altijd een andere weg nemen.
Dit is niet verkeerd, begrijp me goed, maar een schiereiland zou denk ik nog mooier zijn
Bericht hierboven
Gaat me niet echt om inhoudelijke feedback, dan had ik inderdaad veel meer informatie moeten geven. We zijn niet van die moeilijke kopers, dit is zo'n beetje de indeling die we willen, de saaie kleur past bij een relatief drukke plavuizenvloer en we hebben nu de extra lades en kastruimte die we in ons huidige huis missen. Bovendien moet er in maart al geleverd worden, we zullen één dezer dagen een keer een knoop door moeten hakken.Wat denken jullie, heeft het echt zin om bij andere bedrijven te gaan kijken als we in principe tevreden zijn met deze aanbieding? Ik bedoel, zouden we ergens anders voor een middenklasse keuken echt 5k goedkoper uit zijn? Snap dat vergelijken altijd zinvol is maar we hebben weinig zin om nog drie keer ergens uren naar keukens te gaan kijken. En onderhandelen kan ik ook wel zonder vergelijkende offerte.
TL;DR: Deze Nobilia keuken aangeboden gekregen met Atag middenklasse apparatuur (die we uiteindelijk niet nemen) voor 20k. Is het heel zinvol om te gaan shoppen, of afdingen en een deal maken?
[ Voor 3% gewijzigd door Jazzy op 05-01-2022 11:18 ]
3 fase kabel gesplitst in 3x1-fase, mag dat?Floor-is schreef op woensdag 5 januari 2022 @ 11:03:
[...]
Maar je kunt wel heel mooi die derde fase gebruiken voor je quooker of vaatwasser of algemene groep in de keuken. Een YMVK 5x4 naar de keuken, lasdoos in en daar splitsen is iets dat echt te weinig wordt gedaan omdat mensen niet (willen) nadenken
Volgens mij staat hier dat het splitsen in een lasdoos niet zomaar mag.
De grootste Nederlandstalige database met informatie over computers met zoekfunctie!!
Wat wij hebben gedaan is één andere offerte opgevraagd voor dezelfde apparatuur. De bedragen teruggekoppeld naar Keukenmaxx "we hebben liever alles bij jullie, maar willen ook geen dief zijn van onze portemonnee". Toen hebben ze direct die bedragen overgenomen (en werd dus wel alles ingebouwd). Deze lagere bedragen gaven vervolgens (gevoelsmatig) de ruimte om apparatuur één klasse beter te kiezen (voor vergelijkbare kortingspercentages).Jazzy schreef op woensdag 5 januari 2022 @ 11:17:
Ik denk dat ik mijn vraag een beetje verstopt had in de tekst:
[...]
TL;DR: Deze Nobilia keuken aangeboden gekregen met Atag middenklasse apparatuur (die we uiteindelijk niet nemen) voor 20k. Is het heel zinvol om te gaan shoppen, of afdingen en een deal maken?
Gun het de keukenverkoper, maar doe jezelf niet tekort.
De grootste Nederlandstalige database met informatie over computers met zoekfunctie!!
Wat vind je zelf van de prijs als je kijkt naar de andere keukens die hier in het topic voorbij komen? Ik vind het veel geld, maar punt blijft staan dat zonder inzicht in prijsgroep fronten, typenummers apparatuur, opties in kasten (zijn er upgrades in lades etc), prijsgroep werkblad niet zo veel over valt te zeggen.Jazzy schreef op woensdag 5 januari 2022 @ 11:17:
Ik denk dat ik mijn vraag een beetje verstopt had in de tekst:
[...]
Gaat me niet echt om inhoudelijke feedback, dan had ik inderdaad veel meer informatie moeten geven. We zijn niet van die moeilijke kopers, dit is zo'n beetje de indeling die we willen, de saaie kleur past bij een relatief drukke plavuizenvloer en we hebben nu de extra lades en kastruimte die we in ons huidige huis missen. Bovendien moet er in maart al geleverd worden, we zullen één dezer dagen een keer een knoop door moeten hakken.
TL;DR: Deze Nobilia keuken aangeboden gekregen met Atag middenklasse apparatuur (die we uiteindelijk niet nemen) voor 20k. Is het heel zinvol om te gaan shoppen, of afdingen en een deal maken?
Punt is een beetje dat Kitchen4all standaard niet alles levert. Zo zouden wij bijvoorbeeld graag een koelkast van Liebherr hebben en een vaatwasser van Miele of AEG. Kitchen4all komt met BSH of Atag/Pelgrim en kan andere apparatuur wel leveren, maar als ik bij Keukenloods en dergelijke apparatuur zie voor een redelijke prijs en nog belangrijker, die op voorraad is, dan is het voor mij veel eenvoudiger om de apparatuur zelf bij elkaar te sprokkelen. Waar Kitchen4all geen enkel probleem mee heeft overigens.pietje63 schreef op woensdag 5 januari 2022 @ 11:24:
[...]
Wat wij hebben gedaan is één andere offerte opgevraagd voor dezelfde apparatuur. De bedragen teruggekoppeld naar Keukenmaxx "we hebben liever alles bij jullie, maar willen ook geen dief zijn van onze portemonnee". Toen hebben ze direct die bedragen overgenomen (en werd dus wel alles ingebouwd). Deze lagere bedragen gaven vervolgens (gevoelsmatig) de ruimte om apparatuur één klasse beter te kiezen (voor vergelijkbare kortingspercentages).
Gun het de keukenverkoper, maar doe jezelf niet tekort.
Ik snap je vraag. Had eigenlijk aangenomen dat het wel mogelijk zou zijn om high-level wat te kunnen zeggen zonder alle artikelnummers.SquareOne schreef op woensdag 5 januari 2022 @ 11:26:
[...]
Wat vind je zelf van de prijs als je kijkt naar de andere keukens die hier in het topic voorbij komen? Ik vind het veel geld, maar punt blijft staan dat zonder inzicht in prijsgroep fronten, typenummers apparatuur, opties in kasten (zijn er upgrades in lades etc), prijsgroep werkblad niet zo veel over valt te zeggen.
Heb de relevante pagina's uit de offerte even in Dropbox gezet: https://www.dropbox.com/s...Keuken%20Mellema.pdf?dl=0
.De positie van de keuken is de eerste uitdaging. We hebben er nu voor gekozen om de keuken rechtsachterin te plaatsen met een eiland. Er komen grote openslaande deuren aan de tuinkant ipv de losse deur en ramen die je nu ziet op de tekening.
Eerste offerte is van een lokale keukenboer met de volgende specificaties (de getoonde kleuren gaan we sowieos niet nemen, maar zijn als indicatie):
Keukenmeubelen:
Schmidt greeploos - €7400
Werkblad:
Dekker composietsteen 12mm massief met 40mm fact randafwerking - €5200
Apperatuur/Accesoires: - €11500
- BORA PUXU
- Siemens IQ700 60x60 (stoom)oven HS836GTB6
- Liebherr Integreerbare koelkast IRBD 4121-20
- Liebherr Integreerbare vriezer IGN 1064-21
- Siemens IQ300 Afwasmachine SN63H800UE
- Quooker 22+FSRVS
- inclusief kleine accessoires zoals prullenbak
![]() | ![]() |
- Wat vinden jullie van de prijs van deze offerte? Het service niveau van deze partij ligt heel erg hoog, we zijn ervan bewust dat we daar iets meer voor zullen betalen
- Wie is er bekend met Schmidt? Ik kende ze zelf niet, maar volgens mij is het midden-hoog segment
- Op welke plek zouden jullie de keuken plaatsen en met welke indeling? We worden hier graag nog in geinspireerd.
Inderdaad, mag absoluut niet volgens de NEN1010. Nooit 2 groepen in 1 buis. En kan potentieel ook gevaarlijk zijn. zeker als er later iemand aan wil werken.pietje63 schreef op woensdag 5 januari 2022 @ 11:20:
[...]
3 fase kabel gesplitst in 3x1-fase, mag dat?
Volgens mij staat hier dat het splitsen in een lasdoos niet zomaar mag.
En wat hierboven is gezegd (en wel vaker) is dat keukenzaken snel grijpen naar een kookgroep zonder te informeren naar de huidige situatie. De kookgroep is alleen bedoeld voor mensen die een krachtige kookplaat in een 1-fase groepenkast kwijt moeten. Niet ideaal, maar het mag en kan wel.
Met een 3-fase aansluiting in de groepenkast, die kookplaat lekker aansluiten op 3-fases. Word de stroom mooi verdeeld ipv al het vermogen over 1-fase te drukken. Kost ook amper meer. Keukenzaken snappen dat nog niet en sommige elektriciens ook niet blijkbaar.
[ Voor 48% gewijzigd door joostbo op 05-01-2022 12:04 ]
Geen idee of dat is toegestaan, maar vandaar het woord 'zelden' in mijn postFloor-is schreef op woensdag 5 januari 2022 @ 11:03:
[...]
Maar je kunt wel heel mooi die derde fase gebruiken voor je quooker of vaatwasser of algemene groep in de keuken. Een YMVK 5x4 naar de keuken, lasdoos in en daar splitsen is iets dat echt te weinig wordt gedaan omdat mensen niet (willen) nadenken
Anyway, theoretische discussie denk ik, ten aanzien van de originele vraag. Leuker bij een biertje dan hier
-edit- Kennelijk niet toegestaan.
Als je happy bent met de indeling, maar denkt goedkoper uit te kunnen zijn, dan zijn beide prima opties.Jazzy schreef op woensdag 5 januari 2022 @ 11:17:
Ik denk dat ik mijn vraag een beetje verstopt had in de tekst:
[...]
Gaat me niet echt om inhoudelijke feedback, dan had ik inderdaad veel meer informatie moeten geven. We zijn niet van die moeilijke kopers, dit is zo'n beetje de indeling die we willen, de saaie kleur past bij een relatief drukke plavuizenvloer en we hebben nu de extra lades en kastruimte die we in ons huidige huis missen. Bovendien moet er in maart al geleverd worden, we zullen één dezer dagen een keer een knoop door moeten hakken.
TL;DR: Deze Nobilia keuken aangeboden gekregen met Atag middenklasse apparatuur (die we uiteindelijk niet nemen) voor 20k. Is het heel zinvol om te gaan shoppen, of afdingen en een deal maken?
Als ik kijk naar wat je hebt uitgezocht vind ik dat het ontwerp tekort schiet én de prijs te hoog is. Heb het gevoel dat ik naar een keuken van 15-16k kijk. Ik mis de grepen in de offerte, zou een Franke bak nemen (kost hetzelfde, dikker materiaal), afvalsysteem is dan weer erg luxe net als de kraan.. Ik zou meer lades doen ook, maar dat ben ik.
Kan je me/ons vertellen hoezo je voor 932mm hoogte gaat? Lijkt mij laag
Als je een plattegrondje delen wilt, dan wil ik echt wel eens tekenen voor je; ik vind dit zonde omdat er echt meer uit de ruimte te halen moet zijn!
[ Voor 23% gewijzigd door Floor-is op 05-01-2022 12:56 ]
Bericht hierboven
Niet zomaar != mag absoluut niet. Maar je hebt meer gelijk dan ik eigenlijk toegeven wil eigenlijk. Zal mijn post even aanpassenpietje63 schreef op woensdag 5 januari 2022 @ 11:20:
[...]
3 fase kabel gesplitst in 3x1-fase, mag dat?
Volgens mij staat hier dat het splitsen in een lasdoos niet zomaar mag.
Bericht hierboven
Waarom losse vriezer en kleine koelkast met vriesvak?Thomas19903 schreef op woensdag 5 januari 2022 @ 11:47:
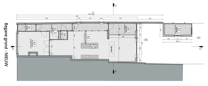
We zijn op dit moment druk bezig met de keuze voor onze keuken in een nieuwbouw huis (oplevering Q3 2023). We hebben een herenhuis met vier woonlagen, waarbij de begane grond volledig (leef)keuken is. Op de eerste verdieping zit de woonkamer.
[Afbeelding].
De positie van de keuken is de eerste uitdaging. We hebben er nu voor gekozen om de keuken rechtsachterin te plaatsen met een eiland. Er komen grote openslaande deuren aan de tuinkant ipv de losse deur en ramen die je nu ziet op de tekening.
Eerste offerte is van een lokale keukenboer met de volgende specificaties (de getoonde kleuren gaan we sowieos niet nemen, maar zijn als indicatie):
Keukenmeubelen:
Schmidt greeploos - €7400
Werkblad:
Dekker composietsteen 12mm massief met 40mm fact randafwerking - €5200
Apperatuur/Accesoires: - €11500Totaalprijs incl. montage komt uit op ~25k
- BORA PUXU
- Siemens IQ700 60x60 (stoom)oven HS836GTB6
- Liebherr Integreerbare koelkast IRBD 4121-20
- Liebherr Integreerbare vriezer IGN 1064-21
- Siemens IQ300 Afwasmachine SN63H800UE
- Quooker 22+FSRVS
- inclusief kleine accessoires zoals prullenbak
[Afbeelding] [Afbeelding]
- Wat vinden jullie van de prijs van deze offerte? Het service niveau van deze partij ligt heel erg hoog, we zijn ervan bewust dat we daar iets meer voor zullen betalen
- Wie is er bekend met Schmidt? Ik kende ze zelf niet, maar volgens mij is het midden-hoog segment
- Op welke plek zouden jullie de keuken plaatsen en met welke indeling? We worden hier graag nog in geinspireerd.
Ik heb geen tijd om het uit te zoeken maar wat ik bij Nobolia altijd zou doen is de absolute bodemprijs proberen te berekeken.Jazzy schreef op woensdag 5 januari 2022 @ 11:46:
[...]
Ik snap je vraag. Had eigenlijk aangenomen dat het wel mogelijk zou zijn om high-level wat te kunnen zeggen zonder alle artikelnummers.
Heb de relevante pagina's uit de offerte even in Dropbox gezet: https://www.dropbox.com/s...Keuken%20Mellema.pdf?dl=0
Nobolia is één van de weinige fabrikanten waarvan prijzen beschikbaar zijn op het internet:
Hier bij keukendepot
En hier bij Wunschkuechen
Het is even een uurtje puzzelen maar zo kun je een eind komen.
Apparatuur heb je zelf al uitgevogeld wat het ongeveer moet kosten via dozenschuivers
Werkblad kun je ook wel via Steenproject of dekeukenbladenfabriek narekeken.
Tel die drie bij elkaar op en je hebt een bodemrpijs. Via een keukenzaak zal altijd duurder zijn dan de marges die gemaakt moeten worden en de 'all-in' service die ze leveren. Als je de delta weet, kun je voor jezelf bepalen of die meerprijs het waard is.
Wij hebben door een kleine keukenzaak een offerte laten maken voor de keuken in ons nieuw te bouwen huis. Na wat aanpassingen zijn we blij met de opstelling, maar qua prijs kan ik niet inschatten of we het goed of slecht doen.
![]() | ![]() | ![]() |
(We hebben de hogekasten tot het pladfond laten gaan inplaats van het pladfond laten verlagen, dit is nog niet in de renders verwerkt maar al wel in de offerte prijs.)
De offerte is voor een Ballerina keuken met een combinatie van DirectLACK grafietzwarte en bordeaux eiken decor frontjes. Apparatuur is van Siemens en het blad is keramiek van Dekker. Het blad is doorgetrokken in de achterwand van de spoelnis. Verder is er een van de keuken vrijstaande koffienis met Vin Vinata wijnkoeler.
Het eiland is 2,8 bij 1,2 meter met een doorloop van 1m tussen de spoelnis en het eiland.
Daarmee komen op een totaal van ongeveer ~29k incl. korting en incl. montage.
| Prijs | |
| Kastjes | 16k |
| Apparatuur + spoelbak en kraan | 8k |
| Werkbladen | 6k |
| Achterwand | 1.5k |
| Sub totaal | 31.5k |
| Montage | 2.3k |
| Korting | -4.8k |
| Totaal | 29k |
Als we inplaats van het Dekker blad voor een Dekton blad en achterwand kiezen kost dat ~1.700 euro extra
| Prijs | |
| Dekton bladen Entzo | 7.5k |
| Dekton Achterwand Entzo | 1.2k |
Wat vinden jullie van de opstelling en de prijzen? Is dit een beetje markt conform? Is Dekton de meerpijs waard of is het keramiek van Dekker net zo goed? Ben heel benieuw naar jullie input
[ Voor 6% gewijzigd door codeneos op 05-01-2022 12:41 . Reden: Meer plaatjes ]
http://www.tweakers.net/gallery/119170/sys
Leuk ontwerp!codeneos schreef op woensdag 5 januari 2022 @ 12:40:
Mede tweakers, ik ben opzoek naar jullie mening en advies
Wij hebben door een kleine keukenzaak een offerte laten maken voor de keuken in ons nieuw te bouwen huis. Na wat aanpassingen zijn we blij met de opstelling, maar qua prijs kan ik niet inschatten of we het goed of slecht doen.
[Afbeelding] [Afbeelding] [Afbeelding]
(We hebben de hogekasten tot het pladfond laten gaan inplaats van het pladfond laten verlagen, dit is nog niet in de renders verwerkt maar al wel in de offerte prijs.)
De offerte is voor een Ballerina keuken met een combinatie van DirectLACK grafietzwarte en bordeaux eiken decor frontjes. Apparatuur is van Siemens en het blad is keramiek van Dekker. Het blad is doorgetrokken in de achterwand van de spoelnis. Verder is er een van de keuken vrijstaande koffienis met Vin Vinata wijnkoeler.
Het eiland is 2,8 bij 1,2 meter met een doorloop van 1m tussen de spoelnis en het eiland.
Daarmee komen op een totaal van ongeveer ~29k incl. korting en incl. montage.
Prijs Kastjes 16k Apparatuur + spoelbak en kraan 8k Werkbladen 6k Achterwand 1.5k Sub totaal 31.5k Montage 2.3k Korting -4.8k Totaal 29k
Als we inplaats van het Dekker blad voor een Dekton blad en achterwand kiezen kost dat ~1.700 euro extra
Prijs Dekton bladen Entzo 7.5k Dekton Achterwand Entzo 1.2k
Wat vinden jullie van de opstelling en de prijzen? Is dit een beetje markt conform? Is Dekton de meerpijs waard of is het keramiek van Dekker net zo goed? Ben heel benieuw naar jullie input
- Heb je een plattegrond van de ruimte
- Heb je een plattegrond van de opstelling inclusief toelichting op kasjes; welke zijn lades, waar zitten binnenlades, andere opties/accessoires die zijn gekozen
- Overzicht van typenummers apparatuur
- Hoe dik is het werkblad?
- Is de ombouw van de kasten meegenomen in de offerte
Dankje! Ik heb nog geen plattegrond van de opstelling ontvangen. Die heb ik al even opgevraagd om ook te controleren of alles wat lades zouden moeten zijn ook echt lades zijn. Het staat ook als het goed is in de offerte maar omdat er 3 pagina's aan details voor de kastjes zijn ben ik niet helemaal zeker of het correct is uitgewerkt.SquareOne schreef op woensdag 5 januari 2022 @ 12:44:
[...]
Leuk ontwerp!
- Heb je een plattegrond van de ruimte
- Heb je een plattegrond van de opstelling inclusief toelichting op kasjes; welke zijn lades, waar zitten binnenlades, andere opties/accessoires die zijn gekozen
- Overzicht van typenummers apparatuur
- Hoe dik is het werkblad?
- Is de ombouw van de kasten meegenomen in de offerte
- In het eiland is alles lades van type LEGRABOX-ART. Onder de spoelkast zitten ook lades en de rest zijn kastjes met planken.
- Het werkblad is 40mm dik voor Dekker en 20mm bij Dekton, de keukenzaak heeft aangegeven het niet duurder is om ook bij Dekton het blad dikker te maken. Zelf denk ik dat 40mm wat te dik is en 20mm wat te dun, ook met oog op de bar aan het uiteinde van het eiland.
- De ombouw is niet meegenomen in de prijs en moet door de aannemer gedaan worden
Apparatuur:
| Prijs | |
| Kookplaat EH877LVV5E IQ100 met homeconnect | 1.073,40 |
| 2x Oven/Combi CM836GNB6 IQ700 (per stuk) | 1.109,40 |
| Afzuigkap LR97CAQ20 IQ500 met homeconnect | 1.259,40 |
| Koelkast KI81RSDE0 IQ500 | 977,40 |
| Vaatwasser SN73H800BE IQ300 | 785,40 |
| Vin Vinata wijnklimaatkast | 1.000,00 |
| Totaal | 7.314,40 |
Dit is de plattegrond van de ruimte:
![]() |
[ Voor 3% gewijzigd door codeneos op 05-01-2022 13:15 . Reden: taal etc ]
http://www.tweakers.net/gallery/119170/sys
Ik ben aan het tekenen voor je, wat vragen:louzy82 schreef op dinsdag 28 december 2021 @ 11:26:
Hallo allemaal,
Super topic dit, heb er al veel in gelezen.
We zijn voornemens om onze benedenverdieping te gaan verbouwen.
Na wat passen, meten, schuiven en proberen zijn we tot deze grove indeling van de kamers gekomen.
[Afbeelding]
Nu zijn we na aan het denken over de gedetailleerde indeling van de keuken en ik ben nieuwsgierig of jullie nog tips en ideeen voor ons hebben hierover
Wat meer informatie over de tekening:Alvast super bedankt voor tips en ideeen!
- Rechtsboven is de entree vanuit de achtertuin/garage, hier komen we altijd door binnen.
- Linksboven in de keuken zijn 2 ramen, ongeveer een meter hoog, op gelijke hoogte met het werkblad
- Rechtsboven in de keuken is nu een raam getekend vanaf de vloer, dit omdat er nu een buitendeur zit en dit een makkelijke oplossing is om deze te vervangen door een raam ipv met andere stenen dicht te metselen. Maar als dit wel beter is voor de indeling van de keuken staan we hier wel voor open.
- De deur links onderin de keuken leidt naar de opslag en kelder
- We willen graag de eettafel in de keuken. We zijn met 5-en (maar op den duur komen daar nog vriendjes en vriendinnetjes bij natuurlijk)
- We hebben nu geen bovenkastjes ingetekend omdat we dat wel mooi vinden maar als het qua opslag te weinig is anders, is het zeker wel een optie om deze toe te voegen
- Qua leidingen kunnen we nog alle kanten op want de betonvloer gaat er ook uit.
- Hoe breed zijn je deuren?
- Hoe ver zit de deur naar de bijkeuken van de achtermuur?
- Hoe breed zijn de ramen in de keuken ook alweer?
- De wand tussen keuken en bijkeuken/garage, stel dat ik die voorstel te verplaatsen: kan dat überhaupt? (Sta je er voor open, is die dragend?)
- In meest extreme vorm kan je de woonkamer en keuken wisselen van plaats: huidige keuken als zitkamer, ruimte tussen schuur en trap als TVruimte. Dat is heftig en prijzig, maar die hebt nu echt een grote loze ruimte in je huis en dat is echt zonde.
Bericht hierboven
Volgens mij gewoon een scherpe offerte.codeneos schreef op woensdag 5 januari 2022 @ 13:11:
[...]
Dankje! Ik heb nog geen plattegrond van de opstelling ontvangen. Die heb ik al even opgevraagd om ook te controleren of alles wat lades zouden moeten zijn ook echt lades zijn. Het staat ook als het goed is in de offerte maar omdat er 3 pagina's aan details voor de kastjes zijn ben ik niet helemaal zeker of het correct is uitgewerkt.De werkhoogte is c.a. 96cm met een blad van 4cm en een plint van 7.5cm.
- In het eiland is alles lades van type LEGRABOX-ART. Onder de spoelkast zitten ook lades en de rest zijn kastjes met planken.
- Het werkblad is 40mm dik voor Dekker en 20mm bij Dekton, de keukenzaak heeft aangegeven het niet duurder is om ook bij Dekton het blad dikker te maken. Zelf denk ik dat 40mm wat te dik is en 20mm wat te dun, ook met oog op de bar aan het uiteinde van het eiland.
- De ombouw is niet meegenomen in de prijs en moet door de aannemer gedaan worden
Apparatuur:
Prijs Kookplaat EH877LVV5E IQ100 met homeconnect 1.073,40 2x Oven/Combi CM836GNB6 IQ700 (per stuk) 1.109,40 Afzuigkap LR97CAQ20 IQ500 met homeconnect 1.259,40 Koelkast KI81RSDE0 IQ500 977,40 Vaatwasser SN73H800BE IQ300 785,40 Vin Vinata wijnklimaatkast 1.000,00 Totaal 7.314,40
Dit is de plattegrond van de ruimte:
[Afbeelding]
Die apparatuur zit serieuze korting op t.o.v. adviesprijs. Ik zou in de tabel even drie kolommen maken 1) adviesprijs, 2) marktconform: 60% van adviesprijs (40% korting), 3) geoffreerde prijs. Heb het idee dat jullie prijzen in kolom 3 lager zijn dan in kolom 2.
In de offerte wordt een bedrag van 4,8k korting gegeven. Omdat de apparatuur al zo scherp is geoffreerd doe ik de aanname dat die korting met name op de kasten en het blad zit. Dan is die 16k voor kasten, wat initieel hoog lijkt, ineens niet meer zo hoog
Die maatvoering op je plattegrond is indicatief denk ik? Want de kastewand bestaat uit 4 kasten van 60cm en 2 greeplijsten. Dat past niet in 240cm.
Aan de spoelkant, daar lijkt een 30cm kast te staan? Klopt dat, zo ja, is dit een apothekerskast? Die drijven de prijs ook aardig op.
[ Voor 4% gewijzigd door SquareOne op 05-01-2022 13:25 ]
Even hierop terugkomen, de naam zegt me wel wat namelijk, maar je komt ze zo weinig tegen dat het moeilijk is om ervaringen te vinden. Rational (Duits) is een van de dochterbedrijven, die zit in het hoge segment; een redelijk logische deductie is dat Snaidero dan zelf ook minimaal hoog in het middensegment zit.Vendetta_X schreef op dinsdag 4 januari 2022 @ 15:02:
Iemand bekend met het merk Snaidero (italiaans)? Heeft het voor/nadelen t.o.v. bijvoorbeeld een Schuller keuken? Prijstechnisch is het volgens mij een wat duurder merk. Had er nog nooit van gehoord dus ben benieuwd of iemand z'n ervaring kan delen.
Bericht hierboven
Ik heb direct de prijzen in Excel gezet en warempel, ze zijn op de komma nauwkeurig 60% van de adviesprijs van Siemens. Dank voor de tip!SquareOne schreef op woensdag 5 januari 2022 @ 13:23:
[...]
Volgens mij gewoon een scherpe offerte.
Die apparatuur zit serieuze korting op t.o.v. adviesprijs. Ik zou in de tabel even drie kolommen maken 1) adviesprijs, 2) marktconform: 60% van adviesprijs (40% korting), 3) geoffreerde prijs. Heb het idee dat jullie prijzen in kolom 3 lager zijn dan in kolom 2.
| Advies prijs | 60% | |
| Kookplaat EH877LVV5E IQ100 met homeconnect | 1.789,00 | 1.073,40 |
| 2x Oven/Combi CM836GNB6 IQ700 (per stuk) | 1.849,00 | 1.109,40 |
| Afzuigkap LR97CAQ20 IQ500 met homeconnect | 2.099,00 | 1.259,40 |
| Koelkast KI81RSDE0 IQ500 | 1.629,00 | 977,40 |
| Vaatwasser SN73H800BE IQ300 | 1.309,00 | 785,40 |
Klopt, de breetes voor de hogekasten wand en de koffienis zijn indicatief. We laten de wand zo plaatsen zodat de keuken precies past. De kastenwand wordt ongeveer ~250cm en de de koffienis wordt 122-125cm breed.SquareOne schreef op woensdag 5 januari 2022 @ 13:23:
[...]
Die maatvoering op je plattegrond is indicatief denk ik? Want de kastewand bestaat uit 4 kasten van 60cm en 2 greeplijsten. Dat past niet in 240cm.
Scherp, dat is inderdaad een apothekerskast. De prijs voor de apothekerskast en de koelkast-apparatenkast samen is 2.283,34. Als een apparaat-kast ~800 euro kost dan zou de apothekerskast op ~1500 komen. Dat is inderdaad best prijzig. Helemaal niet zo over nagedacht.SquareOne schreef op woensdag 5 januari 2022 @ 13:23:
[...]
Aan de spoelkant, daar lijkt een 30cm kast te staan? Klopt dat, zo ja, is dit een apothekerskast? Die drijven de prijs ook aardig op.
http://www.tweakers.net/gallery/119170/sys
Ik kan de getallen op je plattegrond niet lezen helaas. Volgens mij heb je een mooie ruimte om mee te werken, ben benieuwd of ik iets anders kan intekenen dan je zelf al hebt gedaanBorioli schreef op dinsdag 4 januari 2022 @ 22:05:
Hi allemaal,
Na weken intensief lurken in dit topic en zoveel goede tips & tricks te lezen toch maar besloten in te stappen. We krijgen eind januari de sleutel van ons nieuwe huis en kijken ook naar vervanging van de keuken. En long story short dat is toch veel lastiger dan gedacht. We zijn bij meerdere zaken geweest en overal toch niet weer andere inzichten, opzetjes en inrichtingen. En nog steeds niet naar 100% tevredenheid. De prijzen liegen er ook niet om; meeste zaken geven aan dit 30-35k gaat kosten tot zelfs 40-65k bij ons in het dorp.
Mag ik jullie uitnodigen eens creatief mee te denken voor een mooie, maar ook praktische opzet. Voor de fronten denken we in wengé of zwart met een houtnerf eventueel met een eiland in wit. Blad ook wit met marmer-look (6 cm); keramiek/ dekton. Qua koken hebben we nog een haast religieuse discussie of we gas of inductie nemen. Rest apparatuur Miele, Liebherr, of bovenkant Siemens. Gaggenau vinden we qua looks top, maar we zijn te weinig hobby-kok voor een 3-5k oven. Verder moet er in de keuken een eetgelegenheid zijn voor ons 5-persoons gezin.
Anyway ik heb wat zitten rommelen in de IKEA-planner en zou zeggen shoot .... Dank vast.
[Afbeelding]
[Afbeelding]
[Afbeelding]
[Afbeelding]
[Afbeelding]
[Afbeelding]
Bericht hierboven
Ik heb een paar pagina’s terug prijzen neergezet voor meubels van TriStar, daar kan misschien nog wel iets vanaf, maar niet veel.marcieking schreef op woensdag 5 januari 2022 @ 08:57:
***members only***
Ik denk eerlijk gezegd dat de prijs best wel goed is
Bericht hierboven
Ik denk Arpa fronten, TriStar levert die. Is wel een flinke aanname.marcieking schreef op woensdag 5 januari 2022 @ 10:22:
***members only***
Lekker veel lades, mooi. Zou onder de spoelbak ook lades doen
Plinten 8-12cm, afhankelijk van je voorkeur. Corpus laten aanpassen zodat het blad op de door jou gewenste hoogte uitkomt. Juist fijn te doen omdat dit met TriStar kan. Geen zorgen over ventilatie!
Mooi blad, enige puntje van aandacht is dat de ene zijde van het blad wat donkerder lijkt, maar dat heb je denk ik al wel gezien.
2m50 vraagt om een smalle tafel en krap zitten aan muurzijde. Dat moet je echt even uitzetten in je huidige huis. Tafel 75 van de muur en proberen.. Kijken of jij en je partner dat genoeg vinden, houd er rekening mee dat ook ouders en andere mensen die wat ouder zijn van je tafel gebruik kunnen en willen maken
Laat ik ook jou aanbieden om een schets te maken; heb je een plattegrond?
[ Voor 10% gewijzigd door Floor-is op 05-01-2022 14:44 ]
Bericht hierboven
IMO niet, ATAG/EAG is echt een klasse (soms meer, soms minder) lager.Pingu007 schreef op woensdag 5 januari 2022 @ 10:45:
[...]
Dat valt toch wel mee als je van Neff naar Atag/AEG gaat? (Hanano uiteraaard wel stuk minder)
Het is prima spul, je kunt er prachtige gerechten mee maken en heerlijk mee koken. Met een Fiat kan je
Meer dan prima reizen, genieten van de haren in je wind en genieten van je omgeving; de Audi biedt meer comfort en luxe. Als die je er minder toe doen dan de reis, dan kies je voor een ander merk
Bericht hierboven
Oh heel ander front dan ik had gehoopt. Met Arpa cq massief houten fronten kan je mijn prijzen hier zien (hoge corpus, 9cm plint uit mijn hoofd): Floor-is in "Het Grote Keuken topic: verkopers, kwaliteit, prijs - Deel 3"marcieking schreef op woensdag 5 januari 2022 @ 10:51:
Types van de fonten, zou dat Acryl 101/Perfectsense 110 kunnen zijn?
Een 60CM kast met lades kost €708
Ventilatie lijkt me dan een issue bij de kookplaat, als er recirculatie is, en dan wil je denk ik consistent dezelfde plinthoogte hebben tussen eiland en muur?
Ik zie inderdaad een corpus van 78CM. Ik zal het eens navragen, wellicht dat er in ieder geval 10CM plint af kan
En over de opstelling, daar zullen we inderdaad nog een keer naar kijken. We hebben het idee dat het wel moet kunnen maar ruim is inderdaad anders.
Bericht hierboven
Als je een kokend waterkraan hebt, heb je die booster nagenoeg nooit nodig. Dat is mijns inziens een onderbelicht voordeel van een kokend waterkraanmillerman_sf schreef op woensdag 5 januari 2022 @ 10:53:
[...]
1. Wij gebruiken de booster op onze huidige Siemens-plaat vaak, omdat je hiermee simpelweg heel snel water kookt. Voor al het andere kookwerk is het te hard.
2. Als je meterkast een 3-fase aansluiting heeft, is een 2-fase aansluiting op je kookplaat zelden de juiste oplossing. Maar keukenboeren snappen elektra niet en elektriciens boeit het vaak ook te weinig om echt goed te doen. Is al heel veel meer over geschreven in meerdere topics. Zoek op 'kookgroep'.
Bericht hierboven
ATAG Magna is heel mooi spul hoor, zoals bij elk merk heb je rommel en topkwaliteit. Helaas is dat niet zoals bijv. een studioLine een complete reeks van apparaten.Floor-is schreef op woensdag 5 januari 2022 @ 14:50:
[...]
IMO niet, ATAG/EAG is echt een klasse (soms meer, soms minder) lager.
Het is prima spul, je kunt er prachtige gerechten mee maken en heerlijk mee koken. Met een Fiat kan je
Meer dan prima reizen, genieten van de haren in je wind en genieten van je omgeving; de Audi biedt meer comfort en luxe. Als die je er minder toe doen dan de reis, dan kies je voor een ander merk
Ter indicatie: in ons geval kost een onderkast (78cm korpus) met 2 uittrekladen en 1 binnenlade 682 euro. Frontuitvoering Fenix.marcieking schreef op woensdag 5 januari 2022 @ 10:51:
Types van de fonten, zou dat Acryl 101/Perfectsense 110 kunnen zijn?
Een 60CM kast met lades kost €708
Ventilatie lijkt me dan een issue bij de kookplaat, als er recirculatie is, en dan wil je denk ik consistent dezelfde plinthoogte hebben tussen eiland en muur?
Ik zie inderdaad een corpus van 78CM. Ik zal het eens navragen, wellicht dat er in ieder geval 10CM plint af kan
En over de opstelling, daar zullen we inderdaad nog een keer naar kijken. We hebben het idee dat het wel moet kunnen maar ruim is inderdaad anders.
Neff is bepaald geen Audi maar meer een Skoda waar Siemens de Volkswagen is en Bosch de Seat. Ze komen uit dezelfde fabriek en zijn aan de binnenkant vaak dezelfde apparaten met een iets ander uiterlijk. De Audi is toch meer voor Miele weggelegd.Floor-is schreef op woensdag 5 januari 2022 @ 14:50:
[...]
IMO niet, ATAG/EAG is echt een klasse (soms meer, soms minder) lager.
Het is prima spul, je kunt er prachtige gerechten mee maken en heerlijk mee koken. Met een Fiat kan je
Meer dan prima reizen, genieten van de haren in je wind en genieten van je omgeving; de Audi biedt meer comfort en luxe. Als die je er minder toe doen dan de reis, dan kies je voor een ander merk
Neff is qua prijs/kwaliteit niet meer of beter dan Siemens/Atag/Bosch/AEG waarbij er bij alle merken verschillen zitten tussen de verschillende series.
Bedankt voor het meedenken alvast.Floor-is schreef op woensdag 5 januari 2022 @ 13:22:
[...]
Ik ben aan het tekenen voor je, wat vragen:
- Hoe breed zijn je deuren?
- Hoe ver zit de deur naar de bijkeuken van de achtermuur?
- Hoe breed zijn de ramen in de keuken ook alweer?
- De wand tussen keuken en bijkeuken/garage, stel dat ik die voorstel te verplaatsen: kan dat überhaupt? (Sta je er voor open, is die dragend?)
- In meest extreme vorm kan je de woonkamer en keuken wisselen van plaats: huidige keuken als zitkamer, ruimte tussen schuur en trap als TVruimte. Dat is heftig en prijzig, maar die hebt nu echt een grote loze ruimte in je huis en dat is echt zonde.
- De deur naar de bijkeuken is 80cm breed (excl kozijn), de deur van de kelder is 75cm en de doorgang naar de woonkamer (waar een schuifdeur in gaat komen) is 90 cm.
- Het is 86 cm van de bovenste muur tot het kozijn van de deur.
- Het linker raam van de keuken is 80x100 cm (brxhg) en de bovenste is 120x100cm. Ze beginnen beide op de hoogte van het werkblad
- Nou, de bijkeuken kleiner maken is niet echt een optie. Zoals die nu ingetekend is, is wel zo ongeveer de minimale afmeting die we daarvoor in gedachten hebben. Daarnaast hangt links van de achterdeur een CV ketel. In dit ontwerp is al 1 dragende muur weggehaald (en een wc verplaatsts) om 1,5 m extra bij de keuken te trekken. Dus ja muren verplaatsen kan en daar staan we wel voor open maar de bijkeuken moet niet te klein worden.
- Dit idee hebben we ook overwogen. De hele vloer etc gaat er toch uit dus daar hoeven we het niet voor te laten.
De optie die we overwogen hebben was om bovenin de woonkamer te koken (met zicht op de tuin door de grote schuifpui), links onderin de woonkamer een eettafel en rechts onderin een tv kamer bijvoorbeeld. Het grootste nadeel hiervan is, dat we altijd via de bijkeuken binnenkomen en dan dus altijd door die zithoek/game/relax kamer van de kinderen heen moet lopen om in de rest van het huis te komen. Dat is niet ideaal want die kamer gaat niet altijd opgeruimd zijn en het is onhandig als er iemand zit te gamen en er komen mensen voor door gelopen. Daarnaast hebben we met het huidige plan 3 ruimtes die we van elkaar kunnen scheiden (keuken, woonkamer, gamekamer) wat wel handig is met 5 mensen in huis.
Huidig
:strip_exif()/f/image/P6Msbp68QR76m5dkO6CeuB0R.jpg?f=fotoalbum_large)
Nieuw
[ Voor 16% gewijzigd door louzy82 op 05-01-2022 15:58 ]
Louzy#2475
Er zijn dus 2 wensen.louzy82 schreef op woensdag 5 januari 2022 @ 15:55:
[...]
Bedankt voor het meedenken alvast.Hier ter verduidelijking de huidige indeling en de indeling die we voor ogen hebben
- De deur naar de bijkeuken is 80cm breed (excl kozijn), de deur van de kelder is 75cm en de doorgang naar de woonkamer (waar een schuifdeur in gaat komen) is 90 cm.
- Het is 86 cm van de bovenste muur tot het kozijn van de deur.
- Het linker raam van de keuken is 80x100 cm (brxhg) en de bovenste is 120x100cm. Ze beginnen beide op de hoogte van het werkblad
- Nou, de bijkeuken kleiner maken is niet echt een optie. Zoals die nu ingetekend is, is wel zo ongeveer de minimale afmeting die we daarvoor in gedachten hebben. Daarnaast hangt links van de achterdeur een CV ketel. In dit ontwerp is al 1 dragende muur weggehaald (en een wc verplaatsts) om 1,5 m extra bij de keuken te trekken. Dus ja muren verplaatsen kan en daar staan we wel voor open maar de bijkeuken moet niet te klein worden.
- Dit idee hebben we ook overwogen. De hele vloer etc gaat er toch uit dus daar hoeven we het niet voor te laten.
De optie die we overwogen hebben was om bovenin de woonkamer te koken (met zicht op de tuin door de grote schuifpui), links onderin de woonkamer een eettafel en rechts onderin een tv kamer bijvoorbeeld. Het grootste nadeel hiervan is, dat we altijd via de bijkeuken binnenkomen en dan dus altijd door die zithoek/game/relax kamer van de kinderen heen moet lopen om in de rest van het huis te komen. Dat is niet ideaal want die kamer gaat niet altijd opgeruimd zijn en het is onhandig als er iemand zit te gamen en er komen mensen voor door gelopen. Daarnaast hebben we met het huidige plan 3 ruimtes die we van elkaar kunnen scheiden (keuken, woonkamer, gamekamer) wat wel handig is met 5 mensen in huis.
Huidig
[Afbeelding]
Nieuw
[Afbeelding]
1 grotere (leef) keuken
2 eigen plek voor kinderen
Over punt 2 . Vanwege rommel / rust ?
2 is meer 'een extra plek voor iedereen (maar vooral voor kinderen).Ladypurple schreef op woensdag 5 januari 2022 @ 16:23:
[...]
Er zijn dus 2 wensen.
1 grotere (leef) keuken
2 eigen plek voor kinderen
Over punt 2 . Vanwege rommel / rust ?
We hebben 3 drukke kinderen maar die ook wel echt rust van elkaar kunnen gebruiken.
Daarnaast lijkt het ons prettig als de kinderen iets ouder zijn en tv willen kijken, gamen, keyboard spelen, huiswerk maken, wij dat zelf ook nog lekker op de bank kunnen hangen.
En dan met als additionele optie dat we naast de game kamer en de woonkamer, we ook nog apart kunnen zitten in de keuken.
Met als additionele bonus dat de woonkamer iets meer opgeruimd blijft en de rommel zich meer in de extra kamer zal bevinden.
Zoals ingetekend is het idee om een afscheiding te maken van deels muur en deels (grote) schuifdeur zodat we die ook open kunnen laten en zo toch een beetje ruimtelijk te houden
Louzy#2475
Thanks! Mooie en lichte ruimte inderdaad. We neigen naar een ontwerp met ook hoge kasten op de lange wand. Of dit 4x60 of 2x60 + 2x40 moet zijn, is dan nog in te vullen. Ook of het handig is daar de ovens te doen of juist onder elkaar in die nis tussen vriezer en koelkast.Barry|IA schreef op woensdag 5 januari 2022 @ 01:05:
[...]
De ontwerpen kunnen natuurlijk allemaal. Mooie ruimte
Ik mis in jouw verhaal wat jouw wensen zijn. Elk ontwerp is in basis wel goed, maar wat vind je er zelf van? Welke zou jouw voorkeur hebben? Dan kun je daar op verder borduren.
De lage opstelling is op zich rustig, maar beetje kaal.
De jacht gaat verder. Zaterdag krijgen we al het goed is verschillende renders. Een obv Siematic SLX en de ander Tristar. Die laatste promoot Neff apparatuur. Hoe verhoudt zich dit tot Siemens 700 serie?
Siemens is gelijk aan Neff. Siemens is toeters en bellen, Neff is gericht op de thuiskok.Borioli schreef op woensdag 5 januari 2022 @ 16:54:
[...]
Thanks! Mooie en lichte ruimte inderdaad. We neigen naar een ontwerp met ook hoge kasten op de lange wand. Of dit 4x60 of 2x60 + 2x40 moet zijn, is dan nog in te vullen. Ook of het handig is daar de ovens te doen of juist onder elkaar in die nis tussen vriezer en koelkast.
De lage opstelling is op zich rustig, maar beetje kaal.
De jacht gaat verder. Zaterdag krijgen we al het goed is verschillende renders. Een obv Siematic SLX en de ander Tristar. Die laatste promoot Neff apparatuur. Hoe verhoudt zich dit tot Siemens 700 serie?
“Nothing changed since the 70s. Nothing. Except people train not that hard”. - Tom Platz
Zie reactie van @Ruudje88 hierboven. Siemens IQ700 is hetzelfde als de toplijn van NEFF. Waarschijnlijk intern dezelfde apparatuur, idem voor Bosch.Borioli schreef op woensdag 5 januari 2022 @ 16:54:
[...]
Die laatste promoot Neff apparatuur. Hoe verhoudt zich dit tot Siemens 700 serie?
[ Voor 3% gewijzigd door Source90 op 05-01-2022 16:57 ]
Ja, die heb ik, hieronder! We gaan inderdaad vanavond even bouwen met echte meubels om te kijken hoe dat isFloor-is schreef op woensdag 5 januari 2022 @ 14:43:
[...]
Laat ik ook jou aanbieden om een schets te maken; heb je een plattegrond?
De prijs lijkt me niet verkeerd op het eerste oog. Uitgaande van (nagenoeg) top-range apparatuurThomas19903 schreef op woensdag 5 januari 2022 @ 11:47:
We zijn op dit moment druk bezig met de keuze voor onze keuken in een nieuwbouw huis (oplevering Q3 2023). We hebben een herenhuis met vier woonlagen, waarbij de begane grond volledig (leef)keuken is. Op de eerste verdieping zit de woonkamer.
[Afbeelding].
De positie van de keuken is de eerste uitdaging. We hebben er nu voor gekozen om de keuken rechtsachterin te plaatsen met een eiland. Er komen grote openslaande deuren aan de tuinkant ipv de losse deur en ramen die je nu ziet op de tekening.
Eerste offerte is van een lokale keukenboer met de volgende specificaties (de getoonde kleuren gaan we sowieos niet nemen, maar zijn als indicatie):
Keukenmeubelen:
Schmidt greeploos - €7400
Werkblad:
Dekker composietsteen 12mm massief met 40mm fact randafwerking - €5200
Apperatuur/Accesoires: - €11500Totaalprijs incl. montage komt uit op ~25k
- BORA PUXU
- Siemens IQ700 60x60 (stoom)oven HS836GTB6
- Liebherr Integreerbare koelkast IRBD 4121-20
- Liebherr Integreerbare vriezer IGN 1064-21
- Siemens IQ300 Afwasmachine SN63H800UE
- Quooker 22+FSRVS
- inclusief kleine accessoires zoals prullenbak
[Afbeelding] [Afbeelding]
- Wat vinden jullie van de prijs van deze offerte? Het service niveau van deze partij ligt heel erg hoog, we zijn ervan bewust dat we daar iets meer voor zullen betalen
- Wie is er bekend met Schmidt? Ik kende ze zelf niet, maar volgens mij is het midden-hoog segment
- Op welke plek zouden jullie de keuken plaatsen en met welke indeling? We worden hier graag nog in geinspireerd.
Maar ik heb wel het gevoel dat je de ruimte beter kunt benutten en dus.. Tekeningen!
Ik probeer een beetje out of the box te gaan. Allen klikbaar
1 Relatief standaard, wel ‘speciaal hoekje’ onder de trap (waar je met dat luik rekening moet houden, misschien een zwevend kast ofzo?)
:strip_exif()/f/image/Bjp47JeGkW51f3K3efmLEeZk.jpg?f=fotoalbum_medium)
2 Opdelen in twee ruimten door middel van en suitedeuren met kasten. Die kan je ook voor zo’n hippe taatswand inruilen natuurlijk, staat mooi op je Hongaarse punt in whitewash*
:strip_exif()/f/image/7zysufx0WVaX6DnUIm3Pczqn.jpg?f=fotoalbum_medium)
3 Schiereiland, forse keuken en een koffie cq whisky hoekje waar je nog een zitplaatsje kunt maken. Ben zelf niet helemaal happy met de tafel, maar ik heb er wel genoeg tijd inzitten nu
:strip_exif()/f/image/viQvPsCTUSXH5cYkYckb9OJv.jpg?f=fotoalbum_medium)
* Heel stiekem vind ik dat (ook) mooi, maar we hebben een goede hardhouten vloer, die vervangen kost stevig duiten voor de ~110m2 van de benedenverdieping
Bericht hierboven
Oh vet, wat een bijzonder pand zo! Kijken of ik dadelijk nog wat kan doen, maar ik zit een beetje te hopen op die gekke ruimte van @louzy82. Daar heb ik al wat in m’n hoofd, als ik heftig schuiven magmarcieking schreef op woensdag 5 januari 2022 @ 17:08:
[...]
Ja, die heb ik, hieronder! We gaan inderdaad vanavond even bouwen met echte meubels om te kijken hoe dat is
[Afbeelding]
Bericht hierboven
Miele had ik meer in de BMW/Mercedes categorieRuudje88 schreef op woensdag 5 januari 2022 @ 15:54:
[...]
Neff is bepaald geen Audi maar meer een Skoda waar Siemens de Volkswagen is en Bosch de Seat. Ze komen uit dezelfde fabriek en zijn aan de binnenkant vaak dezelfde apparaten met een iets ander uiterlijk. De Audi is toch meer voor Miele weggelegd.
Neff is qua prijs/kwaliteit niet meer of beter dan Siemens/Atag/Bosch/AEG waarbij er bij alle merken verschillen zitten tussen de verschillende series.
Liebherr hoort daar ook wat mij betreft trouwens.
Ik twijfel wel een beetje wat ik dan met Gaggenau aanmoet eerlijk gezegd.
Bericht hierboven
Heb je dit al eens overwogen? Want dit spookt al heel lang door m’n hoofd.. Hoef je die steunmuren ook niet aan te pakken trouwens, zou wel het toilet dieper dan 80cm makenlouzy82 schreef op woensdag 5 januari 2022 @ 15:55:
[...]
Bedankt voor het meedenken alvast.Hier ter verduidelijking de huidige indeling en de indeling die we voor ogen hebben
- De deur naar de bijkeuken is 80cm breed (excl kozijn), de deur van de kelder is 75cm en de doorgang naar de woonkamer (waar een schuifdeur in gaat komen) is 90 cm.
- Het is 86 cm van de bovenste muur tot het kozijn van de deur.
- Het linker raam van de keuken is 80x100 cm (brxhg) en de bovenste is 120x100cm. Ze beginnen beide op de hoogte van het werkblad
- Nou, de bijkeuken kleiner maken is niet echt een optie. Zoals die nu ingetekend is, is wel zo ongeveer de minimale afmeting die we daarvoor in gedachten hebben. Daarnaast hangt links van de achterdeur een CV ketel. In dit ontwerp is al 1 dragende muur weggehaald (en een wc verplaatsts) om 1,5 m extra bij de keuken te trekken. Dus ja muren verplaatsen kan en daar staan we wel voor open maar de bijkeuken moet niet te klein worden.
- Dit idee hebben we ook overwogen. De hele vloer etc gaat er toch uit dus daar hoeven we het niet voor te laten.
De optie die we overwogen hebben was om bovenin de woonkamer te koken (met zicht op de tuin door de grote schuifpui), links onderin de woonkamer een eettafel en rechts onderin een tv kamer bijvoorbeeld. Het grootste nadeel hiervan is, dat we altijd via de bijkeuken binnenkomen en dan dus altijd door die zithoek/game/relax kamer van de kinderen heen moet lopen om in de rest van het huis te komen. Dat is niet ideaal want die kamer gaat niet altijd opgeruimd zijn en het is onhandig als er iemand zit te gamen en er komen mensen voor door gelopen. Daarnaast hebben we met het huidige plan 3 ruimtes die we van elkaar kunnen scheiden (keuken, woonkamer, gamekamer) wat wel handig is met 5 mensen in huis.
Huidig
[Afbeelding]
Nieuw
[Afbeelding]
Ja geen uitzicht op de tuin vanaf te tafel, maar wel vanuit de zithoek en vanuit de TV kamer
(Wij willen ook een zithoek en TVKamer maken, maar de indeling van ons huis is onvergelijkbaar)
Bericht hierboven
Wauw, wat een super input! Dank je wel. De laatste optie hebben we toevallig al uitgewerkt. Het enige nadeel van die optie vinden we dat je dan eigenlijk de indeling krijgt zoals huizen hebben zonder de extra verdieping als woonkamer. Maar tof hoe jij hem toch nog hebt ingedeeld!Floor-is schreef op woensdag 5 januari 2022 @ 17:24:
[...]
De prijs lijkt me niet verkeerd op het eerste oog. Uitgaande van (nagenoeg) top-range apparatuur
Maar ik heb wel het gevoel dat je de ruimte beter kunt benutten en dus.. Tekeningen!
Ik probeer een beetje out of the box te gaan. Allen klikbaar
1 Relatief standaard, wel ‘speciaal hoekje’ onder de trap (waar je met dat luik rekening moet houden, misschien een zwevend kast ofzo?)
[Afbeelding]
2 Opdelen in twee ruimten door middel van en suitedeuren met kasten. Die kan je ook voor zo’n hippe taatswand inruilen natuurlijk, staat mooi op je Hongaarse punt in whitewash*
[Afbeelding]
3 Schiereiland, forse keuken en een koffie cq whisky hoekje waar je nog een zitplaatsje kunt maken. Ben zelf niet helemaal happy met de tafel, maar ik heb er wel genoeg tijd inzitten nu(korter en draaien is misschien handiger, piel daar zelf even mee
)
[Afbeelding]
![]() | ![]() |
Dezelfde opstelling maar dan het eiland doortrekken naar de muur? Dan kan ik wel een eiland van 300cm kwijt, nu maar 250cm, en zou ik een onderbouw vriezer erbij kunnen nemen.Floor-is schreef op woensdag 5 januari 2022 @ 11:08:
[...]
Ik blijf erbij dat je een schiereiland neer zou moeten zetten
Dit is niet verkeerd, begrijp me goed, maar een schiereiland zou denk ik nog mooier zijn
Of deze opstelling?
Die is trouwens voor ons niet ruim genoeg genoeg. Ik zou hier maar 3 kasten van 60cm kwijt kunnen en een koffienis van 60cm. In de huidige opstelling kan ik een koffienis van 100cm kwijt. Dan heb ik ook genoeg ruimte voor een mooie besteklade daaronder. 60cm is zo krap voor een besteklade.
BlaBlaBla
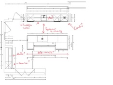
We hebben een ontwerp (zie tekening en renders) waarbij de kleuren nog niet vast staan. Graag jullie reactie/advies/opm. We hebben nog geen prijs maar zijn er een beetje bang voor haha. Dus als er iemand een zinnige inschatting kan doen dan ook graag
Materiaal kast wordt 'kunstof' en blad 'topcore'.
Bijna alles is lade of lade achter de deur op de hoge kasten na en de 'zit kant' van het eiland, dat zijn deuren/planken.
dank voor het meekijken!
Qua apparatuur, (we zagen een prijs van 17k totaal voor alle 'hardware');
- siemens combi stoom (cs858grb7)
- Siemens combi magnetron (cm836gnbg
- siemens koelkast (ki81rsde0)
- liebherr vriezer, klein model no frost (Geen type nr nog)
- siemens vaatwasser (sx63e800be + Variolade)
- bora x pure
- wijnkoelkast huismerk
- quooker flex combi +
- zeeppomp, spotjes, spoelbak e.d.
/f/image/23Rwevc5BClWN24opn0JLOM6.png?f=fotoalbum_large)
![]() | ![]() |
tja, wat hier stond heb ik al lang niet meer...
Ik kijk even of t lukt om later vandaag een bovenaanzicht met alle maten te posten. Benieuwd of het lukt om nog iets anders in te tekenenFloor-is schreef op woensdag 5 januari 2022 @ 14:10:
[...]
Ik kan de getallen op je plattegrond niet lezen helaas. Volgens mij heb je een mooie ruimte om mee te werken, ben benieuwd of ik iets anders kan intekenen dan je zelf al hebt gedaan
Heb je dit topic doorzocht?Vendetta_X schreef op dinsdag 4 januari 2022 @ 15:02:
Iemand bekend met het merk Snaidero (italiaans)? Heeft het voor/nadelen t.o.v. bijvoorbeeld een Schuller keuken? Prijstechnisch is het volgens mij een wat duurder merk. Had er nog nooit van gehoord dus ben benieuwd of iemand z'n ervaring kan delen.
Het Grote Keuken topic: verkopers, kwaliteit, prijs - Deel 3
TegenvoorstelStrider schreef op woensdag 5 januari 2022 @ 17:41:
[...]
Dezelfde opstelling maar dan het eiland doortrekken naar de muur? Dan kan ik wel een eiland van 300cm kwijt, nu maar 250cm, en zou ik een onderbouw vriezer erbij kunnen nemen.
Of deze opstelling?
Die is trouwens voor ons niet ruim genoeg genoeg. Ik zou hier maar 3 kasten van 60cm kwijt kunnen en een koffienis van 60cm. In de huidige opstelling kan ik een koffienis van 100cm kwijt. Dan heb ik ook genoeg ruimte voor een mooie besteklade daaronder. 60cm is zo krap voor een besteklade.
[Afbeelding]
Een eiland van 90 diep, dat zal even wennen zijn qua idee wellicht, ook met 92,5cm erachter. Maar ben ervan overtuigd dat dit meer plezier zal brengen
Als je nog een hoge kast wilt kan je vaatwasser ook moven naar de overkant, eventueel mèt de spoelbak en dan maak je daar ergens een nis voor je koffiemachine
Bericht hierboven
Geheel tegen onze principes in heeft de gameconsole uiteindelijk een plek zo ver mogelijk van het woondeel gekregen. Het lijkt hier af en toe wel oorlog en nee, hij speelt gewoon fifa, heeft veel lol en vergeet daarbij zijn eigen volume. Voor je rust zou ik daarvoor geen plek direct naast je woondeel plannen.louzy82 schreef op woensdag 5 januari 2022 @ 16:31:
[...]
2 is meer 'een extra plek voor iedereen (maar vooral voor kinderen).
We hebben 3 drukke kinderen maar die ook wel echt rust van elkaar kunnen gebruiken.
Daarnaast lijkt het ons prettig als de kinderen iets ouder zijn en tv willen kijken, gamen, keyboard spelen, huiswerk maken, wij dat zelf ook nog lekker op de bank kunnen hangen.
En dan met als additionele optie dat we naast de game kamer en de woonkamer, we ook nog apart kunnen zitten in de keuken.
Met als additionele bonus dat de woonkamer iets meer opgeruimd blijft en de rommel zich meer in de extra kamer zal bevinden.
Zoals ingetekend is het idee om een afscheiding te maken van deels muur en deels (grote) schuifdeur zodat we die ook open kunnen laten en zo toch een beetje ruimtelijk te houden
Bedankt voor je inputFloor-is schreef op woensdag 5 januari 2022 @ 17:38:
[...]
Heb je dit al eens overwogen? Want dit spookt al heel lang door m’n hoofd.. Hoef je die steunmuren ook niet aan te pakken trouwens, zou wel het toilet dieper dan 80cm maken
Ja geen uitzicht op de tuin vanaf te tafel, maar wel vanuit de zithoek en vanuit de TV kamerEn tevens: voor jullie binnenkomen door de TVKamer, vrees dat je die huisgenoten moet gaan aanleren om zichzelf en de visite via de voordeur binnen te laten
![]()
(Wij willen ook een zithoek en TVKamer maken, maar de indeling van ons huis is onvergelijkbaar)
[Afbeelding]
Binnenkomen via de voordeur is voor ons echt een no-go.
Daarnaast zit de deur naar de opslag/kelder/voorraadkast dan in de tv kamer.
Louzy#2475
Dat is wel zo'n beetje het enige waar ik nog over twijfel. Hij speelt wel vaak met een headset op maar ook dan maakt ie zelf nog weleens geluid.Ladypurple schreef op woensdag 5 januari 2022 @ 19:06:
[...]
Geheel tegen onze principes in heeft de gameconsole uiteindelijk een plek zo ver mogelijk van het woondeel gekregen. Het lijkt hier af en toe wel oorlog en nee, hij speelt gewoon fifa, heeft veel lol en vergeet daarbij zijn eigen volume. Voor je rust zou ik daarvoor geen plek direct naast je woondeel plannen.
Ik ben zelf ook een gamer maar ik kan het wel stil
Maar ik denk dat het wel te doen is zo. Ik schat in dat de keren dat men in die 2 ruimtes last hebben van elkaar wel mee gaat vallen.
[ Voor 10% gewijzigd door louzy82 op 05-01-2022 19:12 ]
Louzy#2475
Mag je een nadeel vinden, jij hebt alsnog een hele verdieping die je als woonkamer(s) in kunt richten én je kunt een zitje maken bij de pui waar je lekker koffie kunt drinken of iets alcoholischThomas19903 schreef op woensdag 5 januari 2022 @ 17:40:
[...]
Wauw, wat een super input! Dank je wel. De laatste optie hebben we toevallig al uitgewerkt. Het enige nadeel van die optie vinden we dat je dan eigenlijk de indeling krijgt zoals huizen hebben zonder de extra verdieping als woonkamer. Maar tof hoe jij hem toch nog hebt ingedeeld!
[Afbeelding] [Afbeelding]
Ook wel handig in de buurt te hebben als die deuren opengaan en je bent lekker in de tuin met je partner of vrienden
Bericht hierboven
Qua tijd sowieso lastig voor mij, maar ik kan wel even kijkenBorioli schreef op woensdag 5 januari 2022 @ 18:22:
[...]
Ik kijk even of t lukt om later vandaag een bovenaanzicht met alle maten te posten. Benieuwd of het lukt om nog iets anders in te tekenen
Bericht hierboven
Yes, een paar hits, 0 foto's, geen vergelijking met Schuller helaas. Ook geen ervaringen te vinden.mitsumark schreef op woensdag 5 januari 2022 @ 18:35:
[...]
Heb je dit topic doorzocht?
Het Grote Keuken topic: verkopers, kwaliteit, prijs - Deel 3
Dat binnenkomen beperkt je dan toch wel helaas. Niet geschoten altijd mis hèlouzy82 schreef op woensdag 5 januari 2022 @ 19:10:
[...]
Bedankt voor je input
Binnenkomen via de voordeur is voor ons echt een no-go.
Daarnaast zit de deur naar de opslag/kelder/voorraadkast dan in de tv kamer.
Bericht hierboven
Check! Hier hetzelfde type woning. Wij houden juist wél rekening met een plekje waar een zitje/semi bankje kan komen te staan. Want vaak is het leuk om in dezelfde ruimte te zijn als één van de twee aan het koken is. Na een lange werkdag moet ik er dan niet aan denken om op een barkruk aan het kookeiland te moeten hangen. Dan wil je juist onderuitgezakt op in een fijne stoel.Floor-is schreef op woensdag 5 januari 2022 @ 19:14:
[...]
Mag je een nadeel vinden, jij hebt alsnog een hele verdieping die je als woonkamer(s) in kunt richten én je kunt een zitje maken bij de pui waar je lekker koffie kunt drinken of iets alcoholisch![]()
Ook wel handig in de buurt te hebben als die deuren opengaan en je bent lekker in de tuin met je partner of vrienden
Legrabox is een lademodel van Blum, eigenlijk gewoon de standaard, puik spul.codeneos schreef op woensdag 5 januari 2022 @ 13:11:
[...]
Dankje! Ik heb nog geen plattegrond van de opstelling ontvangen. Die heb ik al even opgevraagd om ook te controleren of alles wat lades zouden moeten zijn ook echt lades zijn. Het staat ook als het goed is in de offerte maar omdat er 3 pagina's aan details voor de kastjes zijn ben ik niet helemaal zeker of het correct is uitgewerkt.De werkhoogte is c.a. 96cm met een blad van 4cm en een plint van 7.5cm.
- In het eiland is alles lades van type LEGRABOX-ART. Onder de spoelkast zitten ook lades en de rest zijn kastjes met planken.
- Het werkblad is 40mm dik voor Dekker en 20mm bij Dekton, de keukenzaak heeft aangegeven het niet duurder is om ook bij Dekton het blad dikker te maken. Zelf denk ik dat 40mm wat te dik is en 20mm wat te dun, ook met oog op de bar aan het uiteinde van het eiland.
- De ombouw is niet meegenomen in de prijs en moet door de aannemer gedaan worden
Dikte van het werkblad is een persoonlijk ding, de ene wilt 70mm gefrijnst, de ander 8mm en zwevend, of iets er tussenin.
96-(4+7,5)= 82,5 corpus. Als je naar 20mm blad gaat dan zakt je keuken, ga je dan ook de plint verhogen?
Oh, beetje tegenvaller (mede voor het formaat).Apparatuur:
Prijs Kookplaat EH877LVV5E IQ100 met homeconnect 1.073,40 2x Oven/Combi CM836GNB6 IQ700 (per stuk) 1.109,40 Afzuigkap LR97CAQ20 IQ500 met homeconnect 1.259,40 Koelkast KI81RSDE0 IQ500 977,40 Vaatwasser SN73H800BE IQ300 785,40 Vin Vinata wijnklimaatkast 1.000,00 Totaal 7.314,40
IQ100 kookplaat, maar een IQ500 afzuigkap, die vervolgens in een verlaagd plafond moet worden gemaakt. Neem aan dat dat plafond nog niet zo is. Laten we stellen dat je dat nog eens €1500 kost. Kom je op dik €3.500 in totaal.
Waarom geen afzuiging in het werkblad als ik zo vrij mag zijn?
En dan twee IQ700 combimagnetrons, ik neem aan voor de looks? Want twee magnetrons tegelijk zal je niet vaak,gebruiken denk ik. Een combi en bakoven lijkt dan logischer toch?
Manshoge koelkast, top-range ook. Maar geen vriezer, dus die is in de bijkeuken?
IQ300 vaatwasser, kan prima voldoen. Maar je hebt nu IQ100/300/500 en 700 in je keuken, dat doet wat vreemd aan.
De wijnkoelkast kan ik niet
Echt supervette ruimte om mee te mogen werken man, belooft wat voor de rest van het huis!Dit is de plattegrond van de ruimte:
[Afbeelding]
Bericht hierboven
Onze schilder heeft vandaag het laatste geschilderd en afgekit.
We zijn voor een Fenix zwarte Tristar keuken gegaan met een dekton werkblad (Nero Zimbabwe) met een Patina Quooker en een Reginox gun metal spoelbak.
Aangezien foto’s meer zeggen dan lappen tekst hierbij de foto’s
:strip_exif()/f/image/3HShvO44r4SVBOBVbI7xPBi2.jpg?f=fotoalbum_large)
:strip_exif()/f/image/fUdeROIE3VCjcmlif9kQyuCq.jpg?f=fotoalbum_large)
[ Voor 18% gewijzigd door Imperial Guard op 05-01-2022 21:23 ]
Gefeliciteerd met jullie nieuwe keuken! MooiImperial Guard schreef op woensdag 5 januari 2022 @ 21:03:
Na lang wachten (lange levertijd van bijna een half jaar) is eindelijk onze keuken af!
Onze schilder heeft vandaag het laatste geschilderd en afgekit.
We zijn voor een Fenix zwarte Tristar keuken gegaan met een dekton werkblad (Nero Zimbabwe) met een Patina Quooker. Aangezien foto’s meer zeggen dan lappen tekst hierbij de foto’s
[Afbeelding]
[Afbeelding]
Heel nice hoe die greeplijst van het lage deel doorloopt in de hoge kast. Hoe ziet die aansluiting van de horizontale greeplijst er uit op de verticale greeplijst er uit tussen de twee hoge kasten?
Thanks we zijn er ook super blij mee! Heb in mijn vorige post een foto toegevoegd van de verticale greeplijst.SquareOne schreef op woensdag 5 januari 2022 @ 21:07:
[...]
Gefeliciteerd met jullie nieuwe keuken! Mooi
Heel nice hoe die greeplijst van het lage deel doorloopt in de hoge kast. Hoe ziet die aansluiting van de horizontale greeplijst er uit op de verticale greeplijst er uit tussen de twee hoge kasten?
Okay nog een poging, maar dit was het hoor. Je huis is moeilijk te tekenen, want jij hebt gewerkt met alle muren op 10cm en dat zijn ze in werkelijkheid niet. Je binnenmuren zijn tussen 8,5 en 13,5cm en je buitenmuren mag ik hopen minimaal 22cm.louzy82 schreef op woensdag 5 januari 2022 @ 19:10:
[...]
Bedankt voor je input
Binnenkomen via de voordeur is voor ons echt een no-go.
Daarnaast zit de deur naar de opslag/kelder/voorraadkast dan in de tv kamer.
Ik heb het toilet verplaatst, waardoor je nèt iets meer schuur moet inleveren, maar ook de bestaande gang kunt laten en deze de doorgang wordt naar de hal (en de gameroom annex werkkamer).
Vervolgens een vrij standaard opzet voor een eilandkeuken erin gefröbeld. Eerst maar horen of je hier überhaupt iets mee kunt of dat ik m’n tijd heb zitten verdoen.
Waar ik me aan ergerde is dit hier:
:no_upscale():strip_icc():fill(white):strip_exif()/f/image/M7qn6QRjQVTw0vWOvF35ooVu.jpg?f=user_large)
Klik:
[ Voor 14% gewijzigd door Floor-is op 05-01-2022 22:37 ]
Bericht hierboven
En bijgaand het bovenaanzicht met de maatvoering. Kan een kleine afwijking inzitten door automatische aanpassing van maten door IKEA keukenplanner. Zou top zijn als je nog suggesties hebt.Floor-is schreef op woensdag 5 januari 2022 @ 19:14:
[...]
Qua tijd sowieso lastig voor mij, maar ik kan wel even kijken
[ Voor 8% gewijzigd door Borioli op 05-01-2022 22:39 ]
Los van de mooie keuken. Super vette vloer! Is dat een terrazzo tegel?Imperial Guard schreef op woensdag 5 januari 2022 @ 21:03:
Na lang wachten (lange levertijd van bijna een half jaar) is eindelijk onze keuken af!
Onze schilder heeft vandaag het laatste geschilderd en afgekit.
We zijn voor een Fenix zwarte Tristar keuken gegaan met een dekton werkblad (Nero Zimbabwe) met een Patina Quooker en een Reginox gun metal spoelbak.
Aangezien foto’s meer zeggen dan lappen tekst hierbij de foto’s
[Afbeelding]
[Afbeelding]
[Afbeelding]
Sorry geen zin te typenRoelsRules schreef op woensdag 5 januari 2022 @ 17:57:
Nu met de bouw van ons huis aanstaande druk bezig om keuzes te maken, zo ook mbt de keuken.
We hebben een ontwerp (zie tekening en renders) waarbij de kleuren nog niet vast staan. Graag jullie reactie/advies/opm. We hebben nog geen prijs maar zijn er een beetje bang voor haha. Dus als er iemand een zinnige inschatting kan doen dan ook graag
Materiaal kast wordt 'kunstof' en blad 'topcore'.
Bijna alles is lade of lade achter de deur op de hoge kasten na en de 'zit kant' van het eiland, dat zijn deuren/planken.
dank voor het meekijken!
Qua apparatuur, (we zagen een prijs van 17k totaal voor alle 'hardware');
- siemens combi stoom (cs858grb7)
- Siemens combi magnetron (cm836gnbg
- siemens koelkast (ki81rsde0)
- liebherr vriezer, klein model no frost (Geen type nr nog)
- siemens vaatwasser (sx63e800be + Variolade)
- bora x pure
- wijnkoelkast huismerk
- quooker flex combi +
- zeeppomp, spotjes, spoelbak e.d.
[Afbeelding]
[Afbeelding] [Afbeelding]
Klik:
Bericht hierboven
Nice!Imperial Guard schreef op woensdag 5 januari 2022 @ 21:03:
Na lang wachten (lange levertijd van bijna een half jaar) is eindelijk onze keuken af!
Onze schilder heeft vandaag het laatste geschilderd en afgekit.
We zijn voor een Fenix zwarte Tristar keuken gegaan met een dekton werkblad (Nero Zimbabwe) met een Patina Quooker en een Reginox gun metal spoelbak.
Aangezien foto’s meer zeggen dan lappen tekst hierbij de foto’s
[Afbeelding]
[Afbeelding]
[Afbeelding]
Half jaar levertijd lijkt lang ja, maar het is compleet man
Bericht hierboven
Thanks, nop we hebben gekozen voor een keramische tegel (Marmix terrazzo 60x60)Thomas19903 schreef op woensdag 5 januari 2022 @ 22:50:
[...]
Los van de mooie keuken. Super vette vloer! Is dat een terrazzo tegel?
We wilden graag terrazzo maar met 40m2 (Keuken, bijkeuken, toilet en badkamer) vloer oppervlak zou de prijs zo sky-high worden vandaar deze tegel
[ Voor 4% gewijzigd door Imperial Guard op 05-01-2022 23:12 ]
LOL, zo werkt het ookFloor-is schreef op woensdag 5 januari 2022 @ 22:53:
[...]
Sorry geen zin te typen
Klik:
[Afbeelding]
- lengte eiland zijn we ook blij mee, kan het huis ook goed hebben (of zelfs wel moet)
- links is inderdaad als koffie corner bedoeld.
- waarom is water en koken tegenover elkaar niet handig? Door de 120 afstand kun je nog steeds goed achter elkaar staan leek ons
- waarom water uit het midden? Doordat het dan niet tegenover koken is? Of?
- vaatwasser inderdaad daar rechts naast de wasbak.
- geen combi koelkast/vriezer daar rechts. Alleen een grote koelkast en helemaal links een kleine vriezer. In bijgebouw komt grotere vriezer.
tja, wat hier stond heb ik al lang niet meer...
Luiheid siert de mensRoelsRules schreef op woensdag 5 januari 2022 @ 23:13:
[...]
LOL, zo werkt het ookThx en toch in tekst een reactie
- lengte eiland zijn we ook blij mee, kan het huis ook goed hebben (of zelfs wel moet)
- links is inderdaad als koffie corner bedoeld.
- waarom is water en koken tegenover elkaar niet handig? Door de 120 afstand kun je nog steeds goed achter elkaar staan leek ons
- waarom water uit het midden? Doordat het dan niet tegenover koken is? Of?
- vaatwasser inderdaad daar rechts naast de wasbak.
- geen combi koelkast/vriezer daar rechts. Alleen een grote koelkast en helemaal links een kleine vriezer. In bijgebouw komt grotere vriezer.
- Je ziet ze zo weinig terwijl het echt onwijs mooi kan zijn
- Ah, top, mooie plek ook. Krijg je daar ook water en afvoer? (Eventueel smal spoelbakje met kraan? Ik zag dat ergens in dit topic en hoewel ik niet van de koffie ben erg fraai!)
- Spoelen en koken tegenover elkaar is elkaar wat vaker in de weg staan. Dat was het, met 120 heb je daar wel vrij weinig last van; alleen als (ook) de vaatwasser openstaat denk ik.
- Ja en symmetrie had je al doorbroken met de bar ook
- Als je, wat ik een beetje hoop, de spoelbak zou verplaatsen, dan kan de vaatwasser eventueel onder de oven, zit je minder vast aan die formaten kastjes.
- Een combi zou ook niet passend zijn in dit formaat IMO, kleine(re) vriezer en manshoge koelkast is een puike oplossing!
Bericht hierboven
Ja, in de topicstartThomas19903 schreef op donderdag 6 januari 2022 @ 08:31:
In onze gesprekken met keukenverkopers hoor ik verschillende verhalen over of bepaalde merken beter zijn dan andere. Hebben we toevallig ergens in dit topic ook een lijst à la de keukenmerken met hoog-midden-laag segment maar dan voor apparatuur? Ik kon het zo snel niet vinden.
Dit topic kan gebruikt worden voor het volgende:
• Vragen over de keuken, denkend aan indeling, materialen, kastjes, apparatuur, etc.
• Welke kastjes, aanrechtbladen en apparatuur te kiezen
• Ervaringen met verkopers en keukenboeren
• Tips & Tricks denk hierbij aan hulp bij het zelf installeren en onderhouden van de keuken.
• Jouw indeling. Plaats gerust een foto of tekening, maar maak het niet te bont met hele buildlogs.
Voor badkamers: Het Badkamer topic: verkopers, kwaliteit, prijs - Deel 1
Showen met je keuken kan hier: Tweakers Keuken showroom! - Vestiging 1
:strip_exif()/f/image/gyKcYx3Bate0CTgHEVJJTWCs.jpg?f=fotoalbum_large)
:strip_exif()/f/image/ykxUIzTrRQh0NE2x0YD7nAGa.jpg?f=fotoalbum_tile)
/f/image/WhRP7v2WkKObW3NCyCgM7paQ.png?f=fotoalbum_tile)
:strip_exif()/f/image/kF2qhrX5cI5VGcsL65bhgYMy.jpg?f=fotoalbum_tile)
:strip_exif()/f/image/But7XMlxFbo29twqmwWWQPtf.jpg?f=fotoalbum_tile)
:strip_exif()/f/image/4s8ZFhkk3GTdJgMvPsL6uX00.jpg?f=fotoalbum_tile)
/f/image/f5VI0UTIvCSDSCaDrnI9cUKM.png?f=fotoalbum_tile)
/f/image/wsLA9VYpcrBrZmEAPwbZJ4zJ.png?f=fotoalbum_tile)
/f/image/pJHvLEfzmovOamRxeasF8QgQ.png?f=fotoalbum_tile)
/f/image/ktaQUdFDhcLkGavqvrydPU76.png?f=fotoalbum_tile)
/f/image/3HvZr6Vos9Lbk2L9CxzhtOaK.png?f=fotoalbum_tile)