Over die details nog niet verder op in gegaan, dus nu gewoon wat neergezet om later te bespreken. Wand zou ik ook na moeten vragen als we verder willen gaan met deze zaak. Dank voor de reactie.Ladypurple schreef op zaterdag 25 december 2021 @ 11:05:
[...]
Eens met sprekers, wat me verder opvalt. Alleen een wand aan de linkerzijde van koelkast, voor de rechterzijde was net te weinig ruimte? Welke kraan is het? Ik heb in leen een model gehad zonder uitloop naar beneden en dat was een spetterding ( ik vermoed dat het een franke active plus was).
Een servieskast met donker glas laat nog wel zien hoe rommelig de inhoud is
Wil toch op deze 1ste kerstdag even ons keuken ontwerp aan jullie kritische blikken onderwerpen ;-):strip_exif()/f/image/iZ2SwOGuRtuweQ0muUiizZiN.jpg?f=fotoalbum_large)
Nobilia keuken via DB Keukens; matzwart en matwit frontjes met anti fingerprint
Neff apparatuur: Wijnklimaatkast, Combi Stoom Oven, Vaatwasser en Kookplaat met afzuiging (Mooie eindejaars combideal)
Dekker Top Core Blad Mahal verdiept naar 4cm
Franke wasbak en kraan matzwart
18.5k exclusief Amerikaanse Koelkast;
Totaal keukenmeubelen 5.5k
Totaal apparatuur 7.4k
Totaal werkblad 4k
Montage 1.6k
Twijfelen nog wel om de wijnklimaatkast wellicht toch links achter in de hoek te plaatsen en dan voorkant eiland mooier symmetrisch te maken met bv. lades ipv kastjes.
Verder zit we nog wat boven budget dus nog even puzzelen!
Op -en aanmerkingen zijn zeer welkom!!
Alvast bedankt
:strip_exif()/f/image/iZ2SwOGuRtuweQ0muUiizZiN.jpg?f=fotoalbum_large)
Nobilia keuken via DB Keukens; matzwart en matwit frontjes met anti fingerprint
Neff apparatuur: Wijnklimaatkast, Combi Stoom Oven, Vaatwasser en Kookplaat met afzuiging (Mooie eindejaars combideal)
Dekker Top Core Blad Mahal verdiept naar 4cm
Franke wasbak en kraan matzwart
18.5k exclusief Amerikaanse Koelkast;
Totaal keukenmeubelen 5.5k
Totaal apparatuur 7.4k
Totaal werkblad 4k
Montage 1.6k
Twijfelen nog wel om de wijnklimaatkast wellicht toch links achter in de hoek te plaatsen en dan voorkant eiland mooier symmetrisch te maken met bv. lades ipv kastjes.
Verder zit we nog wat boven budget dus nog even puzzelen!
Op -en aanmerkingen zijn zeer welkom!!
Alvast bedankt
https://www.clicktobuy.nl/blogs/news/american-express-welkomstbonus
Klopt het dat de servieskast en de bovenkast van andere materialen zijn dan de rest van je keuken? Dan zou je kunnen overwegen aparte offertes op te vragen en daarmee een digitale ronde langs keukenleveranciers te maken. De delen komen niet tegen elkaar aan, dus los van de kastkleur is er geen beletsel om keukenblok en deze onderdelen bij verschillende bedrijven te bestellen als dat voordeliger is.lebbe02 schreef op zaterdag 25 december 2021 @ 11:01:
Greeplijst is volgens mij nog verkeerd, alleen bovenste hoort de greeplijst te hebben. Dank in ieder geval voor de reacties. Wij gaan er nog even goed over nadenken en hebben gelukkig ook geen haast met onze keuzes.
Denk dat de servies kast de grootste prijsopdrijver is, zal dit proberen te achterhalen.
lebbe02 schreef op zaterdag 25 december 2021 @ 12:10:
@Toke_gt Klopt, servieskast en voorpaneel van de bovenkast zijn uitgevoerd in houtfineer. Thanks voor de tip, mooie uitdaging voor na de kerst.
/f/image/Z1uzGKPFDs6OSq0XLK4XbxeO.png?f=fotoalbum_large)
Uit het woonprogramma van ballerina
Eerlijk gezegd vind ik het nog wat ‘rommelig’ / onrustig ogen.Pingu007 schreef op zaterdag 25 december 2021 @ 11:34:
Wil toch op deze 1ste kerstdag even ons keuken ontwerp aan jullie kritische blikken onderwerpen ;-)[Afbeelding]
Nobilia keuken via DB Keukens; matzwart en matwit frontjes met anti fingerprint
Neff apparatuur: Wijnklimaatkast, Combi Stoom Oven, Vaatwasser en Kookplaat met afzuiging (Mooie eindejaars combideal)
Dekker Top Core Blad Mahal verdiept naar 4cm
Franke wasbak en kraan matzwart
18.5k exclusief Amerikaanse Koelkast;
Totaal keukenmeubelen 5.5k
Totaal apparatuur 7.4k
Totaal werkblad 4k
Montage 1.6k
Twijfelen nog wel om de wijnklimaatkast wellicht toch links achter in de hoek te plaatsen en dan voorkant eiland mooier symmetrisch te maken met bv. lades ipv kastjes.
Verder zit we nog wat boven budget dus nog even puzzelen!
Op -en aanmerkingen zijn zeer welkom!!
Alvast bedankt
Dat komt door de verschillende maten frontjes icm de wijnklimaatkast en dan ook nog zo’n joekel van een koelkast. Twee kleuren helpt dan ook niet.
Is die wijnklimaatkast echt nodig? Denk dat 4 frontjes van 50 of 60cm mooier is. Lades kan, maar zou ik alleen doen als het diepe kasten zijn. Bij ondiepe kasten van 35cm zijn kastjes m.i. ook gewoon praktisch.
Volgens mij is het deze kleurencombi, heel fraai!lebbe02 schreef op zaterdag 25 december 2021 @ 10:18:
***members only***
Wel aardig aan de prijs, maar denk grotendeels veroorzaakt door die vitrinekast.
De wijnklimaatkast viel mij inderdaad ook op, maar meer omdat ik die niet mooi vind in combinatie met de witte kasten. Ik zou daar ook de donkere fronten nemen en de donkere plint laten doorlopen, of de wijnkoelkast linksachter plaatsen. Maar dan nog vind ik het witte eiland niet zo stijlvol. Ik denk dat de keuken beter tot zijn recht komt als die helemaal matzwart is. Je werkblad komt dan ook mooier uit. Bij het eiland zou ik de fronten van gelijke breedte maken. Misschien kom je met lades beter uit? (3x70?)Pingu007 schreef op zaterdag 25 december 2021 @ 11:34:
Wil toch op deze 1ste kerstdag even ons keuken ontwerp aan jullie kritische blikken onderwerpen ;-)
(…)
Twijfelen nog wel om de wijnklimaatkast wellicht toch links achter in de hoek te plaatsen en dan voorkant eiland mooier symmetrisch te maken met bv. lades ipv kastjes.!
(…)
Op -en aanmerkingen zijn zeer welkom!!
En nog een vraagje: heb je nagedacht over de plek voor bijv koffiemachine?
@Pingu007 ik vind het aan de prijs. Zeker voor Nobilia. Zoveel bijzonders zit er niet in.
Ik ben overal tegen. Tot ik een besluit neem, dan ben ik ervoor
Ik heb een tijdje dit topic gevolgd en daar goede tips uit gehaald, bedankt daarvoor. Vorige week hebben we een eerste offerte ontvangen bij Keukenloods voor een nieuwe keuken om onze huidige keuken van ~25 jaar oud te vervangen.
Iemand bekend met de Concept130 lijn van Häcker? Schijnt een nieuwe lijn te zijn die nu naast Systemat en Classic aangeboden wordt, maar op termijn de classic lijn gaat vervangen.
Ik vind het lastig in te schatten of dit een scherpe offerte is. Het past in ieder geval binnen ons budget. Zou het lonen om meerdere offertes op te vragen?
Keuken
Uitvoering: A, Häcker Concept130 Uno
Fronttype: Kunststof fijnstructuur
Type lade: Metro Line R platina
Werkbladhoogte: 940
Plinthoogte: 120
Werkblad
Uitvoering: Dekker RM38 multiplex 38mm
Apparatuur
Wandafzuigkap: AEG DBB5960HM
Inductiekookplaat: AEG IKK6440SCB
Oven: AEG KMK768080M
Koelkast: AEG SKE818F1DC
Vaatwasser: AEG FSK52617P
:strip_exif()/f/image/3r3CPWib1Z6vRWwmItcMmvv5.jpg?f=fotoalbum_large)
Iemand bekend met de Concept130 lijn van Häcker? Schijnt een nieuwe lijn te zijn die nu naast Systemat en Classic aangeboden wordt, maar op termijn de classic lijn gaat vervangen.
Members only: prijs
Alleen zichtbaar voor ingelogde gebruikers.
Inloggen
Ik vind het lastig in te schatten of dit een scherpe offerte is. Het past in ieder geval binnen ons budget. Zou het lonen om meerdere offertes op te vragen?
Keuken
Uitvoering: A, Häcker Concept130 Uno
Fronttype: Kunststof fijnstructuur
Type lade: Metro Line R platina
Werkbladhoogte: 940
Plinthoogte: 120
Werkblad
Uitvoering: Dekker RM38 multiplex 38mm
Apparatuur
Wandafzuigkap: AEG DBB5960HM
Inductiekookplaat: AEG IKK6440SCB
Oven: AEG KMK768080M
Koelkast: AEG SKE818F1DC
Vaatwasser: AEG FSK52617P
:strip_exif()/f/image/3r3CPWib1Z6vRWwmItcMmvv5.jpg?f=fotoalbum_large)
SquareOne schreef op zaterdag 25 december 2021 @ 13:39:
[...]
Eerlijk gezegd vind ik het nog wat ‘rommelig’ / onrustig ogen.
Dat komt door de verschillende maten frontjes icm de wijnklimaatkast en dan ook nog zo’n joekel van een koelkast. Twee kleuren helpt dan ook niet.
Is die wijnklimaatkast echt nodig? Denk dat 4 frontjes van 50 of 60cm mooier is. Lades kan, maar zou ik alleen doen als het diepe kasten zijn. Bij ondiepe kasten van 35cm zijn kastjes m.i. ook gewoon praktisch.
Bedankt voor jullie feedback.Toke_gt schreef op zaterdag 25 december 2021 @ 13:55:
[...]
De wijnklimaatkast viel mij inderdaad ook op, maar meer omdat ik die niet mooi vind in combinatie met de witte kasten. Ik zou daar ook de donkere fronten nemen en de donkere plint laten doorlopen, of de wijnkoelkast linksachter plaatsen. Maar dan nog vind ik het witte eiland niet zo stijlvol. Ik denk dat de keuken beter tot zijn recht komt als die helemaal matzwart is. Je werkblad komt dan ook mooier uit. Bij het eiland zou ik de fronten van gelijke breedte maken. Misschien kom je met lades beter uit? (3x70?)
En nog een vraagje: heb je nagedacht over de plek voor bijv koffiemachine?
Dit is trouwens het ontwerp met inbouw koelkast:
:strip_exif()/f/image/ZuZ1vUwSFrssrGDlMYLdtLmk.jpg?f=fotoalbum_large)
We willen graag een koudwater tap, vandaar de Amerikaanse koelkast...maar staat inderdaad minder mooi/strak. Daar moeten we nog even goed over nadenken!
De keuken is inderdaad niet lekker in balans nu, denk dat we veel oplossen door:
Wijnklimaatkast naar ljnks achter (daar komt trouwens de espressomachine op het aanrecht)
Voorkant eiland bv. 60/90/60 met lades of 45/60/60/45 met kastjes (diepte is 56cm)
Maar inderdaad met de Amerikaanse koelkast is het onlogisch 2 kleuren te gebruiken voor de frontjes..
Reden dat we ook wit wilden voor de fronten is tuin op het noorden en we het niet te donker willen maken.
Blad net weer wat mooie op zwart, dat dan weer wel.
Lastig..
https://www.clicktobuy.nl/blogs/news/american-express-welkomstbonus
Komt vnl. door de apparatuur en het werkblad:mevrouwKees_1 schreef op zaterdag 25 december 2021 @ 14:01:
@Pingu007 ik vind het aan de prijs. Zeker voor Nobilia. Zoveel bijzonders zit er niet in.
Totaal keukenmeubelen 5.5k
Totaal apparatuur 7.4k (Allemaal Neff, oa. wijnklimaatkast van 2k, stoom combi van 2k en deze kookplaat van 4.6k, door package deal en eindejaarsactie, mooie totaalprijs denk ik)
Totaal werkblad 4k
Montage 1.6k
Aandeel Nobilia is vrij beperkt in de prijs denk ik, of toch nog te hoog?
[ Voor 23% gewijzigd door Pingu007 op 25-12-2021 14:50 ]
https://www.clicktobuy.nl/blogs/news/american-express-welkomstbonus
Wat is de opstelling aan de spoelkant? Hoeveel lades heb je toegepast in de opstelling. Die zijn namelijk vrij duur.Pingu007 schreef op zaterdag 25 december 2021 @ 14:38:
[...]
Komt vnl. door de apparatuur en het werkblad:
Totaal keukenmeubelen 5.5k
Totaal apparatuur 7.4k (Allemaal Neff, oa. wijnklimaatkast van 2k, stoom combi van 2k en deze kookplaat van 4.6k, door package deal en eindejaarsactie, mooie totaalprijs denk ik)
Totaal werkblad 4k
Montage 1.6k
Aandeel Nobilia is vrij beperkt in de prijs denk ik, of toch nog te hoog?
Het ontwerp zonder Amerikaanse koelkast vind ik een stuk mooier (kwestie van smaak). Je zou ook zo’n quooker met koud water kunnen overwegen. Of gewoon een karaf met water in de koelkast zetten
Met die twee hoge kasten heb je ook een stuk meer kastruimte.
[ Voor 3% gewijzigd door SquareOne op 25-12-2021 15:32 ]
Wij nemen een (dure) Liebherr inbouw koelkast en die heeft ook een koudwater tap. Misschien is dat een idee.Pingu007 schreef op zaterdag 25 december 2021 @ 14:35:
[...]
[...]
Bedankt voor jullie feedback.
Dit is trouwens het ontwerp met inbouw koelkast:
[Afbeelding]
We willen graag een koudwater tap, vandaar de Amerikaanse koelkast...maar staat inderdaad minder mooi/strak. Daar moeten we nog even goed over nadenken!
De keuken is inderdaad niet lekker in balans nu, denk dat we veel oplossen door:
Wijnklimaatkast naar ljnks achter (daar komt trouwens de espressomachine op het aanrecht)
Voorkant eiland bv. 60/90/60 met lades of 45/60/60/45 met kastjes (diepte is 56cm)
Maar inderdaad met de Amerikaanse koelkast is het onlogisch 2 kleuren te gebruiken voor de frontjes..
Reden dat we ook wit wilden voor de fronten is tuin op het noorden en we het niet te donker willen maken.
Blad net weer wat mooie op zwart, dat dan weer wel.
Lastig..
Of een quooker cube lijkt mij nog praktischer.ChUcKiE schreef op zaterdag 25 december 2021 @ 15:35:
[...]
Wij nemen een (dure) Liebherr inbouw koelkast en die heeft ook een koudwater tap. Misschien is dat een idee.
Hier stond een link voor een Goldcard 1 jaar gratis + 20.000 punten.
Daar hebben wij ook over gedacht maar ik meen dat die €1400 duurder was dan de normale. En wij drinken nooit bruisend water.Morpheusk schreef op zaterdag 25 december 2021 @ 16:34:
[...]
Of een quooker cube lijkt mij nog praktischer.
@Pingu007
Ik vind het zeker prijzig ja. Ter vergelijk Ik heb zelf een tristar keuken gekocht. Meer kasten en meer apparatuur en ben dus bijna 20K kwijt.
Alle apparatuur is N90 lijn van Neff
Ik heb dezelfde plaat als jij
Full steam bakoven
Grote koeler 178
Vaatwasser N90
Quooker combi
Calacatta werkblad (eiland van 3x1) en lange wand van ruim 3 meter. Hoge kasten. Voornamelijk laden behalve aan zichtzijde eiland
Mijn blad is al bijna 6K
Apparatuur staat voor 11K in offerte
Plaatsen is 1100
Ik heb uiteindelijk de apparatuur voor internet prijzen weten te krijgen en ging er 45% vanaf
Meubels 7k .
Ik betaal 20K voor deze keuken.
Gekocht bij kleine locale zaak waar ik destijds ook mijn Nobilia kocht.
Nobilia is lager in kwaliteit dan Tristar (mijn oude keuken is nobilia ). Dus ja vind ik het aan de prijs.
Apparatuur kan je zo 45% korting op krijgen.
Volgens mijn keuken man zit bij hem de marge in de meubels en blad en hij verdient nog steeds aan de apparatuur ondanks die korting die je online krijgt.
Ik vind het zeker prijzig ja. Ter vergelijk Ik heb zelf een tristar keuken gekocht. Meer kasten en meer apparatuur en ben dus bijna 20K kwijt.
Alle apparatuur is N90 lijn van Neff
Ik heb dezelfde plaat als jij
Full steam bakoven
Grote koeler 178
Vaatwasser N90
Quooker combi
Calacatta werkblad (eiland van 3x1) en lange wand van ruim 3 meter. Hoge kasten. Voornamelijk laden behalve aan zichtzijde eiland
Mijn blad is al bijna 6K
Apparatuur staat voor 11K in offerte
Plaatsen is 1100
Ik heb uiteindelijk de apparatuur voor internet prijzen weten te krijgen en ging er 45% vanaf
Meubels 7k .
Ik betaal 20K voor deze keuken.
Gekocht bij kleine locale zaak waar ik destijds ook mijn Nobilia kocht.
Nobilia is lager in kwaliteit dan Tristar (mijn oude keuken is nobilia ). Dus ja vind ik het aan de prijs.
Apparatuur kan je zo 45% korting op krijgen.
Volgens mijn keuken man zit bij hem de marge in de meubels en blad en hij verdient nog steeds aan de apparatuur ondanks die korting die je online krijgt.
Ik ben overal tegen. Tot ik een besluit neem, dan ben ik ervoor
Snel-snel: gek eiland zo, rare formaten bij elkaar. Oogt rommelig met 50-60-50-60 als ik het goed inschat.Pingu007 schreef op zaterdag 25 december 2021 @ 11:34:
Wil toch op deze 1ste kerstdag even ons keuken ontwerp aan jullie kritische blikken onderwerpen ;-)[Afbeelding]
Nobilia keuken via DB Keukens; matzwart en matwit frontjes met anti fingerprint
Neff apparatuur: Wijnklimaatkast, Combi Stoom Oven, Vaatwasser en Kookplaat met afzuiging (Mooie eindejaars combideal)
Dekker Top Core Blad Mahal verdiept naar 4cm
Franke wasbak en kraan matzwart
18.5k exclusief Amerikaanse Koelkast;
Totaal keukenmeubelen 5.5k
Totaal apparatuur 7.4k
Totaal werkblad 4k
Montage 1.6k
Twijfelen nog wel om de wijnklimaatkast wellicht toch links achter in de hoek te plaatsen en dan voorkant eiland mooier symmetrisch te maken met bv. lades ipv kastjes.
Verder zit we nog wat boven budget dus nog even puzzelen!
Op -en aanmerkingen zijn zeer welkom!!
Alvast bedankt
Geen idee van de rest van het huis, maar wat als je er een schiereiland van zou maken tegen die rechterwand? Dan naar 2m40 met 4*60 of 2*90+60? Kan je mooi de wijnkoeler op de verre hoek zetten ook.
En dan de koelkast naar links bij het raam, nog een hoge kast ernaast voor de oven, tot aan de muur aanrecht met hierin spoelen en vaatwasser.
Gezien Nobilia moeten ze dan een hele nieuwe prijs voor je maken, kan erg voordelig zijn, maar ook andersom uitvallen.
Bericht hierboven
Meh, matzwart werkt niet altijd hoor. Ik ben niet tegen het witte eiland. Eventueel zou je de wijnkoelkast naar de kopse kant kunnen verplaatsen trouwens. Blindplaat ipv kast op de hoek en dan 90° geroteerd de wijnkoeler in de kopse kant. Raak je wel het hele effect van dat ding kwijt trouwens..Toke_gt schreef op zaterdag 25 december 2021 @ 13:55:
[...]
De wijnklimaatkast viel mij inderdaad ook op, maar meer omdat ik die niet mooi vind in combinatie met de witte kasten. Ik zou daar ook de donkere fronten nemen en de donkere plint laten doorlopen, of de wijnkoelkast linksachter plaatsen. Maar dan nog vind ik het witte eiland niet zo stijlvol. Ik denk dat de keuken beter tot zijn recht komt als die helemaal matzwart is. Je werkblad komt dan ook mooier uit. Bij het eiland zou ik de fronten van gelijke breedte maken. Misschien kom je met lades beter uit? (3x70?)
En nog een vraagje: heb je nagedacht over de plek voor bijv koffiemachine?
Bericht hierboven
Je apparaten gaat nog korting af. Reken zeker 35%, 4.6k voor die inductieplaat is echt van de zotte. Dan kan je net zo goed of beter een Bora PUXU kiezen, is rustiger voor het oog ook zonder al die stippeltjesPingu007 schreef op zaterdag 25 december 2021 @ 14:38:
[...]
Komt vnl. door de apparatuur en het werkblad:
Totaal keukenmeubelen 5.5k
Totaal apparatuur 7.4k (Allemaal Neff, oa. wijnklimaatkast van 2k, stoom combi van 2k en deze kookplaat van 4.6k, door package deal en eindejaarsactie, mooie totaalprijs denk ik)
Totaal werkblad 4k
Montage 1.6k
Aandeel Nobilia is vrij beperkt in de prijs denk ik, of toch nog te hoog?
Maar ik blijf bij m’n schiereiland en dan die wijnkoelkast laten vallen eigenlijk. 2k voor iets dat je niet ziet
Bericht hierboven
mevrouwKees_1 schreef op zaterdag 25 december 2021 @ 17:59:
@Pingu007
Ik vind het zeker prijzig ja. Ter vergelijk Ik heb zelf een tristar keuken gekocht. Meer kasten en meer apparatuur en ben dus bijna 20K kwijt.
Alle apparatuur is N90 lijn van Neff
Ik heb dezelfde plaat als jij
Full steam bakoven
Grote koeler 178
Vaatwasser N90
Quooker combi
Calacatta werkblad (eiland van 3x1) en lange wand van ruim 3 meter. Hoge kasten. Voornamelijk laden behalve aan zichtzijde eiland
Mijn blad is al bijna 6K
Apparatuur staat voor 11K in offerte
Plaatsen is 1100
Ik heb uiteindelijk de apparatuur voor internet prijzen weten te krijgen en ging er 45% vanaf
Meubels 7k .
Ik betaal 20K voor deze keuken.
Gekocht bij kleine locale zaak waar ik destijds ook mijn Nobilia kocht.
Nobilia is lager in kwaliteit dan Tristar (mijn oude keuken is nobilia ). Dus ja vind ik het aan de prijs.
Apparatuur kan je zo 45% korting op krijgen.
Volgens mijn keuken man zit bij hem de marge in de meubels en blad en hij verdient nog steeds aan de apparatuur ondanks die korting die je online krijgt.
De apparaten zijn 7.4k bij elkaar;Floor-is schreef op zaterdag 25 december 2021 @ 18:39:
[...]
Je apparaten gaat nog korting af. Reken zeker 35%, 4.6k voor die inductieplaat is echt van de zotte. Dan kan je net zo goed of beter een Bora PUXU kiezen, is rustiger voor het oog ook zonder al die stippeltjes
Maar ik blijf bij m’n schiereiland en dan die wijnkoelkast laten vallen eigenlijk. 2k voor iets dat je niet ziet
- De kookplaat van 4.6k is nu 2.8k (omdat we alles Neff nemen extra kortingsactie)
- Neff Wijnklimaatkast van 2.1k voor 1.5k
- Neff Full steam Combi Oven 2.1
- Neff Vaatwasser 1.0k
Als ik dat vergelijk met internetprijzen om deze apparatuur van ongeveer zelfde kwaliteit los te kopen kom ik niet heel veel voordeliger uit.
Wellicht kan werkblad wat goedkoper, betaal 1k voor de randafwerking en 600 voor verandering bladdiepte (van 1cm naar 4cm) En 600,- voor de kunstof onderbouw spoelbak
De kasten van Nobilia voor 5.5k lijkt mij ook niet slecht. Dat kan toch niet veel goedkoper?
Plaatsing/installatie 1.6k wellicht wat hoog?
https://www.clicktobuy.nl/blogs/news/american-express-welkomstbonus
De cube kost ongeveer €900 meer. Vergelijkbaar met wat de die liebherr IRBDi 5180 ten opzichte van de IRBd 5150 extra kost. De verschillen zijn dat je niet de koelkast hoeft open te doen, jaarlijks geen filters hoeft vervangen en geen extra wateraansluiting nodig hebt in het voordeel van de cube.ChUcKiE schreef op zaterdag 25 december 2021 @ 16:35:
[...]
Daar hebben wij ook over gedacht maar ik meen dat die €1400 duurder was dan de normale. En wij drinken nooit bruisend water.
Wellicht dat het water wel kouder is in het voordeel van de koelkast, minder kastruimte nodig en je hebt natuurlijk dat gave biofresh met mist zoals in de supermarkt.
Hier stond een link voor een Goldcard 1 jaar gratis + 20.000 punten.
@Pingu007 je betaalt teveel voor Nobilia. Het is een prima merk maar zit wel in lager segment. En daarom vind ik hem prijzig.
Ik ben overal tegen. Tot ik een besluit neem, dan ben ik ervoor
Hoeveel kan er van de 5.4k nog af denk je als ik ga shoppen?mevrouwKees_1 schreef op zaterdag 25 december 2021 @ 23:13:
@Pingu007 je betaalt teveel voor Nobilia. Het is een prima merk maar zit wel in lager segment. En daarom vind ik hem prijzig.
https://www.clicktobuy.nl/blogs/news/american-express-welkomstbonus
Ik betaal voor de kookplaat 2675Pingu007 schreef op zaterdag 25 december 2021 @ 21:20:
[...]
[...]
De apparaten zijn 7.4k bij elkaar;
- De kookplaat van 4.6k is nu 2.8k (omdat we alles Neff nemen extra kortingsactie)
- Neff Wijnklimaatkast van 2.1k voor 1.5k
- Neff Full steam Combi Oven 2.1
- Neff Vaatwasser 1.0k
Voor de oven 1715
Vaatwasser 1015
Ik heb geen wijnklimaatkast maar een quooker en die kost mij 1200
Ik heb in totaal 13 kasten waarvan 5 ladekasten en 2 hoge kasten waar ook weer lades inzitten
Plaatsen is bij mij ook goedkoper.
Kortom .. ik zou nog eens teruggaan.
Ik ben overal tegen. Tot ik een besluit neem, dan ben ik ervoor
Apparatuur bij bijv keukenloods , bemmel en kroon en Veldkamp opvragen en met die prijzen naar je keuken man. Zijn die significant lager ? Dan meenemen en laten zien.Pingu007 schreef op zaterdag 25 december 2021 @ 23:14:
[...]
Hoeveel kan er van de 5.4k nog af denk je als ik ga shoppen?
En Nobilia werkt met blokkorting. Bij onze vorige keuken combineerde hij dingen en dan kreeg je weer extra korting. En wij kregen toen onze Siemens vaatwasser gratis.
Zo werd het bij onze nobilia voordeliger. . Zoek even in dit topic naar nobilia offertes. Die zijn er wel geweest en die waren in sommige gevallen scherper. En er zitten hier ook wel keukenmannen die daar meer zicht op hebben.
Qua installeren vind ik altijd lastig om te snappen waar het in zit qua prijs verschil.
Ik ben overal tegen. Tot ik een besluit neem, dan ben ik ervoor
Ik heb hier en daar wel wat zaken in de offerte gevonden waarvan ik denk dat het voordeliger kan.mevrouwKees_1 schreef op zaterdag 25 december 2021 @ 23:28:
[...]
Apparatuur bij bijv keukenloods , bemmel en kroon en Veldkamp opvragen en met die prijzen naar je keuken man. Zijn die significant lager ? Dan meenemen en laten zien.
En Nobilia werkt met blokkorting. Bij onze vorige keuken combineerde hij dingen en dan kreeg je weer extra korting. En wij kregen toen onze Siemens vaatwasser gratis.
Zo werd het bij onze nobilia voordeliger. . Zoek even in dit topic naar nobilia offertes. Die zijn er wel geweest en die waren in sommige gevallen scherper. En er zitten hier ook wel keukenmannen die daar meer zicht op hebben.
Qua installeren vind ik altijd lastig om te snappen waar het in zit qua prijs verschil.
Mijn offerte loopt via DBkeukens trouwens, de projectleverancier voor onze nieuwbouw.
Dat heeft wel zijn voordelen en krijgen goede recensies, maar daarvoor heb ik uiteraard geen duizenden euro's extra over ;-)
Misschien maandag ook nog even een offertecheck laten doen bij keukenloods voor het vergelijk.
https://www.clicktobuy.nl/blogs/news/american-express-welkomstbonus
Dit is het offerte gedeelte (met Amerikaanse koelkast) voor de keukenmeubelen:SquareOne schreef op zaterdag 25 december 2021 @ 15:30:
[...]
Wat is de opstelling aan de spoelkant? Hoeveel lades heb je toegepast in de opstelling. Die zijn namelijk vrij duur.
Het ontwerp zonder Amerikaanse koelkast vind ik een stuk mooier (kwestie van smaak). Je zou ook zo’n quooker met koud water kunnen overwegen. Of gewoon een karaf met water in de koelkast zetten
Met die twee hoge kasten heb je ook een stuk meer kastruimte.
https://www.clicktobuy.nl/blogs/news/american-express-welkomstbonus
@Pingu007 ik lees hier wel vaker dat project leveranciers niet altijd voordelig zijn. Ik zou zeker een offerte check doen. Nobilia kan je meen ik ook bij keukenloods vinden. Superkeukens heeft het ook idd en die zijn ook scherp in prijs.
[ Voor 15% gewijzigd door mevrouwKees_1 op 26-12-2021 00:26 ]
Ik ben overal tegen. Tot ik een besluit neem, dan ben ik ervoor
Ik mis hier tekst denk ik paarse mevrouw
Bericht hierboven
Ach, de bedoeling was over de plek van vaatwasser. Ik had deze rechts, maar vind het als rechthandige nu fijner aan de linkerkant. Kan er niet echt een vinger op leggen, maar sta er nu rechter voor ipv mijn bovenlichaam te draaien naar de verre hoeken. Voor de duidelijkheid ik stond er eerst links naast en nu rechts naast.
Eigenlijk wilde we een beetje dit creëren:Floor-is schreef op zaterdag 25 december 2021 @ 18:14:
[...]
Snel-snel: gek eiland zo, rare formaten bij elkaar. Oogt rommelig met 50-60-50-60 als ik het goed inschat.
Geen idee van de rest van het huis, maar wat als je er een schiereiland van zou maken tegen die rechterwand? Dan naar 2m40 met 4*60 of 2*90+60? Kan je mooi de wijnkoeler op de verre hoek zetten ook.
En dan de koelkast naar links bij het raam, nog een hoge kast ernaast voor de oven, tot aan de muur aanrecht met hierin spoelen en vaatwasser.
Gezien Nobilia moeten ze dan een hele nieuwe prijs voor je maken, kan erg voordelig zijn, maar ook andersom uitvallen.
:no_upscale():strip_icc():fill(white):strip_exif()/f/image/DaMWSACgclHGjglTLLnRjLgI.jpg?f=user_large)
Of dit:
:strip_exif()/f/image/24Qpu5uD6lFIU4m1B5Qzs4oM.jpg?f=fotoalbum_large)
En nu dus dit
:strip_exif()/f/image/ZuZ1vUwSFrssrGDlMYLdtLmk.jpg?f=fotoalbum_large)
Maar doordat de verkoper aangaf dat het met echt hout erg duur wordt (nep hout vinden we niet mooi), hebben we daar vanaf gezien..
Gezien de (te) hoge offerte nu, wellicht toch maar eens kijken of we deze stijl kunnen pakken.
EDIT: Kastjes voorkant eiland weg en daar bar, met binnenkant hout(look) lijkt de makkelijkste en goedkoopste oplossing!?
[ Voor 14% gewijzigd door Pingu007 op 26-12-2021 12:33 ]
https://www.clicktobuy.nl/blogs/news/american-express-welkomstbonus
Nog 2 extra kastjes boven de hoge kasten is ook wel fijn trouwens. Wij hebben het nu ook zoals jullie in de render, maar had er liever nog allerlei prut achter 2 deurtjes kwijt gekund dan dat ik nu elke week met een stoel en een doekje allemaal stof weg moet vegenPingu007 schreef op zondag 26 december 2021 @ 11:19:
[...]
Eigenlijk wilde we een beetje dit creëren:
[Afbeelding]
Of dit:
[Afbeelding]
En nu dus dit:
[Afbeelding]
Maar doordat de verkoper aangaf dat het met echt hout erg duur wordt (nep hout vinden we niet mooi), hebben we daar vanaf gezien..
Gezien de (te) hoge offerte nu, wellicht toch maar eens kijken of we deze stijl kunnen pakken.
Bij een keten als DB Keukens gaat het met dit hout erg duur worden. Daarvoor kun je bij een kleine lokale keukenzaak of meubelmaker beter terecht. Geen idee waar je woont, maar Keukenhof van Twente en Mint Interieur (beide Overijssel) heb ik dit wel eens zien doen. Op hun Instagram pagina's staan wel wat voorbeelden.Pingu007 schreef op zondag 26 december 2021 @ 11:19:
[...]
Eigenlijk wilde we een beetje dit creëren:
[Afbeelding]
Of dit:
[Afbeelding]
En nu dus dit:
[Afbeelding]
Maar doordat de verkoper aangaf dat het met echt hout erg duur wordt (nep hout vinden we niet mooi), hebben we daar vanaf gezien..
Gezien de (te) hoge offerte nu, wellicht toch maar eens kijken of we deze stijl kunnen pakken.
Helaas zitten wij helemaal aan de andere kant van het land ;-)Insert12 schreef op zondag 26 december 2021 @ 12:29:
[...]
Bij een keten als DB Keukens gaat het met dit hout erg duur worden. Daarvoor kun je bij een kleine lokale keukenzaak of meubelmaker beter terecht. Geen idee waar je woont, maar Keukenhof van Twente en Mint Interieur (beide Overijssel) heb ik dit wel eens zien doen. Op hun Instagram pagina's staan wel wat voorbeelden.
Kastjes voorkant eiland weg en daar bar, met binnenkant hout(look) lijkt de makkelijkste en goedkoopste oplossing!?
https://www.clicktobuy.nl/blogs/news/american-express-welkomstbonus
Ja denk ik wel. Je zou dat natuurlijk zo door DB Keukens kunnen laten bouwen met normale afwerking binnen in het bar deel en dan zelf later een timmerman laten komen en het hout er op laten maken.Pingu007 schreef op zondag 26 december 2021 @ 12:34:
[...]
Helaas zitten wij helemaal aan de andere kant van het land ;-)
Kastjes voorkant eiland weg en daar bar, met binnenkant hout(look) lijkt de makkelijkste en goedkoopste oplossing!?
Grappig, toen je schreef dat je het wit had gekozen omdat de keuken op het noorden is, dacht ik dat je dan misschien beter hout zou kunnen overwegen. Dat maakt je keuken sowieso wat warmer.Pingu007 schreef op zondag 26 december 2021 @ 11:19:
[...]
Eigenlijk wilde we een beetje dit creëren:
(..)
Maar doordat de verkoper aangaf dat het met echt hout erg duur wordt (nep hout vinden we niet mooi), hebben we daar vanaf gezien..
Gezien de (te) hoge offerte nu, wellicht toch maar eens kijken of we deze stijl kunnen pakken.
EDIT: Kastjes voorkant eiland weg en daar bar, met binnenkant hout(look) lijkt de makkelijkste en goedkoopste oplossing!?
Dus ja, ik zou meer teruggaan naar het baridee met houten afwerking. Een paar houten accenten maakt je keuken meteen anders,
Je wilde een Houtmerk keuken uit de duurste serie namaken? Dat snap ik wel, je moet immers 3-4 maanden wachten voordat je er terecht kunt voor een afspraak zo lijkt het, terwijl wat ze laten zien echt heel mooi is. Dan kan ik me voorstellen dat je bij andere partijen gaat kijken wat ze aanbieden om zo goed in de buurt te komenPingu007 schreef op zondag 26 december 2021 @ 11:19:
[...]
Eigenlijk wilde we een beetje dit creëren:
[Afbeelding]
Of dit:
[Afbeelding]
En nu dus dit:
[Afbeelding]
Oh wacht, je maakt het nu pittig ingewikkeld. Je beseft hopelijk dat je originele idee niet meer gaat en dat je dus wat anders gaat doenMaar doordat de verkoper aangaf dat het met echt hout erg duur wordt (nep hout vinden we niet mooi), hebben we daar vanaf gezien..
Gezien de (te) hoge offerte nu, wellicht toch maar eens kijken of we deze stijl kunnen pakken.
Want als je geen hout kunt krijgen worden de looks anders, omdat je een ander blad kiest, worden de looks anders, omdat je niet 2m70 of zelfs 3m+ hebt worden de looks anders, omdat je niet zo’n zee van ruimte hebt, worden de looks anders, omdat je geen bar kiest, worden de looks anders.. Oh en die Amerikaanse koelkast, die wijkt al helemaal af
Logisch ook, want dat eiland uit de eerste afbeelding kost ergens ten noorden van 11k, die uit de tweede waarschijnlijk in de 9-10k range en dat is nog zonder apparaten. Die wand is dan ook niet bepaald goedkoop natuurlijk.
Als je zo iets na wilt doen, moet je ofwel toch voor hout kiezen, of echt iets anders gaan doen en daar vrede mee hebben. Nep-hout is (in mijn optiek dan) echt te nep, daar ga je spijt van krijgen.
Bericht hierboven
Wil je het zitje vanwege de looks of omdat jullie beogen dit veel te gaan gebruiken?Pingu007 schreef op zondag 26 december 2021 @ 12:34:
[...]
Helaas zitten wij helemaal aan de andere kant van het land ;-)
Kastjes voorkant eiland weg en daar bar, met binnenkant hout(look) lijkt de makkelijkste en goedkoopste oplossing!?
Je verliest dan best wel wat kastruimte.
Wat helpt is om alle kasten even uit te tekenen en te bedenken wel spullen je in welk kastje kwijt wilt. Dan krijg je een beter gevoel of de keuken voldoende opslag biedt voor jullie spullen.
Nog een toevoeging. De manier hoe houtmerk die binnenkant van het zitje heeft afgewerkt met verjongde panelen is natuurlijk prachtig. Maar dat kunnen de ‘normale’ fabrikanten niet op de manier leveren
[ Voor 14% gewijzigd door SquareOne op 26-12-2021 12:44 ]
Middag tweakers, heb dit topic goed doorgelezen en veel geleerd. Vooral over de supergrote keukenboeren die je als de pest moet vermijden.
Nu heb ik dus eigenlijk 3 "boeren" waar ik naar aan het kijken ben voor mijn nieuwe keuken:
ikea.nl (ja ikea ja
)
keukenloods.nl
budgetplan.nl
Nu heeft iemand er mij op geattendeerd dat er ook een Duitse boer in Nederland zit met zeer schappelijke prijzen
https://www.ok-living.nl
Als ik echter kijk naar de reviews bij het moederbedrijf...
https://www.google.nl/map...0155!4d12.5350694!9m1!1b1
Wordt ik er wat minder blij van
Heeft iemand hier ervaring mee? En misschien wat boeren die ik over het hoofd heb gezien?
Nu heb ik dus eigenlijk 3 "boeren" waar ik naar aan het kijken ben voor mijn nieuwe keuken:
ikea.nl (ja ikea ja
keukenloods.nl
budgetplan.nl
Nu heeft iemand er mij op geattendeerd dat er ook een Duitse boer in Nederland zit met zeer schappelijke prijzen
https://www.ok-living.nl
Als ik echter kijk naar de reviews bij het moederbedrijf...
https://www.google.nl/map...0155!4d12.5350694!9m1!1b1
Wordt ik er wat minder blij van
Heeft iemand hier ervaring mee? En misschien wat boeren die ik over het hoofd heb gezien?
Het zitje twijfelde we al beetje over en omdat we denken daar wat op te kunnen besparen, door de kastruimte weg te halen, en in plaats daarvan het hout daarin te verwerken is het wellicht toch een goed idee.SquareOne schreef op zondag 26 december 2021 @ 12:40:
[...]
Wil je het zitje vanwege de looks of omdat jullie beogen dit veel te gaan gebruiken?
Je verliest dan best wel wat kastruimte.
Wat helpt is om alle kasten even uit te tekenen en te bedenken wel spullen je in welk kastje kwijt wilt. Dan krijg je een beter gevoel of de keuken voldoende opslag biedt voor jullie spullen.
Qua kastruimte komen we alsnog redelijk goed uit, zeker ivm onze huidige keuken ;-)
https://www.clicktobuy.nl/blogs/news/american-express-welkomstbonus
Ja we hebben er een rommeltje van gemaaktFloor-is schreef op zondag 26 december 2021 @ 12:39:
[...]
Oh wacht, je maakt het nu pittig ingewikkeld. Je beseft hopelijk dat je originele idee niet meer gaat en dat je dus wat anders gaat doenSorry to break your bubble.
Want als je geen hout kunt krijgen worden de looks anders, omdat je een ander blad kiest, worden de looks anders, omdat je niet 2m70 of zelfs 3m+ hebt worden de looks anders, omdat je niet zo’n zee van ruimte hebt, worden de looks anders, omdat je geen bar kiest, worden de looks anders.. Oh en die Amerikaanse koelkast, die wijkt al helemaal afJe maakt echt een totaal andere keuken, die qua indeling misschien nog wel lijkt, maar dat was het welhaast.
Logisch ook, want dat eiland uit de eerste afbeelding kost ergens ten noorden van 11k, die uit de tweede waarschijnlijk in de 9-10k range en dat is nog zonder apparaten. Die wand is dan ook niet bepaald goedkoop natuurlijk.
Als je zo iets na wilt doen, moet je ofwel toch voor hout kiezen, of echt iets anders gaan doen en daar vrede mee hebben. Nep-hout is (in mijn optiek dan) echt te nep, daar ga je spijt van krijgen.
We hadden er in principe vrede mee om het hout te laten varen, maar door de (te) dure offerte hebben we zoiets van hoe willen we het nu eigenlijk..
Een basis variant die we door houten plankjes etc. toch de houtmerk look kunnen geven lijkt het verstandigst nu.
Irritante is dat de aannemer 1ste week januari de leidingtekeningen moet hebben, dus er is ook nog soort van tijdsdruk...
https://www.clicktobuy.nl/blogs/news/american-express-welkomstbonus
Maar je hoeft niet je volledige keuken uitgetekend te hebben voor het leidingenplan. Als je maar weet waar je spoelbak en kookplaat wilt hebben, en waar de stopcontacten. Of je dan een barretje maakt of laden, maakt voor die tekeningen niets uit, dus daar kun je op je gemak naar gaan kijken. (En zelfs dan kun je na aanlegPingu007 schreef op zondag 26 december 2021 @ 12:50:
[...]
Een basis variant die we door houten plankjes etc. toch de houtmerk look kunnen geven lijkt het verstandigst nu.
Irritante is dat de aannemer 1ste week januari de leidingtekeningen moet hebben, dus er is ook nog soort van tijdsdruk...
en oplevering de boel weer veranderen)
Ik zou inderdaad de voorbeelden loslaten, en alleen de sfeer van matzwart met hout meenemen als je voor het herontwerp gaat kijken. Dat is wat jullie mooi vinden en het is er ongetwijfeld in alle soorten, maten en prijsklassen.
Die leidingen kan je ook door een ander laten tekenen en behalve de afvoer (en water) wellicht is de rest erg eenvoudig om te leggen, kan je zelf doen als je een beeetje handig bent.Pingu007 schreef op zondag 26 december 2021 @ 12:50:
[...]
Ja we hebben er een rommeltje van gemaakt![]()
We hadden er in principe vrede mee om het hout te laten varen, maar door de (te) dure offerte hebben we zoiets van hoe willen we het nu eigenlijk..
Een basis variant die we door houten plankjes etc. toch de houtmerk look kunnen geven lijkt het verstandigst nu.
Irritante is dat de aannemer 1ste week januari de leidingtekeningen moet hebben, dus er is ook nog soort van tijdsdruk...
Heb even wat voor je geschetst qua indeling. Kasten met een kruis zijn hoog
:no_upscale():strip_icc():fill(white):strip_exif()/f/image/OFpAoicoKX74g5JhUnahFkVc.jpg?f=user_large)
Het is slechts een opzet waar ik niet al te lang over heb nagedacht, maar denk dat een schiereiland je echt plezier kan geven hier
Ik had je koelkast in de enkele hoge kast links bedacht, want daar wil je iets uit kunnen pakken zonder ‘helemaal om je eiland heen te moeten lopen’, daarnaast spoelen met een beetje dezelfde gedachte. De vaatwasser rechts van spoelen, want gangbaar. Dan weer twee keer hoog: oven en vriezer of voorraad als je voor k/v combi kiest. Op deze manier kan je een nis maken, zeker als je wel hoog kastjes plaatst. Mocht je echt de hoogte in kunnen (>260) kan je deze wel 60 diep doen, maar dan zo hoog boven het werkblad dat ze niet in de weg zitten, dat kan echt een onwijs vet effect geven, zeker met licht onder die kastjes en een contrasterende achterwand; vraagt wel om koof die gelijk is aan de standbouw die ik nu uiterst links en rechts heb ingetekend en dat je de kasten tot die koof doortrekt.
Schiereiland met genoeg ruimte links van de kookplaat om dingen te kunnen afleggen en een kastje voor je kruiden en olie en dat soort spul. Koken in een 90kast, daarnaast 2x60.
Niet werkzijde 60 op de kopse kanten en 150 bar er tussen, 150 is wat ruim voor 2 krukken, maar die ruimte is prettig. (Je wilt eigenlijk 60+ per kruk dus dit is vrij ruim).
[ Voor 34% gewijzigd door Floor-is op 26-12-2021 13:27 ]
Bericht hierboven
Keukenloods is ook gewoon Mademakers, dat gezegd hebbende ben ik ook met Keukenloods in gesprekThomg schreef op zondag 26 december 2021 @ 12:43:
Middag tweakers, heb dit topic goed doorgelezen en veel geleerd. Vooral over de supergrote keukenboeren die je als de pest moet vermijden.
Nu heb ik dus eigenlijk 3 "boeren" waar ik naar aan het kijken ben voor mijn nieuwe keuken:
ikea.nl (ja ikea ja)
keukenloods.nl
budgetplan.nl
Nu heeft iemand er mij op geattendeerd dat er ook een Duitse boer in Nederland zit met zeer schappelijke prijzen
https://www.ok-living.nl
Als ik echter kijk naar de reviews bij het moederbedrijf...
https://www.google.nl/map...0155!4d12.5350694!9m1!1b1
Wordt ik er wat minder blij van
Heeft iemand hier ervaring mee? En misschien wat boeren die ik over het hoofd heb gezien?
Bericht hierboven
Oww dat wist ik niet. Kan ik dan beter kijken naar budgetplan en ikea of is keukenloods gewoon prima?Floor-is schreef op zondag 26 december 2021 @ 13:14:
[...]
Keukenloods is ook gewoon Mademakers, dat gezegd hebbende ben ik ook met Keukenloods in gesprek
Ik zoek niet de hoogste kwaliteit en heb totaal geen zin in het hele onderhandelingsproces, dus dan is alles bestellen via de webshop eigenlijk de beste optie?
Ik heb trouwens ok-living afgeschreven, die reviews zijn me toch echt te afschrikkend.
Afhankelijk van je budget is een Keukenmakelaar misschien wel een idee.Thomg schreef op zondag 26 december 2021 @ 13:21:
[...]
Oww dat wist ik niet. Kan ik dan beter kijken naar budgetplan en ikea of is keukenloods gewoon prima?
Ik zoek niet de hoogste kwaliteit en heb totaal geen zin in het hele onderhandelingsproces, dus dan is alles bestellen via de webshop eigenlijk de beste optie?
Ik heb trouwens ok-living afgeschreven, die reviews zijn me toch echt te afschrikkend.
Ik kan echt niet vouchen voor welk leverancier dan ook, ik doe ook niet dagelijks of wekelijks zaken met partijen.
Toevoeging: wat je wilt is dat een specialist je helpt het meeste uit je budget te halen, daar zijn de verkopers voor
[ Voor 12% gewijzigd door Floor-is op 26-12-2021 13:29 ]
Bericht hierboven
Nice zeg thanks, ik ga er vanavond even serieus naar kijken. Nu bij de schoonouders ;-)Floor-is schreef op zondag 26 december 2021 @ 13:12:
[...]
Die leidingen kan je ook door een ander laten tekenen en behalve de afvoer (en water) wellicht is de rest erg eenvoudig om te leggen, kan je zelf doen als je een beeetje handig bent.
Heb even wat voor je geschetst qua indeling. Kasten met een kruis zijn hoog
[Afbeelding]
Het is slechts een opzet waar ik niet al te lang over heb nagedacht, maar denk dat een schiereiland je echt plezier kan geven hier
Ik had je koelkast in de enkele hoge kast links bedacht, want daar wil je iets uit kunnen pakken zonder ‘helemaal om je eiland heen te moeten lopen’, daarnaast spoelen met een beetje dezelfde gedachte. De vaatwasser rechts van spoelen, want gangbaar. Dan weer twee keer hoog: oven en vriezer of voorraad als je voor k/v combi kiest. Op deze manier kan je een nis maken, zeker als je wel hoog kastjes plaatst. Mocht je echt de hoogte in kunnen (>260) kan je deze wel 60 diep doen, maar dan zo hoog boven het werkblad dat ze niet in de weg zitten, dat kan echt een onwijs vet effect geven, zeker met licht onder die kastjes en een contrasterende achterwand; vraagt wel om koof die gelijk is aan de standbouw die ik nu uiterst links en rechts heb ingetekend en dat je de kasten tot die koof doortrekt.
Schiereiland met genoeg ruimte links van de kookplaat om dingen te kunnen afleggen en een kastje voor je kruiden en olie en dat soort spul. Koken in een 90kast, daarnaast 2x60.
Niet werkzijde 60 op de kopse kanten en 150 bar er tussen, 150 is wat ruim voor 2 krukken, maar die ruimte is prettig. (Je wilt eigenlijk 60+ per kruk dus dit is vrij ruim).
https://www.clicktobuy.nl/blogs/news/american-express-welkomstbonus
InspiratiePingu007 schreef op zondag 26 december 2021 @ 14:00:
[...]
Nice zeg thanks, ik ga er vanavond even serieus naar kijken. Nu bij de schoonouders ;-)
:no_upscale():strip_icc():fill(white):strip_exif()/f/image/DEMrugB3j9Z552dcZsh22lxa.jpg?f=user_large)
:no_upscale():strip_icc():fill(white):strip_exif()/f/image/e3njM5BlUHHikw3OnEin7Q8p.jpg?f=user_large)
[ Voor 8% gewijzigd door Floor-is op 26-12-2021 14:13 ]
Bericht hierboven
Leuk om eens uit te pakken!Ladypurple schreef op zondag 26 december 2021 @ 09:46:
[...]
Ach, de bedoeling was over de plek van vaatwasser. Ik had deze rechts, maar vind het als rechthandige nu fijner aan de linkerkant. Kan er niet echt een vinger op leggen, maar sta er nu rechter voor ipv mijn bovenlichaam te draaien naar de verre hoeken. Voor de duidelijkheid ik stond er eerst links naast en nu rechts naast.
Als je rechts dominant bent en de vaatwasser rechts hebt:
- Wil je je spullen in de rechterhand, maar je linkerhand is boven/dichterbij het aanrecht
- Moet je roteren om de spullen van het aanrecht te pakken
- Sta je met je dominante hand boven waar je de spullen wilt plaatsen
- Kan je gemakkelijk(er) de vaatwasser in bewegen om spullen te plaatsen
Als je rechts dominant bent en de vaatwasser links hebt:
- Wil je je spullen in de rechterhand, die het dichtst bij het aanrecht is
- Moet je roteren om de spullen in de vaatwasser te zetten
- Sta je met je niet-dominante hand dichterbij/boven waar je de spullen wilt plaatsen
- Is het lastiger om de vaatwasser “in the bewegen”, de achterkant van de korven zijn lastiger te vullen
Beide hebben voor- en nadelen natuurlijk
Bericht hierboven
Is een keukenmakelaar wel te doen met een budget van rond de 6000 euro ex arbeid?Floor-is schreef op zondag 26 december 2021 @ 13:24:
[...]
Afhankelijk van je budget is een Keukenmakelaar misschien wel een idee.
Ik kan echt niet vouchen voor welk leverancier dan ook, ik doe ook niet dagelijks of wekelijks zaken met partijen.Wat ik aangeef is dat ik op dit moment vertrouwen heb in Keukenloods
Toevoeging: wat je wilt is dat een specialist je helpt het meeste uit je budget te halen, daar zijn de verkopers voor
Even dat wij wel denken aan dezelfde prijsklasse
En met specialist, bedoel je dan dit mee?
https://www.keukenloods.nl/keukens/afspraak-op-afstand
Als je zelf goede ervaringen hebt en het vrijblijvend is valt het natuurlijk altijd te proberen.
Hi allemaal,
Ik ben bezig met een ontwerp van mijn keuken. De afgelopen maanden heb ik dit forum goed doorgenomen en veel tips kunnen gebruiken. Ik weet ondertussen precies wat ik wil, maar dat ik vrij prijzig om bij een 'keten' aan te schaffen zoals Mandemakers.
Houtmerk heeft eigenlijk alles qua look, namelijk een mat licht olijf groen greeploos frontje met een kookeiland in donker hout met omlijsting + nog houten latjes aan de buitenkant van het eiland. Hierbij een impressie en de indeling op de plattegrond.
:strip_exif()/f/image/mIkonCwTV4ddM5wMn8dyUjpn.jpg?f=fotoalbum_large)
:no_upscale():strip_icc():fill(white):strip_exif()/f/image/df8ZXF5yazXQbExhtUSeA8iE.jpg?f=user_large)
Deze afmettingen zijn opgesteld door Kvik met lades van 1m en 80cm in het kookeiland. Het kookeiland wordt dan precies 1,8m lang en 1,2m breed met een doorloop van 67 cm (achter) en 90 cm (voorkant) er omheen. De totale keuken is echter vrij prijzig en ze hebben niet precies de stijl en kleur die ik zoek.
Ik wilde daarom de IKEA metod kasten gebruiken met frontjes van Houtmerk precies naar wens. Houtmerk kan helaas geen afwijkende afmetingen frontjes leveren. De metod kasten hebben maximaal 80 cm lades, waardoor ik in de knoop kom met de afmetingen; het eiland wordt dan wel erg vierkant. Ook hangen de metod kasten aan een rails waardoor ik verplicht ben om mijn leiding allemaal in te frezen, niet per sé iets waar ik om zit te springen. Heeft iemand ervaring met een kookeiland bouwen met de Metod kasten?
Er zijn een paar afwegingen waar ik graag jullie creatieve advies op zou ontvangen:
-De Metod kasten zijn 80cm breed waardoor de inductiekookplaat met afzuiging helemaal aan het randje van het eiland komt te liggen
-'T is nog een optie om een 15cm wijnkoeler + onderbouw apothekerskast te plaatsen om het eiland toch langer te maken
Als iemand nog andere feedback of ideeën heeft hoor ik het graag!
Ik ben bezig met een ontwerp van mijn keuken. De afgelopen maanden heb ik dit forum goed doorgenomen en veel tips kunnen gebruiken. Ik weet ondertussen precies wat ik wil, maar dat ik vrij prijzig om bij een 'keten' aan te schaffen zoals Mandemakers.
Houtmerk heeft eigenlijk alles qua look, namelijk een mat licht olijf groen greeploos frontje met een kookeiland in donker hout met omlijsting + nog houten latjes aan de buitenkant van het eiland. Hierbij een impressie en de indeling op de plattegrond.
:strip_exif()/f/image/mIkonCwTV4ddM5wMn8dyUjpn.jpg?f=fotoalbum_large)
:no_upscale():strip_icc():fill(white):strip_exif()/f/image/df8ZXF5yazXQbExhtUSeA8iE.jpg?f=user_large)
Deze afmettingen zijn opgesteld door Kvik met lades van 1m en 80cm in het kookeiland. Het kookeiland wordt dan precies 1,8m lang en 1,2m breed met een doorloop van 67 cm (achter) en 90 cm (voorkant) er omheen. De totale keuken is echter vrij prijzig en ze hebben niet precies de stijl en kleur die ik zoek.
Ik wilde daarom de IKEA metod kasten gebruiken met frontjes van Houtmerk precies naar wens. Houtmerk kan helaas geen afwijkende afmetingen frontjes leveren. De metod kasten hebben maximaal 80 cm lades, waardoor ik in de knoop kom met de afmetingen; het eiland wordt dan wel erg vierkant. Ook hangen de metod kasten aan een rails waardoor ik verplicht ben om mijn leiding allemaal in te frezen, niet per sé iets waar ik om zit te springen. Heeft iemand ervaring met een kookeiland bouwen met de Metod kasten?
Er zijn een paar afwegingen waar ik graag jullie creatieve advies op zou ontvangen:
-De Metod kasten zijn 80cm breed waardoor de inductiekookplaat met afzuiging helemaal aan het randje van het eiland komt te liggen
-'T is nog een optie om een 15cm wijnkoeler + onderbouw apothekerskast te plaatsen om het eiland toch langer te maken
Als iemand nog andere feedback of ideeën heeft hoor ik het graag!
Euhm nee, dan verwijs ik je toch door naar een low-end leverancier. IKEA, Kvik, KuchenWelt etc Keukenloods heeft vast ook wel iets dat passen kan.Thomg schreef op zondag 26 december 2021 @ 15:35:
[...]
Is een keukenmakelaar wel te doen met een budget van rond de 6000 euro ex arbeid?
Even dat wij wel denken aan dezelfde prijsklasse![]()
En met specialist, bedoel je dan dit mee?
https://www.keukenloods.nl/keukens/afspraak-op-afstand
Als je zelf goede ervaringen hebt en het vrijblijvend is valt het natuurlijk altijd te proberen.
En ja, op afstand nu, want anders is onmogelijk:)
[ Voor 8% gewijzigd door Floor-is op 26-12-2021 17:06 ]
Bericht hierboven
Dat mat groen is Arpa Fenix. Wel echt even in het echt gaan bekijken, want is heel grijs en de kleur verandert met de kijkhoek en lichtval flink.Baksteen. schreef op zondag 26 december 2021 @ 16:31:
Hi allemaal,
Ik ben bezig met een ontwerp van mijn keuken. De afgelopen maanden heb ik dit forum goed doorgenomen en veel tips kunnen gebruiken. Ik weet ondertussen precies wat ik wil, maar dat ik vrij prijzig om bij een 'keten' aan te schaffen zoals Mandemakers.
Houtmerk heeft eigenlijk alles qua look, namelijk een mat licht olijf groen greeploos frontje met een kookeiland in donker hout met omlijsting + nog houten latjes aan de buitenkant van het eiland. Hierbij een impressie en de indeling op de plattegrond.
[Afbeelding]
Kom ik nog op terug[Afbeelding]
Deze afmettingen zijn opgesteld door Kvik met lades van 1m en 80cm in het kookeiland. Het kookeiland wordt dan precies 1,8m lang en 1,2m breed met een doorloop van 67 cm (achter) en 90 cm (voorkant) er omheen. De totale keuken is echter vrij prijzig en ze hebben niet precies de stijl en kleur die ik zoek.
Ik wilde daarom de IKEA metod kasten gebruiken met frontjes van Houtmerk precies naar wens. Houtmerk kan helaas geen afwijkende afmetingen frontjes leveren. De metod kasten hebben maximaal 80 cm lades, waardoor ik in de knoop kom met de afmetingen; het eiland wordt dan wel erg vierkant. Ook hangen de metod kasten aan een rails waardoor ik verplicht ben om mijn leiding allemaal in te frezen, niet per sé iets waar ik om zit te springen. Heeft iemand ervaring met een kookeiland bouwen met de Metod kasten?
Er zijn een paar afwegingen waar ik graag jullie creatieve advies op zou ontvangen:
-De Metod kasten zijn 80cm breed waardoor de inductiekookplaat met afzuiging helemaal aan het randje van het eiland komt te liggen
-'T is nog een optie om een 15cm wijnkoeler + onderbouw apothekerskast te plaatsen om het eiland toch langer te maken
Als iemand nog andere feedback of ideeën heeft hoor ik het graag!
Kijk even bij knoet of Google naar “Arpa Fenix front ikea”, die fronten zijn niet bepaald goedkoop!
Bericht hierboven
.
[ Voor 98% gewijzigd door FrankSpin op 15-07-2023 12:34 ]
Superbedankt dat je tijd hebt genomen om dit te tekenen!Floor-is schreef op zondag 26 december 2021 @ 13:12:
[...]
Die leidingen kan je ook door een ander laten tekenen en behalve de afvoer (en water) wellicht is de rest erg eenvoudig om te leggen, kan je zelf doen als je een beeetje handig bent.
Heb even wat voor je geschetst qua indeling. Kasten met een kruis zijn hoog
[Afbeelding]
Het is slechts een opzet waar ik niet al te lang over heb nagedacht, maar denk dat een schiereiland je echt plezier kan geven hier
Ik had je koelkast in de enkele hoge kast links bedacht, want daar wil je iets uit kunnen pakken zonder ‘helemaal om je eiland heen te moeten lopen’, daarnaast spoelen met een beetje dezelfde gedachte. De vaatwasser rechts van spoelen, want gangbaar. Dan weer twee keer hoog: oven en vriezer of voorraad als je voor k/v combi kiest. Op deze manier kan je een nis maken, zeker als je wel hoog kastjes plaatst. Mocht je echt de hoogte in kunnen (>260) kan je deze wel 60 diep doen, maar dan zo hoog boven het werkblad dat ze niet in de weg zitten, dat kan echt een onwijs vet effect geven, zeker met licht onder die kastjes en een contrasterende achterwand; vraagt wel om koof die gelijk is aan de standbouw die ik nu uiterst links en rechts heb ingetekend en dat je de kasten tot die koof doortrekt.
Schiereiland met genoeg ruimte links van de kookplaat om dingen te kunnen afleggen en een kastje voor je kruiden en olie en dat soort spul. Koken in een 90kast, daarnaast 2x60.
Niet werkzijde 60 op de kopse kanten en 150 bar er tussen, 150 is wat ruim voor 2 krukken, maar die ruimte is prettig. (Je wilt eigenlijk 60+ per kruk dus dit is vrij ruim).
Vind het idee ook erg leuk, we hebben in een eerder stadium over zo'n schiereiland nagedacht maar hadden vnl. problemen met de overlappende hoekje van idd ongeveer 25cm. (en we wilden graag een eiland)
Waar we nu op zitten qua plan is:
- Wijnklimaatkast naar linksachter
- Voorkant eiland 150cm links barretje en rechts 1 kastje van 60cm (qua kastruimte komen we wel uit)
Alles mat zwart of mat graphitezwart
Blad terug naar 1 cm
Boven het eiland 2 mooie houten hanglampen, houten plankjes tegen de wand en houten krukjes, op die manier het hout laten terugkomen geeft al een beetje het effect. En dan wellicht nog later de binnekant van het barretje hout laten plaatsen.
Amerikaans of inbouw twijfelen we nog..
https://www.clicktobuy.nl/blogs/news/american-express-welkomstbonus
Zowel inbouw als Amerikaans-achtig.Pingu007 schreef op maandag 27 december 2021 @ 09:18:
[...]
Superbedankt dat je tijd hebt genomen om dit te tekenen!
Vind het idee ook erg leuk, we hebben in een eerder stadium over zo'n schiereiland nagedacht maar hadden vnl. problemen met de overlappende hoekje van idd ongeveer 25cm. (en we wilden graag een eiland)
Waar we nu op zitten qua plan is:
- Wijnklimaatkast naar linksachter
- Voorkant eiland 150cm links barretje en rechts 1 kastje van 60cm (qua kastruimte komen we wel uit)
Alles mat zwart of mat graphitezwart
Blad terug naar 1 cm
Boven het eiland 2 mooie houten hanglampen, houten plankjes tegen de wand en houten krukjes, op die manier het hout laten terugkomen geeft al een beetje het effect. En dan wellicht nog later de binnekant van het barretje hout laten plaatsen.
Amerikaans of inbouw twijfelen we nog..
https://www.liebherr.be/i...combinaties/ecbn-6256-23/
Hier stond een link voor een Goldcard 1 jaar gratis + 20.000 punten.
Cool ding! Alleen beetje boven budgetMorpheusk schreef op maandag 27 december 2021 @ 09:29:
[...]
Zowel inbouw als Amerikaans-achtig.
https://www.liebherr.be/i...combinaties/ecbn-6256-23/
https://www.clicktobuy.nl/blogs/news/american-express-welkomstbonus
Maar die maten had ik dus wel ongeveer goed?Pingu007 schreef op maandag 27 december 2021 @ 09:18:
[...]
Superbedankt dat je tijd hebt genomen om dit te tekenen!
Vind het idee ook erg leuk, we hebben in een eerder stadium over zo'n schiereiland nagedacht maar hadden vnl. problemen met de overlappende hoekje van idd ongeveer 25cm. (en we wilden graag een eiland)
Waar we nu op zitten qua plan is:
- Wijnklimaatkast naar linksachter
- Voorkant eiland 150cm links barretje en rechts 1 kastje van 60cm (qua kastruimte komen we wel uit)
Alles mat zwart of mat graphitezwart
Blad terug naar 1 cm
Boven het eiland 2 mooie houten hanglampen, houten plankjes tegen de wand en houten krukjes, op die manier het hout laten terugkomen geeft al een beetje het effect. En dan wellicht nog later de binnekant van het barretje hout laten plaatsen.
Amerikaans of inbouw twijfelen we nog..
Want dan ben je van plan een eiland van 220 te plaatsen in een doorgang van 380, waardoor je de overgebleven 1m40 moet gebruiken voor beide doorlopen: dat is eenvoudigweg niet genoeg tenzij je aan één zijde maar 30-40cm doet.
De andere optie is dan niet voor 25cm oversteek te gaan, maar een eiland van 90-100cm diep te plaatsen, wellicht met iets minder ruimte tussen de kastenwand en het eiland. (95?)
Met een tekening van de ruimte kunnen we meer voor je betekenen, helemaal als je toelicht waar je de tafel hebt bedacht
Bericht hierboven
Floor-is schreef op maandag 27 december 2021 @ 10:20:
[...]
Maar die maten had ik dus wel ongeveer goed?
Want dan ben je van plan een eiland van 220 te plaatsen in een doorgang van 380, waardoor je de overgebleven 1m40 moet gebruiken voor beide doorlopen: dat is eenvoudigweg niet genoeg tenzij je aan één zijde maar 30-40cm doet.
De andere optie is dan niet voor 25cm oversteek te gaan, maar een eiland van 90-100cm diep te plaatsen, wellicht met iets minder ruimte tussen de kastenwand en het eiland. (95?)
Met een tekening van de ruimte kunnen we meer voor je betekenen, helemaal als je toelicht waar je de tafel hebt bedacht
:strip_exif()/f/image/kJrU92GgOvACOkHxIZKl6Vhm.jpg?f=fotoalbum_large)
Standaard zit de keuken naast de hal, maar aangezien wij meer "leven" in de keuken draaien we dit om.
Optie was ook nog om de keuken en de eettafel om te draaien, wellicht beter qua ruimte!?
Die deur op het hoekje in de woonkamer is een gangkast.
https://www.clicktobuy.nl/blogs/news/american-express-welkomstbonus
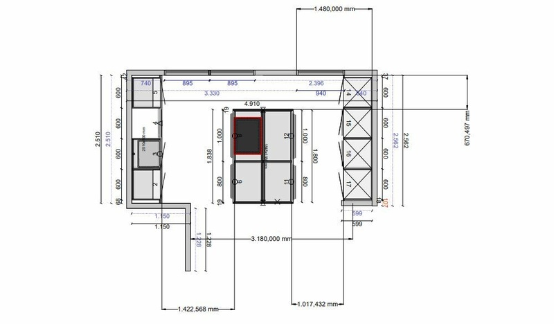
Wie heeft die smalle doorgang tussen wc en trap verzonnenPingu007 schreef op maandag 27 december 2021 @ 10:31:
[...]
[Afbeelding]
Standaard zit de keuken naast de hal, maar aangezien wij meer "leven" in de keuken draaien we dit om.
Optie was ook nog om de keuken en de eettafel om te draaien, wellicht beter qua ruimte!?
Die deur op het hoekje in de woonkamer is een gangkast.
Breedte van de woning? 5,40 of 5,70?
[ Voor 4% gewijzigd door SquareOne op 27-12-2021 10:35 ]
5,60SquareOne schreef op maandag 27 december 2021 @ 10:34:
[...]
Wie heeft die smalle doorgang tussen wc en trap verzonnen![]()
Breedte van de woning? 5,40 of 5,70?
https://www.clicktobuy.nl/blogs/news/american-express-welkomstbonus
Welke smalle doorgang bedoel je? De Floorplanner tekening is in het halletje ietwat uit verhoudingSquareOne schreef op maandag 27 december 2021 @ 10:34:
[...]
Wie heeft die smalle doorgang tussen wc en trap verzonnen![]()
Breedte van de woning? 5,40 of 5,70?
[ Voor 11% gewijzigd door Pingu007 op 27-12-2021 10:42 ]
https://www.clicktobuy.nl/blogs/news/american-express-welkomstbonus
In de showroom hadden ze een kookeiland opstelling met aan 1 kant 65cm doorloop en dat was voor ons prima om doorheen te lopen, vandaar dat we zoiets hadden van het kan.Floor-is schreef op maandag 27 december 2021 @ 10:20:
[...]
Maar die maten had ik dus wel ongeveer goed?
Want dan ben je van plan een eiland van 220 te plaatsen in een doorgang van 380, waardoor je de overgebleven 1m40 moet gebruiken voor beide doorlopen: dat is eenvoudigweg niet genoeg tenzij je aan één zijde maar 30-40cm doet.
De andere optie is dan niet voor 25cm oversteek te gaan, maar een eiland van 90-100cm diep te plaatsen, wellicht met iets minder ruimte tussen de kastenwand en het eiland. (95?)
Met een tekening van de ruimte kunnen we meer voor je betekenen, helemaal als je toelicht waar je de tafel hebt bedacht
https://www.clicktobuy.nl/blogs/news/american-express-welkomstbonus
Dat is m.i. echt te weinig. Kan me haast niet voorstellen dat de adviseur dit geadviseerd heeft / dat die niet heeft voorgesteld het eiland iets kleiner te maken?Pingu007 schreef op maandag 27 december 2021 @ 10:46:
[...]
In de showroom hadden ze een kookeiland opstelling met aan 1 kant 65cm en dat was voor ons prima om doorheen te lopen, vandaar dat we zoiets hadden van het kan.
Jullie ruimte is qua maatvoering grotendeels gelijk aan de onze. Wij hebben 3,82cm. Dit is onze opstelling:
- eiland van 2m. Kookzijde 60-80-60. Voorzijde 50-50-50-50
- spoelkant: 2 hoge kasten tbv koelkast en apparatuur. Vaatwasser, spoelkast 60cm, ladekast 100cm.
Ziet er erg goed uit!! En ook nog erg ruim.SquareOne schreef op maandag 27 december 2021 @ 10:56:
[...]
Dat is m.i. echt te weinig. Kan me haast niet voorstellen dat de adviseur dit geadviseerd heeft / dat die niet heeft voorgesteld het eiland iets kleiner te maken?
Jullie ruimte is qua maatvoering grotendeels gelijk aan de onze. Wij hebben 3,82cm. Dit is onze opstelling:
- eiland van 2m. Kookzijde 60-80-60. Voorzijde 50-50-50-50
- spoelkant: 2 hoge kasten tbv koelkast en apparatuur. Vaatwasser, spoelkast 60cm, ladekast 100cm.
[Afbeelding]
Qua eiland maat scheelt het maar 10 cm met ons eiland, 60/90/60 hebben wij in principe. Dus dan zou ik geneigd zijn te zeggen dat we toch wel genoeg ruimte hebben of zie ik (weer) iets over het hoofd? ;-)
https://www.clicktobuy.nl/blogs/news/american-express-welkomstbonus
Bij ons zit er een erker aan de voorkant waardoor er aan die kant wat meer ruimte is, het muurtje is maar 110cm diep en vanaf daar wordt de ruimte dieper (waar de plant op de render stata). Onze primaire doorloop is ca. 110cm.Pingu007 schreef op maandag 27 december 2021 @ 11:03:
[...]
Ziet er erg goed uit!! En ook nog erg ruim.
Qua eiland maat scheelt het maar 10 cm met ons eiland, 60/90/60 hebben wij in principe. Dus dan zou ik geneigd zijn te zeggen dat we toch wel genoeg ruimte hebben of zie ik (weer) iets over het hoofd? ;-)
/f/image/QfBWBYgRWJzn5WdkumKhQxoo.png?f=fotoalbum_large)
@Pingu007 ik zou toch eens kijken naar het advies van @Floor-is om een schiereiland te maken en ca 120cm ruimte te pakken aan de kant van de openslaande deuren.
[ Voor 8% gewijzigd door SquareOne op 27-12-2021 12:59 ]
Bij ons zeiden ze onafhankelijk van elkaar heel stellig: minimaal een meter maar als het even kan 110 of 120 bij de andere keukenzaak. Ik zit het eens nog heel goed na gaan m of zet thuis en tafel op 65 cm en probeer er dagelijks door heen te wurmen. In een keukenzaak en keer doorheen lopen is heel anders dan thuis.Pingu007 schreef op maandag 27 december 2021 @ 10:46:
[...]
In de showroom hadden ze een kookeiland opstelling met aan 1 kant 65cm doorloop en dat was voor ons prima om doorheen te lopen, vandaar dat we zoiets hadden van het kan.
Aha prima ruimte zo idd!SquareOne schreef op maandag 27 december 2021 @ 12:48:
[...]
Bij ons zit er een erker aan de voorkant waardoor er aan die kant wat meer ruimte is, het muurtje is maar 110cm diep en vanaf daar wordt de ruimte dieper (waar de plant op de render stata). Onze primaire doorloop is ca. 110cm.
[Afbeelding]
@Pingu007 ik zou toch eens kijken naar het advies van @Floor-is om een schiereiland te maken en ca 120cm ruimte te pakken aan de kant van de openslaande deuren.
Met het schiereiland steekt die 65cm uit, das wel echt veel denk ik niet zo mooi voor het zicht...poeh lastig hoor!
https://www.clicktobuy.nl/blogs/news/american-express-welkomstbonus
Heeft er iemand ervaring met de LED strips van Ikea voor in lades en kasten?
https://www.ikea.com/nl/n...lexibel-dimbaar-30304967/
https://www.ikea.com/nl/n...lexibel-dimbaar-30304967/
Yes, altijd even puzzelen. Hoe belangrijk is die wijnkoeler?Pingu007 schreef op maandag 27 december 2021 @ 13:06:
[...]
Aha prima ruimte zo idd!
Met het schiereiland steekt die 65cm uit, das wel echt veel denk ik niet zo mooi voor het zicht...poeh lastig hoor!
Op zich kan een eiland wel in deze ruimte. Maar dan zou ik kijken aar een eiland van 180cm. Dan heb je aan beide kanten een meter doorloop.
Aan de kant van de woonkamer heb je die ruimte nodig omdat het waarschijnlijk de primaire doorloop is. Aan de andere kant heb je die ruimte nodig omdat het de doorgang naar buiten is.
180cm is ook een mooie maat. Kun je voor 3x60cm kastjes gaan of 4x 45.
Aan de kookzijde 50-80-50 lades. Alternatief is 2x90cm zodat je een groter stuk werkblad hebt aan één van de kanten van het eiland. Maar dat is persoonlijk voorkeur.
Aangezien je eettafel tegenover de keuken staat zou ik overwegen het zitje te laten vervallen. Die kwam in het ene ontwerp wél terug en in de andere niet. Dus lijkt meer een ding vanwege looks dan een praktische eis.
Kan die wijnkoeler eventueel onder de oven? Dan kun je bij het spoeldeel 60cm vaatwasser, 60cm spoelkast en iets van 120cm ladekast nemen?
[ Voor 17% gewijzigd door SquareOne op 27-12-2021 13:51 ]
5m60 -/- ( kastenwand (60) + doorloop (100) + eiland (120) ) = over voor tafel
5m60 -/- (60+100+120) = 280 en daarmee al wat krap voor een tafel met serieuze doorloop.
Ik snap dat je niet wilt dat het uitsteekt, maar een schiereiland biedt je echt meer ruimte. Zowel in doorloop als werkruimte trouwens, want je kunt een 2m70 schiereiland kwijt, of eigenlijk niet meer dan 1m80/1m90 aan eiland..
5m60 -/- (60+100+120) = 280 en daarmee al wat krap voor een tafel met serieuze doorloop.
Ik snap dat je niet wilt dat het uitsteekt, maar een schiereiland biedt je echt meer ruimte. Zowel in doorloop als werkruimte trouwens, want je kunt een 2m70 schiereiland kwijt, of eigenlijk niet meer dan 1m80/1m90 aan eiland..
Bericht hierboven
De wijnkoelkast is een must (wijnliefhebbers), die hebben we in onze huidige woning los staan. (kleiner model, die gaat weg)SquareOne schreef op maandag 27 december 2021 @ 13:47:
[...]
Yes, altijd even puzzelen. Hoe belangrijk is die wijnkoeler?
Op zich kan een eiland wel in deze ruimte. Maar dan zou ik kijken aar een eiland van 180cm. Dan heb je aan beide kanten een meter doorloop.
Aan de kant van de woonkamer heb je die ruimte nodig omdat het waarschijnlijk de primaire doorloop is. Aan de andere kant heb je die ruimte nodig omdat het de doorgang naar buiten is.
180cm is ook een mooie maat. Kun je voor 3x60cm kastjes gaan of 4x 45.
Aan de kookzijde 50-80-50 lades. Alternatief is 2x90cm zodat je een groter stuk werkblad hebt aan één van de kanten van het eiland. Maar dat is persoonlijk voorkeur.
Aangezien je eettafel tegenover de keuken staat zou ik overwegen het zitje te laten vervallen. Die kwam in het ene ontwerp wél terug en in de andere niet. Dus lijkt meer een ding vanwege looks dan een praktische eis.
Kan die wijnkoeler eventueel onder de oven? Dan kun je bij het spoeldeel 60cm vaatwasser, 60cm spoelkast en iets van 120cm ladekast nemen?
Hij kan ook prima ergens in de wand, onder de oven is een optie, maar ook links in de hoek ook.
180cm eiland is wellicht niet onverstandig, wordt dat alleen niet te iel? Soms zie je zo'n klein eiland waarvan je denkt wat heeft het voor nut.
Het zitje hadden we er eigenlijk uitgedaan door inderdaad dicht bij de tafel, maar toen de prijs wat te hoog uitviel hadden we zoiets wellicht kan die terug en besparen we op kastjes. Ben het inderdaad eens dat het wellicht iets te dicht op de tafel is, ,maar als we het zitje gebruiken gebruiken we de tafel niet op dat moment en andersom. 50/50 of we dat doen inderdaad.
"Alternatief is 2x90cm zodat je een groter stuk werkblad hebt aan één van de kanten van het eiland."
Hoe bedoel je dat precies? In principe is het eiland dan toch even groot als 50-80-50?
Denk dat we naar 180cm eiland moeten gaan, mits dat niet te iel is.Floor-is schreef op maandag 27 december 2021 @ 14:53:
5m60 -/- ( kastenwand (60) + doorloop (100) + eiland (120) ) = over voor tafel
5m60 -/- (60+100+120) = 280 en daarmee al wat krap voor een tafel met serieuze doorloop.
Ik snap dat je niet wilt dat het uitsteekt, maar een schiereiland biedt je echt meer ruimte. Zowel in doorloop als werkruimte trouwens, want je kunt een 2m70 schiereiland kwijt, of eigenlijk niet meer dan 1m80/1m90 aan eiland..
Qua ruimte is dat net iets minder belangrijk voor ons, zijn met zijn 3-en en hebben niet vaak veel mensen over de vloer bv. Het uitsteken is teveel een dingetje voor ons
EDIT: Zit trouwens nog even te rekenen, maar 383cm ruimte min het eiland van 210 = 173 cm over ipv 140 /2 is ruim 85cm per kantFloor-is schreef op maandag 27 december 2021 @ 10:20:
[...]
Want dan ben je van plan een eiland van 220 te plaatsen in een doorgang van 380, waardoor je de overgebleven 1m40 moet gebruiken voor beide doorlopen: dat is eenvoudigweg niet genoeg tenzij je aan één zijde maar 30-40cm doet.
[ Voor 21% gewijzigd door Pingu007 op 27-12-2021 16:42 ]
https://www.clicktobuy.nl/blogs/news/american-express-welkomstbonus
En voor wat betreft tussen een eiland en een kastenwand met de apparatuur? Mijn verbouwplannen zitten nu op 165cm. Maar dat is wellicht wat veel.joostbo schreef op maandag 27 december 2021 @ 12:51:
[...]
Bij ons zeiden ze onafhankelijk van elkaar heel stellig: minimaal een meter maar als het even kan 110 of 120 bij de andere keukenzaak. Ik zit het eens nog heel goed na gaan m of zet thuis en tafel op 65 cm en probeer er dagelijks door heen te wurmen. In een keukenzaak en keer doorheen lopen is heel anders dan thuis.
Hier stond een link voor een Goldcard 1 jaar gratis + 20.000 punten.
90-90 is qua afmeting uiteraard hetzelfde als 50-80-50. Bedoel echter te zeggen dat je bij 90-90 de kookplaat in één van deze kasten plaatst waardoor je die andere 90cm kast volledig als werkblad kunt gebruiken.Pingu007 schreef op maandag 27 december 2021 @ 16:31:
[...]
De wijnkoelkast is een must (wijnliefhebbers), die hebben we in onze huidige woning los staan. (kleiner model, die gaat weg)
Hij kan ook prima ergens in de wand, onder de oven is een optie, maar ook links in de hoek ook.
180cm eiland is wellicht niet onverstandig, wordt dat alleen niet te iel? Soms zie je zo'n klein eiland waarvan je denkt wat heeft het voor nut.
Het zitje hadden we er eigenlijk uitgedaan door inderdaad dicht bij de tafel, maar toen de prijs wat te hoog uitviel hadden we zoiets wellicht kan die terug en besparen we op kastjes. Ben het inderdaad eens dat het wellicht iets te dicht op de tafel is, ,maar als we het zitje gebruiken gebruiken we de tafel niet op dat moment en andersom. 50/50 of we dat doen inderdaad.
"Alternatief is 2x90cm zodat je een groter stuk werkblad hebt aan één van de kanten van het eiland."
Hoe bedoel je dat precies? In principe is het eiland dan toch even groot als 50-80-50?
[...]
Denk dat we naar 180cm eiland moeten gaan, mits dat niet te iel is.
Qua ruimte is dat net iets minder belangrijk voor ons, zijn met zijn 3-en en hebben niet vaak veel mensen over de vloer bv. Het uitsteken is teveel een dingetje voor ons
[...]
EDIT: Zit trouwens nog even te rekenen, maar 383cm ruimte min het eiland van 210 = 173 cm over ipv 140 /2 is ruim 85cm per kant
Bij 50-80-50 heb je twee stukken werkblad van 50cm.
Ja dan heb je inderdaad een groot werkblad!SquareOne schreef op maandag 27 december 2021 @ 16:48:
[...]
90-90 is qua afmeting uiteraard hetzelfde als 50-80-50. Bedoel echter te zeggen dat je bij 90-90 de kookplaat in één van deze kasten plaatst waardoor je die andere 90cm kast volledig als werkblad kunt gebruiken.
Aangezien nu blijkt dat we zo'n 80/85 cm aan ieder kant hebben (383-210=173/2) met het "grote" eiland hebben we de huidige keuken en eettafel/stoelen en een kastje even zo gezet om te kijken hoe die doorgangen voelen. We zijn allebei vrij rank en onze dochter van 6 uiteraard ook ;-) , dus voorlopig lijkt dat wel okay.
https://www.clicktobuy.nl/blogs/news/american-express-welkomstbonus
Beste mede Tweakers/keuken experts
,
Wij zijn voor onze nieuwbouwwoning ook begonnen met onze zoektocht naar onze (leef)keuken. Hierbij zijn wij bij twee zaken langs geweest met beiden andere adviezen en een andere indeling van de keuken. Omdat wij heel erg twijfelen over welke indeling het beste past in de ruimte waarin de keuken geplaatst wordt, hoop ik dat iemand hier ons van goed advies kan voorzien. Alvast bedankt!!
Het betreft een woning met de tuin op het zuiden waarbij de keuken aan de tuin kant is gesitueerd.
Wij zijn voor onze nieuwbouwwoning ook begonnen met onze zoektocht naar onze (leef)keuken. Hierbij zijn wij bij twee zaken langs geweest met beiden andere adviezen en een andere indeling van de keuken. Omdat wij heel erg twijfelen over welke indeling het beste past in de ruimte waarin de keuken geplaatst wordt, hoop ik dat iemand hier ons van goed advies kan voorzien. Alvast bedankt!!
Het betreft een woning met de tuin op het zuiden waarbij de keuken aan de tuin kant is gesitueerd.
Members only:
Alleen zichtbaar voor ingelogde gebruikers.
Inloggen
[ Voor 13% gewijzigd door Nano2009 op 28-12-2021 09:40 ]
Post even een plattegrond van de woning. Werkt een stuk makkelijker om ook mee te denken over looproutes en waar de tafel moet komen te staan.Nano2009 schreef op maandag 27 december 2021 @ 17:25:
Beste mede Tweakers/keuken experts,
Wij zijn voor onze nieuwbouwwoning ook begonnen met onze zoektocht naar onze (leef)keuken. Hierbij zijn wij bij twee zaken langs geweest met beiden andere adviezen en een andere indeling van de keuken. Omdat wij heel erg twijfelen over welke indeling het beste past in de ruimte waarin de keuken geplaatst wordt, hoop ik dat iemand hier ons van goed advies kan voorzien. Alvast bedankt!!
Het betreft een woning met de tuin op het zuiden waarbij de keuken aan de tuin kant is gesitueerd. Deze ruimte heeft als afmeting: 6,40m x 5,80m.
***members only***
Edit: in de 'pins' in dit topic staan behoorlijk veel keukens ter inspiratie voor nieuwbouwwoningen.
[ Voor 5% gewijzigd door SquareOne op 27-12-2021 17:52 ]
Apparatuur is bij optie 1 wel echt drie slagen beter. Pelgrim is een heel stuk minder dan de top lijn (S8) van Bosch.Nano2009 schreef op maandag 27 december 2021 @ 17:25:
Beste mede Tweakers/keuken experts,
Wij zijn voor onze nieuwbouwwoning ook begonnen met onze zoektocht naar onze (leef)keuken. Hierbij zijn wij bij twee zaken langs geweest met beiden andere adviezen en een andere indeling van de keuken. Omdat wij heel erg twijfelen over welke indeling het beste past in de ruimte waarin de keuken geplaatst wordt, hoop ik dat iemand hier ons van goed advies kan voorzien. Alvast bedankt!!
Het betreft een woning met de tuin op het zuiden waarbij de keuken aan de tuin kant is gesitueerd. Deze ruimte heeft als afmeting: 6,40m x 5,80m.
***members only***
Te veel is niet erg. Net wat je zelf handig vind. Ok daar zal vast en ideale afmeting tussen zitten. Ik heb het met de keukendeuren met name over het minimale gehadMorpheusk schreef op maandag 27 december 2021 @ 16:34:
[...]
En voor wat betreft tussen een eiland en een kastenwand met de apparatuur? Mijn verbouwplannen zitten nu op 165cm. Maar dat is wellicht wat veel.
Zijn er mensen hier die een hue lichtstrip hebben gebruikt bij de plinten?
Ik vraag me af hoe je die moet aanbrengen? Gewoon geplakt? Of in een profiel?
Het nadeel van plakken is dat je de individuele ledjes terugziet in de weerspiegeling op de vloer
Heeft iemand hier ervaring mee?
Ik vraag me af hoe je die moet aanbrengen? Gewoon geplakt? Of in een profiel?
Het nadeel van plakken is dat je de individuele ledjes terugziet in de weerspiegeling op de vloer
Heeft iemand hier ervaring mee?
173 is nog steeds te weinigPingu007 schreef op maandag 27 december 2021 @ 16:31:8<8<
[...]
EDIT: Zit trouwens nog even te rekenen, maar 383cm ruimte min het eiland van 210 = 173 cm over ipv 140 /2 is ruim 85cm per kant
Dan kan je 110/63 doen ofzo. 63 is echt te weinig, 110 is prima voor een doorloop
Een doorloop kleiner dan een deur is te klein, dat is wat je wel aan kunt houden
Wij hebben -zoals de tekeningen nu zijn- 110-115 aan de ene kopse kant en aan de andere 135-140 centimeter. Tussen het eiland en de kastenwand wil je ook weer niet meer dan 115. Ook met de koelkast daar is dit echt genoeg ruimte. De andere kant is bij ons de logische doorloop van de hal naar de achtertuin en dus wil je die iets ruimer
Bericht hierboven
Ik heb hier over nagedacht en geen goede oplossing kunnen bedenken die niet minstens 15mm diep is.LaTiNo156 schreef op maandag 27 december 2021 @ 19:09:
Zijn er mensen hier die een hue lichtstrip hebben gebruikt bij de plinten?
Ik vraag me af hoe je die moet aanbrengen? Gewoon geplakt? Of in een profiel?
Het nadeel van plakken is dat je de individuele ledjes terugziet in de weerspiegeling op de vloer
Heeft iemand hier ervaring mee?
Wat je eigenlijk wilt is dat die leds niet direct op je vloer schijnen, maar via een diffuser. Ik zal het zo even uittekenen om m’n verhaal te verhelderen
Update, 10mm moet ook lukken, de breedte is een groter probleem denk ik.
[ Voor 5% gewijzigd door Floor-is op 27-12-2021 22:11 ]
Bericht hierboven
Ik heb gezien dat je profielen hebt waardoor dr ledjes achter een kunstof semitransparant deel zitten, maar ik vraag me af hoeveel licht er dan nog doorheen schijnt. Die hue strip is niet zo krachtig.Floor-is schreef op maandag 27 december 2021 @ 21:47:
[...]
Ik heb hier over nagedacht en geen goede oplossing kunnen bedenken die niet minstens 15mm diep is.
Wat je eigenlijk wilt is dat die leds niet direct op je vloer schijnen, maar via een diffuser. Ik zal het zo even uittekenen om m’n verhaal te verhelderen
Je hebt ook die andere strip van Hue die in een soort slang lijkt te zitten, misschien dat die al zijn licht meer difuus verspreid.
Floor-is schreef op maandag 27 december 2021 @ 21:47:
[...]
Ik heb hier over nagedacht en geen goede oplossing kunnen bedenken die niet minstens 15mm diep is.
Wat je eigenlijk wilt is dat die leds niet direct op je vloer schijnen, maar via een diffuser. Ik zal het zo even uittekenen om m’n verhaal te verhelderen
Een iets duurder grapje is de Hue Gradient:LaTiNo156 schreef op maandag 27 december 2021 @ 21:52:
[...]
Ik heb gezien dat je profielen hebt waardoor dr ledjes achter een kunstof semitransparant deel zitten, maar ik vraag me af hoeveel licht er dan nog doorheen schijnt. Die hue strip is niet zo krachtig.
Je hebt ook die andere strip van Hue die in een soort slang lijkt te zitten, misschien dat die al zijn licht meer difuus verspreid.
https://www.philips-hue.c...rip-2-meter/8719514339965
Deze heeft niet de "puntjes" die je ziet en geeft een stuk egaler licht. Wel 2x zo prijzig als de reguliere.
[ Voor 4% gewijzigd door Source90 op 27-12-2021 21:55 ]
Ja die bedoel ik, heb je die in actie gezien?Source90 schreef op maandag 27 december 2021 @ 21:54:
Een iets duurder grapje is de Hue Gradient:
https://www.philips-hue.c...rip-2-meter/8719514339965
Deze heeft niet de "puntjes" die je ziet en geeft een stuk egaler licht. Wel 2x zo prijzig als de reguliere.
[YouTube: Philips Hue Gradient Lightstrip Ambiance Review]
Als je goed kijkt zie je wel de puntjes, valt echter veel minder op (meer egaal) dan de reguliere Hue.LaTiNo156 schreef op maandag 27 december 2021 @ 21:56:
[...]
Ja die bedoel ik, heb je die in actie gezien?
Grootste "USP" is natuurlijk dat je meerdere kleuren (en kleurovergang) kan gebruiken op 1 strip, maar of je dat gaat gebruiken in je keuken is een tweede.
Als ze nu nog een versie maken waar ze de Bluetooth uit slopen en wat goedkoper aan kunnen bieden...
----
@LaTiNo156
Eventueel kan je ook kijken naar de buiten variant, daar hoeft ook geen aluminium LED houder onder en geeft ook een egaal licht.
Echter wel nóg lagere lichtopbrengst volgens mij, al scheelt het niet veel.

[ Voor 49% gewijzigd door Source90 op 27-12-2021 22:02 ]
Ik zou ook blij zijn met een witte tinten variant, ik ga toch niet echt fancy kleurtjes gebruiken. Denk ik 😄Source90 schreef op maandag 27 december 2021 @ 21:58:
[...]
Als je goed kijkt zie je wel de puntjes, valt echter veel minder op (meer egaal) dan de reguliere Hue.
Grootste "USP" is natuurlijk dat je meerdere kleuren (en kleurovergang) kan gebruiken op 1 strip, maar of je dat gaat gebruiken in je keuken is een tweede.
Als ze nu nog een versie maken waar ze de Bluetooth uit slopen en wat goedkoper aan kunnen bieden...
Indirect licht is je antwoord, maar een 30mm brede strook frezen.. Dat is flink wat!LaTiNo156 schreef op maandag 27 december 2021 @ 21:52:
[...]
Ik heb gezien dat je profielen hebt waardoor dr ledjes achter een kunstof semitransparant deel zitten, maar ik vraag me af hoeveel licht er dan nog doorheen schijnt. Die hue strip is niet zo krachtig.
Je hebt ook die andere strip van Hue die in een soort slang lijkt te zitten, misschien dat die al zijn licht meer difuus verspreid.
:no_upscale():strip_icc():fill(white):strip_exif()/f/image/b9Vn3PBXBRaAdQtNmrZFhvJN.jpg?f=user_large)
Je kunt ondieper, maar dan wordt het ook minder diffuus. Je kunt smaller, maar dan krijg je weer te geconcentreerd licht. Oh en hoewel je zou denken dat mat plastic minder licht doorlaat: dat valt nogal mee, het is vooral diffuus geworden. Kijk maar eens in dit filmpje naar het stapelen van materialen: YouTube: Diffusing LEDs: From good to GREAT
[ Voor 24% gewijzigd door Floor-is op 27-12-2021 22:52 ]
Bericht hierboven
Dit heb je dan toch ook met een aluminium profiel met semi doorzichtig deksel?Floor-is schreef op maandag 27 december 2021 @ 22:09:
[...]
Indirect licht is je antwoord, maar een 30mm brede strook frezen.. Dat is flink wat!
[Afbeelding]
Die is smaller omdat je de strip tegenover het “deksel” plakt. Als je echter het deksel gebruikt om de strip op de plakken, dan werkt de binnenzijde van de strip als een soort diffuser, in plaats van dat je daar het “deksel” voor gebruikt.LaTiNo156 schreef op maandag 27 december 2021 @ 22:11:
[...]
Dit heb je dan toch ook met een aluminium profiel met semi doorzichtig deksel?
Of dit echter genoeg is.. Dat weet ik niet hoor. Denk dat ik dan toch de dure strip zou kopen
Of heel dat HUE laten vallen een een (berg) 144LED/m strip(s) kopen zelfs
okay genoeg, ik ga weer ontopic hoor
[ Voor 9% gewijzigd door Floor-is op 27-12-2021 22:44 ]
Bericht hierboven
Ik had ergens een hele uitleg gevonden met de gemiddelde staplengte en berekeningen erbij op basis van een eerste stap die nooit meer dan tweederde van je tweede stap is en meer van dat. Maar de conclusie is simpel: je wilt binnen twee stappen comfortabel van de ene naar de andere kant stappen. Een gemiddelde stap voor mij is net meer dan 60cm, dus ‘twee stappen’ is dan 90cm. Je wilt dan binnen maximaal 25cm van je doel af zijn en dus kom ik op 115cm ongeveer.Morpheusk schreef op maandag 27 december 2021 @ 16:34:
[...]
En voor wat betreft tussen een eiland en een kastenwand met de apparatuur? Mijn verbouwplannen zitten nu op 165cm. Maar dat is wellicht wat veel.
165cm is een volle stap meer dan dat en dan wordt het ongemakkelijk, tenzij je continue iemand achter je hebt staan, dan is het juist weer prettig
Bericht hierboven
Dat eerste ontwerp vind ik echt zoveel vetter dan de tweede dat ik daar eigenlijk niet eens meer naar kijk als ik eerlijk ben. Mooi Hongaarse punt ook beide trouwensNano2009 schreef op maandag 27 december 2021 @ 17:25:
Beste mede Tweakers/keuken experts,
Wij zijn voor onze nieuwbouwwoning ook begonnen met onze zoektocht naar onze (leef)keuken. Hierbij zijn wij bij twee zaken langs geweest met beiden andere adviezen en een andere indeling van de keuken. Omdat wij heel erg twijfelen over welke indeling het beste past in de ruimte waarin de keuken geplaatst wordt, hoop ik dat iemand hier ons van goed advies kan voorzien. Alvast bedankt!!
Het betreft een woning met de tuin op het zuiden waarbij de keuken aan de tuin kant is gesitueerd. Deze ruimte heeft als afmeting: 6,40m x 5,80m.
***members only***
Laten we even op een plattegrond wachten verder, want als je keuken 640*580 is, dan kan je echt ONWIJS vette dingen gaan doen, maar als je de ruimte deelt, dan moet je er net even slimmer mee omgaan
(Wij hebben 675*675 minus een blok van ongeveer 250*280)
Bericht hierboven
Hoe verhoudt een Rotpunkt zich qua prijs t.o.v. Nobilia normaal gesproken als je uitgaat van zo'n 6k aan Nobilia meubelen?
https://www.clicktobuy.nl/blogs/news/american-express-welkomstbonus
Zal elkaar weinig ontlopen. Valt in zelfdePingu007 schreef op maandag 27 december 2021 @ 23:08:
Hoe verhoudt een Rotpunkt zich qua prijs t.o.v. Nobilia normaal gesproken als je uitgaat van zo'n 6k aan Nobilia meubelen?
Prijs en kwaliteit klasse. Net als nobilia geen maatwerk.
Let wel nobilia is niet slecht , wij hebben bijna 12 jaar gedaan met onze keuken. Hoogglans folie deurtjes (wel beetje mee oppassen ) en de lades liepen niet altijd soepel. En geen mooie lade afwerking maar voor het geld waren wij er erg tevreden over.
In de eerste post van dit topic vind je een lijstje met alle grote merken en waar ze staan.
Wat is je budget ? Want we kunnen hier wel roepen dat je naar merk X moet kijken maar als je budget hebt voor merk Y is het zinloos natuurlijk.
Ik ben overal tegen. Tot ik een besluit neem, dan ben ik ervoor
Budget tot max 18kmevrouwKees_1 schreef op maandag 27 december 2021 @ 23:26:
[...]
Zal elkaar weinig ontlopen. Valt in zelfde
Prijs en kwaliteit klasse. Net als nobilia geen maatwerk.
Let wel nobilia is niet slecht , wij hebben bijna 12 jaar gedaan met onze keuken. Hoogglans folie deurtjes (wel beetje mee oppassen ) en de lades liepen niet altijd soepel. En geen mooie lade afwerking maar voor het geld waren wij er erg tevreden over.
In de eerste post van dit topic vind je een lijstje met alle grote merken en waar ze staan.
Wat is je budget ? Want we kunnen hier wel roepen dat je naar merk X moet kijken maar als je budget hebt voor merk Y is het zinloos natuurlijk.
Zijn nu bezig met een Nobilia XL easytouch Grafiet Matzwart, die te hoog geprijst was ;-)
https://www.clicktobuy.nl/blogs/news/american-express-welkomstbonus
Bedankt voor de goede tip, ik heb de plattegrond toegevoegd!SquareOne schreef op maandag 27 december 2021 @ 17:43:
[...]
Post even een plattegrond van de woning. Werkt een stuk makkelijker om ook mee te denken over looproutes en waar de tafel moet komen te staan.
Edit: in de 'pins' in dit topic staan behoorlijk veel keukens ter inspiratie voor nieuwbouwwoningen.
Het eerste ontwerp was ook het idee wat wij zelf in ons hoofd hadden zitten. Bij de tweede keuken zaak (van Wanrooij) zat echter een ervaren verkoper en die gaf ons aan dat hij zelf dat ontwerp niet zou adviseren. Dit vanwege het "donkere vlak" (hoge kasten) die tegen de muur aan komen te staan waar je naar kijkt. Het ontwerp wat hij heeft getekend is speelser en luchtiger gaf hij aan.Floor-is schreef op maandag 27 december 2021 @ 22:43:
[...]
Dat eerste ontwerp vind ik echt zoveel vetter dan de tweede dat ik daar eigenlijk niet eens meer naar kijk als ik eerlijk ben. Mooi Hongaarse punt ook beide trouwens
Laten we even op een plattegrond wachten verder, want als je keuken 640*580 is, dan kan je echt ONWIJS vette dingen gaan doen, maar als je de ruimte deelt, dan moet je er net even slimmer mee omgaan
(Wij hebben 675*675 minus een blok van ongeveer 250*280)
p.s. ik had de maten helaas niet helemaal goed ( de genoemde maten waren bij een gespiegelde indeling, wat wij eerst van plan waren ). De daadwerkelijke maten zijn 540x575
Ik heb dit bij een zwevende kast gemaakt. Een U stripje met een melkglas er op. En dan ook iets schuin zodat hij niet recht naar beneden schijnt. Hier bij de Bauhaus kun je ze ook kopen. Ik heb ze destijds elders gekocht.LaTiNo156 schreef op maandag 27 december 2021 @ 19:09:
Zijn er mensen hier die een hue lichtstrip hebben gebruikt bij de plinten?
Ik vraag me af hoe je die moet aanbrengen? Gewoon geplakt? Of in een profiel?
Het nadeel van plakken is dat je de individuele ledjes terugziet in de weerspiegeling op de vloer
Heeft iemand hier ervaring mee?
Dit idee
https://www.ledprofiel.nl...JgvPt1k1iaFBoCxhMQAvD_BwE
Is dat op basis van gevoel of echt feiten? Kun je dat ergens nakijken? Want de een zegt dat Rotpunkt veel hoger is het segment zit dan nobilia. de ander zegt weer dat het gelijk is. het zelfde met häcker en zo nog genoeg voorbeelden.mevrouwKees_1 schreef op maandag 27 december 2021 @ 23:26:
[...]
Zal elkaar weinig ontlopen. Valt in zelfde
Prijs en kwaliteit klasse. Net als nobilia geen maatwerk.
Let wel nobilia is niet slecht , wij hebben bijna 12 jaar gedaan met onze keuken. Hoogglans folie deurtjes (wel beetje mee oppassen ) en de lades liepen niet altijd soepel. En geen mooie lade afwerking maar voor het geld waren wij er erg tevreden over.
In de eerste post van dit topic vind je een lijstje met alle grote merken en waar ze staan.
Wat is je budget ? Want we kunnen hier wel roepen dat je naar merk X moet kijken maar als je budget hebt voor merk Y is het zinloos natuurlijk.
Wij hebben uiteindelijk rotpunkt gekozen omdat het een prima prijs-kwaliteit is (tijd zal het leren of het echt zo is natuurlijk) maar met name de afwerking, ook als je bijvoorbeeld in de laden kijkt en de achterpanelen, is gewoon erg goed (voor het geld). Nobilia heb ik geen ervaring mee. maar tov Hacker lag dit gevoelsmatig gewoon gelijk (ook qua prijs overigens deed het weinig over van elkaar)
Zal even kijken wanneer het me lukt, maar ik ga wel wat tekenen vandaag hoop ikNano2009 schreef op dinsdag 28 december 2021 @ 08:42:
[...]
Bedankt voor de goede tip, ik heb de plattegrond toegevoegd!
Ervaren verkopers kunnen ook gewoon luie ratten zijn[...]
Het eerste ontwerp was ook het idee wat wij zelf in ons hoofd hadden zitten. Bij de tweede keuken zaak (van Wanrooij) zat echter een ervaren verkoper en die gaf ons aan dat hij zelf dat ontwerp niet zou adviseren. Dit vanwege het "donkere vlak" (hoge kasten) die tegen de muur aan komen te staan waar je naar kijkt. Het ontwerp wat hij heeft getekend is speelser en luchtiger gaf hij aan.
p.s. ik had de maten helaas niet helemaal goed ( de genoemde maten waren bij een gespiegelde indeling, wat wij eerst van plan waren ). De daadwerkelijke maten zijn 540x575
Je moet soms een risico nemen om een ontwerp om te gooien, juist zodat je afwijkt van het normale en iets speels maakt. De “pilaren met blad ertussen” opstelling vind ik weliswaar gemiddeld mooi, maar dan moet je ook daar wel wat leuks mee doen. Maak er een nis van (dus bovenkastjes), doe iets met een contrasterende kleur, heb een beetje lef.
Dat gezegd hebbende: die wand kan je in een andere kleur uitvoeren inderdaad. In hout, in klabam-wit, je kunt de kasten in een nis maken, je kunt de kasten ‘optillen en uit de wand laten komen’, er is echt een boel mogelijk om het iets moois en bijzonders te maken. Okay een beetje afhankelijk van het budget wel natuurlijk
Je hebt 3 meter aan muur waar op de eerste tekening die wand ingetekend is, dat is net geen 5 kasten door de stollen wand en het passtuk, maar dus wel easy 4 kasten en ruimte over.
Hoe ver zijn jullie qua huis? Staan de leidingen al min of meer vast of is er nog mogelijkheid daarin zaken om te gooien?
[ Voor 8% gewijzigd door Floor-is op 28-12-2021 09:36 ]
Bericht hierboven
Let op:
Dit topic kan gebruikt worden voor het volgende:
• Vragen over de keuken, denkend aan indeling, materialen, kastjes, apparatuur, etc.
• Welke kastjes, aanrechtbladen en apparatuur te kiezen
• Ervaringen met verkopers en keukenboeren
• Tips & Tricks denk hierbij aan hulp bij het zelf installeren en onderhouden van de keuken.
• Jouw indeling. Plaats gerust een foto of tekening, maar maak het niet te bont met hele buildlogs.
Voor badkamers: Het Badkamer topic: verkopers, kwaliteit, prijs - Deel 1
Showen met je keuken kan hier: Tweakers Keuken showroom! - Vestiging 1
Dit topic kan gebruikt worden voor het volgende:
• Vragen over de keuken, denkend aan indeling, materialen, kastjes, apparatuur, etc.
• Welke kastjes, aanrechtbladen en apparatuur te kiezen
• Ervaringen met verkopers en keukenboeren
• Tips & Tricks denk hierbij aan hulp bij het zelf installeren en onderhouden van de keuken.
• Jouw indeling. Plaats gerust een foto of tekening, maar maak het niet te bont met hele buildlogs.
Voor badkamers: Het Badkamer topic: verkopers, kwaliteit, prijs - Deel 1
Showen met je keuken kan hier: Tweakers Keuken showroom! - Vestiging 1