• MacbookProx
  • Registratie: September 2011
  • Laatst online: 22-03 00:35
Strider schreef op donderdag 2 december 2021 @ 22:00:
Ik moet dit weekend voor mijn nieuwbouwhuis de technische tekening van de keuken gaan opleveren. De tekening ga ik laten maken, maar ik twijfel over het kookeiland, ik twijfel tussen 2.4m, 2.5m en 2.6m.

Stel ik dien een technische tekening in met een eiland van 2.5m, maar ik kies later toch voor een 2.4m of 2.6m eiland, kan ik dan in de problemen komen met de installatie van de keuken?
Neuh, of je dat eiland creëert met 4x60 of 5x50, of anders, maakt natuurlijk niet uit. Een kastje op de kop die 50 breed was, die 60 wordt geen probleem natuurlijk.

Wil je er een spoelbak in, moet je afvoer liefst beetje uitkomen, je elektrakabel voor inductie is vast lang zat.

  • Renoir
  • Registratie: Maart 2014
  • Laatst online: 12:47
sNielz123 schreef op donderdag 2 december 2021 @ 17:50:
@Markus29 Hoe groot is je eiland? Het oogt wat klein. Ik zou eerder voor een langer schiereiland gaan. En dan inderdaad koken op het eiland zodat je de ruimte in kijkt.

Edit: Gaat je eettafel ook in die ruimte komen? Hoe groot is de ruimte?
Dat zou ik ook doen. Heb je zo een meter extra aan werkruimte en je krijgt ook een logische hoek om de twee hoge kasten tegen elkaar aan te plaatsen. Denk dat je daar erg blij van gaat worden.

  • Floor-is
  • Registratie: Maart 2000
  • Laatst online: 05-05 07:56
Markus29 schreef op donderdag 2 december 2021 @ 10:20:
Hallo allemaal,

Na redelijke tijd hier lurken zijn we inmiddels ook bezig zelf een keuken uit te zoeken.
We zijn bij Keukensale geweest en onze eerste indruk was wel goed.

[Afbeelding][Afbeelding]


VaatwasserSiemens IQ500 SN85E800BE
KookplaatAEG IAE84411FB
OvenAEG Steampro combi BSK798280B
AfzuigkapAEG wandafzuigkap DBB5960HM
KoelkastZanussi ZRAK12FS


Voor deze keuken met keramiek keukenblad hebben we een offerte van €12.500, dat is best redelijk toch?
Alleen de koelkast nog even veranderen in een zuiniger model (D of E).
Twijfel ook nog om het spoeleiland te veranderen in kookeiland met een kookplaat met afzuiging. De keuken komt in een nieuwe aanbouw dus de leidingen zijn nog redelijk makkelijk weg te werken.
Zo snel kijkend heb je 3m ter beschikking right? 5 kasten tegen die wand. Hoe klein wordt dat eiland dan? 1m80 heb je wel nodig voor drie barkrukken namelijk.

12.5k is niet veel geld, maar als je een onhandige keuken krijgt is het wel duur :)

Ik zou nog eens een andere tekening laten maken ergens, er moet echt meer uit de ruimte te halen zijn!

Edit:
Een U-opstelling met aan de lange wand (inderdaad) de hoge kasten, werkblad vanaf daar en dan de hoek om onder dat raam, maar een schiereiland toe. Dan zou je wat mij betreft die ruimte onder het raam niet moeten gebruiken voor het spoelen overigens, anders sta je elkaar flink in de weg als er gekookt wordt en zit je te klooien met de vaatwasser ook. :)

[ Voor 10% gewijzigd door Floor-is op 03-12-2021 12:44 ]

Bericht hierboven


  • olafmol
  • Registratie: April 2002
  • Laatst online: 17:23
Heeft er iemand advies voor een bedrijf in regio Utrecht die maatwerk-keukens kan ontwerpen, en bij voorkeur ook als project, incl al het werk eromheen (stucen, muren, stroom, etc.) kan oppakken, dus een "one stop shop". Er zijn er best wel wat te vinden, maar positieve ervaringen/referenties van mede-tweakers wegen zwaar ;)

BVD!

  • joostbo
  • Registratie: Juni 2021
  • Laatst online: 29-04 18:58
olafmol schreef op vrijdag 3 december 2021 @ 15:02:
Heeft er iemand advies voor een bedrijf in regio Utrecht die maatwerk-keukens kan ontwerpen, en bij voorkeur ook als project, incl al het werk eromheen (stucen, muren, stroom, etc.) kan oppakken, dus een "one stop shop". Er zijn er best wel wat te vinden, maar positieve ervaringen/referenties van mede-tweakers wegen zwaar ;)

BVD!
Je zoekt dus gewoon een aannemer. Er is geen keukenzaak die dat zelf gaat doen. Besteden ze gewoon uit. En ze laten jou betalen voor het voor het gemak. Hebben ook gewoon een paar stukadoorsbedrijven die ze bellen. Die gene met de beste prijs en tijd mag het dan doen..maar ze rekenen aan jou gewoon een fors bedrag door aan jou. Ik kies liever zelf mijn stukadoor of installateur, dan weet ik tenminste zelf wie er echt komt. Dan weet ik de kwaliteiten, Kan ik nog van alles doorspreken, flexibeler en goedkoper.

Maar als je dat te veel gedoe vind om een installateur of stukadoor te bellen kan denk ik elke keukenzaak wel iets regelen en anders aannemer bellen. Maar vele hebben daar geen trek in. Schoenmaker blijf bij je leest 😉

[ Voor 3% gewijzigd door joostbo op 03-12-2021 17:31 ]


  • LaTiNo156
  • Registratie: Januari 2003
  • Laatst online: 07-05 18:33
joostbo schreef op vrijdag 3 december 2021 @ 17:28:
[...]


Je zoekt dus gewoon een aannemer. Er is geen keukenzaak die dat zelf gaat doen. Besteden ze gewoon uit. En ze laten jou betalen voor het voor het gemak. Hebben ook gewoon een paar stukadoorsbedrijven die ze bellen. Die gene met de beste prijs en tijd mag het dan doen..maar ze rekenen aan jou gewoon een fors bedrag door aan jou. Ik kies liever zelf mijn stukadoor of installateur, dan weet ik tenminste zelf wie er echt komt. Dan weet ik de kwaliteiten, Kan ik nog van alles doorspreken, flexibeler en goedkoper.

Maar als je dat te veel gedoe vind om een installateur of stukadoor te bellen kan denk ik elke keukenzaak wel iets regelen en anders aannemer bellen. Maar vele hebben daar geen trek in. Schoenmaker blijf bij je leest 😉
Je hebt ook keukenzaken zoals DB Keukens die hun eigen vaste aannemers hebben waar ze goede ervaringen mee hebben. Anderen zoeken idd de eerste de beste oostblokker die geen Nederlands spreekt.
Maar dat kun je vooraf naar vragen.

Het nadeel als je het zelf gaat regelen is dat als er een schakel tussenuit valt dat JIJ een vervanger moet regelen, wat never nooit lukt last minute, en dan staan ze daar voor je deur met de keuken terwijl de vloer nog niet is gelegd....

  • XQ!
  • Registratie: Juni 2018
  • Laatst online: 05-12-2025

XQ!

We zijn al een tijdje aan het kijken naar een keuken voor in ons nieuwbouwhuis en hebben een Siematic SLX keuken met LED verlichting rondom het eiland en kastenwand op het oog. Dit hebben wij in de afgelopen weken verder uitgewerkt met een partij en we kwamen tot de volgende opstelling:

Afbeeldingslocatie: https://tweakers.net/i/1d59Yh-J70SRtp4B-GvSujOjaiI=/x800/filters:strip_exif()/f/image/rI23oD72gH0Bc1S3i8M0CeqK.png?f=fotoalbum_large

De keuken is circa 323 cm breed, wat aan de krappe kant is voor een kookeiland. Wij willen daarom een deel van de muur (wat aangrenst met de hal) 20 cm verder verschuiven richting de hal, zodat we iets meer ruimte hebben in ons keuken. Nu is 343 cm ook niet royaal voor een kookeiland, maar wij vinden het wel prima zo. Tussen de kastenwand en kookeiland zit 100 cm en aan de andere kant van het eiland zit 85 cm, wat prima is aangezien het geen hoofd doorlooproute is.

Qua apparatuur en werkblad hebben wij het volgende uitgekozen:
Apparatuur
  • Siemens iQ700 Stoomoven (CS856GNB7)
  • Siemens iQ700 Combi Oven (CM876G0B6)
  • Siemens iQ500 Koelvries (KI86NHDF0)
  • Siemens iQ300 Vaatwasser (SN63H800BE)
  • Siemens iQ700 Warmhoudlade 2x (BI830CNB1)
  • Bora X Pure
  • Quooker Fusion Pro3 RVS
Werkblad
  • Jetstone / Arte keramisch blad marmerlook (270 cm x 95 cm)
Met deze opstelling komen we uit op een totaal prijs van €30k, waarvan ongeveer:
  • €16.5k aan keukenmeubelen
  • €8.5k aan apparatuur
  • €3k aan werkblad
  • €2k aan montagekosten
Nou is de grote vraag natuurlijk, is dit een degelijke prijs of kan er nog wel wat van af?

[ Voor 47% gewijzigd door XQ! op 12-01-2023 18:48 ]


  • Source90
  • Registratie: December 2008
  • Laatst online: 20:23
XQ! schreef op vrijdag 3 december 2021 @ 18:39:
We zijn al een tijdje aan het kijken naar een keuken voor in ons nieuwbouwhuis en hebben een Siematic SLX keuken met LED verlichting rondom het eiland en kastenwand op het oog. Dit hebben wij in de afgelopen weken verder uitgewerkt met een partij en we kwamen tot de volgende opstelling:

[Afbeelding]

De keuken is circa 323 cm breed, wat aan de krappe kant is voor een kookeiland. Wij willen daarom een deel van de muur (wat aangrenst met de hal) 20 cm verder verschuiven richting de hal, zodat we iets meer ruimte hebben in ons keuken. Nu is 343 cm ook niet royaal voor een kookeiland, maar wij vinden het wel prima zo. Tussen de kastenwand en kookeiland zit 100 cm en aan de andere kant van het eiland zit 85 cm, wat prima is aangezien het geen hoofd doorlooproute is.

Zie renders hieronder. Overigens, let niet op de verschillende kleuren, het is nog work in progress :)

[Afbeelding]

[Afbeelding]

[Afbeelding]

Qua apparatuur en werkblad hebben wij het volgende uitgekozen:


[...]


Met deze opstelling komen we uit op een totaal prijs van €30k, waarvan ongeveer:
  • €16.5k aan keukenmeubelen
  • €8.5k aan apparatuur
  • €3k aan werkblad
  • €2k aan montagekosten
Nou is de grote vraag natuurlijk, is dit een degelijke prijs of kan er nog wel wat van af?

Overigens horen we graag ook jullie meningen over het ontwerp, en dan met name over de volgende punten:
  • De afstand tussen Bora kookplaat en spoelbak is nu ongeveer 125 cm, wat wij zeer fijn vinden qua werkruimte. Echter zijn we ons ook van bewust dat het qua spoelen minder praktisch vanwege de korte afstand (circa 3.5 cm) tot de rand. Met de kookplaat hebben wij minder problemen mee aangezien we toch vaak de rechterkant van de kookplaat gebruiken. Een alternatief is om 120 cm (Bora) - 60 cm (vaatwasser) - 90 cm (spoelbak) als onderkasten te gebruiken, maar dan hebben wij maar 96 cm werkblad ertussen. Hoe denken jullie erover?
  • In het ontwerp hebben we maar 1 ladekast van 90 cm onder de kookplaat maar er is wel veel kastruimte aan de kastenwand. Een optie is om van de 60 cm onderkast tussen de kookplaat en vaatwasser een ladekast te maken. Is dit nodig denken jullie of hebben we wel genoeg aan de kastenwand?
  • Qua lijnenspel aan de kastenwand twijfelen we nog over de positie van de SLX greeplijst met LED verlichting tussen de twee ovens in. Wat ons wellicht ook wel mooier lijkt is om de middelste greeplijst te verwijderen om vervolgens aan de linkerkant en rechterkant van de ovens een greeplijst toe te voegen. Heb de optie hieronder toegevoegd. Het is nogal een persoonlijke mening natuurlijk, maar we horen graag jullie suggesties!
  • Tot slot willen we graag een ombouw en de kastenwand "zwevend" in te bouwen, zodat het als het ware 10 cm uit de muur steekt. Dit zorgt er natuurlijk wel voor dat de ruimte kleiner wordt - hoe denken jullie hierover?
Hartelijk dank voor alle tips, meningen en suggesties alvast! :)

[Afbeelding]
Qua apparatuur wel een redelijke prijs. Je zit voor enkel het Siemens deel al aan de 9k. Daar komt nog een BORA en Quooker bij.

Alleen vind ik de vaatwasser een beetje vreemde eend in de bijt. Je warmhoudlade is bijna even duur als deze IQ300 vaatwasser.
Maar wellicht dat dit model voor de rest helemaal aan de eisen voldoet. :)

----

Als de vaatwasser open staat (of een oven) kan je er mijns inziens niet meer lekker langs met die 100cm ruimte. Ga je de andere zijde enkel als doorgang gebruiken, of ook een bar-idee? Voor doorgang zou ik dit kleiner maken zodat je aan de "hoofdzijde" meer ruimte hebt tussen kastenwand en eiland.

Zou de kraan ook niet op de kopse kant doen, geheid dat dit continue spettert op de grond. Eventueel het eiland iets langer maken met 30cm aan de kopse kant naast de kraan?

[ Voor 4% gewijzigd door Source90 op 03-12-2021 19:02 ]


  • Ladypurple
  • Registratie: Maart 2021
  • Laatst online: 18:57
XQ! schreef op vrijdag 3 december 2021 @ 18:39:
We zijn al een tijdje aan het kijken naar een keuken voor in ons nieuwbouwhuis en hebben een Siematic SLX keuken met LED verlichting rondom het eiland en kastenwand op het oog. Dit hebben wij in de afgelopen weken verder uitgewerkt met een partij en we kwamen tot de volgende opstelling:

[Afbeelding]

De keuken is circa 323 cm breed, wat aan de krappe kant is voor een kookeiland. Wij willen daarom een deel van de muur (wat aangrenst met de hal) 20 cm verder verschuiven richting de hal, zodat we iets meer ruimte hebben in ons keuken. Nu is 343 cm ook niet royaal voor een kookeiland, maar wij vinden het wel prima zo. Tussen de kastenwand en kookeiland zit 100 cm en aan de andere kant van het eiland zit 85 cm, wat prima is aangezien het geen hoofd doorlooproute is.

Zie renders hieronder. Overigens, let niet op de verschillende kleuren, het is nog work in progress :)

[Afbeelding]

[Afbeelding]

[Afbeelding]

Qua apparatuur en werkblad hebben wij het volgende uitgekozen:


[...]


Met deze opstelling komen we uit op een totaal prijs van €30k, waarvan ongeveer:
  • €16.5k aan keukenmeubelen
  • €8.5k aan apparatuur
  • €3k aan werkblad
  • €2k aan montagekosten
Nou is de grote vraag natuurlijk, is dit een degelijke prijs of kan er nog wel wat van af?

Overigens horen we graag ook jullie meningen over het ontwerp, en dan met name over de volgende punten:
  • De afstand tussen Bora kookplaat en spoelbak is nu ongeveer 125 cm, wat wij zeer fijn vinden qua werkruimte. Echter zijn we ons ook van bewust dat het qua spoelen minder praktisch vanwege de korte afstand (circa 3.5 cm) tot de rand. Met de kookplaat hebben wij minder problemen mee aangezien we toch vaak de rechterkant van de kookplaat gebruiken. Een alternatief is om 120 cm (Bora) - 60 cm (vaatwasser) - 90 cm (spoelbak) als onderkasten te gebruiken, maar dan hebben wij maar 96 cm werkblad ertussen. Hoe denken jullie erover?
  • In het ontwerp hebben we maar 1 ladekast van 90 cm onder de kookplaat maar er is wel veel kastruimte aan de kastenwand. Een optie is om van de 60 cm onderkast tussen de kookplaat en vaatwasser een ladekast te maken. Is dit nodig denken jullie of hebben we wel genoeg aan de kastenwand?
  • Qua lijnenspel aan de kastenwand twijfelen we nog over de positie van de SLX greeplijst met LED verlichting tussen de twee ovens in. Wat ons wellicht ook wel mooier lijkt is om de middelste greeplijst te verwijderen om vervolgens aan de linkerkant en rechterkant van de ovens een greeplijst toe te voegen. Heb de optie hieronder toegevoegd. Het is nogal een persoonlijke mening natuurlijk, maar we horen graag jullie suggesties!
  • Tot slot willen we graag een ombouw en de kastenwand "zwevend" in te bouwen, zodat het als het ware 10 cm uit de muur steekt. Dit zorgt er natuurlijk wel voor dat de ruimte kleiner wordt - hoe denken jullie hierover?
Hartelijk dank voor alle tips, meningen en suggesties alvast! :)

[Afbeelding]
Ik zou een parallelopstelling maken met verdiept werkblad. Nadeel, grotere Afstand tot koelkast , voordeel een werkbare keuken.
O en geen afzetruimte bij een koelkast is vervelend.

  • sNielz123
  • Registratie: Maart 2009
  • Laatst online: 14:46
@XQ! Het lijkt er vooral op dat je een eiland wilt om een eiland te hebben. Parralel heb je een een veel mooiere en handigere doorloop.
Een eiland zou je m.i. moeten nemen om met je gezicht richting de open ruimte te koken/snijden/etc.. Nu kijk je alsnog tegen een muur op.

Maar goed, op een feestje kan je wel zeggen dat je een eiland hebt, is misschien ook wat waard :)

  • Toke_gt
  • Registratie: Juni 2021
  • Laatst online: 15:10
XQ! schreef op vrijdag 3 december 2021 @ 18:39:

Overigens horen we graag ook jullie meningen over het ontwerp, en dan met name over de volgende punten:,
  • maar dan hebben wij maar 96 cm werkblad ertussen. Hoe denken jullie erover?
Misschien niet zo leuk om te horen, maar ik vind dat er in dit ontwerp veel te veel aandacht is gegeven aan lijnenspel, greeplijsten, symmetrie en andere visuele aspecten, en veel te weinig aan praktisch gemak. Anders gezegd: ik snap niet goed waarom je kiest voor een eiland. Je levert heel veel ruimte in en krijgt er eigenlijk niets voor terug. Alles moet wijken voor het eiland. Je hebt 12m2 keuken, en maar 1 m2 werkblad. En er is veel loopruimte om aan de andere kant van het eiland te komen, terwijl je daar bijna niets hebt.
Met een parallelopstelling, of een IJ (parallel met een klein stukje eraan voor een barretje) heb je veel meer werkblad en loop/bewegingsruimte, maar het is ook uitnodigender om bijvoorbeeld samen te koken of om iemand in de keuken gezelschap te houden.

Paar praktische bezwaren:
  • De loopruimte achter het eiland is uitsluitend om bij de kastjes van 35 cm diep te kunnen komen. Daar kom je niet heel makkelijk bij, gezien de beperkte bewegingsruimte (85 cm) en rekening houdend met te openen kastdeurtjes.
  • 1 m tussen eiland en kastenwand is erg minimaal. Als er iemand aan het eiland staat, kan een ander er niet heel makkelijk achterlangs. Ik vind dat zonde, omdat je op zich met 3.23 echt ruimte genoeg hebt om met meer mensen tegelijk in de keuken te werken.
  • Je hebt voor zo’n grote keuken relatief weinig werkbladruimte. Alle ruimte bevindt zich bovendien op het eiland. Dat maakt het snel rommelig. Het is de ruimte waar je de vaat, maar ook apparaten en boodschappen etc kwijt moet. Dan is 96 cm of 120 echt veel te weinig.
  • De vaatwasser staat tussen spoelbak en kookplaat. Omdat je daar niet al te veel ruimte hebt, staat ie dus altijd letterlijk in de weg als ie open staat. Dat wil je echt niet.
  • Waar laat je je koffieapparaat, of waterkoker, airfryer etc Daar zou ik zelf een mooie apparatenkast voor reserveren, met deuren die je aan de zijkanten inschuift. De apparaten gebruik je dan in de kast. Sowieso mis ik wat dat betreft de luxe snufjes voor een keuken van 30K.
  • Je kookplaat en spoelbak zitten helemaal aan de rand. Dat kan ook echt niet anders, maar het is fijner werken als je wat extra ruimte hebt rondom met name de spoelbak.
  • Ik zou de kastenwand tegen de andere wand plaatsen om de kasten vrij te hangen. Je lijkt daar meer ruimte te hebben om een voorzetwand te plaatsen om dat effect te bereiken. Scheelt ook een hoop breekwerk naar de gang. Met een parallelle opstelling hoeft dat sowieso niet.

[ Voor 4% gewijzigd door Toke_gt op 03-12-2021 20:56 ]


  • DrNizeGuy
  • Registratie: Augustus 2000
  • Laatst online: 20:31
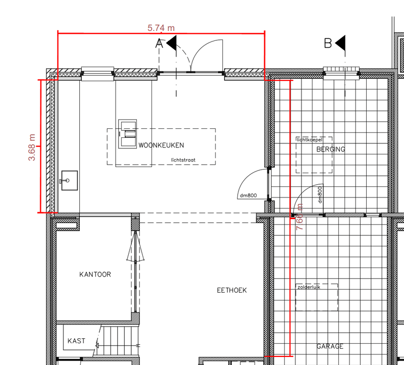
DrNizeGuy schreef op maandag 29 november 2021 @ 22:42:
Ook wij moeten er aan geloven.
Waar wij in eerste instantie voor een "simpele" L vorm keuken zouden gaan, heeft mevrouw nu besloten dat er een muur doorgebroken moet worden (daar waar het schiereiland in de tekening staat). Dit geeft "een ruimtelijker gevoel" en hierdoor wil ze de keuken bij de rest van de kamer betrekken. Zelf heeft ze met behulp van de ikea planner een model gemaakt:

[Afbeelding]

[Afbeelding]

In de twee kasten links moet een vriezer en koelkast komen, vaatwasser rechts van de spoelbak. Los inductiefornuis met dampkamp (niet getekend) en blad van composiet. Zelf vraag ik me af of dat schiereiland echt handig is omdat het toch nogal uitsteekt tov de muur. Het idee erachter is dat je de kastjes aan de woonkamer kant kan gebruiken voor andere zaken. Is deze indeling ook echt praktisch?

Daarnaast is het budget beperkt (15k). Bij de Ikea gaat dit wel lukken maar ik wil liever een 'echte' keuken en ga niet zelf alles in elkaar zetten en als ik de prijzen hier voorbij zie komen dan wordt dat erg lastig denk ik :')
Afgelopen week druk bezig geweest en diverse zaken bezocht.
Met het begrote budget van 15K kwamen we wel bedrogen uit. -O- Ja, zonder apparatuur en blad :')

Diverse offertes laten maken. Probleem is enigszins dat wij de keuken in maart willen hebben maar voor veel merken is april al niet meer haalbaar. Maar los van dat, liggen de prijzen niet ver uit elkaar. Waar we bij de meeste zaken wel op uitkomen is een Pronorm keuken; deze kunnen nog leveren in maart en vinden wij ook een van de mooiere deurtjes hebben.
Dit maakt het vergelijken wél weer makkelijker want geen appels en peren (zelfde opstelling/deurtjes/etc).

conclusie:
Members only:
Alleen zichtbaar voor ingelogde gebruikers. Inloggen


Gelukkig hebben we van de week ook een financiële meevaller gehad dus er is wel meer speling.
Echter het blad lijkt mij wat aan de ruime kant?
Daarbij, aangezien het blad uit verschillende delen bestaat, kwamen zij met deze opdeling:
Afbeeldingslocatie: https://tweakers.net/i/ZczXJN9XCXuLK3AaqGagq0AkLBA=/800x/filters:strip_icc():strip_exif()/f/image/lonJUBOq0qlF7NLewio5RBPH.jpg?f=fotoalbum_large

Echter lijkt het ons mooier om het zo op te delen:
Afbeeldingslocatie: https://tweakers.net/i/661QAvd9U__dOZT3nsfQlDxy94c=/800x/filters:strip_icc():strip_exif()/f/image/IEy40BaBa88jf3JlgDJMmtRQ.jpg?f=fotoalbum_large

Is dit optisch ook mooier of zie je dit niet? ik heb totaal geen ervaringen met composiet en kitnaden.

  • olafmol
  • Registratie: April 2002
  • Laatst online: 17:23
joostbo schreef op vrijdag 3 december 2021 @ 17:28:
[...]


Je zoekt dus gewoon een aannemer. Er is geen keukenzaak die dat zelf gaat doen. Besteden ze gewoon uit. En ze laten jou betalen voor het voor het gemak. Hebben ook gewoon een paar stukadoorsbedrijven die ze bellen. Die gene met de beste prijs en tijd mag het dan doen..maar ze rekenen aan jou gewoon een fors bedrag door aan jou. Ik kies liever zelf mijn stukadoor of installateur, dan weet ik tenminste zelf wie er echt komt. Dan weet ik de kwaliteiten, Kan ik nog van alles doorspreken, flexibeler en goedkoper.

Maar als je dat te veel gedoe vind om een installateur of stukadoor te bellen kan denk ik elke keukenzaak wel iets regelen en anders aannemer bellen. Maar vele hebben daar geen trek in. Schoenmaker blijf bij je leest 😉
Check. Ik heb idd geen zin om dat allemaal zelf te gaan organiseren en coördineren. Maar je hebt een punt dat idd een aannemer de eerste stap is, en dan wordt de keuken onderdeel van het project. Idealiter werkt dan de keuken ontwerper/leverancier “onder regie” van de aannemer.

Mensen nog tips voor goede keukenontwerpers in regio Utrecht die in zo’n constructie goed kunnen werken?

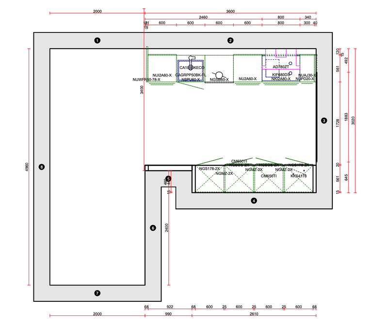
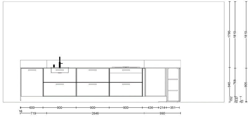
  • colvano
  • Registratie: Juni 2011
  • Laatst online: 06-04 20:32
Wij zijn ook al een tijdje bezig met het samenstellen van een keuken en komen dichtbij het moment van bestellen. De indeling zijn we uit en lijkt ons optimaal in de ruimte.

Plattegrond van de woonkamer/keuken (keuken is ter indicatie ingetekend en komt niet helemaal overeen):
Afbeeldingslocatie: https://tweakers.net/i/Jc8K0E1MUmldfkfhy8VPlaOuEAU=/full-fit-in/4000x4000/filters:no_upscale():fill(white):strip_exif()/f/image/R8iRA7x8fs71nvdXj5hXnoxq.png?f=user_large

Voorgenomen indeling keuken:
Afbeeldingslocatie: https://tweakers.net/i/2TgzPsMEWyCfgILwyAWrOzB8MFo=/800x/filters:strip_exif()/f/image/i0XVLRUwFtKELb31lhLG64Fx.png?f=fotoalbum_large

De vooraanzichten en de renders (renders zijn beetje matig, vooral de kleur en grepen wijken erg af):
Afbeeldingslocatie: https://tweakers.net/i/irRJzNTPDlfMqPygPfEuDK_TirE=/800x/filters:strip_exif()/f/image/1ewE5qv5sktudkksWOsxEbKk.png?f=fotoalbum_large

Afbeeldingslocatie: https://tweakers.net/i/zPqW1pm_fYL1r5Otr0NMe8SY348=/x800/filters:strip_exif()/f/image/uxpElp8RjBj34um18JqcOLVf.png?f=fotoalbum_large

Het raam is niet zwart. Dat vond de keukenverkoper wellicht een leuke kleur. Deze is gewoon wit en met een wat rustigere indeling. Wel ongeveer die grote.

Afbeeldingslocatie: https://tweakers.net/i/f4TtzcrlzEYnoMdT7JDp6EQiAFA=/800x/filters:strip_exif()/f/image/SqKmuJzVLLLBIjLPQXUAOpo0.png?f=fotoalbum_large

Afbeeldingslocatie: https://tweakers.net/i/H2GXyQMWLXsX_3x27ht5PK_EZsY=/full-fit-in/4000x4000/filters:no_upscale():fill(white):strip_exif()/f/image/WFZrLKCT22Vg8ob8Hu7V4LGy.png?f=user_large

Afbeeldingslocatie: https://tweakers.net/i/lMKrgxKlRJyJP8irxM_B8hws7w0=/800x/filters:strip_exif()/f/image/jjHpwGI882CJjJir7kJggMxA.png?f=fotoalbum_large

Het voornaamste doel nu is nog wat van de prijs af krijgen. Deels door wat scherper te onderhandelen maar de rek is er wel bijna uit. Dit merken we door te vergelijken bij verschillende aanbieders van exact dezelfde keuken. Overzicht van de samenstelling:
Afbeeldingslocatie: https://tweakers.net/i/uQr9b3TITlf8AtN6kVKYSNU-iMY=/full-fit-in/4920x3264/filters:max_bytes(3145728):no_upscale():strip_icc():fill(white):strip_exif()/f/image/VlOcaoSJyGmboR5uovwLbxdT.jpg?f=user_large

Wellicht ziet iemand nog iets vreemds waar wij overheen gekeken hebben. Anders is het wellicht inspiratie voor iemand anders. :) Het enige waar we nog naar gaan kijken is het inkorten van de lange kant van 330cm naar 320 cm. Dan kan het blad tot het schiereiland uit één stuk worden gemaakt. Dan maken we onder de spoelbak ook een kastje en worden de twee naastgelegen laden 100cm ipv 90 cm.

  • Toke_gt
  • Registratie: Juni 2021
  • Laatst online: 15:10
DrNizeGuy schreef op vrijdag 3 december 2021 @ 21:17:
[...]
Echter lijkt het ons mooier om het zo op te delen:
Ik vind het ontwerp van de leverancier beter. Het werkblad in de hoek ga je in de volle breedte gebruiken. Het stukje naast het kookgedeelte is alleen uitloop van je kookplaat. Je zet er een pan op, legt er een lepel neer etc. Dan is het mooier, logischer en qua schoonmaak ook praktischer om het werkblad langs de muur aan een stuk te nemen en de kit naad daaraan grenzend. Niet dwars eroverheen.
Los daarvan: mocht je ooit de keuken willen veranderen, dan kan dat makkelijker met dat losse stukje werkblad naast je kookplaat.

  • Ladypurple
  • Registratie: Maart 2021
  • Laatst online: 18:57
colvano schreef op vrijdag 3 december 2021 @ 21:36:
Wij zijn ook al een tijdje bezig met het samenstellen van een keuken en komen dichtbij het moment van bestellen. De indeling zijn we uit en lijkt ons optimaal in de ruimte.

Plattegrond van de woonkamer/keuken (keuken is ter indicatie ingetekend en komt niet helemaal overeen):
[Afbeelding]

Voorgenomen indeling keuken:
[Afbeelding]

De vooraanzichten en de renders (renders zijn beetje matig, vooral de kleur en grepen wijken erg af):
[Afbeelding]

[Afbeelding]

Het raam is niet zwart. Dat vond de keukenverkoper wellicht een leuke kleur. Deze is gewoon wit en met een wat rustigere indeling. Wel ongeveer die grote.

[Afbeelding]

[Afbeelding]

[Afbeelding]

Het voornaamste doel nu is nog wat van de prijs af krijgen. Deels door wat scherper te onderhandelen maar de rek is er wel bijna uit. Dit merken we door te vergelijken bij verschillende aanbieders van exact dezelfde keuken. Overzicht van de samenstelling:
[Afbeelding]

Wellicht ziet iemand nog iets vreemds waar wij overheen gekeken hebben. Anders is het wellicht inspiratie voor iemand anders. :) Het enige waar we nog naar gaan kijken is het inkorten van de lange kant van 330cm naar 320 cm. Dan kan het blad tot het schiereiland uit één stuk worden gemaakt. Dan maken we onder de spoelbak ook een kastje en worden de twee naastgelegen laden 100cm ipv 90 cm.
Paar gedachten. Je hebt voor het aanzicht 3x 90 laden. Voor een spoelkast verlies je daar veel ruimte ( versnipperd, spoelbak, quooker ?). Als je toch een naad in je blad krijgt 2x60 deur en 3x 80 lades ?, of heb je voor bora 90 nodig. Zie ik geen ruimte naast de lade in de hoek?, loopt deze la dan tegen greep deurtje? Edit, bij nader in zien op de tekening ms wel, maar niet aangegeven in de maatvoering. Vraag bij een deurtje zo in de hoek om een begrenzer zodat deze niet verder open kan dan 90 graden, anders slaat ie tegen de andere kast ( of moet deze bij lemans 130 open). Wil je wat van de prijs af, laat de lemans zitten en zet er aan de andere kant van de schier een diepe ipv ondiepe kast in de hoek. Denk aan de woonkamerkant van het eiland aan de indeling. Handig om daar plek voor borden, bestek en onderzetters te hebben zonder helemaal de keuken in te lopen.

  • Peacefield78
  • Registratie: Juni 2020
  • Laatst online: 11-04-2025
@olafmol Wij hebben hele goede ervaringen met Interieur Collectief Woerden https://icwoerden.nl/. Ook zou je kunnen informeren bij De Leeuw Interieurbouw in Woerden, of bij Rietveld in Oudewater. Met de laatste heb ik geen ervaring, en De Leeuw ken ik alleen via een interieurontwerpster.

  • funkeey
  • Registratie: December 2007
  • Laatst online: 06-02 10:14
XQ! schreef op vrijdag 3 december 2021 @ 18:39:
We zijn al een tijdje aan het kijken naar een keuken voor in ons nieuwbouwhuis en hebben een Siematic SLX keuken met LED verlichting rondom het eiland en kastenwand op het oog. Dit hebben wij in de afgelopen weken verder uitgewerkt met een partij en we kwamen tot de volgende opstelling:

[Afbeelding]

De keuken is circa 323 cm breed, wat aan de krappe kant is voor een kookeiland. Wij willen daarom een deel van de muur (wat aangrenst met de hal) 20 cm verder verschuiven richting de hal, zodat we iets meer ruimte hebben in ons keuken. Nu is 343 cm ook niet royaal voor een kookeiland, maar wij vinden het wel prima zo. Tussen de kastenwand en kookeiland zit 100 cm en aan de andere kant van het eiland zit 85 cm, wat prima is aangezien het geen hoofd doorlooproute is.

Zie renders hieronder. Overigens, let niet op de verschillende kleuren, het is nog work in progress :)

[Afbeelding]

[Afbeelding]

[Afbeelding]

Qua apparatuur en werkblad hebben wij het volgende uitgekozen:


[...]


Met deze opstelling komen we uit op een totaal prijs van €30k, waarvan ongeveer:
  • €16.5k aan keukenmeubelen
  • €8.5k aan apparatuur
  • €3k aan werkblad
  • €2k aan montagekosten
Nou is de grote vraag natuurlijk, is dit een degelijke prijs of kan er nog wel wat van af?

Overigens horen we graag ook jullie meningen over het ontwerp, en dan met name over de volgende punten:
  • De afstand tussen Bora kookplaat en spoelbak is nu ongeveer 125 cm, wat wij zeer fijn vinden qua werkruimte. Echter zijn we ons ook van bewust dat het qua spoelen minder praktisch vanwege de korte afstand (circa 3.5 cm) tot de rand. Met de kookplaat hebben wij minder problemen mee aangezien we toch vaak de rechterkant van de kookplaat gebruiken. Een alternatief is om 120 cm (Bora) - 60 cm (vaatwasser) - 90 cm (spoelbak) als onderkasten te gebruiken, maar dan hebben wij maar 96 cm werkblad ertussen. Hoe denken jullie erover?
  • In het ontwerp hebben we maar 1 ladekast van 90 cm onder de kookplaat maar er is wel veel kastruimte aan de kastenwand. Een optie is om van de 60 cm onderkast tussen de kookplaat en vaatwasser een ladekast te maken. Is dit nodig denken jullie of hebben we wel genoeg aan de kastenwand?
  • Qua lijnenspel aan de kastenwand twijfelen we nog over de positie van de SLX greeplijst met LED verlichting tussen de twee ovens in. Wat ons wellicht ook wel mooier lijkt is om de middelste greeplijst te verwijderen om vervolgens aan de linkerkant en rechterkant van de ovens een greeplijst toe te voegen. Heb de optie hieronder toegevoegd. Het is nogal een persoonlijke mening natuurlijk, maar we horen graag jullie suggesties!
  • Tot slot willen we graag een ombouw en de kastenwand "zwevend" in te bouwen, zodat het als het ware 10 cm uit de muur steekt. Dit zorgt er natuurlijk wel voor dat de ruimte kleiner wordt - hoe denken jullie hierover?
Hartelijk dank voor alle tips, meningen en suggesties alvast! :)

[Afbeelding]
Dit is geen slechte prijs, kan er wat af, altijd. Maar je hebt een SLX en die is niet goedkoop.

Waar ben je geweest?

  • colvano
  • Registratie: Juni 2011
  • Laatst online: 06-04 20:32
Ladypurple schreef op vrijdag 3 december 2021 @ 23:24:
[...]

Paar gedachten. Je hebt voor het aanzicht 3x 90 laden. Voor een spoelkast verlies je daar veel ruimte ( versnipperd, spoelbak, quooker ?). Als je toch een naad in je blad krijgt 2x60 deur en 3x 80 lades ?, of heb je voor bora 90 nodig. Zie ik geen ruimte naast de lade in de hoek?, loopt deze la dan tegen greep deurtje? Vraag bij een deurtje zo in de hoek om een begrenzer zodat deze niet verder open kan dan 90 graden, anders slaat ie tegen de andere kast ( of moet deze bij lemans 130 open). Wil je wat van de prijs af, laat de lemans zitten en zet er aan de andere kant van de schier een diepe ipv ondiepe kast in de hoek. Denk aan de woonkamerkant van het eiland aan de indeling. Handig om daar plek voor borden, bestek en onderzetters te hebben zonder helemaal de keuken in te lopen.
Wat grappig, je hebt voornamelijk dezelfde gedachten als wij!

Het idee is om dan te doen:
60 vaatwasser
60 spoel
60 lade
60 lade
80 lade kook

In de hoek zit een lemans met een klein pas stuk. Wel een goede tip om even te kijken naar de lade in combinatie met greepje van de deur ernaast.

Het plan is inderdaad de lemans te laten vallen en dan aan de andere kant een diepe kast van 60. Grappig dat jij daar ook aan dacht! De lemans lijkt ons meer een hebbeding dan echt handig. Wij hebben de pannen toch in de laden onder de bora.

De indeling aan de kant van de woonkamer wordt gewoon met planken en niets bijzonders. Ik vind het juist fijn om bestek en borden in de keuken zelf te hebben. Wij maken vaak de borden in de keuken op en ook met uitruimen van de vaatwasser vind ik het ideaal.

Thanks voor het meedenken!

  • Ladypurple
  • Registratie: Maart 2021
  • Laatst online: 18:57
colvano schreef op zaterdag 4 december 2021 @ 08:43:
[...]


Wat grappig, je hebt voornamelijk dezelfde gedachten als wij!

Het idee is om dan te doen:
60 vaatwasser
60 spoel
60 lade
60 lade
80 lade kook

In de hoek zit een lemans met een klein pas stuk. Wel een goede tip om even te kijken naar de lade in combinatie met greepje van de deur ernaast.

Het plan is inderdaad de lemans te laten vallen en dan aan de andere kant een diepe kast van 60. Grappig dat jij daar ook aan dacht! De lemans lijkt ons meer een hebbeding dan echt handig. Wij hebben de pannen toch in de laden onder de bora.

De indeling aan de kant van de woonkamer wordt gewoon met planken en niets bijzonders. Ik vind het juist fijn om bestek en borden in de keuken zelf te hebben. Wij maken vaak de borden in de keuken op en ook met uitruimen van de vaatwasser vind ik het ideaal.

Thanks voor het meedenken!
Passtuk gezien, staat afgebeeld, maar niet in de maatvoering.
Gebruik voor je pannen niet kleiner dan 80, dat is niet efficiënt. Op de fotos 80 lade en waar de pollepel ligt zou 60 zijn.Afbeeldingslocatie: https://tweakers.net/i/hBXHgbbAkciXp8OykUKGxz0cRbI=/800x/filters:strip_icc():strip_exif()/f/image/rVujUx2erQ6QkrjhCKG6CMu4.jpg?f=fotoalbum_large

Afbeeldingslocatie: https://tweakers.net/i/M4C33cYtOe8azQ_TuoqrnWGeOAU=/800x/filters:strip_icc():strip_exif()/f/image/x6iRqcqiHmANEs7X6sPYfsLC.jpg?f=fotoalbum_large

  • colvano
  • Registratie: Juni 2011
  • Laatst online: 06-04 20:32
Ladypurple schreef op zaterdag 4 december 2021 @ 09:00:
[...]

Passtuk gezien, staat afgebeeld, maar niet in de maatvoering.
Gebruik voor je pannen niet kleiner dan 80, dat is niet efficiënt. Op de fotos 80 lade en waar de pollepel ligt zou 60 zijn.[Afbeelding]

[Afbeelding]
Goede tips, die ga ik nog even meenemen!

  • Floor-is
  • Registratie: Maart 2000
  • Laatst online: 05-05 07:56
colvano schreef op zaterdag 4 december 2021 @ 09:06:
[...]


Goede tips, die ga ik nog even meenemen!
Andere tip:
Een lemans is heel duur.

In plaats daarvan kan je overwegen om een “gewone (lade)kast te nemen aan de keukenzijde en aan de woonkamer zijde een 60 diep met lades dan heb je meer effectieve ruimte dan met een lemans :)

Bericht hierboven


  • colvano
  • Registratie: Juni 2011
  • Laatst online: 06-04 20:32
Floor-is schreef op zaterdag 4 december 2021 @ 09:32:
[...]

Andere tip:
Een lemans is heel duur.

In plaats daarvan kan je overwegen om een “gewone (lade)kast te nemen aan de keukenzijde en aan de woonkamer zijde een 60 diep met lades dan heb je meer effectieve ruimte dan met een lemans :)
Inderdaad ja! Aan de kant van de woonkamer willen we geen lades. 3 deurtjes tot bijna op de grond oogt rustig. Wij zullen daar toch voornamelijk spullen zetten die niet heel vaak gebruikt worden.

  • Ladypurple
  • Registratie: Maart 2021
  • Laatst online: 18:57
colvano schreef op zaterdag 4 december 2021 @ 09:47:
[...]


Inderdaad ja! Aan de kant van de woonkamer willen we geen lades. 3 deurtjes tot bijna op de grond oogt rustig. Wij zullen daar toch voornamelijk spullen zetten die niet heel vaak gebruikt worden.
Als je op het schier aan de kookzijde deurtjes houdt zou ik van de rechter de draairichting veranderen.
Heb ik het goed begrepen dat je voor 10 cm extra blad een extra naad krijgt? En waar komt deze.

  • colvano
  • Registratie: Juni 2011
  • Laatst online: 06-04 20:32
Ladypurple schreef op zaterdag 4 december 2021 @ 10:04:
[...]

Als je op het schier aan de kookzijde deurtjes houdt zou ik van de rechter de draairichting veranderen.
Heb ik het goed begrepen dat je voor 10 cm extra blad een extra naad krijgt? En waar komt deze.
Ga ik rekening mee houden!

Blad is maximaal 321cm. In het ontwerp nu is de lange zijde 330cm. De extra naad komt bovenop de vaatwasser bij de huidige opstelling. Dat is best lelijk dus ik wil daar best 10cm voor inleveren.

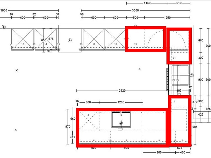
  • Strider
  • Registratie: November 2001
  • Laatst online: 13:00
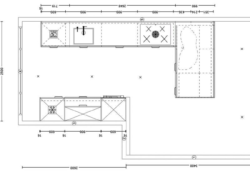
Wat vinden jullie van dit keukenontwerp, is dit een beetje praktisch?
Lang getwijfeld over een schiereiland, vriendin wil toch het liefste een eiland.

Kasten op de andere muur is eigenlijk geen optie, dan kunnen we er maar 4 kwijt, en we hebben toch wel wat opslagruimte nodig.
Als we er in deze opstelling een schiereiland van maken wordt de doorgang tussen de tafel en keuken wellicht toch wel wat krap als er mensen aan tafel zitten. Nu heb je altijd 2 looproutes.


Afbeeldingslocatie: https://i.imgur.com/rWoQDdg.jpg
Afbeeldingslocatie: https://i.imgur.com/iz7jlkZ.jpg

BlaBlaBla


  • sNielz123
  • Registratie: Maart 2009
  • Laatst online: 14:46
@Strider kijk eens bij de gepinde berichten in dit topic. Je komt dan denk ik bijna alle mogelijke variaties tegen want een soortgelijke ruimte komt erg vaak voor.

Ik zou zelf nooit voor een tafel met bankje gaan..

  • Floor-is
  • Registratie: Maart 2000
  • Laatst online: 05-05 07:56
@colvano Als je die lemans weghaalt, kan je koken op het schier en je spoelbak (en vaatwasser) herplaatsen als je wilt. Zo kan je tijdens het koken contact houden met de woonkamer; zeker fijn als je kinderen of viste hebt. Gezien je geen barretje van plan bent, hoef je ook niet na te denken over spetters :)
Wel wordt afzuiging in je werkblad dan aan te raden, dat heft de kostenbesparing (ruim) op..

Bericht hierboven


  • Trussardi99
  • Registratie: Juli 2021
  • Laatst online: 05-03 09:19
XQ! schreef op vrijdag 3 december 2021 @ 18:39:
We zijn al een tijdje aan het kijken naar een keuken voor in ons nieuwbouwhuis en hebben een Siematic SLX keuken met LED verlichting rondom het eiland en kastenwand op het oog. Dit hebben wij in de afgelopen weken verder uitgewerkt met een partij en we kwamen tot de volgende opstelling:

[Afbeelding]

De keuken is circa 323 cm breed, wat aan de krappe kant is voor een kookeiland. Wij willen daarom een deel van de muur (wat aangrenst met de hal) 20 cm verder verschuiven richting de hal, zodat we iets meer ruimte hebben in ons keuken. Nu is 343 cm ook niet royaal voor een kookeiland, maar wij vinden het wel prima zo. Tussen de kastenwand en kookeiland zit 100 cm en aan de andere kant van het eiland zit 85 cm, wat prima is aangezien het geen hoofd doorlooproute is.

Zie renders hieronder. Overigens, let niet op de verschillende kleuren, het is nog work in progress :)

[Afbeelding]

[Afbeelding]

[Afbeelding]

Qua apparatuur en werkblad hebben wij het volgende uitgekozen:


[...]


Met deze opstelling komen we uit op een totaal prijs van €30k, waarvan ongeveer:
  • €16.5k aan keukenmeubelen
  • €8.5k aan apparatuur
  • €3k aan werkblad
  • €2k aan montagekosten
Nou is de grote vraag natuurlijk, is dit een degelijke prijs of kan er nog wel wat van af?

Overigens horen we graag ook jullie meningen over het ontwerp, en dan met name over de volgende punten:
  • De afstand tussen Bora kookplaat en spoelbak is nu ongeveer 125 cm, wat wij zeer fijn vinden qua werkruimte. Echter zijn we ons ook van bewust dat het qua spoelen minder praktisch vanwege de korte afstand (circa 3.5 cm) tot de rand. Met de kookplaat hebben wij minder problemen mee aangezien we toch vaak de rechterkant van de kookplaat gebruiken. Een alternatief is om 120 cm (Bora) - 60 cm (vaatwasser) - 90 cm (spoelbak) als onderkasten te gebruiken, maar dan hebben wij maar 96 cm werkblad ertussen. Hoe denken jullie erover?
  • In het ontwerp hebben we maar 1 ladekast van 90 cm onder de kookplaat maar er is wel veel kastruimte aan de kastenwand. Een optie is om van de 60 cm onderkast tussen de kookplaat en vaatwasser een ladekast te maken. Is dit nodig denken jullie of hebben we wel genoeg aan de kastenwand?
  • Qua lijnenspel aan de kastenwand twijfelen we nog over de positie van de SLX greeplijst met LED verlichting tussen de twee ovens in. Wat ons wellicht ook wel mooier lijkt is om de middelste greeplijst te verwijderen om vervolgens aan de linkerkant en rechterkant van de ovens een greeplijst toe te voegen. Heb de optie hieronder toegevoegd. Het is nogal een persoonlijke mening natuurlijk, maar we horen graag jullie suggesties!
  • Tot slot willen we graag een ombouw en de kastenwand "zwevend" in te bouwen, zodat het als het ware 10 cm uit de muur steekt. Dit zorgt er natuurlijk wel voor dat de ruimte kleiner wordt - hoe denken jullie hierover?
Hartelijk dank voor alle tips, meningen en suggesties alvast! :)

[Afbeelding]
Mooie keuken, een Siematic SLX.
Ik heb zelf begin november ook gekozen voor een SLX, ik ben nu in het stadium van de laatste puntjes op de i zetten en dan wordt de keuken besteld.

Over de prijs die je geoffreerd hebt gekregen: kiezen jullie voor kunststof(prijsgroep 0) of voor een upgrade naar Smartlaque? (pr.gr. 1)
Wanneer ik reken naar mijn offerte dan denk ik dat die prijs wel klopt, echter moet het mogelijk zijn om 10% korting te krijgen op de kasten.
De apparatuur is niet duur, dat is een prima aanbod, dat geld eigenlijk ook voor het blad dus al met al denk ik dat er nog zo'n 1500 aan extra korting in zou moeten zitten....

Overigens zou ik, net als de andere reageerders niet kiezen voor een Eiland.
100 cm beweegruimte tussen kas en eiland is echt te weinig, je kan dan lastig elkaar passeren en wanneer een deur of overn openstaat blijft er helemaal geen ruimte over.
Die 85 cm aan de andere kant is helemaal klein....
Door de relatief smalle ruimte zal je zo'n eiland eerder als sta-in-de-weg ervaren dan als een sieraad.

Wanneer je kiest voor een parrallelopstelling kan je er voor kiezen om een 80cm diep aanrechtblad te nemen en heb je ruimte voor 4 meter keuken, dus ruimte te over om je spullen kwijt te kunnen.
Je hoeft dan de hal niet kleiner te maken, en houd een mooie beweegruimte van zo'n 180 cm over om je ding te doen.
En daarbij ben je ook nog eens goedkoper uit denk ik, en komt de kastenwand mooier uit (met die mooie ledstrips)
Ik zou er overigens ook voor kiezen om LED onder het blad te nemen, dat is imo echt de finishing touch, en dan zijn drie ledstroken in de kastenwand ook genoeg...

Ik ben benieuwd wat het gaat worden!

  • SquareOne
  • Registratie: Januari 2010
  • Laatst online: 20:51
Trussardi99 schreef op zaterdag 4 december 2021 @ 13:43:
[...]


Mooie keuken, een Siematic SLX.
Ik heb zelf begin november ook gekozen voor een SLX, ik ben nu in het stadium van de laatste puntjes op de i zetten en dan wordt de keuken besteld.

Over de prijs die je geoffreerd hebt gekregen: kiezen jullie voor kunststof(prijsgroep 0) of voor een upgrade naar Smartlaque? (pr.gr. 1)
Wanneer ik reken naar mijn offerte dan denk ik dat die prijs wel klopt, echter moet het mogelijk zijn om 10% korting te krijgen op de kasten.
De apparatuur is niet duur, dat is een prima aanbod, dat geld eigenlijk ook voor het blad dus al met al denk ik dat er nog zo'n 1500 aan extra korting in zou moeten zitten....

Overigens zou ik, net als de andere reageerders niet kiezen voor een Eiland.
100 cm beweegruimte tussen kas en eiland is echt te weinig, je kan dan lastig elkaar passeren en wanneer een deur of overn openstaat blijft er helemaal geen ruimte over.
Die 85 cm aan de andere kant is helemaal klein....
Door de relatief smalle ruimte zal je zo'n eiland eerder als sta-in-de-weg ervaren dan als een sieraad.

Wanneer je kiest voor een parrallelopstelling kan je er voor kiezen om een 80cm diep aanrechtblad te nemen en heb je ruimte voor 4 meter keuken, dus ruimte te over om je spullen kwijt te kunnen.
Je hoeft dan de hal niet kleiner te maken, en houd een mooie beweegruimte van zo'n 180 cm over om je ding te doen.
En daarbij ben je ook nog eens goedkoper uit denk ik, en komt de kastenwand mooier uit (met die mooie ledstrips)
Ik zou er overigens ook voor kiezen om LED onder het blad te nemen, dat is imo echt de finishing touch, en dan zijn drie ledstroken in de kastenwand ook genoeg...

Ik ben benieuwd wat het gaat worden!
Care to share jullie opstelling :)?

@XQ! eens met de eerdere opmerking t.a.v. het eiland en juist de verlichte greeplijst horizontaal is erg fraai!

[ Voor 3% gewijzigd door SquareOne op 04-12-2021 13:58 ]


  • XQ!
  • Registratie: Juni 2018
  • Laatst online: 05-12-2025

XQ!

Hartelijk dank voor alle tips en suggesties iedereen! De conclusie is dat een parallel keuken opstelling veel beter is met onze ruimte. Iets wat we eigenlijk al wisten, maar stiekem hoopten we dat een kookeiland opstelling ook nog nét zou lukken...
Source90 schreef op vrijdag 3 december 2021 @ 18:57:
[...]

Qua apparatuur wel een redelijke prijs. Je zit voor enkel het Siemens deel al aan de 9k. Daar komt nog een BORA en Quooker bij.

Alleen vind ik de vaatwasser een beetje vreemde eend in de bijt. Je warmhoudlade is bijna even duur als deze IQ300 vaatwasser.
Maar wellicht dat dit model voor de rest helemaal aan de eisen voldoet. :)

----

Als de vaatwasser open staat (of een oven) kan je er mijns inziens niet meer lekker langs met die 100cm ruimte. Ga je de andere zijde enkel als doorgang gebruiken, of ook een bar-idee? Voor doorgang zou ik dit kleiner maken zodat je aan de "hoofdzijde" meer ruimte hebt tussen kastenwand en eiland.

Zou de kraan ook niet op de kopse kant doen, geheid dat dit continue spettert op de grond. Eventueel het eiland iets langer maken met 30cm aan de kopse kant naast de kraan?
Wij hadden niet echt een sterke voorkeur en eisen voor de vaatwasser en hebben op aanraden van de verkoper voor dit model gekozen. Opties zoals Home Connect, Auto Open, Brilliantshine en zeolith systeem hebben wij denk ik niet nodig. Maar mochten anderen dit wel van toegevoegde waarde vinden, dan horen we het uiteraard graag!
sNielz123 schreef op vrijdag 3 december 2021 @ 20:15:
@XQ! Het lijkt er vooral op dat je een eiland wilt om een eiland te hebben. Parralel heb je een een veel mooiere en handigere doorloop.
Een eiland zou je m.i. moeten nemen om met je gezicht richting de open ruimte te koken/snijden/etc.. Nu kijk je alsnog tegen een muur op.

Maar goed, op een feestje kan je wel zeggen dat je een eiland hebt, is misschien ook wat waard :)
Op feestjes kunnen ze ook om het eiland staan terwijl we in de keuken bezig zijn ;) Nee, volledig met je eens hoor. In een ideale scenario zouden we ook graag richting de open ruimte willen werken. Dit is dan meer een soort compromis.
Toke_gt schreef op vrijdag 3 december 2021 @ 20:47:
[...]

Misschien niet zo leuk om te horen, maar ik vind dat er in dit ontwerp veel te veel aandacht is gegeven aan lijnenspel, greeplijsten, symmetrie en andere visuele aspecten, en veel te weinig aan praktisch gemak. Anders gezegd: ik snap niet goed waarom je kiest voor een eiland. Je levert heel veel ruimte in en krijgt er eigenlijk niets voor terug. Alles moet wijken voor het eiland. Je hebt 12m2 keuken, en maar 1 m2 werkblad. En er is veel loopruimte om aan de andere kant van het eiland te komen, terwijl je daar bijna niets hebt.
Met een parallelopstelling, of een IJ (parallel met een klein stukje eraan voor een barretje) heb je veel meer werkblad en loop/bewegingsruimte, maar het is ook uitnodigender om bijvoorbeeld samen te koken of om iemand in de keuken gezelschap te houden.

Paar praktische bezwaren:
  • De loopruimte achter het eiland is uitsluitend om bij de kastjes van 35 cm diep te kunnen komen. Daar kom je niet heel makkelijk bij, gezien de beperkte bewegingsruimte (85 cm) en rekening houdend met te openen kastdeurtjes.
  • 1 m tussen eiland en kastenwand is erg minimaal. Als er iemand aan het eiland staat, kan een ander er niet heel makkelijk achterlangs. Ik vind dat zonde, omdat je op zich met 3.23 echt ruimte genoeg hebt om met meer mensen tegelijk in de keuken te werken.
  • Je hebt voor zo’n grote keuken relatief weinig werkbladruimte. Alle ruimte bevindt zich bovendien op het eiland. Dat maakt het snel rommelig. Het is de ruimte waar je de vaat, maar ook apparaten en boodschappen etc kwijt moet. Dan is 96 cm of 120 echt veel te weinig.
  • De vaatwasser staat tussen spoelbak en kookplaat. Omdat je daar niet al te veel ruimte hebt, staat ie dus altijd letterlijk in de weg als ie open staat. Dat wil je echt niet.
  • Waar laat je je koffieapparaat, of waterkoker, airfryer etc Daar zou ik zelf een mooie apparatenkast voor reserveren, met deuren die je aan de zijkanten inschuift. De apparaten gebruik je dan in de kast. Sowieso mis ik wat dat betreft de luxe snufjes voor een keuken van 30K.
  • Je kookplaat en spoelbak zitten helemaal aan de rand. Dat kan ook echt niet anders, maar het is fijner werken als je wat extra ruimte hebt rondom met name de spoelbak.
  • Ik zou de kastenwand tegen de andere wand plaatsen om de kasten vrij te hangen. Je lijkt daar meer ruimte te hebben om een voorzetwand te plaatsen om dat effect te bereiken. Scheelt ook een hoop breekwerk naar de gang. Met een parallelle opstelling hoeft dat sowieso niet.
Dank voor deze nuttige tips! Snap alleen niet wat je bedoelt met de kastenwand aan de andere kant, waarom zou daar meer ruimte zijn voor een voorzetwand? Het klopt dat we de lengte van de voorzetwand aan de andere kant langer kunnen maken, maar dat is niet nodig toch of mis ik hier iets?
Trussardi99 schreef op zaterdag 4 december 2021 @ 13:43:
[...]


Mooie keuken, een Siematic SLX.
Ik heb zelf begin november ook gekozen voor een SLX, ik ben nu in het stadium van de laatste puntjes op de i zetten en dan wordt de keuken besteld.

Over de prijs die je geoffreerd hebt gekregen: kiezen jullie voor kunststof(prijsgroep 0) of voor een upgrade naar Smartlaque? (pr.gr. 1)
Wanneer ik reken naar mijn offerte dan denk ik dat die prijs wel klopt, echter moet het mogelijk zijn om 10% korting te krijgen op de kasten.
De apparatuur is niet duur, dat is een prima aanbod, dat geld eigenlijk ook voor het blad dus al met al denk ik dat er nog zo'n 1500 aan extra korting in zou moeten zitten....

Overigens zou ik, net als de andere reageerders niet kiezen voor een Eiland.
100 cm beweegruimte tussen kas en eiland is echt te weinig, je kan dan lastig elkaar passeren en wanneer een deur of overn openstaat blijft er helemaal geen ruimte over.
Die 85 cm aan de andere kant is helemaal klein....
Door de relatief smalle ruimte zal je zo'n eiland eerder als sta-in-de-weg ervaren dan als een sieraad.

Wanneer je kiest voor een parrallelopstelling kan je er voor kiezen om een 80cm diep aanrechtblad te nemen en heb je ruimte voor 4 meter keuken, dus ruimte te over om je spullen kwijt te kunnen.
Je hoeft dan de hal niet kleiner te maken, en houd een mooie beweegruimte van zo'n 180 cm over om je ding te doen.
En daarbij ben je ook nog eens goedkoper uit denk ik, en komt de kastenwand mooier uit (met die mooie ledstrips)
Ik zou er overigens ook voor kiezen om LED onder het blad te nemen, dat is imo echt de finishing touch, en dan zijn drie ledstroken in de kastenwand ook genoeg...

Ik ben benieuwd wat het gaat worden!
Wij hebben momenteel Smartlaque in de offerte maar willen wellicht voor Similaque gaan als het echt een toegevoegde waarde heeft en het prijsverschil niet al te groot is. Het is ons alleen nog niet echt duidelijk wat het grote verschil is tussen Smartlaque en Similaque. Weten jullie hier iets meer over?

We zijn zelf ook wel enigszins tevreden met de prijzen van apparatuur en werkblad, maar hebben ook nog wat geprobeerd te onderhandelen op de kasten. Kregen te horen dat er helaas niks meer af kan en de verkoper liet zelfs zien dat zijn marge negatief is in het systeem. Is dit een gebruikelijke verkooptactiek of kan hij écht geen korting meer geven?

De renders waren niet zo duidelijk, maar de LED verlichting komt ook onder het werkblad en de ladekast op het eiland. Volledig mee eens dat het de finishing touch is! Dat was voor ons een van de belangrijkste redenen om een SLX te kiezen :)

Overigens zijn wij van plan om nog naar Ekelhoff te gaan binnenkort. Weet iemand toevallig of Ekelhoff een nog veel scherpere prijs kan bieden?

  • Toke_gt
  • Registratie: Juni 2021
  • Laatst online: 15:10
XQ! schreef op zaterdag 4 december 2021 @ 20:01:
[...]
Dank voor deze nuttige tips! Snap alleen niet wat je bedoelt met de kastenwand aan de andere kant, waarom zou daar meer ruimte zijn voor een voorzetwand? Het klopt dat we de lengte van de voorzetwand aan de andere kant langer kunnen maken, maar dat is niet nodig toch of mis ik hier iets?
Ik meende op je plattegrond te zien dat je aan de rechterkant van de keuken meer dan genoeg ruimte hebt om de kastenwand ‘op te sluiten’ in een muur (voorzetwand om de kasten heen maken), waar je links door de muur moest om met je ruimte uit te komen. Als je links niet door de muur gaat, kom je te dicht op de deur?
Ik heb niet teruggebladerd, maar meen me het zo te herinneren. Als de afmetingen gelijk zijn, maakt het uiteraard niet uit. Heb je links en rechts van de tuindeuren evenveel ruimte?

[ Voor 3% gewijzigd door Toke_gt op 04-12-2021 20:20 ]


  • BeaM-R
  • Registratie: Juli 2000
  • Laatst online: 01:54

BeaM-R

Powerrrrr

Aantal weken geleden een keuken besteld die begin februari geplaatst gaat worden. Gisteren echter een telefoontje gehad van de keukenleverancier dat de levertijden voor de Siemens apparatuur (alles in ons geval) oplopen naar 6 tot 9 maanden....
Meer mensen hier iets over gehoord?

Skoda Enyaq iV60 Sportline * Toyota Aygo X * Fendt 510TF Joker * Honwave 35AE met Honda BF20


  • mitsumark
  • Registratie: Juni 2009
  • Laatst online: 20:08
BeaM-R schreef op zaterdag 4 december 2021 @ 20:29:
Aantal weken geleden een keuken besteld die begin februari geplaatst gaat worden. Gisteren echter een telefoontje gehad van de keukenleverancier dat de levertijden voor de Siemens apparatuur (alles in ons geval) oplopen naar 6 tot 9 maanden....
Meer mensen hier iets over gehoord?
Het Grote Keuken topic: verkopers, kwaliteit, prijs - Deel 3

  • Trussardi99
  • Registratie: Juli 2021
  • Laatst online: 05-03 09:19
Wij hebben momenteel Smartlaque in de offerte maar willen wellicht voor Similaque gaan als het echt een toegevoegde waarde heeft en het prijsverschil niet al te groot is. Het is ons alleen nog niet echt duidelijk wat het grote verschil is tussen Smartlaque en Similaque. Weten jullie hier iets meer over?

We zijn zelf ook wel enigszins tevreden met de prijzen van apparatuur en werkblad, maar hebben ook nog wat geprobeerd te onderhandelen op de kasten. Kregen te horen dat er helaas niks meer af kan en de verkoper liet zelfs zien dat zijn marge negatief is in het systeem. Is dit een gebruikelijke verkooptactiek of kan hij écht geen korting meer geven?

De renders waren niet zo duidelijk, maar de LED verlichting komt ook onder het werkblad en de ladekast op het eiland. Volledig mee eens dat het de finishing touch is! Dat was voor ons een van de belangrijkste redenen om een SLX te kiezen :)

Overigens zijn wij van plan om nog naar Ekelhoff te gaan binnenkort. Weet iemand toevallig of Ekelhoff een nog veel scherpere prijs kan bieden?
[/quote]


Mijn offerte is ook obv Smartlaque.
Het is mij ook niet duidelijk wat het exacte verschil is tussen Smart en Simi. Wanneer je hier zoekt dan kom je ook andere Tweakers tegen die zich dat afvragen maar ik denk dat Simi nog net iets matter en meer Fingerprintproof is?
Similaque is prijsgroep 2.
Ik heb over een aantal weken een laatste sessie bij mijn keukenboer is zal vragen wat nu het verschil is.

Overigens, via webwinkelsiematic.nl heb ik kleurstalen aangevraagd en toen ik een Smartlaque staal aanvroeg kreeg ik er 1 toegezonden in Similaque....
Ik heb ook wel gehoord dat Similaque verdwijnt ten gunste van Smartlaque.... maar even vragen binnenkort.

Wat ik wel weet is dat het prijsverschil heel klein is; ik heb mee kunnen kijken in het prijzenboek en zag dat bij een 60 cm onderkast het prijsverschil 50 euro is en bij een 90 cm onderkast 90euro.
Bij hoge kasten zal het dan ws iets van 200,= per kast zijn?

De marge voor Siematic dealers ligt rond de 30 a 35% heb ik viavia begrepen.
Wanneer ze apparatuur en blad al tegen een scherpe prijs hebben aangeboden zullen ze waarschijnlijk minder snel bereid zijn ook nog korting op de kasten te geven.

Mijn aanbod is ook gemaakt met voor 16k aan kasten.
Ik heb een kastenwand van drie hoge kasten (vlnr servies met 2 binnenlades, kast voor oven met planken boven en onder en kast voor koelkast/vriezer)
plus daartegenover tegen de wand een lage opstelling van: 90, 100, 90 ladekasten met twee lades en 1 binnenlade,
60 cm spoelkast met lade en afvalemmer (geen spoelkast met normale draaideur nemen, lijkt erg goedkoop)
60 cm paneel voor vaatwasser.
2 led greeplijsten in kastenwand en ledgreeplijst onder blad.

Minder kasten dus dan jullie maar mijn kastenwand is in prijsgroep 3, metallic laminaat (brushed platinum)
Dit maakt het duur, ook omdat ik voor twee extra zijpanelen voor de hoge kasten in 1,2cm heb gekozen die daarmee even breed zijn als de zijpanelen van het lage deel en het blad, ook 1,2 cm. Dit geeft een mooi beeld.

De verlichting rond jullie eiland alleen kost al zeker 1500,=, wanneer je voor een parallelle opstelling gaat scheelt dat de helft.
Al met al denk ik niet een verkeerde prijs, jullie aanbod.

  • Dj-sannieboy
  • Registratie: Augustus 2004
  • Niet online

Dj-sannieboy

Nee.... beter!

BeaM-R schreef op zaterdag 4 december 2021 @ 20:29:
Aantal weken geleden een keuken besteld die begin februari geplaatst gaat worden. Gisteren echter een telefoontje gehad van de keukenleverancier dat de levertijden voor de Siemens apparatuur (alles in ons geval) oplopen naar 6 tot 9 maanden....
Meer mensen hier iets over gehoord?
Een paar pagina’s terug is er e.e.a. over geschreven.

Wij hebben überhaupt geen verwachte levertijd gekregen voor onze Bosch oven en vaatwasser.

  • Huizenzoeker
  • Registratie: Juni 2019
  • Laatst online: 07-05 13:31
Onze keuken is ook geplaatst.
Er ontbreken nog twee apparaten maar voor de rest blij met het resultaat. Meest rechtste hoge kast is om de kolom van de uitbouw heengebouwd, echt heel mooi gedaan en alsnog voldoende serviesruimte.

Merk keuken: Tristar
Frontkleur: perfectsense soft zwart, anti fingerprint coating
Blad: composiet, 2cm dik Easy Clay honed
Apparatuur: ATAG OX66121D (had me vergist, magnetron ontbreekt nog), Bora PURU, Quooker combi+. Vaatwasser is van oude keuken

Renders:
Afbeeldingslocatie: https://tweakers.net/i/DNoWfHMF90d16LptG8tOr_2wgFY=/full-fit-in/4920x3264/filters:max_bytes(3145728):no_upscale():strip_icc():fill(white):strip_exif()/f/image/WvEgoMMGHsVt8kjoyDhNPLXC.jpg?f=user_large

Afbeeldingslocatie: https://tweakers.net/i/c_MTcdXMyYQ98JqvTmeu8W0lqMg=/full-fit-in/4920x3264/filters:max_bytes(3145728):no_upscale():strip_icc():fill(white):strip_exif()/f/image/KyiWx4omeyQGdXMxwMi0xL3u.jpg?f=user_large

Resultaat:
Afbeeldingslocatie: https://tweakers.net/i/F3suVi0HqGH4rV9eWCNDce82550=/x800/filters:strip_icc():strip_exif()/f/image/2gOy9V2VrFLHwpF7byyHda0G.jpg?f=fotoalbum_large

Afbeeldingslocatie: https://tweakers.net/i/VrRux0uqq0edRFNpMElu5jIqZjI=/800x/filters:strip_icc():strip_exif()/f/image/KKjHXGZjsoHKqe78DBvn9U0H.jpg?f=fotoalbum_large
Afbeeldingslocatie: https://tweakers.net/i/BPVvUKfDAaB0slpLkGOZEMO_P0Y=/x800/filters:strip_icc():strip_exif()/f/image/vkVuOnsJugzz0YV6ybCe6BnN.jpg?f=fotoalbum_large

[ Voor 13% gewijzigd door Huizenzoeker op 05-12-2021 10:10 ]


  • SquareOne
  • Registratie: Januari 2010
  • Laatst online: 20:51
Huizenzoeker schreef op zondag 5 december 2021 @ 10:04:
Onze keuken is ook geplaatst.
Er ontbreken nog twee apparaten maar voor de rest blij met het resultaat. Meest rechtste hoge kast is om de kolom van de uitbouw heengebouwd, echt heel mooi gedaan en alsnog voldoende serviesruimte.

Merk keuken: Tristar
Frontkleur: perfectsense soft zwart, anti fingerprint coating
Blad: composiet, 2cm dik Easy Clay honed
Apparatuur: ATAG OX66121D (had me vergist, magnetron ontbreekt nog), Bora PURU, Quooker combi+. Vaatwasser is van oude keuken

Renders:
[Afbeelding]

[Afbeelding]

Resultaat:
[Afbeelding]

[Afbeelding]
[Afbeelding]
Gefeliciteerd! En inderdaad mooi hoe die kast om die paal heen gebouwd is.

  • mollie
  • Registratie: Januari 2001
  • Laatst online: 10-01 22:22

mollie

 

Heel mooi.. we hebben hetzelfde blad en kleur kasten .. waren vooral door het blad aangenaam verrast. Uitzoeken van stalen is niet makkelijk dus altijd even afwachten

  • codeneos
  • Registratie: Augustus 2004
  • Laatst online: 18-04 20:51

codeneos

[...]

Huizenzoeker schreef op zondag 5 december 2021 @ 10:04:
Onze keuken is ook geplaatst.
Er ontbreken nog twee apparaten maar voor de rest blij met het resultaat. Meest rechtste hoge kast is om de kolom van de uitbouw heengebouwd, echt heel mooi gedaan en alsnog voldoende serviesruimte.

Merk keuken: Tristar
Frontkleur: perfectsense soft zwart, anti fingerprint coating
Blad: composiet, 2cm dik Easy Clay honed
Apparatuur: ATAG OX66121D (had me vergist, magnetron ontbreekt nog), Bora PURU, Quooker combi+. Vaatwasser is van oude keuken

Renders:
[Afbeelding]

[Afbeelding]

Resultaat:
[Afbeelding]

[Afbeelding]
[Afbeelding]
Erg mooi gedaan met de hoge kast om de paal heen. Ook de rest van de keuken ziet er mooi uit. Hoe bevalt de ATAG oven? In verband met de leveringsproblemen met Siemens heeft de keuken adviseur ons o.a. ATAG aangeraden.

En uit interrese, waar heb je de keuken gekocht?

http://www.tweakers.net/gallery/119170/sys


  • Huizenzoeker
  • Registratie: Juni 2019
  • Laatst online: 07-05 13:31
codeneos schreef op zondag 5 december 2021 @ 11:08:
[...]

Erg mooi gedaan met de hoge kast om de paal heen. Ook de rest van de keuken ziet er mooi uit. Hoe bevalt de ATAG oven? In verband met de leveringsproblemen met Siemens heeft de keuken adviseur ons o.a. ATAG aangeraden.

En uit interrese, waar heb je de keuken gekocht?
Oven werkt heel handig. Genoeg programma’s maar niet te veel poespas die we toch niet zouden gebruiken. Warmhoudfunctie en functie om borden te verwarmen waren een aangename verrassing. We hebben de keuken bij een franchisenemer van de Keukenvernieuwers gekocht in regio Hoofddorp, heel tevreden over. Werkte heel erg secuur en enorm meedenkend.

  • colvano
  • Registratie: Juni 2011
  • Laatst online: 06-04 20:32
colvano schreef op vrijdag 3 december 2021 @ 21:36:
Wij zijn ook al een tijdje bezig met het samenstellen van een keuken en komen dichtbij het moment van bestellen. De indeling zijn we uit en lijkt ons optimaal in de ruimte.

Plattegrond van de woonkamer/keuken (keuken is ter indicatie ingetekend en komt niet helemaal overeen):
[Afbeelding]

Voorgenomen indeling keuken:
[Afbeelding]

De vooraanzichten en de renders (renders zijn beetje matig, vooral de kleur en grepen wijken erg af):
[Afbeelding]

[Afbeelding]

Het raam is niet zwart. Dat vond de keukenverkoper wellicht een leuke kleur. Deze is gewoon wit en met een wat rustigere indeling. Wel ongeveer die grote.

[Afbeelding]

[Afbeelding]

[Afbeelding]

Het voornaamste doel nu is nog wat van de prijs af krijgen. Deels door wat scherper te onderhandelen maar de rek is er wel bijna uit. Dit merken we door te vergelijken bij verschillende aanbieders van exact dezelfde keuken. Overzicht van de samenstelling:
[Afbeelding]

Wellicht ziet iemand nog iets vreemds waar wij overheen gekeken hebben. Anders is het wellicht inspiratie voor iemand anders. :) Het enige waar we nog naar gaan kijken is het inkorten van de lange kant van 330cm naar 320 cm. Dan kan het blad tot het schiereiland uit één stuk worden gemaakt. Dan maken we onder de spoelbak ook een kastje en worden de twee naastgelegen laden 100cm ipv 90 cm.
Gister hebben wij bij Bemmel&Kroon de knoop doorgehakt en getekend.

Afbeeldingslocatie: https://tweakers.net/i/UWM6RB3KbU5Nre6VZ-7QgOWZ6hw=/800x/filters:strip_icc():strip_exif()/f/image/US71fmBx0UlZd2GvlXr8rtI8.jpg?f=fotoalbum_large

Keuken
WinkelBemmel&Kroon
MerkPronorm
LadenProStyle
FrontPU Steengrijs
WerkbladPearl Jasmine gepolijst (Dekker) / 2cm

Apparatuur
VaatwasserAEG FSB53927Z
KookplaatBora Puru
OvenAEG BEK435020M
CombiAEG KMK565000M
KoelkastAEG SKE818F1DC
KraanQuooker 3FSRVS + Zeeppomp

Prijs
Totaal: €20.000 incl. plaatsing

Wij hebben gewoon net zo lang gezeten en moeilijk gekeken tot het op 20k uitkwam. Gewoon strak aan het budget vastgehouden. Uiteindelijk voornamelijk bespaart door de Lemans te laten vervallen en te kiezen voor een ander front. Ik blijf het een hoop geld vinden maar ik denk dat dit een best scherpe prijs is. Mede gezien het toch een behoorlijk grote keuken is.

We hebben er geen greepjes bij besteld. Deze gaan we zelf ergens anders kopen omdat het aanbod in de zaak beperkt was.

De renders zijn niet helemaal correct maar geven een goede indicatie. In de nis bedekt het werkblad ook de volledige achterwand.

Afbeeldingslocatie: https://tweakers.net/i/f4TtzcrlzEYnoMdT7JDp6EQiAFA=/800x/filters:strip_exif()/f/image/SqKmuJzVLLLBIjLPQXUAOpo0.png?f=fotoalbum_large

Afbeeldingslocatie: https://tweakers.net/i/lMKrgxKlRJyJP8irxM_B8hws7w0=/800x/filters:strip_exif()/f/image/jjHpwGI882CJjJir7kJggMxA.png?f=fotoalbum_large

  • MacbookProx
  • Registratie: September 2011
  • Laatst online: 22-03 00:35
codeneos schreef op zondag 5 december 2021 @ 11:08:
[...]

Erg mooi gedaan met de hoge kast om de paal heen. Ook de rest van de keuken ziet er mooi uit. Hoe bevalt de ATAG oven? In verband met de leveringsproblemen met Siemens heeft de keuken adviseur ons o.a. ATAG aangeraden.

En uit interrese, waar heb je de keuken gekocht?
In Duiven zit een experience center met alle apparatuur. Tevens Etna en nog wat merken.

Hielp ons over de streep. Verder 8 jaar garantie op >4 producten. Bevalt goed iig. Tov Bosch/Siemens kan je geen flater slaan.

Volgens mij wel op afspraak ivm krona.

  • BasvanS
  • Registratie: Juli 2001
  • Laatst online: 20:49
Om de woning gasloos te maken moet ik er toch aan geloven:

Mijn 2 jaar oude Siemens IQ500 (EC9A5SS90N) moet worden vervangen door een inductieplaat.

Nu lukt het me op 1 of andere manier niet veel inductie platen te vinden met nis afmetingen van 850 mm * 490 mm. Moet ook een opbouw zijn.

Waar kan ik beste kijken voor wat vergelijkingen?

  • Marinos83
  • Registratie: Juli 2019
  • Laatst online: 07-02 21:32
Vraagje voor de mensen met een downdraft inductieplaat:
Hebben jullie problemen met de plaatsing van de pannen als je meer dan 2 pannen gebruikt? Dat ze niet goed achter elkaar passen? Of niet volledig warm worden?

Het valt me namelijk op dat de twee zones links en rechts redelijk dicht op elkaar zitten, vaak omdat de zones gekoppeld kunnen worden. De voornaamste uitzondering is de bora puru want die zitten iets schuin van elkaar met bediening in het midden waardoor er iets meer ruimte voor de pannen is (een centimeter of 3, maar toch, alle beetjes helpen).
Nadeel van de puru vind ik dan weer dat de twee achterste zones klein zijn, dus sowieso al niet voor een grote pan bedoeld. Die zijn namelijk 175 mm diameter rond. En dus niet koppelbaar.
We hebben nu een Pelgrim IKR4082F in de order staan. Daar zitten de pitten dus 3 cm dichter op elkaar. En zijn iets groter, namelijk rechthoeken van 192,5 x 225 mm dus wel beter geschilt voor een grotere pan. We koken niet vaak met meerdere (grote) pannen maar ik merk dat ik toch even twijfel omdat het wel fijn is als het gweoon kan zonder te proppen.

We hebben het in de showroom ook even uitgeprobeerd met een koekepan en een redelijke kookpan. Op de bora puru passen ze achter elkaar maar is de zone dus te klein voor de bodem, op de pelgrim staan ze tegen elkaar aan wat ook weer niet optimaal is.

[ Voor 10% gewijzigd door Marinos83 op 05-12-2021 14:10 ]


  • codeneos
  • Registratie: Augustus 2004
  • Laatst online: 18-04 20:51

codeneos

[...]

MacbookProx schreef op zondag 5 december 2021 @ 12:31:
[...]


In Duiven zit een experience center met alle apparatuur. Tevens Etna en nog wat merken.

Hielp ons over de streep. Verder 8 jaar garantie op >4 producten. Bevalt goed iig. Tov Bosch/Siemens kan je geen flater slaan.

Volgens mij wel op afspraak ivm krona.
Dank je voor de tip, had geen idee dat ze een experience center hadden! Gaan we daar proberen een afspraak te maken :). Die extra garantie wist ik ook nog niet, dat is toch 3 jaar meer dan dat je bij Siemens/Bosch krijgt.

http://www.tweakers.net/gallery/119170/sys


  • KaleVis
  • Registratie: Juni 2013
  • Laatst online: 23-07-2024
Gisteren bij de lokale keukenzaak een keuken laten intekenen voor onze nieuwbouwwoning.

Het betreft een Nobilia 945 easytouch keuken.

De apparatuur:
Kookplaat: Etna KIF680DS
Koelkast: Etna KKS4178 / L
Afzuigkap: Etna AD780ZT
Oven met magentron 2x: Etna CM650TI
Vriezer: Siemens GI11VADE0
Vaatwasser: Etna VW744M

De kraan is een Caressi CA105BKECO en de spoelbak is een Caressi CAGRPP50BK-FL

Wij wonen in de buurt van Duiven, dus hierna nog even naar Etna geweest om te kijken naar de apparatuur. Erg mooi spul. Ik zag ook dat de reviews van onze uitgekozen apparatuur erg goed waren op o.a. Kieskeurig.

Dit was onze eerste afspraak en deze is goed bevallen. De prijs waar wij op uitkwamen was 13.180 euro inclusief montage en plaatsing.

Het werkblad is van kunsstof in de kleur Ferro brons. De kastjes zijn 961 Laklaminaat, grafietzwart ultramat.
Voor het idee zijn nu even nisjes ingetekend in de schets. Dit zijn ondiepe nisjes van 14 centimeter, aangezien de meterkast hierachter zit.

Wat vinden jullie van de opstelling en van de prijs?
PS: op de tekening is de kraan zilver, deze is hier nog verkeerd ingetekend. Deze wordt dan ook zwart.

Afbeeldingslocatie: https://tweakers.net/i/wfAb-up4DLzFrLk2u-NxcjZeX3w=/800x/filters:strip_exif()/f/image/uve92XVryetrfgagE2s5cT0N.png?f=fotoalbum_large

Afbeeldingslocatie: https://tweakers.net/i/O6hiS6zuf9M7r-Mpgsf8tEBwysE=/800x/filters:strip_exif()/f/image/Sb6ci2bjXUMR7nDeRJwNWFtF.png?f=fotoalbum_large

Afbeeldingslocatie: https://tweakers.net/i/5iGGArLoM5l9dNSyNrkh27kuVTo=/800x/filters:strip_exif()/f/image/0g0QNw1nJKSuz2w2O2cYtAxg.png?f=fotoalbum_large

Afbeeldingslocatie: https://tweakers.net/i/7Mh-rytJRGWjyd8AV4yqilLs2Nk=/800x/filters:strip_exif()/f/image/fXmQwzlAD0FimAkrrItQdMkU.png?f=fotoalbum_large

[ Voor 8% gewijzigd door KaleVis op 05-12-2021 17:59 ]


  • millerman_sf
  • Registratie: Augustus 2011
  • Laatst online: 13:49
Gisteren bij Miele in Vianen geweest. Mooi spul en veel wijzer geworden van de demonstratie. Maar een adviesgesprek is echt nutteloos als je zelf een catalogus hebt. De opstellingen zijn veel minder overzichtelijk dan bijvoorbeeld bij BSH, dus we hoopten dat de medewerkers daar een beetje verstand van zaken hadden. De dame in kwestie moest alles opzoeken en zei vooral dat we het bij de demonstratie wel zouden zien. En de ene vaatwasser was 2x zo stil als de andere, omdat het 1dB scheelde. Tja, dan haak ik wel een beetje af. Voor wie dit ook nog gaat plannen: slaap vooral een uurtje langer uit en woon alleen de demonstratie bij!

Maar goed, de kans is groot dat we Miele/Liebherr gaan krijgen in het nieuwe huis. Je koopt gelukkig alleen de apparatuur en niet de verkoper.

  • Source90
  • Registratie: December 2008
  • Laatst online: 20:23
millerman_sf schreef op zondag 5 december 2021 @ 23:17:
Gisteren bij Miele in Vianen geweest. Mooi spul en veel wijzer geworden van de demonstratie. Maar een adviesgesprek is echt nutteloos als je zelf een catalogus hebt. De opstellingen zijn veel minder overzichtelijk dan bijvoorbeeld bij BSH, dus we hoopten dat de medewerkers daar een beetje verstand van zaken hadden. De dame in kwestie moest alles opzoeken en zei vooral dat we het bij de demonstratie wel zouden zien. En de ene vaatwasser was 2x zo stil als de andere, omdat het 1dB scheelde. Tja, dan haak ik wel een beetje af. Voor wie dit ook nog gaat plannen: slaap vooral een uurtje langer uit en woon alleen de demonstratie bij!

Maar goed, de kans is groot dat we Miele/Liebherr gaan krijgen in het nieuwe huis. Je koopt gelukkig alleen de apparatuur en niet de verkoper.
Vond ik ook, tijdje terug ook gepost dat de chef meer wist van de apparatuur dan de adviseurs :)
Vond de info bij de apparaten ook summier. Moest echt zoeken naar typenummers/modellen.

  • Joove
  • Registratie: Januari 2001
  • Laatst online: 20:39
KaleVis schreef op zondag 5 december 2021 @ 17:57:
[...]

Wat vinden jullie van de opstelling en van de prijs?
Mooi gekozen opstelling, wij hebben een zeer vergelijkbare opstelling gekozen. De render bij het lage gedeelte met de kookplaat lijkt niet te kloppen. Op de tekening zit er een kastje van 30 cm tussen, maar in de render lijkt de kookplaat bijna tegen de muur te zitten. Ik zou overwegen om aan de rechterkant een kast van 100 cm of 120 cm (of 2 keer 60 cm, maar voor pannen niet optimaal) te plaatsen, i.p.v. de 2 kastjes van 80 en 30, dan ziet het er weer strakker uit. De kookplaat kan je dan aan de linkerkant van de kast plaatsen, zodat je rechts wat meer ruimte hebt.

Wij hebben de vaatwasser echter op de hoek geplaatst (i.p.v tussen de spoelbak en kookplaat), zodat wanneer de vaatwasser open staat hij niet in de weg zit tussen het koken en spoelen/snijden. Hierdoor komen de kasten met horizontale greeplijsten ook bij elkaar te zitten.

  • Z___Z
  • Registratie: Maart 2002
  • Niet online
millerman_sf schreef op zondag 5 december 2021 @ 23:17:
Gisteren bij Miele in Vianen geweest. Mooi spul en veel wijzer geworden van de demonstratie. Maar een adviesgesprek is echt nutteloos als je zelf een catalogus hebt. De opstellingen zijn veel minder overzichtelijk dan bijvoorbeeld bij BSH, dus we hoopten dat de medewerkers daar een beetje verstand van zaken hadden. De dame in kwestie moest alles opzoeken en zei vooral dat we het bij de demonstratie wel zouden zien. En de ene vaatwasser was 2x zo stil als de andere, omdat het 1dB scheelde. Tja, dan haak ik wel een beetje af. Voor wie dit ook nog gaat plannen: slaap vooral een uurtje langer uit en woon alleen de demonstratie bij!

Maar goed, de kans is groot dat we Miele/Liebherr gaan krijgen in het nieuwe huis. Je koopt gelukkig alleen de apparatuur en niet de verkoper.
Wij zijn ook geweest dit najaar. Ik vond het vooral onhandig dat de apparaten niet gesorteerd in de showroom stonden, maar er random door de ruimte verspreid staan. Ik denk als je wil kiezen en twijfelt, je meestal twijfelt tussen 2 modellen die dichtbij elkaar in de range zitten. Dus sortering van laag naar hoog ofzo zou wel zo handig zijn. Maar ja ik ben geen marketeer, dus het heeft vast een marketing doel om de apparatuur op deze manier neer te zetten.

De medewerker kon je de apparatuur laten zien, maar je had er inderdaad weinig aan als adviseur.

  • Markus29
  • Registratie: Oktober 2010
  • Laatst online: 28-04 16:01
Toke_gt schreef op donderdag 2 december 2021 @ 16:29:
[...]

Ook een kwestie van smaak (en je geeft niet aan dat je erover twijfelt, maar toch…): ik vind de twee hoge kasten links en rechts niet zo mooi. Zou ze liever links tegen elkaar aan plaatsen en het werkblad met de spoelbak (of kookplaat) meer naar het raam. Dan is je keuken op de tekening minder gespiegeld, maar in de praktijk heb je dat effect toch niet zo sterk. Je bent namelijk wat minder nadrukkelijk ‘tussen de kasten’ aan het werk (zeker omdat aan de rechterkant een raam zit) maar ook sta je niet met de ruggen tegen elkaar als je met tweeën in de keuken staat. Zeker als je de kookplaat niet in het eiland opneemt, vind ik het ook stijlvoller, omdat de afzuigkap dan veel mooier uitkomt (of een wandplank met kruiden of zo, als je bladafzuiging kiest).
Bedankt voor de suggestie, vindt de huidige schets er wat strakker uit zien, maar i.c.m. een schiereiland zou het wel wat zijn.
sNielz123 schreef op donderdag 2 december 2021 @ 17:50:
@Markus29 Hoe groot is je eiland? Het oogt wat klein. Ik zou eerder voor een langer schiereiland gaan. En dan inderdaad koken op het eiland zodat je de ruimte in kijkt.

Edit: Gaat je eettafel ook in die ruimte komen? Hoe groot is de ruimte?
Nee die komt in de eethoek, de keuken komt in een nog te bouwen aanbouw, die wordt 3,70 x 5,75m. Ruimte genoeg dus. Het eiland zoals nu getekend is 180x90cm. Aan een schiereiland hebben we ook wel even gedacht, daar hebben we uiteindelijk niet voor gekozen om dat je dan wat meer in de loop van die tuindeur zou zitten voor ons gevoel. Nou zijn de kozijnen in de achtergevel toch weer aangepast sinds onderstaande tekening, de tuindeur komt iets naar rechts en het raamkozijn wordt 2m breed. Al met al zou een schiereiland wel weer kunnen.

Afbeeldingslocatie: https://tweakers.net/i/hOq0BBjbiDhYmugLNKWreqGqvWQ=/800x/filters:strip_exif()/f/image/3LvGTZT1q6j1Z1frKP2kO99Y.png?f=fotoalbum_large

  • olafmol
  • Registratie: April 2002
  • Laatst online: 17:23
Allemaal hele goeie tips en adviezen in deze thread, tnx allemaal, erg waardevol!

Toch nog een vraagje over apparatuur: we gaan onze complete keuken vervangen, daarin zit best wel een flinke inbouw koel/vries combi (whirlpool, koelkast: 193liter, vriezer: 61liter) maar we merken dat vooral het vriesgedeelte wat krap voor ons gezin begint te worden.

Dus we zijn daarom op zoek naar minimaal ca 80-90 liter vriesinhoud, bij dezelfde inhoud koelkast. No-frost is een vereiste.

Nu kan ik niet echt inbouw-combi's vinden met die volumes, dus ik zat daarom te denken aan 2 aparte inbouw-units voor koel en voor vries (bv de AEG ABE812E6NC en de Siemens KI51RADF0). Omdat we in een jaren 30 rijtjeshuis wonen hebben we niet onbeperkt ruimte, en is het idee "om het hoekje" een hoge apparatuur-kast te plaatsen.

Is het praktisch slim/handig om daar 2 losse koel en vries units van dit formaat te plaatsen? Ik denk dat ze dan wel naast elkaar moeten ipv boven elkaar om nog bereikbaar te zijn. Voor de combi-oven zat ik te denken om die dan gewoon onder de 90cm inductie-kookplaat in te bouwen, ipv op ooghoogte in die apparatuurkast, waar deze meestal in ontwerpen wordt ingetekend. Dan moeten we alleen nog ergens een plek vinden voor een kleine magnetron, die gebruiken we niet heel vaak, dus een inbouw lijkt me eigenlijk een "waste of space", dan liever een losse unit op het keukenblad of in een nis ergens? Of toch dan boven de koelkast of vrieskast inbouwen?

Als het echt te onhandig is moeten we misschien dan toch op zoek naar een koel/vries combi en onze wens voor meer vriesruimte opgeven. Maar misschien zijn er slimme opties.

Lastige keuzes, ik merk wel dat ik gebruiksvriendelijkheid en gemak HEEL erg belangrijk vindt, en dat dat bij de meeste keukenontwerpers/adviezen eigenlijk ondergeschikt lijkt aan design, materiaal en kleuren. Daarom ben ik hier in dit forum ook zo onder de indruk van de adviezen van @Toke_gt die geeft op gebied van gebruiksvriendelijkheid en praktische zaken superwaardevolle feedback.

Vragen vragen, hopelijk hebben jullie nog wat feedback/richting gevende tips voor ons :)

  • LaTiNo156
  • Registratie: Januari 2003
  • Laatst online: 07-05 18:33
XQ! schreef op vrijdag 3 december 2021 @ 18:39:
We zijn al een tijdje aan het kijken naar een keuken voor in ons nieuwbouwhuis en hebben een Siematic SLX keuken met LED verlichting rondom het eiland en kastenwand op het oog. Dit hebben wij in de afgelopen weken verder uitgewerkt met een partij en we kwamen tot de volgende opstelling:


[Afbeelding]
Ik ben vanaf dag 1 een groot fan van die verticale greeplijsten met leds van Siematic!
Maar ik denk dat 4 iets teveel van het goede zijn. Misschien 2 aan de buitenkant?
[...]

Wij hadden niet echt een sterke voorkeur en eisen voor de vaatwasser en hebben op aanraden van de verkoper voor dit model gekozen. Opties zoals Home Connect, Auto Open, Brilliantshine en zeolith systeem hebben wij denk ik niet nodig. Maar mochten anderen dit wel van toegevoegde waarde vinden, dan horen we het uiteraard graag!
Zeolith werkt toch best goed om te drogen! Vooral plastic komt er vele malen droger uit dan met onze vorige vaatwasser.

  • Toke_gt
  • Registratie: Juni 2021
  • Laatst online: 15:10
olafmol schreef op maandag 6 december 2021 @ 10:27:
Lastige keuzes, ik merk wel dat ik gebruiksvriendelijkheid en gemak HEEL erg belangrijk vindt, en dat dat bij de meeste keukenontwerpers/adviezen eigenlijk ondergeschikt lijkt aan design, materiaal en kleuren. Daarom ben ik hier in dit forum ook zo onder de indruk van de adviezen van @Toke_gt die geeft op gebied van gebruiksvriendelijkheid en praktische zaken superwaardevolle feedback.
Wat leuk om te horen @olafmol ! Ik ben geen keukenexpert of designer, maar vind het erg leuk om te helpen nadenken over een goede inrichting. Bij mijn eerste te ontwerpen keuken (>20 jaar gelden) merkte ik dat keukenontwerpers vooral oog hebben voor design en ook niet per se luisteren naar praktische wensen van klanten. Daar ergerde ik me aan, dus vanaf die keuken heb ik altijd eigen design gemaakt en zo ondervonden wat valkuilen en handigheidjes zijn. Bij toeval ontdekte ik dit topic en daar kan ik mijn ei kwijt. Fijn dat het gewaardeerd wordt!

  • BlowFish
  • Registratie: Maart 2004
  • Laatst online: 21-04 22:32
Het hoofdstuk keuken is dan voor ons nu echt afgesloten. Hierbij mijn close-out post :)

Nogmaals bedankt voor de vele nuttige tips en inspirerende foto’s. Vooral dat laatste vind ik altijd leuk om te zien dus daarom ook hieronder een uitgebreide fotocollage!

Keuken (Keukenloods Roosendaal):
  • Pronorm X-EV 912 wildeikenzwart
  • Pro-tech 2.0 antraciet laden
Werkblad (keuken bladen fabriek) :
  • Quartzite “taj mahal’
Apparatuur (Keukenloods):
  1. Miele combi-stoomoven DGC7845X
  2. Miele oven H7860BX
  3. Miele inbouw koffie CVA7845
  4. Miele warmhoudlade ESW7010 (2x)
  5. Miele inductie kookplaat met afzuiging KMDA7476 FL
  6. Miele Vriezer FNS37405I
  7. Miele Koelkast K7743E
  8. Miele Vaatwasser G7472 SCvi
  9. Quooker Combi+ Goud
Keuken impressies:

Afbeeldingslocatie: https://tweakers.net/i/BlernmwG0VJtkx-gCpjf2PKrcqM=/800x/filters:strip_icc():strip_exif()/f/image/QI0zbrAIfJ28rVUMYhvgPJ59.jpg?f=fotoalbum_large

Afbeeldingslocatie: https://tweakers.net/i/OuO4Ri8dMydBrEfchIheTAKMT9g=/800x/filters:strip_icc():strip_exif()/f/image/bdBrO3nCHhzgnjmfxg8OG35T.jpg?f=fotoalbum_large

Afbeeldingslocatie: https://tweakers.net/i/TCqQaCGhgYuVoe3e92PraEP9frY=/800x/filters:strip_icc():strip_exif()/f/image/sZXMCyLi5T4j9K7Slla9AfWI.jpg?f=fotoalbum_large

Afbeeldingslocatie: https://tweakers.net/i/Irfsx-DW0RFT5-IIHDptXoVHEY0=/800x/filters:strip_icc():strip_exif()/f/image/Trrs5Qkx98FcH6PG2GDtanXT.jpg?f=fotoalbum_large

Afbeeldingslocatie: https://tweakers.net/i/lgUMAG9WZ5ykjzem2ICfjHttIW8=/800x/filters:strip_icc():strip_exif()/f/image/bIoNHh3fDLo5Ss9sfrcIaQ4I.jpg?f=fotoalbum_large

Afbeeldingslocatie: https://tweakers.net/i/I8HWPokVFBk8VZL632-N2Rzantk=/800x/filters:strip_icc():strip_exif()/f/image/phckJBDABYMTVLMBms8O9Bl3.jpg?f=fotoalbum_large

Afbeeldingslocatie: https://tweakers.net/i/eFEceMvcXGqRzXWfCXGNoOOAWfw=/x800/filters:strip_icc():strip_exif()/f/image/P1sWx7WkmiNqEU0NG5EDRqYn.jpg?f=fotoalbum_large

We zijn zeer tevreden. Indien er vragen over ervaringen zijn met apparaten en of leveranciers hoor ik het graag ;)

[ Voor 4% gewijzigd door BlowFish op 06-12-2021 11:06 ]


  • SquareOne
  • Registratie: Januari 2010
  • Laatst online: 20:51
BlowFish schreef op maandag 6 december 2021 @ 11:05:
Het hoofdstuk keuken is dan voor ons nu echt afgesloten. Hierbij mijn close-out post :)

Nogmaals bedankt voor de vele nuttige tips en inspirerende foto’s. Vooral dat laatste vind ik altijd leuk om te zien dus daarom ook hieronder een uitgebreide fotocollage!

Keuken (Keukenloods Roosendaal):
  • Pronorm X-EV 912 wildeikenzwart
  • Pro-tech 2.0 antraciet laden
Werkblad (keuken bladen fabriek) :
  • Quartzite “taj mahal’
Apparatuur (Keukenloods):
  1. Miele combi-stoomoven DGC7845X
  2. Miele oven H7860BX
  3. Miele inbouw koffie CVA7845
  4. Miele warmhoudlade ESW7010 (2x)
  5. Miele inductie kookplaat met afzuiging KMDA7476 FL
  6. Miele Vriezer FNS37405I
  7. Miele Koelkast K7743E
  8. Miele Vaatwasser G7472 SCvi
  9. Quooker Combi+ Goud
Keuken impressies:

[Afbeelding]

[Afbeelding]

[Afbeelding]

[Afbeelding]

[Afbeelding]

[Afbeelding]

[Afbeelding]

We zijn zeer tevreden. Indien er vragen over ervaringen zijn met apparaten en of leveranciers hoor ik het graag ;)
Prachtige keuken en prachtige woning! Complimenten, alles klopt :*)

  • Morpheusk
  • Registratie: April 2008
  • Laatst online: 18:57
BlowFish schreef op woensdag 13 oktober 2021 @ 19:03:
Update:

De werkbladenfabriek heeft het blad vandaag geplaatst. Vakmannen gingen heel nauwkeurig te werk echt een aanrader!

[Afbeelding]

[Afbeelding]

[Afbeelding]

[Afbeelding]

(Nog steeds wip. Vaatwasser moet geplaatst worden, Miele oven en koffie op hoogte aangepast en Quooker en kookplaat aangesloten).

We zijn wel heel blij met hoe de kleuren en keuzes tot dus uitpakken! 😃
Mooie keuken en een nette prijs, zover ik kan inschatten. Waar heb je de keuken gekocht?

Hier stond een link voor een Goldcard 1 jaar gratis + 20.000 punten.


  • Mryc
  • Registratie: April 2018
  • Laatst online: 07-05 13:25
BeaM-R schreef op zaterdag 4 december 2021 @ 20:29:
Aantal weken geleden een keuken besteld die begin februari geplaatst gaat worden. Gisteren echter een telefoontje gehad van de keukenleverancier dat de levertijden voor de Siemens apparatuur (alles in ons geval) oplopen naar 6 tot 9 maanden....
Meer mensen hier iets over gehoord?
Naar aanleiding van jouw bericht hebben we onze keukenleverancier even gemaild. Ons huis wordt naar verwachting pas in Q4 2022 opgeleverd, maar als de levertijden zo hard oplopen, is toch wel de vraag hoe (mogelijk) voorkomen kan worden dat we in het slechtste geval na oplevering nog maanden zonder apparatuur zitten.

Antwoord van de keukenleverancier
Members only:
Alleen zichtbaar voor ingelogde gebruikers. Inloggen
was dat de levertijden, met name van ovens erg oplopen, waarbij het probleem bij elke apparatenleverancier aan de orde is. Het ziet er tegen naar uit dat dit zeker nog tot eind volgend jaar gaat duren, maar dat het in de loop van volgend jaar wel wat gaat verbeteren. Hij stelt daarom voor om al vroeg de apparatuur te bestellen. Wat ons betreft prima.

  • Source90
  • Registratie: December 2008
  • Laatst online: 20:23
BlowFish schreef op maandag 6 december 2021 @ 11:05:
Het hoofdstuk keuken is dan voor ons nu echt afgesloten. Hierbij mijn close-out post :)

Nogmaals bedankt voor de vele nuttige tips en inspirerende foto’s. Vooral dat laatste vind ik altijd leuk om te zien dus daarom ook hieronder een uitgebreide fotocollage!

Keuken (Keukenloods Roosendaal):
  • Pronorm X-EV 912 wildeikenzwart
  • Pro-tech 2.0 antraciet laden
Werkblad (keuken bladen fabriek) :
  • Quartzite “taj mahal’
Apparatuur (Keukenloods):
  1. Miele combi-stoomoven DGC7845X
  2. Miele oven H7860BX
  3. Miele inbouw koffie CVA7845
  4. Miele warmhoudlade ESW7010 (2x)
  5. Miele inductie kookplaat met afzuiging KMDA7476 FL
  6. Miele Vriezer FNS37405I
  7. Miele Koelkast K7743E
  8. Miele Vaatwasser G7472 SCvi
  9. Quooker Combi+ Goud
Keuken impressies:

[Afbeelding]

[Afbeelding]

[Afbeelding]

[Afbeelding]

[Afbeelding]

[Afbeelding]

[Afbeelding]

We zijn zeer tevreden. Indien er vragen over ervaringen zijn met apparaten en of leveranciers hoor ik het graag ;)
Heel mooi!
Ben benieuwd naar jouw ervaring met de apparaten. Wij hebben straks dezelfde ovens en vaatwasser 🎉.

  • LaTiNo156
  • Registratie: Januari 2003
  • Laatst online: 07-05 18:33
BlowFish schreef op maandag 6 december 2021 @ 11:05:
Het hoofdstuk keuken is dan voor ons nu echt afgesloten. Hierbij mijn close-out post :)

We zijn zeer tevreden. Indien er vragen over ervaringen zijn met apparaten en of leveranciers hoor ik het graag ;)
Ja, wat voor TV is dat? ;)

Haha, nee hoor, het ziet er prachtig uit! Die 3 zwarte apparaten op rij zien er prachtig uit!

  • MacbookProx
  • Registratie: September 2011
  • Laatst online: 22-03 00:35
BlowFish schreef op maandag 6 december 2021 @ 11:05:
Het hoofdstuk keuken is dan voor ons nu echt afgesloten. Hierbij mijn close-out post :)

Nogmaals bedankt voor de vele nuttige tips en inspirerende foto’s. Vooral dat laatste vind ik altijd leuk om te zien dus daarom ook hieronder een uitgebreide fotocollage!

Keuken (Keukenloods Roosendaal):
  • Pronorm X-EV 912 wildeikenzwart
  • Pro-tech 2.0 antraciet laden
Werkblad (keuken bladen fabriek) :
  • Quartzite “taj mahal’
Apparatuur (Keukenloods):
  1. Miele combi-stoomoven DGC7845X
  2. Miele oven H7860BX
  3. Miele inbouw koffie CVA7845
  4. Miele warmhoudlade ESW7010 (2x)
  5. Miele inductie kookplaat met afzuiging KMDA7476 FL
  6. Miele Vriezer FNS37405I
  7. Miele Koelkast K7743E
  8. Miele Vaatwasser G7472 SCvi
  9. Quooker Combi+ Goud
Keuken impressies:

[Afbeelding]

[Afbeelding]

[Afbeelding]

[Afbeelding]

[Afbeelding]

[Afbeelding]

[Afbeelding]

We zijn zeer tevreden. Indien er vragen over ervaringen zijn met apparaten en of leveranciers hoor ik het graag ;)
Fraai, hier een soortgelijke keuken qua stijl, maar kleiner.

Studio Henk eetkamerstoelen? Maar Hay AAS32 frame, zonder de bekende kuipjes?

  • Flix20
  • Registratie: Oktober 2011
  • Laatst online: 14:11
LaTiNo156 schreef op maandag 6 december 2021 @ 12:09:
[...]


Ja, wat voor TV is dat? ;)

Haha, nee hoor, het ziet er prachtig uit! Die 3 zwarte apparaten op rij zien er prachtig uit!
offtopic:
LG G serie :+

PSN: Flix20-NL


  • Alic3
  • Registratie: Juli 2020
  • Laatst online: 05-07-2024
@BlowFish Prachtige keuken! Ligt het kwarsiet nu in bookmatch? Is de hele gootsteen in kwartsiet of heb je een rvs bodem? En welke lamp heb je boven de eetkamertafel?

  • LaTiNo156
  • Registratie: Januari 2003
  • Laatst online: 07-05 18:33
Alic3 schreef op maandag 6 december 2021 @ 12:31:
@BlowFish Prachtige keuken! Ligt het kwarsiet nu in bookmatch? Is de hele gootsteen in kwartsiet of heb je een rvs bodem? En welke lamp heb je boven de eetkamertafel?
Goede vraag, want je hebt ook een quooker, dus het moet wel hittebestendig zijn?

  • BlowFish
  • Registratie: Maart 2004
  • Laatst online: 21-04 22:32
Alic3 schreef op maandag 6 december 2021 @ 12:31:
@BlowFish Prachtige keuken! Ligt het kwarsiet nu in bookmatch? Is de hele gootsteen in kwartsiet of heb je een rvs bodem? En welke lamp heb je boven de eetkamertafel?
Bedankt :)

Blad is inderdaad in "bookmatch" en de wasbak in hetzelfde materiaal (andere materialen waren gewoon geen optie.. zwart/wit/messing.. allemaal net niet). Dit gaat prima is 1 geheel en wel mogelijk met Quooker.

De lamp: https://anour.dk/product/i-model/
(2m lang, cordless in polished brass :*) )
LaTiNo156 schreef op maandag 6 december 2021 @ 12:09:
[...]


Ja, wat voor TV is dat? ;)

Haha, nee hoor, het ziet er prachtig uit! Die 3 zwarte apparaten op rij zien er prachtig uit!
LG OLED 77" G1 _/-\o_

[ Voor 18% gewijzigd door BlowFish op 06-12-2021 13:22 ]


  • BlowFish
  • Registratie: Maart 2004
  • Laatst online: 21-04 22:32
MacbookProx schreef op maandag 6 december 2021 @ 12:11:
[...]


Fraai, hier een soortgelijke keuken qua stijl, maar kleiner.

Studio Henk eetkamerstoelen? Maar Hay AAS32 frame, zonder de bekende kuipjes?
Goed gezien ODE-chair met Studio henk tafel :)

  • BlowFish
  • Registratie: Maart 2004
  • Laatst online: 21-04 22:32
Source90 schreef op maandag 6 december 2021 @ 12:03:
[...]
Heel mooi!
Ben benieuwd naar jouw ervaring met de apparaten. Wij hebben straks dezelfde ovens en vaatwasser 🎉.
Ik ben er helemaal blij mee. Kook graag en van de stoomoven wordt veel gebruik gemaakt (sous vide koken, maar ook veel opwarmen / regenereren ipv magnetron die je eten kapot 'straalt' ). We hebben de versie met wateraansluiting alsmede ook de koffie. Bevalt heel goed. Maar meest ben ik nog te spreken over de oven wat een heerlijk apparaat is dat :9 . Alle toeters en bellen zitten erop en het menu werkt ook heel fijn op deze apparaten.

  • joostbo
  • Registratie: Juni 2021
  • Laatst online: 29-04 18:58
olafmol schreef op vrijdag 3 december 2021 @ 21:22:
[...]


Check. Ik heb idd geen zin om dat allemaal zelf te gaan organiseren en coördineren. Maar je hebt een punt dat idd een aannemer de eerste stap is, en dan wordt de keuken onderdeel van het project. Idealiter werkt dan de keuken ontwerper/leverancier “onder regie” van de aannemer.

Mensen nog tips voor goede keukenontwerpers in regio Utrecht die in zo’n constructie goed kunnen werken?
Je hoeft geen keukenzaak te vinden die onder zo'n conductie wil werken. Ze werken namelijk na elkaar. Wat denk je hoe dat gaat met al die nieuwbouwwoningen?

1 - je kiest een keuken uit. van de keukenzaak krijg je een technische tekening waar alle elektrische aansluitingen moeten zitten van apparatuur en water afvoer en toevoer, etc.

2 - je belt een aannemer, die overhandig je de technische tekening van de keukenzaak + eventueel extra aansluitpunten die jij zelf wenst + extra werk van de woning zoals stukadoren / schilderen of andere zaken.

3 - je stemt af met de aannemer wanneer je wil starten / gereed wil zijn. stel de aannemer is in week 10 klaar, dan laat je week 11 de keuken komen.

stel de aannemer loopt uit, dan is een keukenzaak ook wel flexibel. Die hebben immers vaak genoeg hier mee te maken met alle renovatie en nieuwbouwwoningen.

Als je nu naar zo'n one-stop-shop gaat dan beperk je je onnodig, totaal niet nodig en kost alleen maar meer geld. want zo'n keukenzaak doet verder niets behalve deze opdracht bij een aannemer neerleggen.

  • olafmol
  • Registratie: April 2002
  • Laatst online: 17:23
joostbo schreef op maandag 6 december 2021 @ 15:00:
[...]


Je hoeft geen keukenzaak te vinden die onder zo'n conductie wil werken. Ze werken namelijk na elkaar. Wat denk je hoe dat gaat met al die nieuwbouwwoningen?

1 - je kiest een keuken uit. van de keukenzaak krijg je een technische tekening waar alle elektrische aansluitingen moeten zitten van apparatuur en water afvoer en toevoer, etc.

2 - je belt een aannemer, die overhandig je de technische tekening van de keukenzaak + eventueel extra aansluitpunten die jij zelf wenst + extra werk van de woning zoals stukadoren / schilderen of andere zaken.

3 - je stemt af met de aannemer wanneer je wil starten / gereed wil zijn. stel de aannemer is in week 10 klaar, dan laat je week 11 de keuken komen.

stel de aannemer loopt uit, dan is een keukenzaak ook wel flexibel. Die hebben immers vaak genoeg hier mee te maken met alle renovatie en nieuwbouwwoningen.

Als je nu naar zo'n one-stop-shop gaat dan beperk je je onnodig, totaal niet nodig en kost alleen maar meer geld. want zo'n keukenzaak doet verder niets behalve deze opdracht bij een aannemer neerleggen.
Dank, helder. Ik denk dat het bij ons ietsje lastiger verloopt omdat het een verbouwing is van een jaren30 woning met al een bestaande keuken. Dan krijg je al snel een "kip & ei" situatie: de keukenontwerper wil graag weten wat de ruimte is, wat er allemaal wel en niet kan, en de aannemer wil graag weten welke keuken erin komt. Anyway, langzaam maar zeker wordt het gelukkig steeds duidelijker wat er wel en niet kan in onze woning, wat dat kost, en welke keukens daar dan bij passen en wat we mooi vinden. Dank voor het meedenken :)

  • LaTiNo156
  • Registratie: Januari 2003
  • Laatst online: 07-05 18:33
joostbo schreef op maandag 6 december 2021 @ 15:00:
[...]


Je hoeft geen keukenzaak te vinden die onder zo'n conductie wil werken. Ze werken namelijk na elkaar. Wat denk je hoe dat gaat met al die nieuwbouwwoningen?

1 - je kiest een keuken uit. van de keukenzaak krijg je een technische tekening waar alle elektrische aansluitingen moeten zitten van apparatuur en water afvoer en toevoer, etc.

2 - je belt een aannemer, die overhandig je de technische tekening van de keukenzaak + eventueel extra aansluitpunten die jij zelf wenst + extra werk van de woning zoals stukadoren / schilderen of andere zaken.

3 - je stemt af met de aannemer wanneer je wil starten / gereed wil zijn. stel de aannemer is in week 10 klaar, dan laat je week 11 de keuken komen.

stel de aannemer loopt uit, dan is een keukenzaak ook wel flexibel. Die hebben immers vaak genoeg hier mee te maken met alle renovatie en nieuwbouwwoningen.

Als je nu naar zo'n one-stop-shop gaat dan beperk je je onnodig, totaal niet nodig en kost alleen maar meer geld. want zo'n keukenzaak doet verder niets behalve deze opdracht bij een aannemer neerleggen.
Dat ligt heel erg aan de keukenzaak. DB Keukens hebben eigen monteurs en doen zaken met vaste aannemers die dus door hen zijn 'goedgekeurd'.
We hebben nog een andere aannemer een offerte gevraagd en die was zelfs duurder.

HET voordeel vind ik dat de keukenzaak nooit naar jou zal kunnen wijzen als er iets niet goed is gedaan nav de technische tekening of iets dergelijks.

  • Morpheusk
  • Registratie: April 2008
  • Laatst online: 18:57
olafmol schreef op maandag 6 december 2021 @ 15:11:
[...]


Dank, helder. Ik denk dat het bij ons ietsje lastiger verloopt omdat het een verbouwing is van een jaren30 woning met al een bestaande keuken. Dan krijg je al snel een "kip & ei" situatie: de keukenontwerper wil graag weten wat de ruimte is, wat er allemaal wel en niet kan, en de aannemer wil graag weten welke keuken erin komt. Anyway, langzaam maar zeker wordt het gelukkig steeds duidelijker wat er wel en niet kan in onze woning, wat dat kost, en welke keukens daar dan bij passen en wat we mooi vinden. Dank voor het meedenken :)
En niet te vergeten is dat alles onder de regie van de aannemer valt. Dit kost een paar % extra. Maar je krijgt bijv. ook geen discussie's bij een kras op de vloer, wie die kras nu gemaakt heeft.

Hier stond een link voor een Goldcard 1 jaar gratis + 20.000 punten.


  • joostbo
  • Registratie: Juni 2021
  • Laatst online: 29-04 18:58
LaTiNo156 schreef op maandag 6 december 2021 @ 15:12:
[...]


Dat ligt heel erg aan de keukenzaak. DB Keukens hebben eigen monteurs en doen zaken met vaste aannemers die dus door hen zijn 'goedgekeurd'.
We hebben nog een andere aannemer een offerte gevraagd en die was zelfs duurder.

HET voordeel vind ik dat de keukenzaak nooit naar jou zal kunnen wijzen als er iets niet goed is gedaan nav de technische tekening of iets dergelijks.
Je kunt weinig mis doen met die technische tekening. die is zo duidelijk, dat laat niets te wensen over. En als er wel wat is, dan kun je bij de aannemer terecht. En de meeste keukenzaken hebben wel mannetjes die wat elektra en leidingwerk doen. Maar als je het hebt over een complete verbouwing van een jaren 30 woning dan is het normaal zo dat een aannemer de verbouwing doet en de keukenzaak de keuken.

Net als bij een nieuwbouwhuis de aannemer een huis bouwt en de keukenzaak de keuken ;)

Komt misschien ook omdat ik te vaak het niet goed heb zien gaan (ook via aannemers overigens). Mijn mijn schoonzus nog onlangs met de keuken (ook via keukenzaak) stond er ineens een niet nederlands sprekende bulgaar die elektra ging doen. uiteindelijk bleken er een cm hoogte verschil tussen de stopcontacten te zitten. Dat viel pas echt op toen de keuken er in zat omdat je dan dat goed ziet met het blad er vlak onder. Ook kwamen er wat polen wat stucwerk doen, dat zag er op het eerste oog wel oke uit maar lieten enorme rotzooi achter.

Ze gaat er nu mee naar de keukenzaak, gaat waarschijnlijk wel opgelost worden, maar ik spreek altijd liever persoonijk zelf met de mensen. liefst zelfs die gene die het werk gaat verrichten.


En daarbovenop bij mij. vloer er uit, vloerverwarming er in, nieuwe vloer er in , stukadoor, elektra en leidingwerk was via een aannemer zo'n 6300 euro duurder als dat ik nu zelf heb geregeld. Ik heb iedereen gesproken die het gaat uitvoeren en recensies van heb via bekenden. ze zijn langs geweest, hadden nog goede ideeën en tips waardoor nog het e.e.a. is aangepast om uiteidelijk tot een perfect resultaat te komen.

Kost alleen wat gesprekken voeren en wat regelwerk, dat wel inderdaad. Maar als perfectionist heb ik dat er ook graag voor over >:)

  • Flix20
  • Registratie: Oktober 2011
  • Laatst online: 14:11
joostbo schreef op maandag 6 december 2021 @ 15:24:
[...]


Je kunt weinig mis doen met die technische tekening. die is zo duidelijk, dat laat niets te wensen over. En als er wel wat is, dan kun je bij de aannemer terecht. En de meeste keukenzaken hebben wel mannetjes die wat elektra en leidingwerk doen. Maar als je het hebt over een complete verbouwing van een jaren 30 woning dan is het normaal zo dat een aannemer de verbouwing doet en de keukenzaak de keuken.
Gevaarlijke aanname.
Zie het helaas maar al te vaak fout gaan ondanks dat de tekeningen duidelijk zijn.

Blijft belangrijk er bovenop te blijven zitten.

PSN: Flix20-NL


  • joostbo
  • Registratie: Juni 2021
  • Laatst online: 29-04 18:58
Flix20 schreef op maandag 6 december 2021 @ 15:32:
[...]


Gevaarlijke aanname.
Zie het helaas maar al te vaak fout gaan ondanks dat de tekeningen duidelijk zijn.

Blijft belangrijk er bovenop te blijven zitten.
ja dit kan nog altijd mis gaan. Ik heb in mijn geval de technische tekening ook bekeken (zag er heel helder en duidelijk uit) en ga het ook zeker nalopen of het klopt. want of ik nu een aannemer, zzp-er of de keukenzaak is die het maakt. Uiteindelijk wil je dat het gewoon goed is.

  • Flix20
  • Registratie: Oktober 2011
  • Laatst online: 14:11
joostbo schreef op maandag 6 december 2021 @ 15:36:
[...]


ja dit kan nog altijd mis gaan. Ik heb in mijn geval de technische tekening ook bekeken (zag er heel helder en duidelijk uit) en ga het ook zeker nalopen of het klopt. want of ik nu een aannemer, zzp-er of de keukenzaak kan aanschrijven. Uiteindelijk wil je dat het gewoon goed is.
Natuurlijk is de tekening voor jezelf heel duidelijk omdat het jouw ontwerp is en dus de gedachtegang achter de tekening weet.

Als je echt wilt testen of de tekening duidelijk is, is door iemand die er inhoudelijk niet bij betrokken is, maar wel enigszins technische tekeningen kan lezen, te laten zien en beoordelen.

PSN: Flix20-NL


  • LaTiNo156
  • Registratie: Januari 2003
  • Laatst online: 07-05 18:33
joostbo schreef op maandag 6 december 2021 @ 15:24:
[...]

Komt misschien ook omdat ik te vaak het niet goed heb zien gaan (ook via aannemers overigens). Mijn mijn schoonzus nog onlangs met de keuken (ook via keukenzaak) stond er ineens een niet nederlands sprekende bulgaar die elektra ging doen. uiteindelijk bleken er een cm hoogte verschil tussen de stopcontacten te zitten. Dat viel pas echt op toen de keuken er in zat omdat je dan dat goed ziet met het blad er vlak onder. Ook kwamen er wat polen wat stucwerk doen, dat zag er op het eerste oog wel oke uit maar lieten enorme rotzooi achter.


En daarbovenop bij mij. vloer er uit, vloerverwarming er in, nieuwe vloer er in , stukadoor, elektra en leidingwerk was via een aannemer zo'n 6300 euro duurder als dat ik nu zelf heb geregeld. Ik heb iedereen gesproken die het gaat uitvoeren en recensies van heb via bekenden. ze zijn langs geweest, hadden nog goede ideeën en tips waardoor nog het e.e.a. is aangepast om uiteidelijk tot een perfect resultaat te komen.

Kost alleen wat gesprekken voeren en wat regelwerk, dat wel inderdaad. Maar als perfectionist heb ik dat er ook graag voor over >:)
Ja, wij hadden ook ervaringen gelezen over geen Nederlands sprekende bulgaren waar je niet mee kon communiceren, daar hebben we ook speciaal naar gevraagd.

Wat ik al zei, de prijs HOEFT niet perse hoger te zijn, dat hangt echt af van wie je kan vinden en wat ze rekenen (als ze uberhaupt nog tijd voor je hebben de komende tijd).
Als je niemand zelf kent of geen afspraak kunt maken met aannemers die door vrienden en familie zijn aanbevolen dan blijft het toch een gokje wie je in huis haalt.

De aannemer is bij ons langsgeweest en heeft alle wensen netjes op papier gezet en een offerte gemaakt.
Ook komt de man die de ombouw in elkaar gaat timmeren nog een keer langs om even precies te kijken hoe/wat.

Als er iets mis gaat mogen ze naar elkaar wijzen, 1 ding is belangrijk, dat ze niet naar ons gaan wijzen ;)

  • LaTiNo156
  • Registratie: Januari 2003
  • Laatst online: 07-05 18:33
Flix20 schreef op maandag 6 december 2021 @ 15:32:
[...]


Gevaarlijke aanname.
Zie het helaas maar al te vaak fout gaan ondanks dat de tekeningen duidelijk zijn.

Blijft belangrijk er bovenop te blijven zitten.
Of nog erger, dat de technische tekening niet klopt, en jij dat als leek niet ziet ;)

  • mjjveldt
  • Registratie: December 2013
  • Laatst online: 14:59
Allereerst even een bedanktje voor dit gigantische topic. Vrijwel alles doorgelezen en gescand en veel nuttige tips vandaan gehaald.

Bij ons is vandaag de kogel door de kerk gegaan en de offerte getekend.Geplande levering keuken is eind maart / medio april en qua apparatuur werden in eerste instantie geen problemen verwacht, muv de stoombakoven - die zou wel eens later kunnen komen.

Keuken
  • Next 125
  • NX505
  • Jaguargroen satijnlak, met zwarte korpus en
  • Silestone Ethernal Noctis werkblad van 1,2cm
Apparatuur (Siemens)
  • Koelkast - GI11VAFE0
  • Vriezer - KI41RAFF0
  • Stoombakoven - HS636GDS2
  • Combimagnetron - CM636GNS1
  • Vaatwasser - SN75ZX49CE
  • Quooker combi RVS Flex (met daarvoor nog afvalbakjessysteem)
  • Kookplaat - EX807LVV5E (ingefreesd)
  • Afzuigkap - LC97BIP50
Kastjes
  • Muurtje tot plafond
  • Hoge kast tbv koelkast en vriezer
  • Hoge kast tbv ovens
  • Hoekkast met planken
  • Kast rbv vaatwasser
  • Spoelbakkast
  • Hoekkast lemans
  • 2x 80cm dubbele lades met beide een binnenlade
Sfeerimpressie
Zonder koofje bovenlangs voor de spotjes
Zonder de houten plankjes in de nis voor het koffiezetapparaat
Afbeeldingslocatie: https://tweakers.net/i/UM2pVsIjOdzTQiNJwdsoKGghIhg=/800x/filters:strip_exif()/f/image/uKcrbZjkt9Hf7xdmPT5Np4d2.png?f=fotoalbum_large

Keukenwinkel;
Ekelhoff Kuchen
Members only:
Alleen zichtbaar voor ingelogde gebruikers. Inloggen

9x 455 wp (op 3x Hoymiles HMS-2000) op 13 graden 6 ozo, 3 nwn


  • DropjesLover
  • Registratie: November 2004
  • Laatst online: 20:07

DropjesLover

Dit dus ->

BeaM-R schreef op zaterdag 4 december 2021 @ 20:29:
Aantal weken geleden een keuken besteld die begin februari geplaatst gaat worden. Gisteren echter een telefoontje gehad van de keukenleverancier dat de levertijden voor de Siemens apparatuur (alles in ons geval) oplopen naar 6 tot 9 maanden....
Meer mensen hier iets over gehoord?
Wij hebben in september een Siemens gekocht en deze wordt begin februari geplaatst. Vorige week nog een belletje gehad van de keukenleverancier (keukenboer is erg denigrerend voor deze partij in mijn ogen), en die zag geen problemen met levertijden.

BThGvNeOA
Bond Tegen het Gebruik van Nutteloze en Onbekende Afkortingen!
Gewoon uitschrijven wat je bedoelt is zo moeilijk niet... PR (persoonlijk record?), ICE/M/A (verbrandingsmotor?), kdv (kinderdagverblijf), DA (dierenarts?)etc...,


  • joostbo
  • Registratie: Juni 2021
  • Laatst online: 29-04 18:58
Flix20 schreef op maandag 6 december 2021 @ 15:39:
[...]


Natuurlijk is de tekening voor jezelf heel duidelijk omdat het jouw ontwerp is en dus de gedachtegang achter de tekening weet.

Als je echt wilt testen of de tekening duidelijk is, is door iemand die er inhoudelijk niet bij betrokken is, maar wel enigszins technische tekeningen kan lezen, te laten zien en beoordelen.
Voor mij is het helder en heb persoonlijk met de zzp-er gesproken die het gaat maken. en voor hem was het ook gewoon helder. Die kwam nog met wat andere tips als uitbereiding daarop die we ook mee nemen. Dus als hij klaar is check ik het wel voor de zekerheid. maar heb er alle vertrouwen in dat het goed komt :)

Maar of je het nu via de keukenzaak laat lopen of via een aannemer. Als het fout gaat en je hebt het via de keukenzaak geregeld, dan kun je die aanspreken. Gaat het fout bij de aannemer, dan kun je die aanspreken. Maar misschien is het een persoonlijk ding, maar ik ben liever wat meer 'in control'.

Mijn schoonzus heeft alles uit handen gegeven, zelfs amper nagedacht over zaken. stelt geen kritische vragen, ze betaald het liefst een paar duizend euro meer als ze maar snel kunenn., nergens over nadenken en het liefst gisteren nog de nieuwe keuken. Daar zou ik niet tegen kunnen, maar is voor iedereen anders natuurlijk.

  • lizard87
  • Registratie: Oktober 2019
  • Laatst online: 20:42
mjjveldt schreef op maandag 6 december 2021 @ 15:42:

Keukenwinkel;
Ekelhoff Kuchen

***members only***
Duitse winkels mogen in Nederland geen electricien- of loodgieterwerkzaamheden uitvoeren. Iets met papiertjes en verzekeringen. Ik had hetzelfde, dus dat heb ik zelf laten doen. Afkitten deden ze wel. Als je een welwillende monteur hebt dan doen ze kleine dingen ook nog wel (ipv stekker in stopcontact heeft de mijne bij de spotjes onder de bovenkastjes een directe verbinding gemaakt want dat paste beter), maar dat merk je pas bij installatie.

  • joostbo
  • Registratie: Juni 2021
  • Laatst online: 29-04 18:58
lizard87 schreef op maandag 6 december 2021 @ 16:23:
[...]


Duitse winkels mogen in Nederland geen electricien- of loodgieterwerkzaamheden uitvoeren. Iets met papiertjes en verzekeringen. Ik had hetzelfde, dus dat heb ik zelf laten doen. Afkitten deden ze wel. Als je een welwillende monteur hebt dan doen ze kleine dingen ook nog wel (ipv stekker in stopcontact heeft de mijne bij de spotjes onder de bovenkastjes een directe verbinding gemaakt want dat paste beter), maar dat merk je pas bij installatie.
Wij waren bij Gerwens, (gronau). Keuken daar niet gekocht maar wel prima zaak daar lag het niet aan. daar stond dat ook in de offerte dat ze niets mogen aansluiten of wat. maar ze zeiden al wel dat dit gewoon gedaan werd bij installatie en daar geen zorgen om hoef te maken. (misschien dat ze een NL monteur in dienst hebben of sowieso de hele montage uitbesteden door een NL bedrijf?)

  • LaTiNo156
  • Registratie: Januari 2003
  • Laatst online: 07-05 18:33
joostbo schreef op maandag 6 december 2021 @ 16:23:

[...]

Mijn schoonzus heeft alles uit handen gegeven, zelfs amper nagedacht over zaken. stelt geen kritische vragen, ze betaald het liefst een paar duizend euro meer als ze maar snel kunenn., nergens over nadenken en het liefst gisteren nog de nieuwe keuken. Daar zou ik niet tegen kunnen, maar is voor iedereen anders natuurlijk.
Soms wilde ik dat ik zo makkelijk was! Mijn broer en schoonzus waren ook zo makkelijk. Doe maar een witte met zwart blad. En apparaten van Siemens. Klaar.

Pas toen ik ging vragen over of ze hadden nagedacht over dit of dat hebben ze toch nog het e.e.a. aangepast.

  • joostbo
  • Registratie: Juni 2021
  • Laatst online: 29-04 18:58
LaTiNo156 schreef op maandag 6 december 2021 @ 16:37:
[...]


Soms wilde ik dat ik zo makkelijk was! Mijn broer en schoonzus waren ook zo makkelijk. Doe maar een witte met zwart blad. En apparaten van Siemens. Klaar.

Pas toen ik ging vragen over of ze hadden nagedacht over dit of dat hebben ze toch nog het e.e.a. aangepast.
Zou voor mij soms ook wel makkelijk zijn :P maar denk dat iedereen in dit topic wel bovengemiddeld kritisch is , anders kom je hier niet uit .

  • Floor-is
  • Registratie: Maart 2000
  • Laatst online: 05-05 07:56
Nu onze hypotheek er ein-de-lijk door is, kunnen we afspraken gaan maken voor:
- Nieuwe keuken; wand van ~3m90 en eiland van ~3m60
- Badkamermeubels (wastafelmeubel en opslag tbv handdoeken, toiletpapier en tandpasta enzo)
- Set van 2 kasten in de 'bijkeuken' waarin de wasmachine en droger op hoogte geplaatst worden
- Set van 2 kasten voor in het kantoor

Laatste twee moeten in een nieuwe nis komen, waar nog water, stroom en afvoer moet worden aangelegd. Gelukkig is hiertoe rekening gehouden met de vloerverwarming.

In januari gaan we naar Robert Tediek.
En ik ben met een interieurbouwer in gesprek, vanmiddag per telefoon gesproken. Dit is wel echt een bouwer, dus niet echt een ontwerper.
Beiden geven aan dat voor het bouwwerk onze deadline geen probleem mag zijn.

Nu even kijken bij welke partijen ik offertes moet opvragen voor de apparatuur, maar dat staat hier wel in het topic geloof ik. (Als iemand er drie/vier noemen wil, dan ben ik je erkentelijk)

In mijn familie heb ik (interieur)architecten, ik hoop met één van hen samen ons ontwerp verder uit te kunnen werken. Met name voor de kastenwand en kleurgebruik.



Momenteel zijn de tekeningen als volgt:

Afbeeldingslocatie: https://tweakers.net/i/wPNqHihQes-OAWPG6f2mqIUbGwY=/full-fit-in/4000x4000/filters:no_upscale():fill(white):strip_exif()/f/image/vM3hvOjaagtTWf0G25r8KMn2.png?f=user_large

Indeling eiland:
Afbeeldingslocatie: https://tweakers.net/i/fy0W0ELA9MDekbfztAjslf2dK3o=/full-fit-in/4920x3264/filters:max_bytes(3145728):no_upscale():strip_icc():fill(white):strip_exif()/f/image/pHOWZ94a6uK6lArpNJNZPhl3.jpg?f=user_large

Kastenwand (die opening wordt wellicht een deur, de oven gaat wellicht nog een kast naar links):
Afbeeldingslocatie: https://tweakers.net/i/lWS_R8_A5fgp357Rw7NMLTV5_OY=/full-fit-in/4920x3264/filters:max_bytes(3145728):no_upscale():strip_icc():fill(white):strip_exif()/f/image/VeV8ImOLWJPeLJ1LS8C6Emjl.jpg?f=user_large

[ Voor 5% gewijzigd door Floor-is op 06-12-2021 17:14 ]

Bericht hierboven


  • Toke_gt
  • Registratie: Juni 2021
  • Laatst online: 15:10
BlowFish schreef op maandag 6 december 2021 @ 11:05:
Het hoofdstuk keuken is dan voor ons nu echt afgesloten. Hierbij mijn close-out post :)
(…)
We zijn zeer tevreden. Indien er vragen over ervaringen zijn met apparaten en of leveranciers hoor ik het graag ;)
Wat een waanzinnig mooie keuken (en huis). Om te watertanden. :*)

  • Toke_gt
  • Registratie: Juni 2021
  • Laatst online: 15:10
Floor-is schreef op maandag 6 december 2021 @ 17:11:
Nu onze hypotheek er ein-de-lijk door is, kunnen we afspraken gaan maken
-
Momenteel zijn de tekeningen als volgt:

[
He, wat een verrassende indeling is dat geworden! Maar wel erg leuk. Ik hou wel van zo’n enorme leefkeuken en verder aparte zithoeken. Nice work!

  • Dj-sannieboy
  • Registratie: Augustus 2004
  • Niet online

Dj-sannieboy

Nee.... beter!

DropjesLover schreef op maandag 6 december 2021 @ 15:45:
[...]

Wij hebben in september een Siemens gekocht en deze wordt begin februari geplaatst. Vorige week nog een belletje gehad van de keukenleverancier (keukenboer is erg denigrerend voor deze partij in mijn ogen), en die zag geen problemen met levertijden.
Bij ons ook niet toen we de keuken kochten, maar helaas zijn 2 van de 6 Bosch apparaten voorlopig niet leverbaar. Toevallig net de vaatwasser en oven die voorzien zijn van wifi.

  • Source90
  • Registratie: December 2008
  • Laatst online: 20:23
Heeft iemand anders onlangs nog bij Mobel Faber een keuken afgenomen die binnenkort geplaatst wordt?

  • Queros
  • Registratie: April 2009
  • Laatst online: 18-03 11:37
Hello!

Nou na een paar lange bezoeken aan Kvik en Reddy is dit het ontwerp geworden bij Reddy.
Qua apparatuur gekozen voor AEG. Gezien het prijsverschil en budget niet gekozen voor een Novy of Bora kookplaat maar een losse afzuigkap. Werkblad is van Keramiek en is 70cm diep. Kastjes zijn de normale maten.

Keuken inclusief plaatsing en apparatuur en 10 centimeter hoge spatrand komen we op 16.500 euro uit. Het is een Nobilia keuken overigens.

AEG ABB688E1LS
AEG BPK748380B
AEG DBE5970R
AEG FSK63627P
AEG IPE8453SFB
AEG KMK768080B
AEG SKE818E9ZC
Quoocker Flex RVS Combi+

Afbeeldingslocatie: https://tweakers.net/i/qZ-vdWYC-UWgZsCy_Gw5d0Hixyw=/800x/filters:strip_exif()/f/image/MFCjUl0URXQFgGZxiQ0ipR5X.png?f=fotoalbum_large

Afbeeldingslocatie: https://tweakers.net/i/Gqc5dQ_niSgQt9oPm2Ab7NghLs8=/full-fit-in/4000x4000/filters:no_upscale():fill(white):strip_exif()/f/image/c23GKKyDKEygv2RuuVA0nTDI.png?f=user_large

[ Voor 3% gewijzigd door Queros op 07-12-2021 10:22 ]


  • SquareOne
  • Registratie: Januari 2010
  • Laatst online: 20:51
Queros schreef op dinsdag 7 december 2021 @ 10:22:
Hello!

Nou na een paar lange bezoeken aan Kvik en Reddy is dit het ontwerp geworden bij Reddy.
Qua apparatuur gekozen voor AEG. Gezien het prijsverschil en budget niet gekozen voor een Novy of Bora kookplaat maar een losse afzuigkap. Werkblad is van Keramiek en is 70cm diep. Kastjes zijn de normale maten.

Keuken inclusief plaatsing en apparatuur en 10 centimeter hoge spatrand komen we op 16.500 euro uit. Het is een Nobilia keuken overigens.

AEG ABB688E1LS
AEG BPK748380B
AEG DBE5970R
AEG FSK63627P
AEG IPE8453SFB
AEG KMK768080B
AEG SKE818E9ZC
Quoocker Flex RVS Combi+

[Afbeelding]

[Afbeelding]
Is dat stukje 39,4 de maximale ruimte die je nog hebt aan de spoelkant en kun je dat eventueel nog gebruiken?

De twee kasten met deurtjes rechts van de kookplaat zou ik een lade van maken.

  • Kurma
  • Registratie: Augustus 2020
  • Laatst online: 17-04 20:03
Queros schreef op dinsdag 7 december 2021 @ 10:22:
Hello!

Nou na een paar lange bezoeken aan Kvik en Reddy is dit het ontwerp geworden bij Reddy.
Qua apparatuur gekozen voor AEG. Gezien het prijsverschil en budget niet gekozen voor een Novy of Bora kookplaat maar een losse afzuigkap. Werkblad is van Keramiek en is 70cm diep. Kastjes zijn de normale maten.

Keuken inclusief plaatsing en apparatuur en 10 centimeter hoge spatrand komen we op 16.500 euro uit. Het is een Nobilia keuken overigens.

AEG ABB688E1LS
AEG BPK748380B
AEG DBE5970R
AEG FSK63627P
AEG IPE8453SFB
AEG KMK768080B
AEG SKE818E9ZC
Quoocker Flex RVS Combi+

[Afbeelding]

[Afbeelding]
Is dat niet heel onhandig dat je werkblad 10cm uitsteekt?

  • Queros
  • Registratie: April 2009
  • Laatst online: 18-03 11:37
Kurma schreef op dinsdag 7 december 2021 @ 10:43:
[...]

Is dat niet heel onhandig dat je werkblad 10cm uitsteekt?
Werkblad steekt aan de achterkant 10 centimeter uit he;). Hebben we een groter werkblad, maar niet de 'duurdere' kastjes. Budgetoverweging.

  • Queros
  • Registratie: April 2009
  • Laatst online: 18-03 11:37
SquareOne schreef op dinsdag 7 december 2021 @ 10:38:
[...]


Is dat stukje 39,4 de maximale ruimte die je nog hebt aan de spoelkant en kun je dat eventueel nog gebruiken?

De twee kasten met deurtjes rechts van de kookplaat zou ik een lade van maken.
Die 39,4 dat is een muurtje. Naast dat muurtje beginnen dan de openslaande deuren. Was net niet genoeg om een mooi kastje nog kwijt te kunnen, dus ik denk dat we daar de prullenbak (ff een mooie uitzoeken) neerzetten of daar hangen we de handdoeken op oid.

Die kastjes rechts, was eerst een lade van 120 breed. Met het oog op enerzijds kosten, maar anderzijds eventueel later nog een kastje opofferen voor een wijnkoelertje, hebben wij gekozen voor 2 kastjes. Ivm lijnenspel is een lade absoluut mooier.

  • Pierke S.
  • Registratie: Augustus 2009
  • Laatst online: 07-05 18:53
Deodaat schreef op woensdag 3 november 2021 @ 14:47:
Zo na een paar maanden wachten is nu mijn keuken eindelijk klaar (en de rest van de beneden verdieping). Er is nog 1 uitdaging, 1 van de delen van het aanrechtblad is tekort (zie foto's), maar de leverancier is hier nu druk mee bezig.

Het gaat om een Next125 keuken gekocht bij de Bemmel & Kroon in Cruquius). Ik moet zeggen dat ik het hele proces tot op heden als zeer prettig heb ervaren en proactief. Geen idiote beloftes, geen gekke korting gesprekken gewoon rechtoe rechtaan, precies zoal de verkoper (Yorin) vooraf zei hoe het zou gaan.

Is de keuken perfect? vast niet gezien alle tips en trics die ik hier voorbij heb zien komen. Ben ik blij? zeker wel.

Het enige dat ik nog laat plaatsen is een glazen plaat over lengte tegen spetters. Echter kan dit pas als het aanrechtblad definitief afgerond is.

Kosten inclusief plaatsen uiteindelijk? 20.500
Mag ik vragen wat voor blad dit is? Welk materiaal en welke kleur? Ik vind het echt een bijzonder mooie combinatie namelijk, mijn complimenten!!!

Edit: gevonden in een eerdere post van je :-)

Volvo c40 - Kia EV9 - Mini cooper SE


  • Floor-is
  • Registratie: Maart 2000
  • Laatst online: 05-05 07:56
Toke_gt schreef op maandag 6 december 2021 @ 18:23:
[...]

He, wat een verrassende indeling is dat geworden! Maar wel erg leuk. Ik hou wel van zo’n enorme leefkeuken en verder aparte zithoeken. Nice work!
Vet he? Ik heb met advies van de architect nog een wijziging aan de kastenwand gedaan. Er zit nu een (soort verborgen) deur in, deze van hetzelfde materiaal als de fronten van de kasten. Deze deur moet beide kanten op kunnen scharnieren. :)

Afbeeldingslocatie: https://tweakers.net/i/iJtRgKhIrvH1SYQaQMA2lzBzdHM=/234x176/filters:strip_icc():strip_exif()/f/image/1cTonhClCQBOszkhrZj48EFN.jpg?f=fotoalbum_medium

We moeten nu wel gaan kijken of het dan niet te massief wordt, maar wordt wel blij van deze evolutie op zich. :)

[ Voor 3% gewijzigd door Floor-is op 07-12-2021 13:27 ]

Bericht hierboven


  • Z___Z
  • Registratie: Maart 2002
  • Niet online
BlowFish schreef op maandag 6 december 2021 @ 11:05:
Het hoofdstuk keuken is dan voor ons nu echt afgesloten. Hierbij mijn close-out post :)

Nogmaals bedankt voor de vele nuttige tips en inspirerende foto’s. Vooral dat laatste vind ik altijd leuk om te zien dus daarom ook hieronder een uitgebreide fotocollage!

Keuken (Keukenloods Roosendaal):
  • Pronorm X-EV 912 wildeikenzwart
  • Pro-tech 2.0 antraciet laden
Werkblad (keuken bladen fabriek) :
  • Quartzite “taj mahal’
Apparatuur (Keukenloods):
  1. Miele combi-stoomoven DGC7845X
  2. Miele oven H7860BX
  3. Miele inbouw koffie CVA7845
  4. Miele warmhoudlade ESW7010 (2x)
  5. Miele inductie kookplaat met afzuiging KMDA7476 FL
  6. Miele Vriezer FNS37405I
  7. Miele Koelkast K7743E
  8. Miele Vaatwasser G7472 SCvi
  9. Quooker Combi+ Goud
Keuken impressies:

[Afbeelding]

[Afbeelding]

[Afbeelding]

[Afbeelding]

[Afbeelding]

[Afbeelding]

[Afbeelding]

We zijn zeer tevreden. Indien er vragen over ervaringen zijn met apparaten en of leveranciers hoor ik het graag ;)
Ziet er goed uit. Is jouw blad uit een stuk? Zo niet, hoe heb je bepaald waar je de naad wil hebben (die niet te zien is op je foto's dus dat zou goed werk zijn :))

  • SquareOne
  • Registratie: Januari 2010
  • Laatst online: 20:51
Floor-is schreef op dinsdag 7 december 2021 @ 13:26:
[...]

Vet he? Ik heb met advies van de architect nog een wijziging aan de kastenwand gedaan. Er zit nu een (soort verborgen) deur in, deze van hetzelfde materiaal als de fronten van de kasten. Deze deur moet beide kanten op kunnen scharnieren. :)

[Afbeelding]

We moeten nu wel gaan kijken of het dan niet te massief wordt, maar wordt wel blij van deze evolutie op zich. :)
Het is de doorgang naar jullie zithoek toch? Ik zou dat niet volledig afsluiten, maar eerder met een glazen deur o.i.d. oplossen. Of een schuifdeur in de kastenwand verwerken zodat het achter de kasten weg schuift. En dan aan de kant van de zithoek nog een kast met nissen (soort en-suite)

Afbeeldingslocatie: https://tweakers.net/i/m1O394aC5fUfIOUk4y2a-I2wwa4=/full-fit-in/4920x3264/filters:max_bytes(3145728):no_upscale():strip_icc():fill(white):strip_exif()/f/image/M11jp2rXHm8Z3X6mW5Vb09kd.jpg?f=user_large

Zoiets, deur kun je natuurlijk enkel uitvoeren.

[ Voor 11% gewijzigd door SquareOne op 07-12-2021 13:31 ]


  • Floor-is
  • Registratie: Maart 2000
  • Laatst online: 05-05 07:56
SquareOne schreef op dinsdag 7 december 2021 @ 13:30:
[...]


Het is de doorgang naar jullie zithoek toch? Ik zou dat niet volledig afsluiten, maar eerder met een glazen deur o.i.d. oplossen. Of een schuifdeur in de kastenwand verwerken zodat het achter de kasten weg schuift. En dan aan de kant van de zithoek nog een kast met nissen (soort en-suite)
Doorgang naar de TV-kamer, toilet, bijkeuken en kantoor. :)

De eettafel komt dwars op het eiland, in het verlengde van het eiland de doorgang naar de zitkamer. Zie ook deze net een beetje outdated plattegrond:
Afbeeldingslocatie: https://tweakers.net/i/jLkKDyNMdcU6SDiIv-l__4P5rR0=/100x75/filters:strip_exif()/f/image/vM3hvOjaagtTWf0G25r8KMn2.png?f=fotoalbum_small


We hadden aanvankelijk een soort nis/doorloop bedacht die bij een schuifdeur uitkomt. Maar een glazen deur is ook mogelijk, ik heb hiervoor ook wel een visualisatie nodig om het goed te kunnen zien vrees ik. Zoals ik zei: ben bang dat dit te massief is.

[ Voor 18% gewijzigd door Floor-is op 07-12-2021 13:34 ]

Bericht hierboven

Pagina: 1 ... 287 ... 542 Laatste

Let op:
Dit topic kan gebruikt worden voor het volgende:
• Vragen over de keuken, denkend aan indeling, materialen, kastjes, apparatuur, etc.
• Welke kastjes, aanrechtbladen en apparatuur te kiezen
• Ervaringen met verkopers en keukenboeren
• Tips & Tricks denk hierbij aan hulp bij het zelf installeren en onderhouden van de keuken.
• Jouw indeling. Plaats gerust een foto of tekening, maar maak het niet te bont met hele buildlogs.

Voor badkamers: Het Badkamer topic: verkopers, kwaliteit, prijs - Deel 1
Showen met je keuken kan hier: Tweakers Keuken showroom! - Vestiging 1