Goed. Ik moet ook maar eens het resultaat posten na 2 jaar hier leren & lezen 
Voor ons nieuwbouwhuis moesten we op zoek naar een keuken. We hebben bij de projectleverancier gekeken (Thuis, van Dura Vermeer), maar dat werd 'm toch al vrij snel niet, zowel qua kosten als qua mogelijkheden.
We hadden een aantal specifieke wensen:
- Genoeg opbergruimte ivm lading keukenapparatuur, pannen, etc. En omdat het kan 

 - Genoeg werkblad ruimte ivm uitstallen van spullen, en veel ruimte om te kunnen werken
 - Donkere fronten met een kader
 - Lichte kleur werkblad van hard materiaal
 - Geen chroom/RVS
 - Niet koken of spoelen voor het raam
 - Inkijk de keuken in 'beperken' dmv een bar oid
 - Mogelijkheid om vuile vaat (deels) buiten het zicht te plaatsen
 
Na wat omzwervingen en bezoeken bij verschillende keukenzaken uiteindelijk uitgekomen bij Möbel Faber in Nordhorn, Duitsland. Daar heel fijn geholpen. De technische tekening heb ik uiteindelijk zelf gemaakt op basis van de aangezichten/renders van de winkel, waardoor ik meer tijd had om de keuken zelf uit te zoeken. 
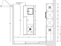
De vorm dan de keuken stond al vrij snel vast als een verlengde U met barretje. Waar er eerst nog een fornuis in stond (60/fornuis/60/60) is dat later omgezet naar 90/fornuis/90 tot 90/90/90 met een Bora erin. Daardoor zit er wel hoog nog een stopcontact voor de afzuigkap, maar die kunnen we later nog wel gebruiken als we iets van planken of verlichting daar plaatsen.
Eerst was het idee dit, met ladekasten onder het raam, hoekkasten en 60cm kastjes links en rechts, en daarna bedacht dat het fijner is de hoekkasten te flippen, en ook voor 3x 90 te gaan ipv 60/90/60/60 aan de linkerzijde:
Uiteindelijk is het hier op uitgekomen:
- Keuken: Häcker Systemat
 - Fronten: AV 5007 in kleur Samtblau Mattlack
 - Kasten: Lava Grijs binnenkanten
 - Regaalkasten: Samtblau, met Walnoot siena repro planken
 - Keukenblad: Jetstone - Noblesse White gepolijst (composiet), met smetplint (4cm)
 - Grepen: Antiek Koper van Ballerina
 - Werkbladhoogte: 95cm
 - Plinthoogte: 13cm
 - Plintkleur: grafiet
 - Bar: Walnoot siena repro, 8cm dik
 
Apparatuur:
- Kookplaat: Bora PURU (recirculatie)
 - Oven: Bosch Carbon Black Serie | 8 - HBG8775C0
 - Magnetron: Bosch Carbon Black Serie | 8 - BFL834GC1
 - Vriezer: Bosch 72cm GIV11AD30
 - Koelkast: Bosch Serie | 6 122.5cm KIR41AD40
 - Vaatwasser: Siemens SX836D01QE
 
We wilden meer koelkastruimte, dus daarom een losse vriezer en een iets hogere koelkast op elkaar ipv een koel/vroescombinatie.
Overige:
- Spoelbak: Caressi CAGRPP50WH-TU
 - Kraan: Grohe Minta mengkraan, U-uitloop met uittrekbare mousseur, kleur Warm Sunset
 - Afval: Cox Base 360 S/600-2
 - Spotjes onder bovenkastjes
 - Le Mans systeem in hoekkast linksboven
 
Verder kreeg ik er standaard Slim Line Drawers in, overal antislipmatten bij, en 2 inserts voor de 90cm besteklades. Genoeg gepraat, nu tijd voor plaatjes!
In de tussentijd veel gespeeld met het lijnenspel. Ik wilde graag nog best wat bestek lades qua formaat, maar met 3 lades links, hoekkasten met bovenlade, en dan rechts wéér anders werd het iets te druk voor mijn lichte OCD. Uiteindelijk is dit toen de opzet geworden (negeer de op sommige plekken random zwevende grepen):
En toen moest hij uiteraard nog geplaatst worden ook! Dit is eind april gebeurd.
De spoelbak was in de verkeerde kleur geleverd, maar dat zag ik pas toen de monteur bijna klaar was. Erg getwijfeld of we toch niet de zwarte wilden laten zitten, maar uiteindelijk toch voor wit gekozen. Ook was de oven bij installatie nog niet geleverd, dus die volgde in augustus. Daarnaast zaten er geen spotjes onder de bovenkastjes, dus die zijn later compleet vervangen voor kastjes mét spotjes.
En dit is dan het uiteindelijke resultaat en zoals het er nu bij staat:
Members only:
			
				Alleen zichtbaar voor ingelogde gebruikers.
				
					Inloggen
				
			 
Al met al heel tevreden met de keuken. In de praktijk werkt het precies zoals we het vooraf hadden bedacht, dus dat is heel fijn. Ook de kwaliteit zijn we heel blij mee. De bewerkelijkheid van het werkblad ook: je ziet vlekken eerder liggen (waardoor je het ook sneller schoonmaakt), maar koffievlekken die er 2 maanden op hebben gezeten door de verbouwing gingen er heel makkelijk af zonder sporen achter te laten. Vooraf wisten we niet zeker hoe de kleur zou werken, omdat het soms heel donker leek. Op groot oppervlak komt de mooie diepe kleur blauw echter heel mooi uit, zonder té donker te worden.
Wel staan er nog wat punten open vanuit de keukenleverancier:
- De plinten passen niet meer nu de vloer er in zit, ondanks dat er wel rekening mee gehouden was. Dus of niet genoeg afgezaagd, of de vloer is dikker dan verwacht
 - De draaiknop van de oven loopt niet goed/soepel. Heb 'm er al afgehaald en schoongemaakt, maar dat blijft. Die van de magnetron werkt perfect, waardoor het zo goed merkbaar is bij de oven.
 - De aan/uit knop voor de spotjes onder de hoge kasten was niet geleverd en werd nagestuurd zodat ik 'm zelf kon installeren. Geen probleem, maar nu blijkt dat ik het snoer met stekker niet langs de ophangbeugel van de bovenkastjes krijg. Dus ik moet nog even deze er af knippen en nieuwe stekker kopen & aansluiten
 - De afvoer onder de gootsteen zat vanuit de bouw net niet handig waardoor met sifon erbij de afvallade niet dicht kan. Dit wordt morgen verholpen door de jongens die de rest van mijn verbouwing gedaan hebben, dus dan kan die ook weer gewoon dicht.
 
Over het algemeen heel tevreden over Möbel Faber. Er werd goed meegedacht en steeds goed de tijd genomen. Montage is ook top en professioneel, doordat ze hun eigen monteurs gebruiken. 
Members only:
			
				Alleen zichtbaar voor ingelogde gebruikers.
				
					Inloggen
				
			 
Lang verhaal kort: we zijn heel blij met onze keuken! Hij is nog zeker niet af. De energiezuilen staan nu nog los in een hoek omdat we daar waarschijnlijk nog gaan betegelen, er moet nog iets van een spatwand op de muur achter de kookplaat (of dus tegeltjes), afdekplaatjes voor de stopcontacten, en zo nog een lijst aan kleine dingetjes. Dat zijn echter dingen die we op termijn wel gaan fixen en niet al te hoog op het prioteitenlijstje staan. We zijn in ieder geval dagelijks blij met de ruimte en indeling.