3600 Wp | 12x AEG mono | SE3500
Wij hebben 2 rijen van 5 GU10 spotjes op een wanddimmer. Vorig jaar LED in gedaan en nieuwe dimmer; het werkt perfect. Na de keuken verbouwing schuiven we 1 rij op omdat deze achter de te plaatsen kastenwand valt en dan hebben we voldoende licht.mede schreef op woensdag 22 september 2021 @ 18:21:
In onze nieuwe keuken wordt een koof aan het plafond gemonteerd met dimbare led spotjes. Er staan verder geen specificaties van deze leds bij.
Wat is verstandig om te kiezen. De standaard led lampjes met twee van die insteekpootjes of is tegenwoordig de gu10 fitting de standaard?
Wat wordt er bij jullie zoal geïnstalleerd en/of wat hebben jullie in gebruik?
Wij krijgen een nieuwbouwwoning (tevens onze eerste woning en daarbij eerste keuken). Ik zit al redelijke tijd op dit forum rond te neuzen en zie hier vaak goede adviezen voorbij komen. Gezien we zelf dus he-le-maal geen ervaring hebben ben ik benieuwd naar enige tips / adviezen mbt de inrichting.
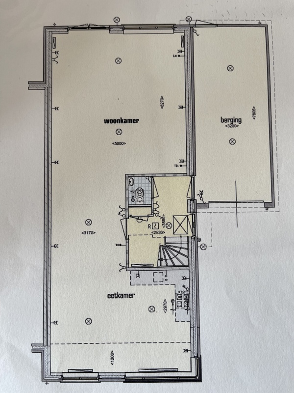
Onderstaand de layout van onze keuken. De wasbak / kraan zijn overigens gunmetal, staat verkeerd gekleurd in het model. Er zit er een apothekerskast naast de ovens en er is een vrijstaande koelkast ingetekend in de hoek. Hiervoor is bewust gekozen zodat we meer ruimte hebben en omdat deze er tegenwoordig prima uitzien. Verder komen er led spotjes in de 3 bovenkasten en overwegen wij een koof boven de kastjes en een kolom er rechts ervan om het wat meer een geheel te maken. Het is qua apparatuur een pelgrim keuken met pronorm Y-line kastjes en Protech 2.0 lades. Indien we de koof + kolom nemen zal dit totaal circa 18.250 kosten.
Ik ben vooral benieuwd: wat kan er 'beter' of wat zien we hier over het hoofd?
:fill(white):strip_exif()/f/image/G2WbmVW1DkfO51aVvjgRnJaR.png?f=user_large)
/f/image/6fu4RX09sKAW19uk6tLmjTiR.png?f=fotoalbum_large)
/f/image/2tCbTdt8mTsC1pOryMfMCQDO.png?f=fotoalbum_large)
De ruimte tussen werkblad en eiland is 90cm? Het ziet er zo op het eerste gezicht heel krap uit.heerjelle schreef op donderdag 23 september 2021 @ 09:20:
Hallo,
Wij krijgen een nieuwbouwwoning (tevens onze eerste woning en daarbij eerste keuken). Ik zit al redelijke tijd op dit forum rond te neuzen en zie hier vaak goede adviezen voorbij komen. Gezien we zelf dus he-le-maal geen ervaring hebben ben ik benieuwd naar enige tips / adviezen mbt de inrichting.
Onderstaand de layout van onze keuken. De wasbak / kraan zijn overigens gunmetal, staat verkeerd gekleurd in het model. Er zit er een apothekerskast naast de ovens en er is een vrijstaande koelkast ingetekend in de hoek. Hiervoor is bewust gekozen zodat we meer ruimte hebben en omdat deze er tegenwoordig prima uitzien. Verder komen er led spotjes in de 3 bovenkasten en overwegen wij een koof boven de kastjes en een kolom er rechts ervan om het wat meer een geheel te maken. Het is qua apparatuur een pelgrim keuken met pronorm Y-line kastjes en Protech 2.0 lades. Indien we de koof + kolom nemen zal dit totaal circa 18.250 kosten.
Die kolom rechts van het aanrecht, maakt dat niet dat de ruimte kleiner/geslotener aanvoelt?
90cm is krap. Hebben wij nu ook tussen eiland en aanrecht en het is lastig bewegen in de keuken als er een lade of kastje openstaat. Onze nieuwe keuken wordt daarom een parallel opstelling zonder eiland.LaTiNo156 schreef op donderdag 23 september 2021 @ 09:40:
[...]
De ruimte tussen werkblad en eiland is 90cm? Het ziet er zo op het eerste gezicht heel krap uit.
Die kolom rechts van het aanrecht, maakt dat niet dat de ruimte kleiner/geslotener aanvoelt?
Ik vind de kant met hoge kast en bovenkastjes wat rommelig ogen, ook omdat de bovenzijde verspringt. En ik zou de kookplaat recht tegen over de spoelbak doen.
Krijg je dan niet dat je niet met zijn 2en tegelijk achter de kookplaat en spoelbak kan staan?loeberce schreef op donderdag 23 september 2021 @ 10:04:
[...]
90cm is krap. Hebben wij nu ook tussen eiland en aanrecht en het is lastig bewegen in de keuken als er een lade of kastje openstaat. Onze nieuwe keuken wordt daarom een parallel opstelling zonder eiland.
Ik vind de kant met hoge kast en bovenkastjes wat rommelig ogen, ook omdat de bovenzijde verspringt. En ik zou de kookplaat recht tegen over de spoelbak doen.
Met 90cm ertussen laat je dat wel.LaTiNo156 schreef op donderdag 23 september 2021 @ 10:06:
[...]
Krijg je dan niet dat je niet met zijn 2en tegelijk achter de kookplaat en spoelbak kan staan?
Ik zou de kortste afstand willen om over te steken met een hete pan.LaTiNo156 schreef op donderdag 23 september 2021 @ 10:06:
[...]
Krijg je dan niet dat je niet met zijn 2en tegelijk achter de kookplaat en spoelbak kan staan?
Inderdaad, 90cm. Dankzij de pilaar zagen we geen andere optie aangezien ik wel echt een eiland wil. Overigens is onze huidige keuken in de huurwoning nog een stuk smaller.LaTiNo156 schreef op donderdag 23 september 2021 @ 09:40:
[...]
De ruimte tussen werkblad en eiland is 90cm? Het ziet er zo op het eerste gezicht heel krap uit.
Die kolom rechts van het aanrecht, maakt dat niet dat de ruimte kleiner/geslotener aanvoelt?
Mbt de kolom heb je een goed punt. We wachten nog op een voorbeeld daarvan, wellicht dat een koof zonder kolom inderdaad een betere optie is?
Dat 90 cm krap is is duidelijk de consensus. Ik zal even meten hoe veel ruimte we in onze huidige keuken hebben, voelt nu alsof het 70cm is dus wellicht dat ik daar de plank mis sla.loeberce schreef op donderdag 23 september 2021 @ 10:04:
[...]
90cm is krap. Hebben wij nu ook tussen eiland en aanrecht en het is lastig bewegen in de keuken als er een lade of kastje openstaat. Onze nieuwe keuken wordt daarom een parallel opstelling zonder eiland.
Ik vind de kant met hoge kast en bovenkastjes wat rommelig ogen, ook omdat de bovenzijde verspringt. En ik zou de kookplaat recht tegen over de spoelbak doen.
Wat betreft de kant met de hoge kast en bovenkastjes heb je gelijk dat het rommelig oogt, vandaar de koof die er dan boven komt. Of zou een andere hoogte / grootte van de kasten beter zijn? Want de opslagruimte is wenselijk zodat de vaatwasser uit te ruimen is zonder heen- en weer te lopen.
De plek van de spoelbak is een punt van twijfel. Ergens is het ook fijn om het hoekje te hebben om spullen neer te zetten alvorens de vaatwasser in te ruimen, maar het is inderdaad tijdens het koken wel een net iets grotere afstand...
Dat houdt de vriendin tenminste weg uit de keukenLaTiNo156 schreef op donderdag 23 september 2021 @ 10:06:
[...]
Krijg je dan niet dat je niet met zijn 2en tegelijk achter de kookplaat en spoelbak kan staan?
Bedankt voor de reacties in ieder geval, food for thought
Dit is het huis. Inderdaad past het net niet he-le-maal lekker, maar ik wil toch echt heel graag dat eiland...Alic3 schreef op donderdag 23 september 2021 @ 10:25:
@heerjelle Hoe ziet de rest van het huis er uit qua plattegrond? Ik heb het idee alsof het eiland nu precies in de loop staat. Ook is een eiland van 80 cm erg krap. Is een eiland een vereiste? Want het past net niet lekker in de ruimte. Met een los eiland, losse koelkast en de wand voelt het als 3 losse onderdelen ipv een keuken die klopt.
De koof en kolom waren een idee om het wat meer een geheel te laten lijken, maar door de kolom zou het inderdaad wel krapper ogen.
Lastig, lastig...
Daarnaast zie ik dat jullie voor een gunmetal wasbak gaan.
Realiseer je dat de kleur een coating is. Dus na verloop van tijd ga je die coating steeds meer en meer verliezen door gebruik schade.
Als je voor kleur gaat, kies dan voor een kleur welke in composiet te krijgen is.
PSN: Flix20-NL
Ik snap je punt. Ik zal vandaag even meten hoe breed onze huidige keuken is. Gezien ik me daar al niet aan erger is dat wellicht een goed referentiepunt. Of zou het verplaatsen van het eiland bijvoorbeeld wijs zijn? De achterzijde functioneert puur als doorloop namelijk.Flix20 schreef op donderdag 23 september 2021 @ 10:40:
Je kan wel persé een eiland willen, maar als het niet past... Je gaat je er wel jaren steeds meer en meer aan ergeren als het gewoon te krap is.
Daarnaast zie ik dat jullie voor een gunmetal wasbak gaan.
Realiseer je dat de kleur een coating is. Dus na verloop van tijd ga je die coating steeds meer en meer verliezen door gebruik schade.
Als je voor kleur gaat, kies dan voor een kleur welke in composiet te krijgen is.
Maakt me persoonlijk niks uit want ik vind het er bij horen maar zal eens vragen hoe mevrouw er over denkt, thanks.
[ Voor 6% gewijzigd door heerjelle op 23-09-2021 11:27 ]
Heb je nog ruimte om de keuken te verplaatsen? De rest van je woonkamer (linksboven) geeft wel meer mogelijkheden voor een grotere keuken met (schier)eiland.
Je zou voor een U keuken (gaat niet ivm raam) kunnen gaan en dan een schiereiland maken richting de paal toe en dan aan de woonkamer zijde een barretje (als dat het idee achter het eiland is).
Dan zou je aan de wand waar nu je spoelbak staat, een kastenwand kunnen maken, evt. met een nis voor koffiebar.
PSN: Flix20-NL
Ik sta echt zeer veel in de keuken te bakken en te koken en kook altijd solo, dan is het wel zo leuk als ik zicht heb op het leefgedeelte en nog een beetje gezellig kan doen. Zeker gezien ik nogal van het multitasken ben en vaak gasten over de vloer heb. Die mogelijkheid is er zonder eiland helaas gewoon niet want hoe de keuken dan ook in elkaar zou zitten ik sta dan met mijn rug naar iedereen toe. Een beetje beweegruimte zou ik minder missen dan dat dus het is meer dan 'ik wil per se een eiland'. Ik heb wel een reden om dat eiland te willenAlic3 schreef op donderdag 23 september 2021 @ 11:36:
@heerjelle Waarom wil je per se een eiland? Op die plek gaat het gewoon echt niet goed passen. Dan kan je keuken nu wel klein zijn. Maar het is echt geen handige opstelling nu. Typisch gevalletje 'we wilden per se een eiland'. Dat klopt dus![]()
Heb je nog ruimte om de keuken te verplaatsen? De rest van je woonkamer (linksboven) geeft wel meer mogelijkheden voor een grotere keuken met (schier)eiland.
Dan nog wil ik er uiteraard wel graag zoveel mogelijk een geheel van maken. Zoals gezegd: de ruimte aan de achterkant is puur een omloop, die kan dus wel iets krapper wellicht? Een aanpassing aan de opstelling qua kasten / koelkast / koof is ook wel mogelijk, maar de keuken moet wel in deze hoek gemonteerd worden.
Zoals hierboven gezegd: het is vooral dat ik niet afgezonderd in een hoekje sta te koken zoals nu het geval is. We hebben een smal strookje achter een muurtje en na verloop van tijd verschijn ik weer onder de mensen met etenFlix20 schreef op donderdag 23 september 2021 @ 11:46:
Wat is de beweegreden achter het eiland? het idee of de ruimte?
Je zou voor een [s]U keuken[/u] (gaat niet ivm raam) kunnen gaan en dan een schiereiland maken richting de paal toe en dan aan de woonkamer zijde een barretje (als dat het idee achter het eiland is).
Dan zou je aan de wand waar nu je spoelbak staat, een kastenwand kunnen maken, evt. met een nis voor koffiebar.
Gezien jouw idee wel matcht met mijn reden voor het eiland ga ik er even over nadenken en uittekenen, thanks. Het is ook een beetje een ellendige ruimte met een wand die aan een kant te smal is voor hoge kasten, een raam en een enkele wand die overal bruikbaar voor is.
Dat lijkt me haast een no-brainer.Alic3 schreef op donderdag 23 september 2021 @ 11:36:
@heerjelle
Heb je nog ruimte om de keuken te verplaatsen? De rest van je woonkamer (linksboven) geeft wel meer mogelijkheden voor een grotere keuken met (schier)eiland.
Al zie ik op de huidige plaats ook nog wel mogelijkheden.
[ Voor 28% gewijzigd door mitsumark op 23-09-2021 12:02 ]
Ouch
Top, super bedankt voor die afbeeldingmitsumark schreef op donderdag 23 september 2021 @ 11:57:
[...]
Dat lijkt me haast een no-brainer.
Al zie ik op de huidige plaats ook nog wel mogelijkheden.
[Afbeelding]
[ Voor 80% gewijzigd door heerjelle op 23-09-2021 12:08 ]
Ik snap de ruimte niet helemaal. Je woonkamer linksboven.. eettafel? Is het mogelijk het eiland 90 graden te draaien en tegen de kolom aan te zetten, groter dan als kook spoeleiland.heerjelle schreef op donderdag 23 september 2021 @ 10:29:
[...]
Inderdaad, 90cm. Dankzij de pilaar zagen we geen andere optie aangezien ik wel echt een eiland wil. Overigens is onze huidige keuken in de huurwoning nog een stuk smaller.
Mbt de kolom heb je een goed punt. We wachten nog op een voorbeeld daarvan, wellicht dat een koof zonder kolom inderdaad een betere optie is?
[...]
Dat 90 cm krap is is duidelijk de consensus. Ik zal even meten hoe veel ruimte we in onze huidige keuken hebben, voelt nu alsof het 70cm is dus wellicht dat ik daar de plank mis sla.
Wat betreft de kant met de hoge kast en bovenkastjes heb je gelijk dat het rommelig oogt, vandaar de koof die er dan boven komt. Of zou een andere hoogte / grootte van de kasten beter zijn? Want de opslagruimte is wenselijk zodat de vaatwasser uit te ruimen is zonder heen- en weer te lopen.
De plek van de spoelbak is een punt van twijfel. Ergens is het ook fijn om het hoekje te hebben om spullen neer te zetten alvorens de vaatwasser in te ruimen, maar het is inderdaad tijdens het koken wel een net iets grotere afstand...
[...]
Dat houdt de vriendin tenminste weg uit de keuken, heeft ze toch niks te zoeken. Maar je hebt gelijk, ik zie gezien de ruimte alleen niet een andere optie om wel dat eiland te hebben...
![]()
Bedankt voor de reacties in ieder geval, food for thought.
En zoiets?heerjelle schreef op donderdag 23 september 2021 @ 10:35:
[...]
Dit is het huis. Inderdaad past het net niet he-le-maal lekker, maar ik wil toch echt heel graag dat eiland...
De koof en kolom waren een idee om het wat meer een geheel te laten lijken, maar door de kolom zou het inderdaad wel krapper ogen.
Lastig, lastig...![]()
[Afbeelding]
Opbrengst van mijn Tibber Homevolt met externe kWh meter. | Opbrengst van mijn Tibber Homevolt volgens de Tibber Data API.
Bedankt. Ook dit zou inderdaad een goede optie zijn, wellicht beperkt in ruimte omdat er geen hoge kasten passen rechtsonder ivm de diepte van de muur icm het raam maar qua beweegruimte wel ruim voldoende.
Opbrengst van mijn Tibber Homevolt met externe kWh meter. | Opbrengst van mijn Tibber Homevolt volgens de Tibber Data API.
zoiets?heerjelle schreef op donderdag 23 september 2021 @ 12:01:
[...]
Top, super bedankt voor die afbeelding. Als ik zo optie 3 met het schiereiland zie lijkt dat me wellicht de optie met de meeste potentie. Was nooit in me opgekomen om het zo aan te pakken en volgens mij is er de optie om de onderzijde van de kozijnen dicht te zetten. De onderkant van Bij 1 zou ik net teveel kastruimte moeten inleveren.
:fill(white):strip_exif()/f/image/Aw0N1XxLkC7cVHaZufCjRiq4.png?f=user_large)
Details moet je nog goed bekijken.
Stukje rechts kan bv met ondiepe kastjes, of zelfs wat verhoogd met een mooie plank erop.
[ Voor 6% gewijzigd door mitsumark op 23-09-2021 12:21 ]
Super bedankt voor het meedenken en uittekenen! Ik denk inderdaad dat dit alle zorgen verhelpt. Praktisch bruikbaar, zicht in de ruimte en niet krap.mitsumark schreef op donderdag 23 september 2021 @ 12:20:
[...]
zoiets?
[Afbeelding]
Details moet je nog goed bekijken.
Stukje rechts kan bv met ondiepe kastjes, of zelfs wat verhoogd met een mooie plank erop.
Nu nog even kijken of ik dit voor elkaar kan krijgen
Ik heb eea 'gepast' in de winkel.Finwe schreef op donderdag 23 september 2021 @ 12:44:
Wat is jullie mening over een fijne afstand tussen een eiland en een werkblad? Ik lees online 110/120cm, maar dat lijkt niet zo heel veel meer dan 90cm...
De verkoper raadde 110cm aan. Ik heb afstanden van 90, 100 en 115 bekeken.
Wij hebben vervolgens gekozen voor 100cm omdat we toch wat meer ruimte aan de andere kant van het eiland wide hebben. 90 vonden we zelf te weinig. Om twee redenen:
- je moet met 2 personen langs elkaar af kunnen lopen.
- je moet een lade/deur open kunnen doen zonder dat je er heel bewust omheen moet bewegen
Opbrengst van mijn Tibber Homevolt met externe kWh meter. | Opbrengst van mijn Tibber Homevolt volgens de Tibber Data API.
Thanks! Het maakt wellicht ook uit of je met veel spullen moet lopen tussen eiland en werkblad; 1.5 meter overbruggen met een hete pan is misschien ook niet ideaal. Ik ga zelf ook gewoon eens meten en kijken hoe het voelt.JackBol schreef op donderdag 23 september 2021 @ 13:07:
[...]
Ik heb eea 'gepast' in de winkel.
De verkoper raadde 110cm aan. Ik heb afstanden van 90, 100 en 115 bekeken.
Wij hebben vervolgens gekozen voor 100cm omdat we toch wat meer ruimte aan de andere kant van het eiland wide hebben. 90 vonden we zelf te weinig. Om twee redenen:
- je moet met 2 personen langs elkaar af kunnen lopen.
- je moet een lade/deur open kunnen doen zonder dat je er heel bewust omheen moet bewegen
Ik zou inderdaad 100-120 aanhouden, liefst 110+ indien mogelijk.
In de winkel vond ik 80 in alle omstandigheden echt te krap, 90 leek al enigszins OK, maar alleen als je in je eentje in de keuken bezig bent, niet met zn 2en.
Wij combineren nog wel eens koken met de boodschappen opruimen of de vaatwasser in/uitruimen.
Of beiden tegelijk ontbijt maken / koffie zetten.
Afhankelijk van de opstelling wil je dan echt meer ruimte.
[ Voor 12% gewijzigd door mitsumark op 23-09-2021 13:32 ]
De opmerkingen over hete pannen (en afgieten) etc. snap ik eerlijk gezegd nooit zo. Je gaat echt geen verschil merken tussen 90 of 120(/150) overbruggen met die pan. Kijk, dat je spoelbak 400 verderop niet ideaal is, soit.
Ik wilde net hetzelfde schrijven, dat ene stapje meer of minder maakt nu ook niet uit.Greebs schreef op donderdag 23 september 2021 @ 14:13:
De opmerkingen over hete pannen (en afgieten) etc. snap ik eerlijk gezegd nooit zo. Je gaat echt geen verschil merken tussen 90 of 120(/150) overbruggen met die pan. Kijk, dat je spoelbak 400 verderop niet ideaal is, soit.
Ik neem aan dat iedereen ovenwanten gebruikt voor die hete pannen?
Ik moet nu ook een paar stappen doen (1 werkblad langs de muur) en dat gaat altijd zonder problemen.
Ook een beetje afhankelijk of er lades/kastjes/vaatwassers aan die kant zitten. Vuistregel is dan vaak 120cm volgens mij, zodat je iets open kan zetten en dan nog ruimte overhoudt.Jeej303 schreef op donderdag 23 september 2021 @ 13:44:
Is er dan ook zoiets als een minimale afstand tussen het kookeiland en een muur? Die is bij ons ingetekend op 90cm, benieuwd of daar ook ‘vuistregels’ voor gelden.
Persoonlijk klinkt 90cm me wel prettig, maar ook sterk afhankelijk van de situatie verder. Ramen/kozijnen, looproutes..
Is er een specifieke reden dat jullie de kookplaat niet vlak hebben laten inbouwen? Ik zie heel weinig voorbeelden van een vlakbouw kookplaat in het werkblad en dat lijkt mij veel mooier.TomF schreef op vrijdag 24 september 2021 @ 10:48:
[...]
Met wat aanpassingen is dit het uiteindelijke resultaat geworden:
[Afbeelding]
Uiteindelijk hebben we de keuken besteld bij Ijtsma Opende Groningen. Houden zich keurig aan alle afspraken, hele goede service.
Ps de keuken ziet er super strak uit btw!
2x MT v3 | EMS v147.6 VNS v117 BMS v112 | Home Battery Control for Home Assistant & Node-RED | Fonske MarstekVenusV3-modbus-TCP-IP
En dit zijn wat mogelijk opstellingen. Wie wil er meedenken?
/f/image/Z7BilHGpMKdVzHIc3TckhnlL.png?f=fotoalbum_large)
Voordeel is het 'gezellige hoekje'. Nadeel is niet heel veel opbergruimte en dat zowel vaatwasser, kookplaat als spoelbak in een eiland naast elkaar zitten.
/f/image/WeZHgJMKTvmYSp9TPyy1jFOi.png?f=fotoalbum_large)
Veel opberg- en werkruimte, maar er zit maar 105cm tussen spoelbak en kookplaat. 120cm voelt daarin wel veel ruimer vinden wij. Er is wel ruimte om het eiland op 120cm te zetten, maar dan kloppen de lijnen niet meer. En misschien wordt deze variant 'te veel' in de ruimte.
/f/image/2kSWcLdsdkG9boDh93505NkY.png?f=fotoalbum_large)
Nadeel van deze variant is dat het misschien nogal lomp is. Geen 'gezellig hoekje' voor koffiezetter, plantje en kookboeken o.i.d.
Voor opstelling 1 hebben we al een offerte, maar die vinden we erg hoog. Wat zou het gevoelsmatig mogen kosten met composiet blad, siemens apparatuur en mat zwarte greeploze fronten?
Check de pins in het topic voor referenties, dan kan wel een aardig beeld geven van wat iets ongeveer moet kosten.BADgoofy2000 schreef op vrijdag 24 september 2021 @ 12:55:
Wij zijn ook druk met een nieuwe keuken, maar we twijfelen over de opstelling en de kleuren. De tuin is op het oosten, dus we vragen ons af of we voldoende licht hebben voor een zwarte keuken. Iemand ervaring mee?
En dit zijn wat mogelijk opstellingen. Wie wil er meedenken?
[Afbeelding]
Voordeel is het 'gezellige hoekje'. Nadeel is niet heel veel opbergruimte en dat zowel vaatwasser, kookplaat als spoelbak in een eiland naast elkaar zitten.
[Afbeelding]
Veel opberg- en werkruimte, maar er zit maar 105cm tussen spoelbak en kookplaat. 120cm voelt daarin wel veel ruimer vinden wij. Er is wel ruimte om het eiland op 120cm te zetten, maar dan kloppen de lijnen niet meer. En misschien wordt deze variant 'te veel' in de ruimte.
[Afbeelding]
Nadeel van deze variant is dat het misschien nogal lomp is. Geen 'gezellig hoekje' voor koffiezetter, plantje en kookboeken o.i.d.
Voor opstelling 1 hebben we al een offerte, maar die vinden we erg hoog. Wat zou het gevoelsmatig mogen kosten met composiet blad, siemens apparatuur en mat zwarte greeploze fronten?
Ik zou eerst de opstelling vaststellen voordat je prijzen gaat vergelijken. Anders vergelijk je appels met peren.
T.a.v. opstelling 1: die lijkt me zeer onpraktisch met de spoelbak en kookplaat zo dicht naast elkaar.
Heb je een plattegrond met de afmeting van de hele ruimte.
Je kunt bijvoorbeeld eens kijken naar de keukens van @Meekster en @Verwijderd, volgens mij zijn dat soortgelijke ruimtes.
Optie 1 zou ik echt niet voor gaan met als reden dat spoelen en koken erg dicht op elkaar zitten en je bijna geen werkruimte hebt.BADgoofy2000 schreef op vrijdag 24 september 2021 @ 12:55:
Wij zijn ook druk met een nieuwe keuken, maar we twijfelen over de opstelling en de kleuren. De tuin is op het oosten, dus we vragen ons af of we voldoende licht hebben voor een zwarte keuken. Iemand ervaring mee?
En dit zijn wat mogelijk opstellingen. Wie wil er meedenken?
[Afbeelding]
Voordeel is het 'gezellige hoekje'. Nadeel is niet heel veel opbergruimte en dat zowel vaatwasser, kookplaat als spoelbak in een eiland naast elkaar zitten.
[Afbeelding]
Veel opberg- en werkruimte, maar er zit maar 105cm tussen spoelbak en kookplaat. 120cm voelt daarin wel veel ruimer vinden wij. Er is wel ruimte om het eiland op 120cm te zetten, maar dan kloppen de lijnen niet meer. En misschien wordt deze variant 'te veel' in de ruimte.
[Afbeelding]
Nadeel van deze variant is dat het misschien nogal lomp is. Geen 'gezellig hoekje' voor koffiezetter, plantje en kookboeken o.i.d.
Voor opstelling 1 hebben we al een offerte, maar die vinden we erg hoog. Wat zou het gevoelsmatig mogen kosten met composiet blad, siemens apparatuur en mat zwarte greeploze fronten?
Optie 1 zou wel kunnen als je er een schiereiland van maakt, maar het nadeel is de enkele ingang naar de keuken.
Optie 3 kan toch net als optie 1 een koffiehoekje maken aan de linkerzijde door 2 hoge kasten te verwijderen of zie ik dat verkeerd?
Mijn keuken maten zijn ongeveer hetzelfde als die van jou. Ik heb het volgende gedaan, ik schrijf het even uit omdat ik geen tijd heb om een tekening te maken.heerjelle schreef op donderdag 23 september 2021 @ 12:10:
[...]
Bedankt. Ook dit zou inderdaad een goede optie zijn, wellicht beperkt in ruimte omdat er geen hoge kasten passen rechtsonder ivm de diepte van de muur icm het raam maar qua beweegruimte wel ruim voldoende.
Aan de rechterzijde een lang blad tegen muur aan, 315cm bij 80cm diep. Door de extra diepte heb ik diepere lades en opbergruimte.
Aan linkerzijde (tegen hal muur aan) eerst een blad van 80cm breed en 60 diep, met daaronder twee lade kasten (inc ingebouwde prullenbak) en dan 3 hoge kasten geïntegreerd in een inbouwframe.
Door een verdiept blad aan de rechterzijde heb ik meer werkblad ruimte en het ziet er ook beter uit.
[ Voor 3% gewijzigd door Rainesh op 24-09-2021 13:28 ]
http://tweakers.net/gallery/103719/sys.
Verwijderd
Zoek mijn keuken even op, dat is exact die ruimteBADgoofy2000 schreef op vrijdag 24 september 2021 @ 12:55:
Iemand ervaring mee?
Bedankt, ik zal mijn opties overwegen. Ik heb inmiddels contact opgenomen met de keukenboer, kijken wat er nog mogelijk is als we er wat meer geld voor over hebben. Heb in de huidige woning een afstand van 82cm tussen kasten en aanrecht en dat is toch wel dermate smal dat het soms lastig is om iets in de oven te zetten dus 90cm is dan geen hele ruime upgrade... We zullen zienRainesh schreef op vrijdag 24 september 2021 @ 13:24:
[...]
Mijn keuken maten zijn ongeveer hetzelfde als die van jou. Ik heb het volgende gedaan, ik schrijf het even uit omdat ik geen tijd heb om een tekening te maken.
Aan de rechterzijde een lang blad tegen muur aan, 315cm bij 80cm diep. Door de extra diepte heb ik diepere lades en opbergruimte.
Aan linkerzijde (tegen hal muur aan) eerst een blad van 80cm breed en 60 diep, met daaronder twee lade kasten (inc ingebouwde prullenbak) en dan 3 hoge kasten geïntegreerd in een inbouwframe.
Door een verdiept blad aan de rechterzijde heb ik meer werkblad ruimte en het ziet er ook beter uit.
In mijn vorige woning had ik een eiland met een hoge kasten wand. Loopruimte was iets van 85cmheerjelle schreef op vrijdag 24 september 2021 @ 14:03:
[...]
Bedankt, ik zal mijn opties overwegen. Ik heb inmiddels contact opgenomen met de keukenboer, kijken wat er nog mogelijk is als we er wat meer geld voor over hebben. Heb in de huidige woning een afstand van 82cm tussen kasten en aanrecht en dat is toch wel dermate smal dat het soms lastig is om iets in de oven te zetten dus 90cm is dan geen hele ruime upgrade... We zullen zien
http://tweakers.net/gallery/103719/sys.
Mooie keuken!TomF schreef op vrijdag 24 september 2021 @ 10:48:
[...]
Met wat aanpassingen is dit het uiteindelijke resultaat geworden:
[Afbeelding]
Uiteindelijk hebben we de keuken besteld bij Ijtsma Opende Groningen. Houden zich keurig aan alle afspraken, hele goede service.
Op basis van de eerdere tekening, schat ik het eiland op 3.25m? Klopt dat?
En is het dat uiteindelijk ook geworden?
Van 85cm naar 1,2m is wel een heel flink verschil ja. Dan is die openstaande vaatwasser ineens geen onmogelijk obstakel meer haha.Rainesh schreef op vrijdag 24 september 2021 @ 14:22:
[...]
In mijn vorige woning had ik een eiland met een hoge kasten wand. Loopruimte was iets van 85cmNu is het ongeveer 1,2m en dat is meer dan genoeg.
Wij hebben helaas al wel de offerte getekend en volgens de tekening hebben we 90,4cm loopruimte. De bouw van het huis is nog niet begonnen, laat staan de keuken, maar de kans is aanwezig dat leidingwerk niet meer verlegd kan worden en we dus aan het e.e.a. of gewoon aan alles vast zitten
De ruimte is 600 bij 460. De deur neemt 130 in, dus van die wand blijft 330 over. De andere wand (van de hal) is ook 330.SquareOne schreef op vrijdag 24 september 2021 @ 12:59:
[...]
Heb je een plattegrond met de afmeting van de hele ruimte.
Inderdaad dezelfde ruimte. Wel goed idee met dat plankje aan de linkerkant ipv rechts.Verwijderd schreef op vrijdag 24 september 2021 @ 13:55:
[...]
Zoek mijn keuken even op, dat is exact die ruimte
Ik zag een rendering in een gepinde post. Is de keuken ook al geplaatst?
Bij optie 1 zou de kookplaat en spoelbak beiden op een hoek kunnen, maar dan zit de vaatwasser in het midden. Is ook niet zo handig.funkeey schreef op vrijdag 24 september 2021 @ 13:20:
[...]
Optie 1 zou ik echt niet voor gaan met als reden dat spoelen en koken erg dicht op elkaar zitten en je bijna geen werkruimte hebt.
Optie 1 zou wel kunnen als je er een schiereiland van maakt, maar het nadeel is de enkele ingang naar de keuken.
Optie 3 kan toch net als optie 1 een koffiehoekje maken aan de linkerzijde door 2 hoge kasten te verwijderen of zie ik dat verkeerd?
Bij optie 3 zou dat kunnen, maar dan zie je het plankje niet vanaf de eettafel. Dat voelt een beetje als een verstopt hoekje. Misschien dat het aan de andere kant zou kunnen.
Leidingwerk kan altijd verlegd worden (bijv na oplevering) en keuken veranderen als de bouw nog moet beginnen lijkt me ook niet zo’n probleem. Ze moeten tenslotte de keuken nog inmeten en bestellen daarna pas bij de leverancier.heerjelle schreef op vrijdag 24 september 2021 @ 14:37:
[...]
Van 85cm naar 1,2m is wel een heel flink verschil ja. Dan is die openstaande vaatwasser ineens geen onmogelijk obstakel meer haha.
Wij hebben helaas al wel de offerte getekend en volgens de tekening hebben we 90,4cm loopruimte. De bouw van het huis is nog niet begonnen, laat staan de keuken, maar de kans is aanwezig dat leidingwerk niet meer verlegd kan worden en we dus aan het e.e.a. of gewoon aan alles vast zitten. Wel hoop ik dat ze wellicht flexibel zijn als we duidelijk meer willen investeren. Hopelijk volgende week
.
Maar de vraag is of de aannemer zin heeft zijn planning om te gooien. Dus die zal er een flink prijskaartje aan hangen of botweg nee zeggen. Overkwam mij bij vorig huis dat ik nieuw kocht nadat een eerdere koper zich terugtrok. Was dus na alle vervaldata. Tja, toen konden de leidingen die twee weken voor oplevering nog uit het plafond bungelden allemaal weer uit de muren worden gesloopt. Maar toch blij dat ik dat gedaan heb en niet heb berust in dwarse bui van een aannemer. Betekende wel paar weken zonder keuken. Uitiendelijk draait het dus om de vraag wat jij ervoor over hebt om je keuken te krijgen zoals je hem graag wilt.
Je gaat denk ik niet blij worden van mijn antwoorden, dus als je antwoordt met ‘ja doei’ dan snap ik dat.BADgoofy2000 schreef op vrijdag 24 september 2021 @ 12:55:
Wij zijn ook druk met een nieuwe keuken, maar we twijfelen over de opstelling en de kleuren. De tuin is op het oosten, dus we vragen ons af of we voldoende licht hebben voor een zwarte keuken. Iemand ervaring mee?
En dit zijn wat mogelijk opstellingen. Wie wil er meedenken?
Nadeel is niet heel veel opbergruimte en dat zowel vaatwasser, kookplaat als spoelbak in een eiland naast elkaar zitten.
Maar..
- een zwarte keuken op het oosten zou ik niet doen. Zwart slurpt het licht op, dat is er ‘s middags en ‘s avonds niet, dus het wordt een groot donker gat. Maak dan een combi van zwart met wit of hout.
- oostenlicht is heel erg fijn om ‘s ochtends van te genieten. Lekker aan een lange grote tafel die parallel aan de ramen staat (zijn daar ook tuindeuren bijv)? In de winter heb je echt veel aan dat licht.
- in dat opzicht zou ik niet kiezen voor een groot (maar onpraktisch) eiland midden in die ruimte. Dat neemt veel ruimte in die je in zo’n mooie ruimte ook heel anders kunt benutten. Nu lijkt de tafel klein ten opzichte van eiland? Maar je staat maar een uurtje of zo bij dat eiland, terwijl je misschien veel langer aan die tafel ‘leeft’
- mogelijk kom je beter uit als je aan rechterwand drie hoge kasten doet en vervolgens het werkblad in een U laat lopen, dus een soort schiereiland tot de deur naar de berging (denk ik). Aan dat schiereiland kun je dan een gezellig hoekje maken met een barretje. Niet te ver de kamer in laten lopen, dan heb je daar alle ruimte voor een mooie grote leeftafel.
Ach ja, dat is wat ik zou doen. Misschien hou je niet van leeftafels en sta je veel langer in de keuken dan ik. Maar ik wilde het je toch voorhouden.
Succes!
Geen inbouwkoffiemachine? Wel een quooker? Op basis van eigen keuken, zit je ergens tussen de 20 en 25k? Ben wel benieuwd!BADgoofy2000 schreef op vrijdag 24 september 2021 @ 12:55:
Wij zijn ook druk met een nieuwe keuken, maar we twijfelen over de opstelling en de kleuren. De tuin is op het oosten, dus we vragen ons af of we voldoende licht hebben voor een zwarte keuken. Iemand ervaring mee?
En dit zijn wat mogelijk opstellingen. Wie wil er meedenken?
[Afbeelding]
Voordeel is het 'gezellige hoekje'. Nadeel is niet heel veel opbergruimte en dat zowel vaatwasser, kookplaat als spoelbak in een eiland naast elkaar zitten.
[Afbeelding]
Veel opberg- en werkruimte, maar er zit maar 105cm tussen spoelbak en kookplaat. 120cm voelt daarin wel veel ruimer vinden wij. Er is wel ruimte om het eiland op 120cm te zetten, maar dan kloppen de lijnen niet meer. En misschien wordt deze variant 'te veel' in de ruimte.
[Afbeelding]
Nadeel van deze variant is dat het misschien nogal lomp is. Geen 'gezellig hoekje' voor koffiezetter, plantje en kookboeken o.i.d.
Voor opstelling 1 hebben we al een offerte, maar die vinden we erg hoog. Wat zou het gevoelsmatig mogen kosten met composiet blad, siemens apparatuur en mat zwarte greeploze fronten?
Ik vind opstelling 1 het mooist. Dan kijk je tijdens het koken etc uit op je eettafel, waar familie of gasten zitten. Als je eiland 2.4m kan zijn, kun je op de hoeken koken en spoelen. Heb je een wit werkblad overwogen? Onze keuken zit op het zuiden, matzwart, maar dus met wit blad.
Verwijderd
Nee, in januari pasBADgoofy2000 schreef op vrijdag 24 september 2021 @ 17:46:
Inderdaad dezelfde ruimte. Wel goed idee met dat plankje aan de linkerkant ipv rechts.
Ik zag een rendering in een gepinde post. Is de keuken ook al geplaatst?
Optie 4: Een U (met een schiereiland)BADgoofy2000 schreef op vrijdag 24 september 2021 @ 12:55:
Wij zijn ook druk met een nieuwe keuken, maar we twijfelen over de opstelling en de kleuren. De tuin is op het oosten, dus we vragen ons af of we voldoende licht hebben voor een zwarte keuken. Iemand ervaring mee?
En dit zijn wat mogelijk opstellingen. Wie wil er meedenken?
[Afbeelding]
Voordeel is het 'gezellige hoekje'. Nadeel is niet heel veel opbergruimte en dat zowel vaatwasser, kookplaat als spoelbak in een eiland naast elkaar zitten.
[Afbeelding]
Veel opberg- en werkruimte, maar er zit maar 105cm tussen spoelbak en kookplaat. 120cm voelt daarin wel veel ruimer vinden wij. Er is wel ruimte om het eiland op 120cm te zetten, maar dan kloppen de lijnen niet meer. En misschien wordt deze variant 'te veel' in de ruimte.
[Afbeelding]
Nadeel van deze variant is dat het misschien nogal lomp is. Geen 'gezellig hoekje' voor koffiezetter, plantje en kookboeken o.i.d.
Voor opstelling 1 hebben we al een offerte, maar die vinden we erg hoog. Wat zou het gevoelsmatig mogen kosten met composiet blad, siemens apparatuur en mat zwarte greeploze fronten?
@BADgoofy2000Toke_gt schreef op vrijdag 24 september 2021 @ 18:11:
[...
- mogelijk kom je beter uit als je aan rechterwand drie hoge kasten doet en vervolgens het werkblad in een U laat lopen, dus een soort schiereiland tot de deur naar de berging (denk ik). Aan dat schiereiland kun je dan een gezellig hoekje maken met een barretje. Niet te ver de kamer in laten lopen, dan heb je daar alle ruimte voor een mooie grote leeftafel.
Even teruggezocht wie het ook al weer was met een mooi design in u-vorm: @Stalensnuitje
Zie hier draadje met schetsen en uiteindelijk ontwerp. Geeft jou meer werkruimte en meer mogelijkheden voor je kamerindeling aan die kant.
Is 2.4m echt genoeg voor kookvuur, spoelbak en werkruimte? Lijkt me toch krap te worden?Marc Rademaker schreef op vrijdag 24 september 2021 @ 19:34:
[...]
Geen inbouwkoffiemachine? Wel een quooker? Op basis van eigen keuken, zit je ergens tussen de 20 en 25k? Ben wel benieuwd!
Ik vind opstelling 1 het mooist. Dan kijk je tijdens het koken etc uit op je eettafel, waar familie of gasten zitten. Als je eiland 2.4m kan zijn, kun je op de hoeken koken en spoelen. Heb je een wit werkblad overwogen? Onze keuken zit op het zuiden, matzwart, maar dus met wit blad.
Miele of atag.
Ik denk dat het afhankelijk is van welke apparaten, welke functies je belangrijk vindt, welk design je mooi vindt, het geld dat je wilt uitgeven…
Wij wilden eerst ook 270, maar we hebben wat eilanden van 240 gezien en dat geeft genoeg werkruimte, zolang je vuile vaat naar achteren schuift (eiland 100 diep). En we hebben dus nog 120 werkblad in de nis, voor als een 2e persoon nog iets wil snijden of doen. Maar zonder nis of ander werkblad zou ik voor 270 minimaal gaan.Kwakkel schreef op zaterdag 25 september 2021 @ 00:35:
[...]
Is 2.4m echt genoeg voor kookvuur, spoelbak en werkruimte? Lijkt me toch krap te worden?
Miele natuurlijk.
ATAG = hisense.
WP: ME SUZ-SWM80VA + ERST20D-VM2D || PV: 12.000Wp || Batterij: SigenStor 12kW + 24kWh || A++++ 151m2 570m3 op water || WTW: Itho Daalderop HRU 350 ECO || Auto: Leapmotor B10 Design Pro Max 67,1 kWh
De keuze tussen deze twee is meestal financieel gedreven. Als dat niet uit maakt altijd voor de Miele gaan.
Opbrengst van mijn Tibber Homevolt met externe kWh meter. | Opbrengst van mijn Tibber Homevolt volgens de Tibber Data API.
Dit is het bij ons geworden:BADgoofy2000 schreef op vrijdag 24 september 2021 @ 12:55:
En dit zijn wat mogelijk opstellingen. Wie wil er meedenken?
Render:
:strip_exif()/f/image/dWLJXphC5chkWqD4DiBORsVO.jpg?f=fotoalbum_large)
Live:
:strip_exif()/f/image/P35WwFKcddfDirPZPHFjHQoB.jpg?f=fotoalbum_large)
zoek de verschillen
we zijn erg blij met deze opstelling: Veel ruimte en het barretje wordt veel gebruikt, dus erg gezellig!
Nice!107mb schreef op zaterdag 25 september 2021 @ 08:52:
[...]
Dit is het bij ons geworden:
Render:
[Afbeelding]
Live:
[Afbeelding]
zoek de verschillen![]()
we zijn erg blij met deze opstelling: Veel ruimte en het barretje wordt veel gebruikt, dus erg gezellig!
Aanvulling: ik zie nu dat het premium gesture controle nog steeds niet op de hanglamp is toegepast.
[ Voor 32% gewijzigd door Wanne-B88 op 25-09-2021 09:30 ]
Voor onze nieuw te bouwen woning lopen wij ontzettend te stoeien met de indeling van de keuken. Hierbij is onze wens om voor een eiland te gaan en minimaal 100~110cm loopruimte rondom een eiland te behouden (in ons huidige huis hebben we een eiland van 280 bij 120 met daarnaast 3 hoge kasten).
Bij de indeling aan de linker zijde lopen we tegen de uitdaging aan dat alle ramen tot beneden lopen inclusief het draai/kiepraam aan de gevelzijde.
Gister hebben wij uitgebreid bij LIV gezeten maar komen daar vooralsnog niet uit qua indeling. het voorstel nu is een keuken met aanrecht in het middenstuk van het huis met een eiland van 100cm bij 240cm. Hierbij blijft er te weinig loopruimte over en worden wij niet gelukkig van de voorgestelde indeling als ook de standaard indeling. Andere ideeën passen volgens ons ook niet (echt).
Zouden wij gebruik mogen maken van jullie creatieve ideeën? Eisen voor apparatuur zijn: Bora inductie, vaatwasser, quooker, combi oven, combi stoomoven, koel/vries combinatie. Dank alvast voor jullie ideeën!
Zoiets?DennisMa schreef op zaterdag 25 september 2021 @ 11:41:
Hallo allemaal,
Voor onze nieuw te bouwen woning lopen wij ontzettend te stoeien met de indeling van de keuken. Hierbij is onze wens om voor een eiland te gaan en minimaal 100~110cm loopruimte rondom een eiland te behouden (in ons huidige huis hebben we een eiland van 280 bij 120 met daarnaast 3 hoge kasten).
Bij de indeling aan de linker zijde lopen we tegen de uitdaging aan dat alle ramen tot beneden lopen inclusief het draai/kiepraam aan de gevelzijde.
Gister hebben wij uitgebreid bij LIV gezeten maar komen daar vooralsnog niet uit qua indeling. het voorstel nu is een keuken met aanrecht in het middenstuk van het huis met een eiland van 100cm bij 240cm. Hierbij blijft er te weinig loopruimte over en worden wij niet gelukkig van de voorgestelde indeling als ook de standaard indeling. Andere ideeën passen volgens ons ook niet (echt).
Zouden wij gebruik mogen maken van jullie creatieve ideeën? Eisen voor apparatuur zijn: Bora inductie, vaatwasser, quooker, combi oven, combi stoomoven, koel/vries combinatie. Dank alvast voor jullie ideeën!
[Afbeelding]
Hoe zou je de verdeling in die ruimte het liefst hebben? Waar het zitgedeelte, waar de keuken? Ik zie in het linkerdeel vrijwel geen ramen, klopt dat?DennisMa schreef op zaterdag 25 september 2021 @ 11:41:
Zouden wij gebruik mogen maken van jullie creatieve ideeën? Eisen voor apparatuur zijn: Bora inductie, vaatwasser, quooker, combi oven, combi stoomoven, koel/vries combinatie. Dank alvast voor jullie ideeën!
[Afbeelding]
Stel dat je de keuken wel graag bij de ramen wilt hebben, dan zou je een eiland over de hele lengte kunnen overwegen? 6 meter waar alles in zit, inclusief een bar gedeelte. Heb je geen hoge kasten nodig en kun je er riant omheen lopen. Maar het is dan wel dominant aanwezig, daar moet je van houden.
Zoiets als dit, maar dan nog langer
(Je zou volgens mij zelfs nog een vergelijkbare situatie met de ovens in de muur kunnen maken, omdat je trapkast daar zit.)
[ Voor 4% gewijzigd door Toke_gt op 25-09-2021 13:40 ]
Ga je in de garage linksboven inderdaad een speelhoek doen?
Wil je eten aan de achterkant of juist voorkant?
Zeker wel!Toke_gt schreef op vrijdag 24 september 2021 @ 18:11:
[...]
Je gaat denk ik niet blij worden van mijn antwoorden
Succes!
De u vorm met schiereiland is ook zeker een goede optie.
Quooker, koelvries, vaatwasser en combioven. Voor optie 1 hebben we nu een offerte van 28K.. (met Pelgrim apparatuur)Marc Rademaker schreef op vrijdag 24 september 2021 @ 19:34:
[...]
Geen inbouwkoffiemachine? Wel een quooker? Op basis van eigen keuken, zit je ergens tussen de 20 en 25k? Ben wel benieuwd!
Dat is inderdaad een mooie indeling en mooie keuken.Toke_gt schreef op vrijdag 24 september 2021 @ 22:10:
[...]
@BADgoofy2000
Even teruggezocht wie het ook al weer was met een mooi design in u-vorm: @Stalensnuitje
Zie hier draadje met schetsen en uiteindelijk ontwerp.
Dank voor de tip! Ziet er zo wel erg gaaf uit. Ik kom echter alleen met de loopruimte niet uit als we een groot eiland aan de raamkant parallel aan de ramen plaatsen. De breedte daar is 3080mm en met loopruimte 2x 1200mm blijft er te weinig over voor een eiland. Zag deze optie zeer zeker zitten... Wellicht moeten we toch de switch maken om de keuken aan de andere kant te plaatsen.Toke_gt schreef op zaterdag 25 september 2021 @ 13:39:
[...]
Hoe zou je de verdeling in die ruimte het liefst hebben? Waar het zitgedeelte, waar de keuken? Ik zie in het linkerdeel vrijwel geen ramen, klopt dat?
Stel dat je de keuken wel graag bij de ramen wilt hebben, dan zou je een eiland over de hele lengte kunnen overwegen? 6 meter waar alles in zit, inclusief een bar gedeelte. Heb je geen hoge kasten nodig en kun je er riant omheen lopen. Maar het is dan wel dominant aanwezig, daar moet je van houden.
Zoiets als dit, maar dan nog langer![]()
(Je zou volgens mij zelfs nog een vergelijkbare situatie met de ovens in de muur kunnen maken, omdat je trapkast daar zit.)
[Afbeelding]
Wat we het liefst willen is zitten / eten aan de kanten van de openslaande deuren of bij de ramen aan de voorzijde. Zodat we of de tuin in kijken of naar straat kijken. Hierbij willen we eigenlijk 4 ruimtes creëren, keuken, tv hoek, eethoek en nog een zithoek(je). De totale ruimte lijkt groot (en is dat natuurlijk ook) maar door de ramen die doorlopen of door nét te weinig ruimte aan de voorzijde blijft het puzzelen.
:no_upscale():strip_icc():fill(white):strip_exif()/f/image/cOBICqflG9LQdciwv206ndUw.jpg?f=user_large)
Zoiets? Je zou ook een L met eiland kunnen proberen, maar dat is misschien net te krap
Hm, ik denk dat je niet per se aan beide kant 1.20 hoeft aan te houden. Aan de kant van de ramen zou het ook minder (80) kunnen zijn, want in die hoek kom je waarschijnlijk niet. Aan de kant waar je werkt, zou ik idd wel 1.10/1.20 doen, zeker omdat er ook nog een deur aan de zijkant is, dus er zullen mensen achter je langs willen kunnen lopen.DennisMa schreef op zaterdag 25 september 2021 @ 14:52:
[...] De breedte daar is 3080mm en met loopruimte 2x 1200mm blijft er te weinig over voor een eiland. Zag deze optie zeer zeker zitten... Wellicht moeten we toch de switch maken om de keuken aan de andere kant te plaatsen.
Keuken naar de ‘donkere’ kant kun je doen omdat de ruimte daar gunstiger is, maar ik zou liever licht in de keuken hebben en de tv hoek wat meer het deel met de muren plaatsen. Daar wil je juist niet te veel lichtinval, en dat heb je op alle andere plekken wel. Ik ga nog even met je meedenken. Mooie ruimte wel hoor!
Mooi! Heb je daar ook een plattegrond van. Hoe heb je dat gedaan met de oven, is dat een brede oven? Heb je tegenover het open deel van de u nog een eettafel staan107mb schreef op zaterdag 25 september 2021 @ 08:52:
[...]
Dit is het bij ons geworden:
Render:
[Afbeelding]
Live:
[Afbeelding]
zoek de verschillen![]()
we zijn erg blij met deze opstelling: Veel ruimte en het barretje wordt veel gebruikt, dus erg gezellig!
de oven is 90 cm breed, maar niet ingetekend op deze tekening. In het open deel staat nog een gewone tafel, maar er komt een bank aan de muur te staan.Mvcb schreef op zaterdag 25 september 2021 @ 16:55:
[...]
Mooi! Heb je daar ook een plattegrond van. Hoe heb je dat gedaan met de oven, is dat een brede oven? Heb je tegenover het open deel van de u nog een eettafel staan
De opstelling zijn wij ook nog niet helemaal uit maar ik heb nu een ander vraagje.
Sommige keukenverkopers zeggen over inductiekookplaat met afzuiging, Bora of niet.
Andere zegt weer Bora of Miele maar geen andere.
En een ander zegt vanuit eigen ervaring dat Siemens ook goed werkt.
Hoe denken jullie hierover (kookplaat met afzuiging)?
Consensus van experts in het topic is Bora. Siemens of andere merken worden vaak aanbevolen omdat ze geen Bora kunnen leveren of minder goede inkoopcondities hebben.OsiriS.nl schreef op zondag 26 september 2021 @ 10:48:
Ik heb een vraagje. Wij gaan aanbouwen om daar een mooie leefkeuken te maken.
De opstelling zijn wij ook nog niet helemaal uit maar ik heb nu een ander vraagje.
Sommige keukenverkopers zeggen over inductiekookplaat met afzuiging, Bora of niet.
Andere zegt weer Bora of Miele maar geen andere.
En een ander zegt vanuit eigen ervaring dat Siemens ook goed werkt.
Hoe denken jullie hierover (kookplaat met afzuiging)?
@DennisMaToke_gt schreef op zaterdag 25 september 2021 @ 13:39:
[...]
Hoe zou je de verdeling in die ruimte het liefst hebben? Waar het zitgedeelte, waar de keuken? Ik zie in het linkerdeel vrijwel geen ramen, klopt dat?
Stel dat je de keuken wel graag bij de ramen wilt hebben, dan zou je een eiland over de hele lengte kunnen overwegen? 6 meter waar alles in zit, inclusief een bar gedeelte. Heb je geen hoge kasten nodig en kun je er riant omheen lopen. Maar het is dan wel dominant aanwezig, daar moet je van houden.
Zoiets als dit, maar dan nog langer![]()
(Je zou volgens mij zelfs nog een vergelijkbare situatie met de ovens in de muur kunnen maken, omdat je trapkast daar zit.)
[Afbeelding]
Dit idee even verder op de kaart gezet.
Thanks voor je snelle reply, klinkt begrijpelijk. Maar ik zie ook goede reviews van bijv. de Siemens kookplaten. De vraag is natuurlijk hoeveel beter is een Bora en waarin is een Siemens dan minder?SquareOne schreef op zondag 26 september 2021 @ 10:59:
[...]
Consensus van experts in het topic is Bora. Siemens of andere merken worden vaak aanbevolen omdat ze geen Bora kunnen leveren of minder goede inkoopcondities hebben.
Is het geluid, of afzuiging?
Siemens (/Bosch /Neff /Miele /etc.) zullen geen slechte kookplaten verkopen. Wat zij wel nog verkopen zijn 101 andere apparaten.OsiriS.nl schreef op zondag 26 september 2021 @ 12:04:
[...]
Thanks voor je snelle reply, klinkt begrijpelijk. Maar ik zie ook goede reviews van bijv. de Siemens kookplaten. De vraag is natuurlijk hoeveel beter is een Bora en waarin is een Siemens dan minder?
Is het geluid, of afzuiging?
BORA heeft nagenoeg het wiel uitgevonden en de kookplaat met afzuiging is hun core-business. Oké, hier komt ook een oven bij nu, echter is hun portfolio niet groter dan kookplaten en een oven+warmhoudlade.
Dank voor je toevoeging! Ik zou dan wel de banken in de zithoek meer naar de tuinzijde zetten (dwars op de tuindeuren). Aan achterkant bank naar tv kun je een mooie sidetable zetten.mitsumark schreef op zondag 26 september 2021 @ 11:59:
[...]
@DennisMa
Dit idee even verder op de kaart gezet.
[Afbeelding]
Verder niet eerder gezien, maar je zou het eiland nog in een L kunnen veranderen, waarbij de korte poot de eettafel is die aan het eiland vastzit en precies voor de tuindeuren staat. Dat is fijner zitten dan tussen deur en muur. Echt een gigantisch eiland wordt het zo, lijkt me erg mooi uitkomen in zo’n enorme ruimte.
En nog correctie op mijn eerdere post: ik dacht dat er een deur in de keukenruimte uitkwam, maar dat is een raam. Dus nog minder noodzaak om helemaal rondom het eiland 1,2 m loopruimte aan te houden. Je zou naast het raam zelfs ook nog twee hoge kasten kunnen zetten.
Ik vraag me echt af of dat nou echt een argument is.Source90 schreef op zondag 26 september 2021 @ 12:06:
[...]
Siemens (/Bosch /Neff /Miele /etc.) zullen geen slechte kookplaten verkopen. Wat zij wel nog verkopen zijn 101 andere apparaten.
BORA heeft nagenoeg het wiel uitgevonden en de kookplaat met afzuiging is hun core-business. Oké, hier komt ook een oven bij nu, echter is hun portfolio niet groter dan kookplaten en een oven+warmhoudlade.
Samsung maakt telefoons, wasmachines, tractors, tv's etc.
Maar ze hebben ook een flink grotere bak met engineers beschikbaar die gespecialiseerd zijn in een van die dingen.
Wat als de tractor divisie flopt? Dan heb je nog tal van andere sectoren waar Samsung zich op stort.LaTiNo156 schreef op zondag 26 september 2021 @ 12:45:
[...]
Ik vraag me echt af of dat nou echt een argument is.
Samsung maakt telefoons, wasmachines, tractors, tv's etc.
Maar ze hebben ook een flink grotere bak met engineers beschikbaar die gespecialiseerd zijn in een van die dingen.
Wat ik bedoelde te zeggen; dit is BORA haar enige product, waarin ze gespecialiseerd zijn en hun naam in hoog te houden hebben.
Als de Inductiekookplaat van hun flopt, heeft BORA niet echt meer bestaansrecht.
Alle kennis en know how is gebaseerd op hun coreproduct. Mijns inziens is een core business anders dan een team wat zich hiermee bezig houdt
Vrijdag en het weekend vrij gepland om ons te oriënteren voor een nieuwe keuken die meer 'eigentijds' en afscheid neemt van het gas.
Het idee koken voor het raam (waar nu de spoel unit is). Combi oven inbouw boven de koelkast (nu vries/koel combinatie) Dus de vriezer vervalt.
Het idee is/was
Koken voor het raam met inductie kookplaat met afzuiging ala Bora, Siemens enz..
Magnaton oven combinatie
Koelkast
Vaatwasser.
Eerste bezoek was aan Keukenmaxx en onze wensen kenbaar gemaakt. Verkoper kwam onzeker over. Wist vaak niet waar de opstellingen stonden of wist niet hoe sommige apparatuur werkte. Moest vaak overleggen met collega en probeerde echt aan onze wensten tegemoet te komen, zonder tegenspraak of advies. Uiteindelijk deed hij het voorstel om een nieuwe afspraak te maken, zodat hij 'in alle rust' een goed ontwerp kon presenteren enz..
Naast Keukenmax zat ook Keukenkampioen. Omdat we snel klaar waren bij Keukenmaxx daar binnen gestapt.
Direct aangesproken door verkoper/adviseur en aan de hand van de verkoper -die direct begon met 3d- voorstellen, gedurende een aantal uren van hot naar her door de showroom. Wel de indruk dat deze verkoper/adviseur wist waar alles stond en wat er....
Deze adviseur zag het koken voor het raam niet zitten, vanwege spetteren en beslaan van het glas. Andere optelling en inplaats van inductie met afzuiging een kookplaat met een soort schuine afzuigkap. Merk AEG.
Na de 3d enz. kwam de keuken op iets meer dan 17.000 euro, voor een eenvoudige L opstelling van 390 bij 1.80. Geen top apparatuur maar middenklas. Merk keuken kastjes of die corpus weet ik niet.
Van deze prijs een beetje geschrokken en dat duidelijk gemaakt, dat het ook een beetje buiten onze budget... We hadden zelf iets van 14.000.
De verkoper moest daarover even contact met zijn ..... opnemen om..... Kwam terug met een voorstel van 14.700 en als we direct een beslissing nemen en nu akkoord gaan had hij een optie voor 14.000 inclusief montage!!!!
Het geparkeerd en dat we er zaterdag op terug komen. Zo ookg de kosten van een nieuwe groepenpkast etc. in de begroting willen calculeren. Zaterdag gebeld en gevraagd om een leidng plan maar dat was 3 uur werkt volgens verkoper maar wel duidelijk proberen te maken dat de aanbieding....... Dus niet.
Zaterdag naar het keukenwarenhuis gevestigd te ter Aar maar door de de drukte en... na een half uur weer weg.
Tijd over dus naar Superkeukens in Gouda. Leuke ontwerpen en een verkoper aangesproken om wat advies enz. We hadden een goed. gevoel in deze showroom en de verkoper in leuke moderne broek even onze wensen kenbaar gemaakt.
Nadat ik zelf wat op het papier had geschetst. Vanwege de lopende afspraken en???? Zijn voorstel om een ontwerp te maken en via mail zondag te.... Helaas niets ontvangen en toen wij door de showroom liepen zat deze leuke broek adviseur aan de lunch. Moet ook gebeuren maar wees dan duidelijk. Dus superkeukens Gouda?????
Nu wil het toeval dat tijdens het bezoek aan superkeukens Gouda we ook het echtpaar ontmoeten dat gisteren bij Keukenkampioen door een andere verkoper werd geadviseerd.
Na ee kort gesprek werd het duidelijk dat ze ook geen 'goed' gevoel hadden bij Keukenkampioen en dat ze vanaf de eerste prijs opgave van +- 16.000 uiteindeljk de keuken voor r 10.000 konden kopen bij direct beslissen.
In welke slapstick zijn we terecht gekomen? Van 16.000 euro naar 10.000 en heb ik van 17.000 plus naar 14.000 euro nog teveel betaald?
Verkopers bij Keukenmaxx die niet of nauwelijks weten waar... niet direct een kundig advies kunnen geven.
Verkoper van Superkeukens Gouda die beloofd een opzetje te maken en te mailen en in eerste instantie zijn afspraak niet nakomt.
Zoek je op internet prijzen over apparatuur krijg je bij het overgrote deel 'ff bellen of mail'. Heel vaag allemaal.
Na twee dagen het idee dat we in een 'schimmige' wereld terecht zijn gekomen.
Stel je voor dat we in onze naïviteit bij Keukenkampioen hadden getekend bij het eerste bedrag of bij de korting van 3000 euro en je ontmoet een dag later een echtpaar die er 6000 euro vanaf heeft gekregen.
Is het geen tijd dan er een eind wordt gemaakt aan deze cowboy praktijken en zijn er nog fatsoenlijke bedrijven die keukens verkopen en installeren?
[ Voor 3% gewijzigd door TecTo op 26-09-2021 22:14 ]
Bij ons staat er al meer dan 20 jaar een Schmidt keuken met corpus 86cm cm. Met natuursteen blad en plint een werkhoogte van 98cn.squaadgras schreef op zondag 26 september 2021 @ 20:33:
Kort vraagje: weet iemand de korpushoogte van Schmidt keukens? 78 en 86? Dank!
Wij hebben toentertijd voor Schmidt gekozen omdat de corpus 18mm was en de andere vaak 16mm. \
Alles nog prefect alleen de deurtjes zijn wat gedateerd.
Idee: lange wand vlnr:
-Planken in hoek, omdat kast voor het raam zou komen, eventueel iets uit de wand 1e kast plaatsen ook een optie
-2 lage lade kasten van 120 met werkblad en daarop de oven en stoomoven
-2 hoge (liefst pocket) kasten
- hoge koelkast
-koffie/bardeel met wijnkoelkast, ladekast en daarboven planken oid. Kreeg dit niet in de planner.
-eiland van ong 290 x100 met zoveel mogelijk ladekasten, vaatwasser, bora, quooker.
-Afstand tussen kastenwand en eiland 100 cm
-tussen tafel en eiland 130
-tussen tafel en muur 90
-tussen eiland en raam ong 70
:strip_exif()/f/image/NuwJrU3HtTZtWxDmV7bxOgml.jpg?f=fotoalbum_large)
:strip_exif()/f/image/d7z8xB44UN3f4uBTy4vZHjQC.jpg?f=fotoalbum_large)
:strip_exif()/f/image/50thPn72f4nS5Px3UlOWFRCg.jpg?f=fotoalbum_large)
Ik ben overal tegen. Tot ik een besluit neem, dan ben ik ervoor
Die eerste opstelling vind ik een miskleun. Je hebt geen plaats tussen kookplaat en afwasbak, dat vind ik een totale no-go. Ook die afwasbak op het hoekje is enkel goed om heel veel te moeten poetsen...BADgoofy2000 schreef op vrijdag 24 september 2021 @ 12:55:
Wij zijn ook druk met een nieuwe keuken, maar we twijfelen over de opstelling en de kleuren. De tuin is op het oosten, dus we vragen ons af of we voldoende licht hebben voor een zwarte keuken. Iemand ervaring mee?
En dit zijn wat mogelijk opstellingen. Wie wil er meedenken?
[Afbeelding]
Voordeel is het 'gezellige hoekje'. Nadeel is niet heel veel opbergruimte en dat zowel vaatwasser, kookplaat als spoelbak in een eiland naast elkaar zitten.
[Afbeelding]
Veel opberg- en werkruimte, maar er zit maar 105cm tussen spoelbak en kookplaat. 120cm voelt daarin wel veel ruimer vinden wij. Er is wel ruimte om het eiland op 120cm te zetten, maar dan kloppen de lijnen niet meer. En misschien wordt deze variant 'te veel' in de ruimte.
[Afbeelding]
Nadeel van deze variant is dat het misschien nogal lomp is. Geen 'gezellig hoekje' voor koffiezetter, plantje en kookboeken o.i.d.
Voor opstelling 1 hebben we al een offerte, maar die vinden we erg hoog. Wat zou het gevoelsmatig mogen kosten met composiet blad, siemens apparatuur en mat zwarte greeploze fronten?
105 cm vind ik meer dan ruim, hier is dat maar 90 cm, en dat lukt perfect.
Sony A7 iv en wat recycled glas
In principe zijn we niet pro-koks, en de oven zal gebruikt worden voor lasagna, pastaschotels en pizza's.
Ik wil wel een echte oven met magnetronfunctie, dus niet een heteluchte oven zoals we nu hebben.
Een echte oven heeft wel beduidend minder binnenruimte.
Kun je makkelijk 2 pizza's tegelijk erin kwijt? En heeft dat uberhaupt zin, of lukt de bovenste dan niet goed omdat de warmte van onderin wordt geblokkeerd?
Ik denk dat 3 ook wel lukt als je nog een extra plaat koopt.
Edit: Ik zou totaal niet kunnen bedenken waarom ik een 60cm oven nodig zou hebben. Zeker niet als je zoals veel mensen tegenwoordig 2 ovens hebt.
[ Voor 26% gewijzigd door sNielz123 op 27-09-2021 17:46 ]
Wij gebruiken al jaren een 45cm (combi)oven. Helemaal prima voor het geen jij het voor wil gebruiken. Nooit het gevoel gehad dat we wat te kort kwamen. Ook zal deze sneller opwarmen dan een 60cm ovenLaTiNo156 schreef op maandag 27 september 2021 @ 17:41:
Hoi allemaal. ik begin nu te twijfelen aan het nut van een 60cm oven tov een 45cm oven in ons geval.
In principe zijn we niet pro-koks, en de oven zal gebruikt worden voor lasagna, pastaschotels en pizza's.
Ik wil wel een echte oven met magnetronfunctie, dus niet een heteluchte oven zoals we nu hebben.
Een echte oven heeft wel beduidend minder binnenruimte.
Kun je makkelijk 2 pizza's tegelijk erin kwijt? En heeft dat uberhaupt zin, of lukt de bovenste dan niet goed omdat de warmte van onderin wordt geblokkeerd?
[Afbeelding]
Wat betreft goed verwarmen met bijvoorbeeld 2 pizza's daar kan natuurlijk per oven verschil inzitten. wij hebben een Miele dus kan niet spreken over een Pelgrim of iets dergelijks.
Thanks voor je feedback. De lange wand is zo ruim 6 meter, dus een onderbreking kan wel wat de ruimte betreft. Wat lijkt je er verder onhandig aan? Ik dacht juist wel fijn, beetje afzetruimte er net naast en ovens op een fijne hoogte🤔mevrouwKees_1 schreef op maandag 27 september 2021 @ 17:22:
@Huisje1 die opstelling met die 2 ovens lijkt me erg onpraktisch en kost best veel ruimte. Ziet er leuk uit op plaatje maar is volgens mij in de praktijk erg onhandig
Hoe groot is de doorloop tussen je eiland en de muur als je naar de tafel wilt? Lijkt mij kleinHuisje1 schreef op zondag 26 september 2021 @ 21:51:
Zouden jullie eens mee willen kijken naar dit idee? Aangezien we twijfels hebben bij ons eerste ontwerp zelf wat bedacht en hoor heel graag jullie mening hier over. Helaas super onhandig met keukenplanner, niet te serieus nemen graag 😛 is meer bedoeld om de verhoudingen te laten zien. Keuken wordt waarschijnlijk van Rotpunkt kleurstelling combi hout/zwart/grijs keramisch blad marmer look, staat allemaal nog niet vast. Wat ons vooral aanspreekt is de plaats van de 2 ovens (foto)
Idee: lange wand vlnr:
-Planken in hoek, omdat kast voor het raam zou komen, eventueel iets uit de wand 1e kast plaatsen ook een optie
-2 lage lade kasten van 120 met werkblad en daarop de oven en stoomoven
-2 hoge (liefst pocket) kasten
- hoge koelkast
-koffie/bardeel met wijnkoelkast, ladekast en daarboven planken oid. Kreeg dit niet in de planner.
-eiland van ong 290 x100 met zoveel mogelijk ladekasten, vaatwasser, bora, quooker.
-Afstand tussen kastenwand en eiland 100 cm
-tussen tafel en eiland 130
-tussen tafel en muur 90
-tussen eiland en raam ong 70[Afbeelding]
[Afbeelding]
[Afbeelding]
[Afbeelding]
Ongezouten mening/feedback:
• De ovens zo op je werkblad kost erg veel ruimte en tenzij ze aanstaan, worden dat twee donkere glimmende blokken.
• Spoelen zou ik in een nis in je kastenwand doen. Dan kan je een korter eiland neerzetten én heb je meer ruimte voor snijden. (Wel vaker bewegen naar de spoelbak)
• Kastenwand tegen de andere buitenmuur en dan zou ik 3 hoge kasten doen (~1m80 dus) en nog eens 1m60 nis. Dan heb je 80cm naar de achtermuur en kan je 2x80cm kast doen in de nis (of 100/60 of je maakt er 180 van in 60+120..). Ruimte genoeg dan voor je spoelbak en afleg.
• Eiland naar 240 of hooguit 270, heb je lekker ruimte voor snijden, genoeg ruimte voor doorloop en meer ruimte tussen het eiland en de achtermuur. Eventueel maak je het eiland 110 diep, verlies je weinig mee qua eiland, win je net die 10cm mee die je eigenlijk wel wilt hebben rondom de tafel; ik reken altijd 100cm ruimte voor de stoelen.
Je hebt ruimte zat, ik denk dat je de vriezer ofwel vergeten bent of wellicht onderschat hoe vaak je die gebruikt, tenzij je een koelvriescombinatie van plan bent en dan snap ik niet hoe je dat een slimme keuze vond in een keuken van dit formaat
Mocht je de kastenwand niet van kant willen wisselen, houdt er dan rekening mee dat deze enorm beeldbepalend wordt in je woonkamer. Persoonlijk zou ik deze dan echt doortrekken bovendien, tot het einde van de ‘uitsparing’ van je hal/toilet zegmaar. Denk dat dat nog zeker 180 verder is?
[ Voor 4% gewijzigd door Floor-is op 27-09-2021 20:20 ]
Bericht hierboven
Dankjewel! Dat van die glimmende donkere blokken als de ovens uitstaan, had ik niet bedacht, goed punt.Floor-is schreef op maandag 27 september 2021 @ 20:13:
[...]
Hoe groot is de doorloop tussen je eiland en de muur als je naar de tafel wilt? Lijkt mij klein
Ongezouten mening/feedback:
• De ovens zo op je werkblad kost erg veel ruimte en tenzij ze aanstaan, worden dat twee donkere glimmende blokken.
• Spoelen zou ik in een nis in je kastenwand doen. Dan kan je een korter eiland neerzetten én heb je meer ruimte voor snijden. (Wel vaker bewegen naar de spoelbak)
• Kastenwand tegen de andere buitenmuur en dan zou ik 3 hoge kasten doen (~1m80 dus) en nog eens 1m60 nis. Dan heb je 80cm naar de achtermuur en kan je 2x80cm kast doen in de nis (of 100/60 of je maakt er 180 van in 60+120..). Ruimte genoeg dan voor je spoelbak en afleg.
• Eiland naar 240 of hooguit 270, heb je lekker ruimte voor snijden, genoeg ruimte voor doorloop en meer ruimte tussen het eiland en de achtermuur. Eventueel maak je het eiland 110 diep, verlies je weinig mee qua eiland, win je net die 10cm mee die je eigenlijk wel wilt hebben rondom de tafel; ik reken altijd 100cm ruimte voor de stoelen.
Je hebt ruimte zat, ik denk dat je de vriezer ofwel vergeten bent of wellicht onderschat hoe vaak je die gebruikt, tenzij je een koelvriescombinatie van plan bent en dan snap ik niet hoe je dat een slimme keuze vond in een keuken van dit formaat
Mocht je de kastenwand niet van kant willen wisselen, houdt er dan rekening mee dat deze enorm beeldbepalend wordt in je woonkamer. Persoonlijk zou ik deze dan echt doortrekken bovendien, tot het einde van de ‘uitsparing’ van je hal/toilet zegmaar. Denk dat dat nog zeker 180 verder is?
Naar de andere kant verhuizen vind ik geen probleem, maar zou wel graag het koffie/bardeel willen “houden”
Spoelen in een nis lijkt met wel een leuke uitstraling aan de keuken geven maar iets minder handig misschien. Het klopt dat de doorgang naar de eettafel klein is, denk zo’n 75 cm dat is wel weinig. Ruimte voor de stoelen achter de tafel, is voor ons wel oké, hebben we nu ook en anders zou een bankje nog kunnen. Ik ben het zeker met je eens dat het heel beeldbepalend is, zo n lange kastenwand, dat is ook wel m’n twijfel. In het tussenstuk komt waarschijnlijk (bijna) op de grens met de woonkamer een wand met stalen deuren. De vriezer was ik niet vergeten ;-) we hebben een grote vriezer in de ruimte die als garage op tekening staat.
Oosten en zwart lijkt mij geen goede combinatie, in de ochtend fijn, maar vanaf de middag een relatief donkere ruimte. Juist als je er tijd gaat besteden.BADgoofy2000 schreef op vrijdag 24 september 2021 @ 12:55:
Wij zijn ook druk met een nieuwe keuken, maar we twijfelen over de opstelling en de kleuren. De tuin is op het oosten, dus we vragen ons af of we voldoende licht hebben voor een zwarte keuken. Iemand ervaring mee?
En dit zijn wat mogelijk opstellingen. Wie wil er meedenken?
[Afbeelding]
Voordeel is het 'gezellige hoekje'. Nadeel is niet heel veel opbergruimte en dat zowel vaatwasser, kookplaat als spoelbak in een eiland naast elkaar zitten.
[Afbeelding]
Veel opberg- en werkruimte, maar er zit maar 105cm tussen spoelbak en kookplaat. 120cm voelt daarin wel veel ruimer vinden wij. Er is wel ruimte om het eiland op 120cm te zetten, maar dan kloppen de lijnen niet meer. En misschien wordt deze variant 'te veel' in de ruimte.
[Afbeelding]
Nadeel van deze variant is dat het misschien nogal lomp is. Geen 'gezellig hoekje' voor koffiezetter, plantje en kookboeken o.i.d.
Voor opstelling 1 hebben we al een offerte, maar die vinden we erg hoog. Wat zou het gevoelsmatig mogen kosten met composiet blad, siemens apparatuur en mat zwarte greeploze fronten?
Optie 1: te weinig werkruimte, redelijk hoge kastruimte (de vaatwasser kan onder de oven mensen, vergeet dat niet). Tenzij je de spoelbak naar het lage deel in de kastenwand brengt ga je hier niet fijn koken..
Optie 2: koelvriescombinatie, oven en een apothekerskast, maar verder geen hoog? Ik zie (erg) veel laag, maar een gebrek aan hoog
Optie 3: juist veel hoog, groter (maar schier)eiland. Hier juist de opmerking dat je wellicht een nisje kunt plaatsen voor je koffiemachine e.d.
Ik denk dat ik optie 3 90° zou draaien (denk optie 1), met een nis in de kastenwand voor de spoelbak. Mits we over minimaal 300cm lengte spreken dan.. Ik vind het een fijn idee dat je contact kunt hebben met de mensen aan tafel als je aan het koken bent
In deze opstelling: 3 hoge kasten, 2x60 (of 1x120 of een andere variant) voor de spoelbak. Koelkast, vriezer, oven (evt vaatwasser) in de kastenwand.
Koken tegen die binnenmuur, spoelbak dichterbij de doorloop.
Bericht hierboven
Het is denk ik mooier als je ovens in de kastenwand zitten, zeker als je niet een zwarte keuken kiest kunnen dat toch mooie pronkstukken zijn.Huisje1 schreef op maandag 27 september 2021 @ 21:13:
[...]
Dankjewel! Dat van die glimmende donkere blokken als de ovens uitstaan, had ik niet bedacht, goed punt.
Naar de andere kant verhuizen vind ik geen probleem, maar zou wel graag het koffie/bardeel willen “houden”
Spoelen in een nis lijkt met wel een leuke uitstraling aan de keuken geven maar iets minder handig misschien. Het klopt dat de doorgang naar de eettafel klein is, denk zo’n 75 cm dat is wel weinig. Ruimte voor de stoelen achter de tafel, is voor ons wel oké, hebben we nu ook en anders zou een bankje nog kunnen. Ik ben het zeker met je eens dat het heel beeldbepalend is, zo n lange kastenwand, dat is ook wel m’n twijfel. In het tussenstuk komt waarschijnlijk (bijna) op de grens met de woonkamer een wand met stalen deuren. De vriezer was ik niet vergeten ;-) we hebben een grote vriezer in de ruimte die als garage op tekening staat.
Spoelen in een nis kan zonder bovenkastjes, dat breekt die wand nogal op. 1m20 zou genoeg moeten zijn als je geen 60cm spoelbak kiest
Doorgang naar de eettafel zou je idealiter ook minimaal 1m25 willen hebben, het is een doorloop immers, waar je ook met je potten en pannen door zult gaan.
Ruimte rondom de tafel is een persoonlijker ding, ik reken voor onze huidige tafel van 2m20 een blok van 3m20x3m vloeroppervlakte.
Een echt lange kastenwand vind ik wel onwijs stoer hoor, je komt het heel weinig tegen. Je hebt dan eigenlijk ook geen kastruimte in je woonkamer meer nodig, alles past er wel in
Oh en geen vriezer in je keuken heb ik nu ook en ik HAAT het, altijd wandelen naar de schuur (15 stappen, maar toch), geen ogen meer in de keuken en wel een kiddo die rondloopt.. Ik vind het niet prettig
[ Voor 4% gewijzigd door Floor-is op 27-09-2021 21:39 ]
Bericht hierboven
Wow wat is dit moeilijk zeg, we hebben best wat ruimte, maar alsnog loop je toch tegen wat beperkingen aan. Zeker met alle keukenmeuk die ik heb :-) Aan de ene kant vinden we een hele lange kastenwand wel gaaf aan de andere kant bang dat het totaal uit verhouding is tov van het huis en het eiland wat dan weer best klein is. Je haat om naar de vriezer te moeten lopen snap ik hoor🤣 maar ik hoef er niet voor naar buiten, alleen voor ijsblokjes in een drankje vind ik het ook al heel irritant. Als we voor de lange wand gaan ga ik er misschien toch nog ff over nadenken. Eerst maar zien dat we een keer uit t ontwerp komen, leuk zo n nieuwe keuken zeiden ze 😜Floor-is schreef op maandag 27 september 2021 @ 21:37:
[...]
Het is denk ik mooier als je ovens in de kastenwand zitten, zeker als je niet een zwarte keuken kiest kunnen dat toch mooie pronkstukken zijn.
Spoelen in een nis kan zonder bovenkastjes, dat breekt die wand nogal op. 1m20 zou genoeg moeten zijn als je geen 60cm spoelbak kiestNatuurlijk zou je voor 1m50 kunnen gaan, dan heb je echt lekker ruimte. Zeker als je de kastenwand op de kant laat waar jij hem tekende, dan heb je echt zat ruimte om dat te doen.
Doorgang naar de eettafel zou je idealiter ook minimaal 1m25 willen hebben, het is een doorloop immers, waar je ook met je potten en pannen door zult gaan.
Ruimte rondom de tafel is een persoonlijker ding, ik reken voor onze huidige tafel van 2m20 een blok van 3m20x3m vloeroppervlakte.
Een echt lange kastenwand vind ik wel onwijs stoer hoor, je komt het heel weinig tegen. Je hebt dan eigenlijk ook geen kastruimte in je woonkamer meer nodig, alles past er wel inEen van de huizen waar wij naar keken zouden we ook 6m wand in plaatsen, heerlijk!
Oh en geen vriezer in je keuken heb ik nu ook en ik HAAT het, altijd wandelen naar de schuur (15 stappen, maar toch), geen ogen meer in de keuken en wel een kiddo die rondloopt.. Ik vind het niet prettig
Ik vraag mij af wat handig is. In december worden mijn keukens geplaatst. Het liefst heb ik dan al de vloerbedekking rond, maar ik wil eigenlijk niet dat een stel kerels de hele dag rondlopen op de hagelnieuwe vloer, lopen zagen etc.
Is het gebruikelijk om eerst de vloer te laten leggen (bij nieuw/verbouw) of eerst de keukens te laten plaatsen.
Daarnaast handig om in de omgeving van de keukens de vloer te betegelen ipv visgraat door te trekken? Kan er een mooie scheiding/dorpel worden aangebracht?
Tot slot, kent iemand een goede keukenzetter die secuur te werk gaat? De verkoper zegt dat ik het door een derde mag laten plaatsen zonder verlies van garantie en dat zou veel sneller kunnen. Is dit handig om te doen als ik er pakweg anderhalve maand tijdwinst mee kan boeken? Een tip of referentie kan via pm.
De keukenwereld is de meest corrupte en intransparante sector die er is, samen met de tweedehands autoverkoop en makelaardij. Wat een stel criminelen.TecTo schreef op zondag 26 september 2021 @ 20:20:
Na 22 jaar het idee om onze keuken te vervangen. Alles werkt nog, zonder problemen. Enige idat we de Boretti gas kookpit/oven willen vervangen door inductie enz. en een wat moderne outfit.
Vrijdag en het weekend vrij gepland om ons te oriënteren voor een nieuwe keuken die meer 'eigentijds' en afscheid neemt van het gas.
Het idee koken voor het raam (waar nu de spoel unit is). Combi oven inbouw boven de koelkast (nu vries/koel combinatie) Dus de vriezer vervalt.
Het idee is/was
Koken voor het raam met inductie kookplaat met afzuiging ala Bora, Siemens enz..
Magnaton oven combinatie
Koelkast
Vaatwasser.
Eerste bezoek was aan Keukenmaxx en onze wensen kenbaar gemaakt. Verkoper kwam onzeker over. Wist vaak niet waar de opstellingen stonden of wist niet hoe sommige apparatuur werkte. Moest vaak overleggen met collega en probeerde echt aan onze wensten tegemoet te komen, zonder tegenspraak of advies. Uiteindelijk deed hij het voorstel om een nieuwe afspraak te maken, zodat hij 'in alle rust' een goed ontwerp kon presenteren enz..
Naast Keukenmax zat ook Keukenkampioen. Omdat we snel klaar waren bij Keukenmaxx daar binnen gestapt.
Direct aangesproken door verkoper/adviseur en aan de hand van de verkoper -die direct begon met 3d- voorstellen, gedurende een aantal uren van hot naar her door de showroom. Wel de indruk dat deze verkoper/adviseur wist waar alles stond en wat er....
Deze adviseur zag het koken voor het raam niet zitten, vanwege spetteren en beslaan van het glas. Andere optelling en inplaats van inductie met afzuiging een kookplaat met een soort schuine afzuigkap. Merk AEG.
Na de 3d enz. kwam de keuken op iets meer dan 17.000 euro, voor een eenvoudige L opstelling van 390 bij 1.80. Geen top apparatuur maar middenklas. Merk keuken kastjes of die corpus weet ik niet.
Van deze prijs een beetje geschrokken en dat duidelijk gemaakt, dat het ook een beetje buiten onze budget... We hadden zelf iets van 14.000.
De verkoper moest daarover even contact met zijn ..... opnemen om..... Kwam terug met een voorstel van 14.700 en als we direct een beslissing nemen en nu akkoord gaan had hij een optie voor 14.000 inclusief montage!!!!
Het geparkeerd en dat we er zaterdag op terug komen. Zo ookg de kosten van een nieuwe groepenpkast etc. in de begroting willen calculeren. Zaterdag gebeld en gevraagd om een leidng plan maar dat was 3 uur werkt volgens verkoper maar wel duidelijk proberen te maken dat de aanbieding....... Dus niet.
Zaterdag naar het keukenwarenhuis gevestigd te ter Aar maar door de de drukte en... na een half uur weer weg.
Tijd over dus naar Superkeukens in Gouda. Leuke ontwerpen en een verkoper aangesproken om wat advies enz. We hadden een goed. gevoel in deze showroom en de verkoper in leuke moderne broek even onze wensen kenbaar gemaakt.
Nadat ik zelf wat op het papier had geschetst. Vanwege de lopende afspraken en???? Zijn voorstel om een ontwerp te maken en via mail zondag te.... Helaas niets ontvangen en toen wij door de showroom liepen zat deze leuke broek adviseur aan de lunch. Moet ook gebeuren maar wees dan duidelijk. Dus superkeukens Gouda?????
Nu wil het toeval dat tijdens het bezoek aan superkeukens Gouda we ook het echtpaar ontmoeten dat gisteren bij Keukenkampioen door een andere verkoper werd geadviseerd.
Na ee kort gesprek werd het duidelijk dat ze ook geen 'goed' gevoel hadden bij Keukenkampioen en dat ze vanaf de eerste prijs opgave van +- 16.000 uiteindeljk de keuken voor r 10.000 konden kopen bij direct beslissen.
In welke slapstick zijn we terecht gekomen? Van 16.000 euro naar 10.000 en heb ik van 17.000 plus naar 14.000 euro nog teveel betaald?
Verkopers bij Keukenmaxx die niet of nauwelijks weten waar... niet direct een kundig advies kunnen geven.
Verkoper van Superkeukens Gouda die beloofd een opzetje te maken en te mailen en in eerste instantie zijn afspraak niet nakomt.
Zoek je op internet prijzen over apparatuur krijg je bij het overgrote deel 'ff bellen of mail'. Heel vaag allemaal.
Na twee dagen het idee dat we in een 'schimmige' wereld terecht zijn gekomen.
Stel je voor dat we in onze naïviteit bij Keukenkampioen hadden getekend bij het eerste bedrag of bij de korting van 3000 euro en je ontmoet een dag later een echtpaar die er 6000 euro vanaf heeft gekregen.
Is het geen tijd dan er een eind wordt gemaakt aan deze cowboy praktijken en zijn er nog fatsoenlijke bedrijven die keukens verkopen en installeren?
Trouwens, zo'n 'leidingadvies' kan een kind maken en duurt 15 minuten.. Heftig he?
Ik hoop zo dat de monopolie op de Nederlandse keukenmarkt wordt doorbroken door andere Europese spelers. Er is geen één Nederlandse keukenfabrikant, het zijn allemaal tussenpersoontjes die alles van A tot Z in het buitenland laten produceren en invoeren. Mandemakers groep kots. Net als de bouwmarkten, tijd voor buitenlandse concurrentie.
Welk monopolie?Taycann schreef op dinsdag 28 september 2021 @ 00:30:
[...]
De keukenwereld is de meest corrupte en intransparante sector die er is, samen met de tweedehands autoverkoop en makelaardij. Wat een stel criminelen.
Trouwens, zo'n 'leidingadvies' kan een kind maken en duurt 15 minuten.. Heftig he?
Ik hoop zo dat de monopolie op de Nederlandse keukenmarkt wordt doorbroken door andere Europese spelers. Er is geen één Nederlandse keukenfabrikant, het zijn allemaal tussenpersoontjes die alles van A tot Z in het buitenland laten produceren en invoeren. Mandemakers groep kots. Net als de bouwmarkten, tijd voor buitenlandse concurrentie.
Er zijn keukenverkopers zat, en het is net door concurrentie dat ze proberen om intransparant te zijn.
Er is trouwens een volledig transparante verkoper, en dat is Ikea. Helemaal geen slecht idee om daar eens je config te laten tekenen en een totaalaanbieding te maken.
Zeker bij de toestellen is er een enorme concurrentie. Dat ze hun prijzen niet allemaal op hun site zetten… so be it. Stuur ze een paar mailtjes, en je hebt direct een prijs.
Sony A7 iv en wat recycled glas
Alle kennis en know how gebaseerd op een core product kan ook je handicap zijn.Source90 schreef op zondag 26 september 2021 @ 13:07:
[...]
Wat als de tractor divisie flopt? Dan heb je nog tal van andere sectoren waar Samsung zich op stort.
Wat ik bedoelde te zeggen; dit is BORA haar enige product, waarin ze gespecialiseerd zijn en hun naam in hoog te houden hebben.
Als de Inductiekookplaat van hun flopt, heeft BORA niet echt meer bestaansrecht.
Alle kennis en know how is gebaseerd op hun coreproduct. Mijns inziens is een core business anders dan een team wat zich hiermee bezig houdt
Daardoor kan je in een bepaalde gedachtegang zitten wat tot oogkleppen kan leiden.
Juist door kennis en ervaring vanuit andere producten kan tot vernieuwing en innovatie leiden.
PSN: Flix20-NL
Ik kan er geen eenduidig antwoord op vinden.Taycann schreef op dinsdag 28 september 2021 @ 00:25:
Is het gebruikelijk om eerst de vloer te laten leggen (bij nieuw/verbouw) of eerst de keukens te laten plaatsen.
Onze keuken komt december en wij zitten er nu aan te denken om de vloer te laten leggen nadat de keuken is geplaatst, omdat we bang zijn dat de gloednieuwe pvc vloer wel eens beschadigingen zou kunnen oplopen tijdens de werkzaamheden.
Vloer kan dan alleen niet helemaal doorlopen tot de muren maar slechts tot aan de stelpoten. Zie je verder niets van vanwege de plint.
[ Voor 11% gewijzigd door Dj-sannieboy op 28-09-2021 08:30 ]
Als het geen houten of tegelvloer is zou ik de vloer altijd achteraf leggen.Taycann schreef op dinsdag 28 september 2021 @ 00:25:
Is het gebruikelijk om eerst de vloer te laten leggen (bij nieuw/verbouw) of eerst de keukens te laten plaatsen.
Mocht dat echt niet gaan, koop een goeie stucloper (sowieso aan te raden als er nog gewerkt moet worden).
Dit topic kan gebruikt worden voor het volgende:
• Vragen over de keuken, denkend aan indeling, materialen, kastjes, apparatuur, etc.
• Welke kastjes, aanrechtbladen en apparatuur te kiezen
• Ervaringen met verkopers en keukenboeren
• Tips & Tricks denk hierbij aan hulp bij het zelf installeren en onderhouden van de keuken.
• Jouw indeling. Plaats gerust een foto of tekening, maar maak het niet te bont met hele buildlogs.
Voor badkamers: Het Badkamer topic: verkopers, kwaliteit, prijs - Deel 1
Showen met je keuken kan hier: Tweakers Keuken showroom! - Vestiging 1
:strip_exif()/f/image/oVZ3towJuvC6m3jekA8NPl18.jpg?f=fotoalbum_large)