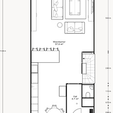
Wat komt er in het deel van de uitbouw waar de deur is? Als het antwoord ‘niets’ is, zou je het schierland uit optie 1 ook bij het wandje dwars op de muur kunnen laten beginnen. En dan eventueel de bar niet op de kopse kant maar aan de raam kan van het eiland? Dan heb je meer ruimte in de keuken om te werken dan bij optie 2 en idd dichter bij elkaar dan in optie 3 (vooral als daar dan koelkast en oven in komen. Dat wil je echt niet zover uit elkaar).Stalensnuitje schreef op donderdag 26 augustus 2021 @ 14:31:
Voor de duidelijkheid: we hebben nu nog een hoekkeuken die we na het uitbouwen van de achtergevel (vandaar de stukjes draagmuur die nog naar binnen steken) nog even hebben laten staan om een beetje feeling te krijgen bij de ruimte.
Ik ben benieuwd welke indeling jullie zouden kiezen (of nog heel iets anders natuurlijk) en waarom
Nu staat daar nog de vriezer, die hoeft van mij niet per se daar weg. Als je het schiereiland pas bij dat muurtje laat beginnen heb je dus een afstand van 2,20m tot de kasten, lijkt me zelf heel veel. Bovendien heb je dan een behoorlijke blinde vlek achter dat muurtje (bijna 70cm diep), lijkt me ook vreemd.Toke_gt schreef op donderdag 26 augustus 2021 @ 15:37:
[...]
Wat komt er in het deel van de uitbouw waar de deur is? Als het antwoord ‘niets’ is, zou je het schierland uit optie 1 ook bij het wandje dwars op de muur kunnen laten beginnen. En dan eventueel de bar niet op de kopse kant maar aan de raam kan van het eiland? Dan heb je meer ruimte in de keuken om te werken dan bij optie 2 en idd dichter bij elkaar dan in optie 3 (vooral als daar dan koelkast en oven in komen. Dat wil je echt niet zover uit elkaar).
V.w.b. bar aan de raamkant: dat is zoals ik nu bij optie 2 had ingetekend.
Een vraag mbt de afzuiging in onze nieuwe keuken. Momenteel hebben we een motorloze kap op het centrale ventilatiesysteem. Dat moet dalijk recirculatie worden, maar de kap komt wel gewoon op de plek van de huidige afzuiging te hangen. De schouw valt dus waarschijnlijk over het oude afzuigingsgat. Ontregel ik hiermee het ventilatiesysteem of gaat dit goed omdat de kap in recirculatie werkt en niet direct met buis op het ventilatiegat is aangesloten?
Je zou het gat weer op moeten vullen met een ventiel en dat goed inregelen.
De kap van de schouw heeft als het goed is sleuven aan de zijkant waar de afzuigkap zijn lucht kan uitblazen en je ventiel ook lucht richting MV unit kan aanvoeren.
Helemaal ideaal is het niet maar beter dan dat het nu is.
De kap van de schouw heeft als het goed is sleuven aan de zijkant waar de afzuigkap zijn lucht kan uitblazen en je ventiel ook lucht richting MV unit kan aanvoeren.
Helemaal ideaal is het niet maar beter dan dat het nu is.
Groot genoeg voor 2 hoofdletters
Thanks , ik zie nu in de brochure dat ze hem ook zonder buis kunnen installeren in recirculatie.. maar of dat makkelijk is met bv stroom wegwerken ? Eerst maar eens het installatie schema afwachten
Nice! Zou in jou keuken denk ik ook heel gaaf zijn ja. Ik houd daar ook wel van, zo'n element die het net even anders maaktSquareOne schreef op dinsdag 24 augustus 2021 @ 22:17:
[...]
Dank, mening wordt gewaardeerd. Maar zoals gezegd kwestie van smaak. We willen juist iets anders dan een 'dertien in een dozijn' keuken en daarom een beetje spelen met een eyecatcher
Edit: daarmee bedoel ik niet dat je dit niet met andere elementen zou kunnen doen, maar wij hebben hier voor gekozen.
Aantal keukens gezien waar dit zo is uitgevoerd zie bijv:
[Afbeelding] [Afbeelding] [Afbeelding] [Afbeelding]
Vraagjes voor de Pronorm kenners, aangezien wij zaterdag bij een keukenzaak de puntjes op de i willen gaan zetten:
- Is de meerprijs voor een (eiken)houten bestekinleg redelijk of scheelt dat heel veel?
- Klopt het dat je witte fronten kosteloos kunt matchen met een stratusgrey pearl binnenkanst (korpus) en dat je dit dan van buiten nergens ziet? Want dan zouden wij dat misschien wel doen
- Waar viel jullie keuze op m.b.t. de indelen van lades (wij hebben er slechts 2): proStyle, proDesign of proTop? Prijzen zijn gelijk neem ik aan? Verschil met protech lades is me niet helemaal duidelijk op het metaalwerk na.
Vindt dat dergelijke details lastig te vinden zijn, ook bij Pronorm zelf. De gemiddelde keukenverkoper kent ze vaak ook niet heb ik het idee
Antwoorden in jouw quote gezet.remzor schreef op donderdag 26 augustus 2021 @ 18:11:
[...]
Nice! Zou in jou keuken denk ik ook heel gaaf zijn ja. Ik houd daar ook wel van, zo'n element die het net even anders maakt![]()
Vraagjes voor de Pronorm kenners, aangezien wij zaterdag bij een keukenzaak de puntjes op de i willen gaan zetten:
- Is de meerprijs voor een (eiken)houten bestekinleg redelijk of scheelt dat heel veel?
scheelt heel veel aangezien je dit alleen kunt kiezen bij ProTech
- Klopt het dat je witte fronten kosteloos kunt matchen met een stratusgrey pearl binnenkanst (korpus) en dat je dit dan van buiten nergens ziet? Want dan zouden wij dat misschien wel doen
klopt. Binnenkant is dan in kleur, maar voorkant van de korpus blijft in frontkleur
- Waar viel jullie keuze op m.b.t. de indelen van lades (wij hebben er slechts 2): proStyle, proDesign of proTop? Prijzen zijn gelijk neem ik aan? Verschil met protech lades is me niet helemaal duidelijk op het metaalwerk na.
ik zou voor ProTech gaan. Betere geleiders, mooiere ladebakken en VERPLICHT houten bestekindelingen
Vindt dat dergelijke details lastig te vinden zijn, ook bij Pronorm zelf. De gemiddelde keukenverkoper kent ze vaak ook niet heb ik het idee
“Nothing changed since the 70s. Nothing. Except people train not that hard”. - Tom Platz
Thanks @Barry|IA ! Wist niet dat eiken alleen bij ProTech kon. Overigens was de meerprijs voor Protech iets van €425,- en dat terwijl we maar 2 lades hebben. Eentje van 90 en eentje van 60. Vind ik toch behoorlijk dan ja. Als daar ook nog eens €400 bij zou komen voor het hout wordt het wel heel gortig voor die 2 lades, dan moeten we dat nog eens goed overwegen.
Overigens is het gemakkelijk om achteraf nog houten bestekbakken toe te voegen, genoeg (maatwerk) websites die ze leveren
Heb jij wel eens die stratusgrey pearl gezien aan de binnenkant? Of alleen als frontkleur? Hebben ze namelijk nergens zo uitgevoerd (andere kleur front met stratusgrey binnenkant i.p.v. standaard witte binnenkant). Maar zou een leuk element kunnen zijn denken wij.
Ik lees al een tijdje mee en heb inmiddels heel veel informatie uit dit forum kunnen halen.
Onze huidige keuken is meer dan 25 jaar oud en aan vervanging toe. Deze maand hebben wij dan ook de eerste gesprekken gevoerd met een aantal keukenboeren. De eerste offertes zijn al binnen.
Eén van de leveranciers biedt een Artego keuken aan. Het betreft een greeploze keuken in hoogglans wit. Over dit keukenmerk kan ik relatief weinig terugvinden. Heeft iemand ervaring met dit merk? Hoe is de kwaliteit in vergelijking met de andere merken (o.a. uit de openingspost)?
Onze huidige keuken is meer dan 25 jaar oud en aan vervanging toe. Deze maand hebben wij dan ook de eerste gesprekken gevoerd met een aantal keukenboeren. De eerste offertes zijn al binnen.
Eén van de leveranciers biedt een Artego keuken aan. Het betreft een greeploze keuken in hoogglans wit. Over dit keukenmerk kan ik relatief weinig terugvinden. Heeft iemand ervaring met dit merk? Hoe is de kwaliteit in vergelijking met de andere merken (o.a. uit de openingspost)?
425 is voor de gehele keuken in ProTech (totremzor schreef op donderdag 26 augustus 2021 @ 19:43:
[...]
Thanks @Barry|IA ! Wist niet dat eiken alleen bij ProTech kon. Overigens was de meerprijs voor Protech iets van €425,- en dat terwijl we maar 2 lades hebben. Eentje van 90 en eentje van 60. Vind ik toch behoorlijk dan ja. Als daar ook nog eens €400 bij zou komen voor het hout wordt het wel heel gortig voor die 2 lades, dan moeten we dat nog eens goed overwegen.
Overigens is het gemakkelijk om achteraf nog houten bestekbakken toe te voegen, genoeg (maatwerk) websites die ze leveren
Heb jij wel eens die stratusgrey pearl gezien aan de binnenkant? Of alleen als frontkleur? Hebben ze namelijk nergens zo uitgevoerd (andere kleur front met stratusgrey binnenkant i.p.v. standaard witte binnenkant). Maar zou een leuk element kunnen zijn denken wij.
10 lades). De verkoper heeft ook de optie om de meerprijs per lade aan te vinken (MP-PT of iets in hun eigen winkeltaal). Scheelt zeker de helft.
De bestekbakken zelf zijn prijzig, maar wel heel mooi hoor! Ik heb zelf zwart eiken liggende delen en de staande delen zijn titaan kleurig.
Die grey binnenkant heb ik nog niet specifiek van Pronorm gezien, maar is ongetwijfeld super mooi (ik ken de kleur namelijk wel). Alles wat niet wit is, is mooier als binnenkant (vind ik). Ik heb zelf een zwarte keuken met witte binnenkant, want 2 jaar terug bood Pronorm deze optie nog niet.
Trouwens, de prijzen die jij noemt zijn de boekprijzen. Haal hier voor het gemak eens 40% van af, dan heb je de werkelijke prijzen.
Een goede/juiste prijs voor jouw keuken in ProTech mét ProTech inzet zou rond de 400 Euro totaal moeten zijn.
[ Voor 7% gewijzigd door Barry|IA op 26-08-2021 19:56 ]
“Nothing changed since the 70s. Nothing. Except people train not that hard”. - Tom Platz
Toevallig iemand die weet wie de leverancier van keramiek bladen is van Keukenloods? Composiet kwam via Lion-Stone van (oa?) Caesarstone volgens mij, maar keramiek kan ik niet vinden. Obv de plaatjes op de website denk ik Neolith, maar zou het graag zeker weten.
idee als volgt: hoge kasten op het 280 cm muur deel. ter plaatse van het 250 cm deel (trapzijde) koffiehoek. volgens mij blijft in het deel tussen de 50 cm nis en de pui aan de achterzijde dan nog mooi ruimte voor een groot (schier)eiland met spoelen en koken. Of alleen koken en het spoelen ook aan de trapkant.Stalensnuitje schreef op donderdag 26 augustus 2021 @ 14:31:
Zo, eerste bezoekje zit erop. We hebben het eigenlijk alleen nog maar over opties, wensen en indelingen gehad, tekeningen, offerte etc. volgt allemaal nog. Maar aangezien hier ook altijd goed wordt meegedacht over de indeling ben ik ook wel beniewd naar jullie kijk op de mogelijkheden.
Voor de duidelijkheid: we hebben nu nog een hoekkeuken die we na het uitbouwen van de achtergevel (vandaar de stukjes draagmuur die nog naar binnen steken) nog even hebben laten staan om een beetje feeling te krijgen bij de ruimte.
Optie 1
In de basis nog steeds een hoek, maar met toevoeging van een "schiereiland" die dan voor koken gebruikt zou worden en een stukje bar aan het einde. Tegen de wand dan twee hoge kasten (1x hoge koelkast, 1x met oven):
[Afbeelding]
Optie 2
Het verbindingsstuk weglaten en in plaats daarvan het deel tegen de muur als volledige kastenwand (4x hoog, wederom 1 met koelkast en 1 met oven). Barretje zou dan ws. tegenover het kookgedeelte komen:
[Afbeelding]
Ik was trouwens geneigd om het spoelen meer richting de bar te doen ipv het koken, gevoelsmatig sta ik daar vaker (al kan dat ook komen omdat ik vaker de afwas doe dan kook)
Er was ook nog een optie 3:
[Afbeelding]
De hoek min of meer zo laten als 'ie nu is, maar dan in de uitbouw nog een stuk te maken dat als een soort koffiebar en extra opbergruimte zou kunnen dienen. Lekker out of the box, maar ik denk dat me dat toch een beetje te ver uit elkaar ligt.
Ik ben benieuwd welke indeling jullie zouden kiezen (of nog heel iets anders natuurlijk) en waarom
Bij een inwendige breedte van 580 cm is er dan nog ruimte voor een lange eettafel tussen het eiland en de muur. in de nis van 264 cm eventueel een leuke bank om de tafel aan te zetten
Volgens mij was het https://toplinemaatwerkbladen.nl/ bij keukenloods in Utrecht.diabyte schreef op donderdag 26 augustus 2021 @ 21:02:
Toevallig iemand die weet wie de leverancier van keramiek bladen is van Keukenloods? Composiet kwam via Lion-Stone van (oa?) Caesarstone volgens mij, maar keramiek kan ik niet vinden. Obv de plaatjes op de website denk ik Neolith, maar zou het graag zeker weten.
Maar op verzoek konden ze via hun netwerk wel prijzen aanvragen van andere bladen die ze niet in de showroom hadden liggen bijv. Dekton of Silestone
Keukenloods werkbladen leveranciers zijn:diabyte schreef op donderdag 26 augustus 2021 @ 21:02:
Toevallig iemand die weet wie de leverancier van keramiek bladen is van Keukenloods? Composiet kwam via Lion-Stone van (oa?) Caesarstone volgens mij, maar keramiek kan ik niet vinden. Obv de plaatjes op de website denk ik Neolith, maar zou het graag zeker weten.
Kunststof vezelplaat: Nobilia, Hacker
Kunststof multiplex: Dekker Zevenhuizen
Composiet met opdruk ‘Molino’ achter de kleurcode: Lion Stone.
Composiet met alle kleurnamen behalve ‘Molino’: Topline Maarwerkbladen.
Graniet met opdruk ‘Sega’ achter de kleurcode: Lion Stone.
Graniet met alle kleurnamen behalve ‘Sega’ achter de kleurcode: Topline Maatwerkbladen.
Keramiek wat in de showrooms aanwezig is en tentoongesteld wordt: Topline Maatwerkbladen.
Keramiek op aanvraag of wanneer verkoper zegt ‘eigenlijk liever niet, maar kijk eens wat we hebben’: Dekker Zevenhuizen.
Daarnaast kan op aanvraag alles. Bij Keukenloods wordt vaak prijs x 1,5 aangehouden als jij een werkblad wenst dat bij een leverancier vandaan komt waar zij nog geen prijsafspraken mee hebben.
[ Voor 8% gewijzigd door Barry|IA op 26-08-2021 21:57 ]
“Nothing changed since the 70s. Nothing. Except people train not that hard”. - Tom Platz
Ik heb veel tijd vanavond om info te geven.
(Ziekenhuisopname, niks aan de hand gelukkig).
Als iemand specifieke vragen heeft of echt graag ergens uitleg wilt, vuur maar! Ik antwoord zo snel mogelijk.
(Ziekenhuisopname, niks aan de hand gelukkig).
Als iemand specifieke vragen heeft of echt graag ergens uitleg wilt, vuur maar! Ik antwoord zo snel mogelijk.
“Nothing changed since the 70s. Nothing. Except people train not that hard”. - Tom Platz
om er dan maar gebruik van te maken, is er een verschil in Dekton Kelya of neolith calatorao of is dit enkel en alleen een andere leverancier voor hetzelfde materiaal. Kleine verschillen in uiterlijk even buiten beschouwing gelaten.Barry|IA schreef op donderdag 26 augustus 2021 @ 22:03:
Ik heb veel tijd vanavond om info te geven.
(Ziekenhuisopname, niks aan de hand gelukkig).
Als iemand specifieke vragen heeft of echt graag ergens uitleg wilt, vuur maar! Ik antwoord zo snel mogelijk.
Ik vind er persoonlijk geen verschil in zitten. Maar er zijn mensen (voornamelijk vertegenwoordigers) die daar anders over denken.Mvcb schreef op donderdag 26 augustus 2021 @ 22:09:
[...]
om er dan maar gebruik van te maken, is er een verschil in Dekton Kelya of neolith calatorao of is dit enkel en alleen een andere leverancier voor hetzelfde materiaal. Kleine verschillen in uiterlijk even buiten beschouwing gelaten.
Wel grappig, want hoe “geavanceerd” Dekton ook wordt weergegeven, zo gelijk is het aan keramiek als je de gebruiksvoorschriften bekijkt.
Kies de mooiste, dan zit je goed.
“Nothing changed since the 70s. Nothing. Except people train not that hard”. - Tom Platz
Dekton en "standaard keramiek" zijn wel degelijk anders qua ingrediënten en productieproces (geen wereld van verschil), de eigenschappen lijken veel op elkaar, beiden prima.
Beterschap/succes, ook al is er niets aan de hand volgens jezelf!Barry|IA schreef op donderdag 26 augustus 2021 @ 22:03:
Ik heb veel tijd vanavond om info te geven.
(Ziekenhuisopname, niks aan de hand gelukkig).
Als iemand specifieke vragen heeft of echt graag ergens uitleg wilt, vuur maar! Ik antwoord zo snel mogelijk.
Om de verveling tegen te gaan dan nog een vraag om op de werkbladen in te haken: de Caesarstone die we nu voor ogen hebben komt van Lion Stone vandaan. Nuva keukens waar ik vanochtend ben geweest kiest juist niet voor Lion Stone wegens slechte ervaringen, en heeft Caesarstone van Jetstone.
Zit daar écht verschil in kwaliteit? Of zou Nuva andere ervaringen hebben gehad, los van kwaliteit (dat is gissen natuurlijk).
En ook nog: zijn antislip matten standaard/gratis in ladekasten of moet je die specifiek bijbestellen bij Pronorm?
Thanks!remzor schreef op donderdag 26 augustus 2021 @ 22:30:
[...]
Beterschap/succes, ook al is er niets aan de hand volgens jezelf!
Om de verveling tegen te gaan dan nog een vraag om op de werkbladen in te haken: de Caesarstone die we nu voor ogen hebben komt van Lion Stone vandaan. Nuva keukens waar ik vanochtend ben geweest kiest juist niet voor Lion Stone wegens slechte ervaringen, en heeft Caesarstone van Jetstone.
Zit daar écht verschil in kwaliteit? Of zou Nuva andere ervaringen hebben gehad, los van kwaliteit (dat is gissen natuurlijk).
En ook nog: zijn antislip matten standaard/gratis in ladekasten of moet je die specifiek bijbestellen bij Pronorm?
Jetstone is prima. Zelfs vaak duurder dan Lion Stone. Beiden maken de werkbladen met 98% quartz steen i.t.t. een normaal composiet werkblad (95%). De premium kleuren worden dan vaak als Caesarstone verkocht.
Nuva heeft geen slechte ervaringen met Lion Stone, maar heeft als huisleverancier gewoon Jetstone. Ik begrijp niet waarom ze daar altijd maar zo geheimzinnig over doen....
Antislipmatten kosten geld. In jouw keuken zijn de boekprijzen 14 euro per stuk. Heb je meer dan 6 lades, dan geldt ook hier weer een voordeliger combinatiepakket, maar dat is bij jou (4 lades) niet van toepassing. Gewoon 2 maal de SLIP90 en 2 maal de SLIP60 bestellen voor totaal nog geen 30 euro.
“Nothing changed since the 70s. Nothing. Except people train not that hard”. - Tom Platz
@Barry|IA haha dat dacht ik al. Nuva wilde mij misschien nog even binnenharken ofzo, geen idee.
Bedankt wederom 👍
Bedankt wederom 👍
Barry, weet jij of er koelvriescombinaties bestaan van 100-110 cm breed? Of een hoge (178) vriezer van 40-50 cm breed?
Zelf niet kunnen vinden.
Zelf niet kunnen vinden.
EU DNS: 86.54.11.100
Nope, bestaan helaas niet (zeg ik even voorzichtig).c-nan schreef op donderdag 26 augustus 2021 @ 22:43:
Barry, weet jij of er koelvriescombinaties bestaan van 100-110 cm breed? Of een hoge (178) vriezer van 40-50 cm breed?
Zelf niet kunnen vinden.
Waar zit het probleem in het ontwerp dat je dit nodig hebt?
“Nothing changed since the 70s. Nothing. Except people train not that hard”. - Tom Platz
Ons nieuwbouw heeft straks 2 muren.Barry|IA schreef op donderdag 26 augustus 2021 @ 22:48:
[...]
Nope, bestaan helaas niet (zeg ik even voorzichtig).
Waar zit het probleem in het ontwerp dat je dit nodig hebt?
Muur 1: 2393 (waardoor 4x 60 net niet kan).
Muur 2: 2610
1 van de ideeën wat we hebben is:
Muur 1: 4x hoge kasten (met 60 past het niet).
Muur 2: onder en bovenkasten, waarbij de vraag nog maar is of dat voldoende werkblad geeft.
Anyways, probleem zit hem dus in muur 1, 240cm op 7 millimeter na.
EU DNS: 86.54.11.100
Zit er in 1 van de 4 gewenste hoge kasten GEEN apparatuur?c-nan schreef op donderdag 26 augustus 2021 @ 22:52:
[...]
Ons nieuwbouw heeft straks 2 muren.
Muur 1: 2393 (waardoor 4x 60 net niet kan).
Muur 2: 2610
1 van de ideeën wat we hebben is:
Muur 1: 4x hoge kasten (met 60 past het niet).
Muur 2: onder en bovenkasten, waarbij de vraag nog maar is of dat voldoende werkblad geeft.
Anyways, probleem zit hem dus in muur 1, 240cm op 7 millimeter na.
Dan zou je een servieskast in breedte kunnen aanpassen naar bijvoorbeeld 59cm. Neem ook aan dat er stuc op de muur komt, dus er komt nog minimaal 5mm bij (en naar wens nog wel wat meer).
[ Voor 15% gewijzigd door Barry|IA op 26-08-2021 22:55 ]
“Nothing changed since the 70s. Nothing. Except people train not that hard”. - Tom Platz
De keukenboer waar wij waren kon een 60 kastje ook gewoon inkorten tot 58 bijvoorbeeld. Moet bij ons misschien ook ivm openslaande deurtjes tegen de muren en eventuele passtukken aan de zijkanten.c-nan schreef op donderdag 26 augustus 2021 @ 22:52:
[...]
Ons nieuwbouw heeft straks 2 muren.
Muur 1: 2393 (waardoor 4x 60 net niet kan).
Muur 2: 2610
1 van de ideeën wat we hebben is:
Muur 1: 4x hoge kasten (met 60 past het niet).
Muur 2: onder en bovenkasten, waarbij de vraag nog maar is of dat voldoende werkblad geeft.
Anyways, probleem zit hem dus in muur 1, 240cm op 7 millimeter na.
Ja, idee was/is:Barry|IA schreef op donderdag 26 augustus 2021 @ 22:54:
[...]
Zit er in 1 van de 4 gewenste hoge kasten GEEN apparatuur?
Koelkast, vriezer, oven, servies.
EU DNS: 86.54.11.100
Servieskast versmallen naar 55-59cm. Opgelost!c-nan schreef op donderdag 26 augustus 2021 @ 22:55:
[...]
Ja, idee was/is:
Koelkast, vriezer, oven, servies.
“Nothing changed since the 70s. Nothing. Except people train not that hard”. - Tom Platz
Hoor ook graag als iemand mij kan vertellen in welke prijscategorie ik een Artego keuken moet plaatsen.HansvanderHelm schreef op donderdag 26 augustus 2021 @ 19:52:
Ik lees al een tijdje mee en heb inmiddels heel veel informatie uit dit forum kunnen halen.
Onze huidige keuken is meer dan 25 jaar oud en aan vervanging toe. Deze maand hebben wij dan ook de eerste gesprekken gevoerd met een aantal keukenboeren. De eerste offertes zijn al binnen.
Eén van de leveranciers biedt een Artego keuken aan. Het betreft een greeploze keuken in hoogglans wit. Over dit keukenmerk kan ik relatief weinig terugvinden. Heeft iemand ervaring met dit merk? Hoe is de kwaliteit in vergelijking met de andere merken (o.a. uit de openingspost)?
Wat voor een merk keukens worden getoond in de foto'sSquareOne schreef op dinsdag 24 augustus 2021 @ 22:17:
[...]
Dank, mening wordt gewaardeerd. Maar zoals gezegd kwestie van smaak. We willen juist iets anders dan een 'dertien in een dozijn' keuken en daarom een beetje spelen met een eyecatcher
Edit: daarmee bedoel ik niet dat je dit niet met andere elementen zou kunnen doen, maar wij hebben hier voor gekozen.
Aantal keukens gezien waar dit zo is uitgevoerd zie bijv:
[Afbeelding] [Afbeelding] [Afbeelding] [Afbeelding]
Monkey business: pay peanuts, get monkeys
Helaas 0 ervaring mee. Volgens mij was het een beetje gelijk aan Nobilia en iets voordeliger dan Hacker Classic. Wat is de korpushoogte?HansvanderHelm schreef op donderdag 26 augustus 2021 @ 23:01:
[...]
Hoor ook graag als iemand mij kan vertellen in welke prijscategorie ik een Artego keuken moet plaatsen.
“Nothing changed since the 70s. Nothing. Except people train not that hard”. - Tom Platz
Lion Stone is toch een leverancier, net als Jetstone, Arte Keramiek, Dekker Zevenhuizen en nog een heel rijtje.Barry|IA schreef op donderdag 26 augustus 2021 @ 22:37:
[...]
Thanks!
Jetstone is prima. Zelfs vaak duurder dan Lion Stone. Beiden maken de werkbladen met 98% quartz steen i.t.t. een normaal composiet werkblad (95%). De premium kleuren worden dan vaak als Caesarstone verkocht.
Nuva heeft geen slechte ervaringen met Lion Stone, maar heeft als huisleverancier gewoon Jetstone. Ik begrijp niet waarom ze daar altijd maar zo geheimzinnig over doen....
Antislipmatten kosten geld. In jouw keuken zijn de boekprijzen 14 euro per stuk. Heb je meer dan 6 lades, dan geldt ook hier weer een voordeliger combinatiepakket, maar dat is bij jou (4 lades) niet van toepassing. Gewoon 2 maal de SLIP90 en 2 maal de SLIP60 bestellen voor totaal nog geen 30 euro.
Ceasarstone is toch meer een fabrikant/merk composiet, net zoals Silestone (van Cosentino), Diresco, etc?
Eentje is maatwerk van houtmerkMonkeydancer schreef op donderdag 26 augustus 2021 @ 23:01:
[...]
Wat voor een merk keukens worden getoond in de foto's
De witte is van Siematic
De houtlook is ook van Siematic
De laatste is van mandemakers, merk weet ik niet precies
De leveranciers doen de bewerkingen zelf en kopen inderdaad in bij de merken zelf. Maar wat dan wel en niet kan met zo’n blad, dat wordt bepaald door de leverancier.SquareOne schreef op donderdag 26 augustus 2021 @ 23:04:
[...]
Lion Stone is toch een leverancier, net als Jetstone, Arte Keramiek, Dekker Zevenhuizen en nog een heel rijtje.
Ceasarstone is toch meer een fabrikant/merk composiet, net zoals Silestone (van Cosentino), Diresco, etc?
Heb wel een spannend project gehad voor een keuken die over 2 weken geleverd zou worden. Alles was al binnen, werkblad stond al bij Topline klaar met alle sparingen. Klant belt en geeft aan een fout gemaakt te hebben waardoor het werkblad 20cm moet worden ingekort. Op elke orderbevestiging stond ‘wijzigen niet meer mogelijk’. Hoofdkantoor van de keukenzaak: ‘helaas, dit kan echt niet meer’. Ik bel naar Topline, krijg iemand aan de telefoon en hoor een hoop kabaal op de achtergrond. Ik stel mijn vraag en krijg als antwoord “klant de Vries??? 20cm eraf?? Wacht effies..... Ja hoor, is geregeld”. Geweldig!
Ik heb deze leveranciers allemaal bezocht en als ik iemand omzet gun, dan zijn het de steenboeren wel.
“Nothing changed since the 70s. Nothing. Except people train not that hard”. - Tom Platz
Korpushoogte is 78 cm. Ik heb enkele screenshots uit de offerte bijgesloten. Misschien zeggen de gebruikte codes je iets?Barry|IA schreef op donderdag 26 augustus 2021 @ 23:02:
[...]
Helaas 0 ervaring mee. Volgens mij was het een beetje gelijk aan Nobilia en iets voordeliger dan Hacker Classic. Wat is de korpushoogte?
:no_upscale():strip_icc():fill(white):strip_exif()/f/image/t8iIk6Pb7kqyJn9lt3l8a4hs.jpg?f=user_large)
:strip_exif()/f/image/89AyjXLu01GgyxgaUR7Q4RNH.jpg?f=fotoalbum_large)
In korpushoogte wint Artego het iig van de prijsconcurrentie.HansvanderHelm schreef op donderdag 26 augustus 2021 @ 23:23:
[...]
Korpushoogte is 78 cm. Ik heb enkele screenshots uit de offerte bijgesloten. Misschien zeggen de gebruikte codes je iets?[Afbeelding][Afbeelding][Afbeelding]
Hoe voelt het merk aan? Al eens gekeken? Je zou @Kapitein Merijn eens kunnen vragen, maar die zit ooo voornamelijk in een hoger segment denk ik. Ik schat Artego wat lager in, maar misschien zit ik er naast hoor?
“Nothing changed since the 70s. Nothing. Except people train not that hard”. - Tom Platz
@Barry|IA ander vraagje nog waar weinig info over te vinden is:
Wat is de meerprijs van XL korpus (half raster verhoging) bij X-line en Y-line van Pronorm? Voor mij niet relevant omdat ik een Tristar keuken heb gekocht, maar heb die vraag wel vaker voorbij zien komen.
En moet je dan denken aan een % meerprijs per kast, of is dat ook een pakket voor meerdere kasten?
Wat is de meerprijs van XL korpus (half raster verhoging) bij X-line en Y-line van Pronorm? Voor mij niet relevant omdat ik een Tristar keuken heb gekocht, maar heb die vraag wel vaker voorbij zien komen.
En moet je dan denken aan een % meerprijs per kast, of is dat ook een pakket voor meerdere kasten?
Goeie.SquareOne schreef op donderdag 26 augustus 2021 @ 23:39:
@Barry|IA ander vraagje nog waar weinig info over te vinden is:
Wat is de meerprijs van XL korpus (half raster verhoging) bij X-line en Y-line van Pronorm? Voor mij niet relevant omdat ik een Tristar keuken heb gekocht, maar heb die vraag wel vaker voorbij zien komen.
En moet je dan denken aan een % meerprijs per kast, of is dat ook een pakket voor meerdere kasten?
Bij Pronorm werkt dit hetzelfde als bij Nobilia. Dus de XL korpus is niet in ELKE gewenste kast beschikbaar. Je hebt een selectief aantal kasten, daar moet je het mee doen. Let ook op dat de hoge kasten ook die XL onderlijn moeten hebben.
Prijzen voor XL is ongeveer 20% meer. Maar omdat je meubelen totaal dus 20% meer waarde heeft in de totaalorder, heeft de verkoper ook meer om weg te geven (immers, marge op kasten is koning).
“Nothing changed since the 70s. Nothing. Except people train not that hard”. - Tom Platz
In de showroom ziet het merk er prima uit, maar ik heb als leek heel weinig referentie. Daarnaast vind ik belangrijk hoe de kwaliteit na 10 jaar is. Ik heb geen flauw idee.Barry|IA schreef op donderdag 26 augustus 2021 @ 23:28:
[...]
In korpushoogte wint Artego het iig van de prijsconcurrentie.
Hoe voelt het merk aan? Al eens gekeken? Je zou @Kapitein Merijn eens kunnen vragen, maar die zit ooo voornamelijk in een hoger segment denk ik. Ik schat Artego wat lager in, maar misschien zit ik er naast hoor?
Het betreft een hoekkeuken van 270 x 240 cm met 1 hoge kast. Daarnaast een apart meubel van 100 x 37 cm, ook met een werkblad. Werkbladen zijn van keramiek. Alle apparatuur is van Siemens. Daarnaast ook een Quooker. Kraan en apparaten kosten bij Bemmel en Kroon € 7.330. Offerte van de keukenboer is € 23.250. Daar schrokken wij erg van voor zo'n relatief simpele keuken.
Mocht Artego in het hoge segment zitten, is de prijs misschien verklaarbaar. Ik vind het heel veel geld.
Interessant! Bij ons werd bij Keukenloods Utrecht gezegd dat ze niet met andere partijen werken. Wij hadden een blad op het oog van een partij waar ze geen afspraken mee hebben. Dit hebben we nu buiten Keukenloods om gedaan.Barry|IA schreef op donderdag 26 augustus 2021 @ 21:53:
[...]
Keukenloods werkbladen leveranciers zijn:
Kunststof vezelplaat: Nobilia, Hacker
Kunststof multiplex: Dekker Zevenhuizen
Composiet met opdruk ‘Molino’ achter de kleurcode: Lion Stone.
Composiet met alle kleurnamen behalve ‘Molino’: Topline Maarwerkbladen.
Graniet met opdruk ‘Sega’ achter de kleurcode: Lion Stone.
Graniet met alle kleurnamen behalve ‘Sega’ achter de kleurcode: Topline Maatwerkbladen.
Keramiek wat in de showrooms aanwezig is en tentoongesteld wordt: Topline Maatwerkbladen.
Keramiek op aanvraag of wanneer verkoper zegt ‘eigenlijk liever niet, maar kijk eens wat we hebben’: Dekker Zevenhuizen.
Daarnaast kan op aanvraag alles. Bij Keukenloods wordt vaak prijs x 1,5 aangehouden als jij een werkblad wenst dat bij een leverancier vandaan komt waar zij nog geen prijsafspraken mee hebben.
Allejezus, wat een geld. Ga alsjeblieft naar een andere zaak!HansvanderHelm schreef op donderdag 26 augustus 2021 @ 23:51:
[...]
In de showroom ziet het merk er prima uit, maar ik heb als leek heel weinig referentie. Daarnaast vind ik belangrijk hoe de kwaliteit na 10 jaar is. Ik heb geen flauw idee.
Het betreft een hoekkeuken van 270 x 240 cm met 1 hoge kast. Daarnaast een apart meubel van 100 x 37 cm, ook met een werkblad. Werkbladen zijn van keramiek. Alle apparatuur is van Siemens. Daarnaast ook een Quooker. Kraan en apparaten kosten bij Bemmel en Kroon € 7.330. Offerte van de keukenboer is € 23.250. Daar schrokken wij erg van voor zo'n relatief simpele keuken.
Mocht Artego in het hoge segment zitten, is de prijs misschien verklaarbaar. Ik vind het heel veel geld.
[Afbeelding]
“Nothing changed since the 70s. Nothing. Except people train not that hard”. - Tom Platz
Niet kunnen of niet willen. Of de bedrijfsleider/eigenaar weet zelf niet wat kan.synorluna schreef op donderdag 26 augustus 2021 @ 23:59:
[...]
Interessant! Bij ons werd bij Keukenloods Utrecht gezegd dat ze niet met andere partijen werken. Wij hadden een blad op het oog van een partij waar ze geen afspraken mee hebben. Dit hebben we nu buiten Keukenloods om gedaan.
Ik heb vaak genoeg een nieuwe leverancier aangeschreven. Sterker nog, ik heb wel eens een spoelbak laten maken door een grafsteen leverancier.
“Nothing changed since the 70s. Nothing. Except people train not that hard”. - Tom Platz
@Barry|IA Ziekenhuizen houden geen kostgangers, zodra t f kan ben je thuis dus bij deze beterschap
Er is wel wat over te vinden https://www.artego-kueche...urinrichting/#schuifladenHansvanderHelm schreef op donderdag 26 augustus 2021 @ 23:51:
[...]
In de showroom ziet het merk er prima uit, maar ik heb als leek heel weinig referentie. Daarnaast vind ik belangrijk hoe de kwaliteit na 10 jaar is. Ik heb geen flauw idee.
Het betreft een hoekkeuken van 270 x 240 cm met 1 hoge kast. Daarnaast een apart meubel van 100 x 37 cm, ook met een werkblad. Werkbladen zijn van keramiek. Alle apparatuur is van Siemens. Daarnaast ook een Quooker. Kraan en apparaten kosten bij Bemmel en Kroon € 7.330. Offerte van de keukenboer is € 23.250. Daar schrokken wij erg van voor zo'n relatief simpele keuken.
Mocht Artego in het hoge segment zitten, is de prijs misschien verklaarbaar. Ik vind het heel veel geld.
[Afbeelding]
Zit biiv. Blum tandembox in en heeft ook half raster. Zou voort komen uit hobby küchen. Verouderde info ..https://www.kuechen-forum.de/kuechenhersteller/search-results/?cat=19&filter=719&jr_kuechenhersteller=artego-kuechen&order=rdate&query=all&usematch=1
Voor dit geld kan je heel andere dingen uitzoeken.
[ Voor 12% gewijzigd door Ladypurple op 27-08-2021 09:53 ]
Wij zitten een beetje in dubio, we hebben een andere woning gekocht en de keuken die daar in zit is het net niet, het is een budget keuken met ETNA apparatuur. In onze huidige woning hebben we een strakke Schüller keuken met Bosch Oven / vw / koelkast / inductie, Combi Quooker en composiet werkblad en meer kastruimte (we hebben nu 1 bovenkast, apothekers kast en 2 onderkasten meer).
De keuken in het nieuwe huis is dus kleiner maar ook veel minder qua apparatuur, kunststof werkblad, ook de kader frontjes zijn niet echt onze smaak. Aan de andere kant zit deze keuken er nog maar 3 jaar in dus hij is nog lang niet 'af'.
Eerst hadden we het idee om er een (schier-) eiland voor te zetten zodat we wat extra kasten hebben en aan de andere woonkamerkant plaats voor 2 barkrukken. Ook zouden we dan nieuw composiet op de hele keuken willen en de gaskookplaat vervangen voor inductie en een Quooker plaatsen. Eigenlijk vinden we de fronten dus ook niet zo mooi en aangezien we in de bijkeuken ook een kastenwand met dezelfde fronten willen is dat eigenlijk ook zonde van het geld en moeten dus alle fronten ook al vervangen worden. Oftewel dan blijft er niet veel meer van de huidige keuken over en kunnen we toch net zo goed de hele keuken vervangen.
Funda foto's van de keuken:
:strip_exif()/f/image/GmFqycEBo5AsCGBQUNIuIQ4l.jpg?f=fotoalbum_medium)
Er is dus wel ruimte voor een eiland van 1,40 tegen de muur:
:strip_exif()/f/image/psDPHJsjI17tmTqLt0CK8ylP.jpg?f=fotoalbum_medium)
Ik zou het eiland liever tegen de muur aan de rechter kant hebben maar dan zit je met de deur vanuit de gang die er tegenaan draait.
Nu hoef ik zeker geen Schüller keuken weer die hebben we toen gekozen omdat ik die via mijn toenmalige werkgever voor (bijna) inkoop kon krijgen. Het mag qua kasten best een stapje lager, goede apparatuur vind ik wel belangrijk, ik kan me bijvoorbeeld niet voorstellen dat de Etna combi net zo goed werkt als onze Bosch oven.
We hebben zaterdag een afspraak bij een zaak die Ballerina, Pronorm en Nobillia verkoopt. om te kijken wat een nieuwe keuken tegenwoordig kost. Maar ik ben bang dat we zo de 15K aantikken.
De keuken in het nieuwe huis is dus kleiner maar ook veel minder qua apparatuur, kunststof werkblad, ook de kader frontjes zijn niet echt onze smaak. Aan de andere kant zit deze keuken er nog maar 3 jaar in dus hij is nog lang niet 'af'.
Eerst hadden we het idee om er een (schier-) eiland voor te zetten zodat we wat extra kasten hebben en aan de andere woonkamerkant plaats voor 2 barkrukken. Ook zouden we dan nieuw composiet op de hele keuken willen en de gaskookplaat vervangen voor inductie en een Quooker plaatsen. Eigenlijk vinden we de fronten dus ook niet zo mooi en aangezien we in de bijkeuken ook een kastenwand met dezelfde fronten willen is dat eigenlijk ook zonde van het geld en moeten dus alle fronten ook al vervangen worden. Oftewel dan blijft er niet veel meer van de huidige keuken over en kunnen we toch net zo goed de hele keuken vervangen.
Funda foto's van de keuken:
:strip_exif()/f/image/GmFqycEBo5AsCGBQUNIuIQ4l.jpg?f=fotoalbum_medium)
Er is dus wel ruimte voor een eiland van 1,40 tegen de muur:
:strip_exif()/f/image/psDPHJsjI17tmTqLt0CK8ylP.jpg?f=fotoalbum_medium)
Ik zou het eiland liever tegen de muur aan de rechter kant hebben maar dan zit je met de deur vanuit de gang die er tegenaan draait.
Nu hoef ik zeker geen Schüller keuken weer die hebben we toen gekozen omdat ik die via mijn toenmalige werkgever voor (bijna) inkoop kon krijgen. Het mag qua kasten best een stapje lager, goede apparatuur vind ik wel belangrijk, ik kan me bijvoorbeeld niet voorstellen dat de Etna combi net zo goed werkt als onze Bosch oven.
We hebben zaterdag een afspraak bij een zaak die Ballerina, Pronorm en Nobillia verkoopt. om te kijken wat een nieuwe keuken tegenwoordig kost. Maar ik ben bang dat we zo de 15K aantikken.
PSN: Wanderer200 | Switch: Wanderer
Met deze huidige indeling ga je met een schiereiland er altijd wat nadelen van ondervinden. Of de looproute richting de bijkeuken(?) of de gang gaat om het schiereiland moeten tenzij je voor een eiland gaat maar dan krijg je waarschijnlijk twee smalle gangen aan de zijkanten wat ook niet bijzonder ideaal gaat zijn voor zowel oppervlak als looproute.Chaoss schreef op vrijdag 27 augustus 2021 @ 10:12:
Ik zou het eiland liever tegen de muur aan de rechter kant hebben maar dan zit je met de deur vanuit de gang die er tegenaan draait.
klopt, de ruime is ongeveer 3m20, je moet minimaal een looproute van 80cm aan beide kanten hebben, dan hou je 3m20 - 1m60 = 1m60 over voor een eiland. Maar in mijn hoofd is dat toch wat 'propperig' en minder mooi als een eiland tegen de muur. Qua loop route zou ik kiezen voor een eiland tegen de muur van de bijkeuken maar die muur loopt weer niet vlakNapo schreef op vrijdag 27 augustus 2021 @ 10:18:
[...]
Met deze huidige indeling ga je met een schiereiland er altijd wat nadelen van ondervinden. Of de looproute richting de bijkeuken(?) of de gang gaat om het schiereiland moeten tenzij je voor een eiland gaat maar dan krijg je waarschijnlijk twee smalle gangen aan de zijkanten wat ook niet bijzonder ideaal gaat zijn voor zowel oppervlak als looproute.
We vinden een bar met 2 zitplekken leuk. En we willen extra kastruimte.Een hoekkeuken vindt ik ook prima maar dat gaat ivm de deuren niet lukken dus dan is een (schier-) eiland de enige oplossing.
[ Voor 6% gewijzigd door Chaoss op 27-08-2021 10:39 ]
PSN: Wanderer200 | Switch: Wanderer
Weet iemand of er ergens keukenbladen van >5m worden gemaakt?
Alternatief dat ik nu voor me zie is zelf een blad (laten) gieten.
Anders blijft er altijd een naad ergens zichtbaar, toch? Lijkt me erg zonde.
Gewenste bladlengte is ca. 525cm.
Alternatief dat ik nu voor me zie is zelf een blad (laten) gieten.
Anders blijft er altijd een naad ergens zichtbaar, toch? Lijkt me erg zonde.
Gewenste bladlengte is ca. 525cm.
Balsa beton, beton light en rvs zijn jouw opties. Komen wel in meerdere delen, maar worden ter plaatsen aan elkaar gelast.Daikirai schreef op vrijdag 27 augustus 2021 @ 11:06:
Weet iemand of er ergens keukenbladen van >5m worden gemaakt?
Alternatief dat ik nu voor me zie is zelf een blad (laten) gieten.
Anders blijft er altijd een naad ergens zichtbaar, toch? Lijkt me erg zonde.
Gewenste bladlengte is ca. 525cm.
Keramiek KAN ook. Maar dan moet je de verkoper heel goed weten te overtuigen. Het is enorm kwetsbaar om daar een verbinding dicht te smeren.
“Nothing changed since the 70s. Nothing. Except people train not that hard”. - Tom Platz
Shuller is voordeliger dan Pronorm en Ballerina. Nobilia is een stapje lager, maar let daar wel op dat de winkel niet onder flinke druk staat van het merk Nobilia (want dan kan opeen niks meer).Chaoss schreef op vrijdag 27 augustus 2021 @ 10:12:
Wij zitten een beetje in dubio, we hebben een andere woning gekocht en de keuken die daar in zit is het net niet, het is een budget keuken met ETNA apparatuur. In onze huidige woning hebben we een strakke Schüller keuken met Bosch Oven / vw / koelkast / inductie, Combi Quooker en composiet werkblad en meer kastruimte (we hebben nu 1 bovenkast, apothekers kast en 2 onderkasten meer).
De keuken in het nieuwe huis is dus kleiner maar ook veel minder qua apparatuur, kunststof werkblad, ook de kader frontjes zijn niet echt onze smaak. Aan de andere kant zit deze keuken er nog maar 3 jaar in dus hij is nog lang niet 'af'.
Eerst hadden we het idee om er een (schier-) eiland voor te zetten zodat we wat extra kasten hebben en aan de andere woonkamerkant plaats voor 2 barkrukken. Ook zouden we dan nieuw composiet op de hele keuken willen en de gaskookplaat vervangen voor inductie en een Quooker plaatsen. Eigenlijk vinden we de fronten dus ook niet zo mooi en aangezien we in de bijkeuken ook een kastenwand met dezelfde fronten willen is dat eigenlijk ook zonde van het geld en moeten dus alle fronten ook al vervangen worden. Oftewel dan blijft er niet veel meer van de huidige keuken over en kunnen we toch net zo goed de hele keuken vervangen.
Funda foto's van de keuken:
[Afbeelding]
Er is dus wel ruimte voor een eiland van 1,40 tegen de muur:
[Afbeelding]
Ik zou het eiland liever tegen de muur aan de rechter kant hebben maar dan zit je met de deur vanuit de gang die er tegenaan draait.
Nu hoef ik zeker geen Schüller keuken weer die hebben we toen gekozen omdat ik die via mijn toenmalige werkgever voor (bijna) inkoop kon krijgen. Het mag qua kasten best een stapje lager, goede apparatuur vind ik wel belangrijk, ik kan me bijvoorbeeld niet voorstellen dat de Etna combi net zo goed werkt als onze Bosch oven.
We hebben zaterdag een afspraak bij een zaak die Ballerina, Pronorm en Nobillia verkoopt. om te kijken wat een nieuwe keuken tegenwoordig kost. Maar ik ben bang dat we zo de 15K aantikken.
Jouw beste optie is een volledig nieuwe keuken, indien je wat wilt aanbouwen en de huidige fronten dan zou vervangen naar hetgeen je nieuw ook neerzet.
Andere optie is om alleen de fronten opnieuw te laten bekleden/spuiten/vervangen. Ik heb daar een zeer goed adresje voor je (dekeukenvernieuwers.nl. Specifiek monteur André).
Doe je een hele nieuwe keuken, let er dan op dat je met composiet, een Quooker, BSH apparatuur inderdaad dik naar die 15k gaat. Eerder 20k dan 15k zelfs.
“Nothing changed since the 70s. Nothing. Except people train not that hard”. - Tom Platz
Je hebt toch ook nog solid surface keukenbladen? Die kunnen in alle lengtes, naden worden weggewerkt, toch?Barry|IA schreef op vrijdag 27 augustus 2021 @ 12:03:
[...]
Balsa beton, beton light en rvs zijn jouw opties. Komen wel in meerdere delen, maar worden ter plaatsen aan elkaar gelast.
Keramiek KAN ook. Maar dan moet je de verkoper heel goed weten te overtuigen. Het is enorm kwetsbaar om daar een verbinding dicht te smeren.
kun je iets zeggen over reëel percentage prijsverschil hacker GL systemat / vs nobila ook GLBarry|IA schreef op donderdag 26 augustus 2021 @ 22:16:
[...]
Ik vind er persoonlijk geen verschil in zitten. Maar er zijn mensen (voornamelijk vertegenwoordigers) die daar anders over denken.
Wel grappig, want hoe “geavanceerd” Dekton ook wordt weergegeven, zo gelijk is het aan keramiek als je de gebruiksvoorschriften bekijkt.
Kies de mooiste, dan zit je goed.
betreft een u keuken buitenmaat 450 (lang)-300(kort)-330 (schiereiland).
bij Systemat combi eiken houtfineer/ hoogglans lak vs nobila volledig folie.
uiteraard uitgaande van zelfde kasten. Zit daar verder ook nog een merkbaar kwaliteitverschil in? we hebben twee offertes maar door geheel verschillend materiaal moeilijk te vergelijken
Waarom vergelijk je deze twee keukens?Mvcb schreef op vrijdag 27 augustus 2021 @ 13:01:
[...]
kun je iets zeggen over reëel percentage prijsverschil hacker GL systemat / vs nobila ook GL
betreft een u keuken buitenmaat 450 (lang)-300(kort)-330 (schiereiland).
bij Systemat combi eiken houtfineer/ hoogglans lak vs nobila volledig folie.
uiteraard uitgaande van zelfde kasten. Zit daar verder ook nog een merkbaar kwaliteitverschil in? we hebben twee offertes maar door geheel verschillend materiaal moeilijk te vergelijken
Bij Systemat, wat al een luxer en duurder merk is ga je hoog in de prijsgroepen zitten
Bij Nobilia, wat een minder luxe en goedkoper merk is ga je juist laag in de prijsgroepen zitten
Is het niet beter om eerst te duidelijk te hebben of jullie liever houfineer, lak, folie, of kunststof fronten willen?
Yep. Was mij ontschoten.ChrisM schreef op vrijdag 27 augustus 2021 @ 12:47:
[...]
Je hebt toch ook nog solid surface keukenbladen? Die kunnen in alle lengtes, naden worden weggewerkt, toch?
“Nothing changed since the 70s. Nothing. Except people train not that hard”. - Tom Platz
@Barry|IA Klopt het dat de inbouwvriezers:
- iQ500 inbouw vriezer 71.2 x 55.8 cm GI11VADE0 €979
- iQ500 Inbouw vriezer 87.4 x 55.8 cm GI21VADE0 €1039
Niet passen in een 60 kastje laag onder het werkblad (Pronorm Y-line plus). Keukenboer zei dat ik hiervoor de: iQ500 Onderbouwvriezer 82 x 59.8 cm GU15DA50 nodig heb. (Moest dus onderbouw zijn).
- iQ500 inbouw vriezer 71.2 x 55.8 cm GI11VADE0 €979
- iQ500 Inbouw vriezer 87.4 x 55.8 cm GI21VADE0 €1039
Niet passen in een 60 kastje laag onder het werkblad (Pronorm Y-line plus). Keukenboer zei dat ik hiervoor de: iQ500 Onderbouwvriezer 82 x 59.8 cm GU15DA50 nodig heb. (Moest dus onderbouw zijn).
Ik heb hier ook een vraagje voor de kenners @Barry|IA of ervaringsdeskundigen.
Wij zijn vandaag voor een derde gesprek bij de keukenzaak geweest. We zijn het eens over de indeling, de kastjes, de fronten, de apparatuur (liebherr topmodellen vriezer/koelkast en klimaatkast) en Miele (stoomoven met wateraansluiting en vaatwasser). Verder Bora Puru en Quooker.
Al met al, mede door de apparatuur loopt de prijs mooi op, maar daar zijn we ons van bewust.
Het enige waar we nog niet uit zijn is het werkblad. We krijgen een Fenix matzwart schiereiland en willen daar ook een "zwart" werkblad op. Hetzelfde in een nisje. Werkblad op schiereiland is 305cm en wordt tot 4 cm opgedikt. Werkblad op het nisje wordt 120*60 en ook 4 cm opgedikt.
Nu hebben we 3 opties die zo'n 3500 euro uit elkaar liggen en dus het overwegen waard.:
- Fenix matzwart werkblad
- Arte keramiek Nero werkblad
- Dekton Domoos
Als we Fenix op 0 zetten, komt keramiek op +2500 en Dekton op +3500.
Eigenlijk vinden we ze qua stijl alle drie mooi, waarbij de Fenix natuurlijk het mooiste past bij de onderkasten. Dat vindt mijn vrouw ook.
Ik twijfel alleen enorm aan de slijtvastheid van Fenix als werkblad, hoe bruikbaar is dat in het dagelijks gebruik in een keuken? Kan het alles wel zo'n beetje aan, of moet je echt elke keer bedenken als je er wat op zet, of je geen krassen gaat krijgen? Niet alleen tijdens het koken, maar bijvoorbeeld ook als je er een Albert Heijn boodschappenkrat, of een kratje bier of iets op zet (en een beetje schuift).
Wat zijn jullie ervaringen hierin?
Wij zijn vandaag voor een derde gesprek bij de keukenzaak geweest. We zijn het eens over de indeling, de kastjes, de fronten, de apparatuur (liebherr topmodellen vriezer/koelkast en klimaatkast) en Miele (stoomoven met wateraansluiting en vaatwasser). Verder Bora Puru en Quooker.
Al met al, mede door de apparatuur loopt de prijs mooi op, maar daar zijn we ons van bewust.
Het enige waar we nog niet uit zijn is het werkblad. We krijgen een Fenix matzwart schiereiland en willen daar ook een "zwart" werkblad op. Hetzelfde in een nisje. Werkblad op schiereiland is 305cm en wordt tot 4 cm opgedikt. Werkblad op het nisje wordt 120*60 en ook 4 cm opgedikt.
Nu hebben we 3 opties die zo'n 3500 euro uit elkaar liggen en dus het overwegen waard.:
- Fenix matzwart werkblad
- Arte keramiek Nero werkblad
- Dekton Domoos
Als we Fenix op 0 zetten, komt keramiek op +2500 en Dekton op +3500.
Eigenlijk vinden we ze qua stijl alle drie mooi, waarbij de Fenix natuurlijk het mooiste past bij de onderkasten. Dat vindt mijn vrouw ook.
Ik twijfel alleen enorm aan de slijtvastheid van Fenix als werkblad, hoe bruikbaar is dat in het dagelijks gebruik in een keuken? Kan het alles wel zo'n beetje aan, of moet je echt elke keer bedenken als je er wat op zet, of je geen krassen gaat krijgen? Niet alleen tijdens het koken, maar bijvoorbeeld ook als je er een Albert Heijn boodschappenkrat, of een kratje bier of iets op zet (en een beetje schuift).
Wat zijn jullie ervaringen hierin?
[ Voor 4% gewijzigd door ChUcKiE op 27-08-2021 13:44 ]
@Streamz kom maar inChUcKiE schreef op vrijdag 27 augustus 2021 @ 13:34:
Ik heb hier ook een vraagje voor de kenners of ervaringsdeskundigen.
Wij zijn vandaag voor een derde gesprek bij de keukenzaak geweest. We zijn het eens over de indeling, de kastjes, de fronten, de apparatuur (liebherr topmodellen vriezer/koelkast en klimaatkast) en Miele (stoomoven met wateraansluiting en vaatwasser). Verder Bora Puru en Quooker.
Al met al, mede door de apparatuur loopt de prijs mooi op, maar daar zijn we ons van bewust.
Het enige waar we nog niet uit zijn is het werkblad. We krijgen een Fenix matzwart schiereiland en willen daar ook een "zwart" werkblad op. Hetzelfde in een nisje.
Nu hebben we 3 opties die zo'n 3500 euro uit elkaar liggen en dus het overwegen waard.:
- Fenix matzwart werkblad
- Arte keramiek werkblad
- Dekton Domoos
Als we Fenix op 0 zetten, komt keramiek op +2500 en Dekton op +3500.
Eigenlijk vinden we ze qua stijl alle drie mooi, waarbij de Fenix natuurlijk het mooiste past bij de onderkasten. Dat vindt mijn vrouw ook.
Ik twijfel alleen enorm aan de slijtvastheid van Fenix als werkblad, hoe bruikbaar is dat in het dagelijks gebruik in een keuken? Kan het alles wel zo'n beetje aan, of moet je echt elke keer bedenken als je er wat op zet, of je geen krassen gaat krijgen? Niet alleen tijdens het koken, maar bijvoorbeeld ook als je er een Albert Heijn boodschappenkrat of iets op zet (en een beetje schuift).
Wat zijn jullie ervaringen hierin?
@ChUcKiE zoek zijn posts even terug in dit topic, volgens mij is hij fan. Maar zijn er ook mensen in het topic die zeggen absoluut niet doen
Van wat ik begreep moet je dus absoluut nooit zoiets als een krat erop zetten en vooral niet schuiven!ChUcKiE schreef op vrijdag 27 augustus 2021 @ 13:34:
Ik heb hier ook een vraagje voor de kenners of ervaringsdeskundigen.
Wij zijn vandaag voor een derde gesprek bij de keukenzaak geweest. We zijn het eens over de indeling, de kastjes, de fronten, de apparatuur (liebherr topmodellen vriezer/koelkast en klimaatkast) en Miele (stoomoven met wateraansluiting en vaatwasser). Verder Bora Puru en Quooker.
Al met al, mede door de apparatuur loopt de prijs mooi op, maar daar zijn we ons van bewust.
Het enige waar we nog niet uit zijn is het werkblad. We krijgen een Fenix matzwart schiereiland en willen daar ook een "zwart" werkblad op. Hetzelfde in een nisje. Werkblad op schiereiland is 305cm en wordt tot 4 cm opgedikt. Werkblad op het nisje wordt 120*60 en ook 4 cm opgedikt.
Nu hebben we 3 opties die zo'n 3500 euro uit elkaar liggen en dus het overwegen waard.:
- Fenix matzwart werkblad
- Arte keramiek werkblad
- Dekton Domoos
Als we Fenix op 0 zetten, komt keramiek op +2500 en Dekton op +3500.
Eigenlijk vinden we ze qua stijl alle drie mooi, waarbij de Fenix natuurlijk het mooiste past bij de onderkasten. Dat vindt mijn vrouw ook.
Ik twijfel alleen enorm aan de slijtvastheid van Fenix als werkblad, hoe bruikbaar is dat in het dagelijks gebruik in een keuken? Kan het alles wel zo'n beetje aan, of moet je echt elke keer bedenken als je er wat op zet, of je geen krassen gaat krijgen? Niet alleen tijdens het koken, maar bijvoorbeeld ook als je er een Albert Heijn boodschappenkrat of iets op zet (en een beetje schuift).
Wat zijn jullie ervaringen hierin?
Wij vonden het ook ontzettend mooi, maar durven het niet aan, ondanks dat we dit nooit zouden doen, geen kids hebben etc.
Ik denk dat ik me uiteindelijk eraan zou ergeren.
En een matte zwart composiet blad?
Om eerlijk te zijn voorkeur qua kasten richting systemat, maar dan moeten we nu wel op apparatuur budgetteren (zeg maar midden lijn bosch/aeg). Bij nobila is er meer budget voor apparatuur (liebher/miele).SquareOne schreef op vrijdag 27 augustus 2021 @ 13:06:
[...]
Waarom vergelijk je deze twee keukens?
Bij Systemat, wat al een luxer en duurder merk is ga je hoog in de prijsgroepen zitten
Bij Nobilia, wat een minder luxe en goedkoper merk is ga je juist laag in de prijsgroepen zitten
Is het niet beter om eerst te duidelijk te hebben of jullie liever houfineer, lak, folie, of kunststof fronten willen?
Ik geeft toe dit is natuurlijk gewoon luxe keuzestress, maar bij de totale investering willen we allemaal toch uiteindelijke de beste keuze maken? Anders gezegd; beter investeren in kasten of apparatuur. Kasten vervang je niet zomaar; andere koelkast is relatief eenvoudig te vervangen.
Denk niet dat je op die manier naar de kwaliteit van de kasten moet kasten moet kijken. Hoe groot is de kans dat een kast kapot gaat? Met een normaal gebruik gebeurd er niets met de kasten. Bij goedkopere merken is het hang/sluit werk misschien iets minder en zul je de frontjes eerder moeten bijstellen. Bij mijn Schüller keuken heb ik in 9 jaar tijd geen enkel frontje of lade hoeven afstellen.Mvcb schreef op vrijdag 27 augustus 2021 @ 14:53:
Ik geeft toe dit is natuurlijk gewoon luxe keuzestress, maar bij de totale investering willen we allemaal toch uiteindelijke de beste keuze maken? Anders gezegd; beter investeren in kasten of apparatuur. Kasten vervang je niet zomaar; andere koelkast is relatief eenvoudig te vervangen.
Verder hebben de luxere merken vaak wat betere afwerking en vooral meer keuze qua kasten / opties / maatwerk.
PSN: Wanderer200 | Switch: Wanderer
Welke Fenix hebben we het hier over? Zijn verschillende versies. Dun laagje, door en door, ook welk materiaal als drager is gebruikt.SquareOne schreef op vrijdag 27 augustus 2021 @ 13:38:
[...]
@Streamz kom maar in
@ChUcKiE zoek zijn posts even terug in dit topic, volgens mij is hij fan. Maar zijn er ook mensen in het topic die zeggen absoluut niet doen
Bij zwart niet te zien, want in geval van de goedkoopste invulling kun je de onderlaag niet zien omdat die ook zwart is. De betere Fenix versies (door en door) hebben dat dus niet. Beste is dus een staaltje te bekijken welke niet zwart is.
Hier geen problemen en we sparen m niet. En er loopt een kind van 7 rond die soms erop klimt zelfs. Sleutels worden erop gegooid, maar ook de boodschappentassen etc.
Ik ben nu wel eens benieuwd naar echte ervaringsverhalen en geen hear-say. Beter nog, foto's.
Want tot nu toe blijven de negatieviteit steken bij "ik zou het niet durven," "mijn keukenleverancier raadt het af" en exact 1 pagina op the webz waar een onbekend iemand adviseert geen Fenix te nemen.
Wil je een goede afweging kunnen maken, moeten we van dit soort ongefundeerde uitspraken af.
Klopt, Corian / Solid Surface kan ook. Wordt ook aan elkaar "gelast"ChrisM schreef op vrijdag 27 augustus 2021 @ 12:47:
[...]
Je hebt toch ook nog solid surface keukenbladen? Die kunnen in alle lengtes, naden worden weggewerkt, toch?
In mn vorige keuken had ik RVS.
Wat erg fraai is, is warmgewalst RVS.
@Barry|IA Heb je een tip voor een goede keukenzaak die kwartsiet werkbladen kan leveren? Blijkbaar zit dat niet bij veel in het assortiment.
Opbrengst van mijn Tibber Homevolt met externe kWh meter. | Opbrengst van mijn Tibber Homevolt volgens de Tibber Data API.
We hebben een andere woning gekocht en willen daar de keuken van laten vervangen. Vandaag daarom weg geweest voor een andere keuken. Dit is voor ons de eerste keer dat we een keuken gaan aanschaffen dus heb hier nul ervaring mee.
Betreft een parallelopstelling.
1 zijde 3,00mtr breed bestaande uit 2x ladekast 0,90m en 2x kast 0,60m waarvan 1x de vaatwasser. Verder aan deze zijde ook spoelbak en kookplaat met afzuigkap en 2 bovenkasten 0,60m en 1 bovenkast 0,90m.
andere zijde 3 hoge kasten van 1,95m hoog. linker voorzien van koelkast 1,22m hoog, midden combi-oven rechter voorzien van vriezer 1,22m hoog.
We zijn bij Grando geweest en hebben daar onze wensen voorgelegd.
Daar onderstaande offerte meegekregen van een Pronorm keuken.
Uitvoering: A, Grando X-LK serie X 5500
Frontkleur 1: wit glanzend (140)
Kleur kopse kant front: wit glanzend (140)
Uitvoering korpus: Kunststof (K)
Kleur buitenzijde korpus: wit (100)
Kleur binnenzijde korpus: wit (100)
Kleur kopse kant korpus: wit (100)
Uitvoering zichtzijde: Kunststof (K)
Kleur zichtzijde: wit glanzend (140)
Uitvoering plint: Kunststof (K)
Kleur plint: wit glanzend (140)
Toevoeging plinthoogte: 115 mm hoog (115)
Uitvoering zijwand: Hoogglanslak (H)
Kleur zijwand: wit glanzend (140)
Type lade: proStyle (hoekige) (RE)
Kleur uittreklade: champagne (34)
Uitvoering achterbouwlijst: X-Line C-profiel (X)
Openings ondersteuning: Zonder (998)
Kast bodem: volle diepte (VT)
Hoofdkeuken bestaande uit:
1 UGX90-76-38 A Kookplaatkast met 2 uittrekladen 76.8 90 1.1 UZB90-34 A Bestekindeling 90 1
2 UX60-76-37 A Onderkast met 2 uittrekladen 76.8 60 1
3 DTX60-76-37 A Front t.b.v. volledig geïntegreerde vaatwasmachine 76.8 60 1
4 USX90-76-37 A Spoelkast met 2 uittrekladen 76.8 90 1
5 OX60-38-30 A Bovenkast met barklepdeur 38.4 60 1
6 OX60-38-30 A Bovenkast met barklepdeur 38.4 60 1
7 OX90-38-30 A Bovenkast met barklepdeur 38.4 90 1
Subtotaal: 7.285,60
Apparatuurwand bestaande uit:
8 WS16-2208-597 A Zijwandafdekpaneel voor hoge kast t.b.v. linker- en rechterzijde 220.8 1.6 1
9 HGX60-220-105 A L Hoge kast t.b.v. integreerbare koelkast 220.8 60 1
10 HGX60-220-510 A L Hoge kast t.b.v. inbouwapparaat 220.8 60 1
11 HGX60-220-105 A R Hoge kast t.b.v. integreerbare koelkast 220.8 60 1
Diverse plinten standaardhoogte Incl.
Subtotaal: 6.570,20
Subtotaal: € 13.855,80
Korting 40%: € 5.542,32
Totaal: € 8.313,48
Siemens Inductiekookplaat iQ500 met 4 kookzones ED777FQC5E 1399,00
Falmec Flipper schouwwasemkap met electronische bediening FLIPP85BL 868,78
Falmec KCQAN.00#N Schacht verso 94,00
Quooker 3FRBLK Quooker PRO3, inclusief Fusion Round Black 1545,00
Siemens Volledig integreerbare vaatwasmachine XXL IQ300SX63H800BE 1229,00
Siemens Integreerbare koelkast IQ500 KI41RSFF0 1139,00
Siemens HM836GNB6 Multifunctionele oven met magnetronfunctie iQ700 2129,00
Siemens GI41NACE0 Integreerbare vrieskast IQ500 met NoFrost 1299,00
Transport gratis bezorgen van uw keuken op de begaande grond 325,00
De prijsopgave is inclusief montage. De montage wordt verzorgd door Grando 1677,73
Subtotaal: € 11.705,51
Kortingsbedrag: € 2.946,10
Dekker Top Core werkblad 10 mm zonder randafwerking Kleur: Floating Black
Gekleurde rvs semi-onderbouwspoelbak
Subtotaal: € 3.847,59
Korting 40%: € 1.539,04
Totaal: € 2.308,55
Totaal Keukenmeubelen : € 8.313,48 +
Totaal Apparatuur / Accessoires: € 8.759,41 +
Totaal Werkblad(en) : € 2.308,55 +
Subtotaal: € 19.381,44 +
Afrondingskorting: € 391,44 -
Totaal te betalen: € 18.990,00
De prijzen van de apparatuur kan naar mij idee nog wel 2000 euro vanaf als ik een rondje internet doe. Ik kom bovenstaand op 9702,27 voor apparatuur, op internet totaal 7753.35.
Ook mooi dat ze gratis bezorgen aangeven maar wel de 325,00 die het normaal kost opvoeren en dus eigenlijk in de korting zit verwerkt. Korting op apparatuur/montage is dus eigenlijk 2.946,10 - 325,00 = 2621,10.
Wat betreft apparatuur zijn er nog wel een paar dingen die ik overigens anders zou willen (andere types van Siemens).
Iemand een idee of dit een goede prijs is en of hier nog (veel) aan de prijs gedaan kan worden?
Betreft een parallelopstelling.
1 zijde 3,00mtr breed bestaande uit 2x ladekast 0,90m en 2x kast 0,60m waarvan 1x de vaatwasser. Verder aan deze zijde ook spoelbak en kookplaat met afzuigkap en 2 bovenkasten 0,60m en 1 bovenkast 0,90m.
andere zijde 3 hoge kasten van 1,95m hoog. linker voorzien van koelkast 1,22m hoog, midden combi-oven rechter voorzien van vriezer 1,22m hoog.
We zijn bij Grando geweest en hebben daar onze wensen voorgelegd.
Daar onderstaande offerte meegekregen van een Pronorm keuken.
Uitvoering: A, Grando X-LK serie X 5500
Frontkleur 1: wit glanzend (140)
Kleur kopse kant front: wit glanzend (140)
Uitvoering korpus: Kunststof (K)
Kleur buitenzijde korpus: wit (100)
Kleur binnenzijde korpus: wit (100)
Kleur kopse kant korpus: wit (100)
Uitvoering zichtzijde: Kunststof (K)
Kleur zichtzijde: wit glanzend (140)
Uitvoering plint: Kunststof (K)
Kleur plint: wit glanzend (140)
Toevoeging plinthoogte: 115 mm hoog (115)
Uitvoering zijwand: Hoogglanslak (H)
Kleur zijwand: wit glanzend (140)
Type lade: proStyle (hoekige) (RE)
Kleur uittreklade: champagne (34)
Uitvoering achterbouwlijst: X-Line C-profiel (X)
Openings ondersteuning: Zonder (998)
Kast bodem: volle diepte (VT)
Hoofdkeuken bestaande uit:
1 UGX90-76-38 A Kookplaatkast met 2 uittrekladen 76.8 90 1.1 UZB90-34 A Bestekindeling 90 1
2 UX60-76-37 A Onderkast met 2 uittrekladen 76.8 60 1
3 DTX60-76-37 A Front t.b.v. volledig geïntegreerde vaatwasmachine 76.8 60 1
4 USX90-76-37 A Spoelkast met 2 uittrekladen 76.8 90 1
5 OX60-38-30 A Bovenkast met barklepdeur 38.4 60 1
6 OX60-38-30 A Bovenkast met barklepdeur 38.4 60 1
7 OX90-38-30 A Bovenkast met barklepdeur 38.4 90 1
Subtotaal: 7.285,60
Apparatuurwand bestaande uit:
8 WS16-2208-597 A Zijwandafdekpaneel voor hoge kast t.b.v. linker- en rechterzijde 220.8 1.6 1
9 HGX60-220-105 A L Hoge kast t.b.v. integreerbare koelkast 220.8 60 1
10 HGX60-220-510 A L Hoge kast t.b.v. inbouwapparaat 220.8 60 1
11 HGX60-220-105 A R Hoge kast t.b.v. integreerbare koelkast 220.8 60 1
Diverse plinten standaardhoogte Incl.
Subtotaal: 6.570,20
Subtotaal: € 13.855,80
Korting 40%: € 5.542,32
Totaal: € 8.313,48
Siemens Inductiekookplaat iQ500 met 4 kookzones ED777FQC5E 1399,00
Falmec Flipper schouwwasemkap met electronische bediening FLIPP85BL 868,78
Falmec KCQAN.00#N Schacht verso 94,00
Quooker 3FRBLK Quooker PRO3, inclusief Fusion Round Black 1545,00
Siemens Volledig integreerbare vaatwasmachine XXL IQ300SX63H800BE 1229,00
Siemens Integreerbare koelkast IQ500 KI41RSFF0 1139,00
Siemens HM836GNB6 Multifunctionele oven met magnetronfunctie iQ700 2129,00
Siemens GI41NACE0 Integreerbare vrieskast IQ500 met NoFrost 1299,00
Transport gratis bezorgen van uw keuken op de begaande grond 325,00
De prijsopgave is inclusief montage. De montage wordt verzorgd door Grando 1677,73
Subtotaal: € 11.705,51
Kortingsbedrag: € 2.946,10
Dekker Top Core werkblad 10 mm zonder randafwerking Kleur: Floating Black
Gekleurde rvs semi-onderbouwspoelbak
Subtotaal: € 3.847,59
Korting 40%: € 1.539,04
Totaal: € 2.308,55
Totaal Keukenmeubelen : € 8.313,48 +
Totaal Apparatuur / Accessoires: € 8.759,41 +
Totaal Werkblad(en) : € 2.308,55 +
Subtotaal: € 19.381,44 +
Afrondingskorting: € 391,44 -
Totaal te betalen: € 18.990,00
De prijzen van de apparatuur kan naar mij idee nog wel 2000 euro vanaf als ik een rondje internet doe. Ik kom bovenstaand op 9702,27 voor apparatuur, op internet totaal 7753.35.
Ook mooi dat ze gratis bezorgen aangeven maar wel de 325,00 die het normaal kost opvoeren en dus eigenlijk in de korting zit verwerkt. Korting op apparatuur/montage is dus eigenlijk 2.946,10 - 325,00 = 2621,10.
Wat betreft apparatuur zijn er nog wel een paar dingen die ik overigens anders zou willen (andere types van Siemens).
Iemand een idee of dit een goede prijs is en of hier nog (veel) aan de prijs gedaan kan worden?
Skoda Enyaq iV60 Sportline * Toyota Aygo X * Fendt 510TF Joker * Honwave 35AE met Honda BF20
Kijk ter vergelijking eens naar de keuken van @SquareOne en/ of gebruik de zoekfunctie x-lineBeaM-R schreef op vrijdag 27 augustus 2021 @ 23:26:
We hebben een andere woning gekocht en willen daar de keuken van laten vervangen. Vandaag daarom weg geweest voor een andere keuken. Dit is voor ons de eerste keer dat we een keuken gaan aanschaffen dus heb hier nul ervaring mee.
Betreft een parallelopstelling.
1 zijde 3,00mtr breed bestaande uit 2x ladekast 0,90m en 2x kast 0,60m waarvan 1x de vaatwasser. Verder aan deze zijde ook spoelbak en kookplaat met afzuigkap en 2 bovenkasten 0,60m en 1 bovenkast 0,90m.
andere zijde 3 hoge kasten van 1,95m hoog. linker voorzien van koelkast 1,22m hoog, midden combi-oven rechter voorzien van vriezer 1,22m hoog.
We zijn bij Grando geweest en hebben daar onze wensen voorgelegd.
Daar onderstaande offerte meegekregen van een Pronorm keuken.
Uitvoering: A, Grando X-LK serie X 5500
Frontkleur 1: wit glanzend (140)
Kleur kopse kant front: wit glanzend (140)
Uitvoering korpus: Kunststof (K)
Kleur buitenzijde korpus: wit (100)
Kleur binnenzijde korpus: wit (100)
Kleur kopse kant korpus: wit (100)
Uitvoering zichtzijde: Kunststof (K)
Kleur zichtzijde: wit glanzend (140)
Uitvoering plint: Kunststof (K)
Kleur plint: wit glanzend (140)
Toevoeging plinthoogte: 115 mm hoog (115)
Uitvoering zijwand: Hoogglanslak (H)
Kleur zijwand: wit glanzend (140)
Type lade: proStyle (hoekige) (RE)
Kleur uittreklade: champagne (34)
Uitvoering achterbouwlijst: X-Line C-profiel (X)
Openings ondersteuning: Zonder (998)
Kast bodem: volle diepte (VT)
Hoofdkeuken bestaande uit:
1 UGX90-76-38 A Kookplaatkast met 2 uittrekladen 76.8 90 1.1 UZB90-34 A Bestekindeling 90 1
2 UX60-76-37 A Onderkast met 2 uittrekladen 76.8 60 1
3 DTX60-76-37 A Front t.b.v. volledig geïntegreerde vaatwasmachine 76.8 60 1
4 USX90-76-37 A Spoelkast met 2 uittrekladen 76.8 90 1
5 OX60-38-30 A Bovenkast met barklepdeur 38.4 60 1
6 OX60-38-30 A Bovenkast met barklepdeur 38.4 60 1
7 OX90-38-30 A Bovenkast met barklepdeur 38.4 90 1
Subtotaal: 7.285,60
Apparatuurwand bestaande uit:
8 WS16-2208-597 A Zijwandafdekpaneel voor hoge kast t.b.v. linker- en rechterzijde 220.8 1.6 1
9 HGX60-220-105 A L Hoge kast t.b.v. integreerbare koelkast 220.8 60 1
10 HGX60-220-510 A L Hoge kast t.b.v. inbouwapparaat 220.8 60 1
11 HGX60-220-105 A R Hoge kast t.b.v. integreerbare koelkast 220.8 60 1
Diverse plinten standaardhoogte Incl.
Subtotaal: 6.570,20
Subtotaal: € 13.855,80
Korting 40%: € 5.542,32
Totaal: € 8.313,48
Siemens Inductiekookplaat iQ500 met 4 kookzones ED777FQC5E 1399,00
Falmec Flipper schouwwasemkap met electronische bediening FLIPP85BL 868,78
Falmec KCQAN.00#N Schacht verso 94,00
Quooker 3FRBLK Quooker PRO3, inclusief Fusion Round Black 1545,00
Siemens Volledig integreerbare vaatwasmachine XXL IQ300SX63H800BE 1229,00
Siemens Integreerbare koelkast IQ500 KI41RSFF0 1139,00
Siemens HM836GNB6 Multifunctionele oven met magnetronfunctie iQ700 2129,00
Siemens GI41NACE0 Integreerbare vrieskast IQ500 met NoFrost 1299,00
Transport gratis bezorgen van uw keuken op de begaande grond 325,00
De prijsopgave is inclusief montage. De montage wordt verzorgd door Grando 1677,73
Subtotaal: € 11.705,51
Kortingsbedrag: € 2.946,10
Dekker Top Core werkblad 10 mm zonder randafwerking Kleur: Floating Black
Gekleurde rvs semi-onderbouwspoelbak
Subtotaal: € 3.847,59
Korting 40%: € 1.539,04
Totaal: € 2.308,55
Totaal Keukenmeubelen : € 8.313,48 +
Totaal Apparatuur / Accessoires: € 8.759,41 +
Totaal Werkblad(en) : € 2.308,55 +
Subtotaal: € 19.381,44 +
Afrondingskorting: € 391,44 -
Totaal te betalen: € 18.990,00
De prijzen van de apparatuur kan naar mij idee nog wel 2000 euro vanaf als ik een rondje internet doe. Ik kom bovenstaand op 9702,27 voor apparatuur, op internet totaal 7753.35.
Ook mooi dat ze gratis bezorgen aangeven maar wel de 325,00 die het normaal kost opvoeren en dus eigenlijk in de korting zit verwerkt. Korting op apparatuur/montage is dus eigenlijk 2.946,10 - 325,00 = 2621,10.
Wat betreft apparatuur zijn er nog wel een paar dingen die ik overigens anders zou willen (andere types van Siemens).
Iemand een idee of dit een goede prijs is en of hier nog (veel) aan de prijs gedaan kan worden?
Wij gaan er een kopen bij keukenbladenfabriek.nl Grillo. Dit doen wij dus zelf en niet via de keukenzaak.JackBol schreef op vrijdag 27 augustus 2021 @ 16:30:
@Barry|IA Heb je een tip voor een goede keukenzaak die kwartsiet werkbladen kan leveren? Blijkbaar zit dat niet bij veel in het assortiment.
Levert je keuken leverancier je de exacte maten e.d.? En plaatsen die het ook? Het is niet voor mezelf maar voor vrienden en die willen een 1-stop-shop voor alles wat met de keuken te maken heeft.synorluna schreef op zaterdag 28 augustus 2021 @ 06:49:
[...]
Wij gaan er een kopen bij keukenbladenfabriek.nl. Dit doen wij dus zelf en niet via de keukenzaak.
Opbrengst van mijn Tibber Homevolt met externe kWh meter. | Opbrengst van mijn Tibber Homevolt volgens de Tibber Data API.
Wat ik van @Barry|IA heb begrepen, is dat het bij Keukenloods afhankelijk kan zijn van de verkoper. Bij ons deed de verkoper het niet en moeten we de zaken omtrent het blad zelf organiseren. Het inmeten en plaatsen etc doet de Keukenbladenfabriek Grillo, nadat je keuken is geplaatst.JackBol schreef op zaterdag 28 augustus 2021 @ 06:51:
[...]
Levert je keuken leverancier je de exacte maten e.d.? En plaatsen die het ook? Het is niet voor mezelf maar voor vrienden en die willen een 1-stop-shop voor alles wat met de keuken te maken heeft.
Ik wist niet dat dat überhaupt kon! Dacht dat de keukenboeren niet zo happig zijn op klanten die dat soort zaken zelf regelen.synorluna schreef op zaterdag 28 augustus 2021 @ 06:49:
[...]
Wij gaan er een kopen bij keukenbladenfabriek.nl. Dit doen wij dus zelf en niet via de keukenzaak.
Ik zou eens bij mijn eerdere posts kijken; vergelijkbare opstelling van pronorm (gelakt) met wel mindere appratuur voor 13.5k. Bij van wanrooij kun en moet je helaas flink onderhandelen om op een acceptabele prijs te komen.m-designz schreef op woensdag 25 augustus 2021 @ 09:21:
Hoi, ik heb hier inmiddels lang meegelezen en dat heeft me zeker geholpen met de aankoop van onze keuken, allen.. bedankt!
Wij hebben een nieuwbouwhuis gekocht van van wanrooij en hebben daarom nu bij van wanrooij de keuken uiteindelijk ook gekocht.
In de startpost hier heb ik gezien dat van wanrooij pronorm aanhoud als huismerk, om een 1 op 1 vergelijk te kunnen doen zijn we daarom bij Aswa en Nuva keukens geweest voor een offerte. Nuva keukens hebben wij het fijnste gesprek gehad van de 2.
We wisten al vrij goed wat we wilden, sowieso qua apparatuur, daarbij een parallel opstelling met 4 hoge kasten aan de ene kant, koken en spoelen aan de andere kant.
Qua apparatuur hebben we het volgende nu gekozen:
- Miele DGC7845 -> stoomoven
- Miele H7840BM -> combi magnetron
- Miele K7763E -> Koelkast
- Miele G7150SCVi -> vaatwasser
- Liebherr SIGN 3556-22 -> vriezer
- Bora x pure PUXU -> kookplaat
Voor deze apparatuur ben ik eerst online offertes op gaan vragen (keukenloods, bemmel en kroon en veldkamp witgoed). De uiteindelijke goedkoopste prijs voor dit lijstje was net iets onder de 12k.
Qua werkblad hebben we een composiet blad: Jetstone Piatra grey gepolijst (de ene kant ongeveer 3,3 meter lang en 70cm diep, de andere kant (naast de hoge kasten) ongeveer 1,25m lang en 60cm diep.
Dan het kastenwerkt van Pronorm: Voor de wand hebben we hier 4 hoge kasten met aan de zijkanten de koelkast en vriezer en in het midden de ovens.
Aan de andere kant hebben we 3x een ladekast (2 x 1m en 1 x 1,2m), hierbij hebben we in 2 lades een bestekbak.
Dit geheel ziet er dan als volgt ui (muurkleuren en rest van de ruimte is niet gelijk aan hoe het gaat worden)t:
[Afbeelding] [Afbeelding] [Afbeelding]
Koof en wandjes ga ik tzt zelf maken, dit zit dus niet in de uiteindelijke offerte.
***members only***
Ik moet zeggen dat na het lezen op wat websites, de Fenix wel gaat afvallen. Het risico op blijvende krassen doordat je bijvoorbeeld een keer een kratje bier of boodschappenkrat er op zet/over schuift vind ik te groot op een keuken van 30k.Streamz schreef op vrijdag 27 augustus 2021 @ 16:10:
[...]
Welke Fenix hebben we het hier over? Zijn verschillende versies. Dun laagje, door en door, ook welk materiaal als drager is gebruikt.
Bij zwart niet te zien, want in geval van de goedkoopste invulling kun je de onderlaag niet zien omdat die ook zwart is. De betere Fenix versies (door en door) hebben dat dus niet. Beste is dus een staaltje te bekijken welke niet zwart is.
Hier geen problemen en we sparen m niet. En er loopt een kind van 7 rond die soms erop klimt zelfs. Sleutels worden erop gegooid, maar ook de boodschappentassen etc.
Ik ben nu wel eens benieuwd naar echte ervaringsverhalen en geen hear-say. Beter nog, foto's.
Want tot nu toe blijven de negatieviteit steken bij "ik zou het niet durven," "mijn keukenleverancier raadt het af" en exact 1 pagina op the webz waar een onbekend iemand adviseert geen Fenix te nemen.
Wil je een goede afweging kunnen maken, moeten we van dit soort ongefundeerde uitspraken af.
Dan wordt de keuze gemaakt tussen keramiek (Arte Nero) of Dekton (domoos) met 1000 euro verschil.
Maar weer eens verdiepen tussen de echte verschillen tussen keramiek en Dekton.
Ter info: ik heb ooit georiënteerd op Pronorm. Maar wij hebben uiteindelijk een Tristar keuken gekochtLadypurple schreef op vrijdag 27 augustus 2021 @ 23:48:
[...]
Kijk ter vergelijking eens naar de keuken van @SquareOne en/ of gebruik de zoekfunctie x-line
Plaatjes werken makkelijkerBeaM-R schreef op vrijdag 27 augustus 2021 @ 23:26:
We hebben een andere woning gekocht en willen daar de keuken van laten vervangen. Vandaag daarom weg geweest voor een andere keuken. Dit is voor ons de eerste keer dat we een keuken gaan aanschaffen dus heb hier nul ervaring mee.
Betreft een parallelopstelling.
1 zijde 3,00mtr breed bestaande uit 2x ladekast 0,90m en 2x kast 0,60m waarvan 1x de vaatwasser. Verder aan deze zijde ook spoelbak en kookplaat met afzuigkap en 2 bovenkasten 0,60m en 1 bovenkast 0,90m.
andere zijde 3 hoge kasten van 1,95m hoog. linker voorzien van koelkast 1,22m hoog, midden combi-oven rechter voorzien van vriezer 1,22m hoog.
We zijn bij Grando geweest en hebben daar onze wensen voorgelegd.
Daar onderstaande offerte meegekregen van een Pronorm keuken.
Uitvoering: A, Grando X-LK serie X 5500
Frontkleur 1: wit glanzend (140)
Kleur kopse kant front: wit glanzend (140)
Uitvoering korpus: Kunststof (K)
Kleur buitenzijde korpus: wit (100)
Kleur binnenzijde korpus: wit (100)
Kleur kopse kant korpus: wit (100)
Uitvoering zichtzijde: Kunststof (K)
Kleur zichtzijde: wit glanzend (140)
Uitvoering plint: Kunststof (K)
Kleur plint: wit glanzend (140)
Toevoeging plinthoogte: 115 mm hoog (115)
Uitvoering zijwand: Hoogglanslak (H)
Kleur zijwand: wit glanzend (140)
Type lade: proStyle (hoekige) (RE)
Kleur uittreklade: champagne (34)
Uitvoering achterbouwlijst: X-Line C-profiel (X)
Openings ondersteuning: Zonder (998)
Kast bodem: volle diepte (VT)
Hoofdkeuken bestaande uit:
1 UGX90-76-38 A Kookplaatkast met 2 uittrekladen 76.8 90 1.1 UZB90-34 A Bestekindeling 90 1
2 UX60-76-37 A Onderkast met 2 uittrekladen 76.8 60 1
3 DTX60-76-37 A Front t.b.v. volledig geïntegreerde vaatwasmachine 76.8 60 1
4 USX90-76-37 A Spoelkast met 2 uittrekladen 76.8 90 1
5 OX60-38-30 A Bovenkast met barklepdeur 38.4 60 1
6 OX60-38-30 A Bovenkast met barklepdeur 38.4 60 1
7 OX90-38-30 A Bovenkast met barklepdeur 38.4 90 1
Subtotaal: 7.285,60
Apparatuurwand bestaande uit:
8 WS16-2208-597 A Zijwandafdekpaneel voor hoge kast t.b.v. linker- en rechterzijde 220.8 1.6 1
9 HGX60-220-105 A L Hoge kast t.b.v. integreerbare koelkast 220.8 60 1
10 HGX60-220-510 A L Hoge kast t.b.v. inbouwapparaat 220.8 60 1
11 HGX60-220-105 A R Hoge kast t.b.v. integreerbare koelkast 220.8 60 1
Diverse plinten standaardhoogte Incl.
Subtotaal: 6.570,20
Subtotaal: € 13.855,80
Korting 40%: € 5.542,32
Totaal: € 8.313,48
Siemens Inductiekookplaat iQ500 met 4 kookzones ED777FQC5E 1399,00
Falmec Flipper schouwwasemkap met electronische bediening FLIPP85BL 868,78
Falmec KCQAN.00#N Schacht verso 94,00
Quooker 3FRBLK Quooker PRO3, inclusief Fusion Round Black 1545,00
Siemens Volledig integreerbare vaatwasmachine XXL IQ300SX63H800BE 1229,00
Siemens Integreerbare koelkast IQ500 KI41RSFF0 1139,00
Siemens HM836GNB6 Multifunctionele oven met magnetronfunctie iQ700 2129,00
Siemens GI41NACE0 Integreerbare vrieskast IQ500 met NoFrost 1299,00
Transport gratis bezorgen van uw keuken op de begaande grond 325,00
De prijsopgave is inclusief montage. De montage wordt verzorgd door Grando 1677,73
Subtotaal: € 11.705,51
Kortingsbedrag: € 2.946,10
Dekker Top Core werkblad 10 mm zonder randafwerking Kleur: Floating Black
Gekleurde rvs semi-onderbouwspoelbak
Subtotaal: € 3.847,59
Korting 40%: € 1.539,04
Totaal: € 2.308,55
Totaal Keukenmeubelen : € 8.313,48 +
Totaal Apparatuur / Accessoires: € 8.759,41 +
Totaal Werkblad(en) : € 2.308,55 +
Subtotaal: € 19.381,44 +
Afrondingskorting: € 391,44 -
Totaal te betalen: € 18.990,00
De prijzen van de apparatuur kan naar mij idee nog wel 2000 euro vanaf als ik een rondje internet doe. Ik kom bovenstaand op 9702,27 voor apparatuur, op internet totaal 7753.35.
Ook mooi dat ze gratis bezorgen aangeven maar wel de 325,00 die het normaal kost opvoeren en dus eigenlijk in de korting zit verwerkt. Korting op apparatuur/montage is dus eigenlijk 2.946,10 - 325,00 = 2621,10.
Wat betreft apparatuur zijn er nog wel een paar dingen die ik overigens anders zou willen (andere types van Siemens).
Iemand een idee of dit een goede prijs is en of hier nog (veel) aan de prijs gedaan kan worden?
Dat bepaal je toch zelf? De meeste keukenboeren komen met een offerte in drie delen: meubilair, apparatuur en bladen. Dan neem het laatste niet afKurma schreef op zaterdag 28 augustus 2021 @ 07:32:
[...]
Ik wist niet dat dat überhaupt kon! Dacht dat de keukenboeren niet zo happig zijn op klanten die dat soort zaken zelf regelen.
Ook wij hebben het blad zelf geregeld, in ons geval marmer. Het grote voordeel is dat je direct met de vakmensen praat, ipv een verkoper die ook de bladen erbij doet. Het bedrijf dat namens de keukenzaak de boel installeerde, liet keurig de kraan, spoelbak en kookplaat in de doos, en die hebben de bladenjongens perfect in het blad gemonteerd.
Je moet dan natuurlijk wel in een stoffige fabrieksomgeving je blad uitzoeken tussen opwekkende teksten als 'rust zacht'
Mijn huis is slimmer dan ik...
Dit ziet er inderdaad veel beter uit. Lijkt ook veel meer open door wat kleine wijzigingen.mabit_ schreef op woensdag 25 augustus 2021 @ 23:52:
[...]
Thanks voor je uitgebreide reactie! Je hebt inderdaad aardig wat vraagtekens aangestipt die wij ook al hadden!
Ik heb in Floorplanner even een nieuwe render gemaakt; waarbij we eea verschoven hebben (ijskast, hoge kasten) en tevens het spoeleiland in een werkeiland omgetoverd!
Moet zeggen dat ik daar al een beter gevoel bij heb!
(Let even niet op de kleur / indeling van de hoge kasten, die kreeg ik helaas niet fatsoenlijk uit Floorplanner)
[Afbeelding]
Welke Grando is dit?BeaM-R schreef op vrijdag 27 augustus 2021 @ 23:26:
We hebben een andere woning gekocht en willen daar de keuken van laten vervangen. Vandaag daarom weg geweest voor een andere keuken. Dit is voor ons de eerste keer dat we een keuken gaan aanschaffen dus heb hier nul ervaring mee.
Betreft een parallelopstelling.
1 zijde 3,00mtr breed bestaande uit 2x ladekast 0,90m en 2x kast 0,60m waarvan 1x de vaatwasser. Verder aan deze zijde ook spoelbak en kookplaat met afzuigkap en 2 bovenkasten 0,60m en 1 bovenkast 0,90m.
andere zijde 3 hoge kasten van 1,95m hoog. linker voorzien van koelkast 1,22m hoog, midden combi-oven rechter voorzien van vriezer 1,22m hoog.
We zijn bij Grando geweest en hebben daar onze wensen voorgelegd.
Daar onderstaande offerte meegekregen van een Pronorm keuken.
Uitvoering: A, Grando X-LK serie X 5500
Frontkleur 1: wit glanzend (140)
Kleur kopse kant front: wit glanzend (140)
Uitvoering korpus: Kunststof (K)
Kleur buitenzijde korpus: wit (100)
Kleur binnenzijde korpus: wit (100)
Kleur kopse kant korpus: wit (100)
Uitvoering zichtzijde: Kunststof (K)
Kleur zichtzijde: wit glanzend (140)
Uitvoering plint: Kunststof (K)
Kleur plint: wit glanzend (140)
Toevoeging plinthoogte: 115 mm hoog (115)
Uitvoering zijwand: Hoogglanslak (H)
Kleur zijwand: wit glanzend (140)
Type lade: proStyle (hoekige) (RE)
Kleur uittreklade: champagne (34)
Uitvoering achterbouwlijst: X-Line C-profiel (X)
Openings ondersteuning: Zonder (998)
Kast bodem: volle diepte (VT)
Hoofdkeuken bestaande uit:
1 UGX90-76-38 A Kookplaatkast met 2 uittrekladen 76.8 90 1.1 UZB90-34 A Bestekindeling 90 1
2 UX60-76-37 A Onderkast met 2 uittrekladen 76.8 60 1
3 DTX60-76-37 A Front t.b.v. volledig geïntegreerde vaatwasmachine 76.8 60 1
4 USX90-76-37 A Spoelkast met 2 uittrekladen 76.8 90 1
5 OX60-38-30 A Bovenkast met barklepdeur 38.4 60 1
6 OX60-38-30 A Bovenkast met barklepdeur 38.4 60 1
7 OX90-38-30 A Bovenkast met barklepdeur 38.4 90 1
Subtotaal: 7.285,60
Apparatuurwand bestaande uit:
8 WS16-2208-597 A Zijwandafdekpaneel voor hoge kast t.b.v. linker- en rechterzijde 220.8 1.6 1
9 HGX60-220-105 A L Hoge kast t.b.v. integreerbare koelkast 220.8 60 1
10 HGX60-220-510 A L Hoge kast t.b.v. inbouwapparaat 220.8 60 1
11 HGX60-220-105 A R Hoge kast t.b.v. integreerbare koelkast 220.8 60 1
Diverse plinten standaardhoogte Incl.
Subtotaal: 6.570,20
Subtotaal: € 13.855,80
Korting 40%: € 5.542,32
Totaal: € 8.313,48
Siemens Inductiekookplaat iQ500 met 4 kookzones ED777FQC5E 1399,00
Falmec Flipper schouwwasemkap met electronische bediening FLIPP85BL 868,78
Falmec KCQAN.00#N Schacht verso 94,00
Quooker 3FRBLK Quooker PRO3, inclusief Fusion Round Black 1545,00
Siemens Volledig integreerbare vaatwasmachine XXL IQ300SX63H800BE 1229,00
Siemens Integreerbare koelkast IQ500 KI41RSFF0 1139,00
Siemens HM836GNB6 Multifunctionele oven met magnetronfunctie iQ700 2129,00
Siemens GI41NACE0 Integreerbare vrieskast IQ500 met NoFrost 1299,00
Transport gratis bezorgen van uw keuken op de begaande grond 325,00
De prijsopgave is inclusief montage. De montage wordt verzorgd door Grando 1677,73
Subtotaal: € 11.705,51
Kortingsbedrag: € 2.946,10
Dekker Top Core werkblad 10 mm zonder randafwerking Kleur: Floating Black
Gekleurde rvs semi-onderbouwspoelbak
Subtotaal: € 3.847,59
Korting 40%: € 1.539,04
Totaal: € 2.308,55
Totaal Keukenmeubelen : € 8.313,48 +
Totaal Apparatuur / Accessoires: € 8.759,41 +
Totaal Werkblad(en) : € 2.308,55 +
Subtotaal: € 19.381,44 +
Afrondingskorting: € 391,44 -
Totaal te betalen: € 18.990,00
De prijzen van de apparatuur kan naar mij idee nog wel 2000 euro vanaf als ik een rondje internet doe. Ik kom bovenstaand op 9702,27 voor apparatuur, op internet totaal 7753.35.
Ook mooi dat ze gratis bezorgen aangeven maar wel de 325,00 die het normaal kost opvoeren en dus eigenlijk in de korting zit verwerkt. Korting op apparatuur/montage is dus eigenlijk 2.946,10 - 325,00 = 2621,10.
Wat betreft apparatuur zijn er nog wel een paar dingen die ik overigens anders zou willen (andere types van Siemens).
Iemand een idee of dit een goede prijs is en of hier nog (veel) aan de prijs gedaan kan worden?
“Nothing changed since the 70s. Nothing. Except people train not that hard”. - Tom Platz
Vandaag een offerte laten maken, uiteindelijk uitgekomen op een Nobilia greeploze keuken. Hoogglanswit en leisteengrijs. Werkblad is 2cm graniet, inbouwapparatuur is van Junker en Progress ('B'-merken van Siemens en AEG). Behalve die oven die is van Bosch. 50cm spoelbak en een 178cm koelkast, inductie kookplaat en inbouw afzuigunit. en een Combi Quooker. 2 ladeblokken met binnenlade.
Gelijk ook een bijkeuken laten uitrekenen met 3 hoge kasten waarvan 1 hoge kast met uitreklades en 1 met een 178cm vriezer. zelfde graniet op de bijkeuken
:fill(white):strip_exif()/f/image/kX4SAwIS8o0dKAkBhcSguXjn.png?f=user_large)
:fill(white):strip_exif()/f/image/6Mh6zOBmYT38wJkqkKWbGoPA.png?f=user_large)
bijkeuken:
:fill(white):strip_exif()/f/image/WhluID2wzp3yAxUGY9vSCgvK.png?f=user_large)
Prijs voor de keuken is 12.250,- ex montage en de bijkeuken incl vriezer, excl montage kost 3000,-
Montage voor beide keukens incl. de koof is 1750 maar dat is nog excl. installatie werk electra/water/afvoer.
zijn nog een paar dingen die we willen aanpassen, 178cm vriezer lijkt me overdreven, 88cm onderbouw met 4 lades moet ook voldoende zijn, dan heb ik liever extra kastruimte. Daarnaast is het misschien leuk om het beton grijs ook in de bijkeuken terug te laten komen maar bij 3 hoge kasten is dat misschien wat teveel grijs. Misschien dat we ook gaan voor een 88cm vriezer en dan 1 hoge kast minder.
Verder zag ik op de offerte dat het hooglans wit een foliefront is en ik twijfel of dat verstandig is. Wellicht dat we die moeten upgraden naar lak of moeten kijken welke kunststof opties er zijn.
Gelijk ook een bijkeuken laten uitrekenen met 3 hoge kasten waarvan 1 hoge kast met uitreklades en 1 met een 178cm vriezer. zelfde graniet op de bijkeuken
:fill(white):strip_exif()/f/image/kX4SAwIS8o0dKAkBhcSguXjn.png?f=user_large)
:fill(white):strip_exif()/f/image/6Mh6zOBmYT38wJkqkKWbGoPA.png?f=user_large)
bijkeuken:
:fill(white):strip_exif()/f/image/WhluID2wzp3yAxUGY9vSCgvK.png?f=user_large)
Prijs voor de keuken is 12.250,- ex montage en de bijkeuken incl vriezer, excl montage kost 3000,-
Montage voor beide keukens incl. de koof is 1750 maar dat is nog excl. installatie werk electra/water/afvoer.
zijn nog een paar dingen die we willen aanpassen, 178cm vriezer lijkt me overdreven, 88cm onderbouw met 4 lades moet ook voldoende zijn, dan heb ik liever extra kastruimte. Daarnaast is het misschien leuk om het beton grijs ook in de bijkeuken terug te laten komen maar bij 3 hoge kasten is dat misschien wat teveel grijs. Misschien dat we ook gaan voor een 88cm vriezer en dan 1 hoge kast minder.
Verder zag ik op de offerte dat het hooglans wit een foliefront is en ik twijfel of dat verstandig is. Wellicht dat we die moeten upgraden naar lak of moeten kijken welke kunststof opties er zijn.
PSN: Wanderer200 | Switch: Wanderer
Wij mogen een nieuwe keuken uitzoeken voor een nieuwbouwwoning (oplevering Q3 2022). Inmiddels offertes laten opstellen door Superkeukens en Keukenloods. Kwamen op vergelijkbare bedragen uit; KL was wel duidelijk scherper met apparatuur en SK heeft Schuller waar we wel gecharmeerd van zijn. We gaan een leidingschema aanleveren bij de projectontwikkelaar (via @Kapitein Merijn en vervolgens nog rustig rondkijken.
Met uitbouw van 2,4m en verkorte entree tbv extra ruimte rondom schiereiland ziet de BG er zo uit:
:strip_exif()/f/image/OuLvReD43GrWplL4FsGByyYu.jpg?f=fotoalbum_large)
Wel twijfelen we nog over de keukenopstelling. Standaard zit er een parallel geplaatste keuken:
Wij zitten te denken aan een L opstelling met een schiereiland (met bar) tegen de woonkamer, zodat we de erker aan de voorzijde kunnen benutten (met een bescheiden eettafel).
Waar twijfelen we nog over:
- evt. missen van een grote eettafel bij deze opstelling.
- het wel of niet verkorten van de hal/entree. Voordeel van een kleinere hal is dat er meer ruimte rondom het eiland zal zijn. Nadeel is dat we dan een kortere wand hebben in de keuken (vb. voor plaatsen van een 'coffeecorner') en dat de trap in de woonkamer/keuken komt (en als gevol geur en geluid naar boven)
Floorplanner renders bij een kleine entree:
:strip_exif()/f/image/ozIn7HsveBOPQxdMObsqpC3t.jpg?f=fotoalbum_large)
:strip_exif()/f/image/JRpgJdERS7YXZTPu28yKki3V.jpg?f=fotoalbum_large)
Ben benieuwd naar jullie mening.
Met uitbouw van 2,4m en verkorte entree tbv extra ruimte rondom schiereiland ziet de BG er zo uit:
:strip_exif()/f/image/OuLvReD43GrWplL4FsGByyYu.jpg?f=fotoalbum_large)
Wel twijfelen we nog over de keukenopstelling. Standaard zit er een parallel geplaatste keuken:
Wij zitten te denken aan een L opstelling met een schiereiland (met bar) tegen de woonkamer, zodat we de erker aan de voorzijde kunnen benutten (met een bescheiden eettafel).
![]() | ![]() |
Waar twijfelen we nog over:
- evt. missen van een grote eettafel bij deze opstelling.
- het wel of niet verkorten van de hal/entree. Voordeel van een kleinere hal is dat er meer ruimte rondom het eiland zal zijn. Nadeel is dat we dan een kortere wand hebben in de keuken (vb. voor plaatsen van een 'coffeecorner') en dat de trap in de woonkamer/keuken komt (en als gevol geur en geluid naar boven)
Floorplanner renders bij een kleine entree:
:strip_exif()/f/image/ozIn7HsveBOPQxdMObsqpC3t.jpg?f=fotoalbum_large)
:strip_exif()/f/image/JRpgJdERS7YXZTPu28yKki3V.jpg?f=fotoalbum_large)
Ben benieuwd naar jullie mening.
Dit is wel een hele goede! Had ik nog niet aan gedacht. Onze keuken komt onder een lichtstraat van 4 bij 1 meter op het zuiden. Een deel van de hoge kasten zal dus in de zomer veel in de zon staan.JackBol schreef op maandag 2 augustus 2021 @ 08:58:
[...]
Een collega van mij heeft een keuken met hout fineer die half in het zonlicht staat. Die is dus half verkleurd in 7 jaar. Aan de buitenkant ziet het er echt niet meer uit. De rechtse kant is flets en de linker kant is normaal. Maar als je aan de binnenkant van de deurtjes kijkt en ziet hoe het zou moeten zijn, zie je dat ook dat verkleurd is.
Mijn keuken komt vol in de zon, ik heb daarom voor kunststof gekozen.
Wordt dus afwegen of we dan voor kunststof moeten gaan of een zonnescherm op de lichtstraat plaatsen. Het glas zelf van de lichtstraat is wel zonwerend (ik meen 60%), maar denk niet dat dit voldoende is voor het fineer.
@MintyDoerak
Wat een mooie ruime woning is dat zeg! zeker met je aanbouw heb je heel erg veel ruimte zo in je woonkamer/keuken. Ik vind je ontwerp zeker niet verkeerd, ik vraag me alleen wel af of het niet een beetje geprak wordt in je erker om daar nog een tafel in te "prakken" en daarnaast dan ook nog een koffiecorner?
Ik zie dat niet zo goed in hoe je aan je eettafel gaat zitten.
Het jammere aan je erker is dat hij niet heel symmetrisch in het midden zit van de ruimte naast de hal. Hierdoor wordt het je een beetje onmogelijk gemaakt iets in het midden te plaatsen en nog genoeg loopruimte over te houden.
Ik weet niet of jullie van de kookeilanden zijn en hoeveel waarde je hecht aan je trapkast maar misschien is zoiets een idee?
:strip_exif()/f/image/D9wkUu0icTgsYHBSQ5VFOqYR.jpg?f=fotoalbum_large)
:strip_exif()/f/image/BhImBvSqKA5wkdwhK0TyOStV.jpg?f=fotoalbum_large)
Ook hier zit je aan onpraktischheden maar misschien even heel iets anders voor de inspiratie
Zou hou je wel de doorlopende hal alleen met de deur een kwartslag gedraait. We hebben zelf gewoond in een woning met opentrap naar boven. Nooit heel veel last van gehad maar wij hadden geen rekening te hoeven houden met kinderen, maar als mijn vriend een potje call of duty speelde op de PS4 damn, dan hoorde ik de knallen ook in de slaapkamer
Wat een mooie ruime woning is dat zeg! zeker met je aanbouw heb je heel erg veel ruimte zo in je woonkamer/keuken. Ik vind je ontwerp zeker niet verkeerd, ik vraag me alleen wel af of het niet een beetje geprak wordt in je erker om daar nog een tafel in te "prakken" en daarnaast dan ook nog een koffiecorner?
Ik zie dat niet zo goed in hoe je aan je eettafel gaat zitten.
Het jammere aan je erker is dat hij niet heel symmetrisch in het midden zit van de ruimte naast de hal. Hierdoor wordt het je een beetje onmogelijk gemaakt iets in het midden te plaatsen en nog genoeg loopruimte over te houden.
Ik weet niet of jullie van de kookeilanden zijn en hoeveel waarde je hecht aan je trapkast maar misschien is zoiets een idee?
:strip_exif()/f/image/D9wkUu0icTgsYHBSQ5VFOqYR.jpg?f=fotoalbum_large)
:strip_exif()/f/image/BhImBvSqKA5wkdwhK0TyOStV.jpg?f=fotoalbum_large)
Ook hier zit je aan onpraktischheden maar misschien even heel iets anders voor de inspiratie
Zou hou je wel de doorlopende hal alleen met de deur een kwartslag gedraait. We hebben zelf gewoond in een woning met opentrap naar boven. Nooit heel veel last van gehad maar wij hadden geen rekening te hoeven houden met kinderen, maar als mijn vriend een potje call of duty speelde op de PS4 damn, dan hoorde ik de knallen ook in de slaapkamer
Ik heb een vergelijkbare indeling en heb vorig jaar de hal verlengd tot voorbij de trap. Dat had ik echt 15 jaar eerder moeten doen. Wat een verschil! Het scheelt in de tocht/warmte en geluid, het geeft meer ruimte in de keuken en ook meer ruimte in de gang. De ruimte die ik dacht te moeten inleveren in de kamer, mis ik helemaal niet. Die m2 is toch vooral loopruimte naar/van trap en hal. Dus ik kan het je enorm aanraden, zeker als het een optie bij de bouw is.MintyDoerak schreef op zaterdag 28 augustus 2021 @ 21:49:
Waar twijfelen we nog over:
- het wel of niet verkorten van de hal/entree. Voordeel van een kleinere hal is dat er meer ruimte rondom het eiland zal zijn. Nadeel is dat we dan een kortere wand hebben in de keuken (vb. voor plaatsen van een 'coffeecorner') en dat de trap in de woonkamer/keuken komt (en als gevol geur en geluid naar boven)
Wat ik vooral verrassend vond: door de langere wand in de keuken voelde de keuken ineens heel veel groter en oogde meer als een aparte keuken.
PS: waar jouw eiland is ingetekend, staat bij mij eetkamertafel. Voldoende ruimte om eromheen te lopen.
Ik vind de ronde tafel in de erker daar niet helemaal passen. Je zou een bar aan die kant van de keuken kunnen maken waar je aan beide zijden kunt zitten. En dan een eiland met stoelen of een grote eettafel waar je nu het eiland hebt gepland?
[ Voor 14% gewijzigd door Toke_gt op 29-08-2021 09:57 ]
Iemand ervaring met greeplijst verlichting van Nobilia? ziet er wel mooi maar kan nergens prijsinfo vinden, wil het wel overwegen maar het moet niet uit verhouding duur zijn.
PSN: Wanderer200 | Switch: Wanderer
Voordat onze nieuwe keuken geplaatst wordt moeten er wat werkzaamheden worden uitgevoerd voor het (ver)plaatsen van stopcontacten. Wij hebben de volgende offerte ontvangen van de monteur. Kan iemand aangeven of dit fatsoenlijke prijzen zijn?
Members only:
Alleen zichtbaar voor ingelogde gebruikers.
Inloggen
Heeft er iemand ook ervaring met een keuken upgrade?
Wij hebben een huis gekocht, de keuken die erin zit is nog wel prima maar we zouden toch graag gasfornuis vervangen voor inductie, andere oven en eventueel andere kleur kastjes?
Kent iemand een goed adresje regio Brabant (Breda).
Van de week al eens wezen zoeken bij BBC en andere boeren voor inductieplaat en oven die zou ik eventueel ook zelf kunnen installeren. (Perilex aansluiten wordt al voorbereid). Gasfornuis is wel 90 cm breed, dus moet wel een grote inductie plaat bestellen hahaha.
Wij hebben een huis gekocht, de keuken die erin zit is nog wel prima maar we zouden toch graag gasfornuis vervangen voor inductie, andere oven en eventueel andere kleur kastjes?
Kent iemand een goed adresje regio Brabant (Breda).
Van de week al eens wezen zoeken bij BBC en andere boeren voor inductieplaat en oven die zou ik eventueel ook zelf kunnen installeren. (Perilex aansluiten wordt al voorbereid). Gasfornuis is wel 90 cm breed, dus moet wel een grote inductie plaat bestellen hahaha.
Leuk bedacht! Het opofferen van de trapkast is een idee waar ik nog niet aan had gedacht. Ben zelf wel gecharmeerd van jouw opstelling maar mijn partner heeft liever de keuken nog een beetje gescheiden van de woonkamer.Aurum schreef op zaterdag 28 augustus 2021 @ 23:36:
@MintyDoerak
Wat een mooie ruime woning is dat zeg! zeker met je aanbouw heb je heel erg veel ruimte zo in je woonkamer/keuken. Ik vind je ontwerp zeker niet verkeerd, ik vraag me alleen wel af of het niet een beetje geprak wordt in je erker om daar nog een tafel in te "prakken" en daarnaast dan ook nog een koffiecorner?
Ik zie dat niet zo goed in hoe je aan je eettafel gaat zitten.
Het jammere aan je erker is dat hij niet heel symmetrisch in het midden zit van de ruimte naast de hal. Hierdoor wordt het je een beetje onmogelijk gemaakt iets in het midden te plaatsen en nog genoeg loopruimte over te houden.
Ik weet niet of jullie van de kookeilanden zijn en hoeveel waarde je hecht aan je trapkast maar misschien is zoiets een idee?
[Afbeelding]
[Afbeelding]
Ook hier zit je aan onpraktischheden maar misschien even heel iets anders voor de inspiratie
Zou hou je wel de doorlopende hal alleen met de deur een kwartslag gedraait. We hebben zelf gewoond in een woning met opentrap naar boven. Nooit heel veel last van gehad maar wij hadden geen rekening te hoeven houden met kinderen, maar als mijn vriend een potje call of duty speelde op de PS4 damn, dan hoorde ik de knallen ook in de slaapkamer
Over de hal/entree zijn we er nu wel uit, blijft verlengd (wat de standaard is in ons project).
Verder kom ik na wat puzzelen tot een tussenoplossing: 2 hoge kasten naar de overkant met daarnaast nog een lage kast/nis. Boven de spoelkant komt een bovenkast ivm 1 hoge kast die wegvalt. Ruimte wat overblijft tussen beide kanten is 1.8m. Zo houden we ruimte genoeg aan de voorzijde.
![]() | ![]() |
Het is even extra lastig omdat wij deze week onze keuzes moeten doorgeven. We dacht er redelijk over uit te zijn maar schieten toch zo weer in de (keuze)stress. Leuk he
Dj-sannieboy schreef op zondag 29 augustus 2021 @ 12:10:
Voordat onze nieuwe keuken geplaatst wordt moeten er wat werkzaamheden worden uitgevoerd voor het (ver)plaatsen van stopcontacten. Wij hebben de volgende offerte ontvangen van de monteur. Kan iemand aangeven of dit fatsoenlijke prijzen zijn?
***members only***
Members only:
Alleen zichtbaar voor ingelogde gebruikers.
Inloggen
[ Voor 10% gewijzigd door MintyDoerak op 29-08-2021 14:16 . Reden: Reactie op Dj-sannieboy toegevoegd ]
Leuke oplossing zo![b]kubi55 schreef op zondag 29 augustus 2021 @ 14:08:[/
Het is even extra lastig omdat wij deze week onze keuzes moeten doorgeven.
Kijk nog wel even goed naar de lichtinval. Door die hoge kasten komt er minder licht binnen. Dat is op zich niet erg, maar wel als deze zijde van het huis op zuid (zuidoost of zuidwest) ligt. Je krijgt vanaf de andere kant weinig zonlicht binnen (zeker in winter), dat is het nadeel van lange kamer (tenzij daar lichtstraatje of zo in komt?).
@MintyDoerak
Dankjewel! Ik vind jullie tussenoplossing echt heel goed passen in combinatie met de ruimte zo
heb je de ruimte bij je eettafel en evengoed een grote keuken met genoeg werkruimte en beweegruimte.
Dankjewel! Ik vind jullie tussenoplossing echt heel goed passen in combinatie met de ruimte zo
@MintyDoerak Ik denk dat het erg krap wordt in die erker en rondom de eettafel. Zou in je plannen dan ook wel rekening houden met de optie om dit uiteindelijk anders in te kunnen delen. Ook van de hoge kasten aan de halzijde zou ik zelf niet zo gecharmeerd zijn i.v.m. de zichtlijn en ik zou zorgen hebben over de lichtinval.
Nog wat mogelijke alternatieven:
Als de indeling van het huis gelijk moet blijven dan zou ik puur op de plattegrond zeggen: maak een mooie ruime parallelopstelling richting de erker en dan een eettafel ca. op de plek waar nu het schiereiland ingetekend staat.
Als er per se een eiland in moet zou ik geneigd zijn om woonkamer en keuken te wisselen.
Nog wat mogelijke alternatieven:
Als de indeling van het huis gelijk moet blijven dan zou ik puur op de plattegrond zeggen: maak een mooie ruime parallelopstelling richting de erker en dan een eettafel ca. op de plek waar nu het schiereiland ingetekend staat.
Als er per se een eiland in moet zou ik geneigd zijn om woonkamer en keuken te wisselen.
@MintyDoerak Zo op tekening lijkt het me ook extreem krap bij de eettafel.
Ik heb even wat in elkaar proberen te zetten in een online keukenplanner voor het idee.
:strip_exif()/f/image/HVqo958c1sv0JkCWCPQFBoGr.jpg?f=fotoalbum_medium)
:strip_exif()/f/image/dQX5gYuAz8NgUlvEVnmuExWy.jpg?f=fotoalbum_medium)
:strip_exif()/f/image/ia1gerduScIKPcbKSCpi4MlQ.jpg?f=fotoalbum_medium)
:strip_exif()/f/image/nB2jzeiSptUG0p6JsyzdL2Mf.jpg?f=fotoalbum_medium)
Met name de 2 ramen in de hoek zijn vrij lastig. Onderzijde van deze kozijnen zitten onder hoogte keukenblad. We willen in de hoek daar wel een blad maken, zelfde als het keukenblad. Om koffiezetapparaat kwijt te kunnen enzo.
Voor het beeld nog even een foto van de huidige keuken.
[ Voor 15% gewijzigd door BeaM-R op 29-08-2021 20:17 ]
Skoda Enyaq iV60 Sportline * Toyota Aygo X * Fendt 510TF Joker * Honwave 35AE met Honda BF20
Ik zit zelf ook nog even te Floorplanner-en en ik vroeg me nog even af wat jullie hanteren voor een (schier)eiland met een bar/zitplek eraan: spoelbak of kookplaat het dichtst bij? Of in geval je ze niet op hetzelfde stuk hebt zitten, kook of spoel je dan met je rug naar je gasten?
Zoals je in de renders hierboven ergens kunt zien heb en wij gekozen voor spoelen in het eiland. Groente ed schoonmaken en snijden kost mij meer tijd dan het uiteindelijke koken, vooral omdat je niet constant in de pannen staat te roeren. Ook na het eten schuif je dan zo je vuile vaat het eiland op om af te spoelen.Stalensnuitje schreef op zondag 29 augustus 2021 @ 20:18:
Ik zit zelf ook nog even te Floorplanner-en en ik vroeg me nog even af wat jullie hanteren voor een (schier)eiland met een bar/zitplek eraan: spoelbak of kookplaat het dichtst bij? Of in geval je ze niet op hetzelfde stuk hebt zitten, kook of spoel je dan met je rug naar je gasten?
PSN: Wanderer200 | Switch: Wanderer
Voor ons juist het tegenovergestelde van @Chaoss. Koken dmv een Bora op het schiereiland, richting eettafel/tuin/woonkamer. Vinden wij juist gezelliger. Als er mensen komen eten bereiden wij e.e.a. al wel voor zodat er ook niet meer zoveel gesneden hoeft te worden, we zijn ook niet van het urenlang bereiden en koken overigens.Stalensnuitje schreef op zondag 29 augustus 2021 @ 20:18:
Ik zit zelf ook nog even te Floorplanner-en en ik vroeg me nog even af wat jullie hanteren voor een (schier)eiland met een bar/zitplek eraan: spoelbak of kookplaat het dichtst bij? Of in geval je ze niet op hetzelfde stuk hebt zitten, kook of spoel je dan met je rug naar je gasten?
Snijden kan na het afspoelen (als dat al nodig is) ook gewoon naast de kookplaat natuurlijk
Vieze vaat op het eiland zou voor mij een doorn in het oog zijn. Die heb ik liever aan de andere zijde, tegen de muur. Soms heb je geen tijd of zin om alles meteen af te spoelen en/of in de vaatwasser te zetten namelijk.
Het is echt je eigen persoonlijke voorkeur, zoveel mensen zoveel wensen.
[ Voor 21% gewijzigd door remzor op 29-08-2021 22:12 ]
Paar reacties (van mij) terug kun je lezen dat ik dezelfde keuze gemaakt hebt als @Chaoss: Spoelen op eiland en koken doen we tegen de muurStalensnuitje schreef op zondag 29 augustus 2021 @ 20:18:
Ik zit zelf ook nog even te Floorplanner-en en ik vroeg me nog even af wat jullie hanteren voor een (schier)eiland met een bar/zitplek eraan: spoelbak of kookplaat het dichtst bij? Of in geval je ze niet op hetzelfde stuk hebt zitten, kook of spoel je dan met je rug naar je gasten?
- Meeste tijd gaat zitten in voorbereiding en niet in het bereiden
- Gasten helpen juist vaak met voorbereiding of we maken bv samen pizza als er kinderen bij het bezoek zijn.
- Ook is het vast een beetje inspelen op de toekomst waarbij onze kinderen na school in de (leef)keuken zijn en er tegelijkertijd het eten wordt (voor)bereid. Dan wil je graag contact houden.
- Dat de vaat op het eiland komt dwingt juist tot snel afwassen / in de vaatwasser zetten. Daardoor blijft de keuken een stuk netter bij ons.
Het is prijzig, zo’n 6 tot 700 euro. Maar wellicht werkt de winkel met een blokkorting van Nobilia en kun je ‘m bijna gratis mee bestellen.Chaoss schreef op zondag 29 augustus 2021 @ 12:09:
Iemand ervaring met greeplijst verlichting van Nobilia? ziet er wel mooi maar kan nergens prijsinfo vinden, wil het wel overwegen maar het moet niet uit verhouding duur zijn.
Edit: yep, winkel werkt met blok verrekening, want de apparatuur komt ook bij Nobilia vandaan zie ik.
[ Voor 10% gewijzigd door Barry|IA op 29-08-2021 23:13 ]
“Nothing changed since the 70s. Nothing. Except people train not that hard”. - Tom Platz
@StalensnuitjeHier ook hetzelfde als bij @remzor: koken op het eiland, spoelen tegen de wand. Wij willen alle vuile vaat en nattigheid aan de muurkant houden. Maar het eiland zelf is verder groot genoeg om zowel te snijden als de koken. Dus we kunnen vrijwel altijd in contact staan met gasten wanneer we dat willen. De afwas doen we wel als ze weg zijn en we kijken liever ook niet zelf tegen die vaat aan vanaf de tafel.
In ons huidige huis hebben we dit ook en het bevalt zeer goed. Maar zoals je ziet, iedereen maakt een eigen valide overweging hierin.
In ons huidige huis hebben we dit ook en het bevalt zeer goed. Maar zoals je ziet, iedereen maakt een eigen valide overweging hierin.
Weet iemand of je zonder problemen kan staan op een composiet werkblad van 20mm? We moeten binnenkort een koof maken en op het werkblad staan is wel het makkelijkst.
@banaliteit of het nou zou kunnen of niet, ik zou het zelf denk ik alsnog niet doen. Ons composietblad kost 500 per lengtemeter dus dan zou ik het risico niet willen lopen. Ook al zou het kunnen, dan nog zal je geen enkele aanspraak kunnen maken op garantie dus ben je zo een paar duizend euro verder.
Bij laminaat/kunststof zou ik het nog wel doen.
Bij laminaat/kunststof zou ik het nog wel doen.
Let op:
Dit topic kan gebruikt worden voor het volgende:
• Vragen over de keuken, denkend aan indeling, materialen, kastjes, apparatuur, etc.
• Welke kastjes, aanrechtbladen en apparatuur te kiezen
• Ervaringen met verkopers en keukenboeren
• Tips & Tricks denk hierbij aan hulp bij het zelf installeren en onderhouden van de keuken.
• Jouw indeling. Plaats gerust een foto of tekening, maar maak het niet te bont met hele buildlogs.
Voor badkamers: Het Badkamer topic: verkopers, kwaliteit, prijs - Deel 1
Showen met je keuken kan hier: Tweakers Keuken showroom! - Vestiging 1
Dit topic kan gebruikt worden voor het volgende:
• Vragen over de keuken, denkend aan indeling, materialen, kastjes, apparatuur, etc.
• Welke kastjes, aanrechtbladen en apparatuur te kiezen
• Ervaringen met verkopers en keukenboeren
• Tips & Tricks denk hierbij aan hulp bij het zelf installeren en onderhouden van de keuken.
• Jouw indeling. Plaats gerust een foto of tekening, maar maak het niet te bont met hele buildlogs.
Voor badkamers: Het Badkamer topic: verkopers, kwaliteit, prijs - Deel 1
Showen met je keuken kan hier: Tweakers Keuken showroom! - Vestiging 1
:strip_exif()/f/image/lFkOKoKEw5pYaFYuQqhwmWt9.jpg?f=fotoalbum_tile)
:strip_exif()/f/image/xPX216oQfnVP7cKJ3fXtWBNU.jpg?f=fotoalbum_tile)
:strip_exif()/f/image/CvtastReFI9RJ4hDsrjkuBXg.jpg?f=fotoalbum_tile)
:strip_exif()/f/image/s6M46nMtxtGgxECx82fCLCfV.jpg?f=fotoalbum_tile)