Ongeveer twee maanden geleden hebben wij het koopcontract getekend van onze project nieuwbouw woning. En hiervoor zijn wij ook opzoek naar een mooie bijpassende keuken.
Het nieuwbouwproject heeft een uitgekozen keukenleverancier voor de keuken. Als wij via deze keukenleverancier bestellen krijgen wij verschillende kleine kortingen:
- Geen kosten verplaatsen aansluitingen op de zelfde muur
- Geen 450 euro kosten voor het beoordelen van de installatie tekening
- Kleine korting op extra groepen. (die je wel nodig bent, want standaard heeft de oven geen aansluiting...)
Ergens anders bestellen is ook mogelijk met dus minimaal €450 extra kosten. En dan nog alle aansluitingen.
Om toch een goed idee te krijgen of die keukenleverancier nog wel redelijk geprijsd is zijn wij bij in totaal 3 zaken langs gegaan:
- Project keukenleverancier
- Superkeukens
- Plaatselijke lokale keukenzaak
Van de plaatselijke keukenzaak is de offerte nog niet klaar. En bij superkeukens moeten wij nog wat apparatuur aanpassen naar onze wensen. Maar ik zou al graag jullie mening willen over de offerte van de project leverancier.
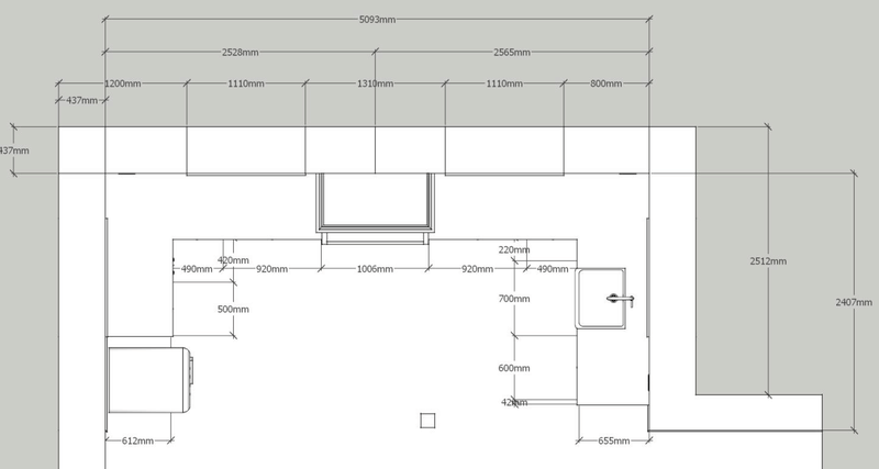
Project leverancier
Indeling:
/f/image/lmrsOWXppGktsIiaaEHYMIMo.png?f=fotoalbum_large)
Grafisch:
/f/image/ywTD5aDZPLlaj1rx7oPwyZlC.png?f=fotoalbum_large)
(Tafel en stoeltjes is alleen voor sfeer, Zit niet bij de offerte

)
Het gaat hier om een keuken met de volgende eigenschappen:
* Uitvoering: Novitelli LASSO Laser soft (Hacker als ik het goed begrepen had)
* Kleur: Laser Soft GL polarwit (G245) en Laser soft GL ultramat (G195)
* Plinthoogte: 17 CM
* Korpushoogte: 721 MM
Werkblad op het eiland: Fenix 20mm classic angola
Werkblad achterwand: Kunststof hout look (AP130?) (helaas geen echt type nummer op de offerte...)
Apparatuur hebben wij wel een dure smaak:
- Siemens combi oven HM876G0B6 (IQ700)
- Siemens inductie kookplaat EH877BE15E (IQ300)
- Siemens koelkast KI81FSDE0 (IQ700)
- Siemens vriezer GI31NACE0 (IQ500)
- Siemens vaatwasser SN63E800BE(IQ300)
- Quooker COMBI+
En dit alles komt uit op:
Members only:
Alleen zichtbaar voor ingelogde gebruikers.
Inloggen
Deze prijs is dan nog exclusief de koof
Volgens mij ben ik er via dit topic al achter gekomen dat dit type keuken een Hacker Classic keuken is. Dit omdat de korpus hoogte 721MM is. Kan iemand dit bevestigen?
De project leverancier kan/wil ook geen BORA leveren omdat zij het niet eens zijn met hoe BORA de afzuiging regelt. Volgens de project leverancier verspreid de BORA de lucht tegen de achterkant van de kasten aan en geeft dat na verloop van tijd "rotte" achterwanden omdat de lucht vochtig is.

Ik wou eigenlijk graag een BORA hebben ivm met de bewezen kwaliteit. Weet iemand in hoeverre het verhaal van de leverancier op waarheid berust?
Mijn eigen gevoel zegt dat de prijs flink te hoog is. Zeker als het een Hacker Classic keuken is. Wat is jullie mening hier over?
Superkeukens
Bij superkeukens gaat het om het volgende type meubel:
* Uitvoering: FMA Franchetti mat (Schuller volgens mij?)
* Kleur: L187U Onyxzwart en L092U Kristalwit mat
* Plinthoogte: 10 CM
* Korpushoogte: 780 MM
Hoe verhoudt dit type keuken zich met de eerder genoemde Hacker Classic? Is dit van de zelfde kwaliteit?
Algemene opmerkingen over onze keuzes zijn ofc ook welkom