Ook ik kom me melden in dit topic

.
Allereerst, wat blijft het een boeverij met keukens en de bijbehorende appratuur. Het is gewoon bizar dat je eigenlijk niet eenvoudig gewoon eens kunt vergelijken wat apparatuur kost van Merk X, om het te vergelijken met Merk Y.
We zijn uiteindelijk al even bezig met een leverancier (kleine specialist) met een keuken. We zijn qua ontwerp nu uiteindelijk waar we beide willen zijn, maar qua prijs zijn we er nog niet helemaal.
Makkelijkste gegeven is dat het plaatsen € 2400 zal zijn.
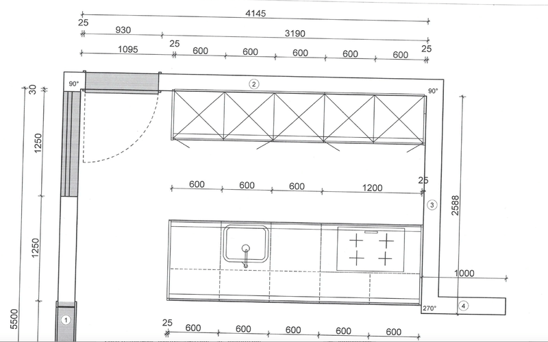
Dan nu de keuken, we hebben een kastenwand, inclusief nis en een eiland.
Kasten wand is 4,6 meter, eiland is 3,2 meter bij 90.
Het zijn uiteindelijk 5 hoge kasten, waarin in 1 kast een koelkast zit met kleine vriezer en in 1 kast zullen 2 ovens komen. In de nis zitten 4 laden van 80 cm breed.
In het eiland zitten 4 laden van 1 meter, waarbij er in 1 lade een extra binnenlade zit. Verder zitten er 2 kastjes van 60cm onder (1 met de vaatwasser en 1 onder de spoelbak (grote en kleine bak).
Op het plaatje klopt overigens niet alles - de ovens zijn daar nog van Siemens.
Prijs is 25.800, waarbij we dan nog de volgende apparatuur hebben:
Quooker Combi+ 7 liter RVS
Quooker Nordic zeeppomp
Neff B57VS22G0 - Oven met added steam (niet volledig stoom)
Neff C27MS22G0 - Combi magnetron
Neff KI2826DE0 - Hoge koelkast met klein vriesvak
Neff S257ZB800E - Vaatwasser, hoogmodel inclusief besteklade
Bora Pure kookplaat inclusief afzuiging
Werkblad is een Jetstone keramiek werkblad (Ardoise Grey satin (zowel op het eiland als in de nis).
Waarom hebben we gekozen voor Neff? Ik vind de Graphite Grey kleur erg mooi, daarnaast is het zo dat als de apparaten boven elkaar geplaatst worden dat er dan een mooie lijst omheen gemaakt kan worden waardoor het helemaal 1 geheel lijkt.
Verder ben ik vrij kansloos in het bepalen van de keuken apparatuur. Als ik eindeloos geld had, zou ik gewoon van alles het duurste \ beste kiezen. Klaar. Maar, dat heb ik helaas niet

.
Dus qua koelkast en vaatwasser ben ik er wel uit, maar dan de ovens en de kookplaat nog...
Kookplaat willen we minimaal een Bora Pure. Maar ja... De X Pure heeft toch wel weer die mooie koppelbare zones en is iets breder. Maar goed, scheelt ook zomaar weer €900.
Maar dan (voor mij) de allergrootste horror - De ovens. We willen sowieso 1 grote oven en 1 kleine oven met magnetron functie. Ondanks dat ik hier op Tweakers.net zit, geef ik minder om het connected verhaal (al hebben vrijwel alle Neff apparaten dit wel).
Uiteindelijk heb ik hier gekozen voor:Neff B57VS22G0 (Oven met added steam (niet volledig stoom)) & Neff C27MS22G0.
Sowieso moeten beide apparaten matchen qua display type (in dit geval 4,1"), anders krijg ik kortsluiting. Beide modellen hebben de Pyrolitische zelfreiniging (vind ik een mooi voordeel) en het 2,5" display vind ik gewoon minder fraai.
Maak ik echter de over stap naar de B47FS22G0 (ipv B57, volledig stoom) en zou ik ook overstappen naar de C17MS22G0 (ipv C27, geen pyrolitische zelfreiniging meer) dan scheelt dit €120 (netto).
De kleine oven zal overigens met name worden gebruikt als magnetron en eventueel voor het warmhouden van borden. Dus het is minder erg dat er daar geen pyrolitische reiniging op zit, de stoomoven (volledig) heeft sowieso deze functie niet.
Ga ik nog verder terug (minder luxe added steam oven) en een nog eenvoudigere magnetron (geen eenvoudige reiniging) met beide een 2,5" scherm dan zou het nog wel € 650 kunnen schelen.
Anders optie is nog bekijken of het van Siemens of Bosch voordeliger kan, maar uiteindelijk vind ik ook het uiterlijk van de Neff gewoon wat mooier, samen met de Slide en Hide én de module word ik daar net enthousiaster van.
Wat zijn jullie gedachten over de keuken, de apparatuur en de prijs?
[
Voor 15% gewijzigd door
fredkroket op 25-04-2021 16:53
]