Wij hebben sinds 3 weken de sleutel van ons huis en de bestaande keuken is ons niet bevallen.
Daarom zijn we nu bij een viertal zaken geweest.
- Matzwart en greeploos
- Het ontwerp is bij elke keukenboer hetzelfde.
- Dezelfde apparatuur (Siemens koel/vries, vaatwassser, oven/magnetron 60cm, Quooker kraan en Bora Pure)
Offertes variëren van € 18.500 tot 23.000.
Punto X13, B merk van Rotpunkt | 8868 Argos White gepolijst | 19mm paneel
Rotpunkt 2515 Z18 HPL XT | Calacatta Gold Polished 2cm | 19mm paneel
Ballerina keuken | Dekton Aura blad 2cm | 16mm paneel
Ballerina keuken | Dekton Aura blad 3cm | 16mm paneel
Kan iemand mij iets vertellen hoe de merken tegenover elkaar staan? De Rotpunkt en Punto X13 (dochter van) zijn iets dikker uitgevoerd.
/f/image/sEhMaMjoA9r3RUHfvs3d9JtX.png?f=fotoalbum_large)
Daarom zijn we nu bij een viertal zaken geweest.
- Matzwart en greeploos
- Het ontwerp is bij elke keukenboer hetzelfde.
- Dezelfde apparatuur (Siemens koel/vries, vaatwassser, oven/magnetron 60cm, Quooker kraan en Bora Pure)
Offertes variëren van € 18.500 tot 23.000.
Punto X13, B merk van Rotpunkt | 8868 Argos White gepolijst | 19mm paneel
Rotpunkt 2515 Z18 HPL XT | Calacatta Gold Polished 2cm | 19mm paneel
Ballerina keuken | Dekton Aura blad 2cm | 16mm paneel
Ballerina keuken | Dekton Aura blad 3cm | 16mm paneel
Kan iemand mij iets vertellen hoe de merken tegenover elkaar staan? De Rotpunkt en Punto X13 (dochter van) zijn iets dikker uitgevoerd.
/f/image/sEhMaMjoA9r3RUHfvs3d9JtX.png?f=fotoalbum_large)
[ Voor 25% gewijzigd door Acradavos op 15-04-2021 15:02 ]
PV 7,82 kWp (Enphase IQ7+ 6x Jinko N-Type 370 Watt / 14x Jinko P-Type 400 Watt)
:strip_exif()/f/image/pk7yqlh6A6CWaK9mBQqCmfID.jpg?f=fotoalbum_large)
:strip_exif()/f/image/0SriwATnACLca90B7BUWMips.jpg?f=fotoalbum_large)
:no_upscale():strip_icc():fill(white):strip_exif()/f/image/z0wJsBz6VbUZPx6U9JrML2qZ.jpg?f=user_large)
:strip_exif()/f/image/Nrg1BdHqtQaoi0y7JNkkaG15.jpg?f=fotoalbum_large)
:strip_exif()/f/image/MJ5pPw9o1tZEeym4HtCtnoYz.jpg?f=fotoalbum_large)
:strip_exif()/f/image/4UY58JlFVx7oaydbnxd50Oem.jpg?f=fotoalbum_large)
:strip_exif()/f/image/jEmJrqUN6HXJefE3SmYTNvtz.jpg?f=fotoalbum_large)
dit is de offerte welke wij meekregen naar huis. Je ziet daar een bedrag voor apparatuur staan , die 11000 is ongeveer het bedrag als je de adviesprijs rekent.
En deze kreeg ik vanmiddag.
:strip_exif()/f/image/ELpWEhajUzzsAvm51gf1CgHs.jpg?f=fotoalbum_tile)
:strip_exif()/f/image/8E9ZgnIQX8z5tYm0M4alc5uJ.jpg?f=fotoalbum_tile)
:strip_exif()/f/image/4mzGOSMbzN64npsYoc1A2dRH.jpg?f=fotoalbum_tile)
:strip_exif()/f/image/vz0Jt4A2eErZz1xw0zPbaYdz.jpg?f=fotoalbum_tile)
:strip_exif()/f/image/zldAyLtaGo1owEkjg9raeewp.jpg?f=fotoalbum_tile)
:strip_exif()/f/image/DLhAXxjrGzaSRa64TCJpdN3C.jpg?f=fotoalbum_tile)
:strip_exif()/f/image/ipsLnJATPIXg326IZo0WCq14.jpg?f=fotoalbum_large)
/f/image/tIhaQftk4PDwJMyh0v3sHZZN.png?f=fotoalbum_large)
:strip_exif()/f/image/o9rsdhgik4YmUm7eJXBfHFOd.jpg?f=fotoalbum_large)
:fill(white):strip_exif()/f/image/JZts2xgEPdFUIjNn3yvaMzqK.png?f=user_large)
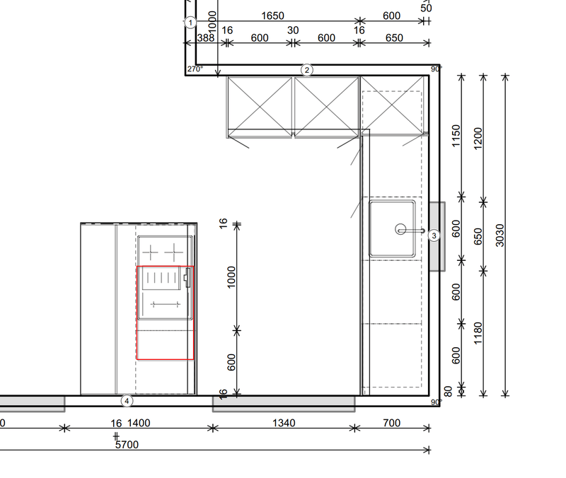
/f/image/jUfDlVMZtqXMZY3nla6jSo5L.png?f=fotoalbum_large)
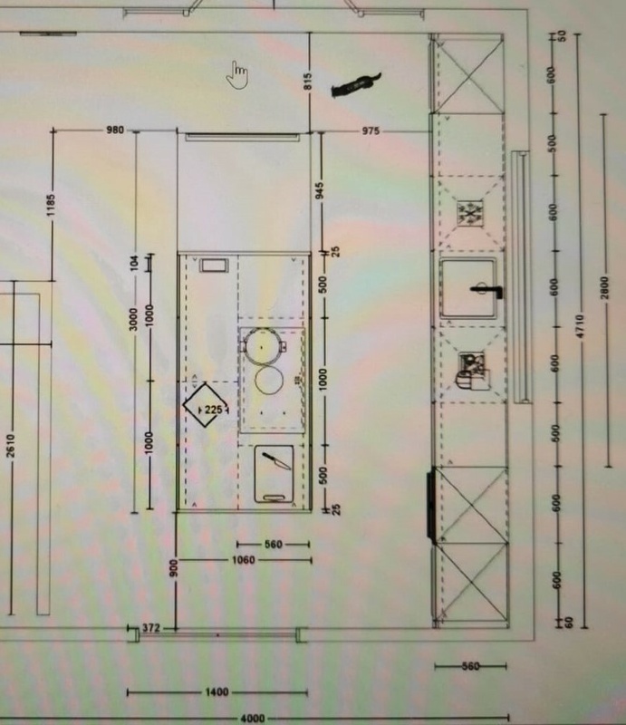
/f/image/BZePxy20zBrigHwbUks6VWZO.png?f=fotoalbum_large)
:strip_exif()/f/image/DqZjehS4SVDca6UrEAEkvobE.jpg?f=fotoalbum_large)
:no_upscale():strip_icc():fill(white):strip_exif()/f/image/WvEgoMMGHsVt8kjoyDhNPLXC.jpg?f=user_large)
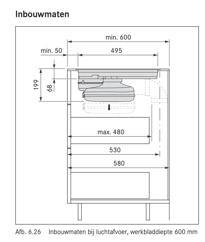
/f/image/GVzHvBWQIkk0bKAyUkAhRCib.png?f=fotoalbum_large)
/f/image/qUeYHLlj52iQvd9lkKbkc0Sg.png?f=fotoalbum_tile)
/f/image/WOxNHOYXR5WFHyzCjkuLVi3O.png?f=fotoalbum_tile)
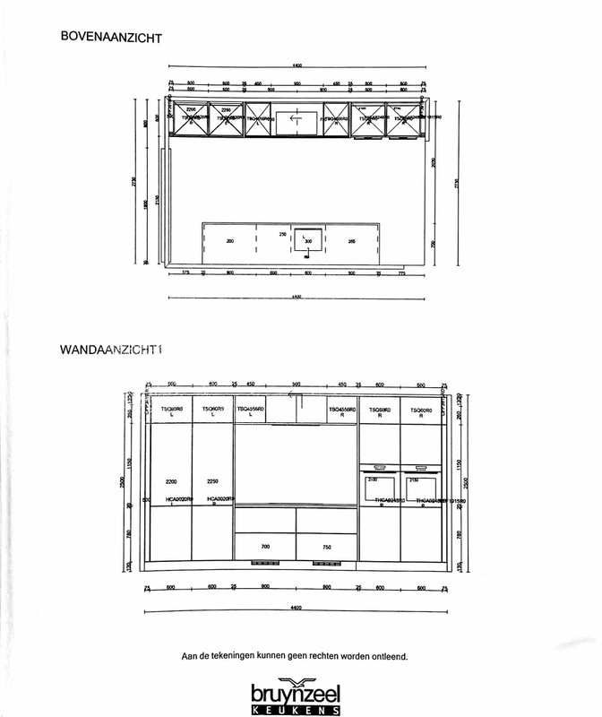
/f/image/Ja9U3KnitkWmOLOqEOmL8iaW.png?f=fotoalbum_large)
/f/image/i39XvTnnYYUUcomzbkOtSQCm.png?f=fotoalbum_large)
/f/image/LcjbWhZq31Mg7xwUeLLxby1W.png?f=fotoalbum_large)
/f/image/bNv2kZLHkOd7JtRbk92nxnrp.png?f=fotoalbum_large)
