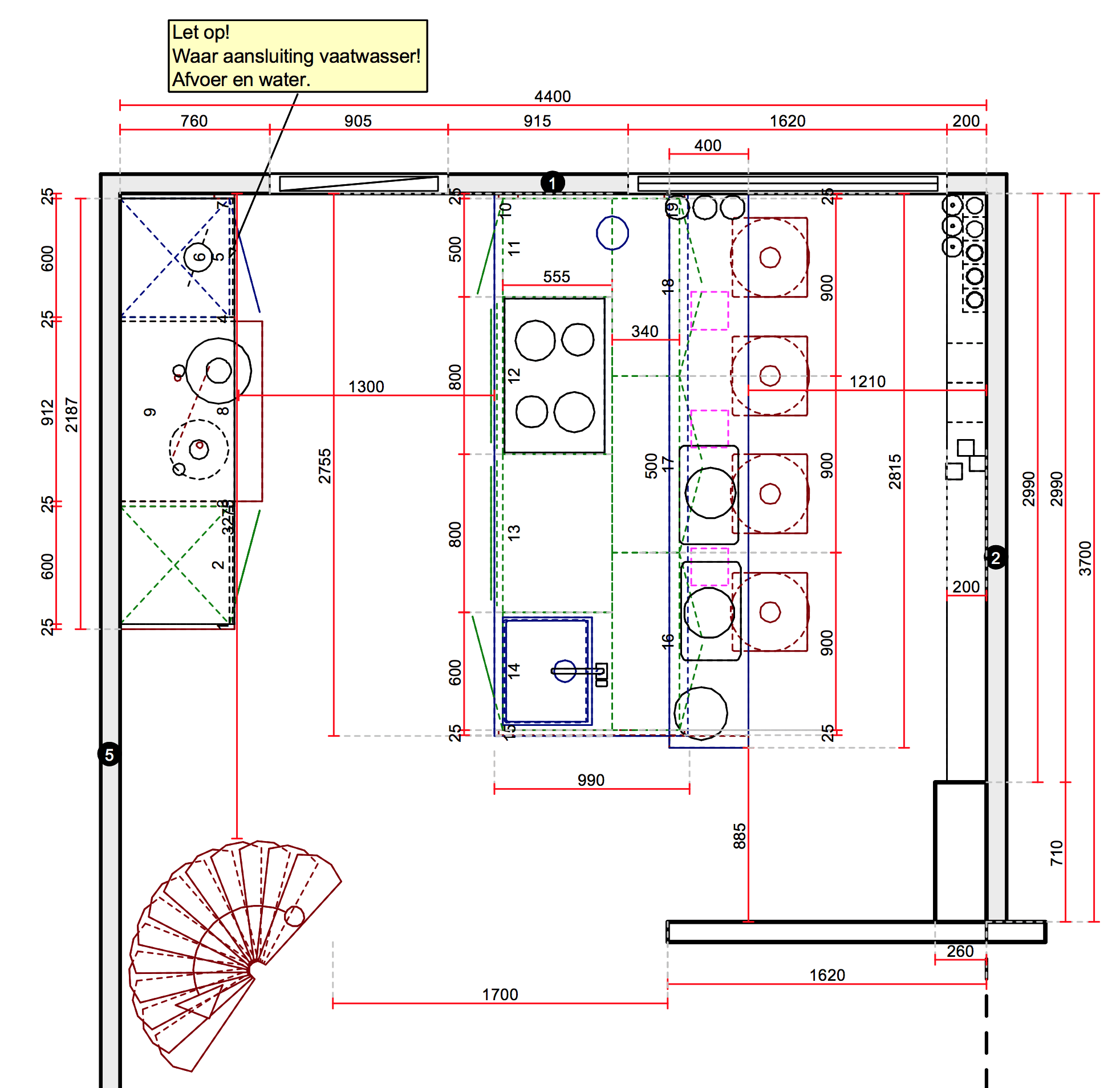
Is dat raar? Volgens mij heeft ie het over de hard-geanodiseerde pannen, best wel goeie shizzle (van horen zeggen).
Hoe zit het met het verhaal dat als je geen vlakke, rechte bodem hebt, je pannen gaan draaien en daarmee je plaat beschadigen? (Los van dat draaiende pannen best irritant zijn.)Z___Z schreef op donderdag 3 augustus 2017 @ 08:13:
Is niet echt on topic, maar aluminium pannen hebben dus die dikke bodem omdat daar een plaat in zit die magnetisch is en daarom werkt op inductie.
Inductie heeft juist geen contact nodig en werkt daarom heel goed met kromme pannen. Contact is juist nodig bij keramisch omdat daar de hitte via contact wordt overgebracht van de kookplaat naar de pan. Inductie werkt contactloos. Je kan bijvoorbeeld een theedoek tussen je pan en kookplaat neerleggen en de pan wordt nog steeds net zo snel warm.
Wij gaan ook over op inductie en denken er aan alle pannen te vervangen, inclusief onze moka pot maar als het niet nodig is...
Ná Scaoll. - Don’t Panic.
@unezra als je pan nog recht blijft staan op het aanrecht dan zal hij ook wel blijven staan een inductieplaat. Als hij rond tolt op het aanrecht is het sowieso tijd om de pan te vervangen. De pan zal dan waarschijnlijk ook niet lekker blijven staan op de pandragers van een gasfornuis. Pannen die je wel moet vervangen zijn dus (goedkope) aluminium pannen die niet geschikt zijn voor inductie. Het is makkelijk te testen door een koelkastmagneet aan de onderkant te houden. Blijft hij plakken dan geschikt voor inductie, blijft hij niet of slecht plakken, dan gaat hij slecht of niet werken.
Wat een heerlijk topic dit! Wij zijn bezig met het uitzoeken van onze 4e keuken! In de loop van de jaren best wat ervaring dus opgedaan.Onze 1e keuken kwam van Ikea, qua prijs en garantie denk nog de beste aanschaf ooit. Maar alle kastjes moesten destijds vermaakt worden om alles passend te krijgen (dennk bijv dat al hun kasten tot de muur lopen ;-), weet niet of dat nog zo is, en een 90cm kookplaat niet past (geen 90cm brede kasten) Ikea is duidelijk en top wbt garantie. Ook de kasten zijn prima. 2e keuken kwam bij Mandemakers vandaan (Yep DMG) en inderdaad je moet tegen de methode kunnen hoe ze werken wbt onderhandelen, weet van te voren wat alles een beetje kost, en dan zou het best een optie zijn. Levering en plaatsen ging top destijds, kasten prima en prijs ook niet belachelijk voor wat ik hier voorbij zie komen, maar wel 13 jaar geleden. Frontjes waren na 13 jaar wel op (bovenste laag kwam los bij alles volgens de huidige bewoners) . 3e keuken bij Imabo Nieuwegein, een SieMatic, wel de basis lijn, netto prijzen, en prima praatje, geen druk om te verkopen. Maaar.....wat een bagger materiaal bleek dat! Absoluut geen fan meer van SieMatic! Lades liepen na 7 jaar niet meer soepel, ook deurtjes (dat slow systeem) werkte slecht. Ja wij gebruiken de keuken best veel, maar gaan er echt met zorg mee om. Maar tot nu was de IKea keuken nog kwalitatief het beste na x aantal jaren!
Wbt apparatuur zijn wij ook van mening dat per productgroep je een beste merk hebt. Zo zullen wij niet snel 5 apparaten van 1 merk afnemen. Ieder heeft gewoon zijn eigen kwaliteit van oorsprong.
Nu gaan we dus voor keuken No 4. We gaan een eigen huis laten bouwen, dus daar moet er een in komen. Maar wat is wijsheid, Ikea kasten en frontjes elders laten maken en apparatuur zelf regelen, maar niet alles kan omdat het ws niet past. Of een keukenboer weer? Nu gaan wij praten met Tieleman Keukens in Middelharnis en met Wim vd Ham in Zoetermeer, iemand daar ervaring mee?
Wbt apparatuur zijn wij ook van mening dat per productgroep je een beste merk hebt. Zo zullen wij niet snel 5 apparaten van 1 merk afnemen. Ieder heeft gewoon zijn eigen kwaliteit van oorsprong.
Nu gaan we dus voor keuken No 4. We gaan een eigen huis laten bouwen, dus daar moet er een in komen. Maar wat is wijsheid, Ikea kasten en frontjes elders laten maken en apparatuur zelf regelen, maar niet alles kan omdat het ws niet past. Of een keukenboer weer? Nu gaan wij praten met Tieleman Keukens in Middelharnis en met Wim vd Ham in Zoetermeer, iemand daar ervaring mee?
Via via een tweede offerte opgevraagd, waarbij ik zelf heb gevraagd wat er mogelijk is met a-merk apparatuur en een composieten werkblad i.p.v. een keramieken werkblad. De leverancier kwam terug met Bosch apparatuur en de onderstaande opstelling. Er zitten inbouwspotjes in met een afstandsbediening om deze te bedienen (gadget freakShunt schreef op zondag 16 juli 2017 @ 21:55:
Ik vind hem extreem duur. Geen speciale dure kasten Pelgrim spul er in.
Nee voor mij zou dat een 100% afknapper zijn.
Die meubelen hoeven niet meer dan 4/5k te kosten dat blad is extreem duur.
En ik weet niet of je het met je keukenboer er over hebt gehad maar je offert zo bijna een vierde van je huiskamer op voor je keuken.
Verder zou ik eens kijken naar 60cm ovens ipv 45cm dan heb je dat lelijke opvul plaatje niet.
Bosch / Siemens is btw het zelfde alleen het frontje is anders. Dus kies vooral wat je mooi vind en indien mogelijk pak 5 apparaten van het zelfde merk dan pak je mooi 5 jaar garantie mee.
Persoonlijk zou ik voor een keuken als dit niet meer als 11 betalen met de apparatuur die je er nu in hebt zitten. 15 met alles Siemens iq700.
Deze apparatuur:
KIR20V51
CMG836NS1
CMG836NS1
SMV24AX00E
DWB097E50
PIV895DC1E
Enige dat nu mist is een vriezer, de koelkast die nu is berekend zou dan vervangen moeten worden voor een exemplaar incl. vriezer. Totaalbedrag excl. montage is nu 13k, montage is €1400. Denk niet dat het de scherpste prijs is maar het scheelt toch al snel 4k t.o.v. de eerdere 18k offerte. Bij die van 18k zit dan wel een keramiek werkblad maar ook Pelgrim ipv Bosch apparatuur.
Opstelling:
@BertP Mooie opstelling! Denk dat de prijs beste goed is, wellicht iets scherper, maar ja service en gevoel is ook belangrijk, kan even niet zien wat de breedte van het lage deel is, ongeveer 3.5m? en schiereiland 1.8m en 90cm diep? Composiet is (vind ik) ook prima spul, kan je alles mee doen.
Thanx! De prijs is denk ik ook oke, sowieso willen we ergens tekenen waar het gevoel goed is. Als dat een paar honderd euro meer kost dan accepteren we dat. Het lage deel is 3,40 meter en afmetingen schiereiland komen ook overeen. Composiet vs keramiek is een twijfelpuntje voor ons, volgens mij is composiet een prima materiaal voor dagelijks gebruik. Je moet er geen superhete pannen opzetten maar dat doen we toch al niet dus dat is geen probleemsanvv78 schreef op donderdag 3 augustus 2017 @ 10:21:
@BertP Mooie opstelling! Denk dat de prijs beste goed is, wellicht iets scherper, maar ja service en gevoel is ook belangrijk, kan even niet zien wat de breedte van het lage deel is, ongeveer 3.5m? en schiereiland 1.8m en 90cm diep? Composiet is (vind ik) ook prima spul, kan je alles mee doen.
@BertP Wij hebben jaren composiet gehad, en heb er eigenlijk altijd hete pannen op gezet als ik even nergens plek had (oeps dus haha) maar dat ging altijd goed, alleen destijds vertelde ze ons dat dat niet bij graniet kon, maar wel bij composiet. WIj zijn alleen geen fan van mat/gezoet composiet, dat geeft snel vlekken, al is dat weer weg te krijgen door een spons en bak jif, maar dat wil je ook niet elke dag doen ;-).
Lees overigens dat ze in de offerte praten over composietsteen als blad. Weet niet of dat nou echt anders is dan composiet maar is wel de moeite om te checken. Al met al denk ik dat we rekening moeten houden met ongeveer 14k incl. montage voor deze keuken met a-merk apparatuur.sanvv78 schreef op donderdag 3 augustus 2017 @ 10:40:
@BertP Wij hebben jaren composiet gehad, en heb er eigenlijk altijd hete pannen op gezet als ik even nergens plek had (oeps dus haha) maar dat ging altijd goed, alleen destijds vertelde ze ons dat dat niet bij graniet kon, maar wel bij composiet. WIj zijn alleen geen fan van mat/gezoet composiet, dat geeft snel vlekken, al is dat weer weg te krijgen door een spons en bak jif, maar dat wil je ook niet elke dag doen ;-).
Dat lijkt me hetzelfde. Composietsteen vind ik een beetje een vreemde term hoewel het strikt genomen klopt, het is immers graniet- en/of kwartspoeder met hars. Weet je ook wel merk/type blad het is?BertP schreef op donderdag 3 augustus 2017 @ 10:48:
[...]
Lees overigens dat ze in de offerte praten over composietsteen als blad. Weet niet of dat nou echt anders is dan composiet maar is wel de moeite om te checken. Al met al denk ik dat we rekening moeten houden met ongeveer 14k incl. montage voor deze keuken met a-merk apparatuur.
Heb je daadwerkelijk twee identieke ovens met magnetron?
Edit: je koelkast is een exemplaar van 102,5 cm nismaat, die kunnen ook ónder een oven. Dan kun je datzelfde doen met een vriezer van dezelfde afmeting (GIN31AC30, ik heb de Siemens-versie besteld). Ziet er fraai uit lijkt me, ik denk dat het lijnenspel dan ook rustiger wordt. Dan houd je de derde hoge kast over voor whatever. Of je kiest voor een 60 cm brede lage kast wat werkruimte oplevert.
[ Voor 23% gewijzigd door Reinier op 03-08-2017 11:13 ]
@BertP laat ze er 13000 incl montage van maken en je hebt denk ik een zeer scherpe prijs.
Mag ik vragen waarom 2x de zelfde oven / magnetron ik zou persoonlijk voor een stoom oven er bij gaan. En waarom geen "grote" koelkast in de hoge kast links?
Mag ik vragen waarom 2x de zelfde oven / magnetron ik zou persoonlijk voor een stoom oven er bij gaan. En waarom geen "grote" koelkast in de hoge kast links?
Game PC
2 Post or Not 2 Post What's the question ?
"If it ain't broken, you didn't try hard enough"
ThanxShunt schreef op donderdag 3 augustus 2017 @ 11:16:
@BertP laat ze er 1300 incl montage van maken en je hebt denk ik een zeer scherpe prijs.
Mag ik vragen waarom 2x de zelfde oven / magnetron ik zou persoonlijk voor een stoom oven er bij gaan. En waarom geen "grote" koelkast in de hoge kast links?
Het merk ken ik niet maar de offerte komt bij REDDY keukens vandaan. En inderdaad 2x dezelde combi, check hierboven voor de redenReinier schreef op donderdag 3 augustus 2017 @ 11:09:
[...]
Dat lijkt me hetzelfde. Composietsteen vind ik een beetje een vreemde term hoewel het strikt genomen klopt, het is immers graniet- en/of kwartspoeder met hars. Weet je ook wel merk/type blad het is?
Heb je daadwerkelijk twee identieke ovens met magnetron?
Edit: je koelkast is een exemplaar van 102,5 cm nismaat, die kunnen ook ónder een oven. Dan kun je datzelfde doen met een vriezer van dezelfde afmeting (GIN31AC30, ik heb de Siemens-versie besteld). Ziet er fraai uit lijkt me, ik denk dat het lijnenspel dan ook rustiger wordt. Dan houd je de derde hoge kast over voor whatever. Of je kiest voor een 60 cm brede lage kast wat werkruimte oplevert.
De koelkast en vriezer zouden onder de ovens kunnen maar het liefst willen we in de hoge kast koelkast + vriezer in 1, we zijn beide lang en zou het vervelend vinden om te moeten bukken voor spullen uit de koelkast. Ben het wel met je eens dat het qua lijnen waarschijnlijk iets fraaier uitpakt.
Mijn ervaring is dat montage vaak (niet altijd) het meest inflexibele is om op te onderhandelen. Als je het op 100 euro wilt laten komen, dan zou ik eerder gaan voor "12,5K en we hebben een deal" of zoiets.
edit: niet goed gelezen wat @Shunt zei, (hij bedoelde 13000 en niet 1300, vandaar de verwarring), never mind
edit: niet goed gelezen wat @Shunt zei, (hij bedoelde 13000 en niet 1300, vandaar de verwarring), never mind
[ Voor 22% gewijzigd door RUFFNECK op 03-08-2017 11:27 ]
De mensen die ik spreek over stoomoven, zijn er helemaal lyrisch over. Ik zou het toch overwegenBertP schreef op donderdag 3 augustus 2017 @ 11:25:
[...]
ThanxHet is in dit geval inderdaad 2 keer dezelfde oven/combi. We hebben dit voornamelijk met het oog op de capaciteit gedaan, we soms magnetron en oven tegelijk willen gebruiken en dit eigenlijk vrijheid geeft om beide te doen. Stoomoven zou kunnen maar denk dat we dat echt niet of nauwelijks gaan gebruiken. Een koffiezetter zou ook kunnen maar we drinken zo weinig koffie dat de gewone nespresso machine echt meer dan voldoende is.
Atlas#22744
Fair enoughBertP schreef op donderdag 3 augustus 2017 @ 11:25:
[...]
ThanxHet is in dit geval inderdaad 2 keer dezelfde oven/combi. We hebben dit voornamelijk met het oog op de capaciteit gedaan, we soms magnetron en oven tegelijk willen gebruiken en dit eigenlijk vrijheid geeft om beide te doen. Stoomoven zou kunnen maar denk dat we dat echt niet of nauwelijks gaan gebruiken. Een koffiezetter zou ook kunnen maar we drinken zo weinig koffie dat de gewone nespresso machine echt meer dan voldoende is.
Iets met ballarina ofzo?Het merk ken ik niet maar de offerte komt bij REDDY keukens vandaan. En inderdaad 2x dezelde combi, check hierboven voor de reden
De koelkast en vriezer zouden onder de ovens kunnen maar het liefst willen we in de hoge kast koelkast + vriezer in 1, we zijn beide lang en zou het vervelend vinden om te moeten bukken voor spullen uit de koelkast. Ben het wel met je eens dat het qua lijnen waarschijnlijk iets fraaier uitpakt.
Volgens mij is het gewoon een redelijk middensegment merk. Waar ben je ergens aan het kijken qua keukens. Ga vooral ook met je Reddy offerte langs wat andere keuken zaken om een goed beeld te krijgen van de rest van de markt.
Game PC
2 Post or Not 2 Post What's the question ?
"If it ain't broken, you didn't try hard enough"
Zal mij er eens in verdiepen, moet zeggen dat we allebei niet echte keukenhelden (lees: gewoon niet) zijn en mede daarom besloten hebben om de stoomovens niet echter nader te onderzoeken.Kasai schreef op donderdag 3 augustus 2017 @ 11:28:
[...]
De mensen die ik spreek over stoomoven, zijn er helemaal lyrisch over. Ik zou het toch overwegenMijn vriendin en ik willen ook geen combi magnetron meer, we willen voor 1 hele luxe stoom oven gaan.
We hebben allebei wel een redelijk druk leven en soms even dingen opwarmen en weer door komt redelijk vaak voorShunt schreef op donderdag 3 augustus 2017 @ 11:31:
[...]
Fair enoughWij merken juist dat wij de magnetron tegenwoordig amper gebruiken. Maar ja dat is ook deels een bewuste keuze. We koken tegenwoordig eigenlijk alles gewoon vers vanwege dieet issues met mijn vriendin.
[...]
Iets met ballarina ofzo? Volgens mij is het gewoon een redelijk middensegment merk. Waar ben je ergens aan het kijken qua keukens. Ga vooral ook met je Reddy offerte langs wat andere keuken zaken om een goed beeld te krijgen van de rest van de markt.
Welke serie het is durf ik eigenlijk niet te zeggen, het lijkt er op alsof het een eigen merk is. Leverancier REDDY, serie base 720 ergo 780 programma fresh. Zegt mij zo niet heel veel..
Nu 2 offertes binnen, 18k en 14k. Zou tevreden zijn als we op 14k uitkomen incl. montage en een quooker.
Onze Ikea keuken is nu 13 jaar oud. De laden en frontjes zijn nog perfect. (hoewel ik het werk van een overijverige poetser met voorliefde voor schuurmiddelen wel weg moest polijsten. Was wel gelijk een goede test voor mijn DAP900)sanvv78 schreef op donderdag 3 augustus 2017 @ 10:08:
Nu gaan we dus voor keuken No 4. We gaan een eigen huis laten bouwen, dus daar moet er een in komen. Maar wat is wijsheid, Ikea kasten en frontjes elders laten maken en apparatuur zelf regelen, maar niet alles kan omdat het ws niet past. Of een keukenboer weer? Nu gaan wij praten met Tieleman Keukens in Middelharnis en met Wim vd Ham in Zoetermeer, iemand daar ervaring mee?
Er zijn echter dingen waar ik me aan irriteer, maar deze zijn met het nieuwe systeem opgelost (softclose bv, dat nu in de scharnieren zijn weggewerkt)
Ik ga echter dit keer waarschijnlijk een keuken bij Bemmel En Kroon halen. De grote variatie aan keukenapparatuur is een reden, maar ik heb ook niet de drive meer om zelf een keuken in elkaar te schroeven. Ik heb ook het vermoeden dat voor een kookeiland, een Ikea keuken minder geschikt is. Die is namelijk wel heel erg in het zicht.
Zouden we in het huidige huis blijven wonen en de keuken vervangen dan zullen we waarschijnlijk wel weer voor Ikea kiezen mits deze incl montage goedkoper is.
Oh ja. een belangrijke reden om een niet-ikea keuken te nemen: de werkhoogte. Ik zal graag het spoelgedeelte (aan de wand) hoger willen hebben 95-100cm. En het kookgedeelte op de standaard 90-95cm.
Maar ik wil weer niet een enorme plint van 20+cm... en volgens mij heeft Ikea daar niet veel keuzes in (ik weet even niet wat de hoogte van de Method keukens zijn t.o.v. de Faktum)
[ Voor 12% gewijzigd door kmf op 03-08-2017 14:21 ]
One thing's certain: the iPad seriously increases toilet time.. tibber uitnodigingscode: bqufpqmp
Wij zaten te twijfelen tussen de keuken van Bruggink en Ikea. Maar we vinden de kleur van Ikea mooier en Ikea heeft een 8cm plint terwijl ze bij Bruggink geloof ik niet onder de 12cm of zelfs 20cm kunnen komen.sanvv78 schreef op donderdag 3 augustus 2017 @ 10:08:
Nu gaan we dus voor keuken No 4. We gaan een eigen huis laten bouwen, dus daar moet er een in komen. Maar wat is wijsheid, Ikea kasten en frontjes elders laten maken en apparatuur zelf regelen, maar niet alles kan omdat het ws niet past. Of een keukenboer weer? Nu gaan wij praten met Tieleman Keukens in Middelharnis en met Wim vd Ham in Zoetermeer, iemand daar ervaring mee?
Dus Bruggink viel, inclusief frontjes af. Niet vanwege de prijs, maar vanwege het uiterlijk.
We hebben nu de deal dat zij verder alles gaan leveren, behalve de kastjes en deurtjes.
Zoiets zou je ook nog kunnen overwegen. Ik heb op nog maar heel weinig plekken een 8cm plinthoogte gezien. Misschien bij Kvik maar dat vinden we saai en inspiratieloos dus daar waren we heel snel uitgekeken.
Ná Scaoll. - Don’t Panic.
@BertP het is persoonlijke voorkeur, maar ik zou bij jouw opstelling de koelkast rechts zetten en de ovens links. De koelkast ga je veel vaker gebruiken dan de ovens, dus als die dichterbij zit is dat denk ik fijner. Naar welke kant gaat je koelkast open? Heb je genoeg ruimte tussen je koelkast en je muur? Prijs is denk ik prima voor de hoeveelheid keuken dat je krijgt.
Goeie tip, zeker handig om over na te denken. De koelkast zullen we vaker gebruiken en als we die direct aan het het keukenblad laten grenzen is dat net ff wat makkelijker. We willen dat hij opengaat met de deuropening richting de keuken zeg maar, er 'om heen' moeten lopen zou zwaar onpraktisch zijn.Z___Z schreef op donderdag 3 augustus 2017 @ 13:18:
@BertP het is persoonlijke voorkeur, maar ik zou bij jouw opstelling de koelkast rechts zetten en de ovens links. De koelkast ga je veel vaker gebruiken dan de ovens, dus als die dichterbij zit is dat denk ik fijner. Naar welke kant gaat je koelkast open? Heb je genoeg ruimte tussen je koelkast en je muur? Prijs is denk ik prima voor de hoeveelheid keuken dat je krijgt.
Zelf recent een keuken laten plaatsen door Graafschap Keukens uit Aalten, zeer tevreden over. Het is een Häcker keuken (met spuitwerk van de kastjes in 1 keer, geen laser gekante randen), verder hebben we alle apparatuur van de Bosch 8-serie.Sport_Life schreef op woensdag 2 augustus 2017 @ 21:26:
Wij zijn bezig met een nieuwbouwwoning welke wordt opgeleverd zonder keuken.
We hebben nu een gesprek gehad met de projectleverancier en een andere keukenboer (Mandemakers keukens). Bij Mandemakers overall kortingsborden in de winkel, maar helaas dat gold niet voor de keuze van ons want daar was al 25% vanaf. Alleen de prijs kon hij nog niet geven, pas bij een volgende afspraak.. je begrijpt, die ziet ons nooit meer terug. We hebben die man nog wel vriendelijk bedankt voor het meedenken overigens.
Bij de projectleverancier an sich wel een goed gevoel over, maar ook daar kon nog niets over de prijs worden gemeld..
Ik vraag me af of er leveranciers van keukens zijn waarbij je gewoon een eerlijke prijs betaald en niet waar je langer bezig bent met onderhandelen dan inhoudelijk over de keuken praten.
We zijn op zoek naar een kwalitatief goede keuken, met degelijke kastjes en Siemens apparatuur (of vergelijkbaar) met een composiet of granieten keukenblad. Tips zijn welkom.
Wij hebben halverwege het hele ontwerp van de keuken nog gewijzigd, was geen probleem. Een tweede tekening was ook weer snel gemaakt. Onderhandeling verliep snel, ze hebben 1 keer ter plekke een aangepaste prijs gemaakt en dat was in feite een "take it or leave it" prijs.
Na het plaatsen (ze hebben een aantal vaste mensen van Lageschaar Montage die voor hun monteren, overigens ook erg tevreden over de persoon bij ons is geweest) werd ik die avond gelijk gebeld door De Graafschap of alles naar wens was verlopen. Zodra ons nieuwbouwhuis helemaal af is komen ze vanuit Graafschap Keukens nog voor een nacontrole.
Tijdens het oriënteren zijn wij ook bij zaken als Keukenconcurrent geweest, maar dat voelt meer als een soort gijzeling waarbij je eigenlijk de winkel niet meer uit mag voordat je een tekening/offerte hebt. Je wordt binnen de eerste meters na binnenkomst gelijk besprongen door een verkoper.
Staat goed aangeschreven: http://www.tielemankeukens.nl/beste-keukenspecialistsanvv78 schreef op donderdag 3 augustus 2017 @ 10:08:
Nu gaan wij praten met Tieleman Keukens in Middelharnis [...].
Ik zie hem ook weleens bij Business Class, dan weet je wel wat de doelgroep is en prijsklasse
@PcDealer haha ok dank je iig :-). Weten we iig wat onze keuken maximaal kan kosten. Het is dat Tieleman gekoppeld zit aan de bouwer die ons huis gaat bouwen, dus kijken kan geen kwaad.
Vandaag de offerte binnen gekregen van onze keuken! Inmiddels hebben we al iets andere ideeën, we willen bijvoorbeeld het schiereiland een kwartslag draaien, maar qua meubels, blad oppervlakte en apparatuur verandert er dan dus vrij weinig, anyway dit is geoffreerd;



Meubels inclusief afwerking om de Amerikaanse koelkast heen; 6400 euro, dus 2 hoge kasten, 4 lage kasten en 4 lage ondiepe kasten.
Composiet blad + eikenhouten bar + plank; 4900 euro.
Neff B48FT68N1 stoomoven
Neff T58TS6BN0 Kookplaat met afzuiging
Neff S526P80X0E vaatwasser met alles er op en er aan
Quooker 3-in-1 kraan. Combi+; Reservoir 7 liter
Totaal voor apparatuur 10k, maar dat zijn dus de adviesprijzen, volgens mijn eigen berekening zou het zo'n 6500 moeten zijn.
2 led spots boven de koelkast; 200 euro
Montage; 1200 euro
Totaal dus 22700 en dan staat er onderaan de offerte dat er nog 5100 korting van afgaat. Hier baal ik klein beetje van, want ik wilde gewoon gelijk eerlijke prijs, afijn. Als we uitrekening dat er zo'n 3500 van de apparatuur af gaat, zit over de rest nog zo'n 1600 euro korting verdeeld.
Al met al dus zo'n 18 k.
Wat denken jullie?
Meubels inclusief afwerking om de Amerikaanse koelkast heen; 6400 euro, dus 2 hoge kasten, 4 lage kasten en 4 lage ondiepe kasten.
Composiet blad + eikenhouten bar + plank; 4900 euro.
Neff B48FT68N1 stoomoven
Neff T58TS6BN0 Kookplaat met afzuiging
Neff S526P80X0E vaatwasser met alles er op en er aan
Quooker 3-in-1 kraan. Combi+; Reservoir 7 liter
Totaal voor apparatuur 10k, maar dat zijn dus de adviesprijzen, volgens mijn eigen berekening zou het zo'n 6500 moeten zijn.
2 led spots boven de koelkast; 200 euro
Montage; 1200 euro
Totaal dus 22700 en dan staat er onderaan de offerte dat er nog 5100 korting van afgaat. Hier baal ik klein beetje van, want ik wilde gewoon gelijk eerlijke prijs, afijn. Als we uitrekening dat er zo'n 3500 van de apparatuur af gaat, zit over de rest nog zo'n 1600 euro korting verdeeld.
Al met al dus zo'n 18 k.
Wat denken jullie?
Atlas#22744
Zeer mooie keuken. Wellicht niet zozeer wat om je druk over te maken op zo'n groot bedrag, maar 200 euro voor 2 ledspotjes? Kun je dat niet zelf achteraf doen in een halfuurtje?Kasai schreef op vrijdag 4 augustus 2017 @ 18:08:
Vandaag de offerte binnen gekregen van onze keuken! Inmiddels hebben we al iets andere ideeën, we willen bijvoorbeeld het schiereiland een kwartslag draaien, maar qua meubels, blad oppervlakte en apparatuur verandert er dan dus vrij weinig, anyway dit is geoffreerd;
[afbeelding]
[afbeelding]
[afbeelding]
Meubels inclusief afwerking om de Amerikaanse koelkast heen; 6400 euro, dus 2 hoge kasten, 4 lage kasten en 4 lage ondiepe kasten.
Composiet blad + eikenhouten bar + plank; 4900 euro.
Neff B48FT68N1 stoomoven
Neff T58TS6BN0 Kookplaat met afzuiging
Neff S526P80X0E vaatwasser met alles er op en er aan
Quooker 3-in-1 kraan. Combi+; Reservoir 7 liter
Totaal voor apparatuur 10k, maar dat zijn dus de adviesprijzen, volgens mijn eigen berekening zou het zo'n 6500 moeten zijn.
2 led spots boven de koelkast; 200 euro
Montage; 1200 euro
Totaal dus 22700 en dan staat er onderaan de offerte dat er nog 5100 korting van afgaat. Hier baal ik klein beetje van, want ik wilde gewoon gelijk eerlijke prijs, afijn. Als we uitrekening dat er zo'n 3500 van de apparatuur af gaat, zit over de rest nog zo'n 1600 euro korting verdeeld.
Al met al dus zo'n 18 k.
Wat denken jullie?
Kan me ook voorstellen dat je gewoon klaar wilt zijn met de keuken en dat je die 200 toch niet weer vindt, maar ik schrok wat.
Ik vind een op die manier ingebouwde Amerikaanse koelkast niet mooi. Die hoort vrij te staan in mijn ogen. Als je toch zo'n kastenwand wil dan zou ik een gewone inbouw-koelkast/vriezer nemen. En ik mis een gewone oven.
[ Voor 11% gewijzigd door Fiber op 04-08-2017 19:20 ]
Keep your wits sharp, your heart open and your gun loaded. And never mess with mother nature, mother in-laws and, mother freaking Ukrainians.
Die stoomoven is gewoon ook een bakoven, dus prima toch?Fiber schreef op vrijdag 4 augustus 2017 @ 19:05:
En ik mis een gewone oven.
Yeah dat is zo, maar op zich fijn dat ze volledige offerte hebben gemaakt.Jordymt schreef op vrijdag 4 augustus 2017 @ 19:04:
[...]
Zeer mooie keuken. Wellicht niet zozeer wat om je druk over te maken op zo'n groot bedrag, maar 200 euro voor 2 ledspotjes? Kun je dat niet zelf achteraf doen in een halfuurtje?
Kan me ook voorstellen dat je gewoon klaar wilt zijn met de keuken en dat je die 200 toch niet weer vindt, maar ik schrok wat.
Ik vind het er wel strak uit zien en dan heb je toch de voordelen van een Amerikaanse koelkast, veel ruimte, koud water en ijsblokjesFiber schreef op vrijdag 4 augustus 2017 @ 19:05:
Ik vind een op die manier ingebouwde Amerikaanse koelkast niet mooi. Die hoort vrij te staan in mijn ogen. Als je toch zo'n kastenwand wil dan zou ik een gewone inbouw-koelkast/vriezer nemen. En ik mis een gewone oven.
Wat vinden jullie van de prijs?
Atlas#22744
We hebben inmiddels ook 2 prijzen gekregen van keukens. Het zit nog wel boven budget maar het werkblad willen we zelf gaan maken. Heeft iemand ervaring met een blad gemaakt van beton of beton cire?
Kvik

Blad: 3.773,02 euro
Kasten: 4.749,51 euro
Apparatuur: zonder
Totaal: 8.522,53 euro
Superkeukens



Blad: 3.052,97 euro
Kasten: 4.054,00 euro
Apparatuur: 3.805,00 euro
Totaal: 10.911,97 euro
Apparatuur
Inductie - Zanussi Z8457SK: 649,00 euro
Plafond afzuigkap - AEG DCE3960HM: 999,00 euro
Heteluchtoven - Zanussi ZOB65802XX: 399,00 euro
Combi - Zanussi ZZK47902XX: 639,00 euro
Vaatwasser - Zanussi ZDT26010FA: 479,00 euro
Koel/vries - Zanussi ZBB28443SK: 465,00 euro
Kvik

Blad: 3.773,02 euro
Kasten: 4.749,51 euro
Apparatuur: zonder
Totaal: 8.522,53 euro
Superkeukens



Blad: 3.052,97 euro
Kasten: 4.054,00 euro
Apparatuur: 3.805,00 euro
Totaal: 10.911,97 euro
Apparatuur
Inductie - Zanussi Z8457SK: 649,00 euro
Plafond afzuigkap - AEG DCE3960HM: 999,00 euro
Heteluchtoven - Zanussi ZOB65802XX: 399,00 euro
Combi - Zanussi ZZK47902XX: 639,00 euro
Vaatwasser - Zanussi ZDT26010FA: 479,00 euro
Koel/vries - Zanussi ZBB28443SK: 465,00 euro
Ziet er goed uit! Wellicht is deze afzuigkap beter; https://www.123apparatuur...unit-afzuigkap/item/38037 920m3/u, 66dB.
Prijs van superkeukens lijkt mij ook heel netjes.
Prijs van superkeukens lijkt mij ook heel netjes.
Atlas#22744
Volgens mij is de prijs wel netjes. Alleen blad is misschien wat hoog, maar zonder dikte en materiaal is daar weinig over te zeggen. Ter indicatie: Ik heb een vergelijkbaar blad; alleen alles net iets groter 2700x100 en 120x60 in composiet opgedikt tot 6 cm voor 2700 euro,rspoe schreef op zaterdag 5 augustus 2017 @ 11:46:
We hebben inmiddels ook 2 prijzen gekregen van keukens. Het zit nog wel boven budget maar het werkblad willen we zelf gaan maken. Heeft iemand ervaring met een blad gemaakt van beton of beton cire?
Kvik
[afbeelding]
Blad: 3.773,02 euro
Kasten: 4.749,51 euro
Apparatuur: zonder
Totaal: 8.522,53 euro
Superkeukens
[afbeelding]
[afbeelding]
[afbeelding]
Blad: 3.052,97 euro
Kasten: 4.054,00 euro
Apparatuur: 3.805,00 euro
Totaal: 10.911,97 euro
Apparatuur
Inductie - Zanussi Z8457SK: 649,00 euro
Plafond afzuigkap - AEG DCE3960HM: 999,00 euro
Heteluchtoven - Zanussi ZOB65802XX: 399,00 euro
Combi - Zanussi ZZK47902XX: 639,00 euro
Vaatwasser - Zanussi ZDT26010FA: 479,00 euro
Koel/vries - Zanussi ZBB28443SK: 465,00 euro
Verder zou ik zelf de nis tussen de kasten aan het eind van de kastenwand plaatsen. Maar dat is een kwestie van smaak. Ander idee wat je zou kunnen overwegen is om de nis breder te maken (2 kasten) en daarboven bovenkasten te hangen over de volle diepte.
Ik vind inbouw niet erg, maar dan niet met een afwijkende kleur witFiber schreef op vrijdag 4 augustus 2017 @ 19:05:
Ik vind een op die manier ingebouwde Amerikaanse koelkast niet mooi. Die hoort vrij te staan in mijn ogen. Als je toch zo'n kastenwand wil dan zou ik een gewone inbouw-koelkast/vriezer nemen. En ik mis een gewone oven.
Beter in roestvaststaal.
Toevallig is ie dat ookPcDealer schreef op zaterdag 5 augustus 2017 @ 13:49:
[...]
Ik vind inbouw niet erg, maar dan niet met een afwijkende kleur wit
Beter in roestvaststaal.
Atlas#22744
Dat is precies hoe ik het wil in onze volgende keuken, een Amerikaanse koelkast tussen twee hoge kasten. Ik zat nog een beetje met hoe de bovenkant af te werken, dus bedankt voor het idee
. Leuk zo met die verlichting.
Was idee van de keukenboer, super leuk inderdaad. We lopen nu wel met het idee om alles te door te laten lopen tot het plafond.tinustilburg schreef op zaterdag 5 augustus 2017 @ 16:26:
Dat is precies hoe ik het wil in onze volgende keuken, een Amerikaanse koelkast tussen twee hoge kasten. Ik zat nog een beetje met hoe de bovenkant af te werken, dus bedankt voor het idee. Leuk zo met die verlichting.
Atlas#22744
Puntje van aandacht voor de meeste mensen hier: er zit meer onderhandelingsruimte in je keuken dan je denkt. Ik zie soms keukens voorbij komen die een kwart zijn van mijn keuken en dan vind men een offerte prijs van 13k nog redelijk.
Ter indicatie: toen ik voor mijn eerste keuken ging, was de initiële prijs 24.500 euro, we kwamen uiteindelijk uit op 11.500 euro, zonder enige vorm van concessies. Jaren later weer een keuken gekocht (dit keer voor een beleggingspand), openingsbod was 19.000 euro, mee gekregen voor 7.200 euro. Dus met 20-25% korting ben je er nog lang niet.
Beide keukens trouwens bij Keukenconcurrent gekocht.
Ter indicatie: toen ik voor mijn eerste keuken ging, was de initiële prijs 24.500 euro, we kwamen uiteindelijk uit op 11.500 euro, zonder enige vorm van concessies. Jaren later weer een keuken gekocht (dit keer voor een beleggingspand), openingsbod was 19.000 euro, mee gekregen voor 7.200 euro. Dus met 20-25% korting ben je er nog lang niet.
Beide keukens trouwens bij Keukenconcurrent gekocht.
If we are all God's children, what makes Jesus so special?
Battle.net tag
Hele dikke sigaar uit eigen doos. En wederom het bewijs dat sommige mensen zich blind staren op korting.Pater schreef op zondag 6 augustus 2017 @ 10:23:
Puntje van aandacht voor de meeste mensen hier: er zit meer onderhandelingsruimte in je keuken dan je denkt. Ik zie soms keukens voorbij komen die een kwart zijn van mijn keuken en dan vind men een offerte prijs van 13k nog redelijk.
Ter indicatie: toen ik voor mijn eerste keuken ging, was de initiële prijs 24.500 euro, we kwamen uiteindelijk uit op 11.500 euro, zonder enige vorm van concessies. Jaren later weer een keuken gekocht (dit keer voor een beleggingspand), openingsbod was 19.000 euro, mee gekregen voor 7.200 euro. Dus met 20-25% korting ben je er nog lang niet.
Beide keukens trouwens bij Keukenconcurrent gekocht.
Ik weet echt zeker dat er zaken zijn waar je een betere deal hebt zonder dat er 1 euro korting is gegeven.
Waarom ga je dan ook naar dat soort winkels... Ik vind jouw 7.200 voor die beleggingskeuken die je hier een jaar geleden hebt geplaatst nog steeds te duur. En als ze aan zouden komen met 19.000 zou ik de winkel uit lopen: dat geloof je toch niet.Pater schreef op zondag 6 augustus 2017 @ 10:23:
Puntje van aandacht voor de meeste mensen hier: er zit meer onderhandelingsruimte in je keuken dan je denkt. Ik zie soms keukens voorbij komen die een kwart zijn van mijn keuken en dan vind men een offerte prijs van 13k nog redelijk.
Ter indicatie: toen ik voor mijn eerste keuken ging, was de initiële prijs 24.500 euro, we kwamen uiteindelijk uit op 11.500 euro, zonder enige vorm van concessies. Jaren later weer een keuken gekocht (dit keer voor een beleggingspand), openingsbod was 19.000 euro, mee gekregen voor 7.200 euro. Dus met 20-25% korting ben je er nog lang niet.
Beide keukens trouwens bij Keukenconcurrent gekocht.
Die doelgroep is helaas ontzettend groot en helaas geloven de kopers ook nog in deze stunt praktijken.Dennis schreef op zondag 6 augustus 2017 @ 10:44:
[...]
Waarom ga je dan ook naar dat soort winkels... Ik vind jouw 7.200 voor die beleggingskeuken die je hier een jaar geleden hebt geplaatst nog steeds te duur. En als ze aan zouden komen met 19.000 zou ik de winkel uit lopen: dat geloof je toch niet.
Ga eens naar een nette zaak en geef aan dat je geen euro korting wil, en echt de netto prijs verwacht. Je zult verbaasd zijn wat een ontspannen gesprek je zult hebben. En hoe prettig de prijs kan zijn.
Wij zijn dit weekend nog eens bij een zaak geweest...
Deze had als bespaaroptie om iets lagere kastjes te gebruiken (71 ipv 78) en hierdoor zou de hoogte ipv 94cm op 92 cm komen (hij zei 93 maar volgens ons maakte hij een rekenfoutje 15 plint + 71 + 6 cm blad).
Hierdoor heeft hij iets getriggerd bij ons, Mijn vrouw is 178 en ik 188, volgens een hoop tabelletjes zou de ideale hoogte dan 100cm zijn (mijn vrouw kookt het meest en heeft een zwakke rug)
Wat zeggen jullie hierover?
Deze had als bespaaroptie om iets lagere kastjes te gebruiken (71 ipv 78) en hierdoor zou de hoogte ipv 94cm op 92 cm komen (hij zei 93 maar volgens ons maakte hij een rekenfoutje 15 plint + 71 + 6 cm blad).
Hierdoor heeft hij iets getriggerd bij ons, Mijn vrouw is 178 en ik 188, volgens een hoop tabelletjes zou de ideale hoogte dan 100cm zijn (mijn vrouw kookt het meest en heeft een zwakke rug)
Wat zeggen jullie hierover?
12 x 385Wp op HD4000SolarEdge zuid 13° pvoutput
Verwijderd
Het varieert, en is meestal een compromis. Maar verschillende hoogtes voor verschillende handelingen zoals snijden, afwassen en koken. Maar bij een lengte van 1,80 is een goede werkblad hoogte inderdaad al snel 1m. 92cm is echt een flink end te laag om prettig te werken, ik zou niet onder de 95cm gaan.
[ Voor 20% gewijzigd door Verwijderd op 07-08-2017 09:28 ]
Vreemde bespaaroptie vind ik, de plint hoogte zou niet heel duur moeten zijn. Qua hoogte zou ik voor de 100cm gaan als dat voor jullie de beste werkhoogte is.Snowhite0901 schreef op maandag 7 augustus 2017 @ 09:18:
Wij zijn dit weekend nog eens bij een zaak geweest...
Deze had als bespaaroptie om iets lagere kastjes te gebruiken (71 ipv 78) en hierdoor zou de hoogte ipv 94cm op 92 cm komen (hij zei 93 maar volgens ons maakte hij een rekenfoutje 15 plint + 71 + 6 cm blad).
Hierdoor heeft hij iets getriggerd bij ons, Mijn vrouw is 178 en ik 188, volgens een hoop tabelletjes zou de ideale hoogte dan 100cm zijn (mijn vrouw kookt het meest en heeft een zwakke rug)
Wat zeggen jullie hierover?
Atlas#22744
Bedankt voor je reactie, hij moest voor ander formaat kasten naar een ander merk waar hij minder korting op Had. Dit scheelde grofweg 1000 euro.Kasai schreef op maandag 7 augustus 2017 @ 13:34:
[...]
Vreemde bespaaroptie vind ik, de plint hoogte zou niet heel duur moeten zijn. Qua hoogte zou ik voor de 100cm gaan als dat voor jullie de beste werkhoogte is.
12 x 385Wp op HD4000SolarEdge zuid 13° pvoutput
Onze keuken was 24.000 bij de keukenconcurrent, met daarin zelfs de budget opties qua kast indeling en apparatuur.Lekkerboeie86 schreef op zondag 6 augustus 2017 @ 11:01:
[...]
Die doelgroep is helaas ontzettend groot en helaas geloven de kopers ook nog in deze stunt praktijken.
Ga eens naar een nette zaak en geef aan dat je geen euro korting wil, en echt de netto prijs verwacht. Je zult verbaasd zijn wat een ontspannen gesprek je zult hebben. En hoe prettig de prijs kan zijn.
Bij de keukenloods uiteindelijk voor 9000 de keuken kunnen ophalen, en daar was het openingsbod ook gewoon 9000, ondanks vele pogingen. De verkoper was heel simpel; dit is de prijs, wij doen niet aan rare acties. Als je minder wilt uitgeven ben je vrij om boven in de sale afdeling andere apparatuur uit te zoeken of aanbieding apparatuur op te nemen in de keuken.
Bij de keukenconcurrent wisten ze zelfs te flikken dat we moesten tekenen dat we een keuken wilde kopen, en dat ze dan wel naar de prijs konden kijken. En alleen vandaag!
Vandaag getekend voor onze nieuwe keuken. Het is een Siematic S3 met de volgende apparatuur:
ATAG koelkast 178cm KD22178A
ATAG Combi oven CX4511D
ATAG Combi stoom CS4511D
ATAG inductie 80cm HI8271S
NOVY plafondunit 6830
Miele vaatwasser G4981SCVI
Quooker 3 in 1 PRO3FSCHR
Het heeft een kastenwand bestaande uit 4 kasten van 600 breed en 600 diep en aangrenzend een kast met twee lades voor het koffieapparaat. Deze is 900 breed en 600 diep.
Het eiland is 3000x1000 en is net als de koffiekast voorzien van een composiet blad. Aan de werk kant zitten 2x2 laden van 1200 en daartussen de vaatwasser. Aan de kant waarvan de afbeelding is genomen zitten kasten.2x1200 en 1x600.
De opstelling op de afbeelding klopt nog niet helemaal want de koof met afzuiging doen we langer. Ook weten we nog niet precies hoe breed de ombouw tussen de koffietafel en de hoge kast wordt. Ook is het eiland wit maar door de beperkte rendering lijkt deze grijzig.
Totaal betalen we voor deze keuken inclusief montage 15500 euro. Het is een flink bedrag maar we zijn wel tevreden met wat we daarvoor krijgen.

Ik heb verschillende bedrijven benaderd en Gerwens Küchen uit Duitsland had de scherpste prijs en gaf een goed gevoel
ATAG koelkast 178cm KD22178A
ATAG Combi oven CX4511D
ATAG Combi stoom CS4511D
ATAG inductie 80cm HI8271S
NOVY plafondunit 6830
Miele vaatwasser G4981SCVI
Quooker 3 in 1 PRO3FSCHR
Het heeft een kastenwand bestaande uit 4 kasten van 600 breed en 600 diep en aangrenzend een kast met twee lades voor het koffieapparaat. Deze is 900 breed en 600 diep.
Het eiland is 3000x1000 en is net als de koffiekast voorzien van een composiet blad. Aan de werk kant zitten 2x2 laden van 1200 en daartussen de vaatwasser. Aan de kant waarvan de afbeelding is genomen zitten kasten.2x1200 en 1x600.
De opstelling op de afbeelding klopt nog niet helemaal want de koof met afzuiging doen we langer. Ook weten we nog niet precies hoe breed de ombouw tussen de koffietafel en de hoge kast wordt. Ook is het eiland wit maar door de beperkte rendering lijkt deze grijzig.
Totaal betalen we voor deze keuken inclusief montage 15500 euro. Het is een flink bedrag maar we zijn wel tevreden met wat we daarvoor krijgen.

Ik heb verschillende bedrijven benaderd en Gerwens Küchen uit Duitsland had de scherpste prijs en gaf een goed gevoel
[ Voor 4% gewijzigd door Leon-1985 op 07-08-2017 19:35 ]
Mooie keuken hoor. Lijkt heel erg op de opstelling die ik afgelopen week bij Ekelhof in Duitsland heb laten berekenen. Ook vier hoge kasten een eiland van 2m80 x 1m20. Apparatuur van Siemens (combi magnetron, combi stoom, inductie, afzuiging, vaatwasser) + cooker. Blad van keramiek.Leon-1985 schreef op maandag 7 augustus 2017 @ 19:31:
Vandaag getekend voor onze nieuwe keuken. Het is een Siematic S3 met de volgende apparatuur:
ATAG koelkast 178cm KD22178A
ATAG Combi oven CX4511D
ATAG Combi stoom CS4511D
ATAG inductie 80cm HI8271S
NOVY plafondunit 6830
Miele vaatwasser G4981SCVI
Quooker 3 in 1 PRO3FSCHR
Het heeft een kastenwand bestaande uit 4 kasten van 600 breed en 600 diep en aangrenzend een kast met twee lades voor het koffieapparaat. Deze is 900 breed en 600 diep.
Het eiland is 3000x1000 en is net als de koffiekast voorzien van een composiet blad. Aan de werk kant zitten 2x2 laden van 1200 en daartussen de vaatwasser. Aan de kant waarvan de afbeelding is genomen zitten kasten.2x1200 en 1x600.
De opstelling op de afbeelding klopt nog niet helemaal want de koof met afzuiging doen we langer. Ook weten we nog niet precies hoe breed de ombouw tussen de koffietafel en de hoge kast wordt. Ook is het eiland wit maar door de beperkte rendering lijkt deze grijzig.
Totaal betalen we voor deze keuken inclusief montage 15500 euro. Het is een flink bedrag maar we zijn wel tevreden met wat we daarvoor krijgen.
[afbeelding]
Ik heb verschillende bedrijven benaderd en Gerwens Küchen uit Duitsland had de scherpste prijs en gaf een goed gevoel
Prijs 19k. Ik vermoed met wat onderhandelen dat ik wel op 18k kan uitkomen.
Jou aanbieding ziet er toch scherper uit. Niet alleen door de prijs maar ook doordat het Siematic keuken is. Heb je moeten onderhandelen voor deze prijs?
Lekker duurzaam. Skoda Enyaq EV - First edtion, Alpha Innotec Brine warmtepomp (MSW2-6S), Totaal 12135 Wp aan Zonnepanelen geïnstalleerd.
Als eerste gingen we naar Mandemakers puur om te oriënteren. Terwijl we bij de Siematic keukens stonden kwam een verkoper. Vroeg of we dit mooi vinden. We zeiden ja maar is te duur. Dat gaat meevallen zei hij. Dus onze ideeën doorgeven en volgens de verkoper goede apparatuur laten adviseren. Kwam gelukkig niet met garantie gelul met meerdere apparaten van het zelfde merk maar zei dat bijvoorbeeld Miele goede vaatwassers heeft maar dat je van hun niet beslist een kookplaat hoeft te nemen. Twee weken later kwamen we terug voor een tekening en offerte. Na een showtje met korting kwam een bedrag tegen de 19k als voorstel. "Dit valt mooi binnen jullie budget of niet?" Ik zei dat we geen budget hadden afgesproken en we aan mac 15k zaten te denken en deze zaak de eerste en niet de laatste is waar we heen gaan. Toen kwam 14800 ex montage naar voren. Verder geen aandringen voor tekenen en keurig tekeningen en stuklijst mee.GAEvakYD schreef op maandag 7 augustus 2017 @ 21:24:
[...]
Mooie keuken hoor. Lijkt heel erg op de opstelling die ik afgelopen week bij Ekelhof in Duitsland heb laten berekenen. Ook vier hoge kasten een eiland van 2m80 x 1m20. Apparatuur van Siemens (combi magnetron, combi stoom, inductie, afzuiging, vaatwasser) + cooker. Blad van keramiek.
Prijs 19k. Ik vermoed met wat onderhandelen dat ik wel op 18k kan uitkomen.
Jou aanbieding ziet er toch scherper uit. Niet alleen door de prijs maar ook doordat het Siematic keuken is. Heb je moeten onderhandelen voor deze prijs?
Doordat een Siematic keuken makkelijk vergelijken is heb ik verschillende bedrijven gemaild en gezegd dat we dit krijgen voor 14800 inclusief montage. Op de offerte stond een eiland van 270x90cm. Maar ik zei dat die 100cm diep is.
De meeste offertes zaten tussen de 16500 en 17k in. Alleen Gerwens op 14500. Daarbij was het eiland wel 240cm lang ipv 270cm en een blad van graniet ipv composiet. Daarom wisten we dat het nog wat duurder ging worden. Ook omdat we toch een eiland van 300cm wilden
Vandaag een goed laatste gesprek gehad met de eindprijs van 15500.
Did max 15k die je genoemd hebt heeft je prijs bepaald. Had jeep max 14k gezegd had hij m n paar euro daaronder gezet en waarschijnlijk met nog lagere bedragen ook.Leon-1985 schreef op maandag 7 augustus 2017 @ 22:20:
[...]
Als eerste gingen we naar Mandemakers puur om te oriënteren. Terwijl we bij de Siematic keukens stonden kwam een verkoper. Vroeg of we dit mooi vinden. We zeiden ja maar is te duur. Dat gaat meevallen zei hij. Dus onze ideeën doorgeven en volgens de verkoper goede apparatuur laten adviseren. Kwam gelukkig niet met garantie gelul met meerdere apparaten van het zelfde merk maar zei dat bijvoorbeeld Miele goede vaatwassers heeft maar dat je van hun niet beslist een kookplaat hoeft te nemen. Twee weken later kwamen we terug voor een tekening en offerte. Na een showtje met korting kwam een bedrag tegen de 19k als voorstel. "Dit valt mooi binnen jullie budget of niet?" Ik zei dat we geen budget hadden afgesproken en we aan mac 15k zaten te denken en deze zaak de eerste en niet de laatste is waar we heen gaan. Toen kwam 14800 ex montage naar voren. Verder geen aandringen voor tekenen en keurig tekeningen en stuklijst mee.
Doordat een Siematic keuken makkelijk vergelijken is heb ik verschillende bedrijven gemaild en gezegd dat we dit krijgen voor 14800 inclusief montage. Op de offerte stond een eiland van 270x90cm. Maar ik zei dat die 100cm diep is.
De meeste offertes zaten tussen de 16500 en 17k in. Alleen Gerwens op 14500. Daarbij was het eiland wel 240cm lang ipv 270cm en een blad van graniet ipv composiet. Daarom wisten we dat het nog wat duurder ging worden. Ook omdat we toch een eiland van 300cm wilden
Vandaag een goed laatste gesprek gehad met de eindprijs van 15500.
Dat is altijd lastig om te bepalen. Misschien had de verkoper dan wel de apparatuur aangepast of gezegd dat de keuken geen Siematic kon zijn maar wel een ander merk in dezelfde opstelling.mark-k schreef op maandag 7 augustus 2017 @ 23:53:
[...]
Did max 15k die je genoemd hebt heeft je prijs bepaald. Had jeep max 14k gezegd had hij m n paar euro daaronder gezet en waarschijnlijk met nog lagere bedragen ook.
@Leon-1985 Met de prijs is volgens mij niet veel mis. Wellicht dat je er nog een duizend van af had kunnen krijgen maar ja hindsight is 20/20.
Laat vooral weten hoe het zetten is gegaan en hoe de aftercare en service bevallen is. Want laten we eerlijk zijn daar is waar een winkel in uit moet blinken.
Laat vooral weten hoe het zetten is gegaan en hoe de aftercare en service bevallen is. Want laten we eerlijk zijn daar is waar een winkel in uit moet blinken.
Game PC
2 Post or Not 2 Post What's the question ?
"If it ain't broken, you didn't try hard enough"
Precies. Hopelijk begint de bouw van ons huis nog voor de jaarwisseling maar waarschijnlijk pas 2018. Dus begin zomer weten we of de aanbieder een goede keus is geweest. De indruk tot nu toe is dik in orde in ieder geval.Shunt schreef op dinsdag 8 augustus 2017 @ 08:56:
@Leon-1985 Met de prijs is volgens mij niet veel mis. Wellicht dat je er nog een duizend van af had kunnen krijgen maar ja hindsight is 20/20.
Laat vooral weten hoe het zetten is gegaan en hoe de aftercare en service bevallen is. Want laten we eerlijk zijn daar is waar een winkel in uit moet blinken.
Leuke keuken, denk alleen dat je ipv de HI8271S wel mooie platen voor dat geld kunt krijgen.Leon-1985 schreef op maandag 7 augustus 2017 @ 19:31:
Vandaag getekend voor onze nieuwe keuken. Het is een Siematic S3 met de volgende apparatuur:
ATAG koelkast 178cm KD22178A
ATAG Combi oven CX4511D
ATAG Combi stoom CS4511D
ATAG inductie 80cm HI8271S
NOVY plafondunit 6830
Miele vaatwasser G4981SCVI
Quooker 3 in 1 PRO3FSCHR
Het heeft een kastenwand bestaande uit 4 kasten van 600 breed en 600 diep en aangrenzend een kast met twee lades voor het koffieapparaat. Deze is 900 breed en 600 diep.
Het eiland is 3000x1000 en is net als de koffiekast voorzien van een composiet blad. Aan de werk kant zitten 2x2 laden van 1200 en daartussen de vaatwasser. Aan de kant waarvan de afbeelding is genomen zitten kasten.2x1200 en 1x600.
De opstelling op de afbeelding klopt nog niet helemaal want de koof met afzuiging doen we langer. Ook weten we nog niet precies hoe breed de ombouw tussen de koffietafel en de hoge kast wordt. Ook is het eiland wit maar door de beperkte rendering lijkt deze grijzig.
Totaal betalen we voor deze keuken inclusief montage 15500 euro. Het is een flink bedrag maar we zijn wel tevreden met wat we daarvoor krijgen.
[afbeelding]
Ik heb verschillende bedrijven benaderd en Gerwens Küchen uit Duitsland had de scherpste prijs en gaf een goed gevoel
Met gestrekt been.
We hebben bewust voor deze plaat gekozen omdat we geen behoefte hebben aan een vijf pits en/of brug-functies. Qua indeling, bediening en ruimte kwam deze voor ons als beste naar voren.artbij schreef op dinsdag 8 augustus 2017 @ 09:56:
[...]
Leuke keuken, denk alleen dat je ipv de HI8271S wel mooie platen voor dat geld kunt krijgen.
Ook wij zijn in een vergevorderd stadium hoe ons globaal ontwerp van de keuken eruit moet zien. De huidige hoekkeuken willen we vervangen door u-keuken met schiereiland:



Huidige woonkamer:

Alternatieve opstelling:

Afmetingen:
- doorgang is 85 cm
- ruimte tussen keukenwand en schiereiland is 1m
- keuken is 273 cm breed en 196 diep ter hoogte van achterwanden
- de afmetingen aan de voor- en linkerzijde keuken zijn 286 cm breed en 176 diep
Schiereiland is 2m x 1m.
Voor de apparatuur willen we een combinatie van iq700 en iq500 van Siemens.
Budget:
- apparatuur 4000
- keukenkasten 4000
- werkblad 2000
- voorbereiding, montage/installatie en afwerking 2000
Tips en adviezen over ontwerp & budget zijn welkom!



Huidige woonkamer:

Alternatieve opstelling:

Afmetingen:
- doorgang is 85 cm
- ruimte tussen keukenwand en schiereiland is 1m
- keuken is 273 cm breed en 196 diep ter hoogte van achterwanden
- de afmetingen aan de voor- en linkerzijde keuken zijn 286 cm breed en 176 diep
Schiereiland is 2m x 1m.
Voor de apparatuur willen we een combinatie van iq700 en iq500 van Siemens.
Budget:
- apparatuur 4000
- keukenkasten 4000
- werkblad 2000
- voorbereiding, montage/installatie en afwerking 2000
Tips en adviezen over ontwerp & budget zijn welkom!
[ Voor 115% gewijzigd door peterb1969 op 08-08-2017 13:19 ]
Verwijderd
Mijn broertje ging ook voor een nieuwe keuken naar deze oplichters toko. Hele ding laten doorrekenen (hij is kok, dus wil thuis ook een goede keuken). Kwamen ze uit op ~30K. Broerlief heeft ze nog net niet uitgelachen (ter info, ongeveer een identieke keuken had hij bij een andere toko voor 12K laten berekenen).Edwin88 schreef op maandag 7 augustus 2017 @ 13:53:
[...]
Bij de keukenconcurrent wisten ze zelfs te flikken dat we moesten tekenen dat we een keuken wilde kopen, en dat ze dan wel naar de prijs konden kijken. En alleen vandaag!
Probleem was echter dat het al na sluiting was, en dat ze mijn broertje niet wilde laten weggaan zonder te tekenen, want ze waren zo lang bezig geweest.
112 moest er aan te pas komen.
lijkt mij wat goedkoop in nederland, maar ik laat me graag verrassen.peterb1969 schreef op dinsdag 8 augustus 2017 @ 11:13:
Ook wij zijn in een vergevorderd stadium hoe ons globaal ontwerp van de keuken eruit moet zien. De huidige hoekkeuken willen we vervangen door u-keuken met schiereiland:
[afbeelding]
[afbeelding]
[afbeelding]
Afmetingen:
- doorgang is 85 cm
- ruimte tussen keukenwand en schiereiland is 1m
- keuken is 273 cm breed en 196 diep ter hoogte van achterwanden
- de afmetingen aan de voor- en linkerzijde keuken zijn 286 cm breed en 176 diep
Schiereiland is 2m x 1m.
Voor de apparatuur willen we een combinatie van iq700 en iq500 van Siemens.
Budget:
- apparatuur 4000
- keukenkasten 4000
- werkblad 2000
- voorbereiding, montage/installatie en afwerking 2000
Tips en adviezen over ontwerp & budget zijn welkom!
12 x 385Wp op HD4000SolarEdge zuid 13° pvoutput
Denk je niet dat het stuk links van het fornuis lastig bereikbaar is als je aan het koken bent? Als er bijvoorbeeld een grote soeppan op staat kan je links bijna niks neerleggen.peterb1969 schreef op dinsdag 8 augustus 2017 @ 11:13:
Ook wij zijn in een vergevorderd stadium hoe ons globaal ontwerp van de keuken eruit moet zien. De huidige hoekkeuken willen we vervangen door u-keuken met schiereiland:
...
Afmetingen:
- doorgang is 85 cm
- ruimte tussen keukenwand en schiereiland is 1m
- keuken is 273 cm breed en 196 diep ter hoogte van achterwanden
- de afmetingen aan de voor- en linkerzijde keuken zijn 286 cm breed en 176 diep
...
Schiereiland is 2m x 1m.
..
Je zou kunnen overwegen een iets groter kookplateau op het eiland te nemen, met een inbouw afzuig unit. Dan kan de wasbak op de plek van de kookplaat. Het voordeel is dat je dan de afzuigkap niet meer zo in beeld hebt
Heb je een overzicht van de hele huiskamer? Dat geeft een iets beter beeld van de keuken in de omgeving.
Ik heb een foto in de post toegevoegd van de huidige keuken en huiskamer. De totale kamer is 11 m lang. Afstand vanaf de keuken naar voren is ruim 6m en schuin tegenover zit de inbouwhaard. De bedoeling is dat aan de tegenoverliggende zijde een wandkast overlopend in eetkamerbank bouwen/kopen. De tafel zetten we dan parallel aan het kookeiland. In de uitbouw zetten we dan een lekker loungechair neer.
Volgens mij zijn de kosten van zo'n inbouwunit aanzienlijk en een verlaagd plafond op een verlaagd plafond ziet er volgens mij niet uit. Maar idd we twijfelen wel rondom de werkruimte van de kookplaat.
Een optie zou ook kunnen zijn de afstand tussen schiereiland en wandkast met bv 10cm te vergroten maar dat gaat dan weer ten koste van de woonkamerruimte.
Een andere optie die we ook bekijken is om de 3e hoge kast te laten vervallen en daar een onderkast van te maken en daarboven eventueel bovenkastjes rondom inclusief afzuigkap inbouw. Zie alternatieve opstelling.
@Snowhite0901 op welk aspect(en) van het budget zit het krap volgens jou?
Volgens mij zijn de kosten van zo'n inbouwunit aanzienlijk en een verlaagd plafond op een verlaagd plafond ziet er volgens mij niet uit. Maar idd we twijfelen wel rondom de werkruimte van de kookplaat.
Een optie zou ook kunnen zijn de afstand tussen schiereiland en wandkast met bv 10cm te vergroten maar dat gaat dan weer ten koste van de woonkamerruimte.
Een andere optie die we ook bekijken is om de 3e hoge kast te laten vervallen en daar een onderkast van te maken en daarboven eventueel bovenkastjes rondom inclusief afzuigkap inbouw. Zie alternatieve opstelling.
@Snowhite0901 op welk aspect(en) van het budget zit het krap volgens jou?
[ Voor 8% gewijzigd door peterb1969 op 08-08-2017 13:23 ]
Verwijderd
Hallo iedereen,
Ik heb even een brutale vraag en ik heb geen idee of dit hier is toegestaan
*knip* Nee dus. Zie ook Een enquête, onderzoek of schoolopdracht? Lees eerst dit!
Ik heb even een brutale vraag en ik heb geen idee of dit hier is toegestaan
*knip* Nee dus. Zie ook Een enquête, onderzoek of schoolopdracht? Lees eerst dit!
[ Voor 59% gewijzigd door naitsoezn op 08-08-2017 14:48 ]
Wij willen eigenlijk ook een plafond afzuiging. Maar vind je een extra gevel motor het echt waard tov een binnenshuis motor die je ergens anders kan plaatsen?RUFFNECK schreef op vrijdag 28 juli 2017 @ 12:10:
Zo, nav van de, ook hier genoemde, kleur update van de Siemens ovens heb ik deze nu besteld in plaats van wat ik had in mijn order. Ziet er toch wat gelikter uit...
Ik had: combi oven/magnetron HN878G4S1 en bakoven met stoom HS858GXS1.
Nu heb ik: combi oven/magnetron HN878G4B6 en bakoven met stoom HS858GXB6.
Dit voor 'maar' 150 eur. meer in totaal, maar dat zie ik maar als meerprijs voor dat Home Connect (wat ik niet per se wil, maar de modellen zonder HC zijn nog niet in het zwart).
De rest van mijn apparatuur (volgens mij had ik dat nog niet gepost):Oja, en een stopcontact evoline backflip in het 305x120cm keramisch werkblad Jetstone Barro Satin
- Siemens koel/vrieskast KI86SSD30
- Siemens inductiekookplaat 90cm EX907LXC1E
- Siemens vaatwasser SN858D05TE
- Quooker Flex RVS met PRO3-VAQ reservoir
- Afzuigunit Novy 6846 120cm met Novy gevelmotor 445999
Voor al het Siemens apparatuur + de Quooker ben ik 6600 kwijt. De rest komt vanuit de keukenleverancier.
Want de Novy 6841 is inclusief binnenshuis motor en de 6846 is zonder motor. Het prijsverschil is echter maar 70 euro.
ID4.1M Honey Yellow. WP: PUZ-SWM60VAA+ERST30F-VM2EE (cylinder unit)
Verwijderd
Hell zeg, wat een idioten. Stiekem ben ik wel erg nieuwsgierig welke zaak en waar dit is geweest.Verwijderd schreef op dinsdag 8 augustus 2017 @ 11:31:
[...]
Mijn broertje ging ook voor een nieuwe keuken naar deze oplichters toko. Hele ding laten doorrekenen (hij is kok, dus wil thuis ook een goede keuken). Kwamen ze uit op ~30K. Broerlief heeft ze nog net niet uitgelachen (ter info, ongeveer een identieke keuken had hij bij een andere toko voor 12K laten berekenen).
Probleem was echter dat het al na sluiting was, en dat ze mijn broertje niet wilde laten weggaan zonder te tekenen, want ze waren zo lang bezig geweest.
112 moest er aan te pas komen.
Ik heb een nieuwe woning gekocht en mag er over een paar weken ook daadwerkelijk in. Nu zit er de volgende keuken in: https://cloud.funda.nl/valentina_media/083/126/131_1440.jpg
Ik heb niet het geld om er een nieuwe in te zetten en eigenlijk ook (nog) niet echt de behoefte. Maar ik wil een beetje input van jullie over wat ik het beste kan doen.
Er zit momenteel geen oven in. Dat vind ik een gemis. Is het relatief eenvoudig om een kastje op te offeren voor een inbouw combioven? Of moet ik voor een los model gaan? Daarnaast, combi oven of alleen oven en losse magnetron. Ik wil niet de hoofdprijs gaan betalen waar ik vervolgens niet eens een fatsoenlijke ovenschaal in kwijt kan.
Als laatste vind ik de kleuren van de kastjes echt vreselijk, maar zal ik het wit maken of toch iets anders? Ik heb echt geen idee wat nou werkt en wat niet in zo'n keuken.
Ik heb niet het geld om er een nieuwe in te zetten en eigenlijk ook (nog) niet echt de behoefte. Maar ik wil een beetje input van jullie over wat ik het beste kan doen.
Er zit momenteel geen oven in. Dat vind ik een gemis. Is het relatief eenvoudig om een kastje op te offeren voor een inbouw combioven? Of moet ik voor een los model gaan? Daarnaast, combi oven of alleen oven en losse magnetron. Ik wil niet de hoofdprijs gaan betalen waar ik vervolgens niet eens een fatsoenlijke ovenschaal in kwijt kan.
Als laatste vind ik de kleuren van de kastjes echt vreselijk, maar zal ik het wit maken of toch iets anders? Ik heb echt geen idee wat nou werkt en wat niet in zo'n keuken.
blup
Nog 3 alternatieven maar dan het spoeleiland naar links en 180 x 1m.

Veel meer andere mogelijkheden zie ik niet.

Veel meer andere mogelijkheden zie ik niet.
[ Voor 7% gewijzigd door peterb1969 op 08-08-2017 21:34 ]
Kan, maar de afvoer/buis heb ik nu meteen goed laten meestorten in de breedplaatvloer. Ik kan de koof/verlaging voor de unit nu zo minimaal mogelijk houden. Een motor elders binnen zou alleen in de bijkeuken/garage kunnen die naast de keuken is, maar aangezien het plafond daar wat lager is dan de de BG van de woning zou ik de afvoer/buis een stuk lager moeten doen om onder het plafond van de garage uit te komen met als gevolg een vrij hoge koof/verlaging en dat wil ik niet.ReseT schreef op dinsdag 8 augustus 2017 @ 14:43:
[...]
Wij willen eigenlijk ook een plafond afzuiging. Maar vind je een extra gevel motor het echt waard tov een binnenshuis motor die je ergens anders kan plaatsen?
Want de Novy 6841 is inclusief binnenshuis motor en de 6846 is zonder motor. Het prijsverschil is echter maar 70 euro.
De verlaging gaat dus tegen de muur aan waar de garage/bijkeuken achter zit. Onderstaand lijkt de koof vrij hoog, maar is slechts impressie, in het echt zal ie max 15cm zijn begreep ik.

[ Voor 14% gewijzigd door RUFFNECK op 08-08-2017 21:44 ]
Ik zou deze indeling aanhouden. Op deze manier loop je elkaar ook niet in de weg als er iemand naar buiten wil terwijl er ook iemand aan het koken is.peterb1969 schreef op dinsdag 8 augustus 2017 @ 11:13:
Ook wij zijn in een vergevorderd stadium hoe ons globaal ontwerp van de keuken eruit moet zien. De huidige hoekkeuken willen we vervangen door u-keuken met schiereiland:
[afbeelding]
[afbeelding]
[afbeelding]
Huidige woonkamer:
[afbeelding]
Alternatieve opstelling:
[afbeelding]
Afmetingen:
- doorgang is 85 cm
- ruimte tussen keukenwand en schiereiland is 1m
- keuken is 273 cm breed en 196 diep ter hoogte van achterwanden
- de afmetingen aan de voor- en linkerzijde keuken zijn 286 cm breed en 176 diep
Schiereiland is 2m x 1m.
Voor de apparatuur willen we een combinatie van iq700 en iq500 van Siemens.
Budget:
- apparatuur 4000
- keukenkasten 4000
- werkblad 2000
- voorbereiding, montage/installatie en afwerking 2000
Tips en adviezen over ontwerp & budget zijn welkom!
Wow! Da's gewoon gijzeling en volgens mij hardstikke strafbaar.Verwijderd schreef op dinsdag 8 augustus 2017 @ 11:31:
[...]
Mijn broertje ging ook voor een nieuwe keuken naar deze oplichters toko. Hele ding laten doorrekenen (hij is kok, dus wil thuis ook een goede keuken). Kwamen ze uit op ~30K. Broerlief heeft ze nog net niet uitgelachen (ter info, ongeveer een identieke keuken had hij bij een andere toko voor 12K laten berekenen).
Probleem was echter dat het al na sluiting was, en dat ze mijn broertje niet wilde laten weggaan zonder te tekenen, want ze waren zo lang bezig geweest.
112 moest er aan te pas komen.
Ik neem aan dat je broertje aangifte heeft gedaan tegen die mafkezen?
(En ja hoor, dat is er dus ook eentje van DMG: Wikipedia: De Mandemakers Groep Wat een verrassing...)
Ná Scaoll. - Don’t Panic.
Stel je toch niet aan kerel. Denk je nou echt dat ze hem probeerde te dwingen om te tekenen?unezra schreef op dinsdag 8 augustus 2017 @ 22:49:
[...]
Wow! Da's gewoon gijzeling en volgens mij hardstikke strafbaar.
Ik neem aan dat je broertje aangifte heeft gedaan tegen die mafkezen?
(En ja hoor, dat is er dus ook eentje van DMG: Wikipedia: De Mandemakers Groep Wat een verrassing...)
Met gestrekt been.
Dat is toch precies wat er staat? Dat 'ie 112 moest bellen om het pand te mogen verlaten?artbij schreef op dinsdag 8 augustus 2017 @ 22:56:
[...]
Stel je toch niet aan kerel. Denk je nou echt dat ze hem probeerde te dwingen om te tekenen?
DAT is dus DMG en dat is dus precies een van de redenen waarom ik die hele groep een spoedig failissement toe wens. Zo ga je gewoon niet met klanten om. (Los van dat gijzeling daadwerkelijk en terecht strafbaar is.)
Ná Scaoll. - Don’t Panic.
In de keuken zit geen deur, maar een raam van boven naar onderen. De deur zit om de hoek in de woonkamer.
Dat staat er niet.unezra schreef op dinsdag 8 augustus 2017 @ 23:00:
[...]
Dat is toch precies wat er staat? Dat 'ie 112 moest bellen om het pand te mogen verlaten?
DAT is dus DMG en dat is dus precies een van de redenen waarom ik die hele groep een spoedig failissement toe wens. Zo ga je gewoon niet met klanten om. (Los van dat gijzeling daadwerkelijk en terecht strafbaar is.)
Daarnaast is het een typisch café verhaal. En niet relevant voor dit topic....
Met gestrekt been.
Er staat letterlijk dat ze 'm niet wilden laten gaan omdat ze er zo lang mee bezig waren geweest. Café verhaal, kan, maar in dit geval gaat het niet om een "van horen zeggen" maar om het broertje van @Spoonlift en dan heb ik toch iets meer redenen om het verhaal voor waar aan te nemen. Zeker omdat je meer dan eens ellende hoort over DMG.artbij schreef op woensdag 9 augustus 2017 @ 00:50:
[...]
Dat staat er niet.
Daarnaast is het een typisch café verhaal. En niet relevant voor dit topic....
Overigens vind ik het wel relevant voor dit topic. Dit topic gaat namelijk ook over "waar moet ik mijn keuken wel/niet" kopen en dan zijn dit soort verhalen meer dan relevant.
Zo'n verhaal af doen als "niet relevant" en "typisch café verhaal" vind ik wat gemakkelijk. Zou het nu het enige ellendeverhaal over DMG zijn, sure thing, maar juist van hen hoor je de meest idiote verhalen en het verrast me dus niet.
Ná Scaoll. - Don’t Panic.
We zitten nog een beetje te twijfelen over de afstand tussen kastenwand en kookeiland. In de onderstaande afbeelding zijn de maten zoals we in gedachten hebben alleen vragen we ons af of de meter tussenruimte wel genoeg is om fijn te koken (verkoper gaf 1200 aan) en er nog iemand wat uit de kasten kan pakken. Aan de andere kant willen we zoveel mogelijk ruimte voor de eettafel. Die is nu nog vrij bescheiden qua afmeting maar we willen in de toekomst een grote eettafel. Ook is de ruimte tussen tafel en eiland een doorloop naar de tuindeuren waardoor het niet te krap moet.Leon-1985 schreef op maandag 7 augustus 2017 @ 19:31:
Vandaag getekend voor onze nieuwe keuken. Het is een Siematic S3 met de volgende apparatuur:
ATAG koelkast 178cm KD22178A
ATAG Combi oven CX4511D
ATAG Combi stoom CS4511D
ATAG inductie 80cm HI8271S
NOVY plafondunit 6830
Miele vaatwasser G4981SCVI
Quooker 3 in 1 PRO3FSCHR
Het heeft een kastenwand bestaande uit 4 kasten van 600 breed en 600 diep en aangrenzend een kast met twee lades voor het koffieapparaat. Deze is 900 breed en 600 diep.
Het eiland is 3000x1000 en is net als de koffiekast voorzien van een composiet blad. Aan de werk kant zitten 2x2 laden van 1200 en daartussen de vaatwasser. Aan de kant waarvan de afbeelding is genomen zitten kasten.2x1200 en 1x600.
De opstelling op de afbeelding klopt nog niet helemaal want de koof met afzuiging doen we langer. Ook weten we nog niet precies hoe breed de ombouw tussen de koffietafel en de hoge kast wordt. Ook is het eiland wit maar door de beperkte rendering lijkt deze grijzig.
Totaal betalen we voor deze keuken inclusief montage 15500 euro. Het is een flink bedrag maar we zijn wel tevreden met wat we daarvoor krijgen.
[afbeelding]
Ik heb verschillende bedrijven benaderd en Gerwens Küchen uit Duitsland had de scherpste prijs en gaf een goed gevoel
De afmetingen van de kasten en eiland zullen in de praktijk wat groter zijn denk ik waardoor we ongeveer 3200mm tussen eiland en muur krijgen.
De keuken is er door de architect ingetekend als voorbeeld maar klopt niet helemaal met de getekende maten.
112 erbij komen is sowieso iets van niet bestaat.unezra schreef op woensdag 9 augustus 2017 @ 06:59:
[...]
Er staat letterlijk dat ze 'm niet wilden laten gaan omdat ze er zo lang mee bezig waren geweest. Café verhaal, kan, maar in dit geval gaat het niet om een "van horen zeggen" maar om het broertje van @Spoonlift en dan heb ik toch iets meer redenen om het verhaal voor waar aan te nemen. Zeker omdat je meer dan eens ellende hoort over DMG.
Overigens vind ik het wel relevant voor dit topic. Dit topic gaat namelijk ook over "waar moet ik mijn keuken wel/niet" kopen en dan zijn dit soort verhalen meer dan relevant.
Zo'n verhaal af doen als "niet relevant" en "typisch café verhaal" vind ik wat gemakkelijk. Zou het nu het enige ellendeverhaal over DMG zijn, sure thing, maar juist van hen hoor je de meest idiote verhalen en het verrast me dus niet.
112 bel je voor spoed gevallen waarbij je brandweer, politie of ambulance nodig hebt. Ik kan me geen situatie voorstellen dat er spoed nodig is geweest.
Met gestrekt been.
Sorry, maar als ik in een winkel sta, naar buiten wil en ze laten me niet gaan, is dat absoluut reden om 112 te bellen. Je word immers gegijzeld. Als dat werkelijk de situatie is geweest, was 112 absoluut de juiste methode en zoals gezegd, als je de DMG verhalen leest, verrast het me niet eens.artbij schreef op woensdag 9 augustus 2017 @ 08:18:
[...]
112 erbij komen is sowieso iets van niet bestaat.
112 bel je voor spoed gevallen waarbij je brandweer, politie of ambulance nodig hebt. Ik kan me geen situatie voorstellen dat er spoed nodig is geweest.
Maar goed, kan zijn dat @Spoonlift het verhaal wat dikker heeft aangezet natuurlijk.
Ná Scaoll. - Don’t Panic.
Wij hanteren 1100 tussen de kastenwand en het werkblad en ik kreeg bevestiging van mijn keukenzaak dat dat een prima maat isLeon-1985 schreef op woensdag 9 augustus 2017 @ 07:46:
We zitten nog een beetje te twijfelen over de afstand tussen kastenwand en kookeiland. In de onderstaande afbeelding zijn de maten zoals we in gedachten hebben alleen vragen we ons af of de meter tussenruimte wel genoeg is om fijn te koken (verkoper gaf 1200 aan) en er nog iemand wat uit de kasten kan pakken. Aan de andere kant willen we zoveel mogelijk ruimte voor de eettafel. Die is nu nog vrij bescheiden qua afmeting maar we willen in de toekomst een grote eettafel. Ook is de ruimte tussen tafel en eiland een doorloop naar de tuindeuren waardoor het niet te krap moet.
Gangbare maten zijn tussen de 120 en 150cm.Leon-1985 schreef op woensdag 9 augustus 2017 @ 07:46:
[...]
We zitten nog een beetje te twijfelen over de afstand tussen kastenwand en kookeiland. In de onderstaande afbeelding zijn de maten zoals we in gedachten hebben alleen vragen we ons af of de meter tussenruimte wel genoeg is om fijn te koken (verkoper gaf 1200 aan) en er nog iemand wat uit de kasten kan pakken. Aan de andere kant willen we zoveel mogelijk ruimte voor de eettafel. Die is nu nog vrij bescheiden qua afmeting maar we willen in de toekomst een grote eettafel. Ook is de ruimte tussen tafel en eiland een doorloop naar de tuindeuren waardoor het niet te krap moet.
De afmetingen van de kasten en eiland zullen in de praktijk wat groter zijn denk ik waardoor we ongeveer 3200mm tussen eiland en muur krijgen.
De keuken is er door de architect ingetekend als voorbeeld maar klopt niet helemaal met de getekende maten.
[afbeelding]
Ikzelf vind 150 wel veel, minder dan 120 zou ik niet doen. Veel keukenboeren vinden 90cm de minimale maat.
Met gestrekt been.
Wij houden idd 120 aan..loopt wel wat makkelijker langs elkaar als je met meer mensen daar staat (of als vaatwasserdeur open is).
Ik zou mensen afraden naar Mandemakers te gaan. We zijn er een middagje geweest en je komt er niet meer vanaf. We worden bestookt met email, telefoon, proberen ze eerst mij en vervolgens bellen ze mijn vrouw op met de mededeling dat ze mij niet begrijpen, want het is zo'n fantastische keuken.. Het vervelende is dat ze met diverse 06 nummers bellen, dus je weet van tevoren niet wie er belt.
Ik had al veel recensies gelezen en dacht ik geef het toch een kans..
Ik had al veel recensies gelezen en dacht ik geef het toch een kans..
[ Voor 37% gewijzigd door Sport_Life op 09-08-2017 09:45 ]
PV: 9360 WP WZW/ONO | Warmtepomp: Toshiba Estia 8kW 3fase | A+++ | 2x Zappi v2.1
Enige wat je kunt doen is heel duidelijk zijn als ze volgende keer bellen. "We gaan NOOIT bij jullie kopen. Je maakt geen enkele kans en ik wil niet meer gebeld worden."Sport_Life schreef op woensdag 9 augustus 2017 @ 09:41:
Ik zou mensen afraden naar Mandemakers te gaan. We zijn er een middagje geweest en je komt er niet meer vanaf. We worden bestookt met email, telefoon, proberen ze eerst mij en vervolgens bellen ze mijn vrouw op met de mededeling dat ze mij niet begrijpen, want het is zo'n fantastische keuken.. Het vervelende is dat ze met diverse 06 nummers bellen, dus je weet van tevoren niet wie er belt.
Ik had al veel recensies gelezen en dacht ik geef het toch een kans..
Ze blijven proberen, omdat ze denken dat ze met drammen toch een kans maken.
We hadden als eerste gekeken en een gesprek bij Mandemakers gehad. Was erg ontspannen alleen dat gezeur met hapjes is een beetje irritant maar dat wisten we van tevoren. Vooraf gaven we aan dat we een oriënterend gesprek wilden en sowieso niks gaan beslissen. Naderhand een nette prijs en tekening gehad met de boodschap dat we er maar rustig over na moeten denken.Sport_Life schreef op woensdag 9 augustus 2017 @ 09:41:
Ik zou mensen afraden naar Mandemakers te gaan. We zijn er een middagje geweest en je komt er niet meer vanaf. We worden bestookt met email, telefoon, proberen ze eerst mij en vervolgens bellen ze mijn vrouw op met de mededeling dat ze mij niet begrijpen, want het is zo'n fantastische keuken.. Het vervelende is dat ze met diverse 06 nummers bellen, dus je weet van tevoren niet wie er belt.
Ik had al veel recensies gelezen en dacht ik geef het toch een kans..
Verder geen gedram of telefoontjes gehad.
Misschien hadden we geluk en net een goede dag....
En het *werkt*.jusv schreef op woensdag 9 augustus 2017 @ 09:59:
[...]
Enige wat je kunt doen is heel duidelijk zijn als ze volgende keer bellen. "We gaan NOOIT bij jullie kopen. Je maakt geen enkele kans en ik wil niet meer gebeld worden."
Ze blijven proberen, omdat ze denken dat ze met drammen toch een kans maken.
Ze zijn geloof ik met afstand de grootste keukenboer van Nederland.
Dus de mes-op-de-keel & TellSell verkooptactieken zijn ongelooflijk effectief. Business-technisch geniaal. Je moet alleen geen last hebben van een geweten om daar te werken. (Of je geweten maar uitschakelen omdat je toch ergens je brood mee moet verdienen.)
Ná Scaoll. - Don’t Panic.
Apart dat dit werkt. Ik ben er totaal niet gevoelig voor en ik begrijp niet dat anderen dit wel (kunnen) zijn...unezra schreef op woensdag 9 augustus 2017 @ 10:11:
[...]
En het *werkt*.
Ze zijn geloof ik met afstand de grootste keukenboer van Nederland.
Dus de mes-op-de-keel & TellSell verkooptactieken zijn ongelooflijk effectief. Business-technisch geniaal. Je moet alleen geen last hebben van een geweten om daar te werken. (Of je geweten maar uitschakelen omdat je toch ergens je brood mee moet verdienen.)
Mijn boefje is liev!
Gewoon beroepen op het Recht van Verzet, dan zijn ze wettelijk verplicht om te stoppen met bellen.jusv schreef op woensdag 9 augustus 2017 @ 09:59:
[...]
Enige wat je kunt doen is heel duidelijk zijn als ze volgende keer bellen. "We gaan NOOIT bij jullie kopen. Je maakt geen enkele kans en ik wil niet meer gebeld worden."
Ze blijven proberen, omdat ze denken dat ze met drammen toch een kans maken.
Het is heel simpel het werkt net zoals kortingen in de winkel. En daar zijn mensen ook extreem vatbaar voor.JB schreef op woensdag 9 augustus 2017 @ 10:56:
[...]
Apart dat dit werkt. Ik ben er totaal niet gevoelig voor en ik begrijp niet dat anderen dit wel (kunnen) zijn...
Vooral de tactiek VAN 1000(adviesprijs) euro VOOR 500 euro (de echte nieuwprijs zal waarschijnlijk eerder 550 euro zijn) maar mensen zien 50% kortingen en denken KOOOOOPPPPEEEEEEEENNNN!!!!!!
Ik ben er ook totaal niet vatbaar voor.
Bij Grando en Brugmans hebben ze ook zo agressief proberen te verkopen via de telefoon. Daar heb ik extreem duidelijk gemaakt wat mijn mening was over die toko's in zeer kalme maar duidelijke tonen. Laten we zeggen dat de persoon aan de telefoon van beide toko's redelijk stil was aan het einde van het gesprek nooit meer iets van gehoord.
[ Voor 22% gewijzigd door Shunt op 09-08-2017 11:40 ]
Game PC
2 Post or Not 2 Post What's the question ?
"If it ain't broken, you didn't try hard enough"
Dat snap ik nog, maar wat ik niet snap is dat niet iedereen massaal en gillend weg loopt bij het theatherspel en stalking dat DMG bezigt.Shunt schreef op woensdag 9 augustus 2017 @ 11:39:
[...]
Het is heel simpel het werkt net zoals kortingen in de winkel. En daar zijn mensen ook extreem vatbaar voor.
Vooral de tactiek VAN 1000(adviesprijs) euro VOOR 500 euro (de echte nieuwprijs zal waarschijnlijk eerder 550 euro zijn) maar mensen zien 50% kortingen en denken KOOOOOPPPPEEEEEEEENNNN!!!!!!
Ik ben er ook totaal niet vatbaar voor.
Het is niet eens gewoon slim iets van 10 EUR prijzen op 9,99 EUR zodat het goedkoper lijkt. Het is mensen het mes op de keel zetten en theater maken.
Ik ben daar ook niet gevoelig voor, in fact, met dit soort geluiden verdom ik het om zaken te doen met partijen die zulke verkoop praktijken er op na houden.
Het verrast me wel dat er blijkbaar wel heel veel mensen denken "och, ik koop er toch gewoon want ik krijg 40% korting", terwijl zo'n keuken die met veel theater van 10K naar 6K is gegaan, bij een netto boer misschien 5K kost en een beter gevoel geeft.
Ná Scaoll. - Don’t Panic.
Veel mensen vinden juist het gevoel waar ze van 15k naar 7k zijn gegaan mooi. Dat zijn mensen die dat met volle trots vertellen tijdens verjaardagen. Het is veel minder stoer dat je van 10k naar 9.5k bent gegaan.unezra schreef op woensdag 9 augustus 2017 @ 11:42:
[...]
Dat snap ik nog, maar wat ik niet snap is dat niet iedereen massaal en gillend weg loopt bij het theatherspel en stalking dat DMG bezigt.
Het is niet eens gewoon slim iets van 10 EUR prijzen op 9,99 EUR zodat het goedkoper lijkt. Het is mensen het mes op de keel zetten en theater maken.
Ik ben daar ook niet gevoelig voor, in fact, met dit soort geluiden verdom ik het om zaken te doen met partijen die zulke verkoop praktijken er op na houden.
Het verrast me wel dat er blijkbaar wel heel veel mensen denken "och, ik koop er toch gewoon want ik krijg 40% korting", terwijl zo'n keuken die met veel theater van 10K naar 6K is gegaan, bij een netto boer misschien 5K kost en een beter gevoel geeft.
Game PC
2 Post or Not 2 Post What's the question ?
"If it ain't broken, you didn't try hard enough"
Wellicht heeft de locatie en naamsbekendheid ook iets mee te maken?
Ik bedoel maar dat 5 verschillende DMG-aliassen hier met het OV bereikbaar is. De grotere niet-DMG keukenboeren zitten allemaal in industrieterreinen en maken veel minder reclame.
De kleine lokale keukenboeren... tja.. sneu voor hun, maar ik ga zelf liever bij een grotere niet-DMG keukenboer vanwege de grotere kans dat zij bulkkortingen hebben en na 5 jaar nog bestaan.
Ik bedoel maar dat 5 verschillende DMG-aliassen hier met het OV bereikbaar is. De grotere niet-DMG keukenboeren zitten allemaal in industrieterreinen en maken veel minder reclame.
De kleine lokale keukenboeren... tja.. sneu voor hun, maar ik ga zelf liever bij een grotere niet-DMG keukenboer vanwege de grotere kans dat zij bulkkortingen hebben en na 5 jaar nog bestaan.
One thing's certain: the iPad seriously increases toilet time.. tibber uitnodigingscode: bqufpqmp
Tja, als je bij een DMG club je keuken haalt en je zit niet onder de helft van de eerstgenoemde prijs heb je jezelf gewoon laten naaien. De mensen die denken dat ze geweldige onderhandelaars zijn omdat ze er zoveel afgekregen hebben zijn gewoon domme tuubs die je vanalles kunt wijsmaken, geen enkel persoon met een beetje gezond verstand gelooft dat de prijs normaal is geweest als daarna opeens de helft eraf kan.Shunt schreef op woensdag 9 augustus 2017 @ 11:44:
[...]
Veel mensen vinden juist het gevoel waar ze van 15k naar 7k zijn gegaan mooi. Dat zijn mensen die dat met volle trots vertellen tijdens verjaardagen. Het is veel minder stoer dat je van 10k naar 9.5k bent gegaan.
Dat gaat mij een stukje te ver. Het zijn zeker geen domme tuubs (geen idee wat een tuub is maar je punt is duidelijk).mark-k schreef op woensdag 9 augustus 2017 @ 11:48:
[...]
Tja, als je bij een DMG club je keuken haalt en je zit niet onder de helft van de eerstgenoemde prijs heb je jezelf gewoon laten naaien. De mensen die denken dat ze geweldige onderhandelaars zijn omdat ze er zoveel afgekregen hebben zijn gewoon domme tuubs die je vanalles kunt wijsmaken, geen enkel persoon met een beetje gezond verstand gelooft dat de prijs normaal is geweest als daarna opeens de helft eraf kan.
Die mensen zijn gewoon afgegaan op mond tot mond reclame en / of naamsbekendheid uit het verleden. Er zijn mensen die gevoelig zijn voor verkoop tactieken als dit dat maakt iemand niet dom.
Game PC
2 Post or Not 2 Post What's the question ?
"If it ain't broken, you didn't try hard enough"
Daarom zijn wij dus in zee gegaan met een wat kleiner, min of meer lokaal bedrijf. Maar wel een die al -tig jaar bestaat, in die regio behoorlijk bekend is en volledig met eigen personeel werkt.kmf schreef op woensdag 9 augustus 2017 @ 11:45:
Wellicht heeft de locatie en naamsbekendheid ook iets mee te maken?
Ik bedoel maar dat 5 verschillende DMG-aliassen hier met het OV bereikbaar is. De grotere niet-DMG keukenboeren zitten allemaal in industrieterreinen en maken veel minder reclame.
De kleine lokale keukenboeren... tja.. sneu voor hun, maar ik ga zelf liever bij een grotere niet-DMG keukenboer vanwege de grotere kans dat zij bulkkortingen hebben en na 5 jaar nog bestaan.
We zitten voor hen behoorlijk uit de regio (ze zitten in de Achterhoek, wij in de provincie Utrecht) en "even de offerte bespreken" betekend voor ons dik een uur enkele reis in de auto. Maar het is het waard. Nog 1 of 2 gesprekken daar en we zijn rond en verwachten midden januari keuken, badkamer en toilet te renoveren. (Waarbij we overigens Ikea kastjes hebben gekocht vanwege de lage plinthoogte en kleur die we mooier vinden.)
Moet wel zeggen dat het een bedrijf is waar we niet zo snel uit onszelf terecht waren gekomen. Mijn schoonouders hebben daar hun keuken en badkamer door laten plaatsen. Dan zijn de lijntjes weer wat korter. (Het bedrijf is ook zo klein dat als we daar komen, ze echt weten wie we zijn *en* wie de ouders van vrouwlief zijn. Dat is fijn. Prijstechnisch lijken ze niet bijzonder hoog te zitten. Gewoon een eerlijke prijs voor eerlijk werk en met een forse tijdsinvestering van hun kant om het echt goed te krijgen.)
Ná Scaoll. - Don’t Panic.
Dat ze voor de naamsbekendheid gaan maakt ze niet dom nee, en dat iemand gevoelig is voor verkooptechnieken ook niet inderdaad. Wat ze wel dom maakt is dat ze gaan zitten patsen op verjaardagen dat ze zo geweldig zijn 'want ik heb maar mooi even 8k van die prijs af gepraat' en dat ook daadwerkelijk geloven, terwijl het gewoon standaard is dat je de keuken voor de helft van de prijs krijgt bij zo'n oplichterstoko.Shunt schreef op woensdag 9 augustus 2017 @ 11:55:
[...]
Dat gaat mij een stukje te ver. Het zijn zeker geen domme tuubs (geen idee wat een tuub is maar je punt is duidelijk).
Die mensen zijn gewoon afgegaan op mond tot mond reclame en / of naamsbekendheid uit het verleden. Er zijn mensen die gevoelig zijn voor verkoop tactieken als dit dat maakt iemand niet dom.
Als je daadwerkelijk gelooft dat je geweldig bent door zoiets ben je gewoon dom.
Nee dan ben je of goedgelovig of je weet gewoon niet beter.mark-k schreef op woensdag 9 augustus 2017 @ 11:58:
[...]
Dat ze voor de naamsbekendheid gaan maakt ze niet dom nee, en dat iemand gevoelig is voor verkooptechnieken ook niet inderdaad. Wat ze wel dom maakt is dat ze gaan zitten patsen op verjaardagen dat ze zo geweldig zijn 'want ik heb maar mooi even 8k van die prijs af gepraat' en dat ook daadwerkelijk geloven, terwijl het gewoon standaard is dat je de keuken voor de helft van de prijs krijgt bij zo'n oplichterstoko.
Als je daadwerkelijk gelooft dat je geweldig bent door zoiets ben je gewoon dom.
Vergeet eventjes niet dat het "internet" met al zijn mooie voordelen als het delen van dit soort ervaringen redelijk nieuw is en veel van deze mensen die hier erg gevoelig voor zijn hun eerste keukens bij DMG winkels gekocht hebben voor deze tijd. Toen geloofde je gewoon wat de verkoper je vertelde want jij had toch niet echt een manier om het na te kijken. Nu kan je tot bijna op het schroefje nakijken wat een keuken kost en kan je ervaringen na lezen van andere mensen.
Vroeger was juist dat delen van die informatie op verjaardagen de manier om goede en slechte ervaringen te delen. Dus nee dat maakt niemand dom.
Game PC
2 Post or Not 2 Post What's the question ?
"If it ain't broken, you didn't try hard enough"
Heeft er iemand ervaring met Kvik en dan icm andere apparatuur dan dat zij verkopen? Qua meubelen is de keukenboer waar ze we zijn geweest vrij duur en we willen geen consessies maken op het werkblad en de apparatuur. Ikea is eventueel ook nog een optie, maar ik ben best gecharmeerd van XXL kastjes van Kvik, dieper blad etc.
Atlas#22744
Wij zijn ook tot 2x toe bij een DMG bedrijf geweest (Piet Klerkx) om te oriënteren voor keuken + sanitair + badkamer + tegels.Leon-1985 schreef op woensdag 9 augustus 2017 @ 10:01:
[...]
We hadden als eerste gekeken en een gesprek bij Mandemakers gehad. Was erg ontspannen alleen dat gezeur met hapjes is een beetje irritant maar dat wisten we van tevoren. Vooraf gaven we aan dat we een oriënterend gesprek wilden en sowieso niks gaan beslissen. Naderhand een nette prijs en tekening gehad met de boodschap dat we er maar rustig over na moeten denken.
Verder geen gedram of telefoontjes gehad.
Misschien hadden we geluk en net een goede dag....
Prettige gesprekken, weinig druk, en een redelijke prijs (weliswaar met veel eigen "Ben" merk spul).
Niet nagebeld, geen drammerigheid. Keurig offerte + tekeningen gemaild gekregen.
Uiteindelijk konden ze niet aan de prijs die we ergens anders kregen, maar daar hebben ze zelfs nog serieus naar gekeken (dit was het 2e bezoek).
Ik ben geen fan van de DMG, maar zo slecht als sommigen het hier gehad hebben, herken ik gelukkig niet.
Veel ruimte is altijd lekker, maar wij hanteren straks 100cm, omdat dat nu eenmaal zo het beste uitkomt met de muren.Leon-1985 schreef op woensdag 9 augustus 2017 @ 07:46:
[...]
We zitten nog een beetje te twijfelen over de afstand tussen kastenwand en kookeiland. In de onderstaande afbeelding zijn de maten zoals we in gedachten hebben alleen vragen we ons af of de meter tussenruimte wel genoeg is om fijn te koken (verkoper gaf 1200 aan) en er nog iemand wat uit de kasten kan pakken. Aan de andere kant willen we zoveel mogelijk ruimte voor de eettafel. Die is nu nog vrij bescheiden qua afmeting maar we willen in de toekomst een grote eettafel. Ook is de ruimte tussen tafel en eiland een doorloop naar de tuindeuren waardoor het niet te krap moet.
De afmetingen van de kasten en eiland zullen in de praktijk wat groter zijn denk ik waardoor we ongeveer 3200mm tussen eiland en muur krijgen.
De keuken is er door de architect ingetekend als voorbeeld maar klopt niet helemaal met de getekende maten.
[afbeelding]
Verwijderd
Fijn dat je er ook bij was.artbij schreef op woensdag 9 augustus 2017 @ 08:18:
[...]
112 erbij komen is sowieso iets van niet bestaat.
112 bel je voor spoed gevallen waarbij je brandweer, politie of ambulance nodig hebt. Ik kan me geen situatie voorstellen dat er spoed nodig is geweest.
Overmorgen heb ik een paar afspraken staan met twee keukenboeren voor een oriënterend gesprek (met tekeningen)
Ik ben benieuwd wat voor ideeën zij hebben.
Ik ben zelf ook maar even aan de slag gegaan met sketchup om te kijken hoe ik mijn keuken voor me zie.
Zo dus:

Kookeiland met aan weerszijden 1m ruimte.
Aan kant met keukenwand 1.20m. Zal voldoende moeten zijn.
Wat ik heel vervelend vind van mijn huidige keuken is dat ik niet kan zien wat er in de woonkamer gebeurt als ik aan het koken ben (en dus ook de tv niet kan zien).
Dus even een point-of-view gedaan met sketchup om te zien wat ik zal zien tijdens het koken.

Zicht op eettafel, woonkamer en 2e tv in keuken. Prima!
Ik ben benieuwd wat voor ideeën zij hebben.
Ik ben zelf ook maar even aan de slag gegaan met sketchup om te kijken hoe ik mijn keuken voor me zie.
Zo dus:

Kookeiland met aan weerszijden 1m ruimte.
Aan kant met keukenwand 1.20m. Zal voldoende moeten zijn.
Wat ik heel vervelend vind van mijn huidige keuken is dat ik niet kan zien wat er in de woonkamer gebeurt als ik aan het koken ben (en dus ook de tv niet kan zien).
Dus even een point-of-view gedaan met sketchup om te zien wat ik zal zien tijdens het koken.

Zicht op eettafel, woonkamer en 2e tv in keuken. Prima!
One thing's certain: the iPad seriously increases toilet time.. tibber uitnodigingscode: bqufpqmp
Verwijderd
Artbij: 112 is er voor iedereen. Mocht er per ongeluk/door stress ten onrechte verkeerd gebeld zijn, geen enkel probleem. Het blijft in sommige gevallen subjectief
Maar....in dit geval prima 112 te bellen hoor. Het is "simpelweg" een gijzeling, vrijheidsberoving. Is niet altijd even gezellig met een kopje thee en koekje erbij
Maar goed en topic nog iets over die geweldige Mandemakers:
Voor ons was het de 1e keukenzaak die we binnen liepen. Prettig geholpen. Tussen de middag broodje/ croissant erbij (mijn gevoel begon toen te kriebelen). Goede tekening, leuke ideeen, fijn gesprek.
Calculatie zou opgemaakt worden. Verzoek 2e afspraak. Done.
Welkom met koffie en appelgebakje. Nekharen overeind :-D Prijzen werden getoond op een geweldig formulier over bruto adviesprijs, netto, korting bla blaaa verschil bruto en met kortingen eraf ging van 30.000,- naar 21.000,-
Meneer begon over een contract. Euhm, vriend, ga me nergens toe aanzetten, laat het initiatief bij de klant liggen ipv te pushen met een contract. Wat hebben wij eraan....? Laagste prijsgarantie. Nou, die hebben we ook door elders gewoon even te kijken en offreren. Volgens hem niet, want dan gingen ze niet naar beneden met de prijs. Joa Joa, enkel met een contract? Iets met addertjes...JA. DMG kan onder het contract uit als er ook maar iets anders is bij de "concurrent" (merk kastjes: DMG heeft veel eigen merken, dikte kastjes, merk blad, etc.). Jij als klant kan dat niet, ja dat kan wel, maar dan betaal je een bepaald percentage. Want DMG is altijd goedkoper.
Dikke doei voor hen. Tekeningen gebruikt voor andere zaken, keuken elders gekocht, bedrijf waar ze het monterend en leverende personeel ook zelf in dienst hebben (ook niet onbelangrijk).
Oh, bel je een maand later dat ze de stukken mogen verwijderen en geef je feedback. Dat laatste wordt niet geaccepteerd.
Je bent toch serieus een kneus als je op deze manier wilt werken als verkoper??
Let op:
Dit topic kan gebruikt worden voor het volgende:
• Vragen over de keuken, denkend aan indeling, materialen, kastjes, apparatuur, etc.
• Welke kastjes, aanrechtbladen en apparatuur te kiezen
• Ervaringen met verkopers en keukenboeren
• Tips & Tricks denk hierbij aan hulp bij het zelf installeren en onderhouden van de keuken.
• Jouw indeling. Plaats gerust een foto of tekening, maar maak het niet te bont met hele buildlogs.
Voor badkamers: Het Badkamer topic: verkopers, kwaliteit, prijs - Deel 1
Showen met je keuken kan hier: Tweakers Keuken showroom! - Vestiging 1
Dit topic kan gebruikt worden voor het volgende:
• Vragen over de keuken, denkend aan indeling, materialen, kastjes, apparatuur, etc.
• Welke kastjes, aanrechtbladen en apparatuur te kiezen
• Ervaringen met verkopers en keukenboeren
• Tips & Tricks denk hierbij aan hulp bij het zelf installeren en onderhouden van de keuken.
• Jouw indeling. Plaats gerust een foto of tekening, maar maak het niet te bont met hele buildlogs.
Voor badkamers: Het Badkamer topic: verkopers, kwaliteit, prijs - Deel 1
Showen met je keuken kan hier: Tweakers Keuken showroom! - Vestiging 1