“Nothing changed since the 70s. Nothing. Except people train not that hard”. - Tom Platz
@Barry|IA mag niet volgens keukenconcurrent moet in een kast van 90 minimaalBarry|IA schreef op zaterdag 27 februari 2021 @ 13:11:
[...]
Doe 60, 80, 60. Je wilt de kookplaat kast zo klein mogelijk omdat je daar je binnenlade (ruimte) kwijt bent aan de Bora.
Het word volgens mij tijd dat je naar een fatsoenlijke keukenzaak gaat.Jackpuyn schreef op zaterdag 27 februari 2021 @ 13:13:
[...]
@Barry|IA mag niet volgens keukenconcurrent moet in een kast van 90 minimaal
De Bora (PURU) mag gewoon in een kast van 80cm en je verliest echt de garantie niet als de kasten eronder aangepast moeten worden.
Untappd: Kapitein_Merijn
Dank, goede tip. Dacht ook dat het niet zou passen met de Bora PURU maar zal nog eens bekijken. Als jij zegt dat het past geloof ik het directBarry|IA schreef op zaterdag 27 februari 2021 @ 13:11:
[...]
Doe 60, 80, 60. Je wilt de kookplaat kast zo klein mogelijk omdat je daar je binnenlade (ruimte) kwijt bent aan de Bora.
Misschien moeten ze daar wat minder luisteren naar “verkooptrainers” en wat beter opletten bij de leveranciersJackpuyn schreef op zaterdag 27 februari 2021 @ 13:13:
[...]
@Barry|IA mag niet volgens keukenconcurrent moet in een kast van 90 minimaal
“Nothing changed since the 70s. Nothing. Except people train not that hard”. - Tom Platz
@Kapitein Merijn zijn vandaag bij keukenconcurrent geweest en de verkoopster daar zei om de kookplaat niet aan de buitenkant te doen omdat je dan de steelpan ervanaf kan lopen wat gevaarlijk is. Daarom deed zij 50 100 50. Vond ik wat onrustig. Huidige ontwerp vind ik op die lange kant niet mooi vanwege de kast van 50 waarin de spoelbak zit. Wil alles het liefst in de zelfde maat en al helemaal geen plafond unit is veel te lelijk die kappen. Weet niet twijfel over alles nu. Misschien wel geen eiland is onze kamer eigenlijk te klein voor vind ik maar mijn vrouw wil dat. Denk gewoon onze ouwe keuken te houden misschien andere apparaten erin.Kapitein Merijn schreef op zaterdag 27 februari 2021 @ 13:10:
@Jackpuyn
Het ontwerp wat er ligt is toch prima?
Realiseer je ook dat je het werkblad opdeelt in allemaal kleine vlakken als je de kookplaat in het midden legt.
Als het je echt stoort moet je misschien de Bora laten varen en kiezen voor een plafondunit.
that escalated quicklyJackpuyn schreef op zaterdag 27 februari 2021 @ 13:20:
[...]
@Kapitein Merijn zijn vandaag bij keukenconcurrent geweest en de verkoopster daar zei om de kookplaat niet aan de buitenkant te doen omdat je dan de steelpan ervanaf kan lopen wat gevaarlijk is. Daarom deed zij 50 100 50. Vond ik wat onrustig. Huidige ontwerp vind ik op die lange kant niet mooi vanwege de kast van 50 waarin de spoelbak zit. Wil alles het liefst in de zelfde maat en al helemaal geen plafond unit is veel te lelijk die kappen. Weet niet twijfel over alles nu. Misschien wel geen eiland is onze kamer eigenlijk te klein voor vind ik maar mijn vrouw wil dat. Denk gewoon onze ouwe keuken te houden misschien andere apparaten erin.
“Nothing changed since the 70s. Nothing. Except people train not that hard”. - Tom Platz
@Barry|IA komt omdat mijn vrouw alles gelooft wat zo'n verkoper zegt. Konden niks leveren van aeg was geen goed merk. Bosch ook bijna niet alleen siemens bepaalde typen die allemaal oud waren waar van mevrouw beweerde dat het de nieuwste waren. En dat mandemakers bij siemens zijn eigen lijn liet maken. Geeft mij weinig vertrouwen. Sorry dat ik zo reageer is niet voor jullie bedoeld maar meer voor keukenconcurrent.
Bij Keukenconcurrent moet je ook niet zijn voor een goed adviesgesprek.Jackpuyn schreef op zaterdag 27 februari 2021 @ 13:27:
[...]
@Barry|IA komt omdat mijn vrouw alles gelooft wat zo'n verkoper zegt. Konden niks leveren van aeg was geen goed merk. Bosch ook bijna niet alleen siemens bepaalde typen die allemaal oud waren waar van mevrouw beweerde dat het de nieuwste waren. En dat mandemakers bij siemens zijn eigen lijn liet maken. Geeft mij weinig vertrouwen. Sorry dat ik zo reageer is niet voor jullie bedoeld maar meer voor keukenconcurrent.
Bepaalde Siemens apparaten zijn inderdaad geproduceerd voor DMG. Niks mis mee, maar dat zijn vaak apparaten met een enorme marge en er is weinig over te vinden op internet.
Bosch willen ze niet verkopen omdat dat niet in hun kernassortiment zit.
Let op bij dit soort winkels. Alles is gestuurd op veel marge maken. Als een verkoper zijn target niet haalt moet ‘ie zowat 2 weken op strafkamp. Het is bijna zielig voor die mensen, ware het niet dat ze zelf geloven dat ze succesvolle “zakenmannen” zijn.
[ Voor 3% gewijzigd door Barry|IA op 27-02-2021 13:34 ]
“Nothing changed since the 70s. Nothing. Except people train not that hard”. - Tom Platz
Maar toch, zou er nog een andere indeling mogelijk zijn?
Dank. ik heb voor die 3 kastjes niet zo moeite met tip-on. Zijn toch van die kasten die je maar af en toe gebruikt. niet zoals met het koken dat je er steeds spullen vandaan nodig hebt.Kapitein Merijn schreef op zaterdag 27 februari 2021 @ 13:10:
@Jackpuyn
Het ontwerp wat er ligt is toch prima?
Realiseer je ook dat je het werkblad opdeelt in allemaal kleine vlakken als je de kookplaat in het midden legt.
Als het je echt stoort moet je misschien de Bora laten varen en kiezen voor een plafondunit.
@mr3000
Bij Tristar kan je de verticale greeplijst laten vallen, wat in jouw ontwerp veel mooier zou zijn.
Tristar kan een greeplijst of greepje in de zijkant van de deur frezen. Als je de keuken van @MikeyMan opzoekt kan je zien hoe dat eruit ziet.
De rest van alle kasteen zijn gewoon grepen.
Gaat denk ik juist over kast aan de linkerkant.mr3000 schreef op zaterdag 27 februari 2021 @ 14:15:
[...]
Dank. ik heb voor die 3 kastjes niet zo moeite met tip-on. Zijn toch van die kasten die je maar af en toe gebruikt. niet zoals met het koken dat je er steeds spullen vandaan nodig hebt.
De rest van alle kasteen zijn gewoon grepen.
Hier de greeplijst die in de zijkant van het front is gefreesd.
MikeyMan in "Het Grote Keuken topic: verkopers, kwaliteit, prijs - Deel 3"
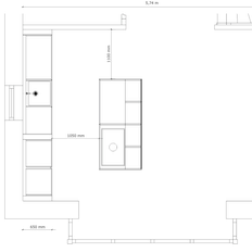
De afstand van de lange muur tot eiland is 105cm
De afstand van de korte muur tot eiland is 148cm (waarvan 60 af gaat voor de kasten = 88cm over)
Aan de andere kant blijft er van het eiland nog 112cm over
De afstand van de lange muur onder tot het eiland is 300 cm. (hier komt de eettafel tussen staan zie mijn eerdere concepten.
Niet een hele mooie render maar het idee is duidelijk denk ik.
/f/image/LcjbWhZq31Mg7xwUeLLxby1W.png?f=fotoalbum_large)
Ben benieuw wat jullie vinden van deze keuze en prijs.
Die stoeltjes aan een eiland ga ik nooit begrijpen. Wat is er daar nu leuk aan als je daar met twee naast elkaar zit? Kijkend naar een spoelbak en een muur met de rug naar het leef gebeuren?da1roy schreef op zaterdag 27 februari 2021 @ 14:49:
Zo wij zijn ook weer een stap dichterbij de realisatie.
De afstand van de lange muur tot eiland is 105cm
De afstand van de korte muur tot eiland is 148cm (waarvan 60 af gaat voor de kasten = 88cm over)
Aan de andere kant blijft er van het eiland nog 112cm over
De afstand van de lange muur onder tot het eiland is 300 cm. (hier komt de eettafel tussen staan zie mijn eerdere concepten.
Niet een hele mooie render maar het idee is duidelijk denk ik.
[Afbeelding]
***members only***
Ben benieuw wat jullie vinden van deze keuze en prijs.
Het is wel zo gezellig als er eentje staat te koken dat je erbij kunt gaan zitten.Robbedp schreef op zaterdag 27 februari 2021 @ 15:11:
[...]
Die stoeltjes aan een eiland ga ik nooit begrijpen. Wat is er daar nu leuk aan als je daar met twee naast elkaar zit? Kijkend naar een spoelbak en een muur met de rug naar het leef gebeuren?
Ik snap het ook niet hoor. Je kan toch gewoon lekker staan of hangen aan het eiland. Maar dat is volgens de verkopers die ik heb gesproken 'een stuk minder gezellig'Robbedp schreef op zaterdag 27 februari 2021 @ 15:11:
[...]
Die stoeltjes aan een eiland ga ik nooit begrijpen. Wat is er daar nu leuk aan als je daar met twee naast elkaar zit? Kijkend naar een spoelbak en een muur met de rug naar het leef gebeuren?
Het is mooier als de fronten boven de oven en koffiezetter netjes doorlopen, zonder greeplijst (push to open). Laat Keukenloods de kasten daar even op aanpassen.da1roy schreef op zaterdag 27 februari 2021 @ 14:49:
Zo wij zijn ook weer een stap dichterbij de realisatie.
De afstand van de lange muur tot eiland is 105cm
De afstand van de korte muur tot eiland is 148cm (waarvan 60 af gaat voor de kasten = 88cm over)
Aan de andere kant blijft er van het eiland nog 112cm over
De afstand van de lange muur onder tot het eiland is 300 cm. (hier komt de eettafel tussen staan zie mijn eerdere concepten.
Niet een hele mooie render maar het idee is duidelijk denk ik.
[Afbeelding]
***members only***
Ben benieuw wat jullie vinden van deze keuze en prijs.
Die zwarte Caressi spoelbak krast echt niet hoor. Knap als je dat voor elkaar krijgt (natuurlijk, alles kan kapot).
Ik zou koken en spoelen omdraaien.
“Nothing changed since the 70s. Nothing. Except people train not that hard”. - Tom Platz
Daarom is een hoek aan t eiland veel gezelliger :-).Robbedp schreef op zaterdag 27 februari 2021 @ 15:11:
[...]
Die stoeltjes aan een eiland ga ik nooit begrijpen. Wat is er daar nu leuk aan als je daar met twee naast elkaar zit? Kijkend naar een spoelbak en een muur met de rug naar het leef gebeuren?
Mijn kinderen vinden het fijn om te kijken en en soms ook te helpen in de keuken.Robbedp schreef op zaterdag 27 februari 2021 @ 15:11:
[...]
Die stoeltjes aan een eiland ga ik nooit begrijpen. Wat is er daar nu leuk aan als je daar met twee naast elkaar zit? Kijkend naar een spoelbak en een muur met de rug naar het leef gebeuren?
Ik heb mijn diploma
Daarnaast hang ik achter het eiland een Samsung frame tv en dat zit het aan zo'n bar wel leuk.
Zo heeft denk ik iedereen zijn eigen beleving.
Alleen met mijn vrouw zal ik er idd niet snel gaan zitten.
@Barry|IABarry|IA schreef op zaterdag 27 februari 2021 @ 15:27:
[...]
Het is mooier als de fronten boven de oven en koffiezetter netjes doorlopen, zonder greeplijst (push to open). Laat Keukenloods de kasten daar even op aanpassen.
Die zwarte Caressi spoelbak krast echt niet hoor. Knap als je dat voor elkaar krijgt (natuurlijk, alles kan kapot).
Ik zou koken en spoelen omdraaien.
Komt daarmee de koelkast niet heel laag? nu begint deze op ca 1 meter wat ik wel prettig vind.
Ik zal het even vragen, kan me er zo geen voorstelling van maken.
Het omdraaien van spoelbak en kookplaat vinden we i.v.m. de kinderen weer minder handing.
Wie weet komt er ooit een quooker die je op een fust kan aansluiten dan zit je daar goed
Dat bedoel ik inderdaad.SquareOne schreef op zaterdag 27 februari 2021 @ 14:29:
[...]
Gaat denk ik juist over kast aan de linkerkant.
Hier de greeplijst die in de zijkant van het front is gefreesd.
MikeyMan in "Het Grote Keuken topic: verkopers, kwaliteit, prijs - Deel 3"
Het kan ook met een greepje van ca. 15cm breed als je het niet mooi vind om hem over de volledig lengte in te laten frezen.
Hoe worden de bovenkasten afgewerkt aan de onderzijde @mr3000 ? Gezien de tussenruimte tussen de kasten is het wel wenselijk om dit in dezelfde kleur af te werken. Dit kan je realiseren door de fronten door te laten steken en een bodem onder de kasten te plaatsen in Deco Nero:
![]() | ![]() |
Untappd: Kapitein_Merijn
De laden en scharnieren zijn van BLUM. Laden van BLUM primus.
Ik vond dat wat apart, ik neem aan dat next een standaard type laden/scharnieren heeft?
Wat is precies je vraag? Blum is redelijk standaard spul.Scuderia110 schreef op zaterdag 27 februari 2021 @ 18:33:
Eindelijk kunnen afspreken om live ook de next 125 te gaan bekijken, wat opviel aan de offerte die we nu hebben is het volgende:
De laden en scharnieren zijn van BLUM. Laden van BLUM primus.
Ik vond dat wat apart, ik neem aan dat next een standaard type laden/scharnieren heeft?
Het staat er alsof het iets bijzonders is, maar ik neem aan dat merken toch standaard een bepaald merk scharnieren etc heeft. In dit geval een next 125, die zal dan toch standaard scharnieren en laden van blum hebben. Dat merk zegt mij niks, vandaar de vraag of dit gewoon standaard is in een next 125 of niet.MikeyMan schreef op zaterdag 27 februari 2021 @ 18:35:
[...]
Wat is precies je vraag? Blum is redelijk standaard spul.
Blum is prima spul.Scuderia110 schreef op zaterdag 27 februari 2021 @ 19:26:
[...]
Het staat er alsof het iets bijzonders is, maar ik neem aan dat merken toch standaard een bepaald merk scharnieren etc heeft. In dit geval een next 125, die zal dan toch standaard scharnieren en laden van blum hebben. Dat merk zegt mij niks, vandaar de vraag of dit gewoon standaard is in een next 125 of niet.
Volgens mij standaard bij in ieder geval Next125, Siematic en Tristar.
De nis is afgewerkt middels zelfde materiaal als het front.Kapitein Merijn schreef op zaterdag 27 februari 2021 @ 16:17:
[...]
Dat bedoel ik inderdaad.
Het kan ook met een greepje van ca. 15cm breed als je het niet mooi vind om hem over de volledig lengte in te laten frezen.
Hoe worden de bovenkasten afgewerkt aan de onderzijde @mr3000 ? Gezien de tussenruimte tussen de kasten is het wel wenselijk om dit in dezelfde kleur af te werken. Dit kan je realiseren door de fronten door te laten steken en een bodem onder de kasten te plaatsen in Deco Nero:
[Afbeelding] [Afbeelding]
De afdekplank van de bovenkasten wordt iets korter gemaakt terwijl de kast derloopt. zo kan je je vingers er achter doen. zonder dat je dus tip on nodig hebt
Wat je waarschijnlijk bedoelt is dat er een lijstje in de bodem is gefreesd om de deur te openen.mr3000 schreef op zaterdag 27 februari 2021 @ 21:50:
[...]
De nis is afgewerkt middels zelfde materiaal als het front.
De afdekplank van de bovenkasten wordt iets korter gemaakt terwijl de kast derloopt. zo kan je je vingers er achter doen. zonder dat je dus tip on nodig hebt
Houd er dan rekening mee dat de bodem van de bovenkasten in een andere kleur is. Aangezien ze zo hoog hangen is dit niet heel fraai.
Wat vind je van de greep in de deur van de koelkast?
[ Voor 13% gewijzigd door Kapitein Merijn op 27-02-2021 22:13 ]
Untappd: Kapitein_Merijn
Bosch = Siemens naar mijn weten.Jackpuyn schreef op zondag 28 februari 2021 @ 06:05:
Waarom koopt bijna iedereen hier de siemens inbouwapparatuur? Zie bijna niks over Bosch of aeg wat bij mijn inzien toch ook echt a merken zijn of Atag.
@Koptelefoontje dat weet ik neff hoort ook bij die groep en constructa. Alleen de meesten hier kiezen voor Siemens vraag me af waarom dat is?
Verwijderd
In mijn geval werd Siemens gepushed vanuit de keukenwinkel. Zou de korting hoger zijn voor me vanwege huisapparatuur.Jackpuyn schreef op zondag 28 februari 2021 @ 06:05:
Waarom koopt bijna iedereen hier de siemens inbouwapparatuur? Zie bijna niks over Bosch of aeg wat bij mijn inzien toch ook echt a merken zijn of Atag.
Uiteindelijk was de korting op Bosch net zo hoog.
Verder denk ik dat Siemens een wat aansprekendere naam is dan AEG of ATAG. Gewoon naamsbekendheid denk ik.
Dus als een keukenwinkel zegt: neem Siemens want we hebben hogere kortingen. Dan is het voor 90% van de klanten al voldoende want bekende naam in combinatie met hoge kortingen.
It was then that I realized that the question mark was the answer to all my questions.
Verwijderd schreef op zondag 28 februari 2021 @ 08:28:
Vraag ik me ook af, Siemens heeft nog ouderwetse drukknoppen op hun apparatuur, terwijl Bosch touch knoppen heeft en Neff zelfs al helemaal full touch screen is
PC specs!---Pulse mee voor GoT!
[22:49:37] <@Remy> ik wil een opblaasbare dSLR :+
Verwijderd
Blijkbaar vindt Siemens fysieke knoppen een luxe die alleen op de iQ700 modellen hoort, want de iQ500 serie moet het met touchknoppen doen.Verwijderd schreef op zondag 28 februari 2021 @ 08:58:
@Xander Welke heb je dan? Want de studioline heeft nog gewoon een rij met plastic drukknoppen die eruit zien als staal :+:
[Afbeelding]
Ik heb een CP465AGB0 en HB478G0B0.
PC specs!---Pulse mee voor GoT!
[22:49:37] <@Remy> ik wil een opblaasbare dSLR :+
Verwijderd
@Kapitein Merijn Wat me opvalt bij deze foto is dat de zijkant van de korps ook is bekleed in hetzelfde materiaal als de fronten zonder dat daar extra panelen voor nodig zijn aan de binnenkant van de nis.Kapitein Merijn schreef op zaterdag 27 februari 2021 @ 16:17:
[...]
Dat bedoel ik inderdaad.
Het kan ook met een greepje van ca. 15cm breed als je het niet mooi vind om hem over de volledig lengte in te laten frezen.
Hoe worden de bovenkasten afgewerkt aan de onderzijde @mr3000 ? Gezien de tussenruimte tussen de kasten is het wel wenselijk om dit in dezelfde kleur af te werken. Dit kan je realiseren door de fronten door te laten steken en een bodem onder de kasten te plaatsen in Deco Nero:
[Afbeelding] [Afbeelding]
:strip_exif()/f/image/sYQKwXKyWJdNYXrIaR5tuwGv.jpg?f=fotoalbum_large)
Zat even door wat plaatjes te scrollen en daarbij zie ik bijna altijd panelen aan de binnenkant van de nis. Is bovenstaande iets specifieks voor Tristar of kunnen fabrikanten zoals Siematic, Next125, Pronorm etc dat ook?
![]() | ![]() |
Kwestie van smaak denk ik.Verwijderd schreef op zondag 28 februari 2021 @ 08:28:
Vraag ik me ook af, Siemens heeft nog ouderwetse drukknoppen op hun apparatuur, terwijl Bosch touch knoppen heeft en Neff zelfs al helemaal full touch screen is
Qua looks vind ik de Siemens IQ700 studioline ovens erg mooi.
[ Voor 5% gewijzigd door basprofessional op 28-02-2021 09:59 ]
:strip_exif()/f/image/r3fxoP491lVkZHuT9cI4PdPb.jpg?f=fotoalbum_large)
1) Kast 1 (links van lage kasten) - is een standaard kast met verticale greeplijst of met grepen uit te voeren. Wat dan minder fraai is, is dat het onderste kastje hoger is dan de lage greeploze kasten.
2) Kast 2 (rechts van lage kasten) - is een kast die volgens mij niet bestaat, maar is er een specifieke reden waarom dit niet op deze manier wordt opgelost?
3) Kast 3 (helemaal rechts) - is een standaard kast met horizontale greeplijst. Daar wordt een passtuk toegepast maar wat is de functie van dat passtuk? Waarom de oven niet een X aantal centimeter lager zoals op de kast links ervan?
Note: plaatje is als voorbeeld - het is natuurlijk niet de bedoeling om een keuken met al die verschillende kasten uit te voeren
Mooie ruime keuken!
Ik zou wel nog eens goed kijken of je niet meer lades wilt toepassen aan de kant van de spoelkast, nu zijn het allemaal kasten met legplanken / le mans kasten. Daarnaast oogt het voor mij wat onrustig omdat sommige kasten 50cm zijn en een aantal anderen 60cm.
Je hebt juist wel lades toegepast aan de kant van de woonkamer(?), daar zou het wellicht juist logischer zijn om kasten met deurtjes toe te passen. Dat zijn ondiepe kasten daarbij zijn lades minder noodzakelijk om de ruimte optimaal te benutten.
[ Voor 7% gewijzigd door SquareOne op 28-02-2021 10:05 ]
ik zou eens kijken naar de wirwar van merken.basprofessional schreef op zondag 28 februari 2021 @ 09:53:
Members only:
Alleen zichtbaar voor ingelogde gebruikers. Inloggen
Kan je geen koelkast en vriezer (of inductie) van Bosch nemen voor de 5 jaar garantie?
https://www.bosch-home.nl/acties/5-jaar-garantie
Ziet er netjes uit. Had de zelfde vraag als SquareOne hier boven, heb je nu bij het koken wel handige lades ter beschikking? De Lemans zit ver weg voor pannen, en de laders naast de wijnkoeler ook niet makkelijk als je steeds om moet lopen?
En die kasten in de berging zou ik zelf denk ik kiezen om het geld lekker aan iets anders te besteden, hoeveel kost dit extra? Waarom zou je mooie keukenkasten gebruiken als je ook iets simpelers / functionelers / goedkopers kunt nemen?
Wij zijn bezig met het ontwerp van het maatwerkinterieur, waaronder de keuken. We hebben het eerste ontwerp ontvangen, maar ik twijfel nog. Zouden jullie eens mee kunnen kijken?
We willen graag een kookeiland en een nis in de keukenwand. Met name de keukenwand ben ik nog niet zo tevreden over. Eigenlijk zou er een kast af moeten (vanwege een eiken balk die dan zichtbaar wordt). Ik heb zelf een schetsje gemaakt met 1 kast minder, en dan de wand verdelen in twee delen met een ‘muurtje’ ertussen. Het ene deel wordt dan iets meer dan twee kasten breed, daar kan dan de koffienis, en in het andere deel kunnen dan drie hoge kasten met de twee ovens en de wijnklimaatkast. Ik kan het schetsje eventueel later nog wel plaatsen (maar ik ben een heel slechte schetser...).
Nou ja, iig fijn als jullie even willen meekijken.
![]() | ![]() | ![]() |
[ Voor 42% gewijzigd door Peacefield78 op 28-02-2021 10:39 ]
Heel simpel, onze oude keuken had ook Siemens en dat functioneerde na 20 jaar nog prima. Plus dat ik het design van de iq700 ook gewoon mooi vind. Dus al met al niet echt bewust over nagedacht verder :-)Verwijderd schreef op zondag 28 februari 2021 @ 08:28:
Vraag ik me ook af, Siemens heeft nog ouderwetse drukknoppen op hun apparatuur, terwijl Bosch touch knoppen heeft en Neff zelfs al helemaal full touch screen is
Bedankt voor je feedback. Over het onrustig ogen had ik nog niet nagedacht, dit gaan we nog even meenemen. Lades vind ik zelf ook mooier maar door 2 zaken is ons verteld dat dit aan de lange zijde niet zou kunnen omdat we niet goed uitkomen qua lengte. Ook komt daar natuurlijk de vaatwasser wat dan weer een front is. Om het praktisch te maken hebben we de keuken later geupgrade met 2 lemans kasten in beide hoeken.SquareOne schreef op zondag 28 februari 2021 @ 10:04:
[...]
Mooie ruime keuken!
Ik zou wel nog eens goed kijken of je niet meer lades wilt toepassen aan de kant van de spoelkast, nu zijn het allemaal kasten met legplanken / le mans kasten. Daarnaast oogt het voor mij wat onrustig omdat sommige kasten 50cm zijn en een aantal anderen 60cm.
Je hebt juist wel lades toegepast aan de kant van de woonkamer(?), daar zou het wellicht juist logischer zijn om kasten met deurtjes toe te passen. Dat zijn ondiepe kasten daarbij zijn lades minder noodzakelijk om de ruimte optimaal te benutten.
Buiten eventuele commerciele voordelen zoals extra korting of meer garantie die je misloopt. Zijn er verder argumenten om alles zoveel mogelijk 1 merk te houden? Zelf stoor ik mij er niet zo aan; de Pelgrim kookplaat hebben wij bewust gekozen omdat wij deze mooi vinden. Mooier bijvoorbeeld dan een Bora (persoonlijke smaak) die wij ook hebben overwogen. Koelapparatuur AEG maakt mij niet zoveel uit; het moet koelen, stil zijn en niet overdreven veel energieslurpen. Daarnaast is het inbouw waardoor het niet zo is dat het onrustig gaat aanvoelen omdat je verschillende looks van verschillende merken hebt. Wijnklimaatkast blijft een beetje een niche product wat niet elke leverancier in zijn assortiment heeft. Boretti is ons geadviseerd omdat deze van redelijke kwaliteit zou zijn en greeploos is.Marinos83 schreef op zondag 28 februari 2021 @ 10:30:
[...]
Ziet er netjes uit. Had de zelfde vraag als SquareOne hier boven, heb je nu bij het koken wel handige lades ter beschikking? De Lemans zit ver weg voor pannen, en de laders naast de wijnkoeler ook niet makkelijk als je steeds om moet lopen?
En die kasten in de berging zou ik zelf denk ik kiezen om het geld lekker aan iets anders te besteden, hoeveel kost dit extra? Waarom zou je mooie keukenkasten gebruiken als je ook iets simpelers / functionelers / goedkopers kunt nemen?
In de tekening is nog 1 lemans kast opgenomen, deze was inderdaad niet handig geplaatst. WIj hebben nu gekozen voor 2 lemans kasten in beide hoeken. Onder de kookplaat hebben we 4 lades voor pannen e.d. De lades bij wijnkoeler willen we gaan gebruiken voor borden en bestek. Wijn, borden en bestek hebben we dan dicht bij de eettafel staan
In mijn huidige woning heb ik in de bijkeuken 3 Ikea keuken kasten geplaatst. Plan was om dat hier weer te doen. Echter voor een meerprijs van 1500 euro konden we deze 3 kasten erbij nemen met inbouw vriezer inbegrepen. Voor dat bedrag is het lastig om verder te shoppen.
Tristar vervangt als het ware een zijwand van de romp door plaatmateriaal in kleur van het front. Ze kunnen dit doen voor vrijwel alle vlakke fronten.SquareOne schreef op zondag 28 februari 2021 @ 09:38:
[...]
@Kapitein Merijn Wat me opvalt bij deze foto is dat de zijkant van de korps ook is bekleed in hetzelfde materiaal als de fronten zonder dat daar extra panelen voor nodig zijn aan de binnenkant van de nis.
[Afbeelding]
Zat even door wat plaatjes te scrollen en daarbij zie ik bijna altijd panelen aan de binnenkant van de nis. Is bovenstaande iets specifieks voor Tristar of kunnen fabrikanten zoals Siematic, Next125, Pronorm etc dat ook?
[Afbeelding] [Afbeelding]
Voor een grote (Duitse) fabriek is dit eigenlijk niet te doen. Die hebben vaak al een hele uitdaging om rompen in verschillende kleuren te kunnen leveren.
Zelf vind ik het veel fraaier dan maar wat paneeltjes van 16mm in een nis maken. Soms gaat het natuurlijk niet anders maar met een merk als Tristar is het gewoon niet nodig.
Juist met zo'n aanpassingen kan je met Tristar iets unieks maken zonder dat het heel veel meer kost.
Je moet als verkoper/ontwerper natuurlijk wel weten wat er mogelijk is en het ook toe durven passen.
Even over je hoge kasten:
Bij een greeploze keuken kan een apparaat niet aansluiten op een greeplijst omdat de greeplijst in de romp word gefreesd. Theoretisch gezien zou het met een C lijst moeten kunnen maar aangezien de apparatuur doorsteek aan de onderzijde zou de opening niet gelijk zijn tov de andere kasten.
[ Voor 8% gewijzigd door Kapitein Merijn op 28-02-2021 11:06 ]
Untappd: Kapitein_Merijn
Je hebt die vraag nog geen 2 uur geleden ook gesteld?Jackpuyn schreef op zondag 28 februari 2021 @ 10:51:
Weet iemand hier of een vaatwasser met een polinox kuip slechter is als een van rvs. Vind namelijk het prijs verschil bij siemens erg groot.
Jackpuyn schreef op zondag 28 februari 2021 @ 09:13:
Nog een vraagje zie dat veel vaatwassers een polinox kuip hebben bij siemens en Bosch. Zijn deze kuipen echt veel slechter als een van rvs? Hoor namelijk dat ze gaan stinken en niet hygiënisch zijn en eerder gaan lekken.
@SquareOne goed opgemerkt. Heb dat gedaan omdat ik nog reactie hadSquareOne schreef op zondag 28 februari 2021 @ 10:54:
[...]
Je hebt die vraag nog geen 2 uur geleden ook gesteld?
[...]
Zie PM, 2 uur is erg ongeduldig
[ Voor 7% gewijzigd door Señor Sjon op 01-03-2021 10:08 ]
Je zou kunnen overwegen niet in beide hoeken een hoekkast te plaatsen. Dan ben je een stuk flexibeler. Er bestaan overigens ook 'fake' fronten voor de vaatwasser waarin de greeplijst gewoon doorloopt. Weet niet of het bij alle merken kan maar heb het wel al eerder gezien.basprofessional schreef op zondag 28 februari 2021 @ 10:51:
[...]
Bedankt voor je feedback. Over het onrustig ogen had ik nog niet nagedacht, dit gaan we nog even meenemen. Lades vind ik zelf ook mooier maar door 2 zaken is ons verteld dat dit aan de lange zijde niet zou kunnen omdat we niet goed uitkomen qua lengte. Ook komt daar natuurlijk de vaatwasser wat dan weer een front is. Om het praktisch te maken hebben we de keuken later geupgrade met 2 lemans kasten in beide hoeken.
Dank voor de toelichting! Mooi om te horen dat Tristar daar zo flexibel in is, eerder nooit overwogen eigenlijk als merk.Kapitein Merijn schreef op zondag 28 februari 2021 @ 10:53:
[...]
Tristar vervangt als het ware een zijwand van de romp door plaatmateriaal in kleur van het front. Ze kunnen dit doen voor vrijwel alle vlakke fronten.
Voor een grote (Duitse) fabriek is dit eigenlijk niet te doen. Die hebben vaak al een hele uitdaging om rompen in verschillende kleuren te kunnen leveren.
Zelf vind ik het veel fraaier dan maar wat paneeltjes van 16mm in een nis maken. Soms gaat het natuurlijk niet anders maar met een merk als Tristar is het gewoon niet nodig.
Juist met zo'n aanpassingen kan je met Tristar iets unieks maken zonder dat het heel veel meer kost.
Je moet als verkoper/ontwerper natuurlijk wel weten wat er mogelijk is en het ook toe durven passen.
Even over je hoge kasten:
Bij een greeploze keuken kan een apparaat niet aansluiten op een greeplijst omdat de greeplijst in de romp word gefreesd. Dat is de reden dat er altijd een blende onder en boven een apparaat zit.
t.a.v. de hoge kasten, ik kwam op het idee door onderstaande plaatjes wat ik wel fraai vond. Maar zal dan wel maatwerk op de een of andere manier zijn. En wellicht dat ze gekozen hebben voor looks > praktische nut
![]() | ![]() | ![]() |
Het valt me op dat (vooral bij Keukenloods) de prijzen enorm schommelen. Voorbeeld, de Bosch GUD15A55.
Ik heb een paar weken geleden een screenshot gemaakt: €532,16
Prijs nu: €699
En dat geldt voor veel meer spullen. Iets om rekening mee te houden!
''Interieurbouwers''.... De goede zijn op één hand te tellen. Ik heb genoeg keukens van interieurbouwers gezien (vaak Ikea of Nobilia kasten met eigen fronten).Jackpuyn schreef op zondag 28 februari 2021 @ 11:39:
Waarom koopt eigenlijk iedereen hier een keuken in een keukenzaak. Hoor bijna niemand over een interieurbouwer. Denk als je een echt mooie keuken wilt hebben daar veel beter bij af bent. Alles mooi op maat en passend.
Natuurlijk zijn er uitzonderlijke gevallen. Als jij 100.000 euro aan een keuken gaat spenderen, dan winkel je niet bij een Keukenloods (hoewel die ook een Beda van 130.000 heeft staan, wat een insane mooie keuken is).
“Nothing changed since the 70s. Nothing. Except people train not that hard”. - Tom Platz
Ben benieuwd na de resultaten en wat de kosten zijn tegen over een standaard keuken zaakPeacefield78 schreef op zondag 28 februari 2021 @ 11:58:
@Jackpuyn Wij zijn van plan de keuken te laten maken door een interieurbouwer. Overigens ook toilet- en badkamermeubels, bijkeuken en inbouwkasten.
@Barry|IA een goede of de meeste zal dat niet doen vanwege het niet passend krijgen van de keuken. Goede keukenzaken zijn trouwens ook op 1 hand te tellen. En vaak te duur voor wat je krijgtBarry|IA schreef op zondag 28 februari 2021 @ 12:11:
[...]
''Interieurbouwers''.... De goede zijn op één hand te tellen. Ik heb genoeg keukens van interieurbouwers gezien (vaak Ikea of Nobilia kasten met eigen fronten).
Natuurlijk zijn er uitzonderlijke gevallen. Als jij 100.000 euro aan een keuken gaat spenderen, dan winkel je niet bij een Keukenloods (hoewel die ook een Beda van 130.000 heeft staan, wat een insane mooie keuken is).
Jackpuyn schreef op zondag 28 februari 2021 @ 12:26:
[...]
@Peacefield78
Ben benieuwd na de resultaten en wat de kosten zijn tegen over een standaard keuken zaak
Wij ook 😉Jackpuyn schreef op zondag 28 februari 2021 @ 12:26:
[...]
Ben benieuwd na de resultaten en wat de kosten zijn tegen over een standaard keuken zaak
Waar baseer je dat op? In welke keukenruimte zou ik een Ikea of Nobilia keuken niet passend krijgen?Jackpuyn schreef op zondag 28 februari 2021 @ 12:29:
[...]
@Barry|IA een goede of de meeste zal dat niet doen vanwege het niet passend krijgen van de keuken.
De conclusie die je trekt is hoe jij graag zou willen dat het werkt. De realiteit is toch echt dat de meeste interieurbouwers met standaard kasten werken. Daar kun je van vinden wat je wilt.
De meeste pakken zo'n 30 procent marge. Dit is een gezonde marge. Definieer ''te duur''?Goede keukenzaken zijn trouwens ook op 1 hand te tellen. En vaak te duur voor wat je krijgt
“Nothing changed since the 70s. Nothing. Except people train not that hard”. - Tom Platz
@Barry|IA bij ons zou je het niet passend kunnen krijgen vanwege de muur van 305 als ik daar alle kasten dezelfde maat wil hebben lukt dat niet of je moet veel passtukken gebruiken.Barry|IA schreef op zondag 28 februari 2021 @ 12:40:
[...]
Waar baseer je dat op? In welke keukenruimte zou ik een Ikea of Nobilia keuken niet passend krijgen?
De conclusie die je trekt is hoe jij graag zou willen dat het werkt. De realiteit is toch echt dat de meeste interieurbouwers met standaard kasten werken. Daar kun je van vinden wat je wilt.
[...]
De meeste pakken zo'n 30 procent marge. Dit is een gezonde marge. Definieer ''te duur''?
Bij mijn keuken ben ik zo'n 7000€ kwijt aan kasten. Vind dat best veel voor 2 kasten van 60 bij 202 en 3 van 60 met deuren. Verder 3 bovenkasten van 60. Voor het eiland 2 ladenkasten van 100 en 4 ondiepe van 50 met deuren. Ken iemand die werkt in een fabriek waar ze keukens maken en die vind de prijzen ook te gek. Ken ook iemand die timmerman is en bij verschillende bedrijven heeft gewerkt ook interieurbouwers en geen ervan werkt met ikea of Nobilia. Hier in de buurt niet tenminste
Dan koop je de keuken toch bij ‘die iemand die timmerman is’?Jackpuyn schreef op zondag 28 februari 2021 @ 12:49:
[...]
@Barry|IA bij ons zou je het niet passend kunnen krijgen vanwege de muur van 305 als ik daar alle kasten dezelfde maat wil hebben lukt dat niet of je moet veel passtukken gebruiken.
Bij mijn keuken ben ik zo'n 7000€ kwijt aan kasten. Vind dat best veel voor 2 kasten van 60 bij 202 en 3 van 60 met deuren. Verder 3 bovenkasten van 60. Voor het eiland 2 ladenkasten van 100 en 4 ondiepe van 50 met deuren. Ken iemand die werkt in een fabriek waar ze keukens maken en die vind de prijzen ook te gek. Ken ook iemand die timmerman is en bij verschillende bedrijven heeft gewerkt ook interieurbouwers en geen ervan werkt met ikea of Nobilia. Hier in de buurt niet tenminste
Zoek in het topic eens op Klomp Keukens en Interieurbouw. Zij leveren maatwerk voor zover ik heb begrepen. Zijn een aantal Tweakers die daar hun keukens hebben gekocht.
Heeft iemand nog tips voor ons?
Koelkast: Siemens KI20RNFF0
Combimagnetron: Siemens CM836GNB6
Vaatwasser: Siemens SN63HX60CN
Kookplaat: Bora Pure (Puru)
Spoelbak: Caressi CAGRPP50BKFL
Kraan: Quooker 22FSBLK Square
Kastjes: Profi+ (Nobilia?)
Kast/lade kleur: Touch Zwart Supermat
Bladkleur: 5024 T Iron (kunststof)
De onderstaande foto's heb ik nog niet digitaal.. vandaar de wat 'mindere' kwaliteit
:strip_exif()/f/image/Le4dNwvep5oYiNsDnz2PtJSf.jpg?f=fotoalbum_large)
:strip_exif()/f/image/se88ujP6cUPJQ9vYiteRAOYZ.jpg?f=fotoalbum_large)
★ www.doorax.nl ★
Bij zo'n beetje elk keukenmerk kun je elke kastmaat maken die je wilt. Hoe precies wil je het hebben? Een kast van 99,8cm? Geen probleem.Jackpuyn schreef op zondag 28 februari 2021 @ 12:49:
[...]
@Barry|IA bij ons zou je het niet passend kunnen krijgen vanwege de muur van 305 als ik daar alle kasten dezelfde maat wil hebben lukt dat niet of je moet veel passtukken gebruiken.
Tja, als jij 500 euro per kast al teveel vind voor een productiekeuken en een timmerman kent die alles bijna gratis voor jou maakt en geen winst maakt, dan zou ik daar inderdaad voor kiezen.Bij mijn keuken ben ik zo'n 7000€ kwijt aan kasten. Vind dat best veel voor 2 kasten van 60 bij 202 en 3 van 60 met deuren. Verder 3 bovenkasten van 60. Voor het eiland 2 ladenkasten van 100 en 4 ondiepe van 50 met deuren. Ken iemand die werkt in een fabriek waar ze keukens maken en die vind de prijzen ook te gek. Ken ook iemand die timmerman is en bij verschillende bedrijven heeft gewerkt ook interieurbouwers en geen ervan werkt met ikea of Nobilia. Hier in de buurt niet tenminste
Timmermannen en productiemedewerkers die iets ''te duur'' vinden zegt mij niet zoveel. Deze mensen zijn vooral ontzettend goed in het in elkaar zetten van kasten en hebben niet perse heel veel kaas gegeten van handel
“Nothing changed since the 70s. Nothing. Except people train not that hard”. - Tom Platz
https://www.pelgrim.nl/ap...wassers/alle-vaatwassers/
Het lijkt 1 op 1 de nieuwe serie van Asko te zijn, te zien aan het nieuwe bedieningsdisplay:
https://www.asko.nl/vaatwassers
Die hebben alles in RVS, nu zelfs in het paneel, dus dat klinkt wel goed. Verder viel me op dat ze nu een nieuwe functie hebben die ze TurboDry noemen. Daarbij wordt er droge lucht in de vaatwasser geblazen en vochtige lucht afgevoerd. Is iemand daarmee bekend?
Bij een horizontale greeplijst steekt het front over de greeplijst. Bij een oven kan dat niet. Ik ga dat oplossen door een stuk uit de greeplijst te zagen, zodat de oven daar wel past. Eigenlijk maak ik dan van een C-profiel en L-profiel (zoals onder een blad gebruikt wordt). Maar zagen in je greeplijst doet niet iedereen.SquareOne schreef op zondag 28 februari 2021 @ 10:00:
Vraagje over lijnenspel bij kastenwand met hoge en lage kasten naast elkaar. Het valt me op dat bij een aantal standaard kasten de oven niet zo mooi uitgelijnd lijkt icm een greeploze lage kasten:
[Afbeelding]
1) Kast 1 (links van lage kasten) - is een standaard kast met verticale greeplijst of met grepen uit te voeren. Wat dan minder fraai is, is dat het onderste kastje hoger is dan de lage greeploze kasten.
2) Kast 2 (rechts van lage kasten) - is een kast die volgens mij niet bestaat, maar is er een specifieke reden waarom dit niet op deze manier wordt opgelost?
3) Kast 3 (helemaal rechts) - is een standaard kast met horizontale greeplijst. Daar wordt een passtuk toegepast maar wat is de functie van dat passtuk? Waarom de oven niet een X aantal centimeter lager zoals op de kast links ervan?
Note: plaatje is als voorbeeld - het is natuurlijk niet de bedoeling om een keuken met al die verschillende kasten uit te voeren
@Barry|IA voor een siematic of systemat of next 123 vind ik 500€ voor een kast wel oke. Echter voor een Ikea of gelijk waardig merk vind ik het te veel. Moet nog echt een goede keukenzaak vinden en op dit moment heeft mijn vertrouwen een deuk opgelopen ook als ik de reviews overal lees hoor ik maar weinig goeds vooral bij DMG. Dus weet niet of ik een zaak als nuva moet vertrouwen. Voor de rest is er weinig keuze.Barry|IA schreef op zondag 28 februari 2021 @ 12:58:
[...]
Bij zo'n beetje elk keukenmerk kun je elke kastmaat maken die je wilt. Hoe precies wil je het hebben? Een kast van 99,8cm? Geen probleem.
[...]
Tja, als jij 500 euro per kast al teveel vind voor een productiekeuken en een timmerman kent die alles bijna gratis voor jou maakt en geen winst maakt, dan zou ik daar inderdaad voor kiezen.
Timmermannen en productiemedewerkers die iets ''te duur'' vinden zegt mij niet zoveel. Deze mensen zijn vooral ontzettend goed in het in elkaar zetten van kasten en hebben niet perse heel veel kaas gegeten van handel
Ah logische verklaring. Vergt dan inderdaad wat aanpassingen / maatwerk. Kan me voorstellen dat niet iedere zaak daar zin in heeft (en weet ook niet of ik dat zelf moet willen). Jouw front boven de oven is dan waarschijnlijk ook maatwerk?orf schreef op zondag 28 februari 2021 @ 13:47:
[...]
Bij een horizontale greeplijst steekt het front over de greeplijst. Bij een oven kan dat niet. Ik ga dat oplossen door een stuk uit de greeplijst te zagen, zodat de oven daar wel past. Eigenlijk maak ik dan van een C-profiel en L-profiel (zoals onder een blad gebruikt wordt). Maar zagen in je greeplijst doet niet iedereen.
Het spijt me wel, maar IKEA heeft echt wel kasten voor schappelijke prijzen, over kwaliteit kan ik niets zeggen. Maar die maken niets op maat, dan zit je idd met passtukken op plekken waar je ze niet wil. Dus zoek je maatwerk dan niet bij IKEA.Jackpuyn schreef op zondag 28 februari 2021 @ 14:19:
[...]
@Barry|IA voor een siematic of systemat of next 123 vind ik 500€ voor een kast wel oke. Echter voor een Ikea of gelijk waardig merk vind ik het te veel. Moet nog echt een goede keukenzaak vinden en op dit moment heeft mijn vertrouwen een deuk opgelopen ook als ik de reviews overal lees hoor ik maar weinig goeds vooral bij DMG. Dus weet niet of ik een zaak als nuva moet vertrouwen. Voor de rest is er weinig keuze.
En qua keukenzaken kan je over het algemeen zeggen dat bijv. DMG zaken het minst transparant zijn over de prijzen en een superkeukens is weer een netto zaak KVIK ook .. dwz weinig onderhandelen over kasten. En als je het forum had uitgespit , dan had je tig tips kunnen lezen over hoe je het beste uit je keuken(prijs) kan halen bij een DMG zaak. Ze leveren verder prima keukens. Dat onderhandelen dan onderdeel is van het spel is dan maar zo.
Er zijn op dit forum diverse keukenzaken genoemd die de Tweaker goed is bevallen. Dat deze dan niet altijd bij jou om de hoek zit is dan soms een feit.
Op apparatuur zit een fikse marge. Bosch/Siemens kan er zomaar 30-40 % af van de adviesprijs.
Ik zou het forum eens goed doorspitten, er gaat een wereld voor je open.
Ik ben overal tegen. Tot ik een besluit neem, dan ben ik ervoor
@mevrouwKees_1 helaas zit er bij ons in de buurt bijna geen goede keukenzaak. DMG heeft gewoon veel problemen met de keukens leveren slecht of niet. Veel problemen met hun keukens. Mijn vrouw heeft geen zin om half Nederland door te rijden voor een keukenzaak wil maximaal 25km ver gaan. Dus dan blijft er niet veel over helaas. Superkeukens heeft ook veel problemen en slechte kwaliteit. Om over kvik maar niet te praten. Probleem bij de DMG is dat ze totaal niet flexibel zijn en alleen hun eigen idee willen door drukken. Daarom is mijn plezier in het zoeken van een keuken over gegaan. Met de badkamer vorig jaar dit probleem totaal niet gehadmevrouwKees_1 schreef op zondag 28 februari 2021 @ 14:50:
[...]
Het spijt me wel, maar IKEA heeft echt wel kasten voor schappelijke prijzen, over kwaliteit kan ik niets zeggen. Maar die maken niets op maat, dan zit je idd met passtukken op plekken waar je ze niet wil. Dus zoek je maatwerk dan niet bij IKEA.
En qua keukenzaken kan je over het algemeen zeggen dat bijv. DMG zaken het minst transparant zijn over de prijzen en een superkeukens is weer een netto zaak KVIK ook .. dwz weinig onderhandelen over kasten. En als je het forum had uitgespit , dan had je tig tips kunnen lezen over hoe je het beste uit je keuken(prijs) kan halen bij een DMG zaak. Ze leveren verder prima keukens. Dat onderhandelen dan onderdeel is van het spel is dan maar zo.
Er zijn op dit forum diverse keukenzaken genoemd die de Tweaker goed is bevallen. Dat deze dan niet altijd bij jou om de hoek zit is dan soms een feit.
Op apparatuur zit een fikse marge. Bosch/Siemens kan er zomaar 30-40 % af van de adviesprijs.
Ik zou het forum eens goed doorspitten, er gaat een wereld voor je open.
Tegen zoveel " ja maar" kan ik niet op. Als je niet de moeite wil nemen om in de auto te stappen om naar een andere zaak te gaan kijken dan maak je het jezelf wel heel moeilijk en kan ik ook weinig met je commentaar over al die slechte keukenzaken (wat in de praktijk heus meevalt).Jackpuyn schreef op zondag 28 februari 2021 @ 14:59:
[...]
@mevrouwKees_1 helaas zit er bij ons in de buurt bijna geen goede keukenzaak. DMG heeft gewoon veel problemen met de keukens leveren slecht of niet. Veel problemen met hun keukens. Mijn vrouw heeft geen zin om half Nederland door te rijden voor een keukenzaak wil maximaal 25km ver gaan. Dus dan blijft er niet veel over helaas. Superkeukens heeft ook veel problemen en slechte kwaliteit. Om over kvik maar niet te praten. Probleem bij de DMG is dat ze totaal niet flexibel zijn en alleen hun eigen idee willen door drukken. Daarom is mijn plezier in het zoeken van een keuken over gegaan. Met de badkamer vorig jaar dit probleem totaal niet gehad
Superkeukens levert oa Nobilia keukens. Zelf heb ik al 11 jaar een Nobila keuken (niet via SK) en deze is meer dan prima van kwaliteit, zeker voor de prijs. Dus prijs/kwaliteit verhouding was in orde .
En onthoud ook.. je zal altijd meer slechte reviews vinden dan goede, klagen doen mensen sneller dan positieve verhalen plaatsen.
Ik ben overal tegen. Tot ik een besluit neem, dan ben ik ervoor
@Shunt dat zelfde idee heb ik over de kasten. Hoe is Bovee bevallen en heb jij je keuken al gekocht? Zo ja bij wie?Shunt schreef op zondag 31 juli 2016 @ 17:10:
We hebben bij Grando een keuken laten tekenen en dat was wel een prettige ervaring. De keuken zelf bestaat uit Systemat keuken en ongeveer de zelfde apparatuur bij de rest. Maar die keuken kwam incl montage 21000 euro. (hier zat nog wel wat rek in maar hoeveel wisten ze me niet te zeggen zonder er best wat werk in te moeten steken. En dat ga ik ze niet aan doen voordat ik zelf alle afspraken af heb gemaakt met de keukenboeren die ik nog heb staan.
Ik blijf het extreem lastig vinden om een inzicht te krijgen wat nu acceptabel is qua prijs voor de keuken zelf. Bij Grando was het acht duizend euro voor een keuken bestaand uit 3.5 meter aan lage kasten (bijna allemaal schuif lades) en twee hoge kasten met apparatuur en een hoge kast met drie lades. En een blad van drie duizend euro (wel een 6cm dikke rand) Zwart gebrand marmer strips langs de muren en een marmeren plaat bij de kookplaat (deze koste los bijna 1200 euro).
Bij Bovee hebben we een soort gelijke keuken laten aan meten en daar kwamen we op ongeveer 15000. Met Rotpunkt keukens. En een totaal prijs van ongeveer vijf duizend voor de keuken en 2500 voor het blad en rand. (gebrand donker marmer) en een blad achter de kookplaat van het zelfde marmer.
Bij Reddy hebben we een keuken laten tekenen (zonder al te veel lades nog (wisten toen nog niet zo goed wat we wouden hebben) met een keuken kast van Brigitte. De totale keuken koste daar ongeveer 12000 euro incl zetten. Met een Composiet blad en een geborsteld RVS plaat achter de kookplaat. Deze moeten we nogmaals opnieuw laten berekenen met de zelfde setup als we nu hebben bij de andere twee keuken boeren. Maar ik gok zelf dat dit neer zou komen op ongeveer 13000 a 14000 euro. Ik kan echter niet al te veel vinden over het merk Brigitte behalve dat dit een goede keuken is voor de prijs van de keuken.
Zit er dan zo veel daadwerkelijk verschil in de kwaliteit van de kasten om dat soort verschillen te verantwoorden? Voor mijn hoofd is een achter kast gewoon een achterkast en is het allemaal of MDF of Spaanplaat met een laagje er over heen. En een composiet blad zou volgens mij ook overal ongeveer het zelfde zijn lijkt mij. We hebben nog een afspraak staan bij een wat duurdere keukenboer waar standaard alle hoge lijnen van apparatuur in de voorbeelden zit ipv de goedkoopste whirlpool of etna. We verwachten hier wel wat hoger uit te komen dan Reddy en Bovee maar toch stiekem lager als Grando.
We willen ook nog eens naar een paar Duitse winkels gaan maar dat hangt nog even af hoeveel tijd we vrij kunnen maken daar voor.
Franssen keukens Venlo/Blerick, Nellen in Oostrum, Bovee in Horst.Jackpuyn schreef op zondag 28 februari 2021 @ 14:59:
[...]
@mevrouwKees_1 helaas zit er bij ons in de buurt bijna geen goede keukenzaak. DMG heeft gewoon veel problemen met de keukens leveren slecht of niet. Veel problemen met hun keukens. Mijn vrouw heeft geen zin om half Nederland door te rijden voor een keukenzaak wil maximaal 25km ver gaan. Dus dan blijft er niet veel over helaas. Superkeukens heeft ook veel problemen en slechte kwaliteit. Om over kvik maar niet te praten. Probleem bij de DMG is dat ze totaal niet flexibel zijn en alleen hun eigen idee willen door drukken. Daarom is mijn plezier in het zoeken van een keuken over gegaan. Met de badkamer vorig jaar dit probleem totaal niet gehad
Tis maar wat je wil zien
@rvrrr dank je voor de tips. Ga eens proberen daar een afspraak te maken.rvrrr schreef op zondag 28 februari 2021 @ 15:15:
[...]
Franssen keukens Venlo/Blerick, Nellen in Oostrum, Bovee in Horst.
Tis maar wat je wil zien
Verwijderd
![]() | ![]() |
In onze nieuwbouwwoning zit in de keuken een erker die we bij de keuken willen betrekken. Helaas zijn de keukenboeren die we gesproken hebben minder creatief dan gehoopt. We hebben uiteindelijk zelf een idee laten uitwerken door Nolte. Zijn er tweakers die een zelfde soort ruimte hebben of die hele andere ideeën hebben qua indeling?
De plattegrond is de standaard plattegrond uit de brochure dus niet onze tekening. De linkermuur wordt in ieder geval 310 cm door het opschuiven van de hal naar de woonkamer. Die muur kan indien nodig nog langer worden. De eettafel hadden we gedacht in het tussenstuk tussen de keuken en de woonkamer.
Alvast bedankt voor het meedenken!
:strip_exif()/f/image/vYDhzX7N784Y06XywShDTjVA.jpg?f=fotoalbum_large)
:strip_exif()/f/image/wXKAHtUXPhF0MSA7Cje4jmAG.jpg?f=fotoalbum_large)
:strip_exif()/f/image/yL3cbEyMqlXg45gvc0vlfVqr.jpg?f=fotoalbum_large)
Is het front van de bestek lade naar beneden te stellen?? front is normaal gesproken ook te stellen.Dus om laag stellen.MMatthijsV schreef op zondag 28 februari 2021 @ 16:55:
Begin Februari is onze Pronorm Xline keuken geïnstalleerd. Er lijkt alleen iets niet te kloppen met de 120cm lade "prostyle" met besteklade. Wanneer we die met 20 kilo aan borden belasten, dan zakt de lade wanneer deze is uitgeschoven zover naar beneden dat de besteklade niet meer soepel in of uit de vergrendeling van de lade klikt. We hebben het gewicht al zoveel mogelijk verdeeld, maar het probleem blijft. Links met belasting, rechts zonder. De monteur zei dat hij hier niets aan kan doen. Iemand tips?
[Afbeelding] [Afbeelding]
En zitten je lade geleiders nog goed vast,
Zit je mee nemer er op geschroefd, of vast in je front.Met schroeven, dan iets omhoog stellen
Volgende, een 120 lade is k.t met belasten.Eigenlijk veel te groot.
[ Voor 3% gewijzigd door ouwefreaker op 28-02-2021 19:18 ]
Ik had een lijstje samengesteld van toestellen die ik graag in de nieuwe keuken zou willen, voornamelijk AEG. Nu kreeg ik te horen van een van de bedrijven met een zeer interessante offerte dat ze momenteel dankzij batibouw (bouwbeurs in België) op Neff extra korting mogen geven en dat gelijkaardige toestellen cA. 1000 euro goedkoper zouden uitkomen dan AEG.
De modelnummers op de offerte van Neff kloppen niet, het zou om de nieuwe lijn gaan in Graphite Grey (maar die stonden nog niet in het softwareprogramma).
:strip_exif()/f/image/GTBKtO3uxS4Dx25i6XrsCMWb.jpg?f=fotoalbum_large)
:strip_exif()/f/image/xt8VxnepEHYWvIyg561xUfcT.jpg?f=fotoalbum_large)
Zijn deze toestellen vergelijkbaar (de frigo sowieso)? en enig idee qua kwaliteit?
Foto’s en lijstje met definitieve apparaten:
Koelkast die wij hebben besteld is niet op voorraad of uit het assortiment, in de ATAG brochure stond ook dat er veel dingen tot oktober besteld kon worden, dus dat klopt. Wij hadden een veel simpelere koelkast en krijgen nu zonder meerprijs de MAGNA versie.
Spoelbak ook nu pas definitief gemaakt, gaan toch voor zwart. Deze Franke zou niet moeten gaan krassen....
[ Voor 5% gewijzigd door Linkser op 01-03-2021 08:25 ]
@Linkser mag ik vragen wat je hiervoor hebt betaald. Ook ten opzichte van de keukenboerenLinkser schreef op zondag 28 februari 2021 @ 19:57:
@Jackpuyn mijn Klomp keuken (interieur bouwer uit Mill) gaat aankomende donderdag geplaatst worden. Inmiddels zijn wij 7 weken aan het verbouwen en met de komst van de keuken is deze afgerond (nou ja bijna dan...).
Foto’s en lijstje met definitieve apparaten:
***members only***
Koelkast die wij hebben besteld is niet op voorraad of uit het assortiment, in de ATAG brochure stond ook dat er veel dingen tot oktober besteld kon worden, dus dat klopt. Wij hadden een veel simpelere koelkast en krijgen nu zonder meerprijs de MAGNA versie.
Spoelbak ook nu pas definitief gemaakt, gaan toch voor zwart. Deze Franke zou niet moeten gaan krassen....
Wat vinden jullie van dit prijs? Heel veel onderhandelingsruimte?
Jackpuyn schreef op zondag 28 februari 2021 @ 20:20:
[...]
@Linkser mag ik vragen wat je hiervoor hebt betaald. Ook ten opzichte van de keukenboeren
Bij andere keuken zaken soms meer soms minder gezien in prijzen, meestal ook wel verklaarbaar waar dat in ging zitten. Bij Klomp beste indeling en gevoel gehad.
[ Voor 22% gewijzigd door Linkser op 28-02-2021 20:30 ]
Je krijgt slechts 10% op de bruto prijs. Bijna 32k voor die keuken slaat natuurlijk ook helemaal nergens op.Lastmanstanding schreef op zondag 28 februari 2021 @ 20:22:
Een kleine keukenboer heeft dit voor ons getekend:
***members only***
Wat vinden jullie van dit prijs? Heel veel onderhandelingsruimte?
Lees dit topic eens door en trek je conclusies.
[ Voor 16% gewijzigd door Kapitein Merijn op 28-02-2021 20:40 ]
Untappd: Kapitein_Merijn
Groot genoeg voor 2 hoofdletters
Prachtige keuken, fijne indeling.. Kan de greeplijst onder de ovens niet anders? Het enige dat ik niet mooi vind.Lastmanstanding schreef op zondag 28 februari 2021 @ 20:22:
Een kleine keukenboer heeft dit voor ons getekend:
***members only***
Wat vinden jullie van dit prijs? Heel veel onderhandelingsruimte?
Qua prijs wel een beetje hoog. Waar heb je deze keuken laten tekenen?
Die Quooker, is dat de versie met Cube? Anders vind ik die nogal duur. Van de rest heb ik geen idee...severijns schreef op zondag 28 februari 2021 @ 19:27:
Is er iemand die momenteel ook toestellen aan het uitzoeken is en een vergelijking tussen AEG en Neff gemaakt heeft?
Ik had een lijstje samengesteld van toestellen die ik graag in de nieuwe keuken zou willen, voornamelijk AEG. Nu kreeg ik te horen van een van de bedrijven met een zeer interessante offerte dat ze momenteel dankzij batibouw (bouwbeurs in België) op Neff extra korting mogen geven en dat gelijkaardige toestellen cA. 1000 euro goedkoper zouden uitkomen dan AEG.
De modelnummers op de offerte van Neff kloppen niet, het zou om de nieuwe lijn gaan in Graphite Grey (maar die stonden nog niet in het softwareprogramma).
[Afbeelding]
[Afbeelding]
Zijn deze toestellen vergelijkbaar (de frigo sowieso)? en enig idee qua kwaliteit?
Kasten
SYSTEMAT greeploos
- Hoge kastenwand: AV6000-GL Zwart MAT
- Kasten aanrecht/keukeneiland: AV6000 Kristalwit
- Composiet 20mm, kleur 961P Oscuro
- Bora PUXU
- Siemens Oven met Stoom HS858GXB6
- Siemens Oven met Magnetron CM876G0B6
- Siemens warmhoudlade BI830CNB1
- Siemens koelkast 178cm KI81RADE0
- Siemens Vriezer 178cm GI81NACF0
- Siemens Vaatwasser SN63HX30AE
- Kuppersbusch wijnkoeler 2 zones FWKU18000S
- Quooker Pro 3 3XBLK
Schetsen
![]() | ![]() |
De kastjes onder het aanrecht moeten wit worden (itt zwart in de schets hierboven)
Ik heb zelf ook een schets gemaakt mbv Floorplanner. We willen een halfdiepe ombouw rondom het aanrecht. Hoe we achterwand bij het aanrecht verder opvullen (bijvoorbeeld een plank met spotjes) zijn we nog niet helemaal uit.
![]() | ![]() |
Vragen
• Een hoekbar lijkt ons erg leuk, maar we twijfelen nog over bovenstaande opzet (hout icm composietblad) en een opzet waarbij we het werkblad door laten lopen zonder extra houten blad (en dan bijvoorbeeld een 8cm dik blad). Hebben jullie nog ideeën?
• De Systemat AV6000 heeft onze voorkeur boven de AV2135 serie, maar is wel gevoeliger voor krassen. Met jonge kinderen is het misschien een logischere keuze om voor de AV2135 te gaat. Iemand ervaring met de AV6000 frontjes en krassen?
[/list]
Verder nog tips/ideeën?
[ Voor 3% gewijzigd door HillPiet op 28-02-2021 22:15 ]
Ik zal even kijken bij de greeplijsten boven de ovens. Was me niet opgevallen.
[ Voor 26% gewijzigd door Lastmanstanding op 01-03-2021 15:00 ]
Originele plan: waarop ook onze offerte is gebaseerd
![]() | ![]() |
Alternatief 1
Keukenzaak die we gesproken hebben is met het voorstel gekomen om twee kasten van 39cm bovenop de hoge kasten te plaatsen. Op zich prima voorstel maar de koof/ombouw boven het raam wordt zo relatief dun wat naar mijn idee iets minder fraai oogt. Daarnaast is de verhouding tussen hoge kasten en lage kasten wat minder in balans.
![]() |
De aannemer heeft ons laten weten dat we de keuken eventueel ook nog naar de overkant mogen verplaatsten (uiteraard tegen meerprijs...). Daarmee zijn er wel veel meer opties.
Alternatief 2
Originele plan spiegelen naar de overkant. Vraag is dan of we de hoge kasten links of rechts plaatsen.
Afgelopen dagen heeft mijn vriendin een aantal plaatjes gezien van compleet andere opstellingen die haar aanspreken (ik vind het ook zeker niet lelijk, maar wel een hoop nieuw uitzoekwerk, en meer kasten dus duurder…):
Alternatief 3: middelste lage kast is spoelkast
:strip_exif()/f/image/VY5HMAiwaOXGCTAuDu8DPdqu.jpg?f=fotoalbum_large)
Alternatief 4: middelste lage kast is spoelkast
:strip_exif()/f/image/wjHD1kqxzfGXuHvQDsg7Nllh.jpg?f=fotoalbum_large)
Vragen
- Alle tips en advies welkom
- Is het lijnenspel logisch
- Zijn de alternatieve opstellingen, met name 3 en 4, praktisch
- Ovens naast of boven elkaar in deze opstelling?
![]() | ![]() | ![]() |
![]() | ![]() | ![]() |
Als ik nu beter kijk naar de foto’s zie ik de greeplijst op gelijke hoogte met die van de eerste lage kast. Zal vast niet storend zijn. Misschien even laten tekenen wat het verschil is. :-)Lastmanstanding schreef op zondag 28 februari 2021 @ 21:19:
@Kapitein Merijn , @PaT, en @herofruit, bedankt voor de reacties. Dit forum lees ik wel, maar mijn partner niet. Zij is erg dankbaar voor de inzichten.
***members only***
Ik zal even kijken bij de greeplijsten boven de ovens. Was me niet opgevallen.
Qua kosten, wij hebben een Next125 keuken (5 hoog, 7 laag) Fenix front, dekton blad (5m2), IQ700 apparatuur, 2 ovens, warmhoudlade, quooker, Bora.
Dus er is nog echt wel wat ruimte ;-)
Volgens mij klopt er iets niet aan die apparatuur prijzen. Als ik de prijzen optel kom ik al snel aan 10.000 euro maar in je lijstje staat 5.800? Daarnaast zie ik 2 ovens maar in je lijstje maar 1.Lastmanstanding schreef op zondag 28 februari 2021 @ 20:22:
Een kleine keukenboer heeft dit voor ons getekend:
***members only***
Wat vinden jullie van dit prijs? Heel veel onderhandelingsruimte?
Overigens zonder de series van je apparatuur kan je in ieder geval daarvan niet zeggen of het duur of goedkoop is.
It was then that I realized that the question mark was the answer to all my questions.
Wellicht niet helemaal je smaak maar je opstelling doet me heel erg denken aan een recent gerealiseerde keuken:SquareOne schreef op zondag 28 februari 2021 @ 21:21:
Lang verhaal kort: raam in nieuwbouwwoning blijkt hoger te zitten door verkeerde tekening aannemer waardoor de beoogde koof/ombouw in originele plan niet meer past. Raam aanpassen is niet mogelijk.
Originele plan: waarop ook onze offerte is gebaseerd
[Afbeelding] [Afbeelding]
Alternatief 1
Keukenzaak die we gesproken hebben is met het voorstel gekomen om twee kasten van 39cm bovenop de hoge kasten te plaatsen. Op zich prima voorstel maar de koof/ombouw boven het raam wordt zo relatief dun wat naar mijn idee iets minder fraai oogt. Daarnaast is de verhouding tussen hoge kasten en lage kasten wat minder in balans.
[Afbeelding]
De aannemer heeft ons laten weten dat we de keuken eventueel ook nog naar de overkant mogen verplaatsten (uiteraard tegen meerprijs...). Daarmee zijn er wel veel meer opties.
Alternatief 2
Originele plan spiegelen naar de overkant. Vraag is dan of we de hoge kasten links of rechts plaatsen.
Afgelopen dagen heeft mijn vriendin een aantal plaatjes gezien van compleet andere opstellingen die haar aanspreken (ik vind het ook zeker niet lelijk, maar wel een hoop nieuw uitzoekwerk, en meer kasten dus duurder…):
Alternatief 3: middelste lage kast is spoelkast
[Afbeelding]
Alternatief 4: middelste lage kast is spoelkast
[Afbeelding]
VragenWat plaatjes waarop alternatief 3 en 4 is gebaseerd:
- Alle tips en advies welkom
- Is het lijnenspel logisch
- Zijn de alternatieve opstellingen, met name 3 en 4, praktisch
- Ovens naast of boven elkaar in deze opstelling?
[Afbeelding] [Afbeelding] [Afbeelding] [Afbeelding] [Afbeelding] [Afbeelding]
Untappd: Kapitein_Merijn
Fraaie opstelling hoor! Licht eiken kasten op licht eiken vloer is persoonlijk niet mijn ding maar dat is waarschijnlijk de keuze van de bewoners geweest.Kapitein Merijn schreef op zondag 28 februari 2021 @ 21:44:
[...]
Wellicht niet helemaal je smaak maar je opstelling doet me heel erg denken aan een recent gerealiseerde keuken:
***members only***
Ik vind het prachtig om hoge kasten in te bouwen in een ombouw. Maar met 3 hoge kasten redden wij dat net niet met 3.82 meter. Hoog deel met 3 hoge kasten direct tegen het lage deel kan natuurlijk wel, maar dan wordt het weer wat 'gewoontjes'. Dan heeft het denk ik mijn voorkeur om voor 2 hoge kasten in ombouw te gaan.
Alternatief 3 en 4 uit vorige post is natuurlijk behoorlijk over een andere boeg. Maar de opstelling van @mr3000 die hier recent voorbij kwam was daarin ook wel een inspiratie.
[ Voor 38% gewijzigd door SquareOne op 28-02-2021 22:04 ]
Ja, met cube.Beekforel schreef op zondag 28 februari 2021 @ 21:17:
[...]
Die Quooker, is dat de versie met Cube? Anders vind ik die nogal duur. Van de rest heb ik geen idee...
Dit topic kan gebruikt worden voor het volgende:
• Vragen over de keuken, denkend aan indeling, materialen, kastjes, apparatuur, etc.
• Welke kastjes, aanrechtbladen en apparatuur te kiezen
• Ervaringen met verkopers en keukenboeren
• Tips & Tricks denk hierbij aan hulp bij het zelf installeren en onderhouden van de keuken.
• Jouw indeling. Plaats gerust een foto of tekening, maar maak het niet te bont met hele buildlogs.
Voor badkamers: Het Badkamer topic: verkopers, kwaliteit, prijs - Deel 1
Showen met je keuken kan hier: Tweakers Keuken showroom! - Vestiging 1
:strip_exif()/f/image/YH7D3DLUUnCnCpkBGvuPYu92.jpg?f=fotoalbum_tile)
:strip_exif()/f/image/MUmot95lvccqckXkPUBykAsm.jpg?f=fotoalbum_tile)
:strip_exif()/f/image/e90bwIcdWSbRMBSTPinCSh8v.jpg?f=fotoalbum_tile)
:strip_exif()/f/image/aJQZYQqapSSVBp2aesM6GZW1.jpg?f=fotoalbum_tile)
:strip_exif()/f/image/vAivLToEwy7rzwxbQPioXlds.jpg?f=fotoalbum_tile)
:strip_exif()/f/image/7FSd44hT3S4troTKWBsLIkcC.jpg?f=fotoalbum_tile)
:strip_exif()/f/image/2TE4u0cjNpyxmXBP9JK27CCN.jpg?f=fotoalbum_tile)
:strip_exif()/f/image/EOVyHMCPUtODrs2t5yKg0Klk.jpg?f=fotoalbum_tile)
:strip_exif()/f/image/JF03vFcczmSk8lGkwR8H4dMJ.jpg?f=fotoalbum_tile)
:strip_exif()/f/image/F7St8U0Fmd8rTpo1L4nBAIuo.jpg?f=fotoalbum_tile)
:strip_exif()/f/image/xAqjb6loEk00NZv1ABTPxA49.jpg?f=fotoalbum_tile)
:strip_exif()/f/image/ibNo5d1oMqBEnjdN5hoO7x4i.jpg?f=fotoalbum_tile)
/f/image/hskjMOvlNDAaK88FEJ6H8b3J.png?f=fotoalbum_tile)
/f/image/tRdBHjQIlpHaOYaH2m8aMh9W.png?f=fotoalbum_tile)
/f/image/Bcg9msYEJknpPUEvSPcZrToG.png?f=fotoalbum_tile)
/f/image/nUEZ9ud1qItJ4uQYQWpxtQQc.png?f=fotoalbum_tile)
:strip_exif()/f/image/HIEtboY4eZiju2eZZolQThjI.jpg?f=fotoalbum_tile)
/f/image/KhbzCGdKpyeEo348vo3loSLx.png?f=fotoalbum_tile)
/f/image/ugXiPR5KzT2gmst3leuMX98h.png?f=fotoalbum_tile)
:strip_exif()/f/image/OfrbZgq0nOiO3bwcAPCgEJbP.jpg?f=fotoalbum_tile)
:strip_exif()/f/image/FvapPi2Ce4qQBmqy99YkPOsX.jpg?f=fotoalbum_tile)