Ik wist direct al dat Dekton of keramiek geen goed idee zou zijn. Hier vliegen de pannen en mokken door de keuken.Verwijderd schreef op donderdag 11 februari 2021 @ 14:44:
Oke, Dekton is van de tafelMijn vriendin stoot te vaak iets tegen de rand.
Wie heeft nog een goed idee voor onze keuken. De lange kant is 305cm en de korte kant 210cm. Totale breedte van de kamer is 550cm. We willen nu graag een eiland tegen de korte kant aan van 100 breed en 200 lang met daarin een bora pure met recirculatie. En op de lange kant 2 hoge kasten met in 1 een koel vriescombinatie en in de andere een oven en magnetron. En verder een vaatwasser en gootsteen en een Quooker. Als blad denken we aan composiet of graniet. Voor de kasten denken we aan greeploos mat wit en een donker blad. Verder nog 3 bovenkasten waarvan 2 vitrine. Graag horen we jullie ideeen:strip_exif()/f/image/L30mSe6yHAcFPZqU1QqjuZVD.jpg?f=fotoalbum_large)
:strip_exif()/f/image/L30mSe6yHAcFPZqU1QqjuZVD.jpg?f=fotoalbum_large)
:strip_exif()/f/image/Jel1pIyidtxbLzK73vTahfL9.jpg?f=fotoalbum_large)
[ Voor 47% gewijzigd door Jackpuyn op 11-02-2021 18:32 ]
Ik vind dat hout op hout zeker kan. Bij mij zijn ze nu de keuken aan het plaatsen en vind het mooi samen ;-). Maar uiteraard, zoveel mensen, zoveel wensen.Verwijderd schreef op donderdag 11 februari 2021 @ 12:15:
[...]
Wordt je niet gek van dat afwijkende hout op hout? Dat is hier altijd een no go.
Stukje smaak uiteraard, zoals altijd bij de keukens, maar hout op hout zou ik nooit zo doen bij geen enkel interieur element.
:strip_exif()/f/image/hphdDR4dCgW4ER0TSYAPt8PX.jpg?f=fotoalbum_large)
Agree, dan moet het wel compleet verschillend zijn. Heel donker (eiken/noten) en licht kan prima bij elkaar.Don Quijote schreef op donderdag 11 februari 2021 @ 19:21:
[...]
Ik vind dat hout op hout zeker kan. Bij mij zijn ze nu de keuken aan het plaatsen en vind het mooi samen ;-). Maar uiteraard, zoveel mensen, zoveel wensen.
[Afbeelding]
Ja maar was benieuwd na ideeën van andereVerwijderd schreef op donderdag 11 februari 2021 @ 19:16:
@Jackpuyn Ben je al eens naar een keukenzaak geweest met dit verhaal?
Leuke indeling! De kleur vind ik persoonlijk iets minder, maar hé, ieder z'n smaak he107mb schreef op donderdag 11 februari 2021 @ 09:41:
[...]
Ik heb hem al vaker geplaatst, omdat ik dit een heel mooi alternatief vindt voor alle 'keukeneiland-keukens'
wij hebben onlangs deze keuken laten plaatsen:
[Afbeelding]
met 3,60 bij 3,50 is deze keuken iets groter, maar er is qua maatvoering wel wat af te snoepen.
Deze keuken is met 20k iets duurder dan jullie budget, maar dit bedrag is incl. verlichting en een decton blad die doorloopt tot aan de bodem. Het blad is een bijna een kwart van de totale prijs. Dus op die 15 k moet je kunnen uitkomen. De zwarte frontjes die wij hebben zijn wel gevoelig voor vlekken. Dit zwarte is een mode/smaak iets, dus dit zou ook vlekvrij wit kunnen worden. Voor de rest voldoet hij aan al jouw eisen/wensen.
Heb je misschien de afmetingen van het totale werkblad (langs de zijkant is ook gewoon decton toch?) en/of keuken. Zelf ga ik waarschijnlijk ook voor decton namelijk, maar ik heb het idee dat de prijs bij mij veel te hoog is gegeven dus wat vergelijkingsmateriaal zou fijn zijn.
Ik heb ook een klein beetje stootschade aan een graniet werkblad.lluuk schreef op donderdag 11 februari 2021 @ 14:27:
[...]
Wellicht niet als je het kommetje (iets te hard) recht en in het midden op het blad neerzet, maar wel als je met het kommetje (iets te hard) langs de rand van het blad stoot. Mijn zus heeft dit recent ook gehad met een (€ 2,-) koffiemokje. Keuken was een dag oud. Ging kennelijk niet zo heel hard, maar wellicht net onder een bepaalde hoek de rand geraakt. Kopje heeft het overleefd. Inmiddels wel mooi gerepareerd en sindsdien niet meer voorgekomen. Mede om deze ervaring zelf toch maar voor composiet gekozen (Caesarstone)
[Afbeelding]
Met vloeren en terrassen zul je dit soort (punt)belasting niet snel hebben, vanwege het ontbreken van dergelijke randen. Het materiaal is inderdaad keihard en krasbestendig, dus op zichzelf goed geschikt voor vloeren en terrassen lijkt mij. Maar Dekton is nu eenmaal kwetsbaar(der) in geval van puntbelasting.
Mag ik vragen of je weet waarmee het hersteld is? Bestaat daar een soort hars voor?
Sony A7 iv en wat recycled glas
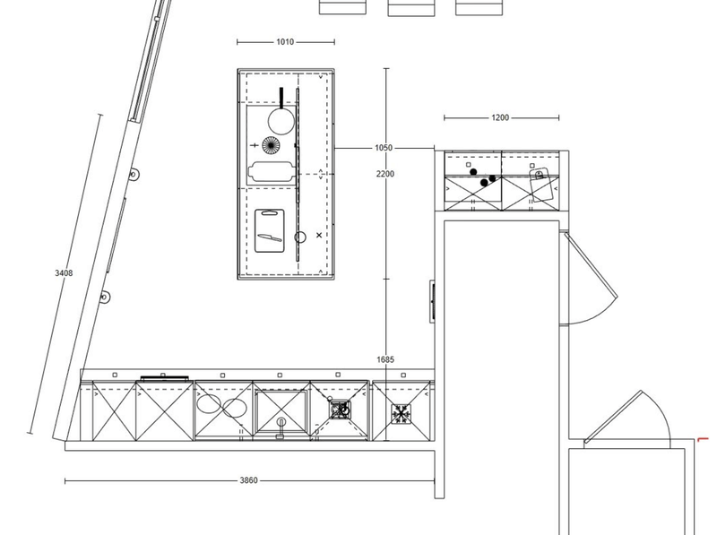
Vandaag bij de keukenboer geweest die vanuit de aannemer is aangewezen voor onze nieuwbouwwoning.
Heb hem hier al 1x gedeeld voor tips en adviezen, maar heb nu ook een offerte en er zijn wat aanpassingen geweest.
Het is een Häcker Novitelli Comet uitvoering geworden in een paralelle opstelling met de volgende kenmerken en apparatuur:
- Werkblad van 365,5cm, 70cm diep en 6cm dik van het type Top Core kleur Jupiter, eveneens in de nis geplaatst.
- BAUKNECHT BIK11FH8TS2PT Oven 60cm
- BAUKNECHT BCIF 5O41 PLEGTS Vaatwasser
- BAUKNECHT BCIF 5O41 PLEGTS Inductiekookplaat met afzuiging
- BAUKNECHT KSI18GF2P Koelkast met klein vriesvak
- Quooker Fusion Round Combi+
Offerte prijs 17k inclusief montage en exclusief aanpassingen aan het leidingwerk.
Is dit een reële prijs of kan het nog wat scherper?
:strip_exif()/f/image/Qp9JsA56gwqTpfIiyT1h5aTw.jpg?f=fotoalbum_large)
:strip_exif()/f/image/BVnKimdoyTabqRe6vakmciW4.jpg?f=fotoalbum_large)
Heb hem hier al 1x gedeeld voor tips en adviezen, maar heb nu ook een offerte en er zijn wat aanpassingen geweest.
Het is een Häcker Novitelli Comet uitvoering geworden in een paralelle opstelling met de volgende kenmerken en apparatuur:
- Werkblad van 365,5cm, 70cm diep en 6cm dik van het type Top Core kleur Jupiter, eveneens in de nis geplaatst.
- BAUKNECHT BIK11FH8TS2PT Oven 60cm
- BAUKNECHT BCIF 5O41 PLEGTS Vaatwasser
- BAUKNECHT BCIF 5O41 PLEGTS Inductiekookplaat met afzuiging
- BAUKNECHT KSI18GF2P Koelkast met klein vriesvak
- Quooker Fusion Round Combi+
Offerte prijs 17k inclusief montage en exclusief aanpassingen aan het leidingwerk.
Is dit een reële prijs of kan het nog wat scherper?
:strip_exif()/f/image/Qp9JsA56gwqTpfIiyT1h5aTw.jpg?f=fotoalbum_large)
:strip_exif()/f/image/BVnKimdoyTabqRe6vakmciW4.jpg?f=fotoalbum_large)
:strip_exif()/f/image/s5GMdbCzDe62TZ76yEF7OJYp.jpg?f=fotoalbum_large)
Ik heb het niet nagerekend maar als ik zie wat er hier in dit topic voorbij komt qua keukens van 17k dan moet dit zeker goedkoper kunnen. Ik zou even de laatste 20 pagina's oid doorlezen om een idee te krijgen wat vergelijkbare keukens kosten.MainC schreef op donderdag 11 februari 2021 @ 20:32:
Vandaag bij de keukenboer geweest die vanuit de aannemer is aangewezen voor onze nieuwbouwwoning.
Heb hem hier al 1x gedeeld voor tips en adviezen, maar heb nu ook een offerte en er zijn wat aanpassingen geweest.
Het is een Häcker Novitelli Comet uitvoering geworden in een paralelle opstelling met de volgende kenmerken en apparatuur:
- Werkblad van 365,5cm, 70cm diep en 6cm dik van het type Top Core kleur Jupiter, eveneens in de nis geplaatst.
- BAUKNECHT BIK11FH8TS2PT Oven 60cm
- BAUKNECHT BCIF 5O41 PLEGTS Vaatwasser
- BAUKNECHT BCIF 5O41 PLEGTS Inductiekookplaat met afzuiging
- BAUKNECHT KSI18GF2P Koelkast met klein vriesvak
- Quooker Fusion Round Combi+
Offerte prijs 17k inclusief montage en exclusief aanpassingen aan het leidingwerk.
Is dit een reële prijs of kan het nog wat scherper?
[Afbeelding]
[Afbeelding]
[Afbeelding]
ik heb bruto 4900 euro voor het werkblad betaald, en uiteindelijk nog zo'n 800 euro korting gekregen op het blad.Stormstar3 schreef op donderdag 11 februari 2021 @ 19:35:
[...]
Leuke indeling! De kleur vind ik persoonlijk iets minder, maar hé, ieder z'n smaak he.
Heb je misschien de afmetingen van het totale werkblad (langs de zijkant is ook gewoon decton toch?) en/of keuken. Zelf ga ik waarschijnlijk ook voor decton namelijk, maar ik heb het idee dat de prijs bij mij veel te hoog is gegeven dus wat vergelijkingsmateriaal zou fijn zijn.
[ Voor 16% gewijzigd door 107mb op 11-02-2021 21:29 ]
Dit is een beetje hoe wij het nu voor ogen hebben.
Siematic s2 of slx (nog niet over uit)
/f/image/ecpuNnQOFb5OZiq39tTWkf6a.png?f=fotoalbum_large)
Front:
/f/image/8yDzRNo7rX3XgWF1Jvvv8R1I.png?f=fotoalbum_large)
/f/image/O260g6VAra7iRTlO7szRB3sF.png?f=fotoalbum_large)
blad denken we aan Neolith composiet
:strip_exif()/f/image/or3uJwhrguXS4N2l49WIKM3O.jpg?f=fotoalbum_large)
Verlichting op wanden, plafond en boven eenkamertafel:
Nog aantal overwegingen
- Front is rustiger dan op foto lijkt. gezien redelijk strakke gietvloer, neig ik nu naar zo'n front maar misschien een gladder front ook mooi (moet niet te modern strak worden)
- Siematic vind ik geweldig mooi, alleen de witte binnenkast erg lelijk. helaas hebben ze geen dergelijk front in next125, dus nog vraagtekens aldaar
Siematic s2 of slx (nog niet over uit)
/f/image/ecpuNnQOFb5OZiq39tTWkf6a.png?f=fotoalbum_large)
Front:
/f/image/8yDzRNo7rX3XgWF1Jvvv8R1I.png?f=fotoalbum_large)
/f/image/O260g6VAra7iRTlO7szRB3sF.png?f=fotoalbum_large)
blad denken we aan Neolith composiet
:strip_exif()/f/image/or3uJwhrguXS4N2l49WIKM3O.jpg?f=fotoalbum_large)
Verlichting op wanden, plafond en boven eenkamertafel:
![]() | ![]() | ![]() |
Nog aantal overwegingen
- Front is rustiger dan op foto lijkt. gezien redelijk strakke gietvloer, neig ik nu naar zo'n front maar misschien een gladder front ook mooi (moet niet te modern strak worden)
- Siematic vind ik geweldig mooi, alleen de witte binnenkast erg lelijk. helaas hebben ze geen dergelijk front in next125, dus nog vraagtekens aldaar
[ Voor 23% gewijzigd door mr3000 op 11-02-2021 22:06 ]
Heel fraai! Ik heb deze kleur ook lang overwogen. Helaas krijg ik het er niet doorheen bij mijn vriendinmr3000 schreef op donderdag 11 februari 2021 @ 22:05:
Dit is een beetje hoe wij het nu voor ogen hebben.
Siematic s2 of slx (nog niet over uit)
[Afbeelding]
Front:
[Afbeelding]
[Afbeelding]
blad denken we aan Neolith composiet
[Afbeelding]
Verlichting op wanden, plafond en boven eenkamertafel:
[Afbeelding] [Afbeelding] [Afbeelding]
Nog aantal overwegingen
- Front is rustiger dan op foto lijkt. gezien redelijk strakke gietvloer, neig ik nu naar zo'n front maar misschien een gladder front ook mooi (moet niet te modern strak worden)
- Siematic vind ik geweldig mooi, alleen de witte binnenkast erg lelijk. helaas hebben ze geen dergelijk front in next125, dus nog vraagtekens aldaar
Je weet dat de foto van het front de SLC uitvoering is? Op de render staat wel de goede (S2 of SLX uitvoering).
Ik zou wel aanraden om een keer met (vettige) vingers over het front te gaan. Je ziet er wel duidelijker vingerafdrukken op dan op een SimiLaque of SmartLaque front.
T.a.v de opstelling: is de kast naast de ovens push to open of komt daar een greep?
@mr3000 dit front heeft hacker systemat volgens mij ook.. althans.. lijkt er erg sterk op.. Ik heb dit front ook in mijn ontwerp zitten. Ook zijn hun binnenkasten op kleur
[ Voor 11% gewijzigd door mevrouwKees_1 op 11-02-2021 22:18 ]
Ik ben overal tegen. Tot ik een besluit neem, dan ben ik ervoor
Kwestie van smaak maar de Systemat Toronto is toch qua 'houtlook' een stuk minder fraai (en nóg vlekgevoeliger)mevrouwKees_1 schreef op donderdag 11 februari 2021 @ 22:18:
@mr3000 dit front heeft hacker systemat volgens mij ook.. althans.. lijkt er erg sterk op.. Ik heb dit front ook in mijn ontwerp zitten. Ook zijn hun binnenkasten op kleur
Ze hebben ook nog een zwart houtfineer front maar die is vrij heftig qua structuur.
@mr3000 ik zie ook geen stopcontacten bij de spoelkant en de koffie corner. Is daar al rekening mee gehouden?
[ Voor 8% gewijzigd door SquareOne op 11-02-2021 22:24 ]
Hier ben je voor verzekerd! Als je een offerte nodig hebt voor de verzekering weet je mij te vindenaschja schreef op woensdag 10 februari 2021 @ 17:30:
Barst in de glasplaat van onze Bora Puru. Geen idee hoe dat gekomen is. Anyway. Bestaat er zo’n aluminium rand voor Bora kookplaten? Want dit wil ik niet nog een keer?
Een aluminium rand gaat helaas niks doen voor stootschade. Of er moeten echt dempende lagen tussen zitten, maar dat is er volgens mij niet.
“Nothing changed since the 70s. Nothing. Except people train not that hard”. - Tom Platz
Klopt. Front was indicatief. Wil wel enigszins rustig front hebben, en vette vingers moet ik niet aan denken met 2 jonge kids. 😱😱SquareOne schreef op donderdag 11 februari 2021 @ 22:17:
[...]
Heel fraai! Ik heb deze kleur ook lang overwogen. Helaas krijg ik het er niet doorheen bij mijn vriendin.
Je weet dat de foto van het front de SLC uitvoering is? Op de render staat wel de goede (S2 of SLX uitvoering).
Ik zou wel aanraden om een keer met (vettige) vingers over het front te gaan. Je ziet er wel duidelijker vingerafdrukken op dan op een SimiLaque of SmartLaque front.
T.a.v de opstelling: is de kast naast de ovens push to open of komt daar een greep?
Klopt is push To open. Ben daar niet kapot van maar maakt het geheel stukken rustiger. Er vanuit gaande dat dit kasten zijn die je 2/3x per dag gebruikt. Lades de kasten aan voorkant van het eiland. Onder spoel gedeelte zijn wel gewoon greep.
Ja is wel de bedoeling. 2 bij de koffie en 2 bij spoel gedeelte lijkt me genoeg.SquareOne schreef op donderdag 11 februari 2021 @ 22:23:
[...]
Kwestie van smaak maar de Systemat Toronto is toch qua 'houtlook' een stuk minder fraai (en nóg vlekgevoeliger)
Ze hebben ook nog een zwart houtfineer front maar die is vrij heftig qua structuur.
@mr3000 ik zie ook geen stopcontacten bij de spoelkant en de koffie corner. Is daar al rekening mee gehouden?
Bij koffie corner komt nog water aansluiting voor espresso machine en afvoer. Zo mis je ook niet de spoelbak in de buurt ;-)
Systemat zat ook nog in overweging goed om dit even te horen en mee te nemen. Nog andere merken die we kunnen overwegen.
Ze mogen vragen wat ze willen, maar je bent niks verplicht. Als de keuken tijdens levering maar volledig betaald is.battler schreef op woensdag 10 februari 2021 @ 20:57:
Wat is gebruikelijk qua betalingstermijn. Wij gaan waarschijnlijk voor een Systema keuken van Keukenloods maar zij vragen een aanbetaling van 15% en de rest van het bedrag voor levering. Met die aanbetaling heb ik geen probleem maar alles vooraf lijkt mij onverstandig. Op het moment dat er iets fout gaat met de levering/installatie, heb je totaal geen onderhandelingspositie meer.
Als jij geld wilt achterhouden leveren zij niks. Reden: jij hebt schade aan de plint en besluit 1500 euro in te houden. Plint is in bestelling, duurt 6 weken. Jij houdt 6 weken lang 1500 euro in. Sterker nog, wie zegt dat je ooit alles betaald? Moet de keukenzaak de keuken dan komen ophalen? Jij bent als consument veel beter beschermd dan de keukenzaak. De keukenzaak is vele malen betrouwbaarder in gemaakte afspraken dan de klant (stof tot nadenken).
Dit is gewoon niet te doen.
[ Voor 13% gewijzigd door Barry|IA op 11-02-2021 23:14 ]
“Nothing changed since the 70s. Nothing. Except people train not that hard”. - Tom Platz
Inmiddels de verzekering hier al over gebeld en zou vergoed moeten worden. Net de formulieren ingediend. Vaak zit zo'n aluminium rand om de rand van de glasplaat heen. De barst is ontstaan door het tikken van een pan tegen de rand van het glas. Dat zou het dan voorkomen hebben zeg maar. Ongeluk zit in een klein hoekje.Barry|IA schreef op donderdag 11 februari 2021 @ 22:25:
[...]
Hier ben je voor verzekerd! Als je een offerte nodig hebt voor de verzekering weet je mij te vinden![]()
Een aluminium rand gaat helaas niks doen voor stootschade. Of er moeten echt dempende lagen tussen zitten, maar dat is er volgens mij niet.
@Barry|IA Goed punt, ze kunnen niet even heel die keuken meenemen als ik niet betaal. We lopen beiden een risico maar daarin is de leverancier kwetsbaarder.
Lux.Architectuur | Van Dromen tot Wonen | www.Lux-a.nl
Dat vraag ik me serieus af.Barry|IA schreef op donderdag 11 februari 2021 @ 23:10:
[...]
Jij bent als consument veel beter beschermd dan de keukenzaak. De keukenzaak is vele malen betrouwbaarder in gemaakte afspraken dan de klant (stof tot nadenken).
Een enkele consument staat doorgaans helemaal niet zo sterk tegenover een winkel(keten) met tientallen tot honderden werknemers en bijhorend (juridisch) budget.
Dát is de reden waarom die extra bescherming vanuit de overheid nodig is, maar dat betekent niet dat daarmee de rollen opeens omgedraaid zijn.
Ik vind het niet gek dat iemand zich prettig voelt bij een extra verzekering in de vorm van een zakje geld (in verhouding) of in ieder geval een onafhankelijke partij die geschillen oplost, zeker als je de verkoper niet "kent".
Dit hoeft echt geen 10% of meer te zijn, maar wel een bedrag waarvoor de verkopende partij nog energie wil steken in het netjes afronden van het project.
Compleet andere business, maar wij kopen productielijnen en daar blijft ook altijd een zakje geld staan totdat eventuele restpunten naar tevredenheid (volgens order) zijn afgerond.
PS: ik ben doorgaans wel erg van wederzijds vertrouwen en betaal meestal zelfs 100% vooraf.
Bij mij is dan ook altijd alles netjes afgeleverd, wellicht dat ik mn mening verander als dat een keer niet zo is.
[ Voor 14% gewijzigd door mitsumark op 11-02-2021 23:47 ]
Hij heette geen Toronto. Hij zat in mijn oude offerte Is uit collectie nu zie ik. Hij was juist rustig. Er was er nog een en die was idd vrij aanwezig. Helaas even niet boekje bij de hand nu.SquareOne schreef op donderdag 11 februari 2021 @ 22:23:
[...]
Kwestie van smaak maar de Systemat Toronto is toch qua 'houtlook' een stuk minder fraai (en nóg vlekgevoeliger)
Ze hebben ook nog een zwart houtfineer front maar die is vrij heftig qua structuur.
@mr3000 ik zie ook geen stopcontacten bij de spoelkant en de koffie corner. Is daar al rekening mee gehouden?
Ik weet niet waar ik nu mee eindig
Ik ben overal tegen. Tot ik een besluit neem, dan ben ik ervoor
10 seconde lijm mee opvullen, en dan af schrapen na uitharden. met een scherp stanlymesje.(niet snijden maar schrapen.)Tommie12 schreef op donderdag 11 februari 2021 @ 20:20:
[...]
Ik heb ook een klein beetje stootschade aan een graniet werkblad.
Mag ik vragen of je weet waarmee het hersteld is? Bestaat daar een soort hars voor?
Bij mijn keukenzaak (hier op het forum ook regelmatig de revue gepasseerd) moet ik 90% vooraf betalen (3 dagen voor levering) en de resterende 10% ná het plaatsen van de keuken. De (stellige) opmerking dat de keuken al bij levering volledig betaald moet zijn omdat 'zij' anders niks leveren herken ik dan ook niet. Dat dit wellicht bij jou en/of veel andere keukenzaken zo werkt, betekent natuurlijk niet dat dit in alle gevallen zo gaat. Enige nuancering lijkt mij dan ook op zijn plaats.Barry|IA schreef op donderdag 11 februari 2021 @ 23:10:
[...]
Ze mogen vragen wat ze willen, maar je bent niks verplicht. Als de keuken tijdens levering maar volledig betaald is.
Als jij geld wilt achterhouden leveren zij niks.
Dit is gewoon niet te doen.
[ Voor 3% gewijzigd door lluuk op 12-02-2021 10:15 ]
Ik ben niet bekend met het precieze materiaal waarmee de schade is hersteld. Wel weet ik dat het om een ter zake gespecialiseerd bedrijf ging. Wellicht kun je hierover online wat meer informatie vinden. Mocht je er niet uitkomen dan moet je mij maar even DM'en; dan vraag ik het voor je na.Tommie12 schreef op donderdag 11 februari 2021 @ 20:20:
[...]
Ik heb ook een klein beetje stootschade aan een graniet werkblad.
Mag ik vragen of je weet waarmee het hersteld is? Bestaat daar een soort hars voor?
Hier vroeg de keukenzaak ook of ik alles wilde betalen vordat het geleverd was. Leuk en aardig, maar opeens vanwege Corona misten we een warmhoudlade, koffieapparaat en bleek de inductieplaat gebarsten.Barry|IA schreef op donderdag 11 februari 2021 @ 23:10:
[...]
Ze mogen vragen wat ze willen, maar je bent niks verplicht. Als de keuken tijdens levering maar volledig betaald is.
Als jij geld wilt achterhouden leveren zij niks. Reden: jij hebt schade aan de plint en besluit 1500 euro in te houden. Plint is in bestelling, duurt 6 weken. Jij houdt 6 weken lang 1500 euro in. Sterker nog, wie zegt dat je ooit alles betaald? Moet de keukenzaak de keuken dan komen ophalen? Jij bent als consument veel beter beschermd dan de keukenzaak. De keukenzaak is vele malen betrouwbaarder in gemaakte afspraken dan de klant (stof tot nadenken).
Dit is gewoon niet te doen.
Ben blij dat ik niet alles betaald heb, want het heeft zeker 2 maanden geduurd voor het laatste apparaat geleverd was.
Overigens, na overleg met de keukenzaak, was het ook prima als ik de aansluitkosten (zo'n 2k) pas zou betalen nadat alles geleverd en naar wens was. Dus vaak vraagt een keukenzaak alles, maar in overleg is er wel wat te regelen.
It was then that I realized that the question mark was the answer to all my questions.
Eentje buiten de keuken zodat ik niet de helft van mijn kast kwijt ben aan prullenbakken.brutus26 schreef op vrijdag 12 februari 2021 @ 10:14:
Welke afval system gebruiken jullie, ik ken alleen de Hailo systemen
[Afbeelding]
Game PC
2 Post or Not 2 Post What's the question ?
"If it ain't broken, you didn't try hard enough"
Ik kreeg laatst in een keukenwinkel het advies om geen afvalsysteem bij te bestellen en achteraf gewoon naar Ikea te rijden. Want als je kijkt wat zo een systeem kost, dan koop je wel een hele dure vuilbak.brutus26 schreef op vrijdag 12 februari 2021 @ 10:14:
Welke afval system gebruiken jullie, ik ken alleen de Hailo systemen
Bij sommige zaken kostte een mooi afvalsysteem in een lade +800 euro. Dat is idd veel voor een vuilbak!
Aangezien wij voor 2 lades onder de spoelbak gaan zal het inderdaad wsl een afvalbak uit de ikea worden.
https://www.ikea.com/be/nl/cat/inbouwprullenbak-24259/
Ik zie dat je uit Belgie komt, maar die prullenbakken zijn in Nederland een stuk duurder! Scheelt al snel 10% afhankelijke van welke prullenbak je kiestseverijns schreef op vrijdag 12 februari 2021 @ 10:52:
[...]
Ik kreeg laatst in een keukenwinkel het advies om geen afvalsysteem bij te bestellen en achteraf gewoon naar Ikea te rijden. Want als je kijkt wat zo een systeem kost, dan koop je wel een hele dure vuilbak.
Bij sommige zaken kostte een mooi afvalsysteem in een lade +800 euro. Dat is idd veel voor een vuilbak!
Aangezien wij voor 2 lades onder de spoelbak gaan zal het inderdaad wsl een afvalbak uit de ikea worden.
https://www.ikea.com/be/nl/cat/inbouwprullenbak-24259/
Hier gewoon door de keukenzaak laten inbouwen. Kostte 105 euro maar wel 4 bakken (groenafval, papier, plastig, restafval). Afhankelijk van wat voor soort keuken je hebt, vind ik het vaak niet mooi om een aparte prullenbak neer te zetten. Sowieso vaak lastig als je meerdere afvalstromen hebt. Achteraf inbouwen met een prullenbak van Ikea of Gamma kan opzich wel, maar dan moet je zelf aan de slag en is wellicht net niet de juiste maat.
It was then that I realized that the question mark was the answer to all my questions.
Hier ben ik het niet met je eens.Barry|IA schreef op donderdag 11 februari 2021 @ 23:10:
[...]
Ze mogen vragen wat ze willen, maar je bent niks verplicht. Als de keuken tijdens levering maar volledig betaald is.
Als jij geld wilt achterhouden leveren zij niks. Reden: jij hebt schade aan de plint en besluit 1500 euro in te houden. Plint is in bestelling, duurt 6 weken. Jij houdt 6 weken lang 1500 euro in. Sterker nog, wie zegt dat je ooit alles betaald? Moet de keukenzaak de keuken dan komen ophalen? Jij bent als consument veel beter beschermd dan de keukenzaak. De keukenzaak is vele malen betrouwbaarder in gemaakte afspraken dan de klant (stof tot nadenken).
Dit is gewoon niet te doen.
Het is voor een keukenzaak veel makkelijker om bij niet betaling incasso te doen.
Ik ben enorm allergisch aan voorschotten, en zeg dat ook bij een eerste gesprek.
Wel ben ik bereid om een deel te betalen bij levering, of als ze me kunnen aantonen dat de keuken klaar staat voor levering.
Bij mijn keuken was het simpel 10 jaar geleden. Geen voorschot, geen betaling bij levering, en pas een volledige betaling nadat alles geleverd en afgewerkt was.
Als ik merk dat een verkoper daar moeilijk over doet, dan is dat op voorhand al een deuk in het vertrouwen.
En als een verkoper mij niet vertrouwt, dan is dat wederzijds.
Sony A7 iv en wat recycled glas
Ik ken een keukenzaak eigenaar die ook dergelijke afspraken maakte.evleerdam schreef op vrijdag 12 februari 2021 @ 10:14:
[...]
Hier vroeg de keukenzaak ook of ik alles wilde betalen vordat het geleverd was. Leuk en aardig, maar opeens vanwege Corona misten we een warmhoudlade, koffieapparaat en bleek de inductieplaat gebarsten.
Ben blij dat ik niet alles betaald heb, want het heeft zeker 2 maanden geduurd voor het laatste apparaat geleverd was.
Overigens, na overleg met de keukenzaak, was het ook prima als ik de aansluitkosten (zo'n 2k) pas zou betalen nadat alles geleverd en naar wens was. Dus vaak vraagt een keukenzaak alles, maar in overleg is er wel wat te regelen.
Je kon amper en gesprek voeren met hem, omdat hij altijd een telefoon aan z’n oor had omdat ‘ie achter z’n geld aan zat.
Mij niet gezien
“Nothing changed since the 70s. Nothing. Except people train not that hard”. - Tom Platz
Wat zou ik moeten nuanceren? Ik reageer op een kwestie van Keukenloods. Daar is niet volledig betalen, niet leveren. Geen discussie mogelijk. En ik geef ze volkomen gelijk.lluuk schreef op vrijdag 12 februari 2021 @ 10:08:
[...]
Bij mijn keukenzaak (hier op het forum ook regelmatig de revue gepasseerd) moet ik 90% vooraf betalen (3 dagen voor levering) en de resterende 10% ná het plaatsen van de keuken. De (stellige) opmerking dat de keuken al bij levering volledig betaald moet zijn omdat 'zij' anders niks leveren herken ik dan ook niet. Dat dit wellicht bij jou en/of veel andere keukenzaken zo werkt, betekent natuurlijk niet dat dit in alle gevallen zo gaat. Enige nuancering lijkt mij dan ook op zijn plaats.
“Nothing changed since the 70s. Nothing. Except people train not that hard”. - Tom Platz
Ik denk dat er op deze manier maar weinig keukenzaken over blijven waar jij dan überhaupt kunt slagenTommie12 schreef op vrijdag 12 februari 2021 @ 11:08:
[...]
Hier ben ik het niet met je eens.
Het is voor een keukenzaak veel makkelijker om bij niet betaling incasso te doen.
Ik ben enorm allergisch aan voorschotten, en zeg dat ook bij een eerste gesprek.
Wel ben ik bereid om een deel te betalen bij levering, of als ze me kunnen aantonen dat de keuken klaar staat voor levering.
Bij mijn keuken was het simpel 10 jaar geleden. Geen voorschot, geen betaling bij levering, en pas een volledige betaling nadat alles geleverd en afgewerkt was.
Als ik merk dat een verkoper daar moeilijk over doet, dan is dat op voorhand al een deuk in het vertrouwen.
En als een verkoper mij niet vertrouwt, dan is dat wederzijds.
“Nothing changed since the 70s. Nothing. Except people train not that hard”. - Tom Platz
Het is me gelukt met een keuken, een badkamer, een verwarmingsketel, een stel meubelen...Barry|IA schreef op vrijdag 12 februari 2021 @ 11:30:
[...]
Ik denk dat er op deze manier maar weinig keukenzaken over blijven waar jij dan überhaupt kunt slagen
Sony A7 iv en wat recycled glas
Laten we niet vergeten dat Keukenloods (voor mij) relatief goedkoop is. Die marge moet ergens vandaan komen. De duurdere partijen hebben financieel betere regelingen maar hun risico zal dan deels verwerkt zitten in de prijs.
Lux.Architectuur | Van Dromen tot Wonen | www.Lux-a.nl
Ik heb bij Siematic (Flagship store in Amsterdam) een keuken gekocht en daar moet ook het volledige bedrag binnen zijn voordat ze de keuken je drempel over dragen.battler schreef op vrijdag 12 februari 2021 @ 11:39:
Laten we niet vergeten dat Keukenloods (voor mij) relatief goedkoop is. Die marge moet ergens vandaan komen. De duurdere partijen hebben financieel betere regelingen maar hun risico zal dan deels verwerkt zitten in de prijs.
De actuele opbrengst van mijn Tibber Homevolt
Alles wat conform afspraak geleverd/geïnstalleerd wordt moet worden betaald, daar zal iedereen het mee eens zijn. Daarentegen lees je zoveel verhalen van defecte/missende onderdelen of een gebrekkige installatie waardoor je maanden wacht op een volledig functionerende keuken. Ik ga het bespreken met Keukenloods, installatie factuur achteraf is al een prima oplossing.
Lux.Architectuur | Van Dromen tot Wonen | www.Lux-a.nl
Bij ons is het 50% bij inmeten en 50% bij oplevering. Maar het gaat om maatwerk door een kleine interieurbouwer. Dan vind ik het logisch dat ze een aanbetaling willen om het materiaal in te kopen dat ze voor ons specifiek bestellen. Met genoeg achter de hand om ons risico na oplevering ook af te dekken. Zo hebben we allebei onze belangrijkste risico's afgedekt.
Bespaar je de moeite. Dit gaan ze niet doen.battler schreef op vrijdag 12 februari 2021 @ 11:46:
Alles wat conform afspraak geleverd/geïnstalleerd wordt moet worden betaald, daar zal iedereen het mee eens zijn. Daarentegen lees je zoveel verhalen van defecte/missende onderdelen of een gebrekkige installatie waardoor je maanden wacht op een volledig functionerende keuken. Ik ga het bespreken met Keukenloods, installatie factuur achteraf is al een prima oplossing.
Keukenloods houdt zich gewoon aan de CBW, net als bijna elke andere keukenzaak.
“Nothing changed since the 70s. Nothing. Except people train not that hard”. - Tom Platz
Hebben er hier mensen ervaring met Ikea Voxtorp deuren op een deur-op-deur koelkast te zetten? Van wat ik lees wordt het aangeraden sleepdeuren te gebruiken maar ik lees ook mensen die het wel voor elkaar hebben gekregen
Is ook niet nodig. De service van keukenloods is echt top; zonder te morren worden zaken opgelost. Hier zijn bepaalde foutieve leveringen gewoon keurig opgelost zonder gezeur. Dat het wat langer duurder lag ook vooral aan mijzelf (druk dus soms traag met reageren).Barry|IA schreef op vrijdag 12 februari 2021 @ 12:14:
[...]
Bespaar je de moeite. Dit gaan ze niet doen.
Keukenloods houdt zich gewoon aan de CBW, net als bijna elke andere keukenzaak.
Ik vind dat keuken zaken vallen of staan met de monteurs. Je moet vooral opzoek gaan naar de keuken zaak die zijn of haar (zzp) monteurs niet uitknijpt.
Bij Keukenloods krijgen de monteurs 115 euro per strekkende meter aan keuken. Dat is wat een ZZP’er normaal vaak ook vraagt, maar dan moet ‘ie zelf zijn klanten werven. Ik vind het netjeskoentjuh schreef op vrijdag 12 februari 2021 @ 12:33:
[...]
Is ook niet nodig. De service van keukenloods is echt top; zonder te morren worden zaken opgelost. Hier zijn bepaalde foutieve leveringen gewoon keurig opgelost zonder gezeur. Dat het wat langer duurder lag ook vooral aan mijzelf (druk dus soms traag met reageren).
Ik vind dat keuken zaken vallen of staan met de monteurs. Je moet vooral opzoek gaan naar de keuken zaak die zijn of haar (zzp) monteurs niet uitknijpt.
“Nothing changed since the 70s. Nothing. Except people train not that hard”. - Tom Platz
Net even fronten bekeken. Hacker systemat zwart eiken inderdaad behoorlijk vlek gevoelig. Iemand ervaring mee? Tips voor evt andere fronts toch ander keuken merk enz?
Ah, oké. Ik dacht dat je reactie een algemenere strekking had doordat je sprak over 'de keukenzaak'. Als je reactie (uitsluitend) betrekking had op de werkwijze van de Keukenloods - die kennelijk inhoudt dat de keuken bij levering al volledig betaald moet zijn - dan behoeft er inderdaad niets genuanceerd te worden.Barry|IA schreef op vrijdag 12 februari 2021 @ 11:26:
[...]
Wat zou ik moeten nuanceren? Ik reageer op een kwestie van Keukenloods. Daar is niet volledig betalen, niet leveren. Geen discussie mogelijk. En ik geef ze volkomen gelijk.
Is hier iemand bekend met de merken Burger en bauformat. Zo ja hoe zit het met de kwaliteit van deze keukens en wie verkoopt ze?
Burger en Bauformat zijn hetzelfde bedrijf. Ik heb hier in België 2 winkels (Reddy en de keukenbouwer) gehad waar bauformat hun duurste lijn is. Ze plaatsen die lijn boven Nobilia en boven ook boven Burger. Voelde aan als al de rest van de middenklasse. Ze proberen bij bauformat wel reclame te maken voor hun dikke achterwand maar lijkt mij niet beter dan Ballerina, Nolte, ... Voelde wel steviger aan dan Nobilia.Jackpuyn schreef op vrijdag 12 februari 2021 @ 15:30:
Is hier iemand bekend met de merken Burger en bauformat. Zo ja hoe zit het met de kwaliteit van deze keukens en wie verkoopt ze?
Qua prijs vergelijkbaar met Schmidt en Ballerina, iets duurder dan Nolte
[ Voor 5% gewijzigd door severijns op 12-02-2021 15:58 ]
Kan iemand iets zeggen over het verschil in kwaliteit tussen fenix keukenkastjes of mat gelakte keukenkastjes? Wij hebben nu twee offertes liggen voor een mat zwarte keuken met dezelfde prijs. Apparatuur in beide offertes is vergelijkbaar alleen de kasten verschillen. Het gaat om Schüller kasten van SK en een lokale keukenboer die fenix kasten aanbied.
Wat zouden jullie aanraden?
Wat zouden jullie aanraden?
Ik ben voor fenix gegaan, dat heeft een mattere uitstraling en is minder gevoelig voor vingerafdrukken en krassen. Maar ook duurder.
Dan naai jij een zzpèr een oor aan om zijn zuur verdiende geld achter te houden.battler schreef op vrijdag 12 februari 2021 @ 11:46:
. Ik ga het bespreken met Keukenloods, installatie factuur achteraf is al een prima oplossing.
Keukenloods pak je daar niet mee.
Het front van schuller heeft waarschijnlijk ook anti-fingerprint(Dit is de franchetti mat), qua uitstraling identiek aan fenixfront maar een stuk goedkoper!zomerwinter schreef op vrijdag 12 februari 2021 @ 19:53:
Kan iemand iets zeggen over het verschil in kwaliteit tussen fenix keukenkastjes of mat gelakte keukenkastjes? Wij hebben nu twee offertes liggen voor een mat zwarte keuken met dezelfde prijs. Apparatuur in beide offertes is vergelijkbaar alleen de kasten verschillen. Het gaat om Schüller kasten van SK en een lokale keukenboer die fenix kasten aanbied.
Wat zouden jullie aanraden?
Heeft ook geen kleurverschil met de fenix bold black van dekker zeverhuizen.
De tweakers community is geweldig!
Ik heb met veel belangstelling deze forum gevolgd en zoveel van jullie geleerd...dus tijd om ook te delen wat wij tot nu toe hebben gevonden
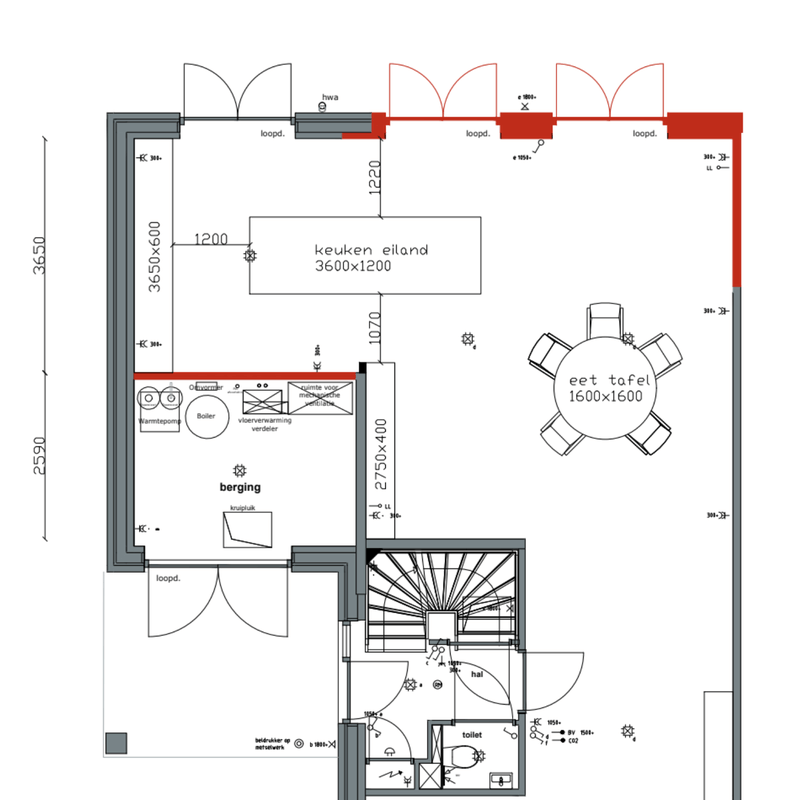
Voor een nieuwbouw woning (2022) zoeken we 6 hoge kasten tot het plafond met een groot kookeiland van 3600mm x 1200mm.
Vandaag hebben we een tekening en offerte gekregen incl. montage etc. - wat vinden jullie ervan? Kan ie nog scherper?
Voor beide offertes hieronder gelden dezelfde apparaten: mix Siemens Studioline IQ500 / IQ700 mix en is de opstelling op de tekening gelijk, hoewel er systemat mokka eiken in ingetekend.
Offerte 1: Systema - 28,9k EUR
- Hoge en Lage kasten in hout fineer zwart eiken AV6021 PG6 (frontjes helemaal vlak en de verticale strepen zoals in de brochure)
- Keramisch blad Basalt Black uit 1 stuk 3600mm(!)
- Push to open (greeploos) + elektrisch push to open voor de koelkast en vriezer (2x)
- Plint 16 cm, maar moet nog uitzoeken of dit lager kan..met name voorkant eiland waar je toch niet staat te koken..iemand ervaring?
- Ombouw tot plafond van 291cm bij hoge kasten; hoge kasten bestaan uit deel van 2080mm+520 mm
Offerte 2: Siematic - 27,5k EUR
- Hoge kasten in hout fineer SLC onyx oak
- Lage kasten in SmartLaque Umbra
- Keramisch blad Basalt Black uit 1 stuk 3600mm(!)
- Push to open (greeploos) + elektrisch push to open voor de koelkast en vriezer (2x)
Apparaten
Inductie kookplaat met ingebouwde afzuiging EX807LX67E
Quooker Flex RVS met Combi+
Vaatwasser SN87Y800BE
Koelkast KI81FSDE0
Vriezer GI81NSCE0
Oven HB875G5B1
Oven magnetron combi HM876G0B6
/f/image/UGIod5982cSeILODmsSHRime.png?f=fotoalbum_large)
/f/image/AGJhDTzteU96ko6Uq9mKh68Y.png?f=fotoalbum_large)
/f/image/JoUvyV33hsNxcL1n1l1UA0j1.png?f=fotoalbum_large)
/f/image/b2DHMbi71suvEka9prSJ3f4G.png?f=fotoalbum_large)
Ik heb met veel belangstelling deze forum gevolgd en zoveel van jullie geleerd...dus tijd om ook te delen wat wij tot nu toe hebben gevonden
Voor een nieuwbouw woning (2022) zoeken we 6 hoge kasten tot het plafond met een groot kookeiland van 3600mm x 1200mm.
Vandaag hebben we een tekening en offerte gekregen incl. montage etc. - wat vinden jullie ervan? Kan ie nog scherper?

Voor beide offertes hieronder gelden dezelfde apparaten: mix Siemens Studioline IQ500 / IQ700 mix en is de opstelling op de tekening gelijk, hoewel er systemat mokka eiken in ingetekend.
Offerte 1: Systema - 28,9k EUR
- Hoge en Lage kasten in hout fineer zwart eiken AV6021 PG6 (frontjes helemaal vlak en de verticale strepen zoals in de brochure)
- Keramisch blad Basalt Black uit 1 stuk 3600mm(!)
- Push to open (greeploos) + elektrisch push to open voor de koelkast en vriezer (2x)
- Plint 16 cm, maar moet nog uitzoeken of dit lager kan..met name voorkant eiland waar je toch niet staat te koken..iemand ervaring?
- Ombouw tot plafond van 291cm bij hoge kasten; hoge kasten bestaan uit deel van 2080mm+520 mm
Offerte 2: Siematic - 27,5k EUR
- Hoge kasten in hout fineer SLC onyx oak
- Lage kasten in SmartLaque Umbra
- Keramisch blad Basalt Black uit 1 stuk 3600mm(!)
- Push to open (greeploos) + elektrisch push to open voor de koelkast en vriezer (2x)
Apparaten
Inductie kookplaat met ingebouwde afzuiging EX807LX67E
Quooker Flex RVS met Combi+
Vaatwasser SN87Y800BE
Koelkast KI81FSDE0
Vriezer GI81NSCE0
Oven HB875G5B1
Oven magnetron combi HM876G0B6
/f/image/UGIod5982cSeILODmsSHRime.png?f=fotoalbum_large)
/f/image/AGJhDTzteU96ko6Uq9mKh68Y.png?f=fotoalbum_large)
/f/image/JoUvyV33hsNxcL1n1l1UA0j1.png?f=fotoalbum_large)
/f/image/b2DHMbi71suvEka9prSJ3f4G.png?f=fotoalbum_large)
/f/image/URDb2saMZmT14mx0iJuIJd2d.png?f=fotoalbum_large)
[ Voor 4% gewijzigd door LupinIII op 13-02-2021 09:50 ]
Alsof die zzp’er zijn centen krijgt voor Keukenloods betaald is en alles in orde is...ouwefreaker schreef op vrijdag 12 februari 2021 @ 21:08:
[...]
Dan naai jij een zzpèr een oor aan om zijn zuur verdiende geld achter te houden.
Keukenloods pak je daar niet mee.
Sony A7 iv en wat recycled glas
De Systemat AV6080 bestaat niet in het zwart.LupinIII schreef op vrijdag 12 februari 2021 @ 22:23:
De tweakers community is geweldig!
Ik heb met veel belangstelling deze forum gevolgd en zoveel van jullie geleerd...dus tijd om ook te delen wat wij tot nu toe hebben gevonden
Voor een nieuwbouw woning (2022) zoeken we 6 hoge kasten tot het plafond met een groot kookeiland van 3600mm x 1200mm.
Vandaag hebben we een tekening en offerte gekregen incl. montage etc. - wat vinden jullie ervan? Kan ie nog scherper?![]()
Voor beide offertes hieronder gelden dezelfde apparaten: mix Siemens Studioline IQ500 / IQ700 mix en is de opstelling op de tekening gelijk, hoewel er systemat mokka eiken in ingetekend.
Offerte 1: Systema - 28,9k EUR
- Hoge en Lage kasten in hout fineer zwart eiken AV6080 - PG8
- Keramisch blad Basalt Black uit 1 stuk 3600mm(!)
- Push to open (greeploos) + elektrisch push to open voor de koelkast en vriezer (2x)
- Plint 16 cm, maar moet nog uitzoeken of dit lager kan..met name voorkant eiland waar je toch niet staat te koken..iemand ervaring?
- Ombouw tot plafond van 291cm bij hoge kasten; hoge kasten bestaan uit deel van 2080mm+520 mm
Offerte 2: Siematic - 27,5k EUR
- Hoge kasten in hout fineer SLC onyx oak
- Lage kasten in SmartLaque Umbra
- Keramisch blad Basalt Black uit 1 stuk 3600mm(!)
- Push to open (greeploos) + elektrisch push to open voor de koelkast en vriezer (2x)
Apparaten
Inductie kookplaat met ingebouwde afzuiging EX807LX67E
Quooker Flex RVS met Combi+
Vaatwasser SN87Y800BE
Koelkast KI81FSDE0
Vriezer GI81NSCE0
Oven HB875G5B1
Oven magnetron combi HM876G0B6
[Afbeelding]
[Afbeelding]
[Afbeelding]
[Afbeelding]
[Afbeelding]
Verder zou ik nog eens heel goed nadenken of je alles wel tip-on wilt, zeker met een fineer front. Mocht je trouwens bij Systemat blijven met tip-on kan je naar een hogere onderkast van 84,5cm.
Overigens vind ik het schandalig dat je deze tekening krijgt voorgeschoteld bij een keuken van bijna 30k.
Untappd: Kapitein_Merijn
Vanuit dezelfde ruimte zijn dat bizar veel deuren naar buiten
Komen ze ook allemaal op dezelfde plek uit?
Komen ze ook allemaal op dezelfde plek uit?
[ Voor 54% gewijzigd door Source90 op 13-02-2021 00:36 ]
Klopt - post aangepast!Kapitein Merijn schreef op vrijdag 12 februari 2021 @ 23:49:
[...]
De Systemat AV6080 bestaat niet in het zwart.
Verder zou ik nog eens heel goed nadenken of je alles wel tip-on wilt, zeker met een fineer front. Mocht je trouwens bij Systemat blijven met tip-on kan je naar een hogere onderkast van 84,5cm.
Overigens vind ik het schandalig dat je deze tekening krijgt voorgeschoteld bij een keuken van bijna 30k.
Dit moet zijn de AV6021 PG6 eiken zwart. Wij vinden de verticale strepen niet mooi, maar dat zou gewoon vlak kunnen. In maart/april gaan we de knopen doorhakken als we alles in het echt kunnen zien en een normale tekening gaan maken
/f/image/8cc4IFAKjG7WW8uF7Ma9rOT7.png?f=fotoalbum_large)
[ Voor 18% gewijzigd door LupinIII op 13-02-2021 09:50 ]
Bedoel je de tuindeuren?Source90 schreef op zaterdag 13 februari 2021 @ 00:35:
Vanuit dezelfde ruimte zijn dat bizar veel deuren naar buiten![]()
Komen ze ook allemaal op dezelfde plek uit?
Dan moet ik je teleurstellen want dat front is niet leverbaar zonder die verticale strepen. Häcker heeft helaas geen zwart fineer front in het assortiment.LupinIII schreef op zaterdag 13 februari 2021 @ 09:49:
[...]
Klopt - post aangepast!
Dit moet zijn de AV6021 PG6 eiken zwart. Wij vinden de verticale strepen niet mooi, maar dat zou gewoon vlak kunnen. In maart/april gaan we de knopen doorhakken als we alles in het echt kunnen zien en een normale tekening gaan maken
[Afbeelding]
Untappd: Kapitein_Merijn
Voor mijn moeder ben ik op zoek naar een kleine vaatwasser. 1 of 2 couverts is eigenlijk voldoende.
Het zou moeten ingebouwd worden in een bestaand keukenkastje (60x60 ongeveer). Er zijn stroom/water aansluitingen reeds aanwezig.
De bedoeling is dat de hele vaatwasser achter het bestaande deurtje zou komen.
Ik heb wel eea inbouw gevonden, maar weet niet of die 100% gebouwd kunnen worden, of dat je dan een nieuw deurtje nodig hebt. Dat gaat namelijk erg moeilijk worden om de keuken oud is en mochten we het al vinden, dan zal er uiteraard kleurverschil zijn.
Het zou moeten ingebouwd worden in een bestaand keukenkastje (60x60 ongeveer). Er zijn stroom/water aansluitingen reeds aanwezig.
De bedoeling is dat de hele vaatwasser achter het bestaande deurtje zou komen.
Ik heb wel eea inbouw gevonden, maar weet niet of die 100% gebouwd kunnen worden, of dat je dan een nieuw deurtje nodig hebt. Dat gaat namelijk erg moeilijk worden om de keuken oud is en mochten we het al vinden, dan zal er uiteraard kleurverschil zijn.
De actuele opbrengst van mijn Tibber Homevolt
Is dit niks voor je moeder:JackBol schreef op zaterdag 13 februari 2021 @ 11:08:
Voor mijn moeder ben ik op zoek naar een kleine vaatwasser. 1 of 2 couverts is eigenlijk voldoende.
Het zou moeten ingebouwd worden in een bestaand keukenkastje (60x60 ongeveer). Er zijn stroom/water aansluitingen reeds aanwezig.
De bedoeling is dat de hele vaatwasser achter het bestaande deurtje zou komen.
Ik heb wel eea inbouw gevonden, maar weet niet of die 100% gebouwd kunnen worden, of dat je dan een nieuw deurtje nodig hebt. Dat gaat namelijk erg moeilijk worden om de keuken oud is en mochten we het al vinden, dan zal er uiteraard kleurverschil zijn.
https://www.blokker.nl/mi...-3602d---wit/2473475.html
Met als afmeting 50x55x43,8 zou hij in een onderkast moeten passen.
Of een vaatwasser voor in een campertje?
https://www.lidl-shop.nl/...asser-TSG-7402/p100266768
Deze zijn wel bedoelt voor op een werkblad
Zoek eens op: compacte vaatwasser, mini vaatwasser of camper vaatwasser en je komt er een hoop tegen.
[ Voor 12% gewijzigd door Woody179 op 13-02-2021 11:17 ]
Waar heb je dit uitgezocht? Ik ga dit dan even specifiek navragen bij de keukenzaak (Duitsland).Kapitein Merijn schreef op zaterdag 13 februari 2021 @ 09:54:
[...]
Dan moet ik je teleurstellen want dat front is niet leverbaar zonder die verticale strepen. Häcker heeft helaas geen zwart fineer front in het assortiment.
Die eerste had ik inderdaad ook gevonden. Die 50cm diepte is waarschijnlijk net te veel. Van deur tot achterwand is het kastje nu 46cm. Achter de achterwand is waarschijnlijk nog een cm of 5 tot de muur, dus dat moet ik even beter bekijken.Woody179 schreef op zaterdag 13 februari 2021 @ 11:12:
[...]
Is dit niks voor je moeder:
https://www.blokker.nl/mi...-3602d---wit/2473475.html
Met als afmeting 50x55x43,8 zou hij in een onderkast moeten passen.
Of een vaatwasser voor in een campertje?
https://www.lidl-shop.nl/...asser-TSG-7402/p100266768
Deze zijn wel bedoelt voor op een werkblad
Zoek eens op: compacte vaatwasser, mini vaatwasser of camper vaatwasser en je komt er een hoop tegen.
Die tweede is schattig, maar nutteloos uiteraard
De actuele opbrengst van mijn Tibber Homevolt
LupinIII schreef op zaterdag 13 februari 2021 @ 11:19:
[...]
Waar heb je dit uitgezocht? Ik ga dit dan even specifiek navragen bij de keukenzaak (Duitsland).
Kapitein Merijn schreef op dinsdag 9 juni 2020 @ 12:15:
Ik verkoop zelf al 10 jaar Häcker
De actuele opbrengst van mijn Tibber Homevolt
Hij voldoet wel aan de 1 a 2 couverts waar je naar zoekt😜JackBol schreef op zaterdag 13 februari 2021 @ 11:20:
[...]
Die tweede is schattig, maar nutteloos uiteraard
Pronorm keuken misschien een idee? Die hebben wij besteld omdat we hout fineer in zwart wilde.LupinIII schreef op zaterdag 13 februari 2021 @ 11:19:
[...]
Waar heb je dit uitgezocht? Ik ga dit dan even specifiek navragen bij de keukenzaak (Duitsland).

[ Voor 15% gewijzigd door BlowFish op 13-02-2021 11:48 ]
@LupinIII Ik zou hier niet zo blij van worden. De afstand tussen de koelkast en de wastafel is groot. Ga je die bar echt gebruiken? Anders kan je nog kookplaat en spoelbak omdraaien. De algehele layout lijkt mij niet ideaal. Daarentegen als 3 leveranciers met een soortgelijk ontwerp terugkomen dan zal er vast wel wat voor te zeggen zijn.
Lux.Architectuur | Van Dromen tot Wonen | www.Lux-a.nl
Dat hoef je niet uit te zoeken, het staat niet in het boek van Hacker.LupinIII schreef op zaterdag 13 februari 2021 @ 11:19:
[...]
Waar heb je dit uitgezocht? Ik ga dit dan even specifiek navragen bij de keukenzaak (Duitsland).
Andere vraag: waarom anno 2021 nog in DL shoppen?
“Nothing changed since the 70s. Nothing. Except people train not that hard”. - Tom Platz
Wat hier net bij de grens hoor van veel mensen dat een keuken in Duitsland duizenden euro's goedkoper is. Wat ik ten zeerste betwijfel. Maar daar heb ik al op Facebook met mensen over gediscussieerd. Of heeft hier iemand daar een ander idee overBarry|IA schreef op zaterdag 13 februari 2021 @ 12:12:
[...]
Dat hoef je niet uit te zoeken, het staat niet in het boek van Hacker.
Andere vraag: waarom anno 2021 nog in DL shoppen?
Thanks, ziet er goed uit - ik ga nier naar kijken.BlowFish schreef op zaterdag 13 februari 2021 @ 11:46:
[...]
Pronorm keuken misschien een idee? Die hebben wij besteld omdat we hout fineer in zwart wilde.
[Afbeelding]
Is de keuken al bij jullie geplaatst, zo ja heb je een foto?
Tot nu toe 1 leverancier gesproken en een keuken laten ontwerpen. Input kwam wel grotendeels van onszelf. Het grote kookeiland was dan ook ons idee, en hier is de overweging voor het oog/design groter dan het praktische. 3200. eiland misschien? Ik denk dat we idd spoelbak met de kookplaat gaan omwisselen.battler schreef op zaterdag 13 februari 2021 @ 11:48:
@LupinIII Ik zou hier niet zo blij van worden. De afstand tussen de koelkast en de wastafel is groot. Ga je die bar echt gebruiken? Anders kan je nog kookplaat en spoelbak omdraaien. De algehele layout lijkt mij niet ideaal. Daarentegen als 3 leveranciers met een soortgelijk ontwerp terugkomen dan zal er vast wel wat voor te zeggen zijn.
Wat vinden jullie ervan om met je rug naar buiten te koken zodat je naar de eettafel kan kijken?
Waar zou je aanraden te gaan kijken in NL (omgeving Amsterdam)? Weinig winkels die online een afspraak maken; dit was 1 van de weinige en goed vergelijkingsmateriaal. Voorkeur zeker voor een NL partij.Barry|IA schreef op zaterdag 13 februari 2021 @ 12:12:
[...]
Dat hoef je niet uit te zoeken, het staat niet in het boek van Hacker.
Andere vraag: waarom anno 2021 nog in DL shoppen?
@LupinIII In dat geval wat meer feedback.
- Overweeg een vierkante, langwerpige kookeiland (https://theartofliving.nl/behaaglijke-leefkeuken-culimaat/).
- Kijk even naar een lange tafel in de lengte ipv rond.
- Overweeg een vierkante, langwerpige kookeiland (https://theartofliving.nl/behaaglijke-leefkeuken-culimaat/).
- Kijk even naar een lange tafel in de lengte ipv rond.
Lux.Architectuur | Van Dromen tot Wonen | www.Lux-a.nl
Als het Pronorm mag zijn, dan weet ik wel een goede zaak in de buurt van Ams.LupinIII schreef op zaterdag 13 februari 2021 @ 12:48:
[...]
Thanks, ziet er goed uit - ik ga nier naar kijken.![]()
Is de keuken al bij jullie geplaatst, zo ja heb je een foto?
[...]
Tot nu toe 1 leverancier gesproken en een keuken laten ontwerpen. Input kwam wel grotendeels van onszelf. Het grote kookeiland was dan ook ons idee, en hier is de overweging voor het oog/design groter dan het praktische. 3200. eiland misschien? Ik denk dat we idd spoelbak met de kookplaat gaan omwisselen.
Wat vinden jullie ervan om met je rug naar buiten te koken zodat je naar de eettafel kan kijken?
[...]
Waar zou je aanraden te gaan kijken in NL (omgeving Amsterdam)? Weinig winkels die online een afspraak maken; dit was 1 van de weinige en goed vergelijkingsmateriaal. Voorkeur zeker voor een NL partij.
Pronorm doet niks onder aan Systemat.
“Nothing changed since the 70s. Nothing. Except people train not that hard”. - Tom Platz
Niemand?mr3000 schreef op vrijdag 12 februari 2021 @ 14:05:
Net even fronten bekeken. Hacker systemat zwart eiken inderdaad behoorlijk vlek gevoelig. Iemand ervaring mee? Tips voor evt andere fronts toch ander keuken merk enz?
[...]LupinIII schreef op zaterdag 13 februari 2021 @ 12:48:
[...]
Thanks, ziet er goed uit - ik ga nier naar kijken.![]()
Is de keuken al bij jullie geplaatst, zo ja heb je een foto?
Wordt pas in augustus geplaatst. Zijn geen top renders.. en dat voor 36k

:strip_exif()/f/image/eTKEVTCgOLvDVs89EVyky5zv.jpg?f=fotoalbum_large)
:strip_exif()/f/image/1NH6F4KEGGLPyEwoLA3ehE8b.jpg?f=fotoalbum_large)
[ Voor 10% gewijzigd door BlowFish op 13-02-2021 13:32 ]
Zoals hierboven voorbij komt zou je Pronorm kunnen overwegen, zij hebben wel een fraai zwart fineer front.
Siematic komt bij ons wel een stuk voordeliger uit in Duitsland.Barry|IA schreef op zaterdag 13 februari 2021 @ 12:12:
[...]
Dat hoef je niet uit te zoeken, het staat niet in het boek van Hacker.
Andere vraag: waarom anno 2021 nog in DL shoppen?
Ik heb van 1 keuken 2 offertes. 1 van zaak in nl en 1 in Duitsland. 100% zelfde keuken. Nl zaak 25000 (nog niet uit onderhandeld want alles dicht vanwege Corona ) en zaak in Duitsland 18500. Ik had ook al gelezen dat het in D goedkoper zou zijn en uit nieuwsgierigheid mijn offerte destijds doorgestuurd. En het is wat het is. Via pb wil ik wel namen noemen.Jackpuyn schreef op zaterdag 13 februari 2021 @ 12:42:
[...]
Wat hier net bij de grens hoor van veel mensen dat een keuken in Duitsland duizenden euro's goedkoper is. Wat ik ten zeerste betwijfel. Maar daar heb ik al op Facebook met mensen over gediscussieerd. Of heeft hier iemand daar een ander idee over
Nu denk ik dat ik de nl offerte nog wel omlaag had kunnen krijgen. Ik ben niet meer terug gegaan want Corona en alles dicht en ik geen keuken koop van een plaatje en liever face to face dingen afhandel. Plus het ontwerp wat ze maakten blijkt niet te passen (ondanks alle maten beschikbaar ) dus moet weer vanaf 0 beginnen. En dat doe ik niet meer met die partij vanwege allerlei redenen.
Ik hoop dat @Barry|IA een beter ontwerp maakt
Ik ben overal tegen. Tot ik een besluit neem, dan ben ik ervoor
Ziet er goed uitBlowFish schreef op zaterdag 13 februari 2021 @ 13:28:
[...]
[...]
Wordt pas in augustus geplaatst. Zijn geen top renders.. en dat voor 36k![]()
[Afbeelding]
[Afbeelding]
Is het eiland 3600 x 1200?
Mag zeker!Barry|IA schreef op zaterdag 13 februari 2021 @ 13:07:
[...]
Als het Pronorm mag zijn, dan weet ik wel een goede zaak in de buurt van Ams.
Pronorm doet niks onder aan Systemat.
Is houtfineer zo dat elk frontje uniek is, omdat t van echt hout gemaakt wordt(duh)?
Ja, dat klopt. Daarom is het ook zo vreselijk duur.LupinIII schreef op zaterdag 13 februari 2021 @ 14:00:
[...]
Mag zeker!![]()
Is houtfineer zo dat elk frontje uniek is, omdat t van echt hout gemaakt wordt(duh)?
“Nothing changed since the 70s. Nothing. Except people train not that hard”. - Tom Platz
3600 x 1100 (vinden we mooier, meer ruimte in de erker waar de keuken geplaatst wordt)LupinIII schreef op zaterdag 13 februari 2021 @ 13:58:
[...]
Ziet er goed uit![]()
Is het eiland 3600 x 1200?
:strip_exif()/f/image/uE8ZJ5hnfk150CIAMxAfz9Xy.jpg?f=fotoalbum_large)
@BlowFish Ik vind het mooi. Het is veel geld maar je hebt ook veel keuken.
Lux.Architectuur | Van Dromen tot Wonen | www.Lux-a.nl
Er zijn zat keukenzaken die de klant de monteur laat betalen, dus krijgt de monteur geen geld als er een ,bijvoorbeeld knopje mist.Tommie12 schreef op vrijdag 12 februari 2021 @ 22:29:
[...]
Alsof die zzp’er zijn centen krijgt voor Keukenloods betaald is en alles in orde is...

Als ik de monteur (direct) betaal dan vind ik dat prima. Krijgt hij gelijk wat extras bij een goede klus. Daarentegen heb ik het vermoeden dat de leverancier er tussen zit en dat het niet 1 op 1 doorgaat naar de zzpér. Nogmaals voor de volledigheid, we gaan nu naar 1 van de goedkopere leveranciers, ik vind het begrijpelijk dat we ergens concessies moeten maken en zeker met de argumentatie die eerder is gegeven heb ik begrip voor deze constructie.
Lux.Architectuur | Van Dromen tot Wonen | www.Lux-a.nl
Kan iemand iets zeggen over de verschillen tussen de AEG Combohob en de BORA Puru? De ene zaak zegt dat de prestaties vergelijkbaar zijn en dat het een kwestie van smaak is en de ander zegt dat de AEG een stuk minder krachtig en minder stil is. Online kan ik ook geen goede vergelijkingen vinden.
.
[ Voor 99% gewijzigd door SqnLdr op 14-02-2021 14:10 ]
Kan de zaak die zegt dat de AEG beter is, ook Bora leveren?zomerwinter schreef op zaterdag 13 februari 2021 @ 17:22:
Kan iemand iets zeggen over de verschillen tussen de AEG Combohob en de BORA Puru? De ene zaak zegt dat de prestaties vergelijkbaar zijn en dat het een kwestie van smaak is en de ander zegt dat de AEG een stuk minder krachtig en minder stil is. Online kan ik ook geen goede vergelijkingen vinden.
Heel scherp!Ice82 schreef op zaterdag 13 februari 2021 @ 18:17:
[...]
Kan de zaak die zegt dat de AEG beter is, ook Bora leveren?
“Nothing changed since the 70s. Nothing. Except people train not that hard”. - Tom Platz
Ja, hij gaf aan voor een meerprijs van 200-300 euro.Ice82 schreef op zaterdag 13 februari 2021 @ 18:17:
[...]
Kan de zaak die zegt dat de AEG beter is, ook Bora leveren?
Ik zal je het lezen van dit volledige topic besparen. Ga voor de Bora.zomerwinter schreef op zaterdag 13 februari 2021 @ 18:45:
[...]
Ja, hij gaf aan voor een meerprijs van 200-300 euro.
Verwijderd
Iemand ervaring met een wit marmerlook blad maar dan in matte uitvoering? Ik ben benieuwd of dat een beetje staat op een zwarte Fenix keuken. Je ziet online vaak alleen gepolijste bladen.
@Jannick1 Graag!
@Jannick1 Graag!
[ Voor 6% gewijzigd door Verwijderd op 13-02-2021 19:45 ]
Hier wordt dinsdag en woensdag de keuken gemonteerd (Fenix zwart) (heel) licht grijs keramisch blad (1,2cm) Tis geen marmer en geen wit maar welVerwijderd schreef op zaterdag 13 februari 2021 @ 19:23:
Iemand ervaring met een wit marmerlook blad maar dan in matte uitvoering? Ik ben benieuwd of dat een beetje staat op een zwarte Fenix keuken. Je ziet online vaak alleen gepolijste bladen.
Mat. Als je een foto wil kan ik die wel even sturen of posten. Geeft je misschien een klein beetje een idee.
Helaas komen de ovens een/twee weken later dus zal van de volledige keuken tzt even wat fotootjes posten!
Heeft iemand ervaring met de Rotpunkt hout fineer fronten? En hoe verhoudt Rotpunkt zich vs Systemat/Ballerina/Pronorm?
De black oak line ziet er goed uit (vanaf een plaatje).
De black oak line ziet er goed uit (vanaf een plaatje).
:no_upscale():strip_icc():fill(white):strip_exif()/f/image/sxqMY6ErJCpIqjSmyuXh4Dfj.jpg?f=user_large)
Is er iemand die hier ervaring heeft met houten vloeren in de keuken? Wij willen heel graag een ‘Hongaarse punt’ parketvloer door heel de woonkamer inclusief woonkeuken.
Nu zullen we (op advies van de vloeren specialist) een matte coating toepassen echter zijn we er toch nog niet heel zeker van dat dit na een aantal jaar er nog een beetje uitziet.. Ik zie vaak dat men ervoor kiest om tussen kasten en eiland een andere vloer toe te passen (giet of tegels) echter vind ik dit er in onze opstelling echt totaal niet uitziet..
Iemand hier die misschien ervaring heeft met houten vloeren waarbij het wel goed gaat?
Nu zullen we (op advies van de vloeren specialist) een matte coating toepassen echter zijn we er toch nog niet heel zeker van dat dit na een aantal jaar er nog een beetje uitziet.. Ik zie vaak dat men ervoor kiest om tussen kasten en eiland een andere vloer toe te passen (giet of tegels) echter vind ik dit er in onze opstelling echt totaal niet uitziet..
Iemand hier die misschien ervaring heeft met houten vloeren waarbij het wel goed gaat?

Witte bladen (composit) in mat zijn altijd erg besmettelijk.Verwijderd schreef op zaterdag 13 februari 2021 @ 19:23:
Iemand ervaring met een wit marmerlook blad maar dan in matte uitvoering? Ik ben benieuwd of dat een beetje staat op een zwarte Fenix keuken. Je ziet online vaak alleen gepolijste bladen.
@Jannick1 Graag!
En lastig schoon te houden.Ook vele andere kleuren in mat.
Hoogglans wit hecht veel minder op..
Keramiek en dektron mat gaat wel goed.
Nog geen ervaring maar wij van hetzelfde doen. Houten vloer door de hele begane grond. Gelakt met een ultra matte lak. Wij zijn uitgekomen bij Bob Erkelens, check zijn Instagram.BlowFish schreef op zaterdag 13 februari 2021 @ 21:09:
Is er iemand die hier ervaring heeft met houten vloeren in de keuken? Wij willen heel graag een ‘Hongaarse punt’ parketvloer door heel de woonkamer inclusief woonkeuken.
Nu zullen we (op advies van de vloeren specialist) een matte coating toepassen echter zijn we er toch nog niet heel zeker van dat dit na een aantal jaar er nog een beetje uitziet.. Ik zie vaak dat men ervoor kiest om tussen kasten en eiland een andere vloer toe te passen (giet of tegels) echter vind ik dit er in onze opstelling echt totaal niet uitziet..
Iemand hier die misschien ervaring heeft met houten vloeren waarbij het wel goed gaat?
Nou precies dat. Waarom kunnen ze in de keuken wereld anno 2021 niet met een computer een paar straks renders te voorschijn toveren. Wij betalen en modaal jaar inkomen voor een keuken maar ik heb geen fatsoenlijke 3D render gezien. Hoe komen ze hier mee weg?BlowFish schreef op zaterdag 13 februari 2021 @ 13:28:
[...]
[...]
Wordt pas in augustus geplaatst. Zijn geen top renders.. en dat voor 36k![]()
[Afbeelding]
[Afbeelding]
@Jannick1 Graag, wij twijfelen ook nog over de kleurstellen wit/zwart op basis van Fenix.
Lux.Architectuur | Van Dromen tot Wonen | www.Lux-a.nl
Wij hebben op dit moment eiken visgraat whitewash behandeld en dat gaat prima.BlowFish schreef op zaterdag 13 februari 2021 @ 21:09:
Is er iemand die hier ervaring heeft met houten vloeren in de keuken? Wij willen heel graag een ‘Hongaarse punt’ parketvloer door heel de woonkamer inclusief woonkeuken.
Nu zullen we (op advies van de vloeren specialist) een matte coating toepassen echter zijn we er toch nog niet heel zeker van dat dit na een aantal jaar er nog een beetje uitziet.. Ik zie vaak dat men ervoor kiest om tussen kasten en eiland een andere vloer toe te passen (giet of tegels) echter vind ik dit er in onze opstelling echt totaal niet uitziet..
Iemand hier die misschien ervaring heeft met houten vloeren waarbij het wel goed gaat?
Uit voorzorg maken we de vloer wel redelijk snel droog en schoon bij water/olie spetters, echter is het minimaal wat op de vloer komt van het huidig kookeiland.
@BlowFish Wij hebben geen kookeiland maar wel een houten parketvloer. Vetspetters, water, olie, kooktroep, allemaal ellende. Wij zouden bij een verbouwing gaan voor een mooie, moderne tegelvloer in de keuken. Onze net geschuurde en geoliede parketvloer heeft alweer wat strepen en spetters, zeker in de keuken. Ook hebben we een kat die graag kotst. We balen dus een beetje van de vloer, hoe mooi we hem ook vinden (visgraat met band en bies).
Wij hebben nu een houten vloer in de keuken. Bij de nieuwe keuken gaan geen houten vloer meer doen. Bij de huidige keuken wel bewust de keuze gemaakt dat we een houten vloer met vlekken mooier vinden dan maar een klein stukje met tegels. Maar blij dat er straks een betere vloer in de keuken ligt.BlowFish schreef op zaterdag 13 februari 2021 @ 21:09:
Is er iemand die hier ervaring heeft met houten vloeren in de keuken? Wij willen heel graag een ‘Hongaarse punt’ parketvloer door heel de woonkamer inclusief woonkeuken.
Nu zullen we (op advies van de vloeren specialist) een matte coating toepassen echter zijn we er toch nog niet heel zeker van dat dit na een aantal jaar er nog een beetje uitziet.. Ik zie vaak dat men ervoor kiest om tussen kasten en eiland een andere vloer toe te passen (giet of tegels) echter vind ik dit er in onze opstelling echt totaal niet uitziet..
Iemand hier die misschien ervaring heeft met houten vloeren waarbij het wel goed gaat?
Verwijderd
Daarom doe je een vloer ook lakken en niet in de olie zetten op zo'n plek. Stuk onderhoudsvriendelijker.remzor schreef op zaterdag 13 februari 2021 @ 22:03:
@BlowFish Wij hebben geen kookeiland maar wel een houten parketvloer. Vetspetters, water, olie, kooktroep, allemaal ellende. Wij zouden bij een verbouwing gaan voor een mooie, moderne tegelvloer in de keuken. Onze net geschuurde en geoliede parketvloer heeft alweer wat strepen en spetters, zeker in de keuken. Ook hebben we een kat die graag kotst. We balen dus een beetje van de vloer, hoe mooi we hem ook vinden (visgraat met band en bies).
Let op:
Dit topic kan gebruikt worden voor het volgende:
• Vragen over de keuken, denkend aan indeling, materialen, kastjes, apparatuur, etc.
• Welke kastjes, aanrechtbladen en apparatuur te kiezen
• Ervaringen met verkopers en keukenboeren
• Tips & Tricks denk hierbij aan hulp bij het zelf installeren en onderhouden van de keuken.
• Jouw indeling. Plaats gerust een foto of tekening, maar maak het niet te bont met hele buildlogs.
Voor badkamers: Het Badkamer topic: verkopers, kwaliteit, prijs - Deel 1
Showen met je keuken kan hier: Tweakers Keuken showroom! - Vestiging 1
Dit topic kan gebruikt worden voor het volgende:
• Vragen over de keuken, denkend aan indeling, materialen, kastjes, apparatuur, etc.
• Welke kastjes, aanrechtbladen en apparatuur te kiezen
• Ervaringen met verkopers en keukenboeren
• Tips & Tricks denk hierbij aan hulp bij het zelf installeren en onderhouden van de keuken.
• Jouw indeling. Plaats gerust een foto of tekening, maar maak het niet te bont met hele buildlogs.
Voor badkamers: Het Badkamer topic: verkopers, kwaliteit, prijs - Deel 1
Showen met je keuken kan hier: Tweakers Keuken showroom! - Vestiging 1