We moeten 22 november ons leidingschema inleveren.
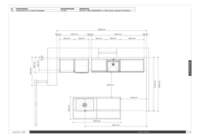
Nog tips/advies mbt onderstaande?
:strip_exif()/f/image/5hJ3lShHldC1YAeZUZs31kMN.jpg?f=fotoalbum_large)
:strip_exif()/f/image/lpOyznseoygyn8wvJcDKDb4H.jpg?f=fotoalbum_large)
:strip_exif()/f/image/b31qrAS2pqp5oeLTQ7Z91Jpp.jpg?f=fotoalbum_large)
Aantal vragen/opmerkingen:
- #11 is een WCD tbc spotjes en een aantal stopcontacten die ik in de ombouw willen laten verwerken - vandaar dat die nu achter de ombouw valt
- Is het gebruikelijk de stopcontacten van koel/vries en ovens nooit achter deze apparaten te plaatsen?
- mogelijk wil ik nog een stopcontact bij plaatsen in het eiland, kan dan van de perilex worden 'afgetapt' of vergt dat een aparte WCD?
Nog tips/advies mbt onderstaande?
:strip_exif()/f/image/5hJ3lShHldC1YAeZUZs31kMN.jpg?f=fotoalbum_large)
:strip_exif()/f/image/lpOyznseoygyn8wvJcDKDb4H.jpg?f=fotoalbum_large)
:strip_exif()/f/image/b31qrAS2pqp5oeLTQ7Z91Jpp.jpg?f=fotoalbum_large)
Aantal vragen/opmerkingen:
- #11 is een WCD tbc spotjes en een aantal stopcontacten die ik in de ombouw willen laten verwerken - vandaar dat die nu achter de ombouw valt
- Is het gebruikelijk de stopcontacten van koel/vries en ovens nooit achter deze apparaten te plaatsen?
- mogelijk wil ik nog een stopcontact bij plaatsen in het eiland, kan dan van de perilex worden 'afgetapt' of vergt dat een aparte WCD?
[ Voor 19% gewijzigd door SquareOne op 01-11-2020 17:00 ]
/f/image/vsv3aohsTftfv2fPc9rY93Ll.png?f=fotoalbum_large)
:strip_exif()/f/image/0O3bRWi54zk2yeG3hmoNSm7s.jpg?f=fotoalbum_large)
/f/image/eYaOZ7ojBsFv0KOtHb9Z7ww5.png?f=fotoalbum_large)
:strip_exif()/f/image/bo525LEMgceLsmuTOPrCPjAZ.jpg?f=fotoalbum_tile)
:strip_exif()/f/image/slDQKS9tjrj20a49Ci9LXBUC.jpg?f=fotoalbum_tile)
:strip_exif()/f/image/Ircg7KHlxzt4awSkEHUGPJaL.jpg?f=fotoalbum_large)
:strip_exif()/f/image/ISg76uxD7St4ONoknpiKy9Mp.jpg?f=fotoalbum_large)
:strip_exif()/f/image/R2tYThPYIf6hG9FhV5j6Jmj2.jpg?f=fotoalbum_large)
:strip_exif()/f/image/BVJGpUl06IHRN8uwQJt1ALfh.jpg?f=fotoalbum_large)
:strip_exif()/f/image/B0y3NZzreQjA1vutORMlqTgP.jpg?f=fotoalbum_large)

:strip_exif()/f/image/g66kS7NyFd5I9bSpz5HjUPmW.jpg?f=fotoalbum_large)
:strip_exif()/f/image/sV7cQSJ6dSZ8gcHYTXSnF1cd.jpg?f=fotoalbum_large)
:strip_exif()/f/image/uBxJDFf3R15gcoeooKnRydb0.jpg?f=fotoalbum_large)