Groot genoeg voor 2 hoofdletters
Ga je voor (specifieke elementen in) de stijl of zoek je ook echt de mogelijkheid tot maatwerk? Want de stijl hout/Fenix/natuursteen kan je ook wel bij de standaard zaken vinden denk ik. Ze hebben het misschien niet altijd staan maar dat kun je natuurlijk zelf combineren.Chabio schreef op donderdag 1 oktober 2020 @ 14:09:
[...]
Spijtig, zijn in de markt voor nieuwe keuken en materiaal gebruik en stijl van Houtmerk spreekt ons erg aan. Zijn de prijzen van Robert Tediek vergelijkbaar met die van Houtmerk?
Heeft iemand wellicht nog tips voor zaken als deze in de buurt van Utrecht?
Ik heb nog geen offertes gehad van Robert Tediek omdat we nog puzzelen met de opstelling. Als we meer weten, maken ze vrijblijven drie ontwerpen. Ik heb het idee dat het misschien iets boven Houtmerk is omdat ze meer maatwerk en luxere materialen gebruiken. Maar in principe heb je het zelf in de hand (of loopt het uit de hand
https://www.fredconstant.nl en https://www.eginstill.com, beide in Amsterdam, staan ook nog op mijn lijstje om eventueel naar te kijken als we meer weten over onze indeling.
https://www.siemens-home....ngbakinghobsinductionhobs
Ik heb daar met de gaggenau variant mee gespeeld tijdens een demo rondje in een van de keuken zaken (ASWA) en dat is exact het zelfde model 100% 1 op 1
Maar ja mijn toekomstige keuken zal ook niet onder de 20/30k geleverd worden ben ik bang. En gaat ook niet in mijn huidige huis gezet worden. Meer een over een jaar of X droom keuken.
Het fijne aan het flex systeem van die plaat was dat het systeem de pan herkent je kunt variabel alle soorten en maten pannen plaatsen en geeft heel veel vrijheid.
Game PC
2 Post or Not 2 Post What's the question ?
"If it ain't broken, you didn't try hard enough"
Dit soort pannen kun je op een ‘gewone’ zone vaak niet kwijt?PaT schreef op donderdag 1 oktober 2020 @ 14:14:
[Afbeelding]
Voor wie zich afvraagt of flexzones handig zijn. Met dit soort pannen dus wel.
Hi Jos5223,De Cheetah schreef op donderdag 1 oktober 2020 @ 14:05:
Hi Niek, bij ons wordt toch de bora geïnstalleerd in november. Wij overwogen de gutmann nivel, maar die viel erg tegen in geluid en afzuiging. Zeer lawaaierig en matige afzuiging, op 2 locaties getest. Toch wel de 2 belangrijkste eigenschappen van een kookplaat. Mijn enige referentie is de bora pure met recirculatie (stond naast de gutmann, dus goed vergelijk), en die was veel stiller en mega goede afzuiging (bekende kokend water pannetje test). Op basis daarvan besloten voor bora te gaan, wel de xpure, maar dat zal niet slechter zijn neem ik aan.
[...]
mag ik vragen wat je voor de Bora X pure betaald? ik ben druk bezig met de budgettering en prijzen van keuken apparatuur zijn echt een ramp!
Op mijn offerte staat die voor 2750 in de PUXU versiecold schreef op donderdag 1 oktober 2020 @ 16:31:
[...]
Hi Jos5223,
mag ik vragen wat je voor de Bora X pure betaald? ik ben druk bezig met de budgettering en prijzen van keuken apparatuur zijn echt een ramp!
Mijn ervaring:cold schreef op donderdag 1 oktober 2020 @ 16:31:
[...]
Hi Jos5223,
mag ik vragen wat je voor de Bora X pure betaald? ik ben druk bezig met de budgettering en prijzen van keuken apparatuur zijn echt een ramp!
Prijs van de Bora PURU (recirculatie) ligt rond de 2400 euro als je deze met een paar andere apparaten aanschaft. De prijs van de PUXU (recirculatie) ligt zo'n 800 euro hoger.
In de showroom van keukenloods lager er op 20 september prijskaartjes bij van 2539 (PURU) en 3295 (PUXU).
Prijs van versie met afzuiging ligt iets lager maar met de afvoerbuizen erbij is er nauwelijks prijsverschil.
Bij sommige kleinere keuken zaken ligt de prijs misschien iets hoger ivm inkoopvoorwaarden en marges.
[ Voor 6% gewijzigd door SquareOne op 01-10-2020 16:42 ]
Thx. daar kan ik mee verderSquareOne schreef op donderdag 1 oktober 2020 @ 16:41:
[...]
Mijn ervaring:
Prijs van de Bora PURU (recirculatie) ligt rond de 2400 euro als je deze met een paar andere apparaten aanschaft. De prijs van de PUXU (recirculatie) ligt zo'n 800 euro hoger.
In de showroom van keukenloods lager er op 20 september prijskaartjes bij van 2539 (PURU) en 3295 (PUXU).
Prijs van versie met afzuiging ligt iets lager maar met de afvoerbuizen erbij is er nauwelijks prijsverschil.
Bij sommige kleinere keuken zaken ligt de prijs misschien iets hoger ivm inkoopvoorwaarden en marges.
Die Creuset niet. Die is te groot voor 1 zone. Dan is het midden warm en de uiteindes hooguit lauw. Dat is echt waardeloos.Ada12 schreef op donderdag 1 oktober 2020 @ 15:59:
[...]
Dit soort pannen kun je op een ‘gewone’ zone vaak niet kwijt?
Groot genoeg voor 2 hoofdletters
Zo’n pan heb ik niet. Maar heb bijvoorbeeld wel een enorme soeppan. Heb dus kans dat die niet op 1 zone past (en dus niet te gebruiken is als ik geen flex heb)?PaT schreef op donderdag 1 oktober 2020 @ 18:31:
[...]
Die Creuset niet. Die is te groot voor 1 zone. Dan is het midden warm en de uiteindes hooguit lauw. Dat is echt waardeloos.
Moet je even bij de specificaties van de kookplaat kijken. Daar staat de max pan diameter aangegeven.Ada12 schreef op donderdag 1 oktober 2020 @ 18:52:
[...]
Zo’n pan heb ik niet. Maar heb bijvoorbeeld wel een enorme soeppan. Heb dus kans dat die niet op 1 zone past (en dus niet te gebruiken is als ik geen flex heb)?
Mijn ouders hebben een ATAG plaat van +/- 15 jaar oud en daar kan gewoon een flinke koekenpan op.
PSN: Flix20-NL
Bij veel platen is de grootste zone max 210 mm zie ik.Flix20 schreef op donderdag 1 oktober 2020 @ 18:58:
[...]
Moet je even bij de specificaties van de kookplaat kijken. Daar staat de max pan diameter aangegeven.
Mijn ouders hebben een ATAG plaat van +/- 15 jaar oud en daar kan gewoon een flinke koekenpan op.
Een grote pan is wel groter dan 210
Is het geen gietijzer dan?PaT schreef op donderdag 1 oktober 2020 @ 18:31:
[...]
Die Creuset niet. Die is te groot voor 1 zone. Dan is het midden warm en de uiteindes hooguit lauw. Dat is echt waardeloos.
Mijn gietijzeren pan valt ook buiten de zone op de huidige kookplaat. Dat ding warmt echter als een malle (gelijkmatig) op waardoor heel de pan overal heet is. (Lodge ø 34 cm gietijzeren Dutch oven)
Ik weet niet of ik zomaar een vraag kan stellen hier in deze topic, maar hier gaat ie:
* We zijn bezig met het uitkiezen van een keuken bij de keukenkampioen (KK). Waarom KK? Goede ervaringen mee
* Nu willen we voor de AEG kke884500b espressomachine gaan. Wij vroegen ons af of iemand al ervaring heeft met a) het merk AEG en b) ingebouwde espressomachines t.o.v. nespresso of dure espresso machines (ik snap dat smaken verschillen, maar misschien iets over het algemeens?)
Dankjulliewel!
Michael
En wat is nu het echte verschil? Op wat uiterlijkheden na?SquareOne schreef op donderdag 1 oktober 2020 @ 16:41:
[...]
Mijn ervaring:
Prijs van de Bora PURU (recirculatie) ligt rond de 2400 euro als je deze met een paar andere apparaten aanschaft. De prijs van de PUXU (recirculatie) ligt zo'n 800 euro hoger.
In de showroom van keukenloods lager er op 20 september prijskaartjes bij van 2539 (PURU) en 3295 (PUXU).
Prijs van versie met afzuiging ligt iets lager maar met de afvoerbuizen erbij is er nauwelijks prijsverschil.
Bij sommige kleinere keuken zaken ligt de prijs misschien iets hoger ivm inkoopvoorwaarden en marges.
Mag ik vragen waarom je een ingebouwde espresso machine overweegt en geen Jura of zo? Prijs en kwaliteit kunnen een factor zijn. Alsmede de benodigde ruimte in de keuken.cxsmike schreef op donderdag 1 oktober 2020 @ 20:33:
Hoi allemaal,
Ik weet niet of ik zomaar een vraag kan stellen hier in deze topic, maar hier gaat ie:
* We zijn bezig met het uitkiezen van een keuken bij de keukenkampioen (KK). Waarom KK? Goede ervaringen mee
* Nu willen we voor de AEG kke884500b espressomachine gaan. Wij vroegen ons af of iemand al ervaring heeft met a) het merk AEG en b) ingebouwde espressomachines t.o.v. nespresso of dure espresso machines (ik snap dat smaken verschillen, maar misschien iets over het algemeens?)
Dankjulliewel!
Michael
Ik ben zelf ook aan het oriënteren en zou graag je mening hierover willen weten.
De actuele opbrengst van mijn Tibber Homevolt
De website van de fabrikant al bekeken..?Giem schreef op donderdag 1 oktober 2020 @ 21:29:
[...]
En wat is nu het echte verschil? Op wat uiterlijkheden na?
https://www.bora.com/nl/nl/kookveldafzuiging/bora-x-pure/
https://www.bora.com/nl/nl/kookveldafzuiging/bora-pure/
O.a. Geen kookvlak maar gehele plaat te gebruiken bij x.
Ik heb een inbouw ook overwogen. Maar de duurste jura is ongeveer net zo duur als de goedkoopste inbouw. Daarnaast schijnen die inbouw dingen duur in het onderhoud / gevoelig te zijn. Daarom maar een losse genomen.JackBol schreef op donderdag 1 oktober 2020 @ 22:17:
[...]
Mag ik vragen waarom je een ingebouwde espresso machine overweegt en geen Jura of zo? Prijs en kwaliteit kunnen een factor zijn. Alsmede de benodigde ruimte in de keuken.
Ik ben zelf ook aan het oriënteren en zou graag je mening hierover willen weten.
Imac 27" i5 + Dell XPS Laptop
Tips voor interieurbouwers / maatwerkkeukens omgeving Utrecht zijn welkom!
Wij hebben ook gekozen voor een losse Jura (die we al hebben). Ik kan mij wel voorstellen dat men kiest voor inbouw om dat het voor het oog mooi lijkt. Om deze reden hebben wij nml. lang getwijfeld.siemenz schreef op vrijdag 2 oktober 2020 @ 00:14:
[...]
Ik heb een inbouw ook overwogen. Maar de duurste jura is ongeveer net zo duur als de goedkoopste inbouw. Daarnaast schijnen die inbouw dingen duur in het onderhoud / gevoelig te zijn. Daarom maar een losse genomen.
[ Voor 82% gewijzigd door Eikkie op 02-10-2020 09:37 ]
It's me
Het betreft het verschil tussen de lades van Blum (zowel technisch als prijstechnisch)
Wij zijn wel gecharmeerd van de Blum Legrabox.
Ons gevoel hierbij: Iets strakker, geen schuine zijdes en iets degelijker (sterker).
Volgens onze leverancier is het verschil minimaal. Wat denken jullie?
Nu is de offerte door de keukenleverancier opgemaakt met de Tandembox Antaro en hebben wij gevraagd om de Legrabox aan te bieden.
Waar andere leveranciers deze standaard aanbieden heb ik nu een meerprijs ontvangen van 1500,-.
Betreft een 3-tal 90cm lades (2x boven/onder & 1 binnenlade), een 7-tal 60cm lades (4x boven/onder & 3x binnenlades) en een 4-tal 100cm lades (4x boven/onder) - In totaal 14 lades.
Ik heb de prijzen van een online aanbieder naast elkaar gezet en kom niet verder dan een schamele 600,- meerprijs.
Voordat ik hier mijn leverancier op aanspreek...
Zie ik iets over het hoofd?
Over wat voor keukenleveranciers hebben we het dan? Betreft het dan maatwerk keukens waarbij je specifiek vraagt om Blum Legrabox lades? Of gaat het om een standaard keuken van een fabrikant als Häcker, Rotpunkt, Pronorm, etc waarin je dan de lades wilt laten vervangen? Kan er weinig over vinden dat er keuken leveranciers zijn die dit standaard in hun assortiment hebben, maar wellicht hebben ze er een eigen naampje aan gegeven.Stinger666 schreef op vrijdag 2 oktober 2020 @ 10:14:
Na een half jaartje meekijken, inspiratie opdoen en inmiddels diverse offertes verder heb ik toch nog wat advies nodig.
Het betreft het verschil tussen de lades van Blum (zowel technisch als prijstechnisch)
Wij zijn wel gecharmeerd van de Blum Legrabox.
Ons gevoel hierbij: Iets strakker, geen schuine zijdes en iets degelijker (sterker).
Volgens onze leverancier is het verschil minimaal. Wat denken jullie?
Nu is de offerte door de keukenleverancier opgemaakt met de Tandembox Antaro en hebben wij gevraagd om de Legrabox aan te bieden.
Waar andere leveranciers deze standaard aanbieden heb ik nu een meerprijs ontvangen van 1500,-.
Betreft een 3-tal 90cm lades (2x boven/onder & 1 binnenlade), een 7-tal 60cm lades (4x boven/onder & 3x binnenlades) en een 4-tal 100cm lades (4x boven/onder) - In totaal 14 lades.
Ik heb de prijszen van een online aanbieder naast elkaar gezet en kom niet verder dan een schamele 600,- meerprijs.
Voordat ik hier mijn leverancier op aanspreek...
Zie ik iets over het hoofd?
Je geeft aan dat je verschillende offertes hebt ontvangen. Waarom dan niet gaan voor een leverancier die dit standaard aanbiedt?
[ Voor 4% gewijzigd door SquareOne op 02-10-2020 10:43 ]
“Nothing changed since the 70s. Nothing. Except people train not that hard”. - Tom Platz
Een van de offertes betreft een 'maatwerk' leverancier, de andere offertes zijn van Ardi (Rotpunkt als ik het eerder hier gedeelde tabelletje mag geloven), Bruynzeel en Tieleman.SquareOne schreef op vrijdag 2 oktober 2020 @ 10:32:
[...]
Over wat voor keukenleveranciers hebben we het dan? Betreft het dan maatwerk keukens waarbij je specifiek vraagt om Blum Legrabox lades? Of gaat het om een standaard keuken van een fabrikant als Häcker, Rotpunkt, Pronorm, etc waarin je dan de lades wilt laten vervangen?
Je geeft aan dat je verschillende offertes hebt ontvangen. Waarom dan niet gaan voor een leverancier die dit standaard aanbiedt?
Wij willen gaan voor de leverancier die naar ons gevoel (en op basis van reviews/ervaringen) de beste prijs kwaliteitsverhouding biedt.
Er zit natuurlijk wat verschil in de aangeboden keukens, maar dat betreft met name het gebruikte houtfineer, afwerking binnenzijde corpus, greeplijsten, etc.
Tot nu toe ging dat in de juiste richting maar van dit voorstel viel ik enigszins van mijn stoel.

Ik heb zo'n beetje de hele keuken in een spreadsheet zitten en dit had ik niet verwacht.
De complete keuken zit op zo'n 23/24K en dan een prijsverhoging van 1,5K voor andere lades is wellicht iets te enthousiast, kijkende naar het inkoopverschil.
Wij willen best betalen voor wat extra werk of veranderingen.
@Barry|IA
Kun je ook een objectieve technische mening over het verschil geven? Dat de Legrabox luxer is hebben gezien. (No offence
Ik begreep dat de Antaro box ook in grijs/zwart leverbaar is?
[ Voor 6% gewijzigd door Stinger666 op 02-10-2020 10:54 ]
Klopt. De Blum Antaro is een relatief basic geleidingsysteem met vierkante relingen in de korven. De Blum Legrabox heeft een stiller loopwerk, heeft gesloten zijwanden en heeft een luxere uitstraling.Stinger666 schreef op vrijdag 2 oktober 2020 @ 10:53:
@Barry|IA
Kun je ook een objectieve technische mening over het verschil geven? Dat de Legrabox luxer is hebben gezien. (No offence)
Ik begreep dat de Antaro box ook in grijs/zwart leverbaar is?
“Nothing changed since the 70s. Nothing. Except people train not that hard”. - Tom Platz
Ja en daar kon ik nu juist eigenlijk geen verschillen zien. Dit mogen ze zelf ook wel wat duidelijker maken.Source90 schreef op donderdag 1 oktober 2020 @ 22:36:
[...]
De website van de fabrikant al bekeken..?
https://www.bora.com/nl/nl/kookveldafzuiging/bora-x-pure/
https://www.bora.com/nl/nl/kookveldafzuiging/bora-pure/
O.a. Geen kookvlak maar gehele plaat te gebruiken bij x.
Dus niet echt een reden om voor de x te gaan.
“Nothing changed since the 70s. Nothing. Except people train not that hard”. - Tom Platz
haha dan kan je wel een nieuw roostertje @100 euro bestellenBarry|IA schreef op vrijdag 2 oktober 2020 @ 13:00:
Bij de Pure X kun je je aardappelen door het rooster omlaag drukken en dan komt het er aan de onderkant als friet uit.
Imac 27" i5 + Dell XPS Laptop
Verwijderd
Een keukenleverancier die niet als de goedkoopste te boek wil staan zal je waarschijnlijk ook standaard Legrabox aanbieden. Wij hebben gisteren een offerte laten maken en daar is - no questions asked - Legrabox in gekomen. (En ze kunnen natuurlijk zo ook nog wat in prijs zakken door "een paar kleine aanpassinkjes".) En volgende week hebben we een afspraak bij een toko die ze met vrij grote zekerheid er niet in zet - ook no questions asked. Gewoon een andere strategie.Barry|IA schreef op vrijdag 2 oktober 2020 @ 10:32:
Legrabox is mooier en luxer. Dus dat prijsverschil t.o.v. standaard Antaro kan wel eens kloppen.
Nooit eerder bezig geweest met een nieuwe keuken, maar ik begin wel het idee te krijgen dat het kopen van een ander huis minder keuzes gaf.
Na een tijd meegelezen te hebben en bij verschillende zaken binnen zijn geweest, gaan we waarschijnlijk in zee met een interieurbouwer. De prijs (ca. 22k) is iets hoger dan de andere offertes die we hebben gekregen, maar het ontwerp is ook iets luxer. Al-met-al lijkt het in dezelfde lijn te liggen, maar ik heb nog niet geprobeerd wat van de prijs af te krijgen.
De doorslag om hiermee verder te gaan komt overigens vooral door het goed meedenken en de passie voor het vak die er gewoon vanaf straalde. Ook hebben we een rondleiding door de werkplaats gekregen en dat zag er allemaal heel professioneel uit.
Welke ben je uitgekomen?emmerwater schreef op vrijdag 2 oktober 2020 @ 13:22:
Hoe is jullie ervaring met prijzen bij interieur-/meubelmakers? Valt er überhaupt wat af te dingen?
Na een tijd meegelezen te hebben en bij verschillende zaken binnen zijn geweest, gaan we waarschijnlijk in zee met een interieurbouwer. De prijs (ca. 22k) is iets hoger dan de andere offertes die we hebben gekregen, maar het ontwerp is ook iets luxer. Al-met-al lijkt het in dezelfde lijn te liggen, maar ik heb nog niet geprobeerd wat van de prijs af te krijgen.
De doorslag om hiermee verder te gaan komt overigens vooral door het goed meedenken en de passie voor het vak die er gewoon vanaf straalde. Ook hebben we een rondleiding door de werkplaats gekregen en dat zag er allemaal heel professioneel uit.
Verwijderd
Opstelling is op een paar kleine dingetjes gelijk aan wat we nu hebben in ons "oude huis". Ik zie dat jullie 20cm meer ruimte tussen de 2 wanden hebben dan wij. Dat is echt goed. Ik vind wat wij nu hebben (2x 60cm + 2 passtukjes) eigenlijk net te krap om comfortable met z'n tweetjes te werken. Verder niets mis mee. Veel ruimte. Alleen even niet gekeken wat je met de 2 hoeken doet. In 1 hoek kun je natuurlijk zo'n pannen-opbergsysteem zetten, maar in de tweede hoek hebben wij gewoon een hele diepe kast: compleet waardeloos.patrick451! schreef op dinsdag 29 september 2020 @ 22:02:
Graag ontvang ik jullie mening op de onderstaande offerte die mijn vriendin en ik afgelopen zondag bij de keukenboer hebben ontvangen.
Winkel:
***members only***
Keukenmeubelen: €6831 totaal
Op basis van de modellijn Matterhorn. Dit is een greeploos design.Werkbladen: €3015 totaal
- Front: Leisteengrijs | Ultra mat
- Kasten buitenzijde: Wit | Melanine
- Kasten kopse kant: Leisteengrijs | ABS (mat)
- Zichtzijden: Leisteengrijs | Ultra mat
- Panelen: Leisteengrijs | Ultra mat
- Open kasten: Leisteengrijs | Ultramat
- Plinten: Zwart | Melamine
- Scharnieruitvoering: 95 graden + demper
- Lade uitvoering: T-box Antaro antraciet
- Plintuitvoering: Plintpoot
- Plinthoogte: 13 cm
Apparatuur: €6071 totaal
- Keramiek 23mm Montsho, gezoet (€3105)
Accessoires: €2308 totaal
- Koel-vries combinatie: Siemens KI34VV22FF IQ100 (€599)
- Oven: Siemens Studioline HB875G5B1 IQ700 (€864)
- Combi-oven: Siemens Studioline CM836GNB6 IQ700 (€1021)
- Vaatwasser: Siemens Studioline SN836X12JE IQ300 (€648)
- Kookplaat & afzuiging in één: Bora Pure Pura (€2939)
***members only***
- Kokendwaterkraan: Quooker Combi+ RVS (€1481)
- Wasbak: Franke 58CM RVS KBX 210.55 (€637)
- Lampjes etc. (€190)
Graag hoor ik van jullie wat jullie vinden van de opstelling, de gekozen apparatuur en uiteraard de bijhorende prijsopgave.
Zelf twijfelen we momenteel of we niet voor een wat luxer merk kasten moeten kiezen, bijvoorbeeld Next125. De binnenzijde van de kasten wordt dan grijs of antraciet, in plaats van wit. Deze kasten vallen dan tevens in het midden segment, in plaats van in het lage segment. We vragen ons echter af wat voor impact dit heeft op de keukenmeubelen prijs?
Zelf hebben we al het idee om eventueel het blad los te bestellen via Keukenbladenfabriek, omdat wij dan voor een vergelijkbaar bedrag (inclusief montage) een 20mm massief Dekton Laos blad kunnen verkrijgen.
Daarnaast ontdekte ik dat de oven in de bovenstaande opstelling een 2.8 inch scherm bevat en de combi-oven een 3.7 inch scherm. Hierin moet dus ook nog iets verandert worden, zodat beide apparaten hetzelfde uiterlijk hebben.
***members only***
***members only***
***members only***
Die prijs kan vast nog wel iets vanaf. Heb hier een offerte liggen van 22k momenteel (andere leverancier, maar vissen wel een beejte in dezelfde vijver, mid-range) en het eerste wat de verkoper zei was "maar ik denk dat ik er nog wel wat af krijg via de manager" en "volgende week hebben we actieweek, dan kan het zeker voor iets minder".
De prijsstelling van de 'meubelbouwer' was hier net iets hoger of gelijk aan de offertes van keten keukenleveranciers (die overigens beide hadden aangegeven dat er niks af te dingen viel).emmerwater schreef op vrijdag 2 oktober 2020 @ 13:22:
Hoe is jullie ervaring met prijzen bij interieur-/meubelmakers? Valt er überhaupt wat af te dingen?
Na een tijd meegelezen te hebben en bij verschillende zaken binnen zijn geweest, gaan we waarschijnlijk in zee met een interieurbouwer. De prijs (ca. 22k) is iets hoger dan de andere offertes die we hebben gekregen, maar het ontwerp is ook iets luxer. Al-met-al lijkt het in dezelfde lijn te liggen, maar ik heb nog niet geprobeerd wat van de prijs af te krijgen.
De doorslag om hiermee verder te gaan komt overigens vooral door het goed meedenken en de passie voor het vak die er gewoon vanaf straalde. Ook hebben we een rondleiding door de werkplaats gekregen en dat zag er allemaal heel professioneel uit.
Uiteindelijk bij de meubelbouwer wel wat korting op de offerte gekregen zonder daarom te hebben gevraagd. De korting ging mee omhoog naarmate de offerte omhoog ging. Maar dan hebben we het over bedragen onder de 1000,-.
Wij hebben in totaal 4 keer dezelfde keuken laten uittekenen en daarin zat een prijsverloop van 5000,-
Hierbij is een gedeelte te verklaren door materiaal kwaliteit of bijv. het gebruikte lade systeem, maar komt het hoofdzakelijk neer op service, de custom made oplossingen en het gevoel bij de aanbieder.
De keten keukenzaken die aangaven geen korting te geven zijn Bruynzeel en Ardi (DB Keukens), wat overeenkomstig is (hun beleid en) met hetgeen in dit topic eerder geschreven is.
Ik denk ook dat zij zich dit kunnen permiteren want er is voldoende vraag (zeker met in Corona tijd). Dus als je wegloopt liggen ze er niet wakker van.
Prijzen in deze business zullen pas gaan dalen (bij vergelijkbaar aanbod) als er zich een prijsstunter op de markt begeeft (die onder dezelfde voorwaarde dezelfde kwaliteit levert) of wanneer de vraag gaat dalen. Maar met een half miljoen huizen tekort in Nederland en een constante hoge vraag zie ik dat niet gebeuren.
Wij zijn ook bij Keukenmaxx (Mandemakers) geweest ter orientatie en voor een eerste gesprek.
Afgezien van de lekkere koffie is het nooit tot een offerte gekomen (zelfs na 2x 2 uur binnen te hebben gezeten) en is het bij een tekening gebleven.
In de gesprekken over de prijsstelling werd er direct erg hoog ingestoken. Daar zijn we uiteindelijk lekker weggebleven.
[ Voor 16% gewijzigd door Stinger666 op 02-10-2020 14:25 ]
Ik heb het idee dat die van mij dat niet doet! Hoe ik moet ik in godesnaam dan een koof er om heen krijgen
Imac 27" i5 + Dell XPS Laptop
Handige kennis, of een klusjesman die toch nog iets anders komt doen zoals leidingwerk bijvoorbeeld.
Ik vermoed dat menig installateur er ook wel voor te strikken is als je er van te voren naar vraagt.
[ Voor 31% gewijzigd door BertusB404 op 02-10-2020 15:07 ]
3630Wp ZW 39° / 3950Wp NO 39° / 990Wp ZO 5° | Vaillant VWL75/5
Ik weet niet of je het tegen mij hebt maar in ons geval is dat een optie (meerwerk).siemenz schreef op vrijdag 2 oktober 2020 @ 15:05:
Doet jullie keuken leverancier ook de betimmering om de keuken heen?
Ik heb het idee dat die van mij dat niet doet! Hoe ik moet ik in godesnaam dan een koof er om heen krijgen
Onze keuken krijgt geen koof.
Als je zelf niet handig bent kun je dat het beste laten doen.
Als je wel handig bent is het echt geen wereld werk.
Met een paar regels hout, wat balken, gipsplaten en schroeven (en de juiste gereedschappen en zaag- en montagetechnieken) hangt/staat het redelijk vlot.
Afwerking zou je dan weer aan een stucadoor moeten overlaten. Of ook weer zelf doen.
Of met MDF en verfen ipv gips, stucen, en dan verven.Stinger666 schreef op vrijdag 2 oktober 2020 @ 15:08:
[...]
Ik weet niet of je het tegen mij hebt maar in ons geval is dat een optie (meerwerk).
Onze keuken krijgt geen koof.
Als je zelf niet handig bent kun je dat het beste laten doen.
Als je wel handig bent is het echt geen wereld werk.
Met een paar regels hout, wat balken, gipsplaten en schroeven (en de juiste gereedschappen en zaag- en montagetechnieken) hangt/staat het redelijk vlot.
Afwerking zou je dan weer aan een stucadoor moeten overlaten. Of ook weer zelf doen.
M’n ouders hebben ook via mint de keuken+ op maat gemaakte kast. Kwaliteit is hoog en komen graag later ook nog aan mocht er iets niet naar wens zijn.
Dit is bij Ekelhoff toch? Bij mij kwamen ze zelf met het voorstel dit te doen, zat al in het ontwerp.siemenz schreef op vrijdag 2 oktober 2020 @ 15:05:
Doet jullie keuken leverancier ook de betimmering om de keuken heen?
Ik heb het idee dat die van mij dat niet doet! Hoe ik moet ik in godesnaam dan een koof er om heen krijgen
Het tekenen hoeft niet per definitie te betekenen dat ze het ook zelf uitvoeren.Mokum80 schreef op vrijdag 2 oktober 2020 @ 15:53:
[...]
Dit is bij Ekelhoff toch? Bij mij kwamen ze zelf met het voorstel dit te doen, zat al in het ontwerp.
Staat het bij jou zo op de offerte?
Ja, staat ook vermeld in de bestelling. In de offerte werd het apart vermeld met de kosten van het werk. Maar je kan er ook vanaf zien en het achteraf zelf laten uitvoeren.SquareOne schreef op vrijdag 2 oktober 2020 @ 16:05:
[...]
Het tekenen hoeft niet per definitie te betekenen dat ze het ook zelf uitvoeren.
Staat het bij jou zo op de offerte?
Verwijderd
Als daar niets over in je offerte staat, dan gaan ze dat niet doen waarschijnlijk. Een koof om de keuken heen is ook lang niet altijd nodig natuurlijk. Onze nieuwe keuken sluit bijvoorbeeld aan de ene kant aan op het kozijn bij de achterdeur (passtukje) en eindigt "in het niets" in een ruimte (na 2 hoeken te hebben gemaakt). We zouden een koof boven de bovenkastjes kunnen maken (4 naast elkaar), maar dat moet niet (eigen keuze). En onze nieuwe keuken wordt volledig gemonteerd, behalve de afzuigkap, want dat is een klassieke schouw. En buiten de schouw is daar ook niet echt een koof nodig, want het plafond is daar iets verlaagd.siemenz schreef op vrijdag 2 oktober 2020 @ 15:05:
Doet jullie keuken leverancier ook de betimmering om de keuken heen?
Ik heb het idee dat die van mij dat niet doet! Hoe ik moet ik in godesnaam dan een koof er om heen krijgen
Bij ons wel, hier hebben we wel zelf om gevraagd. Er zat een meerprijs aan vast, maar die zit voornamelijk in de arbeid, het MDF zit niet in het zicht en heeft niets te dragen dus dat kan heel goedkoop.siemenz schreef op vrijdag 2 oktober 2020 @ 15:05:
Doet jullie keuken leverancier ook de betimmering om de keuken heen?
Ik heb het idee dat die van mij dat niet doet! Hoe ik moet ik in godesnaam dan een koof er om heen krijgen
Afwerking(sauzen) doen we zelf, er werd bij ons geadviseerd om de koof niet te laten stucen vanwege de kwetsbaarheid van het stucwerk icm de looproute naar de garage er vlak naast. After all is een keuken een plek waar veel harde spullen heen en weer gaan (pannen etc), het moet letterlijk tegen een stootje kunnen.
/f/image/FkFisEURd9PwGIpSegtl4cfF.png?f=fotoalbum_large)
/f/image/Fjmpn1kDYVHFavGTgcpslj5j.png?f=fotoalbum_large)
Hier wat screenshots van onze offerte, het lijken 'MDF kolommen' te zijn. Slecht na te trekken of ze die 18,6 m2 aan MDF echt nodig hebben voor onze koof.
[ Voor 6% gewijzigd door 896gerard op 02-10-2020 17:24 ]
Wat is je afmeting van je koof?896gerard schreef op vrijdag 2 oktober 2020 @ 17:23:
[...]
Bij ons wel, hier hebben we wel zelf om gevraagd. Er zat een meerprijs aan vast, maar die zit voornamelijk in de arbeid, het MDF zit niet in het zicht en heeft niets te dragen dus dat kan heel goedkoop.
Afwerking(sauzen) doen we zelf, er werd bij ons geadviseerd om de koof niet te laten stucen vanwege de kwetsbaarheid van het stucwerk icm de looproute naar de garage er vlak naast. After all is een keuken een plek waar veel harde spullen heen en weer gaan (pannen etc), het moet letterlijk tegen een stootje kunnen.
[Afbeelding]
[Afbeelding]
Hier wat screenshots van onze offerte, het lijken 'MDF kolommen' te zijn. Slecht na te trekken of ze die 18,6 m2 aan MDF echt nodig hebben voor onze koof.
Donstil: Je moet kopen wat je wilt hebben. Niet wat je nodig hebt!
De kastenwand is 3,7m bij 2,65m met een keukenblok van 3,5m bij 2,2m erin. Plint van 16,8 cm dacht ik. De kastenwand heeft 1 zijkant in het zicht, zie mijn posts eerder in dit forum.
Franke RVS spoelbak Kubus KBX 210-45
Quooker Quooker PRO3 KFSRVS Losse kraan Fusion Square
Koelkast met vriesvak - Siemens iQ500 - KI82LSD40
Vaatwasser - Siemens iQ500 - SX878D46PE
Combi-stoomoven - Siemens iQ700 - CS856GNB7
Combi-magnetron - Siemens iQ700 - CM836GNB6
Inductieplaat - Siemens iQ500 - ED877FQ25E
En voor 2 Siematic keramiek werkbladen 12mm betalen we € 4.841,84. 1) Eilandblad 1m bij 2,2m en 2) 60 bij 2,2m
Het staat wel op tekening maar niet op de offerte. Ze gaven aan het niet te doen normaal en alleen keukens te plaatsen. Nu het wel op tekening stond twijfelde ikMokum80 schreef op vrijdag 2 oktober 2020 @ 16:10:
[...]
Ja, staat ook vermeld in de bestelling. In de offerte werd het apart vermeld met de kosten van het werk. Maar je kan er ook vanaf zien en het achteraf zelf laten uitvoeren.
Imac 27" i5 + Dell XPS Laptop
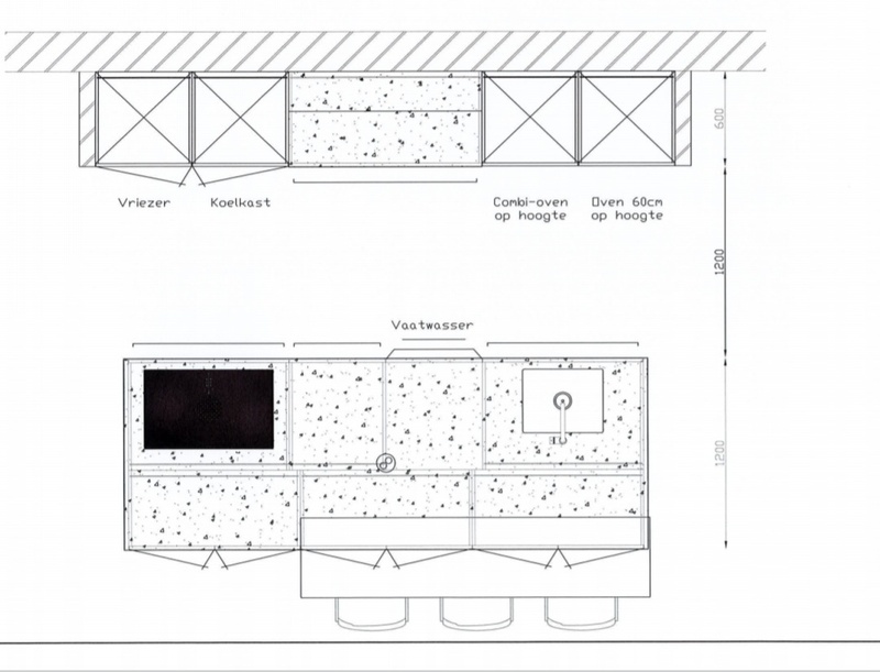
Links drie hoge kasten van 208 cm met daarin respectievelijk een koelkast van 140, wijnkoeler van 90 cm + oven/magnetron combi van 60 en een vriezer van 140. Lage kast met deur en van binnen plankjes van 50. Daarna hoekspoelkast. Vaatwasser. Le Mans kast. En vervolgens 2x 90 cm ladekasten. Waarvan 1 met er op een Bora Pure X. In de tekening staat nog een inbouw afzuigunit overigens. Zijn we later vanaf gestapt.
Meubels: Pronorm Y-line
Matte fronten, (heel) licht grijs
Werkblad 60 x 268 x 306. Diepte 65 (en aan de kant van de kookplaat 70). Hoogte 12 mm. Composiet.
Apparatuur:
Bora Pure Puxa (eerder was dat Siemens iQ 700 kookplaat en iQ 500 afzuigunit) voor dezelfde prijs als een Bora Pure Puxa. Mogelijk kiezen we voor Pure Pura. Dan werd de offerte ca 1000 euro lager.
Vaatwasser Siemens iQ 300 (SN63HX60CN)
Combi-oven Siemens iQ700 Studioline HM836GNB6 60 cm
Koelkast Siemens iQ700 Studioline KI51FSDD0 140 cm
Vriezer Liebherr (Siemens heeft geen inbouw van 140) 140 cm
Wijnklimaatkast Miele KWT6422IG (Siemens heeft geen wijnklimaatkast) 90 cm
Kraan/spoelbak: nog te bepalen maar werden op de offerte meegenomen voor ca 1000 euro. Geen Quooker-wens.
Openstaande punten:
Vaatwasser willen we naar iQ500 SN858D05TE Studioline versie.
Twijfelen nog tussen Pure of Pure X. Voorkeur voor afvoer naar buiten.
Grootste discussiepunt is nog de combi van wijnklimaatkast en oven. Die boven elkaar zitten met een kleine blende er tussen. Twee verschillende merken. Miele heeft geen combi's van 60 voor zover ik zie. Dus dan wellicht 45 nemen. Andere wijnklimaatkast van deze grootte van een merk met ook een oven, zie ik ook niet.
Binnenkort verder aan tafel om uit te werken op details. Genoemde prijs 23.000. Exclusief plaatsing. Toch niet van plan meteen te happen. Dus het daar even op laten staan. Verwacht dat het naar de 20.000 zal kunnen. Prima begin als ik dat zo vergelijk met andere Pronorm Y-line keukens en dan met vrij dure apparaten. De wijnkoeler is 3000 is Miele is niet heel happig op kortingen op inkoop.
Op deze site kun je heel eenvoudig prijzen berekenen. Alle prijzen zijn inzichtelijk dus; was kost een uitsparing, wat kost een extra randafwerking, wat kost een plint etc.
https://keukenbladen.shop/calc/
Wellicht hebben jullie er ook iets aan
@Kapitein Merijn had het er laatst over een Siemens wijnkoeler, dat zou mogelijk nog interessant zijn. Maar kan er bij Siemens zelf nog niets over vinden. Ook niet in de nieuwe brochure.alpeko schreef op zaterdag 3 oktober 2020 @ 16:22:
Een voorzichtige eerste offerte en tekening binnen. Niet uitgespecificeerd meegekregen. Wel alle apparaten op een rijtje. Geen meubels.
***members only***
Links drie hoge kasten van 208 cm met daarin respectievelijk een koelkast van 140, wijnkoeler van 90 cm + oven/magnetron combi van 60 en een vriezer van 140. Lage kast met deur en van binnen plankjes van 50. Daarna hoekspoelkast. Vaatwasser. Le Mans kast. En vervolgens 2x 90 cm ladekasten. Waarvan 1 met er op een Bora Pure X. In de tekening staat nog een inbouw afzuigunit overigens. Zijn we later vanaf gestapt.
Meubels: Pronorm Y-line
Matte fronten, (heel) licht grijs
Werkblad 60 x 268 x 306. Diepte 65 (en aan de kant van de kookplaat 70). Hoogte 12 mm. Composiet.
Apparatuur:
Bora Pure Puxa (eerder was dat Siemens iQ 700 kookplaat en iQ 500 afzuigunit) voor dezelfde prijs als een Bora Pure Puxa. Mogelijk kiezen we voor Pure Pura. Dan werd de offerte ca 1000 euro lager.
Vaatwasser Siemens iQ 300 (SN63HX60CN)
Combi-oven Siemens iQ700 Studioline HM836GNB6 60 cm
Koelkast Siemens iQ700 Studioline KI51FSDD0 140 cm
Vriezer Liebherr (Siemens heeft geen inbouw van 140) 140 cm
Wijnklimaatkast Miele KWT6422IG (Siemens heeft geen wijnklimaatkast) 90 cm
Kraan/spoelbak: nog te bepalen maar werden op de offerte meegenomen voor ca 1000 euro. Geen Quooker-wens.
Openstaande punten:
Vaatwasser willen we naar iQ500 SN858D05TE Studioline versie.
Twijfelen nog tussen Pure of Pure X. Voorkeur voor afvoer naar buiten.
Grootste discussiepunt is nog de combi van wijnklimaatkast en oven. Die boven elkaar zitten met een kleine blende er tussen. Twee verschillende merken. Miele heeft geen combi's van 60 voor zover ik zie. Dus dan wellicht 45 nemen. Andere wijnklimaatkast van deze grootte van een merk met ook een oven, zie ik ook niet.
Binnenkort verder aan tafel om uit te werken op details. Genoemde prijs 23.000. Exclusief plaatsing. Toch niet van plan meteen te happen. Dus het daar even op laten staan. Verwacht dat het naar de 20.000 zal kunnen. Prima begin als ik dat zo vergelijk met andere Pronorm Y-line keukens en dan met vrij dure apparaten. De wijnkoeler is 3000 is Miele is niet heel happig op kortingen op inkoop.
Kapitein Merijn schreef op zondag 13 september 2020 @ 15:41:
[...]
Wijnkoeler komt eraan in 3 verschillende maten geloof ik. Oa. een van 30cm die erg leuk in te bouwen is in een eiland.
Leverbaar vanaf q1 2021 even uit mijn hoofd.
[ Voor 86% gewijzigd door SquareOne op 03-10-2020 17:25 ]
Die Miele (wijn)koelkasten komen toch van Liebherr vandaan (correct me if I’m wrong). Misschien daar kijken voor een betere prijs?alpeko schreef op zaterdag 3 oktober 2020 @ 16:22:
De wijnkoeler is 3000 is Miele is niet heel happig op kortingen op inkoop.
Liebherr verkoopt zelf die maat niet. Vooral onderbouw. Prijs is prima zo. Meer dat de offerte voor de rest me niet tegenviel rekeninghoudend met een flinke post aan apparatuur.Brooky schreef op zaterdag 3 oktober 2020 @ 16:58:
[...]
Die Miele (wijn)koelkasten komen toch van Liebherr vandaan (correct me if I’m wrong). Misschien daar kijken voor een betere prijs?
handige site, kom alleen wel zo'n 600 euro hoger uit dan werkbladenkopen.nlSquareOne schreef op zaterdag 3 oktober 2020 @ 16:37:
Ik was aan het zoeken naar websites voor werkbladen (ceasarstone/silestone/dekton).
Op deze site kun je heel eenvoudig prijzen berekenen. Alle prijzen zijn inzichtelijk dus; was kost een uitsparing, wat kost een extra randafwerking, wat kost een plint etc.
https://keukenbladen.shop/calc/
Wellicht hebben jullie er ook iets aan
Ik was een paar weken geleden in het Inspiratiehuis en daar werd me verteld dat Siemens/Bosch een wijnklimaatkast in de pijplijn heeft zitten die binnenkort beschikbaar moet komen. Dus wellicht even in de gaten houden.alpeko schreef op zaterdag 3 oktober 2020 @ 16:22:
Wijnklimaatkast Miele KWT6422IG (Siemens heeft geen wijnklimaatkast) 90 cm
Was als antwoord op mijn vraag wat er voor productupdates aan zitten te komen qua ovens.
Hij staat al in de nieuwe catalogus zie ik: https://media3.bsh-group....e_2020-2021_totaal-LR.pdfalpeko schreef op zaterdag 3 oktober 2020 @ 17:33:
Thx voor die info. Wellicht ook een optie om daar op te wachten. Levertijden keukens zijn toch flink dus gneoeg tijd voor aanpassingen. Zou het optisch gezien een no go zijn om 2 verschillende merken onder elkaar te plaatsen?
2 merken combineren kan zolang de stijl van de apparaten maar (redelijk) aansluit.
[ Voor 8% gewijzigd door Farmerwood op 03-10-2020 17:48 ]
Die zijn nog al.... grootFarmerwood schreef op zaterdag 3 oktober 2020 @ 17:48:
[...]
Hij staat al in de nieuwe catalogus zie ik: https://media3.bsh-group....e_2020-2021_totaal-LR.pdf
https://home.liebherr.com...l/details/ewtgw-1683.htmlalpeko schreef op zaterdag 3 oktober 2020 @ 17:17:
[...]
Liebherr verkoopt zelf die maat niet. Vooral onderbouw. Prijs is prima zo. Meer dat de offerte voor de rest me niet tegenviel rekeninghoudend met een flinke post aan apparatuur.
Lijkt wel erg op de Miele? Is die dan toch een andere maat?
Ik denk niet dat dit degene zijn die @Kapitein Merijn bedoelde. Deze passen namelijk niet in een eiland...Farmerwood schreef op zaterdag 3 oktober 2020 @ 17:48:
[...]
Hij staat al in de nieuwe catalogus zie ik: https://media3.bsh-group....e_2020-2021_totaal-LR.pdf
2 merken combineren kan zolang de stijl van de apparaten maar (redelijk) aansluit.
Lijkt me idd dezelfde. Dank. Maar lost niet het probleem op van twee verschillende merken onder elkaar. En Liebherr heeft zeker geen ovens. Maar mochten we ze genoeg bij elkaar passen dan lijkt dit wel een goedkopere variant dan een Miele.Brooky schreef op zaterdag 3 oktober 2020 @ 18:22:
[...]
https://home.liebherr.com...l/details/ewtgw-1683.html
Lijkt wel erg op de Miele? Is die dan toch een andere maat?
“BORD IN TUIN”, “AMBASSADEUR”, “LEVERDAG” en “QUOOKER CADEAU”
Er verdween spontaan €3000 van de offerte
Donstil: Je moet kopen wat je wilt hebben. Niet wat je nodig hebt!
Nope, dat zijn de Gaggenau modellen.SquareOne schreef op zaterdag 3 oktober 2020 @ 18:22:
[...]
Ik denk niet dat dit degene zijn die @Kapitein Merijn bedoelde. Deze passen namelijk niet in een eiland...
Even uit mijn hoofd komen er 3-4 nieuwe modellen waaronder 2 onderbouw apparaten.
Untappd: Kapitein_Merijn
Wij waren wel weg van Nolte maar die vragen best hoge prijzen. Ook sturen ze actief naar een kunstof blad en Samsung apparaten....Toppe schreef op zaterdag 3 oktober 2020 @ 18:49:
Voor de mensen die nog wat korting zouden willen bij Nolte moeten even vragen om deze artikelen:
“BORD IN TUIN”, “AMBASSADEUR”, “LEVERDAG” en “QUOOKER CADEAU”
Er verdween spontaan €3000 van de offerte
Wij waren er vandaag (Afspraak om 10:00, liepen weg om 15:00) en er werd écht goed mee gedacht. Werd absoluut nergens op gestuurd qua merk of blad. Rond lunch kregen we ook nog tosti’sLinkser schreef op zaterdag 3 oktober 2020 @ 19:03:
[...]
Wij waren wel weg van Nolte maar die vragen best hoge prijzen. Ook sturen ze actief naar een kunstof blad en Samsung apparaten....
Grappig detail: de man die alle showkeukens intekent liep toevallig in het filiaal binnen en die werd er meteen bij gehaald hoe we de mooiste opstelling zouden krijgen. We wouden een U opstelling met koken tegen de garage wand aan en spoelen onder het raam. We gaan nu spoelen tegen de garage aan en koken op het eiland en de U is verdwenen.
Kwam met het idee voor Bauknecht (qua design wel mooi) maar merkte dat we dit niet echt wouden. Uiteindelijk opnieuw een offerte laten opstellen met de top lijn van AEG.
Qua blad wist hij goed de verschillen en prijs segmenten op te noemen. Uitgekomen op keramiek (Kemie Just Stone werkblad compleet) in het zwart.
Wist ons budget en gaf aan dat dat wel moet lukken zonder gekke consessies te moeten doen. Toen hij €10.000 boven het budget uitkwam moest hij zelf ook even achter z’n oren krabben, had hij niet zien aankomen.
Liet een mooie pop-up zien met de korting die standaard al gegeven wordt. Niet wetende dat ik al had gezien dat ze standaard 30% korting geven op de advies verkoopprijs van de apparatuur. Die korting rekenen we dus al niet mee, hij had dus nog geen euro korting gegeven
Enige concessie die ik heb moeten doen op de keuken is het laten vallen van één hoge vriezer. Dat zijn nu twee lage modellen geworden zodat de oven en combi oven naast elkaar passen. Qua prijs per duurder maar ja, oog wil ook wat.
Wij zijn trouwens uitgekomen op de XL kasten van 90cm hoog!
[ Voor 13% gewijzigd door Toppe op 03-10-2020 19:15 ]
Donstil: Je moet kopen wat je wilt hebben. Niet wat je nodig hebt!
Grappig bij ons kwamen ze ook initieel met 10k boven ons budget, terwijl het in eerste instantie makkelijk zou moeten lukken. Reden was het gekozen blad (hun eigen werkbladen zijn toch goedkoper... maar plastic) en AEG was ook erg duur (Samsung had een hoge korting).Toppe schreef op zaterdag 3 oktober 2020 @ 19:12:
[...]
Wij waren er vandaag (Afspraak om 10:00, liepen weg om 15:00) en er werd écht goed mee gedacht. Werd absoluut nergens op gestuurd qua merk of blad. Rond lunch kregen we ook nog tosti’s
Grappig detail: de man die alle showkeukens intekent liep toevallig in het filiaal binnen en die werd er meteen bij gehaald hoe we de mooiste opstelling zouden krijgen. We wouden een U opstelling met koken tegen de garage wand aan en spoelen onder het raam. We gaan nu spoelen tegen de garage aan en koken op het eiland en de U is verdwenen.
Kwam met het idee voor Bauknecht (qua design wel mooi) maar merkte dat we dit niet echt wouden. Uiteindelijk opnieuw een offerte laten opstellen met de top lijn van AEG.
Qua blad wist hij goed de verschillen en prijs segmenten op te noemen. Uitgekomen op keramiek (Kemie Just Stone werkblad compleet) in het zwart.
Wist ons budget en gaf aan dat dat wel moet lukken zonder gekke consessies te moeten doen. Toen hij €10.000 boven het budget uitkwam moest hij zelf ook even achter z’n oren krabben, had hij niet zien aankomen.
Liet een mooie pop-up zien met de korting die standaard al gegeven wordt. Niet wetende dat ik al had gezien dat ze standaard 30% korting geven op de advies verkoopprijs van de apparatuur. Die korting rekenen we dus al niet mee, hij had dus nog geen euro korting gegeven
Enige concessie die ik heb moeten doen op de keuken is het laten vallen van één hoge vriezer. Dat zijn nu twee lage modellen geworden zodat de oven en combi oven naast elkaar passen. Qua prijs per duurder maar ja, oog wil ook wat.
Wij zijn trouwens uitgekomen op de XL kasten van 90cm hoog!
Het ontwerp was ook niet waar we naar opzoek zijn en dat hebben we toch paar keer laten vallen...
Kan het filiaal zijn geweest al waren ze heel vriendelijk en behulpzaam verder. En de stijl van de kasten zijn ook heel mooi, dus het was wat ons betreft echt heel jammer dat (via de mail) er een nare bijsmaak kwam dat de hoge kosten aan onze keuzes heeft gelegen en dat dit nou net de dingen waren die we tegen het advies in deden.
Toch apart dat een interieur ontwerper bij ons kwa kast prijs de beste offerte geeft. Kasten van ons worden 85cm.
Ons budget is ongeveer 35k.
Daarvoor zijn we op zoek naar een rechte keuken met eiland.
De ruimte waar deze in moet komen is 900x400cm.
De rechte keuken zou ~235 cm hoog en ~480 cm lang worden, als volgt:
- 120cm brede open kast
- 60cm kast (met koelkast, 178cm)
- 60cm servieskast
- 120cm nis voor koffie, incl. twee onderdeurtjes
- 60cm kast met combi stoomoven (met onder en boven een deurtje)
- 60cm kast met wijnkoeler, 2 zones 24 flessen (met onder en boven een deurtje)
- 60cm kast met afvalemmer
- 60cm kast met gootsteen en kokend water kraan
- 60cm kast met vaatwasser
- 120cm kast met kookplaat
- verhoogde bar 240x50cm (liefst van hout)

Voor werkblad kijken we naar dekton
- voor eiland 300x100cm ~€7000
- voor de nis 120x60cm ~€1000
- 2000 Stoomoven kombi
- 2200 Wijn klimaatkast
- 1200 hoge koelkast
- 2500 inductie met afzuiging
- 1000 vaatwasser
- 1000 quooker
Daardoor blijft er ongeveer 14k over voor de corpus en de fronten.
Alle keuken boeren geven aan dat je dan op kunststof fronten uit komt.
Waardoor komt dit? Is de keuken simpelweg te groot? Is ons budget te laag?
En maakt het eigenlijk uit? We hebben nu een 'eenvoudige' Bruynzeel met hoogglans gelakt MDF. Redelijk goed dus. Ga ik van die kunststof frontjes van een van bovengenoemde keukenleveranciers merken dat de kwaliteit minder is?
Edit: ter aanvulling, bovenstaande keuken kan in ons budget met fronten in prijsgroep 1 (kunststof). Prijsgroep 7 (hout fineer) zou de keuken +/- €8000 duurder maken.
Wat is de reden dat mensen zoveel meer betalen voor hout? Is er een verschil in kwaliteitsbeleving?
[ Voor 6% gewijzigd door JackBol op 03-10-2020 21:30 ]
De actuele opbrengst van mijn Tibber Homevolt
Even een berekening gemaakt, maar toch een paar 100 eur duurder dan 123werkbladen. Die zijn trouwens ook erg snel met het uitbrengen van een offerte.SquareOne schreef op zaterdag 3 oktober 2020 @ 16:37:
Ik was aan het zoeken naar websites voor werkbladen (ceasarstone/silestone/dekton).
Op deze site kun je heel eenvoudig prijzen berekenen. Alle prijzen zijn inzichtelijk dus; was kost een uitsparing, wat kost een extra randafwerking, wat kost een plint etc.
https://keukenbladen.shop/calc/
Wellicht hebben jullie er ook iets aan
[...]
@Kapitein Merijn had het er laatst over een Siemens wijnkoeler, dat zou mogelijk nog interessant zijn. Maar kan er bij Siemens zelf nog niets over vinden. Ook niet in de nieuwe brochure.
[...]
En ook erg sterk in de after sales.Rostares schreef op zaterdag 3 oktober 2020 @ 21:41:
[...]
Even een berekening gemaakt, maar toch een paar 100 eur duurder dan 123werkbladen. Die zijn trouwens ook erg snel met het uitbrengen van een offerte.
Ben ondertussen al 3 keer gebeld in anderhalve maand tijd om aan te geen dat ik geen gebruik ga maken van hen offerte.
PSN: Flix20-NL
Maakt het nog uit of je bij een flagship store of bij een dealer je keuken haalt, qua prijs (lees korting) kwaliteit, service?
De actuele opbrengst van mijn Tibber Homevolt
Eens, lijkt niet de goedkoopste. Maar ik twijfel zelf tussen verschillende bladen van Silestone en Ceasarstone.Rostares schreef op zaterdag 3 oktober 2020 @ 21:41:
[...]
Even een berekening gemaakt, maar toch een paar 100 eur duurder dan 123werkbladen. Die zijn trouwens ook erg snel met het uitbrengen van een offerte.
Via die website kun je zonder iemand ‘lastig’ te vallen makkelijk inzichtelijk kijken wat de verschillen zijn in kosten:).
Zo is het wat makkelijker wegstrepen tussen bladen die ik net zo mooi vind maar waarvan eentje flink duurder is.
Oh dat viel bij mij wel mee. Heb de afgelopen paar maanden meerdere offertes aangevraagd, beetje aan het twijfelen geweest. Maar eigenlijk nooit last gehad van opdringerige verkopers.Flix20 schreef op zaterdag 3 oktober 2020 @ 21:42:
[...]
En ook erg sterk in de after sales.
Ben ondertussen al 3 keer gebeld in anderhalve maand tijd om aan te geen dat ik geen gebruik ga maken van hen offerte.
Inmiddels dan ook het blad daar besteld. We gaan het ervaren :-)
Goeie tip! Ik wil voor de oven/magnetron/warmhoudlade voor Bosch gaan (Carbon black vind ik er echt strak uit zien), maar voor die vlakke integreerbaarheid is het best het overwegen waard om voor de Siemens te gaan!Verwijderd schreef op woensdag 30 september 2020 @ 21:15:
[...]
Ik zou voor de Siemens variant gaan, die is namelijk verkrijgbaar als vlakgeintegreerd. Da's mooierVerder is die hetzelfde.
Dit was ook mijn eerste keus om de 4 siemens apparaten te halen voor de extended garantie. Maar uitendelijk toch de Bora PUXU gekozen op aanraden van 2 tweakers hier. Bora is moderner en een stapje verder heb ik begrepen.
De Bora X PURE is geen optie, het gekozen kastje is 80cm breed en daar past de Bora niet in (minimaal 90)
V&A aangeboden: LSI 9207-8i (IBM M5110) geflashed naar IT MODE
Heb je al een voorkeur qua merk trouwens ? Wij twijfelde ook tussen die 3 en het is uiteindelijk een next125 geworden hahaJackBol schreef op zaterdag 3 oktober 2020 @ 21:20:
Ondertussen zijn we bij Bulthaup, Leicht, Siematic en Poggenpohl geweest.
Ons budget is ongeveer 35k.
Daarvoor zijn we op zoek naar een rechte keuken met eiland.
De ruimte waar deze in moet komen is 900x400cm.
De rechte keuken zou ~235 cm hoog en ~480 cm lang worden, als volgt:Eiland:
- 120cm brede open kast
- 60cm kast (met koelkast, 178cm)
- 60cm servieskast
- 120cm nis voor koffie, incl. twee onderdeurtjes
- 60cm kast met combi stoomoven (met onder en boven een deurtje)
- 60cm kast met wijnkoeler, 2 zones 24 flessen (met onder en boven een deurtje)
Als indicatie krijg ik ~€2500 voor een dergelijke bar (maatwerk).
- 60cm kast met afvalemmer
- 60cm kast met gootsteen en kokend water kraan
- 60cm kast met vaatwasser
- 120cm kast met kookplaat
- verhoogde bar 240x50cm (liefst van hout)
[Afbeelding].
Voor werkblad kijken we naar dektonApparatuur (Siemens/Bosch/Bora niveau) ~€10000
- voor eiland 300x100cm ~€7000
- voor de nis 120x60cm ~€1000
Montage ~€2500
- 2000 Stoomoven kombi
- 2200 Wijn klimaatkast
- 1200 hoge koelkast
- 2500 inductie met afzuiging
- 1000 vaatwasser
- 1000 quooker
Daardoor blijft er ongeveer 14k over voor de corpus en de fronten.
Alle keuken boeren geven aan dat je dan op kunststof fronten uit komt.
Waardoor komt dit? Is de keuken simpelweg te groot? Is ons budget te laag?
En maakt het eigenlijk uit? We hebben nu een 'eenvoudige' Bruynzeel met hoogglans gelakt MDF. Redelijk goed dus. Ga ik van die kunststof frontjes van een van bovengenoemde keukenleveranciers merken dat de kwaliteit minder is?
Edit: ter aanvulling, bovenstaande keuken kan in ons budget met fronten in prijsgroep 1 (kunststof). Prijsgroep 7 (hout fineer) zou de keuken +/- €8000 duurder maken.
Wat is de reden dat mensen zoveel meer betalen voor hout? Is er een verschil in kwaliteitsbeleving?
Imac 27" i5 + Dell XPS Laptop
Verwijderd
Ja, alleen voor de extra garantie kom je dan misschien niet aan 4 Bosch apparaten. Ik heb Bosch destijds gevraagd of ze die kookplaat van hun ook vlak integreerbaar gaan leveren, en daar hadden ze in 2021 iig geen plannen toe.Solomon schreef op zaterdag 3 oktober 2020 @ 21:59:
[...]
Goeie tip! Ik wil voor de oven/magnetron/warmhoudlade voor Bosch gaan (Carbon black vind ik er echt strak uit zien), maar voor die vlakke integreerbaarheid is het best het overwegen waard om voor de Siemens te gaan!
Vreemd, gezien het eigenlijk dezelfde kookplaat is als die van Siemens.
Van Leicht kregen we het beste gevoel.siemenz schreef op zaterdag 3 oktober 2020 @ 22:21:
[...]
Heb je al een voorkeur qua merk trouwens ? Wij twijfelde ook tussen die 3 en het is uiteindelijk een next125 geworden haha
Wat is de reden dat het next125 werd?
En wat voor frontjes hebben jullie voor gekozen en waarom?
De actuele opbrengst van mijn Tibber Homevolt
Ik kom met m'n oven, magnetron, warmhoudlade, koelkast, vriezer en vaatwasser wel aan die 5 apparaten, maar ergens vind ik het schijtirritant dat ik het niet krijg op die kookplaat van bijna 3000 euroVerwijderd schreef op zaterdag 3 oktober 2020 @ 22:24:
[...]
Ja, alleen voor de extra garantie kom je dan misschien niet aan 4 Bosch apparaten. Ik heb Bosch destijds gevraagd of ze die kookplaat van hun ook vlak integreerbaar gaan leveren, en daar hadden ze in 2021 iig geen plannen toe.
Vreemd, gezien het eigenlijk dezelfde kookplaat is als die van Siemens.
V&A aangeboden: LSI 9207-8i (IBM M5110) geflashed naar IT MODE
Hier zijn ze gisteren wezen plaatsen, 2 ‘oostblokkers’ waarvan de een gebrekkig Nederlands kon en de ander volgens mij geen woordRostares schreef op zaterdag 3 oktober 2020 @ 21:51:
[...]
Oh dat viel bij mij wel mee. Heb de afgelopen paar maanden meerdere offertes aangevraagd, beetje aan het twijfelen geweest. Maar eigenlijk nooit last gehad van opdringerige verkopers.
Inmiddels dan ook het blad daar besteld. We gaan het ervaren :-)
[ Voor 7% gewijzigd door Bakema op 04-10-2020 08:17 ]
Kapitein Merijn in "Het Grote Keuken topic: verkopers, kwaliteit, prijs - Deel 3"
De verwachte leverdata hebben ze echter niet gehaald. Zou nu Q1 2021 worden, naar ik heb begrepen.
[ Voor 18% gewijzigd door millerman_sf op 04-10-2020 08:20 ]
Wij vonden bij bulthaup (b1) de keuzes was te mager in kleuren en soorten kastjes etc,JackBol schreef op zaterdag 3 oktober 2020 @ 22:42:
[...]
Van Leicht kregen we het beste gevoel.
Wat is de reden dat het next125 werd?
En wat voor frontjes hebben jullie voor gekozen en waarom?
Poggenpoll durfde ik niet vanwege faillissement(al weer paar maanden geleden). De siematic slx vond mijn vriendin te protserig.
Kleuren van onze keuken staan nog niet vast maar we hebben nu zwart Fenix kastenwand en wit fenix eiland.
Ik moet wel zeggen dat mijn gewenste budget ca 5-10k lager ligt dan dat van jou maar dat kunnen ook apparatuur keuzes zijn.
Imac 27" i5 + Dell XPS Laptop
Bij bulthaup geslaagd met een combinatie van kunststof en fineer. Fineer vond ik tov houtlook (oa poggenpohl) een hele andere uitstraling hebben. Kunststof/laminaat van bulthaup vond ik ook mooier dan bij poggenpohl. Kwalitatief denk ik dat fineer, maar ook hoogglans, gevoeliger is dan kunststof, dus dat het vooral de looks zijn. Ik ben erg tevreden over het totaalpakket.JackBol schreef op zaterdag 3 oktober 2020 @ 21:20:
Ondertussen zijn we bij Bulthaup, Leicht, Siematic en Poggenpohl geweest.
Ons budget is ongeveer 35k.
Daarvoor zijn we op zoek naar een rechte keuken met eiland.
De ruimte waar deze in moet komen is 900x400cm.
De rechte keuken zou ~235 cm hoog en ~480 cm lang worden, als volgt:Eiland:
- 120cm brede open kast
- 60cm kast (met koelkast, 178cm)
- 60cm servieskast
- 120cm nis voor koffie, incl. twee onderdeurtjes
- 60cm kast met combi stoomoven (met onder en boven een deurtje)
- 60cm kast met wijnkoeler, 2 zones 24 flessen (met onder en boven een deurtje)
Als indicatie krijg ik ~€2500 voor een dergelijke bar (maatwerk).
- 60cm kast met afvalemmer
- 60cm kast met gootsteen en kokend water kraan
- 60cm kast met vaatwasser
- 120cm kast met kookplaat
- verhoogde bar 240x50cm (liefst van hout)
[Afbeelding].
Voor werkblad kijken we naar dektonApparatuur (Siemens/Bosch/Bora niveau) ~€10000
- voor eiland 300x100cm ~€7000
- voor de nis 120x60cm ~€1000
Montage ~€2500
- 2000 Stoomoven kombi
- 2200 Wijn klimaatkast
- 1200 hoge koelkast
- 2500 inductie met afzuiging
- 1000 vaatwasser
- 1000 quooker
Daardoor blijft er ongeveer 14k over voor de corpus en de fronten.
Alle keuken boeren geven aan dat je dan op kunststof fronten uit komt.
Waardoor komt dit? Is de keuken simpelweg te groot? Is ons budget te laag?
En maakt het eigenlijk uit? We hebben nu een 'eenvoudige' Bruynzeel met hoogglans gelakt MDF. Redelijk goed dus. Ga ik van die kunststof frontjes van een van bovengenoemde keukenleveranciers merken dat de kwaliteit minder is?
Edit: ter aanvulling, bovenstaande keuken kan in ons budget met fronten in prijsgroep 1 (kunststof). Prijsgroep 7 (hout fineer) zou de keuken +/- €8000 duurder maken.
Wat is de reden dat mensen zoveel meer betalen voor hout? Is er een verschil in kwaliteitsbeleving?
Je kan jezelf beter afvragen waarom je dat lijstje merken hebt samengesteld. Ik zie 0 redenen in je post waarom je juist op die 4 merken bent gekomen. Zijn allemaal merken die zichzelf wat hoger positioneren in de markt, maar de uitstraling is nogal verschillend. Afmetingen zijn standaard, en je noemt geen enkele feature die juist die merken hebben welke een reden zouden kunnen zijn om 1 van die 4 te kiezen.JackBol schreef op zaterdag 3 oktober 2020 @ 21:20:
Ondertussen zijn we bij Bulthaup, Leicht, Siematic en Poggenpohl geweest.
Ons budget is ongeveer 35k.
Daarvoor zijn we op zoek naar een rechte keuken met eiland.
De ruimte waar deze in moet komen is 900x400cm.
De rechte keuken zou ~235 cm hoog en ~480 cm lang worden, als volgt:Eiland:
- 120cm brede open kast
- 60cm kast (met koelkast, 178cm)
- 60cm servieskast
- 120cm nis voor koffie, incl. twee onderdeurtjes
- 60cm kast met combi stoomoven (met onder en boven een deurtje)
- 60cm kast met wijnkoeler, 2 zones 24 flessen (met onder en boven een deurtje)
Als indicatie krijg ik ~€2500 voor een dergelijke bar (maatwerk).
- 60cm kast met afvalemmer
- 60cm kast met gootsteen en kokend water kraan
- 60cm kast met vaatwasser
- 120cm kast met kookplaat
- verhoogde bar 240x50cm (liefst van hout)
[Afbeelding].
Voor werkblad kijken we naar dektonApparatuur (Siemens/Bosch/Bora niveau) ~€10000
- voor eiland 300x100cm ~€7000
- voor de nis 120x60cm ~€1000
Montage ~€2500
- 2000 Stoomoven kombi
- 2200 Wijn klimaatkast
- 1200 hoge koelkast
- 2500 inductie met afzuiging
- 1000 vaatwasser
- 1000 quooker
Daardoor blijft er ongeveer 14k over voor de corpus en de fronten.
Alle keuken boeren geven aan dat je dan op kunststof fronten uit komt.
Waardoor komt dit? Is de keuken simpelweg te groot? Is ons budget te laag?
En maakt het eigenlijk uit? We hebben nu een 'eenvoudige' Bruynzeel met hoogglans gelakt MDF. Redelijk goed dus. Ga ik van die kunststof frontjes van een van bovengenoemde keukenleveranciers merken dat de kwaliteit minder is?
Edit: ter aanvulling, bovenstaande keuken kan in ons budget met fronten in prijsgroep 1 (kunststof). Prijsgroep 7 (hout fineer) zou de keuken +/- €8000 duurder maken.
Wat is de reden dat mensen zoveel meer betalen voor hout? Is er een verschil in kwaliteitsbeleving?
Of is het een puur gevoel een premium merk keuken te willen? Kan natuurlijk, maar dan moet je idd accepteren dat je dan in prijsgroep 1 terechtkomt.
Iets om over na te denken: besef je dat je de hoek in je hoekspoelkast bijna niet kunt bereiken omdat je spoelbak, afvoer en wateraansluitingen etc in de weg zitten. Je kunt overwegen een gewone spoelkast te nemen, en dan je hoekkast te draaien. Nog steeds niet ideaal, maar dan kun je in ieder geval bij je spullen als het moet.alpeko schreef op zaterdag 3 oktober 2020 @ 16:22:
Links drie hoge kasten van 208 cm met daarin respectievelijk een koelkast van 140, wijnkoeler van 90 cm + oven/magnetron combi van 60 en een vriezer van 140. Lage kast met deur en van binnen plankjes van 50. Daarna hoekspoelkast. Vaatwasser. Le Mans kast. En vervolgens 2x 90 cm ladekasten. Waarvan 1 met er op een Bora Pure X. In de tekening staat nog een inbouw afzuigunit overigens. Zijn we later vanaf gestapt.
Ik had initieel hetzelfde probleem (hoekspoelkast) en heb het dus ook gedraaid.
Eerste orientatie gebaseerd op bekende namen.Streamz schreef op zondag 4 oktober 2020 @ 09:16:
[...]
Je kan jezelf beter afvragen waarom je dat lijstje merken hebt samengesteld.
Ik woon in Amsterdam en ze hebben flagship stores in de buurtIk zie 0 redenen in je post waarom je juist op die 4 merken bent gekomen.
De uitstraling is inderdaad verschillend. Bulthaup steekt er helemaal uit. Poggenpohl heeft wat grappige dingetjes. Leicht en Siematic komen qua uitstraling bij elkaar in de buurt.Zijn allemaal merken die zichzelf wat hoger positioneren in de markt, maar de uitstraling is nogal verschillend.
Goede vraag, wat is een reden om een topmerk te kiezen? Alleen de naam? Lijkt me niet dat je daar dezelfde kwaliteit keuken koopt als bij het middensegment? (Ik weet het niet, nog altijd aan het orienteren).Afmetingen zijn standaard, en je noemt geen enkele feature die juist die merken hebben welke een reden zouden kunnen zijn om 1 van die 4 te kiezen.
Maar ik weet nog helemaal niet wat prijsgroepen inhouden. Is prijsgroep 1 slecht?Of is het een puur gevoel een premium merk keuken te willen? Kan natuurlijk, maar dan moet je idd accepteren dat je dan in prijsgroep 1 terechtkomt.
Zou het verstandig zijn om iets lager in de 'keukenboer'-boom te winkelen en dan iets in PG6 uit te zoeken?
Ik weet oprecht niet waar ik tussen kies.
De actuele opbrengst van mijn Tibber Homevolt
Wat ik er nu van begrijp is dat kunststof inderdaad wat vergevingsgezinder is dan fineer en hout.drfrisbee schreef op zondag 4 oktober 2020 @ 09:01:
[...]
Bij bulthaup geslaagd met een combinatie van kunststof en fineer. Fineer vond ik tov houtlook (oa poggenpohl) een hele andere uitstraling hebben. Kunststof/laminaat van bulthaup vond ik ook mooier dan bij poggenpohl. Kwalitatief denk ik dat fineer, maar ook hoogglans, gevoeliger is dan kunststof, dus dat het vooral de looks zijn. Ik ben erg tevreden over het totaalpakket.
Maar van hout ruik je echt dat het hout is. Ik vraag me af hoe dat vertaald naar de werkelijkheid als hij dadelijk in de keuken staat.
De actuele opbrengst van mijn Tibber Homevolt
Klopt. Dat was eerst ons uitgangspunt maar gaf grotere nadelen. Een geaccepteerd nadeel dus. Het is maar een spoelkast. Draaien levert ook ruimteverlies op. Aan twee Le Mans kasten hebben we ook niet veel en dan kan de vaatwasser niet naast de spoelkast. Was de enige optie om die twee naast elkaar te zetten. Idealiter hadden we de kraan in het midden van het raam gehad. Maar dan past er geen vaatwasser naast.lizard87 schreef op zondag 4 oktober 2020 @ 09:21:
[...]
Iets om over na te denken: besef je dat je de hoek in je hoekspoelkast bijna niet kunt bereiken omdat je spoelbak, afvoer en wateraansluitingen etc in de weg zitten. Je kunt overwegen een gewone spoelkast te nemen, en dan je hoekkast te draaien. Nog steeds niet ideaal, maar dan kun je in ieder geval bij je spullen als het moet.
Ik had initieel hetzelfde probleem (hoekspoelkast) en heb het dus ook gedraaid.
Niet, je ruikt het niet, ik voel en zie het wel. Maar je ziet het. Pg1 tm 6 maakt kwalitatief niet veel uit. Bijv leer —> hoe duurder hoe kwetsbaarder (van de meubelwinkel gehoord).JackBol schreef op zondag 4 oktober 2020 @ 09:23:
[...]
Wat ik er nu van begrijp is dat kunststof inderdaad wat vergevingsgezinder is dan fineer en hout.
Maar van hout ruik je echt dat het hout is. Ik vraag me af hoe dat vertaald naar de werkelijkheid als hij dadelijk in de keuken staat.
Kwalitatief zijn het ook de betere merken. Tuurlijk betaal je voor een premium merk voor het merk, duurder personeel, service etc. Maar er is ook echt een stukje verschil in kwaliteit en afwerking. Neem je een merk dat iets minder premium is kan je je afvragen hoe groot dit verschil is en of jij het merkt, maar ik vind het niet enkel design en flexibiliteit.
Daarnaast denk ik dat het aan te raden is een middenklasse ernaast te zetten en bij de voorkeursmerken ook gewoon te vragen naar de verschillen/onderscheidende kenmerken/waarom voor hun te kiezen.
Tristar kan volledig aangepast worden op onze wensen. Zo besproken we een plint van 8cm met een werkhoogte van 96 cm, de korpus wordt hierop op maat gemaakt. We kunnen bij de leverancier in België een hardstenen keukenblad uitkiezen en daarna de kleur van de keuken bepalen, de kasten kunnen in elke mogelijke kleur gespoten worden. In het eiland worden de kasten aan de werkkant 75cm diep en onder de bar 45 cm.
Daar zijn we allemaal heel enthousiast over. In de gesprekken is geen enkele keer gezegd dat iets niet kan. Wel konden ze de door ons gewenste apparatuur niet leveren dus we kunnen nu 5 x Siemens bij de keukenloods bestellen en betalen dan 100 euro inbouwkosten per apparaat.
:strip_exif()/f/image/I2R9h9kegjxgJgyYi7CIfpmx.jpg?f=fotoalbum_large)
:strip_exif()/f/image/iBzu1pPgrJHmlZu3meMJWAbO.jpg?f=fotoalbum_large)
:strip_exif()/f/image/IUfXW33IPfHwQ3BoDynFysH4.jpg?f=fotoalbum_large)
De kasten - € 11.000
Werkbladen zit nu in Blue Labrador - € 5.500
Apparatuur en accessoires - € 7.500
Dit is de Quooker Cube, Bora X, een wasbak en een Twist.
Montage kosten zijn aan de hoge kant, € 3.000.
Dit lijstje apparatuur van de Keukenloods vragen ze € 5.000 voor:
:strip_exif()/f/image/hZd2ekGN2BP0v5MSUiRVNdED.jpg?f=fotoalbum_large)
Totaal kost deze keuken dus € 32.000. Iemand die hier een mening over heeft
Alleen een praktische tip, ik weet niet of je er over nagedacht hebt. Ik ga er wel even vanuit dat je woonkamer vanaf rechts komt (tussen eiland en muur door). Ik kan dat niet helemaal opmaken uit je afbeeldingen.Dengra schreef op zondag 4 oktober 2020 @ 09:43:
Wij hebben na een behoorlijke wachttijd een uitgewerkte offerte van Schoonhoven Keukens ontvangen. Dit is een interieurbouwer die ook Tristar levert. Gezien ons budget hebben we offerte voor Tristar gekregen.
Tristar kan volledig aangepast worden op onze wensen. Zo besproken we een plint van 8cm met een werkhoogte van 96 cm, de korpus wordt hierop op maat gemaakt. We kunnen bij de leverancier in België een hardstenen keukenblad uitkiezen en daarna de kleur van de keuken bepalen, de kasten kunnen in elke mogelijke kleur gespoten worden. In het eiland worden de kasten aan de werkkant 75cm diep en onder de bar 45 cm.
Daar zijn we allemaal heel enthousiast over. In de gesprekken is geen enkele keer gezegd dat iets niet kan. Wel konden ze de door ons gewenste apparatuur niet leveren dus we kunnen nu 5 x Siemens bij de keukenloods bestellen en betalen dan 100 euro inbouwkosten per apparaat.
[Afbeelding]
[Afbeelding]
[Afbeelding]
De kasten - € 11.000
Werkbladen zit nu in Blue Labrador - € 5.500
Apparatuur en accessoires - € 7.500
Dit is de Quooker Cube, Bora X, een wasbak en een Twist.
Montage kosten zijn aan de hoge kant, € 3.000.
Dit lijstje apparatuur van de Keukenloods vragen ze € 5.000 voor:
[Afbeelding]
Totaal kost deze keuken dus € 32.000. Iemand die hier een mening over heeft?
Wij hebben eenzelfde keuken alleen hebben wij de koelkast helemaal rechts zitten en de combi naast de vriezer bij de kookplaat. Je loopt namelijk snel naar je koelkast voor wat drinken en in jouw opstelling moet je de 'hele' keuken door. De combi heb je vaak juist nodig als je wat ontdooit en daarom zit die bij ons naast de vriezer en weer dicht bij de kookplaat.
Mocht je deze opstelling mooier vinden, dan zou ik het gewoon houden. Het is maar een klein voordeeltje
Waarom zitten de kookplaten bij eilanden vaak op de hoek? Is het niet handiger als je aan beide kanten werkruimte hebt en eventuele spetters?Dengra schreef op zondag 4 oktober 2020 @ 09:43:
Wij hebben na een behoorlijke wachttijd een uitgewerkte offerte van Schoonhoven Keukens ontvangen. Dit is een interieurbouwer die ook Tristar levert. Gezien ons budget hebben we offerte voor Tristar gekregen.
Tristar kan volledig aangepast worden op onze wensen. Zo besproken we een plint van 8cm met een werkhoogte van 96 cm, de korpus wordt hierop op maat gemaakt. We kunnen bij de leverancier in België een hardstenen keukenblad uitkiezen en daarna de kleur van de keuken bepalen, de kasten kunnen in elke mogelijke kleur gespoten worden. In het eiland worden de kasten aan de werkkant 75cm diep en onder de bar 45 cm.
Daar zijn we allemaal heel enthousiast over. In de gesprekken is geen enkele keer gezegd dat iets niet kan. Wel konden ze de door ons gewenste apparatuur niet leveren dus we kunnen nu 5 x Siemens bij de keukenloods bestellen en betalen dan 100 euro inbouwkosten per apparaat.
[Afbeelding]
[Afbeelding]
[Afbeelding]
De kasten - € 11.000
Werkbladen zit nu in Blue Labrador - € 5.500
Apparatuur en accessoires - € 7.500
Dit is de Quooker Cube, Bora X, een wasbak en een Twist.
Montage kosten zijn aan de hoge kant, € 3.000.
Dit lijstje apparatuur van de Keukenloods vragen ze € 5.000 voor:
[Afbeelding]
Totaal kost deze keuken dus € 32.000. Iemand die hier een mening over heeft?
Hier stond een link voor een Goldcard 1 jaar gratis + 20.000 punten.
omdat veel mensen willen koken en spoelen op het eiland.Morpheusk schreef op zondag 4 oktober 2020 @ 11:01:
[...]
Waarom zitten de kookplaten bij eilanden vaak op de hoek? Is het niet handiger als je aan beide kanten werkruimte hebt en eventuele spetters?
Je kan dit overigens wel oplossen door een 120cm la eronder te plaatsen, of een apothekerskast van 30 en dan een la van 90
Imac 27" i5 + Dell XPS Laptop
Mooie keuken hoor! Wij zij gister bij Bemmel & Kroon geweest en hebben een vergelijkbare opstelling (ik heb nog geen tekeningen, hopelijk morgen) en vergelijkbare apparatuur. Wij komen op een bedrag van 20,5k (zonder montage, dat is nog 1,5k). Wel hebben wij geen Bora X, wat natuurlijk €1k scheelt.Dengra schreef op zondag 4 oktober 2020 @ 09:43:
Wij hebben na een behoorlijke wachttijd een uitgewerkte offerte van Schoonhoven Keukens ontvangen. Dit is een interieurbouwer die ook Tristar levert. Gezien ons budget hebben we offerte voor Tristar gekregen.
Tristar kan volledig aangepast worden op onze wensen. Zo besproken we een plint van 8cm met een werkhoogte van 96 cm, de korpus wordt hierop op maat gemaakt. We kunnen bij de leverancier in België een hardstenen keukenblad uitkiezen en daarna de kleur van de keuken bepalen, de kasten kunnen in elke mogelijke kleur gespoten worden. In het eiland worden de kasten aan de werkkant 75cm diep en onder de bar 45 cm.
Daar zijn we allemaal heel enthousiast over. In de gesprekken is geen enkele keer gezegd dat iets niet kan. Wel konden ze de door ons gewenste apparatuur niet leveren dus we kunnen nu 5 x Siemens bij de keukenloods bestellen en betalen dan 100 euro inbouwkosten per apparaat.
[Afbeelding]
[Afbeelding]
[Afbeelding]
De kasten - € 11.000
Werkbladen zit nu in Blue Labrador - € 5.500
Apparatuur en accessoires - € 7.500
Dit is de Quooker Cube, Bora X, een wasbak en een Twist.
Montage kosten zijn aan de hoge kant, € 3.000.
Dit lijstje apparatuur van de Keukenloods vragen ze € 5.000 voor:
[Afbeelding]
Totaal kost deze keuken dus € 32.000. Iemand die hier een mening over heeft?
Dus wellicht dat je offerte nog wat aan de hoge kant is.
Gezien de opstelling vind ik het vrij prijzig.Dengra schreef op zondag 4 oktober 2020 @ 09:43:
Wij hebben na een behoorlijke wachttijd een uitgewerkte offerte van Schoonhoven Keukens ontvangen. Dit is een interieurbouwer die ook Tristar levert. Gezien ons budget hebben we offerte voor Tristar gekregen.
Tristar kan volledig aangepast worden op onze wensen. Zo besproken we een plint van 8cm met een werkhoogte van 96 cm, de korpus wordt hierop op maat gemaakt. We kunnen bij de leverancier in België een hardstenen keukenblad uitkiezen en daarna de kleur van de keuken bepalen, de kasten kunnen in elke mogelijke kleur gespoten worden. In het eiland worden de kasten aan de werkkant 75cm diep en onder de bar 45 cm.
Daar zijn we allemaal heel enthousiast over. In de gesprekken is geen enkele keer gezegd dat iets niet kan. Wel konden ze de door ons gewenste apparatuur niet leveren dus we kunnen nu 5 x Siemens bij de keukenloods bestellen en betalen dan 100 euro inbouwkosten per apparaat.
[Afbeelding]
[Afbeelding]
[Afbeelding]
De kasten - € 11.000
Werkbladen zit nu in Blue Labrador - € 5.500
Apparatuur en accessoires - € 7.500
Dit is de Quooker Cube, Bora X, een wasbak en een Twist.
Montage kosten zijn aan de hoge kant, € 3.000.
Dit lijstje apparatuur van de Keukenloods vragen ze € 5.000 voor:
[Afbeelding]
Totaal kost deze keuken dus € 32.000. Iemand die hier een mening over heeft?
mijn keuken heeft bijna dezelfde opstelling en ' betere ' apparatuur.. Je blad is wel wat duurder (maar ook ander materiaal).
Imac 27" i5 + Dell XPS Laptop
Dank voor je reactie. Nee, de woonkamer zit links.Eypo schreef op zondag 4 oktober 2020 @ 10:59:
[...]
Alleen een praktische tip, ik weet niet of je er over nagedacht hebt. Ik ga er wel even vanuit dat je woonkamer vanaf rechts komt (tussen eiland en muur door). Ik kan dat niet helemaal opmaken uit je afbeeldingen.
Wij hebben eenzelfde keuken alleen hebben wij de koelkast helemaal rechts zitten en de combi naast de vriezer bij de kookplaat. Je loopt namelijk snel naar je koelkast voor wat drinken en in jouw opstelling moet je de 'hele' keuken door. De combi heb je vaak juist nodig als je wat ontdooit en daarom zit die bij ons naast de vriezer en weer dicht bij de kookplaat.
Mocht je deze opstelling mooier vinden, dan zou ik het gewoon houden. Het is maar een klein voordeeltje
Ik zit nog even te denken om het symmetrisch te maken door dan de vriezer rechts te plaatsen want want je hebt wel een punt met ontdooien en de magnetron maar ik geloof dat ik het zo mooier vind. Ik ben bereid om 3 meter te lopen om te ontdooien
Wij hebben een relatief klein eiland van 200cm. Als ik de Bora dan in het midden ga plaatsen krijg je kastjes van 50cm aan de buitenkanten, dat vind ik optisch niet mooi.Morpheusk schreef op zondag 4 oktober 2020 @ 11:01:
[...]
Waarom zitten de kookplaten bij eilanden vaak op de hoek? Is het niet handiger als je aan beide kanten werkruimte hebt en eventuele spetters?
Daarnaast zijn 3 kasten natuurlijk weer duurder dan 2.
Heb nu 2 lades van 100cm ingetekend. Zou nog naar 120 en 80 toe kunnen maar ook dat is optisch denk ik niet fraai.
Wij hebben nu ook de kookplaat op een hoek en de spoelbak op een andere hoek en ervaring leert: Niet handig voor ons.Morpheusk schreef op zondag 4 oktober 2020 @ 11:01:
[...]
Waarom zitten de kookplaten bij eilanden vaak op de hoek? Is het niet handiger als je aan beide kanten werkruimte hebt en eventuele spetters?
Bij de nieuwe keuken kwamen we uit op een U opstelling en gister hebben ze ons kunnen overtuigen door een los eiland te nemen... dat wordt zoals hieronder:
/f/image/csAeJiajbf9XqPnNHDvAe72I.png?f=fotoalbum_large)
Donstil: Je moet kopen wat je wilt hebben. Niet wat je nodig hebt!
Met welke argumenten hebben jullie je laten overtuigen?Toppe schreef op zondag 4 oktober 2020 @ 11:38:
[...]
Wij hebben nu ook de kookplaat op een hoek en de spoelbak op een andere hoek en ervaring leert: Niet handig voor ons.
Bij de nieuwe keuken kwamen we uit op een U opstelling en gister hebben ze ons kunnen overtuigen door een los eiland te nemen... dat wordt zoals hieronder:
[Afbeelding]
Een L-opstelling in die ook (+3 hoge kasten) is in dit geval toch veel ruimtelijker?
Is er nog voldoende ruimte voor een tafel of hoeft dat niet in deze ruimte? Wat zijn de afmetingen?
Dit topic kan gebruikt worden voor het volgende:
• Vragen over de keuken, denkend aan indeling, materialen, kastjes, apparatuur, etc.
• Welke kastjes, aanrechtbladen en apparatuur te kiezen
• Ervaringen met verkopers en keukenboeren
• Tips & Tricks denk hierbij aan hulp bij het zelf installeren en onderhouden van de keuken.
• Jouw indeling. Plaats gerust een foto of tekening, maar maak het niet te bont met hele buildlogs.
Voor badkamers: Het Badkamer topic: verkopers, kwaliteit, prijs - Deel 1
Showen met je keuken kan hier: Tweakers Keuken showroom! - Vestiging 1