Idd, ik ben er van overtuigd dat mijn keuken niet onder de 18k kan
Ik heb er 22k voor neergelegd incl. montage en een maatwerk plank met verlichting. Tot iemand een vergelijkbare gedetailleerde offerte kan tonen dat hij voor <15k kan, zoals beweerd, vind ik dat ik gewonnen heb
En hij is nog mooi ook! Veel plezier ermee !Verwijderd schreef op maandag 17 augustus 2020 @ 20:10:
Idd, ik ben er van overtuigd dat mijn keuken niet onder de 18k kanIk heb er 22k voor neergelegd incl. montage en een maatwerk plank met verlichting. Tot iemand een vergelijkbare gedetailleerde offerte kan tonen dat hij voor <15k kan, zoals beweerd, vind ik dat ik gewonnen heb
Imac 27" i5 + Dell XPS Laptop
Ehm, ja, vergelijk een keukenkast met een autoKapitein Merijn schreef op maandag 17 augustus 2020 @ 19:14:
[...]
Jammer dat je alles hier neerzet als feiten terwijl het meeste wat je zegt de grootste onzin is.
Prima als jij een korpus kan kopen voor 180 euro maar dat is natuurlijk niet te vergelijken met een fabriekskeuken. Overigens ben ik ervan overtuigd dat die fabriekskeuken ook nog veel degelijker is dan jou bij elkaar gesprokkelde keuken.
Eiken fineer platen kosten geen hol zeg je maar als het als keuken word aangeboden kost het ongeveer hetzelfde als een Fenix keuken, prijsverschil is verwaarloosbaar.
Plaatstaal kost overigens ook geen drol waarom moet een auto dan +30k kosten?

Het zal best dat keuken fabrikanten houtfineer en fenix in dezelfde prijsklasse verkopen, maar dat heeft meer met marketing te maken dan met kostprijs.
Maar lieve schat, ik zeg ook helemaal niet dat die 180 euro korpus hetzelfde is als een fabriekskeuken. Sterker nog, ik heb juist aangegeven dat geen enkele interieurbouwer de middelen in mensen en geld heeft om goed te concurreren tegen de grote fabrieken. Ik heb op geen enkel moment geageerd tegen de fabrieken.Kapitein Merijn schreef op maandag 17 augustus 2020 @ 19:14:
[...]
Jammer dat je alles hier neerzet als feiten terwijl het meeste wat je zegt de grootste onzin is.
Prima als jij een korpus kan kopen voor 180 euro maar dat is natuurlijk niet te vergelijken met een fabriekskeuken. Overigens ben ik ervan overtuigd dat die fabriekskeuken ook nog veel degelijker is dan jou bij elkaar gesprokkelde keuken.
Eiken fineer platen kosten geen hol zeg je maar als het als keuken word aangeboden kost het ongeveer hetzelfde als een Fenix keuken, prijsverschil is verwaarloosbaar.
Plaatstaal kost overigens ook geen drol waarom moet een auto dan +30k kosten?
Enne, mijn bij elkaar gesprokkelde keuken? LOL, jij begreep de grap dus niet. Die onafgewerkte muurtjes op de achtergrond waren een iets te moeilijke hint. Maakt niet uit, maandag is altijd een moeilijke dag om op te starten.
Edit: en de rest heeft Z__Z prima verwoord.
Kunnen we weer door met zinvolle discussies/onderwerpen? 🙃
De voor en nadelen van een keuken van een interieurbouwer versus een keukenfabriek vind ik wel een zinvol onderwerp, want dat is ook een keuze waar wij nog voor staan. Wat ik tot nu toe uit bovenstaande heb gehaald is dat een interieurbouwer beter is in maatwerk en qua prijs concurrerend kan zijn voor alle normale houten/MDF keuken delen. Alleen als je iets anders wilt qua materiaalgebruik (glas, metaal?) of moeilijke constructies dan beginnen ze er wellicht niet aan. Dus als iemand daar nog wat aan toe kan voegen of het tegendeel kan beargumenteren dan hoor ik het graag. En ik ben ook wel benieuwd of er een kwaliteitsverschil zit tussen een fabriekskeuken en een keuken van een interieurbouwer. Maar wellicht dat daar niets generieks over te roepen is omdat er te veel verschillen zitten tussen de fabriekskeukens en de interieurbouwers onderling? Bij een interieurbouwer zitten er minder schakels tussen wat denk ik wel positief kan uitpakken op de service en montage.
Jup en keukenfabrieken denken blijkbaar dat ze ze voor echte houtfineer de hoofdprijs voor moeten vragen aangezien dit een upgrade is van de standaard kunstof fineer met een houtprintje.Streamz schreef op maandag 17 augustus 2020 @ 17:44:
[...]
Is ook geen probleem. Wat ik al zei, eikenfineer MDF platen kost geen hol, in lengte of breedte gezaagd, dosse of kwartiers eiken fineer. Kan echt iedere meubelbouwer voor niet al te veel geld.
Dan weet ik niet bij welke interieurbouwer jij geweest bent... maar als iemand de meest gekke en niet-standaard creaties kan leveren, dingen laten zweven etc. is het wel een interieurbouwer. Die maken vaak complete horeca en winkel invertarissen op maat en hebben connecties om allerlei soorten materiaal te leven.Heb voor de keuken die nu in bestelling staat ook een tweetal interieurbouwers bezocht. Konden prima een keuken tekenen, prijs was ook prima. Maar kunnen alleen het "standaardwerk:" kasten, blad, stollen lades etc.
Geen mooie vitrinekast met metalen profielen bijvoorbeeld. Of constructies om een 2m tafel te laten zweven.
Kunnen ze niet, hebben er geen ervaring mee, hebben de apparatuur er niet voor.
Zet 10 interieurbouwers naast elkaar en je ziet allemaal dezelfde type keukens. Wil je een strakke greeploze keuken met fronten van houtgebaseerd plaatmateriaal, en afwijkende kastmaten, is een interieurbouwer wellicht de beste optie.
Wil je echt speciale features, ga je daar niet slagen.
Bij een keukenzaak/fabriek krijg je juist de meest standaard keukentjes. Ik ben destijds ook bij *kuch* mandemakers *kuch* geweest en hun standaard keukenfabriek kon al geen zaken zoals houtfineer met horizontaal doorlopende nerven (enkel verticaal) en een massief betonblad moest heel duur via een andere keukenzaak ingekocht worden.
Dit heb ik uiteindelijk dus via een interieurbouwer geregeld.
:strip_exif()/f/image/moG5qUyYt9J2ii4V8fNKzodF.jpg?f=fotoalbum_large)
Ziet er goed uit. Want:
Maar aan dit soort vitrinekasten gaat een gemiddelde interieurbouwer echt niet beginnen.

Of dit soort railsystemen

Ronde vormen kom je ook niet tegen

Investeringen in R&D, machines etc is simpelweg veel te hoog.
Nogmaals, niets mis met interieurbouwers. Helemaal niet zelfs. Maar zet er een paar naast elkaar en je ziet dat ze allemaal keukens maken zoals jouw foto. Zij hebben nu eenmaal hun beperkingen. Net als de fabrieken, maar dan op andere fronten (no pun intended).
En om weer terug te gaan naar het punt waar deze discussie mee is begonnen: juist omdat er zoveel variabelen, (on)mogelijkheden, verdienmodellen en specifieke plus/minpunten van verschillende keukenaanbieders zijn, is het compleet onzinnig op basis van wat standaardkenmerken als afmetingen, aantal kasten, apparatenlijst e.d. vergelijkingen tussen keukens te maken.
Je foto laat dit precies zien. Dank voor je bevestiging hiervan.Streamz schreef op maandag 17 augustus 2020 @ 17:44:
[...]
Wil je een strakke greeploze keuken met fronten van houtgebaseerd plaatmateriaal, en afwijkende kastmaten, is een interieurbouwer wellicht de beste optie.
Maar aan dit soort vitrinekasten gaat een gemiddelde interieurbouwer echt niet beginnen.

Of dit soort railsystemen

Ronde vormen kom je ook niet tegen

Investeringen in R&D, machines etc is simpelweg veel te hoog.
Nogmaals, niets mis met interieurbouwers. Helemaal niet zelfs. Maar zet er een paar naast elkaar en je ziet dat ze allemaal keukens maken zoals jouw foto. Zij hebben nu eenmaal hun beperkingen. Net als de fabrieken, maar dan op andere fronten (no pun intended).
En om weer terug te gaan naar het punt waar deze discussie mee is begonnen: juist omdat er zoveel variabelen, (on)mogelijkheden, verdienmodellen en specifieke plus/minpunten van verschillende keukenaanbieders zijn, is het compleet onzinnig op basis van wat standaardkenmerken als afmetingen, aantal kasten, apparatenlijst e.d. vergelijkingen tussen keukens te maken.
Dat zijn ook geen afbeeldingen/oplossingen van keukenzaken die je aanhaalt maar juist interieurbouwers.Streamz schreef op dinsdag 18 augustus 2020 @ 10:53:
Ziet er goed uit. Want:
[...]
Je foto laat dit precies zien. Dank voor je bevestiging hiervan.
Maar aan dit soort vitrinekasten gaat een gemiddelde interieurbouwer echt niet beginnen.
[Afbeelding]
Of dit soort railsystemen
[Afbeelding]
Ronde vormen kom je ook niet tegen
[Afbeelding]
Investeringen in R&D, machines etc is simpelweg veel te hoog.
Nogmaals, niets mis met interieurbouwers. Helemaal niet zelfs. Maar zet er een paar naast elkaar en je ziet dat ze allemaal keukens maken zoals jouw foto. Zij hebben nu eenmaal hun beperkingen. Net als de fabrieken, maar dan op andere fronten (no pun intended).
En om weer terug te gaan naar het punt waar deze discussie mee is begonnen: juist omdat er zoveel variabelen, (on)mogelijkheden, verdienmodellen en specifieke plus/minpunten van verschillende keukenaanbieders zijn, is het compleet onzinnig op basis van wat standaardkenmerken als afmetingen, aantal kasten, apparatenlijst e.d. vergelijkingen tussen keukens te maken.
De vitrinekasten worden niet door Siematic geleverd maar enkel de keuken op het plaatje.
http://www.pininfarinahomedesign.com waar de keuken met rondingen vandaan komt = een interieurbouwer die ook meubels, deuren etc. maakt.
Ik weet niet of je ooit in luxe restaurants of hippe café's komt, maar juist daar word vaak de complete maatwerk inrichting door interieurbouwers geleverd. Vitrinekasten, glazenrekken etc.
Ik zou niet weten wat een goede interieurbouwer niet kan wat een keukenzaak wel kan.
Juist een interieurbouwer (of meubelmaker) zou juist alles moeten kunnen maken, daar waar keukenzaken vaak vast zitten aan de mogelijkheden van het merk/leverancier van de keuken en het tekenprogramma. Of is dat een net zo groot vooroordeel?
Belangrijkste is dat je het juiste bedrijf vind en dan is volgens mij gewoon alles mogelijk wat je wilt.
Juist een interieurbouwer (of meubelmaker) zou juist alles moeten kunnen maken, daar waar keukenzaken vaak vast zitten aan de mogelijkheden van het merk/leverancier van de keuken en het tekenprogramma. Of is dat een net zo groot vooroordeel?
Belangrijkste is dat je het juiste bedrijf vind en dan is volgens mij gewoon alles mogelijk wat je wilt.
Verwijderd
Vergeet niet dat je de klusjesman hebt die een (bij)keuken snel, goed en goedkoop in elkaar zet en de interieurbouwer die een loods heeft vol met dure spullen en daarmee ook zakelijk (grootschalig) enorm mooi maatwerk in elkaar kan zetten. Ik ken er van beide minimaal eentje en de prijsverschillen zijn enorm en dat is ook verklaarbaar.B-Real schreef op dinsdag 18 augustus 2020 @ 11:14:
Ik zou niet weten wat een goede interieurbouwer niet kan wat een keukenzaak wel kan.
Juist een interieurbouwer (of meubelmaker) zou juist alles moeten kunnen maken, daar waar keukenzaken vaak vast zitten aan de mogelijkheden van het merk/leverancier van de keuken en het tekenprogramma. Of is dat een net zo groot vooroordeel?
Belangrijkste is dat je het juiste bedrijf vind en dan is volgens mij gewoon alles mogelijk wat je wilt.
Daarom zei ik ook "een gemiddelde interieurbouwer." We hebben het hier niet over grotere gespecialiseerde fabrieken of ontwerpstudios die zich toeleggen op ontwerp, ontwikkeling en productie voor de keukenindustrie.
In dit topic werd een voorbeeld aangehaald van een keuken van een interieurbouwer die incl apparatuur uitkomt op 27k oid.
En ja, er zijn er een paar die veel verder gaan. Ik noemde al even Culimaat. Maar daar betaal je dus voor. 6 cijfers.
In dit topic werd een voorbeeld aangehaald van een keuken van een interieurbouwer die incl apparatuur uitkomt op 27k oid.
En ja, er zijn er een paar die veel verder gaan. Ik noemde al even Culimaat. Maar daar betaal je dus voor. 6 cijfers.
Graag zou ik hier wat advies willen inwinnen m.b.t. de keuken welke ik aan het ontwerpen ben voor m'n nieuwe (bestaande bouw) appartement.
Ben ondertussen al bij een 5 tal keukenleveranciers geweest maar de keuze is toch op een IKEA keuken gevallen waar ikzelf de apparatuur ga leveren (voornamelijk Studioline).
Ontwerp ben ik voor 90% uit alleen over de bovenkasten zit ik nog wat in dubio.
In eerste instantie was ik van plan geen bovenkasten te gebruiken maar ivm beperkte kastruimte (b.v. nergens inbouw kastruimte) toch maar overstag gegaan.
Daarnaast vind ik het ook niet verkeerd staan. Ik was alleen even bang dat het te vol zou worden voor de ruimte die ik heb; 3.23x2.51m
Dit zijn nu zo'n beetje de twee smaken waar ik nog uit wil ga kiezen.
Wat ik me alleen afvraag is wat de ideale hoogte is om de bovenkasten t.o.v. het werkblad op te gaan hangen.
Het blad zelf komt op een hoogte van 95cm te hangen.
Ikzelf ben 1.83m hoog en m'n vriendin +/-1.72m.
Nu hangen de bovenkasten op 60cm van het werkblad af, maar ik vraag me af, met name bij de kookplaat (inbouw afzuigkap overigens) of dat niet wat laag is/in de weg gaat zitten.
Graag hoor ik hier wat ervaringen van mensen die hetzelfde danwelniet hoger hebben.
Voor het totaal plaatje is dit de rest v/d keuken
Ben ondertussen al bij een 5 tal keukenleveranciers geweest maar de keuze is toch op een IKEA keuken gevallen waar ikzelf de apparatuur ga leveren (voornamelijk Studioline).
Ontwerp ben ik voor 90% uit alleen over de bovenkasten zit ik nog wat in dubio.
In eerste instantie was ik van plan geen bovenkasten te gebruiken maar ivm beperkte kastruimte (b.v. nergens inbouw kastruimte) toch maar overstag gegaan.
Daarnaast vind ik het ook niet verkeerd staan. Ik was alleen even bang dat het te vol zou worden voor de ruimte die ik heb; 3.23x2.51m
Dit zijn nu zo'n beetje de twee smaken waar ik nog uit wil ga kiezen.
![]() | ![]() |
Wat ik me alleen afvraag is wat de ideale hoogte is om de bovenkasten t.o.v. het werkblad op te gaan hangen.
Het blad zelf komt op een hoogte van 95cm te hangen.
Ikzelf ben 1.83m hoog en m'n vriendin +/-1.72m.
Nu hangen de bovenkasten op 60cm van het werkblad af, maar ik vraag me af, met name bij de kookplaat (inbouw afzuigkap overigens) of dat niet wat laag is/in de weg gaat zitten.
Graag hoor ik hier wat ervaringen van mensen die hetzelfde danwelniet hoger hebben.
Voor het totaal plaatje is dit de rest v/d keuken
![]() | ![]() |
PSN: Flix20-NL
Ok, er zijn nu 2 keukens over. Allebei wit mat kunststof frontjes, keramisch beton-look blad en Pelgrim apparatuur alom.
Ik zit enorm in dubio. €1.500 (±20%) prijsverschil voor mindere kwaliteit maar wel mooiere hoge kasten. What to do? Ik neig nu naar de rechter, en dan gewoon een koof vanaf het plafond om de boel dicht te maken boven de hoge kasten.
Zijn hier nog doorslaggevende argumenten? Of suggesties om de rechter keuken iets strakker te maken?
Apparatuur is identiek:
Combi: Pelgrim MAC524MAT
Koelkast: Pelgrim KK2102K
Vaatwasser: Pelgrim GVW430L
Kookplaat: Pelgrim GK4060MAT
Afzuigkap: Pelgrim BSS970MAT
Kraan en spoelbak: Ntb, iets donkers.
Links (SuperKeukens)
+ Hoge kasten tot het plafond
+ Strakkere afwerking rondom de oven
- DKG-keuken, dus waarschijnlijk een Keller oid?
- € 9.500 ex montage
Rechts (Bemmel&Kroon)
+ €8.000 ex montage
+ Pronorm Y-line keuken
- Hoge kasten niet tot het plafond
- Rommeliger rondom de keuken
Ik zit enorm in dubio. €1.500 (±20%) prijsverschil voor mindere kwaliteit maar wel mooiere hoge kasten. What to do? Ik neig nu naar de rechter, en dan gewoon een koof vanaf het plafond om de boel dicht te maken boven de hoge kasten.
Zijn hier nog doorslaggevende argumenten? Of suggesties om de rechter keuken iets strakker te maken?
Apparatuur is identiek:
Combi: Pelgrim MAC524MAT
Koelkast: Pelgrim KK2102K
Vaatwasser: Pelgrim GVW430L
Kookplaat: Pelgrim GK4060MAT
Afzuigkap: Pelgrim BSS970MAT
Kraan en spoelbak: Ntb, iets donkers.
Links (SuperKeukens)
+ Hoge kasten tot het plafond
+ Strakkere afwerking rondom de oven
- DKG-keuken, dus waarschijnlijk een Keller oid?
- € 9.500 ex montage
Rechts (Bemmel&Kroon)
+ €8.000 ex montage
+ Pronorm Y-line keuken
- Hoge kasten niet tot het plafond
- Rommeliger rondom de keuken
:strip_exif()/f/image/PgLx9FiiBDW71d26FdNGGNLW.jpg?f=fotoalbum_large)
Vind zelf het ontwerp van SuperKeukens wel echt veel mooier dan het rommelige beeld van B&K.. Moet je niet even navragen welk merk kasten je hebt?Phyrro schreef op dinsdag 18 augustus 2020 @ 14:40:
Ok, er zijn nu 2 keukens over. Allebei wit mat kunststof frontjes, keramisch beton-look blad en Pelgrim apparatuur alom.
Ik zit enorm in dubio. €1.500 (±20%) prijsverschil voor mindere kwaliteit maar wel mooiere hoge kasten. What to do? Ik neig nu naar de rechter, en dan gewoon een koof vanaf het plafond om de boel dicht te maken boven de hoge kasten.
Zijn hier nog doorslaggevende argumenten? Of suggesties om de rechter keuken iets strakker te maken?
Apparatuur is identiek:
Combi: Pelgrim MAC524MAT
Koelkast: Pelgrim KK2102K
Vaatwasser: Pelgrim GVW430L
Kookplaat: Pelgrim GK4060MAT
Afzuigkap: Pelgrim BSS970MAT
Kraan en spoelbak: Ntb, iets donkers.
Links (SuperKeukens)
+ Hoge kasten tot het plafond
+ Strakkere afwerking rondom de oven
- DKG-keuken, dus waarschijnlijk een Keller oid?
- € 9.500 ex montage
Rechts (Bemmel&Kroon)
+ €8.000 ex montage
+ Pronorm Y-line keuken
- Hoge kasten niet tot het plafond
- Rommeliger rondom de keuken
[Afbeelding]
Vind het wel een kleine keuken trouwens, heb je geen ruimte om een kastje er aan vast te plakken? Je hebt nauwelijks werkruimte nu?
If you want to be the best, you need to work with the best :)
Zeker weten dat je combi hetzelfde is? Lijkt alsof die op de rechter keuken een 45 cm combi is. Die van SuperKeukens is wel veel strakker inderdaad. Kan je daar niet nog een beetje van de prijs af praten?Phyrro schreef op dinsdag 18 augustus 2020 @ 14:40:
Ok, er zijn nu 2 keukens over. Allebei wit mat kunststof frontjes, keramisch beton-look blad en Pelgrim apparatuur alom.
Ik zit enorm in dubio. €1.500 (±20%) prijsverschil voor mindere kwaliteit maar wel mooiere hoge kasten. What to do? Ik neig nu naar de rechter, en dan gewoon een koof vanaf het plafond om de boel dicht te maken boven de hoge kasten.
Zijn hier nog doorslaggevende argumenten? Of suggesties om de rechter keuken iets strakker te maken?
Apparatuur is identiek:
Combi: Pelgrim MAC524MAT
Koelkast: Pelgrim KK2102K
Vaatwasser: Pelgrim GVW430L
Kookplaat: Pelgrim GK4060MAT
Afzuigkap: Pelgrim BSS970MAT
Kraan en spoelbak: Ntb, iets donkers.
Links (SuperKeukens)
+ Hoge kasten tot het plafond
+ Strakkere afwerking rondom de oven
- DKG-keuken, dus waarschijnlijk een Keller oid?
- € 9.500 ex montage
Rechts (Bemmel&Kroon)
+ €8.000 ex montage
+ Pronorm Y-line keuken
- Hoge kasten niet tot het plafond
- Rommeliger rondom de keuken
[Afbeelding]
Recirculatie met koolstoffilters. Kan ook zonder recirculatie maar dat staat onze woning niet toe ivm isolatie.
Dank voor de antwoorden. Dit sterkt mij in de overtuiging om 'gewoon' voor het mooiste ontwerp te gaan, ook al is dat duurder en zijn de kasten van iets mindere kwaliteit.
Qua grootte van de keuken, het is een appartementje met een woonkamer/keuken van ±30m2. Dus veel meer dan dit gaat het niet worden helaas. Zie hier voor de overwegingen.
Plattegrond:

SuperKeukens levert deze keuken als merk 'DKG', dat de fabrikant is van Keller en Bruynzeel. Wel een stapje minder dan Pronorm dus.Maardiweb schreef op dinsdag 18 augustus 2020 @ 14:53:
[...]
Vind zelf het ontwerp van SuperKeukens wel echt veel mooier dan het rommelige beeld van B&K.. Moet je niet even navragen welk merk kasten je hebt?
Vind het wel een kleine keuken trouwens, heb je geen ruimte om een kastje er aan vast te plakken? Je hebt nauwelijks werkruimte nu?
Qua grootte van de keuken, het is een appartementje met een woonkamer/keuken van ±30m2. Dus veel meer dan dit gaat het niet worden helaas. Zie hier voor de overwegingen.
Plattegrond:

Ja, de combi is bij allebei 45cm. Superkeukens werkt met vaste prijzen, dus dit is het wel. Wellicht dat ik nog iets van de montage af kan krijgen (€1.250).Nicole9876 schreef op dinsdag 18 augustus 2020 @ 15:50:
[...]
Zeker weten dat je combi hetzelfde is? Lijkt alsof die op de rechter keuken een 45 cm combi is. Die van SuperKeukens is wel veel strakker inderdaad. Kan je daar niet nog een beetje van de prijs af praten?
[ Voor 4% gewijzigd door Phyrro op 18-08-2020 16:48 ]
en welk merk type is dit?Tijdloos schreef op dinsdag 18 augustus 2020 @ 16:39:
[...]
Recirculatie met koolstoffilters. Kan ook zonder recirculatie maar dat staat onze woning niet toe ivm isolatie.
Wij hebben op dit moment een keuken van ongeveer hetzelfde formaat, (ook bijna dezelfde opstelling, maar spoelbak/kookplaat omgewisseld en minder bovenkastjes)Phyrro schreef op dinsdag 18 augustus 2020 @ 16:41:
Dank voor de antwoorden. Dit sterkt mij in de overtuiging om 'gewoon' voor het mooiste ontwerp te gaan, ook al is dat duurder en zijn de kasten van iets mindere kwaliteit.
[...]
SuperKeukens levert deze keuken als merk 'DKG', dat de fabrikant is van Keller en Bruynzeel. Wel een stapje minder dan Pronorm dus.
Qua grootte van de keuken, het is een appartementje met een woonkamer/keuken van ±30m2. Dus veel meer dan dit gaat het niet worden helaas. Zie hier voor de overwegingen.
Plattegrond:
[Afbeelding]
[...]
Ja, de combi is bij allebei 45cm. Superkeukens werkt met vaste prijzen, dus dit is het wel. Wellicht dat ik nog iets van de montage af kan krijgen (€1.250).
Het is echt jammer dat die Bemmel & Kroon zo rommelig is qua hoogte, dat had vast anders gekund.
Why be difficult when, with a bit of effort, you could be impossible?
Helaas staat dit overzichtje van @SquareOne nog niet in de OP dus ik gooi m hier maar even in de herhaling, hoef ik niet iedere keer ver terug te zoeken
Next125 (contur) | Systemat | Pronorm (xline) (silverline) | Tristar (residentic) | Rotpunkt (excellentic) | Nobilia | Schüller | |
---|---|---|---|---|---|---|---|
Keukenloods | |||||||
Keukensale | |||||||
Goergen | |||||||
Bemmel & Kroon | |||||||
Ekelhof | contur | ||||||
Superkeukens | |||||||
Thuiskeuken | |||||||
DB Keukens | residentic | excellentic | dbselect | ||||
ASWA | silverline | ||||||
Reddy | |||||||
Nuva | xline | ||||||
Velthuizen |
Why be difficult when, with a bit of effort, you could be impossible?
Het is wellicht vloeken in de kerk, maar na allerlei dure keukens te hebben gezien tussen de 35-75k, zijn we vandaag eens naar de Ikea geweest. Verbazingwekkend voor hoe weinig geld je ook een keuken kunt kopen. Qua details zie je natuurlijk wel wat verschil op het gebied van kieren tussen deurtjes, deurtjes die niet helemaal strak hangen en dat soort zaken. Maar voor een prijsverschil van ongeveer 30k, gaan wij nog eens nadenken hoe belangrijk we dat allemaal vinden. Voor ons heeft het in elk geval geholpen om weer even met beide benen op de grond te staan.
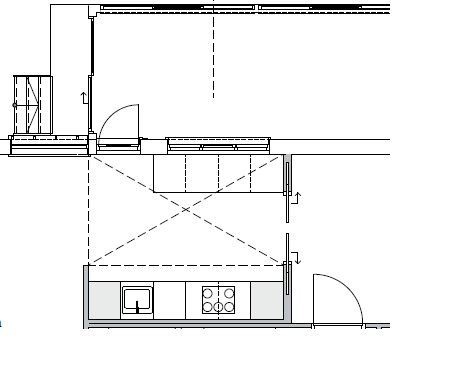
Naar aanleiding van de eerdere reacties op mijn vraag waar ik op moet letten als ik zelf een technische tekening maak (om te voorkomen dat ik nu al een offerte moet tekenen terwijl nieuwbouwwoning pas over anderhalf jaar opgeleverd wordt) ben ik aan het tekenen gegaan. Onderstaand mijn tekening, ben benieuwd of er nog opmerkingen over zijn.
Paar aandachtspuntjes:
- In offerte die we hebben is de plinthoogte vrij laag (10cm), dus ik heb de WCD voor apparatuur op 75mm gezet ipv 100mm.
- Hoogte waterleidingen en afvoer heb ik overgenomen uit tekeningen die ik via Google heb gevonden (zoekterm 'Bruynzeel installatie tekening', dan krijg je een aantal voorbeelden uit documentatie nieuwbouwprojecten met standaard keuken).
- We zijn nog niet 100% zeker hoe we precies de gootsteen willen hebben. Ik heb de waterleidingen + afvoer nu zo geplaatst dat ze in ieder geval altijd binnen het gootsteen kastje zullen vallen. Het gootsteenkastje willen we misschien 30cm naar rechts schuiven (op tekening naar beneden). Dat betekent dat leidingen misschien niet kaarsrecht onder de kranen/afvoer zitten. Ik vermoed dat een installateur misschien even moppert maar er toch wel raad mee weet? Of zou er dan alsnog een loodgieter/stucadoor aan te pas moeten komen?
Paar aandachtspuntjes:
- In offerte die we hebben is de plinthoogte vrij laag (10cm), dus ik heb de WCD voor apparatuur op 75mm gezet ipv 100mm.
- Hoogte waterleidingen en afvoer heb ik overgenomen uit tekeningen die ik via Google heb gevonden (zoekterm 'Bruynzeel installatie tekening', dan krijg je een aantal voorbeelden uit documentatie nieuwbouwprojecten met standaard keuken).
- We zijn nog niet 100% zeker hoe we precies de gootsteen willen hebben. Ik heb de waterleidingen + afvoer nu zo geplaatst dat ze in ieder geval altijd binnen het gootsteen kastje zullen vallen. Het gootsteenkastje willen we misschien 30cm naar rechts schuiven (op tekening naar beneden). Dat betekent dat leidingen misschien niet kaarsrecht onder de kranen/afvoer zitten. Ik vermoed dat een installateur misschien even moppert maar er toch wel raad mee weet? Of zou er dan alsnog een loodgieter/stucadoor aan te pas moeten komen?
/f/image/jYCVQNMCa1OaxsLsFNqX24VX.png?f=fotoalbum_large)
The Flying Dutchman
Welke zaken/merken heb je gezien?synorluna schreef op dinsdag 18 augustus 2020 @ 20:57:
Het is wellicht vloeken in de kerk, maar na allerlei dure keukens te hebben gezien tussen de 35-75k, zijn we vandaag eens naar de Ikea geweest. Verbazingwekkend voor hoe weinig geld je ook een keuken kunt kopen. Qua details zie je natuurlijk wel wat verschil op het gebied van kieren tussen deurtjes, deurtjes die niet helemaal strak hangen en dat soort zaken. Maar voor een prijsverschil van ongeveer 30k, gaan wij nog eens nadenken hoe belangrijk we dat allemaal vinden. Voor ons heeft het in elk geval geholpen om weer even met beide benen op de grond te staan.
Ekelhoff
Verdonk (Maarssen)
Tieleman
Aswa
Wanrooij
Velthuizen
Voortman
Grando
Brugman
Keuken-centrum
Denk dat dit het wel ongeveer is
Wat voor keuzes heb je gemaakt als je op offertes tussen de 35-75K uitkomt?
En waar zit de prijs dan vooral in, want de keuken lijkt me niet extreem groot toch?
Of zie ik iets over het hoofd?
Edit: Ja dus, andere keuken dan de hoekkeuken die hier vlak boven staat, my bad
En waar zit de prijs dan vooral in, want de keuken lijkt me niet extreem groot toch?
Of zie ik iets over het hoofd?
Edit: Ja dus, andere keuken dan de hoekkeuken die hier vlak boven staat, my bad

[ Voor 17% gewijzigd door Leandra66 op 18-08-2020 21:42 ]
Why be difficult when, with a bit of effort, you could be impossible?
Overigens zie ik net ergens je omschrijving: "Eiland van 3 bij 120 en 4 hoge kasten en 3 lage kasten van 60" toch?
Dat wijkt volgens mij niet heel erg af van wat ik in de planning had:


Dat wijkt volgens mij niet heel erg af van wat ik in de planning had:

Members only:
Alleen zichtbaar voor ingelogde gebruikers.
Inloggen




Members only:
Alleen zichtbaar voor ingelogde gebruikers.
Inloggen
Why be difficult when, with a bit of effort, you could be impossible?
Die kasten komen wel degelijk bij Siematic vandaan, juist dat soort design elementen is Siematic ontzettend sterk in.Ruudje88 schreef op dinsdag 18 augustus 2020 @ 11:09:
[...]
Dat zijn ook geen afbeeldingen/oplossingen van keukenzaken die je aanhaalt maar juist interieurbouwers.
De vitrinekasten worden niet door Siematic geleverd maar enkel de keuken op het plaatje.
Dat het in Nederland bijna nooit verkocht word op die manier is iets anders.
Untappd: Kapitein_Merijn
Tot op heden nog maar 1 echte offerte opgevraagd dat kwam uit op 35k. Dat ging op de SieMatic SLX Pure.Leandra66 schreef op dinsdag 18 augustus 2020 @ 21:38:
Wat voor keuzes heb je gemaakt als je op offertes tussen de 35-75K uitkomt?![]()
En waar zit de prijs dan vooral in, want de keuken lijkt me niet extreem groot toch?
Of zie ik iets over het hoofd?
Edit: Ja dus, andere keuken dan de hoekkeuken die hier vlak boven staat, my bad
Ah okay, dan moet het voor wat minder ook wel lukken.synorluna schreef op dinsdag 18 augustus 2020 @ 22:56:
[...]
Tot op heden nog maar 1 echte offerte opgevraagd dat kwam uit op 35k. Dat ging op de SieMatic SLX Pure.
Als je toch naar Ikea gaat kijken (en eerlijk gezegd denk ik dat je dat niet echt wilt als je eigenlijk op dit segment gericht bent) hou er dan wel rekening mee dat er weinig mogelijk is qua onderkast hoogtes en dat er qua breedtes geen andere maten dan 20, 30, 40, 60 en 80 breed is, en de 20 en 30 slechts in enkele uitvoeringen.
Vooral dat laatste was eigenlijk de reden dat ik weet dat het voor ons geen overweging gaat zijn, want die downdraft gaat niet passen in een 80 cm kastje.
Why be difficult when, with a bit of effort, you could be impossible?
Oef. Ik word echt heel zenuwachtig van dat lijnenspel (of eigenlijk gebrek daar aan...) bij deze keukens. Zeker bij de inkook is er is eigenlijk geen lijn die netjes doorloopt. Dat kan echt veel rustiger.Leandra66 schreef op dinsdag 18 augustus 2020 @ 22:19:
Overigens zie ik net ergens je omschrijving: "Eiland van 3 bij 120 en 4 hoge kasten en 3 lage kasten van 60" toch?
Dat wijkt volgens mij niet heel erg af van wat ik in de planning had:
[Afbeelding]
***members only***
[Afbeelding] [Afbeelding] [Afbeelding] [Afbeelding]
***members only***
Was niet hun idee, maar het mijne, hoewel we er wel wat aanpassingen aan gedaan hebben om lijnen gelijker te hebben.Don Quijote schreef op dinsdag 18 augustus 2020 @ 23:08:
[...]
Oef. Ik word echt heel zenuwachtig van dat lijnenspel (of eigenlijk gebrek daar aan...) bij deze keukens. Zeker bij de inkook is er is eigenlijk geen lijn die netjes doorloopt. Dat kan echt veel rustiger.
Kasten staan met een reden op de plekken waar ze staan (met uitzondering aan de achterkant van het eiland).
En ja, ik weet dat het ook anders zou kunnen maar dan wordt de inrichting van de kasten ook anders en dat is nou net niet de bedoeling
Ik heb vooral voor pragmatisch gekozen; dat wat het handigst voor mij werkt, dat twee ovens boven elkaar mooier zou staan snap ik ook wel, maar ik heb ze liever op dezelfde hoogte zodat je nooit boven je macht tilt.
Why be difficult when, with a bit of effort, you could be impossible?
Ik ben zeker geen expert, maar paar vraagjes obv je tekening:The Flying Dutchman schreef op dinsdag 18 augustus 2020 @ 21:04:
Naar aanleiding van de eerdere reacties op mijn vraag waar ik op moet letten als ik zelf een technische tekening maak (om te voorkomen dat ik nu al een offerte moet tekenen terwijl nieuwbouwwoning pas over anderhalf jaar opgeleverd wordt) ben ik aan het tekenen gegaan. Onderstaand mijn tekening, ben benieuwd of er nog opmerkingen over zijn.
Paar aandachtspuntjes:
- In offerte die we hebben is de plinthoogte vrij laag (10cm), dus ik heb de WCD voor apparatuur op 75mm gezet ipv 100mm.
- Hoogte waterleidingen en afvoer heb ik overgenomen uit tekeningen die ik via Google heb gevonden (zoekterm 'Bruynzeel installatie tekening', dan krijg je een aantal voorbeelden uit documentatie nieuwbouwprojecten met standaard keuken).
- We zijn nog niet 100% zeker hoe we precies de gootsteen willen hebben. Ik heb de waterleidingen + afvoer nu zo geplaatst dat ze in ieder geval altijd binnen het gootsteen kastje zullen vallen. Het gootsteenkastje willen we misschien 30cm naar rechts schuiven (op tekening naar beneden). Dat betekent dat leidingen misschien niet kaarsrecht onder de kranen/afvoer zitten. Ik vermoed dat een installateur misschien even moppert maar er toch wel raad mee weet? Of zou er dan alsnog een loodgieter/stucadoor aan te pas moeten komen?
[Afbeelding]
- Afzuiging staat nu niet op de muur maar wel op 2250 hoog, klopt dat wel?
- Misschien nog een WCD huishoudelijk links naast je kookplaat (staafmixer in de pan, etc)?
- Aparte WCD voor vriezer en voor koelkast, maar wel in de zelfde kast, klopt dat wel?
Ik denk dat aansluiting water in spoelkast gewoon met een stukje flexibele leiding gebeurt (van dat gewoven spul) dan zal 30 cm denk ik geen probleem zijn.
Wij hebben gister een tripje gemaakt naar Marquardt Küchen in Oisterwijk. Ontzettend fijne en mooie zaak. We hebben een volledig witte Nobilia Easytouch besteld met het meest witte composieten blad (2cm), in parallelle opstelling met de volgende apparatuur.
Het werkblad, waar spoelbak en de kookplaat in komen is 320cm breed, zonder bovenkastjes. De apparatenwand wordt +/- 215cm hoog en 180cm breed.
Bora PURU
Quooker Fusion Square zwart
Zwarte Caressi spoelbak (50cm)
Siemens IQ500 HB537ABS0 60cm bakoven
Siemens IQ500 CP565AGS0 45cm combimagnetron
Zanussi ZBA32060SA koelkast (180cm)
Zanussi ZUAN88ES vriezer (88cm)
Zanussi ZDT26030FA vaatwasser
€14.335 incl plaatsen
Het werkblad, waar spoelbak en de kookplaat in komen is 320cm breed, zonder bovenkastjes. De apparatenwand wordt +/- 215cm hoog en 180cm breed.
Bora PURU
Quooker Fusion Square zwart
Zwarte Caressi spoelbak (50cm)
Siemens IQ500 HB537ABS0 60cm bakoven
Siemens IQ500 CP565AGS0 45cm combimagnetron
Zanussi ZBA32060SA koelkast (180cm)
Zanussi ZUAN88ES vriezer (88cm)
Zanussi ZDT26030FA vaatwasser
€14.335 incl plaatsen
[ Voor 15% gewijzigd door Tjebakka op 19-08-2020 09:17 ]
If it aint fixed, it's broken.
Ms is dit niet het juiste topic, anders bij voorbaat excuses. Mocht je nog op zoek zijn naar een goede oven (spreek uit ervaring), dan is hij hier met een hoge korting verkrijgbaar.
https://www.coolblue.nl/p...58/siemens-hb676gbs1.html
https://www.coolblue.nl/p...58/siemens-hb676gbs1.html
[ Voor 45% gewijzigd door Outerspace op 19-08-2020 11:31 . Reden: referral eruit gehaald ]
Wij zijn sinds kort ook op keukenjacht, en hebben nu 2 winkels gevonden waar we graag de keuze willen gaan maken.
Even een vraagje ter voorbereiding. Kan iemand aangeven wat de 'grote' verschillen zijn tussen:
Schüller A, UMA Uni Matt (K1 uitvoering) Volgens mij gelaserde kunststof fronten
Hacker Systemat AV 2035 GL
Degene die de Hacker verkoopt, geeft aan dat ze niet met elkaar te vergelijken zijn, en dat Systemat dichter bij de Next125 lijn ligt dan de bovengenoemde.
Vanuit de verschillende websites wordt mij niet veel meer duidelijk, behalve dat bij Schuller er meer opties standaard zijn (glazen zijkanten korflades) dan bij Hacker. Maar echt grote verschillen vindt ik lastig om te beoordelen.
Iemand zo een idee..
Even een vraagje ter voorbereiding. Kan iemand aangeven wat de 'grote' verschillen zijn tussen:
Schüller A, UMA Uni Matt (K1 uitvoering) Volgens mij gelaserde kunststof fronten
Hacker Systemat AV 2035 GL
Degene die de Hacker verkoopt, geeft aan dat ze niet met elkaar te vergelijken zijn, en dat Systemat dichter bij de Next125 lijn ligt dan de bovengenoemde.
Vanuit de verschillende websites wordt mij niet veel meer duidelijk, behalve dat bij Schuller er meer opties standaard zijn (glazen zijkanten korflades) dan bij Hacker. Maar echt grote verschillen vindt ik lastig om te beoordelen.
Iemand zo een idee..
Bedankt voor je reactie. Afzuiging zelf heb ik inderdaad niet in de tekening opgenomen. Er komt overigens een recirculatiekap in en openingen mechanische ventilatie zitten boven het fornuis.Marinos83 schreef op woensdag 19 augustus 2020 @ 07:39:
[...]
Ik ben zeker geen expert, maar paar vraagjes obv je tekening:
- Afzuiging staat nu niet op de muur maar wel op 2250 hoog, klopt dat wel?
- Misschien nog een WCD huishoudelijk links naast je kookplaat (staafmixer in de pan, etc)?
- Aparte WCD voor vriezer en voor koelkast, maar wel in de zelfde kast, klopt dat wel?
Ik denk dat aansluiting water in spoelkast gewoon met een stukje flexibele leiding gebeurt (van dat gewoven spul) dan zal 30 cm denk ik geen probleem zijn.
WCD links naast fornuis is idd nog een optie, net als loze leiding voor UTP op het schiereiland.
We weten nog niet zeker of we een losse vriezer+koelkast (gestapeld of naast elkaar) nemen of een combinatie. Misschien zelfs vriezer in het eiland, dus overweeg ook nog voor de zekerheid een WCD in de muur oo het eiland te zetten.
The Flying Dutchman
De eerste offerte voor onze nieuwe keuken is ook binnen. Woonkamer is zo'n 7/6 bij 8m en de muren zijn 5.5m hoog. We willen dus een keuken die impact maakt, geen knullig blokje. Eerder deelde ik al wat opstellingen en er zijn eigenlijk twee opstellingen die goed passen:
:strip_exif()/f/image/a3faPoJGMP2gamqsBTI8PZvA.jpg?f=fotoalbum_large)
Afgelopen zaterdag goed geholpen bij Verdonk voor een NEXT125 opstelling achterwand van 7 kasten van 60 met noten fineer (F685) en een eiland van 320x120 in L187M Onyxzwart fluweelmat AFP. We wilden Fenix maar dit hebben ze blijkbaar niet ingevoerd. Prijs zal dus nog wel iets hoger uitvallen, maar het geeft denk ik een goede eerste indruk. Blad op het eiland en in de mis is nu marmer. En een stol aan de zijkant maar die zie ik ook niet op de tekening.
Eigenlijk willen we bij een natuursteenhandel zelf ons stuk marmer uitkiezen zodat we een uniek stuk hebben met opvallende aders en kleuren (en eventueel bookmatch patroon). Maar nu voor hebben we dit aangehouden en gezien de prijs kan dit misschien ook nog wel goedkoper als we dit zelf regelen. Dat kon ook gaven ze aan.
/f/image/cVtMjfQqnndpQ08Uun59Hout.png?f=fotoalbum_large)
/f/image/OaaCrqTkaS9pKeQGHJBEdHZB.png?f=fotoalbum_large)
Apparatuur:
- Bora Puxu
- Quooker combi+ messing
- SIEMENS iQ700 HB876G5B6 (oven)
- SIEMENS iQ700 HS858GXB6 (oven met stoom)
- SIEMENS iQ700 SX878D46PE (vaatwasser)
- SIEMENS iQ500 GI81NAC30 (vriezer)
- SIEMENS iQ500 KI81FHD40 (koelkast)
- Liebherr UWTGB1682-20 (wijnklimaatkast)
Ik heb al veel geleerd van jullie op- en aanmerkingen dus kom maar op
Volgende week gaan we langs bij Houtwerk voor een Houtmerk Modus keuken (maatwerk) en gaan we nog naar Nootdorp voor een Cesar (dank voor de tip nog).
:strip_exif()/f/image/a3faPoJGMP2gamqsBTI8PZvA.jpg?f=fotoalbum_large)
Afgelopen zaterdag goed geholpen bij Verdonk voor een NEXT125 opstelling achterwand van 7 kasten van 60 met noten fineer (F685) en een eiland van 320x120 in L187M Onyxzwart fluweelmat AFP. We wilden Fenix maar dit hebben ze blijkbaar niet ingevoerd. Prijs zal dus nog wel iets hoger uitvallen, maar het geeft denk ik een goede eerste indruk. Blad op het eiland en in de mis is nu marmer. En een stol aan de zijkant maar die zie ik ook niet op de tekening.
Eigenlijk willen we bij een natuursteenhandel zelf ons stuk marmer uitkiezen zodat we een uniek stuk hebben met opvallende aders en kleuren (en eventueel bookmatch patroon). Maar nu voor hebben we dit aangehouden en gezien de prijs kan dit misschien ook nog wel goedkoper als we dit zelf regelen. Dat kon ook gaven ze aan.
/f/image/cVtMjfQqnndpQ08Uun59Hout.png?f=fotoalbum_large)
/f/image/OaaCrqTkaS9pKeQGHJBEdHZB.png?f=fotoalbum_large)
Apparatuur:
- Bora Puxu
- Quooker combi+ messing
- SIEMENS iQ700 HB876G5B6 (oven)
- SIEMENS iQ700 HS858GXB6 (oven met stoom)
- SIEMENS iQ700 SX878D46PE (vaatwasser)
- SIEMENS iQ500 GI81NAC30 (vriezer)
- SIEMENS iQ500 KI81FHD40 (koelkast)
- Liebherr UWTGB1682-20 (wijnklimaatkast)
Members only: title
Alleen zichtbaar voor ingelogde gebruikers.
Inloggen
Ik heb al veel geleerd van jullie op- en aanmerkingen dus kom maar op
Volgende week gaan we langs bij Houtwerk voor een Houtmerk Modus keuken (maatwerk) en gaan we nog naar Nootdorp voor een Cesar (dank voor de tip nog).
Inmiddels ruim een maand in gebruik na de verhuizing en wordt het tijd om weer wat te delen
Begin juni is onze Nobilia keuken geplaatst door Keukensale
Uiteindelijk hebben we gekozen voor de Nobilia keuken van Keukensale Deventer. We waren nog steeds meer gecharmeerd van de Systemat van Thuiskeukens, maar Nobilia vonden wij ook dik in orde ("wat maakt die witte binnenkant nou eigenlijk uit") met alles soft-close. Dat in combinatie met lokale vestiging waarbij wij in het werkgebied van eigen monteurs vallen en een goede klik met de verkoper+gunfactor haalde ons over de streep. Uiteindelijk ook een akkoord bereikt dat we zelf apparatuur aan konden schaffen, maar wel door Keukensale werd geplaatst. Erg tevreden over de plaatsing. Deurtjes die beter moesten worden afgesteld en beschadigd zijpaneel zijn keurig netjes opgelost.
Wat is er geplaatst aan kasten?
- Lange wand van 370cm: Lemans hoekkast van 125cm, 2x ladekasten van 120cm met binnenlades. Bovenkast met klepdeur van 100cm.
- Korte wand van 250cm: 2x hoge kast van 218cm hoog met lades en deur en ruimte voor inbouwapparaat van 60cm
- Spoeleiland kookzijde 240cm: Vaatwasserfront, spoelkast van 60cm met deur en ladekast van 120cm met binnenlade
- Spoeleiland eetzijde 240cm: 2x plankenkast van 120cm met 60cm deuren.
Wat voor apparatuur?
Kookplaat: Atag HI9572SV
Afzuigkap: Novy 7848
Oven: Siemens HB675GBS1
Combimagnetron: Siemens HM633GNS1
Vaatwasser: Bosch SBE68TX26E
Koelkast: Liebherr Kbbs4370
Er gaat nog een losse diepvries in de berging komen. Voor elk apparaat was wel een goede reden te bedenken om het niet minder luxe, of voor ovens juist luxer, te doen. Dit pakket, bij verschillende leveranciers gehaald, paste het best bij onze wensen en prijs. Bijvoorbeeld koelkast wilden we niet per se inbouw, maar wel goed; deze kost ons minder dan een goede inbouwvariant inclusief kast en heeft netto meer ruimte. Tot nu wel erg tevreden over elk apparaat!
En verder?
Werkblad is van keramiek, kleur "boogie silk", merk volgens mij Dekker Zevenhuizen, 4 cm opgedikt met bijhorende spatrand aan lange zijde. Lengtes van 244cm (spoeleiland), 307cm en 65cm (lange wand). Lange wand kon niet in 1 stuk. En zon'"flip"stekkerdoos op het spoeleiland - suggestie van verkoper, enige waar op werd aangedrongen, waar wij niet zo enthusiast over waren, is nu meest gebruikte stopcontact in het huis. Lanesto eenhendelmengkraan en 50x40cm spoelbak in "gunmetal". Spatplaat van aluminium achter de kookplaat. Onder de bovenkast en elk plankje in de hoek zit ingefreesde dimbare ledverlichting.
Wat heeft het gekost?
12.000 kasten, werkblad en accessoires.
7.500 apparatuur
1.500 montage
----------
21.000 totaal
1.000 meer dan we in eerste instantie in gedachten hadden, maar voor ons gevoel wel echt een goede keuken met mooie apparatuur daarvoor terug gekregen. Dit is zonder 2.400 meerwerk (voor vrijval vervallen standaard keuken) vanuit de bouw voor het aanpassen van leidingwerk en elektra. Dit hadden we in 2018 al laten doen omdat we de projectleverancier totaal niks vonden en geen zin hadden ergens anders gelijk rond te zoeken. Daarom indeling zelf uitgedacht en daar later een keuken bij gezocht.
Jaja, wel klaar met lezen, heel leuk, foto's?
Ok, foto's. Even voor het idee: de kamer is verder 5,80m breed. Het eetgedeelte wordt in september nog vervangen door een grote eettafel met eetkamerbank en stoelen. We denken nog steeds wel weg te komen met een spoeleiland.
Keuken | ||
![]() | ![]() | ![]() |
![]() | ![]() | ![]() |
@Alice3, op welk manier gaan jullie gebruik maken van die hoogte?
5,5m is hoog genoeg voor een entresol.
In ons spilt level woning krijgen wij aan 1 kant een hoogte van 4m.
Leuk voor het effect maar eigenlijk kun je weinig doen moet die extra ruimte.
Welke oplossing hebben jullie om galm tegen te gaan.
5,5m is hoog genoeg voor een entresol.
In ons spilt level woning krijgen wij aan 1 kant een hoogte van 4m.
Leuk voor het effect maar eigenlijk kun je weinig doen moet die extra ruimte.
Welke oplossing hebben jullie om galm tegen te gaan.
Stuur dit lijstje eens naar Keukenloods.nl, ben benieuwd waar zijn mee komen.[b]Alic3 in "Het Grote Keuken topic: verkopers, kwaliteit, prijs - Deel 3"
Apparatuur:
- Bora Puxu
- Quooker combi+ messing
- SIEMENS iQ700 HB876G5B6 (oven)
- SIEMENS iQ700 HS858GXB6 (oven met stoom)
- SIEMENS iQ700 SX878D46PE (vaatwasser)
- SIEMENS iQ500 GI81NAC30 (vriezer)
- SIEMENS iQ500 KI81FHD40 (koelkast)
- Liebherr UWTGB1682-20 (wijnklimaatkast)
***members only***
Ik heb al veel geleerd van jullie op- en aanmerkingen dus kom maar op
@NNCi Klopt, alle buren op de eerste verdieping (appartementencomplex) in het rijtje hebben standaard een entresol, wij niet. Naast dat het geen optie is, vinden we die loft uitstraling ook heel bijzonder. Dat was voor ons een reden om juist deze te nemen en niet een van de andere opties. Tsja gebruikmaken van de ruimte, je hebt er vrij weinig aan behalve uitstraling. Ook mooi uitzicht naar boven als je bijv. op het toilet zit
We zijn al met een interieurontwerper in gesprek en die gaf aan een combinatie van gordijnen, geluiddempende wandpanelen/kunstwerken en hebt lampen die geluiddempend werken. Dit is zeker een uitdaging maar die gaan graag aan als de keuken en badkamer rond zijn.
@yvonnetermeer Ik heb het lijstje al doorgegeven maar nog geen reactie gehad. Ik heb een lijstje Siemens en een lijstje Miele doorgegeven. Ben zelf ook benieuwd wat het verschil is.

We zijn al met een interieurontwerper in gesprek en die gaf aan een combinatie van gordijnen, geluiddempende wandpanelen/kunstwerken en hebt lampen die geluiddempend werken. Dit is zeker een uitdaging maar die gaan graag aan als de keuken en badkamer rond zijn.
@yvonnetermeer Ik heb het lijstje al doorgegeven maar nog geen reactie gehad. Ik heb een lijstje Siemens en een lijstje Miele doorgegeven. Ben zelf ook benieuwd wat het verschil is.
Ik kan niks vertellen over Hacker, maar ik heb via Superkeukens een Schüller keuken en het overzicht van de frontjes kan je hier vinden: https://www.schueller.de/nl/gestaltung/frontenuebersicht.htmRostares schreef op woensdag 19 augustus 2020 @ 10:52:
Wij zijn sinds kort ook op keukenjacht, en hebben nu 2 winkels gevonden waar we graag de keuze willen gaan maken.
Even een vraagje ter voorbereiding. Kan iemand aangeven wat de 'grote' verschillen zijn tussen:
Schüller A, UMA Uni Matt (K1 uitvoering) Volgens mij gelaserde kunststof fronten
Hacker Systemat AV 2035 GL
Degene die de Hacker verkoopt, geeft aan dat ze niet met elkaar te vergelijken zijn, en dat Systemat dichter bij de Next125 lijn ligt dan de bovengenoemde.
Vanuit de verschillende websites wordt mij niet veel meer duidelijk, behalve dat bij Schuller er meer opties standaard zijn (glazen zijkanten korflades) dan bij Hacker. Maar echt grote verschillen vindt ik lastig om te beoordelen.
Iemand zo een idee..
Ik heb bijv. UNI MATT P192 (Lavazwart) frontjes en die staat in een rij van laklaminaat en de uitvoering daarvan kan je hier vinden: https://www.schueller.de/...rsicht/kuechenfronten.htm Daar staat de beschrijving van laklaminaat: "Een briljant, hoogglanzend, mat of metallic-kleurig front met PVC-vrij oppervlak. Eerst wordt een hoogwaardige PET-folie aangebracht op een MDFbasisplaat die vervolgens in het productieproces wordt gelakt."
De korpus is bij mij K190 en dat is kunstof, oftwel "Zeer sterke fronten met een hoogwaardige melamine toplaag. Aan deze toplaag kan structuur worden meegegeven waardoor deze vaak als houtprint aangeboden wordt. Ook in unikleuren leverbaar."
Kortom, met de kleurcode en de 2 url's kan je zelf nagaan wat de uitvoering is.
[ Voor 7% gewijzigd door Mr_Blobby op 19-08-2020 16:58 ]
en zij zagen niet hoe spot in mij worstelde met verdriet
Alic3, je kan de hoogte in. Wordt gelijk een statement en dan kun je de rest rustig en laag houden.
Zoiets:
Zoiets:

@Alic3 ik vind de keuken erg mooi, maar ik vind het op de plattegrond mooier staan als de eettafel bij de deur staat, dan kun je ook rond het eiland lopen en dat vind ik mooier dan een schiereiland, maar dat is mijn persoonlijke voorkeur, het ziet er sowieso prachtig uit met de houten hoge kasten en dan dat donkere eiland.
Why be difficult when, with a bit of effort, you could be impossible?
.
[ Voor 99% gewijzigd door Deleon78 op 26-07-2021 16:19 ]
5.5m is sowieso niet praktisch. Wat grote vakken gebruiken en eyecatchers erin.
@Streamz Goed idee inderdaad, de ramen zijn ook zo'n 3m bij 5.5m hoog dus dan heb je al een beetje het idee/gevoel van jouw plaatje. We hebben al zo'n hoge kast gepland aan de andere kant van de woonkamer. Want we moeten toch ergens die hoogte in. Paar grote decoratieve items erin en hopen dat niemand de stof ziet na een tijdje want je kunt er niet echt makkelijk bij.
@Leandra66 Eiland waar je om heen kunt lopen zoals bij B is ook nog steeds een optie, die wil ik ook laten uitwerken binnenkort om het met elkaar te vergelijken. Je keuken dichtbij het raam heeft ook wel wat. Maar je levert in op de ruimte van je eiland (50cm minder) en je zit met een loos nisje linksboven in de boek. Nu is 270 nog steeds groot voor een eiland. Maar 320 is nét wat langer als we voor de opstelling met schiereiland zouden gaan.
@Deleon78 Het is zeker niet praktisch haha, maar wel mooi. En muurbekleding gaat ook nog wel een rol spelen. Kan niet wachten om die offertes te zien
@Leandra66 Eiland waar je om heen kunt lopen zoals bij B is ook nog steeds een optie, die wil ik ook laten uitwerken binnenkort om het met elkaar te vergelijken. Je keuken dichtbij het raam heeft ook wel wat. Maar je levert in op de ruimte van je eiland (50cm minder) en je zit met een loos nisje linksboven in de boek. Nu is 270 nog steeds groot voor een eiland. Maar 320 is nét wat langer als we voor de opstelling met schiereiland zouden gaan.
@Deleon78 Het is zeker niet praktisch haha, maar wel mooi. En muurbekleding gaat ook nog wel een rol spelen. Kan niet wachten om die offertes te zien
Ik denk dat in opstelling A het wel een lange soort gang wordt tussen eiland en kasten, waar je maar aan een kant uit kan. Dat zou me tegen staan, maar je hebt wel de tafel bij de ramen staan en dat is dan een fijne plek om te zitten. Ik zou liever mijn tafel bij het raam hebben dan mijn keuken. Kun je het eiland niet een kwartslag draaien zodat je ook langs de bovenste wand de keuken in en uit kan?Alic3 schreef op woensdag 19 augustus 2020 @ 15:37:
De eerste offerte voor onze nieuwe keuken is ook binnen. Woonkamer is zo'n 7/6 bij 8m en de muren zijn 5.5m hoog. We willen dus een keuken die impact maakt, geen knullig blokje. Eerder deelde ik al wat opstellingen en er zijn eigenlijk twee opstellingen die goed passen:
[Afbeelding]
Afgelopen zaterdag goed geholpen bij Verdonk voor een NEXT125 opstelling achterwand van 7 kasten van 60 met noten fineer (F685) en een eiland van 320x120 in L187M Onyxzwart fluweelmat AFP. We wilden Fenix maar dit hebben ze blijkbaar niet ingevoerd. Prijs zal dus nog wel iets hoger uitvallen, maar het geeft denk ik een goede eerste indruk. Blad op het eiland en in de mis is nu marmer. En een stol aan de zijkant maar die zie ik ook niet op de tekening.
Eigenlijk willen we bij een natuursteenhandel zelf ons stuk marmer uitkiezen zodat we een uniek stuk hebben met opvallende aders en kleuren (en eventueel bookmatch patroon). Maar nu voor hebben we dit aangehouden en gezien de prijs kan dit misschien ook nog wel goedkoper als we dit zelf regelen. Dat kon ook gaven ze aan.
[Afbeelding]
[Afbeelding]
Apparatuur:
- Bora Puxu
- Quooker combi+ messing
- SIEMENS iQ700 HB876G5B6 (oven)
- SIEMENS iQ700 HS858GXB6 (oven met stoom)
- SIEMENS iQ700 SX878D46PE (vaatwasser)
- SIEMENS iQ500 GI81NAC30 (vriezer)
- SIEMENS iQ500 KI81FHD40 (koelkast)
- Liebherr UWTGB1682-20 (wijnklimaatkast)
***members only***
Ik heb al veel geleerd van jullie op- en aanmerkingen dus kom maar op
Volgende week gaan we langs bij Houtwerk voor een Houtmerk Modus keuken (maatwerk) en gaan we nog naar Nootdorp voor een Cesar (dank voor de tip nog).
Tjebakka schreef op woensdag 19 augustus 2020 @ 08:47:
Wij hebben gister een tripje gemaakt naar Marquardt Küchen in Oisterwijk. Ontzettend fijne en mooie zaak. We hebben een volledig witte Nobilia Easytouch besteld met het meest witte composieten blad (2cm), in parallelle opstelling met de volgende apparatuur.
Het werkblad, waar spoelbak en de kookplaat in komen is 320cm breed, zonder bovenkastjes. De apparatenwand wordt +/- 215cm hoog en 180cm breed.
Bora PURU
Quooker Fusion Square zwart
Zwarte Caressi spoelbak (50cm)
Siemens IQ500 HB537ABS0 60cm bakoven
Siemens IQ500 CP565AGS0 45cm combimagnetron
Zanussi ZBA32060SA koelkast (180cm)
Zanussi ZUAN88ES vriezer (88cm)
Zanussi ZDT26030FA vaatwasser
€14.335 incl plaatsen
/f/image/TNdHfknLvX7cNsN6gfmE9GZI.png?f=fotoalbum_large)
/f/image/kt6q8IQhyqMasALLz5NtBR25.png?f=fotoalbum_large)
/f/image/LAFLSB9hian1k7U8luE9ugGo.png?f=fotoalbum_large)
Nu met foto's.
If it aint fixed, it's broken.
@Alic3 zijn al wat opmerkingen gemaakt natuurlijk, maar die keuken mag echt wel wat gedurfder in die ruimte. Je zou er haast een hele wand met boekenkast en verplaatsbare trap van maken ofzo. Beetje a la het idee van @Streamz
Sowieso vind ik eerlijk gezegd die ovens boven elkaar niet echt mooi.
Zou zelf kijken of je die wand helemaal kunt vullen over de breedte. Eventueel wat contrast kleuren.
Sowieso vind ik eerlijk gezegd die ovens boven elkaar niet echt mooi.
Zou zelf kijken of je die wand helemaal kunt vullen over de breedte. Eventueel wat contrast kleuren.
Zijn die hoogtes ten opzichte van het hart?The Flying Dutchman schreef op dinsdag 18 augustus 2020 @ 21:04:
Naar aanleiding van de eerdere reacties op mijn vraag waar ik op moet letten als ik zelf een technische tekening maak (om te voorkomen dat ik nu al een offerte moet tekenen terwijl nieuwbouwwoning pas over anderhalf jaar opgeleverd wordt) ben ik aan het tekenen gegaan. Onderstaand mijn tekening, ben benieuwd of er nog opmerkingen over zijn.
Paar aandachtspuntjes:
- In offerte die we hebben is de plinthoogte vrij laag (10cm), dus ik heb de WCD voor apparatuur op 75mm gezet ipv 100mm.
- Hoogte waterleidingen en afvoer heb ik overgenomen uit tekeningen die ik via Google heb gevonden (zoekterm 'Bruynzeel installatie tekening', dan krijg je een aantal voorbeelden uit documentatie nieuwbouwprojecten met standaard keuken).
- We zijn nog niet 100% zeker hoe we precies de gootsteen willen hebben. Ik heb de waterleidingen + afvoer nu zo geplaatst dat ze in ieder geval altijd binnen het gootsteen kastje zullen vallen. Het gootsteenkastje willen we misschien 30cm naar rechts schuiven (op tekening naar beneden). Dat betekent dat leidingen misschien niet kaarsrecht onder de kranen/afvoer zitten. Ik vermoed dat een installateur misschien even moppert maar er toch wel raad mee weet? Of zou er dan alsnog een loodgieter/stucadoor aan te pas moeten komen?
[Afbeelding]
Want een WCD is al gauw 80mm hoog (dus 40 vanuit het hart), als je die dan op 75mm vanaf de vloer zet dan kom je alsnog in de knoei?
Dubbele WCD ook altijd vermelden of die horizontaal of verticaal moet.
Dank voor het antwoord.Mr_Blobby schreef op woensdag 19 augustus 2020 @ 16:53:
[...]
Ik kan niks vertellen over Hacker, maar ik heb via Superkeukens een Schüller keuken en het overzicht van de frontjes kan je hier vinden: https://www.schueller.de/nl/gestaltung/frontenuebersicht.htm
Ik heb bijv. UNI MATT P192 (Lavazwart) frontjes en die staat in een rij van laklaminaat en de uitvoering daarvan kan je hier vinden: https://www.schueller.de/...rsicht/kuechenfronten.htm Daar staat de beschrijving van laklaminaat: "Een briljant, hoogglanzend, mat of metallic-kleurig front met PVC-vrij oppervlak. Eerst wordt een hoogwaardige PET-folie aangebracht op een MDFbasisplaat die vervolgens in het productieproces wordt gelakt."
De korpus is bij mij K190 en dat is kunstof, oftwel "Zeer sterke fronten met een hoogwaardige melamine toplaag. Aan deze toplaag kan structuur worden meegegeven waardoor deze vaak als houtprint aangeboden wordt. Ook in unikleuren leverbaar."
Kortom, met de kleurcode en de 2 url's kan je zelf nagaan wat de uitvoering is.
Ik heb dus volgens mij dezelfde frontjes als die jij hebt alleen dan in een andere kleur. De winkel waar ik ben geweest is volgens mij ook gelieerd aan Superkeukens dus dat zou goed kunnen. Ben wel benieuwd wat een Systemat een (eventueel) betere keuken maakt. Of dat er misschien specifieke functionaliteit in aanwezig is wat Schuller niet heeft.
Heb je zo niet ontzettend weinig keukenblad? Het ziet er strak uit hoor, maar qua werkruimte ontloopt je een standaard woningbouwvereniging keukenblokje nauwelijks. Zou je niet alleen daarom niet ook onder je raam iets zetten?Tjebakka schreef op woensdag 19 augustus 2020 @ 22:20:
[...]
[Afbeelding]
[Afbeelding]
[Afbeelding]
Nu met foto's.
Groot genoeg voor 2 hoofdletters
Helemaal mee eens zo. Als je een koffiezetapparaat en een fruitschaal hebt staan dan is er geen ruimte meer om iets te snijden.PaT schreef op woensdag 19 augustus 2020 @ 23:23:
[...]
Heb je zo niet ontzettend weinig keukenblad? Het ziet er strak uit hoor, maar qua werkruimte ontloopt je een standaard woningbouwvereniging keukenblokje nauwelijks. Zou je niet alleen daarom niet ook onder je raam iets zetten?
Het lijkt tegenwoordig ouderwets, maar deze ruimte is uitstekend geschikt voor een U-opstelling.
@PaT Wel een hele mooie keuken, maar ik zou nog eens kijken naar de indeling.
Ook zonder in te boeten aan praktisch gebruik kan je het wel wel rustiger maken. Je zou bijvoorbeeld voor de onderste lades in plaats van een greeplijst push-to-open kunnen nemen. Dat zal al een veel rustiger beeld geven.Leandra66 schreef op dinsdag 18 augustus 2020 @ 23:47:
[...]
Was niet hun idee, maar het mijne, hoewel we er wel wat aanpassingen aan gedaan hebben om lijnen gelijker te hebben.
Kasten staan met een reden op de plekken waar ze staan (met uitzondering aan de achterkant van het eiland).
En ja, ik weet dat het ook anders zou kunnen maar dan wordt de inrichting van de kasten ook anders en dat is nou net niet de bedoeling
Ik heb vooral voor pragmatisch gekozen; dat wat het handigst voor mij werkt, dat twee ovens boven elkaar mooier zou staan snap ik ook wel, maar ik heb ze liever op dezelfde hoogte zodat je nooit boven je macht tilt.
PaT schreef op woensdag 19 augustus 2020 @ 23:23:
[...]
Heb je zo niet ontzettend weinig keukenblad? Het ziet er strak uit hoor, maar qua werkruimte ontloopt je een standaard woningbouwvereniging keukenblokje nauwelijks. Zou je niet alleen daarom niet ook onder je raam iets zetten?
U-opstelling kan niet omdat de onderkant van het raam op 90cm zit. Een aanrecht op 90cm is echt veel te laag voor mij en ik wil ook geen lelijke uitsparingen bij het raam. Het blad is 350cm en je kan als het moet nog een snijplank op de kookplaat leggen. Qua ruimte die we kunnen gebruiken is het niet minder dan we nu hebben.Ojjorz schreef op donderdag 20 augustus 2020 @ 08:00:
[...]
Helemaal mee eens zo. Als je een koffiezetapparaat en een fruitschaal hebt staan dan is er geen ruimte meer om iets te snijden.
Het lijkt tegenwoordig ouderwets, maar deze ruimte is uitstekend geschikt voor een U-opstelling.
@PaT Wel een hele mooie keuken, maar ik zou nog eens kijken naar de indeling.
[ Voor 3% gewijzigd door Tjebakka op 20-08-2020 08:55 ]
If it aint fixed, it's broken.
Die lange gang is ook wel waar ik nog wel een beetje over twijfel. Wordt dat niet irritant als je steeds moet omlopen? Maar ik ga er vanuit dat je meestal in de woonkamer bent en dan loop je relatief minder om. Als je vanuit de gang komt loop je wel meer om ja.Marinos83 schreef op woensdag 19 augustus 2020 @ 20:56:
[...]
Ik denk dat in opstelling A het wel een lange soort gang wordt tussen eiland en kasten, waar je maar aan een kant uit kan. Dat zou me tegen staan, maar je hebt wel de tafel bij de ramen staan en dat is dan een fijne plek om te zitten. Ik zou liever mijn tafel bij het raam hebben dan mijn keuken. Kun je het eiland niet een kwartslag draaien zodat je ook langs de bovenste wand de keuken in en uit kan?
Een kwartslag draaien is lastig. Je zit al snel in de looplijn van je woonkamer en je eiland moet dan dus een stuk korter zijn. We willen graag een flink eiland. Ook zit je dan met je hoge kasten, een doorlopende wand met nis is dan niet echt meer mogelijk, en dat vinden we ook mooi.
In deze post liet ik al eens wat andere opstellingen zien, waarvan de meeste dus zijn afgevallen. Alic3 in "Het Grote Keuken topic: verkopers, kwaliteit, prijs - Deel 3"
Dit is ook de eerste versie van een niet maatwerk keuken. We dachten in eerste instantie meteen aan maatwerk want dan is vrijwel alles mogelijk. Maar ik was toch benieuwd wat je voor opstelling zou kunnen maken met standaard elementen. Nouja dan wordt het dus zoiets. Die twee ovens wil ik bij nader inzien bij deze 'versie' ook wel naast elkaar. 8 kasten past ook met het voordeel dat het symmetrisch wordt en dan is er plek om die ovens naast elkaar te zetten.MikeyMan schreef op woensdag 19 augustus 2020 @ 22:30:
@Alic3 zijn al wat opmerkingen gemaakt natuurlijk, maar die keuken mag echt wel wat gedurfder in die ruimte. Je zou er haast een hele wand met boekenkast en verplaatsbare trap van maken ofzo. Beetje a la het idee van @Streamz
Sowieso vind ik eerlijk gezegd die ovens boven elkaar niet echt mooi.
Zou zelf kijken of je die wand helemaal kunt vullen over de breedte. Eventueel wat contrast kleuren.
Ik verwacht ook meer van mijn afspraken voor het ontwerp een maatwerkkeuken. Bij Houtmerk hebben we een afspraak voor een keuken staan met iemand die ook interieurs ontwerpt. Die is vast iets creatiever en wordt ook niet beperkt door een lijn met standaard keukenkastjes denk, nee hóóp ik
Even een vraag met betrekking tot de aanschaf en installatie van de apparatuur. Bestellen jullie de apparatuur apart voor de scherpste prijs (wat zijn dan goede sites?) of is dit toch een kwestie van afdingen bij de keuken leverancier? In het eerste geval als je de apparatuur ergens anders koopt, hoe ga je dan om met de installatie van deze apparatuur? Wordt dit dan alsnog door de keukenleverancier gedaan of moet je dit dan zelf organiseren?
Niet om mijn gelijk te halen, maar heb je ervaring met de huidige werkruimte? Als in, heb je het nu ook zo en ben je tevreden? Als dat zo is; prima. Als dat niet zo is, zou ik er nog eens over nadenken.Tjebakka schreef op donderdag 20 augustus 2020 @ 08:54:
[...]
[...]
U-opstelling kan niet omdat de onderkant van het raam op 90cm zit. Een aanrecht op 90cm is echt veel te laag voor mij en ik wil ook geen lelijke uitsparingen bij het raam. Het blad is 350cm en je kan als het moet nog een snijplank op de kookplaat leggen. Qua ruimte die we kunnen gebruiken is het niet minder dan we nu hebben.
Als je nog een stuk blad doortrekt naast de apparatenkast (tot aan de muur) en daar ook stopcontact plaatst, kan je daar in ieder geval al je koffiezetapparaat en waterkoker kwijt. Dan hou je in ieder geval zuiver werkblad over bij je spoelbak en kookplaat.
Yes, ervaring met de huidige ruimte. Het lijkt op de afbeeldingen een beetje anders, maar ivm het raam is het doortrekken van een blad niet mooi.Ojjorz schreef op donderdag 20 augustus 2020 @ 09:02:
[...]
Niet om mijn gelijk te halen, maar heb je ervaring met de huidige werkruimte? Als in, heb je het nu ook zo en ben je tevreden? Als dat zo is; prima. Als dat niet zo is, zou ik er nog eens over nadenken.
Als je nog een stuk blad doortrekt naast de apparatenkast (tot aan de muur) en daar ook stopcontact plaatst, kan je daar in ieder geval al je koffiezetapparaat en waterkoker kwijt. Dan hou je in ieder geval zuiver werkblad over bij je spoelbak en kookplaat.
@Ojjorz het blad is overigens dieper dan standaard, dus dat levert ook alweer ruimte op. Onze Nespresso komt in de apparatenwand te staan. Waterkoker hoeft niet meer ivm Quooker. Dus dat levert ook weer ruimte op.
Verder lijkt het misschien een saaie keuken, maar wij wilden graag een strakke keuken die niet trendgevoelig is én die de ruimte niet te klein doet lijken. En ach wij zijn er heel blij mee dus wat jullie er van vinden maakt me ook niet uit
[ Voor 23% gewijzigd door Tjebakka op 20-08-2020 09:21 ]
If it aint fixed, it's broken.
Haha groot gelijk. Ik vind hem zeker niet saai; dat lichte blad op de lichte kastjes vind ik erg fraai. Ik dacht dat je nog input wilde over de opstelling; vandaar mijn advies.Tjebakka schreef op donderdag 20 augustus 2020 @ 09:10:
[...]
Yes, ervaring met de huidige ruimte. Het lijkt op de afbeeldingen een beetje anders, maar ivm het raam is het doortrekken van een blad niet mooi.
@Ojjorz het blad is overigens dieper dan standaard, dus dat levert ook alweer ruimte op. Onze Nespresso komt in de apparatenwand te staan. Waterkoker hoeft niet meer ivm Quooker. Dus dat levert ook weer ruimte op.
Verder lijkt het misschien een saaie keuken, maar wij wilden graag een strakke keuken die niet trendgevoelig is én die de ruimte niet te klein doet lijken. En ach wij zijn er heel blij mee dus wat jullie er van vinden maakt me ook niet uit
Ik snap wat je bedoelt maar push-to-open is wat mij betreft een absolute no-go.Don Quijote schreef op donderdag 20 augustus 2020 @ 08:13:
[...]
Ook zonder in te boeten aan praktisch gebruik kan je het wel wel rustiger maken. Je zou bijvoorbeeld voor de onderste lades in plaats van een greeplijst push-to-open kunnen nemen. Dat zal al een veel rustiger beeld geven.
Ik heb een spierprobleempje en altijd ruzie met die push-to-open.
Dat is bijvoorbeeld ook de reden dat er een onderbouw vaatwasser komt, die heeft een eigen RVS-front en de deur is daarmee veel lichter dan bij een (volledig) geïntegreerde vaatwasser, want die krijg ik met een normaal handvat al moeilijk open, en een greeploze al helemaal niet

Ik snap wat je zegt maar de keuzes die ik hierin maak zijn echt heel bewust.
En al ik het helemaal optimaal zo willen doen zou het niet eens greeploos worden, maar al die grepen vind ik nog veel onrustiger.
Dit is dus waar ik nog wel mee wegkom, push-to-open is geen alternatief, grepen zouden het enige alternatief zijn, en daar word ik echt heel ongelukkig van.
Why be difficult when, with a bit of effort, you could be impossible?
Nog zoveel opties, die de ruimte echt uniek kunnen maken. Zet midden in die ruimte, ter hoogte van het eiland een hoge maar open roomdividerAlic3 schreef op donderdag 20 augustus 2020 @ 08:55:
[...]
[...]
. We dachten in eerste instantie meteen aan maatwerk want dan is vrijwel alles mogelijk. Maar ik was toch benieuwd wat je voor opstelling zou kunnen maken met standaard elementen.

Met een laag deel over bijna de gehele breedte van de ruimte. Tegen de muur dus. Laag achter hoog creeert diepte.

En zoals op 1 van je schetsen, een blok van 3 ingebouwde hoge kasten naast die deur.
Genoeg mogelijkheden.
Offtopic, maar wellicht akoestisch plafond? Kan via spanplafond maar ook stuc. Laatste is wel stuk prijziger.Alic3 schreef op woensdag 19 augustus 2020 @ 16:49:
@NNCi
We zijn al met een interieurontwerper in gesprek en die gaf aan een combinatie van gordijnen, geluiddempende wandpanelen/kunstwerken en hebt lampen die geluiddempend werken. Dit is zeker een uitdaging maar die gaan graag aan als de keuken en badkamer rond zijn.
Vandaag bij de eerste keukenzaak geweest (Bruynzeel) en het ontwerp wat ik in mijn hoofd had zonder (al te grote) compromissen uit te laten werken en een offerte van te laten maken.
Uiteindelijk is het een schiereiland van 180x95 geworden met aan de kamerkant een zit/bar gedeelte, met eikenkleur greeploze fronten en een matte lijsteengrijs plat.
Een spoelgedeelte van 160 met daarnaast 2 hoge kasten (221 zonder plint) waarin de oven en een koelvriescombinatie zitten met matte lijsteengrijze fronten en een eikenkleur blad/nis.
In eerste instantie hadden we de keuken samengesteld met atag apparatuur (mede omdat de kookplaat en oven daar mooi in het ontwerp pasten) maar daarmee viel die uiteindelijk toch nog redelijk wat buiten mijn geplande budget (alhoewel het minder was als ik zelf had verwacht)
Hierna toch wat aanpassingen gedaan en voor AEG apparatuur gegaan
:strip_exif()/f/image/gmEChqGLRmTCyx85HuBSNl0i.jpg?f=fotoalbum_large)
:strip_exif()/f/image/OvXSrsqWy9frtz3kKsvhCz2H.jpg?f=fotoalbum_large)
:strip_exif()/f/image/zHlzBIDsvh9vA3w7EFDns58N.jpg?f=fotoalbum_large)
Ik weet niet of er nog mensen op of aanmerking hierop hebben? Of dingen die wellicht anders kunnen (waar ikzelf nog niet aan gedacht heb)?
Volgende week nog een afspraak bij een andere keukenzaak in de buurt, van het weekend wilde ik nog even bij Avanti keukens in Kesteren naar de showroom gaan kijken (afspraak daar is pas half september..) En ik zit er nog over na te denken of het wellicht nog iets is om naar Klomp te gaan..
Uiteindelijk is het een schiereiland van 180x95 geworden met aan de kamerkant een zit/bar gedeelte, met eikenkleur greeploze fronten en een matte lijsteengrijs plat.
Een spoelgedeelte van 160 met daarnaast 2 hoge kasten (221 zonder plint) waarin de oven en een koelvriescombinatie zitten met matte lijsteengrijze fronten en een eikenkleur blad/nis.
In eerste instantie hadden we de keuken samengesteld met atag apparatuur (mede omdat de kookplaat en oven daar mooi in het ontwerp pasten) maar daarmee viel die uiteindelijk toch nog redelijk wat buiten mijn geplande budget (alhoewel het minder was als ik zelf had verwacht)
Hierna toch wat aanpassingen gedaan en voor AEG apparatuur gegaan
Members only:
Alleen zichtbaar voor ingelogde gebruikers.
Inloggen
:strip_exif()/f/image/gmEChqGLRmTCyx85HuBSNl0i.jpg?f=fotoalbum_large)
:strip_exif()/f/image/OvXSrsqWy9frtz3kKsvhCz2H.jpg?f=fotoalbum_large)
:strip_exif()/f/image/zHlzBIDsvh9vA3w7EFDns58N.jpg?f=fotoalbum_large)
Ik weet niet of er nog mensen op of aanmerking hierop hebben? Of dingen die wellicht anders kunnen (waar ikzelf nog niet aan gedacht heb)?
Volgende week nog een afspraak bij een andere keukenzaak in de buurt, van het weekend wilde ik nog even bij Avanti keukens in Kesteren naar de showroom gaan kijken (afspraak daar is pas half september..) En ik zit er nog over na te denken of het wellicht nog iets is om naar Klomp te gaan..
Iets breder eiland geen optie?
De kookplaat is 49cm, installatie pakweg 5cm van de rand? en dan hou je aan de bar kant 30cm over, daar komen kookspetters...
De kookplaat is 49cm, installatie pakweg 5cm van de rand? en dan hou je aan de bar kant 30cm over, daar komen kookspetters...
[ Voor 4% gewijzigd door mitsumark op 20-08-2020 22:25 ]
Zie net dat ik de breedte van het eiland verkeerd had opgeschreven, dat moest 95cm zijn ipv 85cm en dan hou je dus 40cm over ipv 30cmmitsumark schreef op donderdag 20 augustus 2020 @ 22:24:
Iets breder eiland geen optie?
De kookplaat is 49cm, installatie pakweg 5cm van de rand? en dan hou je aan de bar kant 30cm over, daar komen kookspetters...
Ik heb inderdaad nagedacht om het eiland 120 breed te maken, dan zou ik tussen de wand en het eiland 130cm overhouden qua doorloopruimte, wat opzicht nog genoeg moet zijn, ik weet echter niet of dat dat uitkomt met de deur zoals die daar staat.
Heeft iemand misschien een foto van een hoge lade van zijn systemat keuken? Ik dacht dat deze lades waren uitgerust met verhoogde glazen zijkant. Of mij is de classic aangesmeerd of ze hebben de lijn uitgekleed. Ik ben benieuwd!
Volgens mij zijn dit de opties voor lades:
https://thuiskeukens.nl/h...eukens/laden-systeem.html
Dus niet standaard glas.
https://thuiskeukens.nl/h...eukens/laden-systeem.html
Dus niet standaard glas.
Bij onze systemat waren de glazen zijkanten standaard.4/5 maanden geleden gekocht.michel91 schreef op vrijdag 21 augustus 2020 @ 10:23:
Heeft iemand misschien een foto van een hoge lade van zijn systemat keuken? Ik dacht dat deze lades waren uitgerust met verhoogde glazen zijkant. Of mij is de classic aangesmeerd of ze hebben de lijn uitgekleed. Ik ben benieuwd!
Overigens lijkt het alsof ze alleen tegen meerprijs worden geleverd.
https://thuiskeukens.nl/h.../systemat-of-classic.html
Anyway, even kijken wat er op de offerte staat?
[ Voor 18% gewijzigd door koentjuh op 21-08-2020 11:27 ]
Over de lay-out een paar opmerkingen:Puc van S. schreef op donderdag 20 augustus 2020 @ 20:30:
Vandaag bij de eerste keukenzaak geweest (Bruynzeel) en het ontwerp wat ik in mijn hoofd had zonder (al te grote) compromissen uit te laten werken en een offerte van te laten maken.
Uiteindelijk is het een schiereiland van 180x95 geworden met aan de kamerkant een zit/bar gedeelte, met eikenkleur greeploze fronten en een matte lijsteengrijs plat.
Een spoelgedeelte van 160 met daarnaast 2 hoge kasten (221 zonder plint) waarin de oven en een koelvriescombinatie zitten met matte lijsteengrijze fronten en een eikenkleur blad/nis.
In eerste instantie hadden we de keuken samengesteld met atag apparatuur (mede omdat de kookplaat en oven daar mooi in het ontwerp pasten) maar daarmee viel die uiteindelijk toch nog redelijk wat buiten mijn geplande budget (alhoewel het minder was als ik zelf had verwacht)
Hierna toch wat aanpassingen gedaan en voor AEG apparatuur gegaan
***members only***
[Afbeelding]
[Afbeelding]
[Afbeelding]
Ik weet niet of er nog mensen op of aanmerking hierop hebben? Of dingen die wellicht anders kunnen (waar ikzelf nog niet aan gedacht heb)?
Volgende week nog een afspraak bij een andere keukenzaak in de buurt, van het weekend wilde ik nog even bij Avanti keukens in Kesteren naar de showroom gaan kijken (afspraak daar is pas half september..) En ik zit er nog over na te denken of het wellicht nog iets is om naar Klomp te gaan..
- Mijn eerste reactie was ook dat het niet prettig zitten is aan het eiland. Je had 30cm tot de kookplaat in de oude situatie en 40cm in de nieuwe. Dat is gewoon weinig, je kan amper je bord kwijt. Maar goed, wel mogelijk en is een afweging.
- Je eiland van 180cm is in principe lang genoeg voor 3 zitplaatsen, mits je dat kastje weghaald. Dat kastje ziet er sowieso een beetje vreemd uit aan die kant.
- Je hebt niet zoveel werkblad (koffie apparaat en waterkoker die je nog kwijt moet). Dan heb je alleen het eiland, maar op zich wel werkbaar. Die hoge kastjes lijken vrij hoog? Ziet er wel mooi uit maar je hebt bijna een ladder nodig om er wat uit te halen. Geen dealbreaker, kan een bewuste keuze zijn.
It was then that I realized that the question mark was the answer to all my questions.
Nog goede tips voor de indeling van onze keuken?
Links van de keuken zit de eet en woonkamer. Rechts werk/tv kamer met doorgang naar de tuin. Boven tuinkamer. Stippellijn is open naar verdieping erboven. De blokken zijn standaard 60cm breed.
Donker grijs zijn hoge kasten. Minimale vereiste is een hoge koelkast en een hoge vriezer, de twee hoge kasten op de tekening nu. Ik zou liever meer hoge kasten willen om ook de oven omhoog te krijgen, maar dan blijft er niet veel werkruimte over. De kant bij het raam is wat mij betreft te kort om daar te koken en te spoelen en dan de andere kant een hoge kastenwant. We willen graag genoeg werkruimte overhouden. Spoelen en koken aan twee verschillende kanten lijkt mij niks, wellicht op te lossen met twee spoelbakken, een kleine en een grote...
Benieuwd of jullie nog andere ideeën hebben
.
Links van de keuken zit de eet en woonkamer. Rechts werk/tv kamer met doorgang naar de tuin. Boven tuinkamer. Stippellijn is open naar verdieping erboven. De blokken zijn standaard 60cm breed.
Donker grijs zijn hoge kasten. Minimale vereiste is een hoge koelkast en een hoge vriezer, de twee hoge kasten op de tekening nu. Ik zou liever meer hoge kasten willen om ook de oven omhoog te krijgen, maar dan blijft er niet veel werkruimte over. De kant bij het raam is wat mij betreft te kort om daar te koken en te spoelen en dan de andere kant een hoge kastenwant. We willen graag genoeg werkruimte overhouden. Spoelen en koken aan twee verschillende kanten lijkt mij niks, wellicht op te lossen met twee spoelbakken, een kleine en een grote...
Benieuwd of jullie nog andere ideeën hebben
:no_upscale():strip_icc():fill(white):strip_exif()/f/image/xvPMMBMffFHKukFIBgCgnMpX.jpg?f=user_large)
Beste Allemaal,
Sinds een tijdje zoek ik al wat rond in dit topic over Siemens en Pelgrim apparatuur, ik heb wel wat ervaringen gelezen en ook veel voorkeuren. Om nog een Variabele in de mix te gooien, wat denkt men hier in het topic van de IQ100 lijn versus de duurste Pelgrim apparatuur?
De vraag ontstaat omdat ik bij m'n beste vriend een Keuken koop, hij is meubelmaker en maakt precies wat wij willen. Hij zweert bij Siemens waar zijn persoonlijke voorkeur ligt want hij wil dat al zijn keukens een luxe uitstraling hebben. Gelukkig is dit geen probleem, mijn voorkeur gaat er ook naar uit. Wij willen max 18000 uitgeven en voor die prijs heeft hij nu ook aangeboden met de volgende apparatuur:
- koelkast vriezer KI34VV50
- afzuigkap LR97CAQ20
- Vaatwasser SX636X00AE
- inductie EH877FVC5E
- oven is nog onbekend omdat de inductieplaat als typenummer werd aangegeven.
Nu ik de offerte heb ontvangen met de apparatuur vraag ik mij af of de IQ100 lijn wel zo goed is van Siemens, natuurlijk het naampje staat er op maar wat doet deze serie nou als je het vergelijkt met de duurste serie van Pelgrim?
ik ben benieuwt wat jullie vinden/jullie ervaringen zijn
Sinds een tijdje zoek ik al wat rond in dit topic over Siemens en Pelgrim apparatuur, ik heb wel wat ervaringen gelezen en ook veel voorkeuren. Om nog een Variabele in de mix te gooien, wat denkt men hier in het topic van de IQ100 lijn versus de duurste Pelgrim apparatuur?
De vraag ontstaat omdat ik bij m'n beste vriend een Keuken koop, hij is meubelmaker en maakt precies wat wij willen. Hij zweert bij Siemens waar zijn persoonlijke voorkeur ligt want hij wil dat al zijn keukens een luxe uitstraling hebben. Gelukkig is dit geen probleem, mijn voorkeur gaat er ook naar uit. Wij willen max 18000 uitgeven en voor die prijs heeft hij nu ook aangeboden met de volgende apparatuur:
- koelkast vriezer KI34VV50
- afzuigkap LR97CAQ20
- Vaatwasser SX636X00AE
- inductie EH877FVC5E
- oven is nog onbekend omdat de inductieplaat als typenummer werd aangegeven.
Nu ik de offerte heb ontvangen met de apparatuur vraag ik mij af of de IQ100 lijn wel zo goed is van Siemens, natuurlijk het naampje staat er op maar wat doet deze serie nou als je het vergelijkt met de duurste serie van Pelgrim?
ik ben benieuwt wat jullie vinden/jullie ervaringen zijn
Spoelen en koken tegenover elkaar lijkt me geen probleem, dat zie je wel vaker en het is nu een beetje krap denk ik. Je hebt links van je spoelbak geen ruimte. Spoelen onder het raam kan prima m.i.. Twee spoelbakken is een beetje onzinnig en kost je nog meer ruimte.ScoTtix schreef op vrijdag 21 augustus 2020 @ 13:51:
Nog goede tips voor de indeling van onze keuken?
Links van de keuken zit de eet en woonkamer. Rechts werk/tv kamer met doorgang naar de tuin. Boven tuinkamer. Stippellijn is open naar verdieping erboven. De blokken zijn standaard 60cm breed.
Donker grijs zijn hoge kasten. Minimale vereiste is een hoge koelkast en een hoge vriezer, de twee hoge kasten op de tekening nu. Ik zou liever meer hoge kasten willen om ook de oven omhoog te krijgen, maar dan blijft er niet veel werkruimte over. De kant bij het raam is wat mij betreft te kort om daar te koken en te spoelen en dan de andere kant een hoge kastenwant. We willen graag genoeg werkruimte overhouden. Spoelen en koken aan twee verschillende kanten lijkt mij niks, wellicht op te lossen met twee spoelbakken, een kleine en een grote...
Benieuwd of jullie nog andere ideeën hebben.
[Afbeelding]
En passen bovenkasten tussen de twee hoge kasten? Zodat je een nisje hebt om te koken? Hoe doe je het met de afzuiging? Losse kap of werkbladafzuiging?
Voor 18k kan je een hele behoorlijke doorsnee keuken kopen met denk ik ook zelfs wel IQ300 of IQ500 apparatuur.daantjuh68 schreef op vrijdag 21 augustus 2020 @ 14:29:
Beste Allemaal,
Sinds een tijdje zoek ik al wat rond in dit topic over Siemens en Pelgrim apparatuur, ik heb wel wat ervaringen gelezen en ook veel voorkeuren. Om nog een Variabele in de mix te gooien, wat denkt men hier in het topic van de IQ100 lijn versus de duurste Pelgrim apparatuur?
De vraag ontstaat omdat ik bij m'n beste vriend een Keuken koop, hij is meubelmaker en maakt precies wat wij willen. Hij zweert bij Siemens waar zijn persoonlijke voorkeur ligt want hij wil dat al zijn keukens een luxe uitstraling hebben. Gelukkig is dit geen probleem, mijn voorkeur gaat er ook naar uit. Wij willen max 18000 uitgeven en voor die prijs heeft hij nu ook aangeboden met de volgende apparatuur:
- koelkast vriezer KI34VV50
- afzuigkap LR97CAQ20
- Vaatwasser SX636X00AE
- inductie EH877FVC5E
- oven is nog onbekend omdat de inductieplaat als typenummer werd aangegeven.
Nu ik de offerte heb ontvangen met de apparatuur vraag ik mij af of de IQ100 lijn wel zo goed is van Siemens, natuurlijk het naampje staat er op maar wat doet deze serie nou als je het vergelijkt met de duurste serie van Pelgrim?
ik ben benieuwt wat jullie vinden/jullie ervaringen zijn
Wat gaat hij voor opstelling voor je maken en in welk materiaal?
[ Voor 31% gewijzigd door Alic3 op 21-08-2020 14:47 ]
Tegenover elkaar is wel vervelend. Mijn schoonouders hebben dit en voor alles blijf je omlopen.Alic3 schreef op vrijdag 21 augustus 2020 @ 14:41:
[...]
Spoelen en koken tegenover elkaar lijkt me geen probleem, dat zie je wel vaker en het is nu een beetje krap denk ik. Je hebt links van je spoelbak geen ruimte. Spoelen onder het raam kan prima m.i.. Twee spoelbakken is een beetje onzinnig en kost je nog meer ruimte.
En passen bovenkasten tussen de twee hoge kasten? Zodat je een nisje hebt om te koken? Hoe doe je het met de afzuiging? Losse kap of werkbladafzuiging?
Even water pakken, even iets afgieten, even de pan omspoelen, even handen wassen na het snijden van iets etc.
Schoonouders hebben het huis en keuken zo gekocht maar ergeren zich hier dood aan.
Ook als het een redelijk compacte keuken is? Zo lang de ideale driehoek niet al te groot is lijkt het me geen probleem. In mijn studio in studententijd had ik dit en vond ik het niet echt een probleem. Te grote afstand tussen kookplaat en spoelbak is niks nee.GeeMoney schreef op vrijdag 21 augustus 2020 @ 14:46:
[...]
Tegenover elkaar is wel vervelend. Mijn schoonouders hebben dit en voor alles blijf je omlopen.
Even water pakken, even iets afgieten, even de pan omspoelen, even handen wassen na het snijden van iets etc.
Schoonouders hebben het huis en keuken zo gekocht maar ergeren zich hier dood aan.
Ik zie ook wat IQ300 en IQ500 apparatendaantjuh68 schreef op vrijdag 21 augustus 2020 @ 14:29:
Beste Allemaal,
Sinds een tijdje zoek ik al wat rond in dit topic over Siemens en Pelgrim apparatuur, ik heb wel wat ervaringen gelezen en ook veel voorkeuren. Om nog een Variabele in de mix te gooien, wat denkt men hier in het topic van de IQ100 lijn versus de duurste Pelgrim apparatuur?
De vraag ontstaat omdat ik bij m'n beste vriend een Keuken koop, hij is meubelmaker en maakt precies wat wij willen. Hij zweert bij Siemens waar zijn persoonlijke voorkeur ligt want hij wil dat al zijn keukens een luxe uitstraling hebben. Gelukkig is dit geen probleem, mijn voorkeur gaat er ook naar uit. Wij willen max 18000 uitgeven en voor die prijs heeft hij nu ook aangeboden met de volgende apparatuur:
- koelkast vriezer KI34VV50
- afzuigkap LR97CAQ20
- Vaatwasser SX636X00AE
- inductie EH877FVC5E
- oven is nog onbekend omdat de inductieplaat als typenummer werd aangegeven.
Nu ik de offerte heb ontvangen met de apparatuur vraag ik mij af of de IQ100 lijn wel zo goed is van Siemens, natuurlijk het naampje staat er op maar wat doet deze serie nou als je het vergelijkt met de duurste serie van Pelgrim?
ik ben benieuwt wat jullie vinden/jullie ervaringen zijn
Ik ken de duurdere lijnen van Pelgrim niet, maar het kan best zijn dat het in sommige gevallen beter is dan de goedkopere Siemens apparaten. Die Siemens koelkast is in ieder geval een vrij simpel A+ geval, dat kan beter. Ook de vaatwasser is een budget ding met kunststof kuip ipv rvs. Bij een kookplaat en afzuiging maakt de serie imo wat minder uit, daar zitten vaak alleen wat verschillen in qua functionaliteit en design.
Heeft ie geen prijs gegeven voor de apparatuur? Vind persoonlijk dat bij een keuken van 18k (maatwerk of niet) wel iets betere apparatuur hoort dan de bovenstaande lijst.
Op deze manier is het zeker te krap ja, wil ook graag 80cm kookplaat. Koken liefst niet aan de raamkant omdat we dan werkbladafzuiging zouden moeten nemen en ik gok dat er dan toch nog best wat lucht naar de bovenverdieping verdwijnt.Bovenkastjes kunnen zeker aan de niet-raam kant.Alic3 schreef op vrijdag 21 augustus 2020 @ 14:41:
[...]
Spoelen en koken tegenover elkaar lijkt me geen probleem, dat zie je wel vaker en het is nu een beetje krap denk ik. Je hebt links van je spoelbak geen ruimte. Spoelen onder het raam kan prima m.i.. Twee spoelbakken is een beetje onzinnig en kost je nog meer ruimte.
En passen bovenkasten tussen de twee hoge kasten? Zodat je een nisje hebt om te koken? Hoe doe je het met de afzuiging? Losse kap of werkbladafzuiging?
Dank je wel voor je feedback, het is overigens sowieso niet direct de bedoeling om aan de bar te gaan dineren, maar het is meer bedoelt om (snel) het ontbijt te nuttigen of om tijdens het bereiden van eten met meerdere mensen gezellig iets te drinken, de eettafel zelf komt waarschijnlijk parallel naast het eiland te staan (met +- 1/1.5 m er tussen)evleerdam schreef op vrijdag 21 augustus 2020 @ 13:20:
[...]
Over de lay-out een paar opmerkingen:
- Mijn eerste reactie was ook dat het niet prettig zitten is aan het eiland. Je had 30cm tot de kookplaat in de oude situatie en 40cm in de nieuwe. Dat is gewoon weinig, je kan amper je bord kwijt. Maar goed, wel mogelijk en is een afweging.
- Je eiland van 180cm is in principe lang genoeg voor 3 zitplaatsen, mits je dat kastje weghaald. Dat kastje ziet er sowieso een beetje vreemd uit aan die kant.
- Je hebt niet zoveel werkblad (koffie apparaat en waterkoker die je nog kwijt moet). Dan heb je alleen het eiland, maar op zich wel werkbaar. Die hoge kastjes lijken vrij hoog? Ziet er wel mooi uit maar je hebt bijna een ladder nodig om er wat uit te halen. Geen dealbreaker, kan een bewuste keuze zijn.
Het kastje had ik overigens op de hoek staan om de zijkant van het eiland iets wat body te geven ipv alleen een losse wang. Ik zit daar overigens nog over te twijfelen om daar een smaller open kastje van te maken waar ik evt. mijn wijn/whisky flessen in kwijt kan.
Qua totale werkruimte/vrij werkblad ruimte is vergelijkbaar tov mijn huidige keuken, los van de kast met de oven een lage kast te maken (en het eiland dieper) zijn er volgens mij ook niet echt manieren om meer ruimte te creëren?
Wellicht dat ik alsnog besluit om het eiland dieper te maken, dan moet ik echter eerst even weer bij mijn nieuwe woning langs om op te meten hoeveel ruimte ik echt heb tussen de deur en het einde van de muur.
De kastjes zijn inderdaad relatief hoog, maar dat is een bewuste designkeuze, ik wilde graag die afwerking tot het plafond en de bovenkastjes net zo diep als de hoge kasten. Met die diepte icm mijn lengte (1.86) lijkt mij dat de kastjes lager ophangen juist weer dat ze in de weg zitten als ik daar bezig ben.
Het materiaal weet ik zo snel niet, het is een zwart kunststof waarop geen vingerafdrukken blijven staan.Alic3 schreef op vrijdag 21 augustus 2020 @ 14:41:
Voor 18k kan je een hele behoorlijke doorsnee keuken kopen met denk ik ook zelfs wel IQ300 of IQ500 apparatuur.
Wat gaat hij voor opstelling voor je maken en in welk materiaal?
De opstelling is zoals het plaatje:
/f/image/Ffp9ffV0Qki8AV3DUzpghncE.png?f=fotoalbum_large)
Thanks dat is goed om te weten. De vaatwasser heeft een DB niveau van 48, wat doen de beste apparaten en wat is de middenmoot, en zijn de DB's 1 op 1 te vergelijken met elkaar?HKP32 schreef op vrijdag 21 augustus 2020 @ 14:55:
[...]
Ik zie ook wat IQ300 en IQ500 apparaten![]()
Ik ken de duurdere lijnen van Pelgrim niet, maar het kan best zijn dat het in sommige gevallen beter is dan de goedkopere Siemens apparaten. Die Siemens koelkast is in ieder geval een vrij simpel A+ geval, dat kan beter. Ook de vaatwasser is een budget ding met kunststof kuip ipv rvs. Bij een kookplaat en afzuiging maakt de serie imo wat minder uit, daar zitten vaak alleen wat verschillen in qua functionaliteit en design.
Heeft ie geen prijs gegeven voor de apparatuur? Vind persoonlijk dat bij een keuken van 18k (maatwerk of niet) wel iets betere apparatuur hoort dan de bovenstaande lijst.
Alle apparaten bij elkaar zijn net geen 6k.
Wij krijgen een bosch top of the line die doet 41db of 39db met het stille programmadaantjuh68 schreef op vrijdag 21 augustus 2020 @ 18:11:
[...]
Het materiaal weet ik zo snel niet, het is een zwart kunststof waarop geen vingerafdrukken blijven staan.
De opstelling is zoals het plaatje:
[Afbeelding]
[...]
Thanks dat is goed om te weten. De vaatwasser heeft een DB niveau van 48, wat doen de beste apparaten en wat is de middenmoot, en zijn de DB's 1 op 1 te vergelijken met elkaar?
Alle apparaten bij elkaar zijn net geen 6k.
Materiaal kan Arpa Fenix zijn, mooi materiaal en ook wel een stuk duurder. En opstelling ziet er ook goed uit. Hoe is de indeling? Lades? En welk materiaal is het blad?daantjuh68 schreef op vrijdag 21 augustus 2020 @ 18:11:
[...]
Het materiaal weet ik zo snel niet, het is een zwart kunststof waarop geen vingerafdrukken blijven staan.
De opstelling is zoals het plaatje:
[Afbeelding]
[...]
Thanks dat is goed om te weten. De vaatwasser heeft een DB niveau van 48, wat doen de beste apparaten en wat is de middenmoot, en zijn de DB's 1 op 1 te vergelijken met elkaar?
Alle apparaten bij elkaar zijn net geen 6k.
Als je de apparatuur googlet kom ik trouwens op een stuk minder dan 6 uit. Er vanuitgaande dat de oven niet 2500 is.
KI34VV50 565
LR97CAQ20 1000
SX636X00AE 600
EH877FVC5E 1499 (adviesprijs dus haal hier nog wat af.)
Dan kom je op zo'n 3700. Een upgrade naar wat betere apparatuur is zeker mogelijk als je zelf gaat shoppen. Of nog eens vraagt of hij echt een vriendenprijsje kan geven
Inderdaad wat jij zegt. Niet om gevraagd en de metro line r op de offerte gekregen. Schoonouders hebben een aantal jaar terug bij dezelfde keukenboer besteld, kregen toen nog de uitvoering met glazen wand. In de showroom ook alleen deze tegen gekomen. Helaas.Bedankt voor het meedenken.koentjuh schreef op vrijdag 21 augustus 2020 @ 11:24:
[...]
Bij onze systemat waren de glazen zijkanten standaard.4/5 maanden geleden gekocht.
Overigens lijkt het alsof ze alleen tegen meerprijs worden geleverd.
https://thuiskeukens.nl/h.../systemat-of-classic.html
Anyway, even kijken wat er op de offerte staat?
Iemand die hier ervaring mee heeft? We zijn in Vianen bij Miele geweest en ik wil eens kijken of ik online scherpe prijzen kan vinden. Als ik zoek op typenummers dan vind ik nauwelijks resultaten.synorluna schreef op donderdag 20 augustus 2020 @ 09:01:
Even een vraag met betrekking tot de aanschaf en installatie van de apparatuur. Bestellen jullie de apparatuur apart voor de scherpste prijs (wat zijn dan goede sites?) of is dit toch een kwestie van afdingen bij de keuken leverancier? In het eerste geval als je de apparatuur ergens anders koopt, hoe ga je dan om met de installatie van deze apparatuur? Wordt dit dan alsnog door de keukenleverancier gedaan of moet je dit dan zelf organiseren?
Miele is wat dat betreft net Apple. De enige die je kan proberen is B&K (bemmel & kroon) maar nog beter is korting bedingen op die apparaten bij je keuken. Met een beetje geluk gaat er dan iets af maar verwacht geen wonderen.synorluna schreef op zaterdag 22 augustus 2020 @ 00:38:
[...]
Iemand die hier ervaring mee heeft? We zijn in Vianen bij Miele geweest en ik wil eens kijken of ik online scherpe prijzen kan vinden. Als ik zoek op typenummers dan vind ik nauwelijks resultaten.
En bij de BSH ligt dit wat anders begrijp ik. Daar kun je wel fikse kortingen krijgen.
Eigenlijk andersom. Bij bsh hebben ze zulke hoge adviesprijzen bedacht, dat iedere fatsoenlijke leverancier daar zo'n 40% onder gaat zitten. Terwijl de prijzen bij Miele minder opgeblazen zijn, zodat je met moeite 30% onder de adviesprijs komt.synorluna schreef op zaterdag 22 augustus 2020 @ 09:15:
En bij de BSH ligt dit wat anders begrijp ik. Daar kun je wel fikse kortingen krijgen.
Bij een lokale keukenzaak in Aalten hebben we de volgende keuken samengesteld. Leek mij het delen waard!
Het kookeiland is 2,4m breed en 1,2m diep.
/f/image/Z7diULs1NA1Mc9Eej0ygpAO1.png?f=fotoalbum_large)
Wij hebben gekozen voor het witte blad onderin de foto.
/f/image/ceVJz3alq4LpAPbhZJ2lPr6Y.png?f=fotoalbum_large)
• Stoom oven Siemens CS856GNB7
• Combi oven Siemens CM836GNB6
• Koelkast Siemens KI41RAD40
• Kookplaat Siemens EX877LVV5E
• Afzuigunit Siemens LR96CAQ50
• Vaatwasser Siemens SX36X12JE
• Quooker Zwart Combi Fusion
De ombouw en de koof voor de afzuigunit zitten bij de prijs in. Inclusief plaatsen is de keuken 18K€. Lijkt mij een strakke prijs. Hebben jullie nog tips?
Het kookeiland is 2,4m breed en 1,2m diep.
/f/image/Z7diULs1NA1Mc9Eej0ygpAO1.png?f=fotoalbum_large)
Wij hebben gekozen voor het witte blad onderin de foto.
/f/image/ceVJz3alq4LpAPbhZJ2lPr6Y.png?f=fotoalbum_large)
• Stoom oven Siemens CS856GNB7
• Combi oven Siemens CM836GNB6
• Koelkast Siemens KI41RAD40
• Kookplaat Siemens EX877LVV5E
• Afzuigunit Siemens LR96CAQ50
• Vaatwasser Siemens SX36X12JE
• Quooker Zwart Combi Fusion
De ombouw en de koof voor de afzuigunit zitten bij de prijs in. Inclusief plaatsen is de keuken 18K€. Lijkt mij een strakke prijs. Hebben jullie nog tips?
Misschien kastenwand door laten lopen tot de muur kan eventueel zo iets maken als je graag stukje werkruimte wil houden YouTube: Alno Cabinets & Miele Appliances in a Modern Kitchengoogol101 schreef op zaterdag 22 augustus 2020 @ 13:05:
Bij een lokale keukenzaak in Aalten hebben we de volgende keuken samengesteld. Leek mij het delen waard!
Het kookeiland is 2,4m breed en 1,2m diep.
[Afbeelding]
Wij hebben gekozen voor het witte blad onderin de foto.
[Afbeelding]
• Stoom oven Siemens CS856GNB7
• Combi oven Siemens CM836GNB6
• Koelkast Siemens KI41RAD40
• Kookplaat Siemens EX877LVV5E
• Afzuigunit Siemens LR96CAQ50
• Vaatwasser Siemens SX36X12JE
• Quooker Zwart Combi Fusion
De ombouw en de koof voor de afzuigunit zitten bij de prijs in. Inclusief plaatsen is de keuken 18K€. Lijkt mij een strakke prijs. Hebben jullie nog tips?
Verwijderd
Ben je niet bang dat je erg weinig werkruimte hebt tijdens het koken? Een eiland van 2.4m met een 90cm kookplaat en ook nog een spoelbak wordt imho wel erg krap.
Ja, heb ik ervaring mee. Destijds zelf mijn Miele apparaatnummers naar Keukenloods gemaild, maar die konden de helft niet leveren en de andere helft was niet goedkoper dan bij de keukenboer.synorluna schreef op zaterdag 22 augustus 2020 @ 00:38:
[...]
Iemand die hier ervaring mee heeft? We zijn in Vianen bij Miele geweest en ik wil eens kijken of ik online scherpe prijzen kan vinden. Als ik zoek op typenummers dan vind ik nauwelijks resultaten.
Dus zoals @GeeMoney al zegt, goed onderhandelen bij je keukenboer, maar verwacht er geen wonderen van. Wij kregen er 250 euro af, minder dan 5%
Groot genoeg voor 2 hoofdletters
Verwijderd
De hoge kasten naast de ovens vervangen voor lage kasten zodat die doorlopen met je werkblad. Hoge kasten met ovens verschuiven naar geheel links of geheel rechts. Je hebt nu 0 werkruimte tenzij je om je eiland heen gaat lopen.googol101 schreef op zaterdag 22 augustus 2020 @ 13:05:
Bij een lokale keukenzaak in Aalten hebben we de volgende keuken samengesteld. Leek mij het delen waard!
Het kookeiland is 2,4m breed en 1,2m diep.
[Afbeelding]
Wij hebben gekozen voor het witte blad onderin de foto.
[Afbeelding]
• Stoom oven Siemens CS856GNB7
• Combi oven Siemens CM836GNB6
• Koelkast Siemens KI41RAD40
• Kookplaat Siemens EX877LVV5E
• Afzuigunit Siemens LR96CAQ50
• Vaatwasser Siemens SX36X12JE
• Quooker Zwart Combi Fusion
De ombouw en de koof voor de afzuigunit zitten bij de prijs in. Inclusief plaatsen is de keuken 18K€. Lijkt mij een strakke prijs. Hebben jullie nog tips?
Zie ik nou 2 kranen op de afbeelding?googol101 schreef op zaterdag 22 augustus 2020 @ 13:05:
Bij een lokale keukenzaak in Aalten hebben we de volgende keuken samengesteld. Leek mij het delen waard!
Het kookeiland is 2,4m breed en 1,2m diep.
[Afbeelding]
Wij hebben gekozen voor het witte blad onderin de foto.
[Afbeelding]
• Stoom oven Siemens CS856GNB7
• Combi oven Siemens CM836GNB6
• Koelkast Siemens KI41RAD40
• Kookplaat Siemens EX877LVV5E
• Afzuigunit Siemens LR96CAQ50
• Vaatwasser Siemens SX36X12JE
• Quooker Zwart Combi Fusion
De ombouw en de koof voor de afzuigunit zitten bij de prijs in. Inclusief plaatsen is de keuken 18K€. Lijkt mij een strakke prijs. Hebben jullie nog tips?
Voor de rest inderdaad weinig werkruimte, naast het espressoapparaat (als die er straks echt staat) is ook niet echt prettig als werkruimte.
Oh verrek.. het zijn de ovens, dacht eerst dat het alleen werkruimte was met een zwarte plaat erachter..
Toevallig gisteren de prijzen opgevraagd bij Keukenloods voor optie 1 Siemens apparatuur en optie 2 Miele apparatuur. Ik was namelijk ook benieuwd hoe dit zou uitpakken met de werkelijke prijzen. Ben bij beide merken voor het hogere segment qua modellen gegaan.synorluna schreef op zaterdag 22 augustus 2020 @ 00:38:
[...]
Iemand die hier ervaring mee heeft? We zijn in Vianen bij Miele geweest en ik wil eens kijken of ik online scherpe prijzen kan vinden. Als ik zoek op typenummers dan vind ik nauwelijks resultaten.
Members only:
Alleen zichtbaar voor ingelogde gebruikers.
Inloggen
Toch wel een verschil, die adviesprijzen van Siemens zijn echt veel te hoog. Miele is 'maar' rond de 20% goedkoper dan hun adviesprijs. Nu weet ik niet of Keukenloods echt de goedkoopste is, maar dit geeft me wel een goeie indruk.
Top, dank voor het delen! Hier kan ik wat mee. Mijn voorkeur heeft Miele, maar vond de prijzen wel bijzonder hoog. Gelukkig kan er dus nog wel wat van die prijs af.Rostares schreef op zaterdag 22 augustus 2020 @ 16:12:
[...]
Oh verrek.. het zijn de ovens, dacht eerst dat het alleen werkruimte was met een zwarte plaat erachter..
Let op:
Dit topic kan gebruikt worden voor het volgende:
• Vragen over de keuken, denkend aan indeling, materialen, kastjes, apparatuur, etc.
• Welke kastjes, aanrechtbladen en apparatuur te kiezen
• Ervaringen met verkopers en keukenboeren
• Tips & Tricks denk hierbij aan hulp bij het zelf installeren en onderhouden van de keuken.
• Jouw indeling. Plaats gerust een foto of tekening, maar maak het niet te bont met hele buildlogs.
Voor badkamers: Het Badkamer topic: verkopers, kwaliteit, prijs - Deel 1
Showen met je keuken kan hier: Tweakers Keuken showroom! - Vestiging 1
Dit topic kan gebruikt worden voor het volgende:
• Vragen over de keuken, denkend aan indeling, materialen, kastjes, apparatuur, etc.
• Welke kastjes, aanrechtbladen en apparatuur te kiezen
• Ervaringen met verkopers en keukenboeren
• Tips & Tricks denk hierbij aan hulp bij het zelf installeren en onderhouden van de keuken.
• Jouw indeling. Plaats gerust een foto of tekening, maar maak het niet te bont met hele buildlogs.
Voor badkamers: Het Badkamer topic: verkopers, kwaliteit, prijs - Deel 1
Showen met je keuken kan hier: Tweakers Keuken showroom! - Vestiging 1