• lonehitman
  • Registratie: November 2013
  • Laatst online: 19:19
Kyran schreef op zaterdag 4 april 2020 @ 15:06:
[...]

Foto is een voorbeeld van de site van H&J Interieurs, dus niet die van ons.

Hebben RVS spoelbak met RVS Quooker. Wel nagedacht over zwart, maar hadden geen zin in extra onderhoud en constant opletten of je het niet beschadigt. RVS is gewoon net wat "robuuster".
Prachtige keuken!

Een quooker komt toch aan zijn zwarte kleur door een extreme verhitting? Is minstens zo krasbestendig als jouw rvs kraan. Ook een zwarte tectonite wasbak is niet krasgevoeliger als een rvs wasbak.

  • DJT
  • Registratie: Januari 2001
  • Laatst online: 18-12 22:28

DJT

ivonb schreef op zondag 5 april 2020 @ 18:11:
Vraag, heb net een nieuwe keuken met een inductie kookplaat. Bij gebruik geeft deze pulserend geluid en actie bij verwarmen. (soort van aan/uit) Dit had ik bij mijn vorige plaat nooit. Wat is dit?
Bij onze Miele inductieplaat hetzelfde. Tot stand 4/5 doet hij pulseren en daarboven niet. Als er daarnaast nog een ongebruikte pan ergens op de inductieplaat staat dan komen daar ook pulsen vandaan, ik denk iets van een detectiesysteem.

  • Snelfrink
  • Registratie: April 2020
  • Laatst online: 21-11-2020
Hi, na veel gelezen te hebben zou ik graag jullie advies willen.

Wij gaan deze zomer onze keuken verbouwen en twijfel of de ruimte groot genoeg is voor een U-keuken. Waarbij aan de lange zijde (bovenkant op de plattegrond) een schiereiland komt zodat je van de voordeur de keuken in kan lopen. Alle binnenmuren gaan eruit. Grote vraag is dan wel waar de koelkast moet komen. Andere optie is een L-keuken met bovenkastjes voor extra opbergruimte. Aan de gallerij kant kunnen geen kastje ivm ramen. Wat zouden jullie adviseren?

Afbeeldingslocatie: https://tweakers.net/i/buGt9QXJ_Is5YNRnfXL3unowC9w=/800x/filters:strip_exif()/f/image/Vldc4SnTKEbgHQSyjfJwiR3P.png?f=fotoalbum_large

[ Voor 11% gewijzigd door Snelfrink op 06-04-2020 11:06 ]


  • Farmerwood
  • Registratie: September 2004
  • Niet online
Misschien handig om op de plattegrond aan te geven welke muren precies weg gaan voor daar een verkeerd beeld van heerst.

Ik lees het nu alsof je alle binnenmuren weg wilt halen en je dus vanuit de voordeur eigenlijk direct in je woonkamer staat. Bedenk je dat het dat ook nadelen heeft als je b.v. je toilet direct in je woonkamer hebt en je direct naast je voordeur staat te koken.

De muur tussen keuken en woonkamer eruit kan wel prima lijkt me zo.

[ Voor 6% gewijzigd door Farmerwood op 06-04-2020 11:02 ]


  • Barry|IA
  • Registratie: Januari 2004
  • Laatst online: 23-06-2022
Lize167 schreef op zaterdag 4 april 2020 @ 18:00:
[...]


Dank je wel. Hoeveel scheelt het per kast ongeveer, houtfineer of kunststof van het merk Proborm?
Dat hangt af van bij welke keukenzaak je de keuken laat berekenen.

Een houtfineer front kan wel dubbel de prijs zijn van de kunststof variant.

Let wel: bij de kunststof varianten vind ik Pronorm mooier afgewerkt (minder opvallende gelijmde kopkanten, mooiere houtlook), maar bij de houtfineer fronten is het een ander verhaal, die zijn mooi van zowel Hacker als Pronorm.

“Nothing changed since the 70s. Nothing. Except people train not that hard”. - Tom Platz


  • Snelfrink
  • Registratie: April 2020
  • Laatst online: 21-11-2020
Dank voor je reactie @Farmerwood, ik heb de plattegrond aangepast. Het zijn eigenlijk geen muren. De " muur" tussen keuken en woonkamer is de originele keukenkast uit +/- 1967 met doorschuiflades en kastjes (volgens mij een Piet Zwart van Bruynzeel). De muur tussen gang en keuken is een houtenplaat met daarboven glas met draad.

Alles moet er uit en vervangen worden (leidingen, elektra, van 't gas af etc). We zijn dus flexibel in wat we kunnen.

  • Aomi
  • Registratie: Februari 2019
  • Laatst online: 09-12 11:13
ivonb schreef op zondag 5 april 2020 @ 18:11:
Vraag, heb net een nieuwe keuken met een inductie kookplaat. Bij gebruik geeft deze pulserend geluid en actie bij verwarmen. (soort van aan/uit) Dit had ik bij mijn vorige plaat nooit. Wat is dit?
Mijn huidige ATAG kookplaat doet dat ook.
Gaat van 1 t/m 9, tot en met stand 4 maakt ie die geluiden.
Tevens maakt ie die geluiden wanneer ik 2 pannen op 1 groep heb staan, dan is het net of ie ze om en om verwarmt.

  • leecher
  • Registratie: December 2004
  • Laatst online: 18:56
Kyran schreef op zaterdag 4 april 2020 @ 14:45:

Kastendwand: Houtfineer, met zwarte grepen
Als dat echte fineer is dan hebben ze wel heel hard hun best gedaan om de patroontjes bij elkaar te zoeken. Misschien heb ik een trend gemist maar waarom zou je gaan voor die ultieme €4,50/m2 bouwmarkt laminaat look op je keuken van €25.000 :P

Ik heb een betaalde 2025 WinRAR licentie (geen leugen)


  • ZeRoC00L
  • Registratie: Juli 2000
  • Niet online
Aomi schreef op maandag 6 april 2020 @ 11:21:
[...]

Mijn huidige ATAG kookplaat doet dat ook.
Gaat van 1 t/m 9, tot en met stand 4 maakt ie die geluiden.
Tevens maakt ie die geluiden wanneer ik 2 pannen op 1 groep heb staan, dan is het net of ie ze om en om verwarmt.
Dat laatste heb ik ook, om en om 'aan'. Dat zie je ook goed als iets kookt, dan gaat het even net iets harder om en om.

[*] Error 45: Please replace user
Volg je bankbiljetten


  • mitsumark
  • Registratie: Juni 2009
  • Laatst online: 19:11
Heb je bij de goedkopere grillplaten ook, super vervelend.

  • ivonb
  • Registratie: December 2018
  • Laatst online: 31-08-2024
DJT schreef op maandag 6 april 2020 @ 09:43:
[...]


Bij onze Miele inductieplaat hetzelfde. Tot stand 4/5 doet hij pulseren en daarboven niet. Als er daarnaast nog een ongebruikte pan ergens op de inductieplaat staat dan komen daar ook pulsen vandaan, ik denk iets van een detectiesysteem.
Precies. t/m 5 is pulsend. Daarboven niet. Ik zie de logica niet. 🙄

  • ivonb
  • Registratie: December 2018
  • Laatst online: 31-08-2024
Snelfrink schreef op maandag 6 april 2020 @ 11:10:
Dank voor je reactie @Farmerwood, ik heb de plattegrond aangepast. Het zijn eigenlijk geen muren. De " muur" tussen keuken en woonkamer is de originele keukenkast uit +/- 1967 met doorschuiflades en kastjes (volgens mij een Piet Zwart van Bruynzeel). De muur tussen gang en keuken is een houtenplaat met daarboven glas met draad.

Alles moet er uit en vervangen worden (leidingen, elektra, van 't gas af etc). We zijn dus flexibel in wat we kunnen.
idee: maak een klein portiek waar de wc ook in valt met heup hoge muren of zo hoog als het aanrecht en dan een mooi stalen pui met glas. Dan heb je een soort open inkom, maar dan wel afgeschermd van tocht van buiten. de keuken kan dan nog wel in een U vorm krijgen. schiereiland kan dan, al dan niet met een L vorm of zelfs een u.

  • JB
  • Registratie: Mei 2002
  • Laatst online: 15:15

JB

Cédric roelt!

leecher schreef op maandag 6 april 2020 @ 13:48:
[...]


Als dat echte fineer is dan hebben ze wel heel hard hun best gedaan om de patroontjes bij elkaar te zoeken. Misschien heb ik een trend gemist maar waarom zou je gaan voor die ultieme €4,50/m2 bouwmarkt laminaat look op je keuken van €25.000 :P
Dit. Snap niet dat men dat mooi vind om een patroon langs elkaar te hebben wat precies hetzelfde is. Bij fineer vrij onmogelijk of je hebt fineer van 1 dikke boom/balk die op al je kastjes komt, maar dat zou ik niet accepteren. Juist met fineer wil je verschil zien (het doorlopen daar gelaten uiteraard) en niet 2x hetzelfde langs elkaar :X

Mijn boefje is liev!


  • Shunt
  • Registratie: Augustus 2001
  • Laatst online: 13:51

Shunt

Boe

Tja in mijn toekomstige droom keuken komen ook echte massief houten fronten (of ja laminaat want anders heb je na 10 jaar kans op scheve deurtjes) Tot dat moment komt ben ik blij met mijn hogen kasten wand in lelijk bouwmarkt laminaat patroontje.

Ik snap niet dat mensen niet begrijpen dat er net zoveel mensen als wensen zijn qua looks.
Laat dat toch lekker gaan sommige mensen vinden het ook mooi om fluweel afgewerkte kastjes te hebben moeten ze lekker zelf weten whatever floats your boat!

Je kunt uren discussiëren over praktische indeling / plaatsing / ruimte / apparatuur. Maar dingen als kleur / afwerking zijn gewoon extreem persoonlijk.

Game PC
2 Post or Not 2 Post What's the question ?
"If it ain't broken, you didn't try hard enough"


  • JB
  • Registratie: Mei 2002
  • Laatst online: 15:15

JB

Cédric roelt!

Shunt schreef op dinsdag 7 april 2020 @ 10:09:
Tja in mijn toekomstige droom keuken komen ook echte massief houten fronten (of ja laminaat want anders heb je na 10 jaar kans op scheve deurtjes) Tot dat moment komt ben ik blij met mijn hogen kasten wand in lelijk bouwmarkt laminaat patroontje.

Ik snap niet dat mensen niet begrijpen dat er net zoveel mensen als wensen zijn qua looks.
Laat dat toch lekker gaan sommige mensen vinden het ook mooi om fluweel afgewerkte kastjes te hebben moeten ze lekker zelf weten whatever floats your boat!

Je kunt uren discussiëren over praktische indeling / plaatsing / ruimte / apparatuur. Maar dingen als kleur / afwerking zijn gewoon extreem persoonlijk.
Daar ben ik het helemaal mee eens maar nu word je getild waar je bijstaat IMHO. En dan is wel iets om voor op te passen. De wereld van keukens maakt ons allemaal een dikke wijs mbt wel/niet massief wel/niet gelakt wel/niet fineer.

Mijn boefje is liev!


  • Shunt
  • Registratie: Augustus 2001
  • Laatst online: 13:51

Shunt

Boe

JB schreef op dinsdag 7 april 2020 @ 10:12:
[...]

Daar ben ik het helemaal mee eens maar nu word je getild waar je bijstaat IMHO. En dan is wel iets om voor op te passen. De wereld van keukens maakt ons allemaal een dikke wijs mbt wel/niet massief wel/niet gelakt wel/niet fineer.
Getild worden tja, mensen die niet willen prijs vergelijken worden altijd / overal getild.
Als ik een product koop waar geen simpele prijsoverzichten van zijn vraag ik altijd veel offertes aan.
Dat kost tijd en moeite, ik wist tot op de scharnieren af waar mijn keuken uit opgebouwd zou worden.
Het prijsverschil tussen hout, houtfineer, lak, vol gelakt, en gewoon fineer waren mij allemaal duidelijk, toen ik de kast merk keuze inmiddels gemaakt had gewoon even de catalogus opvragen. Prijzen bij de bedrijven opvragen en rekenen.

Zo moeilijk is het niet. Maar de meeste mensen gaan gewoon naar een keuken toko met het budget van X in het hoofd en zodra de prijs daar in de buurt komt zeggen ze OK doe maar. Als ik een keuken zou kopen van 20+ dan zouden er bij mij ook "echte" houtfineer kastjes in zitten. Maar ja mijn droom keuken voor een droom huis zou wat meer kosten als 20k denk ik.

[ Voor 7% gewijzigd door Shunt op 07-04-2020 10:19 ]

Game PC
2 Post or Not 2 Post What's the question ?
"If it ain't broken, you didn't try hard enough"


  • JB
  • Registratie: Mei 2002
  • Laatst online: 15:15

JB

Cédric roelt!

@Shunt En dan is dit topic waardevol icm om daarop te attenderen. Eens, dat ik mijn mening over het uitzien van weg had kunnen laten. Zou in ieder geval zonde zijn als er betaald wordt voor marketing ipv echt leveren wat op de offerte staat :)

Mijn boefje is liev!


  • Farmerwood
  • Registratie: September 2004
  • Niet online
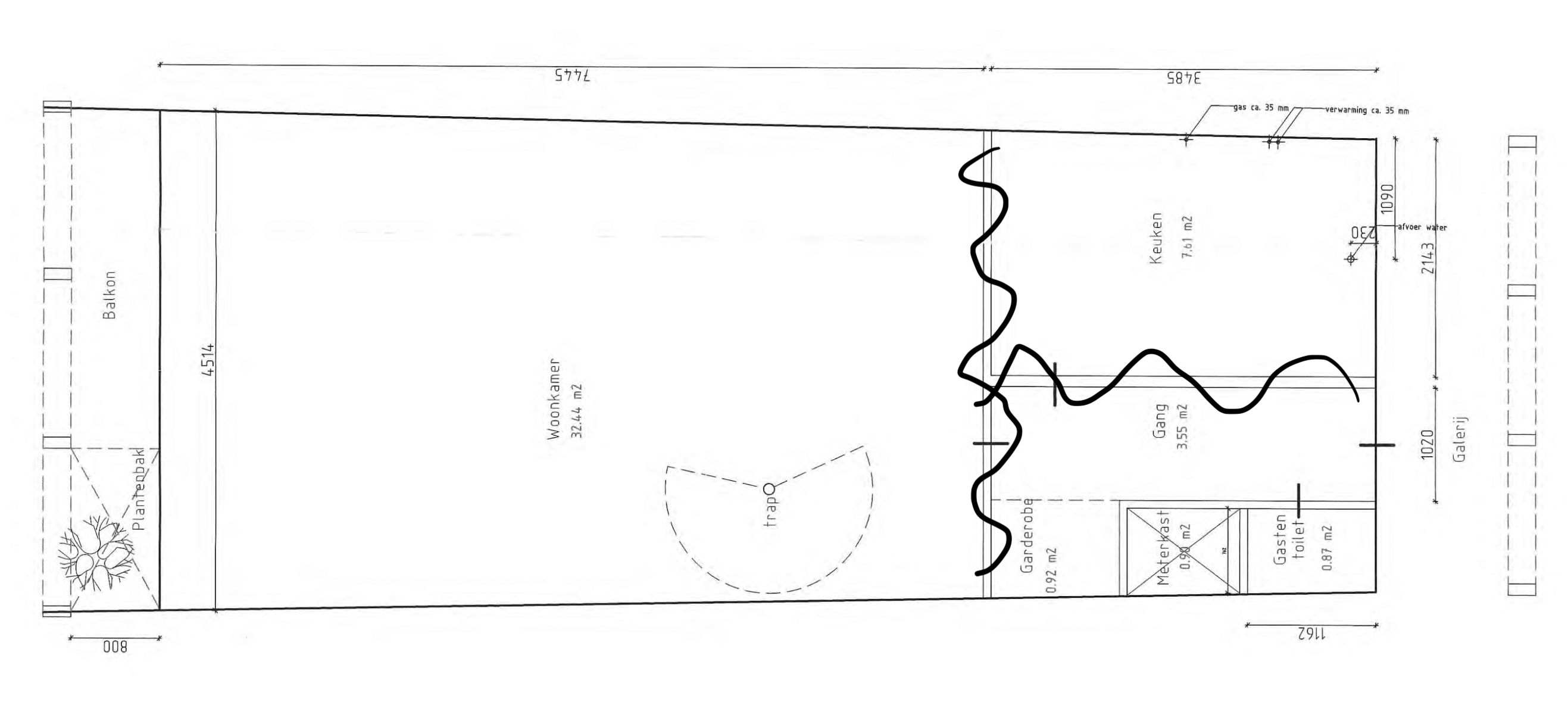
Snelfrink schreef op maandag 6 april 2020 @ 10:39:
Hi, na veel gelezen te hebben zou ik graag jullie advies willen.

Wij gaan deze zomer onze keuken verbouwen en twijfel of de ruimte groot genoeg is voor een U-keuken. Waarbij aan de lange zijde (bovenkant op de plattegrond) een schiereiland komt zodat je van de voordeur de keuken in kan lopen. Alle binnenmuren gaan eruit. Grote vraag is dan wel waar de koelkast moet komen. Andere optie is een L-keuken met bovenkastjes voor extra opbergruimte. Aan de gallerij kant kunnen geen kastje ivm ramen. Wat zouden jullie adviseren?

[Afbeelding]
Zoals eerder opgemerkt zou ik zeker een hal in stand laten. In ons huidige huis komen wij eigen standaard binnen in de woonkamer via de achterdeur ivm fietsen in de tuin. Dat is echt mega irritant, want wind, bladeren, zand etc waait allemaal mee naar binnen. En in de winter neem je een hoop kou mee naar binnen.
Daarnaast zou ik niet direct naast mijn voordeur de keuken hebben in dezelfde ruimte.

Je zou kunnen overwegen om de hal door te trekken qua muur tot aan de wenteltrap (dat is het neem ik aan). Daarin zou je b.v een voorraadkast kunnen realiseren waarin je meteen stofzuiger, glas, papier ect ook kwijt kunt.
Muur tussen keuken en woonkamer eruit voor een open keuken.

Met slechts 2.1 m zou ik niet voor een U-vorm keuken gaan. Uitgaande van minimaal 60 cm diep blad hou je dan 80-90 cm over. Als er bv een afwasmachine open staat blokkeer je al de hele doorgang.
Ik zou eerst kijken of je met een L-vorm een keuken kunt realiseren die aan al je wensen voldoet met kraan en vaatwasser onder het raam.

[ Voor 0% gewijzigd door Farmerwood op 07-04-2020 13:01 . Reden: Fixed typo ]


  • Bakema
  • Registratie: Augustus 2008
  • Laatst online: 04-06 07:42
Heeft iemand hier ervaring met het merk Artego(Duits merk)? Schijnen vrij voordelige keukens te hebben, verschillende korpushoogtes en zien er (op de foto) zeer strak uit.

Vergelijkbaar met b.v. Nobilia of een Schueller?
Ik kan er alleen weinig recensies o.i.d. over vinden.

[ Voor 9% gewijzigd door Bakema op 07-04-2020 13:08 ]


Verwijderd

Farmerwood schreef op dinsdag 7 april 2020 @ 12:59:
[...]

Met slechts 2.1 m zou ik niet voor een U-vorm keuken gaan. Uitgaande van minimaal 60 cm diep blad hou je dan 80-90 cm over. Als er bv een afwasmachine open staat blokkeer je al de hele doorgang.
Ik zou eerst kijken of je met een L-vorm een keuken kunt realiseren die aan al je wensen voldoet met kraan en vaatwasser onder het raam.
Eens. Bezichtigde ooit een huis met een U-keuken in ongeveer zo'n ruimte en dat zag er wel erg krap uit. Lijkt me een prima ruimte voor een L-keuken. Paar hoge kasten linksboven in de ruimte op de tekening, kraan wat meer naar rechtsonder, vaatwasser links daarvan. Eventueel zou je nog een minder diepe, losse kast neer kunnen zetten tegen de onderste wand op de tekening, om toch wat van de overgebleven 1,5 meter ruimte te gebruiken. Maar volgens mij wordt het erg krap als je er een U-keuken van maakt.

  • Admiral Freebee
  • Registratie: Februari 2004
  • Niet online
ivonb schreef op maandag 6 april 2020 @ 18:55:
[...]


Precies. t/m 5 is pulsend. Daarboven niet. Ik zie de logica niet. 🙄
Wellicht kan hij het vermogen maar omlaag brengen tot een bepaald punt en liggen stand 1 tot en met 5 bij jouw kookplaat onder dat punt. Dan gaat hij aan/uit schakelen om gemiddeld een lager vermogen te leveren.

  • vortexnl1982
  • Registratie: Augustus 2014
  • Laatst online: 20:04
Voor onze nieuwbouwwoning wil ik een gat naar buiten voor de afzuigkapafvoer. De aannemer geeft aan dat hij de stenen van de buitengevel om een buis heen wilt laten leggen zodat ik niet door die stenen hoef te boren.

Ik lees op internet verschillende verhalen, dat er voor een afzuigkapafvoer naar buiten een gat van 110 of 150 mm wordt geboord. Welke maat kan ik het beste gebruiken ?

[ Voor 10% gewijzigd door vortexnl1982 op 07-04-2020 20:46 ]


  • lonehitman
  • Registratie: November 2013
  • Laatst online: 19:19
vortexnl1982 schreef op dinsdag 7 april 2020 @ 20:43:
Voor onze nieuwbouwwoning wil ik een gat naar buiten voor de afzuigkapafvoer. De aannemer geeft aan dat hij de stenen van de buitengevel om een buis heen wilt laten leggen zodat ik niet door die stenen hoef te boren.

Ik lees op internet verschillende verhalen, dat er voor een afzuigkapafvoer naar buiten een gat van 110 of 150 mm wordt geboord. Welke maat kan ik het beste gebruiken ?
Als je nu eerst gaat kijken welke afzuigkap je gaat kopen. Dan weet je ook de perfecte afmeting voor de afzuiging? Bij Bora bijv. Is het gat vierkant..

  • GermanPivo
  • Registratie: September 2010
  • Laatst online: 20:13
vortexnl1982 schreef op dinsdag 7 april 2020 @ 20:43:
Voor onze nieuwbouwwoning wil ik een gat naar buiten voor de afzuigkapafvoer. De aannemer geeft aan dat hij de stenen van de buitengevel om een buis heen wilt laten leggen zodat ik niet door die stenen hoef te boren.

Ik lees op internet verschillende verhalen, dat er voor een afzuigkapafvoer naar buiten een gat van 110 of 150 mm wordt geboord. Welke maat kan ik het beste gebruiken ?
Ligt inderdaad aan je afzuigkap, maar hoe groter hoe beter. Je kan sowieso 150mm als doorvoer naar buiten doen en dan kan je altijd me een verloop naar een andere maat. Dat zou ik dan wel zo snel mogelijk direct na je kap doen as het nodig is. Maar helpt inderdaad wel om te weten welke kap je wilt :)

9040 Wp | Zendure 15,4 kWh | MHI SCM60/SCM40/SRC25


  • vortexnl1982
  • Registratie: Augustus 2014
  • Laatst online: 20:04
lonehitman schreef op dinsdag 7 april 2020 @ 20:50:
[...]


Als je nu eerst gaat kijken welke afzuigkap je gaat kopen. Dan weet je ook de perfecte afmeting voor de afzuiging? Bij Bora bijv. Is het gat vierkant..
Dank je voor de tip ! Ik ga voor de Bora Puxa. Ik lees in de handleiding :
De minimale doorsnede van de luchtafvoerkanalen
bedraagt 176 cm²; dit komt overeen met een
ronde buis met een doorsnede van 150 mm of
met het BORA Ecotube kanaalsysteem.
Ze zeggen ook :
In het ventilatiehandboek van BORA vindt
u instructies voor de installatie van de
luchtafvoerkanalen.
Dat ventilatiehandboek kan ik niet vinden op hun website.
GermanPivo schreef op dinsdag 7 april 2020 @ 21:05:
[...]


Ligt inderdaad aan je afzuigkap, maar hoe groter hoe beter. Je kan sowieso 150mm als doorvoer naar buiten doen en dan kan je altijd me een verloop naar een andere maat. Dat zou ik dan wel zo snel mogelijk direct na je kap doen as het nodig is. Maar helpt inderdaad wel om te weten welke kap je wilt :)
Is het dan een ronde afvoer naar buiten of vierkant voor Bora ?

[ Voor 24% gewijzigd door vortexnl1982 op 07-04-2020 21:09 ]


  • lonehitman
  • Registratie: November 2013
  • Laatst online: 19:19
vortexnl1982 schreef op dinsdag 7 april 2020 @ 21:08:
[...]


Dank je voor de tip ! Ik ga voor de Bora Puxa. Ik lees in de handleiding :


[...]


Ze zeggen ook :


[...]


Dat ventilatiehandboek kan ik niet vinden op hun website.


[...]


Is het dan een ronde afvoer naar buiten of vierkant voor Bora ?
BORA 3BOX MUURROOSTER MET TERUGSLAGKLEP UEBF/1

https://www.google.com/ur...Vaw30lkSp1io8qfMui7tT9o_w

[ Voor 17% gewijzigd door lonehitman op 07-04-2020 22:46 ]


  • mitsumark
  • Registratie: Juni 2009
  • Laatst online: 19:11
Snelfrink schreef op maandag 6 april 2020 @ 10:39:
Hi, na veel gelezen te hebben zou ik graag jullie advies willen.

Wij gaan deze zomer onze keuken verbouwen en twijfel of de ruimte groot genoeg is voor een U-keuken. Waarbij aan de lange zijde (bovenkant op de plattegrond) een schiereiland komt zodat je van de voordeur de keuken in kan lopen. Alle binnenmuren gaan eruit. Grote vraag is dan wel waar de koelkast moet komen. Andere optie is een L-keuken met bovenkastjes voor extra opbergruimte. Aan de gallerij kant kunnen geen kastje ivm ramen. Wat zouden jullie adviseren?

[Afbeelding]
Om maar wat te proberen met nog een "hal".
Afbeeldingslocatie: https://tweakers.net/i/LMNPw8P6-C9WudnKBw3CCHJF8tc=/800x/filters:strip_icc():strip_exif()/f/image/aWGR6MEn2jggYd4kbHWL8uSx.jpg?f=fotoalbum_large

  • ChrisM
  • Registratie: Juni 2004
  • Laatst online: 17:14
vortexnl1982 schreef op dinsdag 7 april 2020 @ 20:43:
Voor onze nieuwbouwwoning wil ik een gat naar buiten voor de afzuigkapafvoer. De aannemer geeft aan dat hij de stenen van de buitengevel om een buis heen wilt laten leggen zodat ik niet door die stenen hoef te boren.

Ik lees op internet verschillende verhalen, dat er voor een afzuigkapafvoer naar buiten een gat van 110 of 150 mm wordt geboord. Welke maat kan ik het beste gebruiken ?
Is het wel verstandig om naar buiten te gaan? Onze installateur zegt dat je hercirculatie moet doen in het huis dus, ivm toevoer frisse lucht. Ik wil liever ook naar buiten (dan ben je zeker van de geurtjes af).

  • vortexnl1982
  • Registratie: Augustus 2014
  • Laatst online: 20:04
Dank je, Muuropening: 310 x 155 mm dus ! Krijg je deze standaard geleverd bij een Bora Puxa ?
ChrisM schreef op woensdag 8 april 2020 @ 05:59:
[...]

Is het wel verstandig om naar buiten te gaan? Onze installateur zegt dat je hercirculatie moet doen in het huis dus, ivm toevoer frisse lucht. Ik wil liever ook naar buiten (dan ben je zeker van de geurtjes af).
Heb nu recirculatie en dat wil ik nooit meer. Als je een fatsoenlijke muurrooster met terugslagklep gebruikt heb je bijna geen last van koude lucht naar binnen tijdens gebruik afzuigkap. En zolang je je keukenraam op een kiertje zet als je de afzuigkap voluit zet dan zal het wel meevallen allemaal.

Bij mij was de aannemer ook niet zo happig maar heb het er toch door gedrukt.

  • lonehitman
  • Registratie: November 2013
  • Laatst online: 19:19
vortexnl1982 schreef op woensdag 8 april 2020 @ 08:09:
[...]


Dank je, Muuropening: 310 x 155 mm dus ! Krijg je deze standaard geleverd bij een Bora Puxa ?


[...]


Heb nu recirculatie en dat wil ik nooit meer. Als je een fatsoenlijke muurrooster met terugslagklep gebruikt heb je bijna geen last van koude lucht naar binnen tijdens gebruik afzuigkap. En zolang je je keukenraam op een kiertje zet als je de afzuigkap voluit zet dan zal het wel meevallen allemaal.

Bij mij was de aannemer ook niet zo happig maar heb het er toch door gedrukt.
Ik heb het bij de koop in bedongen.

@ChrisM Het is niet perse nodig om naar buiten te gaan met de afzuiging. Maar als je de mogelijkheid hebt dan zou ik het altijd doen. In het geval van de Bora, scheelt het je ook nog € 150,00 per jaar aan filters?

  • ChrisM
  • Registratie: Juni 2004
  • Laatst online: 17:14
lonehitman schreef op woensdag 8 april 2020 @ 08:21:
[...]


Ik heb het bij de koop in bedongen.

@ChrisM Het is niet perse nodig om naar buiten te gaan met de afzuiging. Maar als je de mogelijkheid hebt dan zou ik het altijd doen. In het geval van de Bora, scheelt het je ook nog € 150,00 per jaar aan filters?
Wij gaan voor een Wave afzuigkap (in een schouw), met een Steel inductie fornuis. Het betreft een nieuwbouwhuis, dus kan nu alles nog aanpassen wat ik wil.. maar wat is wijsheid? De keukenman hebben we er nog niet over gesproken, de installateur zegt niks geen gaten in huis en de afzuigkap man zegt ook hercirculatie (met een filter dus)...

  • lonehitman
  • Registratie: November 2013
  • Laatst online: 19:19
ChrisM schreef op woensdag 8 april 2020 @ 08:25:
[...]

Wij gaan voor een Wave afzuigkap (in een schouw), met een Steel inductie fornuis. Het betreft een nieuwbouwhuis, dus kan nu alles nog aanpassen wat ik wil.. maar wat is wijsheid? De keukenman hebben we er nog niet over gesproken, de installateur zegt niks geen gaten in huis en de afzuigkap man zegt ook hercirculatie (met een filter dus)...
De installateur geeft dit waarschijnlijk aan omdat ze er extra werk van hebben? Onze aannemer deed niet moeilijk en vroeg alleen om de afmetingen en positie.

En jouw afzuigkapman :) zal ook altijd voor de optie met filter gaan. Zo kan hij later nog een keer aan jou verdienen?

Gewoon doen waar jij het beste gevoel bij hebt. Voordelen en nadelen naast elkaar zetten.

  • fmb
  • Registratie: Januari 2002
  • Laatst online: 20:50

fmb

vortexnl1982 schreef op dinsdag 7 april 2020 @ 20:43:
Voor onze nieuwbouwwoning wil ik een gat naar buiten voor de afzuigkapafvoer. De aannemer geeft aan dat hij de stenen van de buitengevel om een buis heen wilt laten leggen zodat ik niet door die stenen hoef te boren.

Ik lees op internet verschillende verhalen, dat er voor een afzuigkapafvoer naar buiten een gat van 110 of 150 mm wordt geboord. Welke maat kan ik het beste gebruiken ?
Doet hij de binnenmuur dan ook, of moet je daar alsnog een gat in boren en/of opening in maken?

WP: Remeha Elga Ace 6kW. PV: 14 x 310 wp Suntech + 10 x 380 wp Q-Cells, micro omvormers IQ7 & IQ7+ Enphase.


  • vortexnl1982
  • Registratie: Augustus 2014
  • Laatst online: 20:04
fmb schreef op woensdag 8 april 2020 @ 08:53:
[...]

Doet hij de binnenmuur dan ook, of moet je daar alsnog een gat in boren en/of opening in maken?
Hij doet alleen een uitsparing in de buitenmuur. Het is een houtskeletbouwwand dus daar kom ik of de keukenleverancier dan zelf wel doorheen ?

  • MikeyMan
  • Registratie: Februari 2003
  • Laatst online: 17:23

MikeyMan

Vidi, Vici, Veni

Neem inderdaad wel die bora box. Ik heb een universele terugslagklep, en die lekt als de ziekte als de wind erop staat. En dat krijg ik nooit meer opgelost vrees ik :X

[ Voor 15% gewijzigd door MikeyMan op 08-04-2020 09:12 ]


  • Kapitein Merijn
  • Registratie: Maart 2012
  • Laatst online: 16-12 12:04
vortexnl1982 schreef op woensdag 8 april 2020 @ 08:09:
[...]


Dank je, Muuropening: 310 x 155 mm dus ! Krijg je deze standaard geleverd bij een Bora Puxa ?


[...]


Heb nu recirculatie en dat wil ik nooit meer. Als je een fatsoenlijke muurrooster met terugslagklep gebruikt heb je bijna geen last van koude lucht naar binnen tijdens gebruik afzuigkap. En zolang je je keukenraam op een kiertje zet als je de afzuigkap voluit zet dan zal het wel meevallen allemaal.

Bij mij was de aannemer ook niet zo happig maar heb het er toch door gedrukt.
De uitblaasbox is ook al een tijdje te krijgen in een ronde uitvoering. Houd er wel rekening mee dat het gat groter moet zijn dan 150mm, even uit mijn hoofd is het zelfs 180mm.
Ik zou deze vast laten bestellen en even afgeven bij de aannemer.

Untappd: Kapitein_Merijn


  • lonehitman
  • Registratie: November 2013
  • Laatst online: 19:19
MikeyMan schreef op woensdag 8 april 2020 @ 09:09:
Neem inderdaad wel die bora box. Ik heb een universele terugslagklep, en die lekt als de ziekte als de wind erop staat. En dat krijg ik nooit meer opgelost vrees ik :X
Je kan het gat dichtmaken en de afvoer van je afzuigkap aansluiten op een plasmafilter.

  • MikeyMan
  • Registratie: Februari 2003
  • Laatst online: 17:23

MikeyMan

Vidi, Vici, Veni

lonehitman schreef op woensdag 8 april 2020 @ 10:04:
[...]


Je kan het gat dichtmaken en de afvoer van je afzuigkap aansluiten op een plasmafilter.
Ehh? Ik heb bewust gekozen voor afzuiging naar buiten. DAarnaast zit mijn motor in de vloer, dus dat gaat hem niet worden ;)

  • Shunt
  • Registratie: Augustus 2001
  • Laatst online: 13:51

Shunt

Boe

lonehitman schreef op woensdag 8 april 2020 @ 10:04:
[...]


Je kan het gat dichtmaken en de afvoer van je afzuigkap aansluiten op een plasmafilter.
Gewoon lekker naar buiten, al die gassen / fijnstof / en andere rotzooi van het koken / bakken gewoon richting buiten pompen. Al die super afgesloten huizen gaan wij waarschijnlijk in de komende 20 jaar nog veel over horen hoe ongezond dit eigenlijk wel niet is.

Game PC
2 Post or Not 2 Post What's the question ?
"If it ain't broken, you didn't try hard enough"


  • mitsumark
  • Registratie: Juni 2009
  • Laatst online: 19:11
En direct aansluiten op de (al bestaande) mechanische ventilatie? Dan heb je alleen een kap nodig.
Zuigkracht is echter niet erg hoog...

Bij mijn keuken zijn vanuit de bouw al gelijk twee openingen gemaakt voor de MV, echter de afzuigkap (incl eigen motor) blaast via een kool filter nog gewoon in de lucht.
Afblazing wel recht onder die twee afzuigpunten, die overigens flink vies worden, dus dat zal wel werken..

Advies was om 5 minuten voor het koken gewoon alvast de MV op standje max te zetten zodat de flow op gang komt.

Als ik mn keuken ga ombouwen met een kookplaat op het eiland vervallen de opties naar buiten en direct naar de MV, dus dan is de "keuze" makkelijk :)
Of het moet tussen de vloerverwarming door de kruipruimte in...

[ Voor 5% gewijzigd door mitsumark op 08-04-2020 13:36 ]


  • iWout
  • Registratie: December 2018
  • Laatst online: 20-11 18:43
mitsumark schreef op woensdag 8 april 2020 @ 13:34:
En direct aansluiten op de (al bestaande) mechanische ventilatie? Dan heb je alleen een kap nodig.
Zuigkracht is echter niet erg hoog...

Bij mijn keuken zijn vanuit de bouw al gelijk twee openingen gemaakt voor de MV, echter de afzuigkap (incl eigen motor) blaast via een kool filter nog gewoon in de lucht.
Afblazing wel recht onder die twee afzuigpunten, die overigens flink vies worden, dus dat zal wel werken..

Advies was om 5 minuten voor het koken gewoon alvast de MV op standje max te zetten zodat de flow op gang komt.

Als ik mn keuken ga ombouwen met een kookplaat op het eiland vervallen de opties naar buiten en direct naar de MV, dus dan is de "keuze" makkelijk :)
Of het moet tussen de vloerverwarming door de kruipruimte in...
Gat naar buiten blijft een terugkomend probleem in veel nieuwbouwhuizen. Veel aannemers willen geen risico daarin lopen.
Naar mijn mening blijft het echter wel het beste als het om "luchtjes" gaat.
-Koolstoffilters, zijn vaak duur en geven toch nog vaak luchtjes en zwarte strepen op de muur.
-Aansluiten op mv-kanaal is niet de bedoeling en mag vaak alleen als het een speciale kap betreft, itho had/heeft zo'n kap die een soort luchtgordijn blaast waardoor de luchtjes daarachter blijven. Het MV systeem zou dan de rest moeten doen.

Ik zou zelf altijd, indien mogelijk, naar buiten gaan en investeren in een goed rooster met een terugslagklep van goede kwaliteit. Bekijk deze site: https://www.naber.de/luchtafvoersystemen/flow-150/ bijv voor div oplossingen:

@vortexnl1982 voor bora is het afhankelijk hoe je naar buiten gaat. Blijf je met de platte bora buis of verloop je naar een ronde buis. Als er een gat door de gevel geboord moet worden is een rond gat makkelijker dan een vierkant gat ;)
Keukenmonteurs zijn er vaak niet blij mee omdat ze deze gaten niet boren en daar de spullen niet voor hebben. Een betonboorbedrijf of een boor huren bij een verhuurbedrijf kan oplossing bieden.

  • vortexnl1982
  • Registratie: Augustus 2014
  • Laatst online: 20:04
@iWout Wat raad je me aan ? Heeft de Bora oplossing met dat vierkante ding een terugslagklep van goede kwaliteit ? Of beter iets nemen van naber.de ?

We hebben een HSB muur aan de zijde waar de luchtafvoer naar buiten gaat. De aannemer geeft aan dat hij een uitsparing kan maken voor het rooster naar buiten. Als ik hem zo'n vierkant Bora ding geef dan kan hij daarom heen metselen. Volgens mij kan er redelijk makkelijk aan de binnenkant van de woning makkelijk een opening worden gemaakt..

[ Voor 4% gewijzigd door vortexnl1982 op 08-04-2020 14:20 ]


  • iWout
  • Registratie: December 2018
  • Laatst online: 20-11 18:43
vortexnl1982 schreef op woensdag 8 april 2020 @ 14:20:
@iWout Wat raad je me aan ? Heeft de Bora oplossing met dat vierkante ding een terugslagklep van goede kwaliteit ? Of beter iets nemen van naber.de ?

We hebben een HSB muur aan de zijde waar de luchtafvoer naar buiten gaat. De aannemer geeft aan dat hij een uitsparing kan maken voor het rooster naar buiten. Als ik hem zo'n vierkant Bora ding geef dan kan hij daarom heen metselen. Volgens mij kan er redelijk makkelijk aan de binnenkant van de woning makkelijk een opening worden gemaakt..
@vortexnl1982 ikzelf ken die box van Bora niet. Ziet er wel goed uit en gezien hun producten lijkt me dit zeker niet verkeerd. De Naber buizen ken ik wel en zijn zeker van goede kwaliteit en naar mijn mening kwalitatief net zo goed als de bora buizen. Denk dat het ook een kwestie is wat je zelf mooi vind aan de buitenkant van het huis. De compair tower https://www.compair-flow.com/compair-tower/nl/ is ook een optie alleen vind ik hem persoonlijk niet mooi en ook niet passen bij ons huis.

Wij krijgen een kookeiland dus moeten we gaan kijken hoe we naar buiten gaan, mijn advies is dus zeker de luchtjes afvoeren naar buiten. Ik (ben keukenmonteur) heb teveel problemen en klachten gezien omtrent recirculatie/mv oplossingen.
Zelf gaan we in overleg met de aannemer om de buis in de bouw mee te nemen in de vloer en dan liefst zo kort mogelijk en zonder al teveel bochten naar buiten toe te brengen.

  • fmb
  • Registratie: Januari 2002
  • Laatst online: 20:50

fmb

vortexnl1982 schreef op woensdag 8 april 2020 @ 09:05:
[...]


Hij doet alleen een uitsparing in de buitenmuur. Het is een houtskeletbouwwand dus daar kom ik of de keukenleverancier dan zelf wel doorheen ?
Dat lukt dan wel ja 😊

WP: Remeha Elga Ace 6kW. PV: 14 x 310 wp Suntech + 10 x 380 wp Q-Cells, micro omvormers IQ7 & IQ7+ Enphase.


  • Snelfrink
  • Registratie: April 2020
  • Laatst online: 21-11-2020
Dank voor jullie reacties.

Wij twijfelen nog over het plaatsen van een hal met een deur. Het gaat om een appartement op de 3e verdieping dus het inwaaien van rommel e.d. is er niet. We hebben nu een idee om een muurtje te plaatsen met een glazen wand erop van ongeveer 2 meter om de WC en keuken af te schermen. Zonder deur om een vrije loop naar de trap en woonkamer te krijgen. In ons huidige huis hebben wij ook geen hal en storen ons daar niet aan. Wellicht wel de deur van de WC wat beter isoleren.

Ik ga aan de slag met een tekenprogramma en zal het resultaat posten.

  • Aomi
  • Registratie: Februari 2019
  • Laatst online: 09-12 11:13
Hoeveel ruimte is er beschikbaar achter een vaatwasser om leidingen te leggen?
Diepte werkblad betreft 600mm, vaatwasser is (zonder front) 550mm.
Achter de vaatwasser (onderin) zit een uitsparing van 50x90 mm maar daar komt ook de toevoer- en afvoerleiding uit.

  • perspectivebass
  • Registratie: Mei 2013
  • Laatst online: 20:24
Aomi schreef op vrijdag 10 april 2020 @ 12:32:
Hoeveel ruimte is er beschikbaar achter een vaatwasser om leidingen te leggen?
Diepte werkblad betreft 600mm, vaatwasser is (zonder front) 550mm.
Achter de vaatwasser (onderin) zit een uitsparing van 50x90 mm maar daar komt ook de toevoer- en afvoerleiding uit.
Meestal zit er geen ruimte voor opbouw leidingen achter en onder een vaatwasser tenzij je een verdiept werkblad hebt, maar dat is niet het geval met 600mm.

  • Aomi
  • Registratie: Februari 2019
  • Laatst online: 09-12 11:13
perspectivebass schreef op vrijdag 10 april 2020 @ 12:47:
[...]


Meestal zit er geen ruimte voor opbouw leidingen achter en onder een vaatwasser tenzij je een verdiept werkblad hebt, maar dat is niet het geval met 600mm.
Balen. Dan moet ik de leidingen in de muur weg zien te werken. Tegenvaller. :X

  • perspectivebass
  • Registratie: Mei 2013
  • Laatst online: 20:24
Aomi schreef op vrijdag 10 april 2020 @ 13:22:
[...]

Balen. Dan moet ik de leidingen in de muur weg zien te werken. Tegenvaller. :X
Onder in achter een vatwasser zit soms wel net wat ruimte overigens. Wij hebben daar een afvoer 50mm lopen welke net past.

  • Aomi
  • Registratie: Februari 2019
  • Laatst online: 09-12 11:13
Ik heb 2 koperen leidingen (warm en koud water), 2 PVC elektrabuizen en een afvoer allemaal daar lopen. Denk dat dat erg lastig gaat worden.

  • perspectivebass
  • Registratie: Mei 2013
  • Laatst online: 20:24
Aomi schreef op vrijdag 10 april 2020 @ 13:41:
Ik heb 2 koperen leidingen (warm en koud water), 2 PVC elektrabuizen en een afvoer allemaal daar lopen. Denk dat dat erg lastig gaat worden.
Ik weet niet wat ontwerp van je keuken is, maar soms is het makkelijker om gootsteen en vaatwasser om te draaien. Dat hebben wij gedaan in de volgende keuken om dit tegen te gaan.

  • mitsumark
  • Registratie: Juni 2009
  • Laatst online: 19:11
Snelfrink schreef op vrijdag 10 april 2020 @ 11:28:
Dank voor jullie reacties.

Wij twijfelen nog over het plaatsen van een hal met een deur. Het gaat om een appartement op de 3e verdieping dus het inwaaien van rommel e.d. is er niet. We hebben nu een idee om een muurtje te plaatsen met een glazen wand erop van ongeveer 2 meter om de WC en keuken af te schermen. Zonder deur om een vrije loop naar de trap en woonkamer te krijgen. In ons huidige huis hebben wij ook geen hal en storen ons daar niet aan. Wellicht wel de deur van de WC wat beter isoleren.

Ik ga aan de slag met een tekenprogramma en zal het resultaat posten.
Tegen geluid is isoleren misschien een goed idee, maar tegen geur wil je goede afzuiging en dan heb je juist kieren nodig anders ontstaat er geen flow.

  • Rubbergrover1
  • Registratie: Maart 2020
  • Laatst online: 20:09
Aomi schreef op vrijdag 10 april 2020 @ 13:22:
[...]

Balen. Dan moet ik de leidingen in de muur weg zien te werken. Tegenvaller. :X
Handiger is het om de aan- en afvoer juist niet achter de vaatwasser te hebben, maar ernaast. (Bv in een naastgelegen keukenkastje.) Dan kun je de machine eenvoudiger aansluiten of afsluiten als dat nodig is en je hebt ook geen probleem met te weinig ruimte achter de machine.

  • Aomi
  • Registratie: Februari 2019
  • Laatst online: 09-12 11:13
Rubbergrover1 schreef op vrijdag 10 april 2020 @ 17:18:
[...]

Handiger is het om de aan- en afvoer juist niet achter de vaatwasser te hebben, maar ernaast. (Bv in een naastgelegen keukenkastje.) Dan kun je de machine eenvoudiger aansluiten of afsluiten als dat nodig is en je hebt ook geen probleem met te weinig ruimte achter de machine.
Dat is ook het geval. Dat deel begrijp ik.
De leidingen lopen via de wasbak achter de vaatwasser door omdat de leidingen verderop de grond in gaan.

Afbeeldingslocatie: https://tweakers.net/i/e1X86XGu_xL1M_ttI-R-ukqHjGw=/800x/filters:strip_icc():strip_exif()/f/image/rLAInwHdZAXxov7a9sFj8aiy.jpg?f=fotoalbum_large

De wasbak komt dus waar nu die oude aansluitingen nog zitten. De vaatwasser rechts daarvan.
Keuken wordt over anderhalve week geleverd dus nu nog de opstelling veranderen gaat niet lijkt me.

  • Wilke
  • Registratie: December 2000
  • Laatst online: 19:15
Rubbergrover1 schreef op vrijdag 10 april 2020 @ 17:18:
[...]

Handiger is het om de aan- en afvoer juist niet achter de vaatwasser te hebben, maar ernaast. (Bv in een naastgelegen keukenkastje.) Dan kun je de machine eenvoudiger aansluiten of afsluiten als dat nodig is en je hebt ook geen probleem met te weinig ruimte achter de machine.
Ja, bijvoorbeeld in het keukenkastje met de spoelbak. Die sowieso handig is om dicht bij de vaatwasser te hebben.

Maar @Aomi, heb je geen leidingschema gekregen van de keukenboer? Staat meestal ook een beschrijving bij waar leidingen wel/niet mogen lopen. Inderdaad stond er bij ons bij: achter en onder inbouwapparatuur is geen ruimte, tenzij blad dieper dan 60. Niet van uitgaan dus.

Overigens zou ik nog posten hoe het met onze keuken is afgelopen: deze is begin deze week opgeleverd en zit er heel netjes in! Geheel volgens de planning, zelfs in deze tijden. Petje af voor iedereen die er aan gewerkt heeft.

Edit: zie nu de post met de foto. Dit gaat op zeker niet passen.

Kun je niet eerder de grond in? Kruipruimte?

[ Voor 5% gewijzigd door Wilke op 10-04-2020 19:03 ]


  • Aomi
  • Registratie: Februari 2019
  • Laatst online: 09-12 11:13
Wilke schreef op vrijdag 10 april 2020 @ 19:01:
[...]


Ja, bijvoorbeeld in het keukenkastje met de spoelbak. Die sowieso handig is om dicht bij de vaatwasser te hebben.

Maar @Aomi, heb je geen leidingschema gekregen van de keukenboer? Staat meestal ook een beschrijving bij waar leidingen wel/niet mogen lopen. Inderdaad stond er bij ons bij: achter en onder inbouwapparatuur is geen ruimte, tenzij blad dieper dan 60. Niet van uitgaan dus.

Overigens zou ik nog posten hoe het met onze keuken is afgelopen: deze is begin deze week opgeleverd en zit er heel netjes in! Geheel volgens de planning, zelfs in deze tijden. Petje af voor iedereen die er aan gewerkt heeft.

Edit: zie nu de post met de foto. Dit gaat op zeker niet passen.

Kun je niet eerder de grond in? Kruipruimte?
We nemen een bestaande vaatwasser mee naar de nieuwe keuken, misschien dat er daarom geen opmerking over is gemaakt. In het leidingschema stonden alleen de aansluitpunten beschreven en dat is dus allemaal waar de spoelbak komt (waar het huidige leidingwerk ook op uit komt).

Geen kruipruimte, maar aan de raamkant is een voorzetmuur met een flinke lading isolatiemateriaal erachter. Mijn idee is om het daar maar achter weg te werken. In de vloer ligt vloerverwarming, maar ik weet niet tot hoever die loopt.

  • mitsumark
  • Registratie: Juni 2009
  • Laatst online: 19:11
Welke VW is het dan? Onder het apparaat geen ruimte?
(afhankelijk van blad hoogte)

  • Wilke
  • Registratie: December 2000
  • Laatst online: 19:15
Warmwaterleiding niet per ongeluk isoleren dan (legionella-gevaar).

En ja, als je de vaatwasser al hebt kun je natuurlijk kijken hoe het zit.

Reken er op dat het vlakke deel van de achterkant zo goed als tegen de muur komt. Maar misschien is onderaan iets ruimte? Zitten vaak wel ook de aansluitingen, als je die niet kwijt kunt ben je nog nergens.

Blad is 60 cm diep. Vaatwasser 55 zei je? Maar het blad steekt zo'n 2 cm over de kastjes heen, en de kastjes hebben dan nog een front van goed een cm. Al met al heb je dus misschien een goede centimeter over erachter. En dat als alles superstrak recht loopt. Vandaar dat ze meestal niet aanbevelen het er op te gokken.

[ Voor 31% gewijzigd door Wilke op 10-04-2020 19:33 ]


  • Aomi
  • Registratie: Februari 2019
  • Laatst online: 09-12 11:13
Ja zoals ik al zei zit er onder een uitsparing van 90x50mm maar daar komen ook de leidingen van de vaatwasser zelf in te liggen.

VW betreft de SX69M037NL

Wat bedoel je met warmwaterleiding niet isoleren? Dat is nu ook al het geval toch?

[ Voor 6% gewijzigd door Aomi op 10-04-2020 19:38 ]


  • vortexnl1982
  • Registratie: Augustus 2014
  • Laatst online: 20:04
Zit voor onze nieuwe te kijken voor de Bora Pura (met afvoer naar buiten). Nu kreeg ik als tip via 123inbouw.nl om eens te kijken naar de GUTMANN 2800ML830B. Ik zit een beetje te lezen op tweakers maar ik kan er niet veel over vinden.

De voordelen zouden zijn :

* Betere bouwkwaliteit (RVS onderdelen ipv plastic bij Bora)
* Dat rooster in het midden is van glas en van Bora van plastic. Dus smelt het niet als je er per ongeluk een pan op zet.
* Er past een besteklade onder de Gutman
* Goedkoper (2500 ipv 3200)

Ik lees wel ergens als nadeel dat het ijzeren rooster slijt (na 4 jaar) en zo'n rooster kost 400 euro... Sowieso lees ik weinig reviews over het merk / model....

Heeft iemand ervaring met de kwaliteit van Gutman en ervaringen met de 2800ML830B / 800B ?

[ Voor 11% gewijzigd door vortexnl1982 op 10-04-2020 20:08 ]


  • Kapitein Merijn
  • Registratie: Maart 2012
  • Laatst online: 16-12 12:04
Aomi schreef op vrijdag 10 april 2020 @ 18:53:
[...]


Dat is ook het geval. Dat deel begrijp ik.
De leidingen lopen via de wasbak achter de vaatwasser door omdat de leidingen verderop de grond in gaan.

[Afbeelding]

De wasbak komt dus waar nu die oude aansluitingen nog zitten. De vaatwasser rechts daarvan.
Keuken wordt over anderhalve week geleverd dus nu nog de opstelling veranderen gaat niet lijkt me.
Staat er nergens op de installatie voorschriften dat je leidingen in de muur moeten zitten? Veel bedrijven draaien zich om als ze dit zo aantreffen.
Hoe hoog is je plint bijvoorbeeld? Het type vaatwasser suggereert dat je een lage plint krijgt en je leidingen lijken hoger te zitten dan ca. 10cm.
De monteur zal dus alle kasten in moeten zagen aan de achterzijde om ze te kunnen plaatsen.
De afvoer kan ook nog wel eens een probleem worden ivm de stelpoten onder de kasten.

Untappd: Kapitein_Merijn


  • Aomi
  • Registratie: Februari 2019
  • Laatst online: 09-12 11:13
Plint is 200mm ongeveer.

Edit: 'k heb het Leiding advies pdfje nog even doorgelezen maar daar staat gek genoeg helemaal niets vermeld over dat leidingen niet achter apparatuur mogen lopen.
Er staat alleen vermeld waar de aansluitpunten moeten komen.
Vreemd.

[ Voor 93% gewijzigd door Aomi op 10-04-2020 20:38 ]


  • Shunt
  • Registratie: Augustus 2001
  • Laatst online: 13:51

Shunt

Boe

Aomi schreef op vrijdag 10 april 2020 @ 18:53:
[...]


Dat is ook het geval. Dat deel begrijp ik.
De leidingen lopen via de wasbak achter de vaatwasser door omdat de leidingen verderop de grond in gaan.

[Afbeelding]

De wasbak komt dus waar nu die oude aansluitingen nog zitten. De vaatwasser rechts daarvan.
Keuken wordt over anderhalve week geleverd dus nu nog de opstelling veranderen gaat niet lijkt me.
Je hebt meestal wel wat ruimte om te smokkelen maar veel daar van hangt af van hoe diep je aanrecht blad is.
Maar dit is wel echt heel erg euh apart aangelegd. ik weet zo de exacte maten niet maar ik ben bijna 90% zeker dat dit niet gaat passen.

Game PC
2 Post or Not 2 Post What's the question ?
"If it ain't broken, you didn't try hard enough"


  • Aomi
  • Registratie: Februari 2019
  • Laatst online: 09-12 11:13
Shunt schreef op vrijdag 10 april 2020 @ 22:12:
[...]

Je hebt meestal wel wat ruimte om te smokkelen maar veel daar van hangt af van hoe diep je aanrecht blad is.
Maar dit is wel echt heel erg euh apart aangelegd. ik weet zo de exacte maten niet maar ik ben bijna 90% zeker dat dit niet gaat passen.
Ja zoals 't er nu bij ligt is wel bijzonder. Oorspronkelijk rustte de hele afvoer op 1 baksteen 8)7

Maar leidingen wegwerken in/achter een voorzetmuur kan wel toch? Iemand bezwaren? :P

  • perspectivebass
  • Registratie: Mei 2013
  • Laatst online: 20:24
Aomi schreef op vrijdag 10 april 2020 @ 22:36:
[...]


Ja zoals 't er nu bij ligt is wel bijzonder. Oorspronkelijk rustte de hele afvoer op 1 baksteen 8)7

Maar leidingen wegwerken in/achter een voorzetmuur kan wel toch? Iemand bezwaren? :P
Zolang je de warmwaterleiding niet tussen isolatie legt moet het goed gaan. Warm water leidingen mag je namelijk niet isoleren ivm legionella. De leiding moet snel af kunnen koelen na gebruik.

  • Shunt
  • Registratie: Augustus 2001
  • Laatst online: 13:51

Shunt

Boe

Aomi schreef op vrijdag 10 april 2020 @ 22:36:
[...]


Ja zoals 't er nu bij ligt is wel bijzonder. Oorspronkelijk rustte de hele afvoer op 1 baksteen 8)7

Maar leidingen wegwerken in/achter een voorzetmuur kan wel toch? Iemand bezwaren? :P
Kan zeker normaal worden ze ook gewoon in de muur / onder/in de vloer of kruipruimte geplaatst.

Game PC
2 Post or Not 2 Post What's the question ?
"If it ain't broken, you didn't try hard enough"


  • Kneh91
  • Registratie: December 2016
  • Laatst online: 05-01 11:25
Wij hebben na diverse keukenzaken bezocht te hebben de volgende keuken laten ontwerpen:

Afbeeldingslocatie: https://tweakers.net/i/QpSlS6gjz-Nq_P1225Cp6-oFs8U=/232x232/filters:strip_icc():strip_exif()/f/image/K3UjNKWmJO1ZjcnCiZnmqqRX.jpg?f=fotoalbum_tileAfbeeldingslocatie: https://tweakers.net/i/ehGFvTfHAr7n42C9gz4E_RoMNQg=/232x232/filters:strip_icc():strip_exif()/f/image/9emcSFIRYxO3LCqSU3hBhVWD.jpg?f=fotoalbum_tileAfbeeldingslocatie: https://tweakers.net/i/ehOcD5wCajxWAG1j6WYJrBUP3Hw=/232x232/filters:strip_icc():strip_exif()/f/image/pyBGgYaUUMvPQ0NemiqI0tsm.jpg?f=fotoalbum_tile


Het gaat om een Hacker Systemat in de uitvoering AV1097 eiken zwart. Kookeiland heeft een keramisch blad van 310x107 met op 1 zijde een houten plank gelijmd waaraan barkrukjes kunnen worden geplaatst (niet meegenomen in offerte). Onder de kasten van het eiland wordt een speciale keuken LED-strip geplaatst van het Duitse merk Naber (type Manubrio). Keuken bevindt zich in een aanbouw met plat dak, waardoor directe afzuiging naar buiten mogelijk is.

Kenmerken:
- Hacker Systemat AV1097 eiken zwart
- Keramisch blad (Jetstone/Neolith)
- Inductie: Novy 1778 Pro
- Afzuiging: Novy 6821
- Vaatwasser: Miele G7155 XXL
- Spoelbak: Caressi 50 cm. zwart
- Quooker PRO3 Flex zwart
- Koelkast: Siemens KI81RAD30
- Onderbouw vriezer: Siemens GI11VAD30
- Combi stoom-oven: Miele DGC7645 (met vaste wateraansluiting)
- Combi oven/magnetron: Miele H7244BM

Totaalprijs incl. montage
Members only: Tot. prijs
Alleen zichtbaar voor ingelogde gebruikers. Inloggen


Vragen/twijfels huidig ontwerp:

- Ik twijfel om de onderste lades zonder greeplijst te kiezen (want rustiger ontwerp) via een zogenaamde tip-on lade. Iemand ervaring met deze lades van Systemat?
- Zijn er kwaliteitsverschillen tussen Jetstone en Neolith keramischa aanrechtbladen?
- Heeft iemand ervaringen met Novy 1778? Voornaamste keuze voor deze plaat is Intouch functie waardoor geen afstandbediener nodig is voor afzuiging, maar de afzuiging kan worden gereguleerd via de plaat.
- De Flex was een gratis optie bij de Quooker: ik vroeg me af of dit wel net zo duurzaam is als een ‘vaste’ Quooker. Ook qua krasgevoeligheid van de zwarte kraan heb ik mijn twijfels..?
- De onderbouw vriezer is helaas geen No Frost variant. Ik kan moeilijk alternatieven met No Frost vinden in deze maat (en niet meteen erg duur zijn). Iemand een tip?
- Led-strip ook evt. onder kastenwand?

  • Shunt
  • Registratie: Augustus 2001
  • Laatst online: 13:51

Shunt

Boe

Kneh91 schreef op vrijdag 10 april 2020 @ 23:05:
Wij hebben na diverse keukenzaken bezocht te hebben de volgende keuken laten ontwerpen:

[Afbeelding][Afbeelding][Afbeelding]


Het gaat om een Hacker Systemat in de uitvoering AV1097 eiken zwart. Kookeiland heeft een keramisch blad van 310x107 met op 1 zijde een houten plank gelijmd waaraan barkrukjes kunnen worden geplaatst (niet meegenomen in offerte). Onder de kasten van het eiland wordt een speciale keuken LED-strip geplaatst van het Duitse merk Naber (type Manubrio). Keuken bevindt zich in een aanbouw met plat dak, waardoor directe afzuiging naar buiten mogelijk is.

Kenmerken:
- Hacker Systemat AV1097 eiken zwart
- Keramisch blad (Jetstone/Neolith)
- Inductie: Novy 1778 Pro
- Afzuiging: Novy 6821
- Vaatwasser: Miele G7155 XXL
- Spoelbak: Caressi 50 cm. zwart
- Quooker PRO3 Flex zwart
- Koelkast: Siemens KI81RAD30
- Onderbouw vriezer: Siemens GI11VAD30
- Combi stoom-oven: Miele DGC7645 (met vaste wateraansluiting)
- Combi oven/magnetron: Miele H7244BM

Totaalprijs incl. montage
***members only***


Vragen/twijfels huidig ontwerp:

- Ik twijfel om de onderste lades zonder greeplijst te kiezen (want rustiger ontwerp) via een zogenaamde tip-on lade. Iemand ervaring met deze lades van Systemat?
- Zijn er kwaliteitsverschillen tussen Jetstone en Neolith keramischa aanrechtbladen?
- Heeft iemand ervaringen met Novy 1778? Voornaamste keuze voor deze plaat is Intouch functie waardoor geen afstandbediener nodig is voor afzuiging, maar de afzuiging kan worden gereguleerd via de plaat.
- De Flex was een gratis optie bij de Quooker: ik vroeg me af of dit wel net zo duurzaam is als een ‘vaste’ Quooker. Ook qua krasgevoeligheid van de zwarte kraan heb ik mijn twijfels..?
- De onderbouw vriezer is helaas geen No Frost variant. Ik kan moeilijk alternatieven met No Frost vinden in deze maat (en niet meteen erg duur zijn). Iemand een tip?
- Led-strip ook evt. onder kastenwand?
Ik zou persoonlijk voor een oven met het zelfde aanzicht gaan. Ik werd al helemaal gek van de Siemens ovens waar vijf verschillende frontjes lijken te zijn. Verder en mooie keuken. (is die houten plaat vast of kun je die gewoon verwijderen?)

Game PC
2 Post or Not 2 Post What's the question ?
"If it ain't broken, you didn't try hard enough"


  • Aomi
  • Registratie: Februari 2019
  • Laatst online: 09-12 11:13
perspectivebass schreef op vrijdag 10 april 2020 @ 22:43:
[...]


Zolang je de warmwaterleiding niet tussen isolatie legt moet het goed gaan. Warm water leidingen mag je namelijk niet isoleren ivm legionella. De leiding moet snel af kunnen koelen na gebruik.
Goed om rekening mee te houden. Bedankt!

  • Appie Heijn
  • Registratie: November 2002
  • Laatst online: 10:40
Hier is ook eindelijk de kogel door kerk.
Vandaag de keuken bij Keukenloods Zaandam besteld via @Barry|IA
Afbeeldingslocatie: https://tweakers.net/i/AFuLEdyBMxR4nu-PaBHFQkl1tiQ=/f/image/tVxuEoTbbqvjGcBEBrFLJVIb.jpg
Deze opzet is het zo'n beetje geworden echter met een paar wijzigingen.

Merk/type: Häcker AV2035-GL V507 AFP Zwart LAK
Blad: Blad: Paco Classico Grain HX1 composiet
Siemens koelkast KI82LAD30
Miele H7840BMOBSW combi-oven
Miele DGC7845OBSW combi-stoomoven/klepdeur
Siemens SN858D05TE vaatwasser
Bora PUXU inductiekookplaat
Quooker fusion square /COMBI+ Zwart

Ipv de siemens (stoom) oven/magnetrons gaan we nu voor de Miele met vaste wateraansluiting
En ipv de plank in de nis worden het 1 kast met klep

Wellicht dat we op het uiteinde rechts van de spoelbak toch nog een zitje maken dmv een plaat/plank hout in dezelfde setting als wat in de nis verwerkt wordt.

44x Trina 330WP @ SMA 10.00; Hitachi Yutaki 5,5KW AIO 280L


  • Strider
  • Registratie: November 2001
  • Laatst online: 18:33
Aangezien er bij de verbranding van gas fijnstof vrijkomt wil ik mijn gaskookplaat gaan vervangen door een inductiekookplaat.

Het moet een inductiekookplaat worden die geschikt is voor 1 fase en een 230v aansluting, aangezien ik huur wil ik hier geen extra elektra kosten voor gaan dragen.

Nu ben ik uitgekomen op 3 inductiekookplaten, ze hebben alle 3 goede reviews maar ik twijfel welke inductiekookplaat het meest ergonomisch is bij meerdere pannen, waarvan 1 pan een wokpan gaat zijn. Bij gas komt dat iets minder nauwkeurig, aangezien er geen warmteoppervlakte is waarbij je met je pan niet overheen moet gaan.

Ik twijfel over de onderste 3 platen. In eerste instantie leek de AEG het meest praktische, aangezien de 21cm kookzone vrij ver naar voren staan, wat mij ideaal lijkt voor een wokpan aangezien je dan nog wat ruimte over hebt voor de kookzone erachter. Maar een wokpan heeft een diameter van 18cm, en deze kookzone heeft een diameter van 21cm. Daarnaast zijn de 2 andere 14.5cm kookzones wel klein te noemen.

Tips, ervaringen? :)

Afbeeldingslocatie: https://i.imgur.com/YmU1MhU.jpg

AEG HK604200CB
Siemens EU611BEB1E
Inventum IKI6010

BlaBlaBla


  • woekele
  • Registratie: Juni 2002
  • Niet online

woekele

woekele

Strider schreef op zaterdag 11 april 2020 @ 10:52:
Aangezien er bij de verbranding van gas fijnstof vrijkomt
Uh? Ik dacht juist dat van het gas zelf relatief weinig fijnstof kwam, maar vooral van het braden/wokken. Dat los je dus niet op met inductie.

[ Voor 6% gewijzigd door woekele op 11-04-2020 11:18 ]


  • Strider
  • Registratie: November 2001
  • Laatst online: 18:33
woekele schreef op zaterdag 11 april 2020 @ 11:17:
[...]


Uh? Ik dacht juist dat van het gas zelf relatief weinig fijnstof kwam, maar vooral van het braden/wokken. Dat los je dus niet op met inductie.
Ik denk dat je hier gelijk in hebt, toch blijft het ongezond:

https://healthyindoors.co...sions-natural-gas-stoves/

Gas stoves emit nitrogen dioxide (NO2), carbon monoxide (CO), and formaldehyde (HCHO), each of which can exacerbate various respiratory and other health ailments.

BlaBlaBla


  • woekele
  • Registratie: Juni 2002
  • Niet online

woekele

woekele

Ja, voornamelijk als je geen afzuigkap gebruikt staat er gelijk al bij. Maar goed, iedereen mag natuurlijk zelf beslissen wat ze doen en waarom... Maar gratis tip van mij: laat je niet zo bang maken. Wil je toch iets doen: zorg in elk geval voor een goede afzuigkap en gebruik deze correct. En ook deze tip mag je mee doen of niet doen wat je wil natuurlijk :)

[ Voor 31% gewijzigd door woekele op 11-04-2020 11:43 ]


  • Jaer288
  • Registratie: Mei 2005
  • Laatst online: 18-12 11:41
Strider schreef op zaterdag 11 april 2020 @ 10:52:
Het moet een inductiekookplaat worden die geschikt is voor 1 fase en een 230v aansluting, aangezien ik huur wil ik hier geen extra elektra kosten voor gaan dragen.

Tips, ervaringen? :)
Wellicht heb je er al rekening mee gehouden, maar een groot nadeel van één groep inductiekookplaten is dat ze al snel het vermogen verdelen bij het gebruik van meerdere zones. Je kunt ze wel allemaal te gelijk gebruiken, maar je zal merken dat het koken dan een stuk minder snel gaat in vergelijking met je eerdere 'gaskook'-ervaring.

Hier meer info: http://keuken.inforaam.nl...laat-op-een-enkele-groep/

Verder zou ik er één kiezen met een RVS rand, maar dat is iets persoonlijks. Ik ben vrij lui met het optillen van mijn pannen en tik al snel tegen de rand aan.

  • mitsumark
  • Registratie: Juni 2009
  • Laatst online: 19:11
Voor mij is het grootste nadeel dat inductie veel duurder in aanschaf is, 2x zoveel energie kosten om te gebruiken (500 over 20 jaar) en daarnaast ook complex / storingsgevoelig zijn (gaan ze wel 20 jaar mee?).
Ik zie niet in waarom iemand dat zou doen in een bestaande keuken, hooguit voor een nieuwe maar zelfs dan..

[ Voor 15% gewijzigd door mitsumark op 11-04-2020 12:48 ]


  • ppatrick
  • Registratie: Maart 2010
  • Laatst online: 09:42
Als je huis wil zonder gas moet je wel toch? ( ja keramisch kan ook maar komt denk weinig voor)

  • Jeebeekje
  • Registratie: Oktober 2006
  • Laatst online: 16-12 12:19
Wij hebben vandaag een offerte laten maken bij Superkeukens. Die kwamen met het merk Constructa aanzetten. Dit is onderdeel van dezelfde groep als Siemens en Bosch. Volgens de verkoper is het intern identiek aan Siemens apparatuur, behalve dat er meestal wat minder opties op zitten. Volgens hem is reparatie geen issue omdat dit gewoon door dezelfde partij wordt afgehandeld (en de onderdelen zouden dus hetzelfde zijn).

Ik kan weinig informatie over dit merk vinden, het lijkt erop dat Superkeukens deze als enige in Nederland voert? Overigens was het een goed gesprek met de verkoper. Hij kwam met dit merk nadat de eerste optie net boven ons budget viel. Helaas kun je Siemens en Constructa niet mengen om zo op de minimaal 4 apparatuur te komen voor de garantieverlenging.

Heeft er iemand meer ervaringen met dit product en/of garantie/reparatie? Is het echt vrijwel identiek qua onderdelen?

  • Wilke
  • Registratie: December 2000
  • Laatst online: 19:15
Bij veel bestaande huizen van bouwbesluit voor 2012 is 'van het gas' vooralsnog volgens mij meer wensdenken van sommige groepen dan dat het met de realiteit te maken heeft, maar dat lijkt me een discussie voor in een ander topic.

Anyway, als je afzuiging naar buiten hebt zou ik me geen zorgen maken.

  • Barry|IA
  • Registratie: Januari 2004
  • Laatst online: 23-06-2022
mitsumark schreef op zaterdag 11 april 2020 @ 12:32:
Voor mij is het grootste nadeel dat inductie veel duurder in aanschaf is, 2x zoveel energie kosten om te gebruiken (500 over 20 jaar) en daarnaast ook complex / storingsgevoelig zijn (gaan ze wel 20 jaar mee?).
Ik zie niet in waarom iemand dat zou doen in een bestaande keuken, hooguit voor een nieuwe maar zelfs dan..
Schoonmaakgemak, sneller water aan de kook, gelijkmatigere verwarming, etc. spelen allemaal een grote rol voor de consument. in 99 van de 100 gevallen kiest men nu voor inductie.

“Nothing changed since the 70s. Nothing. Except people train not that hard”. - Tom Platz


  • Appie Heijn
  • Registratie: November 2002
  • Laatst online: 10:40
@mitsumark
2x zoveel energiekosten? Hoeveel verbruikt een inductie eigenlijk? Heb er niet eens naar gekeken, puur cosmetisch en geldtechnisch dat we voor inductie gaan. Volgens google doet een inductie een 200kWh.
Puur m3 vs kWh zou dat zijn:
15 x €0,63 = €9,44
200 x €0,21 = € 42

Ik verbruik nu 15 m3 gas per jaar voor koken. Daar betaalde ik vorig jaar €172 voor, daarom nu over op inductie. All-Electric FTW >:)

[ Voor 16% gewijzigd door Appie Heijn op 11-04-2020 16:00 ]

44x Trina 330WP @ SMA 10.00; Hitachi Yutaki 5,5KW AIO 280L


  • doggy1
  • Registratie: Maart 2007
  • Laatst online: 08-12 20:39
Voordeel inductie is dat er veel minder waterdamp ontstaat tov koken op gas.

  • vortexnl1982
  • Registratie: Augustus 2014
  • Laatst online: 20:04
Wij laten een zelfbouwwoning bouwen en moeten zogenaamde technische tekeningen van onze keuken aan de aannemer geven. Dan weten ze waar alle leidingen etc moet komen te zitten.

Ik ben echter nog op zoek naar een keukenleverancier en ik heb zelf niet zo'n haast. De woning zal pas over een jaartje klaar zijn, waarom moet ik dan nu al een keuken hebben besteld.

Oftewel : ik heb zelf een ontwerp gemaakt en dit doorgegeven aan de architect. Die heeft het ingetekend op de tekeningen. Daarnaast heb ik apparatuur doorgegeven wat we gaan plaatsen in de keuken en dan vooral het verbruik zodat de installateur weet wat de stroombehoefte is.

Dit is de tekening voor elektra :
Afbeeldingslocatie: https://i.postimg.cc/QBTQHm2z/keuken-elektra.png

Is het slim om het stopcontact van de vaatwasser achter de vaatwasser te laten zetten ? Volgens mij kan die beter achter de wasbak komen ?

Dit is de tekening van water :
Afbeeldingslocatie: https://i.postimg.cc/dhkBMJVr/keuken-water.png

Dit is de tekening van afvoer :
Afbeeldingslocatie: https://i.postimg.cc/dL4dV30g/keuken-afvoer.png

Is dit voldoende denken jullie ? Moet ik nog meer zaken doorgeven zoals hoogte van stopcontacten ? Leidingen in de muur (las ik hier een paar posts geleden) ? Hoogte van de keukenplinten ?

  • Farmerwood
  • Registratie: September 2004
  • Niet online
vortexnl1982 schreef op zaterdag 11 april 2020 @ 21:24:
Ik ben echter nog op zoek naar een keukenleverancier en ik heb zelf niet zo'n haast. De woning zal pas over een jaartje klaar zijn, waarom moet ik dan nu al een keuken hebben besteld.
Wij moesten ruim 1,5 jaar voor de geplande opleverdatum van ons huis de technische tekening voor de keuken inleveren bij de aannemer. We hebben bij een keukenleverancier alleen een opstelling uitgewerkt en zij hebben op basis daarvan een technische tekening aangeleverd. Adviesgesprek incl de tekening kostte ons zo'n 200 euro. Vonden wij een zeer acceptabel bedrag om het door een expert te laten tekenen.
We hebben voor over een half jaar weer een afspraak staan om de details van de keuken uit te werken.

Aka je hoeft niet meteen een hele keuken tot in detail uitgewerkt te kopen.

  • vortexnl1982
  • Registratie: Augustus 2014
  • Laatst online: 20:04
Farmerwood schreef op zaterdag 11 april 2020 @ 21:46:
[...]


Wij moesten ruim 1,5 jaar voor de geplande opleverdatum van ons huis de technische tekening voor de keuken inleveren bij de aannemer. We hebben bij een keukenleverancier alleen een opstelling uitgewerkt en zij hebben op basis daarvan een technische tekening aangeleverd. Adviesgesprek incl de tekening kostte ons zo'n 200 euro. Vonden wij een zeer acceptabel bedrag om het door een expert te laten tekenen.
We hebben voor over een half jaar weer een afspraak staan om de details van de keuken uit te werken.

Aka je hoeft niet meteen een hele keuken tot in detail uitgewerkt te kopen.
Nee precies, dacht ik ook. Maar wat houdt zo'n technische tekening nou in ? Waar de stopcontacten / water / riool etc komt ? Volgens mij voldoen mijn tekeningen wel. Misschien moet een stopcontact iets omhoog/omlaag maar goed dat komt wel goed....

  • Wilke
  • Registratie: December 2000
  • Laatst online: 19:15
Hoogte van elke wcd of leiding: ja zeker aangeven. Aansluitingen van de vaatwasser idd best achter de spoelbak, in elk geval naast de vaatwasser en zeker niet er achter.

Ook aangeven welke wcd's op een eigen groep moeten zitten (oven, vaatwasser, quooker e.d.) of krachtgroep (inductieplaat).

Vergeet niet de wcds voor de koelkast (onderaan achter de plint) en afzuiger/verlichting (hoog boven kookzone indien afzuigkap aanwezig).

[ Voor 19% gewijzigd door Wilke op 11-04-2020 21:54 ]


  • vortexnl1982
  • Registratie: Augustus 2014
  • Laatst online: 20:04
Wilke schreef op zaterdag 11 april 2020 @ 21:52:
Hoogte van elke wcd of leiding: ja zeker aangeven. Aansluitingen van de vaatwasser idd best achter de spoelbak, in elk geval naast de vaatwasser en zeker niet er achter.

Ook aangeven welke wcd's op een eigen groep moeten zitten (oven, vaatwasser, quooker e.d.) of krachtgroep (inductieplaat).

Vergeet niet de wcds voor de koelkast (onderaan achter de plint) en afzuiger/verlichting (hoog boven kookzone indien afzuigkap aanwezig).
Dank je, goede tips !

Ik zat te denken aan een Bora Pura en die aan krachtstroom te hangen. Vind je dat ik voor de oven + koelkast een aparte groep moet laten aansluiten ?

  • Wilke
  • Registratie: December 2000
  • Laatst online: 19:15
Alles wat 2000W of meer trekt (gespecificeerd max vermogen) en vast geïnstalleerd is hoort op een eigen groep. De koelkast, lampjes en afzuigkap trekken bijna niks en kunnen op een groep samen met bv. wcd's boven je werkblad.

Maar het is idd een goed idee als je dit soort dingen zelf niet weet te vragen of een keukenzaak dat voor wat geld wil tekenen. Het rechtzetten van 1 onhandig foutje dat je gegarandeerd gaat maken (je mag hopen dat het bij 1 blijft) gaat gegarandeerd minstens die hierboven genoemde €200 kosten om recht te zetten. Dus als een keukenzaak voor dat geld vast wil meedenken over een basis-indeling zonder dat je aan alle details of zelfs die zaak vast zit, zou ik dat zeker doen.

Nog een tip, als je het ook maar enigszins kunt veroorloven qua ruimte, maak de werkbladen dieper dan 60 cm. Al is het maar 65, dan heb je wat ruimte achter de kastjes, wat alles iets minder kritiek maakt. Bovendien is een iets dieper blad fijn (vind ik). Moet je de plek wel kunnen missen.

[ Voor 17% gewijzigd door Wilke op 11-04-2020 22:12 ]


  • vortexnl1982
  • Registratie: Augustus 2014
  • Laatst online: 20:04
Wilke schreef op zaterdag 11 april 2020 @ 22:09:
Alles wat 2000W of meer trekt (gespecificeerd max vermogen) en vast geïnstalleerd is hoort op een eigen groep. De koelkast, lampjes en afzuigkap trekken bijna niks en kunnen op een groep samen met bv. wcd's boven je werkblad.

Maar het is idd een goed idee als je dit soort dingen zelf niet weet te vragen of een keukenzaak dat voor wat geld wil tekenen. Het rechtzetten van 1 onhandig foutje dat je gegarandeerd gaat maken (je mag hopen dat het bij 1 blijft) gaat gegarandeerd minstens die hierboven genoemde €200 kosten om recht te zetten. Dus als een keukenzaak voor dat geld vast wil meedenken over een basis-indeling zonder dat je aan alle details of zelfs die zaak vast zit, zou ik dat zeker doen.
Ik denk dat ik wel een heel eind op de goede richting zit toch ? Het zijn een paar wcd en water toevoer / riool. De indeling van de keuken blijft zoals hij is. We gaan hier niets meer aan veranderen.

  • Rubbergrover1
  • Registratie: Maart 2020
  • Laatst online: 20:09
Dit lijkt mij zeker niet voldoende. De aannemer is niet geïnteresseerd in bovenaanzichten (behalve voor de vloerverwarming), maar in de locaties op de muren. Daarbij zal hij ook een indicatie moeten hebben van de vermogens van de apparaten en bv bij de kookplaat welk soort aansluiting. En hoeveel groepen er dan dus moeten komen.

Je kunt beter zijaanzichten van de muren maken, met daarop de hoogte van de diverse aansluitingen, afvoeren en wandcontactdozen. Waarbij je dus ook vast moet bedenken hoe hoog het werkblad wordt en hoe hoog je de wandcontactdozen boven het werkblad wilt en bv wat precies de eventuele afzuigkap komt (een de hoogte er van)

  • vortexnl1982
  • Registratie: Augustus 2014
  • Laatst online: 20:04
@Rubbergrover1 dat is inderdaad een goeie om zijaanzichten te maken ! Vooral voor de (zichtbare) stopcontacten boven het werkblad. Ik heb een paar mooie voorbeelden gezien die ik kan gebruiken als inspiratie :) Ik ga zo'n tekening maken en hier posten.

  • Barry|IA
  • Registratie: Januari 2004
  • Laatst online: 23-06-2022
Jeebeekje schreef op zaterdag 11 april 2020 @ 14:28:
Wij hebben vandaag een offerte laten maken bij Superkeukens. Die kwamen met het merk Constructa aanzetten. Dit is onderdeel van dezelfde groep als Siemens en Bosch. Volgens de verkoper is het intern identiek aan Siemens apparatuur, behalve dat er meestal wat minder opties op zitten. Volgens hem is reparatie geen issue omdat dit gewoon door dezelfde partij wordt afgehandeld (en de onderdelen zouden dus hetzelfde zijn).

Ik kan weinig informatie over dit merk vinden, het lijkt erop dat Superkeukens deze als enige in Nederland voert? Overigens was het een goed gesprek met de verkoper. Hij kwam met dit merk nadat de eerste optie net boven ons budget viel. Helaas kun je Siemens en Constructa niet mengen om zo op de minimaal 4 apparatuur te komen voor de garantieverlenging.

Heeft er iemand meer ervaringen met dit product en/of garantie/reparatie? Is het echt vrijwel identiek qua onderdelen?
“Identiek aan Siemens” is een slap verkoopverhaal. Siemens maakt goede en minder goede apparatuur. Dus identiek aan welke lijn van Siemens, dat is wat je wilt weten.

Constructa is zo’n merk dat gepusht wordt door SuperKeukens omdat zij er in combinatie met de keukenmeubelen een soort staffel korting op krijgen.

Ik zou dit merk alleen al niet aanbevelen omdat er weinig info over te vinden is. Wat als je over 5 jaar een onderdeel moet vervangen, is deze dan wel te vinden? Is er een reparatiehandleiding te vinden voor deze apparatuur?

Welke Siemens apparatuur had je initieel uitgezocht? Hoe ver lag dit boven budget?

“Nothing changed since the 70s. Nothing. Except people train not that hard”. - Tom Platz


  • Insert12
  • Registratie: Januari 2013
  • Laatst online: 20:56
Jeebeekje schreef op zaterdag 11 april 2020 @ 14:28:
Wij hebben vandaag een offerte laten maken bij Superkeukens. Die kwamen met het merk Constructa aanzetten. Dit is onderdeel van dezelfde groep als Siemens en Bosch. Volgens de verkoper is het intern identiek aan Siemens apparatuur, behalve dat er meestal wat minder opties op zitten. Volgens hem is reparatie geen issue omdat dit gewoon door dezelfde partij wordt afgehandeld (en de onderdelen zouden dus hetzelfde zijn).

Ik kan weinig informatie over dit merk vinden, het lijkt erop dat Superkeukens deze als enige in Nederland voert? Overigens was het een goed gesprek met de verkoper. Hij kwam met dit merk nadat de eerste optie net boven ons budget viel. Helaas kun je Siemens en Constructa niet mengen om zo op de minimaal 4 apparatuur te komen voor de garantieverlenging.

Heeft er iemand meer ervaringen met dit product en/of garantie/reparatie? Is het echt vrijwel identiek qua onderdelen?
Wij hebben de afzuigkap en vaatwasser van Constructa, het zal al in het huis toen we het kochten. Ik kan je alleen onze ervaringen delen die we hebben met de apparaten, we hebben nog geen onderdelen nodig gehad.

De apparaten zijn vooral heel erg basic, er zitten weinig opties op. De vaatwasser heeft drie programma's, niets waardoor je aan de buitenkant kunt zien of het programma klaar is of hoe lang het programma gaat duren. Als je de klep open trekt brand er wel een lampje als het programma klaar is.

De afzuigkap heeft een schuif waarmee je hem op een van de drie standen zet en een schuif waar je de lampjes mee aan of uit zet.

Zelf zou ik niet weer voor dit merk gaan, het is me te basic. Wel voelt alles kwalitatief prima aan en werkt het hier zonder problemen.

  • Kneh91
  • Registratie: December 2016
  • Laatst online: 05-01 11:25
Shunt schreef op vrijdag 10 april 2020 @ 23:27:
[...]


Ik zou persoonlijk voor een oven met het zelfde aanzicht gaan. Ik werd al helemaal gek van de Siemens ovens waar vijf verschillende frontjes lijken te zijn. Verder en mooie keuken. (is die houten plaat vast of kun je die gewoon verwijderen?)
Ja goede tip wat betreft de oven-frontjes. Ik vrees dat we dan met een duurdere variant oven/magnetron moeten kiezen om te laten matchen met de prijzige stoomoven DCG7645.

Het hout wordt verlijmd op het keramiek. De keukenleverancier heeft zelf geen ruime selectie met planken dus raadde ons aan zelf een mooie plank uit te zoeken bij een specialist. Dit kunnen we dan matchen met de planken die in de nis komen komen boven het koffiezetapparaat.

  • Mr_Blobby
  • Registratie: Mei 2000
  • Laatst online: 16:52
vortexnl1982 schreef op zondag 12 april 2020 @ 10:13:
@Rubbergrover1 dat is inderdaad een goeie om zijaanzichten te maken ! Vooral voor de (zichtbare) stopcontacten boven het werkblad. Ik heb een paar mooie voorbeelden gezien die ik kan gebruiken als inspiratie :) Ik ga zo'n tekening maken en hier posten.
Als je overweeg om een Quooker te kopen, denk dan ook aan een groep en aansluiting daarvoor want die kan niet gecombineerd worden met de vaatwasser op 1 groep.

en zij zagen niet hoe spot in mij worstelde met verdriet


  • Farmerwood
  • Registratie: September 2004
  • Niet online
vortexnl1982 schreef op zondag 12 april 2020 @ 10:13:
@Rubbergrover1 dat is inderdaad een goeie om zijaanzichten te maken ! Vooral voor de (zichtbare) stopcontacten boven het werkblad. Ik heb een paar mooie voorbeelden gezien die ik kan gebruiken als inspiratie :) Ik ga zo'n tekening maken en hier posten.
Bij ons heeft de aannemer een heel lijstje wensen/eisen waaraan zo'n tekening moet voldoen. Op zich allemaal niks spannends, maar ze wilden bv graag de maten hebben vanaf 1 specifieke hoek in de keuken. Voor hen blijkbaar handig.
Vraag even aan je aannemer of ze ook zo'n overzicht hebben voor je gaat tekenen en straks weer opnieuw kunt beginnen.

Als je me je e-mailadres per DM stuurt wil ik je ook wel onze tekening sturen als voorbeeld.

[ Voor 6% gewijzigd door Farmerwood op 12-04-2020 14:31 ]


  • mitsumark
  • Registratie: Juni 2009
  • Laatst online: 19:11
Bij mij was elke wijziging aan de tekening (zelfs toen de bouw nog moest beginnen) pakweg 75 euro + extra meteriaal/werk, voor elektra vaak 150-200 euro pér wijziging.
Ik heb dus bewust gekozen om alles te laten als het is, en door iemand anders al het leidingwerk etc aan te laten passen, incl infrezen van spul was dat alsnog veel goedkoper.
Zelfde bij de badkamer.
Als het nu nog "gratis" is, zeker doen.

  • MikeyMan
  • Registratie: Februari 2003
  • Laatst online: 17:23

MikeyMan

Vidi, Vici, Veni

Mr_Blobby schreef op zondag 12 april 2020 @ 13:58:
[...]
Als je overweeg om een Quooker te kopen, denk dan ook aan een groep en aansluiting daarvoor want die kan niet gecombineerd worden met de vaatwasser op 1 groep.
Kan eventueel wel met het juiste stekkerblok.

  • PPT
  • Registratie: April 2020
  • Laatst online: 23-02 18:05

PPT

Ik heb bij Keukenloods een ontwerp laten maken voor een keuken na eerder bij andere zaken te hebben gekeken welke indeling en kasten ik zou willen. In de keuken zit ook een "gratis" Bora, echter vertelde de verkoper aan de telefoon gisteren dat die actie alleen dit paasweekend is. Daarom een afspraak gemaakt om morgen langs te gaan om de aankoop af te ronden. Het voelt allemaal erg haastig op deze manier.

Nu zou ik de prijs eigenlijk nog wel even willen vergelijken maar ik weet de specificaties qua apparatuur nog niet. Is er een wettelijke termijn dat je kan nadenken over een aanbod?

  • mitsumark
  • Registratie: Juni 2009
  • Laatst online: 19:11
Wettelijk denk ik niet, maar op de offerte staat doorgaans wel hoe lang deze geldig is (al zullen ze proberen dat je op dezelfde dag gelijk de knoop doorhakt).

In principe denk ik: als een korting met pasen kan, dan volgende week ook (desnoods in een andere vorm), dus laat je niet gek maken.
Pagina: 1 ... 124 ... 531 Laatste

Let op:
Dit topic kan gebruikt worden voor het volgende:
• Vragen over de keuken, denkend aan indeling, materialen, kastjes, apparatuur, etc.
• Welke kastjes, aanrechtbladen en apparatuur te kiezen
• Ervaringen met verkopers en keukenboeren
• Tips & Tricks denk hierbij aan hulp bij het zelf installeren en onderhouden van de keuken.
• Jouw indeling. Plaats gerust een foto of tekening, maar maak het niet te bont met hele buildlogs.

Voor badkamers: Het Badkamer topic: verkopers, kwaliteit, prijs - Deel 1
Showen met je keuken kan hier: Tweakers Keuken showroom! - Vestiging 1