Op een grote oval als Pocono of Daytona kunnen de cautions lang duren ja.
Yep is een super bakje veel leuker dan die Track versie met ABS en gare gearbox. Zit veel meer leven in die c-spec. En racejes zijn tot nu toe erg leuk.Phydomir schreef op zaterdag 01 februari 2014 @ 00:32:
Als je de c-spec gaat rijden moet je vergeten dat er ooit een c-spec is geweest en vanaf 0 beginnen. Ik kan me ook niet echt vinden in het commentaar. Vind het een hele leuke auto.
juist van p31 naar p11 gereden in GT3 challenge split 1 geeft kick man
Zo'n set met pedalen voor 150,- is ook wel aantrekkelijk ja.Red Baron schreef op vrijdag 31 januari 2014 @ 19:17:
[...]
Of een Bodnar kabel nou echt het verschil maakt, geen idee. Vind het moeilijk in te schatten of het nou echt veel helpt een hogere resolutie. Wat wel handig is eraan is dat je met die calibratie tool de actieve range kunt instellen.
Bij slijtage of beetje springende waardes bij vol gas kan je dat makkelijk even bijwerken, dus je hoeft niet met half gas ingame te gaan calibreren etc.
Qua veren weet ik het niet, ik heb de mijne als voor de launch al pre-ordered en toen leverden ze maar 1 veer (ik denk die lichte?). Ik vind de mijne in ieder geval al behoorlijk hard; tijdens de Daytona 2.4 heb ik ook een keer zo hard zitten trappen dat de pedalen als het ware achterover kantelden en verschoven waardoor ik de muur in spinde
[...]
Om eerlijk te zijn had ik niet verwacht dat het nog onder de garantie viel, aangezien ik de orginele set eind 2010 aangeschaft had.
De pedalen houd ik liever zelf nog even als backup, sorry.
[...]
Klopt, ze zijn redelijk prijzig. De eerste pre-order batch was goedkoper (€ 99,-)
Voor € 140 zou ik denk ik eerder de CSR Elite overwegen ofzo...
Heb je dan naast de rem nog meer voordeel? De resolutie van alle pedalen is dan waarschijnlijk hoger dan van mijn G27 setje?
Wat is het verschil tussen load cell en het hydraulische syteem van TSS?
Ik heb beide (gehad). Een ClubSport Pedal V1 set en de TSS brake mod. Qua gevoel vind ik er weinig verschil in zitten. Het doet beide wat je zou verwachten. Goed doseerbare remdruk.Xept!on schreef op zaterdag 01 februari 2014 @ 04:03:
[...]
Zo'n set met pedalen voor 150,- is ook wel aantrekkelijk ja.
Heb je dan naast de rem nog meer voordeel? De resolutie van alle pedalen is dan waarschijnlijk hoger dan van mijn G27 setje?
Wat is het verschil tussen load cell en het hydraulische syteem van TSS?
Ik ben overgestapt op de TSS omdat mijn Fanatec V1 pedalen onbetrouwbaar waren. Rem die bleef hangen of juist ineens niet meer vol in te drukken was. Na veel gekloot en iRating verlies heb ik de stap naar de TSS mod gemaakt. Persoonlijk zou ik iedereen de TSS aanraden als je al een G25/27 hebt.
Volgende stap zal zo'n HE Engineering set zijn. Echter is €719,- op dit moment lichtelijk buiten budget

iRacing | Sim Gear: SimXperience AccuForce, Heusinkveld Pro, Custom 80/20 rig, Sparco R100 Sky
€ 400 onder nieuwprijs als je de hele mikmak koopt (zonder flightsim gedoe...)BM schreef op zaterdag 01 februari 2014 @ 11:33:
Hmmz, 600 euro voor die hele R3volution set, dat is niet al te duur, toch?
Yep
iRacing Profiel -|- Mijn RaceRig -|- Mijn stream
Dat leek mij geen gekke deal, op voorwaarde dat alles in goede staat is. Maar volgens mij is dat spul niet kapot te krijgen...JoepW schreef op zaterdag 01 februari 2014 @ 11:48:
[...]
€ 400 onder nieuwprijs als je de hele mikmak koopt (zonder flightsim gedoe...)
(140*170 was het he?
[ Voor 5% gewijzigd door BM op 01-02-2014 11:51 ]
Xbox
Even the dark has a silver lining | I'm all you can imagine times infinity, times three
Aye boss
Xbox
Even the dark has a silver lining | I'm all you can imagine times infinity, times three
Ik zal zo nog ff 1x meten.....BM schreef op zaterdag 01 februari 2014 @ 11:50:
[...]
Dat leek mij geen gekke deal, op voorwaarde dat alles in goede staat is. Maar volgens mij is dat spul niet kapot te krijgen...
(140*170 was het he?)
Het Monday Tournament is nu helemaal klaar.
En we hebben een leuke prijs toegevoegd!
Kijk hier voor alle details.
Tevens zijn alle geplande races en evenementen opgenomen in onze overzichtelijke AGENDA
iRacing Profiel -|- Mijn RaceRig -|- Mijn stream
Mooi spul allemaal.Phydomir schreef op zaterdag 01 februari 2014 @ 09:18:
[...]
Ik heb beide (gehad). Een ClubSport Pedal V1 set en de TSS brake mod. Qua gevoel vind ik er weinig verschil in zitten. Het doet beide wat je zou verwachten. Goed doseerbare remdruk.
Ik ben overgestapt op de TSS omdat mijn Fanatec V1 pedalen onbetrouwbaar waren. Rem die bleef hangen of juist ineens niet meer vol in te drukken was. Na veel gekloot en iRating verlies heb ik de stap naar de TSS mod gemaakt. Persoonlijk zou ik iedereen de TSS aanraden als je al een G25/27 hebt.
Volgende stap zal zo'n HE Engineering set zijn. Echter is €719,- op dit moment lichtelijk buiten budget
Eerst maar eens goede lijnen leren rijden, daar win ik nu nog het meest mee denk ik.
Iets preciezer gemeten...BM schreef op zaterdag 01 februari 2014 @ 11:50:
[...]
Dat leek mij geen gekke deal, op voorwaarde dat alles in goede staat is. Maar volgens mij is dat spul niet kapot te krijgen...
(140*170 was het he?)
Voorkant (bij pedalen) tot achterkant ('onder' rugleuning van stoel): 180 cm (1)
Links - Rechts (Incl. 23" extra scherm rechts & toetsenbord houder links naast stoel): 142 cm (2)
(1): Wordt beperkt beïnvloed als je er voor kiest om de schermen achter je base van je stuur te zetten. Hooguit 1-2 cm. langer.
(2): Breedte wordt amper beïnvloed als je een grotere hoek kiest (kleine FoV) dan ik.
Ik zou zeggen, doen en gewoon de opstelling kiezen die past
iRacing Profiel -|- Mijn RaceRig -|- Mijn stream
In het boodschappenmandje;
SK Modified
Radical SR8
Plus de vier tracks die ik nog voor de Skip nodig heb.
Of de SK Modified een goede keus is weet ik niet, maar daarmee heb ik ook meteen de Tour versie toch?
SK Modified
Radical SR8
Plus de vier tracks die ik nog voor de Skip nodig heb.
Of de SK Modified een goede keus is weet ik niet, maar daarmee heb ik ook meteen de Tour versie toch?
De Modified zou ik niet pakken, er zijn nauwelijks races in die serie. Dan kan je beter de National Impala of de Late Model pakken.
[ Voor 3% gewijzigd door Niellie41 op 01-02-2014 13:00 ]
Ah thanks, waar kan ik dat ergens zien?Niellie41 schreef op zaterdag 01 februari 2014 @ 13:00:
De Modified zou ik niet pakken, er zijn nauwelijks races in die serie. Dan kan je beter de National Impala of de Late Model pakken.
Mooi schema voor dat Monday Tournament. Hopelijk dit seizoen wat meer tijd om mee te doen 
Ik ga iig proberen er weer bij te zijn.
Ik ga iig proberen er weer bij te zijn.
Hmmz, dat word een aardig puzzel nogJoepW schreef op zaterdag 01 februari 2014 @ 12:49:
[...]
Iets preciezer gemeten...
Voorkant (bij pedalen) tot achterkant ('onder' rugleuning van stoel): 180 cm (1)
Links - Rechts (Incl. 23" extra scherm rechts & toetsenbord houder links naast stoel): 142 cm (2)
(1): Wordt beperkt beïnvloed als je er voor kiest om de schermen achter je base van je stuur te zetten. Hooguit 1-2 cm. langer.
(2): Breedte wordt amper beïnvloed als je een grotere hoek kiest (kleine FoV) dan ik.
Ik zou zeggen, doen en gewoon de opstelling kiezen die past
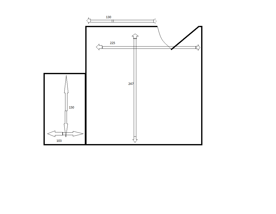
Dit word de ruimte (niet op schaal) waar ie eventueel zou moeten komen. Daarbij moet dan nog een normaal bureau, een diepvries, en bij voorkeur ook nog wat boekenplanken/bergruimte passen
Xbox
Even the dark has a silver lining | I'm all you can imagine times infinity, times three
Bij het blokje Series > Current Seasons
Vervolgens klik je op de serie waar je naar wil kijken (in dit geval dus de SK modified, en vervolgens op results. Zoals je kunt zien gaan races vrijwel alleen official midden in de nacht. Niet echt ideaal dus
[ Voor 11% gewijzigd door BobvK op 01-02-2014 13:20 ]
Rechts onderin dus. Bureau links onder in de nis en de boekenkast naast de deur. De diepvries in de berging of afschaffen?BM schreef op zaterdag 01 februari 2014 @ 13:11:
[...]
Hmmz, dat word een aardig puzzel nog
Dit word de ruimte (niet op schaal) waar ie eventueel zou moeten komen. Daarbij moet dan nog een normaal bureau, een diepvries, en bij voorkeur ook nog wat boekenplanken/bergruimte passen
iRacing Profiel -|- Mijn RaceRig -|- Mijn stream
Dankjewel!BobvK schreef op zaterdag 01 februari 2014 @ 13:15:
[...]
Bij het blokje Series > Current Seasons
Vervolgens klik je op de serie waar je naar wil kijken (in dit geval dus de SK modified, en vervolgens op results. Zoals je kunt zien gaan races vrijwel alleen official midden in de nacht. Niet echt ideaal dusPlus het is week 1, wat betekent dat participatie alleen maar zal afnemen des te verder we in het seizoen belanden.
Ik ga er nog even over denken of ik m'n geld wil uitsmeren over oval en road, en voor nu maar met de Street Stock blijven rijden.
Dan neem ik nu daarvoor in de plaats de RUF er bij denk ik.
Je zou ook in de Street Stock kunnen blijven rijden tot je boven D 4.00 bent en dan kan je meteen in de Silverado rijden. 4 races of time trials en je bent C.
Volgens mij heb ik slechts 2x gereden in de Modified, één keer een Time Trail, en één keer in een GoT race.Niellie41 schreef op zaterdag 01 februari 2014 @ 13:00:
De Modified zou ik niet pakken, er zijn nauwelijks races in die serie. Dan kan je beter de National Impala of de Late Model pakken.
La Ferrari più bella è quella che dobbiamo ancore fare: La Prossima
Dat ziet er weer goed uit mensen! Mijn complimenten. Allemaal leuke en uitdagende combi's. Hopelijk rijdt Rudy deze keer wat minder goedJoepW schreef op zaterdag 01 februari 2014 @ 12:19:
Het Monday Tournament is nu helemaal klaar.
En we hebben een leuke prijs toegevoegd!
Kijk hier voor alle details.
Tevens zijn alle geplande races en evenementen opgenomen in onze overzichtelijke AGENDA
Misschien nog een idee om met strafgewicht iets te doen ?
BMC Roadmachine Two (2024)
Colnago CLX evo di2 (2021)
Cube Nuroad Race (2022)
Ik heb altijd het gevoel met strafgewicht te rijden als ik Rudy/Paul bezig zie
Xbox
Even the dark has a silver lining | I'm all you can imagine times infinity, times three
Ah daar had ik nog niet bij stilgestaan, goed idee!Niellie41 schreef op zaterdag 01 februari 2014 @ 14:00:
Je zou ook in de Street Stock kunnen blijven rijden tot je boven D 4.00 bent en dan kan je meteen in de Silverado rijden. 4 races of time trials en je bent C.
Verwijderd
Zo, net mijn eerste GT3 race gereden en sowieso eerste race in 3 maanden op de week13 races na. Moet wel zeggen dat het toch weer even erin komen is maar toch beter en beter de auto onder controle en vooral steady/safe rijden komt weer langzaam terug. In de 2e van 4 splits terecht gekomen en als 7e van start mogen gaan. Helaas meteen bij de start iemand licht geraakt maar daar kon ik niet heel erg veel aan doen denk ik, ik zat aan de binnenkant in de laatste bocht voor S/F net na de start al helemaal off throttle toen degene aan de buitenkant gewoon instuurde alsof ik er niet was. Zelf geen schade maar wel een x2 want die andere ging linksaf richting de muur.
Geen commentaar gezien of gehoord dus hij zal me wel helemaal gemist hebben vermoed ik. Daarna stabiel proberen mijn rondjes te rijden achter de Top5 aan en dat ging redelijk en met tijden die ik min of meer als doel had gezet voor de race, mid 19-laag 20. Paar man nog gespind voor me en hier en daar plekjes gewonnen en uiteindelijk 2e geworden dus zeker tevreden. Weet alleen niet of ik nu nog een race of 2 mee ga pakken op Road Atlanta of me al begin voor te bereiden op race 2 op Bathurst want dat gaat nog een hele kluif worden ben ik bang.
Mijn Simrig dan ook maar eens op de foto gezet :















Op gisteravond na, zie ik toch elke avond 17:00, 19:00 en 21:00 GMT races official gaan. Zijn toch wel gunstige tijden voor Europeanen.BobvK schreef op zaterdag 01 februari 2014 @ 13:15:
[...]
Bij het blokje Series > Current Seasons
Vervolgens klik je op de serie waar je naar wil kijken (in dit geval dus de SK modified, en vervolgens op results. Zoals je kunt zien gaan races vrijwel alleen official midden in de nacht. Niet echt ideaal dusPlus het is week 1, wat betekent dat participatie alleen maar zal afnemen des te verder we in het seizoen belanden.
Ik pik nog wel eens (vanmorgen nog) een Modified race mee, het zijn leuke auto's om mee te rijden.
Maar de echt grote velden ga je daar inderdaad niet vinden.
Ziet er goed uit Jubby!
DRoME LAN Gaming | iRacing profiel | Kia e-Niro 64kWh | Hyundai Ioniq 28kWh | PV 5.760Wp |
Dat is precies hoe ik het ook gedaan heb. Zit nu op D 4.51Xept!on schreef op zaterdag 01 februari 2014 @ 14:42:
[...]
Ah daar had ik nog niet bij stilgestaan, goed idee!
Zo, dat is een partij gaaf zeg!Jubby schreef op zaterdag 01 februari 2014 @ 15:08:
Mijn Simrig dan ook maar eens op de foto gezet :
[afbeelding]
[afbeelding]
[afbeelding]
[afbeelding]
[afbeelding]
[afbeelding]
[afbeelding]
[afbeelding]
[ Voor 66% gewijzigd door Linc op 01-02-2014 15:48 ]
Net de foto's van de rig van Jubby laten zien... Comment van de vrouw. DAT DOE JE DAN MAAR IN JE EIGEN KAMER....
SCORE!
SCORE!
Netjes hoor Jos.....maarre waar is dat vierde pedaal voor???
Voor als de vrouw binnenkomt, snel een trap op dat pedaal en alles vouwt netjes in elkaar transformer-style en dan blijft er alleen een net bureau achter
Gok ik.
Gok ik.
Een diepvries zou ik zowiezo niet op zelfde circuit zetten als een pc of schermenJoepW schreef op zaterdag 01 februari 2014 @ 13:21:
[...]
Rechts onderin dus. Bureau links onder in de nis en de boekenkast naast de deur. De diepvries in de berging of afschaffen?
Doet er nog iemand mee in de GT3 race? Weer net de qualy gemist dus maar weer van achteraan starten lol...
Waaaaat??Jubby schreef op zaterdag 01 februari 2014 @ 16:19:
4e pedaal is voor 4fmsh !
Gave setup Jos!
Xbox
Even the dark has a silver lining | I'm all you can imagine times infinity, times three
Pff heb nog geen geluk in die GT3 series. Had het tempo er echt goed inzitten, van aller laatste tot 15 opgereden (#20 in iRating), en toen begon hij gewoon te glijden bovenaan de esses, niet te vangen en zo de muur in - klaar
Ja daar moet je een beetje oppassen, dat is me ook al paar keer gebeurd, niet in de race gelukkig.
ik denk het wel. Wou nog snel een offline test sessie starten zodat ik als nog wat kon rijden omdat de site in eens best traag werd, maar helaas 
Damm, wat een setup Jubby. Wou dat ik net zoveel ruimte had
Bij mij neemt het de wat ruimte van mijn woonkamer in omdat ik geen aparte ruimte heb voor een setup.
Maar Ik heb er geen moeite mee
En ja, het is een kabel bende, maar ik heb de afgelopen week een beetje lopen kloten met mijn kabels. Moet alleen nog alles weer netjes weg werken nu. Maar daar zijn zondagen voor
Damm, wat een setup Jubby. Wou dat ik net zoveel ruimte had
Bij mij neemt het de wat ruimte van mijn woonkamer in omdat ik geen aparte ruimte heb voor een setup.

"If you don't come walking back to the pits every once in a while holding a steering wheel in your hands, you're not trying hard enough" iRacing Profiel
Ik kan om een of andere reden iracing via de site niet meer downloaden?
is er een alternatieve link? heb namelijk een nieuwe pc.
is er een alternatieve link? heb namelijk een nieuwe pc.
gewoon een andere browser gebruiken... ik had het zelf laatst ook. toevallig win8 met ie ?thijmennabuurs schreef op zaterdag 01 februari 2014 @ 20:27:
Ik kan om een of andere reden iracing via de site niet meer downloaden?
is er een alternatieve link? heb namelijk een nieuwe pc.
ja win8! echt enorm wennen na win7!back2basic schreef op zaterdag 01 februari 2014 @ 20:31:
[...]
gewoon een andere browser gebruiken... ik had het zelf laatst ook. toevallig win8 met ie ?
Vriendin slaapt vroeg, ik ga om 23:00 nog even de GT3 Challenge op Road Atlanta meepakken met de RUF. Nu al 63 man ingeschreven, is die auto zo populair? Zelfs in Week 1 is het vaak niet zo druk.
DRoME LAN Gaming | iRacing profiel | Kia e-Niro 64kWh | Hyundai Ioniq 28kWh | PV 5.760Wp |
Bijna 200 inschrijvingen af en toe zelfs midden op de dag.
Verhip, nu al 152 
Kijken hoe ver ik kom, verwacht 1 groot crashfest eerlijk gezegd.

Kijken hoe ver ik kom, verwacht 1 groot crashfest eerlijk gezegd.
DRoME LAN Gaming | iRacing profiel | Kia e-Niro 64kWh | Hyundai Ioniq 28kWh | PV 5.760Wp |
In de topsplit valt het tot nu toe wel mee, wel wat crashes maar niet 15+ man eraf in T1 ofzo. Zelf heb ik wat minder geluk gehad, hopelijk nu wel een keer uitrijden

ik zal zo feedback geven van de bottom split
Leuk hoor...alles is weer disabled op de site, niet meekijken dus.....succes mannen!!
Ging niet verkeerd. Helaas was de setup voor de Track van het forum niet geschikt voor 75 liter brandstof
Wat ik ook deed, de ride height bleef te laag. Baseline maar snel geladen, wing en arb overgenomen van de forumsetup en gaan maar. Niet echt een ideale voorbereiding en ik snap ook niet waarom die auto niet omhoogwilde.
Als 19e begonnen ofzo en geëindigd als 9e. Helaas 1 4x opgelopen onder de brug toen iemand de controle verloor na lagcontact, kon hem niet meer ontwijken. Daarna onderstuur in bochten naar rechts en op het rechte stuk wat snelheid kwijt, dus 9e is helemaal niet verkeerd. Kan nu alleen geen resultaten zien, site lijkt wat problemen te hebben. Hopelijk wat iR en SR erbij

Als 19e begonnen ofzo en geëindigd als 9e. Helaas 1 4x opgelopen onder de brug toen iemand de controle verloor na lagcontact, kon hem niet meer ontwijken. Daarna onderstuur in bochten naar rechts en op het rechte stuk wat snelheid kwijt, dus 9e is helemaal niet verkeerd. Kan nu alleen geen resultaten zien, site lijkt wat problemen te hebben. Hopelijk wat iR en SR erbij
DRoME LAN Gaming | iRacing profiel | Kia e-Niro 64kWh | Hyundai Ioniq 28kWh | PV 5.760Wp |
Hoezo kon hij niet omhoog?? Gewoon spring perch offset (zoals bij elke auto behalve de FW31) en dan Apply, klaar... 
Had een gave race, helaas ging het bij de start al mis, iedereen voor me ging vol op het gas en toen weer op de rem boven op de berg dus een kleine botsing en wat chaos in het begin. Daarna van P19 naar P7 opgereden terwijl ik #20 had
Helaas al 8 incjes voor de start gehad dus weer flink wat SR kwijt, voor het weekend had ik nog 4.20, nu 2.00....... lol.
Had een gave race, helaas ging het bij de start al mis, iedereen voor me ging vol op het gas en toen weer op de rem boven op de berg dus een kleine botsing en wat chaos in het begin. Daarna van P19 naar P7 opgereden terwijl ik #20 had
Ouch Nick!
En inderdaad, je moet tegenwoordig op Apply drukken, vroeger kon je meteen zien wat het met de rideheight deed als je de spring perch offset veranderde. Weer wat geleerd
En inderdaad, je moet tegenwoordig op Apply drukken, vroeger kon je meteen zien wat het met de rideheight deed als je de spring perch offset veranderde. Weer wat geleerd
DRoME LAN Gaming | iRacing profiel | Kia e-Niro 64kWh | Hyundai Ioniq 28kWh | PV 5.760Wp |
Verschilt ook per auto. In de McLaren zie je gelijk het hoogte verschil.Arfman schreef op zondag 02 februari 2014 @ 00:07:
Ouch Nick!
En inderdaad, je moet tegenwoordig op Apply drukken, vroeger kon je meteen zien wat het met de rideheight deed als je de spring perch offset veranderde. Weer wat geleerd
iRacing | Sim Gear: SimXperience AccuForce, Heusinkveld Pro, Custom 80/20 rig, Sparco R100 Sky
Boven verwachting, gaaf dat iracing!, eindelijk online racen tegen serieuse tegenstanders die niet het idee hebben dat ze in botsauto's rijden. Ben na 4 races verlost van mijn rookie status. Nu nog even sparen voor een triple monitor setup (gebruik nu nog een 40" lcd tv), en dan kan ik er helemaal voor gaan.
Wat te kiezen: 3x24" of toch maar de duurdere 27"monitoren?
Wat te kiezen: 3x24" of toch maar de duurdere 27"monitoren?
[ Voor 12% gewijzigd door DurkB op 02-02-2014 01:36 ]
Laten we voorlopig eerst maar eens wachten tot de boel weer draait.
Na een week ligt de boel nog steeds vaak plat
Na een week ligt de boel nog steeds vaak plat

Even een Piston Cup Boss Tires reminder.
Er zijn 13 deelnemers die niet hebben aangegeven of zij wel of niet mee doen aan de eerste race van het seizoen. Zij hebben nog tot maandagavond om zich in te schrijven. Doe je dit later dan zal je achteraan de lijst met huidige inschrijvingen komen te staan. Aangezien er al meer dan 43 man hebben aangegeven dat zij erbij willen zijn betekend dit dus dat je waarschijnlijk niet mee kunt doen!
Iedereen heeft in zijn iRacing PM box een PM gekregen waarin de details staan over hoe je je kunt inschrijven.
Er zijn 13 deelnemers die niet hebben aangegeven of zij wel of niet mee doen aan de eerste race van het seizoen. Zij hebben nog tot maandagavond om zich in te schrijven. Doe je dit later dan zal je achteraan de lijst met huidige inschrijvingen komen te staan. Aangezien er al meer dan 43 man hebben aangegeven dat zij erbij willen zijn betekend dit dus dat je waarschijnlijk niet mee kunt doen!
Iedereen heeft in zijn iRacing PM box een PM gekregen waarin de details staan over hoe je je kunt inschrijven.
iRacing | Sim Gear: SimXperience AccuForce, Heusinkveld Pro, Custom 80/20 rig, Sparco R100 Sky
Misschien handig om te vertellen wie je nog mist van alle inschrijvingen?
Ben benieuwd hoe vaak iracing vandaag weer doen gaat lol
Ben benieuwd hoe vaak iracing vandaag weer doen gaat lol
Waaronder jij...TuxieDeni schreef op zondag 02 februari 2014 @ 10:05:
Misschien handig om te vertellen wie je nog mist van alle inschrijvingen?
Ben benieuwd hoe vaak iracing vandaag weer doen gaat lol
Hier kan je kijken wie gereageerd heeft.
[ Voor 23% gewijzigd door Niellie41 op 02-02-2014 10:22 ]
heb me aangemeld, dacht dat ik dat al had gedaan dus het is goed dat je het ff zegt
Vandaag is er weer een Get To Know artikel uitgebracht, deze keer een interview met een van de vijf JSF admins.
Deze keer ben ik geïnterviewd.
Vanavond host ik om 19:00 ook een test sessie voor de race van volgende week.
Deze keer ben ik geïnterviewd.
Vanavond host ik om 19:00 ook een test sessie voor de race van volgende week.
Gisteren en vandaag de eerste rondjes gemaakt met de Radical en de RUF Track.
De RUF vond ik echt boven verwachting lekker rijden, met een raar gevoel alsof alles "klopt", al heb ik daar geen idee van.
De Radical is wel even wat anders, dat zal nog even duren voor ik daar enigszins hard mee kan gaan maar dat moet wel voldoening geven wanneer het lukt lijkt me.
De RUF vond ik echt boven verwachting lekker rijden, met een raar gevoel alsof alles "klopt", al heb ik daar geen idee van.
De Radical is wel even wat anders, dat zal nog even duren voor ik daar enigszins hard mee kan gaan maar dat moet wel voldoening geven wanneer het lukt lijkt me.
Van de GoT rijders moeten Derx en Ruudje moeten nog reageren op de DM betreffende de Piston Cup race!
iRacing Profiel -|- Mijn RaceRig -|- Mijn stream
Klopt, als je daar een rondje foutloos mee rijdt is het echt geweldig. Moet hem nog steeds testen op een wat gladdere baan qua asfalt, Mosport is bijna Sebring, niet echt geschikt voor de RadicalXept!on schreef op zondag 02 februari 2014 @ 11:04:
De Radical is wel even wat anders, dat zal nog even duren voor ik daar enigszins hard mee kan gaan maar dat moet wel voldoening geven wanneer het lukt lijkt me.
DRoME LAN Gaming | iRacing profiel | Kia e-Niro 64kWh | Hyundai Ioniq 28kWh | PV 5.760Wp |
Cool JubbyJubby schreef op zaterdag 01 februari 2014 @ 15:08:
Mijn Simrig dan ook maar eens op de foto gezet :
[afbeelding]
[afbeelding]
[afbeelding]
[afbeelding]
[afbeelding]
[afbeelding]
[afbeelding]
[afbeelding]
iRacing Profiel -|- Mijn RaceRig -|- Mijn stream
Tweede Skip-race gewonnen vandaag.
Dacht eigenlijk dat ik in de laagste split zat maar het was de middelste.
Bijna heel de race vooraan gereden met relatief rustige veilige rondjes, met P2 op 8-10 seconden achter me.
Leuk om te winnen maar dan toch liever een split hoger, waar ik voor elke positie moet vechten.
Dacht eigenlijk dat ik in de laagste split zat maar het was de middelste.
Bijna heel de race vooraan gereden met relatief rustige veilige rondjes, met P2 op 8-10 seconden achter me.
Leuk om te winnen maar dan toch liever een split hoger, waar ik voor elke positie moet vechten.
Grats Xept!on 
Maar een overwinning is altijd lekker
Ik zou er nu geen problemen mee hebben om een vetteltje te doen 
Ben zelf net tot een 1:22.826 gekomen in een TT. Ben er best blij mee
met als snelste ronde een 1:22.3nogwat
Maar een overwinning is altijd lekker
Ben zelf net tot een 1:22.826 gekomen in een TT. Ben er best blij mee
"If you don't come walking back to the pits every once in a while holding a steering wheel in your hands, you're not trying hard enough" iRacing Profiel
doen er hier mee aan die ruftrophy vanavond ?
Ik was het eigenlijk niet van plan.....
En WEER down for maintenance!
En WEER down for maintenance!
iRacing Profiel -|- Mijn RaceRig -|- Mijn stream
Nog painters die een beetje advies kunnen geven?
Ik kom met painten eigenlijk nooit verder dan een paar logo's en spiegeltje of bumpertje andere kleur geven. Wat zou ik bijvoorbeeld aan onderstaand kunnen doen om het wat meer een paint te maken ipv een logo-plak-plaatje ?

Ik kom met painten eigenlijk nooit verder dan een paar logo's en spiegeltje of bumpertje andere kleur geven. Wat zou ik bijvoorbeeld aan onderstaand kunnen doen om het wat meer een paint te maken ipv een logo-plak-plaatje ?


Alweer upJoepW schreef op zondag 02 februari 2014 @ 14:32:
Ik was het eigenlijk niet van plan.....
En WEER down for maintenance!
iRacing Profiel -|- Mijn RaceRig -|- Mijn stream
Verwijderd
Helemaal vergeten, direct gedaanJoepW schreef op zondag 02 februari 2014 @ 11:17:
Van de GoT rijders moeten Derx en Ruudje moeten nog reageren op de DM betreffende de Piston Cup race!
Ja erg is het niet, die iRating moet zich toch nog wat rechttrekken en dat gaat zo alleen maar sneller.-PassY- schreef op zondag 02 februari 2014 @ 14:12:
Grats Xept!on
Maar een overwinning is altijd lekkerIk zou er nu geen problemen mee hebben om een vetteltje te doen
Ben zelf net tot een 1:22.826 gekomen in een TT. Ben er best blij meemet als snelste ronde een 1:22.3nogwat
Net in de top split gereden (SOF 2154), kon aardig meekomen rond P5-6 maar helaas één wiel nét op het gras gezet bij in de ingang van T3, spinde er meteen af.
Mooie tijd, snelste ronde van mij is een 1:22.998 oid.
Denk dat ik nu maar rustig aan ga voorbereiden op de baan van volgende week, dat is wel even heel iets anders zag ik.
Rond 16.00 uur wordt er een sessie Mount Panorama gehost met de Ruf en mcLaren.Aansluitend een race van 35 min.
Zo, net 144 punten bij elkaar gereden. Denk dat dit een nieuw punten record voor mij is.
Qual een beetje verprutst met een 1:22.9. 14de startplek. Hele race wel in gevecht, langzaam naar voren gereden en als 5de gefinished
Had ik niet verwacht, maar iedereen voor me wou niet samen werken, dus ik kon alles lekker langzaam binnen hengelen 
Maar wat als ik in de Q sessie ervoor wel een 1:22.4 ofzo gereden had? 5de startplek dan ... Had meer ingezeten, haha en dat na een PB punten
Qual een beetje verprutst met een 1:22.9. 14de startplek. Hele race wel in gevecht, langzaam naar voren gereden en als 5de gefinished
Maar wat als ik in de Q sessie ervoor wel een 1:22.4 ofzo gereden had? 5de startplek dan ... Had meer ingezeten, haha en dat na een PB punten
"If you don't come walking back to the pits every once in a while holding a steering wheel in your hands, you're not trying hard enough" iRacing Profiel
Die ruf cup is wel vet hey! Net een race gedaan samen met Roy. Ik startend van plek 17, Roy van plek 18. Ik kwam helaas niet verder dan lap 4. Had mijn fuel nog op 10 l staan voor de qualificatie
Maar is wel een machtige wagen om mee te racen.
Maar is wel een machtige wagen om mee te racen.
Vaak begint een livery zo wel he, een kleur, logo's op mooie plekken. Vaak wordt daar een lijnenspel bij bedacht of vlakken die de boel wat opdelen en samen een geheel vormen. Dan lijkt het vaak al heel wat, maar zoals je het nu hebt is het een mooie basis hooriXiro schreef op zondag 02 februari 2014 @ 14:33:
Nog painters die een beetje advies kunnen geven?
Ik kom met painten eigenlijk nooit verder dan een paar logo's en spiegeltje of bumpertje andere kleur geven. Wat zou ik bijvoorbeeld aan onderstaand kunnen doen om het wat meer een paint te maken ipv een logo-plak-plaatje ?
[afbeelding]
[afbeelding]
ik ben geen photoshop guru, maar ik moet zeggen dat ik deze paint erg mooi vind. Je komt in ieder geval verer als mijiXiro schreef op zondag 02 februari 2014 @ 14:33:
Nog painters die een beetje advies kunnen geven?
Ik kom met painten eigenlijk nooit verder dan een paar logo's en spiegeltje of bumpertje andere kleur geven. Wat zou ik bijvoorbeeld aan onderstaand kunnen doen om het wat meer een paint te maken ipv een logo-plak-plaatje ?
[afbeelding]
[afbeelding]
Iets moois hoeft niet altijd vol/druk te zijn. Less = more
"If you don't come walking back to the pits every once in a while holding a steering wheel in your hands, you're not trying hard enough" iRacing Profiel
Verwijderd
Vanavond even na 8u start m'n Daytona 500. We hebben 10 minuten om van de practice server op de race server te komen. Hopelijk geen downtime op dat moment...
Taktiek en setup zijn goed genoeg om te kunnen winnen, maar ik start vanaf P21. Geluk rijdt al een tijdje niet meer mee dus ik ben om 8u20 waarschijnlijk wel weer klaar.
Taktiek en setup zijn goed genoeg om te kunnen winnen, maar ik start vanaf P21. Geluk rijdt al een tijdje niet meer mee dus ik ben om 8u20 waarschijnlijk wel weer klaar.
Om 19:00 start de oefen sessie voor de JSF Piston Cup.
Het wachtwoord is geheim.
Het wachtwoord is geheim.
Dat snappen we... maar waar vinden we het wachtwoord dan?
Ja al 5 leuke racejes in gehad (van de 6 die ik gedaan heb). Veld is echt super close en er word fair gevochten. Heb maar een enkele idioot gezien en meeste laten gewoon ruimte en vechten eerlijk. Vond het iig leuker dan de GT3 cup.BobvK schreef op zondag 02 februari 2014 @ 17:13:
Die ruf cup is wel vet hey! Net een race gedaan samen met Roy. Ik startend van plek 17, Roy van plek 18. Ik kwam helaas niet verder dan lap 4. Had mijn fuel nog op 10 l staan voor de qualificatie![]()
Maar is wel een machtige wagen om mee te racen.
Al even geoefend vanmiddag voor komende week op Bathurst maar dat word nog een listig weekje. Zeker bergaf wil die kont wel graag om.
Verwijderd
En geen race...Verwijderd schreef op zondag 02 februari 2014 @ 18:40:
Vanavond even na 8u start m'n Daytona 500. We hebben 10 minuten om van de practice server op de race server te komen. Hopelijk geen downtime op dat moment...
Taktiek en setup zijn goed genoeg om te kunnen winnen, maar ik start vanaf P21. Geluk rijdt al een tijdje niet meer mee dus ik ben om 8u20 waarschijnlijk wel weer klaar.
En weer plat..... Lijkt wel een knipperlicht.
iRacing Profiel -|- Mijn RaceRig -|- Mijn stream
Hello IT here, have you tried turning it off and on again?
*verbreekt telefoon gesprek*
*verbreekt telefoon gesprek*
"If you don't come walking back to the pits every once in a while holding a steering wheel in your hands, you're not trying hard enough" iRacing Profiel
Was met klaar met race en wilde toen Piston Cup joinen...niet dus.
fijn, heb ik ook ff tijd om te racen is het alweer plat... man man...
Na een week vol problemen zou je verwachten dat ze het lek toch wel al boven zouden hebben...
Na een week vol problemen zou je verwachten dat ze het lek toch wel al boven zouden hebben...
BMC Roadmachine Two (2024)
Colnago CLX evo di2 (2021)
Cube Nuroad Race (2022)
Dit topic is gesloten.