• aex351
  • Registratie: Juni 2005
  • Laatst online: 13:12

aex351

I am the one

aart staart schreef op dinsdag 28 oktober 2025 @ 22:05:
Hallo allemaal,

Na een aantal weken meegelezen te hebben op dit forum, en daaruit al zeer waardevolle informatie te hebben verkregen, waarvoor dank, wil ik hierbij mijn situatie voorleggen en om jullie advies vragen.

Ik ben namelijk op dit moment bezig met de aanschaf van een keuken voor in onze nieuwbouw woning, welke medio 2027, zal worden opgeleverd. Hiervoer dienen we al op korte termijn onze opstelling definitief door te geven aan de aannemer.


***members only***
Tip: Als het kan koop de keuken zonder apparatuur of haal die er later uit. Je hebt nog genoeg tijd tot 2027 om te kiezen wat je echt wilt. Ik heb na een half jaar al het apparatuur uit mijn offerte laten halen. Los kopen bleek handiger, met meer keuze en ook nog goedkoper.

< dit stukje webruimte is te huur >


  • aart staart
  • Registratie: April 2021
  • Laatst online: 16:47
Mr. Inspire schreef op woensdag 29 oktober 2025 @ 09:23:
Ik zou de L-keuken kiezen, zodat je een mooie open ruimte openhoud voor een eettafel met stoelen en loopruimte bij de keuken en de eettafel.

Je zou op schaal de keuken met en zonder eiland in de plattegrond kunnen tekenen en op schaal jullie eettafel met stoelen kunnen intekenen of kunnen uitknippen op een papiertje en dat op de plattegrondjes leggen.

Dan kun je vrij snel zien of je nog fatsoenlijke loopruimte overhoud.

Ik heb een iets bredere binnenmaat van de woning (5.75m) en daar was het advies om geen eiland te nemen, zodat je voldoende leefruimte overhoudt.
Bedankt voor je reactie! We hebben in onze huidige woning al een soortgelijke actie ondernomen waarbij we de nieuwe indeling hebben uitgezet. Hierdoor hebben we het idee dat het net aan gaat passen om een ondiep eiland te laten plaatsen.

Onze allereerste ingeving was om een L-opstelling te plaatsen alleen zijn we hierbij bang dat we teveel loze keuken ruimte krijgen rondom de eettafel en dat daardoor minder 'gezellig' wordt. We zijn op dit moment (nog) maar met zijn 2'en namelijk.


@ChiLLeR @nooberke ook bedankt voor jullie input!


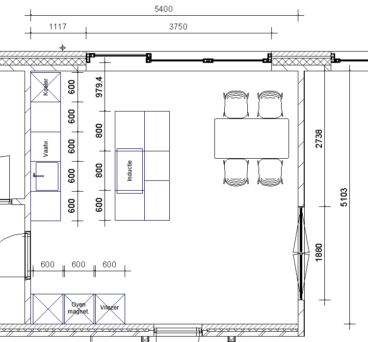
Zie hieronder voor de 2 mogelijke uitwerkingen die we op dit moment voor ogen hebben. Het liefste zouden we natuurlijk overal iets meer vrije ruimte hebben maar we vinden veel aanrecht blad en gezellig kunnen koken met gasten ook erg belangrijk.

Is 1 van deze beide indelingen realistisch of houden we teveel vast aan het hebben van een eiland? We zijn beiden slank en denken dat de vaatwasser in de praktijk zo weinig open staat dat dit niet echt voor ergenissen gaat zorgen.

En dan zit in beide ontwerpen ook nog 5cm speling zie ik. Gezien we rekenen met 5400 en we 5450 in de praktijk gaan krijgen volgens de bestek tekening.

Afbeeldingslocatie: https://tweakers.net/i/QRZL1kkbR-l9nGNzjHl7DS4uZfE=/fit-in/4000x4000/filters:no_upscale():strip_exif()/f/image/HMDX9llNmHgUh6IBAsBKbDe9.png?f=user_large

Afbeeldingslocatie: https://tweakers.net/i/4hCIHqUXgQoglqCfhjJwOXBkjaI=/fit-in/4000x4000/filters:no_upscale():strip_exif()/f/image/rkhJqrqoGyrka2TMnIdkXrHE.png?f=user_large
aex351 schreef op woensdag 29 oktober 2025 @ 16:01:
[...]

Tip: Als het kan koop de keuken zonder apparatuur of haal die er later uit. Je hebt nog genoeg tijd tot 2027 om te kiezen wat je echt wilt. Ik heb na een half jaar al het apparatuur uit mijn offerte laten halen. Los kopen bleek handiger, met meer keuze en ook nog goedkoper.
Bedankt voor de tip! Ik sta er zeker voor open om de apparatuur op mijn gemak bij de verschillende online aanbieders te bestellen met een mooie korting. Hopelijk denkt de keukenzaak hier ook zo over.. Anders zullen we op een andere manier aan onze kasten en werkblad moeten komen. Alternatieven zijn KKFB of Ikea dan denk ik.

Tot nu toe zijn de aanbieders niet heel transparant geweest over de aangeboden apparatuur en daardoor denken we dat daar zeker nog wat te winnen valt qua prijs / kwaliteit. Ze willen allemaal het liefste dat we alle apparatuur op niveautje Bosch Serie 8 afnemen. :F Terwijl het voor ons juist niet van belang is om een vaatwasser met Zeolieth en een oven met groot touchscreen en app bediening te hebben...

Voor ons zijn zelfs showroom modellen en/of marktplaats een optie indien zich daar de juiste mogelijkheden aanbieden.

[ Voor 3% gewijzigd door aart staart op 29-10-2025 17:39 ]


  • Skyaero
  • Registratie: Juli 2005
  • Niet online
Eerste ervaringen van onze kant.

Wij zijn bezig met een nieuwe keuken 'japandi' stijl als onderdeel van een grotere verbouwing van een bestaande woning.

We zijn eerst naar eginstill geweest. Naast maatwerk hebben zij ook een modulair concept 'Still' dat volgens hun vanaf 25.000 euro beschikbaar is. De intake is een uurtje en leert er weinig van. Daarnaast viel de kwaliteit van de houtsamples ontzettend tegen, alsof het teveel moeite was om eens nieuwe te maken. Ondanks het 'modulaire' concept - waar dus geen maatwerk aan te pas komt - moet je voor het daadwerkelijke design proces 1.000 euro neertellen. Wel kregen we vooraf een prijsindicatie: 70.000 euro. Gezien dit boven ons budget lag en we er geen goed gevoel bij hadden zijn we verder gaan kijken.

We zijn naar Leicht (Amsterdam) gegaan. Eerste indruk mooie keukens van hoge kwaliteit. Direct begonnen met het ontwerpproces. Wel wat rommelig, o.a. door nieuwe software dat nog niet echt goed werkte. Ontwerp is nog in gang en een tweede sessie volgt volgende week.
In eerste instantie waren we zeer positief, maar we lopen tegen een aantal ontwerpbeperkingen aan die mogelijk niet opgelost kunnen worden. Eerste prijsindicatie 40-50k.

Toch ook nog even verder gekeken voor alternatieven voor het geval Leicht toch niet gaat lukken. Uitgekomen bij Ballerina die een japandi stijl keuken heeft. Contact gezocht met een in de buurt zijnde dealer. Betreft een wat traditioneel familiebedrijf. Duidelijke voorlichting vooraf (je krijgt geen tekeningen of ontwerpen mee totdat je tekent - alles is nettoprijs, dus geen onderhandeling). Uiteindelijk op hun advies gekozen voor een ander merk (Schroder) die ook een japandi stijl heeft die beter paste bij onze wensen. Intake en eerste schetsontwerp is gedaan - zij gaan nu een ontwerp maken. Tot dusver zeer tevreden. Prijsindicatie 35-40k. Over twee weken krijgen we het design te zien en kunnen we verder finetunen.

  • Guust91
  • Registratie: Augustus 2016
  • Laatst online: 07:59
Skyaero schreef op donderdag 30 oktober 2025 @ 11:59:
Eerste ervaringen van onze kant.

Wij zijn bezig met een nieuwe keuken 'japandi' stijl als onderdeel van een grotere verbouwing van een bestaande woning.

We zijn eerst naar eginstill geweest. Naast maatwerk hebben zij ook een modulair concept 'Still' dat volgens hun vanaf 25.000 euro beschikbaar is. De intake is een uurtje en leert er weinig van. Daarnaast viel de kwaliteit van de houtsamples ontzettend tegen, alsof het teveel moeite was om eens nieuwe te maken. Ondanks het 'modulaire' concept - waar dus geen maatwerk aan te pas komt - moet je voor het daadwerkelijke design proces 1.000 euro neertellen. Wel kregen we vooraf een prijsindicatie: 70.000 euro. Gezien dit boven ons budget lag en we er geen goed gevoel bij hadden zijn we verder gaan kijken.

We zijn naar Leicht (Amsterdam) gegaan. Eerste indruk mooie keukens van hoge kwaliteit. Direct begonnen met het ontwerpproces. Wel wat rommelig, o.a. door nieuwe software dat nog niet echt goed werkte. Ontwerp is nog in gang en een tweede sessie volgt volgende week.
In eerste instantie waren we zeer positief, maar we lopen tegen een aantal ontwerpbeperkingen aan die mogelijk niet opgelost kunnen worden. Eerste prijsindicatie 40-50k.

Toch ook nog even verder gekeken voor alternatieven voor het geval Leicht toch niet gaat lukken. Uitgekomen bij Ballerina die een japandi stijl keuken heeft. Contact gezocht met een in de buurt zijnde dealer. Betreft een wat traditioneel familiebedrijf. Duidelijke voorlichting vooraf (je krijgt geen tekeningen of ontwerpen mee totdat je tekent - alles is nettoprijs, dus geen onderhandeling). Uiteindelijk op hun advies gekozen voor een ander merk (Schroder) die ook een japandi stijl heeft die beter paste bij onze wensen. Intake en eerste schetsontwerp is gedaan - zij gaan nu een ontwerp maken. Tot dusver zeer tevreden. Prijsindicatie 35-40k. Over twee weken krijgen we het design te zien en kunnen we verder finetunen.
Als je nog een Leicht keuken overweegt is keuken-centrum utrecht nog de overweging waard. Ze hebben net een keuken geplaatst bij mij in Topos iepen naar alle tevredenheid. Ze zullen wellicht ook wat scherper in de prijs zijn de Leicht Amsterdam, waar je toch wat meer zal betalen voor de ervaring en locatie van de showroom.

  • TalkingCarrot
  • Registratie: Oktober 2012
  • Laatst online: 17-03 22:28
Bij ons zijn ze ondertussen begonnen met het plaatsen van de keuken. De keukenzaak waar we inkopen is een lokale partij met veel goede beoordelingen en inzagen bij andere klanten, maar helaas is onze ervaring tot op heden wat minder.

Het materiaal is mooi, maar de afwerking is in onze ogen matig. Voor het ongetrainde oog een mooie keuken, voor een getraind oog niet. Nu betalen we qua prijs wel voor een keuken die ook op het getraind oog mooi is. We zijn nu in gesprek met de keukenzaak en de punten die we benoemen gaan ze ook oplossen. Omdat ik echter niet goed kan beoordelen of alles waar wij nu tegen aan lopen ook terecht is, even een check hier. Het betreft onderstaande:

1. Keukenwand waar je tegen aan loopt is vol met beschadigingen - gaat de keukenzaak vervangen.
2. Afdekplint onder bij de koelkast is beschadigd toen ze deze gingen inzagen - gaat de keukenzaak vervangen, maar is volgens hun ''een risico omdat het op maat gezaagd moet worden''
3. Afdekplint boven bij de koelkast heeft dezelfde beschadigingen - gaan ze ook vervangen, maar met dezelfde opmerking als hierboven.
4. Witte pit op koelkast deur - gaan ze vervangen.
5. Greeplijst bij keuken sluit niet aan op keukenkast - onduidelijk wat ze hiermee gaan doen. Volgens mij mogen we gewoon verwachten dat dit toch goed aansluit? Keukenzaak probeerde dit weg te doen als dat het er bij hoort en niet meer opvalt als het blad er op zit.
6. lades zijn niet afgesteld - doen ze bij eindmontage
7. Deur oven staat niet mooi in balans met de bovenplaat van de oven. Is dit iets wat we wel mogen verwachten?
8. Plint tegen de muur is ''lelijk'' afgezaagd. Denk dat ze dit met een decoupeerzaag hebben gedaan, de plint is namelijk niet recht afgezaagd. Het klopt dat de muur niet mooi recht afloopt, maar wel in een rechte lijn. Volgens mij kan die plint ook dan mooier gezaagd worden. - volgens de keukenzaak acceptabel omdat ze het op maat moeten zagen.
9. Kast sluit niet mooi aan tegen de wand. - kan me voorstellen dat dit gewoon lastig is te realiseren als de muur niet haaks afloopt, wellicht zelf met een rubber oid mooi afdichten?

Afbeeldingslocatie: https://tweakers.net/i/pYrFon0-Vz8NsdY6xVwJ4tE9XPc=/fit-in/4920x3264/filters:max_bytes(3145728):no_upscale():strip_icc():strip_exif()/f/image/zILhCVUPWHFi9d2ylffQqHux.jpg?f=user_large

Afbeeldingslocatie: https://tweakers.net/i/0B66n4j_xrftIxYGdfIe3I7ew8E=/x800/filters:strip_icc():strip_exif()/f/image/XL5Gwep56IBuSWvCUoPK9WIG.jpg?f=fotoalbum_large

Afbeeldingslocatie: https://tweakers.net/i/hM_0uErg6fQVECYZ2hxjxgt83U4=/x800/filters:strip_icc():strip_exif()/f/image/aje13xLGpr5zvo43JtBDlP52.jpg?f=fotoalbum_large

Afbeeldingslocatie: https://tweakers.net/i/sTpR6yy6ghEXhrdhEa5sUWNMubE=/800x/filters:strip_icc():strip_exif()/f/image/Lwk2FWyUU22Bcfs8tHdiE3Kl.jpg?f=fotoalbum_large

Afbeeldingslocatie: https://tweakers.net/i/_gqt2_XVWzrnsrLtkg9gTVA2IzI=/800x/filters:strip_icc():strip_exif()/f/image/keLuuk1aQzCFfYfSmUbs9h01.jpg?f=fotoalbum_large

Afbeeldingslocatie: https://tweakers.net/i/qXMwWuQuW2zQQvitvVICbJn6N74=/800x/filters:strip_icc():strip_exif()/f/image/1gHGVfkuKcagUT91k9AiMKVn.jpg?f=fotoalbum_large

Daarnaast liepen er ook een hoop zaken in de communicatie niet lekker. Blad wordt later geleverd (wisten we), maar we kregen wel te horen dat directie niet blij was dat we het blad niet al hadden betaald (alles wat geleverd is hebben we netjes afgerekend). Tja, toch even een nare smaak t.o.v. wat we hadden verwacht. Kunnen mensen hier in meedenken of er nog zaken zijn die ''acceptabel'' zijn, dan hoef ik dat niet bij hun te beleggen.

Onze dank is groot _/-\o_

[ Voor 16% gewijzigd door TalkingCarrot op 31-10-2025 11:18 ]


  • Highintensity
  • Registratie: Mei 2022
  • Laatst online: 16:44
Hoi allemaal,

Heb al veel gelezen in dit topic (superhandig allemaal), maar benieuwd hoe jullie dit zouden aanpakken.

We hebben een nieuwbouwwoning toegewezen gekregen en zijn bezig met de keukenindeling. Ruimte is aan de krappe kant, dus ik twijfel over de beste opstelling.

Raam aan onderzijde begint op ±50 cm, dus daar is geen U opstelling mogelijk.

Willen met minimaal 6 personen kunnen tafelen, dus eiland lijkt niet handig. We denken aan een eetbank om ruimte te besparen.

Aan woonkamerkant komt 1,20m uitbouw, misschien voldoende plek voor eettafel, maar wordt krap i.v.m. speelhoekje voor de kleine.

We hebben een sterke voorkeur voor 2 hoge kasten voor de koelkast en oven. Genoeg werk- en opbergruimte is belangrijk, maar het hoeft niet mega uitgebreid.

We lijken voor nu uit te komen op een parallel opstelling in het deel onderin + hoge kasten tegen de muur voor het toilet. Wel heeft dat zo zijn nadelen. De koelkast en oven vallen daarmee praktisch buiten de keukenruimte + de hoek is lastig mooi te krijgen.

Benieuwd naar jullie ideeën in deze situatie!

Afbeeldingslocatie: https://tweakers.net/i/bQ4KelEmpWutlAy3ecfpu-xm82U=/x800/filters:strip_icc():strip_exif()/f/image/0FF8WhdUhrMPd9qJfvlTJBrM.jpg?f=fotoalbum_large

  • Kraakhelder
  • Registratie: September 2022
  • Laatst online: 30-03 23:28
Wij hebben een offerte van Bruynzeel ontvangen van bijgevoegde keuken. Ik lees veel slechte ervaringen, maar wij hadden een prettig en relaxed verkoopgesprek. Ene kant is 325 breed, andere kant 225. Allemaal met de zuinigst beschikbare AEG apparatuur, kookplaat met geïntegreerde afzuiging, oven, combimagnetron, koel/vries combi en vaatwasser. Het is de https://www.bruynzeelkeuk...s/landelijk/brighton-coco.
Luxe 780 is de lijn waaruit deze is. Blad is een composiet blad van 5cm.
Offerte komt uit op een ruime 23k inclusief montage. Overigens enorm relaxed ontwerpgesprek, nergens ook druk gelegd op snel beslissen, in tegenstelling tot Kuchenwelt waar we gisteren waren, wat een vreselijke zaak is dat.
Is dit een redelijke prijs voor deze keuken of moet ik nog erg in onderhandeling?Afbeeldingslocatie: https://tweakers.net/i/ydmny9NEM9gBBFszmcTwYZWKZfk=/x800/filters:strip_icc():strip_exif()/f/image/ESDGATt4CbfqKIAubRTdiW9K.jpg?f=fotoalbum_large

Afbeeldingslocatie: https://tweakers.net/i/nXB0BjTzNhkaihoITa3gXxwJELg=/x800/filters:strip_icc():strip_exif()/f/image/RccWij3YdnWbvnv7x8Nn8wWa.jpg?f=fotoalbum_large

[ Voor 37% gewijzigd door Kraakhelder op 02-11-2025 10:00 ]


  • Thomg
  • Registratie: September 2010
  • Laatst online: 31-03 22:19

Thomg

Aww yiss

Mijn eerste indruk is meteen tering wat duur. Voor deze prijsklasse zou ik premium apparatuur van aeg verwachten met een quooker et al.
Ik zou ook even heel goed nadenken over hoe "plezant" het is om zo weinig aanrecht te hebben bij je inductie en gootsteen. Dit moet je alleen doen omdat het echt niet anders kan (e.g. klein appartement). Gezien je opstelling heb je die restrictie helemaal niet en zou ik toch echt sterk aanraden te gaan voor een lage en hoge kant.

Edit: Ik las goedkoopste, niet zuinigste. Merde :F
Denk nog steeds wel dat er een paar k vanaf kan.

[ Voor 8% gewijzigd door Thomg op 02-11-2025 10:10 ]


  • BiLLY_daKid
  • Registratie: Februari 2002
  • Laatst online: 08:46
@TalkingCarrot de zichtbare zaagsnede boven komt omdat de plint iets naar buiten buigt. Hier hadden ze een klosje op de kast gelijmd en een druppel op de zijkant, waardoor je de plant recht kan trekken.
Zijkanten kun je afkitten, aansluiting op de muur is wel vaker een dingetje.
Ik kan niet zien wat de opbouw is met die oven, maar die hoort gewoon strak tegen een plint te zitten.
In zijn algemeenheid vind ik de oplevering wat slordig. Het signaal dat de baas niet blij was dat de plaat nog niet is betaald, ik zou hem uitnodigen en even laten meekijken.

  • Toke_gt
  • Registratie: Juni 2021
  • Laatst online: 31-03 22:01
Kraakhelder schreef op zondag 2 november 2025 @ 09:46:
Wij hebben een offerte van Bruynzeel ontvangen van bijgevoegde keuken.
(…)
Is dit een redelijke prijs voor deze keuken of moet ik nog erg in onderhandeling?[Afbeelding]

[Afbeelding]
23K is wel serieus geld voor deze keuken, dus onderhandelen zou ik je zeker aanraden. Maar ik zou ook nog eens goed naar deze indeling kijken, want alle kastjes, laden, bovenkastjes en zijpanelen van de grote kasten maken het ook onnodig duur. Dat kan efficiënter en dus goedkoper.
Ik zou ook niet de hoge diepe kast naast het raam zetten, want die neemt al het licht weg van het raam ernaast. Laat met deze apparatuur eens een indeling maken met de hoge kasten tegen elkaar aan. Of, zoals hierboven genoemd, de hoge kasten aan de ene kant en het werkblad aan de andere. Al denk ik dat je rechts te weinig ruimte hebt (?) voor spoelbak en kookplaat, terwijl je daar ook niet alle hoge kasten wilt ivm lichtinval. Is er elders ook nog een raam in deze keuken?

  • Toke_gt
  • Registratie: Juni 2021
  • Laatst online: 31-03 22:01
TalkingCarrot schreef op vrijdag 31 oktober 2025 @ 11:12:
Daarnaast liepen er ook een hoop zaken in de communicatie niet lekker. Blad wordt later geleverd (wisten we), maar we kregen wel te horen dat directie niet blij was dat we het blad niet al hadden betaald (alles wat geleverd is hebben we netjes afgerekend).
Tja, dat is dan jammer voor ze. Gezien de lijst met te herstellen klussen moeten ze misschien even in de spiegel kijken.
Je zou kunnen afspreken dat het blad op dezelfde manier wordt betaald als de rest van de keuken? Daags tevoren overmaken, pinnen bij levering of montage?
Overigens wel goed dat alles wordt hersteld/aangepast. Dat kan ook heel anders, gezien sommige ervaringen in dit topic. Dus hou ze nog even te vriend.

  • Kraakhelder
  • Registratie: September 2022
  • Laatst online: 30-03 23:28
Toke_gt schreef op zondag 2 november 2025 @ 10:31:
[...]

23K is wel serieus geld voor deze keuken, dus onderhandelen zou ik je zeker aanraden. Maar ik zou ook nog eens goed naar deze indeling kijken, want alle kastjes, laden, bovenkastjes en zijpanelen van de grote kasten maken het ook onnodig duur. Dat kan efficiënter en dus goedkoper.
Ik zou ook niet de hoge diepe kast naast het raam zetten, want die neemt al het licht weg van het raam ernaast. Laat met deze apparatuur eens een indeling maken met de hoge kasten tegen elkaar aan. Of, zoals hierboven genoemd, de hoge kasten aan de ene kant en het werkblad aan de andere. Al denk ik dat je rechts te weinig ruimte hebt (?) voor spoelbak en kookplaat, terwijl je daar ook niet alle hoge kasten wilt ivm lichtinval. Is er elders ook nog een raam in deze keuken?
Dit is de plattegrond met huidige keuken. We willen iets minder ver de kamer in omdat we dan beter de eettafel kwijt kunnen. Afbeeldingslocatie: https://tweakers.net/i/J5w5ynBFsBNaVdCT70ybUFifNG4=/x800/filters:strip_icc():strip_exif()/f/image/EqOlrRT6sC1NbuWFAjN5laO1.jpg?f=fotoalbum_large

  • mitsumark
  • Registratie: Juni 2009
  • Laatst online: 15:53
Highintensity schreef op zaterdag 1 november 2025 @ 21:18:
Hoi allemaal,

Heb al veel gelezen in dit topic (superhandig allemaal), maar benieuwd hoe jullie dit zouden aanpakken.

We hebben een nieuwbouwwoning toegewezen gekregen en zijn bezig met de keukenindeling. Ruimte is aan de krappe kant, dus ik twijfel over de beste opstelling.

Raam aan onderzijde begint op ±50 cm, dus daar is geen U opstelling mogelijk.

Willen met minimaal 6 personen kunnen tafelen, dus eiland lijkt niet handig. We denken aan een eetbank om ruimte te besparen.

Aan woonkamerkant komt 1,20m uitbouw, misschien voldoende plek voor eettafel, maar wordt krap i.v.m. speelhoekje voor de kleine.

We hebben een sterke voorkeur voor 2 hoge kasten voor de koelkast en oven. Genoeg werk- en opbergruimte is belangrijk, maar het hoeft niet mega uitgebreid.

We lijken voor nu uit te komen op een parallel opstelling in het deel onderin + hoge kasten tegen de muur voor het toilet. Wel heeft dat zo zijn nadelen. De koelkast en oven vallen daarmee praktisch buiten de keukenruimte + de hoek is lastig mooi te krijgen.

Benieuwd naar jullie ideeën in deze situatie!

[Afbeelding]
Is het smalste stuk onderin iets van 4,8m?

Ik zou zoiets doen, en dan toch bij 1 hoge kast houden.
Eiland (2,0x0,9m) kan wat verder naar rechts dan initieel ingetekend, dan hou je voldoende ruimte over voor eettafel (waarmee je nog een beetje kan schuiven, naar boven).

Afbeeldingslocatie: https://tweakers.net/i/gc4sV91JFluvcpHKxVAK4LFtDhQ=/800x/filters:strip_icc():strip_exif()/f/image/Tb6NiiaIuYBxQ0EWgy9t9tKc.jpg?f=fotoalbum_large

[ Voor 4% gewijzigd door mitsumark op 02-11-2025 14:30 ]


  • Toke_gt
  • Registratie: Juni 2021
  • Laatst online: 31-03 22:01
Highintensity schreef op zaterdag 1 november 2025 @ 21:18:
Willen met minimaal 6 personen kunnen tafelen, dus eiland lijkt niet handig. We denken aan een eetbank om ruimte te besparen.
(…)
Aan woonkamerkant komt 1,20m uitbouw, misschien voldoende plek voor eettafel, maar wordt krap i.v.m. speelhoekje voor de kleine.
Zoals @mitsumark laat zien: het wordt erg krap in de keuken. Wil je daar altijd met 6 eten? Of bij gelegenheid?
Als het niet altijd is, zou ik niet met een bank werken, maar met stoelen, dan kun je makkelijker de setting aanpassen aan het gezelschap. Met zes kun je de tafel niet prettig laten aansluiten bij het raam, maar met vier wel.
Afbeeldingslocatie: https://tweakers.net/i/IDrsWdqOWnT2GY5cUsZOldJW_n4=/232x232/filters:strip_icc():strip_exif()/f/image/vTNl7KFvSu75bxC2Zb9fgJqR.jpg?f=fotoalbum_tileAfbeeldingslocatie: https://tweakers.net/i/d90qPOjZY7Ae3-S-ya7Nb3GXdMQ=/232x232/filters:strip_icc():strip_exif()/f/image/uRWWCm3sE9xgZkyb0WjOXWMP.jpg?f=fotoalbum_tile
Je kunt wat meer ruimte creëren door koelvries/oven tegen het muurtje tussen de ramen te plaatsen en aan de lage kant een stukje extra met een halfhoog muurtje bij de trap. Kun je onder het koken ook nog een blik op kinderen in de kamer werpen.
Overigens is mijn ervaring dat het toch ook fijn is om in de woonkamer een grote tafel te hebben. Als je niet altijd met 6 bent zou je er ook voor kunnen kiezen om in de woonkamer een tafel te hebben die je kunt uitklappen naar 6. In de keuken heb je dan een kleinere tafel voor dagelijks gebruik.

  • pleasure
  • Registratie: Augustus 2004
  • Niet online
Highintensity schreef op zaterdag 1 november 2025 @ 21:18:

Aan woonkamerkant komt 1,20m uitbouw, misschien voldoende plek voor eettafel, maar wordt krap i.v.m. speelhoekje voor de kleine.

[Afbeelding]
Hebben jullie overwogen om keuken en woonkamer om te draaien? Op die manier heb je voldoende ruimte om een keuken met eiland en zespersoons eettafel te realiseren. Je levert in op ruimte in de woonkamer, maar misschien blijft er voldoende ruimte over.

  • Alenji
  • Registratie: Oktober 2015
  • Laatst online: 30-03 11:26
tim.w schreef op woensdag 20 augustus 2025 @ 10:48:
Vanwege de scherpere prijzen in Duitsland wil ik de keukenapparatuur graag in Duitsland gaan bestellen. Ik heb een adres in Duitsland waar ik het kan laten leveren namelijk.
Nu heb ik de Siemens SX63EX12CN vaatwasser op het oog maar valt me op dat de typenummers in Duitsland anders lijken te zijn. Heeft iemand enig idee hoe je erachter kan komen wat de 'Duitse typecode' is van specifieke apparatuur?
Heb je al je apparatuur gehaald en bij welke webwinkel? Ik ben van plan om ook apparatuur uit Duitsland te kopen

  • Highintensity
  • Registratie: Mei 2022
  • Laatst online: 16:44
mitsumark schreef op zondag 2 november 2025 @ 14:25:
[...]

Is het smalste stuk onderin iets van 4,8m?

Ik zou zoiets doen, en dan toch bij 1 hoge kast houden.
Eiland (2,0x0,9m) kan wat verder naar rechts dan initieel ingetekend, dan hou je voldoende ruimte over voor eettafel (waarmee je nog een beetje kan schuiven, naar boven).

[Afbeelding]
Dank voor het meedenken. Het stuk onderin is inderdaad 4,81m. Met deze opstelling heb ik het idee dat als je er met 6 personen gaat zitten (of überhaupt aan de stoelkant gaat zitten) het krap en opgesloten zal voelen. Eiland van 90cm maakt het op dat vlak idd net iets beter t.o.v. van 100+ cm, maar is het met deze configuratie mogelijk om aan beide kanten kastjes te krijgen? Volgens mij moet het eiland daarvoor minimaal 100cm zijn? Als bar kunnen we die kant in ieder geval niet gebruiken. Als het voor beide doelen niet gebruikt kan worden, is dat wat ons betreft zonde.
Toke_gt schreef op zondag 2 november 2025 @ 15:12:
[...]

Zoals @mitsumark laat zien: het wordt erg krap in de keuken. Wil je daar altijd met 6 eten? Of bij gelegenheid?
Als het niet altijd is, zou ik niet met een bank werken, maar met stoelen, dan kun je makkelijker de setting aanpassen aan het gezelschap. Met zes kun je de tafel niet prettig laten aansluiten bij het raam, maar met vier wel.
[Afbeelding][Afbeelding]
Je kunt wat meer ruimte creëren door koelvries/oven tegen het muurtje tussen de ramen te plaatsen en aan de lage kant een stukje extra met een halfhoog muurtje bij de trap. Kun je onder het koken ook nog een blik op kinderen in de kamer werpen.
Overigens is mijn ervaring dat het toch ook fijn is om in de woonkamer een grote tafel te hebben. Als je niet altijd met 6 bent zou je er ook voor kunnen kiezen om in de woonkamer een tafel te hebben die je kunt uitklappen naar 6. In de keuken heb je dan een kleinere tafel voor dagelijks gebruik.
We zullen er niet dagelijks met 6 personen zitten. Zal eerder eens in de 2/3 weken zijn. Een basisopstelling voor 4 personen met mogelijkheid om uit te breiden naar 6 is dus prima.

We zijn nu ook nog op het idee gekomen om keuken en woonkamer om te wisselen en de keuken als 'leefkeuken' in te richten. Daarmee zal de keuken veel uitgebreider zijn dan voorheen bedacht, maar dat gaat ten koste van de ruimte van de woonkamer.

Een en ander hangt natuurlijk af van levenstijl, maar dat vinden we lastig inschatten. We merken dat we in onze huidige woning in ieder geval vaker in de keuken/eetkamer zitten dan in de woonkamer. We twijfelen of dit op de lange termijn een verantwoorde keuze zal zijn en of we hier later geen spijt van krijgen. Daarnaast de grote vraag in welke ruimte de televisie dan moet komen, of gewoon in beide ruimtes.. Hoe zien jullie dit? Wellicht zijn er tweakers die dezelfde soort keuze hebben gemaakt en hun ervaring willen delen? Hieronder een afbeelding van hoe dat er ongeveer uit zou komen te zien.

Afbeeldingslocatie: https://tweakers.net/i/1UP3WhPXEMVsDS-qtqVi0mhb_ts=/x800/filters:strip_icc():strip_exif()/f/image/A3wEFgdJXODpvxlKGBhnYCAD.jpg?f=fotoalbum_large

  • Highintensity
  • Registratie: Mei 2022
  • Laatst online: 16:44
pleasure schreef op zondag 2 november 2025 @ 15:44:
[...]


Hebben jullie overwogen om keuken en woonkamer om te draaien? Op die manier heb je voldoende ruimte om een keuken met eiland en zespersoons eettafel te realiseren. Je levert in op ruimte in de woonkamer, maar misschien blijft er voldoende ruimte over.
Ah kijk, dat is net de overweging waar we mee bezig zijn. Dank voor het idee.

  • Toke_gt
  • Registratie: Juni 2021
  • Laatst online: 31-03 22:01
Highintensity schreef op zondag 2 november 2025 @ 15:57:
[...]
Hoe zien jullie dit? Wellicht zijn er tweakers die dezelfde soort keuze hebben gemaakt en hun ervaring willen delen? Hieronder een afbeelding van hoe dat er ongeveer uit zou komen te zien.

[Afbeelding]
Bedenk dat je met deze opstelling ongeveer 1.20 m van het trapgat zit en <2m van de tv. Lijkt me niet fijn.

  • Muffin
  • Registratie: Maart 2022
  • Laatst online: 31-03 22:32
Afbeeldingslocatie: https://tweakers.net/i/XGhYgL9YoDUbe2peoi80mDrdckE=/x800/filters:strip_icc():strip_exif()/f/image/vZ2ee5dNkeqzvM8WJeZ3jAHA.jpg?f=fotoalbum_large

En als je het muurtje doortrekt? Dan zou je daar eventueel 2 hoge kasten tegenaan kunnen plaatsen?
Of de hoge kasten tegen de bestaande muur en het aanrecht doortrekken langs de trapwand, maar ik weet niet hoe handig dat is met de gootsteen.

[ Voor 13% gewijzigd door Muffin op 02-11-2025 21:32 . Reden: Extra idee ]


  • mitsumark
  • Registratie: Juni 2009
  • Laatst online: 15:53
Highintensity schreef op zondag 2 november 2025 @ 15:57:
[...]


Dank voor het meedenken. Het stuk onderin is inderdaad 4,81m. Met deze opstelling heb ik het idee dat als je er met 6 personen gaat zitten (of überhaupt aan de stoelkant gaat zitten) het krap en opgesloten zal voelen. Eiland van 90cm maakt het op dat vlak idd net iets beter t.o.v. van 100+ cm, maar is het met deze configuratie mogelijk om aan beide kanten kastjes te krijgen? Volgens mij moet het eiland daarvoor minimaal 100cm zijn? Als bar kunnen we die kant in ieder geval niet gebruiken. Als het voor beide doelen niet gebruikt kan worden, is dat wat ons betreft zonde.


[...]


We zullen er niet dagelijks met 6 personen zitten. Zal eerder eens in de 2/3 weken zijn. Een basisopstelling voor 4 personen met mogelijkheid om uit te breiden naar 6 is dus prima.

We zijn nu ook nog op het idee gekomen om keuken en woonkamer om te wisselen en de keuken als 'leefkeuken' in te richten. Daarmee zal de keuken veel uitgebreider zijn dan voorheen bedacht, maar dat gaat ten koste van de ruimte van de woonkamer.

Een en ander hangt natuurlijk af van levenstijl, maar dat vinden we lastig inschatten. We merken dat we in onze huidige woning in ieder geval vaker in de keuken/eetkamer zitten dan in de woonkamer. We twijfelen of dit op de lange termijn een verantwoorde keuze zal zijn en of we hier later geen spijt van krijgen. Daarnaast de grote vraag in welke ruimte de televisie dan moet komen, of gewoon in beide ruimtes.. Hoe zien jullie dit? Wellicht zijn er tweakers die dezelfde soort keuze hebben gemaakt en hun ervaring willen delen? Hieronder een afbeelding van hoe dat er ongeveer uit zou komen te zien.

[Afbeelding]
Aangezien de ruimte breder begint en het geen looproute is denk ik dat het nog wel meevalt met hoe krap het is. Je kunt ook de tafel juist helemaal bovenin zetten waar het breder is (ongeveer 5 meter), en onderin een grote plant ofzo.
De meeste fabrikanten hebben kastjes van ~35cm diep, eventueel kun je de tussenruimte weglaten (2x 3cm), dan kun je rond de 90 uitkomen. Uiteraard is er bij een interieurbouwer nog veel meer mogelijk, lijkt me echt niet noodzakelijk.

Persoonlijk zou ik geen koelkast/oven willen zonder werkblad ernaast zoals bij Toke's voorbeelden, al staat de tafel wel dichtbij om spullen tijdelijk neer te zetten.

Woonkamer onderin zou ik persoonlijk ook niet doen, 2,4m is echt heel smal. In dat geval wellicht de bank juist tegen de onderste wand, en de TV aan de WC?
Kun je alleen weer lastig bij het draaikiepraam, of is dat nog te wijzigen?

Afbeeldingslocatie: https://tweakers.net/i/GYAc1vCOABzrr9Gf79kkqJQ_JUc=/800x/filters:strip_icc():strip_exif()/f/image/qSKqW5SEHapYxPrdmrEIWzWs.jpg?f=fotoalbum_large

[ Voor 7% gewijzigd door mitsumark op 02-11-2025 22:35 ]


  • Toke_gt
  • Registratie: Juni 2021
  • Laatst online: 31-03 22:01
mitsumark schreef op zondag 2 november 2025 @ 22:19:
[...]
Persoonlijk zou ik geen koelkast/oven willen zonder werkblad ernaast zoals bij Toke's voorbeelden, al staat de tafel wel dichtbij om spullen tijdelijk neer te zetten.
Dat los je toch simpel op met een trolley als je dat een probleem vindt?

  • tim.w
  • Registratie: Oktober 2013
  • Laatst online: 11:43
Alenji schreef op zondag 2 november 2025 @ 15:57:
[...]

Heb je al je apparatuur gehaald en bij welke webwinkel? Ik ben van plan om ook apparatuur uit Duitsland te kopen
Uiteindelijk na feedback hier toch gekozen om het in Nederland aan te schaffen.

  • Palindrome
  • Registratie: September 2020
  • Laatst online: 15:06
Wat wordt er aangeraden wat betreft quooker in gasloos nieuwbouwwoning met warmtepomp.

ik kreeg het advies om gewoon geen warm water leiding naar de keuken te laten trekken en volledig van kokend en warm water afhankelijk te zijn van de quooker.

Voor mijn gevoel vind ik het een nadeel ivm met stukgaan van een quooker en dan (tijdelijk) geen warm water meer te hebben of in de toekomst bij eventuele verkoop van de woning dat er dan geen warm water aanvoer is vanaf de wartmepomop boiler naar de keuken...

  • Koffie
  • Registratie: Augustus 2000
  • Laatst online: 13:47

Koffie

Koffiebierbrouwer

Braaimeneer

Palindrome schreef op dinsdag 4 november 2025 @ 02:11:
Wat wordt er aangeraden wat betreft quooker in gasloos nieuwbouwwoning met warmtepomp.

ik kreeg het advies om gewoon geen warm water leiding naar de keuken te laten trekken en volledig van kokend en warm water afhankelijk te zijn van de quooker.

Voor mijn gevoel vind ik het een nadeel ivm met stukgaan van een quooker en dan (tijdelijk) geen warm water meer te hebben of in de toekomst bij eventuele verkoop van de woning dat er dan geen warm water aanvoer is vanaf de wartmepomop boiler naar de keuken...
Je kan een quooker combi nemen, die maakt zelf warm water. Je hebt dan instant warm water maar bent wel beperkt tot je reservoir qua hoeveelheid (meen ik, maar misschien is hij snel genoeg om te blijven verwarmen).
Zelf heb ik in een nieuwbouwwoning met WP een gewone quooker (pro3). Warm en koud als aanvoer, warm, koud en kokend als uitvoer.
Voor warm water moet je dus even wachten op warm water uit de leiding van je WP. Deze zal meestal zo rond de 50 a 55 graden zitten.
Het enige pluspunt voor die combi die zelf warmwater maakt is dat het er instant is, meer niet.

Je kunt overigens ook voor de combi b+ gaan, die doet hetzelfde als de combi maar heeft ook nog de wamrwater als toevoer

https://media.saniweb.nl/...servoirs_COMBIplus_T5.jpg

Tijd voor een nieuwe sig..


  • pietje63
  • Registratie: Juli 2001
  • Laatst online: 14:33

pietje63

RTFM

Hier ook combi met warmwater aanvoer, maar denk dat het niet efficiënt is (meestal gebruik je niet veel warm water, dus komt het warme water vanuit de warmtepompboiler niet eens bij de quooker aan). Voordeel is (in theorie) onbeperkt warm water en de door jou genoemde flexibiliteit. Verkoop zou ik me niet zo druk om maken.

De grootste Nederlandstalige database met informatie over computers met zoekfunctie!!


  • Blihi
  • Registratie: Juni 2018
  • Laatst online: 30-03 18:42
Palindrome schreef op dinsdag 4 november 2025 @ 02:11:
Wat wordt er aangeraden wat betreft quooker in gasloos nieuwbouwwoning met warmtepomp.

ik kreeg het advies om gewoon geen warm water leiding naar de keuken te laten trekken en volledig van kokend en warm water afhankelijk te zijn van de quooker.

Voor mijn gevoel vind ik het een nadeel ivm met stukgaan van een quooker en dan (tijdelijk) geen warm water meer te hebben of in de toekomst bij eventuele verkoop van de woning dat er dan geen warm water aanvoer is vanaf de wartmepomop boiler naar de keuken...
Ik heb de Combi+, dus met aanvoer van warm water. Eigenlijk heb je het niet echt meer nodig. Hoe vaak gebruik je grote hoeveelheden warm water in de keuken? Met een reservoir van 7 liter water van 100 graden kun je behoorlijk veel warm water tappen voordat het koud is hoor. Ook voor de schoonmaak etc.

De leiding laten leggen kan nooit kwaad, want je kunt het later niet meer doen. Of je hem gebruikt is natuurlijk een tweede. Gebruik je hem niet, zorg dan dat hij niet aangekoppeld is aan de andere kant, want een loze warmwater leiding mag je niet hebben liggen, dat is een legionella-risico.

WP: Toshiba Estia 8kW split HWT-801H(R)W-E + HWT-1101 binnenunit met 300 liter SWW tank. PV: 3 strings, totaal 12600 Wp, 15 kWh thuisaccu


  • big bang
  • Registratie: November 2012
  • Laatst online: 15:28
Palindrome schreef op dinsdag 4 november 2025 @ 02:11:
Wat wordt er aangeraden wat betreft quooker in gasloos nieuwbouwwoning met warmtepomp.

ik kreeg het advies om gewoon geen warm water leiding naar de keuken te laten trekken en volledig van kokend en warm water afhankelijk te zijn van de quooker.

Voor mijn gevoel vind ik het een nadeel ivm met stukgaan van een quooker en dan (tijdelijk) geen warm water meer te hebben of in de toekomst bij eventuele verkoop van de woning dat er dan geen warm water aanvoer is vanaf de wartmepomop boiler naar de keuken...
Hoe vervelend het is om even op warm water te moeten wachten hangt ook af van de leiding lengte. Hier staat de boiler vlak bij en heb ik dus gekozen voor een pro3. Had er 25m leiding tussen de boiler en aanrecht gezeten dan had ik liever een 7 liter met alleen koud water gehad.

It's time to play the music, it's time to light the lights


  • Pejdref
  • Registratie: November 2012
  • Nu online
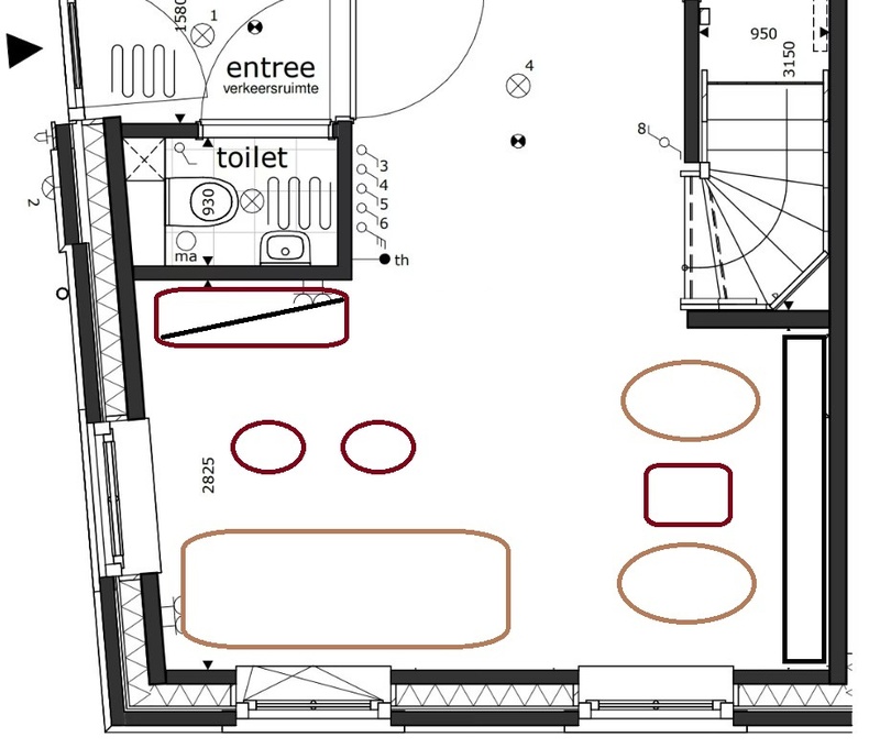
aart staart schreef op woensdag 29 oktober 2025 @ 17:19:
[...]


Bedankt voor je reactie! We hebben in onze huidige woning al een soortgelijke actie ondernomen waarbij we de nieuwe indeling hebben uitgezet. Hierdoor hebben we het idee dat het net aan gaat passen om een ondiep eiland te laten plaatsen.

Onze allereerste ingeving was om een L-opstelling te plaatsen alleen zijn we hierbij bang dat we teveel loze keuken ruimte krijgen rondom de eettafel en dat daardoor minder 'gezellig' wordt. We zijn op dit moment (nog) maar met zijn 2'en namelijk.


@ChiLLeR @nooberke ook bedankt voor jullie input!


Zie hieronder voor de 2 mogelijke uitwerkingen die we op dit moment voor ogen hebben. Het liefste zouden we natuurlijk overal iets meer vrije ruimte hebben maar we vinden veel aanrecht blad en gezellig kunnen koken met gasten ook erg belangrijk.

Is 1 van deze beide indelingen realistisch of houden we teveel vast aan het hebben van een eiland? We zijn beiden slank en denken dat de vaatwasser in de praktijk zo weinig open staat dat dit niet echt voor ergenissen gaat zorgen.

En dan zit in beide ontwerpen ook nog 5cm speling zie ik. Gezien we rekenen met 5400 en we 5450 in de praktijk gaan krijgen volgens de bestek tekening.

[Afbeelding]

[Afbeelding]


[...]


Bedankt voor de tip! Ik sta er zeker voor open om de apparatuur op mijn gemak bij de verschillende online aanbieders te bestellen met een mooie korting. Hopelijk denkt de keukenzaak hier ook zo over.. Anders zullen we op een andere manier aan onze kasten en werkblad moeten komen. Alternatieven zijn KKFB of Ikea dan denk ik.

Tot nu toe zijn de aanbieders niet heel transparant geweest over de aangeboden apparatuur en daardoor denken we dat daar zeker nog wat te winnen valt qua prijs / kwaliteit. Ze willen allemaal het liefste dat we alle apparatuur op niveautje Bosch Serie 8 afnemen. :F Terwijl het voor ons juist niet van belang is om een vaatwasser met Zeolieth en een oven met groot touchscreen en app bediening te hebben...

Voor ons zijn zelfs showroom modellen en/of marktplaats een optie indien zich daar de juiste mogelijkheden aanbieden.
Wij hebben in de breedte een soortgelijke indeling, de ruimte bij ons is 5,25. Wij hebben geen L (wand A staat er niet bij ons). Ons keukeneiland is 80cm breed en 240cm lang, bij ons is dit een spoeleiland, we koken aan wand B. Als je in het eiland wil koken dan zou ik wel voor een kookplaat met spatwand gaan.
We hebben een ruimte van 95cm tussen de kastenwand en het kookeiland, om te werken is dat voor ons genoeg maar dat schijnt nogal persoonlijk te zijn. Enige wat ik irritant vind is dat de kastjes/lades net niet tegenover elkaar open kunnen, bij het uitruimen van de vaatwasser is dat niet handig.

De eettafel hebben we met een eetbank tegen de wand geplaatst zodat de doorgang groter wordt.

  • SonicJ
  • Registratie: December 2020
  • Laatst online: 26-03 16:19
Leuk topic, lees al een tijdje mee en leer veel. mooie keukens gezien.
onlangs ook op pad geweest voor een nieuwe keuken, uiteindelijk bij een niet-mandemakers groep geëindigd.

Na de eerste opzet (Pronorm Y-line) vonden wij de keuken wat aan de dure kant. uiteindelijk de keuken goedkoper kunnen krijgen door wat te onderhandelen.
echter blijkt bij het tekenen dat de keuken nu ineens een häcker concept130 is geworden. dat kwam ze wat beter uit. weet iemand of wij hier in op kwaliteit of afwerking?

totale prijs keukenmeubelen Pronorm offerte - 13500
totale prijs keukenmuebelen Häcker offerte - 11700

Afbeeldingslocatie: https://tweakers.net/i/d2MNYc7n5UgR-Cx4egyVtaDJnJM=/fit-in/4920x3264/filters:max_bytes(3145728):no_upscale():strip_icc():strip_exif()/f/image/2UE1oZq7u66jxH7Q3yFuW5No.jpg?f=user_large

Afbeeldingslocatie: https://tweakers.net/i/4bZICy7jKMRId16HurnW672Cw4c=/fit-in/4920x3264/filters:max_bytes(3145728):no_upscale():strip_icc():strip_exif()/f/image/npOlib9MJlQkWXuNOuWoBQmI.jpg?f=user_large

leuk topic, mooi zo doorgaan :)

  • Palindrome
  • Registratie: September 2020
  • Laatst online: 15:06
SonicJ schreef op dinsdag 4 november 2025 @ 15:00:
Leuk topic, lees al een tijdje mee en leer veel. mooie keukens gezien.
onlangs ook op pad geweest voor een nieuwe keuken, uiteindelijk bij een niet-mandemakers groep geëindigd.

Na de eerste opzet (Pronorm Y-line) vonden wij de keuken wat aan de dure kant. uiteindelijk de keuken goedkoper kunnen krijgen door wat te onderhandelen.
echter blijkt bij het tekenen dat de keuken nu ineens een häcker concept130 is geworden. dat kwam ze wat beter uit. weet iemand of wij hier in op kwaliteit of afwerking?

totale prijs keukenmeubelen Pronorm offerte - 13500
totale prijs keukenmuebelen Häcker offerte - 11700

[Afbeelding]

[Afbeelding]

leuk topic, mooi zo doorgaan :)
Kwaliteit zal denk ik niet veel verschillen. Hebben ze beide merken in de showroom staan? Ga dan kijken en voelen.

  • Flix20
  • Registratie: Oktober 2011
  • Laatst online: 07:25
Palindrome schreef op dinsdag 4 november 2025 @ 02:11:
Wat wordt er aangeraden wat betreft quooker in gasloos nieuwbouwwoning met warmtepomp.

ik kreeg het advies om gewoon geen warm water leiding naar de keuken te laten trekken en volledig van kokend en warm water afhankelijk te zijn van de quooker.

Voor mijn gevoel vind ik het een nadeel ivm met stukgaan van een quooker en dan (tijdelijk) geen warm water meer te hebben of in de toekomst bij eventuele verkoop van de woning dat er dan geen warm water aanvoer is vanaf de wartmepomop boiler naar de keuken...
Mocht een quooker stuk gaan kan je altijd nog in geval van nood op een ander punt (je douche/badkamer) warm water halen.
Wat verkoop betreft; lijkt me niet zo'n punt; meestal komt men daar pas achter nádat de woning gekocht is (spreek ik uit ervaring).

PSN: Flix20-NL


  • SonicJ
  • Registratie: December 2020
  • Laatst online: 26-03 16:19
Palindrome schreef op dinsdag 4 november 2025 @ 15:16:
[...]

Kwaliteit zal denk ik niet veel verschillen. Hebben ze beide merken in de showroom staan? Ga dan kijken en voelen.
Wij hebben al getekend voor de Häcker, beetje overspoeld want wij kwamen naar de zaak om te tekenen voor de Pronorm, en toen was het ineens een häcker. Zou allemaal hetzelfde zijn volgende de verkoper maar eenmaal thuis toch eens over na gaan denken. Gaat mij voornamelijk om de kwaliteit van de lades en de lamineerkwaliteit van de kasten en deuren. Ik zie dat de häcker direktlak gebruikt en dat de Pronorm Melamine toplaag is. Maar dat kunnen ook benamingen zijn die niet gelijk invloed hebben op de krasbestendigheid. Misschien wel een goed idee om toch even terug te gaan en te bekijken, eventueel opnieuw onderhandelen, de keuken staa op afroep voor komend jaar.

  • Pizzaman
  • Registratie: December 2000
  • Niet online

Pizzaman

16:00 Cup-a-soup.

Wauw! Wij hebben ons ook gestort in de wereld van de keukens. Wat veel keuzes, merken en verschillende adviezen…

Inmiddels twee offertes liggen (27k en 30k)

Bij de laatste waren de keukenkastjes in eerste instantie in poeder coating bedacht, maar daar zit een langere levertijd op (aldus de keukenboer). Daarom is nu uitgegaan van structuur lak. Ik moet het verschil nog zien, maar heeft iemand hier al ervaring?

  • Palindrome
  • Registratie: September 2020
  • Laatst online: 15:06
Mag weg

[ Voor 98% gewijzigd door Palindrome op 04-11-2025 21:49 ]


  • maussert
  • Registratie: September 2012
  • Laatst online: 13:58
Palindrome schreef op dinsdag 4 november 2025 @ 21:43:
[...]


Volgensmij is lak in de regel mooier en vaak de duurdere optie dus zeker niet minder
Maar volgens mij ook kwetsbaarder, iets om rekening mee te houden als je bijvoorbeeld kleine kinderen hebt. Ik heb begrepen dat HPL of melamine wat dat betreft de veiligere keuze is.

  • twain4me
  • Registratie: December 2017
  • Laatst online: 16:49

twain4me

Moderator Wonen & Mobiliteit
Palindrome schreef op dinsdag 4 november 2025 @ 02:11:
Wat wordt er aangeraden wat betreft quooker in gasloos nieuwbouwwoning met warmtepomp.

ik kreeg het advies om gewoon geen warm water leiding naar de keuken te laten trekken en volledig van kokend en warm water afhankelijk te zijn van de quooker.

Voor mijn gevoel vind ik het een nadeel ivm met stukgaan van een quooker en dan (tijdelijk) geen warm water meer te hebben of in de toekomst bij eventuele verkoop van de woning dat er dan geen warm water aanvoer is vanaf de wartmepomop boiler naar de keuken...
Alleen een quooker op de koude leiding werkt prima, ik heb zelf een vrij lang traject naar het warm water vat.
als je de leiding laat leggen is het verstandig om hem ook te gebruiken. als je pech hebt heb je anders een lange "dode" aftakking en dat zou slecht zijn ivm legionella. Ik heb zelf een loze leiding naar de instaltieruimte zodat ik hem in de toekomst kan gebruiken voor warm water of bv grijs water.

  • Thomg
  • Registratie: September 2010
  • Laatst online: 31-03 22:19

Thomg

Aww yiss

twain4me schreef op dinsdag 4 november 2025 @ 22:30:
[...]


Alleen een quooker op de koude leiding werkt prima, ik heb zelf een vrij lang traject naar het warm water vat.
als je de leiding laat leggen is het verstandig om hem ook te gebruiken. als je pech hebt heb je anders een lange "dode" aftakking en dat zou slecht zijn ivm legionella. Ik heb zelf een loze leiding naar de instaltieruimte zodat ik hem in de toekomst kan gebruiken voor warm water of bv grijs water.
Ik heb dit opgelost door mijn vaatwasser erop aan te sluiten. Die wilt toch warm water hebben en draait vaak genoeg om wat te doen tegen legionella. Mocht ik toch ooit nog terug willen gaan (of volgende bewoners, mijn huis gaat verkocht worden binnen een jaar) is dit in no-time omgezet.
Ik heb juist niet de warmwater aangesloten op mijn quooker (selsiuz) omdat het laatste wat ik wilde dat de boiler aanschoot voor iedere poep en scheet als ik warm water vroeg.

[ Voor 9% gewijzigd door Thomg op 04-11-2025 22:48 ]


  • Palindrome
  • Registratie: September 2020
  • Laatst online: 15:06
maussert schreef op dinsdag 4 november 2025 @ 21:50:
[...]

Maar volgens mij ook kwetsbaarder, iets om rekening mee te houden als je bijvoorbeeld kleine kinderen hebt. Ik heb begrepen dat HPL of melamine wat dat betreft de veiligere keuze is.
Lak is er inderdaad in vele soorten en maten

  • SonicJ
  • Registratie: December 2020
  • Laatst online: 26-03 16:19
maussert schreef op dinsdag 4 november 2025 @ 21:50:
[...]

Maar volgens mij ook kwetsbaarder, iets om rekening mee te houden als je bijvoorbeeld kleine kinderen hebt. Ik heb begrepen dat HPL of melamine wat dat betreft de veiligere keuze is.
Wij hebben een kleine tegen die tijd wel rondkruipt, en speelgoed zal ook bij tijden de keuken wel bereiken, dus misschien toch slim om te pleiten voor de Pronorm met melamine toplaag dan.

[ Voor 5% gewijzigd door SonicJ op 05-11-2025 00:02 ]


  • Johndoe007
  • Registratie: Oktober 2015
  • Laatst online: 18-02 01:23
Ik volg dit topic nu al een tijdje en het valt me op dat men niet (meer) naar Duitsland gaat voor een nieuwe keuken. Heb ik iets gemist qua tegenvallende kwaliteit/prijzen? Met zo’n grote aankoop kan het natuurlijk wel schelen. Hoor goede verhalen over bv een Ekelhoff. Iemand recente ervaringen?

  • Wimbr70
  • Registratie: Januari 2023
  • Laatst online: 15:26
Johndoe007 schreef op woensdag 5 november 2025 @ 23:25:
Ik volg dit topic nu al een tijdje en het valt me op dat men niet (meer) naar Duitsland gaat voor een nieuwe keuken. Heb ik iets gemist qua tegenvallende kwaliteit/prijzen? Met zo’n grote aankoop kan het natuurlijk wel schelen. Hoor goede verhalen over bv een Ekelhoff. Iemand recente ervaringen?
1,5 week geleden bij Ekelhoff geweest maar wacht nog op de offerte voor het vergelijk mbt nederlandse keukenzaken.

  • Thomg
  • Registratie: September 2010
  • Laatst online: 31-03 22:19

Thomg

Aww yiss

Johndoe007 schreef op woensdag 5 november 2025 @ 23:25:
Ik volg dit topic nu al een tijdje en het valt me op dat men niet (meer) naar Duitsland gaat voor een nieuwe keuken. Heb ik iets gemist qua tegenvallende kwaliteit/prijzen? Met zo’n grote aankoop kan het natuurlijk wel schelen. Hoor goede verhalen over bv een Ekelhoff. Iemand recente ervaringen?
Ervaring van mijn vriend en ikzelf was dat het eigenlijk best wel tegenviel qua prijs/kwaliteit. Niet echt beter dan in Nederland.
Als je binnen 50km van de grens woont oid kan je het proberen, maar anders meh.

  • aex351
  • Registratie: Juni 2005
  • Laatst online: 13:12

aex351

I am the one

Johndoe007 schreef op woensdag 5 november 2025 @ 23:25:
Ik volg dit topic nu al een tijdje en het valt me op dat men niet (meer) naar Duitsland gaat voor een nieuwe keuken. Heb ik iets gemist qua tegenvallende kwaliteit/prijzen? Met zo’n grote aankoop kan het natuurlijk wel schelen. Hoor goede verhalen over bv een Ekelhoff. Iemand recente ervaringen?
Altijd die goede verhalen. Ik moet nog een verhaal tegenkomen van iemand die daadwerkelijk goedkoper uit was. Dus ik ben erg benieuwd naar wie jou deze verhalen heeft verteld.

Ekelhoff heeft een mooie showroom met diverse merken.

< dit stukje webruimte is te huur >


  • Skyaero
  • Registratie: Juli 2005
  • Niet online
Skyaero schreef op donderdag 30 oktober 2025 @ 11:59:
We zijn naar Leicht (Amsterdam) gegaan. Eerste indruk mooie keukens van hoge kwaliteit. Direct begonnen met het ontwerpproces. Wel wat rommelig, o.a. door nieuwe software dat nog niet echt goed werkte. Ontwerp is nog in gang en een tweede sessie volgt volgende week.
In eerste instantie waren we zeer positief, maar we lopen tegen een aantal ontwerpbeperkingen aan die mogelijk niet opgelost kunnen worden. Eerste prijsindicatie 40-50k.
Tweede Leicht sessie gehad. Hoewel het ontwerp ons wel erg zint, is het proces eromheen wat teleurstellend. Verkoopster/ontwerpster had de afgelopen 2 weken verder niets gedaan, dus alle detailwerk werd getekend terwijl we daar zaten. Dat is best saai. En het is nog niet af. we beginnen er een beetje de kriebels van te krijgen.

Ook inmiddels een offerte van een aannemer gehad voor de rest van de renovatie. Zijn we ook niet heel blij mee (duur).

  • bb1969
  • Registratie: Mei 2014
  • Laatst online: 08:37
Johndoe007 schreef op woensdag 5 november 2025 @ 23:25:
Ik volg dit topic nu al een tijdje en het valt me op dat men niet (meer) naar Duitsland gaat voor een nieuwe keuken. Heb ik iets gemist qua tegenvallende kwaliteit/prijzen? Met zo’n grote aankoop kan het natuurlijk wel schelen. Hoor goede verhalen over bv een Ekelhoff. Iemand recente ervaringen?
Denk dat je een beetje geluk met de verkoper moet hebben, die van ons luisterde niet naar onze wensen, kwam met een design dat we niet wilde, duwde ons een richting op die we niet wilde. Kwam wel redelijk snel met een offerte, maar hebben daarna nooit meer gebeld oid

  • UltraInstinct
  • Registratie: November 2017
  • Laatst online: 13:29
SonicJ schreef op dinsdag 4 november 2025 @ 15:00:
Leuk topic, lees al een tijdje mee en leer veel. mooie keukens gezien.
onlangs ook op pad geweest voor een nieuwe keuken, uiteindelijk bij een niet-mandemakers groep geëindigd.

Na de eerste opzet (Pronorm Y-line) vonden wij de keuken wat aan de dure kant. uiteindelijk de keuken goedkoper kunnen krijgen door wat te onderhandelen.
echter blijkt bij het tekenen dat de keuken nu ineens een häcker concept130 is geworden. dat kwam ze wat beter uit. weet iemand of wij hier in op kwaliteit of afwerking?

totale prijs keukenmeubelen Pronorm offerte - 13500
totale prijs keukenmuebelen Häcker offerte - 11700

[Afbeelding]

[Afbeelding]

leuk topic, mooi zo doorgaan :)
Dan heb je toch helemaal niet kunnen onderhandelen? Ze hebben je namelijk een 'goedkoper' product gegeven. Ik zou ze bellen en zeggen dat het niet zo is afgesloten. Ik neem aan dat je hebt onderhandeld over de pro norm en niet over een concept 130 keuken.

  • Johndoe007
  • Registratie: Oktober 2015
  • Laatst online: 18-02 01:23
Wimbr70 schreef op donderdag 6 november 2025 @ 10:04:
[...]

1,5 week geleden bij Ekelhoff geweest maar wacht nog op de offerte voor het vergelijk mbt nederlandse keukenzaken.
Wat is jouw ervaring van die dag? Als ik vragen mag :) ? Kun je iets vertellen over de keuzes, prijs/kwaliteitverhouding, etc? Dank!

  • Johndoe007
  • Registratie: Oktober 2015
  • Laatst online: 18-02 01:23
aex351 schreef op donderdag 6 november 2025 @ 12:52:
[...]

Altijd die goede verhalen. Ik moet nog een verhaal tegenkomen van iemand die daadwerkelijk goedkoper uit was. Dus ik ben erg benieuwd naar wie jou deze verhalen heeft verteld.

Ekelhoff heeft een mooie showroom met diverse merken.
Klopt; het zijn inderdaad ‘oude’ verhalen van viavia. Daarom viel het mij op dat er hier in het topic weinig gesprekstof was over de keukens in Duitsland. Just checking.

Showroom ziet er inderdaad prima uit, maar dat is hier bij Bruynzeel e.d. ook :) .

  • Flix20
  • Registratie: Oktober 2011
  • Laatst online: 07:25
SonicJ schreef op dinsdag 4 november 2025 @ 20:38:
[...]


Wij hebben al getekend voor de Häcker, beetje overspoeld want wij kwamen naar de zaak om te tekenen voor de Pronorm, en toen was het ineens een häcker. Zou allemaal hetzelfde zijn volgende de verkoper maar eenmaal thuis toch eens over na gaan denken. Gaat mij voornamelijk om de kwaliteit van de lades en de lamineerkwaliteit van de kasten en deuren. Ik zie dat de häcker direktlak gebruikt en dat de Pronorm Melamine toplaag is. Maar dat kunnen ook benamingen zijn die niet gelijk invloed hebben op de krasbestendigheid. Misschien wel een goed idee om toch even terug te gaan en te bekijken, eventueel opnieuw onderhandelen, de keuken staa op afroep voor komend jaar.
Even kort door de bocht, maar je hebt dus al getekend... Waar verwacht je nog over te kunnen onderhandelen?
Ja ze kunnen ongetwijfeld er nog een Pronorm keuken van maken, maar dan krijg je gewoon een meerprijs aan je broek te hangen waar zij niet heel veel baat bij hebben om je een lagere prijs voro te geven. Je hebt immers al een getekende opdracht gegeven.

PSN: Flix20-NL


  • Wimbr70
  • Registratie: Januari 2023
  • Laatst online: 15:26
Johndoe007 schreef op vrijdag 7 november 2025 @ 04:31:
[...]


Wat is jouw ervaring van die dag? Als ik vragen mag :) ? Kun je iets vertellen over de keuzes, prijs/kwaliteitverhouding, etc? Dank!
Ik heb het wel ervaren als een heel erg prettig gesprek; heel veel keukens, merken om uit te kiezen; meedenken met ideeën; als je liever toch andere apparaten wilt geen probleem. Ook geen druk voor beslissen oid. Ook goed verzorgd mbt drinken en eten. Nu afwachten wat de offerte gaat doen.

  • XhaiKhaL
  • Registratie: Januari 2005
  • Laatst online: 31-03 21:21
Palindrome schreef op woensdag 29 oktober 2025 @ 14:28:
Ik zit in de markt voor een keuken waar vooral lades in zullen zitten, wat bieden merken als Nolte, nobilia, ballerina, of hacker die zich in laag midden segement bevinden tegenover een bijvoorbeeld een Ikea?

Dan bedoel ik vooral de stevigheid van de corpus en laden. Dikker mdf/spaanplaat etc.

...
Ik zie in de recente berichten wat vragen (maar helaas geen antwoorden) rondom de kwaliteit van een aantal merken voorbij komen waar wij ook interesse in hebben dus ik hoop dat er toch iemand is die wat vergelijkingen kan maken rondom een aantal van deze merken.

Wij vonden de de kleuren en de fronten van Nolte erg mooi. Verder voelden de scharnieren en geleiders in de showrooms ook allemaal goed en degelijk. Alleen viel de keuken met onze wensen bij verschillende Nolte zaken helaas steeds boven ons budget, idem voor Ballerina. Inmiddels hebben we via de mail een interessante offerte voor een Häcker concept130 keuken maar dat hebben we nog in het echt gezien en gevoeld.

Hoe verhouden deze merken/lijnen zich tot elkaar, in de OP staan ze allemaal in het middensegment genoemd:
  • Ballerina
  • Häcker systemat
  • Hacker concept130
  • Nolte
  • Rotpunkt
Dus hoe zit het met de scharnieren, geleiders en corpuskwaliteit (en andere zaken waar ik nu niet aan denk) tussen deze merken? Ook is het me niet echt duidelijk waar de systemat en concept130 lijnen van Häcker in verschillen en of je met concept130 ook inlevert op bepaalde kwaliteitsaspecten.

  • Thomg
  • Registratie: September 2010
  • Laatst online: 31-03 22:19

Thomg

Aww yiss

Wimbr70 schreef op vrijdag 7 november 2025 @ 08:52:
[...]

Ik heb het wel ervaren als een heel erg prettig gesprek; heel veel keukens, merken om uit te kiezen; meedenken met ideeën; als je liever toch andere apparaten wilt geen probleem. Ook geen druk voor beslissen oid. Ook goed verzorgd mbt drinken en eten. Nu afwachten wat de offerte gaat doen.
Sorry, maar je hebt geen prijsindicatie gekregen of een offerte onder voorbehoud? Dat is vrij absurd.
Of wil je nog niet vooruitlopen op de zaken tot je het zwart-op-wit hebt?
XhaiKhaL schreef op vrijdag 7 november 2025 @ 10:44:
[...]


Ik zie in de recente berichten wat vragen (maar helaas geen antwoorden) rondom de kwaliteit van een aantal merken voorbij komen waar wij ook interesse in hebben dus ik hoop dat er toch iemand is die wat vergelijkingen kan maken rondom een aantal van deze merken.

Wij vonden de de kleuren en de fronten van Nolte erg mooi. Verder voelden de scharnieren en geleiders in de showrooms ook allemaal goed en degelijk. Alleen viel de keuken met onze wensen bij verschillende Nolte zaken helaas steeds boven ons budget...
Er is mij verteld door wat andere keukenboeren dat Nolte winkels in Nederland niet Nolte winkels zijn, maar meer een clubje ondernemers die de naam mag voeren en het product mag verkopen. Als je een Nolte keuken wilt voor een schappelijke prijs kan je beter naar een non-Nolte winkel gaan die Nolte keukens verkoopt. Zelf heb ik ook nog een nare nasmaak van de Nolte "verkoopproces" overgehouden.
Vooral qua apparatuur, als je niet koopt wat zij inkopen betaal je meteen de adviesprijs wat eigenlijk standaard minimaal 2x de marktprijs is.
Maar de kwaliteit van de showrooms was wel hoog... Toegegeven...

[ Voor 4% gewijzigd door Thomg op 07-11-2025 10:53 ]


  • Midan
  • Registratie: September 2022
  • Laatst online: 29-03 20:37
Ik merk ineens dat mijn Siemens HM936GCB1-oven een airfryer-optie op het scherm heeft. Waarschijnlijk is dit via een update toegevoegd. Heb ik hiervoor een speciale bakplaat nodig?

  • Wimbr70
  • Registratie: Januari 2023
  • Laatst online: 15:26
Thomg schreef op vrijdag 7 november 2025 @ 10:52:
[...]

Sorry, maar je hebt geen prijsindicatie gekregen of een offerte onder voorbehoud? Dat is vrij absurd.
Of wil je nog niet vooruitlopen op de zaken tot je het zwart-op-wit hebt?
Ik zie het niet als absurd; hebben ze alle tijd om al onze wensen/aanpassingen e.d. goed te berekenen en er over na te denken.

  • Thomg
  • Registratie: September 2010
  • Laatst online: 31-03 22:19

Thomg

Aww yiss

Wimbr70 schreef op vrijdag 7 november 2025 @ 13:11:
[...]
Ik zie het niet als absurd; hebben ze alle tijd om al onze wensen/aanpassingen e.d. goed te berekenen en er over na te denken.
Viel me inderdaad wel op dat de duitse keukenboer wat minder happig was met het delen van de offerte/prijsindicatie, maar toen ik op z'n minst om een indicatie vroeg ik die wel kreeg.
Dat vind ik vrij belangrijk, want als zijn prijsindicatie aanzienlijk hoger of lager is dan verwacht betekent dit dus dat het geen zin heeft om het gesprek door te zetten of dat er meer ruimte is om luxe te nemen.
Als dit een paar dagen later is en ik thuis zit vind ik het moeilijk om te sparren over de opties.

Van mijn perspectief is het iig absurd. Ik zou het niet accepteren. Maar dat is mijn mening.

  • XhaiKhaL
  • Registratie: Januari 2005
  • Laatst online: 31-03 21:21
Thomg schreef op vrijdag 7 november 2025 @ 10:52:

[...]

Er is mij verteld door wat andere keukenboeren dat Nolte winkels in Nederland niet Nolte winkels zijn, maar meer een clubje ondernemers die de naam mag voeren en het product mag verkopen. Als je een Nolte keuken wilt voor een schappelijke prijs kan je beter naar een non-Nolte winkel gaan die Nolte keukens verkoopt. Zelf heb ik ook nog een nare nasmaak van de Nolte "verkoopproces" overgehouden.
Vooral qua apparatuur, als je niet koopt wat zij inkopen betaal je meteen de adviesprijs wat eigenlijk standaard minimaal 2x de marktprijs is.
Maar de kwaliteit van de showrooms was wel hoog... Toegegeven...
Klopt, ik ben ook niet bij de "Nolte Küchen Center" zaken geweest hoor, maar bij lokale ondernemers die Nolte verkopen. Die zijn te vinden via de dealer locator op de officiële website van Nolte.

  • aex351
  • Registratie: Juni 2005
  • Laatst online: 13:12

aex351

I am the one

Johndoe007 schreef op vrijdag 7 november 2025 @ 04:35:
[...]


Klopt; het zijn inderdaad ‘oude’ verhalen van viavia. Daarom viel het mij op dat er hier in het topic weinig gesprekstof was over de keukens in Duitsland. Just checking.

Showroom ziet er inderdaad prima uit, maar dat is hier bij Bruynzeel e.d. ook :) .
Bruynzeel heeft vooral eigen merk staan (apparatuur en werkbladen extern) en deels Next125. Bij die Duitse showroom heb je diverse merken. Dus dan kan je mooi het e.e.a. vergelijken of inspiratie opdoen.

Mijn keuken staat overigens in de bestelling by Bruynzeel. Die waren gekoppeld aan het nieuwbouwproject en heb er vooralsnog goede ervaringen mee. Ze gaan heel relaxt om met de offerte. Alle formele deadlines zijn al verstrekken en ik mag nog steeds aanpassingen doen. Ze zijn verder ook transparant over de prijzen. Qua apparatuur prijzen zitten ze ook best goed op één lijn met de goedkopere online winkels.

< dit stukje webruimte is te huur >


  • Hulliee
  • Registratie: November 2008
  • Niet online
Midan schreef op vrijdag 7 november 2025 @ 11:42:
Ik merk ineens dat mijn Siemens HM936GCB1-oven een airfryer-optie op het scherm heeft. Waarschijnlijk is dit via een update toegevoegd. Heb ik hiervoor een speciale bakplaat nodig?
Klopt, er is een software update geweest die dat heeft toegevoegd op het schermpje. Je kon deze stand alleen via de app gebruiken voorheen.
Ik heb een bakplaat voor de airfyer: heeft sleuven voor de hete lucht maar niet te groot zodat de friet/patat er niet doorheen valt.

  • BennieWolters
  • Registratie: November 2011
  • Laatst online: 15:12
Vandaag bij de keukenboer geweest, weer veel gezien. Over de kleuren en apparatuur zijn we het wel eens. Maar er zijn nog twijfels bij ons over de indeling. Graag jullie ongezouten mening.

Mijn voornaamste twijfel is of de koelkast niet te ver van het werkgedeelte is. Hij zou linksboven in de hoek kunnen, maar nu is er juist over de hele lengte een mooi laag werkblad. Moeilijk moeilijk.

Afbeeldingslocatie: https://tweakers.net/i/aDzxFEnnSUmOpuT1gUBrHDFYGGA=/800x/filters:strip_exif()/f/image/8nBGNGyweeKm39hyHeTCdwK0.png?f=fotoalbum_large

Joe


  • TweakGP
  • Registratie: December 2024
  • Laatst online: 10-02 11:53
Totaal niet handig om niet in de buurt van je koelkast/vriezer een plek te hebben om spullen neer te zetten. Maar dat vindt ik voor een oven eigenlijk ook (alleen een magnetron gaat nog wel).

Ik zou het heel onhandig vinden zo. En die deur maakt het nog erger.
Dus inderdaad minimaal de koelkast naar linksboven, 1 hoge kast daar is minder fraai maar wel veel praktischer.

En ik zou je werkblad ook wat dieper laten maken. Zoveel prettiger, en die ruimte heb je wel.

[ Voor 58% gewijzigd door TweakGP op 07-11-2025 20:39 ]


  • XhaiKhaL
  • Registratie: Januari 2005
  • Laatst online: 31-03 21:21
Ik zal ook even wat offertes voor onze keuken delen, wellicht heeft iemand er wat aan. Feedback is ook zeker welkom. Er zit ook een Duitse zaak tussen, wellicht interessant aangezien er recent wat vragen over waren.

Wij hebben naar ons idee een vrij simpele, standaard L-vorm keuken maar toch lukt het maar niet om deze binnen ons budget van 20k te krijgen.
Members only:
Alleen zichtbaar voor ingelogde gebruikers. Inloggen
We kiezen voor een composiet werkblad (hoogste prijsgroep), dat we tegen de wand achter de kookplaat laten doorlopen.

En de volgende apparatuur:
Siemens iQ700 EX807NX68E kookplaat met afzuiging
Siemens iQ700 CM976GKB1 oven
Siemens iQ300 KI96NSFD0 XL koelvriescombinatie
Siemens iQ300 SX73E806BE XL vaatwasser
Quooker Combi+ Fusion Round in Messing Patina

Wij zijn inmiddels bij meerdere keukenzaken geweest en vonden de de kleuren en de fronten van Nolte erg mooi. Verder voelden de scharnieren en geleiders ook allemaal goed en degelijk.

De eerste Nolte offerte bij een lokale keukenzaak kwam nét boven budget en we vonden de verkoopster niet geweldig (slordige tekening, drong haar ontwerpkeuzes aan ons op en kregen ook geen offerte of ontwerp mee of op de mail). Daarom een andere Nolte zaak geprobeerd, precies dezelfde keuken laten uitwerken (precies dezelfde apparatuur en merk + type blad) en daarna Budgetplan nog even via de mail geprobeerd en maar die kwamen stukken hoger uit.

Vervolgens, een vergelijkingsaanbod aangevraagd bij Möbel Faber (Duitsland). Wederom dezelfde apparatuur en blad, maar nu een Häcker concept130 keuken, die heb ik alleen nog niet in het echt gezien of gevoeld. Van Akzent (ook Duitsland) moeten we nog een offerte krijgen (merk: Rotpunkt).

Volledige offertes, dus alles incl. montage:
Members only:
Alleen zichtbaar voor ingelogde gebruikers. Inloggen
Om een gevoel te krijgen bij de werkelijke kosten van de componenten in de keuken heb ik ook losse offertes voor de apparatuur en het blad opgevraagd:
Members only:
Alleen zichtbaar voor ingelogde gebruikers. Inloggen

  • BennieWolters
  • Registratie: November 2011
  • Laatst online: 15:12
TweakGP schreef op vrijdag 7 november 2025 @ 20:29:
Totaal niet handig om niet in de buurt van je koelkast/vriezer een plek te hebben om spullen neer te zetten. Maar dat vindt ik voor een oven eigenlijk ook (alleen een magnetron gaat nog wel).

Ik zou het heel onhandig vinden zo. En die deur maakt het nog erger.
Dus inderdaad minimaal de koelkast naar linksboven, 1 hoge kast daar is minder fraai maar wel veel praktischer.

En ik zou je werkblad ook wat dieper laten maken. Zoveel prettiger, en die ruimte heb je wel.
Ik denk dat je gelijk hebt. Je bevestigd in ieder geval ook ons gevoel. Met de oven en vriezer op die plek hebben we minder problemen, daar kom je toch minder per 'kooksessie'.
Dank voor je reactie.

Komt dus neer op:
Afbeeldingslocatie: https://tweakers.net/i/x-SHWiVWqNj7vTscirkgcYIgS6Q=/fit-in/4000x4000/filters:no_upscale():strip_exif()/f/image/QT79xsmcZlqx78BKZfG958eD.png?f=user_large

Joe


  • nightgold
  • Registratie: Oktober 2018
  • Laatst online: 29-03 22:21
XhaiKhaL schreef op vrijdag 7 november 2025 @ 20:43:
Ik zal ook even wat offertes voor onze keuken delen, wellicht heeft iemand er wat aan. Feedback is ook zeker welkom. Er zit ook een Duitse zaak tussen, wellicht interessant aangezien er recent wat vragen over waren.

Wij hebben naar ons idee een vrij simpele, standaard L-vorm keuken maar toch lukt het maar niet om deze binnen ons budget van 20k te krijgen.

***members only***


We kiezen voor een composiet werkblad (hoogste prijsgroep), dat we tegen de wand achter de kookplaat laten doorlopen.

En de volgende apparatuur:
Siemens iQ700 EX807NX68E kookplaat met afzuiging
Siemens iQ700 CM976GKB1 oven
Siemens iQ300 KI96NSFD0 XL koelvriescombinatie
Siemens iQ300 SX73E806BE XL vaatwasser
Quooker Combi+ Fusion Round in Messing Patina

Wij zijn inmiddels bij meerdere keukenzaken geweest en vonden de de kleuren en de fronten van Nolte erg mooi. Verder voelden de scharnieren en geleiders ook allemaal goed en degelijk.

De eerste Nolte offerte bij een lokale keukenzaak kwam nét boven budget en we vonden de verkoopster niet geweldig (slordige tekening, drong haar ontwerpkeuzes aan ons op en kregen ook geen offerte of ontwerp mee of op de mail). Daarom een andere Nolte zaak geprobeerd, precies dezelfde keuken laten uitwerken (precies dezelfde apparatuur en merk + type blad) en daarna Budgetplan nog even via de mail geprobeerd en maar die kwamen stukken hoger uit.

Vervolgens, een vergelijkingsaanbod aangevraagd bij Möbel Faber (Duitsland). Wederom dezelfde apparatuur en blad, maar nu een Häcker concept130 keuken, die heb ik alleen nog niet in het echt gezien of gevoeld. Van Akzent (ook Duitsland) moeten we nog een offerte krijgen (merk: Rotpunkt).

Nolte offertes, alles incl. montage:

***members only***


Om een gevoel te krijgen bij de werkelijke kosten van de componenten in de keuken heb ik ook losse offertes voor de apparatuur en het blad opgevraagd:

***members only***
Keukenzaken zijn makkelijk maar je betaalt nu eenmaal de meerprijs van hun winkels, marketing, etc...
Je kan ook een keuken laten plaatsen door een schrijnwerker en de apparaten zelf gaan halen van een stock winkel (zoals Loeters hier in BE) en installeren. Ik schrik me soms een bult wanneer ik de prijzen voor apparaten hier zie.
En die Quookers win je toch ook nooit terug?
Waarmee ik wil zeggen, je betaalt nu eenmaal voor gemak. Als je de prijs naar beneden wil, dan kan dat best maar je zal het anders moeten aanpakken.

  • aex351
  • Registratie: Juni 2005
  • Laatst online: 13:12

aex351

I am the one

XhaiKhaL schreef op vrijdag 7 november 2025 @ 20:43:
Ik zal ook even wat offertes voor onze keuken delen, wellicht heeft iemand er wat aan. Feedback is ook zeker welkom. Er zit ook een Duitse zaak tussen, wellicht interessant aangezien er recent wat vragen over waren.

Wij hebben naar ons idee een vrij simpele, standaard L-vorm keuken maar toch lukt het maar niet om deze binnen ons budget van 20k te krijgen.

***members only***


We kiezen voor een composiet werkblad (hoogste prijsgroep), dat we tegen de wand achter de kookplaat laten doorlopen.

En de volgende apparatuur:
Siemens iQ700 EX807NX68E kookplaat met afzuiging
Siemens iQ700 CM976GKB1 oven
Siemens iQ300 KI96NSFD0 XL koelvriescombinatie
Siemens iQ300 SX73E806BE XL vaatwasser
Quooker Combi+ Fusion Round in Messing Patina

Wij zijn inmiddels bij meerdere keukenzaken geweest en vonden de de kleuren en de fronten van Nolte erg mooi. Verder voelden de scharnieren en geleiders ook allemaal goed en degelijk.

De eerste Nolte offerte bij een lokale keukenzaak kwam nét boven budget en we vonden de verkoopster niet geweldig (slordige tekening, drong haar ontwerpkeuzes aan ons op en kregen ook geen offerte of ontwerp mee of op de mail). Daarom een andere Nolte zaak geprobeerd, precies dezelfde keuken laten uitwerken (precies dezelfde apparatuur en merk + type blad) en daarna Budgetplan nog even via de mail geprobeerd en maar die kwamen stukken hoger uit.

Vervolgens, een vergelijkingsaanbod aangevraagd bij Möbel Faber (Duitsland). Wederom dezelfde apparatuur en blad, maar nu een Häcker concept130 keuken, die heb ik alleen nog niet in het echt gezien of gevoeld. Van Akzent (ook Duitsland) moeten we nog een offerte krijgen (merk: Rotpunkt).

Nolte offertes, alles incl. montage:

***members only***

Om een gevoel te krijgen bij de werkelijke kosten van de componenten in de keuken heb ik ook losse offertes voor de apparatuur en het blad opgevraagd:

***members only***
De gekozen Siemens apparatuur valt allemaal in de Studioline series. Siemens heeft 3 series: Studioline, extraKlasse, en regulier. Elke serie heeft zijn eigen verkoopkanaal. En door marketing en visuele verschillen, bijvoorbeeld een full zwart frontje, terwijl hardware technisch het dezelfde oven is als in de andere series, vragen ze een premium bedrag.

Kortom, je kan proberen om dezelfde apparatuur elders/buitenland (eventueel onder een andere product code) goedkoper te vinden. Laat je niet gek maken.

< dit stukje webruimte is te huur >


  • Eskiya
  • Registratie: September 2006
  • Laatst online: 16:18
Weet iemand hoe ik decolegno of egger kleuren/materialen in een standaard keukenmerk kan krijgen?

Bijv de keukeneiland in decolegno/egger en kastenwand Next125... Is dit bij alleen op maat gemaakte keukenboeren of kan ik deze combi ook bij een keukenboer geleverd krijgen dat merkkeukens verkoopt?

  • SquareOne
  • Registratie: Januari 2010
  • Laatst online: 16:57
Eskiya schreef op zaterdag 8 november 2025 @ 01:13:
Weet iemand hoe ik decolegno of egger kleuren/materialen in een standaard keukenmerk kan krijgen?

Bijv de keukeneiland in decolegno/egger en kastenwand Next125... Is dit bij alleen op maat gemaakte keukenboeren of kan ik deze combi ook bij een keukenboer geleverd krijgen dat merkkeukens verkoopt?
MadebyDas kan Decolegno leveren. Waarom voor de kastenwand specifiek next?

Verder zijn de fronten van veel fabrikanten van zegger plaatmateriaal, dat vertellen ze er alleen niet bij :).

  • Eskiya
  • Registratie: September 2006
  • Laatst online: 16:18
Next was als voorbeeld genoemd, zou ook net zo goed Nolte, Schüller, Häcker of een ander merk keuken icm DecoLegno kunnen worden. Ging meer als voorbeeld

  • XhaiKhaL
  • Registratie: Januari 2005
  • Laatst online: 31-03 21:21
aex351 schreef op zaterdag 8 november 2025 @ 01:00:
[...]

De gekozen Siemens apparatuur valt allemaal in de Studioline series. Siemens heeft 3 series: Studioline, extraKlasse, en regulier. Elke serie heeft zijn eigen verkoopkanaal. En door marketing en visuele verschillen, bijvoorbeeld een full zwart frontje, terwijl hardware technisch het dezelfde oven is als in de andere series, vragen ze een premium bedrag.

Kortom, je kan proberen om dezelfde apparatuur elders/buitenland (eventueel onder een andere product code) goedkoper te vinden. Laat je niet gek maken.
Klopt, de adviesprijzen van de studioLine apparatuur zijn inderdaad absurd, ik heb de apparatuur heel goed op specificaties vergeleken via de website van Siemens en neem bijv. een combioven met pyrolyse reiniging. Dan heb je qua specificaties 2 precies dezelfde producten: de iQ700 studioLine CM976GKB1 (adviesprijs €2409) die nu in ons lijstje staat, maar ook de iQ700 niet-studioLine CM776G1B1 (adviesprijs €2149, maar verkoopprijs bij Siemens zelf €1579). Dus op het eerste oog een prijsverschil van €830. Echter, met het opvragen van offertes voor de apparatuur was de goedkoopste offerte €1250 voor de studioLine en €1270 voor de niet-studioLine oven. De studioLine variant met de gewenste specificaties blijkt uiteindelijk dus de goedkoopste optie, erg ondoorzichtig allemaal.

Door specificaties en productcodes te vergelijken heb ik ook precies hetzelfde lijstje met Bosch (accent line) apparatuur kunnen samenstellen trouwens. Zelfs de adviesprijzen komen exact overeen, dus dat zullen intern ook precies dezelfde apparaten zijn, verwacht ik.

  • TweakGP
  • Registratie: December 2024
  • Laatst online: 10-02 11:53
BennieWolters schreef op vrijdag 7 november 2025 @ 21:19:
[...]
Met de oven en vriezer op die plek hebben we minder problemen, daar kom je toch minder per 'kooksessie'.
Vriezer boeit inderdaad minder…. Maar die oven zo ver weg vindt ik minstens net zo onpraktisch en zelfs wat gevaarlijk. Je kan nergens je spullen binnen een normale afstand neerzetten als je met iets als een overschaal aankomt.

Hoe zie je dat voor je. Je hebt je oven voorverwarmt, doet dan de deur open om er wat in te gaan zetten en moet je halve keuken door om het eerst te gaan halen…. Weg warmte.
En als je met een warme schaal loopt en er gaat iets mis dan kan je ook nergens snel wat kwijt. En dan moet je ook nog door een looproute heen.

Idealiter wil je ook je koude en warme apparaten wat scheiden. Lukt niet altijd maar een oven op 200graden naast je vriezer zorgt er wel voor dat die een stukje harder moet draaien. Kastje er tussen helpt al.

Als je toch voor het compromis moet gaan dan is het te overwegen om een oven te kiezen met een deur die naar de zijkant opengaat zodat je in ieder geval fatsoenlijk kan staan. En iets van een uittrekbare plank eronder zodat je in ieder geval iets kan neerzetten bij je oven. Of je vriezer links, een lage+bovenkast in het midden en je oven rechts.

[ Voor 25% gewijzigd door TweakGP op 08-11-2025 12:14 ]


  • Toke_gt
  • Registratie: Juni 2021
  • Laatst online: 31-03 22:01
TweakGP schreef op zaterdag 8 november 2025 @ 12:05:
[...]

Vriezer boeit inderdaad minder…. Maar die over zo ver weg vindt ik minstens net zo onpraktisch en zelfs wat gevaarlijk. Je kan nergens je spullen binnen een normale afstand neerzetten als je met iets als een overschaal aankomt.

Hoe zie je dat voor je. Je hebt je oven voorverwarmt, doet dan de deur open om er wat in te gaan zetten en moet je halve keuken door om het eerdt te gaan halen…. Weg warmte.
Zullen we dit niet overdrijven voor deze situatie? Er zijn twee werkbladen op max 1.3 m afstand. Je staat sowieso al niet met je neus tegen de oven aan, eerder minimaal 60 cm afstand. Je pakt de ovenschaal, draait een halve slag, doet evt een stap en zet het neer. Als je met het eten naar de eettafel loopt, ben je langer onderweg.
Ik zou hooguit de deur lastig vinden, maar dat hangt er wel vanaf of die vaak en vooral onverwacht wordt gebruikt.
Het is echt een misvatting dat je keuken pas goed functioneert als je alles vanaf 1 plek kunt bereiken. Gebruik de ruimte die je hebt, dat werkt veel prettiger.

[ Voor 11% gewijzigd door Toke_gt op 08-11-2025 12:18 ]


  • TweakGP
  • Registratie: December 2024
  • Laatst online: 10-02 11:53
Er wordt een mening gevraagd en in mijn optiek is een oven zonder een plek er vlakbij om iets neer te zetten gewoon een ontwerpfout. Tenminste als je meer doet dan de magnetron gebruiken.

  • Toke_gt
  • Registratie: Juni 2021
  • Laatst online: 31-03 22:01
TweakGP schreef op zaterdag 8 november 2025 @ 12:25:
Er wordt een mening gevraagd en in mijn optiek is een oven zonder een plek er vlakbij om iets neer te zetten gewoon een ontwerpfout. Tenminste als je meer doet dan de magnetron gebruiken.
Jij hebt het erover dat je de halve keuken doormoet en dat de oven of ovenschotel dan is afgekoeld. Dat bedoel ik met overdrijven.

  • BennieWolters
  • Registratie: November 2011
  • Laatst online: 15:12
TweakGP schreef op zaterdag 8 november 2025 @ 12:05:
[...]

Vriezer boeit inderdaad minder…. Maar die oven zo ver weg vindt ik minstens net zo onpraktisch en zelfs wat gevaarlijk. Je kan nergens je spullen binnen een normale afstand neerzetten als je met iets als een overschaal aankomt.

Hoe zie je dat voor je. Je hebt je oven voorverwarmt, doet dan de deur open om er wat in te gaan zetten en moet je halve keuken door om het eerst te gaan halen…. Weg warmte.
En als je met een warme schaal loopt en er gaat iets mis dan kan je ook nergens snel wat kwijt. En dan moet je ook nog door een looproute heen.

Idealiter wil je ook je koude en warme apparaten wat scheiden. Lukt niet altijd maar een oven op 200graden naast je vriezer zorgt er wel voor dat die een stukje harder moet draaien. Kastje er tussen helpt al.

Als je toch voor het compromis moet gaan dan is het te overwegen om een oven te kiezen met een deur die naar de zijkant opengaat zodat je in ieder geval fatsoenlijk kan staan. En iets van een uittrekbare plank eronder zodat je in ieder geval iets kan neerzetten bij je oven. Of je vriezer links, een lage+bovenkast in het midden en je oven rechts.
Rustaaaagh! Je punt was duidelijk O+
Toke_gt schreef op zaterdag 8 november 2025 @ 12:16:
[...]

Zullen we dit niet overdrijven voor deze situatie? Er zijn twee werkbladen op max 1.3 m afstand. Je staat sowieso al niet met je neus tegen de oven aan, eerder minimaal 60 cm afstand. Je pakt de ovenschaal, draait een halve slag, doet evt een stap en zet het neer. Als je met het eten naar de eettafel loopt, ben je langer onderweg.
Ik zou hooguit de deur lastig vinden, maar dat hangt er wel vanaf of die vaak en vooral onverwacht wordt gebruikt.
Het is echt een misvatting dat je keuken pas goed functioneert als je alles vanaf 1 plek kunt bereiken. Gebruik de ruimte die je hebt, dat werkt veel prettiger.
Dit inderdaad. De afstand tussen oven en aanrecht naast de kookplaat is ca. 1 meter. Dat is wat mij betreft goed genoeg.

Joe


  • Sb16
  • Registratie: November 2025
  • Laatst online: 25-11-2025
Hi, ik lees al eventjes mee. Wij zijn naar een aantal keukenwinkels geweest, waaronder keukensale, DB keukens, iKook. De wereld van de keukens is ons niet echt bekend en dit is de eerste keer dat we een keuken kopen. Ons budget is 10/13k. Ben benieuwd wat jullie denken van de offertes die we kregen. Nou ja offertes, we kregen er 1 per mail toegestuurd met 3D ontwerp en uitgeschreven welke apparatuur zodat we dit goed konden terug vinden. Bij de andere kregen we of een prijs doorgebeld of moesten we snel beslissen op basis van wat merken o.a. Bora inductie met inductie met afzuigsysteem.

We hebben een kleine U vormige keuken, we willen de wasmachine weg gewerkt hebben achter een kast in de keuken, elders in huis geen ruimte. We willen graag inductie met geïntegreerde afzuiging, een goede oven (Bosch/aeg), vaatwasser en koelvriescombinatie. Onze keuken is 3,20 bij 2x2 meter. Niet echt super groot dus. Ruimte voor 1 hoge kast waar de oven in kan, 2 hoek kasten en een lade kast onder de inductie plaat.

Eerste offerte: nobilia keuken, alles van etna: vaatwasser, oven, koelvriescombinatie, inductie en losse afzuigkap. Kunststof blad, Inclusief montage 11.400€.

Bij de tweede zaak: kregen geen offerte toe gestuurd, wachten nu nog op een telefoontje met een prijs voor een keuken, waarvan we niet precies weten welke apparatuur erin gaat. ETNA vaatwasser, Bosch oven maar geen inductie met geïntegreerde afzuiging dus een ouderwetse kap, kunststof blad. Ze kwamen met een prijs tussen 13-15k. Nobilia keuken.

Derde zaak: 12.500€ voor Nobilia keuken, Bora inductie met geïntegreerde afzuigsysteem, Siemens vaatwasser xl die ze nog achter hadden staan van een verkeerde levering, geen oven, Bosch koel vries combinatie met energielabel E, geen oven, kunststof blad. Wilden pas 3D ontwerp gaan maken als we daarna dan ook zouden tekenen. Natuurlijk niet gedaan en gezegd dat ze voor ons kunnen gaan tekenen en wij daarna wel kijken hoe of wat. Hij probeerde daarna toch nog te kijken of we vandaag 12.500€ gingen uitgeven bij hem zonder er verder nog even over na te denken. Jammer dat er zo wordt gepusht. Krijg er een vervelende nasmaak van.

Wat vinden jullie hiervan? Welke ervaringen zijn er, is dit een onwijs hoge prijs voor zo’n keuken? Wat mogen we verwachten met zo’n budget?

  • Ray77d
  • Registratie: November 2024
  • Laatst online: 23-02 08:56
Ik zou graag wat advies ontvangen om de knoop door te kunnen hakken.

Wij zijn nu naar 3 zaken geweest voor een keukenontwerp en prijs:

1) Kvik: de verkoper was erg lui en begon met een verkeerde basisruimte, dus muur rechts en links waren in de tekening gespiegeld. Hij wilde dit niet aanpassen omdat het voor de prijs niet uitmaakt. Ontwerp was uiteindelijk ook om te huilen, geen enkele symmetrie. Totale kosten incl. apparatuur 21K

2) I-kook: Leuke enthousiaste verkoper en dacht goed met ons mee. We hadden specifiek om een Häcker keuken gevraagd maar hij werkte liever eerst een Nobilia variant uit omdat hij alle codes daarvan wist...
Uiteindelijk zou de prijs rond de 20K uitkomen maar wilde geen offerte meegeven omdat we vertelden dat we eerst nog verder wilden kijken. Prijs voor Häcker uitvoering zou nog wat hoger komen te liggen. Dus 20-21K

2) DMG merk: Hier langs geweest omdat vorige keuken hier ook vandaan kwam via een bevriende monteur. Helaas wel alle DMG trucjes op ons losgelaten maar aangezien ik zelf handelaar ben en vroeger inkoper ben geweest heb ik alle valstrikken weten te omzeilen. Werd er wel beetje chagrijnig van...
Maar goed, uiteindelijk kwam de prijs voor een Häcker keuken op 20,5K.

Maar nu de crux: we hebben gevraagd het werkblad van kunststof te upgraden naar 20mm composiet met marmer look en zo te zien komt deze van Lion Stone. Het gaat om zo'n 4 strekkende meters in totaal, in U vorm.
De meerprijs is €2.750 om van kunststof naar composiet te gaan.

Weet iemand wat de prijs van 20 mm composiet bladen per strekkende meter zijn?
Ik zie op Internet prijzen van 300-400-500-600-700 .....

[ Voor 0% gewijzigd door Ray77d op 08-11-2025 22:13 . Reden: Aanvulling ]


  • Samwise123
  • Registratie: November 2025
  • Laatst online: 26-03 22:52
Hi allen,

Sinds kort volg ik dit topic aandachtig. We hebben laatst een opknappertje gekocht en zijn druk bezig met een keuken. Nu hebben we laatst een aanbieding gehad voor een Nobilia keuken voor 21250 na onderhandeling. Ze waren gestart op 32000, maar brachten het zelf al terug via kortingen naar 24000. We zijn erg benieuwd naar jullie visie op hoe duur deze keuken eigenlijk zou moeten kosten. Ik weet dat Nobilia was goedkoper en basic is, maar de apparatuur is wel van goede kwaliteit (Bosch, Quooker). Let op, hier zit nog niet de koelkast bij, omdat we een specifieke op het oog hebben en die we dus zelf willenn aanschaffen. Ook is de 3D tekening nog met een groter eiland, die met het kleinere eiland moeten we nog ontvangen. We zijn erg benieuwd hoe jullie er tegenaan kijken!

Afbeeldingslocatie: https://tweakers.net/i/SHxESrsIGrZpE8boBM7sxRiBiyQ=/x800/filters:strip_icc():strip_exif()/f/image/AopcJEM1vvDKGV2iSaZ661ry.jpg?f=fotoalbum_large

  • UltraInstinct
  • Registratie: November 2017
  • Laatst online: 13:29
Samwise123 schreef op zondag 9 november 2025 @ 11:45:
Hi allen,

Sinds kort volg ik dit topic aandachtig. We hebben laatst een opknappertje gekocht en zijn druk bezig met een keuken. Nu hebben we laatst een aanbieding gehad voor een Nobilia keuken voor 21250 na onderhandeling. Ze waren gestart op 32000, maar brachten het zelf al terug via kortingen naar 24000. We zijn erg benieuwd naar jullie visie op hoe duur deze keuken eigenlijk zou moeten kosten. Ik weet dat Nobilia was goedkoper en basic is, maar de apparatuur is wel van goede kwaliteit (Bosch, Quooker). Let op, hier zit nog niet de koelkast bij, omdat we een specifieke op het oog hebben en die we dus zelf willenn aanschaffen. Ook is de 3D tekening nog met een groter eiland, die met het kleinere eiland moeten we nog ontvangen. We zijn erg benieuwd hoe jullie er tegenaan kijken!

[Afbeelding]
Als ze van 32.000 naar 24000 zakken zou ik al snel wegwezen

  • Midan
  • Registratie: September 2022
  • Laatst online: 29-03 20:37
Hulliee schreef op vrijdag 7 november 2025 @ 16:06:
[...]


Klopt, er is een software update geweest die dat heeft toegevoegd op het schermpje. Je kon deze stand alleen via de app gebruiken voorheen.
Ik heb een bakplaat voor de airfyer: heeft sleuven voor de hete lucht maar niet te groot zodat de friet/patat er niet doorheen valt.
En werkt het volgens uw ervaring net zo goed als een losse airfryer? Dat zou ideaal zijn, want ik was eigenlijk van plan er één te kopen — maar misschien is dat dan niet eens nodig.

  • Hulliee
  • Registratie: November 2008
  • Niet online
Midan schreef op maandag 10 november 2025 @ 14:27:
[...]

En werkt het volgens uw ervaring net zo goed als een losse airfryer? Dat zou ideaal zijn, want ik was eigenlijk van plan er één te kopen — maar misschien is dat dan niet eens nodig.
Geen idee, ik heb geen losse AirFryer. Ik zou zeggen probeer de stand uit; een losse AirFryer kopen kan altijd nog.

  • ViezeVis
  • Registratie: Juni 2012
  • Laatst online: 31-03 21:47

ViezeVis

Sample Text

SquareOne schreef op dinsdag 2 januari 2024 @ 15:03:
[...]


Heb je ook een soortgelijke opstelling in NL bij een keukenzaak uit laten rekenen?
Signalen in dit topic afgelopen 1,5 jaar zijn dat je voor de prijs niet meer naar Duitsland hoeft. Maar kan natuurlijk weer omgedraaid zijn.
Weet iemand hoe dit vandaag de dag is?
Laatst kwam ik in dit topic ook een bericht tegen dat er een keukenzaak was net over de grens die Nederlands spreken. Met wat zoekresultaten kwam ik bij Ekelhoff uit maar dat schijnt al van een tijdje terug te zijn.

Seat Leon 5F Howto's & Retrofits | Eigen KPN router topic


  • Toke_gt
  • Registratie: Juni 2021
  • Laatst online: 31-03 22:01
Midan schreef op maandag 10 november 2025 @ 14:27:
[...]

En werkt het volgens uw ervaring net zo goed als een losse airfryer? Dat zou ideaal zijn, want ik was eigenlijk van plan er één te kopen — maar misschien is dat dan niet eens nodig.
Een airfryer doet toch hetzelfde als een heteluchtoven? Het verschil is vooral het volume, zou ik denken. Daardoor is een airfryer sneller en energiezuiniger, en volgens de tests daardoor krokanter. In een oven valt dat voordeel weg. Ik zou het gewoon eens proberen en kijken wat je ervan vindt. Bevalt het niet, kun je altijd nog een airfryer halen.

  • Pizzaman
  • Registratie: December 2000
  • Niet online

Pizzaman

16:00 Cup-a-soup.

Ik merk dat het toch best lastig is om goede (objectieve) informatie te krijgen.
Nu drie offertes liggen. Eentje wordt hem niet.

Nummer twee offreert Ballerina en nummer drie Rotpunkt. Als ik de verschillen wil zoeken is dat echt heel lastig.

Iemand die dit weet?

  • WAF1
  • Registratie: Januari 2024
  • Laatst online: 30-03 22:26
Midan schreef op vrijdag 7 november 2025 @ 11:42:
Ik merk ineens dat mijn Siemens HM936GCB1-oven een airfryer-optie op het scherm heeft. Waarschijnlijk is dit via een update toegevoegd. Heb ik hiervoor een speciale bakplaat nodig?
Wij waren maanden terug in het inspiratiehuis en die optie zou inderdaad aan de Siemens toegevoegd worden. Je hebt er een speciale baklplaat voor nodig, ik dacht een grote plaat met gaatjes. (Bosch had de functie al en op hun site stond ook de bakplaat.) De kok (demostratie) gaf echter aan dat hij die functie zou afraden. Er waren betere functies op de oven, met een beter resultaat te krijgen, dan had je odie extra bakplaat dus niet nodig. Ik heb mijn aantekeningen niet bij de hand, maar ik denk dat hij liever de hetenluchtstand en de grill gebruikte. Maar de algemene boodschap was met een beetje stoom wordt alles beter. Stand 2 is voor een beginner meestal goed.

Afhankelijk van hoeveel ovens je in je keuken hebt, kan een losse airfryer nog steeds handig zijn, maar niet per se nodig.

En zo'n grote plaat met gaatjes kan ook handig zijn als je bijv. vis of veel groente wil stomen. Tip: Hang bij het stomen wel de gewone bakplaat onder in je oven om vocht op te vangen. Scheelt heel veel schoonmaakwerk.

ZH, hoekwoning, 120 m3, bouwjaar 1993, enkele Quatt, hr++ glas, radiatoren, op planning na isoleren vloer, zonnepanelen, plat dak, snel warm is huis.


  • Toke_gt
  • Registratie: Juni 2021
  • Laatst online: 31-03 22:01
Pizzaman schreef op maandag 10 november 2025 @ 23:21:
Ik merk dat het toch best lastig is om goede (objectieve) informatie te krijgen.
Nu drie offertes liggen. Eentje wordt hem niet.

Nummer twee offreert Ballerina en nummer drie Rotpunkt. Als ik de verschillen wil zoeken is dat echt heel lastig.

Iemand die dit weet?
Er zijn geen grote verschillen tussen deze twee in kwaliteit. Rotpunkt heeft iets meer oog voor design, Ballerina eerder de degelijkheid. Kijk dus vooral naar wat je mooier vindt of kies voor de laagste prijs. Soms zit het in de manier waarop details als binnenlades zijn afgewerkt of in de bredere keuze van materialen. Maar ze zijn allebei goed.

  • -Muncky-
  • Registratie: Juni 2010
  • Laatst online: 27-03 20:02
Vraag; ik heb nu in onze keuken een inbouwoven en losse inbouwmagnetron van ATAG. Onze keuken is ruim 13 jaar oud dus erg fancy zijn deze apparaten niet meer. Ik ben aan het overwegen om deze te vervangen voor nieuwe apparaten.
Wat is wijsheid? 1 op 1 vervangen door een nieuwe oven en magnetron (zelfde principe) of andere samenstelling?
Ik neig naar apparatuur van Siemens: IQ700 serie bakoven met een IQ700 serie magnetron. Of toch een IQ700 stoomoven met magnetron? Wat is handig..
Ook Miele ben ik aan het bekijken, maar misschien een beetje overkill qua prijs e.d. gezien waar we vandaan komen.

Huidige apparaten:
-OX6211 (60x60cm BxH) https://support.atag.nl/s...ntatie-oven-ox6211buu-a02
-MA4211 (60x45cm BxH) https://support.atag.nl/s...tions/folders/77000304214

  • Highintensity
  • Registratie: Mei 2022
  • Laatst online: 16:44
Inmiddels een stukje verder met de indeling. Zeer waarschijnlijk gaan we voor de indeling met keuken aan de ruimere kant. Een L, U of parallel opstelling lijkt hier niet werkbaar. Daarnaast hebben we een voorkeur voor eiland. Dus we neigen naar het volgende.

Afbeeldingslocatie: https://tweakers.net/i/hKIMJprO5lckyzj3mdwndrln3ag=/800x/filters:strip_icc():strip_exif()/f/image/XOirPcyZAj1cQk4hBdtLgbwZ.jpg?f=fotoalbum_large

In verband met de uitbouw (de m²'s reeds toegevoegd) waarbij er in de muur onderin een sprongetje van 10cm naar binnen toe zal zijn, klopt de maat bij die muur niet helemaal. Daar is iets meer ruimte dan wat nu ingetekend is. Op het smalste punt waar de tafel en eiland achter elkaar komen, zal de afstand van eiland tot muur 2.8 meter zijn. De loopdeur zal links zijn. De afstand tussen eiland en rechter tuindeur is 1 meter (25cm verspringing i.v.m. kozijn in plaats van muur).

Het idee is een indeling met tegen de wand (435cm) aan:
1x 60cm hoge ovenkast
1x 60cm hoge vriezer
1x 60cm hoge koelkast
1x 60cm hoge voorraadkast (al dan niet met lades)
1x 60cm vaatwasser lage kast
1x 120cm spoelkast (mede om de kraan/spoelbak dichter tegen de rechter wand aan te houden, om links ervan voldoende ruimte over te houden.
We zijn er nog niet uit of we boven de 180cm lage kasten ook nog (ondiepe) hoge kasten willen, of of we het bij een plankje houden. 15cm aan loze ruimte/tussenstukjes.

Op het eiland willen we het rechtse deel als bar gebruiken middels ronde overhang van het blad á 35/40cm. Omdat het rond is zal de afstand tussen de hoeken van de muren ook wat groter worden dan wat er nu staat. De bar zal vrijwel nooit tegelijk met eettafel gebruikt worden.

Eiland indeling van links naar rechts:
30 cm apothekerskast
90 cm ladekast - kookplaat met afzuiging
80cm ladekast
35/40cm overhang

Andere kant eiland 2x 100cm ladekasten.

Hieronder een afbeelding om er een beeld bij te geven. Hier waren we nog uitgegaan van 3 hoge kasten in plaats van 4. Daarnaast was hier het eiland ingetekend als 270x110, dat passen we aan naar 235/240x100.

Afbeeldingslocatie: https://tweakers.net/i/n7U5dr4S298XIlM3BcwJV7Vtoks=/800x/filters:strip_icc():strip_exif()/f/image/rQWVhDXHAYn3iqtospojgbhq.jpg?f=fotoalbum_large


Dit ontwerp is tot stand gekomen naar aanleiding van een adviesgesprek bij ASWA. In de basis lijkt het ons een prima ontwerp, maar we zijn op zoek naar tips en ideeën om de indeling te optimaliseren. Daarnaast ben ik benieuwd of jullie issues zien met doorloopruimtes etc. We zijn ons ervan bewust dat de ruimte niet heel uitgebreid is tussen eiland en tafel. We hopen daar wat te winnen door een eetbank te gebruiken in plaats van stoelen. De stoelen aan de andere kant zullen minimaal gebruikt worden, dus 90% van de tijd verwachten we geen issues met de doorloopruimte daar. Een kleine bar lijkt ons leuk om te hebben en verwachten daar vooral te zitten om even snel wat te drinken - in de meeste gevallen zal dat één persoon zijn, in enkele gevallen met gezelschap van een tweede persoon.

Daarnaast ben ik benieuwd wat jullie van de prijs vinden. Gebaseerd op silverline (pronorm) komt de prijs voor dit alles uit op bijna €26.000, inclusief installatie. Daarvan €7.200 voor apparatuur (Quooker 7l, Siemens IQ300/IQ500 apparatuur) en €5.500 voor composiet werkblad in uitvoering 'taj royale gepolijst 2cm' op eiland + werkruimte aan de wand + de achterwand. Melamine frontjes.

  • BRS93
  • Registratie: November 2025
  • Laatst online: 11-11-2025
.

[ Voor 99% gewijzigd door BRS93 op 11-11-2025 18:56 ]


  • XhaiKhaL
  • Registratie: Januari 2005
  • Laatst online: 31-03 21:21
XhaiKhaL schreef op vrijdag 7 november 2025 @ 10:44:
[...]


Ik zie in de recente berichten wat vragen (maar helaas geen antwoorden) rondom de kwaliteit van een aantal merken voorbij komen waar wij ook interesse in hebben dus ik hoop dat er toch iemand is die wat vergelijkingen kan maken rondom een aantal van deze merken.

Wij vonden de de kleuren en de fronten van Nolte erg mooi. Verder voelden de scharnieren en geleiders in de showrooms ook allemaal goed en degelijk. Alleen viel de keuken met onze wensen bij verschillende Nolte zaken helaas steeds boven ons budget, idem voor Ballerina. Inmiddels hebben we via de mail een interessante offerte voor een Häcker concept130 keuken maar dat hebben we nog in het echt gezien en gevoeld.

Hoe verhouden deze merken/lijnen zich tot elkaar, in de OP staan ze allemaal in het middensegment genoemd:
  • Ballerina
  • Häcker systemat
  • Hacker concept130
  • Nolte
  • Rotpunkt
Dus hoe zit het met de scharnieren, geleiders en corpuskwaliteit (en andere zaken waar ik nu niet aan denk) tussen deze merken? Ook is het me niet echt duidelijk waar de systemat en concept130 lijnen van Häcker in verschillen en of je met concept130 ook inlevert op bepaalde kwaliteitsaspecten.
Nog even een bumpje van deze, is er iemand die enkele van deze merken kan vergelijken? :)

  • Pizzaman
  • Registratie: December 2000
  • Niet online

Pizzaman

16:00 Cup-a-soup.

Nou,

Om ook maar eens de offerte te delen; dit is de offerte waar wij het beste gevoel bij hebben. Ik heb ter referentie ook bij een andere keukenzaak deze configuratie laten maken en deze is ongeveer 2000 euro goedkoper. Alleen minder goed gevoel, minder fijn geholpen, basisafspraken niet nakomen en ook foutjes in de offerte die ik er zelf uit moest vissen.

Twijfel zit hem voor mij nu nog in de kookplaat + afzuiging. Ik lees zoveel verschillende verhalen. Daar moet ik mij nog in verdiepen.
Members only:
Alleen zichtbaar voor ingelogde gebruikers. Inloggen
Afbeeldingslocatie: https://tweakers.net/i/8Br3NZdeHkFWEJ_8SNAjeJ77Yok=/x800/filters:strip_icc():strip_exif()/f/image/pKU94iKb8Sm3wCXCKzYVMTk9.jpg?f=fotoalbum_large

Afbeeldingslocatie: https://tweakers.net/i/KHUPK5ZkS3NfD_369UwZKFxCnZY=/x800/filters:strip_icc():strip_exif()/f/image/as8OnLFjOclUCc1I5Sveypf9.jpg?f=fotoalbum_large

Afbeeldingslocatie: https://tweakers.net/i/mEAS-ySC_uaUIc9H96hirJJSiJQ=/x800/filters:strip_icc():strip_exif()/f/image/7oi1dUkLtP9fEL3XD4imA8mI.jpg?f=fotoalbum_large

Afbeeldingslocatie: https://tweakers.net/i/BiD3nODCY_51ScrvK7IhL9EggCc=/x800/filters:strip_icc():strip_exif()/f/image/tK1CzdGfPdgtlerJas87JAlL.jpg?f=fotoalbum_large

Afbeeldingslocatie: https://tweakers.net/i/4YpcuQRBK1AOpYEmP7W8aNeBSt4=/x800/filters:strip_icc():strip_exif()/f/image/EEfck1J5cASSMdrGWSRCGjSC.jpg?f=fotoalbum_large
Afbeeldingslocatie: https://tweakers.net/i/9VBdhOuN1jsAFYU2jjr_-LYiZzg=/800x/filters:strip_icc():strip_exif()/f/image/NqsbVp99xDXX3Mv7dbrYZ1yg.jpg?f=fotoalbum_large


Ben benieuwd naar jullie gedachten?

  • Johndoe007
  • Registratie: Oktober 2015
  • Laatst online: 18-02 01:23
Pizzaman schreef op dinsdag 11 november 2025 @ 21:36:
Nou,

Om ook maar eens de offerte te delen; dit is de offerte waar wij het beste gevoel bij hebben. Ik heb ter referentie ook bij een andere keukenzaak deze configuratie laten maken en deze is ongeveer 2000 euro goedkoper. Alleen minder goed gevoel, minder fijn geholpen, basisafspraken niet nakomen en ook foutjes in de offerte die ik er zelf uit moest vissen.

Twijfel zit hem voor mij nu nog in de kookplaat + afzuiging. Ik lees zoveel verschillende verhalen. Daar moet ik mij nog in verdiepen.

***members only***

[Afbeelding]

[Afbeelding]

[Afbeelding]

[Afbeelding]

[Afbeelding]
[Afbeelding]


Ben benieuwd naar jullie gedachten?
Mooi! Lijkt alsof jullie all-in zijn gegaan en alle wensen erin kwijt kunnen. Had je budget dit ook in gedachten? Of werd dat (eerst) gevraagd door de keukenboer?

  • Pizzaman
  • Registratie: December 2000
  • Niet online

Pizzaman

16:00 Cup-a-soup.

Johndoe007 schreef op dinsdag 11 november 2025 @ 22:47:
[...]


Mooi! Lijkt alsof jullie all-in zijn gegaan en alle wensen erin kwijt kunnen. Had je budget dit ook in gedachten? Of werd dat (eerst) gevraagd door de keukenboer?
Klopt, dat was het uitgangspunt voor onzelf; we beginnen met al onze wensen en als het echt te gek wordt schalen we af. Dat lijkt nu niet echt nodig. We wilden er max. 30.000 euro aan uitgeven.

Bij intake wel aangegeven wat onze range ongeveer was (tussen 20k en 30k). Keukenzaak begon in eerste instantie met de ‘goedkope’ lijn kastjes, maar daar konden wij onze wensen niet in kwijt. Hij gaf toen globaal het prijsverschil aan en zo hebben we zelf de afweging kunnen maken. Ook nog de allerduurste variant kastjes bekeken, maar daar zagen we het voordeel niet van. Gaf een fijn gevoel.

Zelfde bij de apparaten; had zelf al aardig wat huiswerk gedaan (behalve kookplaat) en we hebben het ook samen zo opgebouwd. Daarna nog wat kleine tips van de keukenzaak (afvalbak bijv).

Blad ‘gewoon’ gekozen wat we mooi vonden eigenlijk.

  • Rell
  • Registratie: Februari 2022
  • Laatst online: 31-03 21:27
Pizzaman schreef op dinsdag 11 november 2025 @ 22:59:
[...]


Klopt, dat was het uitgangspunt voor onzelf; we beginnen met al onze wensen en als het echt te gek wordt schalen we af. Dat lijkt nu niet echt nodig. We wilden er max. 30.000 euro aan uitgeven.

Bij intake wel aangegeven wat onze range ongeveer was (tussen 20k en 30k). Keukenzaak begon in eerste instantie met de ‘goedkope’ lijn kastjes, maar daar konden wij onze wensen niet in kwijt. Hij gaf toen globaal het prijsverschil aan en zo hebben we zelf de afweging kunnen maken. Ook nog de allerduurste variant kastjes bekeken, maar daar zagen we het voordeel niet van. Gaf een fijn gevoel.

Zelfde bij de apparaten; had zelf al aardig wat huiswerk gedaan (behalve kookplaat) en we hebben het ook samen zo opgebouwd. Daarna nog wat kleine tips van de keukenzaak (afvalbak bijv).

Blad ‘gewoon’ gekozen wat we mooi vonden eigenlijk.
Welke tips heb je gekregen voor de afvalbak? Zou je die hier willen delen?

  • Maatjewerkt
  • Registratie: November 2025
  • Laatst online: 10:26
-Muncky- schreef op dinsdag 11 november 2025 @ 11:43:
Vraag; ik heb nu in onze keuken een inbouwoven en losse inbouwmagnetron van ATAG. Onze keuken is ruim 13 jaar oud dus erg fancy zijn deze apparaten niet meer. Ik ben aan het overwegen om deze te vervangen voor nieuwe apparaten.
Wat is wijsheid? 1 op 1 vervangen door een nieuwe oven en magnetron (zelfde principe) of andere samenstelling?
Ik neig naar apparatuur van Siemens: IQ700 serie bakoven met een IQ700 serie magnetron. Of toch een IQ700 stoomoven met magnetron? Wat is handig..
Ook Miele ben ik aan het bekijken, maar misschien een beetje overkill qua prijs e.d. gezien waar we vandaan komen.

Huidige apparaten:
-OX6211 (60x60cm BxH) https://support.atag.nl/s...ntatie-oven-ox6211buu-a02
-MA4211 (60x45cm BxH) https://support.atag.nl/s...tions/folders/77000304214
Ik heb zelf een 60cm bakoven met magnetronfunctie uit de IQ700 serie en na 6 jaar nog steeds super tevreden! In jouw geval zou ik kiezen voor een 45cm stoomoven en 60cm bakoven met magnetron. Stoomgerechten kunnen qua afmeting prima in een 45cm oven en dan kan je de 60cm oven gebruiken voor de rest van de gerechten. Daarnaast heb je de mogelijkheid om bijv. een gestoomde vis heel even af te grillen.
De telescopische geleiders zijn top en de pyrolyse functie is ideaal om de oven makkelijk schoon te houden.

  • -Muncky-
  • Registratie: Juni 2010
  • Laatst online: 27-03 20:02
Pizzaman schreef op dinsdag 11 november 2025 @ 21:36:
Nou,

Om ook maar eens de offerte te delen; dit is de offerte waar wij het beste gevoel bij hebben. Ik heb ter referentie ook bij een andere keukenzaak deze configuratie laten maken en deze is ongeveer 2000 euro goedkoper. Alleen minder goed gevoel, minder fijn geholpen, basisafspraken niet nakomen en ook foutjes in de offerte die ik er zelf uit moest vissen.

Twijfel zit hem voor mij nu nog in de kookplaat + afzuiging. Ik lees zoveel verschillende verhalen. Daar moet ik mij nog in verdiepen.

***members only***

[Afbeelding]

[Afbeelding]

[Afbeelding]

[Afbeelding]

[Afbeelding]
[Afbeelding]


Ben benieuwd naar jullie gedachten?
Heb even snel de Siemens oven/magnetron typnrs gegoogled en kom bijv. de HB776G1B1 al tegen voor minder dan E1000,-. Ik zou nog even goed onderzoek doen naar de apparaten..

  • nooberke
  • Registratie: Februari 2009
  • Laatst online: 08:55
Pizzaman schreef op dinsdag 11 november 2025 @ 21:36:


Ben benieuwd naar jullie gedachten?
Je apparatuur is erg duur, moet echt nog wel wat van af kunnen. Zelfs Siemens zelf vraagt minder voor die oven 8)7

  • Johndoe007
  • Registratie: Oktober 2015
  • Laatst online: 18-02 01:23
Hoe staan de keukenboeren hierin? Het is een feit dat het apparatuur goedkoper is, maar ze moeten er natuurlijk ook op verdienen. Kun je de prijzen (van bijv. de Siemens-site) daar op tafel leggen?

  • TFBlitzwing
  • Registratie: Augustus 2011
  • Laatst online: 28-03 19:24
Johndoe007 schreef op woensdag 12 november 2025 @ 13:50:
Hoe staan de keukenboeren hierin? Het is een feit dat het apparatuur goedkoper is, maar ze moeten er natuurlijk ook op verdienen. Kun je de prijzen (van bijv. de Siemens-site) daar op tafel leggen?
Ik ben hier ook wel benieuwd naar: wij hebben komende weken wat afspraken staan voor het ontwerpen van een keuken (Keukencoach en DB) maar we kunnen Siemens apparatuur tegen inkoopsprijs krijgen via een ander kanaal. Gaan keukenboeren moeilijk doen als je je apparatuur ergens anders vandaan haalt? Wat is jullie ervaring?

"I tried being reasonable, I didn't like it"


  • Lieuwe15
  • Registratie: Januari 2004
  • Laatst online: 16:46
Bij onze keuken (eigenhuis) hebben ze gelijkwaardige apparatuur (ik had de normale lijn van bosch uitgekozen en zij leveren studioline van siemens) geoffreerd voor dezelfde prijs als de door mij uitgekozen bosch prijs. Althans zo leek het (of ze hebben meer marge van de kasten afgehaald). Dus al met al een totaalprijs waar wij tevreden mee waren.
Het was ook volledig mogelijk om de apparatuur zelf te bestellen en installeren.

Mijn ervaring is dus dat keukenboeren er niet zoveel problemen mee hebben (tenzij daar echt hun volledige marge ligt).

  • tjubbie
  • Registratie: Augustus 2023
  • Laatst online: 09:17
Johndoe007 schreef op woensdag 12 november 2025 @ 13:50:
Hoe staan de keukenboeren hierin? Het is een feit dat het apparatuur goedkoper is, maar ze moeten er natuurlijk ook op verdienen. Kun je de prijzen (van bijv. de Siemens-site) daar op tafel leggen?
Als ze meer vragen dan de adviesprijs op de website van bijvoorbeeld Siemens dan zijn hun winsten exorbitant. Siemens zet namelijk geen inkoopprijzen op de website 😄
Pagina: 1 ... 528 ... 539 Laatste

Let op:
Dit topic kan gebruikt worden voor het volgende:
• Vragen over de keuken, denkend aan indeling, materialen, kastjes, apparatuur, etc.
• Welke kastjes, aanrechtbladen en apparatuur te kiezen
• Ervaringen met verkopers en keukenboeren
• Tips & Tricks denk hierbij aan hulp bij het zelf installeren en onderhouden van de keuken.
• Jouw indeling. Plaats gerust een foto of tekening, maar maak het niet te bont met hele buildlogs.

Voor badkamers: Het Badkamer topic: verkopers, kwaliteit, prijs - Deel 1
Showen met je keuken kan hier: Tweakers Keuken showroom! - Vestiging 1