Zit al een paar maanden dit topic te lurken, omdat we volgende week de sleutel krijgen van onze nieuwe woning waar onder andere een nieuwe keuken in komt. De huidige keuken is nu nog gesloten, maar zal worden opgebroken om een open keuken met eiland(je) te maken. Met een basisidee voor onze eerste keuken zijn we naar 2 keukenboeren geweest om dit verder uit te werken.
We zijn bij Superkeukens en Bemmel & Kroon geweest. Onze ervaringen tot nu toe:
Superkeukens: Op zich prima en vriendelijk geholpen, maar echt meedenken over hoe we bijvoorbeeld de hoekkast slim kunnen indelen was er niet bij. Het was een beetje: Alles kan, wat willen jullie? Uiteindelijk een Schuller keuken samengesteld waar we qua fronten (mat lak, zandgrijs) en blad (keramiek, glem white) tevreden mee zijn, maar qua indeling (hoek wordt zo niet goed benut door halfdiepe kast, kast boven kookplaat niet echt mooi) en apparaten (de tijd was op en hij zou zelf wel even wat apparaten kiezen, maar dat was allemaal wat mindere kwaliteit dan we hadden gevraagd, waarschijnlijk om de prijs te drukken).
Uiteindelijk een niet-gespecificeerde offerte ontvangen voor ruim 18K. Dat is met instap Electrolux koelvries combi, AEG oven en magnetron, instap Bosch vaatwasser en Quooker en excl installatie en Bosch kookplaat met afzuiging die hij "voor een appel en een ei" kon krijgen vanwege blokkorting.
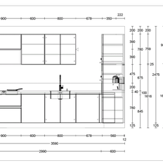
Bemmel&Kroon: Na meerdere goede ervaringen van vrienden en collega's hier een afspraak gemaakt en erg gecharmeerd geraakt van de geïntegreerde grepen van de Pronorm Y-line. De verkoper nam echt de tijd om alles uit te leggen en te laten zien en had een aantal goede voorstellen. Zoals een reguliere afzuigkap waardoor we veel meer ruimte over houden in de lades onder kookplaat. Afzuiging naar buiten is voor ons een must, daarom zat de kookplaat vlak bij de muur. Daarnaast zorgt dit volgens deze verkoper condensatie omdat hij tegen een een muur zit. Ook voor het hoek had hij een erg mooie oplossing bedacht met houten planken wat veel ruimtelijker oogt en ook praktisch is.
In overleg ook aantal andere keuzes gemaakt: Blad composiet (Dekker Calagata Gold) ipv keramiek, kunststof fronten ipv gelakt (we hebben 2 jongen kinderen en die fietsen/rijden/krassen nogal ergens eens tegenaan. Kunststof zou daar wat beter tegen kunnen. De prijs wisten we nog niet, maar we hebben een goed gevoel bij deze zaak en willen nu wel heel graag die Y-line
Offerte is inmiddels binnen:
- Pronorm Y-line, Melamine toplaag kleur steengrijs, Protech 2.0 lades
- Blad Dekker keramiek Glem White (wordt nog aangepast naar Composiet Calagata Gold, maar zit in zelfde prijsgroep volgens verkoper)
- Inductiekookplaat Siemens iQ700 EX875LVB1E
- Vlakschermafzuigkap Siemens iQ300 LI97SA531
- Oven 60cm Siemens IQ700 HB934GAB1
- Combi 45cm Siemens IQ700 CM936G1B1
- Koel/vriescombinatie (extra hoog) Siemens IQ300 KI96NSFD0
- Vaatwasser Siemens SN65YX00CE (Zeolith is een eis)
- Quooker Combi+ Zwart + zeeppomp
- Spoelbak Maris MRG 210/110-52
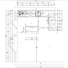
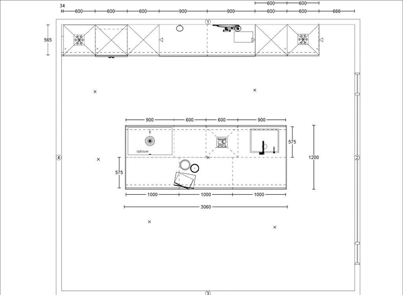
Plaatjes (vanuit deze hoek alleen geprinte versie):
Prijs van die alles is nu 23K (inclusief de huidige actie van 15% korting en + een TV (wat moet je ermee?

). Dit vonden we voor ons gevoel aan de hoge kant, maar lijkt wel redelijk in lijn met wat ik hier voorbij zie komen.
De 2 offertes met elkaar vergelijken is natuurlijk niet meer relevant, want we willen sowieso voor Pronorm gaan dus heeft weinig zin om SK de offerte aan te laten passen.
Aanstaande vrijdag een vervolgafspraak bij B&K om de puntjes op de i te zetten. Hebben jullie nog suggesties om mee te nemen naar het gesprek?:
- Hebben we nog slimme ideeën qua indeling over het hoofd gezien? We willen voldoende ruimte houden voor de eettafel, dus daarom is de bar zo ondiep (60 cm) en smal (we willen er aan beide kanten langs kunnen en aan de raamkant de prullenbak kwijt kunnen)
- B&K geeft aan dat we beter zelf de planken inclusief verlichting aan kunnen leveren, want stuk goedkoper en echt eiken ipv kunststof. Wat mij betreft prima, is het logisch dat zij deze dan wel monteren?
- We vinden mat gelakte fronten wel mooier dan kunststof, maar is dit nu echt zo krasgevoeliger? Uiteraard is dit lastig in te schatten, maar heb ook ergens het idee dat de verkoper kunststof promoot omdat hij anders te ver van de prijs van SK af ligt (die prijs hebben we gedeeld.
- Qua apparatuur nog optimalisatie mogelijk in ongeveer gelijke prijsrange?
Exacte maten weten we pas als de doorbraak gereed is, maar voor die tijd willen we wel alles "ready to order" hebben omdat we anders waarschijnlijk de eerste paar weken zonder keuken zitten. Wij vinden het in ieder geval mooi worden en zijn benieuwd of jullie nog suggesties of feedback hebben