Acties:
  • 0 Henk 'm!

  • kingmenno
  • Registratie: April 2009
  • Laatst online: 10-10 10:43
japiesa schreef op maandag 25 maart 2024 @ 20:32:
[...]


Ik heb deze kookplaat IG800FIB en moet zeggen dat ik goed tevreden ben. Heb deze kookplaat op aanraden van het keukenbedrijf laten installeren was eerst ook sceptisch omdat er online weinig te vinden is. Moet zeggen dat ik niet veel ervaring met verschillende kookplaten heb. De monteur vertelde mij wel dat er bij een andere klant wel problemen waren met de kookplaat maarja dat kan natuurlijk ook stom toeval zijn. Tot nu toe bevalt het prima
Goed te horen... ik twijfel enorm. Ik zal er nog wat nachtjes over slapen....

Heb je deze met plasmafilter?

bedankt!

Acties:
  • 0 Henk 'm!

  • japiesa
  • Registratie: April 2011
  • Laatst online: 07-10 07:56
kingmenno schreef op maandag 25 maart 2024 @ 20:47:
[...]


Goed te horen... ik twijfel enorm. Ik zal er nog wat nachtjes over slapen....

Heb je deze met plasmafilter?

bedankt!
Nee heb hem met koolfilter deze kan volgens de verkoper op den duur in de oven om de levensduur te verlengen. Ik had hiervoor een pelgrim kookplaat van een paar jaar oud hier heb ik een paar keer op gekookt en vind de huidige fijner maar komt ook doordat deze weer nieuwer is denk ik. De toetsen reageren goed en het werkt allemaal zoals het hoort. Maar zoals gezegd heb ik voor de rest weinig referenties materiaal

Acties:
  • 0 Henk 'm!

  • PrixV
  • Registratie: Mei 2019
  • Laatst online: 16-08 18:07
Cap schreef op maandag 25 maart 2024 @ 08:12:
@iRinze Hoe is de offerte opgebouwd? Heb je losse prijzen voor de onderdelen of is het een totaalprijs? Ik zou, voor zover dat niet al het geval is, in de offerte in ieder geval keuken en vloer laten opsplitsen (liefst ook blad / apparatuur), dan heb je in ieder geval zicht op wat deze onderdelen kosten en kan je elders nog een offerte opvragen voor in ieder geval de vloer. Willen ze dat opsplitsen van de offerte niet doen, dan zou ik afhaken bij deze zaak.

Wat betreft het "uit balans" van de combinatie Pronorm, melamine fronten, HPL blad en Pelgrim apparatuur ben ik wat minder uitgesproken dan hierboven. Dat is m.i. een individuele keuze.

Pronorm levert niet voor niets ook melamine fronten in hun assortiment, dus als je dat mooi vindt dan is er niets op tegen. Het is een degelijk materiaal en zeer geschikt voor keukens.

Hetzelfde geldt voor een HPL blad, waarbij je rekening moet houden met mindere krasbestendigheid en hittebestendigheid dan steensoorten, maar als je daarmee kan werken is het een goede keuze voor een keuken. Wil je iets krasvasters dan ga je al snel voor composiet, natuursteen of keramiek, elk weer met hun eigen nadelen.

Ik heb geen zicht op de kwaliteit van Pelgrim apparatuur, maar prijstechnisch bevindt het zich meer naar de onderkant van de markt dan de mainstream AEG/Bosch/Siemens.

Kost de vloer in het huis inderdaad zo'n 8k voor 130m2, dan zou ik 20k voor deze opstelling wel aan de hoge kant vinden, hoewel ik het wat moeilijk vind in te schatten omdat ik geen zicht heb op de Pelgrim prijzen van de genoemde apparaattypes, wat kosten die bij elkaar?

Maar ik ben ervan overtuigd dat als je los gaat shoppen je voor 20k Pronorm (equivalente) kasten, een 20mm massief composiet blad incl spoelbak, AEG/Bosch/Siemens apparatuur (evt de kookplaat van Bora) plus een Quooker zou kunnen krijgen incl installatie. Over de kraan gesproken, die mis ik in de opsomming. Welke kraan is opgenomen in de offerte?
Het uit balans ging niet over het Pronorm stuk, het ging over de Y-lijn en de Bora in combinatie met de rest van de keuken. Dat is niet in verhouding imho.

Acties:
  • +1 Henk 'm!

  • Blurk62
  • Registratie: December 2012
  • Laatst online: 12-10 22:44
Borisvkr schreef op maandag 25 maart 2024 @ 19:29:
Wie kan er iets aan ervaringen vertellen over wat de toegevoegde waarde van home connect is op (in dit geval) een Siemens inductiekookplaat met geintegreerde bladafzuiging?

Gebruik je het echt bij het koken (en hoe moet ik me dat voorstellen) of is het meer interessant voor onderhoudsmeldingen, verbruik etc?
Stel je hier vooral heel weinig van voor. Zie je jezelf al naast je kookplaat staan met je telefoon? App starten, shit..uitgelogd, eerst inloggen dus. O, kookplaat opnieuw verbinden met de app. Dan eindelijk Instellingen, kookplaat aan, stand 5. Je staat ernaast hè? Of wil je je kookplaat vanaf de zolder aanzetten? Stond dat Tupperware bakje nou nog op die zone rechtsvoor of niet?
Wij hebben home connect op de oven, de enige functie die wij héél soms gebruiken is via de google roepen “zet de oven uit” als we al aan tafel zitten. Het is via de google nest hub ook zo’n beetje de enige functie die soms werkt.
Als je de home connect app download kun je een demo kookplaat toevoegen. Probeer dat eens.

Acties:
  • 0 Henk 'm!

  • koksie
  • Registratie: November 2004
  • Laatst online: 11-10 22:27
De enige usecase die ik me kan bedenken is dat de afzuiging automatisch aangaat als je de kookplaat aanzet. Dat lijkt me nog wel handig maar ook die feature is me het prijsverschil met een 'domme' afzuigkap niet waard.

[ Voor 5% gewijzigd door koksie op 26-03-2024 07:36 ]


Acties:
  • 0 Henk 'm!

  • MailMan
  • Registratie: Juni 2002
  • Laatst online: 11-10 22:02
Gister een Siemens inductiekookplaat geinstalleerd met Wifi. Er staat op de website/handleiding dat er via Siemens Home Connect nieuwe software met nieuwe functionaliteit beschikbaar zou kunnen komen.

Hoe kan ik zien of mijn kookplaat up to date is? Ik zie wel een versie nummer, maar geen datum: 1.135-3.5.18.202307 05135216 (1.4).

Acties:
  • 0 Henk 'm!

  • icecreamfarmer
  • Registratie: Januari 2003
  • Laatst online: 10-10 10:31

icecreamfarmer

en het is

Blurk62 schreef op dinsdag 26 maart 2024 @ 00:23:
[...]

Stel je hier vooral heel weinig van voor. Zie je jezelf al naast je kookplaat staan met je telefoon? App starten, shit..uitgelogd, eerst inloggen dus. O, kookplaat opnieuw verbinden met de app. Dan eindelijk Instellingen, kookplaat aan, stand 5. Je staat ernaast hè? Of wil je je kookplaat vanaf de zolder aanzetten? Stond dat Tupperware bakje nou nog op die zone rechtsvoor of niet?
Wij hebben home connect op de oven, de enige functie die wij héél soms gebruiken is via de google roepen “zet de oven uit” als we al aan tafel zitten. Het is via de google nest hub ook zo’n beetje de enige functie die soms werkt.
Als je de home connect app download kun je een demo kookplaat toevoegen. Probeer dat eens.
Mee eens mijn ouders hebben het ook. Waar het voor gebruikt wordt is de klok verzetten en de oven voorverwarmen.

ik zie ik zie wat jij niet ziet


Acties:
  • +1 Henk 'm!

  • Flix20
  • Registratie: Oktober 2011
  • Laatst online: 10-10 21:23
Blurk62 schreef op dinsdag 26 maart 2024 @ 00:23:
[...]

Stel je hier vooral heel weinig van voor. Zie je jezelf al naast je kookplaat staan met je telefoon? App starten, shit..uitgelogd, eerst inloggen dus. O, kookplaat opnieuw verbinden met de app. Dan eindelijk Instellingen, kookplaat aan, stand 5. Je staat ernaast hè? Of wil je je kookplaat vanaf de zolder aanzetten? Stond dat Tupperware bakje nou nog op die zone rechtsvoor of niet?
Wij hebben home connect op de oven, de enige functie die wij héél soms gebruiken is via de google roepen “zet de oven uit” als we al aan tafel zitten. Het is via de google nest hub ook zo’n beetje de enige functie die soms werkt.
Als je de home connect app download kun je een demo kookplaat toevoegen. Probeer dat eens.
En het hoger/lager zetten v/d kookplaat kan je niet in de app doen.
Althans, je kan het wel doen, maar dan moet je deze aanpassing op de plaat zelf bevestigen...

Overigens gebruik ik de app voor de ovens en vaatwasser wel met regelmaat.

PSN: Flix20-NL


Acties:
  • 0 Henk 'm!

  • Tweak_ers
  • Registratie: Oktober 2021
  • Laatst online: 10:24
Cap schreef op maandag 25 maart 2024 @ 13:53:
[...]


Ik kan je helemaal volgen, dat gezeur met de prijs, onduidelijkheid etc is ook niets voor mij, en B&S lijkt op basis van jouw verhaal en de geleverde service en mogelijkheden een goede keuze c.q. aanrader, maar het blijft natuurlijk wel een enkele ervaring voor een specifieke situatie met specifieke wensen.

Wat ik bedoel te zeggen is dat situatie, wensen, eisen, en budget erg uiteen kunnen lopen, en iemand elders ook prima kan slagen en precies krijgt wat hij wil, voor een goede prijs, en vlot geleverd en evt geïnstalleerd. Het kan dus heel goed Berg&Smidt zijn, maar ook een andere goede interieurbouwer, of een betrouwbare keukenzaak (ook die zijn er genoeg zonder grote showrooms maar wel met veel samples zoals de interieurbouwer) met overzichtelijke prijsstelling, of in bepaalde gevallen zelfs een DMG zaak. Of natuurlijk meerdere zaken bij iemand die kasten, blad en/of apparatuur los bestelt, en al dan niet laat installeren. Het kan maatwerk zijn indien nodig, maar ook standaard maten kunnen in veel gevallen prima voldoen.
Zeker!
Ik denk dat we zelfs bij Bemmel en Kroon uiteindelijk prima geslaagd zouden zijn. Maar het uiteindelijke product zou dan wel van mindere kwaliteit zijn geweest.
Ondanks dat het een DMG zaak is, vond ik de sfeer prettig en geen pusherige verkopers.

Ik zal het nogmaals herhalen: Wij hadden een redelijk compleet verhaal richting Berg&Smidt. Zij krijgen (denk ik) normaliter redelijk veel vrijheid in de klussen die ze krijgen. Voor hen is een keuken een redelijk klein project. Ze nemen normaliter een volledige villa onder handen.

Wij hebben geen ervaring met het echte advies en vanaf 0 beginnen bij Berg&Smidt, dus daar kan ik echt niets zinnigs over zeggen. Wij hadden daarvoor letterlijk al 15 keukenzaken bezocht en bij een groot deel offertes laten opstellen.

Berg& Smidt was zeker niet de goedkoopste, maar de meeste keukenzaken kwamen uit op kunststof, omwille van het drukken van de prijs.

Ondanks dat we bij Berg&Smidt boven ons budget van 20.000 uitkwamen, vind ik nog steeds dat we de beste prijs/kwaliteit verhouding hebben gekregen. Puur omdat het product veel luxer oogt dan alle alternatieven.

Stukje maatwerk klopt ook, het scheelt niet veel, de hoekkast heb je gewoon volledig tot de muur, zal een cm of 30-40 extra zijn. Maar dat is maar een hoekkast. Je zet er sullen die je echt heel weinig gebruikt, omdat je er niet makkelijk bij kunt.

Lades hebben we 5cm dieper dan standaard met 65CM werkblad. Om dat te redden, is het werkblad 66CM diep geworden.

Het zijn dus inderdaad kleinigheden en het is niet zo dat je anders heel veel ruimte weggooit. Op de Bora kookplaat na.
Er zit veel verschil per keukenmerk. De ene heeft echt hele ondiepe lades bij een kookplaat met inbouwafzuiging, omdat de kookplaten onderling nog wel eens verschillen. Bij het andere merk valt het reuze mee. B&S heeft op basis van de spes van Bora, de lades gemaakt. Daarvan heb ik wel het idee dat het veel ruimte scheelt.

Kast tot het plafond was binnen ons huidige budget nooit gelukt bij keukenzaken. Partijen als Bemmel en Kroon doen dit gewoon niet. Je moet naar luxere zaken toe om dit wel te krijgen. Het effect wat dit geeft, zou ik nooit een concessie op willen doen. Maar dat is heel persoonlijk!
whipcheck schreef op maandag 25 maart 2024 @ 14:44:
Ik zie hier vaak berichten om prijzen te vergelijken, apparatuur Veldkamp of Bemmel en Kroon en werkbladen bij 123 werkbladen of stonecenter.

Zijn er ook mensen die de keuken bij meerdere zaken afnemen? Doe je dit dan zelf installeren?

Wij zijn bij meerdere zaken langs geweest, keuken inc. apparatuur (Eiland 300x120, 4 hoge kasten 2 lage kasten van 60cm + bovenkasten met nis 120cm voor koffie zet apparaat, Bosch 7 series apparatuur + keramiek werkblad). Prijs komt op 30-35k uit.

Werkblad kan 3k goedkoper, apparatuur kan 2 k goedkoper maar dan raken we het enkele aanspreekpunt kwijt. Aantal keukenzaken laten de korting vervallen als je meerdere partijen gebruikt waardoor het uiteindelijk weining scheelt.

Iemand die hier ervaringen over kan delen, installatie en eventuele garantie(s)?

Ik ben toch geneigd om alles bij partij af te nemen.
Je kunt offertes van die losse partijen toch meenemen? Zo hebben wij het vaak gedaan. Direct aangeven dat dit de prijzen zijn die op internet gaan. Bij ons zijn die prijzen overgenomen en verwerkt in het totaal plaatje.
Sterker nog, de prijs stond vast op basis van composiet en binnen composiet konden we nog alle kanten op. Uiteindelijk hebben ze het bij een andere leverancier moeten bestellen dan zijn standaard leverancier.
Jeroenneman schreef op maandag 25 maart 2024 @ 16:11:
Volgens mij een hele goede club, maar zijn het wat oudere medewerkers allemaal? Ik kan online echt bijna niets vinden, en de social media lijken al meerdere jaren niet bijgewerkt te zijn.

Dat hoeft niets te zeggen, maar ik vind het toch gek dat een club die zulke kwaliteit aflevert, het dan laat liggen op marketing.
Dat niet eens, maar inderdaad, dat stuk snap ik ook echt niet.
Toen ze bij ons waren nog naar gevraagd, hij gaf aan er echt geen tijd voor te hebben.
Ons montage team was 3 man sterk, mede-eigenaar en twee jongere knullen.
één van de jongens is de hele eerste dag bezig geweest met de hoge kast. Moest op locatie natuurlijk helemaal op maat gezaagd worden, omdat ze rekening houden met eventueel schreve muren.

De andere twee hebben het L stuk gedaan. Daarna nog een dag bezig geweest met keukenblad en inbouwen kookplaat, afwerken, kitten en stellen.

Hij gaf aan dat ze 9 man in dienst hebben en zelfs onlangs een stoffeerder hebben aangenomen, omdat ze dat redelijk vaak nodig hebben.

Voor nu alles op mond tot mond reclame. Maar ik denk ook dat ze normaal gewoon grotere projecten doen, dat is uiteindelijk werkzekerder dan alleen keukens. Daarom kon de keuken ook wel "tussendoor", in zijn bewoording. 1,5 maand levertijd voor een keuken is echt weinig.
Stielenburg schreef op maandag 25 maart 2024 @ 18:30:
Oh wow, dat is nu precies waar ik bang voor ben. Ik ben geen goede onderhandelaar en kan ook geen pokerface houden bij iets dat ik mooi vind. We hebben nu een afspraak staan later deze week bij De Boer interieurbouw, ik ben heel benieuwd, het telefoongesprek was iig prettig. Daarnaast gaan we Anovi proberen, maar die hebben op dit moment een wachttijd van 6 weken voor een afspraak.
Leuk! Ik ben heel benieuwd naar je ervaringen!

Acties:
  • +3 Henk 'm!

  • Theepel
  • Registratie: Maart 2011
  • Laatst online: 25-11-2024
Deze link is hier wel eens eerder neergegooid door iemand. Ik gooi m hier gewoon maar even opnieuw om maar even aan te geven dat er meer partijen zoals Berg & Smidt zijn.

Op de site staan foto's van meer dan duizend projecten die gedaan zijn door designers en interieur bouwers (Robert Tediek is bv een bekende). Heel leuk om er inspiratie mee op te doen.

Link: https://www.hoog.design/
(klik op binnenkijken, en ja, de site is soms sloom)

Acties:
  • +1 Henk 'm!

  • Cap
  • Registratie: Juli 2000
  • Niet online

Cap

@Tweak_ers voor jullie wensen zullen jullie zeker een goede kwaliteit/prijs verhouding hebben gekregen.

Voorbeeld van maatwerk niet nodig, dure opties ook niet.

Een kennis van mij heeft een hele grote en hoge ruimte beschikbaar voor de keuken, zodat deze alle benodigde kasten gewoon midden aan de muur kon plaatsen en aan beide zijden nog veel ruimte over heeft. Niet omdat het niet anders kan, maar omdat het niet anders hoeft: meer ruimte is niet nodig, en helemaal dicht bouwen vond ie er niet mooier op worden, wat ik me in zijn geval prima kan voorstellen: de ruimte moet spreken.

Ook had hij geen kasten met houtlook of houtnerf op het oog, dus een mat frontje in de kleur die hem aansprak voldeed, en zat niet in een dure prijsklasse. Ook kasten tot aan het plafond was geen bruikbare (en voor hem visueel aantrekkelijke) optie ivm de plafondhoogte van 3.5 meter. Hij is dus geslaagd bij een gewone keukenboer met 'standaard' kasten.

Zijn blad is dieper dan 65 cm, ik geloof 68 cm. Dat kan volgens mij altijd wel. Ze zetten de kasten gewoon iets meer naar voren en je krijgt panelen op de juiste diepte aan de zijkant, klaar. Vrijwel elke keukenboer kan natuurlijk een werkblad van meer dan 65 cm leveren. Dat blad was geloof ik nog het duurste, en dat was gewoon puur omdat hij een uitvoering gekozen heeft uit de dure klasse, omdat ie dat mooi vond.

Hij heeft genoeg geld dus had meer kunnen betalen, maar in zijn geval was het gewoon niet nodig met zijn wensen. Ik vind het een hele nette en goed bruikbare keuken geworden voorzien van alle bergruimte die hij nodig heeft, en die, mede door de gemakkelijke ruimte en mooie plaatsing, absoluut niet misstaat in zijn grote herenhuis.

Wij hebben het zelf anders gedaan, losse kasten besteld, blad elders, apparatuur elders, zelf geïnstalleerd, en daardoor helemaal naar ons zin geworden. Maar dat zou ik zeker niet iedereen aanraden.

Voor welk type partij je gaat blijft m.i. een individuele keuze die heel erg afhankelijk is van specifieke wensen.

[ Voor 8% gewijzigd door Cap op 26-03-2024 11:39 ]


Acties:
  • +1 Henk 'm!

  • Mattie112
  • Registratie: Januari 2007
  • Laatst online: 12-10 20:25
MailMan schreef op dinsdag 26 maart 2024 @ 07:48:
Gister een Siemens inductiekookplaat geinstalleerd met Wifi. Er staat op de website/handleiding dat er via Siemens Home Connect nieuwe software met nieuwe functionaliteit beschikbaar zou kunnen komen.

Hoe kan ik zien of mijn kookplaat up to date is? Ik zie wel een versie nummer, maar geen datum: 1.135-3.5.18.202307 05135216 (1.4).
Ik heb daar ook naar gezocht omdat mijn oven wat hele vreemde vertalingen had: Mattie112 in "Het Grote Keuken topic: verkopers, kwaliteit, prijs - Deel 3"

Maar ook verder niet gevonden.

Bij mij duurde het een weekje en toen kwam de update melding. Misschien geld dat voor alles? Even afwachten? Kan mij niet herinneren dat mijn kookplaat een update heeft gehad btw.

edit: mijn kookplaat heeft exact hetzelfde versienr. Nou moet ik bekennen dat die pas sinds 2 weken geplaatst is dus wie weet :) Maar kan me voorstellen dat er daar wat minder updates "nodig" zijn dan als iets met een complete GUI zoals de oven.

edit 2: ik denk dat het laatste deel de datum is trouwens? Dus 2023-07-05 13:52:16?

[ Voor 15% gewijzigd door Mattie112 op 26-03-2024 10:26 ]

3780wP (18x 210wP EC Solar) | 2x Marstek Venus E (5.12kWh)


Acties:
  • 0 Henk 'm!

  • Borisvkr
  • Registratie: November 2023
  • Laatst online: 03-10-2024
Ja ik denk dat het voor een oven/combimagnetron wel wat meerwaarde heeft, even via alexa roepen dat alvast de oven voorverwarmd moet worden etc. of inderdaad wat simpele programma's voor gerechten, als zou dat laatste ook met de kookplaat werken, ik zie me dat met een kookplaat ook niet zo snel doen. Vooral omdat ik nu niet bepaald een keukenprins ben, en als je dat wel bent, weet je zelf heel goed hoe je alles moet koken en bakken... En volgens mij kun je sowieso wel handmatig simpel instellen dat iets aan de kook moet worden gebracht en dan zoveel minuten en/of op zoveel graden moet doorsudderen, als ik de manual lees, ook daarvoor zou je geen app nodig hebben... en aangezien de kookplaat ingebouwde afzuiging heeft hoef ik ook geen koppeling met een afzuigkap.

Daarnaast is de kookplaat met home connect 80cm breed, ik wil eea in een ikea kast van 80cm inbouwen, dat wordt wel wat krap, de andere plaat die ik op het oog heb is een 70cm variant. Dat komt wat mooier uit denk ik. Zeker omdat het ook niet zo'n hele grote keuken wordt. Qua prijs scheelt het in dit geval niks, daar zou ik niet voor hoeven laten. Het gaat dan puur om wat de home connect toevoegt (weinig dus) en de mogelijk extra complicaties omdat het hele ding in een klein kastje gepropt moet gaan worden. Ik denk dat ik maar voor de 70cm variant ga dan :)

Acties:
  • 0 Henk 'm!

  • Mattie112
  • Registratie: Januari 2007
  • Laatst online: 12-10 20:25
Borisvkr schreef op dinsdag 26 maart 2024 @ 10:40:
Ja ik denk dat het voor een oven/combimagnetron wel wat meerwaarde heeft, even via alexa roepen dat alvast de oven voorverwarmd moet worden etc. of inderdaad wat simpele programma's voor gerechten, als zou dat laatste ook met de kookplaat werken, ik zie me dat met een kookplaat ook niet zo snel doen. Vooral omdat ik nu niet bepaald een keukenprins ben, en als je dat wel bent, weet je zelf heel goed hoe je alles moet koken en bakken... En volgens mij kun je sowieso wel handmatig simpel instellen dat iets aan de kook moet worden gebracht en dan zoveel minuten en/of op zoveel graden moet doorsudderen, als ik de manual lees, ook daarvoor zou je geen app nodig hebben... en aangezien de kookplaat ingebouwde afzuiging heeft hoef ik ook geen koppeling met een afzuigkap.

Daarnaast is de kookplaat met home connect 80cm breed, ik wil eea in een ikea kast van 80cm inbouwen, dat wordt wel wat krap, de andere plaat die ik op het oog heb is een 70cm variant. Dat komt wat mooier uit denk ik. Zeker omdat het ook niet zo'n hele grote keuken wordt. Qua prijs scheelt het in dit geval niks, daar zou ik niet voor hoeven laten. Het gaat dan puur om wat de home connect toevoegt (weinig dus) en de mogelijk extra complicaties omdat het hele ding in een klein kastje gepropt moet gaan worden. Ik denk dat ik maar voor de 70cm variant ga dan :)
Yeah voor de oven paar keer gebruikt om het aan te zetten, kookplaat is wat vreemd je moet dan op de plaat zelf bevestigen dus het is niet dat je onderweg naar huis alvast de aardappels op kan zetten. Misschien leuk om als je altijd hetzelfde maakt wat "favorieten" te programmeren maar nee... Ik had ook geen plaat met wifi uitgezocht maar mijn plaat was niet meer leverbaar dus ik kreeg het er "gratis" bij.

3780wP (18x 210wP EC Solar) | 2x Marstek Venus E (5.12kWh)


Acties:
  • 0 Henk 'm!

  • aap
  • Registratie: Januari 2008
  • Laatst online: 10-10 16:12

aap

Ik heb laatst de Homeconnect voor de oven voor het eerst zinvol gebruikt: ik kwam er tijdens het koken achter dat ik een stokbrood miste. Aannemende dat ik het zou moeten doen met een afbakbrood, had ik de oven vast aangezet voordat ik naar de supermarkt racete. Toen ik in de supermarkt zag dat er nog vers brood was, heb ik vanuit daar de oven vast weer uitgezet.

Voor de vaatwasser is het enigszins nuttig dat je in de app kunt zien hoe lang hij nog moet, maar aangezien het eco-programma net geen vijf uur duurt, is het antwoord toch eigenlijk altijd dat ik niet moet wachten met naar bed gaan tot de vaatwasser klaar is.

Leuke gimmick, dat homeconnect, maar ik zou het niet echt missen als ik het niet had.

(De enige feature die ik zou wensen is een synchronisatie van de klokjes van de oven en de magnetron, maar de magnetron heeft geen HC...)

Acties:
  • 0 Henk 'm!

  • Mattie112
  • Registratie: Januari 2007
  • Laatst online: 12-10 20:25
Voor de vaatwasser zit er nog als optie in om je een notificatie te sturen als je vaatwasblokjes bijna op zijn aan de hand van de draai-keren. Nuttig tja?

Vaatwasser verder zou ik echt nooit met die app bedienen. Je zet het er in, zet hem aan en de volgende dag is het schoon :)

Nee veel verder dan de oven aanzetten kom ik tot nu toe niet :)

Hoewel misschien voor de vaatwasser zou je nog "programma updates" kunnen beargumenteren als ze wat tweaks maken zo van joh als we dit doen net zo schoon maar minder energie.

3780wP (18x 210wP EC Solar) | 2x Marstek Venus E (5.12kWh)


Acties:
  • +1 Henk 'm!

  • Cap
  • Registratie: Juli 2000
  • Niet online

Cap

Inderdaad gimmick dat Home Connect, ook voor de 'handige' functies zoals de vaatwasser aanzetten of oven voorverwarmen: voordat je de app hebt opgestart en het juiste apparaat hebt geselecteerd ben je al bij de oven, met minder schermtijd en electronica stress als de app te traag opstart, er geen wifi bereik is of de app gaat zeuren dat ie een update nodig heeft. :P

Dat de combioven meldt dat ie klaar is heb ik heel snel uitgezet: bij elke keer even een half minuutje wat opwarmen in de magnetron krijg je een melding op je telefoon dat de bereiding klaar is, super irritant. En leuk hoor dat mijn vaatwasser meldt dat ie klaar is, maar belangrijk? Totaal niet. Ook het 'intelligente' programma dat ja in de app kan configureren obv beoordeling van de verschillende aspecten (schoon, droog, snel, stil, zuinig geloof ik) heeft een hoog gimmick gehalte, wil je heel schoon, heel droog of heel snel dan gaat het energieverbruik omhoog en is ie minder stil. Wil je stil en/of zuinig, dan gaat het langzaam. Zo simpel is het. Je kiest dan gewoon een programma (stil/zuinig/schoon) dat je op dat moment past, al dan niet met "extra droog" geactiveerd.

Het enige leuke is denk ik de gerechten met geoptimaliseerde bereidingstechnieken die de oven herbergt, en dat die evt geupdate kunnen worden via HC. Al weet ik niet of dat daadwerkelijk gebeurt. Waarschijnlijk niet. Iemand al eens een nieuw gerecht gezien, of een andere bereidingswijze bemerkt? En inderdaad dat je klok gelijk blijft lopen omdat ie via wifi een referentiewaarde kan ophalen. Maar dat wil ik niet eens HC functionaliteit noemen. ;)

[ Voor 17% gewijzigd door Cap op 27-03-2024 08:09 ]


Acties:
  • 0 Henk 'm!

  • drachir
  • Registratie: September 2013
  • Laatst online: 09:35
Blihi schreef op maandag 25 maart 2024 @ 11:45:
[...]


Lastig. Normaal gesproken zou je dit afwerken met een paneel, maar dan moet je het blad er overheen laten steken en dat kan nu niet meer.

Ik denk dat het beste advies inderdaad is om er een muurtje van gasbeton tegenaan te zetten en dat van boven af te werken met het bestaande blad, als je dat op maat kunt zagen tenminste (is dat massief, of is dat een laminaat blad, want dan kun je dat niet eenvoudig op maat maken).

Alternatief is om een groot paneel op maat te maken, wat dan een cm of 20 boven je werkblad uit komt. Dat zou dan bijvoorbeeld 4cm dik kunnen zijn en dat zet je vast van binnenuit aan de bestaande kastjes met wat hoekijzers. Dit soort panelen van 38mm dik kun je bijvoorbeeld krijgen op https://www.meubelpanelen...ineerd-w10140-mp-span140/

De maximum maat is 2800x1200 mm, dus dat zou moeten lukken.
Bedankt voor het meedenken! Ik denk ook dat een muurtje van gasbeton het mooiste is. Ik denk dat ik het zelf doe na de verhuizing, en met de nieuwe vloer leggen er rekening mee houdt, dus breedte profiel (~10 cm)+normale vloerafstand van de keukenkast vrijhouden. Na wat inlezen is, als ik het goed heb, het beste eerst een houten plank te schroeven aan de houten draagvloer, daar het profiel voor de gasbeton op te bevestigen en dan de gasbetonblokken er los op het profiel in, zodat het hout kan werken. Heb jij toevallig enig idee wat voor plank daar geschikt voor is, kan dat elke soort zijn, bijv zoiets https://www.houthandelvan...uglas-regel-50x100mm.html?

Het blad is helaas niet massief, een top/zijlaag van echt hout, daarbinnen zegt ikea dat het spaanplaat is en zijkant is laminaat. Afbeelding hieronder is van werkblad in de keuken waarvan de zijkant helaas ook kapot is. Dat wordt dus een nieuwe plank erop zetten.

Afbeeldingslocatie: https://tweakers.net/i/SxCbIuy_rLnFddpt2bfpjGEQ9po=/800x/filters:strip_icc():strip_exif()/f/image/tXHxxwE0G74pQuev3kNecA7N.jpg?f=fotoalbum_large

Acties:
  • 0 Henk 'm!

  • MailMan
  • Registratie: Juni 2002
  • Laatst online: 11-10 22:02
Mattie112 schreef op dinsdag 26 maart 2024 @ 10:23:
[...]


Ik heb daar ook naar gezocht omdat mijn oven wat hele vreemde vertalingen had: Mattie112 in "Het Grote Keuken topic: verkopers, kwaliteit, prijs - Deel 3"

Maar ook verder niet gevonden.

Bij mij duurde het een weekje en toen kwam de update melding. Misschien geld dat voor alles? Even afwachten? Kan mij niet herinneren dat mijn kookplaat een update heeft gehad btw.

edit: mijn kookplaat heeft exact hetzelfde versienr. Nou moet ik bekennen dat die pas sinds 2 weken geplaatst is dus wie weet :) Maar kan me voorstellen dat er daar wat minder updates "nodig" zijn dan als iets met een complete GUI zoals de oven.

edit 2: ik denk dat het laatste deel de datum is trouwens? Dus 2023-07-05 13:52:16?
Goed punt - zou idd weleens de datum kunnen zijn.

Siemens zegt dat in Q4 2024 een Warmhoudfunctie en een ShortBoost functie via HomeConnect beschikbaar zou moeten komen. Wat dat betreft wel nuttig dat je kan updaten. Al vind ik het wat raar dat dat er standaard niet al in zit en dat het nog zo lang moet duren. Dacht dat deze kookplaat ook al wat jaren oud was gezien de vele en soms oude recensies uit 2019: https://www.siemens-home....Others/Togglebox=manuals/

Vond het zelf geen must om wifi te hebben, maar wel grappig dat je in je app een melding kan krijgen wanneer je pan op de juiste temperatuur is. Al voelt het wat onveilig om bij koken of bakken niet in de buurt te zijn.

[ Voor 6% gewijzigd door MailMan op 26-03-2024 12:11 ]


Acties:
  • 0 Henk 'm!

  • Blihi
  • Registratie: Juni 2018
  • Laatst online: 09-10 15:42
drachir schreef op dinsdag 26 maart 2024 @ 12:05:
[...]


Bedankt voor het meedenken! Ik denk ook dat een muurtje van gasbeton het mooiste is. Ik denk dat ik het zelf doe na de verhuizing, en met de nieuwe vloer leggen er rekening mee houdt, dus breedte profiel (~10 cm)+normale vloerafstand van de keukenkast vrijhouden. Na wat inlezen is, als ik het goed heb, het beste eerst een houten plank te schroeven aan de houten draagvloer, daar het profiel voor de gasbeton op te bevestigen en dan de gasbetonblokken er los op het profiel in, zodat het hout kan werken. Heb jij toevallig enig idee wat voor plank daar geschikt voor is, kan dat elke soort zijn, bijv zoiets https://www.houthandelvan...uglas-regel-50x100mm.html?

Het blad is helaas niet massief, een top/zijlaag van echt hout, daarbinnen zegt ikea dat het spaanplaat is en zijkant is laminaat. Afbeelding hieronder is van werkblad in de keuken waarvan de zijkant helaas ook kapot is. Dat wordt dus een nieuwe plank erop zetten.

[Afbeelding]
Ik zou eerst het muurtje beginnen te zetten en dan pas de vloer leggen.

Als het een houten draagvloer is kun je gewoon een vuren lat van de bouwmarkt gebruiken. Je hoeft echt geen douglas of hardhout te kiezen.

WP: Toshiba Estia 8kW split HWT-801H(R)W-E + HWT-1101 binnenunit met 300 liter SWW tank. PV: 4 strings, totaal 12590 Wp


Acties:
  • +1 Henk 'm!

  • drachir
  • Registratie: September 2013
  • Laatst online: 09:35
Blihi schreef op dinsdag 26 maart 2024 @ 12:53:
[...]


Ik zou eerst het muurtje beginnen te zetten en dan pas de vloer leggen.

Als het een houten draagvloer is kun je gewoon een vuren lat van de bouwmarkt gebruiken. Je hoeft echt geen douglas of hardhout te kiezen.
Dank, dan ga ik dat doen. Idealiter had ik ook eerst de muur gemaakt en toen pas de vloer erin, maar we moeten nog een hoop andere dingen doen (naast ook nog gewoon werken) voordat we verhuizen dus het is nu een beetje te druk ervoor. Misschien dat ik wel al de balk en het profiel neerzet zodat dat alvast staat, en daarna de vloer gewoon goed afdekken.

Acties:
  • 0 Henk 'm!

  • Mattie112
  • Registratie: Januari 2007
  • Laatst online: 12-10 20:25
MailMan schreef op dinsdag 26 maart 2024 @ 12:10:
[...]


Goed punt - zou idd weleens de datum kunnen zijn.

Siemens zegt dat in Q4 2024 een Warmhoudfunctie en een ShortBoost functie via HomeConnect beschikbaar zou moeten komen. Wat dat betreft wel nuttig dat je kan updaten. Al vind ik het wat raar dat dat er standaard niet al in zit en dat het nog zo lang moet duren. Dacht dat deze kookplaat ook al wat jaren oud was gezien de vele en soms oude recensies uit 2019: https://www.siemens-home....Others/Togglebox=manuals/

Vond het zelf geen must om wifi te hebben, maar wel grappig dat je in je app een melding kan krijgen wanneer je pan op de juiste temperatuur is. Al voelt het wat onveilig om bij koken of bakken niet in de buurt te zijn.
Oh ja dat is wel vreemd en Q4 2024 is dan ook aardig lang... Zie nu bij mijn plaat dat dat er ook bij staat https://www.siemens-home....ctiekookplaten/EX877HVC1E Geen idee wat ik me er bij voor moet stellen? Boost die na xx tijd weer omlaag gaat?

3780wP (18x 210wP EC Solar) | 2x Marstek Venus E (5.12kWh)


Acties:
  • +1 Henk 'm!

  • Mattie112
  • Registratie: Januari 2007
  • Laatst online: 12-10 20:25
Cap schreef op dinsdag 26 maart 2024 @ 11:59:
Inderdaad gimmick dat Home Connect, ook voor de 'handige' functies zoals de vaatwasser aanzetten of oven voorverwarmen: voordat je de app hebt opgestart en het juiste apparaat hebt geselecteerd ben je al bij de oven, met minder schermtijd en electronica stress als de app te traag opstart, er geen wifi bereik is of de app gaat zeuren dat ie een update nodig heeft. :P

Dat de combioven meldt dat ie klaar is heb ik heel snel uitgezet: bij elke keer even een half minuutje wat opwarmen in de magnetron krijg je een melding op je telefoon, super irritant. En leuk hoor dat mijn vaatwasser meldt dat ie klaar is, maar belangrijk? Totaal niet. Ook het 'intelligente' programma dat ja in de app kan configureren obv beoordeling van de verschillende aspecten (schoon, droog, snel, stil, zuinig geloof ik) heeft een hoog gimmick gehalte, wil je heel schoon, heel droog of heel snel dan gaat het energieverbruik omhoog en is ie minder stil. Wil je stil en/of zuinig, dan gaat het langzaam. Zo simpel is het. Je kiest dan gewoon een programma dat je op dat moment past, al dan niet met "extra droog" geactiveerd.

Het enige leuke is denk ik de gerechten met geoptimaliseerde bereidingstechnieken die de oven herbergt, en dat die evt geupdate kunnen worden via HC. Al weet ik niet of dat daadwerkelijk gebeurt. Waarschijnlijk niet. Iemand al eens een nieuw gerecht gezien, of een andere bereidingswijze bemerkt? En inderdaad dat je klok gelijk blijft lopen omdat ie via wifi een referentiewaarde kan ophalen. Maar dat wil ik niet eens HC functionaliteit noemen. ;)
Ja die meldingen bij default brrrrr. Heb een stoom oven, druk je (fysiek) om de knop om het paneel te openen om bij de watertank te komen krijg je in beeld (terecht) de melding "sluit paneel". Maar hey misschien is dat ook een goeie om als notificatie te versturen 8)7

En druk je nog even 30 seconden er bij nadat de magnetron klaar is -> sure dan wil je vast nog wel een notificatie na 30 sec dat het toch echt klaar is :X

Sure een foutmelding prima, update melding ok. Na een "lange" bereidingstijd mjwa ok maar de rest pft.

3780wP (18x 210wP EC Solar) | 2x Marstek Venus E (5.12kWh)


Acties:
  • 0 Henk 'm!

  • MailMan
  • Registratie: Juni 2002
  • Laatst online: 11-10 22:02
Mattie112 schreef op dinsdag 26 maart 2024 @ 13:05:
[...]


Oh ja dat is wel vreemd en Q4 2024 is dan ook aardig lang... Zie nu bij mijn plaat dat dat er ook bij staat https://www.siemens-home....ctiekookplaten/EX877HVC1E Geen idee wat ik me er bij voor moet stellen? Boost die na xx tijd weer omlaag gaat?
Is mij ook niet helemaal duidelijk. Bij Powerboost staat dat het echt voor water opwarmen is. Bij Shortboost niet.

Aangezien je een vergelijkbare kookplaat hebt. Het viel mij op dat ik na het schuiven van een pan een paar van die stipjes op de kookgebieden bekrast heb. Ze lijken wat witter dan de rest. Heb jij er ook last van dat die stippen krasgevoelig zijn?

Acties:
  • 0 Henk 'm!

  • Mattie112
  • Registratie: Januari 2007
  • Laatst online: 12-10 20:25
MailMan schreef op dinsdag 26 maart 2024 @ 13:13:
[...]


Is mij ook niet helemaal duidelijk. Bij Powerboost staat dat het echt voor water opwarmen is. Bij Shortboost niet.

Aangezien je een vergelijkbare kookplaat hebt. Het viel mij op dat ik na het schuiven van een pan een paar van die stipjes op de kookgebieden bekrast heb. Ze lijken wat witter dan de rest. Heb jij er ook last van dat die stippen krasgevoelig zijn?
Hij ligt er hier pas 2 weken in dus nog niet super veel gebruikt. Is me in elk geval niet opgevallen maar zal er even een blik op werpen.

(wel als je hem schoonmaakt / nat maakt dan zie je op welke zones al een keer een pan hebben gestaan alsof een soort van eerste bescherm-laagje daar af is, maar na opdrogen zie je er niets meer van ik schrok wel even in het begin)

3780wP (18x 210wP EC Solar) | 2x Marstek Venus E (5.12kWh)


Acties:
  • 0 Henk 'm!

  • icecreamfarmer
  • Registratie: Januari 2003
  • Laatst online: 10-10 10:31

icecreamfarmer

en het is

icecreamfarmer schreef op maandag 25 maart 2024 @ 16:22:
[...]


De woning is groter dan je denkt (ca 12,5 bij 5,7m) alleen de hal en de trap staan er ongelukkig in.

- Ja zoiets dacht ik al.
- Ga denk geen vaste roomdivider doen maar het is wel fijn om de ruimte enigszins op te breken. De interieurarchitecte had trouwens een sterke voorkeur om de woonkamer met ene ander ontwerp ene heel stuk te verkleinen zodat het gezelliger zou ogen. De ruimte van 5,7 bij 7m zou veel te open en groot ogen.
- In principe niet maar in die hoek wil ik mijn bureau verbergen die dan bereikbaar is. Zou het nog kunnen bereiken met 1200mm diepe laden.
- Is wel een echte loopdeur en dan zijn schuifdeuren irritant. Maar misschien dat ik hem verplaats.
- Is 3340mm. Net niet breed genoeg om er een fatsoenlijk eiland met doorloopruimte in te plaatsen.
Eiland is nu 2700x1100 maar ik denk er sterk over na om het 2700 bij 100 te maken. Die extra diepte heb ik niet nodig en dan kan ik het blok nog iets opschuiven.
Zijn nu verder uitgewerkte keukenblokken met nis, ovens en vaatwasser op hoogte. In de nis moet privacy glas komen zodat ja naar keuze wel of niet zichtbaar bent maar ik vanaf mijn bureau toch nog daglicht zie en zicht hou op buiten.

De kookplaat is nu 93 breed vanwege de downdraft maar ik neig er sterk naar om een 80cm model met geïntegreerde afzuiging te nemen. Dat scheelt ruim €2000 en 6/8 pitten heb ik nooit nodig. Mocht ik het wel nodig hebben dan kan ik beter een losse inductieplaat er bij kopen voor die ene keer per jaar. Helaas mis ik dan wel de handige flexzone van Miele.

Afbeeldingslocatie: https://tweakers.net/i/IiHieHz_uYguMv-lscW-Dp7Hwzs=/234x176/filters:strip_exif()/f/image/gmeZu7T43N2s0IjhnMiFaR2h.png?f=fotoalbum_medium

Afbeeldingslocatie: https://tweakers.net/i/GRyC11Ls80wpp6EGVkrDQo8ZPPY=/234x176/filters:strip_exif()/f/image/YRABBbF1lnePJ8MzZABXN4Nl.png?f=fotoalbum_medium

En de andere versie waarbij de deur en keuken opgeschoven zijn zodat er bijna 30cm extra ruimte komt tussen keuken en woonkamer. Dit schept wel meer kansen voor een roomdivider echter vind ik de nis zo minder mooi.

Afbeeldingslocatie: https://tweakers.net/i/dHYM6lnQlRp_4JmVK_DzwJnuS7k=/234x176/filters:strip_exif()/f/image/wyRqsPSyFSPGr3JYVx9w3Rgk.png?f=fotoalbum_medium

Afbeeldingslocatie: https://tweakers.net/i/gbNlGrqpk-YD4AzeC2Mr9d0BUFQ=/234x176/filters:strip_exif()/f/image/wlsSEddVCoIrz117uBA1nHeg.png?f=fotoalbum_medium

ik zie ik zie wat jij niet ziet


Acties:
  • 0 Henk 'm!

  • Compuhair
  • Registratie: September 2009
  • Nu online
icecreamfarmer schreef op dinsdag 26 maart 2024 @ 15:20:
...
In de nis moet privacy glas komen zodat ja naar keuze wel of niet zichtbaar bent maar ik vanaf mijn bureau toch nog daglicht zie en zicht hou op buiten.
...
Waar staat je bureau? Is het op de tekening ten noorden van de trap?

Acties:
  • 0 Henk 'm!

  • icecreamfarmer
  • Registratie: Januari 2003
  • Laatst online: 10-10 10:31

icecreamfarmer

en het is

Compuhair schreef op dinsdag 26 maart 2024 @ 16:00:
[...]


Waar staat je bureau? Is het op de tekening ten noorden van de trap?
Ja. Die kan ik ook nog verder de trap induwen maar zou eigenlijk niet weten waarom.

ik zie ik zie wat jij niet ziet


Acties:
  • 0 Henk 'm!

  • el flaco
  • Registratie: December 2005
  • Laatst online: 11:11
geen goede plek voor reclame

[ Voor 81% gewijzigd door We Are Borg op 26-03-2024 20:08 ]


Acties:
  • 0 Henk 'm!

  • taz10
  • Registratie: Augustus 2001
  • Laatst online: 22-09 13:50

taz10

Party Animal

Al 2.5 jaar genieten wij van onze nieuwe keuken met siemens inbouwapparatuur, een Siemens stoomover, combioven en vaatwasser.
Gisteren zag ik opeens een prachtige update in de Siemens Home connect app. Je vaatwasser aan laten gaan wanneer de stroom het goedkoopste is.
En wij hebben ANWB energie met variabele tarieven, dus dit is een prachtige update. Alleen dan wel bij bewolkt weer natuurlijk, als de zon schijnt is het altijd goedkoper om hem gelijk aan te zetten.

Afbeeldingslocatie: https://tweakers.net/i/Nfuk2owWU9XaBLJFG0PvuqSEtN0=/x800/filters:strip_icc():strip_exif()/f/image/0ee7gC2nnyP0SD4YvIyNzHre.jpg?f=fotoalbum_large

Acties:
  • 0 Henk 'm!

  • Jints
  • Registratie: Maart 2024
  • Laatst online: 07-04-2024
Wat zijn de meningen over inbouw dampkappen in verlaagd plafond? Zuigen deze voldoende af? We hebben een verkoper gehad die ons aanraadde om voldoende plafond te verlagen zodat de dampkap volledig vlak ingewerkt zit omdat dit beter zou zijn om af te zuigen. De wasem zou dan beter van de plafond naar de dampkap zuigen.

Een andere zegt dan weer dat we beter niet te laag gaan met het plafond en dat we best enkel de dampkap laag genoeg in een bak steken en de rest van het plafond enkel verlagen zodat de luchtafvoer kan weggewerkt. Zo zou het plafond niet te laag komen en de hoge kasten beter tot hun recht kunnen komen. Over wat de eerste verkoper zei maakte die dan geen probleem, de damp zou sowieso aangetrokken worden en weggezogen, ook als die bak een beetje lager hangt dan de rest van het plafond.

Ter info, mits verlaging voor een compacte dampkap, zou het plafond in zijn geheel verlagen tot ca 2m31 hoog. Bij lokale verlaging zou enkel over het eiland verlaagd worden en de rest van het plafond eerder tot 2m41 ongeveer verlagen.

De compact Novy wordt algemeen aangeraden, wegens goede kwaliteit van de dampkap en ca 20cm inbouwdiepte nodig.

In de kookplaat ingewerkt is de vrouw absoluut geen fan van en wordt niet overwogen, alle populariteit ten spijt.

Acties:
  • 0 Henk 'm!

  • TheJVH
  • Registratie: Mei 2007
  • Laatst online: 11:35
Jints schreef op dinsdag 26 maart 2024 @ 23:03:
Wat zijn de meningen over inbouw dampkappen in verlaagd plafond? Zuigen deze voldoende af? We hebben een verkoper gehad die ons aanraadde om voldoende plafond te verlagen zodat de dampkap volledig vlak ingewerkt zit omdat dit beter zou zijn om af te zuigen. De wasem zou dan beter van de plafond naar de dampkap zuigen.

Een andere zegt dan weer dat we beter niet te laag gaan met het plafond en dat we best enkel de dampkap laag genoeg in een bak steken en de rest van het plafond enkel verlagen zodat de luchtafvoer kan weggewerkt. Zo zou het plafond niet te laag komen en de hoge kasten beter tot hun recht kunnen komen. Over wat de eerste verkoper zei maakte die dan geen probleem, de damp zou sowieso aangetrokken worden en weggezogen, ook als die bak een beetje lager hangt dan de rest van het plafond.

Ter info, mits verlaging voor een compacte dampkap, zou het plafond in zijn geheel verlagen tot ca 2m31 hoog. Bij lokale verlaging zou enkel over het eiland verlaagd worden en de rest van het plafond eerder tot 2m41 ongeveer verlagen.

De compact Novy wordt algemeen aangeraden, wegens goede kwaliteit van de dampkap en ca 20cm inbouwdiepte nodig.

In de kookplaat ingewerkt is de vrouw absoluut geen fan van en wordt niet overwogen, alle populariteit ten spijt.
Je kan ook nog kijken naar een losse motor ergens in een andere ruimte (of zelfs aan de gevel), dat scheelt ook inbouwhoogte. Volgens Novy moet je max 1,60 meter aanhouden vanaf kookplaat tot plafond, dus met kasten van 90cm mag je plafond max 2,50m zijn. Wave Design heeft volgens mij ook afzuigkappen met externe motor maar ik heb geen idee hoe ze verhouden ten opzichte van Novy - ze hebben wel een volledig ingestucte kap mocht je dat willen.

Externe motor heeft sowieso meer afzuigcapaciteit dan een motor in je unit gebouwd, en is over het algemeen stiller.

Acties:
  • +1 Henk 'm!

  • Tweak_ers
  • Registratie: Oktober 2021
  • Laatst online: 10:24
aap schreef op dinsdag 26 maart 2024 @ 10:54:
Ik heb laatst de Homeconnect voor de oven voor het eerst zinvol gebruikt: ik kwam er tijdens het koken achter dat ik een stokbrood miste. Aannemende dat ik het zou moeten doen met een afbakbrood, had ik de oven vast aangezet voordat ik naar de supermarkt racete. Toen ik in de supermarkt zag dat er nog vers brood was, heb ik vanuit daar de oven vast weer uitgezet.

Voor de vaatwasser is het enigszins nuttig dat je in de app kunt zien hoe lang hij nog moet, maar aangezien het eco-programma net geen vijf uur duurt, is het antwoord toch eigenlijk altijd dat ik niet moet wachten met naar bed gaan tot de vaatwasser klaar is.

Leuke gimmick, dat homeconnect, maar ik zou het niet echt missen als ik het niet had.

(De enige feature die ik zou wensen is een synchronisatie van de klokjes van de oven en de magnetron, maar de magnetron heeft geen HC...)
Ik vind het heerlijk!
Sowieso alle extra programma’s gedownload via de app.
Per programma zie je het energieverbruik en het waterverbruik direct. Wat ik overigens nog steeds bizar vind, ik mee 10 jaar oude Siemens vaatwasser was zuiniger dan onze huidige.

Acties:
  • 0 Henk 'm!

  • Cap
  • Registratie: Juli 2000
  • Niet online

Cap

Die verbruikswaarden in de app zijn maar benaderingen, het werkelijke verbruik hangt af van de hoeveelheid / vervuiling van de vaat, en de gekozen sensor instelling (aqua sensor), de waterhardheid, druk en temperatuur (zie handleiding). Wat energieverbruik betreft is het daarom leuk om er eens een metertje tussen te zetten en verschillende programma's te proberen. En dan natuurlijk vergelijken met de getoonde waardes in de HC app.

Wat betreft zuinigheid van de oude tov de nieuwe vaatwasser, het hangt er natuurlijk ook vanaf waar je voor gekozen hebt. Als je toen een hoge serie vaatwasser had en nu een 4-series zonder isolatie, efficient dry en zeoliet... dan is die uitkomst natuurlijk niet verrassend. Het valt me op dat veel mensen dure (stoom)ovens kiezen maar dat koelkasten en vaatwassers sluitposten zijn, terwijl daar het energieverbruik en geluid natuurlijk telt, en daar betaal je voor.

Acties:
  • 0 Henk 'm!

  • Md2024
  • Registratie: Februari 2024
  • Laatst online: 25-03 05:22
Hallo forumleden,
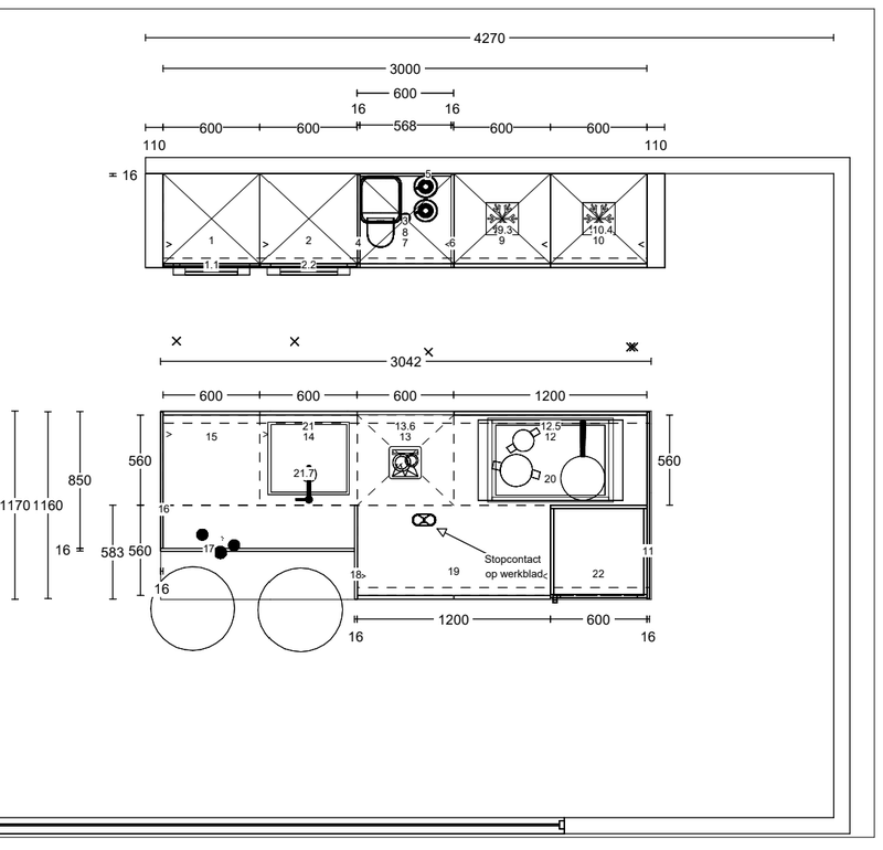
na al veel kennis opgedaan te hebben en verschillende keukenzaken bezocht te hebben, zijn we op het punt aangekomen om een keuken te bestellen. We hebben onderstaand ontwerp bij Superkeukens laten maken. Meerendeel van de apparaten kopen we "los" en zal Superkeukens inbouwen. Inbouwkoelkast (Siemens KI81RADE0) schaffen we wel via hen aan vanwege de scherpe prijs. De zichtbare apparaten zijn dus niet opgenomen in de offerte.

Het gaat om een (greeploze) Schüller keuken waarbij de korpus, greeplijst en front in de kleur kiezel-grijs is uitgevoerd. hogere onderkasten (84 cm) en bovenop de kastenwand extra bovenkasten.
werkblad is composiet (12 mm, optisch 2 cm verdikt type Chamois Polished)

Graag jullie mening over de keuken, hebben jullie suggesties in de indeling? De offerte komt uit op een totaalprijs van 13.786,02 euro. We kunnen de keuken kopen voor 12.000 euro (maar dat is "eigenlijk lager dan mag", aldus de verkoper). Is de prijs reëel?

Afbeeldingslocatie: https://tweakers.net/i/or1Rkzd8csQwwDhLkJza3dEDEpE=/full-fit-in/4920x3264/filters:max_bytes(3145728):no_upscale():strip_icc():fill(white):strip_exif()/f/image/8IxntJydFKlvIyyg4lyUGHfE.jpg?f=user_large

Afbeeldingslocatie: https://tweakers.net/i/7DdtFDVWv5Z94S1B4ISkGCbNJ3A=/full-fit-in/4920x3264/filters:max_bytes(3145728):no_upscale():strip_icc():fill(white):strip_exif()/f/image/ozqf8J8j59AMH4ILy0mz3FOs.jpg?f=user_large

Acties:
  • 0 Henk 'm!

  • Rzaan
  • Registratie: Mei 2018
  • Laatst online: 12:31

Rzaan

Altijd zoekende

Ik heb van de week een televisie gekocht en bij sommige winkels (o.a. Hello TV) kun je dan chatten en proberen om wat van de prijs af te krijgen.
Is me gelukt.
Gaat dit ook op bij sommige witgoedwinkels als je - zoals ik - een diepvrieskast wilt kopen?

Acties:
  • 0 Henk 'm!

  • Wuursj
  • Registratie: Maart 2001
  • Laatst online: 11:50

Wuursj

want worst is al bezet

Jints schreef op dinsdag 26 maart 2024 @ 23:03:
Wat zijn de meningen over inbouw dampkappen in verlaagd plafond?
Ja ik heb hier wel onderzoek naar gedaan en tot de conclusie gekomen dat dit voor ons het beste compromis geeft. Ik wil ook geen afzuiging in de plaat en dat was dit het minst zichtbare oplossing met afzuiging naar buiten.

Ik heb een Novy 6840 gekocht die met ene breedte van 120cm een stuk breder is dan de 80cm kookplaat en zo een 'gordijn' maakt om de kookplaat heen. Met met externe motor (die bij ons in het plafond boven het toilet gaat komen) en was bij een vriend zeer gecharmeerd van het lage geluid met soortgelijke opstelling. Ook op volle kracht veel minder dan onze oude kap en ook minder dan de kookplaten met ingebouwde afzuiging die ik ken. Maar het hangt dus ook af waar je de motor kwijt kan.

Door de maximale hoogte boven kookplaat van 1,6m en een plafond van 3m hoog, moet het hier ook in een 48cm koof komen waarbij ik wel het randje van die 1,6 meter ga opzoeken. Reden van ons om niet een kookschiereiland maar voor een spoelschiereiland te kiezen en de kookplaat in het aanrecht aan de muur te maken.

Behalve wat testjes bij die vriend, thuis nog geen praktijk ervaring. Wel vind ik het vreselijk irritant dat de verschillende merken niet met elkaar kunnen praten. Mijn Siemens kookplaat kan dus niet de Novy plaat automatisch laten starten. Iets dat bij gelijke merken voor plaat en afzuigkap wel (soms) kan.
Wel heeft Novy nog een uitbreidingssetje waarmee je externe kleppen en spotjes mee kan laten gaan. Ik gebruik dat om een inlaat klep open te laten gaan waardoor de WTW van het het huis minder ontregeld wordt als de kap gaat zuigen.

[ Voor 38% gewijzigd door Wuursj op 27-03-2024 17:05 ]

droogworst - rookworst - leverworst - salamiworst - knakworst - bokworst - boterhammenworst


Acties:
  • +1 Henk 'm!

  • TwiSteD1
  • Registratie: Juli 2005
  • Laatst online: 10-10 20:50
Md2024 schreef op woensdag 27 maart 2024 @ 14:31:
Hallo forumleden,
... Is de prijs reëel?
Lager dan eigenlijk mag, even aan de manager vragen en aanbieding alleen vandaag geldig zijn verkooppraatjes natuurlijk.

De prijs voor de keuken is dus 12k met alleen de koelkast. Je hebt best wat kasten en het werkblad is ook niet heel klein, dus de prijs lijkt me wel reëel. Al zal je er vast nog wel iets af kunnen krijgen bij een andere keukenzaak.

Ik zou de oven in de kastenwand plaatsen, dat is ergonomischer en staat wat mooier imho. Ik zou de koof boven langs laten lopen, zodat de kastenwand helemaal ingebouwd is. Verder zou ik de verlichting in de nis niet vergeten.

Acties:
  • 0 Henk 'm!

  • Compuhair
  • Registratie: September 2009
  • Nu online
TwiSteD1 schreef op woensdag 27 maart 2024 @ 17:06:
[...]
Verder zou ik de verlichting in de nis niet vergeten.
En stopcontacten

Acties:
  • 0 Henk 'm!

  • Jints
  • Registratie: Maart 2024
  • Laatst online: 07-04-2024
Wuursj schreef op woensdag 27 maart 2024 @ 16:56:
[...]
Ik heb een Novy 6840 gekocht die met ene breedte van 120cm een stuk breder is dan de 80cm kookplaat en zo een 'gordijn' maakt om de kookplaat heen.
Die heeft een diepere inbouw nodig, 10-11cm meer dalen dus. De plafond zit sowieso al op 2m51. We hadden altijd het idee om hem gelijk te te trekken op hoogte van een poutrel die we eens hebben laten steken, dat zou 18 cm zakken zijn. Voor de ondiepe Novy zouden we dan dus nog een paar cm extra dalen en dus nog een heel klein stukje onder de poutrel moeten komen. Gezien ons eerste idee over de plafond leek ons dat dan ook niet erg. Maar die laatste verkoper verklaarde ons bijna zot dat we tot zo laag zouden komen met het hele plafond...

Misschien is het extreem laag voor een plafond, 2m30? Ik weet het niet. We zijn zelf niet bepaald groot :D

Acties:
  • +1 Henk 'm!

  • RobbieB
  • Registratie: Juni 2004
  • Laatst online: 12-10 15:57
Rzaan schreef op woensdag 27 maart 2024 @ 16:32:
Ik heb van de week een televisie gekocht en bij sommige winkels (o.a. Hello TV) kun je dan chatten en proberen om wat van de prijs af te krijgen.
Is me gelukt.
Gaat dit ook op bij sommige witgoedwinkels als je - zoals ik - een diepvrieskast wilt kopen?
Keukenloods geeft die ruimte soms wel, zeker op producten waarvan ze de prijs niet online adverteren. Maar bij witgoed geldt wel sneller: hoe meer producten, hoe meer korting.

Sony A6700 - 10-18 F4 - 18-50 F2.8 - 24 F1.8 - 56 F1.4 - 70-350G


Acties:
  • 0 Henk 'm!

  • knny
  • Registratie: Juni 2002
  • Laatst online: 11:57
Even een vraagje aan iedereen. Wij hebben bijna deze keuken besproken en in de eerdere keuken was een koof aanwezig voor oa spots en afzuigkap. Nu is in de nieuwe keuken de koof eigenlijk niet meer noodzakelijk en de kasten komen niet tot het plafond. Zouden jullie dan de koof ook weghalen of laten zitten en evt schilderen?

Hierbij situatie nu:
Afbeeldingslocatie: https://tweakers.net/i/ve21PRp_lrlsEWcohT6DKvFh9J8=/800x/filters:strip_icc():strip_exif()/f/image/EhR52de6WkyESJmxCmcA9Juy.jpg?f=fotoalbum_large


En situatie hoe het gaat worden:
Afbeeldingslocatie: https://tweakers.net/i/AHDBpzKxz0SiatSzTv4Zz9Z8bqQ=/800x/filters:strip_icc():strip_exif()/f/image/khY9JB6RpmRZV74rIvOh6vsn.jpg?f=fotoalbum_large

[ Voor 49% gewijzigd door knny op 28-03-2024 10:28 ]

Solar Edge 2,96 Wp 8x 370 ZZO (6x 45° en 2x plat dak 15°)


Acties:
  • +2 Henk 'm!

  • Sjowhan
  • Registratie: Oktober 2001
  • Laatst online: 11:32
Mijn mening;
Ik zou de koof weg halen (weg laten halen) als deze niet meer gebruikt wordt.
Hierdoor is (als je de tekening ziet) het ruimtelijker.
Ik weet niet hoe het bouwtechnisch/keukentechnisch in elkaar steekt, daar heb ik te weinig kennis voor.

http://specs.tweak.to/5253


Acties:
  • +1 Henk 'm!

  • LordBusiness
  • Registratie: Oktober 2022
  • Niet online
Rzaan schreef op woensdag 27 maart 2024 @ 16:32:
Ik heb van de week een televisie gekocht en bij sommige winkels (o.a. Hello TV) kun je dan chatten en proberen om wat van de prijs af te krijgen.
Is me gelukt.
Gaat dit ook op bij sommige witgoedwinkels als je - zoals ik - een diepvrieskast wilt kopen?
Bel keukenloods even. Ik heb de ervaring daar wel. :)

Acties:
  • +1 Henk 'm!

  • Kapitein Merijn
  • Registratie: Maart 2012
  • Laatst online: 12-10 10:30
knny schreef op donderdag 28 maart 2024 @ 10:27:
Even een vraagje aan iedereen. Wij hebben bijna deze keuken besproken en in de eerdere keuken was een koof aanwezig voor oa spots en afzuigkap. Nu is in de nieuwe keuken de koof eigenlijk niet meer noodzakelijk en de kasten komen niet tot het plafond. Zouden jullie dan de koof ook weghalen of laten zitten en evt schilderen?

Hierbij situatie nu:
[Afbeelding]


En situatie hoe het gaat worden:
[Afbeelding]
Heb je een plattegrond van de ruimte?
Ik weet niet of de keuken al in bestelling staat maar ik zou nog eens heel goed nadenken over de opstelling.
Je gaat van een hele praktische indeling naar een niet al te praktische opstelling... En dan druk ik me nog netjes uit.

Untappd: Kapitein_Merijn


Acties:
  • 0 Henk 'm!

  • knny
  • Registratie: Juni 2002
  • Laatst online: 11:57
Kapitein Merijn schreef op donderdag 28 maart 2024 @ 10:40:
[...]


Heb je een plattegrond van de ruimte?
Ik weet niet of de keuken al in bestelling staat maar ik zou nog eens heel goed nadenken over de opstelling.
Je gaat van een hele praktische indeling naar een niet al te praktische opstelling... En dan druk ik me nog netjes uit.
We wilden graag aan de andere zijde gaan koken, daarmee ook wat meer zicht op rest van kamer en kids. De afzuiging van de Bora kan dan direct naar buiten.

Keuken is nog niet besteld :)

Solar Edge 2,96 Wp 8x 370 ZZO (6x 45° en 2x plat dak 15°)


Acties:
  • 0 Henk 'm!

  • Kapitein Merijn
  • Registratie: Maart 2012
  • Laatst online: 12-10 10:30
knny schreef op donderdag 28 maart 2024 @ 10:57:
[...]


We wilden graag aan de andere zijde gaan koken, daarmee ook wat meer zicht op rest van kamer en kids. De afzuiging van de Bora kan dan direct naar buiten.

Keuken is nog niet besteld :)
De positie en grote van de spoelbak is echt onwerkbaar. Afgaande op je render heeft de spoelkast een deur van 40cm? Dat zou inhouden dat de spoelbak ca. 35cm breed is. Je kan daardoor niet recht voor je spoelbak staan. De spoelbak is tevens zo klein dat het een hele uitdaging word om bijvoorbeeld een grote pan af te wassen.
Je kookplaat voor de raam moet je ook echt niet willen. Is het werkblad aan die zijde dieper dan 60cm?

Untappd: Kapitein_Merijn


Acties:
  • 0 Henk 'm!

  • knny
  • Registratie: Juni 2002
  • Laatst online: 11:57
Kapitein Merijn schreef op donderdag 28 maart 2024 @ 11:09:
[...]

De positie en grote van de spoelbak is echt onwerkbaar. Afgaande op je render heeft de spoelkast een deur van 40cm? Dat zou inhouden dat de spoelbak ca. 35cm breed is. Je kan daardoor niet recht voor je spoelbak staan. De spoelbak is tevens zo klein dat het een hele uitdaging word om bijvoorbeeld een grote pan af te wassen.
Je kookplaat voor de raam moet je ook echt niet willen. Is het werkblad aan die zijde dieper dan 60cm?
Ik zie dit wel op de offerte staan qua kast. Er is gekozen voor een hoekspoelkast omdat dan de Combi+ in hoek kan staan en dan houden we nog ruimte over voor schoonmaakmiddel/doekjes etc

Hoekspoelkast met deur
Afmetingen: 1050 x 780 x 619 mm

en spoelbak:
LS-DE0913L-VIB RVS vlakinbouwspoelbak (staat geen maat in )

Solar Edge 2,96 Wp 8x 370 ZZO (6x 45° en 2x plat dak 15°)


Acties:
  • 0 Henk 'm!

  • Blihi
  • Registratie: Juni 2018
  • Laatst online: 09-10 15:42
Ik ben het eens met @Kapitein Merijn.

@knny Probeer rechts die twee hoge kasten te vervangen door 1 hoge kast. Dat geeft je ruimte.

Je moet zowel bij de kookplaat als bij de spoelbak ruimte aan beide kanten hebben om er voor te staan.

Ik zou in de hoek kiezen voor een kast met koelkast en dan de combi-over daar boven, of als je echt een oven wilt, deze onder de kookplaat wegwerken (dat lukt niet met een Bora kookplaat helaas).

Wat is het probleem van de huidige keuken? Waar zit nu je koelkast? Heb je echt zo'n enorme hoge kast nodig?

Als het puur voor servies is kun je ook kiezen voor een kast die maar 30 breed is. Dat levert je ook ruimte op op het aanrecht.

[ Voor 10% gewijzigd door Blihi op 28-03-2024 11:41 ]

WP: Toshiba Estia 8kW split HWT-801H(R)W-E + HWT-1101 binnenunit met 300 liter SWW tank. PV: 4 strings, totaal 12590 Wp


Acties:
  • 0 Henk 'm!

  • knny
  • Registratie: Juni 2002
  • Laatst online: 11:57
Blihi schreef op donderdag 28 maart 2024 @ 11:40:
Ik ben het eens met @Kapitein Merijn.

@knny Probeer rechts die twee hoge kasten te vervangen door 1 hoge kast. Dat geeft je ruimte.

Je moet zowel bij de kookplaat als bij de spoelbak ruimte aan beide kanten hebben om er voor te staan.

Ik zou in de hoek kiezen voor een kast met koelkast en dan de combi-over daar boven, of als je echt een oven wilt, deze onder de kookplaat wegwerken (dat lukt niet met een Bora kookplaat helaas).

Wat is het probleem van de huidige keuken? Waar zit nu je koelkast? Heb je echt zo'n enorme hoge kast nodig?

Als het puur voor servies is kun je ook kiezen voor een kast die maar 30 breed is. Dat levert je ook ruimte op op het aanrecht.
Koelkast en vriezer komen op andere plek. Daar staat nu een oudere Amerikaanse koelast, die vervangen wordt door nieuwe koel en vries van Liebherr met water en ijsblokken.
Afbeeldingslocatie: https://tweakers.net/i/boAQV5E1RmDBh4T5cMAfX_roDqc=/x800/filters:strip_icc():strip_exif()/f/image/Q4YJypoh9vXr8GxT4W5tnPha.jpg?f=fotoalbum_large

We komen nu ruimte te kort voornamelijk voor servies en overige opbergruimte, vandaar de 2 kasten. In kast helemaal rechts komt een uitschuiflade waar koffiemachine op komt. En in kast link een Bora stoomoven met multilade.

Ik zal nog eens navragen wat de werkbladdiepte wordt aan kookzijde en hoe groot de spoelbak is.
Bedankt voor jullie tip, zet mij weer erg aan het denken.

Solar Edge 2,96 Wp 8x 370 ZZO (6x 45° en 2x plat dak 15°)


Acties:
  • 0 Henk 'm!

  • Blihi
  • Registratie: Juni 2018
  • Laatst online: 09-10 15:42
Ik zou nooit werkbladruimte opofferen voor opbergruimte. Zet die oven lekker naast de koelkast in die nis (dus rechts koelvries, links oven en opbergruimte).

Als je dan nog meer opbergruimte nodig hebt, kies er dan voor om deels hoge kasten aan de kant van de kamer te doen. Bijvoorbeeld op deze manier:

Afbeeldingslocatie: https://tweakers.net/i/8F0-eW7cchpCizUAZUI7JzkbZ6s=/800x/filters:strip_icc():strip_exif()/f/image/5t6Zp45O3qls4LB2IKwslGB1.jpg?f=fotoalbum_large

Hier zit er zelfs een oven in verwerkt, maar het idee is hetzelfde: Je pakt een ondiepe, hoge kast van 30 breed met enkele horizontale bovenkastjes die doorlopen boven het aanrecht.

WP: Toshiba Estia 8kW split HWT-801H(R)W-E + HWT-1101 binnenunit met 300 liter SWW tank. PV: 4 strings, totaal 12590 Wp


Acties:
  • 0 Henk 'm!

  • Wuursj
  • Registratie: Maart 2001
  • Laatst online: 11:50

Wuursj

want worst is al bezet

Jints schreef op woensdag 27 maart 2024 @ 18:54:
[...]


Die heeft een diepere inbouw nodig, 10-11cm meer dalen dus. De plafond zit sowieso al op 2m51. We hadden altijd het idee om hem gelijk te te trekken op hoogte van een poutrel die we eens hebben laten steken, dat zou 18 cm zakken zijn. Voor de ondiepe Novy zouden we dan dus nog een paar cm extra dalen en dus nog een heel klein stukje onder de poutrel moeten komen. Gezien ons eerste idee over de plafond leek ons dat dan ook niet erg. Maar die laatste verkoper verklaarde ons bijna zot dat we tot zo laag zouden komen met het hele plafond...

Misschien is het extreem laag voor een plafond, 2m30? Ik weet het niet. We zijn zelf niet bepaald groot :D
Met de motor op afstand, wordt ook de 6840 een stuk lager omdat die grote blok met motor niet meer boven de kap zit. Er komt dan direct een bocht op de kap:
Afbeeldingslocatie: https://i.imgur.com/df8RqMD.png

Of nog lager met een platte doos als je met rechthoekige kanalen werkt, zoiets als dit:
Afbeeldingslocatie: https://i.imgur.com/Se1zjDR.png

droogworst - rookworst - leverworst - salamiworst - knakworst - bokworst - boterhammenworst


Acties:
  • 0 Henk 'm!

  • Blihi
  • Registratie: Juni 2018
  • Laatst online: 09-10 15:42
Jints schreef op woensdag 27 maart 2024 @ 18:54:
[...]


Die heeft een diepere inbouw nodig, 10-11cm meer dalen dus. De plafond zit sowieso al op 2m51. We hadden altijd het idee om hem gelijk te te trekken op hoogte van een poutrel die we eens hebben laten steken, dat zou 18 cm zakken zijn. Voor de ondiepe Novy zouden we dan dus nog een paar cm extra dalen en dus nog een heel klein stukje onder de poutrel moeten komen. Gezien ons eerste idee over de plafond leek ons dat dan ook niet erg. Maar die laatste verkoper verklaarde ons bijna zot dat we tot zo laag zouden komen met het hele plafond...

Misschien is het extreem laag voor een plafond, 2m30? Ik weet het niet. We zijn zelf niet bepaald groot :D
2,30 is extreem laag. Bij nieuwbouw is 2,65 al de norm, terwijl 2,40 al zeker 20 jaar de minimaal verplichte plafondhoogte is. Lager dan dat zou ik je zeker niet aanraden.

WP: Toshiba Estia 8kW split HWT-801H(R)W-E + HWT-1101 binnenunit met 300 liter SWW tank. PV: 4 strings, totaal 12590 Wp


Acties:
  • +1 Henk 'm!

  • knny
  • Registratie: Juni 2002
  • Laatst online: 11:57
Blihi schreef op donderdag 28 maart 2024 @ 11:51:
Ik zou nooit werkbladruimte opofferen voor opbergruimte. Zet die oven lekker naast de koelkast in die nis (dus rechts koelvries, links oven en opbergruimte).

Als je dan nog meer opbergruimte nodig hebt, kies er dan voor om deels hoge kasten aan de kant van de kamer te doen. Bijvoorbeeld op deze manier:

[Afbeelding]

Hier zit er zelfs een oven in verwerkt, maar het idee is hetzelfde: Je pakt een ondiepe, hoge kast van 30 breed met enkele horizontale bovenkastjes die doorlopen boven het aanrecht.
Gelukkig leveren we geen weekbladruimte in en krijgen aan linkerzijde nog een stukje erbij, dus de totale werkruimte blijft bijna hetzelfde. Koelkast en vriezer zijn beide grote modellen en dat willen we zo houden.

Ik neem je tips mee.

Solar Edge 2,96 Wp 8x 370 ZZO (6x 45° en 2x plat dak 15°)


Acties:
  • 0 Henk 'm!

  • Kapitein Merijn
  • Registratie: Maart 2012
  • Laatst online: 12-10 10:30
knny schreef op donderdag 28 maart 2024 @ 11:22:
[...]


Ik zie dit wel op de offerte staan qua kast. Er is gekozen voor een hoekspoelkast omdat dan de Combi+ in hoek kan staan en dan houden we nog ruimte over voor schoonmaakmiddel/doekjes etc

Hoekspoelkast met deur
Afmetingen: 1050 x 780 x 619 mm

en spoelbak:
LS-DE0913L-VIB RVS vlakinbouwspoelbak (staat geen maat in )
De code is van een spoelbak van 40cm breed. Aangezien deze een kastbreedte nodig heeft van 45cm komt hij dus asymmetrisch in de kast te liggen. Los van het feit dat het heel onpraktisch is doet dat imo ook echt afbreuk aan de keuken.
De uitstraling van de keuken (een Systemat volgens mij) en de apparatuur is top maar de opstelling doet echt afbreuk aan het geheel.

Ik zou overigens de 14cm lade vervangen voor het 29cm model zodat je er hogere ovenschalen in kwijt kan.

Untappd: Kapitein_Merijn


Acties:
  • 0 Henk 'm!

  • knny
  • Registratie: Juni 2002
  • Laatst online: 11:57
Kapitein Merijn schreef op donderdag 28 maart 2024 @ 12:38:
[...]

De code is van een spoelbak van 40cm breed. Aangezien deze een kastbreedte nodig heeft van 45cm komt hij dus asymmetrisch in de kast te liggen. Los van het feit dat het heel onpraktisch is doet dat imo ook echt afbreuk aan de keuken.
De uitstraling van de keuken (een Systemat volgens mij) en de apparatuur is top maar de opstelling doet echt afbreuk aan het geheel.

Ik zou overigens de 14cm lade vervangen voor het 29cm model zodat je er hogere ovenschalen in kwijt kan.
Idee hoe het anders kan dan? Naast spoelbak zit vaatwasser. Die verplaatsen dus?

Solar Edge 2,96 Wp 8x 370 ZZO (6x 45° en 2x plat dak 15°)


Acties:
  • 0 Henk 'm!
knny schreef op donderdag 28 maart 2024 @ 13:00:
[...]


Idee hoe het anders kan dan? Naast spoelbak zit vaatwasser. Die verplaatsen dus?
Optie 1: 1 hoge kast weg en meer ruimte creëren aan die kant van de keuken

Optie 2: indeling omgooien en gaan spoelen aan de andere kant

Optie 3: vaatwasser naar andere kant verplaatsen, maar wel jammer van het lijnenspel

[ Voor 11% gewijzigd door SquareOne op 28-03-2024 13:12 ]


Acties:
  • 0 Henk 'm!

  • TwiSteD1
  • Registratie: Juli 2005
  • Laatst online: 10-10 20:50
knny schreef op donderdag 28 maart 2024 @ 13:00:
[...]


Idee hoe het anders kan dan? Naast spoelbak zit vaatwasser. Die verplaatsen dus?
De kookplaat links op het einde, spoelen voor het raam met daartussen wat werkruimte. Vaatwasser laat je daar zitten en ladekasten kunnen ook gewoon blijven, gewoon een uitsparing maken voor de afvoer, dat doen wij ook. Dan heb je in de hoek naast de kastenwand nog mooi ruimte voor je koffiezetapparaat, want die zet je natuurlijk niet vol in het zicht, dat is lelijk. In de hoek nog een carrousel misschien? Quooker in de hoek, dat is wel handig inderdaad, dan kun je de onderste lade onder de spoelbak ook gewoon behouden. Mijn mening, doe ermee wat je wilt ;)

[ Voor 11% gewijzigd door TwiSteD1 op 28-03-2024 13:25 ]


Acties:
  • +3 Henk 'm!

  • Rzaan
  • Registratie: Mei 2018
  • Laatst online: 12:31

Rzaan

Altijd zoekende

Doordat Ikea Nederland niet alles op voorraad heeft, dacht ik: Ik ga eens in Hasselt, Belgie kijken.
Niet alleen hebben ze daar wel de spullen; het is er ook nog eens een stuk goedkoper.
Scharnieren in Nederland € 14 per 2, in Hasselt € 10 per 2.
Alles is bijna goedkoper. Soms maar € 3 voor een ladefrontje maar als je een stuk of 18 moet hebben, dan scheelt dat al weer € 50.
Kom er net ook achter dat ik een NORDLI Bovenblad en plint, 80x47 cm in Nederland € 79 kost en in Belgie € 59. Dat is een prijsverschil van € 20 of 25%. Dat is echt absurd.
Ik heb net vorige week 2 Nordli kasten in elkaar gezet. Als ik het in Belgie had gekocht, had me dat zeker € 60 gescheeld. En had ik onderweg nog goedkoper kunnen tanken.

Het is heen en terug wel 100 KM meer rijden dan naar Ikea Son.
Maar ik moet nog een boel hebben voor de bijkeuken en een snelle berekening gaf aan dat ik het in Hasselt voor pak 'm beet € 300 goedkoper kan krijgen. Op een aankoop van rond de € 2,000,-. Daar rij ik graag 100 KM extra voor.

Afbeeldingslocatie: https://hatelist.files.wordpress.com/2009/12/ikeagrrrr.jpg

Acties:
  • 0 Henk 'm!

  • Musicmaster20
  • Registratie: Oktober 2009
  • Laatst online: 11:26
Wij gaan verbouwen en eind dit jaar dient daar ook een nieuwe keuken geplaatst te worden. We zitten een beetje te stoeien met de deur naar de garage maar daar is het volgende design uitgekomen.

Op aanraden van veel kennissen zijn we bij Ekelhoff uitgekomen. Wel een betrouwbaar gevoel bij de uitstraling, de tijd voor advies etc.

We willen de vaatwasser een beetje op hoogte en 2 ovens, Quooker, etc.
We twijfelen of de onderste oven ook wel hoog genoeg is...

Al met al wordt bijgaande keuken aangeboden op basis van Contur (schuller toch?) met de volgende apparatuur:

Bora PURMU
Siemens IQ500 (SX65Z802BE) vaatwasser
Siemens IQ700 (HB976GMB1 (oven met pyrolyse)
Siemens IQ700 (HS936GCB1) stoomoven zonder vaste wateraansluiting
Quooker Combi+
Siemens IQ500 (KI41RSDD1) koelkast
Blanco SUBLINE 500-F spoelbak
LED verlichting onder het werkblad in het eiland

Geen specificatie van prijs en ook nog nergens korting benoemd. Geen idee in hoeverre het onderhandelbaar is bij Ekelhoff. Totaalprijs voor nu is 35600,-.

In NL hebben we bij een lokale keukenboer op basis van keller keuken en AEG apparatuur een directe prijs (met kortingen, 35% op keuken, 30% op apparatuur, 25% op randapparatuur) gekregen die verder niet onderhandelbaar is van ca. 32k. Kwa indeling verder helemaal gelijk.

Zitten we op de goede weg? Nog tips kwa indelingen?

Afbeeldingslocatie: https://tweakers.net/i/1bSfWj8iqknFJJ1JjhOIrE4rFE8=/full-fit-in/4920x3264/filters:max_bytes(3145728):no_upscale():strip_icc():fill(white):strip_exif()/f/image/6kPT3rDhehOhFCr0i2G9wPeI.jpg?f=user_large

Acties:
  • +1 Henk 'm!

  • Sammy_tukker
  • Registratie: Augustus 2011
  • Laatst online: 07:13
Rzaan schreef op donderdag 28 maart 2024 @ 14:18:

Ik heb net vorige week 2 Nordli kasten in elkaar gezet. Als ik het in Belgie had gekocht, had me dat zeker € 60 gescheeld. En had ik onderweg nog goedkoper kunnen tanken.

Het is heen en terug wel 100 KM meer rijden dan naar Ikea Son.

[Afbeelding]
off-topic: heb je de nederlandse bon nog? dan een nieuwe kast in belgie kopen en in nederland terugbrengen: mag 365 dagen en als je family lid bent levenslang >:)

Acties:
  • 0 Henk 'm!

  • Aezakmi
  • Registratie: Juni 2023
  • Laatst online: 09-10 15:13
Musicmaster20 schreef op donderdag 28 maart 2024 @ 14:27:
Wij gaan verbouwen en eind dit jaar dient daar ook een nieuwe keuken geplaatst te worden. We zitten een beetje te stoeien met de deur naar de garage maar daar is het volgende design uitgekomen.

Op aanraden van veel kennissen zijn we bij Ekelhoff uitgekomen. Wel een betrouwbaar gevoel bij de uitstraling, de tijd voor advies etc.

We willen de vaatwasser een beetje op hoogte en 2 ovens, Quooker, etc.
We twijfelen of de onderste oven ook wel hoog genoeg is...

Al met al wordt bijgaande keuken aangeboden op basis van Contur (schuller toch?) met de volgende apparatuur:

Bora PURMU
Siemens IQ500 (SX65Z802BE) vaatwasser
Siemens IQ700 (HB976GMB1 (oven met pyrolyse)
Siemens IQ700 (HS936GCB1) stoomoven zonder vaste wateraansluiting
Quooker Combi+
Siemens IQ500 (KI41RSDD1) koelkast
Blanco SUBLINE 500-F spoelbak
LED verlichting onder het werkblad in het eiland

Geen specificatie van prijs en ook nog nergens korting benoemd. Geen idee in hoeverre het onderhandelbaar is bij Ekelhoff. Totaalprijs voor nu is 35600,-.

In NL hebben we bij een lokale keukenboer op basis van keller keuken en AEG apparatuur een directe prijs (met kortingen, 35% op keuken, 30% op apparatuur, 25% op randapparatuur) gekregen die verder niet onderhandelbaar is van ca. 32k. Kwa indeling verder helemaal gelijk.

Zitten we op de goede weg? Nog tips kwa indelingen?

[Afbeelding]
Ik vind 35 en 32k nogal, afhankelijk van de afmetingen natuurlijk, wij zaten op 24k met:


Hoekopstelling met korte kant hoge kasten en apothekerskast (2.5x3.7 meter) en eiland (2.2x1 meter)

Hacker kasten en natuursteen blad
Siemens equivalent van de PURU
Plasma filter
Siemens IQ500 vaatwasser
Siemens IQ700 combioven

Quooker Combi+ FLEX
Siemens IQ500 koelkast
RVS spoelbak
LED verlichting onder het werkblad in het eiland

Acties:
  • 0 Henk 'm!

  • Rzaan
  • Registratie: Mei 2018
  • Laatst online: 12:31

Rzaan

Altijd zoekende

Sammy_tukker schreef op donderdag 28 maart 2024 @ 14:35:
[...]


off-topic: heb je de nederlandse bon nog? dan een nieuwe kast in belgie kopen en in nederland terugbrengen: mag 365 dagen en als je family lid bent levenslang >:)
Dat had ik net bedacht: Great Minds Think Alike!

Heb net met Ikea gechat. Je hoeft zelfs de originele verpakking niet meer te hebben. Zolang het maar in orde is en je een aankoopbewijs hebt.
Ik kan ook nog de 'Nederlandse' Plint eruit halen, en vervangen door de Belgische. Dan volg ik helemaal de regels.

Vraag me af of de Belgische Ikea dezelfde verpakking heeft. Wellicht met andere nummers, barcode en taal.
Dus dan maar voorzichtig uit de verpakking.

Acties:
  • 0 Henk 'm!

  • Musicmaster20
  • Registratie: Oktober 2009
  • Laatst online: 11:26
Aezakmi schreef op donderdag 28 maart 2024 @ 14:42:
[...]


Ik vind 35 en 32k nogal, afhankelijk van de afmetingen natuurlijk, wij zaten op 24k met:


Hoekopstelling met korte kant hoge kasten en apothekerskast (2.5x3.7 meter) en eiland (2.2x1 meter)

Hacker kasten en natuursteen blad
Siemens equivalent van de PURU
Plasma filter
Siemens IQ500 vaatwasser
Siemens IQ700 combioven

Quooker Combi+ FLEX
Siemens IQ500 koelkast
RVS spoelbak
LED verlichting onder het werkblad in het eiland
Keuken zelf is 5 meter en eiland is 3x1 meter.
Als ik dan oven extra pak en de accessoires zoals prullenbak, etc dan lijkt er nog wel wat onderhandelingsruimte te zijn :-)
Liefst willen we 1 oven boven de vaatwasser hebben maar het wordt afgeraden om de oven tegen de muur te hebben en hij dan wel "heel hoog" komt te zitten. (adviseur was dan ook niet zo groot... :))

Acties:
  • 0 Henk 'm!

  • TwiSteD1
  • Registratie: Juli 2005
  • Laatst online: 10-10 20:50
Musicmaster20 schreef op donderdag 28 maart 2024 @ 14:27:
Wij gaan verbouwen en eind dit jaar dient daar ook een nieuwe keuken geplaatst te worden. We zitten een beetje te stoeien met de deur naar de garage maar daar is het volgende design uitgekomen.

Op aanraden van veel kennissen zijn we bij Ekelhoff uitgekomen. Wel een betrouwbaar gevoel bij de uitstraling, de tijd voor advies etc.

We willen de vaatwasser een beetje op hoogte en 2 ovens, Quooker, etc.
We twijfelen of de onderste oven ook wel hoog genoeg is...

Al met al wordt bijgaande keuken aangeboden op basis van Contur (schuller toch?) met de volgende apparatuur:

Bora PURMU
Siemens IQ500 (SX65Z802BE) vaatwasser
Siemens IQ700 (HB976GMB1 (oven met pyrolyse)
Siemens IQ700 (HS936GCB1) stoomoven zonder vaste wateraansluiting
Quooker Combi+
Siemens IQ500 (KI41RSDD1) koelkast
Blanco SUBLINE 500-F spoelbak
LED verlichting onder het werkblad in het eiland

Geen specificatie van prijs en ook nog nergens korting benoemd. Geen idee in hoeverre het onderhandelbaar is bij Ekelhoff. Totaalprijs voor nu is 35600,-.

In NL hebben we bij een lokale keukenboer op basis van keller keuken en AEG apparatuur een directe prijs (met kortingen, 35% op keuken, 30% op apparatuur, 25% op randapparatuur) gekregen die verder niet onderhandelbaar is van ca. 32k. Kwa indeling verder helemaal gelijk.

Zitten we op de goede weg? Nog tips kwa indelingen?

[Afbeelding]
Wij hebben een 60cm oven en daarboven een 45cm oven, dan komt de onderste oven wat hoger. Die hoge plinten zijn ouderwets, 10cm plint is mooier. Waarom een kleine koelkast rechts? Doe gewoon een grote koelkast van 178, of een koelkast met vriesvak eronder van 194 en een verticale greep. Is het werkblad composiet of graniet? De smetplint vind ik niet zo mooi bij het eiland en niet nodig als je afwasbare verf gebruikt. Het spoelen zou ik ook in het eiland doen persoonlijk, het lijkt me niet handig om daar af te wassen naast een koffieapparaat.

Bij Ekelhoff kregen wij goed advies, maar wel een hoge prijs, onze keuken is vergelijkbaar met 2 Siemens ovens, quooker, grote kastenwand en groot eiland. Wij hebben een kastenwand met houtfineer, ik gok met de hoge prijs dat jullie voor Fenix hebben gekozen? Uiteindelijk hebben we de keuken voor zo'n 5k goedkoper gekocht bij een keukenzaak in Apeldoorn, Ekelhoff wou uiteindelijk nog wel zakken met ruim 2k op een vergelijkbaar bedrag.

Acties:
  • 0 Henk 'm!

  • Musicmaster20
  • Registratie: Oktober 2009
  • Laatst online: 11:26
TwiSteD1 schreef op donderdag 28 maart 2024 @ 15:07:
[...]


Wij hebben een 60cm oven en daarboven een 45cm oven, dan komt de onderste oven wat hoger. Die hoge plinten zijn ouderwets, 10cm plint is mooier. Waarom een kleine koelkast rechts? Doe gewoon een grote koelkast van 178, of een koelkast met vriesvak eronder van 194 en een verticale greep. Is het werkblad composiet of graniet? De smetplint vind ik niet zo mooi bij het eiland en niet nodig als je afwasbare verf gebruikt. Het spoelen zou ik ook in het eiland doen persoonlijk, het lijkt me niet handig om daar af te wassen naast een koffieapparaat.

Bij Ekelhoff kregen wij goed advies, maar wel een hoge prijs, onze keuken is vergelijkbaar met 2 Siemens ovens, quooker, grote kastenwand en groot eiland. Wij hebben een kastenwand met houtfineer, ik gok met de hoge prijs dat jullie voor Fenix hebben gekozen? Uiteindelijk hebben we de keuken voor zo'n 5k goedkoper gekocht bij een keukenzaak in Apeldoorn, Ekelhoff wou uiteindelijk nog wel zakken met ruim 2k op een vergelijkbaar bedrag.
Dank!

We hebben in de garage nog een losstaande koelkast en losstaande diepvries die we graag behouden dus een compact koelkast voldoet.

Blad is keramiek, dat maakt het misschien ook wel kostbaar?

Ik zit even te puzzelen hoe dan het type frontjes heet. Het is geen fenix (althans staat nergens in de offerte). Het is een Contur EMV2 serie, kleur terra grijs met "samtmat-lack"

Die plinten is wel een goede! Die neem ik zeker mee.

Ondanks dat ik niet heel zin heb om verder te gaan shoppen overweeg ik toch nog een derde offerte bij een lokale keukenzaak.

Acties:
  • 0 Henk 'm!

  • TwiSteD1
  • Registratie: Juli 2005
  • Laatst online: 10-10 20:50
Musicmaster20 schreef op donderdag 28 maart 2024 @ 15:18:
[...]


Dank!

We hebben in de garage nog een losstaande koelkast en losstaande diepvries die we graag behouden dus een compact koelkast voldoet.

Blad is keramiek, dat maakt het misschien ook wel kostbaar?

Ik zit even te puzzelen hoe dan het type frontjes heet. Het is geen fenix (althans staat nergens in de offerte). Het is een Contur EMV2 serie, kleur terra grijs met "samtmat-lack"

Die plinten is wel een goede! Die neem ik zeker mee.

Ondanks dat ik niet heel zin heb om verder te gaan shoppen overweeg ik toch nog een derde offerte bij een lokale keukenzaak.
Het is blijkbaar een matte lak met meerdere lagen, volgens de website van Next125. Contur is de Next125 Schuller-lijn die binnen Ekelhoff zo genoemt wordt, vraag me niet waarom. Heeft de Schuller samtmatt lak wel anti-fingerprint? Next125 is wel iets duurder dan Ballerina, de goedkoopste keukens die ze hebben zijn van Schuller.
Samtmatt lack
SLIJTVAST EN ZIJDEZACHT
Deze haptisch en visueel indrukwekkende mat gelakte oppervlakken worden geproduceerd met een Dual Cure laksysteem op waterbasis met UV-droging. De lak wordt aangebracht op een hoogwaardige MDF-kernplaat met een speciale melamine coating en dikke randen aan vier zijden; de voorkant heeft een AFP anti-vingerafdruk oppervlak.
Keramisch is inderdaad de duurste variant, maar niet veel duurder dan graniet volgens mij. Met gewone lak-frontjes vind ik het wel een dure keuken, dat moet makkelijk rond de 30k kunnen, zelfs met Siemens apparatuur, Bora en Quooker. Wij hebben lades aan de andere kant van het eiland, misschien is dat ook handig in jouw opstelling? Toch zou ik een grote koelkast nemen, al is het maar voor het zicht :X Dat bespaart energiekosten en heb je meer ruimte in de garage.

[ Voor 3% gewijzigd door TwiSteD1 op 28-03-2024 17:06 ]


Acties:
  • +1 Henk 'm!
TwiSteD1 schreef op donderdag 28 maart 2024 @ 15:57:

Het is blijkbaar een matte lak met meerdere lagen, volgens de website van Next125. Contur is de Next125-lijn die binnen Ekelhoff zo genoemt wordt, vraag me niet waarom. Next125 is wel iets duurder dan Ballerina, de goedkoopste keukens die ze hebben zijn van Schuller.
Contur de 'normale' Schuller-lijn

Next125 voeren ze bij Ekelhoff gewoon als Next125

Acties:
  • 0 Henk 'm!

  • TwiSteD1
  • Registratie: Juli 2005
  • Laatst online: 10-10 20:50
SquareOne schreef op donderdag 28 maart 2024 @ 16:46:
[...]


Contur de 'normale' Schuller-lijn

Next125 voeren ze bij Ekelhoff gewoon als Next125
Ok, dan staat het verkeerd in de startpost. In die tabel staat het achter Next125.

Acties:
  • +1 Henk 'm!
TwiSteD1 schreef op donderdag 28 maart 2024 @ 16:49:
[...]


Ok, dan staat het verkeerd in de startpost. In die tabel staat het achter Next125.
Scherp, fixed

Acties:
  • 0 Henk 'm!

  • Blihi
  • Registratie: Juni 2018
  • Laatst online: 09-10 15:42
knny schreef op donderdag 28 maart 2024 @ 13:00:
[...]


Idee hoe het anders kan dan? Naast spoelbak zit vaatwasser. Die verplaatsen dus?
Vaatwasser kan eventueel ook onder (in, maar is eigenlijk niet in) de hoge kast. Minder handig omdat je dan niets op de vaatwasser kunt zetten, maar het scheelt ruimte.

WP: Toshiba Estia 8kW split HWT-801H(R)W-E + HWT-1101 binnenunit met 300 liter SWW tank. PV: 4 strings, totaal 12590 Wp


Acties:
  • 0 Henk 'm!

  • sNielz123
  • Registratie: Maart 2009
  • Laatst online: 07:23
Beetje crosspost met het tuinentopic maar zou ook meningen hebben van de keukenliefhebbers.

Huidige keuken:
Afbeeldingslocatie: https://tweakers.net/i/Jme17YTtFLOw-bHbtqL30EmVzwo=/800x/filters:strip_icc():strip_exif()/f/image/HFM6chIGBY27Ga1lpbwdApMN.jpg?f=fotoalbum_large

Afbeeldingslocatie: https://tweakers.net/i/PxLabDYMqb2vOVf_spbiIaOyOUQ=/800x/filters:strip_icc():strip_exif()/f/image/LyRPLpcv0YRdTHfAstUvxVo0.jpg?f=fotoalbum_large

Afbeeldingslocatie: https://tweakers.net/i/jtKJC-zFKi7sOvPemfUJamtJ2F8=/800x/filters:strip_icc():strip_exif()/f/image/YnQ7r30f2ECDNnfiBEWJT7BU.jpg?f=fotoalbum_large

Keuken is 17 jaar oud. Voor de oplettende kijker is de oven reeds een keer vernieuwd. Ik n de koelkast eveneens. Oven wordt in een nieuwe situatie hergebruikt. Koelkast verdwijnt of verhuist naar garage of bijkeuken.

Dilemma:
Nieuwe keuken op zelfde plek. Met twee hoge kasten en verder gelijke indeling.
Of:
We geven een stuk tuin op en maken een aanbouw waar nu de overkapping is.

Afbeeldingslocatie: https://tweakers.net/i/ybQ69R8PKMtn-sdbn3-K7Pp4SQA=/800x/filters:strip_icc():strip_exif()/f/image/GhphFyI1ZlPQfLoYo4funVGY.jpg?f=fotoalbum_large

Afbeeldingslocatie: https://tweakers.net/i/Y_5ix2tPzM0wtIf4fy4Zeh_NhM4=/800x/filters:strip_icc():strip_exif()/f/image/MHPJfrPq34WpUg1jPHixtCpH.jpg?f=fotoalbum_large

Ik heb een tekening gemaakt en heb daarbij nog wel de vraag waar het beste de keuken te maken.

Afbeeldingslocatie: https://tweakers.net/i/-F6OHPUHLO6JnXrRoNNtqbBHdGE=/x800/filters:strip_icc():strip_exif()/f/image/8qDWsyEawiwk6TivhmNEMGEr.jpg?f=fotoalbum_large

Alles boven de lijn kan worden aangebouwd.
Links 3,6m en aan de rechterzijde is dat 4,20m.

Acties:
  • +1 Henk 'm!
sNielz123 schreef op donderdag 28 maart 2024 @ 17:37:
Beetje crosspost met het tuinentopic maar zou ook meningen hebben van de keukenliefhebbers.

Huidige keuken:
[Afbeelding]

[Afbeelding]

[Afbeelding]

Keuken is 17 jaar oud. Voor de oplettende kijker is de oven reeds een keer vernieuwd. Ik n de koelkast eveneens. Oven wordt in een nieuwe situatie hergebruikt. Koelkast verdwijnt of verhuist naar garage of bijkeuken.

Dilemma:
Nieuwe keuken op zelfde plek. Met twee hoge kasten en verder gelijke indeling.
Of:
We geven een stuk tuin op en maken een aanbouw waar nu de overkapping is.

[Afbeelding]

[Afbeelding]

Ik heb een tekening gemaakt en heb daarbij nog wel de vraag waar het beste de keuken te maken.

[Afbeelding]

Alles boven de lijn kan worden aangebouwd.
Links 3,6m en aan de rechterzijde is dat 4,20m.
Dat stuk muur links van de schuifpui is waarschijnlijk dragend en blijft staan?

Acties:
  • 0 Henk 'm!

  • sNielz123
  • Registratie: Maart 2009
  • Laatst online: 07:23
SquareOne schreef op donderdag 28 maart 2024 @ 17:52:
[...]


Dat stuk muur links van de schuifpui is waarschijnlijk dragend en blijft staan?
Ja klopt. Tenzij een architect iets bedenkt om het niet al te prijzig te laten verdwijnen.
Eigenlijk zijn alle muren dragend :-(

Acties:
  • +1 Henk 'm!

  • Toke_gt
  • Registratie: Juni 2021
  • Laatst online: 07:54
sNielz123 schreef op donderdag 28 maart 2024 @ 17:37:
Dilemma:
Nieuwe keuken op zelfde plek. Met twee hoge kasten en verder gelijke indeling.
Of:
We geven een stuk tuin op en maken een aanbouw waar nu de overkapping is.
(..)
Ik heb een tekening gemaakt en heb daarbij nog wel de vraag waar het beste de keuken te maken.
Mocht je gehecht zijn aan de grote tuin: heb je ook overwogen om een stuk van de garage af te snoepen, zodat je een grotere keuken krijgt? Nog wel doorgang van tuin naar garage, maar ca 120 bij de keuken scheelt heel veel ruimte in de keuken en is een veel minder ingrijpende verbouwing. Werkt natuurlijk alleen als je de garage niet als garage gebruikt.

Acties:
  • +1 Henk 'm!

  • sNielz123
  • Registratie: Maart 2009
  • Laatst online: 07:23
Ik gebruik de garage niet als garage.
Maar: deze is helemaal in gebruik. Mijn kantoor, sportruimte, bergruimte. En waar nu de kapstok is getekend dat is onze bijkeuken met wasmachine en droger en die moeten ook nog ergens naartoe.
De tuin vind ik perfect maar mijn wederhelft zou liever een groter huis hebben 😀

Acties:
  • +1 Henk 'm!

  • Toke_gt
  • Registratie: Juni 2021
  • Laatst online: 07:54
sNielz123 schreef op donderdag 28 maart 2024 @ 18:05:
Ik gebruik de garage niet als garage.
Maar: deze is helemaal in gebruik. Mijn kantoor, sportruimte, bergruimte. En waar nu de kapstok is getekend dat is onze bijkeuken met wasmachine en droger en die moeten ook nog ergens naartoe.
De tuin vind ik perfect maar mijn wederhelft zou liever een groter huis hebben 😀
In dat geval zou ik een aanbouw doen en van de huidige keuken een fijne werk- of speelplek maken.

Acties:
  • 0 Henk 'm!

  • sNielz123
  • Registratie: Maart 2009
  • Laatst online: 07:23
Afbeeldingslocatie: https://tweakers.net/i/tQOicqDnCsE1LTH3FPms3dyFsv0=/x800/filters:strip_icc():strip_exif()/f/image/Yi4goW7V584cb5fLvg2Y7VJa.jpg?f=fotoalbum_large

Ik heb deze variant. Waarbij de hoge kasten in het oude gedeelte komen en lage kasten en schiereiland in de aanbouw.

Of de variant waarbij de oude keuken washok wordt met een extra koelkast en vriezer.

Waarbij een kastenwand en eiland van 300 in de aanbouw.

Afbeeldingslocatie: https://tweakers.net/i/FRrklXCOg1NvQte0Yqs9hwYlz-8=/x800/filters:strip_icc():strip_exif()/f/image/jBF3QDoLlxKusfPblo5DY7pB.jpg?f=fotoalbum_large

Het eiland is dan 100 met aan beide kanten 100 doorloop

Acties:
  • +1 Henk 'm!

  • Toke_gt
  • Registratie: Juni 2021
  • Laatst online: 07:54
sNielz123 schreef op donderdag 28 maart 2024 @ 18:31:
Of de variant waarbij de oude keuken washok wordt met een extra koelkast en vriezer.

Waarbij een kastenwand en eiland van 300 in de aanbouw.
Mooie optie, die tweede! Misschien kastenwand met doorloopdeur naar bijkeuken (washok met kk en vriezer en voorraad/keukenapparatuur)? Het is niet fijn om te moeten omlopen en er zijn mooie oplossingen voor (zie ook paar maanden terug in dit topic).

Bijv Mir1970 in "Het Grote Keuken topic: verkopers, kwaliteit, prijs - Deel 3"

[ Voor 9% gewijzigd door Toke_gt op 28-03-2024 18:49 . Reden: Link toegevoegd ]


Acties:
  • 0 Henk 'm!

  • aap
  • Registratie: Januari 2008
  • Laatst online: 10-10 16:12

aap

Sammy_tukker schreef op donderdag 28 maart 2024 @ 14:35:
[...]


off-topic: heb je de nederlandse bon nog? dan een nieuwe kast in belgie kopen en in nederland terugbrengen: mag 365 dagen en als je family lid bent levenslang >:)
Ik kwam er laatst achter dat je bij IKEA gratis kunt ruilen als je de montage verkl**t, mits je Familiy member bent.
Ik had een bed gekocht voor mijn zoon, maar twee delen wilden niet lekker aan elkaar. Met een hamer leek het te lukken totdat ik hem op een plek raakte waar alleen karton zat. |:(
Zonder gezeur heb ik een nieuw paneel gekregen. Je moet er alleen wel weer even voor op en neer naar de IKEA, maar je hoort mij niet klagen O-)

[ Voor 5% gewijzigd door aap op 28-03-2024 18:49 ]


Acties:
  • +1 Henk 'm!

  • tim_heijt
  • Registratie: Maart 2003
  • Laatst online: 11-10 15:51
Mijn moeder is bezig met de aanschaf van een nieuwe keuken. Dit vanuit omgeving Breda, Noord-Brabant.
Na het bezoeken van een 4 tal keukenzaken heeft zij haar oog laten vallen op een MadeByDas/Tristar keuken. Echter komen we er met de verkoper niet helemaal uit door het beperkte aanbod qua werkbladen (Dekker) en apparatuur (enkel Siemens uit StudioLine). Ook zou de opzet van de 'nis' goed mogelijk moeten zijn met Tristar, maar volgens verkoper is het 'moeilijk, moeilijk' met de enkele midden opdeling.

Daarom ben ik op zoek naar een goede MadeByDas/Tristar dealer in de buurt (<60km) om het bestaande ontwerp nog eens aan voor te leggen en te bekijken wat er nog mogelijk is qua keuze in werkbladen/apparatuur.

Hieronder het ontwerp van onszelf vs. dat van de keukenzaak om alvast een idee te krijgen van de opzet.

Eigen ontwerp/renders
Afbeeldingslocatie: https://tweakers.net/i/C40hgo7jYZ8e-H1nC-NlGYo9-GE=/800x/filters:strip_icc():strip_exif()/f/image/sCt0jMbyCp71dW7zWLR9L7hG.jpg?f=fotoalbum_large

Afbeeldingslocatie: https://tweakers.net/i/tNOrq0NOXvVlHunV44Z_Gu8Ki-4=/800x/filters:strip_icc():strip_exif()/f/image/bXq7IC6VCafeSEYXIWYRKfLQ.jpg?f=fotoalbum_large

Ontwerp keukenzaak
Afbeeldingslocatie: https://tweakers.net/i/2Tof8obDA41gwhTU_08kadsYFyE=/800x/filters:strip_exif()/f/image/Bq2ed7C4mqS4CB5l8Vf2eiDp.png?f=fotoalbum_large

[ Voor 13% gewijzigd door tim_heijt op 28-03-2024 20:55 ]


Acties:
  • 0 Henk 'm!

  • Cap
  • Registratie: Juli 2000
  • Niet online

Cap

@tim_heijt moet het echt per se MbD/Tristar zijn, waarom in dit geval met de specifieke wensen en maatvoering niet alles op maat via een interieurbouwer en de vrijheid om blad en apparatuur te bestellen waar je maar wilt?

[ Voor 31% gewijzigd door Cap op 28-03-2024 21:35 ]


Acties:
  • 0 Henk 'm!
tim_heijt schreef op donderdag 28 maart 2024 @ 20:52:
Mijn moeder is bezig met de aanschaf van een nieuwe keuken. Dit vanuit omgeving Breda, Noord-Brabant.
Na het bezoeken van een 4 tal keukenzaken heeft zij haar oog laten vallen op een MadeByDas/Tristar keuken. Echter komen we er met de verkoper niet helemaal uit door het beperkte aanbod qua werkbladen (Dekker) en apparatuur (enkel Siemens uit StudioLine). Ook zou de opzet van de 'nis' goed mogelijk moeten zijn met Tristar, maar volgens verkoper is het 'moeilijk, moeilijk' met de enkele midden opdeling.

Daarom ben ik op zoek naar een goede MadeByDas/Tristar dealer in de buurt (<60km) om het bestaande ontwerp nog eens aan voor te leggen en te bekijken wat er nog mogelijk is qua keuze in werkbladen/apparatuur.

Hieronder het ontwerp van onszelf vs. dat van de keukenzaak om alvast een idee te krijgen van de opzet.

Eigen ontwerp/renders
[Afbeelding]

[Afbeelding]

Ontwerp keukenzaak
[Afbeelding]
Het ingewikkelde is denk ik dat je bij die vakken in de nis maar 1 staander wilt. Dan kom je inderdaad snel bij maatwerk uit.

Die regaalkasten zoals ingerekend door de verkoper kun je wel op maat laten maken in hoogte.

Is die ondiepe nis niet zonde van de ruimte er achter?

[ Voor 4% gewijzigd door SquareOne op 28-03-2024 21:43 ]


Acties:
  • 0 Henk 'm!

  • tim_heijt
  • Registratie: Maart 2003
  • Laatst online: 11-10 15:51
Cap schreef op donderdag 28 maart 2024 @ 21:33:
@tim_heijt moet het echt per se MbD/Tristar zijn, waarom in dit geval met de specifieke wensen en maatvoering niet alles op maat via een interieurbouwer en de vrijheid om blad en apparatuur te bestellen waar je maar wilt?
Nee, absoluut geen harde eis maar prijstechnisch lijkt MbD/Tristar interessant. Graag zouden we de keuken inclusief apparatuur en montage op of onder de 20k willen houden qua budget en ben er zelf van overtuigd dat dit gemakkelijk moet kunnen. Dit baseer ik op

- Gewenste apparatuur+Quooker zit bij Veldkamp/123apparatuur ruim onder de 5k, de keukenzaak op 8k (en kan Miele/Liebherr koelkast niet leveren en geen Bora kookplaat wat eigenlijk 1e keuze is)
- Werkblad moet rond de 3,2k kosten bij Keukenbladen fabriek. Bij de keukenzaak 4,4k (Dekker Meteor Ice Grain)
- Kasten in poedercoat (Kashmir) en houtfineer (Luca nice) komen uit op ongeveer 11,5k.
- Montage 1k en 10% korting op totaal zonder onderhandelen

Tips voor meubelmakers in West-Brabant?

Acties:
  • 0 Henk 'm!

  • tim_heijt
  • Registratie: Maart 2003
  • Laatst online: 11-10 15:51
SquareOne schreef op donderdag 28 maart 2024 @ 21:41:
[...]


Het ingewikkelde is denk ik dat je bij die vakken in de nis maar 1 staander wilt. Dan kom je inderdaad snel bij maatwerk uit.

Die regaalkasten zoals ingerekend door de verkoper kun je wel op maat laten maken in hoogte.

Is die ondiepe nis niet zonde van de ruimte er achter?
Ja, klopt. Die enkele staander is de uitdaging en maatwerk. Maar toch niet onrealistisch? Ziet er wel zoveel strakker/mooier uit.

Ook plint op 9 of 10cm (dan past xxl vaatwasser bij 92cm werkblad hoogte) was lastig. Onduidelijk wat de meerprijs hiervoor nu was. Dacht juist dat bij Tristar korpus van tussen 87-92cm altijd 1 prijs was (obv 92cm) en minimale meerprijs met 87cm.

Diepte nis is nu voorzien op 30cm. Dat is wens van mijn moeder. Zelf zou ik hem op 45cm houden om ook gemakkelijker een grotere volautomaat kwijt te kunnen, maar zij zweert bij haar kleine Nespresso apparaat. Iets met eigenwijs en leeftijd ;).

Acties:
  • +1 Henk 'm!
tim_heijt schreef op donderdag 28 maart 2024 @ 23:04:
[...]


Ja, klopt. Die enkele staander is de uitdaging en maatwerk. Maar toch niet onrealistisch? Ziet er wel zoveel strakker/mooier uit.

Ook plint op 9 of 10cm (dan past xxl vaatwasser bij 92cm werkblad hoogte) was lastig. Onduidelijk wat de meerprijs hiervoor nu was. Dacht juist dat bij Tristar korpus van tussen 87-92cm altijd 1 prijs was (obv 92cm) en minimale meerprijs met 87cm.

Diepte nis is nu voorzien op 30cm. Dat is wens van mijn moeder. Zelf zou ik hem op 45cm houden om ook gemakkelijker een grotere volautomaat kwijt te kunnen, maar zij zweert bij haar kleine Nespresso apparaat. Iets met eigenwijs en leeftijd ;).
Zo’n nis of vakkenkast met enkele staander en vaste planken heb ik nog nooit voorbij zien komen van Tristar. Ik weet wel een goede Tristar dealer maar die zit in midden Limburg dus dat ligt wat te ver uit de buurt.

Tristar heeft inderdaad twee standaard korpus hoogtes. 78cm en 91cm. Je kunt de afmeting altijd zonder meerprijs verkleinen. Maar afmetingen die je noemt begrijp ik niet.

Je wilt op 92cm werkbladhoogte uit komen. Blad lijkt 2cm. Met een plint van 10 zoek je dan een korpus van 80cm.

Meerprijs van een 78cm naar 91cm korpus weet ik niet. Maar je moet je afvragen of het de meerprijs waard is voor die 2cm.

[ Voor 9% gewijzigd door SquareOne op 29-03-2024 08:21 ]


Acties:
  • +1 Henk 'm!

  • Kapitein Merijn
  • Registratie: Maart 2012
  • Laatst online: 12-10 10:30
tim_heijt schreef op donderdag 28 maart 2024 @ 22:59:
[...]


Nee, absoluut geen harde eis maar prijstechnisch lijkt MbD/Tristar interessant. Graag zouden we de keuken inclusief apparatuur en montage op of onder de 20k willen houden qua budget en ben er zelf van overtuigd dat dit gemakkelijk moet kunnen. Dit baseer ik op

- Gewenste apparatuur+Quooker zit bij Veldkamp/123apparatuur ruim onder de 5k, de keukenzaak op 8k (en kan Miele/Liebherr koelkast niet leveren en geen Bora kookplaat wat eigenlijk 1e keuze is)
- Werkblad moet rond de 3,2k kosten bij Keukenbladen fabriek. Bij de keukenzaak 4,4k (Dekker Meteor Ice Grain)
- Kasten in poedercoat (Kashmir) en houtfineer (Luca nice) komen uit op ongeveer 11,5k.
- Montage 1k en 10% korting op totaal zonder onderhandelen

Tips voor meubelmakers in West-Brabant?
5000 + 3200 + 11500 + 1000 = € 20.700,-

Dus je bent op zoek naar een maatwerk product met hele specifieke wensen, maar dat moet geleverd en gemonteerd worden voor minder dan internet prijzen.

De materialen voor het regaal kan MbD prima leveren maar de monteur zal dit in het werk op maat moeten maken. Een kundige monteur kan dat zeker maar hij heeft wel ca. 2-3 dagen nodig voor het monteren van de keuken. Die € 1000,- is dan alles behalve realistisch.

Een XXL vaatwasser is inderdaad niet mogelijk bij een bladhoogte van 92cm. De vaatwasser is namelijk 86,5cm hoog maar je hebt maar 85cm tot onderzijde greeplijst.

[ Voor 5% gewijzigd door Kapitein Merijn op 29-03-2024 09:06 ]

Untappd: Kapitein_Merijn


Acties:
  • 0 Henk 'm!

  • Cap
  • Registratie: Juli 2000
  • Niet online

Cap

Eens, toen ik las "dit moet gemakkelijk kunnen inclusief installatie" dacht ik: wat heb ik verkeerd gedaan met mijn compactere hoekkeuken die ik voor internetprijzen gekocht heb en zelf geïnstalleerd heb voor 16k excl leidingwerk / electra (toch al snel een post van 1.5 a 2k). :?

Voor interieurbouwers / meubelmakers zou ik gewoon even een zoekopdrachtje op die woorden doen in dit topic. Het is pas geleden bijvoobeeld nog uitgebreid langs gekomen. En die meubelmaker hoeft niet per se in Noord Brabant te zitten toch? Als hij uit een andere provincie wil komen, ook prima lijkt me.

[ Voor 42% gewijzigd door Cap op 29-03-2024 09:57 ]


Acties:
  • 0 Henk 'm!

  • PeterSelie
  • Registratie: December 2002
  • Laatst online: 10-10 15:39
Jaja, wij hebben gister dan eindelijk ons koopcontract met Ekelhoff ondertekend! Ik ben wel benieuwd; ze geven aan de Bora met afzuiging naar buiten te installeren. Tijdens de gesprekken is er kort over 'via de kruipruimte' gesproken, maar daar is (nog) niets voor ingemeten of (anders dan wat EcoTube onderdelen) afgesproken op het contract..

Wat is hierin gebruikelijk, wat is jullie ervaring? Zorgen zij voor installatie naar buiten? Dienen we zelf de nodige voorbereidingen te checken vóór de aanleg van buizen? Zijn die EcoTubes niet met sleuven in de vloer te verwerken?

Acties:
  • 0 Henk 'm!

  • Source90
  • Registratie: December 2008
  • Nu online
PeterSelie schreef op vrijdag 29 maart 2024 @ 15:59:
Jaja, wij hebben gister dan eindelijk ons koopcontract met Ekelhoff ondertekend! Ik ben wel benieuwd; ze geven aan de Bora met afzuiging naar buiten te installeren. Tijdens de gesprekken is er kort over 'via de kruipruimte' gesproken, maar daar is (nog) niets voor ingemeten of (anders dan wat EcoTube onderdelen) afgesproken op het contract..

Wat is hierin gebruikelijk, wat is jullie ervaring? Zorgen zij voor installatie naar buiten? Dienen we zelf de nodige voorbereidingen te checken vóór de aanleg van buizen? Zijn die EcoTubes niet met sleuven in de vloer te verwerken?
Zou dat goed (schriftelijk) navragen en vast laten leggen. Zover ik weet mogen Duitsers helemaal niets qua elektra en water verleggen of aansluiten (als zijnde keuken monteur), daarvoor moet echt een elektricien of loodgieter komen. (Zover ik weet geldt hetzelfde voor (door) Nederlandse (keukenwinkel ingehuurde) monteurs, in mijn ervaring gaan die daar echter net wat “soepeler” mee om)

Zou mij daarom verbazen als ze wel opeens hele gaten in vloeren of muren gaan boren. Zal je al gauw een watergekoelde diamantboor voor nodig hebben.

Ofwel; gok dat dit voor plaatsen geregeld moet worden.

[ Voor 6% gewijzigd door Source90 op 29-03-2024 20:21 ]


Acties:
  • 0 Henk 'm!

  • KeRsTmAnNeKe
  • Registratie: Februari 2001
  • Laatst online: 10-10 17:57
Knoop is doorgehakt hier, woensdag weer bij keukenkampioen gezeten en best eea aangepast. Ipv betonlook melamine frontjes nu effen gelakt, onder- en bovenkasten naar 78cm, spoelkast van 100 naar spoelkast van 50 en ladekast van 50. Prijsverschil was veel minder dan verwacht, waar ik eigenlijk niet tegenop kon met alles los bestellen.

Nu nog een aantal weken wachten :p maar eind mei hopelijk al aan de gang om de aanbouw waar de keuken in zit onderhanden te nemen en kan alles in 1x door, lekker weer weken in de rommel zitten.

Acties:
  • +2 Henk 'm!

  • Tweak_ers
  • Registratie: Oktober 2021
  • Laatst online: 10:24
Cap schreef op woensdag 27 maart 2024 @ 08:23:
Die verbruikswaarden in de app zijn maar benaderingen, het werkelijke verbruik hangt af van de hoeveelheid / vervuiling van de vaat, en de gekozen sensor instelling (aqua sensor), de waterhardheid, druk en temperatuur (zie handleiding). Wat energieverbruik betreft is het daarom leuk om er eens een metertje tussen te zetten en verschillende programma's te proberen. En dan natuurlijk vergelijken met de getoonde waardes in de HC app.

Wat betreft zuinigheid van de oude tov de nieuwe vaatwasser, het hangt er natuurlijk ook vanaf waar je voor gekozen hebt. Als je toen een hoge serie vaatwasser had en nu een 4-series zonder isolatie, efficient dry en zeoliet... dan is die uitkomst natuurlijk niet verrassend. Het valt me op dat veel mensen dure (stoom)ovens kiezen maar dat koelkasten en vaatwassers sluitposten zijn, terwijl daar het energieverbruik en geluid natuurlijk telt, en daar betaal je voor.
Ik meet alles met verbruiksmeters. Die van HomeWizard zijn goed accuraat.

Oude: Siemens SN69M034NL, IQ500, uit 2015, zonder zeolith etc.

Gebruikte programma “nachtprogramma 50graden”

Afbeeldingslocatie: https://tweakers.net/i/_HK6h2oO1F77Pd5Q3P1MDIsq10k=/x800/filters:strip_exif()/f/image/4ighrygVf8uJ2iVDDLTwVq9y.png?f=fotoalbum_large

Nieuwe: Siemens SX65Z801BE, IQ500, 2023 met Zeolith

Gebruikte programma: “Eco 50 graden”

Afbeeldingslocatie: https://tweakers.net/i/KuSBROqvP7qcCMUCAQ-_6DI4Ej8=/x800/filters:strip_exif()/f/image/A7wKUdFCH4VuHmOhDIbSSmcp.png?f=fotoalbum_large

Beide programma’s draaien precies 4 uur.

50% hoger verbruik. Valt mij vies tegen!
Voor een product dat 10 jaar jonger is.

Acties:
  • 0 Henk 'm!

  • Cap
  • Registratie: Juli 2000
  • Niet online

Cap

Interessante info. 1.5 kWh lijkt inderdaad niet zuinig.

Toevallig heb ik hetzelfde gedaan voor mijn Bosch serie 6 vaatwasser SBD6ZB801E met zeoliet. Volgens mij wastechnisch vrijwel dezelfde, zo niet dezelfde vaatwasser als de jouwe, ook met zeoliet en energieklasse C.

Gisteren heeft bij een (over)volle belading met pannen, borden, mokken en bestek het Eco 50 programma gedraaid, "extra dry" (= verhoging temperatuur bij droogfase) hierbij niet geactiveerd.

De verbruiksmeter gaf een totaal van 0.765 kWh aan, dat komt in de buurt van de melding "0,736 kWh bij het eco programma" in de specs op de site, terwijl de handleiding een hogere waarde aangeeft.

Het viel mij alles mee en is zuiniger dan onze oude Beko vaatwasser die boven de 1 kWh zat. Ik zal het nog een keer testen, ook eens met een andere meter. Mijn plan is om andere interessante programma's (stil, auto, intelligent) ook een keer te draaien en kijken wat het verbruik is.

[ Voor 12% gewijzigd door Cap op 30-03-2024 07:35 ]


Acties:
  • 0 Henk 'm!

  • marteltor
  • Registratie: Maart 2001
  • Laatst online: 05-10 18:17
Members only:
Alleen zichtbaar voor ingelogde gebruikers. Inloggen

[ Voor 3% gewijzigd door marteltor op 30-03-2024 09:48 ]


Acties:
  • +2 Henk 'm!

  • Toke_gt
  • Registratie: Juni 2021
  • Laatst online: 07:54
31K lijkt mij te veel voor deze keuken. Ik zou met het ontwerp wat andere zaken aflopen en overal de onderhandelingen starten. Volgens mij kan er wel meer af dan 7K.
Atagapparatuur, 10% montage, bijna 1000 per kast? Dat moet echt anders kunnen.
Check eens wat keukens in dit topic, dan zie je dat je veel goedkoper kunt uitkomen, met mogelijk apparatuur in een hogere prijsklasse.

Die druk moet je langs je af laten glijden. Als jij donderdag komt, willen ze nog steeds graag de keuken verkopen hoor. Van korting op Atag zou ik sowieso niet zo onder de indruk zijn.

@marteltor Zie de offerte hieronder. Vergelijkbare indeling, meer kasten, meer en betere apparatuur, 6K goedkoper.

[ Voor 22% gewijzigd door Toke_gt op 30-03-2024 10:16 ]


Acties:
  • 0 Henk 'm!

  • mr.klaassen
  • Registratie: Januari 2008
  • Laatst online: 04-10 11:34
Wij zijn inmiddels aardig gevorderd met het uitzoeken van onze nieuwe keuken en graag zouden we jullie advies willen, met name over de prijs. Wij hebben een bezoek gebracht aan 3 keukenwinkels: Sense (Hoorn) Grando en Keukenloods. De laatste valt sowieso af omdat zij bijna 10k hoger zaten dan de rest en ons nogal bijzonder advies gaven. Sense had goed advies, maar levert alleen AEG apparatuur. Andere merken kunnen wel maar zijn relatief duur. Grando blijft voor ons over. We hebben daar naar ons idee erg goed en kundig advies gekregen, waarbij we uiteindelijk op onderstaande uitgekomen zijn.

Meubelen: €15.290 excl 10% korting
Pronorm Alba Eiken X-VU (kookeiland greep loos, keukenblok met grepen)

Apparatuur: €10.188 excl 10% korting en €1200 korting Bora
Koelkast Siemens IQ500 Kl81RSDE0
Stoomoven Siemens IQ700 CS936G1B1
Combioven Siemens IQ700 CM936G1B1
Vaatwasser Siemens IQ300 SN63HX01CN
Wijnklimaatkast Siemens IQ500 KW16KATGA
Bora PURU
Quooker 22XGME

Werkbladden: €4.865 excl. 10% korting
Dekker Keramiek Evora Ceramics Spectacle

Al met al komt dit met de kortingen en incl. plaatsen uit op €25.999. Onze vraag is dus met name of dit qua prijs klopt en of er nog ruimte zou moeten zijn voor verder onderhandelen. Afbeeldingen kloppen niet helemaal meer geven een goede indruk qua look en afmetingen. Alvast bedankt voor jullie advies.

Afbeeldingslocatie: https://tweakers.net/i/AW3KC_QX9Ktbc9x4SR9k3t4MX6I=/800x/filters:strip_exif()/f/image/z673SmCp24TRh1PeRF1G5Frk.png?f=fotoalbum_large

Afbeeldingslocatie: https://tweakers.net/i/gv8qc4TDR2CcnzzAf_uMVpvlZTM=/800x/filters:strip_exif()/f/image/H19R0JF1SoZeUkl58FwwZ5oO.png?f=fotoalbum_large

[ Voor 4% gewijzigd door mr.klaassen op 30-03-2024 10:24 ]


Acties:
  • 0 Henk 'm!
Welke fronten heb je gekozen :)?
Ik zie geen panelen aan de binnenkant van de nis. Zijn de zichtzijdes uitgevoerd in hetzelfde materiaal als het front? Wel een nadeeltje dat je nu tegen de zijkant van de deur van de oven kijkt.

Hoe ziet de rest van de ruimte er overigens uit? Is het wel handig om op die plek een eiland te plaatsen?

Zoals @Toke_gt zegt, niet laten opjagen door deadlines met kortingen.

[ Voor 39% gewijzigd door SquareOne op 30-03-2024 10:08 ]


Acties:
  • +1 Henk 'm!

  • Toke_gt
  • Registratie: Juni 2021
  • Laatst online: 07:54
Let op, je privegegevens staan op de offerte

Acties:
  • 0 Henk 'm!

  • Tweak_ers
  • Registratie: Oktober 2021
  • Laatst online: 10:24
Cap schreef op zaterdag 30 maart 2024 @ 07:32:
Interessante info. 1.5 kWh lijkt inderdaad niet zuinig.

Toevallig heb ik hetzelfde gedaan voor mijn Bosch serie 6 vaatwasser SBD6ZB801E met zeoliet. Volgens mij wastechnisch vrijwel dezelfde, zo niet dezelfde vaatwasser als de jouwe, ook met zeoliet en energieklasse C.

Gisteren heeft bij een (over)volle belading met pannen, borden, mokken en bestek het Eco 50 programma gedraaid, "extra dry" (= verhoging temperatuur bij droogfase) hierbij niet geactiveerd.

De verbruiksmeter gaf een totaal van 0.765 kWh aan, dat komt in de buurt van de melding "0,736 kWh bij het eco programma" in de specs op de site, terwijl de handleiding een hogere waarde aangeeft.

Het viel mij alles mee en is zuiniger dan onze oude Beko vaatwasser die boven de 1 kWh zat. Ik zal het nog een keer testen, ook eens met een andere meter. Mijn plan is om andere interessante programma's (stil, auto, intelligent) ook een keer te draaien en kijken wat het verbruik is.
Ik denk dat de 1,5kWh een foutje was. Draai af en toe 60 graden als de vervuiling heviger is.

Afgelopen nacht:
Afbeeldingslocatie: https://tweakers.net/i/jrhWt2ooS9VEn2_N-hSVy0_nbns=/x800/filters:strip_exif()/f/image/ZZQePbSqvh6ux99mMmOtUVSu.png?f=fotoalbum_large

App zegt:
Afbeeldingslocatie: https://tweakers.net/i/7V0P1dKjE_rfTXrDdiDl3kSDWIo=/x800/filters:strip_exif()/f/image/gHM4LRA7v6kihXOGUYEDqKZR.png?f=fotoalbum_large

Komt dus redelijk overeen.
1,2 VS 1,25kWh.

Nu heb ik bij onze wasmachine ook het idee dat Bosch een beetje vals speelt. Het is een 10kg versie waar nooit van zijn leven 10kg was in past.
Maar uiteindelijk gaat het met die energielabels om verbruik per KG.

Deze vaatwasser is een XL, ja er past iets meer in, maar staat uiteraard nog steeds iedere nacht aan.

Dus teruggerekend naar couvert is hij misschien zuiniger dan vroeger. Maar in de praktijk zit ik op +20%

Het is nog te kort om er écht iets zinnigs over te zeggen.

Het intelligent programma doet 0,8kWh, maar ik merk dat niet alles schoon wordt daarmee.

Acties:
  • +2 Henk 'm!

  • Kapitein Merijn
  • Registratie: Maart 2012
  • Laatst online: 12-10 10:30
Prijs is absoluut te hoog.
De prijs word waarschijnlijk wel flink opgedreven door het werkblad. De Calacatta gold van Silestone is schreeuwend duur. Er zijn inmiddels 100en alternatieven die minstens net zo mooi zijn en een stuk goedkoper.

Ik zou even zoeken naar een andere MadebyDas/Tristar dealer om een vergelijk te maken.

@Toke_gt
Een MbD vergelijken met een Pronorm is natuurlijk volledig zinloos.
Wel met je eens dat de montageprijs ook te hoog is.

[ Voor 12% gewijzigd door Kapitein Merijn op 30-03-2024 12:02 ]

Untappd: Kapitein_Merijn

Pagina: 1 ... 453 ... 527 Laatste

Let op:
Dit topic kan gebruikt worden voor het volgende:
• Vragen over de keuken, denkend aan indeling, materialen, kastjes, apparatuur, etc.
• Welke kastjes, aanrechtbladen en apparatuur te kiezen
• Ervaringen met verkopers en keukenboeren
• Tips & Tricks denk hierbij aan hulp bij het zelf installeren en onderhouden van de keuken.
• Jouw indeling. Plaats gerust een foto of tekening, maar maak het niet te bont met hele buildlogs.

Voor badkamers: Het Badkamer topic: verkopers, kwaliteit, prijs - Deel 1
Showen met je keuken kan hier: Tweakers Keuken showroom! - Vestiging 1