Het Badkamer topic: verkopers, kwaliteit, prijs - Deel 1

Pagina: 1 ... 40 ... 127 Laatste
Acties:

Acties:
  • 0 Henk 'm!

  • goldmemberf1
  • Registratie: Juni 2005
  • Laatst online: 11-10 22:37
Wie van jullie heeft gekozen voor een verlaagd plafond t.b.v. inbouwspots en evt een regendouche?

Ons plafond is straks 2.60, maar ik zoek nog naar een mooie optie voor verlichting. Ik twijfel alleen of zo'n verlaagd plafond in een al niet hele grote badkamer (2,20 bij 2,70) geen claustrofobisch gevoel gaat geven.

Acties:
  • 0 Henk 'm!

  • DutchChelsea
  • Registratie: Juni 2018
  • Laatst online: 14-02-2024
goldmemberf1 schreef op maandag 25 januari 2021 @ 15:44:
Wie van jullie heeft gekozen voor een verlaagd plafond t.b.v. inbouwspots en evt een regendouche?

Ons plafond is straks 2.60, maar ik zoek nog naar een mooie optie voor verlichting. Ik twijfel alleen of zo'n verlaagd plafond in een al niet hele grote badkamer (2,20 bij 2,70) geen claustrofobisch gevoel gaat geven.
Plafond bij ons was 2,63, we hebben een spanplafond erin laten zetten met 5 spots (want nieuwbouw en in oorspronkelijke opzet was er slechts 1 lichtpunt). Badkamer van 4,66 bij 1,98, met regendouche, en het bevalt goed. Niet goedkoop maar dus wel dik tevreden over hoe het nu is

Acties:
  • +1 Henk 'm!

  • Ojjorz
  • Registratie: December 2003
  • Niet online

Ojjorz

De oude man die alles kan

goldmemberf1 schreef op maandag 25 januari 2021 @ 15:44:
Wie van jullie heeft gekozen voor een verlaagd plafond t.b.v. inbouwspots en evt een regendouche?

Ons plafond is straks 2.60, maar ik zoek nog naar een mooie optie voor verlichting. Ik twijfel alleen of zo'n verlaagd plafond in een al niet hele grote badkamer (2,20 bij 2,70) geen claustrofobisch gevoel gaat geven.
Ik ga het hier ook in een kleine badkamer doen. En dan zijn mijn plafonds maar 2.40m. Ik heb er vooral voor gekozen om wat leidingwerk (radiator en regendouche) mooi weg te laten werken, maar 5 spotjes tov 1 plafonniere is ook wel een vooruitgang.

Ik ben pas in augustus aan de beurt (net opdracht gegeven) dus weet nog niet hoe het gaat worden. Maar ik ben eigenlijk niet bang voor een claustrofobisch gevoel. Ik krijg veel beter licht in de nieuwe opstelling en daarnaast zal het maar ongeveer 10 cm schelen.

Acties:
  • 0 Henk 'm!

  • goldmemberf1
  • Registratie: Juni 2005
  • Laatst online: 11-10 22:37
DutchChelsea schreef op maandag 25 januari 2021 @ 16:01:
[...]


Plafond bij ons was 2,63, we hebben een spanplafond erin laten zetten met 5 spots (want nieuwbouw en in oorspronkelijke opzet was er slechts 1 lichtpunt). Badkamer van 4,66 bij 1,98, met regendouche, en het bevalt goed. Niet goedkoop maar dus wel dik tevreden over hoe het nu is
Cool, mag ik vragen wat de extra kosten zijn geweest? En heb je ook zo'n hippe ledrand aan de zijkanten? :)

Mijn huis is ook nieuwbouw casco met in de basis 2 lichtpunten (in het midden en boven de wastafel).

Acties:
  • 0 Henk 'm!

  • Dj-sannieboy
  • Registratie: Augustus 2004
  • Niet online

Dj-sannieboy

Nee.... beter!

goldmemberf1 schreef op maandag 25 januari 2021 @ 15:44:
Wie van jullie heeft gekozen voor een verlaagd plafond t.b.v. inbouwspots en evt een regendouche?

Ons plafond is straks 2.60, maar ik zoek nog naar een mooie optie voor verlichting. Ik twijfel alleen of zo'n verlaagd plafond in een al niet hele grote badkamer (2,20 bij 2,70) geen claustrofobisch gevoel gaat geven.
Hier ook gekozen voor verlaagd plafond met 4 inbouwspots in onze badkamer (en toilet). Badkamer is 2,54 x 2,10. Eind april of begin mei gaan ze beginnen.

Acties:
  • 0 Henk 'm!

  • wokkelz
  • Registratie: April 2004
  • Laatst online: 11-10 17:55
Zijn er mensen die ervaring hebben met een ruimte besparende sifon?
https://www.sanitairwinke...-solid-surface-rond-urban

Is dit voldoende om aan te sluiten op de waterafvoer? Ik kan er eigenlijk geen extra info over vinden..

Acties:
  • 0 Henk 'm!

  • vortexnl1982
  • Registratie: Augustus 2014
  • Laatst online: 23:05
Weet iemand nog extra mooie betonlook tegels ?

Acties:
  • 0 Henk 'm!

  • BlackthunderAwf
  • Registratie: April 2010
  • Laatst online: 09:39
Tjebakka schreef op zaterdag 23 januari 2021 @ 09:20:
[...]
Inmiddels bijna klaar en enorm tevreden. Vooral de visgraatmuur met het ruweiken meubel en matwit toilet, bad en wasbak vind ik erg geslaagd.


[Afbeelding]
Ziet er goed uit! Heb je geen handdouche bij het bad?
Ben ook wel nieuwsgierig naar de visgraatwand en welke vloertegels je hebt gebruikt :-)
vortexnl1982 schreef op maandag 25 januari 2021 @ 20:30:
Weet iemand nog extra mooie betonlook tegels ?
Wij zijn ook op zoek naar een setje betonlook tegels (60x60, 60x30 en matenmix) met dezelfde uitstraling.
Het is wat lastig om nu tegels uit te zoeken, maar tegelsinhuis wel een mooi setje te hebben, alleen lijkt de 60x60 variant heel anders dan de andere twee soorten. Daar heb ik dus een vraag voor uit staan.
Het gaat dan om de TOZCV150, 151 en 152.

Acties:
  • 0 Henk 'm!

  • DutchChelsea
  • Registratie: Juni 2018
  • Laatst online: 14-02-2024
goldmemberf1 schreef op maandag 25 januari 2021 @ 16:16:
[...]


Cool, mag ik vragen wat de extra kosten zijn geweest? En heb je ook zo'n hippe ledrand aan de zijkanten? :)

Mijn huis is ook nieuwbouw casco met in de basis 2 lichtpunten (in het midden en boven de wastafel).
Geen hippe ledrand, wel vijf ledspotjes. was 2400 euro kwijt, ook al omdat er wel wat hoekjes in onze badkamer zitten. zal ongetwijfeld ergens goedkoper kunnen

Acties:
  • +1 Henk 'm!

  • edsandje
  • Registratie: December 2018
  • Niet online

edsandje

Geen vragen via pm

wokkelz schreef op maandag 25 januari 2021 @ 20:09:
Zijn er mensen die ervaring hebben met een ruimte besparende sifon?
https://www.sanitairwinke...-solid-surface-rond-urban

Is dit voldoende om aan te sluiten op de waterafvoer? Ik kan er eigenlijk geen extra info over vinden..
Geen ervaring mee, is de pop up plastic? Je kan ook een pop up / plug naar keuze nemen en een ruimte besparende sifon nemen bijvoorbeeld deze https://www.warmteservice.../p/A0106300?gclsrc=aw.ds&

Please state the nature of the technical emergency


Acties:
  • 0 Henk 'm!

  • Flix20
  • Registratie: Oktober 2011
  • Laatst online: 10-10 21:23
goldmemberf1 schreef op maandag 25 januari 2021 @ 15:44:
Wie van jullie heeft gekozen voor een verlaagd plafond t.b.v. inbouwspots en evt een regendouche?

Ons plafond is straks 2.60, maar ik zoek nog naar een mooie optie voor verlichting. Ik twijfel alleen of zo'n verlaagd plafond in een al niet hele grote badkamer (2,20 bij 2,70) geen claustrofobisch gevoel gaat geven.
Zelf het plafond verlaagd naar +/-2.40 in een badkamer van 1.30x2.50.
Foto's zijn hier onlangs nog wel te vinden.

PSN: Flix20-NL


Acties:
  • 0 Henk 'm!

  • louzy82
  • Registratie: Juni 2011
  • Laatst online: 10-10 12:45
goldmemberf1 schreef op maandag 25 januari 2021 @ 15:44:
Wie van jullie heeft gekozen voor een verlaagd plafond t.b.v. inbouwspots en evt een regendouche?

Ons plafond is straks 2.60, maar ik zoek nog naar een mooie optie voor verlichting. Ik twijfel alleen of zo'n verlaagd plafond in een al niet hele grote badkamer (2,20 bij 2,70) geen claustrofobisch gevoel gaat geven.
Mijn badkamer is iets groter maar het plafond dat ik erin gemaakt heb is ergens tussen 230 en 235 cm.
Hoger is mooier maar dit misstaat niet, geeft me geen claustrofobisch gevoel en geeft geen problemen met regendouche etc.

Maar als het bij jou nu 260 is, dan kom je met een verlaagd plafond en spotjes op zo'n 252 cm.
Dat is wel echt nog steeds ruim voldoende lijkt me.

Ik heb zelf een PVC plafond erin gemaakt. Panelen zijn 25 cm breed, de hele lengte is 1 paneel dus ik vind het er mooi en strak uitzien.
Kostte 600 euro

[ Voor 18% gewijzigd door louzy82 op 26-01-2021 09:06 ]

Louzy#2475


Acties:
  • +2 Henk 'm!

  • Flix20
  • Registratie: Oktober 2011
  • Laatst online: 10-10 21:23
louzy82 schreef op dinsdag 26 januari 2021 @ 09:03:
[...]

Mijn badkamer is iets groter maar het plafond dat ik erin gemaakt heb is ergens tussen 230 en 235 cm.
Hoger is mooier maar dit misstaat niet, geeft me geen claustrofobisch gevoel en geeft geen problemen met regendouche etc.

Maar als het bij jou nu 260 is, dan kom je met een verlaagd plafond en spotjes op zo'n 252 cm.
Dat is wel echt nog steeds ruim voldoende lijkt me.

Ik heb zelf een PVC plafond erin gemaakt. Panelen zijn 25 cm breed, de hele lengte is 1 paneel dus ik vind het er mooi en strak uitzien.
Kostte 600 euro
Kijk vooral eerst even welke spot je wilt hebben en wat daar de minimale inbouwhoogte van is.
Daarnaast is het ook handig om rekening te houden met je tegels.
Zo ben ik zelf op +/-2.40 uitgekomen; 8 rijen tegels á 30cm hoog +voeg etc.

Hout frame gemaakt en gipsplaten gebruikt. Kosten <€100 :+

[ Voor 3% gewijzigd door Flix20 op 26-01-2021 09:24 ]

PSN: Flix20-NL


Acties:
  • 0 Henk 'm!

  • ZeRoC00L
  • Registratie: Juli 2000
  • Niet online
goldmemberf1 schreef op maandag 25 januari 2021 @ 15:44:
Wie van jullie heeft gekozen voor een verlaagd plafond t.b.v. inbouwspots en evt een regendouche?

Ons plafond is straks 2.60, maar ik zoek nog naar een mooie optie voor verlichting. Ik twijfel alleen of zo'n verlaagd plafond in een al niet hele grote badkamer (2,20 bij 2,70) geen claustrofobisch gevoel gaat geven.
Badkamer is hier vergelijkbaar, 1,90 bij 2,50, plafond is 230/235 denk ik en ben zelf 195 maar voelt niet laag aan ofzo.
Regendouche komt inderdaad uit het (verlaagde) plafond.

[*] Error 45: Please replace user
Volg je bankbiljetten


Acties:
  • 0 Henk 'm!

  • goldmemberf1
  • Registratie: Juni 2005
  • Laatst online: 11-10 22:37
Flix20 schreef op dinsdag 26 januari 2021 @ 09:21:
[...]


Kijk vooral eerst even welke spot je wilt hebben en wat daar de minimale inbouwhoogte van is.
Daarnaast is het ook handig om rekening te houden met je tegels.
Zo ben ik zelf op +/-2.40 uitgekomen; 8 rijen tegels á 30cm hoog +voeg etc.

Hout frame gemaakt en gipsplaten gebruikt. Kosten <€100 :+
Ik zit ook nog met de deur. Daar zit aan de bovenkant een raampje, moet nog even bedenken hoe ik die ga wegwerken.

Maar die gipsplaten, ik neem aan dat je daar nog overheen gestuct hebt?

Acties:
  • +1 Henk 'm!

  • Flix20
  • Registratie: Oktober 2011
  • Laatst online: 10-10 21:23
goldmemberf1 schreef op dinsdag 26 januari 2021 @ 09:32:
[...]


Ik zit ook nog met de deur. Daar zit aan de bovenkant een raampje, moet nog even bedenken hoe ik die ga wegwerken.

Maar die gipsplaten, ik neem aan dat je daar nog overheen gestuct hebt?
Had precies hetzelfde met de deur. Over het raam ga ik melkglas folie plakken.
Weet nog niet of ik het alleen over het stukje doen waardoor je het plafond in kijkt, of over heel het raam.

Gipsplaten niet gestuct, wel met Fix&finisch de schroeven en naden weg gewerkt en vervolgens 2 coaten latex overheen.

PSN: Flix20-NL


Acties:
  • +1 Henk 'm!

  • Tjebakka
  • Registratie: Juli 2007
  • Laatst online: 09-10 11:03

Tjebakka

PSN: Currahee_Ross

BlackthunderAwf schreef op maandag 25 januari 2021 @ 20:53:
[...]


Ziet er goed uit! Heb je geen handdouche bij het bad?
Ben ook wel nieuwsgierig naar de visgraatwand en welke vloertegels je hebt gebruikt :-)


[...]


Wij zijn ook op zoek naar een setje betonlook tegels (60x60, 60x30 en matenmix) met dezelfde uitstraling.
Het is wat lastig om nu tegels uit te zoeken, maar tegelsinhuis wel een mooi setje te hebben, alleen lijkt de 60x60 variant heel anders dan de andere twee soorten. Daar heb ik dus een vraag voor uit staan.
Het gaat dan om de TOZCV150, 151 en 152.
Thanks, er zit wel een handdouche bij maar die was nog niet geïnstalleerd op de foto :)
goldmemberf1 schreef op dinsdag 26 januari 2021 @ 09:32:
[...]


Ik zit ook nog met de deur. Daar zit aan de bovenkant een raampje, moet nog even bedenken hoe ik die ga wegwerken.

Maar die gipsplaten, ik neem aan dat je daar nog overheen gestuct hebt?
Wij hebben een afwerklatje tussen het plafond en het bovenlicht laten plaatsen. Je ziet eigenlijk niet dat er een verlaagd plafond zit, tenzij je het weet.

De gipsplaten hebben we laten stucen.

[ Voor 26% gewijzigd door Tjebakka op 26-01-2021 09:50 ]

If it aint fixed, it's broken.


Acties:
  • 0 Henk 'm!

  • goldmemberf1
  • Registratie: Juni 2005
  • Laatst online: 11-10 22:37
Tjebakka schreef op dinsdag 26 januari 2021 @ 09:49:
[...]


Thanks, er zit wel een handdouche bij maar die was nog niet geïnstalleerd op de foto :)


[...]

Wij hebben een afwerklatje tussen het plafond en het bovenlicht laten plaatsen. Je ziet eigenlijk niet dat er een verlaagd plafond zit, tenzij je het weet.

De gipsplaten hebben we laten stucen.
Gaaf, heb je een foto van dat raam? Ben wel benieuwd hoe het eruit ziet :)

Acties:
  • 0 Henk 'm!

  • SnooSnooo
  • Registratie: Januari 2021
  • Laatst online: 27-01-2021
Weet iemand waarom een inbouw wastafelkraan niet in een 7cm hydro gipsblokken muur kan, terwijl dit in het huidige huis wel zo uitgevoerd is?

Althans dat wordt door de badkamer boer verteld :)

Alvast hartelijk bedankt voor de hulp!

Acties:
  • +1 Henk 'm!

  • SquareOne
  • Registratie: Januari 2010
  • Laatst online: 09:10
SnooSnooo schreef op dinsdag 26 januari 2021 @ 15:52:
Weet iemand waarom een inbouw wastafelkraan niet in een 7cm hydro gipsblokken muur kan, terwijl dit in het huidige huis wel zo uitgevoerd is?

Althans dat wordt door de badkamer boer verteld :)

Alvast hartelijk bedankt voor de hulp!
Wat zijn de specificaties van de kraan?
Waarschijnlijk heeft de verkopende partij geen zin in het risico om aan de andere kant van de muur uit te komen op zich te nemen om het vervolgens weer te moeten fixen.

Acties:
  • +1 Henk 'm!

  • Flix20
  • Registratie: Oktober 2011
  • Laatst online: 10-10 21:23
SnooSnooo schreef op dinsdag 26 januari 2021 @ 15:52:
Weet iemand waarom een inbouw wastafelkraan niet in een 7cm hydro gipsblokken muur kan, terwijl dit in het huidige huis wel zo uitgevoerd is?

Althans dat wordt door de badkamer boer verteld :)

Alvast hartelijk bedankt voor de hulp!
Wie heeft het in het huidige huis geplaatst?

De reden waarom de badkamerboer hier liever niet aan begint is dat je niet heel veel vlees aan muur over houdt en hij dus het risico niet wil nemen.

PSN: Flix20-NL


Acties:
  • 0 Henk 'm!

  • SnooSnooo
  • Registratie: Januari 2021
  • Laatst online: 27-01-2021
SquareOne schreef op dinsdag 26 januari 2021 @ 15:54:
[...]


Wat zijn de specificaties van de kraan?
Waarschijnlijk heeft de verkopende partij geen zin in het risico om aan de andere kant van de muur uit te komen op zich te nemen om het vervolgens weer te moeten fixen.
Flix20 schreef op dinsdag 26 januari 2021 @ 15:54:
[...]


Wie heeft het in het huidige huis geplaatst?

De reden waarom de badkamerboer hier liever niet aan begint is dat je niet heel veel vlees aan muur over houdt en hij dus het risico niet wil nemen.
Dit was ook het enige wat ik kan bedenken, maar omdat het een nieuwbouwhuis is met aan de andere kant een slaapkamer vind ik dit zelf geen punt. Dit smeer ik wel weer dicht.
De verkopende partij installeert het overigens niet.

Als dit de enige reden is dan weet ik genoeg :) Bedankt voor jullie antwoorden.

Acties:
  • +1 Henk 'm!

  • Flix20
  • Registratie: Oktober 2011
  • Laatst online: 10-10 21:23
SnooSnooo schreef op dinsdag 26 januari 2021 @ 15:59:
[...]


[...]


Dit was ook het enige wat ik kan bedenken, maar omdat het een nieuwbouwhuis is met aan de andere kant een slaapkamer vind ik dit zelf geen punt. Dit smeer ik wel weer dicht.
De verkopende partij installeert het overigens niet.

Als dit de enige reden is dan weet ik genoeg :) Bedankt voor jullie antwoorden.
Overigens met een reden he!
Hier onlangs nieuwe inbouwdozen geplaatst met een maat welke elektricien is en die wou ook geen 40mm dieppe inbouwdozen plaatsen in m'n 70mm dikke wanden.

PSN: Flix20-NL


Acties:
  • 0 Henk 'm!

  • SnooSnooo
  • Registratie: Januari 2021
  • Laatst online: 27-01-2021
Flix20 schreef op dinsdag 26 januari 2021 @ 16:01:
[...]


Overigens met een reden he!
Hier onlangs nieuwe inbouwdozen geplaatst met een maat welke elektricien is en die wou ook geen 40mm dieppe inbouwdozen plaatsen in m'n 70mm dikke wanden.
Ik heb zelf geen mooie oplossing kunnen vinden door middel van een kleine voorzetwand. Enige oplossing is dan eigenlijk een ander badkamermeubel uit te kiezen, omdat ik anders tegen waterleidingen aankijk.

De badkamer zelf is niet zo groot, dus daarom wou ik een open badkamermeubel :)

Ik ga er nog even over nadenken. Bedankt :)

Acties:
  • +1 Henk 'm!

  • goldmemberf1
  • Registratie: Juni 2005
  • Laatst online: 11-10 22:37
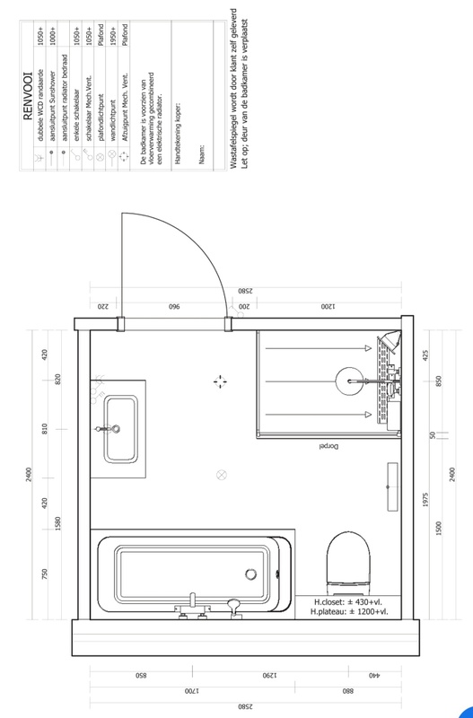
Wij hebben inmiddels een opzetje getekend van de opstelling, benieuwd wat jullie hiervan vinden. Let trouwens niet op de tegels, die vinden wij absoluut niet mooi. Maar het idee van grote 60x60 tegels op de vloer, 30x60 tegels op de wand en een aparte tegel achter de douche spreekt ons wel aan.

We twijfelen alleen nog over de radiator. Drie mogelijke opties hiervoor:
1. Zoals tekening
2. Nisje bij het bad laten vervallen en tegen de koof boven het bad aan. Het is namelijk nog niet zeker dat er voldoende ruimte is om hier een nisje te laten maken.
3. Tussen WC en wastafel. Maar dan neemt de radiator wel een hele prominente plek in.

En elektrische vloerverwarming...wel of niet doen? :)

Afbeeldingslocatie: https://tweakers.net/i/mh8GvMYyM4IBpB4HqoJCfJer0ds=/full-fit-in/4000x4000/filters:no_upscale():fill(white):strip_exif()/f/image/sPdlFm9X8XwscXb1wg7z9y8W.png?f=user_large

Afbeeldingslocatie: https://tweakers.net/i/ROPWHjM6gj-YgAtn-Ta1ANb5QmM=/800x/filters:strip_exif()/f/image/ALPcM2FsnukWUAKZffFVPcxk.png?f=fotoalbum_large

Afbeeldingslocatie: https://tweakers.net/i/scOoMI8dgs3-SdohBr2gfLnOJME=/800x/filters:strip_exif()/f/image/S7RLVbo1sxDyB6AmlEc2gtHd.png?f=fotoalbum_large

Acties:
  • +1 Henk 'm!

  • Ojjorz
  • Registratie: December 2003
  • Niet online

Ojjorz

De oude man die alles kan

goldmemberf1 schreef op dinsdag 26 januari 2021 @ 16:43:
Wij hebben inmiddels een opzetje getekend van de opstelling, benieuwd wat jullie hiervan vinden. Let trouwens niet op de tegels, die vinden wij absoluut niet mooi. Maar het idee van grote 60x60 tegels op de vloer, 30x60 tegels op de wand en een aparte tegel achter de douche spreekt ons wel aan.

We twijfelen alleen nog over de radiator. Drie mogelijke opties hiervoor:
1. Zoals tekening
2. Nisje bij het bad laten vervallen en tegen de koof boven het bad aan. Het is namelijk nog niet zeker dat er voldoende ruimte is om hier een nisje te laten maken.
3. Tussen WC en wastafel. Maar dan neemt de radiator wel een hele prominente plek in.

En elektrische vloerverwarming...wel of niet doen? :)

[Afbeelding]

[Afbeelding]

[Afbeelding]
Ik zou de douche tegen het bad door laten lopen. Dan krijg je een veel ruimere cabine. Nu heb je daar een gekke loze ruimte waar je niks mee kan.

Het is dan ietjes lastiger om ín bad te komen, maar daar win je heel veel praktische ruimte in de douche mee terug. En anagezien je de douche waarschijnlijk veel meer gebruikt dan het bad, zou ik daar voor kiezen.

De radiator lijkt daar prima te zitten. Boven het bad vind ik een onhandige plek. In de praktijk wil je snel even je handen of gezicht afdrogen en dan is je handdoek wel erg ver weg als hij boven het bad hangt.

Acties:
  • 0 Henk 'm!

  • Quad
  • Registratie: Mei 2009
  • Laatst online: 01:10

Quad

Doof

Het toilet lijkt mij niet op een comfortabele plek te zitten. En twee van die koven in de ruimte doet wel afbreuk aan het geheel.

Alles went behalve een Twent.
PVOutput☀️


Acties:
  • 0 Henk 'm!

  • DialOut
  • Registratie: September 2006
  • Laatst online: 05-10 17:17
goldmemberf1 schreef op dinsdag 26 januari 2021 @ 16:43:
Wij hebben inmiddels een opzetje getekend van de opstelling, benieuwd wat jullie hiervan vinden. Let trouwens niet op de tegels, die vinden wij absoluut niet mooi. Maar het idee van grote 60x60 tegels op de vloer, 30x60 tegels op de wand en een aparte tegel achter de douche spreekt ons wel aan.

We twijfelen alleen nog over de radiator. Drie mogelijke opties hiervoor:
1. Zoals tekening
2. Nisje bij het bad laten vervallen en tegen de koof boven het bad aan. Het is namelijk nog niet zeker dat er voldoende ruimte is om hier een nisje te laten maken.
3. Tussen WC en wastafel. Maar dan neemt de radiator wel een hele prominente plek in.

En elektrische vloerverwarming...wel of niet doen? :)

[Afbeelding]

[Afbeelding]

[Afbeelding]
Lijkt op opstelling die wij in onze nieuwbouw krijgen. Alleen wij hebben bad en wc omgedraaid, geeft meer ruimte bij wc en zorgt ervoor dat je niet tegen badmeubel aanloopt.

Afbeeldingslocatie: https://tweakers.net/i/_vCCzEL5EHlXzfNQ_xqhTxmGquo=/x800/filters:strip_icc():strip_exif()/f/image/fyUb9GYyJIrTGNaLbfk49qqI.jpg?f=fotoalbum_large

Acties:
  • 0 Henk 'm!

  • goldmemberf1
  • Registratie: Juni 2005
  • Laatst online: 11-10 22:37
Quad schreef op dinsdag 26 januari 2021 @ 23:30:
Het toilet lijkt mij niet op een comfortabele plek te zitten. En twee van die koven in de ruimte doet wel afbreuk aan het geheel.
De koof bij het bad zit er functioneel, daar loopt het leidingwerk doorheen. Dus die kan niet weg. De koof bij de wc is eigenlijk het inbouwreservoir doorgetrokken omhoog. Vond ik zelf wel mooi staan.

Bad en wc andersom zou wellicht kunnen, moet ik even bekijken!

Acties:
  • 0 Henk 'm!

  • Flix20
  • Registratie: Oktober 2011
  • Laatst online: 10-10 21:23
Ojjorz schreef op dinsdag 26 januari 2021 @ 17:39:
[...]


Ik zou de douche tegen het bad door laten lopen. Dan krijg je een veel ruimere cabine. Nu heb je daar een gekke loze ruimte waar je niks mee kan.
Kan je prima een wasmand neerzetten. Iets waar veel mensen vergeten rekening mee te houden bij het ontwerpen van een badkamer.
Quad schreef op dinsdag 26 januari 2021 @ 23:30:
Het toilet lijkt mij niet op een comfortabele plek te zitten. En twee van die koven in de ruimte doet wel afbreuk aan het geheel.
Toilet ben ik het inderdaad wel mee eens.

Wat de voorzetwanden betreft, wat ik zelf wel een leuk idee zou vinden hier is om de nis bij het bad een stuk groter te maken. Je hebt nu veel loze ruimte.
Ik zou die nis een heel stuk hoger maken en maak er kastruimte van.
Aan beide zijde in de nis twee scharnieren hangen en dan in dezelfde kleur (hout waarschijnllijk) als je meubel, kastdeuren monteren.

PSN: Flix20-NL


Acties:
  • 0 Henk 'm!

  • goldmemberf1
  • Registratie: Juni 2005
  • Laatst online: 11-10 22:37
Flix20 schreef op woensdag 27 januari 2021 @ 09:03:
[...]


Kan je prima een wasmand neerzetten. Iets waar veel mensen vergeten rekening mee te houden bij het ontwerpen van een badkamer.

[...]


Toilet ben ik het inderdaad wel mee eens.

Wat de voorzetwanden betreft, wat ik zelf wel een leuk idee zou vinden hier is om de nis bij het bad een stuk groter te maken. Je hebt nu veel loze ruimte.
Ik zou die nis een heel stuk hoger maken en maak er kastruimte van.
Aan beide zijde in de nis twee scharnieren hangen en dan in dezelfde kleur (hout waarschijnllijk) als je meubel, kastdeuren monteren.
Leuk idee :) Weet alleen nog niet of de nis daar kan komen uberhaupt. Het is een koof waar de stamleidingen doorheen lopen, ik moet dus terplekke een gaatje maken en kijken hoeveel ruimte er zit.

@koendt, onze badkamer is wel 220 ipv 240. Dus even kijken of dat gaat passen!

Acties:
  • +1 Henk 'm!

  • goldmemberf1
  • Registratie: Juni 2005
  • Laatst online: 11-10 22:37
Inmiddels reactie van de ontwerper; het bad kan niet op een andere plek i.v.m. het raam. Het inbouwreservoir is namelijk 120 hoog, en het raam begint al op c.a. 90cm.

Afbeeldingslocatie: https://tweakers.net/i/MXSBmz9ylUdxyXxzD6uY9ZBgGQA=/800x/filters:strip_exif()/f/image/Bg3pElQXs0OhC0P05Fw7Qwxe.png?f=fotoalbum_large

Acties:
  • 0 Henk 'm!

  • Flix20
  • Registratie: Oktober 2011
  • Laatst online: 10-10 21:23
Zou niet weten waarom de WC niet in het hoekje kan waar nu de radiator hangt. Helemaal als daar toch al je leidingen lopen.

Nu heb je amper 50cm ruimte als doorgang naar de wc.
Dat baseer ik aan de hand v/d tegels welke 60x60 zijn zoals je aangaf.

Zet voor de grap eens 2 stoelen met de rug naar elkaar toe in je woonkamer en loop daar doorheen.
Bedenk jezelf dan, wil je in het donker die manoeuvre uithalen als je naar de toilet moet?
Of als je net iets te diep in het glaasje gekeken hebt.
Daarnaast denk ik ook dat de ruimte tussen de toilet en het meubel.. je hebt +/- 30cm tussen de rand van de pot en je meubel. Is erg krapjes.
Ook hier, ga eens op een wc pot zitten en zet een afscheiding op de afstand wat het gaat worden.
Denk dat je schrikt hoe krap het is.

Op zulke 3d plaatjes lijkt het allemaal wel net aan te passen, alleen je vergeet al heel snel en gemakkelijk dat jijzelf ook wel wat ruimte inneemt.

PSN: Flix20-NL


Acties:
  • 0 Henk 'm!

  • goldmemberf1
  • Registratie: Juni 2005
  • Laatst online: 11-10 22:37
Flix20 schreef op woensdag 27 januari 2021 @ 12:58:
Zou niet weten waarom de WC niet in het hoekje kan waar nu de radiator hangt. Helemaal als daar toch al je leidingen lopen.

Nu heb je amper 50cm ruimte als doorgang naar de wc.
Dat baseer ik aan de hand v/d tegels welke 60x60 zijn zoals je aangaf.

Zet voor de grap eens 2 stoelen met de rug naar elkaar toe in je woonkamer en loop daar doorheen.
Bedenk jezelf dan, wil je in het donker die manoeuvre uithalen als je naar de toilet moet?
Of als je net iets te diep in het glaasje gekeken hebt.
Daarnaast denk ik ook dat de ruimte tussen de toilet en het meubel.. je hebt +/- 30cm tussen de rand van de pot en je meubel. Is erg krapjes.
Ook hier, ga eens op een wc pot zitten en zet een afscheiding op de afstand wat het gaat worden.
Denk dat je schrikt hoe krap het is.

Op zulke 3d plaatjes lijkt het allemaal wel net aan te passen, alleen je vergeet al heel snel en gemakkelijk dat jijzelf ook wel wat ruimte inneemt.
Ik denk dat ik je nu snap, je bedoelt dus de WC tegen koof aan richting bad gericht? De vraag is alleen of er in de koof voldoende ruimte is om het reservoir in te bouwen. Zo niet, dan zou daarvoor weer een muurtje komen en dan krijg je een soort stapeling van koven. Lijkt me ook niet heel fraai.

Edit: reactie van ontwerper -->
'Als je met de benen in bad wilt zitten kan het.☺☺☺
Nee, past echt niet. Zelfs wanneer je het reservoir in de koof zet heb je geen beenruimte genoeg.'

[ Voor 6% gewijzigd door goldmemberf1 op 27-01-2021 13:30 ]


Acties:
  • +1 Henk 'm!

  • Kianora
  • Registratie: Oktober 2013
  • Laatst online: 10-03-2021
Hoi allen,

Ik heb eens rustig door dit topic gekeken naar al jullie adviezen over badkamerindelingen en kosten. Dit jaar wil ik namelijk graag mijn badkamer en toilet laten vernieuwen.

Ik heb zelf al een mooie set spullen bij elkaar gezocht via sanitairwinkel en tegels via tile.expert en een ontwerp gemaakt in Sketchup. Nu nog de installatie...

Er liggen hier nu twee offerties die uitkomen op 15k en 13k voor de installatie (incl bouwmaterialen, maar geen duidelijke uitsplitsing per onderdeel van het werk).

Wat moet er gebeuren?

Toilet
- slopen
- afvoer verplaatsen (van staand naar hangtoilet)
- leidingen invrezen
- vloer afwerken zodat er tegels kunnen worden gelegd (houten ondervloeren, want oud huis.... Er ligt nu een soort vinyl)
- constructie etc voor hangend toilet maken
- vloer (1m2) en muur tot 1,2m tegel en afkitten
- stucen bovendeel muren en plafond
- nieuwe afzuig, spot en sanitair (wc en fonteintje) installeren

Badkamer
- alleen oud sanitair verwijderen, er wordt over de oude tegels heen getegeld
- leidingen en mogelijk afvoer iets verleggen voor nieuw sanitair.
- invrezen leidingen radiator
- constructie voor hangend toilet
- tegelen vloer 6m2 en wanden tot 1,2m (bij douche tot plafond) incl afkitten
- stucen muren boven 1,2m en plafond
- installeren douchevloer (iets verhoogd, volgens aannemers is inloop douche niet mogelijk/heel duur ivm houten ondervloer en geringe beschikbare inbouwhoogte?)
- installeren sanitair (douche, toilet, wastafelmeubel), spots en afzuig

Ik wil géén inbouwkranen en houd dezelfde indeling aan, dus het verleggen van leidingen is zeer beperkt.

Mij lijkt 13-15k zo veel voor een in mijn ogen simpel toilet en badkamer, mede afgaand op de bedragen die ik eerder heb gezien in dit topic. Misschien schat ik dit helemaal verkeerd in, dus ik ben erg benieuw wat jullie beeld is hierbij.

Alvast bedankt! :)

Acties:
  • 0 Henk 'm!

  • Ojjorz
  • Registratie: December 2003
  • Niet online

Ojjorz

De oude man die alles kan

Kianora schreef op woensdag 27 januari 2021 @ 13:25:
Hoi allen,

Ik heb eens rustig door dit topic gekeken naar al jullie adviezen over badkamerindelingen en kosten. Dit jaar wil ik namelijk graag mijn badkamer en toilet laten vernieuwen.

Ik heb zelf al een mooie set spullen bij elkaar gezocht via sanitairwinkel en tegels via tile.expert en een ontwerp gemaakt in Sketchup. Nu nog de installatie...

Er liggen hier nu twee offerties die uitkomen op 15k en 13k voor de installatie (incl bouwmaterialen, maar geen duidelijke uitsplitsing per onderdeel van het werk).

Wat moet er gebeuren?

Toilet
- slopen
- afvoer verplaatsen (van staand naar hangtoilet)
- leidingen invrezen
- vloer afwerken zodat er tegels kunnen worden gelegd (houten ondervloeren, want oud huis.... Er ligt nu een soort vinyl)
- constructie etc voor hangend toilet maken
- vloer (1m2) en muur tot 1,2m tegel en afkitten
- stucen bovendeel muren en plafond
- nieuwe afzuig, spot en sanitair (wc en fonteintje) installeren

Badkamer
- alleen oud sanitair verwijderen, er wordt over de oude tegels heen getegeld
- leidingen en mogelijk afvoer iets verleggen voor nieuw sanitair.
- invrezen leidingen radiator
- constructie voor hangend toilet
- tegelen vloer 6m2 en wanden tot 1,2m (bij douche tot plafond) incl afkitten
- stucen muren boven 1,2m en plafond
- installeren douchevloer (iets verhoogd, volgens aannemers is inloop douche niet mogelijk/heel duur ivm houten ondervloer en geringe beschikbare inbouwhoogte?)
- installeren sanitair (douche, toilet, wastafelmeubel), spots en afzuig

Ik wil géén inbouwkranen en houd dezelfde indeling aan, dus het verleggen van leidingen is zeer beperkt.

Mij lijkt 13-15k zo veel voor een in mijn ogen simpel toilet en badkamer, mede afgaand op de bedragen die ik eerder heb gezien in dit topic. Misschien schat ik dit helemaal verkeerd in, dus ik ben erg benieuw wat jullie beeld is hierbij.
Op basis van mijn recente ervaring zou ik eerder aan 9/10k denken voor het werk wat je omschrijft. Maar misschien dat die houten vloeren veel verschil maken, dat is namelijk het enige verschil met mijn situatie.

Acties:
  • 0 Henk 'm!

  • Dj-sannieboy
  • Registratie: Augustus 2004
  • Niet online

Dj-sannieboy

Nee.... beter!

Kianora schreef op woensdag 27 januari 2021 @ 13:25:
Hoi allen,

Ik heb eens rustig door dit topic gekeken naar al jullie adviezen over badkamerindelingen en kosten. Dit jaar wil ik namelijk graag mijn badkamer en toilet laten vernieuwen.

Ik heb zelf al een mooie set spullen bij elkaar gezocht via sanitairwinkel en tegels via tile.expert en een ontwerp gemaakt in Sketchup. Nu nog de installatie...

Er liggen hier nu twee offerties die uitkomen op 15k en 13k voor de installatie (incl bouwmaterialen, maar geen duidelijke uitsplitsing per onderdeel van het werk).

Wat moet er gebeuren?

Toilet
- slopen
- afvoer verplaatsen (van staand naar hangtoilet)
- leidingen invrezen
- vloer afwerken zodat er tegels kunnen worden gelegd (houten ondervloeren, want oud huis.... Er ligt nu een soort vinyl)
- constructie etc voor hangend toilet maken
- vloer (1m2) en muur tot 1,2m tegel en afkitten
- stucen bovendeel muren en plafond
- nieuwe afzuig, spot en sanitair (wc en fonteintje) installeren

Badkamer
- alleen oud sanitair verwijderen, er wordt over de oude tegels heen getegeld
- leidingen en mogelijk afvoer iets verleggen voor nieuw sanitair.
- invrezen leidingen radiator
- constructie voor hangend toilet
- tegelen vloer 6m2 en wanden tot 1,2m (bij douche tot plafond) incl afkitten
- stucen muren boven 1,2m en plafond
- installeren douchevloer (iets verhoogd, volgens aannemers is inloop douche niet mogelijk/heel duur ivm houten ondervloer en geringe beschikbare inbouwhoogte?)
- installeren sanitair (douche, toilet, wastafelmeubel), spots en afzuig

Ik wil géén inbouwkranen en houd dezelfde indeling aan, dus het verleggen van leidingen is zeer beperkt.

Mij lijkt 13-15k zo veel voor een in mijn ogen simpel toilet en badkamer, mede afgaand op de bedragen die ik eerder heb gezien in dit topic. Misschien schat ik dit helemaal verkeerd in, dus ik ben erg benieuw wat jullie beeld is hierbij.

Alvast bedankt! :)
Installatie incl. materialen zal al gauw rond de 10-12k liggen.

Zelf ben ik in totaal 23k kwijt, all in.

[ Voor 3% gewijzigd door Dj-sannieboy op 27-01-2021 14:56 ]


Acties:
  • 0 Henk 'm!

  • Kianora
  • Registratie: Oktober 2013
  • Laatst online: 10-03-2021
Inclusief materialen (hout, kit, leidingen, etc.) kwam in mijn geval op 13-15k. Met het boodschappenlijstje voor het sanitair en de tegels kom ik nu in totaal op 16-18k uit.

Ik hoopte ook op ongeveer 10k installatiekosten incl materialen, Ojjorz!

[ Voor 25% gewijzigd door Kianora op 27-01-2021 16:05 ]


Acties:
  • +1 Henk 'm!

  • 4Ramos
  • Registratie: December 2016
  • Laatst online: 27-08 11:51
Ik lees al een tijdje mee en heb al een hoop geleerd :) . Wij gaan komende zomer een jaren 20 huis renoveren. Hier komen twee badkamers in, over de indeling hebben we lang zitten tobben maar zijn we gelukkig uit.

Ik las hier wat over verlaagde plafonds en verlichting, dit is een thema waar wij ook nog niet helemaal uit zijn dus tips zijn welkom.

Voor de "kleine" badkamer hadden wij één lichtpunt in gedacht, middenin de badkamer. (Spiegel heeft ook verlichting ingebouwd). Hoogte plafond is ruim boven 300cm.

Voor de "grote" badkamer twijfelen we echter over inbouwspots of gewoon 2 lichtpunten (ook hier zit er verlichting in de spiegel), hoogte plafond is +/- 245cm, wat zijn jullie suggesties? Alle tips zijn welkom! Ook over indeling etc.


Afbeeldingslocatie: https://tweakers.net/i/wSuFxSjp27JwJYVPPO0ie-Fc18s=/800x/filters:strip_exif()/f/image/eGLwijFlnSFKaJI96OYdz03J.png?f=fotoalbum_large

Afbeeldingslocatie: https://tweakers.net/i/QP2b1BQeMhddfGIFqFyKYYhEbz4=/800x/filters:strip_exif()/f/image/cebI7fmk98T1UaVGNH0AV9yG.png?f=fotoalbum_large

Acties:
  • 0 Henk 'm!

  • Flix20
  • Registratie: Oktober 2011
  • Laatst online: 10-10 21:23
Ivm de schaduw zou ik ook in de kleine badkamer 2 inbouwspots doen.
Ter hoogte van de deurklink en dan beide op de afstand van 1 tegel van de muur.

Mooie blauwe tegels in de tweede badkamer overigens;)

PSN: Flix20-NL


Acties:
  • 0 Henk 'm!

  • Wackmack
  • Registratie: Oktober 2003
  • Laatst online: 07-10 14:00
Het gaat om het verhuizen van een 'solid surface vrijstaand bad 170x80x55cm van 120 kilo. Het bad moet van de begane grond naar de eerste verdieping worden gebracht over de trap.

Hoe hebben jullie dit gedaan?

Acties:
  • 0 Henk 'm!

  • louzy82
  • Registratie: Juni 2011
  • Laatst online: 10-10 12:45
goldmemberf1 schreef op woensdag 27 januari 2021 @ 13:21:
[...]


Ik denk dat ik je nu snap, je bedoelt dus de WC tegen koof aan richting bad gericht? De vraag is alleen of er in de koof voldoende ruimte is om het reservoir in te bouwen. Zo niet, dan zou daarvoor weer een muurtje komen en dan krijg je een soort stapeling van koven. Lijkt me ook niet heel fraai.

Edit: reactie van ontwerper -->
'Als je met de benen in bad wilt zitten kan het.☺☺☺
Nee, past echt niet. Zelfs wanneer je het reservoir in de koof zet heb je geen beenruimte genoeg.'
Hoe groot is het badmeubel in de eerste tekening?
Ik denk dat ik die kleiner zou maken als ik jou was, om de ruimte die je bij de wc overhoud wat te vergroten (als ook de doorloop daar naar toe).

Ik heb zelf gekozen voor een meubel van 80cm, ook min of meer om een goede doorloop te garanderen en dat is wat mij betreft groot genoeg.

En wat betreft de 2 nisjes boven de wc, op zich is het wel mooi maar ik denk dat er wel een risico is dat ze niet perfect uitgelijnd zullen zijn.
Ik zou zelf kiezen voor 1 grote nis en evt een mooie eikenhouten plank o.i.d in het midden maken

[ Voor 11% gewijzigd door louzy82 op 28-01-2021 08:29 ]

Louzy#2475


Acties:
  • 0 Henk 'm!

  • vortexnl1982
  • Registratie: Augustus 2014
  • Laatst online: 23:05
Kianora schreef op woensdag 27 januari 2021 @ 13:25:
Hoi allen,

Ik heb zelf al een mooie set spullen bij elkaar gezocht via sanitairwinkel en tegels via tile.expert en een ontwerp gemaakt in Sketchup. Nu nog de installatie...
Hoe is dat bevallen via tile.expert ? De foto's zijn er wel mooi uit. Ik zie ook dat je samples kunt bestellen, heb je dat ook gedaan ?

Acties:
  • 0 Henk 'm!

  • Flix20
  • Registratie: Oktober 2011
  • Laatst online: 10-10 21:23
louzy82 schreef op donderdag 28 januari 2021 @ 08:25:
[...]


Hoe groot is het badmeubel in de eerste tekening?
Ik denk dat ik die kleiner zou maken als ik jou was, om de ruimte die je bij de wc overhoud wat te vergroten (als ook de doorloop daar naar toe).

Ik heb zelf gekozen voor een meubel van 80cm, ook min of meer om een goede doorloop te garanderen en dat is wat mij betreft groot genoeg.

En wat betreft de 2 nisjes boven de wc, op zich is het wel mooi maar ik denk dat er wel een risico is dat ze niet perfect uitgelijnd zullen zijn.
Ik zou zelf kiezen voor 1 grote nis en evt een mooie eikenhouten plank o.i.d in het midden maken
Risico dat de nisjes niet perfect zullen uitlijnen zal wel meevallen.
90% dat ze WEDI platen gaan gebruiken daarvoor. Heel makkelijk te bewerken en daarnaast kunnen ze ook met de tegel nog wel het e.e.a. stellen.
Daarnaast betaal je ze daar gewoon voor dus als het niet naar wens is mag je ze daar op aanspreken.

PSN: Flix20-NL


Acties:
  • 0 Henk 'm!

  • CarpeVentum
  • Registratie: November 2010
  • Laatst online: 09:18
Wij overwegen om de nieuwe badkamer te verlichten met een plafondspotplaat met 4 spots, vanuit het midden van de badkamer. Daarnaast maken we nog 2 wandlampjes naast de spiegel.

Toch gaat bijna iedereen hier voor spots en een verlaagd plafond. Ook wij zitten met een ruitje boven de deur, en uit kostenoverweging lijkt zo'n plafondspotplaat ons ook prima. Waarom gaat dan toch iedereen voor inbouwspots? Zien we iets over het hoofd, qua verlichting?

Acties:
  • 0 Henk 'm!

  • Quad
  • Registratie: Mei 2009
  • Laatst online: 01:10

Quad

Doof

goldmemberf1 schreef op woensdag 27 januari 2021 @ 12:50:
Inmiddels reactie van de ontwerper; het bad kan niet op een andere plek i.v.m. het raam. Het inbouwreservoir is namelijk 120 hoog, en het raam begint al op c.a. 90cm.

[Afbeelding]
Een lagere inbouwreservoir zou kunnen, je hebt ze al vanaf een ~82cm hoogte, met drukknop aan bovenzijde. Of het echt ideaal is weet ik niet.

Wij hebben te maken met een max 110cm hoogte straks, dus een standaard inbouwreservoir past ook niet en wordt ergens in de 90cm.
CarpeVentum schreef op donderdag 28 januari 2021 @ 11:16:
Wij overwegen om de nieuwe badkamer te verlichten met een plafondspotplaat met 4 spots, vanuit het midden van de badkamer. Daarnaast maken we nog 2 wandlampjes naast de spiegel.

Toch gaat bijna iedereen hier voor spots en een verlaagd plafond. Ook wij zitten met een ruitje boven de deur, en uit kostenoverweging lijkt zo'n plafondspotplaat ons ook prima. Waarom gaat dan toch iedereen voor inbouwspots? Zien we iets over het hoofd, qua verlichting?
Vanuit 1 positie verlichtig levert veel schaduw op. Als je het toch wilt hebben zou ik een plafonnière overwegen, deze straalt wat breder uit.
Als het ruitje boven de deur een groot probleem zou zijn, mogelijk kan je hem eruit halen/vervangen of voorzien van een afwerkplint aan voor en achterzijde.

Spotjes geven in principe verlichting op de plekken waar je het juist wilt hebben.

[ Voor 40% gewijzigd door Quad op 28-01-2021 11:20 ]

Alles went behalve een Twent.
PVOutput☀️


Acties:
  • 0 Henk 'm!

  • ollie_1982
  • Registratie: Mei 2006
  • Laatst online: 07-10 13:41
Wackmack schreef op woensdag 27 januari 2021 @ 23:43:
Het gaat om het verhuizen van een 'solid surface vrijstaand bad 170x80x55cm van 120 kilo. Het bad moet van de begane grond naar de eerste verdieping worden gebracht over de trap.

Hoe hebben jullie dit gedaan?
Oei... hier is het via de kraan gegaan naar de zolder, tegelijk met het plaatsen van de dakkapel etc. Dus dat probleem niet gehad. Volgens mij had iemand in dit topic via X2O een Solid Surface bad, wellicht heeft die een tip

Acties:
  • 0 Henk 'm!

  • Wackmack
  • Registratie: Oktober 2003
  • Laatst online: 07-10 14:00
ollie_1982 schreef op donderdag 28 januari 2021 @ 12:19:
[...]


Oei... hier is het via de kraan gegaan naar de zolder, tegelijk met het plaatsen van de dakkapel etc. Dus dat probleem niet gehad. Volgens mij had iemand in dit topic via X2O een Solid Surface bad, wellicht heeft die een tip
Goeie! Zal even zoeken. Via het raam wordt helaas lastig, net te klein.
stefanvh1991 schreef op woensdag 27 januari 2021 @ 15:11:
Ik lees al een tijdje mee en heb al een hoop geleerd :) . Wij gaan komende zomer een jaren 20 huis renoveren. Hier komen twee badkamers in, over de indeling hebben we lang zitten tobben maar zijn we gelukkig uit.

Ik las hier wat over verlaagde plafonds en verlichting, dit is een thema waar wij ook nog niet helemaal uit zijn dus tips zijn welkom.

Voor de "kleine" badkamer hadden wij één lichtpunt in gedacht, middenin de badkamer. (Spiegel heeft ook verlichting ingebouwd). Hoogte plafond is ruim boven 300cm.

Voor de "grote" badkamer twijfelen we echter over inbouwspots of gewoon 2 lichtpunten (ook hier zit er verlichting in de spiegel), hoogte plafond is +/- 245cm, wat zijn jullie suggesties? Alle tips zijn welkom! Ook over indeling etc.


[Afbeelding]

[Afbeelding]
Mooie afbeeldingen, waarin deze gemaakt? Hier gaat het ook prima.

1 maart wordt de huidige badkamer aangepakt, bad eruit, wc erin, dubbele wastafel erin, nieuwe douche en dan alles met basebeton bewerken. De wc wordt ook volledig in basebeton gestuct.

Twee maanden later komt de grote badkamer aan bod, dat is een stuk werk. Kleedkamer wordt een nieuwe badkamer, inclusief, grote douche, dubbele wastafel en een bad, ook weer met basebeton.

[ Voor 11% gewijzigd door Wackmack op 28-01-2021 12:38 ]


Acties:
  • +3 Henk 'm!

  • daniel3
  • Registratie: Juli 2010
  • Niet online
Ik heb hier al een tijdje meegelezen en inmiddels is onze badkamerrenovatie zo goed als af. Anderhalve week hebben we in de puinzooi gezeten, maar het resultaat mag er zeker zijn naar onze mening :).

Afbeeldingslocatie: https://tweakers.net/i/uXPbxDaepb_YSXCJ2WbPD-4hRZI=/232x232/filters:strip_icc():strip_exif()/f/image/633WOpibXkALZvfBYYHl9fTr.jpg?f=fotoalbum_tileAfbeeldingslocatie: https://tweakers.net/i/46UA9rtuRXqvd-5ZW8uNQTFyQ0A=/232x232/filters:strip_icc():strip_exif()/f/image/jTvmHuy7LQwxkhi3cDvh6c1x.jpg?f=fotoalbum_tileAfbeeldingslocatie: https://tweakers.net/i/L9hq4gbmaVbLSaJCUYQhanbeKMg=/232x232/filters:strip_icc():strip_exif()/f/image/k5j4YPuPKQCftVU6eJSO71hs.jpg?f=fotoalbum_tile
Afbeeldingslocatie: https://tweakers.net/i/Hu7HTcg5y8cEn_84UkICpWt0Tww=/232x232/filters:strip_icc():strip_exif()/f/image/7ahgR7BeKrl7JrOf9cdTeIrZ.jpg?f=fotoalbum_tileAfbeeldingslocatie: https://tweakers.net/i/vwIQF7BZ9sGB589-tJ2a87_4MIk=/232x232/filters:strip_icc():strip_exif()/f/image/rp8CL9be4W0cwJexJt8GLU8r.jpg?f=fotoalbum_tile

Acties:
  • +4 Henk 'm!

  • koentjuh
  • Registratie: November 2000
  • Nu online
Grappig met die hexagon tegels.
Wel 1 optische noot; waarom heeft de installateur niet even een nette harde buis gebruikt voor het zichtwerk bij de radiator. Ik vind zon flexibele buis in het zicht altijd maar een beetje rommelig ogen.

Acties:
  • 0 Henk 'm!

  • edsandje
  • Registratie: December 2018
  • Niet online

edsandje

Geen vragen via pm

koentjuh schreef op donderdag 28 januari 2021 @ 14:56:
Grappig met die hexagon tegels.
Wel 1 optische noot; waarom heeft de installateur niet even een nette harde buis gebruikt voor het zichtwerk bij de radiator. Ik vind zon flexibele buis in het zicht altijd maar een beetje rommelig ogen.
En dat niet als enige, geen kraan en voetventiel en geen aftapper.
Als het plafond eruit is geweest waarom da niet de leidingen ingefreest?

Please state the nature of the technical emergency


Acties:
  • 0 Henk 'm!

  • daniel3
  • Registratie: Juli 2010
  • Niet online
koentjuh schreef op donderdag 28 januari 2021 @ 14:56:
Grappig met die hexagon tegels.
Wel 1 optische noot; waarom heeft de installateur niet even een nette harde buis gebruikt voor het zichtwerk bij de radiator. Ik vind zon flexibele buis in het zicht altijd maar een beetje rommelig ogen.
Ik wist niet eens dat je daar ook een harde buis voor kon gebruiken :P. Maar ik moet zeggen dat ik het niet heel erg storend vind :).
edsandje schreef op donderdag 28 januari 2021 @ 15:13:
[...]

En dat niet als enige, geen kraan en voetventiel en geen aftapper.
Als het plafond eruit is geweest waarom da niet de leidingen ingefreest?
Het plafond is er verder niet uit geweest. Er zat al een verlaagd plafond in en daar hebben we niet veel aan gedaan behalve opnieuw stuken. De radiator moet sowieso nog afgerond worden. Wij waren vergeten een thermostaatkraan erbij te bestellen, dus de installateur gaat dat doen als hij de laatste afwerkpuntjes ook gaat doen :).

Acties:
  • +20 Henk 'm!

  • ollie_1982
  • Registratie: Mei 2006
  • Laatst online: 07-10 13:41
ollie_1982 schreef op dinsdag 1 december 2020 @ 12:17:
[...]


Zo inmiddels zijn we weer wat weken verder en zijn afgelopen vrijdag het dakkapel en de dakserre geplaatst.

Voor het plaatsen:

[Afbeelding]

Na het plaatsen:

[Afbeelding]


Doordat de dakserre verder uit het dak is geplaatst dan gepland hebben we nu meer ruimte en kan het bad verder van het meubel geplaatst worden. Ook wordt de ruimte breder doordat de dakserre minder hoog komt.

Qua lichtinval wordt het ook anders. Beide zijn gemaakt met dezelfde stand van de zon.

De douche kunnen we vermoedelijk van 1000x1000 naar 1200x1000 maken. Nog even kijken hoe hoog de cementdekvloer wordt en of we dan weg komen bij de schuine wand.

Voor:

[Afbeelding]

Na:

[Afbeelding]

3D tekening via badkamer specialist.

Badkamer

[Afbeelding][Afbeelding]


Toilet

[Afbeelding][Afbeelding][Afbeelding]
We zijn hier inmiddels al wat weken verder. Op dit moment is de schilder bezig en daarna kan het afmonteren beginnen. Hopelijk over een week of 3 de zolder zo goed als klaar.

Tot op heden verloopt alles volgens plan.

Hieronder wat foto's zoals we het bedacht hadden en hoe het in het echt geworden is.

Afbeeldingslocatie: https://tweakers.net/i/4EQqTmN7gNNxA_DqzcEdBKSGH4Y=/232x232/filters:strip_icc():strip_exif()/f/image/AbCc32IE6jfKlcYD2imeM8o2.jpg?f=fotoalbum_tileAfbeeldingslocatie: https://tweakers.net/i/iV2wfqMC_zO5nKXj3Lqd8Wc-fdw=/232x232/filters:strip_icc():strip_exif()/f/image/KBn2ckJ1XVCyAOblHcYcbVl3.jpg?f=fotoalbum_tile


Afbeeldingslocatie: https://tweakers.net/i/T_P810rjTOnqigr69-83N4WpT3A=/232x232/filters:strip_icc():strip_exif()/f/image/GeN6NtdwNzz14pxIfDTyYf3o.jpg?f=fotoalbum_tileAfbeeldingslocatie: https://tweakers.net/i/LWFXoWhjbXjeFvVtFZDQRbIlz6o=/232x232/filters:strip_icc():strip_exif()/f/image/fI4ebzeGw718bvLSlTk79XhL.jpg?f=fotoalbum_tile


Afbeeldingslocatie: https://tweakers.net/i/O1yu01ia5yEpheESD5w9RJ-LNtk=/232x232/filters:strip_icc():strip_exif()/f/image/3z2HnCj4IdwEaJsks72G7Rlm.jpg?f=fotoalbum_tileAfbeeldingslocatie: https://tweakers.net/i/752saBG7kDyg4o7HsA56CbvxhUg=/232x232/filters:strip_icc():strip_exif()/f/image/HUVhJmcMBWb2LmMRFXxQ5KNw.jpg?f=fotoalbum_tile

Acties:
  • 0 Henk 'm!

  • Dj-sannieboy
  • Registratie: Augustus 2004
  • Niet online

Dj-sannieboy

Nee.... beter!

Als ik de foto’s zie kan ik niet wachten tot ze hier gaan beginnen! Helaas nog even geduld hebben tot april/mei.

Acties:
  • 0 Henk 'm!

  • Matadores
  • Registratie: November 2017
  • Laatst online: 22:43
ollie_1982 schreef op donderdag 28 januari 2021 @ 16:55:
[...]


We zijn hier inmiddels al wat weken verder. Op dit moment is de schilder bezig en daarna kan het afmonteren beginnen. Hopelijk over een week of 3 de zolder zo goed als klaar.

Tot op heden verloopt alles volgens plan.

Hieronder wat foto's zoals we het bedacht hadden en hoe het in het echt geworden is.

[Afbeelding][Afbeelding]


[Afbeelding][Afbeelding]


[Afbeelding][Afbeelding]
Welke wandtegels zijn heb je aan de wand zitten?

Acties:
  • 0 Henk 'm!

  • SquareOne
  • Registratie: Januari 2010
  • Laatst online: 09:10
ollie_1982 schreef op donderdag 28 januari 2021 @ 16:55:
[...]


We zijn hier inmiddels al wat weken verder. Op dit moment is de schilder bezig en daarna kan het afmonteren beginnen. Hopelijk over een week of 3 de zolder zo goed als klaar.

Tot op heden verloopt alles volgens plan.

Hieronder wat foto's zoals we het bedacht hadden en hoe het in het echt geworden is.

[Afbeelding][Afbeelding]


[Afbeelding][Afbeelding]


[Afbeelding][Afbeelding]
Fraai! Wel behoorlijk wat raamdecoratie nodig vanwege de inkijk

Acties:
  • +1 Henk 'm!

  • Quad
  • Registratie: Mei 2009
  • Laatst online: 01:10

Quad

Doof

Dj-sannieboy schreef op donderdag 28 januari 2021 @ 17:03:
Als ik de foto’s zie kan ik niet wachten tot ze hier gaan beginnen! Helaas nog even geduld hebben tot april/mei.
Week 5 was de start bij ons. Echter is het uitgesteld tot een nog te bepalen datum ivm coronaperikelen bij vaste installateurs en planning.
Niet echt een probleem, wel een beetje jammer. :'(

Alles went behalve een Twent.
PVOutput☀️


Acties:
  • +2 Henk 'm!

  • ollie_1982
  • Registratie: Mei 2006
  • Laatst online: 07-10 13:41
Matadores schreef op donderdag 28 januari 2021 @ 17:07:
[...]


Welke wandtegels zijn heb je aan de wand zitten?
Het zijn deze 60x120 : https://www.mo-b.nl/tresori-tr12-naturale

[ Voor 8% gewijzigd door ollie_1982 op 03-03-2021 13:23 . Reden: juiste link naar tegel (mat i.p.v. glans) ]


Acties:
  • +1 Henk 'm!

  • ollie_1982
  • Registratie: Mei 2006
  • Laatst online: 07-10 13:41
SquareOne schreef op donderdag 28 januari 2021 @ 17:08:
[...]


Fraai! Wel behoorlijk wat raamdecoratie nodig vanwege de inkijk
Dank!

Ja van boven geen inkijk, wellicht in de zomer weer met ballonvaarders ;) . Aan de voorkant inderdaad wel inkijk, daar komen plissé gordijnen (up/down). Dit wordt pas geplaatst als het klaar is.

Acties:
  • 0 Henk 'm!

  • Wackmack
  • Registratie: Oktober 2003
  • Laatst online: 07-10 14:00
stefanvh1991 schreef op woensdag 27 januari 2021 @ 15:11:
Ik lees al een tijdje mee en heb al een hoop geleerd :) . Wij gaan komende zomer een jaren 20 huis renoveren. Hier komen twee badkamers in, over de indeling hebben we lang zitten tobben maar zijn we gelukkig uit.

Ik las hier wat over verlaagde plafonds en verlichting, dit is een thema waar wij ook nog niet helemaal uit zijn dus tips zijn welkom.

Voor de "kleine" badkamer hadden wij één lichtpunt in gedacht, middenin de badkamer. (Spiegel heeft ook verlichting ingebouwd). Hoogte plafond is ruim boven 300cm.

Voor de "grote" badkamer twijfelen we echter over inbouwspots of gewoon 2 lichtpunten (ook hier zit er verlichting in de spiegel), hoogte plafond is +/- 245cm, wat zijn jullie suggesties? Alle tips zijn welkom! Ook over indeling etc.


[Afbeelding]

[Afbeelding]
Iemand die weet met welk programma deze renders zijn gemaakt?

Acties:
  • 0 Henk 'm!

  • Karin P
  • Registratie: November 2020
  • Laatst online: 19-08-2023
Wackmack schreef op vrijdag 29 januari 2021 @ 13:17:
[...]


Iemand die weet met welk programma deze renders zijn gemaakt?
Daar ben ik ook erg benieuwd naar !!

Acties:
  • 0 Henk 'm!

  • RobinFoot
  • Registratie: November 2012
  • Laatst online: 10-10 23:03
In week 7 begint onze verbouwing, dankzij dit topic veel tips meegekregen, waarvoor dank!
De materialen komen allemaal week 6 binnen, dus dat is mooi op tijd.

Nou heb ik nog een vraag betreffende isolatie, en ik de tip al ergens hier voorbij zien komen, maar kan het niet meer terugvinden:
Hebben jullie je bad ook geïsoleerd en zo ja, waarmee en wat zijn jullie ervaringen? Ik las iets over steen/glaswol, maar zie ook pur en een Tonzon-isolatie voorbij komen.

We hebben trouwens voor een whirlpool (Riho Lima Easypool 3.0 whirlpool bad 170x75cm) gekozen.

Acties:
  • +1 Henk 'm!

  • Peacefield78
  • Registratie: Juni 2020
  • Laatst online: 11-04 15:50
@ollie_1982 Prachtig! Ook plaatjes delen als het af is hoor!

Acties:
  • 0 Henk 'm!

  • louzy82
  • Registratie: Juni 2011
  • Laatst online: 10-10 12:45
RobinFoot schreef op vrijdag 29 januari 2021 @ 21:41:
In week 7 begint onze verbouwing, dankzij dit topic veel tips meegekregen, waarvoor dank!
De materialen komen allemaal week 6 binnen, dus dat is mooi op tijd.

Nou heb ik nog een vraag betreffende isolatie, en ik de tip al ergens hier voorbij zien komen, maar kan het niet meer terugvinden:
Hebben jullie je bad ook geïsoleerd en zo ja, waarmee en wat zijn jullie ervaringen? Ik las iets over steen/glaswol, maar zie ook pur en een Tonzon-isolatie voorbij komen.

We hebben trouwens voor een whirlpool (Riho Lima Easypool 3.0 whirlpool bad 170x75cm) gekozen.
Ik heb steenwol onder m'n bad gedaan, zoveel mogelijk waar ik nog bij kon.
Geen idee of het echt iets af doet maar ik heb gisteren 1,5 uur in bad gezeten zonder extra warm water toe te voegen.

Op mijn badkamer is het best fris omdat de radiator nog niet aan mag)

(schuim helpt ook goed warmte behouden)

Louzy#2475


Acties:
  • 0 Henk 'm!

  • Nathaniel
  • Registratie: Maart 2010
  • Laatst online: 03-06-2022
Iemand ervaring met infrarood(spiegels) in de badkamer? Zoek een alternatief voor de elektrische handdoekradiator.

Acties:
  • 0 Henk 'm!

  • BlackthunderAwf
  • Registratie: April 2010
  • Laatst online: 09:39
Waarschijnlijk gaan wij voor een inbouw badkraan met douche in verband met de plaats waar het bad komt te staan.
Nu ben ik hier niet erg bekend mee maar hopelijk zijn hier Tweakers die mij hier wat over kunnen vertellen. We neigen naar de Hansgrohe Talis S variant omdat we ook Hansgrohe regendouches hebben.
Nu zijn er weinig inbouwkranen met thermostaatkranen, eigenlijk alleen mengkranen. Hierdoor neig ik meer naar een 3 gats mengkraan dan een 4 gats.
Ook ontgaat het mij een beetje hoe je de keus maakt tussen de badkraan en douchekraan.
En als laatste ben ik bang dat er water via de slang in het inbouwdeel terecht komt, of zie ik iets over het hoofd?

https://www.hansgrohe.nl/...ouwdeel-13437180-72416000
https://www.hansgrohe.nl/...badrandmengkraan-13439180

https://www.hansgrohe.nl/...ouwdeel-13444180-72418000
https://www.hansgrohe.nl/...badrandmengkraan-13244180

Alvast bedankt!

Acties:
  • +1 Henk 'm!

  • Batilan
  • Registratie: December 2009
  • Laatst online: 23:21
Nathaniel schreef op zaterdag 30 januari 2021 @ 22:52:
Iemand ervaring met infrarood(spiegels) in de badkamer? Zoek een alternatief voor de elektrische handdoekradiator.
Nog geen ervaring mee, maar als Tweaker vind ik deze wel een interessante optie, hij is in een van de topics ook al eens besproken (kan het zo snel niet terugvinden), maar kwam er qua specs wel goed uit.

Overigens zou ik een spiegel niet gebruiken om mijn handdoeken op te drogen :+

[ Voor 13% gewijzigd door Batilan op 31-01-2021 17:32 ]


Acties:
  • 0 Henk 'm!

  • Nathaniel
  • Registratie: Maart 2010
  • Laatst online: 03-06-2022
We willen alleen wat groters .. wellicht infrarood matten achter een spiegel monteren.

Acties:
  • +3 Henk 'm!

  • henkieleraar
  • Registratie: Januari 2021
  • Laatst online: 08-02-2021
Kijk voor het eerst het topic. Heb zelf 4 jaar geleden de badkamer laten verbouwen. Heb 4 tips:
1. In de douche hebben we de bediening van de kraan buiten de doucheruimte laten bevestigen. Nooit geen bekalkte kraan meer.
2. We hebben een kunststof, vrijstaand ligbad niet vastgezet. Bij ons makkelijk met schoonmaken omdat het bad (beperkt) verplaatsbaar is. Denk aan 5 -10 cm.
3. Laat de evt. verantwoordelijke voor de verbouwing zelf het materiaal kopen. Misschien kun je het zelf een paar tientjes goedkoper krijgen, maar ieder het zijne en je voorkomt gezeur dat iets niet goed of of dat er een afdichtring of zo ontbreekt. Ga uit het totaalbedrag van de verbouwing en kijk niet naar individuele postjes.
4. Zorg voor aankoopbonnen en typenummers/omschrijving van de gekochte materialen en berg die in een apart mapje op. Makkelijk als je later iets wilt nakijken.

Acties:
  • 0 Henk 'm!

  • tomk10
  • Registratie: December 2012
  • Laatst online: 06:35
Beste Lezers,

Hopelijk kunnen jullie mij helpen met een keuze. Wij zijn voor ons nieuwbouw huis aan het kijken naar een badkamer. Het is projectmatige nieuwbouw en nu zijn we bij de badkamer leverancier geweest die bij het project aangesloten is. We willen graag geborsteld messing kranen, de verkoper had daarop enkel de volgende reactie: Dat zou ik niet doen want dat ziet er na verloop van tijd niet meer mooi uit. Na wat doorvragen bleek er ook nog binnen de Hotbath serie een kraan te zijn met PVD coating waardoor deze een stuk mooier blijven echter dit was toch wel erg duur volgens verkoper.

Ondertussen besloten de kranen daar niet te kopen want prijs en service laten erg te wensen over. Online aan het zoeken geweest en de Hotbath kranen zien er erg mooi uit. In dit topic heb ik al gelezen dat het kwalitatief goede kranen en men positief gestemd is. Is de PVD coating op een geborsteld messing kraan noodzakelijk om deze er mooi (niet geleefd) uit te laten zien na een aantal jaar. Hotbath heeft namelijk messing kranen met en zonder PVD coating. Wie heeft er hier ervaring mee?

Tijdens mijn zoektocht kom ik namelijk ook bijvoorbeeld het merk Wiesbaden tegen die geborsteld messing kranen verkopen echter is het mij onduidelijk of hier een coating op zit (wat ik zo kan vinden niet). Het prijsverschil is aanzienlijk.

Zijn er mensen die voor dezelfde keuze hebben gestaan en wat is de uiteindelijke keuze geworden? Nog belangrijker wat is de ervaring na een aantal jaar met dit type (gecoat en ongecoat) kranen. Hoe ‘mooi’ blijven de kranen?

Hopelijk kunnen jullie mij helpen met opgedane ervaringen :)

Acties:
  • 0 Henk 'm!

  • Ojjorz
  • Registratie: December 2003
  • Niet online

Ojjorz

De oude man die alles kan

tomk10 schreef op dinsdag 2 februari 2021 @ 10:31:


Zijn er mensen die voor dezelfde keuze hebben gestaan en wat is de uiteindelijke keuze geworden? Nog belangrijker wat is de ervaring na een aantal jaar met dit type (gecoat en ongecoat) kranen. Hoe ‘mooi’ blijven de kranen?

Hopelijk kunnen jullie mij helpen met opgedane ervaringen :)
Wij stonden voor precies dezelfde keuze (andere kleur, maar zelfde verhaal). En wij hebben uiteindelijk voor kranen van Hotbath mét coating gekozen. Er staan te veel verhalen op internet van mensen die problemen hebben met kranen zonder coating. Dit uit zich dan in vlekken, putjes en verlies van de oorspronkelijke kleur.

Mijn advies, neem gewoon chroom of kies voor de kranen van Hotbath met coating. Al is dat advies wel gebaseerd op de ervaring van anderen; mijn badkamer is namelijk nog niet geleverd.

Acties:
  • 0 Henk 'm!

  • millerman_sf
  • Registratie: Augustus 2011
  • Laatst online: 11-10 22:14
De kranen zonder coating noemt Hotbath zelf 'living colours' of 'patina':
https://www.hotbath.nl/myhotbath/blog/natuurlijk-patina/
https://www.hotbath.nl/myhotbath/blog/cobber-living-colours/

Maar in het echt kan het er echt nog heftiger uit zien. Witte/groene vlekken. Ik heb bij een badkamerzaak foto's gezien van de importeur zelf, voor ons was duidelijk dat we PVD wilden hebben. Bedenk ook dat bij kranen de werking in kleur groter is waar je ze aanraakt en waar vocht komt, maar bijvoorbeeld een douchekop zal bovenop amper verkleuring zien. Je krijgt dus ook kleurverschillen als je meer kranen hebt.

Acties:
  • 0 Henk 'm!

  • tomk10
  • Registratie: December 2012
  • Laatst online: 06:35
Bedankt voor de reacties tot dusver. Ik neig zelf ook naar kranen met een PVD coating. Wat ik mij wel afvraag wat het verschil is tussen de kranen van bijvoorbeeld Hotbath en Wiesbaden. De Wiesbaden kranen hebben een coating volgens hun website maar het is onduidelijk of dat PVD is. Ik heb ze een e-mail gestuurd met die vraag.

Daarnaast ben ik de prijzen van de kranen gaan vergelijken en er zit nogal een aardig verschil in prijs tussen de 2 merken. Wiesbaden is op het hele plaatje 4K goedkoper dan Hotbath. Ik vind dit nogal een groot verschil, is de kwaliteit dan zoveel beter?

De ‘living colours’ gaan het zeker niet worden, dat is juist wat niet de bedoeling moet zijn. Goed om dat nog eens duidelijk te hebben, dank.

Acties:
  • 0 Henk 'm!

  • Farabi
  • Registratie: Februari 2013
  • Niet online
Wij zitten hier ook naar complete badkamers te kijken. welke winkels kan ik het beste bezoeken voor dit? ik ben totaal onbekend in dit wereldje.

Acties:
  • +1 Henk 'm!

  • JohnStaakke
  • Registratie: Oktober 2007
  • Laatst online: 09-10 15:14
ollie_1982 schreef op donderdag 28 januari 2021 @ 16:55:
[...]


We zijn hier inmiddels al wat weken verder. Op dit moment is de schilder bezig en daarna kan het afmonteren beginnen. Hopelijk over een week of 3 de zolder zo goed als klaar.

Tot op heden verloopt alles volgens plan.

Hieronder wat foto's zoals we het bedacht hadden en hoe het in het echt geworden is.

[Afbeelding][Afbeelding]


[Afbeelding][Afbeelding]


[Afbeelding][Afbeelding]
Heel gaaf idee!

Acties:
  • 0 Henk 'm!

  • YoupDeBoer
  • Registratie: December 2016
  • Laatst online: 14-07 11:50
@tomk10 Wij zitten met hetzelfde vraagstuk idd. Op dit moment lijkt het erop dat we gaan voor de geborstelde koperen kranen. Hotbath is schreeuwend duur. Een alternatief voor ons zouden de kranen van Brauer kunnen zijn. Deze hebben ook een PVD coating en 5 jaar garantie. Maar ik zou ze graag nog even live kunnen bewonderen en vergelijken voordat we daar een definitieve keuze in gaan maken.

Heb zelf het idee dat een aantal merken (zoals Hotbath) werken met adviesprijzen, zodat deze ook aantrekkelijk zijn voor de sanitairzaken om aan te bieden. Die kunnen gemakkelijk wat korting erop geven en nog steeds flinke marges schrijven. De 2 digitale badkamerbezoeken hebben bij ons ook tweemaal een offerte opgeleverd met Hotbath spullen en een INK badkamermeubel (werkt ook met adviesprijzen).

Acties:
  • 0 Henk 'm!

  • millerman_sf
  • Registratie: Augustus 2011
  • Laatst online: 11-10 22:14
Daar komt bovenop dat Hotbath als een van de weinigen wel echt een complete lijn biedt in deze hippe kleurstellingen. Hetzelfde geldt voor INK, er zijn weinig meubels te vinden met een deel stalen frame bijvoorbeeld.

Acties:
  • 0 Henk 'm!

  • Mark_1987
  • Registratie: September 2006
  • Laatst online: 11-10 19:10
Wij hebben voor Hotbath Archie gekozen. Echt RVS. Volgende week komt alles binnen als het goed is. Ben benieuwd :)

Acties:
  • 0 Henk 'm!

  • Sunri5e
  • Registratie: December 2003
  • Laatst online: 06-10 22:37
Wij zijn ook bezig met onze badkamer. We willen graag voor een wat hoger segment gaan. Ons oog was ook gevallen op de Hotbath (type Cobber). Echter is onze installateur niet echt enthousiast over de kwaliteit van Hotbath. Ik geloof hem graag omdat hij er waarschijnlijk verstand van heeft en er niets op verdient want we kopen het sanitair niet bij hem in. Wat zijn jullie ervaringen met de kwaliteit van dit merk?

Acties:
  • 0 Henk 'm!

  • YoupDeBoer
  • Registratie: December 2016
  • Laatst online: 14-07 11:50
@millerman_sf dat klopt idd. Dus je hebt bij Hotbath meer keuze qua modellen enzo. Dat moet je bij andere merken dan ook maar net aanspreken. Maar goed, zit er bij een ander merk wel precies een lijn tussen in de kleur die je aanstaat...

Mooie van INK is idd dat je veel keuze hebt, kan combineren, met spiegels of spiegelkast, losse kast erbij etc. Neemt niet weg dat het werken met adviesprijzen ervoor zorgt dat prijsstunters er niet mee aan de haal kunnen en sanitairzaken het dus graag aanbieden, want ze zijn al snel daarmee goedkoper dan de internet(advies)prijs.

@Sunri5e voor de verbouwing van de badkamer vorig jaar hebben we enkel 2 kranen van Hotbath genomen. Daar is er nu eentje van kapot, dus ga hun service eens uitproberen. Service van INK is trouwens goed hebben we ervaren.

Acties:
  • 0 Henk 'm!

  • Grandisimo
  • Registratie: Juni 2014
  • Laatst online: 11-02 22:06
Hier al een paar jaar drie wasbakken een douche en een bad met Hotbath kranen.
Prima spul wat je ook mag verwachten voor dat geld.

Acties:
  • 0 Henk 'm!

  • Nathaniel
  • Registratie: Maart 2010
  • Laatst online: 03-06-2022
Vraagje. Hebben een toilet en heb de volgende situatie, zie foto. Toiletfontein (aanvoer koud water en afvoer) op deze wand zitten. We willen hem achter op de linkerwand. Kan je de afvoer en waterleiding fatsoenlijk naar de andere muur krijgen? De watertoevoer zit 8cm vanuit de hoek en afvoer 22.

Plaatje van internet geplukt:
Afbeeldingslocatie: https://tweakers.net/i/BS0YSdPl_KjA0BT3Ezdcq06A6Jc=/800x/filters:strip_icc():strip_exif()/f/image/h47CK7P64fDfkfDtUDR5AUzl.jpg?f=fotoalbum_large

Acties:
  • 0 Henk 'm!

  • Flix20
  • Registratie: Oktober 2011
  • Laatst online: 10-10 21:23
Nathaniel schreef op donderdag 4 februari 2021 @ 00:03:
Vraagje. Hebben een toilet en heb de volgende situatie, zie foto. Toiletfontein (aanvoer koud water en afvoer) op deze wand zitten. We willen hem achter op de linkerwand. Kan je de afvoer en waterleiding fatsoenlijk naar de andere muur krijgen? De watertoevoer zit 8cm vanuit de hoek en afvoer 22.

Plaatje van internet geplukt:
[Afbeelding]
Opzich zou het gewoon moeten kunnen. Muur openhakken, leidingen leggen en weer dichtgooien en je fontein ophangen.

PSN: Flix20-NL


Acties:
  • 0 Henk 'm!

  • Tjebakka
  • Registratie: Juli 2007
  • Laatst online: 09-10 11:03

Tjebakka

PSN: Currahee_Ross

Nathaniel schreef op donderdag 4 februari 2021 @ 00:03:
Vraagje. Hebben een toilet en heb de volgende situatie, zie foto. Toiletfontein (aanvoer koud water en afvoer) op deze wand zitten. We willen hem achter op de linkerwand. Kan je de afvoer en waterleiding fatsoenlijk naar de andere muur krijgen? De watertoevoer zit 8cm vanuit de hoek en afvoer 22.

Plaatje van internet geplukt:
[Afbeelding]
Ja dat kan wel, maar wat win je ermee + in het geval van een vrij recent huis moet je dan sleuven maken in knetterhard beton.

If it aint fixed, it's broken.


Acties:
  • 0 Henk 'm!

  • Nathaniel
  • Registratie: Maart 2010
  • Laatst online: 03-06-2022
Het is nieuwbouw, we hebben als je binnenkomt gelijk links ruimte voor een wasbak over de hele lengte. Is nieuwbouw.

Acties:
  • 0 Henk 'm!

  • YoupDeBoer
  • Registratie: December 2016
  • Laatst online: 14-07 11:50
@tomk10
NDF82 schreef op zaterdag 31 oktober 2020 @ 16:54:
Wij zijn twee jaar geleden voor hotbath gegaan omdat we het erg mooi vonden. Het is erg duur maar de uitstraling was het meer dan waard.

De kwaliteit is echter waardeloos. De thermostaat van de douche mengkraan is al vervangen net als de bad stop en de regendouche. Die laatste twee vanwege put corrosie.

De after sales is net zo waardeloos als de kwaliteit van de producten. Ben voor de vervanging van de regen douche bijna een jaar aan het bellen/mailen geweest.

Mijn advies (n=1): koop geen hotbath. Een volgende keer gaan we we voor het vertrouwde Grohe.
Hier in een discussie ook een slechte ervaring m.b.t. de kwaliteit van Hotbath.

Voor wat het waard is uiteraard. Van elk merk zijn wel slechte ervaringen te vinden natuurlijk.

Maar ik twijfel er sterk aan of het pushen van Hotbath producten niet voornamelijk gedreven is door de marge die ze er op kunnen maken.

Acties:
  • +8 Henk 'm!

  • Tjebakka
  • Registratie: Juli 2007
  • Laatst online: 09-10 11:03

Tjebakka

PSN: Currahee_Ross

Alleen nog kitten en wat spulletjes op de muur monteren!

Afbeeldingslocatie: https://tweakers.net/i/bqJE-NlrpR-pk0ba8Juq9UXrS3Q=/800x/filters:strip_icc():strip_exif()/f/image/6sjckm3yRrs41ABYt0GkHCM3.jpg?f=fotoalbum_large

If it aint fixed, it's broken.


Acties:
  • +1 Henk 'm!

  • Ojjorz
  • Registratie: December 2003
  • Niet online

Ojjorz

De oude man die alles kan

Tjebakka schreef op donderdag 4 februari 2021 @ 11:25:
Alleen nog kitten en wat spulletjes op de muur monteren!

[Afbeelding]
Mooi hoor. Heel neutraal zonder saai te zijn.

Worden die nisjes ook nog afgekit? Lijken nog flinke naden te zitten.

Acties:
  • +1 Henk 'm!

  • Tjebakka
  • Registratie: Juli 2007
  • Laatst online: 09-10 11:03

Tjebakka

PSN: Currahee_Ross

Ojjorz schreef op donderdag 4 februari 2021 @ 11:27:
[...]


Mooi hoor. Heel neutraal zonder saai te zijn.

Worden die nisjes ook nog afgekit? Lijken nog flinke naden te zitten.
Ja die worden nog afgekit. De klusjesman wil voor het kitten ruim de tijd nemen. Hij haat het als er niet netjes wordt gewerkt en ik ben ook erg blij dat terug te zien in al zijn klussen.

If it aint fixed, it's broken.


Acties:
  • 0 Henk 'm!

  • Karin P
  • Registratie: November 2020
  • Laatst online: 19-08-2023
Heeft iemand ervaring met inbouw reserverolhouders? Dit leek me een handige oplossing voor het toilet (125 cm x 90 cm); te installeren in de de wand met het inbouwreservoir.
Afbeeldingslocatie: https://tweakers.net/i/OU35hwog8IAbmDvHhgVIdIEvgSo=/full-fit-in/4920x3264/filters:max_bytes(3145728):no_upscale():strip_icc():fill(white):strip_exif()/f/image/xkEJnX1ysYx3VIOPNjXAIO4L.jpg?f=user_large

De badkamerspecialist verbonden aan ons project (hier overigens geen badkamer gekocht) raadde het af, omdat de reserverol in de "spetterzone" van de mannelijke plassers zou komen.
Na dit advies ook bij de tegelboer gevraag wat ze van een dergelijke reserverolhouder vinden. Die zei dat de spetters geen issue zijn, maar dat de constructie van de ombouw te zwak zou worden.
Dus eigenlijk 2 keer afgeraden, terwijl het mij een fijne, nette oplossing leek voor rondzwervende rollen.
Heeft iemand dit soort houder in gebruik en wat is de ervaring?

Acties:
  • 0 Henk 'm!

  • SquareOne
  • Registratie: Januari 2010
  • Laatst online: 09:10
Karin P schreef op donderdag 4 februari 2021 @ 13:18:
Heeft iemand ervaring met inbouw reserverolhouders? Dit leek me een handige oplossing voor het toilet (125 cm x 90 cm); te installeren in de de wand met het inbouwreservoir.
[Afbeelding]

De badkamerspecialist verbonden aan ons project (hier overigens geen badkamer gekocht) raadde het af, omdat de reserverol in de "spetterzone" van de mannelijke plassers zou komen.
Na dit advies ook bij de tegelboer gevraag wat ze van een dergelijke reserverolhouder vinden. Die zei dat de spetters geen issue zijn, maar dat de constructie van de ombouw te zwak zou worden.
Dus eigenlijk 2 keer afgeraden, terwijl het mij een fijne, nette oplossing leek voor rondzwervende rollen.
Heeft iemand dit soort houder in gebruik en wat is de ervaring?
Bij mijn ouders is het toegepast op het toilet bij hun verbouwing. Het ding is ingebouwd direct naast het inbouwreservoir (zelfde wandje). Geen idee of de aannemer er moeilijk over gedaan heeft.

Acties:
  • 0 Henk 'm!

  • Flix20
  • Registratie: Oktober 2011
  • Laatst online: 10-10 21:23
Zou niet weten waarom de constructie van de ombouw te zwak zou worden.
Is vaak gemaakt van een houten skelet en/of wedi platen.

Zelf heb ik het niet gedaan omdat ik €120+ een beetje te gortig vond voor een wc rol houder.

PSN: Flix20-NL


Acties:
  • 0 Henk 'm!

  • louzy82
  • Registratie: Juni 2011
  • Laatst online: 10-10 12:45
Flix20 schreef op donderdag 4 februari 2021 @ 13:22:
Zou niet weten waarom de constructie van de ombouw te zwak zou worden.
Is vaak gemaakt van een houten skelet en/of wedi platen.

Zelf heb ik het niet gedaan omdat ik €120+ een beetje te gortig vond voor een wc rol houder.
Ik had er zelf een gemaakt maar uiteindelijk niet toe kunnen passen omdat de plannen iets aangepast werden en ik niet voldoende diepte had.

Ik kan me ook geen reden voorstellen waarom het niet zou moeten kunnen.

Louzy#2475


Acties:
  • +2 Henk 'm!

  • Nathaniel
  • Registratie: Maart 2010
  • Laatst online: 03-06-2022
Tjebakka schreef op donderdag 4 februari 2021 @ 08:44:
[...]


Ja dat kan wel, maar wat win je ermee + in het geval van een vrij recent huis moet je dan sleuven maken in knetterhard beton.
We willen als je het toilet binnenkomt het volgende aan je linkerkant. Daar zit precies een nis waarin onderstaand plateau valt. Vind een fontein altijd al lelijk en in de weg zitten, dit is een mooie oplossing. We gaan dan inderdaad van een woningscheidende wand naar een binnenmuur.

Afbeeldingslocatie: https://tweakers.net/i/YQwFabwR7DT1nCON1OS7MUlv-uU=/full-fit-in/4920x3264/filters:max_bytes(3145728):no_upscale():strip_icc():fill(white):strip_exif()/f/image/Vs4ekguhE9z28QIA0jOWmfGf.jpg?f=user_large

Acties:
  • +1 Henk 'm!

  • tomk10
  • Registratie: December 2012
  • Laatst online: 06:35
YoupDeBoer schreef op donderdag 4 februari 2021 @ 11:19:
@tomk10


[...]


Hier in een discussie ook een slechte ervaring m.b.t. de kwaliteit van Hotbath.

Voor wat het waard is uiteraard. Van elk merk zijn wel slechte ervaringen te vinden natuurlijk.

Maar ik twijfel er sterk aan of het pushen van Hotbath producten niet voornamelijk gedreven is door de marge die ze er op kunnen maken.
Zo heeft ieder merk inderdaad positieve en negatieve reviews. Bedankt voor het zoeken van deze post.

Ondertussen bericht gekregen van Wiesbaden en hun Caral serie is PVD gecoat en een stuk beter te betalen dan Hotbath. Ik neig nu heel erg naar de keuze om voor die kranen te gaan echter hebben we nog wel een tijdje om de keuze te maken. Ondertussen de reviews in de gaten houden.

Ik ben erg benieuwd naar jullie keuze voor de kranen en hoe je ervaring met de Hotbath klantenservice is.

Acties:
  • +1 Henk 'm!

  • DCNY
  • Registratie: November 2016
  • Laatst online: 09:24
Wij gaan een slaapkamer omtoveren tot badkamer. Gaan van n badkamer van nog geen 2 bij 2 naar een badkamer van 3 bij 3. Enorme vooruitgang dus! En daar komt geen toilet in dus zijn goed aan t spelen met de inrichting.

Omdat we de ruimte hebben en flink lichtinval is durven we een donkere inrichting aan. Hebben een zwart of grijs bad op t oog. T enige waar we een beetje huiverig voor zijn is kalk.. Is t bad binnen notime wit van de kalk, of zal t meevallen? Uiteraard bad nadoen met n handdoek na gebruik.

Verder tips, aan- of afraders m.b.t. deze 2 baden?

https://www.tegeldepot.nl...qJYzDvdDCRAaAjk5EALw_wcB#

https://www.sanidirect.nl...Fb1waHpkVraQaAujjEALw_wcB

Acties:
  • 0 Henk 'm!

  • Quad
  • Registratie: Mei 2009
  • Laatst online: 01:10

Quad

Doof

Karin P schreef op donderdag 4 februari 2021 @ 13:18:
Heeft iemand ervaring met inbouw reserverolhouders? Dit leek me een handige oplossing voor het toilet (125 cm x 90 cm); te installeren in de de wand met het inbouwreservoir.
[Afbeelding]

De badkamerspecialist verbonden aan ons project (hier overigens geen badkamer gekocht) raadde het af, omdat de reserverol in de "spetterzone" van de mannelijke plassers zou komen.
Na dit advies ook bij de tegelboer gevraag wat ze van een dergelijke reserverolhouder vinden. Die zei dat de spetters geen issue zijn, maar dat de constructie van de ombouw te zwak zou worden.
Dus eigenlijk 2 keer afgeraden, terwijl het mij een fijne, nette oplossing leek voor rondzwervende rollen.
Heeft iemand dit soort houder in gebruik en wat is de ervaring?
Of je pakt iets van deze tijd (industrieel), bijvoorbeeld een riem van de Action, waar je de rollen als ware in hangt, kost een beetje, hoop plezier. ;)

Afbeeldingslocatie: https://tweakers.net/i/jTRkFVwil1Ag1Mk7zHYWCMJwDX4=/232x232/filters:strip_icc():strip_exif()/f/image/4q3n44PVMU06lBNmsI0owWG3.jpg?f=fotoalbum_tile

Overigens is de mening van de spetters gedeeltelijk onderbuikgevoel denk ik. Zoveel plekken waar de rollen op een stok staan en dan naast / achter het toilet.

Alles went behalve een Twent.
PVOutput☀️


Acties:
  • +2 Henk 'm!

  • Flix20
  • Registratie: Oktober 2011
  • Laatst online: 10-10 21:23
DCNY schreef op vrijdag 5 februari 2021 @ 05:38:
Wij gaan een slaapkamer omtoveren tot badkamer. Gaan van n badkamer van nog geen 2 bij 2 naar een badkamer van 3 bij 3. Enorme vooruitgang dus! En daar komt geen toilet in dus zijn goed aan t spelen met de inrichting.

Omdat we de ruimte hebben en flink lichtinval is durven we een donkere inrichting aan. Hebben een zwart of grijs bad op t oog. T enige waar we een beetje huiverig voor zijn is kalk.. Is t bad binnen notime wit van de kalk, of zal t meevallen? Uiteraard bad nadoen met n handdoek na gebruik.

Verder tips, aan- of afraders m.b.t. deze 2 baden?

https://www.tegeldepot.nl...qJYzDvdDCRAaAjk5EALw_wcB#

https://www.sanidirect.nl...Fb1waHpkVraQaAujjEALw_wcB
Kalk ga je heel snel zien.
Het is natuurlijk wel een beetje locatie afhankelijk hoe hard je water is in de omgeving en of je wel of geen water ontharder plaatst zien.
Had het zelf ook wel een beetje onderschat met de zwarte douche.
Na de eerste keer douchen; onder de witte kalk vlekken.
En ik ga toch echt niet iedere keer na het douchen een doekje over de kraan halen.

PSN: Flix20-NL


Acties:
  • +1 Henk 'm!

  • Karin P
  • Registratie: November 2020
  • Laatst online: 19-08-2023
@louzy82 , @Flix20 , @SquareOne, @Quad
Bedankt voor jullie info en suggesties. Ik hoef dus geen geel toiletpapier te kopen ;)
Afhankelijk van het budget gaan we voor inbouw of de Action riem :)

Acties:
  • +1 Henk 'm!

  • Res-q
  • Registratie: December 2002
  • Laatst online: 02-10 15:03

Res-q

Redder in nood?

In ons vorige huis hadden we zowel in de badkamer als in het toilet beneden een inbouw reserverolhouder (maar dan van stock4rolls.nl, die vonden we mooier dan van looox). Beviel ons erg goed, mooi weggewerkt en geen last van spetters oid. Net wat hierboven wordt gezegd, dat heb je met een andere houder die je naast de pot zet net zo goed (of slecht). Het is vooral een leuke gimmick, maar als je alles netjes hebt ziet het er fraait uit, en met schoonmaken wel net zo handig dat er niks op de grond staat.
In een nieuwe badkamer zouden wij het in elk geval zo weer nemen!

en zo is het voorspeld!

Pagina: 1 ... 40 ... 127 Laatste