Dames en heren, wie weet hoe ik erachter kan komen of mijn vloer geisoleerd is?
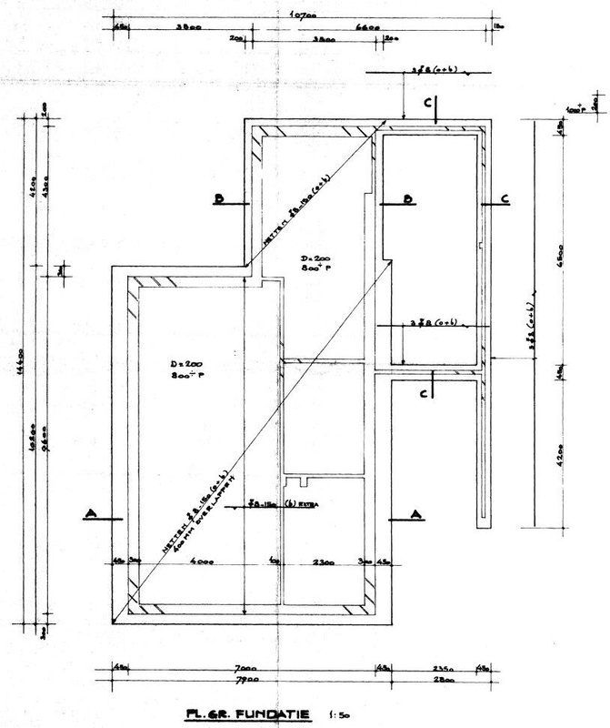
Het gaat om het rechtergedeelte van de woning. Zoals op de bouwtekening te zien is, ligt de vloer direct in het zand, itt het linkerdeel van de woning, die wel een kruipruimte heeft.
De woning is gebouwd in 1991 dus ik vermoed dat er weinig tot geen isolatie is toegepast bij het aanleggen van de vloer (en zover ik weet nooit nageisoleerd), maar ik wil het graag zeker weten, voordat ik de vloer zelf verwijder en hem ga isoleren. Iemand een idee hoe ik dit kan controleren, zonder dat ik al ga breken? Bedankt voor jullie hulp!
Het gaat om het rechtergedeelte van de woning. Zoals op de bouwtekening te zien is, ligt de vloer direct in het zand, itt het linkerdeel van de woning, die wel een kruipruimte heeft.
De woning is gebouwd in 1991 dus ik vermoed dat er weinig tot geen isolatie is toegepast bij het aanleggen van de vloer (en zover ik weet nooit nageisoleerd), maar ik wil het graag zeker weten, voordat ik de vloer zelf verwijder en hem ga isoleren. Iemand een idee hoe ik dit kan controleren, zonder dat ik al ga breken? Bedankt voor jullie hulp!
:strip_exif()/f/image/Sm4UxOUfUFNiTNZAKmEfWDCf.jpg?f=fotoalbum_large)
:strip_exif()/f/image/vsPQEAu3weSs0AAysjiQ14Jv.jpg?f=fotoalbum_large)
:strip_exif()/f/image/lj2I14CQWJJmRaE2rrviURqc.jpg?f=fotoalbum_large)
:strip_exif()/f/image/N6OS4HMA3pGijvNZZ52x2fAY.jpg?f=fotoalbum_large)
:strip_exif()/f/image/D7cIxoaR24JS0JgvjhdwTsxx.jpg?f=fotoalbum_large)