In juni hebben wij een nieuw huis gekocht met een mooi stukje grond er bij. Het huis is van eind jaren 60 met her en der nog een keer een verbouwing tussendoor. Aanstaande vrijdag krijgen we de sleutel en dus staan we aan de vooravond van de grootste uitdaging en tevens relatietest van ons leven
.
Het huis is nodig aan modernisering toe en aangezien we nu nog geen kinderen hebben leek het ons ideaal om daar maar gelijk mee te gaan beginnen. Na heel wat rekenwerk was duidelijk dat we een mooie som geld hebben om van dit huis, ons droomhuis (op onze droomplek) te maken.
Na verschillende topics hier op tweakers voorbij hebben te zien komen, kan ik natuurlijk niet achterblijven.
Zoals te zien is blijft er weinig over van de oorspronkelijke woning. De grootste klussen/uitdagingen:
We kunnen hierdoor dus meteen beginnen en gaan dan ook gelijk in een unit achter op het perceel wonen.
De vraag: "Waarom niet slopen en nieuw bouwen" zal vast voorbij komen. En slopen was natuurlijk ook een optie geweest, maar vooral de tijd die alles opnieuw evalueren (en vergunnen) zou kosten heeft ons doen besluiten om voor verbouwen te kiezen.
Wat betreft hulp hebben we een ZZP aannemer/timmerman/metselaar die de ruwbouw zal gaan begeleiden. Hierbij krijgen we de ruimte om zoveel mogelijk te helpen / zelf te doen, met alles in goed overleg. Tijdens de ruwbouw zullen we eens evalueren hoe goed en snel alles gaat. Zodra het huis lucht- en waterdicht is willen we eigenlijk nagenoeg alles verder zelf doen.
De eerste stappen na de sleuteloverdracht vrijdag a.s. zullen dus zijn de voorbereidingen (fundering/nuts) voor de woonunit treffen en dan wordt deze de 12e geplaatst.
Spannende tijd komt eraan, maar ook heel veel zin in!
Het huis is nodig aan modernisering toe en aangezien we nu nog geen kinderen hebben leek het ons ideaal om daar maar gelijk mee te gaan beginnen. Na heel wat rekenwerk was duidelijk dat we een mooie som geld hebben om van dit huis, ons droomhuis (op onze droomplek) te maken.
Na verschillende topics hier op tweakers voorbij hebben te zien komen, kan ik natuurlijk niet achterblijven.
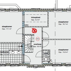
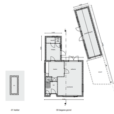
De bestaande situatie
![]() | ![]() | ![]() |
![]() |
Hoe het moet worden
![]() | ![]() | ![]() |
![]() |
Zoals te zien is blijft er weinig over van de oorspronkelijke woning. De grootste klussen/uitdagingen:
- Buitenblad verwijderen, fundering uitbreiden, buitenaf isoleren
- Links een stuk bij het huis aanbouwen
- Dak eraf en omhoog halen om meer ruimte te realiseren op de 2e verdieping
- Verder verandert de indeling binnen ook volledig
- Woning moderniseren naar huidige maatstaven, o.a. van het gas af / nieuwe kozijnen triple glas / zonnepanelen
We kunnen hierdoor dus meteen beginnen en gaan dan ook gelijk in een unit achter op het perceel wonen.
De vraag: "Waarom niet slopen en nieuw bouwen" zal vast voorbij komen. En slopen was natuurlijk ook een optie geweest, maar vooral de tijd die alles opnieuw evalueren (en vergunnen) zou kosten heeft ons doen besluiten om voor verbouwen te kiezen.
Wat betreft hulp hebben we een ZZP aannemer/timmerman/metselaar die de ruwbouw zal gaan begeleiden. Hierbij krijgen we de ruimte om zoveel mogelijk te helpen / zelf te doen, met alles in goed overleg. Tijdens de ruwbouw zullen we eens evalueren hoe goed en snel alles gaat. Zodra het huis lucht- en waterdicht is willen we eigenlijk nagenoeg alles verder zelf doen.
De eerste stappen na de sleuteloverdracht vrijdag a.s. zullen dus zijn de voorbereidingen (fundering/nuts) voor de woonunit treffen en dan wordt deze de 12e geplaatst.
Spannende tijd komt eraan, maar ook heel veel zin in!
/f/image/6r4DNxGDiRweiWjdPgAAKBkf.png?f=fotoalbum_tile)
/f/image/tP9Qn87RSqZnAxYTqJnl2Vg1.png?f=fotoalbum_tile)
/f/image/zFTwp0gJUoyUcxD9Qcis9JA9.png?f=fotoalbum_tile)
/f/image/DHKQiMQF1lLBaYVx8wp4f3HX.png?f=fotoalbum_tile)
/f/image/EWWYIBrHy0PBBRG1ZiHcbXKD.png?f=fotoalbum_tile)
/f/image/vhNnrwgSGAm2jjImm3dNaewb.png?f=fotoalbum_tile)
/f/image/kyH6LMqn1lJfqvcCYbKW8pdl.png?f=fotoalbum_tile)
/f/image/8L9njK1eDpb5G7FZFSOl7ir9.png?f=fotoalbum_tile)
/f/image/93Ww5OuINGXI8AcNPSAJWSAs.png?f=fotoalbum_tile)
:strip_exif()/f/image/32LrYpsDfdUjfx8AjFE7HWDT.jpg?f=fotoalbum_tile)
:strip_exif()/f/image/cKxuAd7FbfHPNOndhQmzwiut.jpg?f=fotoalbum_tile)
:strip_exif()/f/image/RJvURheQ97TywOamZI4zwdKM.jpg?f=fotoalbum_tile)
:strip_exif()/f/image/u31rXGLIVmgxxrty4aMZAGAW.jpg?f=fotoalbum_tile)
:strip_exif()/f/image/BnAt8oybdjhtxifzz1P55zDv.jpg?f=fotoalbum_tile)
:strip_exif()/f/image/meOh0dnraUwfJM8XsNDFFIQb.jpg?f=fotoalbum_tile)
:strip_exif()/f/image/7QKKaqmzqtqTMq4Ln3MFzN5p.jpg?f=fotoalbum_tile)
:strip_exif()/f/image/xnpTWqeDX71kx8mGe3mX3SrG.jpg?f=fotoalbum_tile)
:strip_exif()/f/image/h4unMbGwZiDd5tDiKpIu9e3s.jpg?f=fotoalbum_tile)
:strip_exif()/f/image/e1qvs1gHTUEiDbDgqMnC9fex.jpg?f=fotoalbum_tile)
:strip_exif()/f/image/RWCT6syASimbE4i0ecik7cUM.jpg?f=fotoalbum_tile)
:strip_exif()/f/image/pLfp6djHO0RWpUfEO388a5D2.jpg?f=fotoalbum_tile)
:strip_exif()/f/image/KaMMEtGNQi3oNpKa3XLmvH75.jpg?f=fotoalbum_tile)
:strip_exif()/f/image/zJCX9jUhXW2CQs73AkzP2sc3.jpg?f=fotoalbum_tile)
:strip_exif()/f/image/TRIXqy3gZINCsbmEvFMtdKtY.webp?f=fotoalbum_tile)
:strip_exif()/f/image/CLy9skK9xk0QogDBZtdJ7BMx.jpg?f=fotoalbum_tile)
:strip_exif()/f/image/k75SZciPA68Krgw1SRk386zi.jpg?f=fotoalbum_tile)
:strip_exif()/f/image/LOoYm8uwBhSStQ08KKuY6yip.jpg?f=fotoalbum_tile)
:strip_exif()/f/image/lfV0PXJSClCaPuD9RJZugyVW.jpg?f=fotoalbum_tile)
:strip_exif()/f/image/4yoe8UOU8XmWGNILXI15wB8P.jpg?f=fotoalbum_tile)
:strip_exif()/f/image/iXz622aFQdkG7reX8yiTVaI0.jpg?f=fotoalbum_tile)
:strip_exif()/f/image/T2lWCfdUaqFwNDydcVl3FuwP.jpg?f=fotoalbum_tile)
:strip_exif()/f/image/qzBmv5D52kx9L3WdRyZqwiOY.jpg?f=fotoalbum_tile)
/f/image/08gUsJHvfFb8JAwO9h8VOumG.png?f=fotoalbum_tile)
:strip_exif()/f/image/WGaPCJRdpQXEcwTVhX21XmjR.jpg?f=fotoalbum_tile)
:strip_exif()/f/image/5g23DIRQLhUvVYz4Qig7enAv.jpg?f=fotoalbum_tile)