Dik 30k incl montage en aeg/novy inbouwapparatuur. Gaan we niet doen.
De woonkamer is L vormig (dat hebben we niet aangegeven op de tekening), dus dit is de opstelling die past.RobbieB schreef op zaterdag 14 februari 2026 @ 10:37:
[...]
Ik vind de afstand tussen je spoelbak en kookplaat wel erg groot. Dan moet je 2 meter lopen als je je pannen af wil gieten. Idealiter is dat gewoon 1 stap of even omdraaien ofzo. Voor zo’n ruime keuken vind ik die indeling dus niet erg praktisch. Waarom geen vrijstaand eiland parallel aan de kastenwand?
[...]
Afstand tussen spoelbak en kookplaat is inderdaad wat groot. We waren al bezig met een alternatief, waarbij we ook nog een heel smalle spoelbak toevoegen aan het eiland. Dat hebben we op mijn werk ook en dat is grappig genoeg heel praktisch.
:strip_exif()/f/image/6EeDLwsNZNVNzNDAGKJgoud5.png?f=user_large)
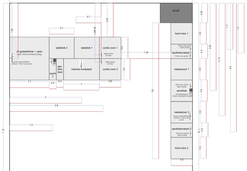
We komen dan op onderstaande uitwerking. Bedankt voor de suggesties.
Goeie oplossing. Ik zou dan wel ook de Quooker bij die kleine wasbak doen ipv die andere. Hier wordt hij gebruikt voor 2 zaken: thee en water om in te koken. En je wil nou net niet met een pan met kokend water heen en weer gaan wandelen. En voor thee maakt het niet uit waar hij zit. Je zou dan kunnen overwegen de schone glazen in de la onder het fornuis (of ernaast) te zetten.Ik ben het! schreef op zaterdag 14 februari 2026 @ 16:47:
[...]
De woonkamer is L vormig (dat hebben we niet aangegeven op de tekening), dus dit is de opstelling die past.
Afstand tussen spoelbak en kookplaat is inderdaad wat groot. We waren al bezig met een alternatief, waarbij we ook nog een heel smalle spoelbak toevoegen aan het eiland. Dat hebben we op mijn werk ook en dat is grappig genoeg heel praktisch.
[Afbeelding]
We komen dan op onderstaande uitwerking. Bedankt voor de suggesties.
[Afbeelding]
Sony A6700 - 10-18 F4 - 18-50 F2.8 - 24 F1.8 - 56 F1.4 - 70-350G
Let op:
Dit topic kan gebruikt worden voor het volgende:
• Vragen over de keuken, denkend aan indeling, materialen, kastjes, apparatuur, etc.
• Welke kastjes, aanrechtbladen en apparatuur te kiezen
• Ervaringen met verkopers en keukenboeren
• Tips & Tricks denk hierbij aan hulp bij het zelf installeren en onderhouden van de keuken.
• Jouw indeling. Plaats gerust een foto of tekening, maar maak het niet te bont met hele buildlogs.
Voor badkamers: Het Badkamer topic: verkopers, kwaliteit, prijs - Deel 1
Showen met je keuken kan hier: Tweakers Keuken showroom! - Vestiging 1
Dit topic kan gebruikt worden voor het volgende:
• Vragen over de keuken, denkend aan indeling, materialen, kastjes, apparatuur, etc.
• Welke kastjes, aanrechtbladen en apparatuur te kiezen
• Ervaringen met verkopers en keukenboeren
• Tips & Tricks denk hierbij aan hulp bij het zelf installeren en onderhouden van de keuken.
• Jouw indeling. Plaats gerust een foto of tekening, maar maak het niet te bont met hele buildlogs.
Voor badkamers: Het Badkamer topic: verkopers, kwaliteit, prijs - Deel 1
Showen met je keuken kan hier: Tweakers Keuken showroom! - Vestiging 1