Ik ben in het bezit van een mooie jaren '30 woning waar al tientallen jaren niets aan is gedaan. We zijn de woning volledig aan het strippen; alle leidingen eruit (elektra, water, afvoer, etc), vloeren eruit, isoleren etc. Voor de eerste verdieping twijfelen we wat we aan verwarming moeten kiezen.
De woning heeft een spouw van 6cm welke opgevuld gaat worden met EPS parels. We doen bewust geen voorzetwanden (andere discussie, niet van belang voor nu) Er zit nu dubbelglas in, dat wordt op den duur vervangen door HR+. De tussenvloeren worden (tussen de balken) geïsoleerd met +-10cm isovlas en de vloer op de eerste verdieping krijgt een zwevende dekvloer om geluid tegen te gaan. De badkamer krijgt vloerverwarming en een handdoekenradiator.
Het huis zal nog verwarmd worden met een CV maar op den duur wellicht met warmtepomp (voorbereiding wordt getroffen).
Maar, wat te doen met de slaapkamers, hoe krijgen we deze warm op de zeldzaam koude dagen van het jaar?
Ik heb uiteraard al e.e.a. uitgezocht, maar wellicht dat jullie nog wat ervaring hebben waarmee je mij verder kan helpen:
- Airco's vinden we niet wenselijk om mee te verwarmen: continu luchtstroom, geluid en snelle afkoeling als je het apparaat weer uitzet.
- Laagtemperatuur radiatoren kan, maar ik vraag me af hoe snel deze kunnen verwarmen. We kunnen in elk geval de leidingen laten leggen just in case.
- Vloerverwarming in de slaapkamers kan ook, maar is kostbaar. En voor zover ik begrijp duur het lang om je kamer op temperatuur te krijgen terwijl ze hooguit voor een paar uurtjes in de avond warm dienen te zijn (dus niet de hele dag/nacht). We slapen het liefst in de kou met een raam open:-). En ook deze moet geschikt zijn voor laagtemperatuur i.v.m. de ambitie voor een warmtepomp.
- Elektrische radiatoren kan ook, we kunnen specifieke stopcontacten laten aanleggen per kamer om hierin te voorzien. Ik vraag me af wat dit verschilt met laagtemperatuur radiatoren.
We gaan alle leidingen opnieuw aanleggen, dus dat is geen belemmering. Wat zouden jullie doen?
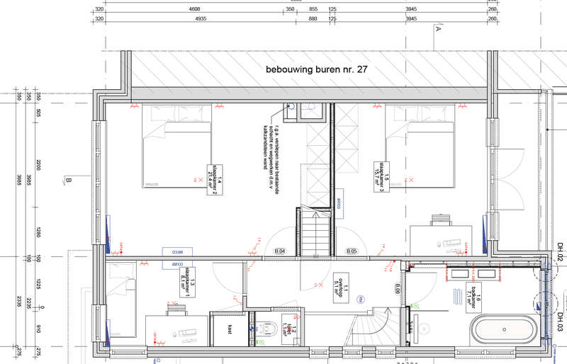
Het gaat om de drie slaapkamers waar in de tekening al (met blauw) elektrische radiatoren zijn ingetekend.
De woning heeft een spouw van 6cm welke opgevuld gaat worden met EPS parels. We doen bewust geen voorzetwanden (andere discussie, niet van belang voor nu) Er zit nu dubbelglas in, dat wordt op den duur vervangen door HR+. De tussenvloeren worden (tussen de balken) geïsoleerd met +-10cm isovlas en de vloer op de eerste verdieping krijgt een zwevende dekvloer om geluid tegen te gaan. De badkamer krijgt vloerverwarming en een handdoekenradiator.
Het huis zal nog verwarmd worden met een CV maar op den duur wellicht met warmtepomp (voorbereiding wordt getroffen).
Maar, wat te doen met de slaapkamers, hoe krijgen we deze warm op de zeldzaam koude dagen van het jaar?
Ik heb uiteraard al e.e.a. uitgezocht, maar wellicht dat jullie nog wat ervaring hebben waarmee je mij verder kan helpen:
- Airco's vinden we niet wenselijk om mee te verwarmen: continu luchtstroom, geluid en snelle afkoeling als je het apparaat weer uitzet.
- Laagtemperatuur radiatoren kan, maar ik vraag me af hoe snel deze kunnen verwarmen. We kunnen in elk geval de leidingen laten leggen just in case.
- Vloerverwarming in de slaapkamers kan ook, maar is kostbaar. En voor zover ik begrijp duur het lang om je kamer op temperatuur te krijgen terwijl ze hooguit voor een paar uurtjes in de avond warm dienen te zijn (dus niet de hele dag/nacht). We slapen het liefst in de kou met een raam open:-). En ook deze moet geschikt zijn voor laagtemperatuur i.v.m. de ambitie voor een warmtepomp.
- Elektrische radiatoren kan ook, we kunnen specifieke stopcontacten laten aanleggen per kamer om hierin te voorzien. Ik vraag me af wat dit verschilt met laagtemperatuur radiatoren.
We gaan alle leidingen opnieuw aanleggen, dus dat is geen belemmering. Wat zouden jullie doen?
Het gaat om de drie slaapkamers waar in de tekening al (met blauw) elektrische radiatoren zijn ingetekend.
"I tried being reasonable, I didn't like it"
:strip_exif()/f/image/wN465j7eAt1FB2KnC5npBhD2.jpg?f=fotoalbum_large)