Beste allen,
Wij hebben een woning gekocht en komt er over een paar mndn een uitbouw vd woning+garage. Tevens willen we de garage ook bij de woning betrekken en de draagmuur tussen de woning en garage laten verwijderen. En mocht er budget overblijven willen we mits we een vergunning krijgen bovenop de garage een extra verdieping (uitbouw van een slaapkamer) realiseren
Het bouwbedrijf dat de uitbouw gaat uitvoeren,doet normaliter geen andere werkzaamheden dan uitbouwen en heeft op mijn verzoek toch nog een offerte uitgebracht voor het verwijderen van de draagmuur.
Nu had ik in de tussentijd zelf ook links en rechts informatie en offertes opgevraagd en ben ik ook benieuwd naar jullie mening.
Bouwbedrijf geeft aan dat ze de draagmuur willen verwijderen maar er een deel van de muur zal moeten blijven bestaan (geel gemarkeerd)
Een (erkende) sloopbedrijf heeft aangegeven dat de muur ook verwijderd kan worden maar in de plaats daarvan een verticale balk geplaatst kan worden en ze vaker zien dat bouwbedrijven die buiten hun specialisme werkzaamheden uitvoeren vaak het risico niet durven te nemen, omdat ze niet de juiste kennis/ervaring hebben.
Mijn voorkeur gaat natuurlijk uit om alles bij de bouwbedrijf te laten uitvoeren maar door wat het sloopbedrijf mij vertelde ben ik nu aan het twijfelen.
Het zit hem niet in de prijs maar in het cosmetische deel van het verwijderen vd draagmuur. Omdat de muur/balk erg dichtbij een keukeneiland komt.
Prijsindicaties van bouwbedrijf en sloopbedrijven (onder voorbehoud van constructieberekening) zitten beiden rond de €8.000 incl.btw
Nu zou ik jullie mening ook willen weten over het volgende;
- Zou het ook mogelijk kunnen zijn om de verticale balk helemaal achterin de gevel te laten plaatsen zodat er geen verticale balk zichtbaar is in de ruimte?
- Wat is een logische volgorde? Eerst uitbouw of eerst draagmuur verwijderen?
- Is het handig dat de constructeur ook meteen rekening houdt met een opbouw bovenop de garage?
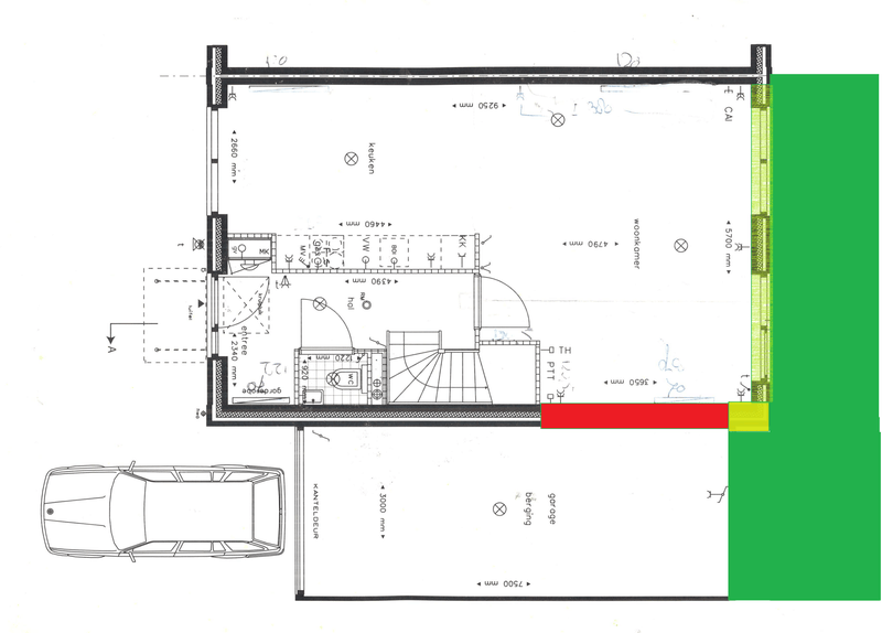
Ter illustratie heb ik de plattegrond toegevoegd.
- Donkergroen = uitbouw
- Lichtgroen = doorbraak vd bestaande achtergevel
- Rood = doorbreken draagmuur
Wij hebben een woning gekocht en komt er over een paar mndn een uitbouw vd woning+garage. Tevens willen we de garage ook bij de woning betrekken en de draagmuur tussen de woning en garage laten verwijderen. En mocht er budget overblijven willen we mits we een vergunning krijgen bovenop de garage een extra verdieping (uitbouw van een slaapkamer) realiseren
Het bouwbedrijf dat de uitbouw gaat uitvoeren,doet normaliter geen andere werkzaamheden dan uitbouwen en heeft op mijn verzoek toch nog een offerte uitgebracht voor het verwijderen van de draagmuur.
Nu had ik in de tussentijd zelf ook links en rechts informatie en offertes opgevraagd en ben ik ook benieuwd naar jullie mening.
Bouwbedrijf geeft aan dat ze de draagmuur willen verwijderen maar er een deel van de muur zal moeten blijven bestaan (geel gemarkeerd)
Een (erkende) sloopbedrijf heeft aangegeven dat de muur ook verwijderd kan worden maar in de plaats daarvan een verticale balk geplaatst kan worden en ze vaker zien dat bouwbedrijven die buiten hun specialisme werkzaamheden uitvoeren vaak het risico niet durven te nemen, omdat ze niet de juiste kennis/ervaring hebben.
Mijn voorkeur gaat natuurlijk uit om alles bij de bouwbedrijf te laten uitvoeren maar door wat het sloopbedrijf mij vertelde ben ik nu aan het twijfelen.
Het zit hem niet in de prijs maar in het cosmetische deel van het verwijderen vd draagmuur. Omdat de muur/balk erg dichtbij een keukeneiland komt.
Prijsindicaties van bouwbedrijf en sloopbedrijven (onder voorbehoud van constructieberekening) zitten beiden rond de €8.000 incl.btw
Nu zou ik jullie mening ook willen weten over het volgende;
- Zou het ook mogelijk kunnen zijn om de verticale balk helemaal achterin de gevel te laten plaatsen zodat er geen verticale balk zichtbaar is in de ruimte?
- Wat is een logische volgorde? Eerst uitbouw of eerst draagmuur verwijderen?
- Is het handig dat de constructeur ook meteen rekening houdt met een opbouw bovenop de garage?
Ter illustratie heb ik de plattegrond toegevoegd.
- Donkergroen = uitbouw
- Lichtgroen = doorbraak vd bestaande achtergevel
- Rood = doorbreken draagmuur
/f/image/SV18J2PltEpXv7l7Nunh9wfT.png?f=fotoalbum_large)
:strip_exif()/f/image/iKqiQohF4OblBu6JTMNtv3lf.jpg?f=fotoalbum_large)
:strip_exif()/f/image/tZkCYYerytTou5JOWsdj0Yze.jpg?f=fotoalbum_large)